чертежи и схемы, фото примеры
Согласитесь, довольно удобно, когда все вещи размещены в одном месте. Не нужно бегать по квартире в поисках отдельных предметов, все можно посмотреть и примерить в одном месте. Устроить удобное хранение можно даже на маленькой площади. Рационально устроенная гардеробная своими руками (чертежи, схемы и фото будут представлены ниже) сослужит хорошую службу на долгие годы.
Абсолютный порядокСодержание статьи
- 1 Организация гардеробной
- 2 Гардеробная своими руками чертежи, схемы, фото
- 3 Угловые гардеробные в прихожей
- 3.1 Линейное размещение
- 3.2 Параллельный тип
- 3.3 Г-образные гардеробные
- 3.4 П-образные гардеробные
- 4 Гардеробная в спальне
- 5 Устройство из кладовки в хрущевке гардеробной комнаты, планировка с размерами
- 5.1 Размещение входа по длинной стороне комнаты
- 5.2 Размещение входа по торцевой стороне комнаты
- 6 Правильное освещение гардеробной комнаты
- 7 Требования, предъявляемые к вентиляции гардеробной комнаты
- 8 Двери для гардеробной комнаты
- 8.
1 Распашные - 8.2 Раздвижные
- 8.3 Конструкции в виде книжки или гармошки
- 8.4 Двери-купе
- 8.5 Двери-пенал
- 8.
- 9 Наполнение гардеробной комнаты
- 9.1 Системы хранения одежды
- 9.2 Системы хранения обуви
- 9.3 Описание конструкций
- 9.4 Где можно купить наполнение
- 9.5 Можно ли самостоятельно установить начинку
- 10 Как сделать своими руками гардеробную?
- 11 Гардеробные комнаты: дизайн, проекты, фото
- 12 Заключение
Организация гардеробной
Наш комфорт зависит от правильно организованной системы хранения. Согласитесь, когда каждая вещь находится на своем месте, ее легко найти. Основное правило – простор и удобство. Но в малогабаритных квартирах добиться этого сложно. На помощь приходят современные технологии, благодаря которым современные бытовые приборы уменьшаются в размерах, на место книг пришли миниатюрные флешки. Все это освобождает дополнительную площадь.
Перед тем, как запланировать стационарную систему хранения, необходимо рассортировать вещи.
Предметы, которыми давно не пользуемся, можно утилизировать или продать, а для остальных подобрать оптимальную гардеробную.
Правила хранения подразделяют вещи на две ротации.
- Горячую – вещи ежедневного или частого использования. Это не только одежда. Сюда можно отнести гладильную доску, пылесос, коробки с обувью. От их габаритов зависит размер зоны хранения;
- холодную –это предметы сезонного или редкого применения. Например, елочные игрушки, дорожные сумки, бытовые предметы.
Установка отдельного гардероба намного практичнее приобретения шкафа-купе. Его выполняют по индивидуальному заказу, что позволяет максимально эффективно использовать все пространство с идеальным заполнением. Можно установить по готовым чертежам и схемам своими руками гардеробную. Фотоподбрки в интернете помогут определиться с выбором.
Гардеробная своими руками чертежи, схемы, фото
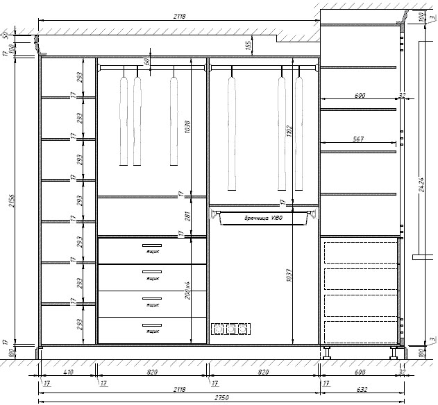
После определения основных параметров, необходимо выполнить чертеж и схему размещения.
Она поможет максимально точно определить расположение всех конструкций. Главным параметром при составлении плана является площадь. Именно она определяет наполнение гардеробной.
Минимальные размеры должны начинаться от 4 кв.м. Для начала необходимо определить место установки. Можно выделить для этого отдельную комнату. Однако такая возможность есть не у всех. Маленькая гардеробная из кладовки в малогабаритных квартирах – это идеальный вариант для хрущевок.
Для монтажа гардеробной комнаты достаточно устроить перегородку в любой комнате. В качестве наглядного примера можно обратиться к готовым решениям гардеробных комнат в фотокаталогах и выбрать свой идеальный вариант гардеробной.
Оптимальные размеры маленькой гардеробнойУгловые гардеробные в прихожей
Как мы определили, размещение угловой конструкции позволит максимально рационально использовать угол комнаты.Достаточно выделить островок площадью 2 кв.м для гардеробной комнаты. Фото интересных проектов размещены в нашем каталоге.
Перегородку можно выполнить из гипсокартона. В данном расположении получается достаточный объем на минимальной площади. Гипсокартон удобен в применении, конструкция получается легкой, после монтажа практически нет мусора.
Внутреннее наполнение можно выполнить двумя способами.
- Все конструкции выстраиваются вдоль одной стеновой поверхности;
- наполнение гармонично устанавливается вдоль обеих стен. Это более предпочтительное расположение, так как пространство используется более рационально.
Дизайнеры предлагают несколько вариантов угловых элементов, с помощью которых обеспечивается максимальная эргономика небольшого пространства. Устройство спиралевидной перемычки поможет увеличить пространство и сгладить острые угла гардеробной.
Совет! Полки в системах хранения лучше оставлять открытыми.
В проекте гардеробной в прихожей необходимо предусмотреть вход с максимальной шириной. Как вариант – устройство дверного полотна с механизмом в виде гармошки, который позволит максимально открыть и одним движением объединить зону хранения с общим пространством.
Линейное размещение
Линейное расположение – это простой и общедоступный проект. Конструкции выстраивают вдоль стеновой поверхности. Такое расположение больше напоминает нишу. Вход можно выполнить при помощи двери-гармошки, которая легко отъедет в сторону, открыв перед собой маленький мир.
Использование выдвижных вешалок позволит одним движением руки приблизить одежду. Для комфортного расположения гардеробную планируют глубиной не менее 1,5 м. Перегородки лучше не устраивать, они займут полезное пространство, не внося никакой функциональности.
Для угловых систем применяют открытые стеллажи и стойки.Готовые идеи в проектах гардеробных комнат можно посмотреть в галереях в интернете.
Линейное размещениеПараллельный тип
Для устройства параллельного размещения необходимо устроить лишь перегородку и наполнить комнату мебелью вдоль параллельных стен. Однако, не все помещения подходят для такого типа. Например, для проходных комнат – это идеальный вариант.
Совсем другое дело – глухая комната, для которой более практично будет размещение П-образной гардеробной.
Для комфортного расположения параллельная гардеробная должна иметь ширину не менее 1,6 м, иначе находиться там будет весьма затруднительно. Стеллажи при этом должны располагаться на расстоянии не менее 80 сантиметров.
Наполнение можно устроить торцевыми вешалками и выдвижными панелями.
Параллельная установка стеллажейГ-образные гардеробные
Такое расположения не требует перегородок. Его можно выполнить неотъемлемым продолжением комнаты. Системы в виде стеллажей увеличивают площадь помещения.
Поскольку основные затраты на устройство системы хранения приходятся на конструкцию перегородки, Г-образная система позволяет существенно сэкономить средства на гардеробной.
Г-образная системаП-образные гардеробные
П-образную систему устраивают как в большом, так и в маленьком пространстве. Это отдельное царство хозяев. В нем можно установить все элементы гардеробных комнат: закрытые ящички, отдельные секции и стеллажи.
Обустройство П-образной системы дает возможность дизайнеру проявить максимальный креатив при заполнении площади. При этом, основная задача – создать помещение с максимальным простором. Для такой системы лучше всего подойдет узкое и длинное помещение.
Для заполнения гардеробной верхние полки делают с большей шириной, тогда там можно разместить предметы редкого использования, например дорожные сумки или крупные коробки.
П-образная установка системГардеробная в спальне
Устройство гардеробной в спальне – это наиболее удачное расположение системы хранения. Если площадь позволяет выполнить монтаж одной из конструкций, смело можно приступать к реализации проекта. Причем, выполнить его вполне можно самостоятельно.
На большой площади идеальной можно назвать П-образную конструкцию. Она максимально разгрузит комнату, оставив при этом достаточно места для перемещения.
Интересным решением станет устройство гардеробной у изголовья. Перегородки можно выполнить в виде раздвижных конструкций или стационарно.
Если площадь спальни совсем небольшая, расстраиваться не нужно. На помощь придет шкаф-гардеробная. Для его размещения потребуется всего около 1 метра ширины комнаты. Грамотно выбранное наполнение позволит разместить в нем все предметы обихода.
Для узких пространств подойдет угловая гардеробная в спальне. Фото дизайнов подбирают согласно общего оформления.
Для проходной комнаты подойдет параллельная система хранения. Можно выполнить предварительные чертежи и наглядно представить окончательный вариант проекта.
Размещение у изголовьяУстройство из кладовки в хрущевке гардеробной комнаты, планировка с размерами
Архитекторы прошлого века при проектировании районов массовой застройки предусматривали в малогабаритных квартирах небольшую кладовку. Дизайнеры предлагают переоборудовать ее в гардеробную комнату маленького размера. Это наиболее удачный вариант для устройства целой комнаты для хранения вещей.
Размещение кладовки в хрущевке выполнялось с входом по длинной стороне общей комнаты или торцевым входом.
Рассмотрим оба варианта переустройства кладовок.
Размещение входа по длинной стороне комнаты
Перед наполнением кладовки следует демонтировать старое обустройство. Для увеличения ширины кладовки можно перенести стеновую конструкцию вглубь комнаты.
Следует знать! Для переноса несущих конструкций необходимо выполнить проект и согласовать его в архитектуре района. Самовольная перепланировка не допускается!
На увеличенной площади размещают П-образную или линейную конструкцию. Полезным вариантом будет размещение двуслойной конструкции. На длинную стеновую поверхность закрепляют стеллажи или полки для открытого хранения. Перед ними – штангу для вешалок. Для того, чтобы взять вещи с полки, следует просто раздвинуть их.
Размещение входа по торцевой стороне комнаты
Переносить конструкции при таком размещении нельзя. В таком случае выбор системы расположения необходимо делать исходя из параметров кладовки. Если ширина комнаты до 1300 мм, можно устроить Г-образную систему.
По узкой стороне устанавливают открытые полки. По длинной – стойку с плечиками, ящики для хранения обуви.
Для более узкого пространства отличным решением будет выкатная вешалка. В комнате на торцевой поверхности размещаются открытые полки для хранения редко
используемых вещей. Вешалка выкатывается в общую комнату.
Можно подыскать интересный вариант устройства своими руками гардеробной комнаты из кладовки в фотокаталогах и мастер-классах в интернете.
Варианты гардеробных в хрущевкеПравильное освещение гардеробной комнаты
Хорошее освещение важно для всего дома и, особенно, для гардеробной. Желательно, если система хранения организована с окном. Но, к сожалению, такое размещение выполнить не всегда удается. Рассмотрим альтернативные естественному варианты освещения. Важно при этом выбирать лампы с теплым освещением.
| Фото | Описание |
| |
| |
| |
|
Это интересно! Мебель в маленьких гардеробных можно выполнить с глянцевыми поверхностями, которые будут отражать излучение и создавать при этом иллюзию объема.
Требования, предъявляемые к вентиляции гардеробной комнаты
Система хранения требует достаточного проветривания. Хорошо, если в гардеробной комнате есть окно. Однако его не всегда удобно держать открытым. Можно оставлять распахнутыми двери. Но, как практика показывает, это тоже не всегда удобно. В таком случае выходом будет устройство естественной или принудительной вентиляции. Доверить эту работу необходимо специалистам, которые подберут оборудование с учетом площади помещения.
Правильно организованная вентиляция избавит не только от неприятных запахов хранения, но и убережет от возникновения грибка или плесени.
Вытяжная вентиляцияДвери для гардеробной комнаты
Двери в гардеробную комнату необходимо выбирать исходя из общей стилистике помещения. Конструкция должна быть удобной и надежной, ведь использовать ее будут по нескольку раз в день. Производители предлагают большой ассортимент продукции, выбор которой может привести в тупик.
Для каждой системы хранения существуют свои рекомендации по выбору дверей.
Распашные
Для их установки требуется свободное пространство по ходу открывания. По правилам пожарной безопасности двери должны открываться внутрь общей комнаты.
Раздвижные
Это конструкция подойдет для маленьких комнат. Для них не нужно предусматривать дополнительное пространство. Дверные полотна свободно перемещаются по горизонтальным направляющим. Конструкции устанавливаются достаточно просто своими руками. Фото гардеробных систем с раздвижными полотнами размещены в каталоге в конце нашего обзора.
Конструкции в виде книжки или гармошки
В первом случае одна часть механизма закрепляется на коробке, вторая при этом двигается на роликах. Система в виде гармошки или книжки состоит из нескольких полотен, соединенных между собой петлями.
Двери-купе
Полотна перемещаются на роликах по направляющим. Для комнаты хранения достаточно одного полотна.
Двери-пенал
Это самая сложная система. Полотно прячется в короб из гипсокартона или в стеновой поверхности.
Внешне выглядят очень красиво и необычно.
Наполнение гардеробной комнаты
Производители предлагают большой ассортимент наполнения для шкафов и гардеробных. Ведь от правильного размещения зависит не только комфортный поиск необходимых предметов, но и срок службы. Поэтому важно рационально подойти к внутреннему наполнению системы хранения.
Системы хранения одежды
Для одежды выбирается средний отсек. Для размещения на вешалках необходимо предусмотреть высоту до 100 см для рубашек и около 170 см для платьев и верхней одежды. Размещение может быть на штангах и пантографах.
Мелкие предметы размещаются на полках или в ящиках.
Системы хранения обуви
Для хранения обуви отводится нижний отсек высотой не более 80 см. Дополнительно можно установить горизонтальные или под небольшим наклоном полки. Удобным будет установка выдвижных конструкций, высота которых должна быть не менее 30 сантиметров для летней обуви и не менее 45 сантиметров – для зимней.
Статья по теме:
Системы хранения вещей для гардеробной. В публикации нашего портала Вы узнаете, что они собой представляют, каких видов могут быть, а так же возможно ли установить подобные конструкции в небольших квартирах или для них необходимо отдельное помещение.
Описание конструкций
При правильном хранении одежды и предметов быта мы продлеваем срок их службы. Рассмотрим поподробнее предложения производителей для рационального использования пространства гардеробной.
| Фото | Описание |
| Штанги для длинной (до 170 см) и короткой (до 100см) одежды. | |
| Пантограф – раздвижная конструкция. | |
| Крепления для брюк высотой не менее 60 см. Могут быть одинарными и двойными. Для юбок подойдут вешалки с защипами. | |
Большие и маленькие ящики для хранения постельных принадлежностей, белья, украшений, аксессуаров.![]() | |
| Выдвижные или стационарные полки шириной до 40 см. Для хранения вещей на антресолях можно использовать полки шириной до 60 см. | |
| Коробки и корзины для хранения различных предметов, которые не нужно утюжить. | |
| Модульные системы для обуви. Обувь на них расставляется или развешивается наглядно на колодках. | |
| Держатели для галстуков, ремней или платков, обычно предлагаются с зажимами. |
Где можно купить наполнение
Многие мебельные магазины торгуют предметами наполнения систем хранения. Важно для начала определиться с точным количеством и размером изделий. Большой ассортимент продукции есть и в интернет-магазинах, торгующих мебельной фурнитурой. Цена будет зависеть от материала исполнения и сложности начинки.
Можно ли самостоятельно установить начинку
Вызывать профессионального мастера для установки наполнения гардеробной не стоит. Эту работу может выполнить даже школьник.
Из инструментов понадобится только дрель и шуруповерт. Все крепежные элементы необходимо купить вместе с начинкой шкафа.
Как сделать своими руками гардеробную?
Процесс монтажа гардеробной комнаты не сложен. Важно перед началом работ выполнить чертеж с максимальной точностью и подобрать все расходные материалы и наполнение. Пошаговый процесс установки открытой конструкции позволит избежать ошибок при монтаже.
| Фото | Описание работ |
| Необходимые инструменты в работе. | |
| Размещаем несущий рельс на выбранной высоте, выравниваем его при помощи уровня по нижней стороне и отмечаем места отверстий. | |
| Дрелью высверливаем отмеченные отверстия. | |
| В отверстия при помощи молотка забиваем дюбели. | |
| Закрепляем несущий рельс саморезами при помощи шуруповерта | |
Установка вертикальных направляющих в пазы горизонтального рельса.![]() | |
| Закрепляем вертикальные направляющие к стене. | |
| Устанавливаем кронштейны на выбранной высоте. | |
| В средние пазы кронштейнов устанавливаем горизонтальные полки до определенного щелчка. | |
| На края кронштейна устанавливаем декоративные заглушки. | |
| Соединяем штангу и подвеску, затем на штангу следует установить заглушки и повесить крючки. | |
| Аналогичным образом устанавливаем корзину с разделительными планками и обувница. | |
| Готовый гардероб. |
Более подробно можно посмотреть в мастер-классе на видео.
Watch this video on YouTube
Скрыть места хранения от посторонних глаз поможет гардеробная за шторой. Фото примеры размещены в каталогах.
Гардеробные комнаты: дизайн, проекты, фото
Гардеробная в квартире – это далеко уже не роскошь, а необходимость последнего времени.
Скорость современной жизни не позволяет тратить время на поиски пропавших вещей. Все должно быть рационально и удобно. Устроить систему хранения можно в любом помещении. С последними новинками дизайнов гардеробных комнат можно ознакомиться в фотоподборке.
1 из 24
Заключение
Для создания идеальной гардеробной комнаты важно определиться с местом размещения и выбрать оптимальный вариант наполнения. Можно купить готовую систему хранения либо выполнить монтаж своими руками по собственному проекту. Результатом будет удобная гардеробная, в которую переместятся все вещи.
Watch this video on YouTube
Обсудить0
Следующая
ГардеробРазмещаем одежду компактно и аккуратно: системы хранения вещей для гардеробной
Гардеробная своими руками чертежи и схемы с фото: размеры комнаты
Гардеробную несложно изготовить самостоятельно, обладая необходимыми знаниями и материалами
Самым удобным приспособлением, позволяющим хранить вещи, является гардеробная.
Каждую деталь гардероба можно расположить в одном месте, не переходя в разные комнаты. Для гардеробной подойдет даже маленькая площадь, в этом еще один ее плюс. Гардеробная своими руками – это довольно легко, особенно имея в запасе чертежи и схемы, в которых есть фото и советы по обустройству будущего помещения.
Содержание материала:
- 1 Гардеробная комната своими руками: чертежи и схемы, предварительные работы
- 2 Понятная схема гардеробной комнаты с размерами
- 3 Чертеж гардеробной с размерами: варианты планировки
- 4 Гипсокартонная маленькая гардеробная: размеры и схемы
Гардеробная комната своими руками: чертежи и схемы, предварительные работы
Перед тем, как планировать самостоятельное возведение гардеробной комнаты, необходимо подготовиться к работе. С этой целью составляются чертежи и схемы, призванные облегчить труд, а также проводится некоторая необходимая работа.
Перед изготовлением гардеробной необходимо составить ее схему
Перед осуществлением задумки стоит:
- Выбрать место для гардеробной.
Подойдет небольшая комната или кладовка, если их нет в наличии, нужно будет возвести еще одно помещение. Объемная ниша, либо мансарда подойдут для этого. - Разработать проект. Нужно будет выбрать размеры комнаты и высчитать нужное количество строительных материалов. На этом же этапе идет продумывание местоположения полок, вешалок и другого внутреннего наполнения.
- Приобрести нужные материалы и инструменты. Для этого закупаются легким металлическим профилем, гипсокартонными листами, элементами крепления, утеплителями, бандажными лентами, грунтовкой, шпаклевкой и шуруповертом.
После измерения комнаты начинают оформлять план. Составляя его, нужно обратить внимание на выдвижные ящики и открывание створок дверей, – им необходимо место для движения.
Составляя схему, стоит ознакомиться с планами профессиональных гардеробных комнат. Там можно почерпнуть занятную идею, к тому же, рассматривая внутреннее содержание шкафов, можно взять его на вооружение.
Необходимо определиться с отсеками в гардеробной. Для этого выбирают необходимое число ящиков и корзин. Составляя план самостоятельно, можно учесть предпочтения всей семьи, в этом плюсы индивидуальной работы. Далее определяется глубина каждого ящика и ниши.
Понятная схема гардеробной комнаты с размерами
Удобная гардеробная – гарант порядка и комфорта. Ее оборудование у себя дома – дело не пяти минут. Чтобы строить чертежи, составлять планы, подбирать материал и создавать ниши, необходимо иметь много времени.
Угловая гардеробная удобна для небольших помещений
Есть несколько принципов планирования:
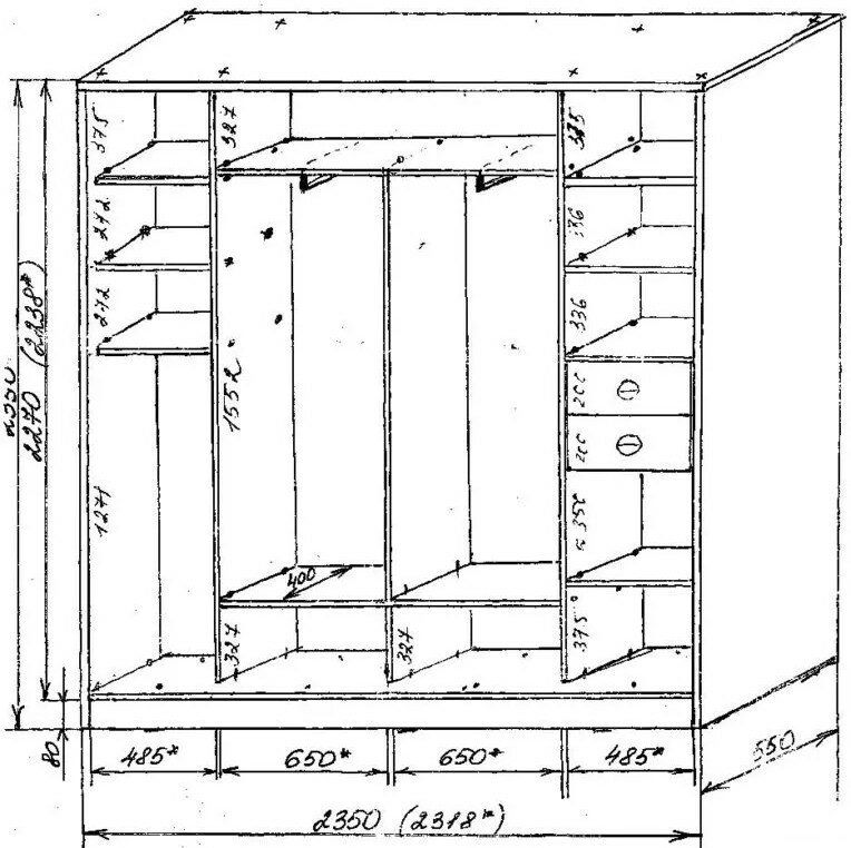
- Угловой. При таком варианте помещение устанавливается в угол комнаты. Это подойдет для маленького помещения, например, спальни. В спальне размером 21 кв. м. можно обустроить вполне объемный гардероб 3,81 кв. м, на схеме его располагают слева от двери. Спальня, с площадью 13,68 кв. м, может вместить гардеробную комнату около 2 кв.
м., а мебель будет располагаться параллельно и перпендикулярно относительно скошенной стены. - П-образный. Такая комната имеет прямоугольную или квадратную форму, где ряд полок и штанг располагается на трех стенах. Такая гардеробная, если она выделена из спальни с помощью дополнительной перегородки, является самым удобным вариантом для планирования.
- Линейный. Имеет форму длинного шкафа, располагающегося вдоль стены (обычно это жилая комната или коридор), в том случае, если другого места для гардеробной нет.
Штанги для платьев и плащей должны закрепляться на расстоянии 140-180 см, а промежутки между полками должны составлять 35-40 см.
Продумывая дизайн, стоит обратить внимание на размеры комнаты и выбранную систему хранения. Металло-каркасный тип конструкций обойдется дороже, но благодаря нему высота полок и корзин может меняться. Подобная система будет выглядеть крайне технично.
Выдвижные ящики, имеющие полки, должны быть расположены на одной стене, штанга – на другой, так будет экономиться место.
Чертеж гардеробной с размерами: варианты планировки
Имея отдельную комнату или нишу под гардеробную, можно привести в порядок дом, избавив его от нагромождения шкафов. Всё, что нужно, – грамотная планировка и избегание ошибок.
Гардеробная экономит место в доме и время на поиски одежды
Есть несколько вариантов планировки:
- Маленькая гардеробная в спальне. Если гардеробная не превышает 3,5 кв. м., не стоит отделять ее от главного помещения: невозможно будет переодеться, подступиться к вещам будет проблематично.
- Установка шкафа вместо гардеробной комнаты. Это рациональный выход, так как шкаф имеет те же размеры, но на саму комнату останется больше свободного места.
- Узкий вариант гардеробной. Имея большую площадь в 5-6 кв. м., подобная гардеробная должна задействовать две стены: на одной устанавливается шкаф, на второй – полки.
- Широкий вариант гардеробной. Является более удобным решением: легко размещается любая мебель, есть место, где можно переодеться.

- Проходной вариант. Если помещать гардеробную между двумя помещениями в квартире, необходимо будет сократить число шкафов, которые могут помешать проходу.
- Тот же вариант, но имеющий удобства. При расположении помещений на одной оси шкафы не будут мешать проходу.
- Под низким углом в мансарде. В низкие места ставятся полки под обувь, они должны быть глубокими, так доступ к вещам будет удобнее. В месте, где потолки высокие, размещается глубокий шкаф под одежду.
- Под высоким углом в мансарде. Используется та же площадь, но этот вариант является более удобным.
Нужно помнить, что узкая гардеробная не может быть рационально оборудована. Вдоль одной стены нужно расположить штангу или шкаф. Необходимо также оставить место для переодевания.
Для хранения обуви в гардеробной понадобятся полки разных размеров, их глубина будет зависеть от размера обуви.
После установки систем хранения в маленькую гардеробную в ней должно быть не меньше 1,5 кв.
м пустого пространства, иначе нет смысла вообще устанавливать в подобном помещении гардеробную.
Гипсокартонная маленькая гардеробная: размеры и схемы
Гипсокартон – самый удобный и экономичный материал для создания гардеробной своими руками, поэтому если есть желание проявить себя в творческом деле и увидеть красивый результат, лучше остановиться на нем.
Выделив место под будущую гардеробную, необходимо найти схему, сделать разметку на каждой стене, потолке и полу, чтобы потом наиболее точно установить конструкцию.
Гипсокартон — удобный материал для самостоятельного изготовления гардеробной
Выбрав место, нужно смонтировать профили, используя дюбеля с гвоздями, а затем установить вертикальные стойки конструкции.
Далее следует:
- Обшить каркас гипсокартоном;
- Установить особые плиты для звукоизоляции;
- Закрепить полки и шкафы гардеробной;
- Перегородки шпаклюются, грунтуются, происходит внешняя отделка;
- Подбираются двери для конструкции;
- Внутреннее оформление.

Возводя гардеробную из гипсокартона, нужно правильно рассчитать материалы. Перед покупкой все расчеты должны уже быть проведены во избежание возникновения проблем.
Гардеробная своими руками (видео)
Даже самая небольшая гардеробная лучше ее полного отсутствия, поэтому, имея в распоряжении нишу, мансарду или кладовку, можно спроектировать место, которое поможет грамотно распределить вещи домочадцев и сберечь нервы всей семьи. Заручившись поддержкой чертежей и схем, это будет просто сделать даже тем, кто только осваивает азы ремонта и строительства.
Дизайн гардеробной своими руками: чертежи и схемы (фото)
План гардероба: полное руководство
Команда по работе с контентом Edraw
Хотите составить план гардероба?
EdrawMax специализируется на построении диаграмм и визуализации. Узнайте из этого плана гардероба полное руководство, чтобы узнать все о плане гардероба.
Просто попробуйте бесплатно прямо сейчас!
Попытайся Свободно
Кому не нравится хороший гардероб? Спросите каждого, кто живет один или с семьей, и они скажут вам, как важно иметь гардероб хорошего размера. В большинстве случаев люди покупают готовый шкаф для своего дома. Однако, если вы продолжите и создайте свой гардероб , убедитесь, что у вас достаточно места для каждой вещи! Проще говоря, план гардероба или чертеж шкафа — это один из первых шагов к хорошо продуманному гардеробу. Если и когда вы спроектировали шкаф идеально, вы сэкономите свое время, когда захотите подготовиться, и поможете себе понять, что вы не идете вперед и покупаете дубликаты одежды. Как сказала
«Создание правильного гардероба похоже на строительство дома. Действительно, вы должны думать о нем как о доме, потому что это то, в чем вы собираетесь жить. Он должен быть удобным и соответствовать всем вашим потребностям».
В этом подробном руководстве, чтобы понять дизайн гардероба, мы расскажем вам о важности правильного размера гардероба, элементах шкафа, преимуществах наличия плана гардероба и многом другом. Когда вы ознакомитесь с этим подробным руководством, у вас будут идеальные заметки, которые помогут вам легко создать чертеж гардероба с помощью EdrawMax. В дополнение к этому мы выложили некоторые из важных символов плана гардероба , которые помогут вам в долгосрочной перспективе!
1. Что такое план гардероба
Планирование гардероба или дизайн гардероба позволяет вам легко определить, что вам нужно, узнать, что вы хотите, и получить доступ к тому, что уже есть в вашем шкафу. В дополнение к этому вы гарантируете, что эффективно сэкономите пространство комнаты, создав хороший дизайн гардероба.
Как вы видите здесь, планирование гардероба заключается в создании различных секций в шкафу в зависимости от ваших текущих и будущих потребностей при размещении одежды, обуви и других конкретных нарядов для некоторых особых случаев.
1.1 Размер гардероба и его размещение
Когда вы садитесь за создание гардероба для своей квартиры или комнаты, вы должны понимать размеры и расположение шкафа. Убедитесь, что вы не ставите шкаф в таком месте, которое будет мешать прохожему. В то же время вам нужно будет получить доступ к пространству, чтобы узнать идеальный размер шкафа, поскольку он также определит, будут ли двери шкафа раздвижными или распашными. Например, для двухдверного распашного шкафа потребуется минимальная длина стены 1000 мм или 3 фута. Однако, если вы хотите две раздвижные двери в этом шкафу, ваш план этажа должен быть в состоянии сэкономить как минимум 7 футов.
В то же время, если ваша комната компактна или вы живете в таких районах, где у вас нет подходящего места для гардероба, настоятельно рекомендуется использовать конструкцию шкафа-купе с зеркалом. Разместив зеркало на верхней части шкафа, вы гарантируете, что используете его наилучшим образом.
1.2 Элементы дизайна гардероба
Три основных элемента играют важную роль в разработке плана гардероба для вашей квартиры или дома.
Этими основными элементами являются:
- Как вы хотите представить себя другим?
- Что вы хотите хранить в своем шкафу?
- Какую одежду вы обычно носите?
В дополнение к этому, дизайн гардероба включает в себя несколько других элементов, таких как полки шкафа, корзины, стеллажи, штанги для вешалок, системы выдвижных ящиков, распашные или раздвижные двери, потолочные светильники, ленточные светильники и многое другое. Здесь следует отметить, что хороший чертеж шкафа покажет, что для вашего шкафа требуется отличный материал, совместимая фурнитура, желаемые аксессуары, точные размеры и точная установка.
1.3 Идеальная высота для дизайна гардероба
Идеальная высота любого дизайна гардероба — очень субъективная тема, так как высота будет варьироваться в зависимости от нескольких факторов, включая высоту вашей квартиры, количество одежды, которое у вас есть, правильный бюджет, который вы можете потратить на дизайн гардероба, и многое другое.
Еще один важный аспект, который вы должны учитывать при работе над планом гардероба, — это учитывать свой рост. Например, если вы ростом пять футов, вам будет проблематично получить доступ к содержимому верхней полки гардероба высотой семь футов. Как правило, высота шкафа-купе варьируется от 7 до 8 футов. Если вы опуститесь ниже этой высоты чертежа, это повлияет на его эргономичный дизайн и вместимость.
Что такое план гардероба:
Планирование гардероба заключается в создании различных секций в шкафу в зависимости от ваших текущих и будущих потребностей при размещении одежды, обуви и других конкретных нарядов для некоторых особых случаев.
- Гардероб Размеры и размещение: Когда вы садитесь за создание гардероба для своей квартиры или комнаты, вы должны понимать размеры и расположение шкафа.

- Элементы дизайна гардероба: Это зависит от того, что вы хотите представить другим, что вы хотите хранить в шкафу, какую одежду вы обычно носите.
- Идеальная высота для дизайна гардероба: Установите соответствующую высоту шкафа в соответствии с окружающей средой и вашими собственными условиями.
2. План, фасад и разрез
Работая над планом гардероба или любым другим важным планом здания, вы столкнетесь с такими терминами, как «План», «Фасад» и «Секция». Чаще всего дизайнеры интерьера путаются в терминологии. Поэтому, пожалуйста, используйте это руководство в качестве справочного материала, чтобы понять значение, сходства и различия между планом гардероба, высотой и секцией.
План гардероба представляет собой визуальное представление на горизонтальной плоскости, изображающее вид сверху. Вид конструкции гардероба иллюстрирует рисунок в вертикальной плоскости, на котором показаны внешние и внутренние шкафы шкафов.
Наконец, чертеж секции гардероба прорезает пространство, чтобы показать, что находится внутри — это может быть подробный чертеж шкафов или запирающихся шкафчиков.
Позвольте нам помочь вам лучше понять план, фасад и разрез:
- Графика «План шкафа» часто используется для изображения расположения шкафа, показывая расположение полок, шкафов и тип дверей, которые вы планируете использовать.
- План фасада шкафа-купе строится с вертикальной плоскости, смотрящей прямо на фасад шкафа или внутреннюю планировку.
- Чертежи в разрезе планов гардероба представляют собой орфографические проекции, то есть они нарисованы не в перспективе и без ракурса.
3. Преимущества плана гардероба
Как и любое другое планирование, план гардероба или чертеж гардероба также служат некоторым из наиболее важных целей. Некоторые из основных преимуществ наличия плана гардероба включают в себя:
- Дизайн гардероба позволяет вам сэкономить время, решая, что вам надеть, поскольку все в вашем гардеробе будет размещено в нужном месте.

- Создавая дизайн гардероба, вы гарантируете, что сэкономите деньги на покупке ненужной одежды, которая может не сочетаться с остальными нарядами.
- Еще одним важным преимуществом наличия дизайна гардероба является меньше стресса, поскольку вы знаете, что у вас есть что надеть для любого случая.
Еще одно ключевое преимущество рисования гардероба заключается в том, что он поддерживает устойчивость и помогает вам идти по пути медленной моды.- Создавая план гардероба, вы тратите меньше времени на поиск, покупку и возврат вещей.
4. Символы плана гардероба
Чтобы эффективно создать план гардероба, вам потребуется базовое понимание его важных символов. Эти символы позволяют легко создать план гардероба и убедиться, что ваш дизайн шкафа технически правильный.
Все символы, которые вы видите здесь, в этом разделе плана гардероба, легко доступны на EdrawMax. Даже если вы не найдете подходящего символа, вы можете создать свой план гардероба для будущего использования.
- Сундук : Символ сундука представляет собой сундук, который представляет собой мебель с ящиками для хранения одежды.
- Верхний ящик : Символ Tob Box представляет собой верхний ящик, который находится в верхней части шкафа.
- Вешалка : Символ вешалки представляет собой вешалку, которая представляет собой фигурный кусок металла или пластика, на который можно повесить одежду, чтобы сохранить ее форму.
- Фоторамка: : Символ фоторамки представляет собой рамку, которая представляет собой декоративную окантовку для фотографии, предназначенную для ее улучшения или проецирования.
- Droplight : Символ Drop Light представляет собой Droplight, который мы повесили внутри шкафа, чтобы видеть одежду в темноте.
- Чемодан : Символ чемодана представляет чемодан, продукт в форме коробки, который мы используем для хранения нашей шерстяной одежды.
- Двойная дверь : Символ двойной двери представляет собой дверцы гардероба.

- Крючки :Символ крючка обозначает крючки, которые мы помещаем внутрь шкафа, чтобы повесить одежду.
5. Как разработать план гардероба в целом
Есть два способа создать план гардероба — один из них — это старый традиционный способ, когда вы садитесь с ручкой и бумагой, чтобы все записать, а другой — вы используете инструмент, хорошо оснащенный для создания плана гардероба. Прежде чем мы поделимся простыми способами создания плана гардероба, давайте познакомим вас с традиционными способами создания схемы.
Создание плана гардероба сложно, если у вас нет доступа к символам. Итак, еще до того, как вы начнете посещать сайт, вы должны доработать все важные символы, которые могут вам понадобиться при создании плана высот.
Шаг 1: проанализируйте комнату
Еще до того, как вы приступите к разработке плана гардероба, вы должны понимать размеры своей комнаты. После того, как вы проанализировали высоту и ширину комнаты, вы можете приступить к работе над дизайном своего гардероба.
Шаг 2. Определите свою потребность
После того, как размеры записаны, вы должны сначала увидеть, насколько большой шкаф вам нужен. Чтобы понять это, вы должны сначала найти свою одежду и рассортировать ее в зависимости от ее использования и приоритета. Это даст вам приблизительное представление о том, сколько шкафов, полок или вешалок вам понадобится при создании гардероба.
Шаг 3: Найдите правильный дизайн
Существуют сотни различных дизайнов шкафов, которые вы можете использовать для создания своего гардероба. Например, у вас может быть шкаф-купе или распашные двери, или установить зеркало поверх него.
Шаг 4. Обсудите с плотником
Если вы работаете над планом гардероба для собственного дома или квартиры, вам всегда следует консультироваться с вашим плотником, так как именно он знает, как правильно разместить все компоненты гардероба. Примите их предложение и начните создавать дизайн своего гардероба.
Шаг 5. Доработка концепции
Отметив все важные аспекты, можно приступать к добавлению в гардероб нужных вещей. Не забудьте сделать гардероб немного большим, потому что вы никогда не знаете, сколько еще новой одежды или обуви вы получите в ближайшем будущем. Доработайте концепцию соответствующим образом и приступайте к работе.
Советы по планированию гардероба:
- понимать размеры своей комнаты;
- Определите приблизительное количество шкафов, полок или вешалок, которые вам понадобятся при создании гардероба;
- Найдите правильный дизайн;
- Примите предложение столяра и начните создавать дизайн своего гардероба;
- Завершите концепцию.
6. Как нарисовать план гардероба в EdrawMax
Теперь, когда вы поняли основные символы и поняли, насколько сложно создать план гардероба с использованием традиционных методов, пришло время провести вас через этапы создания вашего первого дизайна гардероба с помощью EdrawMax.
Даже если вы впервые пользуетесь этим инструментом, вы найдете его интуитивно понятным и удобным для пользователя. Если вы проектировали Elevation целую вечность, вы найдете все важные инструменты и символы в библиотеке символов, представленной в EdrawMax.
Вместо того, чтобы тратить время на составление плана гардероба на бумаге, вам следует найти способ легко разработать план гардероба. EdrawMax хорошо оснащен для разработки плана гардероба. Есть всего пара шагов, которые вам нужно выполнить, чтобы легко создать его, например:
Шаг 1. Откройте EdrawMax и войдите в систему.
Если вы используете автономную версию EdrawMax, откройте инструмент в своей системе. Если вы хотите иметь удаленную совместную работу, перейдите на https://www.edrawmax.com/online/ и войдите в систему, используя зарегистрированный адрес электронной почты. Если вы впервые используете этот инструмент, вы можете зарегистрироваться, используя свой личный или служебный адрес электронной почты.
Шаг 2. Создайте контуры
План гардероба — это понимание высоты комнаты, размеров и того, какие шкафы вы будете использовать в шкафу. Помните, что размеры и символы играют здесь важную роль. Таким образом, вы можете легко настроить их или импортировать с панели управления EdrawMax. При этом обратите внимание на размеры и масштабы конструкции шкафа-купе, которые вы будете использовать для создания шкафа.
Шаг 3 Выбор шаблона
Если вам нужен доступ к бесплатным шаблонам плана гардероба, нажмите на опцию «Шаблоны» на левой панели инструмента EdrawMax и введите «План гардероба» в строке поиска. Вы увидите сотни бесплатных шаблонов планов гардероба, доступных на EdrawMax. Нажмите на любой из этих шаблонов и начните настраивать их в соответствии с вашими требованиями. Кроме того, вы также можете щелкнуть «План здания» в левой части панели диаграммы. Откроются различные типы диаграмм, такие как план этажа, план электроснабжения и телекоммуникаций, план рассадки и т.
д. Нажмите на ‘план гардероба’. Откроется несколько шаблонов планов гардероба.
Шаг 4 Создать с нуля
Чтобы создать план гардероба с нуля, нажмите «План здания», , который вы можете найти на левой панели инструмента. После нажатия вы увидите список различных «планов зданий», которые вы можете создать с помощью EdrawMax, таких как план этажа, план дома, планировка офиса и т. д. Нажмите «план гардероба» и нажмите ‘+’ , чтобы разработать дизайн шкафа с нуля.
Шаг 5. Выберите символы
EdrawMax поставляется с более чем 50 000 векторных символов. Вы найдете все необходимые символы на холсте для рисования, такие как вертикальная доска, сундук, ящик, вешалка, куртка, коробка, подушка, одеяло, полотенце, костюмы, чемодан, пальто, рама, двустворчатая дверь, настольная лампа и многое другое. Вы можете импортировать их на холст и начать настройку по мере необходимости. Если вы не нашли нужный символ плана гардероба в библиотеке символов, вы можете создать свой символ и сохранить его в разделе библиотеки для использования в будущем.
Размер шкафа
Грудь
Горизонтальная доска
Вертикальная доска
Вагонка с размером
Горизонтальная вагонка
Вертикальная вагонка
Верхняя коробка
Подушка
Шляпа
Голубое платье
Красное платье
Футболка
Рубашка
Игрушка
Фоторамка
Кабинет Свет
Дроплайт
Потолочный светильник
Настольная лампа
Узнайте больше о символах гардероба и попробуйте перетащить символы, которые вы хотите настроить для своих планов гардероба.
Шаг 6. Добавьте компоненты
Чтобы сделать дизайн гардероба выделяющимся, вы можете начать добавлять различные компоненты, которые будут сочетаться с комнатой. Например, вы можете разместить ночник рядом с дизайном вашего гардероба, чтобы он выглядел аутентично.
Шаг 7 Изменить размер
Вы найдете «Размеры» в разделе «Символ».
Нажмите на тот, который вам нужен. EdrawMax позволяет изменять их размер без потери форматирования. Нажмите и удерживайте их и увеличьте или уменьшите их размер в соответствии с вашими требованиями.
Шаг 8 Экспорт или обмен
Как только ваш план гардероба будет готов, вы можете легко поделиться им, используя специальную функцию обмена EdrawMax. Этот создатель плана шкафа позволяет экспортировать файл в несколько форматов, таких как JPEG, PNG, PPTX, PDF и т. д. В дополнение к этому вы можете легко поделиться планом гардероба по электронной почте или на различных платформах социальных сетей, таких как Facebook, Pinterest, Линия и LinkedIn.
По сути, создать план гардероба в EdrawMax очень просто, просто возьмите шаблон и продолжайте настраивать, перетаскивайте символы профессионального гардероба, чтобы сделать свой план лучше. Если вы все еще не знаете, как сделать дизайн гардероба или план гардероба в EdrawMax, просто проверьте это руководство по дизайну гардероба или просмотрите видео ниже.
Или вы можете найти больше обучающих видео на нашем Youtube
7. Примеры и шаблоны плана гардероба
Есть 4 примера планов гардероба, которые вы можете использовать сразу. Просто щелкните изображение, чтобы загрузить EdrawMax, и соответственно загрузите шаблоны. Затем дважды щелкните, чтобы открыть шаблоны и настроить их по своему усмотрению. Или откройте шаблоны из EdrawMax Online и продублируйте шаблоны. Нажмите на этот пример плана гардероба , чтобы получить больше вдохновения.
Пример 1: план шкафа
Ниже приведен цветной дизайн шкафа с дверью и несколькими шкафами, вешалками, полками и многим другим. В дополнение к этому мы разместили несколько предметов одежды, одеял, корзин, подушек, полотенец и коробок, чтобы дизайн гардероба выглядел подлинным. Здесь следует отметить, что самый быстрый и разумный способ увеличить вместимость существующего шкафа — использовать стандартизированную систему шкафов.
На изображении показано подходящее место для ящиков, обуви и одежды, такой как костюмы или платья с цветочным принтом.
План шкафа
Пример 2: Конструктивная схема шкафа
На следующем шкафу показан дизайн шкафа, созданный в EdrawMax. Как показано на изображении, есть несколько способов улучшить дизайн шкафа, использовать вертикальный размер, получить доступ к освещению, понять выбор шкафа и спроектировать невидимость. Стандартизированная система шкафов — это самый быстрый и разумный способ увеличить вместимость существующего шкафа. С EdrawMax вы можете легко изменить цвет или тему дизайна гардероба.
Схема дизайна шкафа
Пример 3: Пример планировки гардероба
В следующем плане гардероба мы использовали несколько шкафов, полок, вешалок, выдвижных стеллажей для обуви, открытые двери и даже отдельное место для хранения наконечников. Чтобы дизайн шкафа выглядел аутентично, вы можете добавить в него различные предметы, такие как одежда, полотенца, головные уборы, одеяла, подушки и многое другое.
С EdrawMax вы можете легко настроить эти бесплатные шаблоны планов гардероба и поделиться ими со своими коллегами или плотниками.
Пример планировки гардероба
Пример 4: план шкафа Ketal
В следующем дизайне шкафа вы видите, как мы сохранили несколько полок, чтобы использовать максимальное пространство. В соответствии со следующей конструкцией гардероба у нас есть несколько свободных полок, фиксированных полок и раздвижных дверей. Здесь следует отметить, что планирование гардероба — это первый шаг к хорошо подобранному гардеробу. Это помогает нам выбирать одежду, обувь и аксессуары, которые подходят для нашего окружения, образа жизни, личных предпочтений и потребностей.
План Гардероба Кеталь
8. Бесплатное программное обеспечение для планирования гардероба
Теперь, когда вы поняли важность создания дизайна гардероба в EdrawMax , давайте познакомим вас с некоторыми из удивительных особенностей этого создателя плана гардероба , которые принесут вам пользу в долгосрочной перспективе.
Помните, что EdrawMax позволяет создавать более 280 типов диаграмм, что означает, что вы можете создавать большинство новейших диаграмм, таких как блок-схемы, диаграммы Венна, организационные диаграммы и т. д., и делиться ими в различных форматах, которые вы считаете подходящими. Некоторые из удивительных особенностей этого бесплатного программного обеспечения для планирования гардероба:
ключевых особенностей EdrawMax:
- EdrawMax поставляется с онлайн-версией, доступ к которой можно получить, перейдя по адресу https://www.edrawsoft.com/online/. С онлайн-версией этого бесплатного программного обеспечения для планирования гардероба вы можете легко удаленно сотрудничать со своей командой и даже делиться своими проектами на нескольких платформах социальных сетей, таких как Facebook, Twitter, Pinterest, LinkedIn, Line и других.
- EdrawMax содержит более 50 000 векторных символов, размер которых можно изменять, перекрашивать и менять форму. Эти бесплатные символы гардероба помогут вам создать красивый дизайн и убедиться, что вы уже правильно представляете материал, который вы можете использовать, когда садитесь со своим плотником и начинаете работать над дизайном шкафа.

- С EdrawMax у вас никогда не закончатся идеи. У нас сильное сообщество из более чем 25 миллионов зарегистрированных пользователей, которые постоянно обновляют разделы шаблонов. Как дизайнер интерьеров, вы можете перейти в раздел сообщества шаблонов и воспользоваться любым дизайном, над которым хотите поработать.
- EdrawMax разработан и спроектирован профессионалами, работающими в этой отрасли десятилетиями. Удобный интерфейс предлагает функцию перетаскивания, которая позволяет новичкам эффективно работать над планами гардероба.
- EdrawMax оснащен несколькими вариантами настройки — от настройки линии гардероба, цвета линии, стиля линии, размера шрифта, цвета шрифта, цвета текста, добавления векторного текста и т. д., и вы можете легко настроить каждый элемент дизайн вашего шкафа.
EdrawMax для настольных ПК
Создайте более 280 типов диаграмм
Windows, Mac, Linux (работает во всех средах)
Профессиональные встроенные ресурсы и шаблоны
Локальное программное обеспечение для бизнеса
Безопасность данных корпоративного уровня
EdrawMax Онлайн
Создавайте более 280 типов диаграмм онлайн
Доступ к диаграммам в любом месте и в любое время
Сообщество шаблонов
Управление командой и сотрудничество
Интеграция личного облака и Dropbox
ПЫТАТЬСЯ ОНЛАЙН
9.
Заключительные мыслиШкаф – один из самых функциональных предметов мебели в доме. Как вы узнали здесь из дизайна шкафа , шкаф остается неотъемлемой частью каждого дома. В этом руководстве мы помогли вам понять важность плана гардероба и того, как некоторые элементы, такие как распашные и раздвижные двери, дизайн интерьера, панели, фурнитура, ручки, освещение, системы выдвижных ящиков и другие аксессуары, будут сочетаться с дизайном гардероба. . Создание плана гардероба подпадает под изучение дизайна интерьера и столярного дела. Даже если у вас нет необходимых навыков рисования, с EdrawMax , вы можете эффективно создавать дизайн гардероба и делиться им со своими клиентами.
EdrawMax — это один из таких инструментов, который позволяет вам создавать план этажа, план отражения потолка, схему ОВКВ, план безопасности и доступа, план фасадов, план гардероба и многое другое — все вместе на одной чертежной доске! С помощью этого удивительного конструктора шкафов вы гарантируете, что ваши проекты идеально соответствуют реальным размерам и формам, и в то же время шкаф выглядит великолепно, когда вы, наконец, разместите его в своей комнате.
В общем, EdrawMax — один из лучших инструментов для рисования для создания плана шкафа для вашей квартиры, а благодаря бесплатным шаблонам и векторным символам вы никогда не ошибетесь с дизайном шкафа.
→Загрузить сейчас: полное руководство по планированию гардероба
Полное руководство по плану этажа
Ознакомьтесь с этим полным руководством, чтобы узнать все о плане этажа, например о типах плана этажа, символах плана этажа и о том, как составить план этажа.
УЧИТЬ БОЛЬШЕ
Вам также может понравиться
Бесплатное программное обеспечение для проектирования шкафов с шаблонами
Создавайте проекты гардеробов без особых усилий с помощью массивных встроенных шаблонов и ресурсов символов в EdrawMax.
Доступно для:
Нам доверяют более 25 миллионов пользователей и ведущие бренды
Зачем EdrawMax разрабатывать дизайн вашего гардероба?
Грамотно спланируйте свой гардероб
Дизайн-план гардероба в EdrawMax: Планирование и проектирование того, как будет выглядеть ваш гардероб, поможет вам определить, какая одежда подходит именно вам.
С нашими шаблонами планов гардероба проектирование вашего гардероба становится простым и эффективным.
Гардероб легко спроектировать: С этим конструктором гардероба вы найдете все функции и элементы в одном месте. Более того, всю процедуру можно выполнить за несколько минут и всего за пару шагов.
Подходит для всех: EdrawMax подходит для всех, даже у вас нет дизайнерских навыков. Как новичок, вы можете использовать предустановленные шаблоны, выбирать символы из нашей библиотеки и создавать профессиональные дизайны в один миг.
Мощное программное обеспечение для проектирования гардероба
Пользовательский интерфейс и панель инструментов: Интуитивно понятный интерфейс позволяет перетаскивать все символы, значки и фигуры из библиотеки. Кроме того, используйте все виды панелей инструментов, чтобы настроить свой гардероб, например, цвет, стиль, макет и многое другое.
Разнообразные шаблоны и символы: Вы можете начать работу над дизайном своего гардероба, используя более 3500 встроенных шаблонов.
Кроме того, он предлагает библиотеку символов с более чем 50000 символов на выбор. Эти символы доступны каждому! Даже если вы не найдете соответствующих символов, вы можете создать свой символ для использования в будущем.
Режим фокусировки для концентрации: В режиме фокусировки вы можете сосредоточиться на своем дизайне в полноэкранном режиме, что значительно повысит вашу эффективность и позволит с легкостью спроектировать шкаф.
Экспортируйте, делитесь и вдохновляйтесь
Экспорт файлов в нескольких форматах: EdrawMax позволяет экспортировать ваши файлы в несколько форматов, таких как MS Office, Graphics, PDF и другие.
Поделиться в социальных сетях: Когда вы закончите работу над окончательным планом дизайна, EdrawMax также даст вам возможность поделиться им с друзьями в социальных сетях, таких как Facebook, Twitter, LinkedIn и других.
Вдохновитесь сообществом шаблонов: EdrawMax не только дает вам возможность творить, но и делится своим планом с более чем 25 миллионами зарегистрированных пользователей.
Ваши проекты могут быть полезны в будущем другим дизайнерам.
Облачная командная работа
Совместимость со всеми системами: EdrawMax совместим со всеми системами, такими как Windows, Linux, iOS, веб-сайтами и другими. Вы можете получить доступ к своим файлам из любой точки мира.
Личное облако: Здесь вам предлагается бесплатное облачное хранилище объемом 100 МБ, которое может помочь автоматически сохранить работу и мгновенно сохранить ваши личные файлы.
Совместная работа в облаке: Благодаря облаку люди могут создавать команду и управлять участниками для просмотра или редактирования общих файлов.
Дополнительные функции программного обеспечения для дизайна гардероба
Импорт и экспорт файлов Visio.
Как спроектировать гардероб в EdrawMax?
Посмотреть обучающее видео >>
Шаблоны дизайна гардероба Edraw
Дизайн гардероба
Шаблон дизайна гардероба с планом гардероба поможет вам увидеть общую компоновку гардероба, а также внутреннюю и внешнюю планировку.

1 Распашные
Кроме того, оно создает иллюзию маленького будуара.


Подойдет небольшая комната или кладовка, если их нет в наличии, нужно будет возвести еще одно помещение. Объемная ниша, либо мансарда подойдут для этого.
м., а мебель будет располагаться параллельно и перпендикулярно относительно скошенной стены.



