Откатные ворота — 70 фото установки и идеи монтажа лучших современных моделей
Ограждение частных территорий заборами, перекрывающими проникновение и обзор участка, широко применимая практика. Но для проезда через него необходимы ворота, которые часто занимают большое полезное пространство. Выходом из этой ситуации является установка откатных ворот.

Содержимое обзора:
Преимущества и недостатки
Конструкция смещения полотна ворот в сторону от проема обладает рядом преимуществ перед традиционными распашными воротами:
- Экономия места на участке. Полотно ворот не требует наличия зоны открытия, пересекающейся с проезжей частью.
- Отсутствие проблемы с провисанием полотна и деформации петлевых узлов.
- Надежное фиксирование ворот в закрытом положении позволяет использовать их даже при высокой ветровой нагрузке.

Помимо этого стоит отметить широкий выбор возможных вариантов исполнения щита ворот и большой выбор средств автоматизации.

К недостаткам можно отнести необходимость дополнительного фундамента под опоры и необходимость в отсутствии препятствий в зоне действия ворот. Цена на откатные ворота выше, чем на распашные конструкции в среднем на 10-15%.
Виды
Сдвижные ворота можно разделить на несколько подвидов, различающихся по конструкции: подвесные и консольные. Подвесные чаще используются для монтажа в проемы ангаров и других зданий технического назначения. Они надежны, но их монтаж связан с некоторыми трудностями и для него необходима спецтехника.

Консольные ворота проще в монтаже и, за счет направляющих устройств расположенных снизу, позволяют устанавливать их на улице. Они не боятся снега или пыли, устойчивы к сильному ветру. Вес конструкции распределяется на фундамент, расположенный сбоку от проема.

Для небольших ворот вместо бетонируемого основания допускается использование винтовых свай.

Особенности проектирования
Расчет конструкции откатных ворот начинается с построения схемы. Необходимо определить требуемую ширину и высоту полотна ворот, исходя из чего потом выбрать тип заполнения.

После этого рассчитывается противовес, исключающий «клевание» ворот вниз в зарытом положении.

Для ворот с большой площадью не рекомендуется использовать в качестве материала дерево, так как размер противовеса и общая масса ворот будет высокой. Это потребует увеличения фундамента.

После этих этапов можно приступать к изготовлению чертежей откатных ворот. Самым простым вариантом является обращение в одну из производственных компаний.
Конструкция
Рассмотрим подробнее конструктивные особенности данного вида ворот.

Основой полотна консольных сдвижных ворот является несущая балка. Она представляет собой прокатный П-образный профиль, толщиной от 3 мм. Нижние грани должны быть параллельны земле для большей защиты, но между ними необходим зазор.

На эту балку монтируется все полотно ворот, включая противовес, поэтому подбирать габариты и толщину металла следует внимательно.

На фундамент устанавливается основание, обычно состоящее из швеллера с приваренными к нему болтами. На эти болты, впоследствии, становятся роликовые опоры, имеющие регулировку по высоте.

Размер роликовых опор должен соотноситься с размером используемой балки, а шаг между опорами выбирается исходя из ширины перекрываемого проема. Ролики откатных ворот необходимо периодически чистить от загрязнений и смазывать для плавной работы и отсутствия скрипов.

На торцы балки устанавливается крышка (на заднюю сторону) и поддерживающий ролик (спереди). Они служат для предотвращения съезда балки с роликовых опор, а поддерживающий ролик позволяет плавно заводить полотно в нижний ловитель, избегая ударов и повреждений.

Для большей устойчивости сверху полотно поддерживается направляющими устройствами, обеспечивающими отсутствие перекоса. Они монтируются на столбах и регулируются при первом запуске ворот.

Автоматизация открытия и закрытия
Для дистанционного управления откатными воротами на рынке представлено множество вариантов. Привод, обычно, располагается в нижней части возле роликовых опор. Для передачи усилия с него на полотно ворот устанавливается зубчатая рейка.

Рекомендуется оснащать автоматические ворота системой фотоэлементов, для предотвращения получения травм или повреждения техники при их закрытии. Датчики устанавливаются в проем ворот и, при перекрытии линии контакта блокируют команды, поступающие на привод.

Приобретение готовых вариантов или самостоятельное изготовление
Купить готовые откатные ворота — наиболее простое решение. В каждом регионе существуют дилеры, реализующие продукцию известных компаний. При обращении к ним Вам не потребуется проводить расчет конструкции самим. Также монтаж ворот можно доверить обученным людям, что снизит вероятность возникновения проблем при эксплуатации.
Цена на откатные ворота формируется из следующих особенностей:
- размеры проема;
- материал заполнения;
- форма полотна ворот;
наличие средств автоматизации.

Фото откатных ворот








































Также рекомендуем просмотреть:
Откатные ворота из профнастила | Стоимость изготовление от компании «Заборово»
Сдвижные ворота с автоматическим управлением один из самых популярных способов организации въезда на территорию, в гараж или ангар. Для компактных участков откатные ворота из профнастила являются единственной подходящей моделью, поскольку они имеют одну створку, которая не открывается, а перемещается вдоль стены. Это позволяет сэкономить площадь и использовать сдвижную систему с автоматикой там, где другие конструкции установить невозможно.
Для изготовления используется стальной профиль и одно- или двухсторонний профилированный лист, электропривод, автоматика. Полимерное покрытие дополнительно защищает от коррозии и увеличивает срок эксплуатации.
Не забудьте обратить внимание на действующие АКЦИИ !
Рассчитайте стоимость забора онлайн
Виды откатных ворот из профнастила и их основные достоинства
У нас можно купить следующие модификации сдвижных систем:
- Рельсовые. Компактные и удобные. Полотно перемещается по направляющим, установленным на подготовленное ровное основание.
- Подвесные. Массивные конструкции для промышленных объектов. Обеспечивают высокую степень защиты от взлома и проникновения.
- Консольные. Модель, для установки которой не нужен специальный проем. Используется для разных объектов, бесшумно работает.
Каждая модификация имеет свои особенности, к их общим «плюсам» относится:
- Прочность, устойчивость к осадкам и сильному ветру.
- Удобное управление с помощью пульта ДУ.
- Экономия площади участка.
- Длительный срок эксплуатации — до 15 лет.
Полотно из профлиста стоит недорого по сравнению со стальным листом или художественной ковкой. Оно может быть окрашено в любой цвет из коллекции RAL, обработано антикоррозионным составом. Возможно изготовление моделей с калиткой, с элементами защиты.
Тонкости монтажа автоматических откатных ворот из профнастила
При установке важно соблюдать технологию и технические требования:
- Для свободного открывания вдоль стены или забора должно быть свободное пространство, равное 1,5 ширине проема.
- Калитку следует устанавливать на стороне, противоположной движению створки.
- Чтобы снизить нагрузку на автоматику, площадку перед монтажом следует выровнять.
Лучше всего, доверить монтажные работ профессионалам нашей компании, которые работают по всей Московской области.
Как формируется стоимость откатных ворот из профлиста и от чего это зависит?
Цена рассчитывается в смете для каждой системы с учетом таких факторов:
- Типа и параметров конструкции.
- Необходимости покраски или декорирования.
- Дополнительных опций – фотоэлементов, домофона.
- Особенностей конфигурации и рельефа участка.
Почему стоит заказывать ворота откатные с автоматикой у нас на сайте?
У нас можно заказать сдвижную систему от производителя с современной автоматикой и установкой под ключ. Наши услуги – это:
- Полный комплекс работ, пуско-наладочное тестирование.
- Установка в любой день, включая выходные.
- Честный расчет стоимости в детальной смете.
- Доставка по Москве и Подмосковью.
- Официальная гарантия на работу и конструкцию.
Откатные Ворота Из Профнастила Своими Руками (Инструкция)
Откатные ворота вполне можно сделать своими руками и в данной статье подробно описан весь процесс создания консольной конструкции с обшивкой из профнастила.

Преимуществом консольной конструкции является полная свобода проезда от каких-либо ограничений: ни направляющих балок сверху не будет, ни постоянно засоряющегося рельса снизу.

Консольная конструкция опирается на пару роликовых опор, вынесенных за пределы воротного проема. Ролики заведены внутрь направляющего рельса в основании створки, что позволяет воротам перемещаться.

Каретки установлены как можно дальше друг от друга, чтобы эффективно удерживать на весу створку. Естественно, что и сама конструкция ворот будет увеличена в 1,5 раза, так что вдоль забора должно быть соответствующее свободное место для отката.
Подготовительные работы
На месте строительства ворот делают разметку. Растительный слой предварительно следует удалить.
Основные оси столбов удобно обозначить метровыми отрезками арматуры. Берутся 4 таких прута 10-12 мм в диаметре и выставляются по углам прямоугольника будущих ворот. Далее проверяются диагонали, при совпадении арматура забивается в грунт таким образом, чтобы на поверхности осталось лишь 15-20 см.
Временные оси можно обозначить электродами. Периметр и диагонали показываются шпагатом или леской, натянутыми на арматуру и электроды. Игнорировать данный этап не следует, чтобы потом не оказалось, что столбы находятся не на одной линии, и ворота не могут беспрепятственно ходить вдоль них на минимальном расстоянии.
Земляные работы
По готовой разметке можно готовить приямки: два квадратных под фундаменты столбов и один удлиненный для закладной под роликовые опоры. Углубляться следует ниже характерной для данного региона глубины промерзания, обычно около метра.
Размеры приямков выполняются не в обрез, а сантиметров на 5 больше, чем длина и ширина планируемого столба. Тогда и кирпичную кладку будет удобнее начинать.

Яма для фундамента под роликовые опоры в длину достигает 1/2 ширины проезда, а в ширину — 25-30 см (обычно на ширину штыка лопаты).

Если грунт склонен к осыпанию, то следует выполнить опалубку, вполне подойдет конструкция из старых досок. Взрыхленный грунт на дне готового приямка проливают водой для утромбовывания.
Подготовка к бетонированию металлоизделий
В фундамент должны быть забетонированы сердечники будущих воротных столбов и швеллер-основа под роликовые опоры. Данные металлоизделия следует предварительно подготовить, очистить от ржавчины, обезжирить, прогрунтовать, правильно выставить, укрепить распорками, чтобы при заливке бетона не произошло случайное смещение.
Для сердечников принято брать трубы 80*80 мм или 100*100 мм. Длину следует отмерить примерно на 10 см меньше, чем сумма высоты столба и глубины фундамента. Делается это для того, чтобы между нижним краем трубы и грунтом оставалась прослойка бетона, а сверху можно было оборудовать козырек без выступающих краев профиля. К примеру, при высоте столба 1,8 м и глубине фундамента 1 м сердечник будет 2,7 м.
С помощью гидравлического уровня сердечник выставляется строго вертикально и надежно фиксируется распорками. Дополнительную надежность оси столба можно обеспечить с помощью пары отрезков арматуры длиной по 15-20 см и толщиной 8-10 мм. Данные стержни привариваются к сердечнику снизу крестообразно, что упрощает установку сердечника и повышает надежность фиксации в толще фундамента.

На время застывания бетона и строительства столбов следует предотвратить попадание внутрь труб атмосферных осадков. Для этого достаточно закрыть верхний срез полиэтиленом.
Под роликовые опоры необходим надежный фундамент с закладной деталью, так как основное давление всей конструкции придется именно на данный участок. В качестве закладной берут горячекатанный швеллер, подойдет №22-24. По длине данная закладная должна быть в половину ширины проезда.
К швеллеру привариваются снизу несколько вертикальных «ножек» из арматуры длиной около 80 см и толщиной 8-10 мм, между собой они соединяются горизонтальными отрезками для придания большей жесткости конструкции. Благодаря такому каркасу закладная хорошо закрепляется в теле бетона, а сам фундамент становится прочнее.

Закладную устанавливают в подготовленный приямок «ножками» вниз, добиваясь такого положения, чтобы поверхность швеллера была заподлицо с проезжей частью. Горизонтальность размещения проверяют гидроуровнем.

Очень важно не допустить смещений и перекосов, чтобы створка затем легко выставилась и плавно перемещалась.
Электропроводка под будущую автоматику
Кроме установки металлических элементов, которые будут вмонтированы в фундамент, стоит предусмотреть подводку кабелей для автоматизации. Не важно, сразу будет установлен электропривод или со временем, лучше на этапе создания фундамента и возведения опор позаботиться о скрытой проводке, чем затем тянуть ее снаружи.
Электропривод с блоком управления располагают между роликовыми опорами посредине или ближе к проезду. Именно сюда придется подводить провод от источника питания. На ближайший опорный столб выводится провод для сигнальной лампы в верхней части и кабель для одного из фотоэлементов на обращенную к проезду грань столба выше 50 см от земли. Кабель для второго фотоэлемента необходимо вывести на второй столб точно против первого. Под проездом лучше прокладывать провода в водопроводной пластиковой трубе, в остальных случаях – в гофрированной.
Бетонирование
Можно заказать готовый бетон, подойдет марка М 200. Также смесь для бетонирования вполне можно приготовить самостоятельно из расчета на 1 кг цемента М500 по 2 кг песка и 3,5 кг щебня, плюс вода до нужной консистенции. Если работы предполагается вести при отрицательных температурах, то придется добавлять еще противозаморозковые добавки, что сделает смесь более дорогостоящей. Так что лучше проводить работы с бетоном при благоприятных погодных условиях.
Заливка бетона должна производиться с тщательной утрамбовкой, исключающей образование пустот. После завершения работы следует убедиться, что сердечники и закладная не сдвинулись, проверив положение с помощью уровня.

Залитые фундаменты необходимо оставить для застывания и набирания достаточной прочности, что займет не менее недели. Желательно оградить их от прямых солнечных лучей – можно просто накрыть чем-либо. Чтобы не появились трещины, бетон в первые пару дней после заливки поливают водой.
Во время вынужденной паузы между бетонированием и возможностью возводить столбы на полностью окрепшем фундаменте можно сделать саму створку ворот.
Создание кирпичных столбов с нащельниками
Для кладки применяется цементно-песчаная смесь М100. В теле столба будут предусмотрены три закладные для крепления нащельников. Размещаться они будут на грани, обращенной во двор. Первый из них крепят после третьего ряда кирпичной кладки. В качестве закладной берется металлический уголок 40*40*70 мм, который приваривается отрезком арматуры толщиной 8 мм к сердечнику столба. Верхнюю закладную следует разместить на 10-15 см ниже верхнего обреза створки, а средняя берется на равном удалении от этих крайних.

К этим закладным привариваются нащельники, на которых в дальнейшем будут крепиться некоторые элементы фурнитуры.

Они же призваны закрывать щель между полотном ворот и опорным столбом, откуда и появилось их название.
В качестве нащельников берутся трубы 60*30 мм, 50*50 мм или 60*40 мм. По высоте один должен просто достигать верха створки, при этом верхний срез надо «заглушить» для защиты от попадания внутрь воды. Второй, который будет расположен со стороны отката, стоит взять чуть длиннее, чтобы можно было приварить к нему верхние ролики.
Создание створки откатных ворот
Створка представляет собой установленную на направляющий рельс металлоконструкцию из двух каркасов – внешнего несущего и внутреннего вспомогательного для крепления обшивки. В нашем случае берется профнастил в качестве полотна ворот. На практике обшивка может быть иной –металлическая сварная сетка, дерево, ковка и т.д. Вес полотна следует учитывать при выборе подходящей фурнитуры.

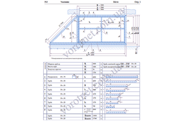
Работу над створкой начинают с чертежа с учетом всех размеров и расчетом необходимых материалов. На выходе должна получиться не только схема, но и список труб каркаса с указанием точных габаритов.
Заостряю внимание на том, что с комплектом фурнитуры Світ Воріт™ персональный чертеж и спецификацию можно заказать бесплатно. Для этого следует указать ширину проема, а также желаемую высоту створки от уровня земли. С данными документами можно смело отправляться на металлобазу, чтобы приобрести точное количество материалов сразу с порезкой.

Вернемся к нашей створке. Для консольной конструкции она будет увеличенной: сама створка плюс хвостовик, обычно скошенный. При закрытой створке именно этот дополнительный треугольник опирается на роликовые каретки, удерживая конструкцию за счет взаимодействия роликов и рельса. Створка при этом в проезде двигается на весу, без каких-либо дополнительных опор. В то же время она действует как рычаг на ролики, поэтому и важно длину хвостовика брать в половину длины самой створки, разводя опоры как можно дальше друг от друга.
Внешний каркас чаще всего выполняют из труб 60*40 мм или 50*50 мм, внутренний – 40*20 мм или 30*20 мм, но возможны и другие варианты. Выбор зависит от толщины профнастила и характера обшивки, чтобы расположить полотно заподлицо с внешней рамой. При двухсторонней обшивке внутренний каркас будет крепиться строго по центру внешнего, оставляя с обеих сторон пространство для монтажа полотна. Скажем, с волной 20 мм можно взять внешний каркас 60*40 мм, а внутренний – 40*20 мм, приваривая именно узкой частью, тогда с обеих сторон останется по 20 мм на обшивку. При односторонней обшивке внутренний каркас можно несколько сместить к одному краю, чтобы «утопить» профнастил с другого. К примеру, внешний 50*50 мм, а внутренний 30*20 мм приварить широкой частью, но со смещением, оставляя лишь с одной стороны место под профнастил.
Если говорить о толщине труб, то достаточно брать 2 мм. Такие материалы способны обеспечить необходимую жесткость воротам, при этом не будут излишне утяжелять конструкцию.
Элементы перед свариванием зачищают от ржавчины, обезжиривают и грунтуют.

В основании створки обязательно будет направляющий профиль из комплекта фурнитуры. Его длина составляет 1,5 ширины проема. Именно внутрь данного рельса заводятся ролики, обеспечивая удержание и перемещение всей конструкции.
Иногда уже готовую створку «выставляют» на рельс. Но чаще все же именно с направляющей начинается весь процесс сборки конструкции ворот. В этом случае каркас набирают в высоту.
Опытные монтажники предпочитают обеспечить направляющей временные опоры внизу. С обоих краев на нижнюю грань с прорезью приваривают перпендикулярно рельсу по отрезку трубы длиной по полметра и сечением 20*30 мм или чуть больше. Рельс на «ножках» устанавливается на ровной поверхности, уровнем проверяется его горизонтальное положение. Так как каркас будет «расти» вверх, надо убедиться, что конструкция с данными опорами будет устойчивой.
К рельсу сверху приваривается первая несущая труба каркаса. Сплошной шов делать недопустимо – направляющую просто поведет. Крепят трубу прихватками по 1,5-2 см и шагом 60-70 см, выполняя швы по обе стороны трубы, но не друг против друга, а в шахматном порядке.
Далее выставляются две вертикальные трубы с обязательной проверкой гидроуровнем их положения. Для начала они только прихватываются сваркой.

Устанавливается и прихватывается верхняя труба каркаса, проверяется горизонталь. Далее сравниваются диагонали: при совпадении элементы можно закрепить окончательно, обварив на стыках по периметру, в противном случае производится корректировка.

Следующей приваривается диагональная «хвостовая» труба, которая также является частью внешнего каркаса. На этом сборка несущей части будет завершена.
На следующем шаге собирается вспомогательный каркас, к которому затем будет прикручиваться профнастил. При двусторонней обшивке малую трубу приваривают по центру большой, чтобы полотно створки утапливалось на одинаковое расстояние с обеих сторон или было заподлицо с внешним каркасом в зависимости от толщины материала.

- Первым делом создается внутренний периметр каркаса.

Но так как створки обычно довольно крупные, то этого недостаточно – нужны еще ребра жесткости, выполняющие роль дополнительных мест для крепления обшивки. Сначала приваривается горизонтальная перемычка.

- Далее стоит установить 1-2 вертикальных ребра.

Впрочем, данный момент индивидуален – на узких воротах может оказаться достаточно одного, на более широкой потребуется большее их количество.

Сварочные швы после окончания сборки каркаса можно защищать с помощью болгарки и грунтовать. Далее производится окрашивание полученной конструкции в три слоя.
Есть способ и быстрее собрать каркас. Для этого необходимо использовать Т-профиль.
Профнастил можно прикрутить сразу, но чаще это делают после установки ворот, чтобы не повредить полотно при монтажных работах. Крепить удобно саморезами по металлу под головку №8. Учитывая небольшие габариты внутреннего каркаса, обычно берут длиной не более 19 мм.

Листы профнастила подгоняются по одному. Треугольную часть зашивать не требуется.

Роль каждого элемента фурнитуры

Комплектующие для откатных ворот Rolling Expert 400
Есть в наличии
конструкция раздвижных ворот из профнастила, модели из металла со встроенной калиткой внутри
При обустройстве территории частного дома одним из главных вопросов, встающих перед хозяевами, является возведение забора и установка ворот. Чаще всего выбор заказчиков останавливается именно на откатных воротах со встроенной калиткой. Они практичны, удобны, имеют приятный вид и не занимают много места. В данной статье рассматриваются преимущества и особенности данного типа ворот, а также их разновидности.
Особенности
Откатные ворота – это подвижная створка забора, которая с помощью автоматизированного привода или ручного механизма отодвигается в сторону, образуя проезд для автомобиля. В открытом положении створка располагается параллельно с ограждением. Такие ворота можно сделать как одностворчатыми, так и двустворчатыми. В целях противопожарной безопасности материалом таких конструкций является металл.
Калитку внутри раздвижных ворот рекомендуется устанавливать тогда, когда нет возможности оборудовать ее рядом с ними. При этом очень важно правильно рассчитать место установки дверцы: ее нельзя встраивать слишком близко к краю или в центре ворот.
Как правило, оптимальное месторасположение дверцы высчитывают, отмерив один метр от одного из краев ворот.
Конструкция данного вида ворот состоит из следующих частей:
- рама в форме прямоугольника;
- цельное металлическое полотно с местом под калитку;
- калитка с притворной планкой;
- направляющие полозья;
- роликовые опоры, установленные непосредственно в фундамент;
- электрический привод.
Для подвижной части откатных ворот, как правило, берут стальной или профилированный лист. Он устанавливается в основную раму, которая, в свою очередь, производится из профильной трубы. Месторасположение самой калитки определяется во время составления чертежа всей системы.
Особенности и преимущества
Сдвижные ворота с калиткой внутри имеют как явные преимущества, так и некоторые особенности, которые следует обязательно учитывать при их выборе и установке.
Плюсы откатных ворот со встроенной калиткой очевидны:
- Надёжность конструкции и ее компактность. Система экономит часть площади забора и представляет собой вариант «два в одном», для которого достаточно сделать лишь один просвет в ограде вместо двух. Саму калитку можно установить в любом удобном месте по желанию хозяина, кроме, как уже было сказано выше, центра.
- Удобство эксплуатации. Подвижная створка перемещается абсолютно бесшумно и очень плавно, так что она не доставляет никакого дискомфорта. Если же рядом с конструкцией будет находиться человек, он успеет отойти в сторону.
- Устойчивость к любым погодным условиям. За воротами легко ухаживать, они имеют длительный период эксплуатации.
Что касается других особенностей, прежде всего, раздвижные ворота со встроенной калиткой дают возможность людям входить и выходить за пределы забора без включения откатной системы. С одной стороны, это очень удобно и хорошо смотрится. С другой стороны, этот нюанс имеет и некоторые недостатки, которые нужно иметь в виду еще на раннем этапе проектирования:
- Например, монтаж откатных ворот со встроенной калиткой требует больших денежных затрат, особенно по сравнению с другими видами конструкций.
- Чтобы смонтировать консольную часть раздвижной системы и привода, необходимо в обязательном порядке установить бетонный фундамент, на котором он будет держаться. Во время проектирования ограды придётся оставить часть площади вдоль него свободной для откатывающейся створки.
- Важно помнить, что даже если калитка слегка приоткрыта, сдвижная система работать не будет.
- К сожалению, придётся столкнуться с некоторыми неудобствами при выборе замка и дверной ручки. Расстояние между воротами и опорной конструкцией ограничено. Если ручка будет слишком большой, она может помешать открытию ворот.
- Ещё одним недостатком является высокий порог, который сможет стать серьезным препятствием для свободного движения детей с велосипедами, тележками и пожилых людей. Неудобства почувствуют и высокие люди, которым придётся нагибаться под верхней перекладиной, чтобы не удариться.
Также дополнительная створка дверей сильно влияет на общий вес конструкции, поэтому жесткость рамы снижается.
Виды откатных ворот
Существует три вида откатных систем для подобных ворот, каждый из которых имеет свои плюсы и минусы:
- Подвесной. В данном случае крепление двигающейся створки соединяется с верхом направляющего рельса на уровне от двух с половиной до пяти метров. Высота подвесного ограждения зависит от типа самого объекта. Минусом такого вида открывания является ограниченная высота проема, которая может стать препятствием для больших грузовиков и других высоких транспортных средств.
- Откатной по рельсу. Механизм открытия происходит благодаря рельсовой направляющей, которая установлена на земле. Именно по ней двигается вся конструкция. Раздвижная часть держится за счёт скоб с роликами, которые прикреплены непосредственно к столбу. Минусом такой системы является невозможность установки в местах с повышенной ветровой нагрузкой.
- Консольный. В этом случае конструкция сдвижных ворот со встроенной калиткой держится благодаря балке, которая соединяется с вертикальными опорами с помощью роликовых тележек. Сами опоры монтируются в фундамент рядом с отверстием. Направляющий блок может устанавливаться в любом месте: внизу, сверху или в середине двигающейся створки.
Для любых ворот, имеющих откатной принцип открывания, необходимым условием является наличие свободной площади вдоль ограждения. Для подвесных и рельсовых видов конструкций длина этого места должна соответствовать длине движущейся створки.
В случае выбора консольного типа ворот данный промежуток придётся увеличить в два раза.
Варианты материалов для сдвижных ворот
Одним из самых распространённых и экономичных вариантов материала для откатных ворот со встроенной калиткой является полотно из профилированного листа или, как его сокращённо называют, профнастила. Закрепляется он на рамке из профильной трубы.
Данный вид конструкции может позволить себе каждый хозяин, но многие отказываются от него из-за внешней простоты.
Однако если подключить немного фантазии, то даже такой экономичный забор можно сделать достаточно интересным. Нужно лишь провести по краю профнастила уголок, и вы получите прекрасные ворота с презентабельным внешним видом.
Также можно использовать для креплений не обычные закрепы, а кровельные саморезы, подобранные в цвет полотна. Такая ограда будет производить впечатление своеобразной крепости, ведь верхняя часть саморезов внешне схожа с клепками бронированных листов.
Ещё одним вариантом для сдвижных ворот с калиткой является евроштакетник. Многие ошибочно думают, что он представляет собой нарезанный на несколько частей профнастил. На самом деле подобные ворота по конструкции похожи на заборы из деревянных штакетников, только штакетина в данном случае является металлической.
Плюсом такого забора, в отличие от деревянного, является устойчивость к влаге. От коррозии же он защищён слоем цинка и специальным покрытием из полимера.
Также евроштакетник не нужно красить каждые два года, как ограду из дерева.
От профнастила данный материал отличается тем, что из-за расстояния между частями он не является сплошным забором. Это обеспечивает проникновение дополнительного света и воздуха на участок рядом с ним.
Если хозяевам нужно закрыть часть своей территории от посторонних взглядов, можно уложить дополнительный ряд штакетин с оборотной стороны в зазорах между первым рядом. В таком случае ограда становится непрозрачной, но при этом продуваемость остаётся практически прежней.
Также стоит отметить, что евроштакетник легко сочетается с другими материалами (камнем, кирпичом или деревом).
В качестве дополнительного украшения раздвижных ворот можно использовать декоративные кованые элементы. Причём устанавливать их можно не только на отдельные части ворот, но и вдоль всего периметра. Такой прием может придать территории весьма достойный вид.
Обзор откатных ворот с калиткой и инструкция по монтажу представлены в следующем видео.
1340 фотографий гофрированных ворот — бесплатные и лицензионные фотографии из Dreamstime
Старые проржавевшие гофрированные ворота. Старые заржавевшие гофрированные синие ворота, шероховатая текстура или фон. Ворота закрывающиеся с замком
Ворота металлические гофрированные белые. Ворота металлические рифленые белые с малым замком
Зеленые ворота из гофрированного листового металла. Янгон, Мьянма
Ворота из окрашенного гофрированного металла закрываются на навесной замок.Окрашенные гофрированные металлические ворота закрываются навесным замком с ржавой сверхпрочной металлической цепью
Гофрированные ворота из черного железа. городской темный фон, рольставни. Гофрированные ворота из черного железа. Городской темный фон, рольставни
Забор из гофрированного железа и ворота возле дома в гватемальской деревне. Сан-Хуан-дель-Обиспо, Гватемала — 25 июня 2017: забор из рифленого железа и ворота возле дома в
Ржавый гофрированный металл красная стена и ворота.Фон и текстура для текста или изображения
Фасадная стена склада с металлическими гофрированными воротами. Фасадная стена склада с серыми гофрированными металлическими воротами
Закрытые гаражные ворота из коричневого рифленого металла с дверным проемом и окнами на гипсовой стене. Закрытые гаражные ворота из профнастила коричневого цвета с дверным проемом и двумя окнами на
Гнутая рифленая дверь ворот с направляющими.Близко, Мятый, Металл, текстура, Гранж, Поверхность, старый, Металлический, задний план, грубый, дизайн, железо, Ржавый
Ворота гофрированные. Самодельные ворота из рифленого железа
Ворота из гофрированного металла закрываются на навесной замок. Окрашенные гофрированные металлические ворота закрываются навесным замком с ржавой сверхпрочной металлической цепью
Забор и ворота из листов синего профнастила.Забор и ворота из листов синего профнастила
Забор и ворота из листов синего профнастила. Забор и ворота из листов синего профнастила
Забор и ворота из листов синего профнастила. Забор и ворота из листов синего профнастила
Забор и ворота из листов синего профнастила. Забор и ворота из листов синего профнастила
Металлические ворота коричневые рифленые.Фрагмент ворот металлический коричневый гофрированный
Закрытая створка старых ржавых железных ворот в стене из рифленого железа. Заброшенное производственное здание. Гранж.
Забор и ворота из металлопрофиля коричневого цвета. И клумба перед ними
Старая открытая раздвижная дверь с задвижкой и защелка на облупившейся двери из гофрированного железа.Старые незапертые раздвижные двери и защелка на шелушении покрашены
Забор и ворота из металлопрофиля коричневого цвета. И клумба перед ними
Ворота из профнастила синие. Ворота из профнастила синие
Крупный план серой гофрированной металлической поверхности на двери ворот.
ТК «Остроконечные ворота».Вид сбоку на стену из интенсивного цветного рифленого железа торгового центра с наклонной заостренной зубчатой частью открытого входа
Современная стена складского здания с закрытыми металлическими воротами. Закрытые металлические рифленые ворота коричневого цвета, стена склада, вид спереди
Здание склада из красного кирпича с воротами и окном. Ворота рифленые в кирпичном доме несколько этажей со старым окном и надписью на
.Абстрактная текстура рисунка гофрированного металлического листа.Железные ворота, Стальная дверь
Железные ворота. Крупным планом вид натюрморта ржавых ворот из гофрированного железа
.1311 фотографий раздвижных ворот — бесплатные и лицензионные фотографии из Dreamstime
Ворота безопасности. Раздвижная система безопасности для жилых домов
Откатные ворота в паркинг. Откатные ворота на современную городскую подземную платную автостоянку
Автоматическая раздвижная дверь для ворот Метро. Автоматические откатные ворота метро на перроне метро
Мотор шестерни раздвижной и открыватель колесных ворот.
Автоматические откатные ворота серый современный дом. Автоматические откатные ворота серый современный дом
Металлический сдвижной замок с ручкой, установленной на Деревянные садовые ворота, дверной ригель.
На белом фоне синий металлический запорный вентиль для газопроводов. Задвижка со скользящим ножом Запорная и регулирующая арматура. Изолированный. Современные запорные устройства позволяют
Детали системы откатных ворот.Автоматические двери и мотор. Части системы откатных ворот. Автоматические двери и моторчик ворот
Jetty Ferry Kuala Perlis-13 августа — Вы видите отражение на воротах раздвижных дверей. Увидеть отражение изображения на воротах раздвижных дверей утром
Детали откатных ворот. Элементы стыковки современных автоматических откатных ворот
Раздвижные современные ворота, изолированные на белом фоне, обтравочный контур.Включено
Шестерня раздвижная и открыватель колесных ворот.
Забор выдвижной складной на роликах. Хромированный барьер на роликах. Откатные ворота на роликах. Пешеходный барьер. Баррикадные ворота.
Стальные откатные ворота. И дверь фон
Крупным планом — рука ребенка закрывает серебряную задвижку на воротах.Снимок крупным планом детской руки, закрывающей серебряную задвижку на воротах
Ворота распашные металлические раздвижные. Мандалай, Мьянма
Автоматические откатные ворота с горизонтальными ламелями. Металлические жалюзи для забора
Автоматические откатные ворота с горизонтальными ламелями. Металлические жалюзи для забора
Кирпичный забор с фонарями и деревянными откатными воротами на ул. Брусчатка.Фото
Старая открытая раздвижная дверь с задвижкой и защелка на облупившейся двери из гофрированного железа. Старые незапертые раздвижные двери и защелка на шелушении покрашены
Крупным планом раздвижной замок на деревянных воротах. Крупным планом раздвижной замок на деревянных коричнево-красных воротах
Автоматические металлические откатные ворота с металлической планкой серого цвета. Автоматические откатные металлические ворота с металлической планкой серый
Ржавые откатные ворота.Красивая старая ржавая плита откатных ворот
Человеческая рука, запирающая болт. Замок стальной ригельный на воротах. Человеческая рука запирающая ригель
Современные раздвижные въездные ворота антрацитового цвета, видимая нижняя скоба. Современные раздвижные въездные ворота антрацитового цвета, видимая нижняя скоба
Современные раздвижные въездные ворота антрацитового цвета, видимые верхние направляющие ролики.Современные раздвижные въездные ворота цвета антрацит, видимые верхние направляющие ролики
Металлические откатные ворота. Мандалай, Мьянма
Металлические откатные ворота. Сием Рип, Камбоджа
Металлические откатные ворота с потертостями. Янгон, Мьянма
Металлические откатные ворота с потертостями. Металлические раздвижные ворота, Янгон, Мьянма
Металлические откатные ворота с потертостями.Металлические раздвижные ворота, Янгон, Мьянма
Металлические раздвижные ворота потускневшие. Сием Рип, Камбоджа
Фрагмент старых откатных ворот. Ржавые откатные ворота, вид снизу
Белые автоматические восходящие откатные ворота на синем гараже с зеленым светофором.
Старый серебряный замок на железной раздвижной двери и старинные металлические ворота или дверь для дома охраны.Дверь, ручка, винтаж
Старый серебряный замок на железной раздвижной двери и старинных металлических воротах. Или дверь для охраны дома. дверь, ручка, винтаж
.откатных ворот по лучшей цене в Индии
Популярные товары: Откатные ворота
Автоматические телескопические откатные ворота800
рупий Brosis International Откатные ворота38000 рупий
Система Pioneer Раздвижные ворота125 рупий
Рулонные ставни Shreeji (подразделение Bhavani Steel Furniture Industries) Автоматические наружные ворота60 000 рупий
SRTEC Автоматизация Ручные промышленные ворота68000 рупий
Smart Sense Automation Раздвижные ворота .
