Перепланировка хрущевки: фото дизайна 2-комнатной квартиры
Некогда читать? Смотрите видео!
Перепланировку хрущевки из 2 комнат, если она меняет границы стен в помещении или инженерные системы, нельзя начинать без узаконивания. Для этого нужно обратиться в БТИ и взять там технический паспорт. Кроме него понадобятся подтверждение права собственности, готовый проект будущего жилья и согласие всех владельцев. Все это нужно будет принести в местную районную администрацию и получить разрешение. Хорошая новость в том, что в подобных квартирах, особенно в кирпичных домах, можно сносить почти все перегородки.
Если разрешения не будет, владелец может получить штраф, в некоторых случаях — обязательство вернуть квартиру в первоначальный вид.
Содержание:
Виды и особенности хрущевок:
— Книжка
— Трамвай
— Распашонка
Способы перепланировки:
— Снос всех перегородок
— Разделение смежных помещений
— Объединение гостиной с кухней
— Перепланировка со смежными комнатами и кладовкой
Дизайнерские приемы оформления
Перечислим самые распространенные варианты таких двушек.
Книжка
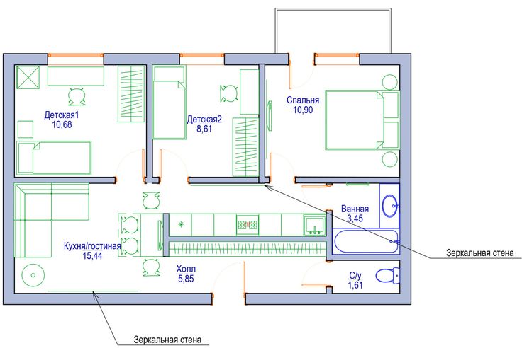
На картинке ниже представлена планировка, которую в народе называют «книжкой». Ее общая площадь составляет 41 квадратный метр. Помещение поделено на две смежные комнаты, маленькую кухню, санузел. Это самый проблемный проект не только для жизни людей, но и для перепланировки. Чтобы изолировать спальню и гостиную, придется ощутимо уменьшить их размеры.
Фото: Instagram @remont_or_design
Проблема такого жилья заключается в том, что одна из комнат — проходная. Санузел, как правило, совмещенный, а значит, расширить его можно только за счет коридора или установки душевой кабины вместо ванны.
Трамвай
Еще один похожий план называют «трамваем»: комнаты здесь расположены одна за другой, как в одноименном транспорте. Одна из них — проходная. Это более просторное жилье (48 кв. м.) с ванной, туалетом и прихожей. Установка новых перегородок и разделение общей площади трудновыполнимы, но возможны.
Фото: Instagram @kovpak_katerina
Организация и подготовка
Перепланировка хрущевки: идеи для всех типов квартир и готовые планы
Распашонка
«Распашонка» — более удачная планировка. Жилые помещения в ней расположены симметрично и изолированы друг от друга. Но увеличить их или кухню будет сложно без ущерба для площади.
Фото: Instagram @inter_pro_studio
Ванна и туалет бывают как совмещенными, так и раздельными. Также почти во всех двушках есть маленькие балконы.
Гостиная
Дизайн гостиной в хрущевке: делаем маленькую комнату красивой и удобной без перепланировки
Помимо изначальной планировки, на новый проект влияют запросы конкретной семьи. Мы приведем несколько общих идей, которые можно подстраивать под себя. Важный момент в подготовке к ремонту — независимо от выбранного направления, в жилье выделяют несколько участков:
- Спальный
- Гостиный
- Кухонный
Зонирование необходимо, даже если вы сделаете из квартиры студию. Разделенная на функциональные части, она будет более комфортной для жизни. Это можно сделать с помощью гипсокартонных ширм или других дизайнерских приемов. Рассмотрим сначала именно этот вариант.
Маленькие комнаты
Выжать максимум: 4 примера перепланировки маленькой квартиры
Снос всех перегородок
В этом случае убирают стены, которые не являются несущими и не относятся к санузлу.
Такой вариант вполне уместен, когда в квартире живет один или два человека. На фото — примеры интерьеров, воплощенных на такой площади.
фото
Фото: Instagram @malenkayakvartira
Фото: Instagram @malenkayakvartira
Фото: Instagram @malenkayakvartira
Фото: Instagram @malenkayakvartira
Фото: Instagram @artremont78
Фото: Instagram @artremont78
Фото: Instagram @malenkayakvartira
Фото: Instagram @malenkayakvartira
Фото: Instagram @small.flat.ideas
Фото: Instagram @small.flat.ideas
Фото: Instagram @small.flat.ideas
Разделение смежных помещений
Когда в хрущевке 2 смежные комнаты, перепланировка гораздо сложнее. В этом случае придется пожертвовать жилой площадью в той или иной степени. Если спальня расположена за гостиной, действуют несколькими способами:
- Продолжают прихожую на всю ширину проходного помещения.
Оно уменьшится, но во вторую комнату можно будет сделать отдельную дверь. Так поступают в «книжках». - Вариант «трамвай» улучшают так: сносят перегородку между жилыми участками и строят разделяющий их глухой коридор вплоть до прихожей. В получившемся простенке делают гардеробную, дополнительную кладовую.
Фото: Instagram @kovpak_katerina
Вариант перепланировки квартиры-трамвая
Объединение гостиной с кухней
Можно убрать перегородку полностью, чтобы получить большое единое пространство. Правда, если у вас установлена газовая плита, так делать нельзя. Даже просто отсутствие двери не допускается — нужна гармошка или выдвижная конструкция. Альтернативный вариант — стеклянная стена, сдвинутая в сторону гостиной или кухни. Она отгородит зону приготовления еды и в то же время расширит полезную площадь.
Фото: Instagram @sfunt.interior
Можно полностью отгородить кухню от гостиной перегородкой из стекла и дерева с раздвижной или обычной дверью.
Кухня
Ремонт кухни в хрущевке: варианты дизайна и 58 фото для вдохновения
Объединенные помещения можно обыграть также стенкой или гипсокартонными формами, расположенными в центре — параллельно окнам. Второй вариант — частичный снос перестенка в высоту на ⅔ или половину. При этом часто устанавливают вдоль оставшейся стены и окна широкий подоконник наподобие барной стойки. Примеры дизайна — на фото.
9фото
Фото: Instagram @proremont1
Фото: Instagram @proremont1
Фото: Instagram @idea_proremont
Фото: Instagram @idea_proremont
Фото: Instagram @malenkayakvartira
Фото: Instagram @home.
perfection
Фото: Instagram @houzz_ru
Фото: Instagram @houzz_ru
Фото: Instagram @galereiavdokhnoveniia
Есть еще способ увеличить кухонное пространство и объединить его с остальной квартирой — устранение дверного проема, ведущего в кухню. Его закладывают, таким образом делая одну из перегородок длиннее. После этого формируют новый проход, ведущий в гостиную.
Квартира
Перепланировка 3-х комнатной квартиры в хрущевке: тонкости согласования и 35 примеров
Перепланировка хрущевки с 2 смежными комнатами и кладовкой
Из двухкомнатной квартиры с проходным помещением можно сделать жилье для семьи с ребенком или двумя детьми. Оно получится небольшим, но у каждого будет свой уголок. В одном из них останется маленькая кладовая. У гостиной и второй комнаты убирают часть перегородок и увеличивают коридор от входной двери.
Для удобства одну из стен делают скошенной на 45 градусов.
Фото: Instagram @theburhanspace
Также возможен вариант, когда гостиная объединяется с прихожей. Проход в кухню закладывают и объединяют коридор с санузлом. Из кухни в большую комнату прорубается дверь, а спальную зону делят на две части ломаной линией, чтобы в каждом помещении был закуток под шкаф или гардеробную.
В некоторых квартирах можно расширять комнату на территорию балкона. Но эту перепланировку всегда нужно узаконивать в Жилищной инспекции или местном муниципалитете, предварительно узнав, возможно ли это в вашем случае.
Квартира
4 примера хрущевок, которые доказывают: типовая и старая квартира — не приговор
Объединение санузла
Обычно и ванная, и туалет в домах с такой планировкой очень маленькие.
После объединения они станут просторнее и удобнее. Правда, в некоторых типовых проектах не хватит места на большую ванну — только на сидячую. Объединенную мокрую зону в квартире можно расширять за счет коридора, прихожей или встроенного шкафа.
Установка специальной раковины над стиральной машиной или душевой кабины вместо обычной ванны поможет сэкономить один-два квадрата
фото
Фото: Instagram @hd_mood
Фото: Instagram @small.flat.ideas
Фото: Instagram @royalceramica43
Фото: Instagram @dizayn_interera2
Фото: Instagram @miokeramika
Фото: Instagram @azart_design_kz
Фото: Instagram @gogolevadesign
Ванная комната, санузел
Санузел в хрущевке: 7 секретов, которые помогут сделать грамотный ремонт
Двухкомнатную неудачную планировку можно улучшить с помощью цвета, правильно подобранной мебели и освещения.
Например, в типовом проекте двушки, разделенной на три части, мебель-трансформер — необходимость. Если в детской будут жить два ребенка, ее нужно зонировать. Сохранить свободное пространство помогут кровати-чердаки с рабочим местом под ними, двухъярусные, выдвижные кровати, откидные столики и столешница-подоконник, шкафы-купе.
Фото: Instagram @reklama78spb
Фото: Instagram @krovatdom
Фото: Instagram @ji_mebel
Фото: Instagram @galereiavdokhnoveniia
Вообще в малогабаритках лучше смотрится обстановка в минималистичном стиле. Стеллажи и шкафы не должны быть громоздкими. Здорово, если на вторых есть зеркала — они визуально расширит пространство. Поделить площадь на функциональные участки можно с помощью разных конструкций:
- Арки, перегородки с полками из гипсокартона.
- Обычные книжные стеллажи.
- Стенка в виде оконной рамы с подоконником, разделяющая спальную и гостиную зоны.
- Прозрачные и полупрозрачные матовые раздвижные двери и ширмы.

фото
Фото: Instagram @design_msk
Фото: Instagram @malenkayakvartira
Фото: Instagram @myhometut
Фото: Instagram @fabrika_komforta_
Фото: Instagram @idea.dizain
Фото: Instagram @topinterdesign
Фото: Instagram @artremont78
Фото: Instagram @artremont78
Фото: Instagram @artremont78
Чтобы зрительно поднять потолок, используйте обои с вертикальным рисунком. Желательно, чтобы они были пастельными или белыми: холодного оттенка для солнечной стороны и теплого для пасмурной. Подберите легкие, светлые занавески или жалюзи, чтобы не утяжелять обстановку. Расширяют пространство зеркальные и стеклянные элементы в оформлении и прозрачная мебель из пластика.
9фото
Фото: Instagram @remont1717
Фото: Instagram @remont1717
Фото: Instagram @rodenhome
Фото: Instagram @rodenhome
Фото: Instagram @medealight.
diz
Фото: Instagram @medealight.diz
Фото: Instagram @4livingru
Фото: Instagram @v.a.home
Фото: Instagram @dupen_
Хорошо будет смотреться в интерьере минималистичная люстра. Натяжной потолок может показаться лишним в такой квартире, но, если выбрать глянцевую поверхность и рассеянное освещение, он не испортит общую картину. К тому же это дополнительная звукоизоляция, которая никогда не помешает в подобных домах.
Фото: Instagram @roomtome
Фото: Instagram @roomtome
Фото: Instagram @roomtome
Фото: Instagram @roomtome
Минимализм, легкая мебель, двери-трансформеры, светлые цвета на стенах и потолке помогут сделать уютным любое жилье. Эти дизайнерские приемы можно использовать во всех вариантах перепланировки двухкомнатной хрущевки и при обычном косметическом ремонте.
Квартира
Площадь — не проблема: 6 дизайнерских хрущевок, в которых хочется жить
Материал подготовила
Нэлли Киргинцева
Варианты перепланировки двухкомнатной хрущевки с фото
Содержание
- Перепланировка «хрущевки».
С чего начинать? - Варианты перепланировки двухкомнатной хрущевки
«Люди как люди. Любят деньги, но ведь это всегда было… обыкновенные люди… в общем, напоминают прежних… квартирный вопрос только испортил их…» (М. Булгаков, «Мастер и Маргарита»).
В конце 50-х годов прошлого века началось переселение жителей городов из коммуналок в отдельные квартиры, которые сегодня презрительно называют «хрущевками». Да, качеством, большой площадью (кухни в них в пределах 6 м²) и удобством они не отличаются, однако нужно напомнить, что в свое время это был прорыв. Ведь нормой на одного жителя Москвы были 4 м² площади, люди ютились в коммунальных квартирах с общей кухней и санузлом. Стоит пересмотреть фильм «Покровские ворота», в котором герои обсуждают в одной из сцен грядущий переезд в новые (отдельные!) квартиры.
Первую линию для производства таких домов закупили во Франции. Кстати, все крупнейшие страны строили подобные жилые дома. В СССР дома такого типа прекратили строить только с началом перестройки в 1985 году, успев возвести к этому времени почти 300 миллионов м².
Вот несколько планировок «хрущевок» (интересно, что наш народ каждой придумал неофициальное название):
Такая планировка квартиры, прозванная «книжкой», имеет общую площадь 41 м², смежные комнаты и считается одной из самых неудачных.
Планировка, прозванная «трамвай». Общая площадь квартиры 48 м², комнаты смежные, однако при перепланировке их можно разделить достаточно безболезненно.
Свое прозвище («мини-улучшенка») планировка квартиры общей площадью 44,6 м² заслужила тем, что она практически повторяет планировки в 9-этажках. Проектировщики уже сделали некоторые выводы. Комнаты изолированные, вот только размер кухни смущает. Однако при перепланировке кухню можно расширить до 8 м²
Такая планировка квартиры общей площадью 46 м² встречается достаточно редко. Прозвана «распашонкой» или «бабочкой», крылья которой напоминают две одинаковые симметрично расположенные комнаты. Обе имеют приличную площадь и изолированы. Проблема такой планировки – отсутствие возможности расширить площадь кухни, не вторгаясь в одну из комнат.
Расширение кухни за счет совмещения санузла – решение достаточно спорное, потому что полученная минимальная дополнительная площадь не стоит затрат на проведение перепланировки.
Перепланировка «хрущевки». С чего начинать?
С правового ликбеза. Не стоит думать, что, будучи собственником жилья, владелец вправе с этим жильем делать что угодно. Законом на владельцев жилья налагается ответственность, которая закреплена в Жилищном кодексе РФ.
Очень важно! Жилищный кодекс дает определение перепланировке и переустройству жилого помещения. Первый термин – это изменение конфигурации жилого помещения. По закону, все изменения должны быть внесены в технический паспорт квартиры. Второй – это установка, замена или перенос инженерных сетей, санитарно-технического, электрического и другого оборудования. И тоже с внесением изменений в техпаспорте жилого помещения. В лучшем (для вас) случае, при продаже, обмене квартиры внести изменения в техпаспорт все равно придется. Можно «нарваться» на штраф и предписание все вернуть в первоначальный вид.
Этим перечень возможных неприятностей при самовольной перепланировке не заканчивается и последствия для владельца жилья могут быть гораздо более печальными.
Процедура получения разрешения на перепланировку – это предмет отдельной статьи. Если ваши планы не включают снос несущих конструкций и перенос кухни на место жилой комнаты, разрешение получить не очень сложно. Несомненным плюсом «хрущевок» является то, что внутренние стены в них в основном ненесущие и их, после получения разрешения, можно сносить, устраивать новые дверные проемы и т. д. Это значительно расширяет возможности перепланировки подобных квартир. Такие действия относятся к так называемой простой перепланировке, их проще согласовать и для получения разрешения не нужно разрабатывать проект, достаточно на полученный в БТИ поэтажный план нанести планируемые изменения.
Варианты перепланировки двухкомнатной хрущевки
Основные проблемы квартир-хрущевок – маленькая площадь кухни, санузла, прихожей, одной из комнат и низкие потолки.
Вот эти проблемы и призвана решить перепланировка квартиры.
Самый радикальный вариант – убрать все ненесущие стены (кроме санузла и ванной) и зонировать одно большое помещение различными легкими перегородками и дизайнерскими приемами. В итоге может получиться очень симпатичная и комфортная квартира-студия. Однако далеко не каждой семье такой вариант подходит, многим нужны изолированные комнаты. Кроме того, по закону одна комната в квартире обязательно должна оставаться жилой.
Заслуживают внимания варианты объединения в одно помещение гостиной и кухни или спальни и гостиной. Здесь все будет зависеть от состава семьи и необходимости выделения членам семьи изолированных комнат.
Дизайн кухни-гостиной:
Дизайн спальни-гостиной:
Кроме варианта перепланировки с совмещением двух комнат или гостиной с кухней, можно совместить ванную с санузлом. Вот примеры дизайна совмещенного санузла и размещения сантехприборов:
Вернемся к возможным вариантам перепланировки хрущевки.
Рассмотрим вариант «книжки». Главная проблема – проходная комната.
Перепланировка позволила сделать обе комнаты изолированными. Цена – уменьшение и без того небольшой площади второй комнаты. Однако многие такую цену готовы будут заплатить.
Площадь кухни при такой планировке можно увеличить только с помощью объединения кухни с комнатой. Других вариантов нет.
Но если нет возможности добавить к площади комнаты несколько дополнительных квадратных метров, можно ее увеличить визуально. Известно много приемов, которые помогут расширить маленькое помещение зрительно:
- Самый важный – цвет. Использование светлых пастельных тонов зрительно расширяет помещение. Любые яркие и насыщенные цвета будут его «сжимать».
- Мелкий цветочный принт на обоях также помогает визуально помещение расширить.
- Потолок должен быть светлым, лучше максимально близким по цвету к белому. Можно использовать натяжные потолки.
- Разноуровневый потолок из гипсокартона с дополнительным освещением «поднимет» высоту помещения.

- Половое покрытие – светлое или цветное в той цветовой гамме, которая выбрана для комнаты. Цветное половое покрытие зрительно «раздвигает» стены и «поднимает» потолок.
- Мебель не должна быть главным действующим лицом в помещении, акцент на ней делать нельзя. Хорошо, если мебель будет выбрана в тон стен и штор.
- Зеркала сделают комнату светлее – они будут отражать дневной и искусственный свет. Но надо соблюдать меру в их использовании для оформления интерьера.
Вот примеры маленьких комнат, которые такими не кажутся:
Зрительно увеличивают помещение и правильно подобранные фотообои. Они «работают» несколько иначе, чем классические дизайнерские приемы:
Перепланировка 2-комнатной квартиры с обидным прозвищем «трамвай» позволяет сделать обе комнаты изолированными. При взгляде на первоначальный план такой квартиры действительно вспоминаешь слова трамвайного кондуктора: «Не останавливайтесь в проходе, проходите в конец вагона!».
Очевидный недостаток такой планировки квартиры – невозможность расширить кухню без ее объединения с комнатой. А это далеко не всегда возможно.
Потери в площади будут, однако они отчасти компенсируются вместительным шкафом-купе, для которого появляется место в пространстве между комнатами.
Оставшаяся после перепланировки площадь «урезанной» комнаты остается достаточно комфортной.
Для того чтобы комнату зрительно расширить, используем уже знакомые нам дизайнерские приемы:
Перепланировка «мини-улучшенки» позволит значительно увеличить площадь кухни. После перепланировки площадь кухни составит 8 м². Это достигается разборкой кладовки (кладовку с успехом заменит современный шкаф-купе) и переносом на ее место санузла, место которого, в свою очередь, занимает ванная:
Все предложенные варианты надо рассматривать только как возможные, и не бояться дополнять и изменять их под свои потребности и желания. Превратить двухкомнатную «хрущевку» в комфортабельную квартиру – задача посильная.
Боитесь приступить к ее решению сами, тогда обратитесь к профессиональным дизайнерам. И все получится!
- Главные ошибки, которые можно допустить при проектировании дома
- Строительство дома: подготовительные работы, ключевые этапы возведения
- Преимущества загородных домов 6 на 6: кому подойдет загородный дом площадью 6 на 6 метров
- Качественный и теплый дом по ключ
проекты для квартир типа трамвайчик и распашонка с фото
Хрущевки занимают лидирующую позицию на рынке вторичного жилья. Однако, чтобы жилая площадь соответствовала современному комфорту, придется хорошо постараться. Сегодня предстоит узнать о том, как из обычной типовой застройки из СССР сделать современное жилье для всей семьи, все варианты хрущевки 2 комнаты перепланировки.
Перепланировка пространства квартиры позволяет создать удобный и стильный интерьер, отвечающий современным представлениям о комфортном жилье
Особенности и тонкости перепланировки двухкомнатной хрущевки
Содержание
- Особенности и тонкости перепланировки двухкомнатной хрущевки
- Правовые аспекты перепланировки
- В панельном доме
- В кирпичном доме
- Перепланировка в трехкомнатную квартиру
- Перепланировка в четырехкомнатную квартиру
- Примеры планировки двухкомнатной хрущевки разной площади
- 42 кв м
- 43 кв м
- 44 кв м
- 45 кв м
- И другие
- Варианты расположения комнат в двухкомнатной хрущевке
- Трамвай
- Распашонка
- Мини-улучшенка
- Книжка
- И другие
- Популярные варианты ремонта и перепланировки двухкомнатной хрущевки
- Способы визуального увеличения пространства с помощью зонирования в двухкомнатной хрущевке
- Правильный выбор мебели для экономии пространства в двухкомнатной хрущевке
- Видео: Современные апартаменты из старой хрущевки
- Фото хрущевок после перепланировки
В вопросах перепланировки всегда есть огромное количество нюансов, с которыми владельцы сталкиваются уже в ходе ремонта.
Чтобы избежать неприятностей, рекомендуется изучить все «подводные камни» этого процесса.
Правовые аспекты перепланировки
Если владельцы не планируют переносить несущие стены, то ничего оформлять не нужно. Перепланировка двухкомнатной хрущевки происходит в стандартном режиме согласно готовому плану. Однако стоит заранее учесть, не находится ли здание в предаварийном состоянии, не были ли нарушены законодательные акты предыдущими хозяевами.
Перед началом перепланировки квартиры необходимо позаботиться о её согласовании
В случаях, если планируется переносить несущие стены или были замечены грубые ошибки при прежних владельцах, необходимо сделать следующее:
- подготовить проект;
- предоставить его в местную архитектурную администрацию;
- далее документы попадают в суд, остается его только выиграть.
На всю процедуру может уйти несколько месяцев. Чтобы не тратить личное время на сбор, можно обратиться сразу в специализирующуюся на таких вопросах компанию.
За небольшое вознаграждение сотрудники сами соберут все необходимые документы.
В панельном доме
Чаще всего в панельных домах расширяют санузел, кухню и коридор. Способов сделать это достаточно много. Для этого необходимо обратиться к специалисту, который занимается проектированием. Дополнительно может понадобиться разрешение со стороны управляющей компании, самовольный снос стен в таких домах может оказаться под запретом.
Раздельные ванна и туалет в хрущевках отличаются очень маленькой площадью, снос перегородки между ними позволяет получить довольно просторный санузел
В кирпичном доме
Из кирпича обычно строили дома до революции. Таких зданий осталось немного, большая часть из них является историческим достоянием. Говоря о хрущевках, стены из кирпича могут быть между комнатами. Сегодня достаточно часто встречаются такие объекты, в планировку которых уже было вмешательство. Работать с такими стенами необходимо крайне аккуратно, так как никогда не знаешь, чего ожидать.
Желательно вызвать специалистов, которые смогут заранее предупредить о всех возможных проблемах. Как выглядит перепланировка 2 х комнатной хрущевки квартиры в кирпичном доме можно ознакомиться на фото.
С помощью перепланировки из неудобной хрущевки можно сделать комфортную квартиру
Перепланировка в трехкомнатную квартиру
Сделать из двушки трешку вполне нормальное желание. Особенно для семьи, где есть разнополые дети. Если до 10 лет мальчик и девочка могут спокойно уживаться в одной комнате, то после придется думать о расширении жилищного пространства. В данном случае правильная перепланировка может спасти положение. Примеры перепланировок в хрущевке и дополнительных проектов можно увидеть на фото.
Комнату с двумя окнами можно разделить на две спальни, одновременно расширив одну из них за счет кладовки
Перепланировка в четырехкомнатную квартиру
Сделать из двушки четырехкомнатную квартиру достаточно сложно. Необходимо подготовиться к тому, что комнаты будут достаточно узкими.
Решить проблему с отсутствием свободного пространства можно с помощью правильной эргономики. Хрущевки часто имеют большое количество встроенных ниш, если их убрать, можно выиграть до 5 квадратных метров, которые легко преобразовать.
Установка складных или раздвижных дверей – самое простое решение изолирования проходной комнаты
Примеры планировки двухкомнатной хрущевки разной площади
Большое количество типов хрущевки связано с тем, что здания строили по разным стандартам и на «скорую руку». Особых ГОСТов не соблюдали, так как главной задачей было – создать как можно больше жилищного пространства для граждан. Поэтому встретить можно как простую двушку в 42 метра, так и просторную квартиру с тем же количеством комнат, но на 50 кв. метров. Ниже предстоит разобрать уже готовые проекты, которые открывают перспективную перепланировку такого жилья.
Двухкомнатная хрущевка до и после перепланировки – расширен санузел, кухня объединена с гостиной, значительно увеличена площадь входной зоны
42 кв м
Такие квартиры встречаются довольно часто.
Усугубляется нехватка пространства тем, что раньше устанавливали встроенные места для хранения. Если их убрать, те же 42 кв. метра будут выглядеть совершенно по-другому. Ниже представлены варианты стандартной перепланировки, которой можно воспользоваться.
Варианты перепланировки двухкомнатной хрущевки площадью 42 кв. м.
43 кв м
Демонтаж антресолей и хранилищ позволит расширить часть коридора и санузла. Это положительно скажется на комфорте большой семьи. Фото перепланировки квартиры 2 х комнатной квартиры помогут разобраться с ограниченным пространством.
Благодаря перепланировке можно создать довольно просторную спальную комнату
44 кв м
Здесь можно поработать над увеличением гостиной за счет привлечения пространства, которые выделялось под балкон. Если он уже остеклен, то не составит большого труда убрать перегородку и отеплить эту часть.
На утепленном балконе можно организовать место для отдыха или рабочий кабинет
При переносе отопления необходимо вызвать специалиста, который спроектирует план и подготовит документацию к оформлению.
Самостоятельно заниматься переносом в старых постройках строго запрещенное.
45 кв м
В данном случае можно полностью избавиться от узких коридоров и глухих стен. Проекты многих зданий имеют нелогические тупики, которые легко исправит стандартный план перепланировки. С основными деталями можно ознакомиться на готовых проектах перепланировки хрущевки и качественных фото 2 х комнатной квартиры.
Узкий коридор можно расширить, передвинув перегородку в глубь комнаты
И другие
В постройках, которые обладают площадью более 46 кв. метров, предусматривается вариант увеличения гостиной за счет присоединения коридора и кухни. Есть несколько положительных сторон такого варианта:
- Не будет глухих и бессмысленных стен.
- Экономия на освещении – будет больше попадать солнечного света.
- Пространство заметно становится больше, что позволяет воплотить даже смелые идеи.
Проекты перепланировки и ремонта двухкомнатной хрущевки – помогут разобраться с основными нюансами.
Яркий интерьер прихожей хрущевки после переноса перегородок
Варианты расположения комнат в двухкомнатной хрущевке
Благодаря активной деятельности дизайнеров, сегодня можно найти большое количество вариантов того, как можно изменить пространство в собственном доме. Ниже представлены наиболее практичные и востребованные варианты.
Из проходной гостиной можно сделать изолированную комнату путем установки легкой перегородки
Трамвай
Пример такого типа строения наиболее популярен среди хрущевок. Комнаты идут одна за другой, как в трамвае вагоны. Самая большая площадь – гостиная, проходная комната. За счет большого количества квадратных метров, владельцы могут сделать удобную перепланировку. С помощью перегородок семьи делают из двушки трешку. С дополнительными примерами можно ознакомиться на фото. Переделка двушки трамвайчик – наиболее простой вариант ремонта.
Вариант перепланировки двухкомнатной хрущевки-трамвайчика в трехкомнатную квартиру с проходной гостиной
Распашонка
Наиболее актуальная и удачна планировка.
Здесь комнаты не обделены естественным освещением, хорошо изолированы друг от друга. Однако, чаще всего такие квартиры отличаются маленькой кухней, в которой сложно находиться большой семье. Выиграть несколько дополнительных квадратных метров можно с помощью предложенного плана.
За счет объединения кухни с гостиной можно создать единое пространство, в котором с комфортом разместится вся семья
Мини-улучшенка
Обычно это довольно просторные квартиры от 44 кв. метров. Владельцы получают более усовершенствованный вариант жилья, где уже отсутствуют ненужные антресоли, кладовки и встроенные места/хранилища. Переделать такую квартиру легче всего, с примера готовых проектов можно ознакомиться ниже.
Популярный вариант улучшения жилья – объединение кухни с гостиной путем частичного сноса перегородки
Книжка
Чаще всего это небольшие квартиры до 41 кв. метров. Помещение фактически делится на две смежные комнаты, имеют очень маленький санузел и кухню. Для людей, которые планируют заняться ремонтом – это будет самый проблемный проект.
Чтобы не допустить ошибок, рекомендуется ознакомиться с представленными фото.
Возможный вариант перепланировки книжки – создание студии путем сноса перегородки между кухней и залом
И другие
Наиболее популярный тип хрущевских двушек – полуторки. Это небольшие квартиры, обычно со совмещенным санузлом, маленькими комнатами и узкими проходами. Проект в данном случае лучше доверить опытному специалисту. Переделывать старые здания довольно сложно, так как нет уверенности в том, из какого материала они строились. Порой бригада находит перекрытия из панелей ДСП и прочий хлам, который негативно может сказаться на устойчивости вообще всего здания.
Большую комнату можно разделить перегородкой на две части и получить отдельную спальню
Популярные варианты ремонта и перепланировки двухкомнатной хрущевки
Когда речь заходит о перепланировке, то здесь пределу фантазии нет. Главное не нарушать действующее законодательство. Ниже можно ознакомиться с основными вариантами того, как можно сделать жилье комфортным для всей семьи.
Способы визуального увеличения пространства с помощью зонирования в двухкомнатной хрущевке
Существует огромное количество методов перепланировки стандартной двушки хрущевки, которые позволяют визуально расширить пространство. Специалисты собрали несколько актуальных вариантов, которыми может воспользоваться каждый владелец хрущевки:
- Использование белых и светлых оттенков – наиболее простой вариант, который помогает также экономить на искусственном освещении. Желательно использовать оттенки в качестве фона – стены, потолки, пол.
- Зеркала и глянцевые поверхности – отражение будет зрительно расширять ограниченное пространство.
- Отказ от готовой мебели – чаще всего это массивные системы хранения, диваны. Лучший способ правильно организовать пространство – заказать модули по индивидуальным размерам. Многие будут удивлены, но стоимость от готовой всего на 10 % выше, однако в качестве компенсации владелец получает индивидуальный подход и необычное исполнение.

- Отказ от плотных штор – зрительно большие куски ткани съедают пространство.
- Правильные светильники – наиболее популярным вариантом является точечное освещение, которое подчеркивает эргономику пространства.
Используя даже эти простые рекомендации, можно избавиться от чувства «захламленности», перепланирование не займет много времени.
Визуальному расширению пространства способствует светлая отделка стен в паре с хорошим освещением
Правильный выбор мебели для экономии пространства в двухкомнатной хрущевке
От правильности мебели зависит не только комфорт домочадцев, но и ощущение пространства, так как квадраты ограничены. Массивные диваны, кресла, шкафы – остались в прошлом. Сегодня предпочтение необходимо отдавать современным модулям, которые часто делаются по специальному заказу. Владельцам больше не нужно ходить с рулеткой по магазинам и играть дома в «тетрис», пытаясь разместить все необходимое.
Важную роль играет правильная расстановка мебели согласно выделенным функциональным зонам
Размеры мебели и количество предметов зависят от площади комнаты
Что нужно брать в расчет:
- Наличие выдвижных ящиков под кроватью – это дополнительное место хранение, которое часто не учитывается.

- Наличие в доме подиумов – позволяют сосредоточить также выдвижную систему хранения.
- Кровати и кресла трансформеры, которые в течение нескольких секунд могут стать частью стены или очередным местом для хранения всего необходимого.
- Раскладываемые столики – идеально подходят для маленьких кухонь.
- Дешевле всего сделать мебель на заказ, по индивидуальным параметрам, которая идеально впишется в дизайн помещения – переплата несущественная, однако владелец экономит на отсутствии проблем в будущем.
Переделка старой хрущевки – сложный и нервный процесс. Однако если заранее составить проект, смету, заказать мебель, то многих «подводных камней» можно легко избежать.
Видео: Современные апартаменты из старой хрущевки
Фото хрущевок после перепланировки
фото и схемы 1,2,3,4- комнатных
Что нужно знать для согласования перепланировки?
Перепланировка квартиры должна быть согласованной и выполняться по закону. Серьезные изменения в ремонте требуют разрешения от специальных организаций.
Документы
Понадобятся следующие документы:
- Заявление в котором указаны подробности перепланировочных изменений
- Проект с техническим заключением, подтверждающим безопасность ремонта.
- Техпаспорт.
- План БТИ по этажам.
- Согласие от всех, кто проживает в квартире.
- Документ, доказывающий право на собственность жилья.
Сроки согласования
Инспекция выносит решение в течении 45-ти дней. В случае отказа, есть возможность оспорить решение через суд. При получении положительного ответа, хозяин хрущевки после завершения ремонтных работ должен пригласить комиссию, чтобы подписать перепланировочный акт. Квартиру заново замеряют и вносят изменения в технический паспорт.
Пошаговая инструкция
Последовательность действий перед началом ремонта:
- Для создания более комфортабельного дизайна хрущевки, в первую очередь следует учитывать потребности и пожелания каждого члена семьи. Таким образом поучится создать все необходимые зоны и не обделить никого личным пространством.

- Затем требуется произвести замеры, и на их основе начертить проект. На графическом плане должны быть указаны все коммуникации, мебель, перегородки и прочие интерьерные предметы.
- После того, как в квартире определено расположение основных функциональных зон и готов предварительный проект, нужно обратиться в специализированные организации для согласования перепланировки.
Способы перепланировки: допустимые и запрещенные
Несколько нюансов, которые нужно принять во внимание.
| Допустимые | Запрещенные |
|---|---|
Возможен снос перегородки между туалетом и ванной и совмещение данных комнат. Также допустимо расширить санузел за счет прихожей. | Во время перепланировки нельзя затрагивать несущие стены. |
Уместно расширить или удлинить жилую комнату, соединяя ее с частью коридорного пространства. | Запрещено увеличение санузла за счет жилой комнаты. |
Объединить кухню со смежным помещением, чаще всего с гостиной. | Также нельзя расширить кухонное пространство за счет туалета или ванной. |
Проделать дополнительные дверные проемы во внутренних перегородках квартиры, которые не являются несущими. | Совместить жилое помещение с кухней без дверей, на которой установлена газовая плита. |
Демонтировать антресоли, ниши, кладовки и другие подсобки для расширения пространства. | Небезопасным является присоединение теплого пола к общему отоплению и трубам с горячей водой, а также перенос траектории или перекрытие вентиляции. |
Объединить комнату с утепленным балконом и демонтировать часть внешней стенки, которая находится под окном. | Перепланировка недопустима для хрущевок, которые стоят в очереди под снос. |
Возможные перепланировки
Хрущевка — это малогабаритная квартира с однотипной планировкой, в которой не совсем удобно расположены комнаты, присутствуют низкие потолки, узкие коридоры, маленькие кухни и ванные.
Однако, за счет дизайнерских возможностей, учитывающих все особенности, неудобное жилище можно сделать максимально комфортным и уютным.
Варианты перепланировки 1-комнатной хрущевки
Несмотря на скромные габариты, существует ряд возможных примеров трансформации однушки.
Хрущевка с двумя окнами
Квартира с балконом и двумя окнами, является угловой. Хрущевка с подобной планировкой может представлять собой не самый лучший вариант или наоборот, предоставить большое количество интересных идей перепланировки.
На фото пример перепланировки угловой хрущевки однушки с двумя окнами.
Хрущевка с одним окном
Однушки, имеющие одно окно и балкон, встречаются в кирпичных домах серии 1-511, в панельных застройках серии 1-515 и прочих. В таких квартирах присутствует раздельный санузел и коридор. В хрущевках с другой планировкой данное пространство представляет жилую комнату, что создает ограничение при переделке жилья.
На фото перепланировка однокомнатной квартиры хрущевки 30 кв с одним оконным проемом.
Перепланировка из 1-комнатной в двухкомнатную хрущевку
Самый простой и бюджетный способ перепланировки — установить гипсокартонную перегородку и сделать в ней дверной проем. Таким образом получится два небольших помещения с разным функциональным назначением.
Также трансформировать однокомнатную хрущевку в двушку или полуторку можно за счет раздвижных дверей, которые не займут много места и позволят обособить такие комнаты, как детская, спальня или зал.
Немалое значение в дизайне играет выбор мебельных конструкций. Например, сэкономить пространство поможет встроенная бытовая техника в виде уменьшенного холодильника или маленькой плиты.
На фото однокомнатная квартира хрущевка с перепланировкой в двушку.
Переделка из однокомнатной в студию
Хрущевскую квартиру часто преобразовывают в студию.
Такой оригинальный вариант является более молодежным. Перепланировка заключается в демонтаже перегородок между жилой комнатой, кухней и коридором. Санузел в данном случае не затрагивают, перенос этого помещения возможен только если квартира занимает первый этаж.
Из однушки также получается отличное студийное пространство с изолированным спальным местом с кроватью и шкафом.
Разрешенные перепланировки 2-х комнатной хрущевки
Из-за тесной и не удобной планировки двушки, владельцы решаются на радикальные изменения.
Две смежные комнаты
При наличии 2-х смежных комнат перепланировать пространство намного сложнее. Приходится затрагивать жилую площадь и жертвовать полезными квадратными метрами.
Если спальная комната соприкасается с залом, коридор продолжают по ширине прохода, тем самым изолируя гостиную. Размер зала уменьшается, но появляется отдельная дверь, ведущая во вторую комнату. В некоторых хрущевках зал можно расширить за счет территории балкона.
Еще один вариант снести перегородку между жилыми помещениями и создать длинный коридор. Получившийся простенок выступит в роли гардеробной или удобной кладовой.
Совмещение кухни и гостиной
Самое распространенное переланировочное решение. При ремонте возможен частичный снос стены между кухней и залом, когда оставшуюся часть перегородки оборудуют барной стойкой или делают в ней арку. Также уместно полностью демонтировать стену и заменить ее раздвижными системами или колоннами.
На фото перепланировка двухкомнатной хрущевки с объединенной кухней-гостиной.
Перепланировка угловой двухкомнатной хрущевки
Угловую двухкомнатную квартиру можно фактически превратить в трешку. К примеру, увеличить метраж санузла, а жилую комнату разделить на две зоны и одну из них расширить за счет кладовки. Таким образом получатся две отделенные спальные комнаты с окнами.
На фото вариант перепланировки угловой хрущевки двушки с совмещенной кухней и залом.
Примеры для хрущевки книжки
Переделка хрущевки-книжки считается проблематичной. Единственный способ — это частично демонтировать стену между прихожей и гостиной. В увеличенный коридор будут выходить двери из спальни и зала, а кухня останется нетронутой.
Существует более трудоемкая планировка, когда сносится перегородка между залом и кухонным пространством, и формируется студия. Иногда размер гостиной уменьшают и небольшой тупик оборудуют в виде кладовки или гардеробной.
На фото зал изолированный раздвижными дверями в перепланированной хрущевке-книжке.
Подборка для хрущевки трамвайчик
Когда данный тип жилья вступил в эксплуатацию, ему дали название вагончик или трамвай.
В квартире хрущевке трамвайного типа не производят серьезные изменения. Санузел и кухня не затрагиваются, а проходную комнату стараются убрать. Планировка осуществляется за счет продления коридора. Требуется ли зонирование прихожей с помощью перегородки зависит от предпочтения хозяев.
Жилье с новой планировкой будет примерно напоминать 2-х комнатную хрущевку-бабочку. Единственная разница в том, что кухня находится не посередине.
Идеи перепланировки для распашонки
Стандартная квартира-распашонка отличается симметричным расположением помещений, двери которых ведут в прихожую с различных сторон. Такая схема планировки является достаточно неплохой и удачной.
Здесь, за счет объедения кухни с гостиной, можно создать единое пространство. В данном случае, перегородки остаются только в санузле и спальной комнате. Если в квартире присутствует балкон или лоджия, их совмещают с одним из помещений. Утепленный балкон с теплым полом обустраивают под рабочий кабинет или гардеробную.
Подборка перепланировок для трешки
Главным недостатком трешки считается туалет и ванная, имеющие маленькую площадь. Поэтому трехкомнатную квартиру перепланируют, чтобы увеличить метраж санитарного узла.
Для этого совершают объединение ванной и туалета или расширяют его за счет части коридора, ведущего на кухню.
На фото перепланировка 3-х комнатной квартиры хрущевки, выполненной в современном стиле.
Дверь на кухню делают в гостиной и из-за этого она становится проходной. Также возможно совмещение кухни и зала. Объединенная комната может быть разделенной с помощью барной стойки.
На фото трехкомнатная квартира хрущевка с перепланировкой объединенной кухни-гостиной.
Переделка 4-х комнатной квартиры
Хрущевка из 4-х комнат встречается редко. Такие квартиры представляют настоящую роскошь. Популярная перепланировка — перенести кухню в одну из комнат и разграничить ее на обеденный сегмент и рабочую зону. Первый участок объединяют с просторным залом, а второй выносят в коридор. Освободившееся помещение, которое использовалось под кухонное пространство, переделывают в кабинет. Однако, по закону, запрещается размещение жилых помещений под кухнями квартир, расположенных сверху.
Подобное правило не распространяется на владельцев хрущевок на последнем этаже.
Следующий вариант — объединить кухонное пространство со смежной комнатой. Совмещенное помещение станет обеденной зоной или просторным местом для отдыха всей семьи.
Еще одно решение для переделки 4-х комнатной квартиры, увеличить размер санузла за счет использования метража нежилой комнаты в виде коридора или прихожей.
На фото перепланировка 4-х комнатной хрущевки с просторной кухней-столовой и залом.
Перепланировка санузла в хрущевке
Так как ванная и туалет отличаются маленькой площадью, там могут поместиться только самые необходимые сантехнические приборы. По закону запрещается расширение санузла в сторону жилого помещения или кухонного пространства. Самым частым приемом является снос перегородки между ванной и туалетом. Более сложная перепланировка — увеличение санузла за счет прихожей или кладовки. Визуально расширить комнату поможет отделка в светлых тонах, а оптимизации пространства позволит добиться угловая душевая кабина.
Таким образом, в ванной разместится вся сантехника и даже образуется дополнительное место под стиральную машину.
На фото совмещенный санузел в перепланировке квартиры типа хрущевка.
Фотогалерея
Перепланировка хрущевки позволяет улучшить жилье и переделать его под личные вкусы. С помощью совмещения, увеличения или разделения комнат, удается значительно повысить комфортабельность жилья.
Перепланировка хрущевки в 2022 — Все нюансы.
Перепланировка хрущевки- разрешение на ремонт
Молодежь с трудом ответит на вопрос, кто такой Хрущёв, а вот рожденные его эпохой здания типовой застройки, призванные решить жилищную проблему советских граждан, стоят до сих пор, и видимо, простоят ещё долго. Строили «хрущевки» как временное жилье не очень высокого комфорта, а потому перепланировка квартир в ней и улучшение жилищных условий весьма актуальны в наши дни. Многие задаются вопросом: как сделать перепланировку в хрущевке? Надеемся, наша статья поможет хотя бы частично ответить на этот вопрос.
Перепланировка хрущевки- стоимость согласования.
Стоимость согласования перепланировки квартиры в хрущевке зависит от множества факторов, но прежде всего от вида планируемых работ, а также от округа расположения дома и его типа. С ценами для наиболее часто встречающихся случаев Вы можете ознакомиться здесь. Для уточнения стоимости согласования именно Вашей перепланировки, пожалуйста, заполните соответствующую форму, свяжитесь с нами по телефону +7 (495) 507-74-67 или отправьте запрос на почту [email protected].
Содержание статьи
- 1. Перепланировка квартиры в хрущевке. Нюансы и особенности.
- 1.1. Внутри квартиры нет несущих стен.
- 1.2. Затрагивания санузла.
- 1.3. Демонтаж перегородки между кухней и комнатой.
- 2. Узаконенные идеи и варианты перепланировки хрущёвки.
- 2.1. Перепланировка двухкомнатной хрущевки.
- 2.2. Перепланировка однокомнатной хрущевки.
- 2.3. Перепланировка хрущевки- 2 комнаты.

- 2.4. Перепланировка 2-х комнатной хрущевки.
- 2.5. Перепланировка 1-комнатной хрущевки.
- 2.6. Перепланировка угловой однокомнатной хрущевки.
- 2.7. Перепланировка двухкомнатной квартиры в хрущевке.
- 2.8. Перепланировка трехкомнатной квартиры в хрущевке.
- 2.9. Перепланировка трехкомнатной хрущевки.
- 2.10. Перепланировка хрущевки в 3 комнаты.
- 2.11. Перепланировка 3-х комнатной хрущевки.
- 2.12. Перепланировка четырехкомнатной хрущевки.
1. Перепланировка квартиры в хрущевке. Нюансы и особенности.
1.1. Внутри квартиры нет несущих стен.
Расположение несущих стен в хрущевке.
В 90% случаев внутренние стены квартир в хрущевках являются не несущими перегородками, то есть их можно смело демонтировать при перепланировке без влияния на общее состояние здания. Правда, при этом не следует забывать о требованиях строительных, правовых и санитарно-гигиенических норм, которые необходимо соблюдать.

Даже при затрагивании только не несущих перегородок можно нарушить некоторые законы, о которых мы поговорим ниже. Обычно несущими в хрущевке являются ограждающие стены квартиры, все или только некоторые. Единственное, что может находиться из несущих конструкций внутри квартиры кирпичных домов- это балки, опирающиеся на наружные и внутренние межквартирные несущие стены. Справа на рисунке приведен типичный пример расположения несущих стен в реальной квартире-хрущевке (зелёным отмечены несущие стены и диафрагмы жесткости). Многие, как мы уже упоминали, ошибочно полагают, что если они не затрагивают несущих стен, то согласовывать такую перепланировку не надо. На самом деле, перепланировка квартиры-хрущевки с любым изменением конфигурации перегородок влечёт за собой обязанность внесения этих изменений в документы БТИ на квартиру, а, следовательно, требует и соответствующего согласования. Более того, большинство этих изменений согласовываются по проектам, выполняемых соответствующими организациями с разрешением.
Ознакомиться с требованиями к проектам можно здесь.
Более подробно об определении несущих стен в хрущевках Вы можете почитать здесь.
Комментарий к видео:
Изменились пункты: Объединять газифицированную кухню с жилым помещением нельзя согласно п. 9.16 Приложения 1 к Постановлению Правительства Москвы № 508 (после введения ППМ №1083 от 15.06.2022).
Изменение: теперь выход из помещения с унитазом можно делать в любую комнату, так как отменили СаНПиН, который раньше это запрещал.1.2. Затрагивание санузла.
В большинстве хрущевок традиционно тесными являются ванна и туалет, поэтому практически у всех при перепланировке хрущевки возникает естественное желание объединить их и расширить. Здесь главное не забывать о пункте п. 7.20 СП 54.13330.2022, который говорит о том, что мокрые зоны, такие как туалет, ванная, санузел и др., нельзя расширять за счет кухни и жилых комнат. Такие помещения можно увеличивать только за счет нежилых помещений (коридора, встроенных шкафов, кладовых и т.
д.).В связи с этим при перепланировке квартир в хрущевках довольно часто встречается пограничная ситуация.
Перепланировка хрущевки. Проблемная область.
Выделенная красным область на рисунке слева функционально является коридором, а формально по БТИ отнесена к площади жилых помещений. Поэтому расширение санузла за счёт этой зоны невозможно.
Более подробно об объединении и расширении мокрых зон Вы можете прочесть здесь.
1.3. Демонтаж перегородки между кухней и комнатой.
Перепланировка квартиры-хрущевки, как правило, примечательна ещё одним часто встречающимся фактором. В таких квартирах тесными являются не только санузлы и ванные, но и кухня, поэтому вполне логичным решением при перепланировке хрущевки является её расширение. Тут тоже следует знать о некоторых законах:
а) запрещается переносить или расширять кухню за счет территории жилых комнат в соответствии с пунктом 7.21 СП 54.13330.2022.
Согласованная перепланировка двухкомнатной хрущевки.

б) не допускается демонтировать перегородку между кухней, оборудованной газовой плитой, и жилой комнатой согласно п. 9.16 Приложения 1 Постановления №508 Правительства Москвы. И даже устраивать в такой перегородке проём без двери.
К сожалению, почти во всех хрущёвках установлены газовые плиты, а потому желание увеличить маленькие габариты кухни за счёт её присоединения к комнатам натыкается на невозможность осуществления ввиду описанных выше пунктов. Выхода два:
- либо менять газовую плиту на электрическую, что довольно трудозатратно;
- либо отделять жилую комнату от кухни раздвижными перегородками.
Более подробно о таком переустройстве кухонь Вы можете прочесть здесь.
Как видно из всего перечисленного, перепланировка и ремонт хрущевки относятся к достаточно сложным мероприятиям, требующим тщательного планирования и проработки планировки. В целом, к сожалению, такие квартиры, прежде всего из-за своей маленькой площади, дают мало простора для реализации дизайнерской мысли.
Безусловно, перепланировка трёхкомнатной хрущевки или перепланировка четырехкомнатной хрущевки в этом плане предоставляют гораздо больше вариантов планировки, чем перепланировка хрущевки с одной или двумя комнатами, что, в общем-то, логично.
Ниже мы решили привести идеи и варианты перепланировки хрущевки, которые были успешно согласованы и на которые были получены соответствующие разрешения (это подтверждается наличием на листе из проекта соответствующего штампа жилищной инспекции). Возможно, некоторые из них совпадают с планировками Ваших квартир, позволят составить мнение о допустимости того или иного переустройства, а, может быть, даже подкинут какую-нибудь стоящую идею к преобразованию Вашей квартиры. На каждой картинке представлен согласованный план перепланировки хрущевки из соответствующего проекта с отметкой демонтируемых и возводимых перегородок. Либо план квартиры до и после переустройства. Демонтируемые перегородки отмечены пунктиром, а возводимые закрашены сплошным цветом.
Также советуем Вам прочесть статью о том, как узаконить перепланировку квартиры.
2. Узаконенные идеи и варианты перепланировки хрущевки.
2.1. Перепланировка двухкомнатной хрущевки.
До ремонта.
После ремонта
В данном случае приведен не совсем типичный вариант перепланировки двухкомнатной хрущевки. Санузел сделали совместным и расширили на территорию коридора, ведущего в кухню. Вход в кухню предусмотрели из комнаты. Следует отметить, что между ними установлены раздвижные перегородки, о чем говорилось в третьем пункте данной статьи.В центре квартиры расположили большую жилую комнату необычной конфигурации.
2.2. Перепланировка однокомнатной хрущевки.
До переустройства.
После переустройства.
Работы, представленные в этом примере практически аналогичны осуществленным ремонтным работам из предыдущего примера с той только разницей, что в данном случае проиллюстрирован вариант перепланировки однокомнатной хрущевки. В результате удалось получить просто огромный по меркам хрущевок санузел, да ещё и в однушке.
В него уместилась не только ванна, но и душ со стиральной машиной, что в хрущевках встречается крайне редко.
2.3. Перепланировка хрущевки — 2 комнаты.
Перепланировка содержит похожие мероприятия, что и в предыдущих примерах. Отличительной особенностью является отсутствие дверей или перегородки между кухней и комнатой. Это стало возможным благодаря тому, что в доме был выполнен капитальный ремонт и во всех кухнях здания были установлены электрические плиты. К сожалению, такие капитальные ремонты встречаются в хрущевках очень редко.
2.4. Перепланировка 2-х комнатной хрущевки.
На рисунке приведена интересная перепланировка 2-комнатной хрущевки. Газифицированная кухня увеличена на площадь комнаты на толщину перегородки. Так как это расширение осуществлено лишь на толщину перегородки, то кухня по-прежнему не расположена над жилой комнатой соседей снизу, а потому формально не нарушает соответствующий закон. Однако, на практике возможность осуществления такого пограничного случая сильно зависит от позиции по данному вопросу проверяющего чиновника.
2.5. Перепланировка 1-комнатной хрущевки.
До перепланировки.
На рисунке представлена перепланировка однокомнатной квартиры. Такие малогабаритные квартиры с трудом поддаются каким-либо существенным изменениям ввиду своей небольшой площади, однако и из них иногда удается сделать вполне комфортабельное жилье. Перепланировка однушки в хрущевке обычно содержит простые работы. К примеру, небольшое увеличение площади санузла за счет коридора с устройством входа в газифицированную кухню из жилой комнаты.
2.6. Перепланировка угловой однокомнатной хрущевки.
Угловые квартиры обычно хороши тем, что в них присутствует дополнительное окно, которое позволяет разделить одну большую комнату на две меньшие с отдельным окном в каждой. Правда в однокомнатной квартире, к сожалению, редко удается сделать такое разделение, так как комнаты могут получиться очень маленькими. В данном примере, собственники не пошли таким путём. Они немного увеличили санузел, а также установили рольставни вместо перегородки между комнатой и кухней, немного сдвинув их в сторону последней, что было допустимо, так как квартира расположена на последнем этаже.
2.7. Перепланировка двухкомнатной квартиры в хрущевке.
До ремонта.
После ремонта.
При выполнении этого ремонта в квартире были осуществлены схожие мероприятия, что и в предыдущих примерах. Отличительной особенностью является тот факт, что между комнатой и кухней установлены большие раздвижные перегородки, но при этом от коридора кухня ничем не отделена, что никак не запрещено законом.
2.8. Перепланировка трехкомнатной квартиры в хрущевке.
В данном случае опять же санузел был выдвинут в коридор, а кухня добавлена к гостиной с созданием единого пространства гостиной-столовой. Пример примечателен тем, что на планах БТИ квартиры совсем не была указана плита, а потому пришлось брать соответствующую справку в управляющей компании о том, что в доме установлены электрические плиты.
2.9. Перепланировка трехкомнатной хрущевки.
Данный пример очень специфичен перестановкой газифицированной кухни в коридор. Для согласования данного мероприятия пришлось заглушить в квартире газовый стояк и установить вместо газовой плиты электрическую.
Только благодаря такой замене удалось осуществить согласование данной перепланировки.
2.10. Перепланировка хрущевки в 3 комнаты.
В данной квартире для согласования присоединения кухни к комнате решили установить рольставни. Это весьма удобное решение. Стоят они недорого и легко демонтируются, а перед продажей или получением документов на квартиру легко могут быть установлены назад. В принципе, их даже не обязательно демонтировать, а просто держать в открытом состоянии.
2.11. Перепланировка 3-х комнатной хрущевки.
Данная перепланировка трешки в хрущевке примечательна тем, что из санузла пришлось выполнить второй выход в коридор, так как делать выход из помещения, оборудованного унитазом, сразу в жилую комнату запрещено по санитарно-гигиеническим нормам.
2.12. Перепланировка четырехкомнатной хрущевки.
До ремонта.
После ремонта
Данный пример, к сожалению, уже является анахронизмом. Раньше в некоторых округах допускалось присоединять газифицированную кухню к другим помещениям, если назвать их в экспликации нежилыми.
Сейчас такие уловки уже не проходят.
Мы рассмотрели большое количество согласованных примеров перепланировки квартир в хрущевках. В завершение нашей статьи мы хотим привести несколько примеров разрешений на такие переустройства. Такое разрешение на перепланировку выдается вместе с проектом и говорит о том, что ремонт законен и может быть осуществлен.
Перепланировка 3 комнатной хрущевки- распоряжение.
Перепланировка двушки-хрущевки- распоряжение.
4 Варианта Перепланировки 2-х Комнатной Хрущевки
Кто из нас не жил в квартирках с тесными прихожими, маленькими кухнями, крошечными санузлами и неудобными по расположению комнатами? Миллионы семей до сих ютятся в таком жилье, стремясь оптимизировать в нем каждый квадратный сантиметр.
Перепланировка 2 комнатной хрущевки станет самым смелым и кардинальным решением в этой задаче.
Содержание:
- Введение
- Что такое хрущевка
- Варианты расположения комнат
- «Распашонка»
- «Мини-улучшенка»
- «Книжка»
- «Трамвай»
- Правовые аспекты перепланировки
- Популярные варианты перепланировок
- Объединение кухни и гостиной
- Объединение кухни и балкона
- Увеличение гостиной за счет уменьшения площади спальни
- Изменения в санузлах
- Избавляемся от узких коридоров и глухих прихожих
- Демонтаж антресолей, кладовых, встроенных шкафов, ниш
- Способы визуального увеличения пространства
- Преимущества глобального ремонта с демонтажем стен
- ВИДЕО: Перепланировка хрущевки. Все особенности.
Введение
Маленькая площадь, конечно, доставляет определенные неудобства. Зато стоит недорого, и представляет собой отдельное жилье с раздельными комнатами, что неоценимо для молодых семей со стартовыми финансовыми возможностями.
К тому же существуют десятки способов преображения тесных метров в просторный, стильный и современный дом.
Результат частичного сноса перегородок
Даже в 45-метровой хрущевке можно воплотить любые дизайнерские задумки, приложить фантазию и превратить помещение в уютную и модную квартирку, где каждый уголок будет функционально оправданным. Применение технологических приемов позволит эргономично разделить площадку, зонально выделить важные области, не утяжелив общий интерьер. А еще придумано множество способов зрительного увеличения пространства за счет выбора грамотных стройматериалов и расцветок в отделке.
Этот этап зачастую задерживает собственников из-за пугающей волокиты и кажущейся трудности. Однако, если с умом взяться за дело, обратиться за помощью к специалистам и настроиться на позитивный лад – процедура пройдет легко и безболезненно.
Читайте также: Строительство и обустройство летней кухни на даче своими руками: проекты, дизайн, устройство, с мангалом и барбекю (60+ Фото & Видео) +ОтзывыЧто такое хрущевка
Откуда взялось такое неблагозвучное название? Оно совсем не ассоциируется с хорошим жилищем, за которым стоит большая очередь.
А ведь когда-то получение такой квартиры считалось верхом удачи, а событие отмечалось масштабнее, чем свадьба или новый год.
Один из домов с тесными квартирками
В период с 50-80 годы прошлого века было отстроено более трех сотен миллионов квадратных метров такого жилья. Это квартиры в однотипных панельных или кирпичных строениях, чаще всего 4-х или 5-этажных.
Именно его фамилию и трансформировали в название тех советских новостроек. Тогда презрительного отношения к небольшим квартирам с отдельной кухней и туалетом не было. Люди с удовольствием выезжали из коммуналок в собственные площади и радовались невероятному простору.
Читайте также: Лучшие отпариватели для одежды. ТОП-20: Рейтинг 2022 + ОтзывыВарианты расположения комнат
Светлые оттенки в декоре
Несмотря на сотни отстроенных квартир, планировка в них всегда одинаковая с площадью от 40 до 48 м².
Единожды утвержденные планы применялись по всему СССР на территории 16 государств. Все хрущевки объединяют маленькая площадь кухни (6-8 м²), санузлов (2-3 м²), узкие коридоры, небольшие комнаты (либо одна большая, вторая крошечная) и низкие потолки (2,5-2,7 м).
Выделяют несколько видов планировок, причем народ для каждой из них придумал «бытовое» название.
«Распашонка»
Чертеж плана напоминает детскую рубашку, где рукава – это одинаковые по размеру комнаты, а в центре располагаются кухня и санузлы. Вход в комнаты осуществляется из прихожей, из нее же попадают в ванную и туалет, а в кухню ведет узкий коридор. Это самый удачный вариант расположения спальни и гостиной, которые полностью изолированы друг от друга;
Зонирование кухонной зоны в студии
Самым распространенным вариантом перепланировки в такой квартирке является создание кухни-студии. В результате получается просторная гостиная-столовая без узкого коридорчика и лишних стенок.
Также востребовано объединение санузлов, что делает их площадь более просторной и избавляет небольшой коридор от обилия дверей.
«Мини-улучшенка»
Это квартира с узким горизонтальным коридором в который выходят все двери остальных помещений. Обычно вход налево (или направо) приводит в большой и просторный зал, а прямо напротив входной двери располагается небольшая спальня. Правее по этой же стенке находится вход в кухню, а справа, напротив зала, располагаются кладовка, туалет и ванная.
«Мини-улучшенка»
В такой квартире обычно увеличивают площадь кухни за счет демонтажа кладовой и сдвига на ее место санузлов с их объединением. Комнаты итак изолированные, что очень удобно для семей с детьми. Любители больших пространств сносят перегородку между кухней и спальней, превращая эту площадь в огромную гостиную.
«Книжка»
Это самый неудачный вид планировки с небольшой площадью и смежными комнатами, одна из которых проходная.
Из маленькой прихожей вы попадаете в небольшой зал, а из него ведет вход в примыкающую комнату, которая по площади совсем крошечная. Направо из прихожей ведет узкий коридор в кухню, с дверями в туалет и ванную.
«Книжка» с кухней-студией
В спальне иногда присутствует встроенный шкаф, который многие предпочитают демонтировать, чтобы увеличить размер комнатки. Чтобы изолировать это помещение, многие жертвуют метрами зала, продлевая прихожую вплоть до спальной стены, где прорубается проход.
В такой квартире тоже можно сделать кухню-студию, или объединить санузлы. Если плита газовая, тогда потребуется установить раздвижные перегородки с плотным притвором.
Требование относится ко всем типам хрущевок и любых других квартир. Согласно технике безопасности, запрещается объединять жилую площадь с кухней, в которой находится газопровод. Это связано с тем, что в большом помещении в случае детонации или утечки газа ущерб для здания будет намного выше, чем в небольшом.
В такой квартире обычно обе комнаты достаточно большие, что дает простор и почву для фантазии дизайнерам. Если из прихожки повернуть налево (или направо), вы попадаете в коридор до кухни, из которого ведут двери в санузлы. Напротив входной двери находится вход в гостиную, а из нее направо (налево) в спальню.
Квартира типа «трамвай»
Одинаковые прямоугольные жилые комнаты при взгляде сверху напоминают вагоны трамвая. Как и в предыдущем варианте, здесь можно возвести перегородку, продлив коридор на всю ширину зала, завершив его шкафом-купе. Так помещения станут изолированными, а в квартире появится вместительная кладовая.
По желанию здесь обустраивают студию, с частичным или полным сносом стенки между гостиной и кухней. В этом случае отпадает необходимость изолировать спальню. Вход в санузлы переносят в прихожую, а на поверхность, где раньше были их входы, обычно вешают телевизор или устанавливают мебельную стенку.
Правовые аспекты перепланировки
Перед началом работ нужно хорошо разобраться, что разрешается, и что запрещено при перепланировке. Несмотря на то, что перегородки в хрущевках не выполняют несущих функций, переносить их в куда вздумается не разрешается.
Согласование изменений внутреннего плана
Какие действия разрешены при перепланировке:
- Объединение туалета и ванной комнаты. Захват части площади коридора в их пользу
- Расширение комнаты за счет коридора
- Объединение кухни с жилой площадью (если там установлена электроплита)
- Перенос дверных проемов в стенах без несущей функции
- Демонтаж антресолей, кладовых, встроенных шкафов
- При утеплении лоджии допускается демонтаж части стены над окном
Своевременное согласование и утверждение действий по изменению плана квартиры убережет собственника от солидного штрафа в будущем.
Любые изменения в плане квартиры необходимо узаконивать, иначе вам будут недоступны юридические манипуляции с недвижимостью.
На какие мероприятия жилищная инспекция не даст разрешение:
- Объединение кухонной зоны с газопроводом или проточным обогревателем с жилой комнатой (возможна установка пластиковых или деревянных перегородок)
- Увеличение площади кухни, коридора и санузлов за счет жилых метров
- Нельзя полностью сносить внешнюю стену даже при капитальном утеплении балкона
- Действия, которые исключат доступ к инженерным коммуникациям
- Демонтаж вентиляционных отсеков
- Объединение двух квартир на соседних этажах путем частичного или полного демонтажа перекрытия между ними
- Пристраивание к квартирам на 1 этаже балконов и иных помещений
- Постройка межкомнатных стенок из тяжелогрузных материалов
Если ваш дом признан аварийным или находится в списках потенциально-аварийных строений, вы не получите разрешение ни на один вид деятельности.
Будьте внимательны при покупке квартиры, если планируете устроить в ней перепланировку.
Популярные варианты перепланировок
Рабочее место в гостиной
Перед началом осуществления глобального ремонта продумайте всей семьей какие дополнительные зоны должны получиться в результате. При правильном расставлении акцентов в декоре можно даже в одной комнате сделать несколько разных по функционалу областей:
- В гостиной выделить уголок для мини-кабинета
- В спальне или зале оборудовать школьное рабочее место
- Выделить площадь с большим столом, которая будет играть роль столовой
- В объединенной с гостиной прихожке отделить область для обувной полки с зеркалом и крючками
Обратитесь к опытным проектировщикам, они помогут на 100% обыграть каждый метр площади.
Дизайнеры интерьера учтут все пожелания жильцов и создадут идеальный план вашей будущей квартиры. Итак, рассмотрим варианты перепланировок, которые пользуются спросом именно в хрущевках.
Объединение кухни и гостиной
Это один из самых популярных вариантов перепланировки, после объединения ванной и туалета. Метод позволяет увеличить площадь кухонной зоны, которая в хрущевках катастрофически небольшая. При сносе перегородки между гостиной и кухней, к полученной площади добавляется еще и коридор, который к ней вел.
Прекрасный интерьер гостиной
Таким образом получается многофункциональное помещение площадью в полквартиры, которое легко зонировать на рабочую зону по приготовлению пищи, обеденную площадку, гостиную и даже рабочее место или мини-кабинет. Дизайнеры советуют отделять зоны легкими перекрытиями, переносными ширмами, барной стойкой, а угловые диваны и арки позволят выделить место отдыха.
Объединение кухни и балкона
Утепленная лоджия
Кухоньку в 6 квадратов можно слегка увеличить за счет располагающегося в ней балкона, если таковой имеется.
Лоджию необходимо остеклить и утеплить, чтобы в холодный период там поддерживалась комнатная температура. Сюда можно вынести холодильник, оборудовать шкафы для хранения круп, бытовой техники, а подоконник переоборудовать в барную стойку.
Обратите внимание, радиаторы отопления запрещено выносить на балкон, даже капитально утепленный.
Увеличение гостиной за счет уменьшения площади спальни
Эргономичный гарнитур для спальни
Если перенести перегородку между жилыми комнатами вглубь меньшей из них, гостиная станет более просторной. Предварительно устанавливают допустимый предел, чтобы в спальне поместилась кровать и проход к ней. При умелом дизайнерском оформлении и правильном выставлении света такая комнатка станет уютной и комфортной.
Зеркальная перегородка
На такой шаг могут решиться семьи без детей или те, кому не нужно уединение. Такая перепланировка предполагает снос всех внутренних стен в квартире и превращение ее в большое сквозное помещение.
Пластиковые раздвижные конструкции или легкие ширмы здесь выполняют роль перегородок.
Такой вариант считается очень смелым и современным. Дизайн, оформленный в минималистическом стиле, в жанре хай-тек, добавит помещению шарма и уникальности.
Изменения в санузлах
Согласно изначальным генпланам санузлы в хрущевках всегда раздельные, располагаются смежно через стенку. На ванну выделяется 3 м², на туалет 2 м². Этой площади катастрофически мало для нормального и удобного обустройства, поэтому санузлы часто расширяют за счет прихожей, если планировка последней позволяет.
Ванная комната
Для удобства многие переносят двери из кухонного коридора в прихожку или наоборот. Популярным видом перепланировки является объединение ванной и туалета.
Во время сноса стен целесообразно заменить коммуникации трубопровода, особенно если они старые. Душевую кабину лучше купить угловую, она просторнее, но занимает меньше места.
Шкафчики и полочки подберите подвесные, чтобы не загромождать пространство под раковиной. Reklama: Personalo atranka, koučingas, vadovų ir darbuotojų paieška https://www.primumesse.lt/darbuotoju-paieska/
Избавляемся от узких коридоров и глухих прихожих
Просторные прихожки сегодня гораздо актуальнее тесных и длинных коридоров, которые присутствуют практически в каждой хрущевке. Самым модным вариантом является снос всех перегородок и объединение гостиной с коридором. В этом случае при входе в квартиру жильцы сразу попадают в общую жилую комнату.
Убранные лишние перегородки
Часто в прихожих комнатах располагаются встроенные шкафы, которые занимают много места. Их можно снести, чтобы освободить пространство. Точно также поступают с кладовками и нишами.
Обратите внимание, снос встроенного шкафа, кладовой или антресоли, отмеченных в плане квартиры, обязательно подлежит согласованию с жилищной инспекцией.
Демонтаж антресолей, кладовых, встроенных шкафов, ниш
Громоздкая антресоль
Главной загвоздкой в таких демонтажных работах является то, что одна или несколько стенок в подсобных помещениях всегда примыкает к несущей плите.
При сносе нужно быть предельно аккуратными, чтобы их не повредить.
При разборе встроенного шкафа или антресоли действуйте последовательно:
Читайте также: Лучшие ноутбуки для работы и учебы | ТОП-15: Рейтинг 2022 + ОтзывыСпособы визуального увеличения пространства
Используйте как можно больше света и зеркал
- В маленьких спальнях установите кровать на невысоком подиуме вместо ножек. Помост декорируют подсветкой, что придает помещению дополнительный уют.
Такая мебель визуально расширяет пространство - Не затемняйте потолки. Отличным решением станет монтаж натяжных потолков, так как их глянцевая поверхность визуально увеличивает высоту стен. Для этой же цели попробуйте создать разноуровневый потолок с дополнительной подсветкой
- Вместо обычных створчатых шкафов заказывайте шкафы-купе. Они занимают меньше места, смотрятся современно и модно. Кстати, если сделать дверки зеркальными, вы зрительно прибавите место в комнате
- Не загромождайте помещение мебелью. Ограничьтесь минимальным набором. Не утяжеляйте стены полочками, рамками и картинами.
- Рельефная штукатурка, декор под камень или дерево, а также темные отделочные материалы зрительно уменьшают площадь комнаты. Если очень хочется имитацию кирпичной кладки, оформите ею только часть стены в определенном месте
- Оптимальными расцветками считаются светлые, максимально приближенные к белому цвету.
Используйте для декора пластик, стекло, зеркала и блестящие металлические элементы. Обои подберите без крупного принта, неброские, с мелким рисунком - Зеркальные стены, светлые колонны и другие фигурные элементы гипсовой отделки помогают создать оригинальный и уникальный интерьер
Преимущества глобального ремонта с демонтажем стен
Не стоит бояться затевать грандиозные ремонтные работы со сносом перегородок и переделкой общего плана квартиры. Ведь в результате вы получите просторную площадь в комфортабельной квартире. Если не решаетесь на крупные изменения, просто избавьтесь от встроенного шкафа, уберите антресоль, объедините кладовую с ванной.
Снос встроенного шкафа
Перепланировка полностью изменит облик и атмосферу вашего жилища.
Здесь снова запахнет новой краской и свежей штукатуркой. Полностью уйдут старые запахи, которые годами скапливались в перекрытиях.
Обновленные поверхности будут радовать глаз современной отделкой. Если использовать светлые оттенки, потолок будет казаться выше, а стенки шире. Не забудьте про гармоничный текстиль, который поможет зонировать пространство, завершить интерьер комнаты, сделать акцент на отдельных его элементах.
Вариант стильного оформления квартиры
Перепланировка двухкомнатной квартиры – задача вполне посильная для новичка в строительстве. Однако необходимо тщательно изучать правовые и технические моменты каждого вида деятельности. И обязательно консультироваться с опытными специалистами.
Помните, непродуманные действия могут привести к печальным последствиям. А грамотный подход подарит обновленную квартиру с комфортабельной планировкой. Пусть ваш дом станет уютным и удобным для всех домочадцев.
В завершение посмотрите видеоматериал с полезными рекомендациями по выбору лучшего метода расширения полезной площади в двушке:
ВИДЕО: Перепланировка хрущевки. Все особенности.
Перепланировка 2-х комнатной хрущевки: как эргономично разделить помещения и сделать маленькую квартиру просторной (20 Фото & Видео)
8.8 Общий балл
Перепланировка 2 комнатной хрущевки
Для нас очень важна обратная связь с нашими читателями. Если Вы не согласны с данными оценками, оставьте свой рейтинг в комментариях с аргументацией Вашего выбора. Благодарим за ваше участие. Ваше мнение будет полезно другим пользователям.
УДОБСТВО
8.5
БЕЗОПАСНОСТЬ
9
ДИЗАЙН
9
Рейтинг пользователей: Be the first one!
идей перепланировки при ремонте (72 фото) Дизайн 2 комнатной хрущевки 42 кв
Купил квартиру на 1 этаже за 1,8 млн — для Красноярска это не дорого и не очень дешево, как я теперь понимаю ;)! Полностью убит! Так это выглядело 18 мая 2017 года
Сама кухня
И понеслось.
.. вынесли мусор (стены, пол… лиственница за 50 лет ни капли не испортилась — отдали деду с верхним этажом на дачу, тем самым получив + 1 Манна и Мораль… когда ставили новые трубы и стояки, пригодилось его расположение
Пока все не зашили гипсокартоном и установили металлопластиковые окна, заменили радиаторы и стояки того, кто будет жить в квартире, к осмотру не допускали
В данный момент укладка плитки, монтаж откосов и сливов на окна, наконец-то перетяжка пола под ламинат! Поменяли входную дверь
Параллельно заказывали кухню и 2 перегородки!
На данный момент израсходовано 412 000 рублей! До окончания строительства планируется потратить еще около 400 000 рублей! основные расходы на бытовую технику, сантехнику, мебель и все остальное понемногу….
Но возникла проблема с откосами и подоконниками. Откосы на некоторых стыках расширяются до 5мм и от того залиты космофеном — что не очень красиво, если присмотреться! И самое страшное случилось с подоконником, который вздулся — толи из-за передержки пены толи по какой-то другой причине! Но пришлось разобрать, не обошлось без испорченной ниши, которую сейчас тоже переделывают!
Все швы и шурупы проклеены! Все готово к поклейке обоев! Но не тут то было!
Я УЗНАЮ ВАС ЕЩЕ ОДНИМ НОУ-ХАУ моих рабочих! Электрик пропускает без распределительных коробок!
С такими сборщиками становится так «умно» 😉 Сегодня потратил несколько часов (благо было интересно) на чтение этой темы! однозначного ответа не нашел! Но все сводится к тому, что БЕЗ КОРОБОК НЕ СТАНДАРТНО! и лучше этого не делать! И не мешало бы сохранить разводку электрики по квартире!
Кто что скажет по этому вопросу?
Так выглядит пол в ванной на данный момент! Придется разбирать «коробку», сделанную зачем-то строителями! Потому что в ширину не входят ванна и тумба под умывальник 😉 Конечно, это не так уж и смешно! Но что остается делать, так это просто смеяться!
Так теперь выглядит Кухонный уголок! Появились распределительные коробки и самое «веселое» — надеюсь получить благодарность от всего дома! Чистили вентиляционную шахту — ВСЕГДА С 5 ЭТАЖА! 😉
По всей квартире, накладки на люстры и софиты, а также наброски на шторы и натяжной потолок по всему периметру — осталось только натянуть полотно! Обои уже наклеены в спальне! Сегодня купил 2 смесителя в ванную, держатель для бумаги и полотенец и 1 смеситель на кухню (серия Frap deluxe) — минус еще 10 000 рублей!
Люди добрые подскажите, что вы думаете о «подложке под стеклянный фартук» (пано — фотообои) по фото детей и внуков! Черно-белое или коричнево-белое под ретро! Кухня Беленый дуб, сатинированное стекло и хромированные ручки, белая столешница!
Будет интересно или….
В ванной матовый потолок(сделанный случайно) получился отличный и глянцевый мне кажется здесь смотрелось хуже! 6 прожекторов с энергосберегающими лампами!
Подвесной потолок оклеен пленкой по периметру. покраску обоев перенесли после натяжки потолка! При вскрытии банки обыватели обнаружили, что забыли покрасить краску в магазине 😉 Очередную хрень себе устроили!
Ламинат и плитка в коридоре и на кухне в одном уровне! Как я рад! Молодцы строители! А еще на стене в виде панорамы 4 ряда таких обоев (которые теперь на полу!) Классно получилось! Как выложу фото!
Всего потрачено на данный момент 657 560 рублей!
Ну а теперь опишу неприятности, которые, как и котенок ВАВ, ждали меня после сдачи квартиры. Если бы я делала квартиру уже 2-3 раза, наверное, многих можно было бы избежать! Но как трудно все предусмотреть заранее!
1) Встроенный шкаф оказался короче на 2см по высоте! Это конечно не заметно, но все равно не приятно! Потому что на потолок соорудили короб и положили ламинат! Потом 2 раза меняли габариты шкафа и 2 раза МУТЯНЫЙ (но тоже не расчетливый) мебельщик резал зеркала! Двери выглядят отлично.
рейка, где они крепятся, имеет предохранитель на 5см. Но внутри шкафа есть недостатки ПРИ ОЧЕНЬ ВНИМАТЕЛЬНОМ ОБРАЩЕНИИ! (фото позже)
2) Встроенная штора на основной потолок — идея, конечно, отличная! Очень красиво смотрится, когда штора, тюлевый ламбрикен «выходят» прямо из потолка, НО КАК Я ПРОПУСТИЛА ЭТОТ ФАКТ, что подоконники будут отступать от стены на 10см! Красиво, но не в этом случае! Занавеска теперь должна быть либо до подоконника, либо будет «загибать» выступ подоконника (фото позже)
3) Зеркало в ванной повесили так, что мешает включать только горячее или только холодная вода! Потому что кран с квадратной ручкой бьется о край зеркала! (фото позже)
4) Крышка счетчика выпадает — не хватает клея! В общем, я видел такой дефект не раз! Видимо нужно крепить на что-то более прочное, чем просто жидкие гвозди! 😉 (фото позже)
5) Закаленное 2 стекла для фартука на кухню! И забыли вырезать отверстие для розеток (ну мебельщик, конечно, сказал, что когда делал замеры, розеток не было! Зараза врет — проект квартиры сделан 20-1,5 мая месяцев назад за 3 недели до получения заказа ;)! Теперь в закаленном стекле уже нечего резать! Летом у нас очередь на печь закалки стекла на 1 месяц (для небольших заказов)! Помимо денег, мы также потеряли время! 😉
Из беды 11 июля 2017 года! Произошла очень обидная вещь.
.. при подключении стиральной машины конец трубы отвалился и влетел в стену! Пришлось ломать плитку — делать вырез в гипсокартоне и наращивать полипропиленовую трубу!
На данный момент израсходовано 702650 руб.
Когда проблема с подключением стиральной машины будет устранена, останется только расставить мебель: кровать + матрац (около 45000 рит), диван (раздвижной, кожаный) ~ 100000, кухонный стол и журнальный столик ~ 25000, стулья ~ 10000
ИТОГО Окончательный бюджет будет выдан : 882 650 рублей!
Кухня в хрущевке до и после
Чудесные превращения кухонь обычно показывают в «теле-церемониях». А некоторые проекты в нашей подборке интерьеров действительно делались для эфира. Но не все из них. Иногда дизайнеры снимали плачевное состояние объектов для портфолио, чтобы потом показать, какой функционал скрывает даже самая неудобная, на первый взгляд, кухня. Смотрите реальные фото квартир: до и после ремонта.
Ремонт в 2-х комнатной хрущевке без перепланировки: фото до и после
Этим летом мы делали поэтапную отделку двухкомнатной квартиры.
.. Сначала всю мебель и вещи стащили в одну комнату, заперли и опечатали. После ремонта смежной комнаты и кухни все перенесли в готовые помещения и достроили оставшуюся комнату, коридор, ванную и туалет. В общем, не самый удобный вариант ремонта. Задача: сделать добротный недорогой ремонт из бюджетных материалов. Сроки: 10 июня-24 июля — первый этап, 4 августа-10 сентября — второй этап. Смета: 295800р (только работы + натяжные потолки) Все работы кроме установки межкомнатных дверей и установки двух окон из трех производились собственными силами. Фоток много, поэтому буду выкладывать по мере возможности и появляется свободное время. Итак, вот так предстал перед нами «объект»
Вот такой ужас объект, разбираем все что можно
Ну вот в принципе и все. Фото в процессе уборки, так что извиняюсь за бардак, ремонт в хрущевке 2х комнатный фото до и после без перепланировки закончен.
Статья на тему Ремонт в хрущевке 2-х комнатной фото до и после подготовлено автором nazar2292
Спасибо за информацию сайтам: idea.vdolevke.ru, fishki.net,
Проблема ограниченного пространства в хрущевках понятна. Дома строились в то время, когда население городов стремительно увеличивалось, но как организовать быт современного человека, проживающего в квартире с небольшой площадью и неудобной планировкой? Решить проблему поможет самостоятельная перепланировка 2-х комнатной квартиры в хрущевке фото, особенности, преимущества и недостатки которой далее в материале.
Особенности планировки маленькой уютной двухкомнатной квартиры в хрущевке вполне осязаемы, и их примеры собраны в небольшой подборке фотографий. Часто это такие негативные моменты, как дискомфорт от неудобного расположения комнат, ограниченность пространства из-за малой площади комнат. Именно поэтому владельцы таких квартир стремятся осуществить перепланировку, наняв наемную бригаду строителей.
Чтобы сэкономить деньги, вы можете сделать ремонт самостоятельно.
Ремонт хрущевки с перепланировкой имеет как достоинства, так и недостатки. Преимуществами такого решения являются следующие моменты:
- номера становятся более просторными и уютными, а их интерьер более жилым;
- многие стены в таких домах не являются несущими, поэтому при некотором усердии с их демонтажем можно справиться довольно быстро. Несущие стены не используются, но новый дизайн порадует вас сполна;
- новая планировка открывает неограниченные возможности для владельцев квартир. Дизайн помещений может быть разным, что позволяет проявить фантазию, сделать уникальную отделку поверхностей, тем самым украсив интерьер.
Процесс перепланировки имеет следующие недостатки:
- сложность ремонтно-конструкторских работ, так как предполагает демонтаж и возведение стен и перегородок в квартире;
- занимает пространство одной из смежных комнат путем разделения;
- требует дополнительных вложений в демонтаж стен и оформление помещения.
Однако при выполнении работ своими руками значимость этого недостатка можно несколько преуменьшить; - более длительный ремонт, повышенная степень загрязнения строительным мусором и пылью после работ.
Координация работ
Идеи различных видов перепланировок, их проекты поистине уникальны. Но при выполнении работ часто возникают проблемы: как согласовать ремонт с соответствующими городскими властями? Убедитесь, что план ремонта не распространяется на переоборудование. Эта концепция предусматривает монтаж, замену, перенос инженерных сетей, сантехнических, электрических и так далее. Все эти изменения необходимо внести в техпаспорт жилой квартиры. Если такие мероприятия не планируются, узаконивать перепланировку не придется. Если ремонтные работы включают в себя такие операции, их нужно будет согласовать и внести в техпаспорт.
Заказать, сделать необходимые бумаги быстро не получится, весь процесс может занять до 8 месяцев. Это время можно сократить, обратившись напрямую в жилищное управление.
А вот сотрудничество с риелторской, строительной фирмой будет стоить определенную сумму денег.
Важно помнить, что не все виды перепланировки требуют согласования. Среди тех изменений, которые не требуют согласования:
- монтаж или демонтаж из легкого материала, например из гипсокартона;
- перенос межкомнатных перегородок;
- отделка балкона или лоджии пластиковыми панелями.
Но есть ряд процессов, которые невозможно осуществить без согласования. К таким работам относятся:
- расширение площади квартиры за счет лестничного марша;
- снос несущих конструкций и перенос инженерных коммуникаций;
- объединение нескольких комнат в одну.
Варианты перепланировки
Квартиры в пятиэтажках, называемых хрущевками, имеют отрицательные черты, поэтому многие люди склонны рассматривать варианты перепланировки самостоятельно. Чтобы выбрать один из них, нужно досконально разобраться, какая перепланировка хрущевки наиболее актуальна в данном случае, какие проекты, идеи наиболее удачны и не используют несущие стены.
Какой бы вид перепланировки ни планировался, в квартире должно быть три функциональные зоны:
- кухня;
- для отдыха;
- спальня.
Разделение смежных комнат
Как показывает практика, смежные комнаты в таких домах доставляют массу неудобств живущим здесь людям. Но есть выход из этой ситуации. Разделить две комнаты можно, немного уменьшив полезную площадь одной из них. В этом случае возможны следующие варианты.
| Характер компоновки | Что можно переделать |
| Если комнаты расположены друг за другом | Во многих случаях владельцы неудобных квартир стараются расширить площадь проходной комнаты за счет переноса стены вглубь меньшей комнаты. Затем в этом меньшем пространстве организуют спальню, в которой в конечном итоге размещаются кровать, тумбочка и шкаф, как на фото ниже. Но если проявить дизайнерские таланты, и такое маленькое пространство можно сделать очень уютным. Но когда ремонт закончен, в гостиной может собраться большая семья. |
| Если комнаты расположены одна вдоль другой | Многие просто сносят перегородку между комнатами, заменяя ее колоннами или ширмой. Сложно сказать, что такая переделка предназначена для семьи с детьми. Более быструю подобную планировку предпочтут молодожены. Но глава большой семьи, проводя ремонт, скорее оставит между этими комнатами стену, проложив между ними дверной проем. Тогда вам нужно будет уменьшить площадь обеих комнат, переместив меньшую стену глубже. А на получившейся стене можно установить по одной двери на комнату. Таким образом, коридор в квартире удлинится, но комнаты станут отдельными, как на фото ниже. |
Объединение зала с кухней
Зал в хрущевке чаще всего соединен с кухней, скудные квадратные метры которой не позволяют вместить в такое пространство все уместные здесь предметы техники, мебели и так далее.
Убрав часть межкомнатной стены, в квартире появляется больше места. А при правильном зонировании полученного пространства, применении приемов визуального расширения пространства можно создать действительно функциональный, удобный и привлекательный интерьер. Возьмите на вооружение идеи опытных декораторов.
Ремонт имеет следующие преимущества:
- Объединение зала с кухней позволяет выделить отдельную зону для приготовления пищи, приема пищи и отдыха, не отягощая лишними стенами… Разграничить описанные зоны возможно отделкой стен, пола и потолка, сооружением передвижных полок , а также с помощью легких занавесок из нитей и т. д.;
- этот прием позволяет придать квартире максимальную функциональность;
- эстетически очень оригинально смотрится совмещение зала и кухни. Этот дизайн сегодня очень модный.
Оригинально смотрится такое пространство в хрущевке, где зоны гостиной и кухни разделены барной стойкой. Такой интерьер и функционален, и интересен внешне, о чем свидетельствует фото ниже.
Если к кухне примыкает балкон, его пространство можно использовать для увеличения площади кухни. Перегородку между балконом убирают, кухню расширяют, а на дополнительных полезных квадратных метрах размещают обеденную зону, как на фото ниже. Только в этом случае нужно будет провести работы по утеплению балкона, чтобы в зимнее время год было комфортно находиться на кухне, и не было неудобств из-за низкой температуры воздуха.
Совмещение ванной с туалетом
Каждый решает для себя, какая перепланировка двухкомнатной хрущевки будет для него наиболее комфортной и уютной, но лучше прислушаться к мнению специалистов. Площадь ванной также можно увеличить, соединив ее с унитазом, как на фото ниже. Это удобно, практично, а также выглядит очень оригинально.
Этот дизайнерский шаг может сэкономить вам несколько квадратных метров площади, где поместится стиральная машина или корзина для белья. При этом несущие стены останутся, а это такое преимущество перепланировки, важность которого для владельцев неблагоустроенной квартиры в хрущевке сложно переоценить.
Однако не стоит думать, что такие идеи можно разместить в санузле в огромной ванне хрущевки. Ванну лучше заменить душевой кабиной, тогда пространство будет функциональным и привлекательным одновременно. Кроме того, это решение имеет и другие недостатки. Как и любая перепланировка жилого помещения, объединение двух комнат влечет за собой более высокие материальные затраты на ремонт с перепланировкой.
Зонирование пространства
Что еще поможет сэкономить место в хрущевке и сделать ее уютнее? Идеи опытных дизайнеров, удачный дизайн… После перепланировки и переноса стены можно применять дизайнерские приемы для создания функционального интерьера в подобных жилых помещениях. Одним из способов достижения комфорта является правильное зонирование пространства с помощью мебели, отделки, декора.
В первую очередь нужно тщательно подобрать мебель для хрущевки, которая бы вписывалась в общий дизайн. Лучше отдать предпочтение моделям со встроенными шкафчиками, шкафом, диваном-кроватью.
Такие предметы одновременно высокофункциональны, не занимают много места, привлекательны своей эстетикой и украшают интерьер.
Правила, которые нельзя нарушать
Задумываясь о перепланировке квартиры, важно помнить, что есть определенные правила, которые нельзя нарушать:
- ванная и туалет расширяются только за счет кладовой или коридора, но не за счет кухни или жилого помещения;
- нельзя касаться несущих стен, единственное, что допустимо, это устройство дверного проема в таких стенах;
- нельзя переносить кухню в ванную, санузел или гостиную;
- при совмещении комнаты с газифицированной кухней должна быть предусмотрена хотя бы световая перегородка или другой вид разделения пространства двушки.
Как обустроить проходную комнату в хрущевке? Мы создаем неповторимый интерьер.
Проходная комната
Словосочетания «проходная комната» и «хрущевка» навевают тоску даже у самого оптимистично настроенного владельца такого помещения.
Но не отчаивайтесь, даже для такой скромной квартиры можно подобрать интересные стилистические решения.
В этом случае есть два варианта:
- однокомнатная хрущевка;
- проходная комната в хрущевке.
Дизайн комнаты в однокомнатной хрущевке
Если комната единственная, то, скорее всего, в ней две двери: выход в коридор и на балкон.
Поскольку предполагается, что в этой комнате должны поместиться и гостиная, и спальня, а, возможно, и детская, к планировке следует подойти особенно тщательно.
Проблема «многофункциональности» решается с помощью зонирования. При этом совсем не обязательно сносить или возводить новые стены.
Одну из предлагаемых зон (например, спальное место) можно отделить от остальных раздвижными дверями, которые могут быть выполнены из стекла или глянцевых поверхностей, что визуально расширит пространство.
Также можно использовать тканевые перегородки, этот способ зонирования самый простой и бюджетный.
Рабочую зону удобно разместить на балконе (разумеется, предварительно его утеплив).
Кроме того, зонирование можно осуществить с помощью света, а также с применением материалов разного цвета и фактуры.
Свету в этом случае уделяется особое внимание, так как если есть выход на балкон, естественного света будет недостаточно, то следует продумать освещение в каждой зоне.
Дизайн проходной комнаты в хрущевке
Если помещение не единственное, то, скорее всего, на него не накладывается многофункциональная задача.
Однако делать проходную комнату громоздкой и лишней мебелью все же не стоит.
Диван, стол, несколько полок (желательно навесных), торшер и телевизор — этого набора будет вполне достаточно.
Особое внимание следует уделить рабочей зоне, если есть возможность (выход из этой комнаты на балкон), лучше отвести ее туда.
Если нет, то снова придется прибегнуть к зонированию, «отдельным» рабочим пространством могут стать открытые стеллажи или зеркальные поверхности.
Также не стоит забывать об освещении, помимо точечного света в каждой зоне можно использовать настенные или напольные светильники.
Окна в маленькой гостиной можно украсить легкими полупрозрачными шторами, ткани желательно выбирать однотонные, либо ткани с мелким принтом.
В любом случае подбор всех предметов интерьера должен учитывать многофункциональность проходной комнаты, а также учитывать потребности всех проживающих в ней членов семьи.
Дизайн хрущевки: подборка лучших дизайнов
Предлагаем вашему вниманию подборку из 30 лучших, по мнению автора, проектов хрущевок. Смотрите, вдохновляйтесь, планируйте!
(выбор модены = 23, индивидуальные гостиные)
Многие граждане нашей страны до сих пор живут в хрущевках, доставшихся им со времен СССР.
Хорошо это или плохо, однозначно сказать нельзя, но можно отметить, что в этих квартирах есть свои нюансы. Современный дизайн хрущевки предполагает, что интерьер такой стандартной и типовой планировки позволит создать действительно современный и стильный дом.
Современный дизайн хрущевки
Как бы то ни было, дом есть дом, и даже квартиру в маленькой хрущевке можно привести в нормальное состояние и сделать там современный дизайн интерьера. Давайте вместе разберемся, как это сделать и что можно изменить в стандартной планировке однокомнатной хрущевки 32 кв м или в двухкомнатной и трехкомнатной квартире, если вдруг такие варианты кому-то достались в наследство..
Современный дизайн гостиной в хрущевке
Первые ассоциации и нюансы, которые возникают в наших мыслях, это низкие потолки, абсолютно стандартная планировка во всех квартирах, довольно скромная площадь помещения. Когда-то это считалось роскошью, а сейчас таких предложений на рынке продажи квартир очень много, кстати, по доступной цене.
Теоретически можно купить квартиру и просто сделать там ремонт на свой вкус. Но как лучше оформить хрущевку с использованием современных идей и с чего начать? Попробуем разобраться в этом вопросе.
С чего начать ремонт в хрущевке, чтобы создать современный дизайн?
Ремонт лучше делать поэтапно. Если вы не живете в этой квартире, то в однокомнатной хрущевке ее сделать не составит труда – вынести на помойку или раздать всю старую мебель, оставшуюся с советских времен, освободить все пространство в кухня, санузел и комната и спокойно приступаем к ремонту. Но если вы живете там, это будет сложнее. В двухкомнатной хрущевке тоже несложно – сначала делаешь ремонт в гостиной, потом в спальне или наоборот. А вот в маленькой квартире придется что-то изобретать. Вы можете избавиться от мебели, которая вам не нужна в данный момент, если вы все равно собираетесь реализовывать современные идеи, и по очереди делать это сначала на кухне, потом в комнате и, наконец, в ванной комнате.
Составление плана современного ремонта в хрущевке
Первоначальной задачей будет составить примерный план того, что вы хотели бы там видеть в будущем. Где и как должна располагаться мебель, в каком стиле все делать. Эти и многие другие вопросы вы должны предварительно решить, предварительно посоветовавшись с опытными людьми, разбирающимися в ремонте и отделке помещений, которые смогут составить для вас проект хрущевки на современный лад.
Зонирование комнаты в современном интерьере хрущевки
Еще одним из пунктов плана должны быть сроки завершения того или иного этапа работ. Это позволит вам полностью контролировать рабочий процесс, а не растягивать такое удовольствие на долгие годы.
Уборка пола и стен: современный дизайн маленькой хрущевки
Основа современного дизайна маленькой хрущевки – качественная подготовка к работе. Во-первых, нам предстоит полностью избавиться от старых обоев и пола. Есть маленький секрет Снятие обоев, которыми еще пользовались наши родители: предварительно несколько раз намочите их, делая интервал около 5-6 минут.
Распылить воду поможет пульверизатор или старая добрая губка и ведро с водой.
Очень важно снять все обои, и быть готовым к тому, что их может быть несколько слоев. Мешки для мусора лучше всего заготовить заранее, чтобы можно было положить туда все сразу. Когда наши стены готовы, беремся за пол. В зависимости от того, какой материал туда был уложен, выбираем наиболее удобный способ все демонтировать.
Помните, что очень важно сначала очистить, а затем выровнять поверхность пола и всех стен. Капитальный современный ремонт в хрущевке и не только делается один раз и на долгие годы, сомнительно, что вам захочется пройти такую процедуру еще раз через пару лет. Не забудьте дополнительно очистить потолок, ведь его тоже нужно подготовить к переходу к следующему этапу работ.
Установка окон: делаем современный ремонт в однокомнатной хрущевке
Это еще одна вещь, которую нужно будет сделать, чтобы ваша однокомнатная хрущевка 32 кв.м. превратился из гадкого утенка в красивую современную квартиру.
В старину особо не заботились об утеплении окон, и это всегда оставалось больным вопросом. Чего только не придумали люди, чтобы утеплить их на холодное время года. Рекомендуется приобрести качественный стеклопакет, который утеплит вашу комнату и будет соответственно смотреться в вашем новом современном дизайне гостиной, кухни, спальни и других помещений в хрущевке.
Окно устанавливается следующим образом:
- Сначала нужно демонтировать старую раму и полностью очистить все до самого низа окна.
- Затем грунтуют откосы.
- Перед установкой нового стеклопакета на него наклеивается диффузионная и влагоотводящая лента.
- Окно можно устанавливать только на деревянные бруски, предварительно обработанные антисептиком.
- Щели, которые образуются между окном и стеной, хорошо замазываются монтажной пеной.
- Нижний шов необходимо изолировать металлизированной лентой.
Установка окон и современный дизайн кухни в хрущевке
По времени установка такого окна не займет много времени.
Дополнительной рекомендацией будет не рассматривать вариант с широкими подоконниками, так как это не совсем целесообразно для квартир такого типа, особенно в малогабаритных хрущевках, где и так мало места на кухне и в комнатах. Кроме того, это будет выглядеть красиво, но при этом будет потеряна прочность конструкции и циркуляция воздуха.
Монтаж различных систем в одно-, двух- и трехкомнатных хрущевках
История хрущевок говорит о том, что этот тип жилья строился как временное, чтобы можно было дешево расселить большое количество людей. Соответственно, дома строились очень быстро и не очень качественно.
Из этого делаем вывод, что канализацию, отопление, электроснабжение и другие системы все же следует полностью менять. Конечно, это будет стоить кругленькую сумму денег, но зато вы будете полностью уверены в качестве и долговечности этих коммуникаций. Кроме того, современный дизайн хрущевки предполагает возможность спрятать не только проводку, но и все трубы в ванной, на кухне и в комнате за различными элементами интерьера, а не оставлять их на виду, чтобы они не портились весь дизайн квартиры, как это было принято раньше.
Если все же не очень хочется все это делать, то этот вариант чреват тем, что в будущем в любой момент вам придется ломать все стены и портить ремонт в хрущевке, потому что, например, труба лопаться. Вообще идеальным вариантом было бы договориться с соседями, и все вместе менять все трубы и другие системы в доме.
Современный дизайн кухни в хрущевке
Что категорически запрещено делать на кухне в хрущевке не разрешено переносить газовое оборудование на новое место. Этот пункт также относится к стоякам водопроводных труб и вентиляции. Теоретически можно сделать вентиляцию своими руками, но опять же, перед этим обязательно проконсультируйтесь с профессионалами и получите разрешение на установку. Поэтому рассматривая современные варианты дизайна кухни, учитывайте планировку своей квартиры в хрущевке.
Современный дизайн кухни в хрущевкеУтепление квартиры в хрущевке во время ремонта
Скорее всего, когда наступят холода, вам не хватит тепла только от батарей и нового стеклопакета.
Вам потребуется дополнительно утеплить квартиру. Изнутри это сделать будет сложно, потому что это может привести к деформации наружных стен.
Чтобы выйти из положения, делают утепление снаружи, при этом хрущевка выглядит еще гораздо нелепее, чем была раньше. Теоретически можно опять же договориться с соседями и сделать такой утеплитель вместе, тогда как минимум не будет выделяться только ваша квартира. Однако утеплять квартиру изнутри тоже не лучший способ, так как если вы даже не видите стен своей квартиры снаружи, то изнутри она «съест» немалую долю пространства, а в маленькие хрущевки 32 кв.м не так уж и много.
Дизайн и зонирование комнаты в хрущевке: современные идеи
Вот мы и подошли к самому интересному этапу оформления нашей хрущевки на современный лад. Будут интересные моменты, например, информация о том, что только внешние стены квартир являются несущими. Другие внутренние перегородки такими не будут, что дает нам возможность без проблем перенести их или снести вовсе.
Этот фактор является достаточно весомым преимуществом таких квартир и позволяет добиться очень интересных результатов в перепланировке, когда вы воплощаете современный дизайн в жизнь обычной типовой квартиры в панельном доме.
Современный дизайн комнаты в хрущевке
С точки зрения современного дизайна важно подумать о том, какие методы и технологии можно использовать для визуального расширения нашего пространства. Это, наверное, будет самой главной задачей по данному вопросу.
Второй момент – выбор стиля интерьера. Учитывая тот факт, что перегородок может и не быть, в зависимости от общей площади и количества комнат в хрущевке можно сделать условное зонирование помещения с помощью этажерок, правильно расставленной мебели и акцентов на потолке. На самом деле, вы можете создать все что угодно, главное предварительно прописать все в нашем изначальном плане.
Желаемого увеличения площади можно добиться с помощью правильно подобранного цвета стен (лучше всего использовать исключительно светлые оттенки), освещения, легкой мебели и, самое главное, не захламлять квартиру в 45 кв.
м. со всякими мелкими безделушками. Кстати, это основа современного дизайна, так что возьмите этот совет в свой арсенал — долой все старье!
Если вы используете обои с орнаментом – выбирайте мелкие узоры, желательно геометрической формы. Давно доказано, что именно они делают пространство больше, а главное интереснее (чем, например, обычные однотонные тона) .
Зонирование комнаты в комнате в хрущевке
Не рекомендуется брать яркие насыщенные варианты под покраску или оклейку стен. Если очень хочется чего-то динамичного, то лучше всего сделать одну акцентную стену, а все остальные в светлых, не кричащих тонах.
С помощью глянцевого потолка и множества точечных светильников также можно неплохо увеличить пространство комнат в хрущевке и уж точно сделать хотя бы кажущуюся более просторной однокомнатную квартиру… Часто такие лампочки устанавливают по периметру, иногда дополнительно монтируют неоновую подсветку .
Когда все этапы подготовки пройдены, и помещение готово для проживания, мы удивимся тому, насколько преобразилась ранее неприметная хрущевка, и стала настоящим достижением.
современное искусство… Многим покажется непривычным войти в обычный панельный дом и окунуться в настоящий современный мир жизни и комфорта. Конечно, стоит предварительно просчитать, насколько выгодными будут такие вложения, но неизменным остается сам факт того, что его действительно можно переделать во что-то по-настоящему красивое и использовать современный дизайн.
Перепланировка в хрущевке —
Объединение зала и кухниОдин из самых популярных вариантов перепланировки в хрущевке – совмещение зала с кухней. В этом случае настоятельно рекомендуется увеличить размер оконного проема, впуская больше света. Существует несколько методов реконструкции, к ним относятся:
- демонтаж половины стены и оснащение остальной части под барную стойку;
- изготовление арки, в перегородке между кухней и залом;
- демонтаж всей стены путем установки вместо нее пары колонн, либо перегородки с раздвижными дверями.
При ремонте помещения отдавайте предпочтение материалам светлых оттенков, так как они позволяют визуально увеличить объем пространства ремонтируемого помещения.
Вариант перепланировки хрущевки с объединением кухни и зала
Современный дизайн хрущевки фото
И, наконец, самое вкусное — большая галерея из 36 фото: реальные современные интерьеры в однокомнатной, двухкомнатной и трехкомнатной хрущевке и дизайн-проекты, которые можно использовать при перепланировке собственной квартиры… Плюс Бонусом является современный дизайн кухни, спальни, гостиной или зала, детской и санузла в обычной хрущевке после ремонта.
Дизайн двухкомнатной квартиры в хрущевке остается актуальной темой для многих семей. Дома постройки далеких 50-60-х годов прошлого века с небольшими смежными комнатами и совмещенным санузлом остаются основным жилым пространством для миллионов людей. При небольших площадях очень хочется получить их оптимальное распределение и красивый дизайн. Совсем не удивительно, что проект «Дизайн квартиры площадью 42 кв. м (двухкомнатная хрущевка)» или Дизайн-проект «Двухкомнатная квартира (45 кв. м, хрущевка)» до сих пор пользуются большим спросом и пользуются популярностью.
Понятие «хрущевка» давно вошло в обиход россиян. В былые времена эти типовые дома произвели настоящую жилищную революцию, вырвав миллионы людей из общежитий и коммуналок. Если в те далекие годы получить такую квартиру было мечтой, то в наши дни, с учетом повышения качества жизни, с таким жильем возникает масса проблем.
Современный интерьер старой хрущевки
Каковы характеристики таких однотипных квартир? Один из самых распространенных вариантов: двухкомнатная квартира. Его особенности: две смежные жилые комнаты, небольшая кухня площадью около 6 кв. м, небольшая прихожая и ванная комната, совмещенная с туалетом. Общая площадь 40-46 кв.м, жилая 26-31 кв.м. Потолок очень низкий: 250-260 см. Следует отметить, что большинство таких квартир имеют небольшие балконы. Толщина внутренних капитальных стен 22-32 см, а толщина перегородок 7-9 см.см.
В современных условиях у владельцев таких квартир возникает естественное стремление повысить комфортность проживания.
Дизайн-проекты двухкомнатных квартир (хрущевок), в принципе, возможны в нескольких вариантах изменения типа жилплощади с целью расширения жилплощади и ее благоустройства. Первый вариант – коренная перестройка всей внутренней планировки, т.е. снос всех внутренних стен с созданием единого пространства. Этот путь усложняется необходимостью согласования плана в соответствующих органах, что сделать довольно сложно.
Второй вариант — частичная реконструкция с удалением только перегородок. Этот способ позволяет объединить несколько комнат, например, кухню-комнату, прихожую-комнату. Наконец, дизайн двухкомнатной квартиры в хрущевке можно осуществить без перестройки, а с использованием современных направлений и стилей.
Что можно придумать без перепланировки
Если перепланировка квартиры по каким-то причинам невозможна, то можно найти изящные решения без изменения границ. внутренних помещений. Фото дизайна двухкомнатной квартиры в хрущевке можно легко найти в интернете в большом количестве, на любой вкус.
Основное направление – визуальное увеличение объема помещения. Можно остановиться на некоторых вариантах:
- Дополнительную полезную площадь можно получить, соорудив некоторые элементы из гипсокартона. Основу составляют декоративные ниши, полки, стеллажи, предметы, расположенные на разных уровнях.
- Увеличение размеров оконных и дверных проемов, формирование арочных проемов позволяет зрительно увеличить объем почти на четверть.
- Раздвижные двери и перегородки позволяют эффектно оформить двухкомнатную квартиру в хрущевке, где комнаты проходные.
- Зеркальная отделка ниш и проемов, зеркальное покрытие стен значительно увеличивают визуальный объем и создают привлекательный интерьер.
Использование раздвижных дверей
Панорамные окна в квартире для расширения пространства и света
Иногда, чтобы пространство казалось больше, достаточно просто отремонтировать двухкомнатную хрущевку, причем делать перепланировку совершенно не обязательно.
Поэтому обратите внимание и на следующие элементы:
- Цвет стен и мебели. Темные тона зрительно уменьшают пространство, поглощают свет. Старайтесь использовать светлые оттенки. Да, у этого шага есть неопровержимые минусы: придется регулярно чистить, потому что на светлых поверхностях грязь очень заметна. Тем не менее, это решение является одним из самых популярных среди жителей.
- Сделайте генеральную уборку — в рамках ремонта избавьтесь от тех вещей, которыми пользуетесь реже, чем раз в неделю. Поместите их в мусорное ведро, если они вам дороги на память, или просто выбросьте – такой беспорядок негативно влияет на размер квартиры, настроение жильцов и атмосферу квартиры в целом.
- Кстати, о камере хранения: с ее помощью можно рационально использовать шкафы в комнатах хрущевки, ведь можно будет перевезти зимнюю одежду в другое место.
- При проведении ремонта в 2-х комнатной хрущевке ориентируйтесь на проекты азиатских и европейских дизайнеров для жилья площадью 15-20 м2 (примеры на фото).
Конечно, идеально перепланировать свою квартиру под заданные стандарты у вас вряд ли получится, но найти полезные идеи, вроде встроенных в стены кроватей и гарнитуров, у вас точно получится.
Некоторые дизайнерские хитрости
Немалую роль в визуальном расширении пространства и создании эффекта легкости малогабаритной квартиры играет правильное сочетание цвета, рисунка и материала отделки стен, пола и потолка. В основу дизайна двухкомнатной квартиры в хрущевке можно положить некоторые хитрости, которыми иногда пользуются дизайнеры и специалисты по интерьеру:
- Пастельные тона с преобладанием светлых оттенков создают желаемый визуальный эффект, а яркий и интенсивный цвет обеспечивает визуальный эффект компрессии.
- Для небольших помещений подходит мелкий цветной рисунок, орнамент.
- Высота комнаты зрительно увеличивается с белым или близким к белому потолком. Можно использовать натяжные потолки.
- Эффект высоты обеспечивает многоуровневая конструкция потолка из гипсокартона.
Правильный подбор осветительных приборов позволяет усилить эффект. - Напольное покрытие может быть светлым или цветным, но должно соответствовать общей цветовой палитре интерьера комнаты. Цветное напольное покрытие также способно визуально раздвинуть стены.
- Выбор мебели – важный элемент. Дизайн двухкомнатной квартиры в хрущевке подразумевает минимизацию количества предметов. Они должны быть подобраны под общий дизайн. Для небольших комнат наиболее оптимальны раскладные столы, диваны раздвижного типа, многофункциональные комоды.
- Фотообои несколько вышли из моды, но при правильном их выборе можно обеспечить воздушность и визуальную бесконечность помещения.
- Шторы на окна дополняют общее впечатление от интерьера. В маленьких комнатах не стоит вешать громоздкие шторы, особенно темных оттенков. Лучше всего использовать легкие ткани светлых тонов.
Подготовка к перепланировке
Как правило, при планировке 2-х комнатной хрущевки в 50-60-е годы использовались типовые, заранее заготовленные варианты, утвержденные государством.
С одной стороны, у вас есть возможность ориентироваться на жителей, которые уже сделали ремонт. С другой стороны, это убивает индивидуальность квартиры, ограничивая пространство для маневра.
Лучший способ избежать этого – сделать перепланировку, но сначала нужно составить поэтажный план. Схема планировки 2-х комнатной хрущевки включает в себя:
- электрическая схема;
- количество и расположение торговых точек;
- метража комнат;
- толщина стенки;
- расположение водопроводных труб.
Конечно, есть компании, которые могут организовать комплексный разбор вашей квартиры, но выгоднее будет отдельно согласовать проект с электриком и сантехником, заказав схему электропроводки.
Использование перепланировки
Один из самых распространенных вариантов оформления маленькой квартиры – совмещение кухни и комнаты. Создав достаточно большое помещение после удаления перегородки между кухней и комнатой, следует позаботиться об оригинальном и элегантном зонировании нового пространства.
Например, появление в комнате трех зон: кухни, столовой и гостиной (прием гостей).
Некоторые общие правила зонирования квартиры в хрущевке:
- У каждого члена семьи должна быть выделенная личная зона. Причем площадь такой зоны, как правило, не имеет значения.
- При совмещении гостиной с кухней рабочая зона кухни с плитой и мойкой должна быть четко выделена и условно отгорожена, кухонные шкафы и холодильник.
- Достаточно часто выделяют такие зоны, как: кабинет, зона отдыха с телевизором и возможностью прослушивания музыки, удобное кресло или диван, компьютерное место и т. д. При возведении ограждений следует помнить, что они должны быть легкими , съемный. Не увлекайтесь стационарными перегородками.
- В качестве разграничивающих элементов можно использовать: барную стойку, диван, стол, стеллаж, сборную конструкцию из разноуровневых полок. Условное зонирование осуществляется изменением уровня пола или потолка, использованием разных цветов.
Элегантно смотрится ажурная или сотовая конструкция, вдоль которой пропущены вьющиеся комнатные растения. Рабочая зона кухни часто выделяется дополнительным освещением, для чего устанавливаются точечные светильники.
Зонирование многоуровневым потолком
Нитяные шторы – правильно зонируем пространство
При перепланировке хрущевки, как правило, удобно избавиться от стены, разделяющей 2 смежные комнаты, при этом лучший вариант сохранить различие между ними — нитяные шторы (пример на фото). В отличие от толстой стены, такая штора занимает меньше места, пропускает свет и свежий воздух, а главное, ее можно снять в любой момент, сделав комнату визуально больше. Этот элемент декора позволит создать в обычной хрущевке индивидуальный модный дизайн: красивый внешний вид в сочетании с практичностью, присущей современным стилям.
Минимализм — лучший стиль малогабаритных квартир
Часто стиль интерьера требует декора помещения, занимающего много места — чего не скажешь о минимализме! Такой вариант всячески стимулирует минимизацию количества предметов в квартире, что как раз подходит для дизайна хрущевки с 2-мя смежными комнатами (примеры на фото ниже).
В цветовой гамме, как правило, используется светлая – это визуально расширяет пространство и положительно влияет на психологическое состояние человека. Самые популярные оттенки белого, синего, бежевого и др.
Различные дизайнерские решения
Существуют разные проекты перепланировки малогабаритной хрущевки. Один из таких проектов называется офисной квартирой. В этом случае большая комната, прихожая и кухня сливаются в одно достаточно просторное помещение. Небольшая комната полностью изолирована и превращается в спальню (есть гардероб). В большой комнате отчетливо выделяется небольшой кабинет, который лучше всего отделить прозрачной раздвижной перегородкой для стока в единое пространство. Обозначены зоны: рабочая зона кухни и столовая.
Ванная комната тоже реконструируется. Вместо сидячей ванны устанавливается душевая кабина и Стиралка, а по возможности еще и небольшой шкафчик со столешницей и выдвижными ящиками.
В результате в такой небольшой квартире все необходимые бытовые помещения (гостиная, спальня, гардеробная, санузел, кухня, столовая и кабинет), но при этом общие границы раздвинуты за счет исчезновения перегородок.
Следующий возможный вариант — проект «Квартира на троих». В этом проекте большая комната также соединяется с прихожей, но гардероб не переносится в спальню. Кухня отделена от комнаты раздвижной перегородкой, а холодильник и электроплита уходят в нишу. Перегородку между комнатами смещают на 12-16 см в сторону небольшого уменьшения размеров спальни. Наглядное подтверждение таких вариантов также можно найти.
Третий возможный вариант — формирование изолированных комнат. Этот вариант нужен для создания двух отдельных спален. В этом случае между комнатами создается небольшой коридор, где устанавливается еще одна тонкая перегородка с дверью. Удлиненная часть прихожей подойдет для новой гардеробной. Таким образом увеличивается площадь прихожей. Получившиеся помещения, конечно, имеют небольшую площадь, но зато изолированы друг от друга.
Получившийся уголок между комнатами можно превратить в небольшую кладовку.
Что нельзя при реконструкции
Перепланировка малогабаритной квартиры позволяет предусмотреть необходимый дизайн и обустроить помещение по необходимости. Однако при проведении работ следует учитывать следующие запреты:
- нельзя снимать и нарушать целостность несущих стен и несущих элементов – такие работы выполняются только по специальному проекту;
- система вентиляции не должна быть повреждена;
- категорически запрещается закрывать доступ к газовой плите или духовке, а также носить ее самостоятельно;
- не рекомендуется менять место установки унитаза.
Двухкомнатная квартира в хрущевке, конечно, не подходит по своим габаритам, но и ее можно реконструировать, что позволит создать современный дизайн. Такую квартиру можно визуально расширить, создав благоприятный эффект без перестройки, но также можно добиться увеличения жилплощади, если провести перепланировку.
мне нравится
типовых вариантов проектов 1-2-4-комнатных квартир, идеи ремонта
За вторую треть ХХ века десятки миллионов людей переселились из сельских изб и одноместных комнат в общежитиях и коммуналках в отдельное жилье. Тогда это был большой прорыв, но уровень требований резко вырос в последние десятилетия. Да и комфортная жизнь далеко не исчерпывается центральным отоплением, горячей и холодной водой, газоснабжением. Квартиры «хрущевки», постройки 1950-е-1960-е годы не очень совершенное планирование, в большинстве своем, но исправить эту проблему при должном усердии не составляет труда.
Особенности застройки
Панельные пятиэтажки вовсе не были оригинальным изобретением, они объединили тенденции, развитые в Германии (компактные дома) и США (блочное домостроение). Строительство домов первой серии вместе с отделочными работами заняло примерно 50 дней, максимальное удешевление и ускорение строительства было достигнуто за счет малой толщины несущих стен.
В конструкциях не было предусмотрено использование лифтов, так как считалось, что здоровый человек способен подняться на пятый этаж и спуститься с него самостоятельно. Из части проектов убрали балконы, под кухни выделили от пяти до семи квадратных метров.
Газобетон, керамзит, несмотря на хорошую прочность, не обеспечивают достойного уровня звукоизоляции и слабо сохраняют тепло. Кирпичные пятиэтажки могут служить 90-100 лет, однако это достижимо только при качественном, своевременном капитальном ремонте и обслуживании.
Улучшение планировки — наличие балконов и др. усовершенствования, внесенные в хрущевские проекты с середины 1960-х годов (до завершения такого строительства в 1985 году). В большинстве случаев дизайнеры уже позаботились об отдельных санузлах. Высокие потолки могли достигать трех метров, хотя типичны все же низкие, до 250 см. Проходные комнаты все же обязательно присутствуют, это «родовая черта» всего жилья описываемой категории.
Угловые комнаты с двумя окнами – самое холодное место во всем доме зимой. Но неоспоримым преимуществом такой недвижимости является достойная освещенность помещения.
В таких однокомнатных квартирах целесообразно добиться максимальной симметрии освещения. Установка мягкой мебели позволяет значительно повысить уровень повседневного комфорта.
Стены (перегородки), разделяющие смежные помещения, не отличаются особой прочностью. Поэтому использовать их для подвешивания тяжелых вещей или даже нагруженных полок нельзя. Зато снос при перепланировке значительно упрощается и ускоряется.
Описание квартир
Двухкомнатная квартира в типовых проектах раннего периода встречается гораздо чаще, чем студия. Тем не менее круг проблем тот же: площадь маленькая, комнаты расположены хаотично, есть проходные комнаты. Если в квартире две комнаты, то ее площадь варьируется от 41 до 46 квадратных метров, а однокомнатную делали размером 30-31 м2.
Вне зависимости от площади была кладовая или встроенный шкаф и холодильник (полость под кухонным подоконником).
Все квартиры хрущевской серии 1-2-3-4 комнатные, площадь комнат может варьироваться очень существенно. Так, жилые комнаты занимают от 14 кв.м, спальни от 8 кв.м. м, детские комнаты от 6 кв. Самые «невезучие» кухни, их площадь начинается от 4,5 квадратов и даже в самых просторных вариантах составляет 6 или 7 квадратных метров. Трехкомнатная квартира может достигать 60 квадратных метров. м или даже чуть больше, но все равно будут смежные помещения.
Четырехкомнатная «хрущевка» имеет размер от 62 до 72 квадратных метров. м, в этом варианте, наконец, произошла изоляция всех комнат друг от друга. Неудивительно, что проектировщики и любители перепланировки высоко ценят это свойство. Практически всегда нет необходимости в радикальных изменениях внутреннего пространства, можно обойтись небольшими корректировками.
Однако чаще встречаются квартиры хрущевской серии площадью 30, 43 или 45 кв. Особенностью, характерной для жилья любого вида помещения, является выход окон всех квартир, кроме угловых, в одну сторону. Именно такими все дома серии 1-335, активно строящиеся с 1963 до 1967 года, похоже.
Важный момент: при перепланировке в идеале должны решаться не только эстетические проблемы, но и проблемы с используемой инфраструктурой. Независимо от серии, года постройки и нюансов распределения помещений, проводка и другие коммуникации морально устарели и не отвечают требованиям современных потребителей. Подключение энергоемких бытовых приборов становится очень опасным.
Согласие на согласование
Следует отметить, что законодательство, регулирующее перепланировку жилья и других помещений, было придумано не просто так.
Малейшее изменение даже незначительных стен, не говоря уже о несущих, может привести к ужасным последствиям.
Допустим, вы точно знаете, что какая-то стена или перегородка не загружена, но все же, ради всеобщего спокойствия и уверенности, ради исключения конфликтов и претензий со стороны соседей, лучше оформить и согласовать проэкт.
Ни одна несущая стена не может быть затронута перепланировкой, даже в самой малой степени. Обнаружив в ней незначительное изменение, контролирующие органы с полным основанием наложат штраф или применят иные санкции. Важно учитывать и другие тонкости, менее очевидные. Например:
- Запрещено существующими правилами расширение ванных комнат, кухонь и туалетов за счет жилых комнат (можно отнимать места только из технических помещений).

- Расширение кухонь за счет санузлов недопустимо.
- Если все же до того, как кухня была расширена, за счет жилой площади не допускается установка на ней сантехники и газовых плит.
- Кухню, оборудованную газовой плитой, запрещается объединять с жилыми комнатами (при отсутствии межкомнатных дверей).
Если вы хотите не сносить несущую стену, а только сделать в ней проем ограниченного размера, это разрешено правилами. Но нужно будет обосновать необходимость такого решения, невозможность иного выхода из ситуации и безопасность планируемой ямы. Обязательным условием для разрешения таких работ будет инженерное обследование стены как в вашей квартире, так и на соседних этажах. Категорически запрещается любая работа, которая затруднит доступ к общедомовым коммуникациям и устройствам, управляющим ими.
В последнем случае речь идет и о вашей безопасности: представьте, что будет, если газовую трубу замуровать с «ужасным и портящим вид», а потом газ будет просачиваться и скапливаться в закрытой полости.
Или вода начнет просачиваться внутрь, понемногу смывая материалы, пока не разрушит твердую часть стены.
Ни одна перепланировка, даже считающаяся безопасной и приемлемой, не подходит для домов, ожидающих очереди на снос. Совмещать балконы с жилыми комнатами и кухнями можно только там, где проекты позволяют установить раздвижные стены. Подключать теплый пол к общим трубам ГВС и отопления нельзя, так как это создает непредвиденную нагрузку и может полностью нарушить баланс этих важных систем. Запрет также распространяется на перекрытие вентиляции или перенос ее траектории.
Идеи по ремонту
Не стоит возмущаться по поводу ограничений, тем более, что все они легко преодолеваются обходными путями. Однокомнатную квартиру формата «хрущевка» можно переоборудовать в студию, это отличный молодежный вариант. Суть в упразднении перегородок, мешающих проходу сразу из гостиной на кухню и в коридор. Важно отметить, что туалет не тронут; его можно перемещать только на первом этаже.
Еще одним способом решения проблемы нехватки места является слияние кухонь с коридорами, при котором двери, ведущие в комнату, отодвигаются от входа в жилище. Второй вариант позволяет установить встроенные шкафы в прихожих. Еще неплохо подумать об утеплении балкона или лоджии, об отоплении там, но реализовать такое решение должны квалифицированные специалисты, не пытайтесь действовать независимо!
Однокомнатные «хрущевки» в кирпичных домах с очень маленькими санузлами и кухнями со стандартным расположением перегородок совершенствуются за счет отказа от бани. Вместо них установите душевые кабины, которые помогут лучше использовать площадь ванной комнаты. Одна стена немного скошена, кухня немного расширяется, а прихожая, наоборот, сужается.
Утеплив балкон, на него можно перенести шкаф и письменный стол, и даже разместить там кабинет. Такой вид перепланировки уместен для семьи из трех детей и двух взрослых. А вот квартиры формата «студия» не очень нравятся большинству людей, если у вас есть дети, от такого решения лучше отказаться.
Другой способ изменения расписания заключается в переносе разделов. Когда боковая стена прихожей сдвинута в сторону комнаты, а ее передняя стена сдвинута почти до самой двери ванной комнаты, можно расширить коридор, поставить в нем встроенный шкаф или даже гардеробную. Недостаток места в комнате компенсируется изъятием части кухонного пространства, но все же перенос стены к двери в ванную позволяет поставить холодильник. Столовая часть кухонь перемещается в комнату, а сделать территорию более гармоничной поможет установка раздвижных дверей или входного блока типа «гармошка».
Однокомнатная «хрущевка» трансформируется в студию с отдельным спальным местом, где размещается кровать и небольшой шкаф. Пусть мебели там немного, но одно из самых важных мест выделено.
Привлекательное решение с созданием «квартиры-офиса», в котором большая гостиная совмещена с кухней и коридором. Все это пространство становится местом приема пищи и повседневного отдыха.
Маленькая комната становится шире на 15 сантиметров, потому что перенесена перегородка, это помещение отведено под спальню и гардероб. Но обычным сдвигом перегородок дело не ограничивается, образуя рабочий кабинет, между ним и гостиной прозрачная стена.
Раздвижные двери на ваше усмотрение могут визуально интегрировать шкаф в общее пространство или отделить его; ванна в санузле заменена на душ и стиральную машину. Туда же добавляется дополнительная удлиненная столешница в комплекте с выдвижными ящиками.
Дизайн интерьера гостиной
Для того чтобы гости, которых вы впервые (и даже позже) будете принимать в переделанной «хрущевке», сразу поняли суть дизайнерской идеи, необходимо грамотно оформить гостиную . Оптимально, по мнению специалистов, для интерьера этой комнаты подходят светлые тона, они помогут хотя бы визуально справиться с нехваткой места. А вот какой светлый материал на стены выбрать, решать только вам!
Широкое применение:
- обои под покраску; виниловые обои
- ;
- шелкография;
- стеклобой;
- орнаментированных блоков и узоров.

Дополнительный подъем потолка обеспечит направленные вверх источники света. Чтобы свет не выделял однообразное пространство в одиночестве, есть смысл использовать прямоугольные картины, оригинальные портьеры и гардины. Высокие вазы и металлические подставки для цветов добавляют интерьеру изящества и элегантности, делают помещение более живым.
По мнению специалистов, гостиные в «хрущевках» должны быть оформлены в духе классики или минимализма. Все остальные решения если и актуальны, то лишь в отдельных случаях и в рамках авторского дизайна высокого класса. Самостоятельно спроектировать и реализовать хорошую среду очень сложно. Минималистичный интерьер привлекателен тем, что используется лишь ограниченное количество мебели, по большей части модульного типа, отделка сформирована из однородных материалов сдержанного цвета. Яркие аксессуары если и есть, то только как выразительный акцент, а не доминирующий.
Классическая гостиная часто получается при совмещении с этой комнатой кухни.
Оконные и дверные проемы желательно превратить в арочные или хотя бы имитировать их. Классика прекрасно сочетается с зеркалами, репродукциями картин известных художников, статуями. Допустимо использовать один-два предмета, украшенных ковкой, но хорошо подумайте, не будут ли они чрезмерно тяжелыми в данном помещении.
Никогда не ставьте мебель по периметру, она зрительно поглощает пространство и только уменьшает его выразительность. Хорошая идея – потолок в стиле прованс или использование для него глянцевого материала. Как и в любой другой квартире, в «хрущевке» декор гостиной должен быть согласован с интерьером остальных комнат (или хотя бы отделен от них переходной полосой, если разница слишком велика).
При этом стильными и практичными решениями для пола являются паркет, ламинат и линолеум, сочетающиеся по цвету с мебелью, поэтому уже стоит или не стоит покупать напольное покрытие, не определив цвет интерьера. Нежелательны сочетания разноцветных покрытий или насыщенных, привлекающих внимание рисунков: они эмоционально отталкивают.
, наоборот, могут комбинироваться — обычно внизу впускают относительно более светлые, а область вверху идет на тон темнее. Используйте три, максимум четыре декоративных элемента одновременно, иначе получится чрезмерно пестрый вид.
Соблюдая эти принципы, даже в квартире-студии можно будет создать уникальный и удобный для вас во всех отношениях интерьер.
О том, как перепланировать «хрущевку» по согласованию, смотрите в следующем видео.
Перепланировка кухни от А до Я: правила, варианты, согласование (81 фото)
Перепланировка кухни как способ улучшения эксплуатационных характеристик помещения относится к востребованным интерьерным процедурам. Причем, расширяя не только компактные кухонные помещения. Владельцы вносят изменения в конфигурацию стен маленьких и просторных кухонь, обустраивают совмещенные функциональные зоны для повышения комфорта и эффективности работы.
Обзор вариантов реконструкции
Наиболее распространено совмещение функциональной зоны со смежной комнатой, обычно такой ремонт захватывает гостиную. Это удобное решение, так как позволяет обустроить обширную столовую, но оно не всегда осуществимо: в панельных домах стена часто является несущей, ее нельзя убрать полностью.
Присоединение полезной площади балкона сводится к расширению светового проема и выдвижению части мебели. Если это лоджия, допустимо дополнительное утепление и увеличение полезного функционала.
В коридоре и других нежилых помещениях нельзя обустраивать обеденную зону, а вот непосредственно приготовление пищи и сопутствующие манипуляции здесь допустимы.
Запрещено обустраивать жилые помещения на освобожденной территории кухни, хотя по закону здесь можно разместить гардеробную или кабинет, мастерскую. Пространство, оставленное для приготовления пищи и мытья посуды, должно соответствовать нормам безопасности – иметь источники света, правильно размещенные инженерные коммуникации.
Что нужно учесть при реализации задуманной перепланировки кухни?
Объединение кухни со смежной комнатой позволяет организовать комфортное пространство с функциональной зоной приготовления пищи и просторной обеденной зоной. Также легко обустроить кухню-гостиную с соответствующим интерьером или спроектировать кухню-мастерскую. При этом исключаются лишние коридоры, значительно расширяется потенциал полезной площади квартиры.
Что делать, если для объединения кухни с гостиной или другой примыкающей комнатой нужно снести капитальную стену? Этот вариант перепланировки требует согласования в ответственных органах, как и любой другой способ внесения изменений в проект. Если это несущая стена, то ее снос нарушит каркасную жесткость всего здания, что чревато серьезными последствиями. Получить разрешение на реализацию идеи такого союза очень сложно. Даже при положительном исходе допускается только организация проема в капитальной стене с обязательным ее усилением.
Демонтажные работы выполняются специалистами и только на основании утвержденного проекта перепланировки. Документ содержит расчет проектного института, в котором указаны допустимые размеры проема и рекомендации по демонтажу стены с последующими работами по усилению конструкции.
Если для объединения кухни и примыкающей комнаты требуется демонтаж перегородки, не являющейся несущей, перепланировка также должна быть согласована.
Можно ли переделать кухню с газовой плитой?
Наличие газового оборудования накладывает особые ограничения на перепланировку кухни в квартире. Вам придется выполнить массу требований, чтобы получить разрешение на объединение пищеблока со смежным помещением:
- При наличии перегородки на пути к реализации идеи перепланировки теоретически получить разрешение на демонтаж проще, чем в случае с капитальной стеной. При этом полностью совместить газифицированную кухню с комнатой не получится, так как это запрещено санитарными нормами.
Придется разделить комнаты сдвижной перегородкой или устроить проем с плотно закрывающейся дверью. Большинство владельцев устанавливают на линии разграничения двух пространств конструкции с прозрачными или полупрозрачными листами оргстекла. - Еще один способ объединить газифицированную комнату с комнатой — отключить газ. После того, как работники газовой службы заварят колено магистрального газопровода, пользоваться можно будет только электроплитой. При этом можно будет узаконить перепланировку кухни и объединить площадь двух комнат.
Между тем отключение газа в отдельной квартире связано с дополнительными расходами. В ряде случаев данная процедура неосуществима из-за технических особенностей газопровода.
Особенности расширения кухни
Как показывает практика, кухни не только объединяют со смежными помещениями, но и увеличивают площадь пищеблока за счет прилегающей территории. При таком расширении также необходимо соблюдать требования регламента.
Например:
- Перенос разделов. К кухне можно присоединить часть смежной комнаты, уменьшив площадь жилого помещения не более чем на 1/4.
- При переносе перегородки на эти добавленные квадраты не ставьте кухонную технику. Это означает, что плита и мойка остаются на одной территории. А вот в обновленном интерьере кухни можно расширить рабочую поверхность или организовать удобную обеденную зону.
- Жилищный закон позволяет пристроить нежилое помещение к кухне. Это коридоры, кладовые или гардеробные. Положение
- запрещает расширение кухни за счет ванной комнаты.
Стоит помнить, что на любой вид перепланировки требуется согласование в компетентных организациях с документальным подтверждением. В этом случае нужно быть готовым к возможным сложностям при продаже жилья с перепланировкой.
Особенности объединения кухни с балконом
Многие считают, что объединение балкона поможет решить проблему нехватки места на кухне.
Однако балконная плита – это отдельный конструктивный элемент, не способный выдержать вес утепленных стен. Данная конструкция не рассчитана на нагрузку в виде зимнего остекления. Другое дело лоджия, в этом случае возможен законный союз.
Популярные варианты перепланировки кухни с лоджией:
- замена ненесущей стены французскими шторами в виде передвижной стеклянной перегородки или установка стеклопакета с дверью;
- организация обеденной зоны на дополнительном участке.
Здесь в качестве примера приведен перенос части кухонной мебели на лоджию, что позволяет освободить место на кухне для комфортного использования.
Перепланировка: перенос кухни на лоджию
Для совмещения функциональных зон в первую очередь следует позаботиться о полноценном утеплении. Специалисты рекомендуют обратить внимание на металлопластиковые стеклопакеты. Стену под каркасом снаружи желательно утеплить пенопластом и отделкой сайдингом.
Если позволяет площадь, внутреннюю поверхность и потолок также утепляют утеплителем, например, пенопластом. В некоторых случаях возможен монтаж теплых полов, более распространенный бюджетный вариант – «пирог» из битумной мастики, фольги и утеплителя.
Такая перепланировка кухни в панельном доме требует согласования, и полностью убрать перегородку не разрешат: ее нижнюю часть можно использовать как столешницу или основу для декоративного витража. После вырезания части стены помещение отделывается гипсокартоном и создается интерьер путем покраски, оклейки обоями, установки деревянных или пластиковых панелей.
Перенос кухни в другие жилые помещения
По нормам жилищного законодательства не допускается перенос кухни в жилые комнаты. Однако собственникам жилья на первом этаже разрешена такая перепланировка. В этом случае действия ограничиваются только особенностями подключения к инженерной инфраструктуре.
По регламенту кухню можно вынести в нежилую часть квартиры.
Например, допускается организация кухни-ниши в прихожей при наличии просторной входной зоны. Кухня в коридоре представляет собой функциональное пространство с электрической плитой, вытяжкой и раковиной. Примечательно, что кухню-нишу можно устроить в комнате без окна, а вот для стандартной кухни с обеденным столом норма требует наличие естественного освещения.
Чаще всего при обустройстве проходной кухни в коридоре используют складные дверные конструкции или двери-купе, аналогичные гардеробной. При организации строительных работ необходимо позаботиться о возможности подключения кухни-ниши к коммуникационным системам.
На старом месте кухни можно оборудовать дополнительную спальню, гостиную, мастерскую или кабинет. Стоит помнить, что по нормативам запрещается размещать кухонную зону над жилыми комнатами, поэтому в документах помещения лучше называть нежилыми, если только квартира не находится на верхнем этаже дома.
Перепланировка кухни в хрущевке
При перепланировке малогабаритной кухни в хрущевке хозяевам приходится «выжимать» из пространства максимальный потенциал, используя актуальные варианты организации площади.
Объединение кухни с гостиной
Демонтаж примыкающей ненесущей стены может успешно решить проблему дефицита места в кухонной зоне. После ремонта со сносом перегородки, который проводится только с разрешения на процедуру, конечно же, общая площадь площади кухни-гостиной в хрущевке не изменится. При этом обеденную группу можно вынести на гостевую часть территории, освободив место для рабочей зоны. Обновленная кухня станет визуально просторнее, улучшится восприятие пространства.
К преимуществам объединения кухни с гостиной в малогабаритной квартире можно отнести и то, что создаются прекрасные условия для семейного общения. Вы можете одновременно готовить и следить за детьми, которые занимаются творчеством или активными играми. В совмещенной кухне-гостиной удобно принимать гостей, организовывать праздники и торжества.
Между тем перепланировка кухни в кухню-гостиную связана с недостатками. Из-за отсутствия перегородки запахи еды будут распространяться по всей площади.
Проблема частично решается установкой мощной вытяжки над варочной панелью. Хотя, если у вас есть трапеза в гостевой части, то придется смириться с такими неприятностями, как кулинарные ароматы в текстильном убранстве комбинированного интерьера. Еще один, не менее существенный минус в копилку совмещенной кухни-гостиной – шум воды и работающей техники несколько нарушает гармонию и мешает отдыху домочадцев.
Расширение кухни за счет смежных помещений
Владельцы хрущевок, которым необходимо сохранить обособленность функциональных зон, могут воспользоваться способом увеличения маленькой кухни в хрущевке за счет переноса смежной перегородки. Так что расширить площадь кухни за счет примыкающей гостиной, кладовой или коридоров не составит труда.
Во время ремонтных работ стоит внести изменения, касающиеся дверного проема. Так как распашные двери на кухне занимают много полезного пространства и загромождают интерьер, целесообразно при ремонте установить складные или раздвижные входные конструкции.
Если обновляется негазифицированное помещение, можно оформить открытый дверной проем красивой аркой.
При перепланировке маленькой кухни особое внимание уделяется оформлению подоконника. Используя скрытый потенциал этого элемента интерьера, легко сэкономить пространство и повысить функциональность помещения. Чем лучше переделать подоконник:
- Встроить на кухне. Подоконник прекрасно вписывается в П-образную мебельную систему, он также удачно вписывается в угловой вариант конструкции. В процессе ремонта следует немного приподнять окно, чтобы высота подоконника-столешницы соответствовала уровню напольных стоек. Так его удобно использовать как разделочный стол, создавать дополнительные места хранения;
- Расставьте обеденный стол или барную стойку. Здесь для переделки подоконника нужно подобрать соответствующую столешницу и при необходимости оборудовать ее 1-2 опорами.
При обустройстве обновленного подоконника стоит позаботиться о правильной циркуляции теплого воздуха от радиаторов отопления.
Необходимо сделать вентиляционные отверстия по внутреннему периметру столешницы, чтобы поток теплого воздуха достигал оконной системы и провести линию декоративной решеткой.
Варианты перепланировки кухни
Владельцы квартир с маленькой кухней часто готовы пожертвовать пространством жилых комнат, к которым относятся гостиные и спальни. Одни планируют метод расширения, другие решаются на кардинальные меры в виде переноса функциональной зоны. Так как проблем с получением разрешения на желаемые изменения очень много, при выборе вариантов реконструкции кухни следует знать государственные нормативы.
Объединение кухни с гостиной
Реализация проекта возможна только в некоторых случаях. Если стена между комнатами не капитальная, то ее можно снести. Если это несущая конструкция, то маловероятно разрешение даже на вырезание дверного проема. В постройках брежневской эпохи между кухней и комнатой есть капитальные стены, демонтаж которых чреват нарушениями каркасной конструкции.
В большинстве панельных домов почти все стены отнесены к несущим, перепланировка здесь затруднительна, а в хрущевках такие изменения вполне возможны.
По ГОСТу совмещение кухонной зоны со смежной жилой комнатой возможно только в квартире с двумя и более комнатами. Обойти это правило владельцы однокомнатного жилья могут несколькими способами:
- оставить небольшой кусочек перегородки в виде вертикального узкого полотна возле соседней стены, что будет номинальным свидетельством того, что это два разных помещения;
- оставить часть перегородки высотой 80-90 см и использовать как основу для организации дополнительной рабочей поверхности или барного стола;
- визуально разграничить пространство функциональных зон с помощью отделки пола и стен.
Использование этих приемов положительно влияет на создание интересного интерьера в совмещенной кухне-гостиной.
Кухня-перевод
В этом случае выделенное помещение будет оборудовано всеми соответствующими коммуникациями в виде систем сантехники и вентиляции, здесь установлена мебель и бытовая техника.
По регламенту перенос кухни в гостиную или расширение первой за счет второй возможен в следующих случаях:
- Квартира расположена на первом этаже;
- под обустраиваемой площадью располагается нежилой объект, например, магазин или офис;
- в квартире этажом ниже перепланировка выполнена по такой же схеме.
Даже если условия проживания предусматривают эти пункты, не стоит самостоятельно браться за составление планируемых изменений. Следует выбрать профильную компанию, специалисты которой проконсультируют по всем вопросам и помогут с получением разрешения на перепланировку.
Особенности перевода кухни в жилые комнаты: если кухня перепланируется в спальню или гостиную, для получения официального разрешения на процедуру помещение должно быть оформлено как нежилое, например, как офис. В противном случае согласовать изменения не получится, так как существуют нормы, запрещающие размещение кухни над жилым помещением.
Как осуществляется перевод кухни в нежилое помещение? Преобразование кухонной зоны в коридор или кладовку не нарушает правовых норм, но и здесь нужно учитывать особенности процедур.
Выгодно ли из кухни и комнаты сделать однокомнатную квартиру?
Такая перепланировка оправдана, если жилье предназначено для студента, пожилой пары или одинокого человека, молодоженов или семьи без детей. В других случаях совмещение кухни с одной жилой комнатой может сопровождаться снижением качества жизни домочадцев.
Отличным выходом из положения является организация пространства с эффектом обособленности отдельных участков. Важно разделить с помощью мобильных перегородок, ширм и мебельных конструкций, чтобы создать условия повышенного комфорта в помещении с пересечением функциональных зон.
Как спланировать дизайн кухни в студии?
Чтобы тщательно продумать особенности обустройства рабочего пространства, нужно начать с выявления потребности.
Разработчики интерьера советуют взять лист бумаги и сформулировать пожелания по следующим пунктам:
- какие кухонные функции станут основными;
- сколько и часто в семье готовят;
- приходят ли гости, если да, то сколько человек;
- как организовать досуг;
- планируется ли отдельная зона под офис.
Ответы на эти вопросы помогут правильно зонировать кухню после перепланировки, грамотно установить освещение и технику, подобрать мебель. Ненужные зоны берутся из проекта.
В частности, если не принято длительных обедов и чаепитий с гостями, обеденный стол лучше заменить барной стойкой. Тем, кто много и с удовольствием готовит, необходимо предусмотреть в перепланировке черты максимально функционального, соответственно, и общего кухонного гарнитура. Если в семье кулинария стоит далеко не на первом месте в списке интересов, будет достаточно компактная плита и минимум мебели. В любом случае столешницу длиной 60-80 см следует расположить в удобном месте кухонной зоны.
На переоборудованное под однокомнатное жилье в старом фонде и прогрессивной новостройке распространяются единые нормы, касающиеся размещения санузла и кухни. Даже стирку не всегда удается перенести в другое место, так как возникают сложности с подведением коммуникаций. Часто, чтобы обустроить правильный слив, при ремонте приходится менять уровень пола или дополнительно вводить канализационный насос.
Если в студии получилась старая хрущевка, оборудованная газовой плитой, например, и колонкой, зону приготовления пищи следует изолировать с помощью раздвижных дверей или плотной перегородки. Этот пункт является одним из тех возможных нюансов перепланировки кухни, без которого ремонт не будет согласован. В новостройках обычно сразу устанавливают электроплиты, здесь перегородка монтируется по желанию домочадцев.
Зонирование кухни в одно- и двухкомнатной квартире, полностью или частично переоборудованной под студию
Грамотно разработанный проект ремонта позволяет добиться такого эффекта, когда функциональные зоны плавно переходят одна в другую.
Границы могут быть условными и реальными – все зависит от площади и конфигурации квартиры. В небольших студиях необходимость зонирования обычно заключается в обособлении зоны приготовления пищи от места отдыха. В просторном жилье можно разделить на секции и пищеблок, и остальную часть площадки.
Для этого используйте следующие методы:
- обеденный стол или диван в качестве бордюра;
- создание кухонного острова для отделения столовой;
- классическое решение – барная стойка со стульями;
- бюджетные раздвижные двери или более презентабельные раздвижные перегородки из закаленного стекла;
- встроенная перегородка на 2/5 высоты стены, оборудованная столешницей;
- многоуровневые потолки. Они не подходят для хрущевки с миниатюрной кухней в 5 кв. м, но в новостройках удачно скроет коммуникации, проходящие через потолок.
- Зонирование обязательно дополняется неоднородным освещением и напольным покрытием.
Кухонное оборудование: какой набор включить в дизайн-проект?
Если планируется нестандартная планировка, мебель лучше заказать – так больше шансов получить оптимальное соотношение мест хранения и рабочих поверхностей.
Встроенная кухня – удобное решение для тех, кто ценит компактное и ненавязчивое размещение вспомогательных помещений. Если необходимо изолировать гарнитур от коридора или гостиной, стены из гипсокартона также кладут на стадии ремонта.
Чтобы в будущей кухне-студии не было беспорядка, при проектировании перепланировки нужно предусмотреть место для вместительного мебельного гарнитура с большим количеством выдвижных ящиков. Для этого нужно заранее составить список предметов, посуды, инвентаря, тары и аксессуаров, которые нужно будет где-то хранить в периоды простоя. Тогда при прорисовке конструкции получится точно подогнать полки и шкафчики нужной высоты и в необходимом количестве.
Тонкости организации ремонта кухни
В интерьере студийного типа активно используется смешение различных стилей. При проектировании перепланировки маленькой кухни 6 кв. Скандинавский минималистичный дизайн проще всего обложить элементами хай-тек хай-тек.
Необходимо избегать визуальной перегрузки пространства, оптимальное решение – создание нейтральной фоновой отделки, где следующими яркими акцентами будут мебель и текстиль.
Ремонт в белых, серых, выбеленных желтоватых, синих, бежевых и зеленых оттенках добавит в камерную атмосферу ощущение простора. Для отделки стен рекомендуется использовать обои под покраску – качественные вариации можно перекрашивать до 8 раз.
В малогабаритных студиях бюджетного сегмента часто встречается проблема одного окна в сочетании с вытянутыми прямоугольными очертаниями жилья. Такая планировка предполагает, что кухня находится в затененной зоне. Для создания комфортной рабочей обстановки и нивелирования недостатка конфигурации квартиры рекомендуется распределять освещение как можно равномернее. Обязательно нужно предусмотреть подсветку столешницы и везде использовать светильники, имеющие теплый свет.
Если вы хотите отвлечь внимание от кухни и настроить гостиную на благоприятный антураж, стоит оборудовать гарнитур с нейтральным дизайном – с кремовым, белым, фасадом из светлого дерева. Неброский фартук идеально сочетается с тоном шкафов или стен. Зона гостиной, в свою очередь, оформлена яркими акцентами.
3 комнатная квартира хрущевка дизайн планировка. Перепланировка трехкомнатной квартиры. Перепланировка трешки, затрагивающая сырые помещения
В современных условиях при разговоре о капитальном ремонте хрущевки сразу возникают мысли о перепланировке, способной преобразить жилье, сделать его уютным и комфортным. Перепланировка 3 комнатной хрущевки может изменить ее до неузнаваемости, но только если все сделать по СНиПам.
Прежде чем затевать перепланировку 3-х комнатной хрущевки, необходимо согласовать все свои планы с БТИ.
Подходы к жилой архитектуре. В постановлении содержалось уже известное утопическое обязательство ликвидировать дефицит советского жилья в течение 10-12 лет. В ходе советского массового жилищного строительства строились четыре разных поколения. Эти дома состояли из крайне «скромных» квартир: на одного жильца полагалось 9 м 2 жилой площади, причем большинство домов состояло из 1-2 комнатных единиц. В больших, 2-3 комнатных квартирах чаще всего показывались проходные комнаты.
Маленькие кухни предназначались исключительно для приготовления пищи, а ванны и туалеты располагались вместе в одном выделенном помещении. Стандартная внутренняя высота квартир достигала 5 метров — несколько ниже стандарта, установленного для сталинских квартир.
Первый вариант перепланировки. План после перепланировки 3-х комнатной хрущевки. Процесс коснулся в основном ванной комнаты и кухни.
За счет перепланировки увеличилась площадь кухни. На первый взгляд и не скажешь, что это обычная хрущевка.
Единственным эффективным методом улучшения советской жилищной системы является так называемый пилотный проект. Для этого в Вильнюсском институте градостроительного проектирования создано специальное бюро. Поиск разнообразных архитектурных подходов к быстровозводимым жилым домам проявился и в проектах Тамошявичюса и инженера Миндаугаса Билявичюса для двенадцати- и девятиэтажных жилых домов. Однако подавляющее большинство пилотных проектов так и не были использованы или были реализованы с существенными изменениями.
Расширение коридора за счет соседней комнаты. Интересный дизайн комнаты.
Увеличение комнаты путем объединения двух комнат в трехкомнатной квартире — демонтаж перегородки.
Перепланировка трехкомнатной квартиры в четырехкомнатную
Инициатива проекта была вызвана возможностью строительства нового экспериментального жилья в жилом районе Лаздинай.
«Литовская серия», на основе типовой стены длиной 20 метров, разработала 1, 2, 3 и 4-комнатные квартиры, включавшие в себя множество улучшений: меньше проходных комнат, ванные комнаты, расположенные отдельно от туалетов, более удобные кухни и вместо комнат закрытые галереи балконов.
Улучшение архитектуры жилых домов и дизайна квартир стало для литовских архитекторов важной задачей, хотя эта сфера не считалась престижной. Серия иллюстрирует стремление архитекторов к более удобной планировке квартир и приданию зданиям большей объемности фасадов. В рамках стандартизированного планирования эти усилия представляют собой небольшие шаги по решению проблемы архитектурного однообразия и улучшению качества квартиры.
Ванная и санузел обледенели в результате полного демонтажа перегородки между этими помещениями.
Помимо перепланировки хрущевки, придать современный вид интерьеру квартиры поможет дизайн.
Еще одним нововведением в массовом строительстве стало введение холла площадью 11 м2, выходящего на балкон квартиры, отапливаемых мансард, сборных крыш без рулонной кровли и более просторных кухонь.
Хотя в других советских республиках архитекторы стали избегать проектов массового строительства и отдавать инициативу инженерам, в Литве проектирование панельного домостроения всегда контролировалось профессиональными архитекторами. Несмотря на стандартизацию и столкнувшись с очень ограниченным выбором материалов и типов построек, они продолжали искать пути улучшения жилищных условий массового производства.
Перепланировка коснулась увеличения высоты дверного проема. Это позволяет визуально «приподнять» потолки, особенно в сочетании с таким настенным покрытием.
Перепланировка кухни и санузла в 3-х комнатной хрущевке
Существует несколько планировок хрущевки, которые отличаются размерами и расположением всех комнат, и множество вариантов перепланировки 3-х комнатной хрущевки. Как правило, в такой квартире кухня примыкает к одной из комнат. При перепланировке сносят стену между этими комнатами (но только если она не несущая) и таким образом создают гостиную-кухню.
При этом старый вход на кухню заделывают. Коридор, который раньше вел на кухню, совмещен с санузлом, который после таких изменений становится очень просторным.
Примеры проектов перепланировки трехкомнатных квартир
Многоуровневая система культурно-бытового обслуживания нового советского города превратилась в микрорайоны. Макет нового города Электренай. Архив Электростанции. Александравичюс, Центральный государственный архив Литвы. Новые города и районы.
Примеры и варианты перепланировки трехкомнатной квартиры
Массовая жилая архитектура в советской Литве была неотъемлемой частью общесоветского контекста и его стандартов. Однако Литва также смогла воспользоваться уникальными местными обстоятельствами, которые позволили архитекторам уклониться от внесения улучшений в жилищное строительство и даже задавать новые тенденции в городском градостроительстве на ограниченное время.
Обратите внимание, что расширить ванную комнату можно только за счет коридора.
Перепланировку, при которой санузел выносят в жилое помещение, согласовать нельзя.
Второй вариант. Перепланировка 3-х комнатной квартиры на четверых. Процесс коснулся всех помещений.
Первое, что нужно было изменить, это представление о том, как должен выглядеть жилой квартал или квартал. Введена новая многоуровневая система культурно-бытового обслуживания населения. Основным подразделением микрорайона являлась группа жилых домов, расположенных вокруг центра первичного обслуживания.
Новый район будет состоять из нескольких таких групп зданий, обслуживаемых детскими центрами, школами и торговыми центрами. Несколько микрорайонов, в свою очередь, будут объединены в новый жилой район с собственным центральным торгово-развлекательным центром, зданием здравоохранения и другими подобными объектами общественного назначения.
Для создания дополнительной комнаты мне пришлось уменьшить спальню. Зрительно увеличить его помогут обои светлых тонов.
Дверной проем в коридоре заменен аркой. Это увеличивает пространство.
Также в этом разделе
Изменилась и композиция градостроительной застройки, отходя от системы застройки жилья по периметру квартала в пользу более вольной компоновки зданий, что позволяет сохранить окружающий природный ландшафт . Зеленые зоны были введены между зданиями и дорогами и пешеходными дорожками, ранеными внутренними двориками, а также между группами зданий и кварталами.
Ядро города состояло из трех улиц, объединенных в одно кольцо. В центре города возведен комплекс административных, культурно-бытовых зданий, в том числе: детские сады, школа и техникум, дом культуры с широкоэкранным кинотеатром, универмаг, продуктовый магазин, столовая и магазин. бытовая техника, гостиница полного цикла, поликлиника и больница расположены чуть дальше от центра. Это центральное ядро окружали 4-, 5- и 9-этажные жилые многоквартирные дома, свободно расположенные на участках зеленых лужаек и парковых зон.
Перегородка между комнатами может быть светопрозрачной. Это может быть полезно для визуального увеличения пространства.
Любую хрущевку можно спроектировать так, чтобы она выглядела как современный элитный дом.
Перепланировка трехкомнатной квартиры, фото
Современный город на четыре тысячи жителей построен современными индустриальными методами: в числе первых бетонных панелей здесь возводились многоквартирные дома. Хотя большинство общественных зданий в Электренай были построены по типовым планам, были и примеры зданий с уникальным дизайном. Позже школьный дизайн был принят в качестве стандартизированной модели. На какое-то время город Электренай стал образцом для градостроителей всего мира. Советского Союза, задачей которого было освоение новых поселков для обслуживания государственных объектов электроэнергетики.
Комната разделена на две небольшие перегородки. Уменьшенную комнату можно обустроить очень удобно.
Для увеличения площади санузла можно совместить с санузлом.
Neighborhood One также прославился своей образцовой застройкой. Центр вскоре стал образцом для других подобных комплексов, возникших во многих районах Литвы. Празднование и награждение Лаздинай. Новый район был основан на системе кольцевых дорог и групп жилых домов, свободно расположенных вокруг полуоткрытых дворов и распределенных в естественном сосновом лесу, распределенном по труднопроходимой местности. Действительно, в новом пригороде внедрены действительно инновационные решения по застройке рельефа и сохранению природной среды.
Во многих хрущевках санузел отделен от санузла стеной, и в таком помещении хозяевам сложно даже развернуться. Чтобы изменить это, ванную комнату демонтируют во время ремонта. На его место потом установить душ. Теперь есть место, например, для стиральной машины, которая раньше занимала часть кухни.
Как создать комфортное пространство
С самого начала Чеканаускас и Бредикис посвятили много времени и сил поиску подходящего места для нового поселения — местности с холмистой местностью и сосновыми рощами, которая станет основой для городской застройки план.
Лаздинай также отметил, что впервые жилые дома были построены на значительно наклонном ландшафте, что вызвало понятные проблемы при планировании встреч с Вильнюсским строительным комбинатом. Чканаускас вспоминает.
Был Любексис, который всех презирал, на всех кричал — все остальные менеджеры боялись его видеть. Почему-то со мной ему было лучше. Он предложил мне кофе, мы поговорим, а потом он спросит: Итак. Другими словами, он уважал меня как архитектора, поэтому говорил со мной другим тоном.
При ремонте дверные проемы в ванной можно сделать немного выше. Это создаст иллюзию более высокого потолка.
При перепланировке кухни и санузла в 3-х комнатной хрущевке остальные две комнаты оставляют без изменений. Одну из них можно оформить в спальне, а другую, например, в детской комнате.
Маневрировать среди всех директоров — наш хлеб насущный. Несмотря на эти трудности, архитекторам удалось создать городское разнообразие высот и объемов зданий, характерное для жилых районов Скандинавии.
Эти последние здания были чисто эстетическими и композиционными соображениями, поскольку конструкции панельных башен считались неэффективными.
Застройка Лаздынай отличалась также общественными зданиями. Молодой архитектор Чесловас Мазурас спроектировал инновационную нестандартную школу для местного населения. Архитекторы также настроили стандартные торговые центры, построенные в каждом районе, с уникальными особенностями. В генплан также входило строительство современного общественного объекта со спортивными площадками и выставочным центром у подножия нового квартала, а проектировщики планировали, что все пешеходные дорожки ведут к главному культурно-торговому центру, территории, отстоящей от одной из главных магистралей. сообщества.
Вариант третий. Перепланировка 3-х комнатной квартиры на троих. Процесс коснулся всех помещений. А также оригинальна идея создания полукруглых перегородок.
Чтобы соответствовать общему стилю планировки, мебель на кухне можно поставить в полукруглый угол.
Это впечатляющее центральное здание, спроектированное Мазурасом, явно было параллельно шведскому региональному центру «Веллингбю», «подвешенному» над линиями метро. К сожалению, у проекта не хватило средств, чтобы построить новый общественный культурный центр.
Природные условия, здания разной высоты и положения, сохраненные природные и специально спроектированные новые зеленые насаждения в сочетании с пешеходными дорожками, стенами из натурального камня и современными скульптурами придали новому пригороду скандинавский вид. По словам Чеканаускаса, влиятельный главный архитектор из Москвы, увидев Лаздайна, заметил: «Площадь успешно используется». Хотя вскоре эта фраза стала ненужной, она помогла Лаздайну стать как эталоном советского градостроительства, так и образцом и образцом для всего Восточного блока.
Дизайн перепланированной хрущевки в аристократичном классическом стиле придаст квартире особую изюминку.
В ванной комнате экономится место за счет уменьшения раковины.
По тогдашней традиции награды вручались проектировщикам, а также администраторам и управляющим зданиями. В отмеченную наградами команду Лаздинай входили: архитектор Брадикис, инженеры-строители Альгимантас Клейнотас и Винченец Шилейка, старший архитектор Института городского дизайна Витаутас Бальчунас, старший архитектор города Вильнюс Валлуша и старший архитектор проектов Чеканаускас.
Несмотря на это почетное признание, Лаздайнай также представляет парадоксы. Во-первых, этот новый район, вдохновленный западным модернизмом и задуманный и развивавшийся как средство противодействия советской бестолковости, стал не только общепринятым стандартом, но и искусно эксплуатируемым пропагандистским инструментом для пропаганды современных советских архитектурных достижений за рубежом и дома, где однообразие типовых жилых районов уже подвергается критике. Лаздинай казался уверенным в том, что у массового промышленного строительства все еще есть оптимистичное будущее.
Как видите, даже стол имеет полукруглые элементы, как и вся планировка квартиры.
Это установленная полукруглая перегородка. Выглядит необычно.
Все комнаты обновленной квартиры оформлены в аристократичном классическом стиле.
Перепланировка жилых комнат в 3-х комнатной хрущевке
Есть планировка, когда все комнаты идут подряд (1-2-3 комнаты-кухня). В этом случае можно снести две стены: между второй и третьей комнатами, между третьей комнатой и кухней. При такой перепланировке 3-х комнатной хрущевки получается большое пространство, в котором создается гостиная-столовая, отделенная перегородкой, например, детская или рабочий кабинет.
В варианте сноса стен между комнатами получится большая студия. Зоны отличаются друг от друга. напольное покрытие. После покраски потолка или стен в разные цвета создаются функциональные зоны. Они придают помещению больше уюта и визуально расширяют пространство.
Вы также можете сэкономить место с помощью дверей.
Для этого нужно убрать двери, а на их место соорудить красивые арки.
Для увеличения площади жилого помещения возможно соединение балкона с одной из комнат. Но это нарушение фасада. Более того, балконная конструкция может не выдержать остекления утепленным профилем.
Еще один вариант перепланировки 3-х комнатной хрущевки — это создание еще одной, четвертой, комнаты. Если хозяевам квартиры нужна гардеробная, то здесь проблем не возникнет. Ведь найти место для такой комнаты довольно легко. Но жилому пространству нужен солнечный свет. Если в комнате только одно окно, то устраивать здесь дополнительную комнату – не лучший вариант.
Жемчужная 3 ка, Хрущевка
Перепланировка 3-х комнатной хрущевки — отличная возможность создать новый облик квартиры. Любой из вышеперечисленных вариантов перепланировки сделает квартиру красивой, оригинальной, удобной и, самое главное, расширит жилое пространство.
Вариантов перепланировки трехкомнатной квартиры много.
Однако немногие пользуются популярностью, помимо фантазии о летном дизайне, часто ограниченной жилищным законодательством и жилищным законодательством.
Самый «благодарный» вариант перепланировки — трешка в кирпичных или монолитных домах. Так как в подобных постройках редко встречаются несущие межкомнатные стены, то и оформлять помещения можно по-разному (главное не нарушать установленных норм и правил). То же самое касается и трехкомнатных квартир в хрущевках – несущих стен в них тоже мало (за исключением блочных хрущевок, где капитальные стены часто выступают в габаритах квартиры).
Что касается перепланировки 3-х комнатных квартир в панельных домах брежневской серии, а также их модернизированных вариантов, то ограничений гораздо больше. Внутренних стен много — несущих, их нельзя сносить, а возможность и место в них нового дверного проема определяется выводами технического отчета от автора дома.
При перепланировке 3-х комнатной квартиры, как и любой другой, наиболее востребовано совмещение кухни с одной из комнат.
Когда стена между комнатами представляет собой перегородку из гипсокартона, можно сделать большую столовую. Однако, если на кухне газовая плита, полного соединения помещений добиться не удастся, так как это запрещает пункт 11.17 приложения 1 ППМ 508. На практике этот запрет обходят, устанавливая раздвижную перегородку или дверь блок, аналогичный дверям шкафа-купе. И в результате вы получаете отдельную кухню с проходом в просторную гостиную-столовую.
Не менее распространено расширение и/или совмещение туалета и ванной комнаты. Поскольку эти помещения типовых квартир чрезвычайно малы, их обычно объединяют между собой путем демонтажа санитарной кабины или сноса перегородки между ними. Расширяют совмещенный таким образом санузел, как правило, в примыкающий коридор (тот, что ведет из прихожей на кухню).
Что касается коридора, который находится между комнатами, то в нем часто устраивают встроенную мебель или кладовки, так как коридоры трехкомнатных квартир более просторны, чем в двухкомнатных и однокомнатных квартирах и позволяют используя таким образом лишнее пространство.
Бывает и так, что сносят стену, отделяющую коридор от одной из комнат (если это перегородка), и тогда комнаты разграничивают напольным покрытием или другим способом, например, с помощью декоративных элементов.
Перепланировка 3-х комнатной в 4-х комнатную встречается редко, а вот обратный случай, то есть с двух на три — гораздо чаще.
Примеры проектов перепланировки трехкомнатных квартир(планы до, после и разборка-сборка):
Перепланировка 3-х комнатной квартиры в панельной хрущевке серии 1-511
Здесь реализован достаточно стандартный комплекс мероприятий: перегородка между кухней и комнату снесли, и большой дверной блок по всей длине бывшей стены. Унитаз пристроили к ванной, а площадь комнаты немного уменьшилась (угол срезали). Обычно происходит наоборот – совмещенный санузел расширяют в коридор, ведущий на кухню. Однако в данном случае необходимый участок коридора занимала гардеробная (6а). Перегородка и встроенная мебель, отделяющая примыкающую к кухне комнату от коридора, были демонтированы, а жилая и нежилая зоны разделены с помощью напольных покрытий.
Проект 3-х комнатной квартиры в панельном доме серии -49Д
В несущей стене между кухней и комнатой сделан проем (ширина 90см). Теперь попасть на кухню можно будет только оттуда, так как проход через прихожую закрыт совмещенным санузлом. Часть комнаты (2) отдали под новую кладовую и пристройку коридора, а встроенный шкаф, принадлежавший комнате (2а), стал частью коридора (6а).
Перепланировка трехкомнатной квартиры в серии П 3М
Примечательно, что площадь санузла и санузла увеличена вдвое за счет широкого коридора. Проем между кухней и комнатой не имеет двери, потому что плита электрическая.
Перепланировка трехкомнатной квартиры в пятиэтажном довоенном жилом доме заключалась в более просторном санузле, для чего совместили ванную комнату с туалетом и расширили полученную одноместную комнату в коридор. Кроме того, один из встроенных шкафов, обозначенный на планах как отдельная комната, был демонтирован, что позволило сделать площадь гостиной на 0,5 кв.
м больше.
Доступ к другому шкафу организовали из коридора, пробив проем в ненесущей перегородке и проложив первый из помещения. А между кухней и еще одной гостиной установили раздвижную дверь с герметичным притвором, предварительно демонтировав часть межкомнатной перегородки.
Данная перепланировка трехкомнатной квартиры интересна тем, что в процессе ремонта было установлено 6 встроенных шкафов, а также демонтированы подоконные блоки в двух комнатах — на кухне и в гостиной. Кроме того, в рамках перепланировки увеличена площадь кухни, устроен совмещенный санузел и подсобное помещение.
Типовые решения перепланировки 3-х комнатных квартир в домах разработки ГУП МНИИТЭП:
Типовые проекты трешек для панельных домов серии II-57, П 30, П 44, П 55.
Советское жилье было классно серым. Этот украинский комплекс полностью посвящен цвету
Репортаж из Киева, Украина —
В начале «Волшебник страны Оз» есть момент, когда дом Дороти уносится прочь от черно-белого мира Канзаса и земель с глухим стуком в стране Оз, стране чудес ослепительного Техниколор.
Такое же чувство изумления возникает у вас, когда вы входите в Комфорт Таун, массивный жилой комплекс, построенный за последние годы в унылом жилом районе советской эпохи Киева, столицы Украины.
Комфорт Таун возвышается над ландшафтом, как гигантский конструктор Lego, окрашенный в самые яркие цвета, какие только можно вообразить: кричащие желтые, ярко-салатовые, синие и оранжевые, глубокие кирпично-красные — все они поднимаются в небо в виде десятков блочных высотных зданий. здания. Даже оттенки серого кажутся насыщенными пигментацией. Вся застройка занимает около 115 акров, около 1, 1/2 раз больше Диснейленда.
Строители «Комфорт Тауна» хотели создать комплекс, который был бы привлекательным для людей, в отличие от застроек советских времен, которые доминируют в Киеве.
(Алексей Фурман / For The Times)
Цвета выделялись бы где угодно, но в Киеве они взрываются на ощупь, как фейерверк в хмуром небе, практически издеваясь над серым городским пейзажем вокруг.
В этом и была вся идея.
Мы вернемся к этому через минуту. Сначала поговорим о советском массовом жилье, ведь без него не было бы Комфорт-Тауна.
7 декабря 1954 года Никита Хрущев выступил с речью на Всесоюзной конференции строителей, призывая к капитальному ремонту советской архитектуры. Хрущев был в то время лидером Коммунистической партии Советского Союза и предложил архитекторам полностью сосредоточиться на простых стандартизированных зданиях из сборных железобетонных конструкций.
Это замечательная речь. Иногда Хрущев больше похож на лидера международного коммунистического движения, чем на строительного подрядчика, пытающегося получить крупный промышленный счет. Ни одна деталь не является слишком мелкой, чтобы привлечь его внимание.
«Производство линолеума надо расширять», — настаивает он. «Полы, покрытые линолеумом, ничем не хуже паркета; они гигиеничнее и умнее. Ухаживать за такими полами проще, чем за паркетными. Все знают, что паркет нужно натирать воском — дело сложное и требующее дополнительных затрат».
Вскоре строительные бригады по всей России, Украине и остальной части Советского Союза возводили десятки тысяч одинаковых пятиэтажных жилых домов, в основном без украшений, которые начали смягчать массовый жилищный кризис. Их назвали хрущевки в честь человека, который приказал их построить.
Чтобы понять их значение, важно вспомнить, что они заменили: коммуналки, в которых несколько семей теснились, по одной семье в комнате, и вынуждены были пользоваться общими ванными и кухнями.
С 1955 по 1970 год примерно половина всех городских жителей Советского Союза переехала в новое жилье, по словам Джейн Зависка, профессора социологии Аризонского университета и автора книги «Жилье в новой России».
Позже, при преемниках Хрущева, пятиэтажки уступили место гораздо более высоким многоквартирным домам. Каждые несколько лет дизайн менялся, но целые районы таких городов, как Москва, Ленинград и Киев, были заселены рядами бесцветных многоэтажек, которые, казалось, тянулись до самого горизонта.
Это стало чем-то вроде национальной шутки. Один из самых популярных советских фильмов «Ирония судьбы» — это романтическая комедия, полностью построенная на идее, что дома нельзя отличить друг от друга (а мужчина может наткнуться на квартиру незнакомой женщины и настаивать, что это его квартира). собственный). В начальных титрах используется анимация, чтобы рассказать об истории советского жилья, поскольку архитектурные украшения снимаются со зданий, а армии высотных башен маршируют на свои места.
Ученые говорят, что жилье — это одна из областей, где Советский Союз сделал то, что не смогли сделать Соединенные Штаты: обеспечить всех дешевым и достаточно приличным жильем. «Они действительно решили жилищный вопрос», — сказал Стивен Харрис, историк из Университета Мэри Вашингтон и автор книги «Коммунизм на улице завтрашнего дня: массовое жилье и повседневная жизнь после Сталина». Один историк архитектуры подсчитал, что 170 миллионов человек во всем мире сегодня живут в массовой застройке советского типа.
Теперь эти здания, которые можно найти практически в каждой стране, где Москва когда-то обладала влиянием, признаны за их социальное назначение, но лишь немногие защищают их по эстетическим соображениям. «Они действительно становятся очень тусклыми», — сказал Харрис. В некоторых местах, в первую очередь в Москве, были предприняты программы по их сносу.
В Киеве, среди многих других мест, масса обветшавших от времени серых домов 1960-х и 70-х годов окружена неряшливыми, заросшими и замусоренными дворами, обшарпанными металлическими сараями и скрипучими детскими площадками.
Это возвращает нас в Комфорт Таун.
Комфорт Таун построен на месте заброшенного каучукового завода в одном из самых запущенных районов украинской столицы.
(Алексей Фурман / For The Times)
Идея родилась около десяти лет назад, по словам со-дизайнера Дмитрия Васильева, который был в команде архитекторов, которым было поручено построить новый жилой комплекс на месте заброшенной резины.
завод в одном из самых неблагополучных районов украинской столицы. Они хотели, чтобы он стоял отдельно от окружающего его жилья советских времен. Они хотели построить место, которое люди находили бы привлекательным, которое могло бы на самом деле поднимать настроение жителям, а не сокрушать их.
Была одна главная загвоздка, сказал Васильев: это должно было быть дешево.
«Единственным инструментом, с которым нам приходилось работать, был цвет, — говорит соавтор проекта «Комфорт Таун» Дмитрий Васильев.
(Митчелл Ландсберг / Los Angeles Times)
«Единственным инструментом, с которым нам приходилось работать, был цвет», — сказал он, стоя у входа в закрытый комплекс, отмеченный искусственной ветряной мельницей, скрывающей электростанцию. «Мы использовали самые простые материалы, самые простые техники. У нас действительно были только цвет и линии горизонта».
Они сходили с ума от цвета. Линии здания в основном аналогичны позднесоветскому жилью с некоторыми ключевыми отличиями.
Некоторые здания имеют остроконечные крыши, а не стандартные плоские крыши советских зданий. Балконы, обрамляющие стены советских домов, утоплены, чтобы не торчали.
И большая часть общего пространства представлена внутренними двориками, зелеными с газонами, кустарниками и деревьями, тогда как в советских домах дворы были обращены наружу. Для Кубы Снопека, польского архитектора и эксперта по советскому массовому жилью, это представляет собой ключевое философское различие: советская система была построена на принципе государственной, общественной собственности, поэтому она была открыта для масс; Комфорт Таун является частным, его внешнее пространство более замкнуто.
Комфорт Таун предлагает жилье по рыночной цене — от 40 000 до 90 000 долларов за квартиру.
(Mitchell Landsberg / Los Angeles Times)
Существует также разница в стоимости: в то время как советское жилье было бесплатным (и жители обычно получали право собственности после распада Советского Союза), Комфорт Таун предлагает жилье по рыночной цене — около 40 000 долларов.
до 90 000 долларов за квартиру.
Тем не менее сходство с советским жильем бросается в глаза — например, включение в застройку школ и фитнес-центра. «Город Комфорт» может быть реакцией на советскую архитектуру, сказал Снопек, но «что мне кажется забавным в этой ситуации, так это то, как мало это реакция». (Ему также не нравится цветовая гамма: «Я лично не вижу смысла».)
Жанна Ржанова, пресс-секретарь застройщиков «Комфорт Таун», призналась, что цветовая гамма пришлась не всем. «Либо ты любишь это, либо ненавидишь», — сказала она. «Между ними нет ничего».
Елизавета Панкратова катает коляску с сыном Кристианом в Комфорт Тауне.
(Mitchell Landsberg / Los Angeles Times)
Настоящая инновация Comfort Town, по словам Васильева, заключается в квартирах, в которых есть отдельные спальни и гостиные. Это может показаться непримечательным, но в советских квартирах такого разграничения не проводилось. Были просто комнаты, и целые семьи часто спали в одной комнате, где развлекались, смотрели телевизор и так далее.
Комфорт Таун предлагает апартаменты с одной, двумя и тремя спальнями, каждая с гостиной и кухней. Их площадь варьируется от 430 квадратных футов до чуть менее 1000 квадратных футов.
Это, по-видимому, главное для многих из 20 000 жителей, а также ощущение безопасности и удобства для детей.
Наташа Калниболоцкая с мужем были в числе первых семей, переехавших в «Комфорт Таун» после его открытия в конце 2012 года. До рождения детей они жили в небольшой однокомнатной квартире. «Это был только мой муж и пиво», — пошутила она.
Жительница Комфорт Тауна Наташа Калниболоцкая с дочерьми Машей (слева) и Верой на детской площадке жилого комплекса.
(Mitchell Landsberg / Los Angeles Times)
После того, как у них родились двое детей — Маша, которой сейчас 4 года, и Вера, 2 года — они переехали к родственникам в большую квартиру, а затем в свою собственную квартиру с тремя спальнями. «Я из худшего района Киева, так что это лучшее, что со мной случалось», — сказала 38-летняя Калниболоцкая.
, где даже земля забрызгана ярким цветом. Очевидно, это была не самая важная причина жить там. Но, по ее словам, «дети с самого первого дня понимают цвета».
Она считает, что калейдоскоп Города Комфорта делает их счастливее. Словно в подтверждение своей точки зрения, девочки улыбнулись и побежали играть.
Подготовка к этой статье частично финансировалась Банком развития KfW, который поддерживает беспристрастную некоммерческую стипендию Немецкого фонда Маршалла США.
Варианты перепланировки 4-х комнатной квартиры. Проект, согласование перепланировки четырехкомнатной квартиры
Как построить 4 спальни в четырехкомнатной квартире и при этом найти место для гостиной? Елена Ромашкова предложила нетривиальное решение – вырезать коридоры и создать в прихожей гостиную. Что из этого получилось?
- 1 из 1
На фото:
Большое количество ломаных линий либо растворяются в белом цвете стен, либо раскрываются декоративными элементами.
Информация о квартире: 4-комнатная квартира 130 кв.м. в жилом комплексе «Чемпион Парк» в Олимпийской деревне.
Владельцы квартир: семья из 5 человек, родители, двое сыновей и дочь.
Пожелание заказчика: обставить 4 спальни.
План 4-х комнатной квартиры после ремонта.
На 130 кв.м. необходимо было построить комфортное пространство для проживания пяти человек.
Для обустройства четырех отдельных спален в квартире произведена кардинальная перепланировка. При перепланировке 4-х комнатной квартиры перенесли кухню, поменяли санузлы, расширили и пристроили балконы и зимний сад. Основная сложность при перепланировке 4-х комнатной квартиры заключалась в наличии большого количества транзитных стояков и воздуховодов. Кроме того, дизайнеру пришлось серьезно перекроить пространство, чтобы избавиться от лишних коридоров и увеличить полезную площадь.
Из-за этого квартира вышла угловатой, в этом ее минус, но минусы планировки постарались обыграть и скрыть с помощью декора — строгий характер дизайна основан на контрастных сочетаниях темных поверхностей с белые стены и потолок, графичные прямые линии и формы.
Парящие бабочки на стенах и декоративная птичка (знаковый предмет от Vitra) на журнальном столике оживляют темный интерьер гостиной.
Контрастные цвета и строгая геометрия форм стали определяющим моментом дизайна интерьера. В качестве яркого акцента выступило темно-вишневое кресло.
Линейное расположение кухонной мебели позволило освободить место для свободного передвижения.
Чтобы выделить обеденную зону, стену рядом со столом украсили живописным панно.
Один из сыновей увлекается автоспортом, поэтому его комната оформлена в автомобильной тематике и напоминает салон спортивного автомобиля.
На лоджии, пристроенной к детской комнате, устроен рабочий уголок.
В другой детской, для малыша, который только начал познавать мир, пространство окрашено в яркие сочные тона.
На пристроенной лоджии поставили письменный стол для малыша — пока он там рисует, а позже сможет делать уроки здесь.
Главная спальня выглядит строго и лаконично. Минимум мебели, панорамные окна и высокие потолки рождают ощущение свободы.
В черно-белом царстве родительской спальни есть только один яркий акцент — картина над кроватью.
Спальня старшей дочери немного китчевая, но это детская, так что немного иронии ей не повредит.
Если в детских комнатах мальчиков использовалась исключительно функциональная современная мебель, то в комнате девочек преобладают другие, более изящные и женственные формы мебели.
Цветовая гамма этой ванной комнаты не противоречит общей концепции дизайна интерьера квартиры – все те же черно-белые цвета.
Мозаика, обрамляющая ванну, и узорчатая плитка на стене и полу разбивают белое пространство.
Второй санузел более авангардный: здесь и формы мебели, и цвета вызывающе-синие, а не нейтрально-черные.
Комментировать в ФБ Комментировать в ВК
Так же в этом разделе
Дизайн квартиры в Московской области, город Химки, площадью 108 м2 разработан мастерской Геометриум для молодой девушки с маленькой дочерью и сын-подросток.
Утонченный элегантный интерьер, в оформлении которого присутствует камень, многое расскажет о хозяевах квартиры наблюдательному гостю.
Как рационально использовать ограниченное количество квадратных метров? Дизайнер Светлана Краснова рискнула и устроила на кухне детскую, а кухню перенесла в просторный коридор.
Белый салон выглядит очень холодным и безжизненным. Проект Маргариты Рассказовой — отличный пример того, как можно изменить настроение комнаты и наполнить ее яркими вкраплениями праздника.
Многие мечтают жить в собственном доме, находясь при этом в черте мегаполиса. В этой квартире есть все необходимое для жизни, в том числе сад и место для детских игр на свежем воздухе.
Простор и функциональность – главные тенденции интерьеров литовских дизайнеров. Много хорошего и разного света — и долгий вечер превратится в ласковое утро.
Как грамотно обустроить квартиру 158 кв. м и построить на этом пространстве просторную общественную зону, три спальни, игровую, большую гардеробную и три санузла?
По желанию покупателей дизайнеры полностью перепланировали 200-метровую квартиру и оформили ее в стиле Голливуда 70-х.
Если вы любите обои с изысканным рисунком, уютный камин и много дерева в интерьере, то английский стиль для вас. В таком интерьере приветствуется мебель и любые предметы, доставшиеся в наследство.
Современные стандарты строительства
Каждый отдельно дом пд 4 является представителем нового направления в строительстве жилых помещений. Первые представители этой серии появились в Москве примерно в 1996 году. Именно здесь они получили широкое распространение. Правда, определенная их часть находится на дачных участках.
Если вы впервые видите дом пд 4 , то сразу бросается в глаза необычная форма балконов, привычных к консервативным очертаниями хрущевки или брежневки. Как правило, первые этажи таких домов нежилые. Здесь могут располагаться как социальные объекты, так и объекты сервисной инфраструктуры. Нельзя сказать, что 9Дом 0069 д. 4 имеет четко выраженную строительную высоту. Он может варьироваться от 10 до 17 этажей.
Перепланировка — стандартный процесс?
Сама по себе концепция перепланировки как бы указывает на изменение существующей формы, отклонение от типовых проектных решений.
Например, пд 4 перепланировка может быть выполнена несколькими способами. Стоит помнить, что вариантов преображения своего жилища не так уж и много. В любом случае, обратившись в Жилэкспертизу, вы вправе рассчитывать на нашу помощь в подготовке специального проекта перепланировки.
Любая пд 4 перепланировка будет зависеть от совокупности технических возможностей квартиры, а также от юридических аспектов. В любом случае самовольная перепланировка жилплощади может обернуться целым комплексом проблем, из которых не самый худший вариант – угроза целостности жилищной конструкции. Жилэкспертиза предлагает свои услуги по оценке возможности изменения внешнего вида Вашей квартиры с тем, чтобы пд 4 перепланировка прошла на самом высоком профессиональном уровне.
Планировка квартир ПД 4
В панельных домах этой серии имеются:
- квартиры однокомнатные — два варианта квартир;
- двухкомнатных квартиры — четыре варианта квартир;
- трехкомнатные квартиры — два варианта квартир;
- четырехкомнатные и пятикомнатные квартиры — по одному варианту.

Под первым, как уже было сказано, нежилым этажом находится техподполье. Здесь находятся необходимые средства связи. Планировка квартир ПД 4 характеризуется высотой потолков 2,75 метра. В процессе строительства панели, образующие наружные стены здания, накладываются друг на друга. Это дает повышенный уровень герметизации здания. Также необходимо отметить, что планировка квартир ПД 4 выполняется с комплектацией оконных проемов квартир качественными тепло- и звукоизоляционными стеклопакетами.
Варианты перепланировки двухкомнатной квартиры
Перепланировка 1
Перепланировка квартиры помогает сделать ее более комфортной
Иметь собственное жилье – это не роскошь, а простая необходимость. Здесь у каждого свои приоритеты. Кому-то достаточно одной комнаты, а кому и целого особняка мало. Но если вы владелец четырехкомнатной квартиры, пусть даже и в хрущевке, то вам крупно повезло, ведь количество комнат влияет на создание более комфортных условий проживания.
И в этом случае перепланировка будет играть важнейшую роль. Перепланировка 4-комнатной квартиры – мероприятие, которое можно назвать двояким.
С одной стороны, это сложный процесс, ведь перегородок в такой квартире очень много, и выбрать, какую снести, а какую оставить, будет непросто. С другой стороны, это простой процесс, потому что вариантов много, и есть из чего выбрать.
Приступаем к работе
Большая гостиная после перепланировки
С чего начать перепланировку четырехкомнатной квартиры? Сначала определяем, сколько человек будет в нем проживать. Если семья небольшая, например, двое родителей и один ребенок, то можно попробовать сделать из четырех комнат три, но просторные. Это не только поможет изменить внутреннюю планировку комнат в более комфортную сторону, но и расширить каждую комнату, придав ей больше функциональности.
Одну комнату можно разделить таким образом, чтобы одна ее часть объединилась со следующей комнатой, а вторая часть стала отдельной небольшой, которую можно использовать как гардеробную.
Отличное решение, которое понравится женской половине семьи.
В хрущевке, как обычно, можно соединить ванную и туалетную комнаты в единый санузел. Можно из одной смежной с кухней комнаты сделать столовую, соединив ее с кухней дверным проемом, а коридор пристроить к санузлу. Таким образом, получится огромный бытовой отсек, в котором поместятся все без исключения бытовые приборы.
Создание кухни-столовой
В целом в плане перепланировки дома эпохи Н.С. Хрущевки самые универсальные. С ними можно делать что угодно, ведь почти все стены в таких квартирах являются перегородками. Строители, архитекторы и дизайнеры, зная о таком положении вещей, предлагают всевозможные проекты, которые кажутся просто невозможными.
Например, перепланировка четырехкомнатной квартиры может предусматривать создание небольшого спортзала, из одной выделенной для этого комнаты. Остальное можно распределить между членами семьи.
Но не заходите так далеко — некоторые варианты могут быть опасны.
Особенно, если для этих целей хозяева квартиры начинают использовать тяжелую технику или технику. В хрущевках межэтажные перекрытия довольно ненадежны, они не рассчитаны на большие весовые нагрузки, поэтому не стоит устанавливать, например, большие джакузи или душевые кабины в совмещенных санузлах. Есть опасность в какой-то момент оказаться этажом ниже.
Работает специальная комиссия, которая следит не только за правильностью оформления проекта, но и за правильностью реализации запланированных изменений. Небольшое отклонение в сторону — и получишь штрафы, и немалые.
Создание арки
И последнее — все чаще владельцы четырехкомнатных квартир стараются избегать эталонных вариантов перепланировки. Многие требуют чего-то необычного и нестандартного. Здесь, как вариант, предлагаемый профессиональными дизайнерами, стоит использовать раздвижные перегородки. То есть убираются все стены, которые ограничивали жилое пространство всех комнат, а вместо них устанавливаются легкие перегородки из различных материалов.

Оно уменьшится, но во вторую комнату можно будет сделать отдельную дверь. Так поступают в «книжках». 
С чего начинать?





Ознакомиться с требованиями к проектам можно здесь.
д.).
Перепланировка 2 комнатной хрущевки станет самым смелым и кардинальным решением в этой задаче.
Такая мебель визуально расширяет пространство
Используйте для декора пластик, стекло, зеркала и блестящие металлические элементы. Обои подберите без крупного принта, неброские, с мелким рисунком