Проект сауны: пошаговая инструкция | saunaflame.ru
Создано: 06 Ноя 2018
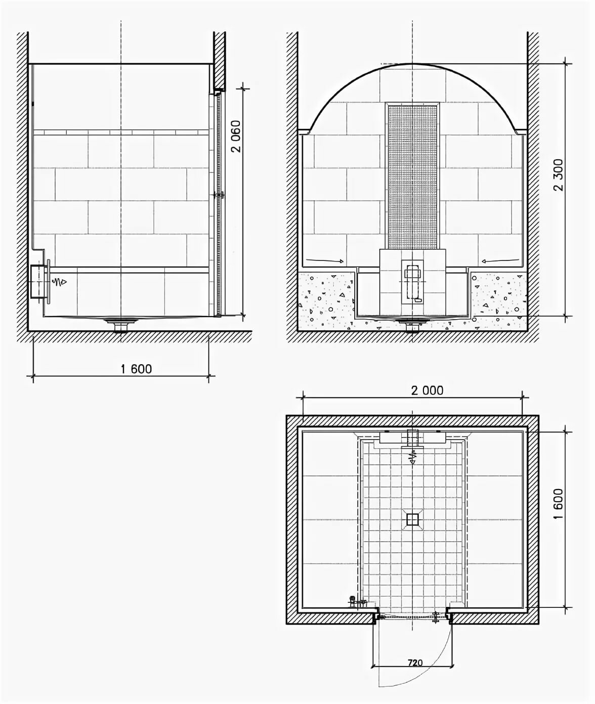
Параметры сауны
Расположение каменки и конфигурация полок
Подбор каменки для сауны
Вентиляция, освещение и дверь
Каркас
Электропроводка и вентканалы
Стены
Дверь и вагонка
Каркас полок
Полки
Подспинники и ограждение электрокаменки
Параметры сауны
Для составления проекта типовой сауны я хотел взять типовой размер. Недолго думая, зашел в раздел цен на нашем сайте, и вычислил средний размер исходя из имеющихся проектов. Средний размер получился 2.45х2.17 метра. Здесь учитываются как сауны с дровяными каменками, так и с электрическими.
При составлении проекта на данном этапе меня интересует наличие проемов и толщина стен, а также высота потолка в помещении. Для типового проекта, опять же, выберу типовые характеристики. Каменка – электрическая (их выбирают немного чаще), без окна (чаще оно отсутствует), толщина стены с дверным проемом – 150 мм, высота потолка сауны – 2,25 м (для этого потолок исходного помещения должен быть не ниже 2,35 м).
Будем исходить из того, что перегородки еще не возведены и дверной проем устраивается в соответствии с нашим ТЗ.
Частный случай – планировка полок в максимальном количестве и максимальной ширины. Только сделав планировку сауны с полками и каменкой, можно определить оптимальное расположение двери.
Т.к. мы взяли «грязный» размер помещения, необходимо учесть толщину каркаса сауны. Как правило – это 50 мм обрешетки, 30 мм контробрешетки и 15 мм вагонки. Выходит пирог толщиной 95 мм.
Теперь у нас есть данные с «чистыми» размерами сауны, поэтому мы заодно можем определить объем помещения для подбора каменки.
Расположение каменки и конфигурация полок
Место для каменки выберем ближе к углу, чтобы она не мешала проходу. Для удобного доступа к полкам электрокаменку лучше расположить на противоположной стороне от них. Т.к. широкая стена будет с проемом, каменку расположим на короткой стене. Исходя из размеров каменки и ее безопасных расстояний можно рассчитать ширину верхних и нижних полок.
Ширина полок рассчитывается по ширине планки плюс 10 мм. Стандартная планка для полок сауны – 90 мм. Десятимиллиметровых зазоров – на один меньше, чем планок, отсюда такой размер. Нижние полки имеют такую же ширину, с той разницей, что крайняя планка заходит на 25 мм внутрь под зашивку.
Подбор каменки для сауны
В качестве нагревателя выбрана Harvia Moderna. Эта компактная модель вешается на стену, имеет выносную панель управления в комплекте и быстро прогревает сауну. Небольшие безопасные расстояния позволяют монтировать ее прямо на деревянную поверхность и рядом с любой деревянной конструкцией.
Предусмотрим также ограждение каменки для дополнительной безопасности.
При подборе мощности каменки надо учитывать не только объем обшитого помещения, но и любые каменные, стеклянные и неутепленные поверхности. В нашем случае имеется дверь 7х19 дм со стеклянным полотном. По инструкции для каменки площадь стекла надо прибавить с коэффициентом 1,2 к имеющему объему. В нашем случае необходимо накинуть 1,5 м3 к 10,1. Таким образом, расчетный объем сауны получился 11,6 м3. Этому объему соответствует мощность 8 кВт. На практике, при надежной теплоизоляции и корректной вентиляции, может оказаться достаточно и 6 кВт. Но такое решение предпочтительно, если нет возможности выделить больше киловатт. Для экономии электроэнергии и быстрого нагрева рекомендуется поставить 8-кВтную модель. Термостат будет чаще отключать каменку, т.к. температура будет держаться в сауне дольше.
Вентиляция, освещение и дверь
Последние штрихи – определить высоту полок, расставить светильники и выбрать место для вытяжного отверстия.
Высота стандартных полок: нижняя – 45 см и верхняя 90 см. Светильники расположим в трех углах. Вытяжное отверстие расположим в противоположном от каменки углу. Оно будет располагаться внизу под полками. Вентиляционный клапан устанавливается сверху на стене, либо в потолке. Приток будет через щель под дверью высотой 3 см. Т.к. каменка расположена около двери, дополнительный приток под нее устраивать не обязательно.
Окончательный чертеж вида сверху будет выглядеть так:
Перед началом монтажа перегородок надо определить расположение и размер дверного проема. Ширина проема должна быть на 4 см больше ширины дверной коробки, а высота – на 5 см. Сам проем располагается посередине между нижней полкой и ограждением каменки.
Каркас
В первую очередь монтируется каркас стен. Для обрешетки требуется брус хвойных пород 50х50 мм. Сюда будет закладываться утеплитель толщиной 50 мм.
Шаг брусков устанавливаем по стандартной ширине утеплителя – 600 мм.
Там, где не получается сделать ровно 600 мм – делаем меньше. Предусматриваем вентиляционный канал на противоположной от каменки стене. Соединяем его тройником с вентканалом для вентиляционного клапана, который будет находится в потолке. От тройника выводится один вентканал в душевую, либо в предбанник (место установки вент. клапана см. в ТЗ по электропроводке ниже). Заподлицо с дверным проемом устанавливаем по бруску с каждой стороны. Деталь №1 делается на 100 мм короче детали №2, т.к. на нее будет устанавливаться потолочный брус (спецификация изделий Saunaflame – в конце статьи).
Для большей жесткости каркас потолка делается вдоль короткой стены. Деталь №3 – брус 50х100 м – устанавливается на вторую деталь короткой стороной. Утепление потолка производится не менее чем в 100 мм.
Контробрешетка потолка делается с шагом не более 600 мм из бруса 50х30 мм (деталь №4). В потолочном пироге также присутствует алюминиевая фольга на бумажной основе. Для завершения устройства потолка на контробрешетку подшивается вагонка.
В вагонке проделывается отверстие диаметром 100 мм для установки вентиляционного клапана, который подключается к ранее установленному вент. каналу в потолке.
Электропроводка и вентканалы
До закладки утеплителя в стены надо вывести провода для светильников и электрокаменки и предусмотреть вентканал для основной вентиляции. Сечение провода для электрокаменки подбирается в соответствии с мощностью (рекомендуемая площадь сечения указана в паспорте изделия). После этого можно утеплять стены и прикрыть утеплитель алюминиевой фольгой, не забыв вывести концы проводов. Схема технического задания:
Стены
После того, как потолок подшит, а стены утеплены, можно приступать к монтажу контробрешетки стен. Верхняя планка как раз будет упираться в потолочную вагонку. Нижняя будет у самого пола. Еще одна планка должна быть напротив будущего каркаса верхней полки – 855 мм до верхнего края (высота полки минус толщина планки для полок 25 мм и толщина доски, на которую собираются полки 20 мм).
На остальных стенах шаг контробрешетки сохраняется таким же как на длинной стене (вид А). Чертеж контробрешетки левой стены (вид Б):
На правой стене (вид В) устанавливается электрическая каменка, поэтому в месте ее крепления надо предусмотреть планки, к которым она будет прикручиваться. В инструкции к каменке находим размеры и расстояния для крепежной рамы:
В соответствии с данными размерами предусматриваем контробрешетку правой стены (вид В):
Стена, в которой будет устанавливаться дверь (вид Г) также должна иметь каркас жесткости по периметру двери (детали №10 и №12), т.к. в этом месте будут делаться дверные доборы из вагонки.
Дверь и вагонка
Настало время установить дверь. С использованием деталей №10 и 12 это будет просто. У вас уже подшит потолок. В потолке есть отверстие с вентиляционным клапаном. В стенах выведены провода для светильников и каменки. Если вы хотите установить панель управления снаружи сауны, то самое время это сделать (проведите кабель от места установки панели управления к соединительному блоку каменки). Температурный датчик имеет провод, который можно провести за вагонкой либо по ее поверхности. Сейчас последний момент, когда его можно скрыть. Как только приняты решения по всем проводам – приступайте к монтажу вагонки. В месте вывода проводов делайте в вагонке отверстие перед тем, как прибить ее.
После того, как вся вагонка прибита – приступайте к установке потолочных и дверных плинтусов. Прикройте деревянной решеткой нижнее вентиляционное отверстие. Можно также установить светильники.
Каркас полок
Начните монтаж каркаса полок с заготовки стоек. Для этого используется брус 50х70 мм. На рисунке пронумерована последовательной установки стоек. Начинаем с верхней полки, которая идет вдоль всей стены, затем другая верхняя полка.
Стоящие рядом стойки скрепите металлическими уголками для жесткости (с внутренней стороны). Поперечные и продольные бруски 50х50 мм соединят все стойки верхних полок. Рекомендуем не устанавливать стойки для нижней полки, пока не установите детали №16, 17, 20 и 21.
Стойки нижней полки, которые примыкают к стойкам верхней, рекомендуем скрепить между собой.
Завершаем монтаж нижней полки скреплением деталями №18, 19, 22 и 23 стоек (№15).
Каркас полок сделан – самое время установить нижние плинтуса.
Полки
Зашивка между уровнями полок – это то, с чего мы начнем. В первую очередь монтируется та, что напротив входа.
Затем устанавливаем вторую сторону:
Торцевые планки нижнего уровня ставим по тому же принципу:
| |
Заготовленные планки для полок скрепляем рейкой 20х50 мм с таким же шагом, который выбран для стоек. Таким образом, эти рейки перекроют каркас полок. Схема верхних полок:
Схема нижних полок:
Получившиеся щиты положите на каркас. Рейка 20х50 мм, скрепляющая планки, прикручивается к каркасу.
Подспинники и ограждение электрокаменки
Подспинники скрепляются на планки такого же сечения, которое выбрано для полок и самих подспинников.
Готовый щит прикручивается к стене в заранее предусмотренную планку контробрешетки (см. выше). Стена (вид А):
Стена (вид Б):
Повесьте крепежную раму с электрокаменкой. Вам осталось сделать декоративное ограждение вокруг электрокаменки. Его размеры учитывают безопасные расстояние от корпуса каменки до деревянных конструкций, указанные в паспорте:
Последний штрих: повесьте абажуры, термометр, гигрометр и песочные часы. Заложите камни в печь. Сауна готова.
Возникшие вопросы задавайте в комментариях.
проекты с бассейном и комнатой отдыха, инфракрасная сауна, как сделать в квартире и как построить самому
Посещение сауны полезно для здоровья, помогает очистить организм и восстановить силы. Многие мечтают и у себя дома иметь возможность попариться, но чтобы осуществить задумку, необходимо знать некоторые тонкости.
Для строительства сауны на даче необязательно выделять отдельную постройку. Можно приспособить лоджию, часть ванной комнаты или веранды. А на личном участке земли можно возвести настоящий СПА-центр, если подойти к вопросу со знанием дела.
Особенности и устройство
В Финляндии всего-то 5 миллионов жителей, на которых приходится 2 миллиона саун, так как сауна считается национальным достоянием страны. Следует разобраться, что же такого в ней особенного. В отличие от русской бани в сауне более высокая температура и более низкая влажность. Из-за высоких температур в этом помещении традиционно в стране Суоми парились, рожали детей, лечили больных, вправляли суставы, коптили мясо. Влажность в сауне составляет не более 70 грамм пара на кубометр.
Устройство сауны включает несколько элементов. Главное помещение – это парная, где за счет печи-каменки создается жар, влажность можно повышать, выливая воду на камни.
Смежное помещение – это моечная или предбанник, где моются после распаривания и берут воду. Способы нагрева помещения могут быть различными – с помощью дровяной печи, топящейся по-черному или по-белому, в современных зданиях ставят электропечь.
Традиционно парная – это небольшое помещение, высотой не более 2,5 метра. При увеличении кубатуры сильно увеличивается расход энергии на нагрев помещения.
Итак, чтобы устроить сауну, нужно соблюсти некоторые правила при постройке. Потребуется небольшое помещение, полки для парящихся на достаточной высоте, отверстия для вентиляции и печь электрическая или обычная. Важным элементом выступает хорошая теплоизоляция всего помещения, которая создается благодаря использованию отделки деревом. Предпочтительными являются осина, липа, тополь, ольха. Покрывать дерево морилками, лаками, восками и прочим нельзя.
После парения принято окунаться, поэтому поблизости от парной должна быть прорубь, бассейн или хотя бы душ.
За счет такого устройства парной вытекают ее особенности. Она должна быть небольшим практически стерильным помещением, где невысокая влажность и высокая температура. Простудные и другие заболевания лечатся нахождением в сауне, именно поэтому финны, северный народ, не могут жить без сауны.
Сухой жар считается более безопасным для здоровья, чем в русской бане, но температуру более 100 градусов повышать все же не рекомендуется по технике безопасности для предотвращения возгорания.
Виды
В соответствии с температурно-влажностным режимом выделяют несколько видов саун:
- Финская сауна – подобные сооружения набирают все большую популярность.
Внутри поддерживается температура до +140 градусов, а уровень влажности при этом низкий, не более десяти процентов. Считается, что столь сильное прогревание оказывает полезное воздействие на все системы организма.
- Русская баня – в классическом исполнении представляет собой бревенчатое строение с кирпичной печкой в парилке. Поэтому на ее строительство придется выделить круглую сумму. Несмотря на высокую себестоимость, эта разновидность остается самой популярной в России на протяжении многих веков. Для образования пара раскаленные камни поливают водой. В результате в помещении поддерживается высокая влажность, а температурный режим вместе с тем составляет от +65 до +80 градусов.
- Турецкий хамам – влажность выше, чем в русской бане, а температура не превышает сорока градусов.
Таким образом, создаются оптимальные условия даже для людей, которые не переносят сильной жары. Помимо паровой, возведение турецкой сауны предполагает наличие помещений для различных процедур – массажа, обертываний и других. В качестве отделки вместо древесины используют керамическую плитку, мозаику с восточными орнаментами.
Проектирование: советы
Минимальные размеры рассчитывают исходя из числа устанавливаемых скамеек. Обычно берут количество человек, которые будут одновременно находиться в комнате, а потом продумывают, сколько мест потребуется. Самая маленькая сауна может быть рассчитана на одного-двух человек. Для экономии пространства достаточно поставить лавки так, чтобы можно было разместиться полулежа. А также должно оставаться свободное пространство для установки небольшой печки.
В просторных помещениях рекомендовано располагать скамейки в форме буквы Г для экономии пространства.
Самый экономный и компактный вариант – это мини-сауна, представляющая собой небольшой шкаф, в котором можно париться одному или вдвоем. Подобная конструкция актуальна для малогабаритных городских квартир, ее часто устанавливают в ванной или спальне. Для тех, кто превыше всего ставит комфорт, больше подойдет семейная сауна. При проектировании учитывают, чтобы внутри помещалась скамейка, на которую человек сможет лечь. В данном случае общепринятым стандартом является длина стены не менее 1,8 метра.
Стоит отметить, что согласно нормам Финского института строительных стандартов, площадь должна составлять не менее чем 1,8×2,5 метра.
Высокие потолки не нужны, так как увеличение кубатуры помещения приводит к росту энергозатрат на отопление.
Печь располагают на высоте 1–1,5 метра над полом, а скамейки располагают выше. Потолок должен располагаться на расстоянии не менее чем на 1,1 метра над верхней точкой платформы, на которой будут сидеть люди.
Для семейной сауны рекомендуемая высота потолка составляет 2,1 м, а для общественной – она может достигать 2,8 м. Если есть желание сделать сауну с бассейном своими руками в домашних условиях, необходимо предварительно подготовить все чертежи и схемы работы. Нужно рассчитать водоотвод, как будет расположена электрика, выбрать какими будут лак и пропитка.
Подготовка
Важно правильно подготовиться к строительству и четко следовать технологии.
В противном случае нахождение в парилке может доставлять дискомфорт и наносить вред здоровью. Вначале нужно правильно определить место под постройку, а также выбрать соответствующий требованиям проект постройки.
Выбор места и материалов
Построить сауну можно где угодно, но на земельном участке ее нельзя размещать возле границы с соседями. По правилам пожарной безопасности минимальное расстояние должно составлять 3 метра. Важно выбрать место, чтобы можно было рядом вырыть яму для септика.
Относительно материалов нет строгих требований, помимо классического сруба, актуальны постройки из кирпича. Встречаются также строения с каркасом из металлоконструкций. Если планируется выделить отдельное помещение в квартире или загородном коттедже, должна быть предусмотрена система вентиляции. Изнутри рекомендуется обшивать стены ольхой или липой, сосну лучше не использовать, так как она выделяет смолы.
Для возведения сауны потребуются следующие стройматериалы:
- пиломатериалы – брус, доски, бревна;
- древесина для скамеек, например, сосновая;
- вагонка для отделки;
- огнестойкий кирпич;
- песок, портландцемент, шамотная глина;
- теплоизоляция и пароизоляция, например, минвата, фольга, базальтовые листы и другие;
- оконные и дверные блоки;
- кровельное покрытие на выбор;
- трубы водопроводные и канализационные.
Инструменты и расчеты
Согласно нормативам, на каждого человека должно приходиться не менее 2,5 м³. Рекомендуемый объем парной должен составлять не более 40 м³. Если это отдельно стоящее здание, а не оборудованная комнатка в квартире, то помимо помещения, в котором будут париться, потребуется оборудовать кабину для мытья и раздевалку.
В таком случае площадь маленькой сауны на одного человека составит минимум 10 м².
Этапы строительства
Работы начинают с подготовки котлованов, один из которых предназначен для фундамента, второй – под септик. Далее, производят закладку фундамента. Самым простым в исполнении является столбчатый. Если планируется масштабная постройка, лучше выбрать монолит или ленточный. В случае с ленточным фундаментом сразу проводят систему канализации. Трубы из полипропилена кладут на песчаную подушку, соединяя с желобом.
Если предусмотрен смеситель и унитаз, производят их подключение к канализации. Всю систему подключают к септику или выгребной яме. Если имеется центральное водоснабжение, возможно соединение с магистралью. Для автономного водоснабжения устанавливается бак на достаточной высоте, чтобы обеспечить напор.
Тогда воду можно будет набирать даже из колодца насосом.
Пол и каркас
Для каркаса используют деревянные рейки и брус. В качестве крепежа для несущих балок подойдут строительные скобы и раскопки. Когда ставят стойки, сверху делают обвязку, чтобы здание не перекашивалось, делают подкосы. Собранный каркас обшивают досками, устанавливают дверные и оконные коробки. При монтаже напольного покрытия необходимо вначале положить лаги и слой пароизоляции.
Далее, кладут черновой пол, затем слой тепло- и гидроизоляции. После производится укладка половой доски.
Оптимальный вариант – это положить кафель, который не боится влаги. Для этого черновые доски заливают бетонной стяжкой, а уже потом кладут плитку.
Поскольку кафель при намокании становится очень скользким, для снижения травмоопасности его нужно накрывать деревянными щитами.
Стены: утепления, изоляция, отделка
Когда каркас обшит досками снаружи, изнутри монтируется несколько слоев, которые обеспечивают нормальное теплосбережение.
Перед установкой декоративного покрытия размещают изоляционные материалы в следующей последовательности:
- первый слой – это мембрана;
- второй – это минеральная вата;
- последний – это фольга, отражающая инфракрасное излучение.
Электрические провода проводят в термостойкой оплетке. Для отделки используют древесину, например, вагонку. Дерево должно обладать низкой теплопроводностью и не подвергаться деформациям в результате температурных воздействий. В бане нельзя использовать декоративные лакокрасочные покрытия, так как при нагревании они выделяют вредные испарения.
Потолок: вентиляция и обшивка
После возведения стропил укладывают пароизоляцию, теплоизоляцию и непосредственно покрытие – это рубероид, металлочерепицу или шифер. Печную трубу выводят с соблюдением требований безопасности. Потолок выполняют по такой же технологии, что и стены. Его не покрывают штукатуркой или краской, используется только дерево. Для утепления используют пенопласт, который укладывают на закрытые полиэтиленом доски и лаги. Образовавшиеся зазоры заливают монтажной пеной. Пароизоляцию размещают фольгой вверх и закрепляют строительным степлером.
Чтобы в парилке не было резких перепадов температур, раскаленный воздух должен смешиваться с прохладным.
Поэтому необходимо организовать систему вентиляции так, чтобы воздушные потоки не только хорошо смешивались, но и не было сильного сквозняка.
При строительстве учитывают следующие факторы:
- площадь сечения приточного и вытяжного каналов должна быть примерно одинакова;
- на каждый кубический метр объема сауны должно приходиться не меньше 24 см² сечения канала.
- отверстия на вход и выход не должны быть напротив друг друга, иначе будет сквозняк, а в остальные места воздух поступить не успеет;
- для регуляции воздушного потока требуется установка задвижек.
Используется естественная или механическая вентиляционная система. Наиболее простой и бюджетной является естественная, однако, ее эффективность зависит от погоды.
В ветреные дни такая вентиляция имеет больший КПД. А также рекомендуется оставлять зазор между дверным полотном и коробкой для обеспечения лучшего притока воздуха. Это отличный вариант для комнаты отдыха и раздевалки.
В парилке рекомендуют делать приточно-вытяжную вентиляцию. В ее состав входит рекуператор, засасывающий с улицы свежий воздух и подогревающий его отработанным из комнаты. Один распределитель распространяет воздушные потоки внутри помещения, а другой – выводит насыщенный углекислым газом воздух. Обычно для проветривания паровой достаточно 10 минут. Устройство вентиляции необходимо не только для обеспечения комфорта людей, но и для продления срока службы деревянных конструкций. Иначе дерево будет разрушаться от грибков и плесени, разводящихся в духоте.
Освещение и полки
Для установки используются одноярусные или двухъярусные полки из дерева.
Поскольку кожа человека соприкасается со скамьей, для ее изготовления используют не выделяющие смол породы, например, липу. Минимальная ширина лавки должна составлять 0,5 метра, ставят ее у глухой стены, в которой нет окон.
Если планируется выделить комнату отдыха, туда будет удобно поставить раскладную мебель.
Светильники не должны светить в глаза, поэтому лучше выбрать мягкий рассеянный свет. Тогда человек сможет расслабиться и заняться релаксацией. Недостаток освещенности также нежелателен, в таком помещении будет неуютно и небезопасно.
Осветительные приборы должны выдерживать постоянное воздействие высоких температур более 100 градусов и сильной влажности. В целях безопасности при установке используются модели с керамическим основанием и плафонами из высокопрочного стекла.
Установка оборудования
На данный момент используются три вида печей – газовые, электрические и дровяные. Основные элементы работающей от дров модели – это топка и каменка, которые выполняют в едином корпусе или располагают по отдельности. Несмотря на то что подобное устройство повышает пожароопасность, его используют достаточно часто из-за доступности топлива. С такой печью помещение будет наполнено приятным запахом поленьев, создающим особую атмосферу.
Электрические модели оснащают нагревательным элементом, в роли которого может выступать ТЭН или особые пластины. Удобство подобного устройства состоит в первую очередь в простоте обслуживания. Не нужно растапливать печь, покупать дрова, чистить стены от копоти.
К минусам относят высокое энергопотребление, а также прибор нельзя использовать при отключении электричества.
Укладка камней
Использовать можно только определенные породы, которые при сильном нагревании не подвергаются растрескиванию. Оптимальный вариант – это габбро-диабаз, талькохлорит, речная галька или белый кварц. Камни аккумулируют тепло и отдают пар в окружающее пространство.
Перед укладкой их нагревают, после чего кидают в холодную воду. Треснувшие отбраковывают, так как они не обладают достаточной прочностью. При расстановке вначале нужно разместить крупные экземпляры, затем между ними положить мелкие камушки. Важно в дальнейшем следить за уложенными породами, а также время от времени очищать и перекладывать.
Эксплуатация и правила посещения
Перед тем как отправиться в парную, необходимо подготовиться.
Лучше воздержаться от приема спиртных напитков, которые могут плохо повлиять на сердце. Нужно снять верхнюю одежду, контактные линзы и украшения. Для нормального потоотделения перед процедурой принимают душ и насухо вытираются полотенцем.
Прежде чем зайти в помещение, необходимо надеть на голову войлочную шапочку, которая защитит от перегрева. Обязательная обувь – это шлепанцы, которые к тому же помогут не поскользнуться на мокром полу. Врачи советуют не одевать даже купальник или плавки, так как они впитывают пот. В результате жидкость, выделяемая организмом, быстро испаряется и перестает защищать тело от ожогов. Поэтому нижнее белье следует надевать только в общественные сауны, вход в которые без одежды запрещен.
Новичку, решившему опробовать свои силы впервые, разрешается париться не более 10 минут. Считается, что лучше расположиться на полке в полулежачем положении. Таким образом тело прогревается более равномерно.
Под себя нужно подложить махровое полотенце. По завершении процедуры следует слегка охладиться, а затем полить себя чуть теплой водой.
В дальнейшем можно проводить в парилке до 20 минут, при этом важно следить за самочувствием. Если появился дискомфорт, необходимо сразу выйти из сауны. Те, кто практикуется регулярно, потеют быстрее. Если человек плохо переносит жару, нужно положить ему на спину смоченный в теплой воде веник. Взрослым посещать сауну можно не чаще, чем раз в три дня. Женщинам при беременности или менструациях заниматься подобными процедурами запрещено. Не следует ходить в парную людям с сердечными заболеваниями, гипертонией, астмой.
Рекомендуется класть в топку печи такое количество топлива, чтобы после процедур можно было просушить помещения.
Когда посещение сауны подходит к концу, все стенки протирают насухо.
Двери и печные заслонки оставляют открытыми на 2 часа, чтобы проветрить. При этом бак с водой закрывают крышкой. При регулярной эксплуатации рекомендовано производить уборку с моющими средствами каждые две недели. Для защиты от поражения грибком, древесину покрывают защитными составами. Если в помещении появился неприятный запах, его можно устранить, поставив в одном из углов бак с горячей водой. В него добавляют несколько капель эфирного масла. Когда вода начнет испаряться, она впитается в дерево, и тяжелый запах уйдет.
Примеры и варианты
Конструкция необязательно должна быть большая. Такая компактная сауна прекрасно подойдет для периодического отдыха и очищения организма.
Конструкцию часто устанавливают на специальные опоры.
Это очень удобно, поскольку не нужно делать капитальное основание.
Подробнее о том, как сделать сауну своими руками, смотрите в следующем видео.
Сауна в квартире своими руками — строительство по этапам — vasha-banya.com
Баня издавна была излюбленным местом русского человека. Но в городах возможность попариться есть не всегда. Поэтому предприимчивые жители мегаполисов либо строят собственную парную на своем участке возле дачи, либо ищут, как построить сауну в квартире. И, как оказалось, провернуть подобное совершенно не сложно – важно только знать как и иметь под рукой необходимые материалы.
Устройство сауны.Ведь на самом деле достаточно просто и быстро оборудуется красивая и комфортная мини сауна в квартире: фото можно посмотреть в интернете, а необходимую информацию легко найти и на специализированных строительных порталах и в журналах.
Главное – все работы проводить аккуратно и периодически советоваться со специалистами.Какой будет вашей сауна — зависит только от вас. Это может быть инфракрасная сауна своими руками, а можно сделать конвекционную — с печью.
Чтобы оборудовать собственную баню, будь то финская сауна в квартире или типичная русская парилка, нужны целых три готовых стены. Другими словами, нужно попросту выделить самое маленькое помещение. Но, если такой возможности нет, то сауну можно построить и возле несущей стены любой из комнат, но только не внешнюю, иначе зимой на ней легко может образоваться конденсат. Хотя и в этом случае можно обустроить вентиляционную решетку между стеной парилки и несущей стеной квартиры. Так, для этого к самой несущей стене прибиваются бруски размером 5х5 см и расстоянием 50-70 см друг от друга и на всю высоту будущей сауны. Далее обшивается обрешетка, которая возьмет на себя все функции несущей стены.
I этап. Возведение каркаса будущей парилки
Пример строительства сауны на балконе.
Каркасные бруски должны оказаться надежно прижатыми к стенам сауны. Обвязку нужно делать пяти уровней расположения, а для этого на фольге проводятся пять горизонтальных линий обычным мелом. И первая линия должна находиться на высоте 3 см от пола, на высоте 60 см рисуется вторая, а третья – на высоте 1 м от пола. В итоге 5 линия получается в 5 см от потолка. Четвертая – ровно посередине между 5 и 3-й линией. Сам каркас сауны нужно крепить с помощью специальных высверленных отверстий прямо сквозь утеплитель, которые делаются строго по линиям. Самый оптимальный шаг сверления – 50-70 см. А для заполнения в ход идут деревянные пробки и капроновые дюбеля.
Обвязочные элементы нужно крепить с помощью шурупов, вкручивающихся в доски и бруски по одной продольной центральной линии. Причем толщина средних брусков должна быть больше толщины других. Ведь именно к средним брускам и будут потом крепиться лавки на последней стадии работы. Если несущая стена оказалась неровной, придется подгонять толщину обвязочных элементов.
К слову, строительство сауны в квартире лучше всего проводить в самом маленьком помещении, например, на месте бывшей кладовой или туалета. Если его размеры для будущей парной подходят идеально, то саму обвязку можно монтировать прямо на стены помещения. А вот если размеры отличаются, то нужно по углам устанавливать специальные вертикальные стойки из метровых досок. Главное, чтобы их высота была выше на 5 см расположения будущей верхней обвязки. Закреплять стойким можно прямо на полу, предварительно просверлив в нем два отверстия и вставив в них капроновые дюбеля. Кроме того, но вбить еще два 12-сантиметровых гвоздя непосредственно в торец стойки, но без шляпок. Важно, чтобы сами стойки получились строго вертикальными, а проверить это можно отвесом или водным уровнем.
Схема утепления потолка парилки.Потолок домашней сауны строится так: верхние стоечные торцы связываются досками, которые кладутся плашмя. Это и есть элементы потолочного каркаса, которые традиционно делается не из брусков, а из более массивных широких досок.
Они должны быть размещены параллельно и друг к другу, и к боковым стенам самой сауны. Наиболее оптимальный вариант размещения – 50-70 см, как раз для удачного расположения гвоздей крепления вагонки. И горизонтальность, и параллельность нужно будет проверить при помощи строительного уровня.
Готовый каркас домашней сауны должен предусматривать стандартное место для двери. Для этого монтируются две стойки для установки дверной коробки, а над самой коробкой устанавливается горизонтальная перемычка для крепления вагонки. Между стойками дверная коробка фиксируется с помощью шурупов. После подгонки коробки дверное полотно желательно снять с петель и отставить в сторону – чтобы избежать его повреждения во время последующих работ.
Для вытяжной и приточной вентиляции делаются две рамки из бруса. Но, если как потолок для сауны используется потолок самого помещения, то доски или бруски каркаса нужно фиксировать с помощью пергамина, и только после этого материал, закрепленный на потолке, связывать со стеновым каркасом.
А вот для пола доски использовать нежелательно, но, в крайнем случае, можно, без какого-либо лака – чтобы не было вредных испарений. Также и другие поверхности домашней сауны нельзя покрывать лаком. А пол лучше выложить из кафель, но сделать это до того, как будет возводиться сама конструкция из дерева.
II этап. Монтаж электропроводки в сауне
Монтаж электропроводки в саунеПеред самым монтажом электропроводки в домашней сауне необходимо определить логическим путем, где именно будет располагаться все электронагреватели. Светильники же можно размещать где угодно. Например, для сауны кубической формы с одной стороной в 2 метра нужно всего пару 40-ватных светильников, расположенных по обе стороны от лавки. Ведь именно такое их расположение всегда дает мягкое и равномерное освещение. Но можно закрепить светильники и на потолке, и на стене, прикрыв их декоративной деревянной решеткой.
Монтаж всего электрооборудования в собственной сауне лучше проводить после консультации с электриком — лучше всего опытным, хорошо знающим, как построить сауну в квартире и правильно провести в ней электропроводку.
Еще лучше, чтобы подобные работы сделал специалист. Но, конечно, можно основные работы провести самостоятельно. Так, трасса раскладки проводов в таком помещении должна быть намечена как можно ниже и проходить лишь по внешней стороне каркаса. Все провода должны проходить через закрепленный на каркасных элементах металлорукав. Никаких повреждения или соединений в таких проводах быть не должно. Главное, чтобы свободные концы всех прокладываемых проводов для сауны были с длинными концами, чтобы можно было без проблем провести распайку на клеммах и обеспечить зарядку выключателей и светильников.
И, наконец, соединение светильников в домашней сауне может быть только параллельным и обязательно должно проходить через выключатель. Фазу для этих светильников должен давать нагреватель, а силовой и осветительный кабели – тянуться к самому нагревателю в металлорукавах, которые заканчиваются в нагревательных панелях.
III этап. Обустройство термоизоляции в сауне
Термоизоляция домашней сауны должна быть в два слоя – утеплитель и фольга.
Сами утеплительные рулоны должны во время раскатывании по стене сверху вниз укладываться внахлест, причем с заходом при укладке до 10 см. После чего утеплитель нужно фиксировать гвоздями там, где до этого были просверлены отверстия и вставлены деревянные пробки. Обвязка располагается следующим образом: верхний брусок, а потом – деревянная доска на расстоянии 1 м от пола. Все другие доски или бруски крепятся в произвольном порядке.
IV этап. Обшивка вагонкой сауны изнутри
Схема утепления стены парилки и отделки вагонкой.Все русские бани когда-то строились из осины или липы. Конечно, такие материалы далеко не самые прочные для такого солидного сооружения, как парная, зато обладают поистине исцеляющими свойствами. Поэтому сегодня этот материал практически всегда используется для внутренней обшивки парилки и сауны. Но можно обшить квартирную сауну и обычной вагонкой.
Начинать обшивать домашнюю сауну вагонкой нужно с потолка. Если потолком для сауны служит потолок помещения, его нужно затянуть фольгой со стороны к самой парилке.
Фольга должна быть прикреплена к каркасным элементам с помощью крепких кнопок и натянута перпендикулярно к каркасным доскам. Причем укладывать фольгу нужно не встык, а внахлест, где ширина перекрытия – 5-10 см. Изнутри обшивать потолок нужно со стороны входа. А шить вагонку нужно специальными потайными гвоздями на каждой каркасной доске. Сначала гвозди забиваются под углом в паз молотком, а потом – двобойником. Самые крайние доски можно пришивать обыкновенным гвоздем без шляпки, которую заранее нужно убрать кусачками, а место входа гвоздя в дерево – затереть шкуркой. Поверх фольги необходимо уложить утеплитель, уже с внешней стороны потолка сауны. Как утеплитель можно использовать любую минеральную вату, которая не дышит и не воспламеняется от спички. Но нельзя использовать пенопласт – ему свойственно выделять в воздух ядовитые вещества.
Поверх минеральной ваты укладывается пергамин и можно приступать к обшивке вагонкой. Если потолок сауны монтируется непосредственно на потолке выделенного для нее помещения, полотно фольги можно натянуть и со стороны входа.
Для этого его зашивают 4 досками вагонки снизу, а образовавшиеся между каркасными досками проемы заполняют утеплителем. Далее натягивается еще одно полотно и процедура повторяется.
Аналогично потолку домашней сауны обшиваются и ее стены. Но в данном случае уже нужно помнить и о местах для выхода проводки. В этих местах в самой доске нужно предварительно просверлить отверстие, диаметр которого будет равен диаметру металлорукава. После чего сам металлорукав необходимо пропустить в отверстие, и тогда доска вагонки может быть пришита на свое постоянное место. Если же зашиваются стены без плинтусов, то вагонка между стенами и потолкам пришивается «в руст», а нижний плинтус прибивается гвоздями с откусанными шляпками непосредственно через вагонку прямо к нижней обвязке. Но, чтобы получился хороший вентиляционный проток сквозь стены, нижний край самой нижней доски не нужно доводить до пола – пусть останется щель в 20 мм. Кроме того, плинтус при этом пришивать нужно через прокладку.
V этап.
Строительство лавочного каркаса
Строительство лавочного каркасаИзготавливать лавочный каркас для домашней сауны нужно из брусков с сечением 40х80 мм, в качестве которых можно использовать короткие доски, соединенные вместе шурупами.
В начале работы нужно главный брусок пришить горизонтально на уровне третьей обвязки на всю ширину стены, противоположной от входа. Само пришивание необходимо делать 8-10-сантиметровыми шурупами. Главное, чтобы шляпки немного утопали в бруске и к ним впоследствии случайно никто не смог прикоснуться и обжечься. Оптимальное расстояние между шурупами – 50 см.Таким же образом пришиваются и боковые лавки сауны. Но к торцам боковых брусков еще нужно прикреплять висящий брус при помощи 15 сантиметровых саморезов. В итоге длина висящего бруса должна получиться равной парилочной ширине. Там, где будут завинчены шурупы-саомрезы, необходимо в целях безопасности замаскировать отверстия с помощью хорошо пригнанной пробки с клеем ПВА. Главное, чтобы пробка была из такой же древесины, что и лавки.
Для настила лавок традиционно используются доски 20х80 мм. Настил собирается из продольных и поперечных досок и должен получиться съемным. Продольные доски по своей длине совпадают с шириной сауны, а поперечные – с шириной настила, которая не должна быть меньше 60 см для верхней лавки и 40 см для нижней.
VI этап. Монтаж электрооборудования
На последнем этапе строительства домашней сауны происходит монтаж электрооборудования. С помощью специальных шурупов, поставляющихся вместе с нагревателем, создается надежное крепление. Устанавливать нагреватель нужно на 20-сантиметровой высоте от пола. Вокруг него необходимо создать ограждение из оставшихся обрезков материла любой формы, но не ближе 5 см к самому нагревателю. Между тэнами укладываются камни с минимальным просветом. На вагоне надежно крепятся светильники и электровыключатель, а с помощью шурупов – песочные часы и вентиляционные задвижки.
После окончания всех крепежных работ шкуркой зачищаются потолок и лавки и протираются слегка влажной тряпкой – и личная сауна в собственной квартире готова к использованию.
Главное, в первый день разогреть сауну до 60 градусов с открытыми дверями и задвижками, а во второй – до 90 градусов и так продержать три часа. Уже на третий день все три часа нужно выдержать температуру 100 градусов, после чего можно установить максимальную температуру на 40 минут и подливать время от времени на камни горячую воду. Начиная с четвертого дня, домашнюю сауну можно смело использовать с полной нагрузкой.
Как построить сауну — прочтите эти 6 страниц …
Отправьте нам электронное письмо для получения совета эксперта
Отправьте нам электронное письмо для получения совета эксперта
Отправьте нам электронное письмо для получения совета эксперта
Отправьте нам электронное письмо для получения совета эксперта
13. Указатель терминов для саун на этой странице … Планы сауны под открытым небом — Раздел 2, объясняющий планирование, проектирование и строительство сауны под открытым небом Построить сауну легко с помощью Комплекты для домашней сауны с 1974 года. Мы определяем: Строительство сауны, Как построить традиционную сауну, Строительство сауны, Строительство сауны, Установка сауны, Самостоятельная сауна, Строительство сауны, Как построить сауну, Самодельную сауну, Строительство сауны, Сделать сауну, изготовление саун и строительство саун. Все эти термины описывают традиционные финские методы и методы строительства сауны, а также секреты строительства сауны, которые мы собрали за 34 года строительства саун.Как построить собственную сауну с помощью набора для сауны своими руками — это специальность в Комплекты для домашних саун С 1974 года для строителей саун D-I-Y. Если вы готовы заказать у нас БЕСПЛАТНУЮ книгу сегодня, вы будете зарегистрированы для получения скидки на продукт на сумму до 100 долларов США на вашу следующую покупку сауны у нас. Нам нравится, так сказать, держать дело в семье!Нажмите здесь: купон на 150 долларов и закажите книгу о саунах, The Art of Sauna Building Мы гордимся тем, что несколько лет назад написали книгу о строительстве саун! … На этом сайте мы использовали материалы из нашего бестселлера по строительству сауны «Искусство строительства саун». На сегодняшний день продано более 40 000 экземпляров нашей книги. С 1974 года мы помогли загореться более 65 000 саун, что составляет более 120 000 человек, которые счастливы иметь собственную домашнюю сауну. Так, может быть, ты следующий? Ключевые слова для тем, затронутых в нашей книге по созданию саун, включают:построить сауну, построить сауну, построить сауну, построить сауну, построить сауну, построить сауну, установить сауну, построить свою сауну, сделать сауну, построить сауну, построить сауну, построить сауну, советы по созданию сауны Также широко освещены темы и ключевые слова, например:скамейка для сауны, скамейки для сауны, установка сауны, изоляция сауны, изготовление сауны, строительство сауны, строительство собственных саун, строительство сауны, строительство сауны Домашние сауны С 1974 года упрощает для вас проект «Как построить сауну».Воспользуйтесь нашими БЕСПЛАТНЫМИ планами строительства сауны и информацией о строительстве сауны, чтобы показать вам, как легко построить отличную сауну. ЛУЧШИЕ инструкции для сауны, чертежи и чертежи из книги-бестселлера «Искусство постройки саун» доступны у нас. Домашние сауны Начиная с 1974 года, проект «Как построить сауну» стал простым. | |
Как правильно построить сауну
Самостоятельное строительство сауны — отличный способ для тех, кто имеет опыт работы с основами строительства и хочет сэкономить деньги на огромных затратах на установку и предварительно сократить трудозатраты производителя. Это не только процесс вознаграждения, но и с помощью наших профессиональных рекомендаций вы узнаете, как эффективно построить красивую сауну с относительной легкостью .
Слишком часто домовладельцы уклоняются от строительства сауны из-за того, что не имеют профессионального опыта строительства. В этом нет необходимости. По правде говоря, вам не нужно быть экспертом, чтобы построить сауну — оставьте это нам! С помощью наших профессиональных, надежных рекомендаций и решительного отношения вы сможете построить свою собственную сауну и ощутить все преимущества и преимущества этих роскошных удобств.
Хотите построить себе что-то подобное? Если ваш ответ утвердительный, продолжайте читать…
Итак, с чего начать?
Теперь, когда вы правильно спланировали сауну и приобрели материалы, пора претворить план в жизнь и приступить к сборке помещения.Строительство сауны не требует много времени. Как только у вас будет нужный материал, мы рекомендуем вам посвятить 24–36 часов своего времени на сборку и установку.
Мы предоставили 8 профессиональных пошаговых инструкций, чтобы убедиться, что ваша сауна построена правильно:
1. Обрамление стен
Когда планы составлены, пора приступить к установке сауны. Во-первых, измерить размеры для стенки опорной плиты и пометить измерения соответственно с защелкой меловых линий.
Затем выложите треугольную опорную плиту, используя обработанную под давлением древесину 2 × 4. Для очень важно использовать обработанную под давлением древесину для предотвращения проблем с влажностью. Отрежьте две дополнительные верхние пластины 2 × 4, чтобы они соответствовали размерам нижней пластины, и перекрывайте стыки на верхней пластине.
Отметьте точки настенных стоек для верхней и нижней пластин и отрежьте необходимое количество стоек по высоте вашей сауны. Как только вы это сделаете, разложите детали на их правильном месте и скрепите шпильки и пластины вместе с помощью оцинкованных гвоздей 10d или пневматического пистолета.
Пришло время утеплить. Перед тем, как начать этот процесс, было бы разумно выложить временное полиуретановое покрытие поверх изоляции, чтобы вам было комфортно работать с изоляцией. После того, как вы выполнили этот шаг, вы можете приступить к установке утеплителя в стенах за сауной.
Администрирование конструкционного клея на нижнюю часть опорной плиты и привод бетонных гвозди с кувалдой, чтобы закрепить обрамление пиломатериалов с бетоном.Поставьте стену номер один на место, убедившись, что она должным образом выровнена, и используйте 3-дюймовые винты для гипсокартона, чтобы прикрепить концевую стойку к гвоздезабивателю.
Наконец, чтобы скрепить секции стены вместе, прибейте вторую верхнюю пластину к верхней части стены. При соединении трех стен важно учитывать размеры двери сауны.
Примечание: добавление блокировки 2 × 4 между стойками в конечном итоге укрепит раму и обеспечит высокое качество конструкции.
Вам нужно обрамить стены
2. Каркас крыши
Для этого прикрепите к задней части внутренней стены сауны доску 2 × 4, чтобы должным образом поддерживать концы балок потолка. Затем разложите потолочные балки сверху так, чтобы с обеих сторон были выступы в шесть дюймов. Для передней части используйте свес в десять дюймов.
Обрежьте концы стропил, чтобы создать переднюю изнанку над дверным проемом. Обязательно измерьте самое короткое стропило, чтобы определить правильную длину свеса.Наконец, установите обрамление фасции 2 × 4 с помощью гвоздей 16d.
3. Завершите корпус
Для завершения ограждения установите окна (если применимо) и проложите проводку для электрокаменки и внутреннего освещения. Большинство каменок для саун питаются от источников 220 В. Если в вашей сауне используется это напряжение, необходимо правильно проверить , прежде чем вы начнете ее использовать.
4. Нанесите пароизоляцию из фольги
Пароизоляция из фольги является важным компонентом при установке сауны из-за ее теплоотражающего эффекта, который предотвращает риск возгорания.Для установки фольги пароизоляции прикрепите фольгу скобами к стойкам стены (начиная снизу). Затем наложите швы внахлест на 5 дюймов и продлите пароизоляцию над балками потолка, убедившись, что они полностью покрывают интерьер.
Пароизоляция из фольги — важный компонент вашей сауны
5. Установите внутренние и внешние покрытия
Сначала установите потолочные плиты сауны. Для этого просто прижмите край доски к стене и прибейте его к балкам потолка.Повторите то же самое с каждой потолочной панелью, используя канавки для доски, чтобы скрепить части вместе.
Стеновые доски устанавливаются так же, как и потолочные. Продолжайте устанавливать доски, пока не будут завершены внутренние стены. Перед установкой внешнего покрытия заполните все щели изоляцией из стекловолокна, чтобы гарантировать, что ваша сауна удерживает внутреннее тепло. Используйте тот же метод, описанный выше, для установки внешнего покрытия.
Используйте лобзик, чтобы вырезать место для выключателей света.
6. Установите нагреватель для сауны
Для установки электрокаменки используйте дрель, чтобы прикрутить опорные кронштейны каменки к стене на требуемой высоте (пожалуйста, уточняйте у производителя, так как все каменки индивидуальны). Теперь вы можете разместить обогреватель в скобах. Наконец, прикрепите ограждения нагревателя.
Есть много различных вариантов каменки для сауны.
7. Установите скамейки, обшивку и окна
Сначала начнем со скамейки. Чтобы установить скамейки, измерьте расстояние от пола и отметьте линию уровня на стенах и закрепите этой линией верхнюю часть опор скамейки.
С помощью 3-дюймовых винтов прикрепите опорные кронштейны к стене, убедившись, что они выровнены. Установите верхнюю и нижнюю скамейки на опорные кронштейны, а затем установите кронштейны для поддержки каждого конца скамейки. Затем установите скамейку на перекладину и прикрепите ее снизу шурупами.
Используйте пневматический гвоздезабиватель для установки угловых молдингов. Обязательно обрежьте молдинг примерно на ¼ дюйма длиннее требуемого размера, затем поместите каждый конец на место и защелкните молдинг.
Чтобы установить окна, сначала вставьте их в проемы в стене. Используйте прокладки и уровень, чтобы установить их, затем закрепите окна шурупами через косяк и в каркас стены.
8. Установите настил
Варианты настила различаются для каждой сауны. Некоторые люди выбирают деревянные полы, чтобы подчеркнуть атмосферу сауны, а другие предпочитают плитку. Обязательно поговорите с производителем, чтобы определиться с наиболее подходящим для вас вариантом. После того, как вы уложили пол, вы можете наслаждаться своей новой сауной.
После того, как ваша работа будет сделана, вы можете расслабиться и расслабиться в своей красивой новой сауне!
Наши клиенты — Saunacore
Я с огромным удовольствием представляю вам нашу компанию Saunacore ™. Мы работаем в индустрии саун с начала 80-х годов, и за годы производства качественной продукции мы стали одним из крупнейших производителей с самой обширной линейкой продукции, доступной в отрасли. Наш бизнес основан на высоком качестве, наиболее конкурентоспособных ценах и, что самое главное, на удовлетворении потребностей клиентов.Мы предлагаем наши услуги по всему миру и в разных штатах / провинциях США и Канады. Помните, что Saunacore является канадским производителем, и вся наша продукция сертифицирована по стандартам безопасности UL и CSA.
Saunacore ™ с годами стала одним из самых крупных производителей товаров для саун и паровых бань в мире. Производство Saunacore ™, традиционные печи для сауны, генераторы для паровой бани, индивидуальные комплекты для сауны, индивидуальные традиционные модульные сауны, индивидуальные инфракрасные излучающие сауны, инфракрасные компоненты, аксессуары и многое другое.
Фирма Saunacore специализируется на дизайне и изготовлении саун на заказ. Создать собственную сауну в Saunacore ™ просто. Мы можем воплотить в жизнь любую идею, которую только можно вообразить. Просто предоставьте нам эскиз, архитектурные чертежи, фотографию или любые размеры, и вместе мы сможем разработать наиболее индивидуальную и желаемую сауну со всеми функциями и аксессуарами, о которых вы можете мечтать. Создавая собственную сауну по индивидуальному заказу, вы можете быть уверены, что Saunacore ™ позаботится о каждой детали, чтобы вы получили сауну высочайшего качества.
После создания вашей индивидуальной сауны наша цель — убедиться, что вы пользуетесь всеми преимуществами сауны Saunacore ™. Вы чувствуете себя более расслабленным, и ваше тело омолаживается. Вы чувствуете себя бодрым, готовым к новому дню, ваше тело очищено от токсинов, становится чистым и чистым, и вы чувствуете себя отдохнувшим. Добавьте индивидуальности в дизайн сауны.
Спасибо
С уважением,
Раймонд Николини
[email protected]
Список клиентов и проектов Saunacore, в которых были предоставлены наши услуги и / или качественные продукты.
Эллис Дон 1 King St West, Rogers Center (Брамптон), Concord City Place Blk 9/10 и BLK 33, а также The Ritz Carlton (Торонто).
Tridel
Essex, 360, Avignon, Avondale, Triophe, Meridian, Ovation, Strathaven, Belair, Verve, Humberwood, Element, Meridian, Reve, Republic, 300 Front, Avonshire, HullMark, Aristo, Nuvo и Ten York.
Город Воан
Мэйпл, Гарнетт Уильямс, Аль-Паладини, деревня Веллор и общественный центр отца Э. Булфона.
Royal Group
Royal Casino & Beach Resort (Marriott) Сент-Китс
Pearl Beach Resorts
Manea Spa на острове Бора-Бора
Air Canada Center
Toronto Maple Leafs и Toronto Raptors Парные
Куджо (Кертис Джозеф)
Custom Home (Toronto Maple Leafs)
Monarch Group
Aqua, Waterview, Haven, Domain, Quay West, Legacy, Nautilus, Couture, Allure, Waterscapes и Yorkland Condominium
H&R Developments
Aquarius Waterpark City Condominium
EC Construction
Radio City Condominium
Дэвис Смит Дев.
Городские ворота, фазы 1 и 2, Солнцестояние и кондоминиумы из оникса
Pool People Limited (PPL)
Казино Falls View (Ниагара-Фолс, Онтарио), пирс Тиффен (Мидленд, Онтарио), клуб York Harbour Club и общественный центр River Oaks, Delta Hotel Toronto.
J. F. Brennan Design
Custom Homes
Кэтрин Ньюман Дизайн
Дома на заказ
Дома JTF
Дома на заказ
Crystal Glen Homes
Дома на заказ
Sky Homes
Custom Homes
King Developments
Дома на заказ
DelGreco Construction
Дома на заказ
Maystar General Contractors
Общественный центр Ошава и Клен
Akula Naval Yacht
Reno для яхты производства Amels (http: // www.charterworld.com/index.html?sub=yacht-charter&charter=akula-2237
Aecon Interiors & Reno
MOFA Phase 2 (Посольство Саудовской Аравии в Оттаве)
Chatsworth Construction
Beamish, Bosco, & Fardanesh Residence. (Оквилл, Онтарио).

Внутри поддерживается температура до +140 градусов, а уровень влажности при этом низкий, не более десяти процентов. Считается, что столь сильное прогревание оказывает полезное воздействие на все системы организма.
Таким образом, создаются оптимальные условия даже для людей, которые не переносят сильной жары. Помимо паровой, возведение турецкой сауны предполагает наличие помещений для различных процедур – массажа, обертываний и других. В качестве отделки вместо древесины используют керамическую плитку, мозаику с восточными орнаментами.
Поэтому необходимо организовать систему вентиляции так, чтобы воздушные потоки не только хорошо смешивались, но и не было сильного сквозняка.
Под себя нужно подложить махровое полотенце. По завершении процедуры следует слегка охладиться, а затем полить себя чуть теплой водой.
Строительство лавочного каркаса
Купон на $ 100
Купите комплект материалов для сауны и сделайте сам …
Home Sauna Kits, являясь фирменным магазином сауны, может настроить любой предварительно вырезанный комплект для сауны по мере необходимости. Мы вносим индивидуальные изменения в дизайн 50% наших предварительно нарезанных комплектов для сауны. Мы также можем изготовить идеальный комплект материалов для сауны в виде комплекта для любого строителя сауны.