Размеры барной стойки по стандартам: высота от пола, ширина, глубина
Всё, что нужно знать о выборе стойки:
Преимущества и особенности
Виды
Как выбрать размер?
- Высота
 - Ширина
 - Длина
 - Учитываем параметры комнаты
 
Как подобрать стулья
Материалы изготовления
Высокий стол — оригинальное решение не только для небольших комнат. Он будет уместен и в просторном помещении. Разница лишь в габаритах мебели. Разбираемся, как рассчитать высоту барной стойки от пола до столешницы на кухне разной площади.
Плюсы
- Это замена обеденной группы, она смотрится интереснее и легче. Последнее особенно важно, если комната небольшая.
 - В квартире-студии — элемент зонирования: разделяет зону приготовления еды, столовую и гостиную.
 - Соединенная с гарнитуром, она является дополнительной рабочей поверхностью. Если внизу встроен шкаф, то ещё и местом для хранения.

 
Минусы
Во-первых, редко такие изделия бывают мобильны, просто так их не передвинуть. Конечно, существуют раздвижные, складывающиеся модели. Но это решение нестандартное, такую мебель придется заказывать.
Во-вторых, барная стойка для кухни, размеры которой позволяют разместиться компании из пяти человек — это редкость. Во всяком случае, когда речь идёт о маленьких комнатах. Обычно комфортная рассадка предполагает три-четыре человека максимум. Явно не вариант для любителей больших шумных вечеринок.
Наконец, в-третьих, сидеть на высоком табурете удобно далеко не всем. Это касается пожилых людей и маленьких детей в возрасте до 12 лет. Придется подыскать альтернативный вариант.
Студия Уютная квартира
Instagram @leyla_interiors
Студия Уютная квартира
Instagram @homeinteriors_design
Instagram @leyla_interiors
Кухня
Кухни с барной стойкой: все о расположении, форме конструкции и идеях дизайна
Стойка может быть как отдельным элементом, так и частью кухонного гарнитура.
 В зависимости от расположения выделяют четыре типа.
- Примыкающая к стене — типичное решение для небольших комнат, когда проход узкий. К этому же виду относится стол-подоконник — неплохой вариант для маленьких кухонь, поскольку используется обычно неактивная зона около окна.
 - Перегородка, которая разделяет пространство на зоны: например, разграничивают столовую, гостиную в квартире-студии.
 - Отдельно стоящая. Если площадь позволяет, почему бы не сделать бар на кухонном острове? Особенно эффектно он смотрится в классическом стиле.
 - Часть гарнитура. Бар-продолжение столешницы — тоже отличный вариант для маленьких комнат. Часто такие модели изготавливают с различными полками, подставками, другими полезными декоративными элементами.
 
Instagram @balcon.studio
Дизайн студия Иры Акменковой
Instagram @meretti_mebel
Instagram @jeevaa_design
Instagram @kuhni_elegrum_official
Кухня
Размеры столешницы для кухни: что нужно знать, чтобы не ошибиться с выбором
Строгих правил нет, главное — чтобы вам было удобно.
 Поэтому сначала стоит ориентироваться на привычки и особенности членов семьи. Высокому человеку будет комфортно за столом высотой 130 см, а человеку среднего или небольшого роста подойдут модели 110-120 см.
Также учитывайте, чем вы будете заниматься: будете ли вы готовить? Насколько удобно в таком случае стоять за баром?
Высота
Стандартная высота барной стойки на кухне составляет 105 см — для отдельно стоящих моделей; 90 см — для тех, что являются продолжением гарнитура. Впрочем, это условные значения, они зависят от производителя и функциональных особенностей.
Например, размер стойки, совмещенной с гарнитуром, бывает от 86 см до 90 см. Если вы планируете изготовить её на заказ, учитывайте расстояние от пола до столешницы шкафа.
Если гарнитур Г-образный, можно сделать столешницу разноуровневой при помощи небольшой надстройки. С одной стороны будет рабочая зона (86 см), с другой — бар высотой от 110 см до 115 см.
Стоящие отдельно и примыкающие к стене высокие столы редко бывают ниже 100 см.
 Самые распространенные значения — 120 см и 130 см. К ним проще всего купить стулья.
Instagram @balcon.studio
Столовая
Может ли барная стойка заменить обеденный стол? Мнение дизайнеров
Ширина
Также зависит от функций. Если бар заменяет обеденный стол, минимальное значение — 55 см. При этом друг напротив друга сесть в таком случае не удастся, сервировка будет параллельной.
Глубина столешницы на одного человека равна 40 см с учётом места для общих предметов сервировки, например, салатников, салфеток, приправ. Если вы хотите бар на 4 персоны, его ширина будет 70-80 см.
Ширина барной стойки на кухне в малогабаритной квартире может составлять 30 см — речь идёт о моделях, встроенных в гарнитур.
Instagram @lupina_design
Instagram @yanadruz
Длина
Здесь стандарта нет, размеры зависят от предпочтений. Главное правило: для комфортного расположения человеку нужно как минимум 60 см. Но также учитывают комплекцию членов семьи. Полным людям нужно больше места; то же касается и тех, кто любит широко расставлять локти.
Подбирая длину, не забудьте о рассадке и максимальном количестве персон. Боковую сторону тоже можно использовать, если позволяет ширина изделия.Если помещение небольшое, представьте, как будет располагаться бар, не будет ли он мешать передвижениям по комнате?
Instagram @homeinteriors_design
Квартира
Математика в интерьере: 70 важных размеров, расстояний и высот, которые нужно знать
Ориентируемся на параметры кухни
Площадь до 10 м
2На маленькой кухне, где важную роль играет не только эргономика, но и сохранение «воздуха», актуальны раскладывающиеся модели барных строек, столешницы-подоконники и небольшие столики.
Для двоих можно подобрать стол прямоугольной или квадратной формы. В первом случае минимальный размер составит: 100 см х 55 см (длина и ширина), во втором — 75 см х 75 см — это самый удобный вариант.
Минимальная ширина столешницы, расположенной вдоль стены, — 40 см, делать её еще уже не имеет смысла. Если места совсем нет, от идеи стационарной поверхности придётся отказаться, присмотритесь к откидным столикам. Причем это может быть как классический вариант с креплением к стене, который предлагают многие магазины, так и ниша в кухонном гарнитуре. Но такое изделие выполняется на заказ вместе с гарнитуром. Чтобы проще было подобрать стулья, делайте столик на высоте от 86 см до 120 см.
Instagram @mm_kaudal_
Instagram @lupina_design
Instagram @diane_proremont
Instagram @bestkuhnispb
Мебель
Как правильно выбрать стол для маленькой кухни
Европланировка
Если главная задача — зонировать пространство объединенной кухни, столовой и гостиной, присмотритесь к прямоугольным формам бара.
 Он может быть продолжением стены или отдельным элементом. И в том, и в другом случае его длина составляет не менее 100 см. Так он сможет визуально разделять зоны.
Instagram @leyla_interiors
Instagram @styleville.mebel
Instagram @accent.architector
Instagram @balcon.studio
Instagram @homeinteriors_design
Большая площадь
Мебель на большой кухне должна соответствовать её параметрам. Маленькие узкие стойки здесь просто потеряются. Отдельно их редко размещают, часто бар становится продолжением гарнитура или частью кухонного острова. Поскольку здесь, как правило, имеется выделенная столовая зона, бар — место для быстрого приема пищи. Островной модуль может быть рассчитан и на двух персон, и на четырех, его длина составляет от 120 см и выше, ширина — от 80 см. Если с другой стороны предполагается рабочая зона, то не менее 100 см.
Instagram @kitchen.
 buro
Instagram @interer_architects
Самое простое решение — приобрести модель с регулируемой высотой основания. Оценят все гости: и высокие, и не очень.
Комфортная разница между столом и стульями составляет не более 30 см. В продаже распространены модели с расстоянием от пола до сиденья 75 см и 85 см.
| Стулья | Стол | 
| 58 — 71 см | 84 — 94 см | 
| 74 — 81 см | 104 — 109 см | 
| 84 — 92 см | 112 — 119 см | 
- Если задача — сэкономить площадь, обратите внимание на табуреты. Их можно поставить под стол. Правда, к отсутствию спинки и подлокотников придется привыкать.
 - Материал — тоже важный фактор, влияющий на выбор. Акриловые и пластиковые модели выдерживают вес до 90 кг. Сталь и дерево прочнее.
 - Без подножки внизу не обойтись.
 Так что можете даже не обращать внимания на изделия без неё.  - Стулья с обивкой, хотя и приятнее на ощупь, долговечностью не отличаются. Тут всё зависит от того, как часто вы будете проводить время за баром. Симпатичное решение проблемы твердого сиденья — декоративные подушки, которые можно найти почти у любого производителя.
 
ЛДСП
Один из самых популярных материалов. Из достоинств: большой выбор цветов, относительно невысокая цена, устойчивость к влаге, высокой температуре. При правильном уходе может прослужить до десяти лет.
Когда выбираете мебель из ламинированного ДСП, обращайте внимание на класс экологичности: допускается Е1, Е0,5.
Натуральный камень
Прочный экологичный камень подходит под любой стиль. Его единственный недостаток — высокая цена. Но есть и альтернатива — искусственный камень, весомый плюс: он дешевле.
Instagram @balcon.
 studio
Instagram @leyla_interiors
Акрил
Гибкий, податливый и футуристичный акрил будет неплохо смотреться в интерьере в современном, а также в минималистичном стиле. Тут можно проводить эксперименты с фактурой гарнитура: сочетать глянцевые и матовые поверхности.
Стекло
Хрупкий материал, который сегодня встречается нечасто. Может быть использован только для отделки обеденной зоны. И обращаться с ним нужно аккуратно.
Instagram @balcon.studio
Instagram @balcon.studio
Instagram @balcon.studio
Кухня
Гид по материалам для кухни: какой лучше?
Материал подготовила
Анастасия Хрипункова
как подобрать мебель и оборудование для барного пространства?
Кухня давно перестала быть комнатой «два на три», где мы просто готовим пищу. Современная мебель позволяет сделать её более функциональной, интересной.
 Одним из трендов остается барная стойка. Ее можно установить не только на огромной кухне, но и на довольно скромной: она может заменить стол или стать элементом зонирования, отделив кухню от столовой или гостиной. Ключ к комфортному использованию барной стойки – хороший барный стул. Сегодня мы расскажем, как его выбрать для вашей кухни.
Узкая стойка – детище пабов. Изначально это был своеобразный буфер между зоной бармена и общим залом, который закрывал доступ посетителей к рабочему месту персонала и напиткам. Стойка всегда была высокой, чтобы через нее нельзя было перелезть или достать напитки или посуду без оплаты. Неширокая столешница использовалась для выдачи заказов, а также обслуживания клиентов, которые просто «забежали на бокальчик».
Барная стойка в квартире или доме сохранила суть, но немного изменила вид. Это не всегда монолитная конструкция – стойка может быть просто столешницей на изящных ножках. А вот размеры и высота близки к истокам: высота стойки обычно составляет 110–130 см, а ширина столешницы редко бывает больше 60 см.
 Соответственно, к такому «столу» обычный стул не подойдет. Расскажем об основных нюансах выбора барных стульев, которые помогут правильно оформить зону бара не только дома, но и в коммерческих помещениях.
Комфортная высота барного стула
Барный стул всегда высокий. Вроде бы все очевидно, но не совсем. Насколько высокий? Будет ли он удобен человеку маленького роста? Не придется ли слишком сильно наклоняться к столу? У последнего вопроса есть довольно простое решение: чтобы высота барного стула не ограничивала ваш комфорт, его можно купить сразу вместе со стойкой в составе гарнитура. Но всегда ли это удобно? Не хотите покупать «набор» – рассказываем как купить только то, что надо.
Высота барного стула регламентирована ГОСТ и составляет 75–85 см. Для стойки рекомендованная стандартом высота составляет 110–130 см. Разница между сиденьем и столом — 25–30 см. Если вы заказываете мебель домой, отталкиваясь от роста членов семьи, высоты потолка, дизайна, можно отклоняться от рекомендованных параметров, но сохранять соотношение между высотой барного стула и стойки нужно.
 Отличие барного стула от обычного в том, что здесь у сидящего колени не должны образовывать прямой угол, поэтому при выборе можно отойти от общепринятых стандартов и купить то, что удобно именно вам. Не забывайте про подножку. Она может быть расположена выше или ниже от пола, но сидящий должен обязательно дотягиваться до нее ногами. Если можете присесть на стул перед покупкой, пользуйтесь этой возможностью. Тогда не придется привязываться к рекомендациям в сантиметрах. Возьмите с собой друга/члена семьи, чей рост отличается от вашего и убедитесь, что стул удобен вам обоим. В принципе, можно купить стулья разной высоты или выбрать модель с возможностью регулировки сиденья.
Барные стулья с регулируемой высотой
Сегодня, когда время превращается в очень ценный ресурс, покупки в интернет-магазинах становятся все более удобными. Не всегда есть время ездить по салонам мебели чтобы «примерить» по себе высоту мебели. Если у вас не получается устроить такой шопинг-тур для поиска мебели для кухни или кафе, закажите стулья с регулируемой высотой.
 Они удобны, если:
- в вашем баре/доме установлена мебель нестандартного размера;
 - вы приобретаете мебель для квартиры или дачи, где уже есть столы разной высоты;
 - у всех членов вашей семьи и частых гостей разный рост;
 - нет возможности замерить высоту стойки.
 
Регулировка высоты может быть реализована разными способами:
- Винтовой механизм. Простой и долговечный. Такие стулья чаще других покупают для баров.
 - Газлифт. Это подъемно-спусковой механизм с плавным ходом. Он приводится в действие при помощи пружины. Сжатие пружины происходит под давлением газа. Для изменения высоты нужно нажать на регулятор.
 
Модели барных стульев
Они различаются не только размером, но и стилем, декором, конструкцией. Например, есть так называемые барные табуреты. Они стильные, компактные, портативные, но не имеют спинки, а потому сидеть на них долгое время вы не сможете. Если задача — выпить чашку кофе буквально на ходу, они вам подойдут.
 Если же хочется, чтобы друзья или посетители заведения провели у вас как можно больше времени, смогли расслабиться и отдохнуть, выбирайте модели со спинкой. Спинка может быть высокой или низкой, практически декоративной. Самый комфортный вариант спинки – полуизогнутая, на нее удобно опереться и расслабиться.
Что касается каркаса, в равной степени хорошо себя зарекомендовали как деревянные, так и металлические. Здесь можно отбросить момент практичности, а сосредоточиться на визуальной составляющей. Это важно, ведь мебель задает атмосферу в помещении. От нее в большой степени зависит уют в доме или антураж в баре. Поэтому высокие стулья, как кухонные, так и ресторанные, оценивают не только по уровню удобства, но и по виду.
Мебель лучше выбирать тогда, когда уже точно известен стиль интерьера, концепция заведения. Важно, чтобы она гармонировала с другими предметами в помещении. Так можно создать целостную картинку, приятную для вас и ваших гостей. Гармония достигается за счет правильного сочетания фактур, оттенков, материалов и стилей.
 Например, если кухня оформлена в стиле хай-тек, массивные барные стулья из дерева будут смотреться не совсем гармонично, в отличие от минималистичных моделей с тонкими металлическими ножками и лаконичным черным сиденьем. И наоборот, для стиля кантри или классика дерево с резьбой или красивым естественным рисунком древесины подойдет значительно лучше, чем металл.
Еще один момент, который стоит учитывать, — подлокотники. Если стулья нужны как элемент стиля и дополнение к полноценной обеденной зоне, можно взять модели без подлокотников. Они стоят меньше, занимают не так много места. Если у вас планируются частые встречи с друзьями, лучше купить стулья с подлокотниками. На них комфортно сидеть долгое время.
И напоследок хочется сказать еще об одной разновидности барных стульев — складных. Такие модели стоят отдельно от остальных, так как выполняют роль временного «помощника». Мебель занимает много места в квартире, поэтому не хочется загромождать ей лишние квадратные метры. Если стулья нужны вам только время от времени для приема гостей, можете присмотреться к складным.
 Такие модели подойдут и для дома, и для общественных пространств с меняющимся числом посетителей (лектории, залы для презентаций, коворкинги). Складные будут не лучшим вариантом, пожалуй, только для баров, так как они менее долговечные, если постоянно раскладывать и складывать их. Кроме того, любые подвижные элементы делают мебель уязвимой, ее легче сломать, а значит, придется покупать новую.
Интернет-магазин «ВсеСтулья.ру» предлагает много разной мебели для предприятий общественного питания, квартир, загородных домов и коттеджей. Мы знаем, как подобрать мебель по высоте, материалам, фурнитуре, как выдержать единый стиль с интерьером и учесть планировку.
Высота, ширина и длина барной стойки для кухни: комфортные габариты
 Барная стойка — стильный и практичный элемент интерьера, способный дополнить практически любую кухню. Она может как добавить жизненно необходимое на небольших кухнях пространство для работы, так и помочь в зонировании в действительно просторных помещениях.
 В отличие от полноценного обеденного стола, барная стойка занимает немного места, но вполне может выполнять функции и обеденной, и зонирования, а дополненная специальной фурнитурой — еще и места для хранения.
Виды барных стоек, варианты оформления
Современные интерьеры могут предложить множество вариантов барных стоек. Они отличаются как по форме, так и по конструкции. Помимо классических прямых вариантов, можно встретить закругленные стойки, удобные для зонирования пространства, или зигзагообразные, вмещающие большее количество посадочных мест.
По конструкции чаще всего выделяют несколько популярных типов:
- Совмещенная с гарнитуром, выступающая в качестве продолжения столешницы.
 - Островная, монтируемая к кухонному острову.
 - Пристенная, одна из сторон которой крепится не к мебели, а к свободной стене.
 
Островная барная стойка
Пристенная барная стойка
 Существует множество других конструкций барных стоек, используемых в зависимости от планировки кухни, формы гарнитура и пожеланий владельца.
 Познакомиться с ними подробнее можно в отдельной статье.
Как выбрать размер барной стойки: высота, ширина, длина
Выбор габаритов барной стойки зависит от множества факторов — размер и планировка помещения, форма и конструкция гарнитура, физические данные владельца, а также требования к этому предмету мебели. Барная стойка должна быть не только функциональной, выполняя возложенные на нее функции, но и соответствовать стилю комнаты, в которой монтируется, не выбиваясь из общего дизайна остальной мебели.
Низкая барная стойкаЧто учитывать при выборе размера стойки бара
Главный фактор, определяющий габариты будущей барной стойки — это размеры помещения и наличие свободного пространства. Как бы ни хотелось установить широкую длинную стойку с десятком посадочных мест, кухня в хрущевке в 6-9 квадратных метрах не позволит этого сделать.
Барная стойка на просторной кухне
 Второй ключевой фактор — назначение стойки.
 Если она станет в первую очередь предметом интерьера, необходимым для зонирования, иногда использующимся в качестве дополнительной рабочей поверхности, ее лучше сделать соразмерной по высоте кухонной столешнице или чуть выше. Если планируется заменить стойкой полноценный обеденный стол, важно учесть количество посадочных мест — на каждого человека придется выделить не менее 60 см длины. Если посадка планируется с двух сторон, придется учесть и комфортную для приема пищи ширину. К высоте у подобных стоек также особые требования. Если за стойкой будет обедать несколько человек, необходимо учесть и их рост: когда в доме есть дети, высокая столешница будет для них неудобна. Семьям, в которых есть люди в возрасте, стойки с высокими стульями тоже не подойдут — на них будет некомфортно забираться.
 Еще один важный фактор при расчете размеров барной стойки — это планировка кухни. Этот элемент интерьера отлично подходит для зонирования пространства, но важно помнить и о проходах — их ширина должна быть достаточной, чтобы комфортно проходить в рабочую зону, например, с подносами.
 
Стандартная высота и ширина барной стойки
Стандартные габариты барной стойки можно назвать очень условно: они могут значительно варьироваться в зависимости от модели кухонного гарнитура. Чаще всего встречаются отдельно стоящие стойки с высотой столешницы в 115 см — их можно назвать классическими. При этом бывают как более высокие, так и более низкие варианты. Если стойка объединена с гарнитуром, она может стать продолжением его столешницы или располагаться немного выше. Стандартная высота таких стоек — 85-90 см.
Встроенная барная стойка стандартной высотыПристенная барная стойка стандартной высоты
Стандартов ширины для барных стоек не существует — она варьируется от узких вариантов, начинающихся от 30 см и даже меньше, до широких, в 70 и более сантиметров.
Подбор высоты барной стойки
 Высота барной стойки может значительно варьироваться в зависимости от нескольких факторов.
 
- Рост владельцев кухни. Для людей ростом от 175 см отличным вариантом станет высокая стойка в 120 или даже 130 см. Для тех, чей рост меньше 160 см, более удобным станет вариант высотой до 110 см.
 - Назначение. Если барная стойка выполняет только прямую функцию, или используется как элемент интерьера и перегородка, зонирующая пространство, оптимальной высотой для нее станет от 110 до 130 см. Если стойка встроена в гарнитур и используется как дополнительная рабочая поверхность, ее следует делать более низкой, чтобы сделать удобной при готовке. В этом случае нормальная высота — 85-90 см. Если же стойка изначально задумана, чтобы заменить обеденный стол, ее можно сделать еще ниже, на уровне 75 см, чтобы обедать за ней было удобно.
 - Размеры помещения. Чем больше площадь комнаты, в которой установлена стойка, и чем выше в ней потолки, тем выше может быть стойка, используемая в качестве перегородки. В просторных кухнях-гостиных органично смотрятся варианты высотой до 130 см.

 
Барная стойка с функцией обеденной зоны
Невысокая встроенная барная стойка
Главный критерий выбора высоты барной стойки — это удобство ее эксплуатации, поэтому важно заранее определить, кто и каким образом будет ее использовать. После определения этих факторов, можно переходить к эстетической составляющей вопроса.
Небольшая пристенная барная стойкаПодбор ширины и длины барной стойки
Как и высота, длина и ширина барной стойки зависит от двух факторов: функционального и эстетического. Длина зависит в первую очередь от площади и планировки комнаты, а также от того, сколько человек будет размещаться за стойкой. Важно учесть, что для удобного использования столешницы, на одно посадочное место должно приходиться не менее 60 см длины. Максимальный размер стойки зависит только от планировки кухни — достаточно оставить свободными около 100 см для прохода к рабочему месту.
Короткая барная стойка
 Ширина стойки также зависит в первую очередь от ее назначения.
 Узкие стойки шириной от 30 см подходят в качестве перегородок и дополнительных рабочих поверхностей для кухни. Варианты от 40 до 60 см можно использовать в качестве обеденного стола с посадкой с одной стороны. Если же стойка будет использована как полноценная зона приема пищи с посадкой друг напротив друга, ее ширина должна достигать не менее 70-80 см.
Рекомендации по параметрам барной стойки для маленькой кухни (до 10 м2)
Маленькая кухня накладывает свои ограничения на габариты барной стойки: на ней не получится разместить длинные широкие варианты, вмещающие по 6 и более человек. Однако даже на небольшой кухне вполне можно разместить стильную и функциональную стойку.
 В большинстве случаев стойка на маленькой кухне совмещается с гарнитуром. В таких условиях она должна быть максимально функциональной, добавляя бесценные сантиметры рабочего пространства. Поэтому высота стойки на маленькой кухне чаще всего невелика: около 85-90 см, чтобы ее можно было использовать и как поверхность для готовки, и как место для перекусов.
 Если есть возможность, столешницу лучше сделать шириной около 40 см — за такой будет удобно обедать, сидя с одной стороны. При необходимости эту ширину снижают до 35 и даже 30 см, но в таком случае заменять ей обеденную зону будет крайне проблематично.
Минимальная длина миниатюрной барной стойки — 60 см. Именно столько места нужно для размещения за ней одного человека. Если необходимо создать посадочные места для двоих, понадобится не меньше 120 см.
Размеры барной стойки в студии или кухне-гостиной
 В объединенных планировках ключевая задача барной стойки — выступать в роли перегородки при зонировании пространства. При этом ее габариты зависят от размеров помещения. Чтобы эффективно и выраженно отделить рабочее место для готовки от жилой части комнаты, достаточно оставить метровый проход, заняв длинной стойкой все остальное пространство между двумя зонами. Чтобы выглядеть как полноценная перегородка, даже в небольших комнатах длина столешницы должна быть не менее 100 см.
 
Зонирование кухни-студии барной стойкой
Ширина и высота барной стойки в кухне-гостиной не имеют определяющего значения. Если она несет в себе в первую очередь функции элемента интерьера, ее габариты стоит соотносить с размерами помещения. Просторной кухне-гостиной отлично подойдет широкая стойка с высотой в 120-130 см, а небольшой студии — узкая столешница на одном уровне с гарнитуром.
Встроенная в гарнитур стойка в кухне-гостинойРазмеры барной стойки для большой кухни
 Чтобы соблюдать единый стиль, мебель должна соответствовать габаритам кухни. По этой причине, барные стойки в больших помещениях часто отличаются значительными габаритами. Высота в 120-130 см и ширина в 80 см — рядовые явления на просторных кухнях, например, в стиле лофт. В большинстве случаев в таких помещениях находится место и для достаточных габаритов зон готовки, и для полноценной обеденной зоны, из-за чего барную стойку для них не требуется делать низкой.
 
При этом владелец кухни может принять решение сделать стойку узкой и аккуратной: если столешница изначально не несет в себе функций обеденной зоны, ее внешний вид определяется исключительно общим стилем комнаты. Поэтому, если интерьер кухни изобилует грациозными тонкими линиями, стойку легко можно сделать соответствующей формы. Длина столешницы при этом не ограничивается ничем, кроме планировки помещения и пожеланий ее владельца.
Широкая барная стойка на большой кухнеБарная стойка на кухне с обеденной зоной
Островная барная стойка на просторной кухне
Как подобрать высоту барных стульев: высота, тип
 Классические стулья для барной стойки отличаются повышенной высотой, что позволяет комфортно сидеть за высокой столешницей. Однако разные стойки требуют в комплекте стульев различных габаритов: более высокие варианты нуждаются в сидениях с длинными ножками, а низкие модели, предназначенные для приема пищи, гармонично сочетаются с табуретами стандартной высоты.
 Соотношение габаритов таких мебельных комплектов можно проследить с помощью таблицы.
Стойка с барными стульями
Стойка с барными стульями
Барные табуреты в стиле лофт
Когда барная стойка используется как обеденный стол, специальные стулья к ней не требуются — вполне достаточно высоты стандартных обеденных стульев и табуретов. Идеальным решением для любой стойки станут стулья с регулируемой высотой — такую мебель легко вписать практически в каждый интерьер.
Невысокие барные стульяСтойка с барными табуретами
Регулируемые барные стулья
Заключение
Выбор параметров барной стойки зависит в первую очередь от ее функционального назначения, а также от общего стиля интерьера, роста и пожеланий владельцев. В зависимости от условий помещения, его можно оснастить как стандартной высокой стойкой, высотой около 115 см, так и более низким встроенным вариантом, выполняющим роль зоны разделки или обеденного стола.
Отдельно стоящая барная стойкастандартные габариты (6 примеров с фото)
Барная стойка уже стала привычным элементом современного домашнего интерьера кухни.
 Причем совсем не важно, в каком стиле он выполнен. А вот неясность в том, какой должна быть высота барной стойки от пола, до сих пор имеет место быть. Всё потому, что в традиционном представлении такой предмет заметно выше обычного обеденного стола.
В современной интерпретации барной стойкой можно назвать любую удлиненную столешницу, закрепленную на ножке или на широком, прямоугольном основании.
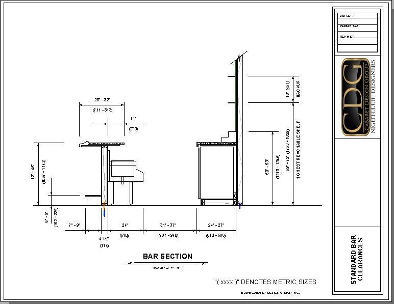
Стандартные размеры барной стойки на кухне следующие:
- ширина – 55 см;
 - длина ‑120 см;
 - высота – 105-115 см.
 
Ширина определяется исходя из здравого смысла: более узкая столешница просто не позволит комфортно себя чувствовать за приемом пищи.
Длина – параметр условный в современных условиях. Стойка может быть широкой, но короткой по длине. Такой вариант подойдет для 2-х человек, сидящих напротив друг друга. При этом минимальная рекомендуемая длина будет составлять 60 см, что оптимально для одного члена семьи.
Сегодня этот предмет интеьера выполняет более широкий набор функций, являясь в маленькой кухне еще обеденным столом, а в квартире-студии – элементом зонирования.
 Поэтому нет смысла строго соблюдать стандартные параметры. Ведь индивидуально подобранные габариты для каждого конкретного помещения – залог эргономики кухонного пространства.
Но! Есть определенные ориентиры в расчете оптимальной высоты. Зная и соблюдая их, легче подобрать стулья и сделать конструкцию удобной в использовании с учетом роста членов семьи.
От чего зависит высота, и как выбрать оптимальную?
Расстояние от пола определяется во многом типом конструкции. На кухне этот элемент может быть как отдельно стоящим, так и частью кухонного гарнитура. Вот несколько возможных вариантов устройства.
- Продолжение гарнитура (стойка-отросток).
 
В этом случае высота стойки будет определена расстоянием до столешницы кухонного гарнитура от пола.
Стандартно этот параметр равен 85 см (с небольшими отклонениями до 5 см в большую сторону) в случае, если поверхность имеет один уровень.
Возможен вариант с двухуровневой конструкцией.
Направление столешницы может быть любым.
В маленькой кухне 507 кв.м, например, для экономии пространства есть смысл задействовать подоконник.
Совет! Для маленькой кухни лучше выбрать барные стулья по типу табуретов, которые можно задвинуть под стойку и освободить место.
В кухне-гостиной или студии такая модель может поделить пространство на зоны. Здесь возможен угловой, линейный варианты планировки гарнитура или П-образный.
- Стойка-стров.
 
Островная планировка кухни– стильное и практичное решение для просторной кухни в частном доме, в студии или объединенной кухне-гостиной.
Высота стойки-острова здесь будет на уровне рабочей поверхности гарнитура или в два уровня.
Рабочая поверхность располагается на одном уровне с нижними шкафами гарнитура, столешница стойки поднимается выше.
С такой планировкой кухня еще более функциональна: остров служит и рабочей поверхностью, и обеденной зоной.
 С разных сторон могут быть ящики, полки для организации хранения.
- Отдельно стоящая.
 
Не всегда есть возможность сделать стойку монолитным продолжением кухонного гарнитура. Ведь в таких случаях нужно изготавливать мебель на заказ, что увеличивает бюджет на обустройство. Можно приобрести ее отдельно, подобрав подходящий к кухонной мебели дизайн.
Установить такой тип конструкции можно у стены, отделив тем самым рабочую часть кухонного помещения от столовой или гостиной. Тогда стойка будет выполнять функцию перегородки.
Высота барной стойки на кухне в таком случае может не зависеть от уровня столешницы гарнитура от пола, т.к. она выполняет только функции перегородки и обеденной зоны. Стандартная и минимально допустимая высота обеденного стола в виде стойки по ГОСТ 13025.3-85 ‑75 см от пола (что оптимально для человека среднего роста 1,65 м). Стулья для такой обеденный группы также будут стандартными.
 Можно сделать вариант в пределах 105-115 см. Тогда потреуется приобрести специальные высокие стулья.
- Стойка-подоконник или у окна.
 
Необязательно делать единую, цельную поверхность с подоконником. Более компактно и практично может выглядеть стойка-подоконник, не соединённая с рабочей поверхностью кухонного гарнитура.
Высота определяется уровнем подоконника.
Альтернатива – не трогать подоконник, установив выше столешницу на 20-30 см выше. Тогда необходимо будет лишь подобрать подходящие стулья.
Ниже два варианта организации барной стойки у окна: с демонтажем подоконника и без.
- Откидная мини-стойка.
 
Еще одно оптимальное решение для обустройства маленькой кухни.
Высота также соответствует габаритам обычного обеденного стола. По стандарту – 75 см.
- Двухуровневая.
 
Эту модель можно реализовать в любом из вышеперечисленных вариантов.
 Так можно разделить поверхность на обеденную и рабочую; сделать дизайн, максимально приближенный к традиционному, классическому оформлению такой конструкции, оформив кухню в стиле кафе или бара.
Высота верхнего уровня может определяться индивидуально, но в стандартных пределах — до 105-115 см. В этом случае не придется делать стулья на заказ. Нижний уровень соответствует высоте нижних шкафов от пола (85-90 см).
Как выбрать барные стулья?
В выборе стульев важное значение имеет параметр высоты сиденья от пола.
Разница между высотой стола и сиденья от пола не должна быть меньше в среднем 30 см (+/- 3 см).
В среднем можно ориентироваться на следующую таблицу соответствия высота столешницы и стульев.
| 
 Расстояние до столешницы от пола, см  | 
 Расстояние до сиденья стула от пола, см  | 
| 
 75  | 
 40-48  | 
| 
 85-90  | 
 55-63  | 
| 
 110  | 
 74-80  | 
| 
 115  | 
 80-88  | 
Для наглядности также можете обратиться к картинке ниже.
Выводы
Подведя итог вышесказанному, можно сделать один простой вывод: нет четких стандартов высоты барной стойки на кухню:
- минимальная – 75 см, что соответствует стандарту по ГОСТ.
 - максимально допустимая ‑ 115 см, что обусловлено также стандартом и эргономикой.
 
Расчёт точного параметра зависит от типа конструкции: является ли барная стойка отдельно стоящей или частью гарнитура. В первом случае разбег в выборе параметра может быть 75-115 см, т.к. вы не ограничены уровнем столешницы гарнитура.
Еще один важный момент: учитывайте выступ, если стойка будет иметь широкое гухое основание.
как выбрать высоту барной стойки, наглядные примеры, фото
Барная стойка, как новинка в стандартных интерьерах, все чаще присутствует в нашем доме, и удобство ее использования неоспоримо. В последнее время эта конструкция на кухне часто используется не только в больших помещениях частных домов и квартир, но и на небольших площадях.
В интерьере современных квартир и домов выбор кухни с барной стойкой – это важное функциональное и дизайнерское решение.
Основные параметры и стандартные размеры
Размеры барной стойки на кухне бывают стандартными или индивидуальными.
Многие эту деталь интерьера используют как обеденный стол в комнатах маленьких размеров при условии, что у вас небольшая семья, или вы живете один.
Барная стойка на кухне с успехом может использоваться не только для раздачи гостям алкогольных напитков, но и как альтернатива небольшому обеденному столу.
Стандартные размеры барных стоек на кухне варьируются в трех основных типах.
Пристенный тип, как наиболее распространенный вариант использования, который встречается на наших кухнях. Такой тип часто применяется для зонирования общей комнаты кухни и гостиной и для создания дополнительной зоны для перекусов.
- Стандартные размеры такой стойки: длина 120 см, ширина 55см, высота 105 см.
 -  Примыкающий тип, где стойка как бы дополняет площадь стола, продолжает поверхность кухонного гарнитура, и находится на одном уровне с рабочими поверхностями.
 Такие типы стоек используются в небольших кухнях и маленьких семьях, когда нет необходимости ставить отдельно обеденный стол.Размеры примыкающей стойки: длина 86 см, ширина 88см, высота 91 см.
 -  Стойка по типу острова – когда отдельно стоящие модели быть в комплекте кухонной мебели или как отдельная составляющая вашего интерьера.
Размеры острова: длина 110 см, ширина 120см, высота 130 см.
 
Если подойти к делу с умом, привлечь профессионалов дизайна и ремонта, то такая мебель позволит эффективно сэкономить массу пространства.
От чего зависит размер барной стойки
Разнообразие вариантов множество и выбрать подходящую для вашего интерьера модель достаточно сложно. Решение зависит от размера вашей комнаты и кухонного гарнитура, который уже установлен. Вы можете купить ее в комплекте с мебелью и как отдельный элемент интерьера или сделать на заказ необходимой для вас формы и размера.
Традиционно высота барной стойки составляет около 110-115 сантиметров, но некоторые хозяйки предпочитают использовать вариант, приближенный к высоте кухонного стола: 90-100 сантиметров.
Главная особенность барной конструкции и отличие ее от обеденного стола – это высота и ширина. Узкая ширина поверхности столешницы является оптимальным решением в эргономике пространства в маленьких помещениях, которые не редкость в наших домах. А какой высоты будет барная стойка на кухне, решать только вам. Главное при покупке – это необходимость выбора комплекта специальных стульев для удобного использования.
Домашняя конструкция часто укорачивается с целью обеспечения наибольшего комфорта использования, однако при этом теряется часть ее подлинной неповторимости.
Строгих стандартов в размерах нет, такую конструкцию необходимо выбирать индивидуально к каждой кухне, типу расположения гарнитура и дизайну, который необходим именно вам.
Преимущества и нестандартные решения
Стойка способна стать не только стильным элементом интерьера, но также сослужить хорошую службу — сэкономить площадь, повысить функционал помещения, сделать его более комфортным и динамичным.
Преимуществ использования этого предмета интерьера очень много, и вы можете использовать стойку в комнате любой площади и разными назначениями:
- обеденный стол или дополнительная рабочая зона для хозяйки при приготовлении обедов;
 - дополнительно место хранения кухонных принадлежностей, когда внутреннее пространство закрытого типа стойки заполняется полочками, и создается должный порядок на кухне;
 - место для размещения бытовой техники – вы можете поставить необходимую технику в свободное место под столешницей;
 - стойкой-островом разделяют помещение между кухней и гостиной;
 - многоступенчатые варианты помогут максимально эффективно использовать полезную площадь;
 - для экономии места в маленькой комнате при установке барной стойки часто используют подоконник.
 
В малогабаритных квартирах барная стойка становится закономерным дополнением кухонной столешницы.
Как правильно выбрать
При выборе модели многое зависит от типа и планировки на кухне и расположения гарнитура:
- угловое расположение мебели наиболее эффективно и функционально, при этом варианте стойка устанавливается на противоположной стене и используется как обычная обеденная зона – оптимальный вариант для длинных и узких помещений;
 - П-образное расположение гарнитура используется при квадратных кухнях, и барная стойка устанавливается посередине комнаты;
 - при линейной установке гарнитура стойка используется как зонирующий элемент в интерьере, которая разделяет рабочую и обеденную зоны.

 
Выбирая ту или иную модель, необходимо принимать во внимание немаловажные показатели: функционал, практичность и полезность конструкции.
Следует учесть, если у вас есть дети и пожилые люди в семье, то использовать ее в качестве обеденного стола будет неудобно и опасно из-за высоких стульев.
Виды и характеристики
Замечательным выбором становится консолидированная модель, у которой стойка объединена с мебельным гарнитуром.
Выбирая, определитесь, какой вид вам необходим:
- открытые, когда конструкция на консолях и опорах и крепится к полу и стене – такой вариант визуально расширяет пространство и придает комнате легкости;
 - закрытые типы более функциональны – с одной стороны вы используете ее как дополнительный стол, а с другой она оборудуется необходимыми полочками.
 
Классическая модель
Функциональные возможности такой мебели очень широкие: она помогает разделить квартиру-студию или гостиную на функциональные зоны.
Этот вариант обычно бывает закрытого типа и устанавливается на больших кухнях или общих площадях с гостиной. Такая стойка может входить в кухонный гарнитур и изготавливается в одном стиле или как отдельный элемент декора, который внесет в общий дизайн помещения яркий акцент. Это достаточно массивный элемент интерьера, и в маленькой комнате он будет смотреться неуместно.
Остров
Отличным выбором может стать консолидированная модель, где стойка соединена с гарнитуром.
Часто используют как дополнительный элемент дизайна, с помощью которого зонируют помещение. Такая конструкция изготавливается как открытого, так и закрытого типа. Открытый тип прекрасно подходит для маленькой комнаты, а закрытый для более больших площадей.
Комбинированные модели
Выбирая стойку для маленькой кухни, прежде всего нужно учитывать максимальную функциональность и компактность.
Отличный вариант, который в любом помещении будет выглядеть органично. Существует несколько моделей-трансформеров:
- складной и откидной варианты изготовления, как правило, используются как продолжение фасада кухонного гарнитура и, при необходимости, используются как небольшая обеденная зона.
 При складной модели место под столешницей используют для расположения бытовой техники; - выдвижной вариант, удобен как дополнительная рабочая поверхность и стол для легкого перекуса вдвоем;
 - поворотная, обычно устанавливается как двухуровневый вариант, когда основная столешница снабжена дополнительным выдвижным элементом, который при необходимости выдвигается и создается дополнительный стол на вашей кухне.
 
Двухуровневые модели
Современный рынок мебельной продукции предлагает множество разнообразных моделей.
Эти модели обычно используют как отдельно стоящие конструкции. Они многофункциональны и удобны. Нижний ярус столешницы находится на одной высоте с рабочими поверхностями, на которой можно установить мойку или варочную панель, внизу размещают встроенную бытовую технику. Верхний ярус используется по назначению и дополняется подставками и подвесками для бокалов и кружек, навесными полочками для мелких вещей, так необходимых на кухне.
Перегородка
Выбирая мебель, учитывают вкусовые потребности, тип конструкции, материал изготовления и размеры помещения.
 От того, какая высота барной стойки выбрана, в значительной мере будет зависеть удобство ее использования.
Такие конструктивные модели используют для общих помещений кухни и гостиной, при зонировании, когда стойка совмещает в себе рабочую зону для приготовления еды и создании отдельной зоны для посиделок с друзьями или легкого перекуса.
Нюансы определения высоты
Приемлемым вариантом является комбинированная барная стойка со столешницами, высота которых 115 и 90 см соответственно.
Выбирая типы стандартной высоты, которые могут быть удобны и комфортны для одних и неуютны для других людей, учитывайте несколько параметров:
- рост ваших домочадцев – при покупке посидите за стойкой и убедитесь, насколько она вам подходит;
 - предназначение, вид и функции, которые вы хотите, чтобы она выполняла;
 - высота потолка в помещении – при стандартной высоте выбирайте невысокие варианты, при больших площадях высота не должна превышать 135 см.
 
Мебель в кухне или гостиной должна создавать уютную и теплую атмосферу, быть удобной и безопасной в пользовании.
Примеры дизайнерских конструкций и форм
Дизайнеры разрабатывают и придумывают новые идеи, формы и совершенствуют конструкции для нашего удобства каждый год. Вы с легкостью выберете свой вариант, который подойдет к любому стилю оформления и типу помещения.
Комфортна в использовании и оригинальная в сооружении ступенчатая столешница с регулятором уровня высоты.
Материалы, из которых изготавливают барные стойки, разнообразны – это металл и стекло, пластик и дерево, натуральный или искусственный камень и даже кирпичное основание.
В функциональной стойке учтен каждый сантиметр, поэтому часто место под столешницей используют в качестве мини-бара, полок для посуды или кухонной техники.
Все будет выглядеть красиво и органично в сочетании с общим стилем вашей кухни:
- сочетание хромированной металлической опоры и столешницы из стекла прекрасно смотрится в стиле минимализма и классики;
 - камень придает экстравагантность и ощущение надежности;
 - дерево – естественный уют в стиле кантри и шале.

 
Выбираемая модель должна быть привлекательной и гармоничной, сочетаться с другими предметами и вписываться в общий дизайн. Нужно брать в учет и цену стойки, что часто является показателем прочности и качества.
Дополнительно оформите барную стойку оригинальной подсветкой, и она станет для вас любимым и уютным местом для принятия пищи или встречи с друзьями.
Выбор формы тоже будет нелегким решением, ведь стандартные прямоугольные и овальные линии уже не актуальны. Существует множество вариантов сложных дизайнерских форм, которые добавят в ваш дом оригинальности.
Чтобы кухонная мебель отличалась не только особым дизайном, а еще комфортностью и функциональностью, следует подойти правильно к выбору ее размеров, в частности высоты.
Полезные советы по выбору
Главное при выборе, обращайте особое внимание на качество используемых материалов, ведь в условиях кухни их придется часто чистить и мыть, а применение некачественных материалов при производстве могут быть опасны для здоровья и вряд ли долго вам прослужат.
Бесспорно, соблюдать общепринятые стандарты вовсе не обязательно, домашние барные конструкции, стулья, табуреты могут иметь любую другую высоту.
Деревянные модели очень органичны в любом стиле и комфортны, но натуральное дерево очень дорого стоит и не каждому по карману.
Мебельный рынок предлагает покупателям широкое разнообразие моделей, отличающихся типом, формой конструкции, цветом, материалом изготовления, ценой.
Бюджетный вариант – это ламинированный ДСП с металлическим ободком по столешнице, который не разочарует в процессе использования.
Стойка, покупаемая вместе с кухонным гарнитуром, имеет габариты, которые соответствуют высоте остальных предметов мебели.
При выборе стеклянной столешницы убедитесь, что стекло закаленное, иначе травм не избежать.
Подобного рода сочетания очень практичны в применении, они смотрятся со стороны современно и стильно.
Фасады кухонного гарнитура и столешницы должны гармонировать и быть выполнены из одинакового материала и соответствовать общему стилю кухни.
Современные производители кухонной мебели предлагают отечественному покупателю модели с возможностью регулирования высоты.
Выбирайте и сочетайте барную стойку с любой мебелью в вашем доме. Разнообразие дизайнерских решений и идей вам помогут наслаждаться комфортом и уютом в доме.
Видео: что следует учесть для монтажа кухни с барной стойкой
Галерея фото: барная стойка в интерьере кухни
Высота, длина, ширина и другие размеры барной стойки на кухне
Популярные в последнее время барные стойки появились в домах наших сограждан относительно недавно. Модное западное веяние получило широкое распространение, уважение за функциональность, возможность экономии пространства, свежесть, оригинальность идеи оформления.
 Подобная модель организации пространства прижилась не только в просторных загородных домах, но и в малогабаритных городских квартирах.
Содержание:
- Преимущества нестандартного решения
 - Основные разновидности
 - Как определиться с размерами?
 - Высота
 - Длина
 - Ширина
 - Высота барных стульев
 - Соответствие габаритам помещения
 - Заключение
 - Видео: расширяем пространство кухни за счет барной стойки
 
Сама барная стойка за годы существования в жилых помещениях значительно модифицировалась. Теперь это не суровая каменная плита, укрывающая от пьяных дебошей, а стильная деталь интерьера, заменяющая обеденный стол, разделительную стену, существенно дополняющая функциональность помещения. Вместе с «одомашниванием» предмета произошло изменение «технических» характеристик, внешнего вида.
Высота барной стойки на кухне, её габариты зависят от предназначения предмета, площади комнаты, интерьера. Подобрать подходящую модель не всегда просто, учитывая разнообразие вариантов.
На данный момент существует несколько десятков различных вариаций, которые подойдут для любого помещения
Преимущества нестандартного решения
Когда барная стойка только перекочевала в дома обычных граждан, она выполняла лишь основную функцию — обеспечение места проведения увеселительных мероприятий. Хозяин «бара» ловко орудовал бутылками, бокалами. Гости, расположившись на возвышении, наслаждались напитками, непринуждённым общением, весёлой атмосферой питейного заведения в домашней обстановке.
Несколько позже обладатели «весёлых уголков» в ритме повседневной жизни заметили как удобно пользоваться стойками для быстрого завтрака, перекуса. Дети ликовали возможности необычной трапезы. Хозяйки радовались отсутствию необходимости утомительной сервировки стола.
Стандартные размеры барной стойки позволяют предмету с лёгкостью заменить классический кухонный стол. При этом функциональность получается обширной. Предмет служит поверхностью для приготовления еды, местом для принятия пищи, посиделок в одиночестве или в составе дружной компании, расширяет возможности системы хранения.
Конфигурации допускают создание нестандартных интерьеров. Предмет позволяет расширить функциональность комнаты. Различные размеры барной стойки на кухне способствуют решению большинства проблем, характерных для этого помещения.
Изготовление нестандартной стойки позволит разнообразить и сделать уникальным интерьер кухни
Основные разновидности
В зависимости от функциональности, места расположения стойки выделяют:
- пристенные;
 - примыкающие к кухонной мебели;
 - отдельно стоящие.
 
Пристенное размещение типично для небольших пространств. В этой ситуации размеры столешницы часто уменьшают. Узкий край закрепляют к стене, длинный располагают таким образом, чтобы подход к предмету не ограничивался.
Подобный вариант нередко используют для разделения комнаты на зоны. Применение в интерьере кухни-гостиной наиболее характерно. Использование барной стойки для зонирования предполагает совмещение в едином предмете большинства возможных функций.
Варианты, примыкающие к кухонной мебели, часто продолжают основную столешницу. Один узкий край закрепляется к гарнитуру, второй поддерживается опорой. Модели часто снабжаются функциональным карнизом, содержащим подсветку, фурнитуру для посуды, декоративные элементы. В этом случае высота у стойки незначительная. Предметы дополняют друг друга, составляют единую группу.
Отдельно стоящие модели характерны для больших помещений. Возможно использование для кухни, совмещённой с гостиной. Стойка может выполнять роль острова. Аналогичные модели существенно расширяют функциональность комнаты.
Отдельно-стоящий вариант — наиболее удобный формат размещения
Как определиться с размерами?
Получить индивидуальный предмет на заказ или выполнить его своими руками не составит труда. Поэтому барная стойка может быть абсолютно любых габаритов, удачно вписывающихся в конкретный интерьер. В любом случае соответствие стандартам поможет избежать проблем с эргономикой, подбором стульев.
Классическая модель, имеющая наибольшее распространение, соответствует размерам 120х55х105 см (длина–ширина–высота). Параметры отвечают минимально допустимым нормам, позволяют предмету удачно вписываться в большинство помещений.
Для моделей, совмещённых с гарнитуром, характерны параметры 86х88х91 см. Это обусловлено стандартными габаритами кухонной мебели. Такой вариант типичен маленьким кухням, помещениям, уже содержащим стандартный набор мебели.
Габариты отдельно стоящей модели чаще всего соответствуют значениям: 110х120х130 см. Подобная модификация подойдёт крупным помещениям. Размеры идеальны для удобства использования, но не универсальны.
Особенности расчётаПри выборе индивидуальных параметров следует руководствоваться особенностями помещения, членов семьи. Стандартная высота барной стойки на кухне не всегда удобна низкорослым, длина — тучным.
При подготовке проекта, тщательно продумайте необходимый функционал и учтите потребности всех членов семьи, которые будут частыми пользователями гарнитура
Высота
Диапазон высоты изделия обычно колеблется в пределах 86–130 см.
 Зависит значение параметра от типа стойки, места расположения, выполняемых функций. Более низкая столешница пригоднее для различных вариантов использования: в качестве дополнительной рабочей поверхности, стандартного стола. Подобная модель предпочтительна для семей с малолетними, пожилыми членами семьи.
Когда стойка является частью основной рабочей поверхности, стоит знать какая высота у гарнитура, ведь габариты будут равны. Обычно параметр находится в диапазоне 86–90 см. Вариант является оптимальным, подходит в большинстве случаев. В кухне с подобной разновидностью легче выполнить согласованный интерьер.
Стандартная высота барной стойки на кухне, соединённой с гостиной, несколько выше за счёт того, что приходится выполнять функцию перегородки. Величина редко бывает ниже 100 см. Предмет, осуществляющий роль разделителя пространства, зачастую выполняется разноуровневый. Сторона, обращённая к кухне, повторяет параметры гарнитурной мебели.
Другая часть, смотрящая в гостиную, достигает 130 см.
 В этом случае со стороны комнаты целесообразно дополнить стойку высокими барными стульями.
Высота — один из важных факторов которому нужно уделить внимание при проектировании гарнитура
Длина
Длина изделия допускается абсолютна любая. Главное, чтобы предмет помещался в комнате, не создавал препятствий, гармонично вписывался в интерьер.
При расчёте этого параметра не стоит забывать, что норма на 1 человека равна 60 см. Учесть следует габариты членов семьи. Тучным людям сложно с комфортом разместиться на стеснённом пространстве, поэтому норматив следует адаптировать под конкретную ситуацию.
Подбирая длину, необходимо учесть сколько человек одновременно собирается за столом. Здесь немаловажным аспектом становится ширина изделия. Поэтому окончательный выбор зависит от совокупности величин.
Ширина
Ширина барной стойки на кухне зависит от функций, выполняемых предметом. Если предполагается получить исключительно замену обеденному столу, то 55 см достаточно.
При использовании стойки в качестве рабочей поверхности параметр желательно увеличить. Для обустройства малогабаритных кухонь допустимо соответствие ширины 30 см. Величины достаточно для минимального удобства. Уменьшать ещё больше — нецелесообразно.
При выборе ширины стоит помнить, что стандартная сервировка стола не получится. Заменяя полноценную обеденную группу барной стойкой, необходимо иметь адаптированные представления о приёме пищи.
При расчете необходимых размеров длины и ширины необходимо учитывать, какое максимальное количество человек будет проводить время за столом одновременно
Высота барных стульев
Учитывая высоту стойки, следует выбирать соответствующие стулья. Они должны быть устойчивые, а сиденья позволять удобно располагаться. Разница между высотой столешницы и стула допустима в пределах 30 см. Наиболее популярными моделями в продаже считают 75–85 см.
Для экономии пространства от стандартных барных стульев часто отказываются. Взамен им приобретают высокие табуреты, способные поместиться в пространстве под столешницей.
 При этом наиболее удачными считаются устойчивые пластиковые модели.
Высота барных стульев «подгоняется» к основным параметрам проекта гарнитура
Соответствие габаритам помещения
При выборе мебели в просторное помещение потребность в экономии пространства отпадает. Требуется руководствоваться особенностями создаваемого интерьера, личными предпочтениями. Здесь предмет не является заменой стандартной обеденной группе, а лишь дополняет имеющуюся обстановку.
Выбор параметров зависит от частоты, особенностей использования «стола». Если стойка требуется для нечастых перекусов, размещения одиночных гостей, то крупногабаритная модель станет излишней.
Для динамичной семьи, собирающей большое число гостей в кухне-гостиной, подойдёт массивный предмет, способный поддержать атмосферу праздника, разместить желающих передохнуть.
Скромные габариты помещения диктуют другой подход. Здесь важно с пользой задействовать каждый уголок свободной площади. Предмет часто заменяет полноценный стол.
 Задумываясь о расположении мебели, не стоит забывать об эргономике. Рабочий треугольник (мойка, плита, холодильник) перекрываться не должен.
Совет
Неплохим выбором станет консолидированный вариант (соединённый с гарнитуром). Универсальные габариты удобны для использования, расположения в пространстве. Стойка не перекроет остальные предметы. Значительно повысится функциональность помещения.
Для крайне ограниченных пространств стоит продумать возможность расположения стойки, соединённой с подоконником. Этот вариант станет идеальным выбором, расширяющим возможности кухни. Ширина поверхности за счёт площади подоконника значительно увеличивается. Стойка не занимает полезное пространство в основной части кухни.
Подобрав в комплект табуреты, полностью задвигающиеся под столешницу, получится ещё больше разгрузить пространство.
Особое внимание при оборудовании маленькой кухни следует обращать на дизайн мебели. Предметы допустимы облегчённые, выполненные из материалов, способствующих зрительному расширению пространства.
 Для стойки желательно подбирать «невесомые» хромированные опоры. Чрезмерно не загружать верхнюю часть системами хранения. Барные стулья желательны прозрачные.
Немаловажным является то, как стойка впишется в интерьер и будет соответствовать общей концепции
Заключение
Собираясь оборудовать свою кухню барной стойкой, следует детально продумать возможные способы размещения этого предмета. Эстетика интерьера, удобство использования пространства всецело зависят от габаритов мебели. Подбирать варианты необходимо руководствуясь размерами помещения, принципами эргономики, функциональностью обстановки.
Видео: расширяем пространство кухни за счет барной стойки
Рекомендуем почитать:
Размеры стоек для серверов: понимание различий
 При сборке сервера выбор между различными вариантами монтажа может быть пугающим.
 Существует множество размеров серверных стоек, подходящих для всех способов использования серверов людьми. К сожалению, это не так просто, как определение размера дома, малого бизнеса и центра обработки данных в малом, среднем и крупном формате.
Понимание всего лишь нескольких параметров позволит вам быстро совершить покупку с умом. Если вы знаете глубину, высоту и ширину, которые требуются вашему серверу и аксессуарам, вы можете совершить покупку, которую вам не нужно будет возвращать. Второстепенные факторы, такие как тепловые требования и безопасность, хорошо учитывать заранее, но ими можно управлять больше, чем самой стойкой.
Высота серверной стойки — один из наиболее популярных способов классификации стойки. Люди часто маркируют свою стойку по ее конкретной высоте, например, «серверные стойки 42U» или, что гораздо более неформально, «7-футовые стойки».
 «U» в «42U» означает «единицы стойки» или «U-пространства», которые равны 1,75 дюйма.
 Если вы инвестируете в стойки центра обработки данных, стандартная высота составляет 48U («7-футовая стойка») или, в некоторых случаях, 42U. Причина, по которой он стал «стандартным», заключается в том, что он достаточно велик, чтобы оставить место для роста, и достаточно мал, чтобы легко получить доступ к оборудованию. Что касается корпусов стоек, вы также можете встретить стойки 22U и 27U. В индустрии центров обработки данных вы бы считали это стандартной «полустойкой».
Многие люди, занимающиеся стоечной инфраструктурой, строят нестандартные размеры. Особенно это касается стеллажей с открытой рамой. Благодаря меньшему весу и универсальности стойки с открытой рамой могут достигать высоты до 70U. При этом они могут быть размером всего 5U. Корпуса серверных стоек, с другой стороны, могут быть нестандартными 18U или 37U. Не существует установленных стандартных размеров серверной стойки и стандартного размера стойки.
Глубина серверной стойки Изображение глубины стойки В отличие от высоты, глубина серверной стойки   обычно измеряется в дюймах и имеет гораздо меньше различий в размерах.
 Стойки для серверов могут иметь глубину от 0 до 50 дюймов, но обычно встречаются на глубине 24 и 48 дюймов. 24-дюймовая стойка идеально подходит для размещения сетевого оборудования, аудио- и видеооборудования, патч-панелей и т. д. Циско. Любая глубина больше этой может либо вместить более крупное оборудование, либо предоставить дополнительное пространство для укладки кабелей и других аксессуаров. Даже если у вас стойка большой глубины, направляющие с регулируемой монтажной глубиной помогут идеально разместить более короткий сервер.
 Наиболее распространенная стандартная ширина стойки   составляет 19 дюймов. Большая часть стоечного оборудования, особенно серверов, имеет монтажную ширину 19 дюймов, измеренную от одного отверстия до другого. Таким образом, ширина стойки должна быть 19 дюймов, чтобы соответствовать этой технологии. 
 Сегодня многие стойки имеют внешнюю ширину 24 дюйма.
 24-дюймовая внешняя ширина хорошо подходит для индустрии центров обработки данных благодаря стандартной 48-дюймовой панели пола. Панели пола центра обработки данных обычно имеют размер 24 x 24 дюйма. Таким образом, стандартная стойка глубиной 48 дюймов и шириной 24 дюйма значительно упрощает согласование стоек с доступной площадью пола. Стойка глубиной 24 дюйма также упрощает работу, поскольку занимает ровно одну панель.
Существует множество стоек с монтажной шириной 19 дюймов и внешней шириной 24 дюйма. Это позволяет оставить место на краю для прокладки кабелей, установки блоков распределения питания или оборудования для мониторинга, а также оптимизировать занимаемую площадь.
Стойки с 2 опорами и стойки с 4 опорамиПоследний элемент, который необходимо учитывать при выборе размеров серверных стоек, — это тип стойки. Стойки с 2 и 4 опорами имеют внутреннюю разницу в глубине.
 Стойка с 2 опорами состоит из двух вертикальных вертикальных опорных балок, а стойка с 4 опорами состоит из четырех балок.
 Ограничения по глубине установки двухопорной стойки зависят от конструкции, а не от другого набора стоек, мешающих друг другу. Тем не менее, в большинстве случаев стойки с двумя опорами лучше всего подходят для более легкой техники или аксессуаров, которые требуют меньшей глубины. Сюда входят коммутаторы, коммутационные панели, маршрутизаторы и телекоммуникационное оборудование.
Стойки с 4 опорами, с другой стороны, могут выдерживать гораздо больший вес, чем стойки с 2 опорами, поскольку рельсы и полки соединяются на всех 4 опорах. С одной стороны, это требует большей монтажной глубины, чем стойки с двумя опорами, но это компенсируется прочностью.
 Несмотря на то, что двухопорные стойки имеют строгие ограничения по глубине и весу, они могут быть такими же высокими, как стандартная стойка центра обработки данных. Двухстоечные «полустойки» имеют высоту около 24U, а полноразмерные стойки — около 45U в высоту. Другая причина, по которой они могут быть немного выше, чем ожидалось, заключается в том, что некоторые стойки с 2 опорами можно преобразовать в стойку с 4 опорами.
 С помощью комплекта роликов 2-опорный можно легко заменить на 4-опорный.
Теперь, когда мы рассмотрели все различные элементы, из которых состоит размер вашей серверной стойки, вы должны обдумать общую настройку и планы установки.
Если вы устанавливаете стойку для домашней или офисной установки с ограниченным количеством оборудования, вам может подойти половина стойки или меньше. Если у вас нет очень маленького оборудования, вам следует использовать 4-опорную стойку, поскольку они предназначены для установки спереди и сзади. Кроме того, установка в запираемой закрытой серверной стойке защитит ваше оборудование от несанкционированного доступа. Это рекомендуется, если вы не держите оборудование в запертой комнате.
 Возможно, вы готовитесь к установке стойки в серверной  или в центре обработки данных  . Лучше всего переоценить, сколько места вам нужно, если ваш бизнес растет и нуждается в изменениях.
 В настоящее время пустое пространство можно заполнить глухими панелями, чтобы обеспечить надлежащий поток воздуха. Центры обработки данных должны уделять больше внимания занимаемой площади. Если вы найдете серверные стойки, которые соответствуют определенным размерам ваших панелей пола, это значительно упростит процесс организации и установки.
Независимо от того, какой размер стойки вы считаете подходящим для себя, всегда в первую очередь учитывайте компоновку и ограничения.
Краткий обзор
Конвертер стоек: Преобразование U-образной высоты стойки
При установке 19-дюймового стоечного шкафа или корпуса важно определить, сколько места в стойке требуется для вашего оборудования. Рассчитав стойки, вы можете убедиться, что размеры вашего сетевого оборудования поместятся внутри серверной стойки. Людям, которым нужны точные измерения, конвертер стоечных единиц поможет перевести стойки в дюймы/футы/сантиметры.
 Стойка — это стандартный термин EIA для измерения общей высоты серверной стойки.
 Расстояние между отверстиями для стандартных 19-дюймовых стоек EIA на монтажном фланце определяется группами по три отверстия. Эта группа из трех отверстий известна как блок стойки (RU) или «U».
Одна стойка (1U) занимает 1,75 дюйма (44,45 мм) вертикального пространства. Эта единица измерения используется для стоек, серверов, направляющих, полок и многого другого. Производители оборудования для монтажа в стойку разрабатывают свою продукцию в зависимости от того, сколько RU занимает оборудование в серверной стойке, которая указывается как 1U, 2U, 3U и т. д.
Расстояние между стойками На изображении ниже вы можете видеть, что 1U равен 1,75 дюйма с группой из трех отверстий. Эти отверстия расположены вертикально и используются для крепления оборудования к стойке. Общая единица стойки измеряется от середины верхнего отверстия стойки предыдущего пространства U до верхнего отверстия текущего пространства U.
 Несмотря на то, что расстояние между отверстиями составляет 0,625 дюйма, оставшиеся 0,5 дюйма приходится на расстояние между нижним и верхним отверстиями RU.
Сетка для переоборудования стоек имеет различные размеры для стоек высотой от 1U до 48U. Каждая единица стойки конвертируется в дюймы, футы и сантиметры. При использовании преобразования единиц измерения важно знать, что единицы измерения в стойке считаются максимальными размерами для оборудования, устанавливаемого в стойку. В некоторых случаях габариты оборудования могут быть меньше указанных RU. Стоечный сервер (например, HPE Proliant DL120 Gen 9) может быть указан как 1U, но фактическая высота составляет 1,69 дюйма. Если высота не превышает 1,75”, то сервер все равно считается 1U.
Сетчатая сетка.
 25″
 25″
 25″
 25″          Соображения при выборе стойки по высоте : При выборе высоты вашей серверной стойки вы должны иметь в виду как внешнюю высоту шкафа, так и количество «U» (единиц стойки) оборудования, монтируемого в стойку, которое вам нужно. вписаться в него. 1U (одна стойка) равна 1,75 «на высоте монтажа. Другие высоты и изучение больше                     Соображения при выборе стойки по глубине самая глубокая часть оборудования, которую вы будете размещать в стойке; а затем добавьте пару дополнительных дюймов для пространства для прокладки кабелей и шнуров питания. Другая глубина и дополнительная информация После того, как вы выберете нужную вам высоту стойки выше, вы сможете выбрать глубину вашей серверной стойки и производителя серверной стойки, а также настроить вашу стойку в соответствии с вашими конкретными требованиями. Внешняя высота : Чрезвычайно важно определить правильную высоту стойки. Вы должны учитывать не только свои текущие и будущие потребности в пространстве внутри стойки, но и обязательно предусмотреть достаточно места для зазора между потолком и любых кабелей или требований к площадке, а также любые ограничения дока или грузового лифта, которые у вас могут быть.   Стойки  : За исключением некоторого устаревшего оборудования, мониторов и клавиатур, большая часть продаваемого сегодня серверного и сетевого оборудования предназначена для монтажа в стойку.   42U Стойки:  Стойки для серверов высотой 42U — наиболее распространенная высота стоек, продаваемых для центров обработки данных. 42U = 42 стойки на монтажных направляющих = доступное пространство для монтажа в стойку 73,5 дюйма. Обратите внимание, что фактическая внутренняя и внешняя высота зависит от производителя стойки. , для ваших нужд лучше всего подойдет более специализированная стойка меньшего размера.Хотя интуитивно кажется, что стойка меньшего размера будет дешевле из-за меньшего количества используемой стали, стойки высотой 42U производятся серийно и поэтому обычно имеют гораздо меньше себестоимость производства.Ниже приведены ссылки на доступные стеллажи другой высоты. 
  После того, как вы выберете глубину, которая соответствует вашим потребностям, вы можете выбрать высоту, производителя, а затем настроить серверную стойку в соответствии с вашими конкретными требованиями. Фактическая глубина стойки : Размеры, показанные выше, представляют собой фактическую внешнюю глубину серверных стоек, измеренную от передней части стойки до задней. Полезная глубина стойки : Хотя большинство направляющих для монтажа в стойку полностью регулируемые, все серверные стойки должны оставлять небольшое пространство (7/8 дюйма) спереди и сзади для установки направляющих и дверей. чтобы открыть. Поэтому при расчете требуемой глубины помните, что полезная глубина будет на 1 3/4 дюйма меньше, чем фактическая глубина. Например, серверная стойка глубиной 30 дюймов будет иметь 28 1/4 дюйма полезного пространства «от рельса к рельсу». 
 
  Сравнение серверных стоек может оказаться непростой задачей. Даже сравнение стеллажей с одинаковыми размерами похоже на сравнение яблок с апельсинами. В дополнение к вашим требованиям к размерам, пожалуйста, также примите во внимание возможности и варианты охлаждения стойки, совместимость, грузоподъемность, варианты прокладки кабелей, аксессуары для стойки, монтаж на направляющих и общую расширяемость стойки. 
  | ||||||||||||||||||||
Размеры и размеры серверной стойки: глубина, ширина и высота
Технический блог / ИТ-инфраструктура / Серверные шкафы серии DC / Стойки и шкафы / Стойка для ИТ-сервера / Изучение размеров и размеров серверных стоек: глубина, ширина и высота
 Стойки для серверов имеют «стандартные» размеры, чтобы обеспечить единообразную компоновку в центре обработки данных.
 С другой стороны, размеры ИТ-оборудования могут существенно различаться. Хотя многие производители предлагают компактные стоечные серверы, более мощные системы могут оказаться слишком глубокими, чтобы поместиться в старые стойки. Кроме того, современное оборудование часто требует большего количества кабелей, которые должны размещаться внутри шкафа.
Внутренняя планировка серверной стойки — еще одна переменная. Некоторые шкафы имеют больше полезного пространства, чем другие, даже при одинаковой площади. Стойки для серверов следует выбирать тщательно, чтобы избежать непредвиденных проблем с развертыванием.
Общие сведения о размерах стоек для серверов
 Стойки для серверов обычно обозначаются по высоте, измеряемой в «единицах стойки» или «нас». Стандартная стойка имеет высоту 1,75 дюйма (44,45 мм), поэтому высота стойки 42U составляет 73,6 дюйма (1866,90 мм). Оборудование центра обработки данных также указано в стоечных единицах — сервер 2U займет 3,5 дюйма (88,90 мм) пространства.
Стандартные размеры стоек для серверов
Самые популярные размеры современных серверных стоек и шкафов: ширина 24 дюйма (600 мм), глубина 42 дюйма (1066,80 мм) и высота 73,6 дюйма (1866,9 мм).0 мм) в высоту. Эти размеры подходят для большинства ИТ-оборудования и обычно могут выдерживать нагрузки от 1 до 3 кВт на стойку. Однако плотность центров обработки данных увеличивается, технологии становятся все более мощными, а ИТ-среды часто имеют различные форм-факторы ИТ-оборудования. Самый популярный размер серверной стойки может быть не лучшим выбором для каждого варианта использования. Ниже мы рассмотрим некоторые из наиболее распространенных размеров серверных стоек (высота, ширина и глубина).
Высота серверной стойки
 Исторически сложилось так, что 42U является стандартной высотой серверной стойки, поскольку она достаточно высока для размещения всего необходимого ИТ-оборудования, но достаточно мала, чтобы пройти через стандартные дверные проемы грузовиков, входы в здания и лифты.
 Они вряд ли помешают работе потолочных спринклерных систем, а добраться до всех позиций стеллажей можно без стремянки. Тем не менее, более высокие стойки высотой до 60U максимизируют доступное вертикальное пространство при той же занимаемой площади, если центр обработки данных может их разместить.
Ширина серверной стойки
 Стандартная ширина серверной стойки составляет 19 дюймов. Большинство оборудования центров обработки данных разработано в соответствии с этим стандартом. 19 дюймов представляет собой полезное пространство для монтажа оборудования (внутренняя ширина). Внешняя ширина составляет 24 дюйма (600 мм), что соответствует традиционной плитке размером 24 на 24 дюйма в фальшполе центра обработки данных. Также доступны серверные стойки шириной 29,5 дюйма (750 мм) и 31,5 дюйма (800 мм). Более широкие стойки занимают больше места, но предоставляют больше места для прокладки кабелей и распределения питания. Они также поддерживают более крупное оборудование, например блейд-серверы, конвергентную инфраструктуру и сетевое оборудование высокой плотности, а также оборудование с параллельным охлаждением.
 В предыдущем сообщении блога мы обсуждали переменные, которые следует учитывать при выборе стандарта 19ширина стойки.
Глубина серверной стойки
По мере того как конструкция центров обработки данных становилась все более плотной, многие производители начали предлагать серверные стойки глубиной 36 дюймов (914,40 мм). Это популяризировало дизайн центра обработки данных «семь плиток» с проходами шириной 24 дюйма и длиной 14 футов. Центры обработки данных по-прежнему используют серверные стойки глубиной 36 дюймов, но они также используют более глубокие стойки для размещения более глубокого оборудования.
Загадка глубины серверной стойки
 Проблема заключается в том, что многие из современных более мощных серверов слишком глубоки, чтобы поместиться в пределах 36 дюймов. Даже если сервер влезет в доступную глубину серверной стойки, может не хватить места для PDU и укладки кабелей. Шнуры питания с низким профилем могут освободить место, но их необходимо приобретать у стороннего поставщика.
Также важно помнить, что обозначение 36 дюймов представляет собой внешнюю глубину серверной стойки. Внутреннее пространство, очевидно, будет меньше — потенциально гораздо меньше, в зависимости от дизайна корпуса. Самое важное — это расстояние от передней монтажной рейки до PDU. Если сервер поместится в этом пространстве, останется достаточно места для PDU и кабелей, не препятствуя воздушному потоку и не мешая обслуживанию.
Стойка для серверов с наружной глубиной 48 дюймов (1215 мм) подходит для двухэтажных плиток, но при этом обеспечивает достаточно места для более крупных серверов. Более глубокие стойки 59дюймы (1500 мм) доступны, но они дороже и уменьшают доступное пространство стойки в центре обработки данных. Мы также наблюдаем внедрение стоек глубиной 42 или 43 дюйма.
Есть много вариантов глубины, но решение простое. Вам нужна стойка, достаточно глубокая, чтобы эффективно разместить все оборудование и эффективно использовать имеющуюся площадь.
Серверные шкафы Enconnex серии DC
 Шкафы Enconnex серии DC 48U имеют размеры 88,85 дюймов (2257 мм) на 19дюймов (600 мм) на 48 дюймов (1215 мм), что позволяет руководителям центров обработки данных максимизировать доступное пространство при размещении более крупного оборудования.
 Расстояние от передней монтажной рейки до PDU составляет 38,58 дюйма (980 мм), что позволяет разместить более длинные серверы в 48-дюймовой стойке.
Кроме того, монтажные направляющие PDU находятся заподлицо с боковыми панелями, поэтому они не мешают доступу для обслуживания сервера. Пространство между направляющими и боковыми панелями герметизировано, что предотвращает потерю потока кондиционированного воздуха и рециркуляцию отработанного воздуха по бокам шкафа.
Компания Enconnex понимает потребности центров обработки данных с высокой плотностью размещения и объектов колокации и разработала шкафы серии DC для упрощения установки и эксплуатации. Наши стойки включают в себя все функции, обычно требуемые ведущими центрами обработки данных, в экономичном блоке с короткими сроками поставки. Позвольте нам показать вам, как серверные шкафы серии DC могут поддержать все ваши ИТ-инициативы.
Стандарты стоек для центров обработки данных — решения Silverback для центров обработки данных
 При рассмотрении миграции центра обработки данных важно учитывать все переносимые компоненты.
 Здесь мы подробно рассмотрим серверные стойки.
19-дюймовая стойка
19-дюймовая стойка представляет собой стандартную раму или корпус для установки нескольких модулей оборудования. Каждый модуль имеет переднюю панель шириной 19 дюймов (480 мм) с краями или ушками, выступающими с каждой стороны, которые позволяют прикрепить модуль к раме стойки с помощью винтов.
Обзор и история
 Оборудование, предназначенное для размещения в стойке, обычно описывается как монтируемое в стойку, прибор для монтажа в стойку, система, монтируемая в стойку, шасси для монтажа в стойку, субстойка, монтируемая в стойку или иногда просто полка. Высота электронных модулей также стандартизирована как кратная 1,75 дюйма (44,45 мм) или одной единице стойки или «U». Большинство стоек продаются в форме 42U: то есть одна стойка, способная вместить сорок два устройства 1U или любое сочетание стоек высотой 1U, 2U, 3U или другой высоты, что в сумме дает 42 или меньше. Из-за своего происхождения как системы крепления для реле железнодорожной сигнализации их до сих пор иногда называют релейными стойками, но 19-дюймовый формат стойки остался неизменным, а технология, которая в ней монтируется, изменилась на совершенно другие области.
 Стандартное расположение стоек 19 дюймов (480 мм) широко используется в телекоммуникациях, вычислительной технике, аудио, развлечениях и других отраслях, хотя 23-дюймовый стандарт Western Electric с отверстиями на 1-дюймовых (25 мм) центрах преобладает в телекоммуникации.
19-дюймовые стойки широко используются для компьютерного серверного оборудования, что позволяет использовать плотные аппаратные конфигурации, не занимая лишнего места на полу и не требуя стеллажей.
Обычно устанавливаемое оборудование имеет высоту передней панели на 1/32 дюйма (0,031″) меньше выделенного количества Us. Таким образом, стоечный компьютер высотой 1U имеет высоту не 1,75 дюйма (44 мм), а 1,719 дюйма (43,7 мм). 2U будет 3,469 дюйма (88,1 мм) вместо 3,5 дюйма (89 мм). Этот зазор оставляет немного места над и под установленным оборудованием, поэтому его можно снять без привязки к соседнему оборудованию.
Монтаж оборудования
Крепление
 Первоначально в монтажные отверстия вставлялась резьба определенного типа.
 Это все еще часто используется в некоторых государственных и военных приложениях, часто в сочетании с направляющими для простоты обслуживания. Однако это больше не характерно для часто заменяемых серверных стоек из-за возможности повреждения резьбы или заедания и обрыва болта, что делает монтажное отверстие непригодным для использования. Стойки с резьбовыми отверстиями по-прежнему используются для аппаратного обеспечения, которое редко меняется, такого как телефонные или сетевые кабельные панели и релейные стойки.
 Стойки с резьбовыми отверстиями были впервые заменены стеллажами с зазорами. Отверстия достаточно большие, чтобы можно было свободно вставить болт без заедания, а болты крепятся на месте с помощью закладных гаек. Закладная гайка состоит из клетки из пружинной стали, предназначенной для защелкивания в открытом монтажном отверстии, внутри которого находится накидная гайка. В случае срыва гайки или поломки болта гайку можно легко снять и заменить новой. Производство стоек с зазорами обходится дешевле, потому что резьба по отверстиям исключается и заменяется меньшим количеством менее дорогих закладных гаек.
Следующим нововведением в конструкции стоек стала стойка с квадратными отверстиями. Стойки с квадратными отверстиями допускают монтаж без болтов, так что оборудование для монтажа в стойку нужно только вставить и зацепить за выступ квадратного отверстия. Установка и снятие оборудования в стойке с квадратными отверстиями очень проста и не требует болтов, где вес оборудования и небольшие фиксирующие зажимы — это все, что необходимо для удержания оборудования на месте. Старое оборудование, предназначенное для стоек с круглыми или резьбовыми отверстиями, все еще можно использовать с использованием закладных гаек, предназначенных для стоек с квадратными отверстиями.
Структурная опора
 Оборудование для монтажа в стойку крепится к стойке болтами или зажимами. Одним из недостатков этой системы является то, что вся структурная поддержка находится на одном краю оборудования, поэтому более тяжелое оборудование предназначено для использования второй пары монтажных планок, расположенных сзади оборудования.
 Используются различные промежутки между передней и задней полосами; Обычно это 31,5 дюйма (800 мм), и оборудование часто рассчитано на работу со стойками разной глубины. Глубина 390,4 дюйма (1000 мм) становятся все более распространенными; большая глубина обеспечивает больше места для прокладки кабелей сзади.
Прочность, необходимая для монтажных полос, означает, что они всегда представляют собой не просто плоские полосы, а более широкие согнутые полосы, расположенные вокруг угла стойки. Полосы обычно изготавливаются из стали толщиной около 2 мм (официальный стандарт рекомендует минимум 1,9 мм) или из алюминия немного толще.
 Стеллажи, особенно стеллажи с двумя опорами, часто крепят к полу или соседней конструкции здания, чтобы они не упали. Это обычно требуется по правилам в сейсмических зонах. Согласно документу общих требований Telcordia Technologies GR-63-CORE, во время землетрясения телекоммуникационное оборудование подвергается движениям, которые могут привести к перенапряжению каркаса оборудования, печатных плат и разъемов.
 Величина движения и результирующего напряжения зависит от конструктивных характеристик здания и каркаса, в котором находится оборудование, а также от силы землетрясения. Доступны сейсмоустойчивые стойки согласно Telcordia GR-63-CORE, при этом зона 4 представляет собой наиболее требовательную среду. В Telcordia GR-3108-CORE указаны пригодные для использования проемы сейсмостойких 19-дюймовые стойки.
Рельсы (направляющие)
 Тяжелое оборудование или оборудование, к которым обычно обращаются для обслуживания, для которых одновременное крепление или отсоединение со всех четырех углов может представлять проблему, часто не устанавливается непосредственно на стойку, а вместо этого монтируется с помощью направляющих (или слайды). Пара направляющих устанавливается непосредственно на стойку, после чего оборудование вдвигается в стойку по направляющим, которые его поддерживают. Когда оборудование установлено на место, его также можно прикрепить болтами к стойке. Направляющие также могут полностью поддерживать оборудование в положении, когда оно было выдвинуто из стойки; это полезно для осмотра или обслуживания оборудования, которое затем будет вставлено обратно в стойку.
Направляющие или монтажные направляющие для компьютеров и другого оборудования для обработки данных, такого как дисковые массивы или маршрутизаторы, часто необходимо приобретать непосредственно у производителя оборудования, поскольку не существует стандарта толщины такого оборудования (измерение от края стойки до оборудования). ) или средства для крепления к рельсу.
Монтаж на компьютере
Компьютерные серверы, предназначенные для монтажа в стойку, могут иметь ряд дополнительных функций, облегчающих использование сервера в стойке:
- Направляющие могут фиксироваться в различных выдвинутых положениях, чтобы предотвратить перемещение оборудования, когда оно выдвинуто из стойки для обслуживания.
 -  Сам сервер может иметь стопорные штифты по бокам, которые просто вставляются в пазы на удлиненной направляющей в сборе, подобно съемному кухонному ящику. Это позволяет очень легко устанавливать и снимать сервер, поскольку нет необходимости держать сервер в воздухе, пока кто-то крепит каждую направляющую к бокам сервера с помощью винтов.

 - Некоторые производители оборудования для монтажа в стойку предусматривают складной кабельный лоток за сервером, так что кабели удерживаются в аккуратном и аккуратном сложенном канале, когда они находятся внутри стойки, но могут разворачиваться в длинную полосу, когда их вытягивают из стойки. позволяя серверу оставаться подключенным к сети и нормально работать, даже если он полностью выдвинут и висит в воздухе перед стойкой. Таким образом, эта часть оборудования упрощает техническое обслуживание, но за счет ограничения воздушного потока.
 -  Серверы, оптимизированные для установки в стойку, могут дублировать индикаторы на передней и задней панелях стойки, чтобы помочь идентифицировать машину, требующую внимания, или иметь отдельные индикаторы «идентификации» на обеих сторонах сервера (которые можно включить в программном обеспечении или путем нажатия соответствующей кнопки). кнопка). Поскольку в некоторых конфигурациях допускается более пятидесяти серверов 1U в одной стойке, это обеспечивает простой способ точно определить, на какой машине возникла проблема, когда она находится в задней части стойки.

 - В задней части серверных направляющих может быть предусмотрена ручка, с помощью которой можно тянуть или толкать сервер без необходимости тянуть за кабели.
 
Когда в одной стойке много компьютеров, нецелесообразно иметь для каждого из них отдельную клавиатуру, мышь и монитор. Вместо этого используется KVM-переключатель или программное обеспечение LOM для совместного использования одного набора клавиатуры/видео/мыши среди множества разных компьютеров.
Поскольку расположение монтажных отверстий вертикально симметрично, можно установить оборудование для монтажа в стойку в перевернутом виде. Однако не все оборудование подходит для такого типа монтажа. Например, большинство проигрывателей оптических дисков не будут работать в перевернутом положении, потому что механизм приводного двигателя не захватывает диск.
Стойки с четырьмя и двумя опорами
 Стойки доступны с четырьмя или двумя вертикальными направляющими. Стойки с четырьмя опорами позволяют устанавливать направляющие для поддержки оборудования спереди и сзади.
 Эти стеллажи могут быть открытыми по конструкции (аналогично традиционным двухстоечным стеллажам открытого типа) или могут быть закрыты дверцами, боковыми панелями или верхними частями. Стойки с двумя опорами имеют всего две вертикальные направляющие; часть оборудования может быть установлена либо через отверстия на передней панели, либо близко к центру тяжести, чтобы свести к минимуму нагрузку на переднюю панель. Двухопорные стойки чаще всего используются для телекоммуникационных установок.
Технические характеристики
Выдвижная клавиатура и монитор шириной в стойку с оборудованием, установленным в стойке
Формальные стандарты для 19-дюймовой (480 мм) стойки доступны в следующих документах:
- Electronic Industries Alliance EIA-310-D , шкафы, стойки, панели и сопутствующее оборудование от сентября 1992 г. (последний стандарт теперь REV E 1996 г.)
 -  Ассоциация бытовой электроники CEA-310-E, требования к конструкции шкафов, панелей, стоек и подстоек, от 14 декабря 2005 г.

 -  Международная электротехническая комиссия Несколько документов доступны на французском и английском языках.
-   IEC 60297 Механические конструкции для электронного оборудования. Размеры механических конструкций серии 482,6 мм (19 дюймов) 
- МЭК 60297-1 Заменено МЭК 60297-3-100
 - МЭК 60297-2 Заменено МЭК 60297-3-100
 - IEC 60297-3-100, часть 3-100: Основные размеры передних панелей, субблоков, шасси, стоек и шкафов
 - IEC 60297-3-101 Часть 3-101: Крейты и связанные с ними вставные блоки
 - IEC 60297-3-102 Часть 3-102: Ручка инъектора/экстрактора
 - IEC 60297-3-102 Часть 3-103: Шпоночный и установочный штифт
 - IEC 60297-3-104, часть 3-104: размеры интерфейсов, зависящие от разъема, для крейтов и подключаемых модулей
 - IEC 60297-3-105 Часть 3-105: Размеры и аспекты конструкции для шасси 1U
 - МЭК 60297-4 Заменено МЭК 60297-3-102
 - МЭК 60297-5 Несколько документов, -100, 101, 102, … 107, заменен на МЭК 60297-3-101
 
 
 -   IEC 60297 Механические конструкции для электронного оборудования. Размеры механических конструкций серии 482,6 мм (19 дюймов) 
 -  Deutsches Institut für Normung DIN 41494 — Несколько документов на немецком языке, но некоторые документы доступны на английском языке.

-   DIN 41494 Практика оборудования для электронного оборудования; механические конструкции серии 482,6 мм (19 дюймов) 
- DIN 41494-7 Размеры шкафов и комплектов стеллажей.
 - DIN 41494-8 Компоненты на передних панелях; условия монтажа, размеры
 - DIN IEC 60297-3-100 (см. выше в разделе IEC)
 
 
 -   DIN 41494 Практика оборудования для электронного оборудования; механические конструкции серии 482,6 мм (19 дюймов) 
 
Крепление для монтажа в стойку состоит из двух параллельных металлических полос (также называемых «стойками» или «панельными креплениями»), стоящих вертикально. Каждая стойка имеет ширину 0,625 дюйма (15,875 мм) и разделена зазором в 17,75 дюйма (451 мм), что дает общую ширину стойки 19 дюймов (483 мм). В стойках есть отверстия через равные промежутки, причем обе стойки совпадают, так что каждое отверстие является частью горизонтальной пары с межцентровым расстоянием 18,3 дюйма (465 мм).
 Отверстия в стойках расположены вертикально в виде повторяющихся наборов по три с расстоянием между центрами 0,5 дюйма (12,7 мм), 0,625 дюйма (15,9 мм), 0,625 дюйма (15,9 мм).
 Таким образом, схема отверстий повторяется через каждые 1,75 дюйма (44,45 мм).
Стойка (U)
Стойки разделены на области высотой 1,75 дюйма (44,45 мм), внутри которых расположены три полные пары отверстий, расположенных вертикально симметрично, причем отверстия расположены по центру 0,25 дюйма (6,4 мм), 0,875 дюймов (22,2 мм) и 1,5 дюймов (38,1 мм) от верхней или нижней части области. Такая область обычно известна как «U», что означает «единица», и высота внутри стоек измеряется этой единицей. Оборудование для монтажа в стойку обычно проектируется так, чтобы занимать некоторое целое число U. Например, массив хранения может иметь высоту 4U, а компьютеры, монтируемые в стойку, чаще всего имеют высоту 2U или 1U. Иногда можно увидеть устройства с дробным U, такие как сервер 1,5U, но они встречаются гораздо реже.
Стандарт EIA-310
 EIA (Ассоциация электронной промышленности) предоставляет документацию по технологическим стандартам с текущим стандартом для стоек для оборудования центров обработки данных в редакции EIA-310-D.
 Этот документ не является документом EIA, а является совокупностью различных источников, содержащих спецификации из EIA-310 и других источников. Эта спецификация стандартизирует несколько важных характеристик 19″ стоек, таких как Rack Unit (RU или просто U), расстояние между вертикальными отверстиями, расстояние между горизонтальными отверстиями, проем стойки и ширина передней панели. Спецификация также устанавливает допуски на каждый из этих размеров.
Расстояние между вертикальными отверстиями
Расстояние между вертикальными отверстиями определяется как повторяющееся расположение отверстий в пределах одного модуля стойки размером 1,75 дюйма. Расстояние между отверстиями менялось на: 1/2″ – 5/8″ – 5/8″ и повторяется. Начало и конец пространства «U» находятся в середине отверстий с интервалом 1/2 дюйма. См. диаграмму ниже.
Расстояние по горизонтали
 Расстояние по горизонтали вертикальных рядов отверстий согласно EIA-310 составляет 18 5/16″ (18,312″ или 465,1 мм).
 Этот размер не выдерживается на некоторых стойках, что вызывает проблемы с установкой оборудования. Многие производители используют пазы для монтажа оборудования вместо отверстий, чтобы можно было варьировать этот размер.
Отверстие в стойке
Минимальный размер отверстия в стойке составляет 17,72 дюйма (450 мм). 2Опорные или релейные стойки, как правило, имеют большее отверстие, чем обычно, как и многие другие стойки с резьбовыми отверстиями. Стойки с квадратными отверстиями, как правило, очень близки к минимальному отверстию.
Ширина передней панели
Единственным размером 19-дюймовой стойки, который фактически составляет 19 дюймов, является ширина передней панели оборудования.
Размеры стойки
 Интересно, что никакие измерения 19-дюймовой стойки фактически не равны 19 дюймам. Термин 19 дюймов происходит от ширины передней панели ящиков, установленных в стойку (см. изображение ниже). Чтобы определить размер стойки как 19 дюймов или другой, измерьте расстояние между отверстиями и сравните с таблицей ниже.![]()
Расстояние между отверстиями в стойке
  19″ Стойка = 18-5/16″ (18,312″) (465,1 мм)  
  23″ Стойка = 22-5/16″ (22,356,7″) ( )  
  24-дюймовая стойка = 23-5/16″ (23,312″) (592,1 мм) 
Блок стойки «U» или «RU»
 Расстояние между отверстиями для стандартных 19-дюймовых стоек на монтажном фланце составляет расположены группами по три отверстия. Эта группа из трех отверстий определяется как Rack Unit (RU) или иногда просто называется «U». 1U занимает 1,75 дюйма (44,45 мм) вертикального пространства. Производители оборудования для монтажа в стойку создают свои линейки продуктов в зависимости от того, сколько стоечных единиц оборудование занимает в серверной стойке. Расстояние между тремя группами отверстий измеряется от центрального отверстия до центрального отверстия и не зависит от того, квадратные или круглые монтажные отверстия имеются в серверной стойке. Такое неравномерное расстояние между отверстиями может вызвать проблемы при установке, если установщик не уделит должного внимания тому, где устанавливаются монтажные направляющие в сборе.
 Наиболее распространенная проблема заключается в том, что крюки или отверстия монтажной направляющей не совпадают с отверстиями в серверной стойке. Обычно это происходит из-за того, что монтажные узлы ползуна не совпадают с рисунком отверстий.
RESOURCE HUB
Этот веб-сайт использует файлы cookie для улучшения вашего опыта. Мы предполагаем, что вы согласны с этим, но вы можете отказаться, если хотите. ACCEPT REJECT
Размеры стоек – как рассчитать необходимое количество U?
Размещение вашей ИТ-инфраструктуры в центре обработки данных с использованием услуг совместного размещения — это возможность повысить отказоустойчивость и надежность, сэкономив при этом деньги. Однако, чтобы сэкономить, вам нужно убедиться, что вы берете стойку нужного размера для своего оборудования и не платите больше, чем вам нужно.
Загрузите наш контрольный список, чтобы обеспечить бесперебойную миграцию центра обработки данных
Как измеряются стойки?
 Если вы здесь, чтобы узнать, какого размера каре ягненка вам нужно для четырех человек, то вы, вероятно, очень запутались, и вам лучше щелкнуть мышью.
 Но если у вас есть какое-то ИТ-оборудование и вы не знаете, с чего начать расчет необходимого размера стойки, то эта статья для вас.
Стойки в центре обработки данных измеряются в U (сокращение от Unit). Один U имеет высоту 1,75 дюйма, а серверы (а также другое ИТ-оборудование) часто строятся с шагом 1,75 дюйма, чтобы их было легко преобразовать в U.
Стойки бывают разных размеров, когда речь идет о вводе в эксплуатацию услуг колокейшн. Размеры стоек различаются в зависимости от центра обработки данных, но обычно они имеют высоту от 42U до 47U и делятся на полные, половинные и четвертьстойки:
- Полная стойка — от 42U до 47U
 - Половина стойки — обычно 22U
 - Четверть стойки — обычно 11U
 
Если вам нужно всего несколько U, но вы хотите воспользоваться отказоустойчивой инфраструктурой центра обработки данных, некоторые провайдеры колокации предложат общие услуги колокации. Это позволяет вам разместить несколько U в большей стойке, которую вы делите с другими предприятиями.

Как рассчитать необходимый размер стойки
Необходимый размер стойки зависит от того, сколько U пространства занимает ваше оборудование. Начать этот расчет очень просто, так как каждый ваш сервер должен иметь высоту 1U, поэтому вы можете начать с подсчета количества серверов, которые у вас есть, и записать их.
Прочее оборудование, которое поддерживает вашу ИТ-систему, может быть несколько сложнее для расчета, сюда могут входить:
- Аппаратные брандмауэры
 - Другое оборудование для кибербезопасности
 - Коммутаторы и маршрутизаторы
 - Патч-панели
 - Силовые стержни
 
 Каждое из этих устройств занимает место. Особенно, если какой-либо из них выше 1,75 дюйма, поскольку он займет несколько U и значительно увеличит то, что вам нужно. Однако некоторые элементы меньшего размера могут поместиться в U-образную форму рядом с другим небольшим элементом оборудования для экономии места (но будьте осторожны, чтобы не блокировать поток воздуха в стойке).
Примечание. Если ваша текущая ИТ-система использует ИБП для защиты от сбоев питания, вам не нужно перемещать их в серверную стойку, так как источник питания из центра обработки данных уже будет иметь встроенный ИБП и другие резервные устройства.
Итак , чтобы рассчитать размер стойки, необходимо сложить числа:
- Имеющиеся у вас серверы
 - Другое оборудование, которое у вас есть, высотой 1,75 дюйма
 - U, который вам понадобится, чтобы поместить ваши небольшие части оборудования в
 - Элементы оборудования высотой более 1,75 дюйма с учетом того, что им потребуется дополнительный U на каждые 1,75 дюйма высоты.
 
Это позволит вам узнать, нужна ли вам четверть, половина или полная стойка.
Другие факторы, которые следует учитывать при расчете размера стойки
Помимо того, сколько единиц оборудования у вас есть, существуют и другие факторы, которые могут повлиять на размер необходимой вам стойки.
1.
 БезопасностьИспользование всего нескольких U в совместном сервисе колокации означает совместное использование стойки с другими компаниями. Если вам необходимо поддерживать определенный уровень безопасности, вам, возможно, придется взять как минимум четверть стойки, чтобы гарантировать, что никто другой не получит доступ к вашему оборудованию.
Кроме того, вы можете захотеть взять стеллаж с клеткой для максимальной безопасности. Это означает, что у вас есть клетка вокруг вашей стойки, так что другие люди в центре обработки данных не могут даже получить доступ к внешней стороне вашей стойки. Это очень безопасно, но, как правило, вам потребуется взять полную стойку из центра обработки данных и заплатить некоторые дополнительные сборы.
2. Потребляемая мощность
 Мощность, доступная для потребления в стойке, зависит от ее размера. Если у вас энергоемкая ИТ-установка, вам, возможно, придется взять стойку, в которой больше места, чем вам нужно, чтобы блок питания подходил для вашей ИТ-системы.
3. Техническое обслуживание
Полная загрузка стойки эффективна для повседневных операций, но когда придет время выполнять техническое обслуживание или что-то сломается, вам будет легче, если в стойке есть свободное место. Это позволит вам установить новые серверы и запустить их, прежде чем удалять старые/сломанные. Хотя это может показаться мелочью, непрерывность бизнеса важна, и, возможно, стоит взять стойку большего размера, чтобы свести к минимуму сбои и простои, вызванные техническим обслуживанием.
4. Расширение
Цифровая трансформация — это непрерывный процесс, и нынешняя ИТ-система не будет долго оставаться неизменной. Если вам кажется, что в ближайшем будущем вы будете расширять свою ИТ-систему, возможно, вы захотите взять стойку большего размера, чем вам нужно в настоящее время, чтобы свести к минимуму усилия, когда придет время расширяться.
 К счастью, некоторые центры обработки данных предлагают услугу с оплатой по мере роста. С обещанием будущего расширения от вас самих, они позволят вам взять полную стойку, взимая с вас плату только за то, что вы используете в настоящее время.

 Так что можете даже не обращать внимания на изделия без неё. 
 Такие типы стоек используются в небольших кухнях и маленьких семьях, когда нет необходимости ставить отдельно обеденный стол.
 При складной модели место под столешницей используют для расположения бытовой техники;

 Кроме того, имейте в виду, что полезная глубина стойки «от рельса к рельсу» обычно на 1 3/4 дюйма меньше, чем фактическая глубина стойки.
 1U (одна стойка) имеет высоту примерно 1,75 дюйма, 2U — 3,5 дюйма и т. д. Так, например, если у вас есть 20 серверов высотой 2U, которые необходимо смонтировать, вам понадобится серверная стойка, имеющая не менее 40U пространства в стойке, учитывая любое пространство, необходимое для KVM-переключателя, ИБП, патч-панели и т. д.

 25″ Usable Depth
 За дополнительной помощью обращайтесь к нашим опытным инженерам по продажам по телефону 1-866-722-5776.

