Высота раковины в ванной стандарт, какой вариант будет оптимальным
В ванной комнате все должно быть расположено таким образом, чтобы помещение наполнилось уютом и теплом, а ежедневные гигиенические процедуры из обычной рутинной необходимости превратились в приятные душе и телу процедуры. Давайте далее поговорим о том, какой должна быть высота раковины, чтобы пользоваться санузлом было максимально комфортно.
Содержание
- Общепринятые нормы
- Нормы высоты установки раковины по СНИП
- Выбор оптимальной высоты
- Для мужчин
- Для женщин
- Как правильно рассчитать место установки
- Правила монтажа
Общепринятые нормы
При выборе и последующем монтаже подобного аксессуара необходимо задуматься над тем, какой должна быть высота установки раковины стандарт. Ведь от этого параметра во многом зависит тот факт, комфортно ли будет человеку выполнять гигиенические процедуры. Причем, учесть стоит рост всех членов семьи: и взрослых, и детей.
Четко придерживаются нормативов в данном вопросе только при установке умывальников в государственных учреждениях, детских садах или школах. Так, высота монтажа раковины от напольного покрытия и до бортика может быть совершенно разной.
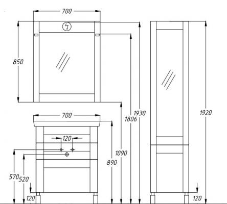
| Возрастная категория | Высота монтажа умывальника стандарт до бортика, см. |
| для взрослого человека среднего роста | 80 см |
| для подростка среднего роста | 70 см |
| для ребенка среднего роста | 60 см |
Однако, касательно жилых частных домов, то это относительный параметр, который при желании можно менять самостоятельно. Очень много зависит от представлений конкретного человека о комфорте того или иного умывальника в ванной комнате. К тому же, на ограниченном пространстве ванной комнаты жилого дома просто нет возможности установить сразу несколько умывальников стандарт для каждого члена семьи.
Профессиональная схема размещения раковины учитывает все нюансы, включая высоту расположения сифона, умывальника, кранов, и принимает во внимание габариты сантехникиСредним показателем, комфортным для человека среднего роста, опытные строители считают уровень 80-85 см. Его и используют наиболее часто для городских квартир или загородных коттеджей при монтаже умывальников своими руками.
Но существуют и важные факторы, которые непременно нужно учитывать при выборе раковины для ванной. Ведь они могут оказать довольно сильное влияние на тот факт, какая умывальника высота будет наиболее комфортной. Об этом далее.
Нормы высоты установки раковины по СНИП
Какие требования сегодня человек предъявляет к подобным изделиям? Да, такие же, как и во все времена. Раковине внутри ванной комнаты непременно следует быть удобной, долговечной и эстетически привлекательной. Хотя отметим, что с годами выбор раковин существенно расширился. Сегодня можно приобрести изделие самых невообразимых форм и всевозможных цветовых оттенков.
И сразу не понять, какие размеры умывальника являются наиболее актуальными по уровню своей функциональности и комфорта.
Но в нашей стране существует определенная регламентация данного параметра, основанная на положениях СНиП. Так в нашей стране по СНиП умывальник нужно устанавливать на высоте 85 по верху борта.
Выбор оптимальной высоты
Чтобы понять, какую следует выбрать высоту раковины, нужно разобраться в некоторых важных моментах. Очень многое в данном случае зависит от особенностей конструкции мойки.
Типы современных умывальников в зависимости от их конструкции:
- расположенные на пьедестале (вариант «тюльпан»). Характеризуется определенными параметрами, и в том числе четкой высотой от чистого пола, изменить которую не представится возможным. Основание изделия монтируют на пол, саму раковину фиксируют посредством применения кронштейнов к стене и дополнительно упирают в верхнюю часть «ножки» «тюльпана».
Эти модель стандарт хороши тем, что позволяют полностью скрыть сифон. Зона умывальника сразу приобретает привлекательный внешний вид. Зачастую высота бортика в таких изделиях меняется в пределах 85-90 см;
- подвешиваемые на стену — подобные модели, в отличие от тумбы с накладной раковиной, считаются более эргономичными и функциональными, так как позволяют сэкономить пространство помещения. Ведь их можно вешать на любом уровне от чистого пола, что особенно актуально в маленьких ванных комнатах. Под такие изделия довольно просто подобрать сифон, так как патрубок будет иметь существенный запас длины, а лишнюю часть можно просто отрезать после того, как будут выполнены все необходимые замеры. Стандартная высота раковины в ванной подвесного типа оптимальная в данном случае составит 85 см, хотя отметим, что этот параметр может быть изменен в зависимости от роста членов семьи. Если в семье растут дети младшего возраста, целесообразно просто приобрести для них специальные ступеньки, но не подвешивать раковину слишком низко.

Иначе, родителям пользоваться такой сантехникой будет крайне неудобно;
- встраиваемые в поверхность накладной столешницы у тумбы стандарт отличается фиксированной высотой от чистого пола, которая определяется параметрами мебели. Раковина «мойдодыра» может занимать всю область накладной столешницы, выполняя ее роль. А может быть значительно уже ее, что позволит использовать свободное пространство накладной столешницы у «мойдодыра» более функционально. Зачастую производители «мойдодыра» для ванной комнаты придерживаются общепринятых стандартов в этой области. Если же хочется чего-то нестандартного и необычного, придется заказывать параметры накладной столешницы и тумбы по индивидуальному проекту и выбранной заказчиком высоте раковины;
- модели с возможностью отрегулировать высоту от чистого пола. Отметим, что последняя группа встречается в магазинах сегодня довольно редко, обращаться с ней нужно крайне аккуратно, а стоимость такой сантехники довольно высока.
К тому же, установить подобный вариант своими руками не очень-то легко, так как это потребует некоторых инженерных решений.
Для мужчин
Мир сантехники очень разнообразен. Это касается и выбора умывальников на полках современных магазинах. Раковина представляет собой один из наиболее простых и незамысловатых сантехнических аксессуаров для ванной комнаты. Однако, это крайне актуальный для каждого дома предмет, без которого сложно представить утренние водные процедуры.
Если проанализировать средний рост мужчины, можно вывести стандартную высоту для монтажа раковины 95 ? 105 см. Этот параметр будет удобен для большинства представителей сильного пола.
Высота установки для мужчинДля женщин
Высоту раковины для ванной стандарт для городской квартиры или загородного частного дома подобрать порой бывает крайне сложно, если человек сталкивается с такой задачей впервые. Это можно объяснить тем фактом, что зачастую члены семьи отличаются разным ростом. Но существуют и четкие нормы, регламентирующие данный параметр для людей разного возраста.
Для женщин высоту раковины от основания стоит выбрать уровень в 80-90 см.
Как правильно рассчитать место установки
Перед тем, как поехать в сантехнический магазин за удачной моделью раковины, стоит выполнить ряд действий:
- выберите наиболее высокого и наиболее низкого члена вашей семьи. Детей младшего возраста во внимание брать не стоит, ведь одновременно установить раковину на оптимальном уровне для взрослого и ребенка просто невозможно;
- выполните замеры расстояния (в положении стоя) от локтя до напольного покрытия у каждого из выбранных людей. Далее от полученных показатель потребуется отнять 6-8 мм. Это необходимо, чтобы понять, при каком уровне кисти рук человека будут располагаться в наиболее комфортном положении.
Например, в результате замеров и расчетов вы получили такие результаты: самому высокому обитателя дома раковину стоит повесить на высоте 110 см, а самому маленькому – на высоте 100 см.
Понятно, что один из участников замеров окажется в неудобном положении, если мойку монтировать по одному из определенных вами параметров.
Поэтому, лучше, пойти на компромисс, подвесив раковину на высоте 105 мм. Это позволит разделить неудобства справедливо, а также минимизировать их последствия. Остается только выполнить монтажные работы, и можно наслаждаться водными процедурами в удобной и привлекательной ванной.
https://youtu.be/sgxXuYfNla4
Правила монтажа
Многие люди без большого опыта уверенны: монтаж раковины на стену при помощи кронштейнов является наиболее надежным из существующих способов. Однако, даже модели «тюльпан» редко устанавливают с опорой исключительно на ногу. Чаще пьедесталу отводят роль декоративного аксессуара, который позволяет скрыть канализационный трубы.
Высота умывальника в ванной — вопрос не дизайна интерьера, а комфорта членов семьиДабы сантехническое изделие заняло то место на стене, которое было определено предварительными расчетами, нужно выполнить следующее:
- на стене отметьте актуальную высоту рабочей поверхности чаши;
- замерьте расстояние от отверстий, которые предназначены для фиксации раковины, и до рабочей поверхности.
Полученное расстояние отложите от первой метки вниз; - на второй метке разметьте межцентровой шаг и организуйте отверстия;
- зафиксируйте кронштейны и повесьте на них умывальник. Далее, можно переходить к монтажу смесителя и подсоединению сифона к канализации.
Можно пренебречь кронштейнами, если поддерживать чашу будет тумбочка.
Высота раковины в ванной — стандарт установки. На какой высоте установить раковину?
Оставить отзыв
Каждое утро и каждый вечер почти каждый человек наклоняется над умывальником, чтобы умыть лицо, помыть руки, уши, шею и пр. части организма. И ни у кого не возникают вопросы: а почему нужно нагибаться над умывальником и какова должна быть стандартная высота раковины в ванной? Насколько необходимо соблюдение этих стандартов?
Стандартная высота раковины в ванной — СНИП
Какие требования установлены официальными нормативными документами, определяющими стандарт установки высоты раковины в ванной?
По действующим в Российской Федерации нормам, в СНиПе 3.
05.01-85 под названием «Внутренние санитарно-технические системы», оговорено, что высота раковины от пола во всех жилых и общественных зданиях должна быть 800 мм до верха их борта (верхнего края прибора).
При этом высота установки в школах – 700 и 850 мм, соответственно (см. п. 3.15 этого СНиПа).
В другом нормативном документе – СНиП II-64-80 («Детские дошкольные учреждения»), нормы установки детских санитарных приборов прописаны для самых маленьких жителей страны:
- в умывальных помещениях ясельных групп – 0,4 м от пола;
- в дошкольных группах – 0,5 м.
Высота установки раковины в зависимости от ее типа
Большинство производителей современной сантехники могут предложить несколько разновидностей умывальников:
Раковины с пьедесталом и полупьедесталом
С установкой на пьедестале, называемом «тюльпан». При этом сам этот пьедестал служил своего рода ширмой, за которой прятались подводящие трубы.
Высота раковины от пола по верхнему срезу чаши умывальника была от 850 до 900 мм. Эту высоту можно немного увеличить, например на 10 – 25 мм установкой самого «стебля» «тюльпана», например, на фигурную подставку.
Мойдодыр
Достаточно простой способ установить раковину на оптимальной высоте от пола — это купить раквомину совмещенную с тумбой (мойдодыр). При таком способе установки высота определяется тумбой.
Кроме того, при индивидуальном изготовлении тумбы можно заказать выдвижные подставки, приспособленные под малорослых членов семьи.
Внимание
Если вы хотите сами подобрать оптимальную высоту раковины в ванной, то проще всего это будет сделать купив подвесную раковину!
ТОП-5 лучших раковин для ванной
Сортировать по: Имени / Цене / Рейтингу / Отзывам / Наличию видео
Наличие: Нет в наличии
Код товара: 7012
Страна бренда: Швейцария
Производитель: Laufen
Тип изделия.
:
подвесная раковина, рукомойник
Ширина: 49.5
Глубина : 50
Высота: 15.5
Форма: угловая
Материал: фарфор
Цвет: .белый
Стиль интерьера: современный стиль
3220 руб
Заказ в 1 клик
Наличие: Нет в наличии
Код товара: 7013
Страна бренда: Швейцария
Производитель: Laufen
Тип изделия.: встраиваемая сверху
Ширина: 56
Глубина : 44
Высота: 16.5
Форма: овальная
Материал: фарфор
Цвет: .белый
Стиль интерьера: современный стиль
7683 руб
Заказ в 1 клик
Наличие: Предзаказ
Код товара: 6995
Страна бренда: Швейцария
Производитель: Laufen
Тип изделия.
:
подвесная раковина
Ширина: 50
Глубина : 25
Высота: 15.5
Форма: полукруглая
Материал: фарфор
Цвет: .белый
Стиль интерьера: современный стиль
8575 руб
В корзину Заказ в 1 клик
Показать еще 30
Оставить отзыв / Задать вопрос
Ваше Имя:
от 3 до 25 символов
Ваш отзыв:
от 25 до 10000 символов
Введите код, указанный на картинке:
Добавить
Как выбрать высоту умывальника для ванной комнаты
Расчетное время прочтения: 5 минут
Посмотрим правде в глаза: при ремонте или новом строительстве дизайн кухни занимает центральное место.
И это правильно, кухня считается центром дома и имеет первостепенное значение.
Однако при таком большом внимании к кухне ванные комнаты могут отойти на второй план в процессе проектирования.
Компания Deslaurier имеет более чем 40-летний опыт работы, специализируясь на изготовлении шкафов на любой вкус. Благодаря этому мы разработали и установили бесчисленное количество туалетных столиков, адаптированных к уникальным потребностям наших клиентов.
Присоединяйтесь к нам, поскольку дизайнер Deslaurier Амелия Мэтисон предлагает свои экспертные знания, которые помогут вам понять, как выбрать идеальную высоту для вашей новой раковины для ванной комнаты.
Начнем!
Содержание |
Стандартная высота тумбы для ванной Учитывайте рост пользователя Измерьте текущую высоту туалетного столика Некоторые модели туалетных столиков более эффективны на определенной высоте Откуда берется дополнительная высота? Раковина для посуды Vanity Heights Дизайн со шкафами Deslaurier Custom |
Стандартная высота туалетного столика
Прежде всего: что такое туалетный столик?
Тумбы для ванной комнаты представляют собой комбинацию раковины для ванной комнаты со шкафчиками, которая обеспечивает место для хранения и скрывает водопровод.
Туалетные столики обычно можно использовать для повседневных дел, от умывания и чистки зубов до домашнего макияжа.
Высота умывальника измеряется от пола до верха раковины или столешницы , в зависимости от вашего дизайна. Поскольку наиболее распространенной конструкцией является раковина с верхним или нижним креплением, это означает, что большинство туалетных столиков будут измеряться по поверхности столешницы.
Стандартная высота туалетного столика начинается с 32 дюймов и доходит до 36 дюймов, при этом 34 дюйма обычно приближаются к новому универсальному среднему значению.
Учитывайте рост пользователя
Определение роста пользователя является главным фактором при выборе высоты умывальника для ванной комнаты.
Какой у вас рост? Иди оттуда.
» Для суеты, ты чистишь зубы и умываешься — много наклоняешься — чем выше ты, тем неудобнее.
— Амелия Мэтисон
Если пользователь находится на расстоянии около 6 футов, ему почти наверняка будет неудобно пользоваться 32-дюймовым туалетным столиком. Обратное верно для кого-то ближе к 5 футам. 36-дюймовая тумба, скорее всего, будет для них слишком высокой.
Парам с разной высотой и общим туалетным столиком с двойной раковиной, возможно, придется прийти к компромиссу. В этом сценарии часто проще использовать более высокую тумбу для более высокого участника, чем более низкую тумбу для более низкого пользователя.
Это снижает дополнительную нагрузку на спину – и, честно говоря, невысокому человеку гораздо проще пользоваться чуть более высоким туалетным столиком. Низкорослые пользователи могут воспользоваться табуретами, чтобы разместить их, если это необходимо, а такие компании, как Blum, даже предлагают выдвижные ящики со встроенными ступеньками для туалетных столиков!
Измерьте свой текущий туалетный столик
Еще одна хорошая отправная точка при проектировании вашего нового туалетного столика – измерение высоты вашего текущего туалетного столика.
“ Обычно, когда я задаю вопрос, никто даже не задумывается об этом. Им это не приходит в голову, и никто на самом деле не знает, к чему они в настоящее время привыкли ». — Амелия Мэтисон
Может быть полезно посмотреть на вашу текущую высоту туалетного столика, чтобы оценить, как вы хотели бы расположить свой будущий модуль.
Считаете ли вы свой нынешний туалетный столик идеальной высотой? Если это так, все, что нужно, — это быстро проверить с помощью измерительной ленты, и вы уже выбрали высоту, которую предпочитаете для своего нового туалетного столика!
Что делать, если вы чувствуете, что ваш нынешний туалетный столик слишком короткий или слишком высокий? Измерение высоты — это хорошая отправная точка, чтобы понять, что ваш новый туалетный столик должен быть выше или ниже определенной высоты.
Если вас не устраивает высота вашего туалетного столика, считаете ли вы, что он слишком низкий или слишком высокий для вас, то знание точной высоты является хорошей отправной точкой — действуйте исходя из этого
«Плавающие» настенные туалетные столики
Некоторые конструкции туалетных столиков более эффективны при определенной высоте.
Например, плавающие туалетные столики.
Плавающие туалетные столики — это прежде всего стильное решение. Они обеспечивают обтекаемую современную эстетику, а туалетный столик расположен над полом, как будто он «плавает».
Настенные умывальники, как правило, сложнее в изготовлении; для них требуются специальные монтажные кронштейны и иногда дополнительная настенная опора . Что, конечно же, увеличит стоимость туалетного столика в ванной.
Настенные парящие туалетные столики почти всегда имеют высоту стойки 34 или 36 дюймов. Увеличенная высота усиливает эффект «парящего» визуального эффекта больше, чем 32-дюймовый корпус.
Откуда берется дополнительная высота?
Со всеми этими разговорами о разной высоте туалетного столика мы должны уточнить, откуда берется эта дополнительная высота.
Во-первых, основание для носка под шкафом всегда будет оставаться на одной высоте .
Все остальное будет растянуто. Если в ваших шкафах есть группа из 3 одинаковых ящиков, то высота всех 3 ящиков будет увеличена для более высокого шкафа.
Что делать, если в вашем шкафу есть неглубокий ящик сверху и 2 глубоких ящика внизу? Высота глубоких ящиков будет увеличена, в то время как высота мелкого ящика обычно останется прежней .
Короче говоря, 32-дюймовая тумба будет иметь верхний ящик того же размера, что и 36-дюймовая тумба, но нижние ящики в последнем варианте будут выше.
Если в тумбе есть дверцы, исправить это просто: высота дверцы будет увеличиваться или уменьшаться в зависимости от коробки шкафа.
Высота умывальника для раковины в виде сосуда
Раковина в виде сосуда представляет собой чашу раковины, которая располагается над столешницей, а не встроена в нее.
Раковины для сосудов обычно имеют глубину от 4 до 6 дюймов; поэтому общая рекомендация состоит в том, что высота туалетного столика не должна превышать 30 дюймов.
Конечно, не все так просто и ясно.
“ С раковинами для сосудов многое может отличаться, и это может стать чем-то вроде головоломки. Я обычно говорю клиентам, чтобы они выбрали раковину, и тогда я могу выяснить, где провести эту линию оттуда. ” – Амелия Мэтисон
Первый заказ: выберите раковину. Гораздо проще выбрать высоту шкафа для размещения конкретной раковины, чем найти раковину определенного размера, подходящую для заданной высоты туалетного столика.
Вы не хотите, чтобы столешница была слишком низкой, а верхняя часть раковины — слишком высокой. Должна быть золотая середина. Ваш дизайнер поможет вам подобрать идеальную высоту шкафа, чтобы она соответствовала выбранной вами раковине.
Дизайн с индивидуальными шкафами Deslaurier
Ищете индивидуальный дизайн ванной комнаты, соответствующий вашим уникальным потребностям? Вы пришли в нужное место!
Закажите бесплатную консультацию эксперта Deslaurier в нашем выставочном зале Jupiter, Флорида, уже сегодня!
Если вы ищете нестандартные шкафы, у Deslaurier Custom Cabinets есть все, что вам нужно.
Обладая более чем 40-летним опытом, мы предоставляем нашим клиентам полностью индивидуальный процесс проектирования с нашей талантливой командой дизайнеров.
Хотите стать авторизованным дилером Deslaurier? Посетите нашу страницу Стать дилером, чтобы узнать больше! Жить за пределами области? Найдите дилера, чтобы связаться с ближайшим к вам дилером Deslaurier!
Какая идеальная высота для туалетного столика?
Ваша ванная комната должна отражать ваш уникальный стиль своими аксессуарами. Возможно, вам нравится элегантное и современное пространство, а не домашний традиционный вид, или, может быть, вы предпочитаете большую душевую кабину, а не уютную ванну на ножках.
Независимо от ваших индивидуальных предпочтений, несколько функций, скорее всего, будут стандартными для всех: например, унитаз и раковина. Однако вы можете не учитывать, как высота туалетного столика в ванной может повлиять на ощущение и внешний вид пространства.
Оптимальная высота туалетного столика для ванной комнаты
Высота умывальника играет решающую роль в простоте использования и эстетическом внешнем виде вашей ванной комнаты.
Туалетный столик — это место, где вы будете мыть руки, готовиться к новому дню и делать большую часть своих прихорашиваний и приведения себя в порядок. Поэтому важно, чтобы он был на оптимальной высоте для этих задач.
Кроме того, высота умывальника в ванной комнате должна дополнять внешний вид вашего помещения. Слишком высокий или низкий туалетный столик может сделать комнату неуклюжей и неуместной. Итак, какова идеальная высота туалетного столика для большинства ванных комнат?
Большинство строителей и архитекторов согласны с тем, что стандартная высота туалетного столика составляет от 30 до 34 дюймов, но это не относится ко всем ванным комнатам. При выборе наилучшей высоты туалетного столика для вашего помещения, вот основные факторы, которые вы должны учитывать.
Стандартная высота и комфортная высота
В то время как стандартная высота стойки для ванной комнаты обычно составляет от 30 до 34 дюймов, некоторые домовладельцы могут предпочесть так называемую «комфортную высоту» для своих туалетных столиков.
Comfort, как правило, составляет около 36 дюймов. Эти дополнительные несколько дюймов помогают тем, кто выше ростом, чувствовать себя более комфортно, используя свои туалетные столики.
Размещение всех Пользователей
Другим важным фактором, который следует учитывать при выборе туалетного столика, является то, кто будет им пользоваться чаще всего. Если вся ваша семья находится на более высокой стороне, то комфортная высота может быть лучше для вас. Однако, если в вашей семье разный рост, лучше выбрать средний.
Например, с технической точки зрения оптимальная высота туалетного столика для мужчин составляет от 34 до 36 дюймов, а оптимальная высота для женщин — от 32 до 34 дюймов. Таким образом, среднее число 34 подходит как для мужчин, так и для женщин.
Стиль раковины
Затем подумайте, какой стиль раковины вы планируете использовать в своем туалетном столике. Основное соображение здесь заключается в том, будет ли у вас раковина для посуды или нет.
располагаются на столешнице — почти как чаша. Они могут быть маленькими и круглыми, большими и квадратными или любого другого размера или формы. Однако, если у вас есть один из них, это может повлиять на высоту вашего туалетного столика. Раковины для сосудов добавят общую высоту, поэтому вы можете захотеть, чтобы стойка была немного ниже. В этом случае хорошей идеей будет протестировать тумбы разной высоты в выставочном зале.
Существующие приспособления и функции
И, наконец, если ваш проект представляет собой реконструкцию, подумайте, что уже есть в вашей ванной, что вы не планируете менять. Вы хотите, чтобы стиль вашего нового туалетного столика соответствовал остальной части вашей ванной комнаты, поэтому помните о существующих акцентах при покупке чего-то нового.
Вы также, как правило, захотите повторно использовать сантехнику и электрические розетки, когда это возможно. В некоторых случаях это может ограничить ваши варианты высоты туалетного столика.

Эти модель стандарт хороши тем, что позволяют полностью скрыть сифон. Зона умывальника сразу приобретает привлекательный внешний вид. Зачастую высота бортика в таких изделиях меняется в пределах 85-90 см;
К тому же, установить подобный вариант своими руками не очень-то легко, так как это потребует некоторых инженерных решений.
Полученное расстояние отложите от первой метки вниз;
— Амелия Мэтисон