Размеры трапов для душа
В этой статье мы поговорим о душевых трапах, а если быть точнее, об их размерах. Часто слово трап обобщает несколько душевых водоприемных устройств. Если быть точнее, различают три разновидности изделий: точечные трапы (квадратные), душевые каналы (линейные трапы), угловые трапы. Сейчас мы рассмотрим размеры и особенности каждой модели.
 
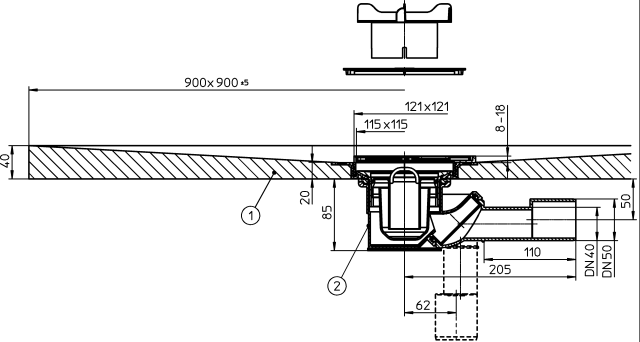
Точечные трапы – квадратные трапы для приема воды. Этот вид самый бюджетный и простой в монтаже, так как не занимает много места и с ним не нужно долго возиться.
Комплектация трапов следующая: корпус, затвор и решетка. Могут быть дополнительные элементы, если речь идет о двухкорпусных моделях.  Диаметр подключение к канализации  — 50 или 100мм. Выход как горизонтальный, так и вертикальный.
 Размер решетки варьируется: 10х10, 15х15 и 20х20 см.  От диаметра трубы, выхода и размера решетки напрямую зависит пропускная способность трапа.
Корпус трапов изготавливают из пластика или нержавеющей стали. Пластиковый трап может быть с гофрированным «горлом» — это значит, что высоту трапа можно отрегулировать с помощью подрезки. Высота трапа – также важный пункт при выборе, она должна быть не больше  высоты стяжки. От материала корпуса зависит, куда можно установить трап. К примеру: трап изготовленный из нержавеющей стали, можно установить на производстве пищевой, химической или фармацевтической промышленности. Обычные трапы с пластиковым корпусом подойдут для душевых комнат общественного или личного пользования.
 
Они имеют прямоугольную линейную форму.
 Длина изделия варьируется: 33, 40, 50, 60 и 80 см. За счёт длины пропускная способность у душевых лотков выше, чем у точечных трапов. Такие модели  — отличное решение для душевых зон безбарьерного типа. Они станут стильным решением для дома, квартиры, отели, казармы и т.д. Ценовой диапазон варьируется от 1000-6000 грн. Поэтому на любой кошелек можно найти достойную альтернативу.
Комплектация душевых лотков следующая: желоб, решетка, затвор, ножки. Также модели могут иметь определенные фишки, такие как: гидроизоляционная лента, поворотный сифон на 360 градусов, фланец. Все эти дополнительные пункты стоит выбирать, отталкиваясь от места монтажа трапа. К примеру: если монтаж лотка осуществляется возле стены, тогда Вам лучше приобрести модель с вертикальным фланцем. Или же если вывод для подключения к канализационной трубе обустроен не совсем удобно при подключение лотка, тогда лучше приобрести модель с поворотным сифоном.
Для того, чтобы легче было подстроить высоту лотка под высоту стяжки,  они имеют регулируемые  ножки.
 Корпус лотка изготавливают как из полипропилена, так из нержавеющей стали. Лотки выпускают с очень большой вариацией решеток. В том числе один из таких вариантов лотки с решеткой под плитку. Это позволяет внутрь решетки укладывать плитку или мозаику, тем самым устройство практически не видно, а слив обустроен.
 
Для удобства монтажа изделие имеет треугольную форму. Это и плюс и минус одновременно. Так как трап можно установить только на стыке двух стен. А с другой стороны уклон пола делают только в одну сторону. Такие изделия не имеют регулировки по высоте, так как и точечные трапы. Их выпуск всегда горизонтальный с подключением на трубу DN50. Поэтому при выборе нужно обращать внимание на высоту, чтобы изделие вписалось под уровень стяжки.
Комплектация угловых трапов следующая: решетка, сифон, корпус. Как дополнение, может быть поворотный сифон на 360 градусов. Такие изделия имеют среднюю ценовую политику. Более стильный внешний вид, чем точечные модели.
Надеюсь, Вы нашли для себя полезную и новую информацию, а также после прочтения этой статьи приняли решение в пользу нужного и подходящего устройства.
разновидности и порядок монтажа под плитку, душевые трапы и сливы для душевых,щелевой слив, трап вертикальный, сантехнический, длинный, дренажный канал для душевой под плитку, сантехнические трапы.
Сливной трап для душа или желобная система водоотведения является универсальной конструкцией, предназначенной для эффективного удаления неагрессивных жидкостей, включая воду, с напольной поверхности в специальных помещениях.
Сливной трап для душа
Длинный решётчатый трап для душевого отделения
Содержание материала
- 1 Конструкционные характеристики и назначение
 - 2 Виды конструкций
- 2.1 Отличия по материалу
 - 2.2 Отличия по установке и размерам
 - 2.3 Каналы с дренажными свойствами
 - 2.4 Варианты затворов
 
 - 3 Рекомендации по выбору
 - 4 Самостоятельный монтаж
- 4.1 Подготовительные работы
 
 - 5 Технология монтажа
 - 6 Советы специалистов
- 6.1 Видео: Укладка плитки на пол,с применением МАГИИ ч.
 1 - 6.2 Видео: Укладка плитки с уклоном под слив в душевой ч.2
 - 6.3 Видео: Укладка плитки на пол,с уклоном под слив воды ч.3
 
 - 6.1 Видео: Укладка плитки на пол,с применением МАГИИ ч.
 
Конструкционные характеристики и назначение
Трап для душа относится к категории сложных сантехнических устройств, и закрепляется непосредственно на трубопроводе через специальное напольное отверстие. В состав такой конструкции входят:
- воронкообразный водоприёмник или корпус;
 - сифон, отвечающий за создание эффективного гидравлического затвора;
 - фланец, посредством которого выполняется герметичная фиксация гидроизолирующей мембранной части;
 - решетка, предотвращающая засор и выход из строя канализационной системы;
 - отводная муфтовая часть, присоединяемая к сливной части канализационной системы.
 
Схема сборки сливного трапа
В процессе эксплуатации сливного трапа всё устройство должно быть надёжно зафиксировано, а съёмная часть представлена только решетчатой накладкой. Значительная часть устройств душевого трапа устанавливается в пол, но некоторые модели встраиваются непосредственно в стену.
Декоративные решетки сливных трапов
Несмотря на кажущуюся простоту, сливные конструкции обладают широким функционалом:
- транспортируют водный поток в канализационный стояк;
 - обеспечивают оптимальную герметичность стыка с полом;
 - осуществляют первичную фильтрацию сточных вод и предотвращают засор канализации.
 
Посредством встроенного гидравлического затвора предотвращается проникновение в помещение всех неприятных канализационных запахов.
Виды конструкций
В зависимости от особенностей применения и предназначения, сливные трапы могут различаться по нескольким параметрам, включая материал, используемый для изготовления, а также способ выполнения монтажных работ.
Разновидности сливных трапов
Виды трапов
Отличия по материалу
Отечественными и зарубежными производителями выпускаются сантехнические конструкции, выполненные из традиционных и современных материалов:
В частных домовладениях и квартирах предпочтение рекомендуется отдавать легким, но надёжным, быстромонтируемым изделиям, пригодным для самостоятельной установки.
Сливной трап для душа
Отличия по установке и размерам
Различные виды трапов для душевого пола
Вертикальные элементы обладают большей пропускной способностью, но требуют специальных условий монтажа.
Трапы вертикальные
Схема вертикального трапа
Горизонтальные трапы могут использоваться в любых типах помещений, вне зависимости от этажности, поэтому относятся к категории наиболее популярных и часто применяемых сантехнических изделий. Размеры и высота значительной части моделей трапа варьируются в пределах 7,5-18,0 см. Верхняя решетка или лицевая панель может иметь круглую, квадратную или прямоугольную форму.
Трапы горизонтальные
Как правило, душевые трапы устанавливаются непосредственно в пол
Каналы с дренажными свойствами
Дренажного типа лотки-каналы для душа являются разновидностью традиционного сливного трапа и, при сохранении всей функциональности, отличаются особой, вытянутой формой.
 Узкие и продольные водозаборники располагаются в верхней части слива, и прикрыты декоративными накладками решетчатого типа.
Общий вид канала для душа
Душевой канал
Такой канал может монтироваться как в душевой зоне, так и в любой другой части помещения. Высокая пропускная способность дополняется большой площадью водосбора, что позволяет обеспечивать полноценный слив при значительном объеме водоподачи. Предпочтение такой конструкции отдаётся в «ливневых» и «водопадных» душах.
Новый уникальный погружной стакан гидрозатвора с двухступенчатой системой защиты
Душевые лотки и дренажные каналы
Варианты затворов
Вне зависимости от типа, конструкция оснащается специальной сифонной конфигурацией или затвором, предотвращающим попадание канализационного запаха в помещение:
Оптимальным вариантом, отличающимся высокой степенью надёжности, является применение универсальных систем затворов с двумя уровнями защиты, удачно совмещающих сухое и мокрое сдерживание запаха.
  Такое оборудование отличается оптимальным соотношением качественных характеристик и стоимости.
Рекомендации по выбору
При выборе специального элемента сантехнических коммуникаций, предназначенного для водоотвода стоков в канализационную систему, нужно в первую очередь обращать внимание на такой очень важный параметр, как показатели пропускной способности, обозначающие количество воды, которое трап способен стабильно выводить за единицу времени. Как правило, стандартный расчёт необходимой пропускной способности базируется на следующих данных:
- при диаметре верхней душевой лейки в 300 мм, средняя подача воды в час варьируется в пределах 30-90 л;
 - использование каскадного душа предполагает расход воды в пределах 1500-1800 л в час.
 
При выборе пропускной способности желательно закладывать в расчёт небольшой запас в размере 5-10%, что позволит предотвратить аварийные ситуации и подтопление.
При необходимости выполнить самостоятельный монтаж и отсутствии опыта проведения сантехнических работ, нежелательно приобретать модели круглой формы.
 Выполнить идеально ровный и красивый монтаж напольного покрытия, при установке такого трапа своими руками, будет достаточно проблематично.
Угловой круглый трап
Самостоятельный монтаж
Качественные современные сливные трапы способны длительное время выдерживать максимальную нагрузку сточных вод, поэтому их монтаж должен быть правильным, с обеспечением герметичности шовных соединений и соблюдением всех санитарно-гигиенических норм. Грамотное выполнение установки позволит обеспечить дренажному устройству длительный эксплуатационный период при сохранении внешней привлекательности.
Подробный план монтажа сливного трапа
Подготовительные работы
Предварительный этап требует четкого определения размеров всех слоев напольного покрытия в зоне проведения монтажных работ.
Шаг 1. Определение изменения высоты трапа. Сливная система должна располагаться ровно, без выступов над напольным покрытием. Рекомендуемый угол наклона системы составляет полтора сантиметра на каждый метр поверхности.
Схема монтажа душевого трапа
Уклон душевого трапа
Шаг 2. Определение расположения конструкции. Отступ от стены должен определяться размерами напольной плитки и шовного соединения. Соблюдение такого правила позволяет минимизировать количество подгонов и резки отделочного плитного материала.
Определите расположение трапа
Шаг 3. Финишная разметка. Определение направления сливной сточной системы и места врезки в канализационный стояк.
В подготовительные работы включается приобретение расходных материалов, количество которых рассчитывается в соответствии с размерами душевого помещения:
Для отделки в качестве напольного покрытия целесообразно использовать керамическую или керамогранитную плитку с нескользкой поверхностью, а также затирку и стандартный сантехнический герметик.
Противоскользящая плитка для ванной
Силиконовая затирка для швов между плитками
| Изображение | Производитель / описание | 
|---|---|
Герметик силиконовый белый 300 мл.  UNIPAK | |
| Герметик силиконовый сантехнический Ceresit CS 15 (белый,прозрачный) 280 мл | |
| Клей-Герметик KWIK SEAL сантехнический белый 162 мл | |
| Сантехнический герметик Quickseal Medium — средней фиксации | |
| Герметик Henkel «Момент Гермент» санитарный силиконовый бесцветный, 85мл | 
Установка в душевых, располагаемых в старой застройке, может потребовать удаления старого покрытия и обустройства нового, имеющего встроенные сливные коммуникации. Демонтаж потребует использования перфоратора, зубила и молотка, после чего тщательно удаляется весь строительный мусор. Подготовленное к монтажу душевое помещение должно иметь чистое, как правило, бетонное основание, а также канализационную систему на выход из сантехнических приборов. Старые чугунные трубопроводы желательно заменить новыми пластиковыми трубами, которые более удобны для врезки патрубка от душевого трапа.
Проведены работы по демонтажу старых покрытий
Канализация подведена к поддону
Проложена демпферная лента
Черновая заливка стяжки
Подготовленное основание и сливной трап
Технология монтажа
Правильно подобранный сливной душевой трап обладает устойчивостью к коррозийным изменениям, а также характеризуется надёжностью и прочностью.
 При необходимости, такую конструкцию можно разобрать и выполнить самостоятельную очистку.
Шаг 1. Участки всех стыков пола и стен, а также углы, тщательно обрабатываются мастикой, предотвращающей попадание влаги, а также образования плесени и очагов грибкового поражения.
Шаг 2. Сборка и последующая установка сливной системы, которая должна располагаться на прямой линии между участком врезки в систему канализации и стыка напольных плиточных элементов.
Шаг 3. Врезка в канализацию и обработка соединения при помощи силиконового сантехнического герметика. При необходимости подсоединения сливных труб от большого количества сантехнических приборов, используется стандартный переходник на несколько выходов.
Шаг 4. Дополнительная теплоизоляция бетонного основания при помощи гранулированных или экструдированных пенополистирольных листов. Контуры установленных элементов отводной системы аккуратно вырезаются при помощи строительного ножа.
Дополнительная теплоизоляция бетонного основания
Укладка теплоизоляции
Укладка утеплителя и установка трапа
Устанавливаем сифон
На этом этапе можно заменить теплоизолирующие материалы обустройством цементно-песчаной стяжки.
Шаг 5. Прокладка вдоль всех стен пластиковых деформационных бордюров или демпферной самоклеящейся ленты.
Шаг 6. Замешивание цементного раствора и нанесение его на пенополистирольную поверхность слоем в 3,5-4,0 см. Укладываемая смесь должна полностью скрывать установленный слив без фланца. Выравнивание цементной смеси выполняется строительным правилом.
Изоляция
Стяжка
Дальнейшие работы нужно выполнять примерно через три-четыре дня, после того, как бетонная стяжка хорошо застынет и наберёт полную крепость.
Выполнение облицовки стен в период высыхания стяжки
Шаг 7. Подготовка из изопласта мембраной прокладки диаметром в 15-20 см с отверстием в центральной части, и последующая фиксация винтовым способом вокруг фланца.
Шаг 8. Дополнительный слой гидроизоляции также нужно обеспечить в углах, на участках стыков и по всей поверхности под душевой кабиной. После обработки грунтовым составом наносится слой обмазочной мастики.
Нанесение грунта
Дополнительный слой гидроизоляции и установка сливного патрубка
Шаг 9. Подсоединение сифона и решетчатой накладки с прокладкой в виде резинового уплотнительного кольца.
Уплотнительное кольцо
Гидроизоляция
При правильной установке, декоративная решетка может легко демонтироваться, делая доступным для работ внутреннюю часть сливного трапа. Накладку нужно прикрыть полиэтиленом, что предотвратит попадание цементного раствора внутрь сливной системы.
Шаг 10. Нанесение ещё одного слоя цементной стяжки. При расположении сливного отверстия в центральной части душевого помещения, в диагональном направлении устанавливаются направляющие, нижний угол которых должен сходиться у трапа.
 Полученный треугольник также заполняется смесью.
Направляющие
Заливка смеси
Заливка стяжки с уклоном
Твердеющую цементную смесь требуется периодически увлажнять и тщательно разравнивать. На заключительном этапе удаляются направляющие, а освободившееся пространство заливается цементной смесью.
Советы специалистов
Наиболее удобным, с точки зрения самостоятельного монтажа, надежности и долговечности, является приобретение и установка наиболее современных, уже готовых наборных конструкций, представленных перфорированным металлопластиком. На монтируемую поверхность стальных конструкций рекомендовано наносить свинцовый сурик.
Используемое при обустройстве сливного трапа керамическое напольное покрытие, обязательно должно соответствовать повышенным требованиям. Поверхность плитки не должна быть скользкой или впитывать значительное количество влаги. Уровень влагопоглощения должен составлять 1,5% или менее от веса самой плитки.
Отделочные работы
Трап установлен
Видео: Укладка плитки на пол,с применением МАГИИ ч.
Видео: Укладка плитки с уклоном под слив в душевой ч.2
Видео: Укладка плитки на пол,с уклоном под слив воды ч.3
Шероховатость поверхности повышает безопасность эксплуатации и предупреждает скольжение при попадании воды. Монтаж осуществляется на специальные клеевые контактные составы. Все шовные соединения между элементами плиточного покрытия заделываются исключительно водостойкой затиркой, которая может быть в тон основного покрытия или имеет контрастное окрашивание. Установка полотенцесушителя в ванной изучайте по ссылке.
Слив в полу
Линейные желоба для душа | Easy Drain
Линейные желоба для душа | Легкий слив | Идеально подходит для каждой ванной комнаты100% водонепроницаемость
10-летняя гарантия
Простая установка
Легко чистить
Наиболее важные этапы
1
Выберите место и размер
 Вы можете разместить свой желоб прямо на стене или в полу.
 Мы рекомендуем установку у стены, которая имеет односторонний наклон, то есть; меньше резки плитки, чистые линии и высокая пропускная способность дренажа.
- Настенная установка
 - Свободная установка в пол
 
Поиск по стилю
От традиционного до роскошного дизайна. Найдите трап для душа, который лучше всего подходит к дизайну вашей ванной комнаты.
 Душевая кабина, безбарьерный душ или душ-ступенька становятся все более популярными и все чаще используются в современном дизайне ванных комнат. Эти популярные типы душевых полов в основном устанавливаются в сочетании с линейным желобом для душа, который предлагает ряд преимуществ, таких как простота очистки, использование крупноформатной плитки и односторонний наклон к сливу.
Ежегодно Пол выполняет не менее 8 ремонтов ванных комнат. «Все больше и больше людей предпочитают душевую кабину традиционному душевому поддону, — говорит Пол. — Безбарьерный душ требует меньше обслуживания, безопаснее и эстетичнее». «Хотя у меня большой опыт ремонта ванных комнат, каждый новый проект — это вызов». Чтобы обеспечить удовлетворенность клиентов, я предпочитаю работать только с высококачественными продуктами и материалами».
Читать далееПочему стоит выбрать линейный слив?
Создайте ванную комнату своей мечты
 В отличие от традиционного душевого желоба, для которого требуется четырехсторонний наклон и который применим только при наличии     мелкой плитки, для линейного душевого желоба, установленного у стены, требуется только один- боковой уклон и может использоваться с плиткой большого формата. Благодаря изобретению желоба для душа у вас есть максимальная свобода в дизайне безбарьерной ванной комнаты.
 Водосточную систему можно установить по-разному — узнайте, какой желоб лучше всего подходит для вашего проекта. 
Преимущества
Внешний вид – Линейные желоба имеют гладкий и тонкий внешний вид, привлекающий внимание и подходящий для самых разных душевых полов.
Техническое обслуживание – Линейные трапы обеспечивают простоту обслуживания и эффективный отвод воды. Кто не любит легко очищаемый слив для душа?
Гибкость – Линейные трапы можно разместить практически в любом месте безбарьерной ванной комнаты. Это дает вам возможность создать идеальную планировку ванной комнаты.
Узнайте больше о преимуществах безбарьерного душаВанная комната с перспективой на будущее
 По сравнению с традиционными душевыми поддонами и желобами линейные желоба намного безопаснее, поскольку они удаляют препятствия. Безбарьерная душевая кабина находится на одном уровне с полом ванной комнаты. Это создает ванную комнату, подходящую для инвалидных колясок и пожилых людей, которой могут пользоваться многие поколения.
Создайте больше места
Вы легко освободите пространство в ванной, убрав все пороги и оставив напольную плитку в ванной комнате в душе. Безбарьерный душ начинается с линейного желоба.
Как создать безопасную ванную комнатуПочему стоит выбрать Easy Drain?
Подходит для любого проекта ванной комнаты
Длина до 2 метров – Линейные желоба Easy Drain доступны длиной от 200 мм до 2000 мм и оснащены нашими запатентованными технологиями.
Низкие эксплуатационные расходы и простота очистки – Все наши трапы изготовлены из высококачественной нержавеющей стали и поэтому требуют минимального обслуживания. Наши трапы легко чистить благодаря легко снимаемому сифону и ловушке для волос.
  10-летняя гарантия   – Мы верим в качество наших желобов для душа.
 Именно поэтому мы предлагаем вам 10-летнюю гарантию на всю нашу продукцию.
Легкая гидроизоляция
Будь то ремонт или новое строительство, гидроизоляция необходима для любого типа ванной комнаты или помещения с повышенной влажностью. С нашими наборами Easy Seal мы предлагаем гарантированно безопасную и 100% водонепроницаемую систему гидроизоляции в сочетании с одним из наших Easy Drains. В результате исключается протечка неисправной установки из-за неблагоприятных условий.
Подробнее о гидроизоляцииПростая установка №
Трапы Easy Drain поставляются в виде полного комплекта и состоят всего из нескольких частей, что обеспечивает быструю и легкую установку. С помощью наших подробных руководств по установке и видеороликов сборка Easy Drain выполняется за считанные секунды.
Часто задаваемые вопросы
Где я могу купить продукт ESS?
 Продукцию ESS можно найти в выставочных залах и у оптовиков по всему миру.
 Вы можете легко найти дилера в вашем регионе, используя поиск дилеров. Если вы являетесь оптовым и/или розничным продавцом и заинтересованы в нашей продукции, пожалуйста, свяжитесь с нами.
Читать ответ полностью
Существуют ли специальные решения для крупных проектов?
Да, мы предлагаем специальные решения для любого типа проекта, будь то гостиничный, жилой или медицинский проект. Взгляните на наши ссылки. Свяжитесь с нами, если у вас есть особые требования к вашему проекту.
Примечание: Для достижения наилучшего результата внимательно прочитайте руководство по установке, так как точные инструкции зависят от типа желоба. Мы рекомендуем, чтобы установку трапа для душа выполняли только обученные специалисты в соответствии с местными строительными нормами.
Читать полный ответ
Я потерял руководство по установке
 Руководство по установке можно найти в разделе поддержки.
- Обратитесь в службу поддержки
 - Поиск по артикулу или ключевому слову/фильтр по категории
 - Выберите продукт
 
Читать ответ полностью
Можно ли размещать душевые желоба Easy Drain рядом с бассейном?
Да, мы рекомендуем использовать нержавеющую сталь 316 для вашего душевого трапа, когда он контактирует с растворами хлоридов (например, в бассейнах) или находится снаружи в соленой среде (например, на побережье). Для получения более подробной информации свяжитесь с нами. В дополнение к стандартным желобам для душа линия Pool специально разработана для дренажа бассейнов и спа.
Читать ответ полностью
Соответствуют ли душевые трапы Easy Drain стандарту EN 1253?
Да, водоотводящие желоба Easy Drain имеют пропускную способность в соответствии с EN 1253
  EN 1253 
 Этот европейский стандарт дает рекомендации по местам установки и устанавливает требования для конструкции, дизайна, производительности и маркировки, а также методов испытаний.Читать полный ответ
Сертифицированы ли душевые желоба Easy Drain ETAG-022?
 Требования к герметизации стен и полов во влажных помещениях установлены европейским стандартом ETAG 022. 
 Все дренажные системы Easy Drain с системой защиты от воды (предустановленная уплотнительная мембрана) соответствуют этому стандарту.
Читать ответ полностью
Можно ли установить желоб в бетонный пол или основание? №
Да, все душевые желоба Easy Drain подходят для укладки в бетонный (черновой) пол.
 Бетон представляет собой очень прочное и гладкое основание, на которое после высыхания можно сразу же укладывать плитку. Еще одним большим преимуществом является то, что он может выдерживать значительный вес, а чистовой пол можно снять, не повредив бетон.
Примечание: Черновой пол представляет собой толстую и плоскую структурную поверхность, которая является основой для всех вышеперечисленных слоев напольного покрытия. Во всех домах есть цокольный этаж.
Примечание. Для достижения наилучшего результата внимательно прочитайте руководство по установке, поскольку точные инструкции зависят от типа желоба. Мы рекомендуем, чтобы установку трапа для душа выполняли только обученные специалисты в соответствии с местными строительными нормами.
Читать ответ полностью
Можно ли укладывать желоб в деревянный пол?
Да, несмотря на то, что бетон является наиболее распространенным материалом для чернового пола, многие ванные комнаты до сих пор строятся на деревянном черновом полу. В некоторых странах в качестве подложки для влажных помещений даже чаще используют дерево, чем бетон. Водоотводящие желоба Easy Drain можно монтировать в деревянный пол, но есть специальные модели Easy Drain, упрощающие установку:
- Водоотводящие желоба с соединением, вращающимся на 360 градусов
 - Водоотводящие желоба с вертикальным выпуском большого объема M2 (заказываются отдельно)
 - Водоотводящие желоба с 2-дюймовым вертикальным сливом (США)
 
При установке душевого желоба на деревянный пол учитывайте следующее:
- Пол должен выдерживать вес вышеуказанных слоев
 - Рекомендуется гидроизоляция всей влажной зоны
 - Убедитесь, что слив имеет водонепроницаемое соединение с дренажной трубой
 
  Примечание:  Черный пол представляет собой толстую и плоскую структурную поверхность, которая является основой для всех вышеперечисленных слоев напольного покрытия.
Читать ответ полностью
Можно ли использовать сливную систему в сочетании с теплым полом? №
Да, желоб для душа Easy Drain можно использовать в сочетании с теплым полом при условии, что теплый пол расположен на расстоянии не менее 30 см от сливного отверстия.
Читать полный ответ
Как узнать, сколько воды производит мой душ?
  Проект реконструкции 
  Поставьте в душе ведро с указанием литров. Затем подсчитайте количество литров, которое насадка для душа производит в минуту.
  Новостройка  
 Количество воды, которое производит душ, зависит от:
- Расхода и давления воды в котле
 - Расход душевой лейки
 
Мы рекомендуем всегда консультироваться со специалистом при определении расхода и воды, производимой душем.
  Примечание. Для достижения наилучшего результата внимательно прочитайте руководство по установке, поскольку точные инструкции зависят от типа желоба.
 Мы рекомендуем, чтобы установку трапа для душа выполняли только обученные специалисты в соответствии с местными строительными нормами. 
Читать ответ полностью
Должен ли быть уклон дренажной трубы?
Перед тем, как подсоединить желоб для душа к дренажной трубе, убедитесь, что труба имеет достаточный уклон и имеет как можно меньше изгибов. Таким образом, вода легко стекает.
Примечание. Для достижения наилучшего результата внимательно прочитайте руководство по установке, поскольку точные инструкции зависят от типа желоба. Мы рекомендуем, чтобы установку трапа для душа выполняли только обученные специалисты в соответствии с местными строительными нормами.
Читать ответ полностью
Нужно ли заземлять трап для душа?
Мы рекомендуем, чтобы все наши желоба для душа были должным образом заземлены с помощью прилагаемого зажима заземления.
  Примечание.
 Для достижения наилучшего результата внимательно прочитайте руководство по установке, поскольку точные инструкции зависят от типа желоба. Мы рекомендуем, чтобы установку трапа для душа выполняли только обученные специалисты в соответствии с местными строительными нормами.  
Читать полный ответ
Что такое система защиты воды (WPS)?
Инновационная система защиты воды Easy Drain (WPS) представляет собой простую в установке и безопасную в сборке систему уплотнения для линейных душевых и напольных трапов. Эта WPS-система состоит из гибкой гидроизоляции 9Мембрана 0039, которая соединяется с фланцами линейного трапа из нержавеющей стали или со специальной манжетой напольного трапа. Таким образом, исключается утечка в результате неправильной установки из-за неблагоприятных условий.
Читать полный ответ
Что такое Регулируемая рамка плитки (TAF)?
 Тонкая рама из нержавеющей стали в сочетании с несколькими запатентованными технологиями обеспечивает плавную и надежную установку.
 Инновационная TAF (Tile Adjustable Frame) полностью регулируется во время укладки плитки. TAF избавляет от догадок, создает законченную кромку и обеспечивает идеальное прилегание к напольному материалу любой толщины. Рама может быть оснащена торцевыми прокладками разной длины для идеального прилегания к стене. Она доступна в стандартной (7-18 мм), высокой версии (17-28 мм) для использования с очень толстой плиткой и низкой версии (3-18 мм). 13 мм) для тонкого пола.
Читать ответ полностью
Что такое вторичный дренаж?
Благодаря нашей запатентованной системе TAF (Tile Adjustable Frame) мы предлагаем уникальную возможность применения вторичного дренажа в безбарьерной установке. Таким образом, любая вода, просачивающаяся под плитку из-за пористого герметика или трещин, может стекать обратно в душевой трап.
Читать ответ полностью
В каких случаях применяется вертикальный выпуск?
 В большинстве случаев установки подходит горизонтальный выход, но может случиться так, что вертикальный выход будет необходим из-за препятствий на пути (например, из-за деревянных полов).
 В этом случае можно заказать желоб с опциональным вертикальным выпуском.
Примечание. Для достижения наилучшего результата внимательно прочитайте руководство по установке, поскольку точные инструкции зависят от типа желоба. Мы рекомендуем, чтобы установку трапа для душа выполняли только обученные специалисты в соответствии с местными строительными нормами.
Читать ответ полностью
Какой уклон нужен для плиточного пола?
При облицовке пола убедитесь, что вы создаете уклон не менее 2% в сторону желоба душа. Требования к наклону пола могут отличаться для душевых кабин со стеклянными стенами. Пожалуйста, проконсультируйтесь с вашим поставщиком по этому вопросу. Кроме того, плитка должна быть уложена вровень или на 1 мм выше верхнего края рамы плитки, чтобы обеспечить хороший дренаж в сторону душевого стока.
  Примечание. Для достижения наилучшего результата внимательно прочитайте руководство по установке, так как установка продукта может отличаться в зависимости от модели.
 Мы рекомендуем, чтобы установку трапа для душа выполняли только обученные специалисты в соответствии с местными строительными нормами. 
Читать ответ полностью
Что такое линейный желоб для душа?
Линейный желоб представляет собой удлиненный желоб (включая сифон), обеспечивающий максимально эффективный и гигиеничный слив воды. Благодаря линейному трапу для душа плитку большого размера проще использовать в качестве пола в душе. С момента своего изобретения он произвел революцию в ванных комнатах по всему миру и превратил их в современные модные безбарьерные ванные комнаты. Преимущества линейного желоба по сравнению с традиционным желобом многочисленны.
- Односторонний наклон (установка на стену)
 - Подходит для плит большого размера
 - Легкая очистка
 - Высокая пропускная способность
 - Меньше резки плитки
 - Чистые линии
 - Другие варианты дизайна
 
  Примечание: Для достижения наилучшего результата внимательно прочитайте руководство по установке, так как точные инструкции зависят от типа желоба.
 Мы рекомендуем, чтобы установку трапа для душа выполняли только обученные специалисты в соответствии с местными строительными нормами. 
Читать ответ полностью
Что такое безбарьерный душ или душевая кабина? №
В отличие от традиционного душевого поддона безбарьерный душ или душевая кабина находятся на одном уровне с полом. В этом случае пол имеет уклон в сторону слива, поэтому вся вода будет стекать эффективно, а поддон не нужен. С этим типом душа вы можете использовать плитку для ванной комнаты в душе и иметь полную свободу в проектировании ванной комнаты своей мечты. Еще одним большим плюсом душевой кабины или безбарьерного душа является то, что она ориентирована на будущее, а это означает, что она эффективно использует пространство и не содержит мешающих барьеров или ступеней (безбарьерная среда).
  Примечание: Для достижения наилучшего результата внимательно прочитайте руководство по установке, так как точные инструкции зависят от типа желоба.
 Мы рекомендуем, чтобы установку трапа для душа выполняли только обученные специалисты в соответствии с местными строительными нормами. 
Читать ответ полностью
Какие варианты решеток возможны?
Могу ли я использовать собственную плитку в качестве решетки? №
Easy Drain предлагает широкий ассортимент душевых желобов, специально разработанных для укладки плитки в ванной комнате (невидимый внешний вид). Кроме того, наши модели Zero-Tile имеют реверсивную решетку, позволяющую создавать внешний вид как плитки, так и нержавеющей стали.
- Водоотводящие желоба с облицовочной решеткой
 - Водоотводящие желоба с реверсивной решеткой (нулевой/под плитку)
 
  Примечание: Для достижения наилучшего результата внимательно прочитайте руководство по установке, так как точные инструкции зависят от типа желоба. Мы рекомендуем, чтобы установку трапа для душа выполняли только обученные специалисты в соответствии с местными строительными нормами.
 
Читать ответ полностью
Поставляются ли желоба Easy Drain в комплекте?
Душевые желоба Most Easy Drain поставляются в комплекте. Комплектация состоит из конструкторского комплекта (решетка/рама) и встроенного комплекта (часть, уходящая в пол). Полный комплект также содержит все необходимые аксессуары для установки и обслуживания, такие как регулируемые по высоте ножки, инструмент для снятия решетки, приспособление для укладки плитки и т. д.
Примечание. инструкции зависят от типа желоба для душа. Мы рекомендуем, чтобы установку трапа для душа выполняли только обученные специалисты в соответствии с местными строительными нормами.
Читать ответ полностью
Какие душевые желоба подходят для инвалидов-колясочников?
Все решетки (конструкторские комплекты) подходят для инвалидов-колясочников, за исключением стеклянных решеток.
  Примечание: Для достижения наилучшего результата внимательно прочитайте руководство по установке, так как точные инструкции зависят от типа желоба.
 Мы рекомендуем, чтобы установку трапа для душа выполняли только обученные специалисты в соответствии с местными строительными нормами. 
Читать ответ полностью
Какие материалы используются для изготовления желобов Easy Drain?
Изделия Easy Drain изготовлены из высококачественной нержавеющей стали (304 или 316), очень прочного антибактериального АБС-пластика и полипропилена (ПП), что гарантирует их долговечность в вашей ванной комнате.
Читать полный ответ
Найдите наш веб-сайт, созданный специально для вас
Вы посещаете наш глобальный веб-сайт. В зависимости от ваших языковых предпочтений вас может заинтересовать наш веб-сайт для , где вы можете найти информацию о доступных там продуктах.
Перейти на сайт Скрыть это сообщение
 Мы используем файлы cookie, чтобы предоставлять полезные функции и измерять производительность, чтобы улучшить ваш опыт.
 Нажимая «Принять файлы cookie», вы соглашаетесь на использование всех файлов cookie. Нажимая «Настройки файлов cookie», вы соглашаетесь только с выбранными вами категориями. Дополнительную информацию можно найти в нашей Политике в отношении файлов cookie.
Все продукты — Фергюсон
правда
правда
Чтобы увидеть местную доступность и точные местные цены, сначала нужно выбрать ближайший к вам магазин.
категория
Нет подходящих результатов поиска
Ванная сантехника
(35945)
Отопление и охлаждение
(35330)
Сантехнические детали и расходные материалы
(27928)
Трубная арматура
(27501)
Освещение и вентиляторы
(19155)
Инструменты
(17145)
Клапаны
(12529)
Дворник
(9643)
Безопасность и безопасность
(9312)
Насосы
(9116)
- Показать больше
 
торговая марка
Нет подходящих результатов поиска
-  jsp?/category/signature-hardware/_/N-zc3lcg&n=zbq4jd&sr=everywhere» data-right-content-url=»/cartridges/main/plpRedesign/ajaxPlpRightItems.jsp?/category/signature-hardware/_/N-zc3lcg&n=zbq4jd&sr=everywhere» data-category-url=»/category/signature-hardware/_/N-zc3lcg&n=zbq4jd&sr=everywhere»>
 КОЛЕР
(6436)
 jsp?/category/ford-meter-box/_/N-zbqrn6&n=zbq4jd&sr=everywhere» data-right-content-url=»/cartridges/main/plpRedesign/ajaxPlpRightItems.jsp?/category/ford-meter-box/_/N-zbqrn6&n=zbq4jd&sr=everywhere» data-category-url=»/category/ford-meter-box/_/N-zbqrn6&n=zbq4jd&sr=everywhere»>Рим
(3124)
 jsp?/category/jones-stephens/_/N-zbqrof&n=zbq4jd&sr=everywhere» data-right-content-url=»/cartridges/main/plpRedesign/ajaxPlpRightItems.jsp?/category/jones-stephens/_/N-zbqrof&n=zbq4jd&sr=everywhere» data-category-url=»/category/jones-stephens/_/N-zbqrof&n=zbq4jd&sr=everywhere»>Моен
(3068)
 jsp?/category/proflo/_/N-zbq6na&n=zbq4jd&sr=everywhere» data-right-content-url=»/cartridges/main/plpRedesign/ajaxPlpRightItems.jsp?/category/proflo/_/N-zbq6na&n=zbq4jd&sr=everywhere» data-category-url=»/category/proflo/_/N-zbq6na&n=zbq4jd&sr=everywhere»>Компания Мюллер
(2718)
Оборудование для подписи
(11715)
Коробка счетчика Ford
(3393)
Джонс Стивенс
(3122)
ПРОФЛО®
(2929)

 1
 UNIPAK