Раздвижные межкомнатные двери: виды и размеры
Содержание
- Особенности конструкции
- Основные виды систем
- Размеры проема
- Размеры полотна
- Варианты дизайна
Если вы решили установить у себя дома раздвижные межкомнатные двери, важно выяснить размеры проема, а также самого полотна, которые будут подходящими конкретно для вашего случая. Относительно этих параметров существую некоторые ограничения по ГОСТ. Давайте рассмотрим, какие типы конструкций станут оптимальным выбором в той или иной ситуации.
Раздвижные двери отличаются компактностью и привлекательным внешним видом
Особенности конструкции
Раздвижные двери в последнее время все чаще можно увидеть в интерьере не только частных домов и квартир, но и в общественных местах. Такие конструкции стали весьма популярными благодаря своему необычному декоративному виду и компактности. С каждым годом производители придумывают все более нестандартные и интересные в исполнении варианты, которые позволяют удовлетворить нетипичные размеры проема и вписать конструкцию в общую обстановку.
Основной принцип раздвижных конструкций состоит в том, что вместо массивного полотна, которое распахивается в одну из сторон, используется более изящное изделие, движение осуществляется в сторону вдоль стены и самого проема благодаря направляющим и роликовой системе. Размеры полотна при этом устанавливаются в определенной мере стандартами ГОСТ, но требования к ним не такие строгие, как для обычных изделий.
Итак, какие бывают раздвижные межкомнатные двери? Главной особенностью является разнообразие доступных для исполнения материалов, что позволяет такой конструкции гармонично смотреться практически в любом интерьере. Чаще всего используются:
- металл;
- дерево;
- МДФ;
- пластик;
- ламинат;
- стекло и зеркала;
- бамбук и прочие натуральные материалы.
Разновидности раздвижных дверей в зависимости от материала изготовления
Основные виды систем
Виды раздвижных дверей для межкомнатных перегородок не ограничиваются лишь распределением по используемым материалам.
Также следует различать типажи самих полотен, прежде всего они бывают:
- Одностворчатые. Проход закрывает одно полотно, которое может двигаться в одну сторону или в обе при отсутствии ограничителя и наличии рельс.
- Двухстворчатые. Два полотна одинакового или разного размера. Подходят для широкого проема.
Если вы хотите использовать раздвижную систему в качестве перегородки, количество полотен может быть увеличено до четырех. В таком случае при необходимости можно будет разделить одно большое помещение на две изолированные друг от друга комнаты.
Также бывают различные типы раздвижных систем для межкомнатных дверей:
- Купейные
. Это стандартные системы. Прямое полотно передвигается вдоль стены благодаря наличию направляющих и роликов, закрепленных на двери. - Книжка. Такая модель зачастую представляет собой полотно, разбитое на две или три части, которое складывается по принципу «книжки» благодаря петлям, соединяющим элементы.

- Гармошка. Модель подобная книжной, но в этом случае полотно состоит из множества вертикальных ламелей, соединенных между собой шарнирами. В основе принципа движения – бегунки с направляющими рельсами.
Основные виды систем раздвижных дверей по типу открывания
Особых требований ГОСТ на каждый конкретный вид раздвижных дверей по сути не существует. Все стандарты можно вывести в общую категорию, которая регламентирует принципы строения систем и размеры для проема и самого полотна изделия.
Размеры проема
При проектировании оформления дверного проема с учетом установки раздвижной системы важно учитывать ряд нюансов, часть которых регламентирует ГОСТ. Это касается, в первую очередь, самого проема.
Итак, рассмотрим, какие бывают размеры проема. Размеры проема для всех раздвижных дверей должны быть не менее 80 см. Идеальный вариант – 90-100 см для одностворчатых конструкций. Для двух створок нужно не менее 120-150 см пространства.
Размеры проема могут доходить до 220 см. Если ширина проема больше, тогда требуется сложная система, состоящая из нескольких полотен. При этом они могут быть как полностью независимыми друг от друга, так и складываться в четкой последовательности.
При проектировании раздвижной двери важным фактором является размер дверного проема
Согласно ГОСТ при установке короба между стеной и самой рамой должен оставаться небольшой зазор. Это позволяет отрегулировать положение лутки и распределить нагрузку за счет использования монтажной пены. В связи с этим размеры проема и дверной коробки будут отличаться на установленное количество сантиметров.
Размеры полотна
Помимо габаритов проема важно знать и требуемые по ГОСТ размеры полотен раздвижных межкомнатных дверей. Основной принцип состоит в том, что сама дверь будет несколько меньше, чем ширина проема. Часть пространства скроет коробка. При этом важно учитывать, будет полотно передвигаться вдоль стены или внутри проема с заездом внутрь стеновой перегородки.
Согласно ГОСТ оптимальные размеры полотна для раздвижной межкомнатной двери составляют в среднем 90 см. Для широких проходов используются двухстворчатые и более сложные конструкции. Размеры одной створки должны составлять не менее 60 см и не более 120 см. Высота таких изделий обычно устанавливается по стандарту – 210 см, однако может изменяться до 240-250 см. Также важно учитывать вес полотна, сложность его исполнения и тип используемых материалов.
Оптимальной шириной раздвижной двери принято считать 90 см
Варианты дизайна
Раздвижные двери в современном интерьере смотрятся довольно органично. Они легкие с виду, но при этом способны полноценно выполнять возложенные на них функции. Конечно, звукоизоляция будет не такой хорошей, как в условиях использования распашных изделий, но зато вам удастся сэкономить место.Вариантов использования таких перегородок в интерьере невероятно много. Обычно их используют в качестве двери на совмещенной кухне. Это позволяет зонировать пространство на две функциональные части.
Также раздвижные конструкции отлично смотрятся в интерьере спальни. Можно использовать легкие перегородки в качестве оформления для входа в гардеробную.
В интерьере раздвижные двери чаще всего используют для зонирования пространства
Какие именно материалы использовать и какой дизайн оформления будет уместен в конкретном интерьере, зависит от предпочтений хозяев и тематической стилистики помещения в целом.
При выборе оформления раздвижной двери немалое значение имеют не только её размеры, но и тип самой системы. Используемые материалы выглядят по-разному и способны как подчеркнуть изящество перегородки, так и сделать её более грубой визуально.
Выбирая ту или иную модель важно учитывать, как она будет смотреться в интерьере. Если размеры прохода не позволяют использовать такой вариант, есть два выхода из ситуации: изменить габариты проема или выбрать другой тип двери.
Рекомендуем посмотреть видео
youtube.com/embed/lavcoZ6uLiU» frameborder=»0″ allowfullscreen=»»>размеры проема (ширина, высота, толщина)
Повышенное внимание в процессе установки межкомнатной двери нужно обращать на размеры дверного проема, его конфигурацию и ряд других критериев. Именно с размерами стоит определиться заблаговременно, чтобы исключить возникновение нежелательных ситуаций, например, заказ нестандартного дверного полотна и коробки либо дополнительная отделка стен. Не стоит упоминать, что межкомнатные двери и процесс их установки в случае несовпадения габаритов изделия с размерами проема в целом выйдут для хозяина в несколько раз дороже, чем это могло бы быть.
Проём для межкомнатных дверейСтандартные размеры межкомнатных дверей
Важно заметить, что сегодня изготовители межкомнатных дверей производят огромный ассортимент изделий. У большинства товаров стандартные размеры:
- 200 см – высота;
- 60, 70 или 80 см – ширина.
Но некоторые изготовители выпускают дверные конструкции, у которых ширина равняется 55 см, высота – 190 см.
Помимо размеров дверного полотна, варьируются и параметры коробки: ширина может составлять 1,5-4,5 см.
Эти сведения чрезвычайно важны, когда определяют размер проема под межкомнатную конструкцию. Если данными величинами пренебречь, то вполне может проявиться ситуация, когда межкомнатные двери не поместятся в существующий дверной проем.
Это неизбежно приведет к трате дополнительных средств ввиду его уширения. Помимо этого, наличие электрического кабеля и других коммуникаций, металлического каркаса у гипсокартонных ограждений тоже плохо скажется на уширении проема под межкомнатную дверь.
Ситуация окажется патовой тогда, когда дверной проем будет превышать стандартные размеры дверного полотна. Уменьшение дверного проема тоже повлечет за собой надобность обращения в специализированн
- высота предполагаемого дверного полотна и его ширина;
- толщина с шириной дверной коробки;
- ширина наличников;
- присутствие порога и его размеры.

Помимо ширины и высоты, толщина также характеризует дверные проемы. В типовой планировке квартиры толщина под стандартные размеры проема предусмотрена в 7,5 см. В соответствии с этим фактом изготовители межкомнатных дверей производят коробки для установки аналогичной толщины.
При монтаже конструкции это следует учитывать. Иначе речь может зайти об установке расширителя для коробки либо об ее отпиле вдоль. Если не предусмотреть все данные, то установка наличников в последующем может вызвать проблемы и не отвечать требованиям привлекательност
Толщину рекомендуют измерять в трех местах, чтобы определить параметры стены. При отличающихся показателях по всему периметру проема придется заказывать нетипичные межкомнатные полотна. Когда толщина в трех точках различна, придется делать подпил дверной коробки или устанавливать доборы.
Неодинаковость толщины является свидетельством кривизны стен. Не предпринимая данных мер, качественной установки наличников можно и не ожидать.
Раздвижные двери: правильное размещение
Комфортабельные раздвижные двери сегодня вытесняют стандартные распашные конструкции. Нередко они раздвигаются вдоль стены. Раздвижные изделия могут быть изготовлены из различных материалов: массив древесины, обклеенные плиты МДФ, древесно-стружечная плита, алюминиевые профили со светопрозрачным заполнением.
Конструкции могут быть и облегченного типа, например, из ткани или рисовой бумаги, которые натягивают на раму или каркас.
В ситуации установки раздвигающихся створок дверей потребуется предусмотреть свободное пространство поблизости с проемом, величина которого должна соответствовать ширине раздвижной створки. На той стене, куда поставят направляющее устройство, не должно находиться никаких препятствий в виде ниш, труб, выступов, вентиляционных каналов и пр.
Если более привлекателен вариант с маскировкой раздвижной конструкции в стене, то эту стену нужно установить в период ремонта и поместить в ней направляющую либо специальную кассету, вмещающую в себя дверь. Если нет возможности соорудить новое ограждение, то целесообразнее поставить раздвижной механизм рядом со стеной либо же прикрепить направляющую и заделать ее листами гипсокартона.
Системы раздвижных дверей
Любое изделие возможно приобрести в готовом исполнении, а можно и заказать по индивидуальным размерам в соответствии с собственными вкусами. Какой вариант лучше подойдет в ситуации с раздвижной установкой? Учтите, что полотно в открытом положении должно заходить на стену, в противном случае щели станут заметны.
Створки готового раздвижного изделия имеют стандартные габариты: 205 см – высота и 60-100 см – ширина. Толщина этих дверей не превышает в большинстве случаев 4 см. При самостоятельном возведении стены для данного типа двери «подогнать» размеры под имеющееся полотно вполне возможно.
Различают несколько систем раздвижных дверей:
- Купейная система. Устанавливая раздвигающуюся систему, у которой створки скользят вдоль поверхности стены при открывании, полотна следует подбирать немного большие, нежели размеры проема. К примеру, при ширине проема в 68 см выбирают полотно с шириной в 70 см. Соответствующие требования существуют и для профиля, составляющего направляющую для скольжения: его длина должна быть вдвое больше ширины полотна.
- Система типа «пенал». При монтаже створке (таким образом, чтобы он въезжала в специальную кассету) подбирают конструкцию, у которой створки в раздвинутом состоянии будут немного выступать за пределы ниши. При этом размеры створок делают равными проему либо превосходящими его ширину всего на несколько сантиметров. При ширине входа, равной 70 см, ширину пенала делают равной 60 см. Но результат зависит исключительно от предпочтений хозяев. К примеру, возможно смонтировать изделие так, чтобы полотно уходило всей массой в кассету.

- Системы со складными створками. Складывающиеся при открывании межкомнатные двери – это раздвижные конструкции с переменными размерами, на которые влияет количество прикрепленных панелей-створок. Отдельный сегмент в ширину составляет 10-12 см. Стандартный проем способен уместить створки, включающие в себя 6-7 подобных секций.
При нестандартных габаритах помещения и дверного проема, а также при отсутствии уверенности в правильности сделанного выбора готового изделия заказать двери лучше всего у специалистов, которые выполнят полные замеры и изготовят именно то изделие, которое будет идеально подходить под все параметры.
Размеры раздвижных дверей: подбираем размер дверей купе
Сегодня очень популярны раздвижные двери и перегородки. В них дверное полотно движется в правую или левую сторону вдоль стены по направляющим. Система раздвижных дверей дает возможность экономить пространство, рационально использовать свободную площадь. Ее часто выбирают для межкомнатных дверей в малогабаритных жилых помещениях.
Но для правильного выбора и заказа изделия важно знать размеры раздвижных дверей.
Содержимое
- Стандартные размеры раздвижных межкомнатных дверей
- Размер проема раздвижной двери: высота, ширина
- Дверь купе межкомнатная: размеры монтажного проема минимальные
- Подбираем размер дверного полотна под дверной проем – таблица
- Как правильно сделать измерения?
- Высота проема для раздвижной двери: видео
Стандартные размеры раздвижных межкомнатных дверей
При подборе двери под имеющийся дверной проем нужно учитывать размеры полотна с коробом. Габариты раздвижных дверей приводятся в ГОСТ. Стандартная высота раздвижных дверей составляет 200 или 210 см. Стандартная ширина дверного изделия с раздвижной системой бывает 55, 60, 80, 70 см.
В торговых компаниях предлагают готовые дверные конструкции со стандартными параметрами. Продают раздвижные межкомнатные двери 550х2000, 600х2000, 800х2100, 700х2100 мм. Если дверной проход нетиповой, тогда заказывают изготовление под него дверного блока по индивидуальным параметрам.
У раздвижных дверей межкомнатных толщина конструкции варьируется в пределах. Все зависит от модели, материала изготовления изделия. Данный параметр стандартами не регламентируется. Поэтому фирмы-производители изготавливают и поставляют на рынок раздвижные межкомнатные двери различной толщины.
Размер проема раздвижной двери: высота, ширина
Габариты проема для раздвижной двери минимально должны составлять 80 см. Идеальная ширина проема для данного типа двери – 90-100 см. Это размеры дверного прохода для одностворчатого изделия. Есть также модели, состоящие из двух полотен. Их створки движутся вдоль стены. Размеры дверного проема для модели из двух створок должны быть не менее 120 см. Ширина проема под раздвижную дверь двустворчатого типа может достигать 220 см. Высота дверного проема варьируется в пределах 1976-2076 мм для однополотных изделий и 2200 мм – для многостворчатых моделей.
Дверь купе межкомнатная: размеры монтажного проема минимальные
Соблюдать определенное расстояние двери купе от стены, делать монтажный зазор не нужно.
Дверное полотно должно перекрывать проход. Ширину дверного полотна двери-купе выбирают больше размера проема на 5-7 см. Это требуется для правильной установки и отсутствия лишних зазоров. Поэтому минимальная ширина проема составляет 75 см. Минимальная глубина проема в стене для установки откатной раздвижной двери составляет 8,2 см. Высота минимально должна быть 194 см. Соответственно, под дверь-купе проход нужно делать минимум 194х75 см.
Подбираем размер дверного полотна под дверной проем – таблица
Перед тем, как заказать дверь раздвижного типа в комнату, необходимо измерить проход под нее. Под полученные значения следует подбирать вариант дверного полотна с коробкой (кассетой). При таком порядке действий не появятся проблемы с монтажом. Под дверь купе межкомнатную размеры монтажного проема приведены ниже в таблице.
| Габариты двери в см | Ширина проема в см
| Высота дверного прохода в см |
| 200х90 | 88-95 | 200-205 |
| 80+80х200 | 150-165 | 200-205 |
| 60+60х200 | 110-125 | 200-205 |
| 70+70х200 | 130-145 | 200-205 |
Приведенные размеры проема актуальны для моделей дверей с обрамлением.
Определившись с параметрами створки, необходимо также подобрать набор наличников с доборами для монтажа конструкции.
Как правильно сделать измерения?
Для подбора двери нужно правильно померить проем, в который планируется ее установить. Нужно знать и соблюдать ряд правил. Для замера высоты, толщины и ширины прохода потребуется сантиметр. Вместо него можно взять рулетку. Измерять следует полностью подготовленный проход. В нем не должно быть двери. Стенки должны быть очищены от герметика, уплотнителей и различных растворов. Проем должен быть выровнен. Ширину прохода нужно измерять в трех точках: вверху, по середине и внизу. Высоту следует замерять от верхнего края проема до готового пола. Также снимается три мерки. Записываются минимально полученные значения ширины и высоты. Мерять стороны проема рекомендуется дважды, чтобы проверить точность полученных данных. Рекомендуется выполнять эту работу с напарником. Это позволит избежать ошибок, из-за которых могут возникнуть сложные ситуации при установке двери.
Если есть сомнения, что выйдет самостоятельно правильно измерить проем, тогда лучше обратиться к профессионалу. Мастер точно и быстро замеряет проем и подберет под него дверь с нужными габаритами. Но такую услугу ему придется оплатить. Фирмы, которые занимаются реализацией раздвижных дверей, имеют в своем штате замерщиков. Некоторые компании не берут плату за снятие мерок, если у них будет заказываться и покупаться дверное полотно.
Высота проема для раздвижной двери: видео
Если дверь с раздвижной системой выбирается и устанавливается собственноручно впервые, стоит подробнее о ней узнать. А для этого следует посмотреть видеоматериал. Он есть в интернете. Его выкладывают в сеть профессиональные и домашние мастера. В таком материале рассказывается, что представляют собой межкомнатные двери купе, установка, размеры по ГОСТу изделий и дверных проемов под них, как рассчитать размеры дверной конструкции. Полезное видео по теме приведено ниже.
youtube.com/embed/ReKZ8kJKfj4?feature=oembed» allow=»accelerometer; autoplay; clipboard-write; encrypted-media; gyroscope; picture-in-picture» allowfullscreen=»»/>Таким образом, раздвижные двери бывают разных размеров. И подбирать изделие нужно с учетом габаритов имеющегося дверного проема. Замерять проем под межкомнатную дверь раздвижного типа можно самостоятельно или обратиться к специалисту.
Читайте далее:
Понравилась статья? Расскажите друзьям:
Размеры раздвижных дверей: как правильно замерить проем
Комментариев 0 Раздвижные двери
При установке дверей, прежде всего, выполняются предварительные расчеты, в ходе которых определяются размеры элементов дверной конструкции. Без этого в процессе установки возникнет большое количество проблем, так как придется подгонять монтируемую створку под параметры проема в стене. В ряде случаев монтаж в принципе невозможен.
Исходная схема расчетаОсновные виды раздвижных систем
Традиционно деление раздвижных дверей осуществляется по виду используемого для изготовления материала.
Этот оказывает влияние на характеристики используемой фурнитуры, но не на геометрические размеры створок. Эти параметры зависят от конструктивных особенностей самой двери.
Принято разделять одно- и двухстворчатые конструкции. В первом случае для перекрытия дверного прохода используется только одна створка, во втором случае — две. При этом они имеют одинаковую или различную ширину. Такую конструкцию выбирают для широких проемов. Если монтируется перегородка, то количество полотен увеличивается до четырех.
Классифицируют раздвижные изделия по конструктивным особенностям. Принято выделять:
- Двери-купе. Прямая створка, двигаясь по направляющим рельсам, перемещается вдоль стены. Специальные ролики, закрепляемые на двери-купе, обеспечивают плавность движения створки.
- Книжка. Конструкция включает 2-3 полотна, которые в момент открытия сдвигаются и складываются с помощью специального механизма как книжка.
- Гармошка. Модель, состоящая из узких ламелей, соединенных между собой при помощи шарниров.
При закрытии двери ламели складываются как гармошка. - Кассетные. Створка в момент открытия сдвигается в специальную кассету. Важно, чтобы габариты элементов конструкции были рассчитаны правильно, так как в противном случае собрать конструкцию без доработки сложно.
Какой вариант окажется предпочтительным, зависит от множества факторов. Прежде чем отдать предпочтение конкретной двери, стоит измерить дверной проем. Может так получиться, что этот фактор окажется основным, и вместо запланированной книжки придется довольствоваться одностворчатой конструкцией.
Габариты проема
Габариты проема регламентируются нормативными требованиями, что гарантирует работоспособность монтируемой двери.
Так, проем для одностворчатой двери имеет ширину минимум в 80 см. Оптимальным считается размер в 1 м. Если створок две, то минимальное значение увеличивается до 120 см. В зависимости от длины стены ширина проема иногда достигает 2,2 м.
Габариты проемаЕсли габариты проема выходят за перечисленные значения, приходится задумываться об установке раздвижных дверей, состоящих из 3-х и более створок.
При желании устанавливают «книжку», «гармошку» либо двери с независимыми полотнами. В последнем случае может потребоваться установка нескольких направляющих, чтобы обеспечить одновременное смещение всех полотен. Складываются полотна в заданной последовательности.
Размеры полотен
Габариты полотен напрямую зависят от ширины и высоты проема. Они должны обеспечивать полное закрытие последнего. Учитывая, что проем не может быть уже 80 см, минимальная ширина дверного полотна соответствующая. Обязательно предусматривается технологический зазор, обеспечивающий работоспособность двери, и место для установки короба, если его монтаж запланирован. Учитываются конструктивные особенности. Полотно может заезжать внутрь установленной кассеты или смещаться вдоль стены. В обоих случаях габариты створки отличаются
Чтобы дверью можно было пользоваться комфортно, минимальную ширину полотна одностворчатой конструкции рекомендуется выбирать не меньше 90 см или даже 1 м. В таком случае в помещение можно без труда занести мебель и другие крупногабаритные вещи.
Если створок две, суммарная ширина составляет минимум 120 см. При этом как они соотносятся между собой – непринципиально. Можно установить два одинаковых дверных полотна, ширина которых составляет 60 см, а можно сделать одно шире, другое — уже. В таком случае одну можно зафиксировать и пользоваться только той, что имеет большую ширину. Максимальная суммарная ширина полотен связана с габаритами проема.
Внимание! Согласно нормативным требованиям, независимо от конструктивных особенностей раздвижной двери, минимальная ширина не должна быть менее 60 см, а максимальная — в пределах 120 см.
Нормативные документы регламентируют и ширину, и высоту изделия. Стандартная высота составляет 2,1 м. Но возможно увеличение данного параметра до 2,4 – 2,5 м. При определении высоты следует помнить о необходимости технологического зазора между торцом полотна и верхним/нижним краем проема. Если дверь кассетная, выполнить монтаж створки без расстояния между торцом полотна и верхом кассеты не представляется возможным.
При расчете габаритов створки учитывается вес готового изделия. При большой высоте и ширине вес полотна возрастает. Это приводит к тому, что повышаются требования к используемой фурнитуре. Может даже возникнуть необходимость в замене материала двери на более легкий.
Таким образом, размеры дверной системы во многом зависят от конструктивных особенностей и места установки. Прежде чем покупать в конкретный проем понравившиеся раздвижные двери, следует убедиться, что установка в этом месте в принципе возможна. При этом следует обязательно предусмотреть технологические зазоры, без которых дверное полотно не может быть установлено на место. Если все расчеты выполнены правильно, изделие обязательно прослужит долго, не заклинивая в процессе эксплуатации.
Проголосовали более 202 раз, средняя оценка 4.
2
Как правильно установить раздвижные межкомнатные двери
Скрыть ↑
- Подбор дверей при стандартном проеме
- Как правильно провести измерения?
- Фурнитура для раздвижных межкомнатных дверей
- Как правильно разместить раздвижную конструкцию?
- Размеры прочих конструкций
Достаточно часто в квартирах, где места мало, используются раздвижные двери межкомнатные: размеры их не отличаются от обычных моделей, но способ открывания позволяет сэкономить пространство и не перегораживать его в узких местах. Однако достаточно важно правильно подобрать габариты полотна для того, чтобы оно закрывало дверной проем в нужной степени.
к содержанию ↑
Подбор дверей при стандартном проеме
Подбирая раздвижные двери, размеры проема нужно знать точно: от того, какая у него конфигурация, форма, зависит выбор полотна.
Размеры проема требуется измерить заранее. При неправильном подборе двери можно столкнуться с некоторыми проблемами, например, она не будет закрывать дверной проем, не войдет в коробку, не подойдет по высоте или другим параметрам.
При необходимости полотно можно подогнать по размеру или нарастить стену, уменьшив проход таким образом, но все это лишние финансовые расходы, дополнительная трата сил и времени. Гораздо проще сразу заказать полотно, соответствующее по размеру.
Стандартный проем двери
Современные компании предлагают большой выбор полотен на любой вкус. Если вы хотите установить раздвижные двери стандартные, размеры найти проблемой не будет. Обычно высота двери составляет 2 метра, ширина – 60, 80, 70 см, реже встречаются двери 90 см шириной. У некоторых производителей стандартным размером является высота 190 и ширина 55 см: такие двери часто применяются в качестве створки или устанавливаются в санузел. Ширина коробки такой двери вирьируется от 1,5 до 4,5 см.
Для того чтобы приобретенная дверь поместилась в дверной проем, важно правильно произвести все измерения.
Если вы сомневаетесь в своих силах и уже нашли подходящую компанию, воспользуйтесь услугами замерщика. Часто при заказе дверей такая услуга предоставляется бесплатно.
к содержанию ↑
Как правильно провести измерения?
Проем для раздвижной двери обязательно нужно мерить, даже если он кажется вам стандартным. Расхождение в 4-5 сантиметров может быть незаметно для глаза, при этом будет явным после установки двери; то же самое касается кривого дверного проема. Для правильного расчета нужного размера учитывать следует ряд параметров:
- Высота и ширина проема и будущего полотна.
- Ширина дверной коробки и толщина полотна.
- Наличники и их ширина.
- Будет ли порог, если да, то какой высоты и ширины.
Не стоит пренебрегать толщиной дверного проема, когда речь идет о раздвижных конструкциях. Если планировка квартиры типовая, то этот параметр обычно составляет 7,5 см, однако, встречаются строения с более толстыми или тонкими стенами, поэтому каждый проем рекомендуется измерять отдельно вручную.
Отталкиваясь от того, какая толщина стены для раздвижной двери, подготовят коробку. Ее размер должен соответствовать стене, в противном случае не получится правильно установить конструкцию. При неправильном размере коробки ее может потребоваться отпиливать, устанавливать расширитель или проводить иные дополнительные действия. Если коробка окажется слишком маленькой, ее нельзя будет установить. Кроме этого, затруднения вызовет установка наличников: если и удастся их поставить, то привлекательность внешнего вида двери останется под сомнением.
к содержанию ↑
Фурнитура для раздвижных межкомнатных дверей
Для того чтобы определить, не кривая ли стена, измерения лучше проводить в трех местах: если отклонения незначительные, избавиться от них можно при помощи штукатурки. Если отклонения сильные, можно, либо подпилить дверную коробку, установив специальные элементы, называемые доборами, либо заказать дверное полотно необычной формы, которое сможет скрыть изъян и закрыть все щели.
Фурнитура для раздвижных межкомнатных дверей такого плана может подходить и стандартная, важно правильно рассчитать размеры и вид нестандартной двери. Важно не только то, что она скроет недостатки проема, но и гармонично впишется в интерьер.
Если стена кривая, есть еще одна проблема: установить на нее наличники будет невозможно, поэтому все-таки рекомендуется попытаться выровнять дверной проем перед установкой дверей.
Фурнитура для раздвижных межкомнатных дверей
к содержанию ↑
Как правильно разместить раздвижную конструкцию?
Перед тем как заказать раздвижные межкомнатные двери, размеры проема стоит измерить. Если все получилось, стоит подумать о том, как размещать дверное полотно. Чаще всего дверь не прячется в стену или в коробку, просто двигаясь вдоль стены. Если у вас такой вариант, нужно будет очистить стену от висящих на ней предметов, отодвинуть мебель, которая может являться помехой для открывания.
Некоторые конструкции можно скрыть в специальном коробе – его называют пеналом.
В этом случае можно поверх пенала разместить какие-то висящие на стене предметы. При открывании полотно будет полностью исчезать из виду, оставляя свободный дверной проем.
Приобретая раздвижные двери, устанавливаете специально предназначенные для них ручки: обычная модель будет биться о проем, не даст полотну уйти в пенал или стену, оторвется при резком открывании.
Некоторые двери могут уходить в стену, такая конструкция смотрится эффектно, однако требует либо сложить фальш-стену из кирпича или гипсокартона, либо выдолбить в ней место под полотно.
Монтаж направляющих для раздвижной двери
к содержанию ↑
Размеры прочих конструкций
Иногда могут использоваться двери раздвижные гармошкой: размеры их рассчитываются с учетом размеров механизма раздвижных дверей. Измерять полотна нужно вместе с механизмом в разложенном состоянии. Для заказа полотна играют роль те же значения, которые измеряются для обычной раздвижной двери.
Раздвижные двери-гармошка
Проем под раздвижные двери, размер которого стандартен, достаточно только правильно измерить. Даже к нестандартной арке несложно подобрать дверное полотно нужного размера. Установив раздвижные двери, вы сделаете интерьер более оригинальным, а квартиру удобной.
Раздвижные двери в проем 2 метра. Определение размеров дверного проема для монтажа беспороговой системы раздвижных дверей. Проем для раздвижной встроенной двери
Если вы решили установить у себя дома раздвижные межкомнатные двери, важно выяснить размеры проема, а также самого полотна, которые будут подходящими конкретно для вашего случая. Относительно этих параметров существую некоторые ограничения по ГОСТ.
Давайте рассмотрим, какие типы конструкций станут оптимальным выбором в той или иной ситуации.
Раздвижные двери отличаются компактностью и привлекательным внешним видом
Особенности конструкции
Раздвижные двери в последнее время все чаще можно увидеть в интерьере не только частных домов и квартир, но и в общественных местах. Такие конструкции стали весьма популярными благодаря своему необычному декоративному виду и компактности. С каждым годом производители придумывают все более нестандартные и интересные в исполнении варианты, которые позволяют удовлетворить нетипичные размеры проема и вписать конструкцию в общую обстановку.
Основной принцип раздвижных конструкций состоит в том, что вместо массивного полотна, которое распахивается в одну из сторон, используется более изящное изделие, движение осуществляется в сторону вдоль стены и самого проема благодаря направляющим и роликовой системе. Размеры полотна при этом устанавливаются в определенной мере стандартами ГОСТ, но требования к ним не такие строгие, как для обычных изделий.
Итак, какие бывают раздвижные межкомнатные двери? Главной особенностью является разнообразие доступных для исполнения материалов, что позволяет такой конструкции гармонично смотреться практически в любом интерьере. Чаще всего используются:
- металл;
- дерево;
- пластик;
- ламинат;
- стекло и зеркала;
- бамбук и прочие натуральные материалы.
Разновидности раздвижных дверей в зависимости от материала изготовления
Основные виды систем
Виды раздвижных дверей для межкомнатных перегородок не ограничиваются лишь распределением по используемым материалам. Также следует различать типажи самих полотен, прежде всего они бывают:
- Одностворчатые . Проход закрывает одно полотно, которое может двигаться в одну сторону или в обе при отсутствии ограничителя и наличии рельс.
- Двухстворчатые . Два полотна одинакового или разного размера. Подходят для широкого проема.
Если вы хотите использовать раздвижную систему в качестве перегородки, количество полотен может быть увеличено до четырех.
В таком случае при необходимости можно будет разделить одно большое помещение на две изолированные друг от друга комнаты.
Также бывают различные типы раздвижных систем для межкомнатных дверей:
- Купейные . Это стандартные системы. Прямое полотно передвигается вдоль стены благодаря наличию направляющих и роликов, закрепленных на двери.
- Книжка . Такая модель зачастую представляет собой полотно, разбитое на две или три части, которое складывается по принципу «книжки» благодаря петлям, соединяющим элементы.
- Гармошка . Модель подобная книжной, но в этом случае полотно состоит из множества вертикальных ламелей, соединенных между собой шарнирами. В основе принципа движения – бегунки с направляющими рельсами.
Основные виды систем раздвижных дверей по типу открывания
Особых требований ГОСТ на каждый конкретный вид раздвижных дверей по сути не существует. Все стандарты можно вывести в общую категорию, которая регламентирует принципы строения систем и размеры для проема и самого полотна изделия.
Размеры проема
При проектировании с учетом установки раздвижной системы важно учитывать ряд нюансов, часть которых регламентирует ГОСТ. Это касается, в первую очередь, самого проема.
Итак, рассмотрим, какие бывают размеры проема. Размеры проема для всех раздвижных дверей должны быть не менее 80 см. Идеальный вариант – 90-100 см для одностворчатых конструкций. Для двух створок нужно не менее 120-150 см пространства. Размеры проема могут доходить до 220 см. Если ширина проема больше, тогда требуется сложная система, состоящая из нескольких полотен. При этом они могут быть как полностью независимыми друг от друга, так и складываться в четкой последовательности.
При проектировании раздвижной двери важным фактором является размер дверного проема
Согласно ГОСТ при установке короба между стеной и самой рамой должен оставаться небольшой зазор. Это позволяет отрегулировать положение лутки и распределить нагрузку за счет использования монтажной пены. В связи с этим размеры проема и дверной коробки будут отличаться на установленное количество сантиметров.
Размеры полотна
Помимо габаритов проема важно знать и требуемые по ГОСТ размеры полотен раздвижных межкомнатных дверей. Основной принцип состоит в том, что сама дверь будет несколько меньше, чем ширина проема. Часть пространства скроет коробка. При этом важно учитывать, будет полотно передвигаться вдоль стены или внутри проема с заездом внутрь стеновой перегородки.
Согласно ГОСТ оптимальные размеры полотна для раздвижной межкомнатной двери составляют в среднем 90 см. Для широких проходов используются двухстворчатые и более сложные конструкции. Размеры одной створки должны составлять не менее 60 см и не более 120 см. Высота таких изделий обычно устанавливается по стандарту – 210 см, однако может изменяться до 240-250 см. Также важно учитывать вес полотна, сложность его исполнения и тип используемых материалов.
Оптимальной шириной раздвижной двери принято считать 90 см
Варианты дизайна
Раздвижные двери в современном интерьере смотрятся довольно органично.
Они легкие с виду, но при этом способны полноценно выполнять возложенные на них функции. Конечно, звукоизоляция будет не такой хорошей, как в условиях использования распашных изделий, но зато вам удастся сэкономить место.
Вариантов использования таких перегородок в интерьере невероятно много. Обычно их используют в качестве двери на совмещенной кухне. Это позволяет зонировать пространство на две функциональные части. Также раздвижные конструкции отлично смотрятся в интерьере спальни. Можно использовать легкие перегородки в качестве оформления для входа в гардеробную.
В интерьере раздвижные двери чаще всего используют для зонирования пространства
Какие именно материалы использовать и какой дизайн оформления будет уместен в конкретном интерьере, зависит от предпочтений хозяев и тематической стилистики помещения в целом.
При выборе оформления раздвижной двери немалое значение имеют не только её размеры, но и тип самой системы. Используемые материалы выглядят по-разному и способны как подчеркнуть изящество перегородки, так и сделать её более грубой визуально.
Выбирая ту или иную модель важно учитывать, как она будет смотреться в интерьере. Если размеры прохода не позволяют использовать такой вариант, есть два выхода из ситуации: изменить габариты проема или выбрать другой тип двери.
Монтаж раздвижных конструкций в межкомнатные проёмы осуществляется на завершающих этапах ремонта, когда уже окончены все влажные работы и настелено напольное покрытие. Чтобы избежать сложностей в установке и последующих нарушений в работе системы, необходимо заранее подготовить проем для раздвижной двери.
На что обратить внимание при подготовке?
Проём должен обладать правильными геометрическими пропорциями:
По всей ширине прохода его высота должна быть одинаковой;
Углы должны быть равны 90°;
Необходимо убедиться в строгой параллельности линий входа по отношению друг к другу.
Проем под раздвижную дверь должен иметь чистовой вид без торчащего кирпича или гипсокартона.
Стены вокруг входа в комнату должны располагаться в одной плоскости, в чём можно убедиться при помощи длинного бруска.
Допустимое расхождение составляет не более 3 мм.
По обе стороны прохода стены не имеют сужений. Максимальное различие — 3 мм.
Устанавливая межкомнатные раздвижные двери в проеме из гипсокартона, следует позаботиться о наличии закладной из бруса (размеры рейки — 40 х 40 мм, 40 х 60 мм или 50 х 50 мм). Сухой и прочный брус из хвойного массива крепится над входом в помещение. Именно на нём располагают направляющий профиль.
Если к обрамлению проёма примыкает плинтус, на время установки раздвижной системы его удаляют. Плинтус следует монтировать, когда изделие установлено и полностью готово к эксплуатации.
Для стыковки наличника и напольной рейки могут использоваться плинтблоки. Некоторые производители (например, Софья и Волховец) изготавливают плинтуса специально для конкретных моделей конструкций. Они состыкуются с обрамлением без дополнительных элементов.
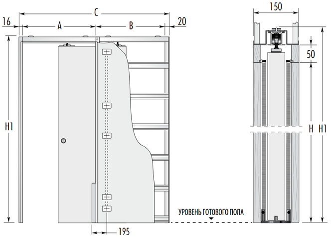
Размеры проёма для установки раздвижной системы
При установке полотна шириной 600 мм и высотой 2000 мм используется брус длиной 1250 мм, зафиксированный на расстоянии 2079 мм от чистового пола.
Высчитывая размер проема под раздвижную дверь кассетного типа, стоит принимать во внимание, что часть его в процессе монтажа будет зашита. Вместе с пеналом величина блока в данном случае должна составлять 1325 x 2099 мм.
Хочу установить беспороговую (с «флажком» внизу) систему раздвижных дверей в стене, где еще нет проема. Размер дверного полотна 200х60 см. Подскажите, пожалуйста, какой размер проема я должен сделать для нормальной работы двери? Спасибо.
- накладные – перемещающиеся параллельно стене;
- встраиваемые – перемещающиеся внутри встроенного в стену специального бокса-кассеты.
О проеме для накладных раздвижных дверей
Полотно накладных дверей перемещается вдоль стены практически автономно, а единственным элементом, объединяющим его в единую конструкцию с проемом, является лишь механизм скольжения. Поэтому и к размерам проема для монтажа раздвижных дверей этого типа предъявляется единственное требование: его ширина должна быть примерно на 20 мм уже ширины полотна, а высота – на 20 мм выше.
Это обеспечивает необходимый зазор в 15-16 мм между финишным напольным покрытием и нижним краем, а также перекрывание проема дверью в закрытом виде.
Таким образом, для установки накладной одностворчатой двери со стандартным размером полотна 600х2000 мм вам необходимо подготовить дверной проем размером 580х2020 мм. Длина укрепляемой поверх проема рельсы скольжения должна равняться удвоенной ширине двери, то есть 1600 мм.
Накладная одностворчатая раздвижная дверь соединена с проемом только механизмом скольжения конструкции
При установке накладной раздвижной системы в проем стены из гипсокартона, в местах крепления верхнего механизма скольжения с алюминиевым треком ее необходимо предварительно укрепить изнутри закладными деревянными брусьями.
Проем для раздвижной встроенной двери
Встраиваемая система раздвижных дверей современна, эстетична и удобна тем, что устанавливать ее можно без дополнительного укрепления в проемы стен из любого материала, в том числе и гипсокартонные.
Она представляет собой устойчивую конструкцию из проема, двери с механизмом скольжения и пенала, внутри которого она перемещается. Монтируют двери этого типа во время строительства или капитального ремонта помещения.
Кассету для встраиваемой раздвижной двери можно устанавливать без дополнительного укрепления в проемы стен из кирпича, древесины, пенобетона и даже из гипсокартона
Для установки встраиваемой раздвижной дверной системы с размерами полотна 600х2000 мм вам необходимо сделать в стене проем с габаритными размерами 1350х2100 мм, то есть равный удвоенной ширине дверного полотна, его высоте и дополнительных «технологических» 150 мм в ширину и 100 мм в высоту, необходимых для монтажа механизма скольжения и дверной коробки. После завершения монтажных работ просветы заполняют монтажной пеной, конструкцию зашивают гипсокартоном и готовят к финишной отделке.
Многие производители выпускают системы встраиваемых, или кассетных, раздвижных дверей, адаптированные под дверные полотна стандартной ширины от 600 до 1000 мм, укомплектованные готовым пеналом и направляющей механизма скольжения с каретками и роликами для подвески дверного полотна.
Чтобы внести ясность, разделим этот вопрос на несколько пунктов, а именно:
1. Высота полотна . Опираясь на наш опыт, хотим пояснить, что максимальная высота полотна должна составлять не более двух с половиной метра, максимум два метра семьдесят пять сантиметров. Почему мы сделали такой вывод? Потому что если высота полотна будет превышать больше рекомендуемого размера, то практически невозможно избежать так называемой парусности полотна (искривления в момент движения). Если полотно высоких размеров, то мы рекомендуем использовать в изделии стоевые шириной не менее восьмидесяти миллиметров. По желанию заказчика возможно изготовление стоевых практически любой ширины, без увеличения стоимости изделия, так как цена на раздвижные перегородки и раздвижные двери определяется только квадратурой, модель и цвета шпона на цену не влияют. Вывод прост, чем шире обвязка полотна, тем крепче само изделие. Важно понимать, что при производстве раздвижных перегородок и дверей в погоне за дизайнерским решением нельзя забывать о надежности изделия, что является главным фактором, который надо учитывать.
Не надо забывать, что к высоте полотна, при креплении к потолку, необходимо добавить от одиннадцати до двадцати пяти сантиметров, рассчитанных на механизмы и профиля.
2. Ширина полотна . При определении данного аспекта также важно учитывать момент, что главным критерием является надежность раздвижной перегородки или двери, а не внешний вид изделия. Исходя из этого, мы рекомендуем не превышать одного метра по ширине полотна. Если этого не удается избежать, рекомендуем использование нижних направляющих вместе с верхним креплением.
3. Использование фрамуги . Данный момент является очень выигрышным при использовании раздвижных перегородок и раздвижных дверей. Объясним подробнее. Первый момент — это внешний вид изделия, он становится богаче и красивее на наш взгляд. Фото с использованием фрамуги вы можете посмотреть в каталоге . Второй момент касается размеров перекрываемого проема, так как использование фрамуги позволяет установить раздвижную перегородку или раздвижную дверь практически в любой самый высокий проем.
4. Нижние рельсы . Как мы уже писали выше, использование нижних рельс в раздвижных перегородках и раздвижных дверях актуально при широких размерах полотна. В нашей практике встречались полотна шириной более трех метров. Главный плюс — нижние рельсы позволяют более плотно двигаться полотну в проеме без раскачивания.
В качестве способа оформления масштабных проёмов многие хозяева рассматривают конструкции на роликах. В силу своей компактности и визуальной лёгкости они даже на ограниченных участках пространства смотрятся гармонично, не обременяя интерьер, не создавая ощущения давления. Например, раздвижные двери шириной 2 метра превосходно проявляют себя в организации гардеробных, обустраиваемых в спальнях и прихожих. Но и на обширных площадях они звучат великолепно. Гостиная, украшенная подобной моделью, приобретает ещё больше просторности и эксклюзивности. Стандартная высота таких конструкций также составляет 2 метра, однако под заказ изготавливаются и очень
высокие створки
с креплением на уровне потолка.
Технические особенности и варианты
Получить раздвижные двери шириной 2 метра, используя единственное полотно, нельзя. Обычно в составе таких инженерных решений применяют две или три секции, заключённые в коробку либо не предполагающие её наличия. Высота створок может быть любой — как стандартной, так и далеко выходящей за пределы, диктуемые строительными нормами. В частности, под заказ осуществляется изготовление моделей высотой 3-4 м.
Реализовать систему можно по-разному:
- с помощью единственной направляющей, закреплённой в стене или потолке над проходом. На рельс устанавливают два полотна стандартной или нестандартной высоты, которые при открывании раздвигаются в противоположные стороны;
- посредством двух треков, параллельно расположенных внутри проёма. Модули перемещаются вдоль друг друга. Один из них может оставаться неподвижным;
- каскадным методом. В составе раздвижных дверей шириной 2 метра используют трёхканальный профиль, где каждый канал объединён с собственной секцией.
Те перемещаются в разные стороны или сдвигаются к одному краю.
Полностью открыть проём позволяет лишь первый вариант — другие дают возможность освободить его наполовину или на две трети. Однако можно закрепить конструкцию внутри стены, применяя металлический пенал, рассчитанный на несколько створок. Те, уходящие во внутреннюю парковку в открытом положении, обеспечивают свободный проход и экономят 100% площади вокруг него.
Из чего производят откатные модели?
Если раздвижную дверь шириной 2 метра предстоит купить для гардеробной, есть смысл отдать предпочтение зеркальным полотнам . Они идеально соответствуют характеру данного помещения, избавляют от необходимости установки стационарного зеркала, визуально продлевают пространство, способствуя интеграции подсобного участка в общий интерьер.
Различают цельностеклянные изделия и варианты, заключаемые в каркасы:
- из алюминия — прочного, устойчивого к деформациям, но лёгкого металла, который всячески преображают, задействуя технологии анодирования, ламинирования, окрашивания;
- из натурального дерева или МДФ с покрытием шпоном.
Лак, резьба, браширование, патинирование — деревянный профиль становится достойным обрамлением зеркальной вставки.
Зал частного дома или квартиры можно украсить с помощью воздушной и изысканной конструкции из прозрачного, матового, витражного стекла. В кабинетах классического дизайна замечательно смотрятся изделия из массива. Актуальные виды раздвижных дверей шириной 2 метра по лучшим ценам продаёт фирма Academy.
it-works — Автоматические раздвижные двери Autoslide
Описание AutoSlide
Autoslide разработан как универсальный, простой в установке продукт, который подходит для ваших существующих раздвижных дверей. Запатентованная система Autoslide основана на простой конструкции «рейка и шестерня». Зубчатые направляющие прикреплены к панели активной двери, а затем Autoslide использует зубчатое колесо, которое входит в направляющие, чтобы толкать и тянуть вашу раздвижную дверь. Чтобы включить Autoslide, просто подключите его к обычной розетке.
- Система Easy 2 Track / Track
- Алюминиевая крышка и световые индикаторы для 4 различных режимов
- Двигатель 24 В с зубчатым колесом
- Простая одношаговая кнопка обучения датчика
- 8 DIP-переключателей для различных настроек/функций
Простая в использовании автоматическая система раздвижных дверей
для существующих раздвижных дверей дома или в офисе
Autoslide был изобретен специально для автоматизации раздвижных дверей и окон в доме. Его можно прикрепить к раздвижным дверям внутреннего дворика, карманным дверям и дверям в стиле амбара. Любой тип раздвижной панели теперь можно автоматизировать с помощью Autoslide. Помимо автоматизации раздвижных дверей в доме, Autoslide также можно использовать в небольших коммерческих помещениях, например в кабинете врача, если он оснащен двигателем Elite.
Autoslide Elite
Elite Motor — это усовершенствованная версия Autoslide для более тяжелых дверей и легких коммерческих помещений.
Этот двигатель может выдерживать до 55 фунтов. силы сопротивления, в то время как стандартный двигатель Autoslide может выдерживать до 12 фунтов. силы сопротивления. Чтобы определить, какой двигатель требуется для вашей двери, просто попросите у нас тестовую ленту на липучке. Это устройство используется, чтобы увидеть, если ваша дверь находится под 12 фунтов. силы сопротивления, необходимой для стандартного двигателя.
Вы также можете проверить свою дверь с помощью багажа или рыбьей чешуи, потянув дверь, открывая и закрывая ее, отмечая максимальное количество фунтов, которое показывают весы.
Autoslide iLock Впервые представленный в 2015 году, Autoslide iLock оснащен двигателем с автоматическим запиранием двери. Больше не нужно использовать ручной замок для раздвижной двери.
Система Autoslide iLock будет держать вашу дверь запертой в любое время, когда Autoslide включен в обычном режиме или в режиме для домашних животных, когда дверь закрыта. Активация системы Autoslide iLock для открытия дверей отключит замок, чтобы разрешить доступ внутрь или снаружи дома.
И не беспокойтесь, как только дверь снова закроется, Autoslide заблокируется
ГИБКАЯ КОНФИГУРАЦИЯ
- Направление/обучение: Направление двери (влево/вправо)
– Dip 1 включается и выключается, чтобы узнать ширину проема двери в автоматическом режиме (ЗЕЛЕНЫЙ СВЕТ – Dip включается)
ВКЛ и ВЫКЛ, чтобы узнать ширину раскрытия укладчика в режиме укладчика (СИНИЙ СВЕТИЛЬНИК ВКЛЮЧЕН) - Быстродействующий затвор — (по умолчанию ВЫКЛ). ON включает быстродействующий затвор.
- Pet Learn – переключатель включается и выключается, чтобы узнать ширину открывания двери для домашних животных.
- Отключить внешний датчик – (по умолчанию: выкл.).
– ВКЛ отключить наружный датчик в режиме домашних животных . - 75% меньше энергии – (по умолчанию: ВЫКЛ.).
– ВКЛ включить 75% от полной скорости двери.
- ПРИЛОЖЕНИЕ — (по умолчанию: ВЫКЛ.).
– ON включает приложение, которым управляет смартфон.
– ВЫКЛ включить дверную систему с функцией Modbus. - Тяжелая дверь – (по умолчанию: выкл.): для двери нормального веса.
— ВКЛ. включает тяжелую дверь, если система не может управлять обычной дверью. Когда он включен (внизу), система может открыть более тяжелую дверь, но необходимо установить датчик безопасности, подключенный к порту для домашних животных. - Звуковой сигнал – (по умолчанию ВЫКЛ.): Нет звукового сигнала
Варианты отделки
Autoslide доступен в черном или белом цвете в дополнение к существующим цветам дверей.
Режимы автослайда
Интерфейс автослайда подсвечивается четырьмя разными цветами в зависимости от используемого режима:
ЗЕЛЕНЫЙ — автоматический режим
Режим для повседневного использования человеком.
Датчики домашних животных отключены, открыта помощь включена, и дверь не блокируется. Наиболее часто используемый режим.
Синий — режим укладчика
По умолчанию дверь полностью открыта. Пульт дистанционного управления, подключенный к порту укладчика, может управлять дверью, как дверью гаража, оставляя ее частично открытой.
КРАСНЫЙ — безопасный режим
Безопасный режим, предназначенный для использования с блоками iLocking. Датчики домашних животных и снаружи отключены, помощь при открытии отключена, а дверь заблокирована.
Оранжевый — Режим домашних животных
Основной режим для домашних животных. Датчики домашних животных и внутренних помещений включены. Внешние датчики могут быть включены или отключены. Дверь заперта.
Технические характеристики Autoslide
Максимальное сопротивление двери
12 фунтов. (Стандартный двигатель)
55 фунтов. (Элитный мотор)
Доступные цвета
Черный или белый
Длина поставляемых стоек
38 дюймов входит в комплект Autoslide.
Дополнительные удлинители гусениц доступны в 19-дюймовые длины.
Блок питания
110–240 В перем. тока, 24 В пост. тока Адаптер питания/трансформатор
Безопасный автореверс
Да. Дверь автоматически повернется назад, если она встретит объект или человека до того, как достигнет конечной точки закрытия.
Автоматический замок (дополнительно)
При наличии iLock Motor автоматически запирает и отпирает вашу раздвижную дверь, устраняя необходимость использования ручного замка вашей двери.
Autoslide Физический размер
- Длина: 19 дюймов (490 мм)
- Высота: 2,75 дюйма (70 мм)
- Ширина: 2,5 дюйма (65 мм)
Активация кнопки и дистанционного управления
Все комплекты Autoslide включают две беспроводные кнопки, которые крепятся к дверям с помощью двустороннего скотча. Эти беспроводные кнопки могут работать удаленно на расстоянии до 50 футов от системы Autoslide. Дополнительные беспроводные кнопки также можно приобрести отдельно для установки рядом с кроватью для прикованных к постели пациентов.![]()
Для каждой раздвижной двери требуются две кнопки. Один установлен внутри и один снаружи. Если кнопки установлены вдали от раздвижной двери, т.е. рядом с кроватью или на инвалидном кресле Autoslide также поставляется с заводской встроенной функцией «Помощь при вытягивании» / Power Assist, где легкое нажатие на дверную ручку активирует полное открытие. Это также известно в индустрии автоматических дверей как «полуавтоматические» двери. В отсутствие кнопок рядом с раздвижной дверью пользователи могут получить доступ к входу через раздвижную дверь с помощью тяги. Мини-пульты дистанционного управления доступны в качестве дополнительных опций или в составе пакета Clicker Bundle. В каждый комплект Clicker Bundle входят два пульта дистанционного управления.
Пульты дистанционного управления позволяют легко переключаться между режимами «Автоматический», «Укладчик», «Безопасный» и «Домашнее животное», не прибегая к панели управления на самой приводной системе Autoslide. Полезно, если Autoslide установлен высоко.
Кнопки
Активация датчика движения
Активация датчика движения Автоматическая дверь — активация датчика движения без помощи рук для людей и домашних животных Инфракрасные датчики движения Autoslide, разработанные специально для домашнего использования, имеют гораздо меньшую длину луча по сравнению с коммерческими автоматическими дверными датчиками.
Это делается для того, чтобы избежать ненужных срабатываний датчика в небольшом домашнем / жилом помещении и срабатывания многочисленных ложных открытий дверей.
Для каждой раздвижной двери требуется два датчика движения, т.е. один внутри и один снаружи.
Приводная система для переналадки
Приводная система Autoslide спроектирована таким образом, чтобы при необходимости ее можно было легко переставлять. (т.е. соберите двигатель в приводной системе слева направо, чтобы он подходил для различных дверных проемов и/или областей применения) ИНСТРУКЦИИ ПО ПЕРЕДАЧЕ.
Ниже показано, когда Autoslide необходимо переставить перед установкой:
Напольное крепление Autoslide к направляющей СЛЕВА для открытия двери
Если Autoslide может быть установлен только в нижней части направляющей слева для открытия двери, то сначала необходимо переставить приводную систему, чтобы затем ее можно было установить на полу слева от подвижной панели перед неподвижной панель вместо прозрачного отверстия.
Установка на направляющую влево, чтобы открыть внутреннюю полость / дверцу кармана
Для дверей с внутренними полостями / карманами Autoslide следует устанавливать только в верхней части двери. Для того, чтобы сдвинуть влево, чтобы открыть дверцу кармана, система привода должна быть сначала переставлена так, чтобы двигатель и редуктор находились слева от системы. После этого блок Autoslide можно установить сверху слева от двери.
Верхний монтаж над фиксированной панелью на направляющей СПРАВА для открытия двери
По умолчанию Autoslide может быть установлен сверху без повторной передачи на направляющую справа для открытия двери путем установки устройства над открытым проемом.
Если предпочтительна установка над фиксированной панелью, то приводную систему Autoslide необходимо перенастроить.
В какую сторону должна открываться раздвижная дверь?
Раздвижные двери — очень удобный тип дверей, которые можно установить в вашем доме. Но решить, как установить двери, иногда может быть сложно. Хотите установить раздвижные двери, но не знаете, как они должны открываться? Мы провели исследование, чтобы найти для вас ответ.
Раскрытие информации: Мы можем получать комиссионные за покупки, сделанные по ссылкам в этом посте.
Раздвижные двери должны открываться с той же стороны, что и ручка. По сути, это означает, что если ваша дверь имеет правостороннюю ручку, она должна открываться вправо, и наоборот. Тем не менее, раздвижные двери бывают разных конструкций, поэтому не каждая дверь будет открываться в одном и том же направлении.
В начале мы рассмотрим все раздвижные двери и обсудим, в какую сторону они должны открываться.
Если вы хотите установить ползунок в своей спальне, кухне или гостиной, ключевым моментом является его размещение. С учетом сказанного, давайте погрузимся прямо в эту тему!
Должна ли раздвижная дверь открываться влево или вправо?
Способ открывания раздвижной двери зависит от ваших предпочтений. Как правило, вы увидите, что раздвижные двери открываются вправо, но это не значит, что вариант открывания влево неверен.
Большинство людей правши, поэтому дверные ручки многих конструкций выбираются с правой стороны. Тем не менее, если вы левша и предпочитаете, чтобы ваша дверь открывалась с доминирующей стороны, это тоже совершенно нормально.
Можете ли вы изменить способ открывания раздвижной двери?
Для тех, кто хочет поменять способ открывания своей раздвижной двери, вам повезло. Это возможно. Как правило, раздвижная дверь состоит из одной устойчивой стороны и другой стороны, которая скользит вперед и назад.
Чтобы изменить направление слайдера, вам нужно будет переместить текущую стабильную сторону двери и заменить ее на раздвижную.
Хотя это выполнимо, замена раздвижной двери может быть дорогостоящей и рискованной для вашего стекла, поэтому мы не рекомендуем ее, если в этом нет необходимости.
Может ли раздвижная дверь открываться в обе стороны?
Хотя стандартная раздвижная дверь открывается только в одну сторону, вы можете настроить свои двери так, чтобы они открывались в обоих направлениях. Согласно Центра непрерывного образования , многосторонние стеклянные раздвижные двери могут быть установлены на одну или две стороны, что позволяет им открываться в обоих направлениях.
По сути, это работает, когда ваши раздвижные двери складываются друг в друга, обычно встречаясь посередине, слева или справа.
Все ли раздвижные стеклянные двери двусторонние?
Когда речь идет о реверсивных цельностеклянных раздвижных дверях, технически это верно. Как мы уже говорили ранее, у раздвижных дверей обычно одна устойчивая неподвижная сторона, а другая может открываться и закрываться.
Перевернуть стеклянные слайдеры, как правило, так же просто, как и переставить их, хотя мы рекомендуем обратиться к профессионалу. Согласно Hunker , вам нужно будет полностью разобрать ваши текущие ползунки, чтобы перевернуть их, так что это следует учитывать.
Как перевернуть раздвижную стеклянную дверь Pella?
Для тех, у кого есть раздвижные стеклянные двери Pella, их переворачивание должно быть относительно простым. Во-первых, вы хотите проверить свои двери, чтобы увидеть, есть ли у них жалюзи между стеклами, и если они есть, вы не можете их перевернуть.
Если ваши раздвижные двери Pella не оснащены стеклянными жалюзи:
- Удалите их неподвижные и экранные дорожки
- Повернуть их основной кадр на 180 градусов
- Выдвиньте крюк замка и зафиксируйте его на новом месте
- Снимите ручку двери и крепежные винты
- Снимите врезной замок с ползунов
- Поверните врезной замок и ручку на 180 градусов
- Снимите нижний ролик двери и установите его на другую сторону
Pella также предлагает онлайн-руководство по реверсированию, которое вы можете найти здесь.
Двусторонние ли раздвижные двери Andersen?
Теперь все, у кого есть раздвижная стеклянная дверь Andersen, могут перевернуть ее, но только в определенных моделях. Подобно Pella, раздвижные двери Andersen со стеклянными жалюзи нельзя перевернуть.
Тем не менее, согласно их интерактивному справочному руководству, вы можете вернуть свои раздвижные двери Andersen и заменить их на перевернутый вариант, так что вам не совсем повезло.
Можно ли заменить раздвижные стеклянные двери без замены рамы?
Когда речь идет о замене раздвижных стеклянных дверей без замены их рамы, это очень распространено. Как правило, снятие ваших раздвижных дверей с их рамы и их замена не должны занимать слишком много времени и обычно стоят от 700 до 2400 долларов.
Тем не менее, перед установкой новых дверей мы рекомендуем осмотреть раму, убедиться, что она в хорошем состоянии, и заменить ее, если она выглядит изношенной/поврежденной. Это может гарантировать, что ваши новые раздвижные двери будут прочными, не выпадут из строя и не разобьются.
Трудно ли заменить раздвижную стеклянную дверь?
С точки зрения сложности, замена раздвижной стеклянной двери может быть несколько утомительной и не должна выполняться любителем. Как правило, вы хотите нанять профессионала для замены раздвижных дверей, потому что их снятие может быть затруднено.
Тем не менее, если у вас есть доступ к руководству по замене продукта или вы часто работаете с раздвижными дверями, мы не понимаем, почему вы не можете попробовать сделать это самостоятельно.
Французские двери или раздвижные двери более эффективны?
Между французскими и раздвижными дверями мы бы сказали, что французские двери в целом являются более эффективным выбором. Французские двери, как правило, лучше справляются с защитой от проникновения наружной температуры в ваш дом, а также в них не так легко попасть, что делает их немного более безопасными.
По данным Министерства энергетики США, французские двери имеют более плотное прилегание, чем раздвижные варианты, что делает их более подходящими для слишком жаркого или холодного климата.
Тем не менее, раздвижные двери по-прежнему хорошо оцениваются по своей эффективности, если вы хорошо их изолируете, так что пока не сбрасывайте их со счетов.
Сколько стоит поменять раздвижные двери на французские?
Если вы ищете новые двери и хотите переключить свои текущие ползунки на французскую опцию, это будет стоить вам денег. Как правило, за замену дверей вы можете заплатить от 1300 до более 5000 долларов, так что это финансовое обязательство.
Французские двери различаются по цене, но для стандартного дизайна вы должны выделить около 1000 долларов на новые двери. И если вы хотите выглядеть шикарно, французские двери могут стоить вам более 10 000 долларов, если вы решите их настроить.
Раздвижная дверь патио должна быть внутри или снаружи?
Раздвижная дверь внутреннего дворика должна быть внутри, а не снаружи. Как правило, двери патио скользят внутрь, чтобы защитить их от внешних элементов и мусора.
Конечно, существуют наружные раздвижные двери патио, но они требуют большего ухода, чем внутренние раздвижные двери.
Как узнать, правая или левая дверь моего патио?
Для тех, кто пытается выяснить, в какую сторону открывается ползунок их патио, вы можете определить это, посмотрев на него снаружи. Левая дверь откроется слева от вас снаружи, а правосторонняя – справа от вас.
Согласно Andersen Windows, вы также можете определить положение вашей двери, посмотрев, какая из ее панелей движется снаружи, влево или вправо.
Раздвижные стеклянные двери вышли из моды?
Когда дело доходит до вышедших из моды раздвижных стеклянных дверей, мы не согласны. Хотя этот дизайн двери не является чем-то новым, раздвижные стеклянные двери всегда будут основным продуктом в домашнем дизайне и строительстве.
Если вы ищете что-то более современное, раздвижные двери со стеклянными жалюзи в настоящее время очень популярны, поэтому вы можете попробовать эти варианты. Несмотря на это, наличие раздвижных стеклянных дверей в вашем доме — это вневременной вариант, который, похоже, не выйдет из моды в ближайшее время.
Легко ли обслуживать раздвижные двери?
В целом мы согласны с тем, что раздвижные двери просты в уходе. Чаще всего содержание направляющих вашей стеклянной раздвижной двери в чистоте и без мусора — лучший способ сохранить их и обеспечить их бесперебойную работу.
Еще один способ ухода за раздвижными дверями — смазывание направляющих с помощью WD-40 или средства на основе силикона. Это предотвратит смещение ваших дверей или затруднение открывания и закрывания.
WD-40 Specialist Heavy Duty Multi-Purpose Grease
Эта смазка для тяжелых условий эксплуатации обеспечивает длительную защиту от коррозии, продлевает срок службы вашего оборудования, содержит сульфонат кальция и поставляется в банке на 14 унций.
Перейдите по этой ссылке, чтобы увидеть его на Amazon здесь.
Чтобы все завернуть
Если у вас есть раздвижные двери или вы хотите их приобрести, важно знать, в какую сторону они должны открываться. Из того, что мы обнаружили, раздвижная дверь должна открываться в ту же сторону, что и ее ручка, которая обычно находится справа.
Когда нужно перевернуть раздвижную дверь, это обычно возможно, в зависимости от ее конструкции. Что касается замены, мы обнаружили, что вы можете заменить раздвижные двери, а не их раму, если она в хорошем состоянии. Независимо от того, в какую сторону открывается ваша раздвижная дверь, не забывайте регулярно чистить направляющую и не забывайте обращаться к профессионалам, прежде чем переворачивать/заменять ее.
Хотите узнать больше о раздвижных дверях? Ознакомьтесь с этими полезными домашними сообщениями ниже!
Можно ли добавить экранную дверь к раздвижным дверям?
Какие шторы выбрать для раздвижных стеклянных дверей?
Сколько панелей занавеса для раздвижной стеклянной двери?
Складные распашные двери | Andersen Windows
Другой подход к устранению границ между внутренним и внешним пространством. В открытом состоянии эти движущиеся стеклянные стены складываются, красиво обрамляя вид. В закрытом состоянии они создают величественную стену света.
- До 10 футов в высоту и 48 футов в ширину
- Верхнеподвесная система упрощает эксплуатацию
- Двери могут открываться слева, справа или по центру
- Современные панели шириной до 48 дюймов
- Доступен с защитой Stormwatch® для прибрежных районов
- Доступны конфигурации сквозного окна
Нужна помощь? Найдите сертифицированного подрядчика Andersen в вашем регионе.
СДЕЛАТЬ ЗАПРОС
ПОСМОТРЕТЬ, КАК ДРУГИЕ ИСПОЛЬЗУЮТ ЭТОТ ПРОДУКТ
Метка на используя #andersenwindows
Внешнее внутрь и внутреннее наружу
В открытом состоянии эти движущиеся стеклянные стены складываются, красиво обрамляя вид. В закрытом состоянии они создают величественную стену света.
ПОДРОБНЕЕ О ТРЕНДЕ
Из чего это сделано?
Внешний вид с алюминиевым покрытием и интерьер из богатого дерева.
Возможна также деревянная наружная панель и каркасная конструкция.
МАТЕРИАЛЫ
Энергоэффективность
Панель с алюминиевым покрытием имеет двойную уплотняющую планку внизу и по краям панели, обеспечивающую водонепроницаемое уплотнение.
УЗНАТЬ БОЛЬШЕ
Стили панелей
Цвета
Оборудование
Стекло
Экраны
Решетки
Прибрежный
Информационный лист
Умный дом
Типы панелей
Доступны панели в современном (макс.
ширина 48 дюймов) или традиционном (макс. ширина 39 дюймов) стилях.
Современные деревянные панели с алюминиевым покрытием
Современные деревянные панели с алюминиевым покрытием с перекладинами 3 11/16 дюйма и перекладинами с толщиной панели 2 ¼ дюйма
Традиционное дерево с алюминиевым покрытием
Традиционные панели имеют 4 стойки 11/16 дюйма и верхнюю направляющую с возможностью выбора высоты нижней направляющей 4 11/16 дюйма, 8 дюймов или 12 дюймов с толщиной панели 1 ¾ дюйма
Высота нижней направляющей 8 дюймов показано
Цвета для наружных работ
Колония Уайт
Белый
морское ушко
Бальза белая
Холст
Кленовый сироп
Собрать золото
Прерийная трава
Каменная плита
Песчаник
Галька Тан
Кармель
Терратоне
Горячий шоколад
Бурбон
Желудь
Кофейное зерно
Какао бобы
Сьерра Бронза
Темная бронза
Глиняный каньон
Красная скала
Кардинал
Бинг Черри
Красная пожарная машина
Тост с корицей
Оливковое
Мудрец
Бильярд Грин
Мох
Зеленый лес
Кряква Грин
Мята
Аквамарин
Патина
Голубое небо
Синий кантри
Синий деним
Акварель Синий
Лазурном
Сланец
Капризный синий
Бурный синий
Голубь серый
Портовый туман
Йорктаун Пьютер
Смоки Грей
Мистик Грей
Темный пепел
Черный
Обычай
Варианты анодированного покрытия
Прозрачный анодированный
Шампанское анодированное
Анодированная светлая бронза
Анодированная средняя бронза
медь анодированная
Анодированная темная бронза
Черный анодированный
Варианты внутренней отделки
Породы дерева
Доступны нестандартные цвета.
Сосна
Клен
Дуб
белый дуб
вишня
Красное дерево*
Пихта Дугласа с вертикальным зерном
Ольха
грецкий орех
Смешанное зерно Пихта Дугласа
Гикори
Варианты окраски
Доступны варианты исполнения из сосны. Black и Dark Bronze также доступны на Maple. Анодированное серебро доступно только для Maple.
Белый
Береста
Грунтованный
Холст
Песчаник
Терратоне
Зеленый лес
Темная бронза
Голубь серый
Прерийная трава
Красная скала
Какао бобы
Черный
Анодированное серебро
*Настоящая древесина – сапеле, не находящаяся под угрозой исчезновения разновидность красного дерева, выращенная в Африке, по цвету и характеристикам похожая на американское красное дерево.
Отделка фурнитуры
Hardware Styles
Albany
Black , Stone, White
Tribeca®
Stone, White, Black
Anvers®
Bright Brass, Oil Rubbed Bronze, Satin Nickel
Newbury®
Античная латунь, блестящая латунь, Бронза, протертая маслом , матовый никель
Encino®
Состаренная бронза , состаренный никель
Yuma®
Distressed Bronze, Distressed Nickel
FSB® 1035
Satin Stainless Steel, Black Anodized Aluminum
FSB® 1075
Satin Stainless Steel, Black Anodized Aluminum
FSB® 1076
Матовая нержавеющая сталь, Черный анодированный алюминий
FSB® 1102
Матовая нержавеющая сталь
Дополнительные аппаратные опции
Система блокировки
Складная распашная дверь имеет многоточечную систему запирания с крюкообразным ригелем над и под центральным ригельным засовом, а также с ригелями на неактивных панелях, которые запираются в головке и подоконнике.
Эта система обеспечивает герметичность и повышенную безопасность.
Ручка-скоба
Доступна в матовом черном или сатинированном исполнении из нержавеющей стали.
Запорный болт
Доступен в матовом черном или сатинированном исполнении из нержавеющей стали.
Петли
Доступны в матовом черном или сатинированном исполнении из нержавеющей стали.
Скрытая рукоятка шпингалета
Доступны варианты из матовой нержавеющей стали или бронзовой нержавеющей стали
Магнитные защелки
Магнитные защелки используются для удержания панелей вместе в открытом состоянии. Защелки большего размера используются для предотвращения ударов ручки двери о соседнюю панель при открытии.
Варианты исполнения стекла
U-ФАКТОРНасколько хорошо продукт предотвращает утечку тепла.![]() | КОЭФФИЦИЕНТ ПОЛУЧЕНИЯ СОЛНЕЧНОГО ТЕПЛАНасколько хорошо продукт блокирует тепло, вызванное солнечным светом. | ПРОПУСКАНИЕ ВИДИМОГО СВЕТАСколько видимого света проходит через изделие. | ЗАЩИТА ОТ УФ-излученияНасколько хорошо продукт блокирует ультрафиолетовые лучи. | |
|---|---|---|---|---|
SmartSun™ | U-ФАКТОРНасколько хорошо продукт предотвращает утечку тепла.![]() | КОЭФФИЦИЕНТ ПОЛУЧЕНИЯ СОЛНЕЧНОГО ТЕПЛАНасколько хорошо продукт блокирует тепло, вызванное солнечным светом. | ПРОПУСКАНИЕ ВИДИМОГО СВЕТАСколько видимого света проходит через изделие. | ЗАЩИТА ОТ УФ-излученияНасколько хорошо продукт блокирует ультрафиолетовые лучи. |
SmartSun с покрытием HeatLock™ | U-ФАКТОРНасколько хорошо продукт предотвращает утечку тепла.![]() | КОЭФФИЦИЕНТ ПОЛУЧЕНИЯ СОЛНЕЧНОГО ТЕПЛАНасколько хорошо продукт блокирует тепло, вызванное солнечным светом. | ПРОПУСКАНИЕ ВИДИМОГО СВЕТАСколько видимого света проходит через изделие. | ЗАЩИТА ОТ УФ-излученияНасколько хорошо продукт блокирует ультрафиолетовые лучи. |
Низкий-E4®/Низкий-E | U-ФАКТОРНасколько хорошо продукт предотвращает утечку тепла.![]() | КОЭФФИЦИЕНТ ПОЛУЧЕНИЯ СОЛНЕЧНОГО ТЕПЛАНасколько хорошо продукт блокирует тепло, вызванное солнечным светом. | ПРОПУСКАНИЕ ВИДИМОГО СВЕТАСколько видимого света проходит через изделие. | ЗАЩИТА ОТ УФ-излученияНасколько хорошо продукт блокирует ультрафиолетовые лучи. |
Low-E4 с покрытием HeatLock™ | U-ФАКТОРНасколько хорошо продукт предотвращает утечку тепла.![]() | КОЭФФИЦИЕНТ ПОЛУЧЕНИЯ СОЛНЕЧНОГО ТЕПЛАНасколько хорошо продукт блокирует тепло, вызванное солнечным светом. | ПРОПУСКАНИЕ ВИДИМОГО СВЕТАСколько видимого света проходит через изделие. | ЗАЩИТА ОТ УФ-излученияНасколько хорошо продукт блокирует ультрафиолетовые лучи. |
Вс | U-ФАКТОРНасколько хорошо продукт предотвращает утечку тепла. | КОЭФФИЦИЕНТ ПОЛУЧЕНИЯ СОЛНЕЧНОГО ТЕПЛАНасколько хорошо продукт блокирует тепло, вызванное солнечным светом. | ПРОПУСКАНИЕ ВИДИМОГО СВЕТАСколько видимого света проходит через изделие. | ЗАЩИТА ОТ УФ-излученияНасколько хорошо продукт блокирует ультрафиолетовые лучи. |
ПассивСан® | U-ФАКТОРНасколько хорошо продукт предотвращает утечку тепла.![]() | КОЭФФИЦИЕНТ ПОЛУЧЕНИЯ СОЛНЕЧНОГО ТЕПЛАНасколько хорошо продукт блокирует тепло, вызванное солнечным светом. | ПРОПУСКАНИЕ ВИДИМОГО СВЕТАСколько видимого света проходит через изделие. | ЗАЩИТА ОТ УФ-излученияНасколько хорошо продукт блокирует ультрафиолетовые лучи. |
Тройное стекло (с низкоэмиссионным покрытием на двух поверхностях) | U-ФАКТОРНасколько хорошо продукт предотвращает утечку тепла.![]() | КОЭФФИЦИЕНТ ПОЛУЧЕНИЯ СОЛНЕЧНОГО ТЕПЛАНасколько хорошо продукт блокирует тепло, вызванное солнечным светом. | ПРОПУСКАНИЕ ВИДИМОГО СВЕТАСколько видимого света проходит через изделие. | ЗАЩИТА ОТ УФ-излученияНасколько хорошо продукт блокирует ультрафиолетовые лучи. |
Узнайте больше о вариантах стекла.
Только центр стекла. Рейтинги основаны на вариантах стекла, доступных по состоянию на июнь 2015 г.
Декоративное и специальное стекло
Защитное стекло
Закаленное безопасное стекло доступно для всех продуктов и входит в стандартную комплектацию всех дверей патио.
Многослойное стекло
Также доступно многослойное стекло для дополнительной прочности, повышенной безопасности и звукоизоляции.
Звукопоглощающее стекло
Это стекло помогает уменьшить громкость внешнего шума. Доступен с покрытиями Low-E, SmartSun и HeatLock.
Художественное стекло
Художественное стекло Andersen® доступно в широком ассортименте рисунков, придающих необыкновенную элегантность любому домашнему стилю.
Узорчатое стекло
Пропускайте свет, закрывая обзор и добавляя уникальный декоративный штрих вашему дому.
Большая дверная выдвижная ширма
Предназначена для борьбы с насекомыми и другими внешними вторжениями, позволяя наслаждаться свежим воздухом и непрерывным видом.
Экран полностью удерживается в раме со всех сторон и незаметно убирается, когда он не используется, чтобы убрать визуальные отвлекающие факторы и вывести наружу. Подходит для проемов шириной до 30 футов и высотой до 10 футов.
Информационный лист с выдвижными экранами для больших дверей
Узнайте больше о выдвижных экранах для больших дверей, загрузив информационный лист.
Посмотреть информационный лист
Выдвижная ширма для больших дверей Часто задаваемые вопросы
Прочтите ответы на часто задаваемые вопросы, чтобы узнать больше о больших дверях.
См. часто задаваемые вопросы
Выдвижные экраны для больших дверей
Украсьте свой внутренний оазис с помощью выдвижных экранов для MultiGlide™ и складных распашных дверей. Посмотрите на экран в действии.
*Для выполнения ограниченной гарантии на выдвижной экран Big Door требуется надлежащий уход и техническое обслуживание.
Посетите Справочный центр Andersen, чтобы получить дополнительные сведения.
Типы решеток
Полный разделенный свет
Придайте любому окну аутентичный вид с полностью разделенными световыми решетками, которые постоянно крепятся к внутренней и внешней части окна с прокладкой между стеклами.
Имитация разделенного света
Экономичное решение с традиционной красотой, наша имитация разделенного света имеет фиксированные внешние и внутренние решетки без внутренней прокладки.
Съемные внутренние деревянные решетки
Наши съемные деревянные решетки устанавливаются на внутренней поверхности. Они доступны с дополнительной окантовкой и дополнительной наружной решеткой.
Решетки Finelight™ между стеклами
Алюминиевые решетки, удобно расположенные между двумя стеклами, облегчают очистку стекла внутри и снаружи.
Профили решетки
Внутреннее дерево: Ovolo (колониальный)
Ширина:
- 5/8″
- 7/8″
- 1 1/8″
- 1 1/2 дюйма
- 2 1/4″
Доступен с:
- Полный разделенный свет
- Имитация разделенного света
Внутреннее дерево: современный
Ширина:
- 5/8″
- 7/8″
- 1 1/8″
- 1 1/2 дюйма
- 2 1/4″
Доступен с:
- Полный разделенный свет
- Имитация разделенного света
Внешний алюминий: Фаска
Ширина:
- 5/8″
- 7/8″
- 1 1/8″
- 1 1/2 дюйма
- 2 1/4″
Доступен с:
- Полный разделенный свет
- Имитация разделенного света
- Съемная внутренняя деревянная панель с дополнительной стационарной внешней решеткой
Внешний алюминий: современный
Ширина:
- 5/8″
- 7/8″
- 1 1/8″
- 1 1/2 дюйма
- 2 1/4″
Доступен с:
- Полный разделенный свет
- Имитация разделенного света
- Съемная внутренняя деревянная панель с дополнительной стационарной внешней решеткой
Съемные внутренние деревянные решетки
Профили Ovolo или Contemporary шириной 7/8 дюйма
Профили и ширина решеток Finelight
Плоские или фигурные профили шириной 5/8 дюйма или 1 дюйм
Складные прибрежные двери
- Опция PG Upgrade (PG50) или PG Upgrade с опцией ударопрочного стекла с высокоэффективным ударопрочным стеклом или монолитным ударопрочным стеклом
- Современный профиль обеспечивает максимальное освещение и обзор
- Установки высотой до 10 футов с одобрением продукции FL и сертифицированным сертификатом Hallmark для работы с воздухом, водой и конструкционными характеристиками
- Стандартная внешняя отделка AAMA 2605
- Коррозионностойкий многозапорный замок надежно фиксирует дверь
- Грубые проемы шириной до 24 футов, панели до 28,75 кв.
футов. - Панели шириной до 48 дюймов до 7 футов 6 5/8 дюймов в высоту, от 45 1/4 дюйма в ширину до 8 футов в высоту, от 40 дюймов в ширину до 9 футов и от 36 дюймов в ширину до 10 футов в высоту
- Максимальный вес панели 250 фунтов.
- Легкая промежуточная рейка ¾ и 2/3 с опцией панели
- Стандартный скрытый затвор из матовой нержавеющей стали или бронзовой нержавеющей стали
Скачать информационный лист
Подробнее о продукте
Информационный лист о продукте
Используйте это краткое справочное руководство, чтобы узнать о доступных цветах, отделках, стеклах и аппаратных возможностях для этого продукта.
Посмотреть опции для этого товара
Информационный бюллетень Coastal
Используйте это краткое справочное руководство, чтобы узнать о доступных цветах, вариантах отделки, стеклах и аппаратных возможностях для этого продукта.
Посмотреть опции для этого товара
Yale® Assure Lock® для патио-дверей Andersen®
Контролируйте, запирайте и отпирайте ключи из любого места и никогда больше не беспокойтесь о том, что вы носите с собой или потеряете ключи. Элегантный новый замок без ключа включает в себя технологию Bluetooth® для разблокировки без ключа и совместим с Z-Wave® для интеграции с широким спектром платформ умного дома.
Посмотреть проект с этим продуктом:
Country Manor Home
Альпайн, Юта
Этот величественный семейный дом находится недалеко от Солт-Лейк-Сити, в тени горы Тимпаногос. Четыре времени года и 360-градусная красота природы обеспечивают постоянный запас пейзажей.
ПОКАЗАННЫЕ ПРОДУКТЫ
Складная распашная дверь
Посмотреть детали
ПОКАЗАННЫЕ ПРОДУКТЫ
Серии А Окна с картинкамиОткидная распашная дверь
Посмотреть детали
ПРЕДСТАВЛЕННАЯ ПРОДУКЦИЯ
Окна с картинками серии AОткидная распашная дверь
Посмотреть детали
Размер
Варианты порогов
Архитектурные инструменты
Установка
Производительность
Гарантия
Размеры
Из-за большого количества функций и опций складных распашных дверей мы создали калькулятор размеров, который поможет вам получить полную информацию о размерах.
Просмотр калькулятора размеров
Опции порога
Дренажный подоконник, устанавливаемый на полу
Дренажный подоконник, устанавливаемый на полу, имеет рейтинг PG40* для размеров до 24 футов в ширину и 8 футов в высоту и рейтинг PG30 для размеров до 24 футов в ширину и 10 футов в высоту. Доступен в сером или Бронза .
*Рейтинг производительности: Класс SP-PG40 Размер Протестировано 159 x 95,5 дюймов, для двери со стандартным подоконником. DP = +40psf/-40psf. Класс SP-PG30 Размер Протестировано 159 x 119,5 дюймов, для двери со стандартным подоконником. DP = +30psf/-30psf. Двери с другими вариантами порогов не оцениваются.
Напольный низкий порог
Напольный низкий порог обеспечивает легкий доступ. Доступен в исполнении из алюминия или бронзы .
Примечание. Напольный подоконник с низким порогом не тестировался на водонепроницаемость.
Подножка заподлицо
Опция заподлицо с подоконником размещает направляющую на одном уровне с чистым полом. Доступен в цвете Бронза .
Примечание. Подоконник не тестируется на водонепроницаемость.
Архитектурные инструменты
| Продукт | Описание | Материал | 2D — файл деталей | Руководство CSI, спецификация |
|---|---|---|---|---|
| Contemporary Clad — складной вынос (3 стойки и поручни 11/16 дюйма) | Современные панели | Алюминий плакированный | | |
Традиционная обшивка — складывающийся вынос | Традиционные панели | Алюминий плакированный | |
Руководства по установке
Инструкции по установке включают подготовку чернового отверстия, герметизацию, установку прокладок, крепление, гидроизоляцию и управление водой.
Найдите своего проводника
Руководство по подготовке площадки
Руководство по установке для поддержки подготовки дверного проема и инструкции по установке, а также помощь в строительстве чернового проема.
Руководство по подготовке площадки
Магнитная направляющая для установки
Направляющая предназначена для современных распашных дверей с облицовкой Andersen®.
Открытая направляющая
Применение выдвижной сетки для защиты от насекомых
Открытая направляющая
Видеоролики по установке выдвижного экранаОдноэкранный, для левшей
Смотреть видео
Одноэкранный, правый
Смотреть видео
Двойной экран
Смотреть видео
Складная распашная дверь
Тип панели | Традиционный
| Традиционный
| Традиционный
| Традиционный
| Современный
| Современный
|
|---|---|---|---|---|---|---|
Конфигурация | 1L3R⁶
| 1L3R⁶
| 3L1R⁶
| 3L1R⁶
| ||
AAMA/WDMA/CSA 101/IS2/A440-08 и -11 | Класс LC-PG40¹
| Класс LC-PG40¹
| Класс LC-PG30¹
| Класс LC-PG30¹
| Класс LC-PG40¹
| Класс LC-PG30¹
|
РАСЧЕТНОЕ ДАВЛЕНИЕ (DP) | +40/-40
| +40/-40
| +30/-30
| +30/-30
| +40/-40
| +30/-30
|
ИНФИЛЬТРАЦИЯ ВОЗДУХА (CFM/FT²) | ||||||
ИСПЫТАТЕЛЬНОЕ ДАВЛЕНИЕ ВОДЫ (PSF) | ||||||
УТВЕРЖДЕНИЕ ФЛОРИДА FL # 14346 | Противоударный
| Противоударный
| Неударный
| Противоударный
| Противоударный
| Противоударный
|
Береговая складная откидная дверь
Тип панели | Современный
| Современный
| Современный
|
|---|---|---|---|
Конфигурация | 3L3R⁷
| ||
AAMA/WDMA/CSA 101/IS2/A440-08 и -11 | Класс LC-PG50²
| Класс LC-PG50²
| Класс LC-PG50²
|
РАСЧЕТНОЕ ДАВЛЕНИЕ (DP) | +50/-50
| +50/-50
| +50/-50
|
ИНФИЛЬТРАЦИЯ ВОЗДУХА (CFM/FT²) | |||
ИСПЫТАТЕЛЬНОЕ ДАВЛЕНИЕ ВОДЫ (PSF) | |||
УТВЕРЖДЕНИЕ ФЛОРИДА FL # 14346 | HVHZ Ударные и неударные
| HVHZ Ударные и неударные
| HVHZ Ударные и неударные
|
• Оценки «класса производительности (PG)» могут отличаться от протестированных оценок производительности для больших или меньших блоков определенного типа.
Некоторые устройства могут не иметь рейтинга.
•Эти данные верны по состоянию на октябрь 2020 г. В связи с постоянными изменениями продуктов, обновленными результатами испытаний или новыми отраслевыми стандартами эти данные могут со временем меняться.
• Там, где это указано, продукция Andersen® сертифицирована и маркирована в соответствии с требованиями программы сертификации Hallmark. Фактические характеристики могут отличаться в зависимости от особенностей производства, транспортировки, установки, условий окружающей среды и условий использования.
• DP Варьируется, подробности см. в утверждении Флориды FL № 14326
• За дополнительной информацией обращайтесь к поставщику Andersen
Примечания
номинальные характеристики
³ Реальный размер двери протестирован; сертификация максимальный размер двери 288” x 95,5”
⁴ Реальный проверенный размер двери; сертифицированный максимальный размер двери 288” x 119.
5”
⁵ Испытано с опциональным высокопрофильным ограничителем порога. Испытательное значение без опционального высокопрофильного ограничителя порога составляет 6,0 P.S.F. В компании Andersen мы гордимся тем, что производим прочные и долговечные изделия. Эта устойчивость позволяет нам предлагать одни из лучших гарантий в отрасли. Они даже подлежат передаче, если вы продаете свой дом. Благодаря нашим эксклюзивным ограниченным гарантиям, передаваемым от владельца к владельцу®, вы получаете душевное спокойствие, а также реальную добавленную стоимость. Посмотреть гарантию Используйте это краткое справочное руководство, чтобы узнать о доступных цветах, отделках, стеклах и аппаратных возможностях для этого продукта. Посмотреть опции для этого товара Сравните характеристики и опции больших дверей Andersen. Сравните большие двери Большие двери Руководства по продуктам, созданные для профессионалов в области торговли, содержат общий обзор функций и опций, доступных для каждой серии продуктов Andersen®. Кроме того, они включают подробную информацию о конструкции каждого типа продукта, а также таблицы размеров и сведения о разрезах. Данные о производительности продукта также включены. Скачать
Посмотреть руководство по продукту Разработаны для плавного и простого управления, предоставляя вам свободу дизайна с производительностью и инновациями, которые вы ожидаете от Andersen. Отметить с помощью #andersenwindows Гарантия, которой можно доверять
Фотогалерея
Подробнее о продукте
Информационный лист о продукте
Сравните Большие двери

Руководство по продуктам
Системы раздвижных стеклянных дверей MultiGlide™
ПОСМОТРЕТЬ, КАК ДРУГИЕ ИСПОЛЬЗУЮТ ЭТОТ ПРОДУКТ
Стили и конфигурации панелей
Цвета и отделка
Оборудование
Стекло
Москитные сетки
Автоматика
Информационный лист
Типы панелей
Доступны панели в современном или традиционном стиле шириной от 28 до 60 дюймов и высотой от 47 ½ до 116 ½ дюймов.
Доступен вариант с терморегулируемой рамой с облицованными деревянными панелями для повышения тепловых характеристик.
Современные алюминиевые панели имеют 2 ¾” стойки и поручни.
Современные деревянные панели с алюминиевым покрытиемСовременные деревянные панели с алюминиевым покрытием имеют стойки с замком 2 ¾ дюйма и поручни с усилением в замках.
Традиционная древесина, облицованная алюминиемТрадиционные панели имеют 4 стойки 11/16 дюйма с возможностью выбора высоты нижней направляющей 4 11/16 дюйма, 8 дюймов или 12 дюймов.
Показана высота нижней направляющей 8 дюймов
Конфигурации
Стекирование Выемка Алюминиевые двериВарианты цвета снаружи/внутри
Деревянные двери с алюминиевым покрытием50 Цвета для наружных работ
Наша эксклюзивная линейка цветов для наружных работ предлагает широкий спектр качественных, запекаемых силиконовых полиэфирных эмалей для наружных работ, соответствующих спецификации AMMA 2604.
Также доступно цветовое соответствие AAMA 2605. Наша ограниченная гарантия распространяется на наружные поверхности в течение 10 лет от меления и изменения цвета и 20 лет от растрескивания, выкрашивания, отслаивания, отслаивания, образования пузырей и потери адгезии.
Колония Уайт
Белый
морское ушко
Бальза белая
Холст
Кленовый сироп
Собрать золото
Прерийная трава
Каменная плита
Песчаник
Галька Тан
Кармель
Терратоне
Горячий шоколад
Бурбон
Желудь
Кофейное зерно
Какао бобы
Сьерра Бронза
Темная бронза
Глиняный каньон
Красная скала
Кардинал
Бинг Черри
Красная пожарная машина
Тост с корицей
Оливковое
Мудрец
Бильярд Грин
Мох
Зеленый лес
Кряква Грин
Мята
Аквамарин
Патина
Голубое небо
Синий кантри
Синий деним
Акварель Синий
Лазурном
Сланец
Капризный синий
Бурный синий
Голубь серый
Портовый туман
Йорктаун Пьютер
Смоки Грей
Мистик Грей
Темный пепел
Черный
Обычай
Варианты анодированного покрытия
Прозрачный анодированный
Шампанское анодированное
Анодированная светлая бронза
Анодированная средняя бронза
медь анодированная
Анодированная темная бронза
Черный анодированный
Варианты внутренней отделки
Породы дерева
Доступны нестандартные цвета.
Сосна
Клен
Дуб
белый дуб
вишня
Красное дерево*
Пихта Дугласа с вертикальным зерном
Ольха
грецкий орех
Смешанное зерно Пихта Дугласа
Гикори
Варианты заводской окраски
Чистое пальто
Медовый
Корица
красновато-коричневый
Мокко
Эспрессо
Золотой Гикори
Осенний дуб
Пшеница
Обычай
Варианты окраски
Доступны варианты исполнения из сосны.
Black и Dark Bronze также доступны на Maple. Анодированное серебро доступно только для Maple.
Белый
Береста
Грунтованный
Холст
Песчаник
Терратоне
Зеленый лес
Темная бронза
Голубь серый
Прерийная трава
Красная скала
Какао бобы
Черный
Анодированное серебро
Изящный низкопрофильный дизайн фурнитуры позволяет штабелировать панели.
Доступны варианты с ключом и без.
Оборудование продается отдельно.
Масляная бронза
Атласный никель
Черный
Белый
Дополнительные характеристики фурнитуры
Внешний замок с ключомВнешний замок с пятью штифтами доступен для всех дверей MultiGlide. Этот замок позволяет запирать и отпирать дверь снаружи.
Система запиранияДверь MultiGlide имеет регулируемую двухточечную систему запирания, обеспечивающую интуитивно понятную регулировку. Оснащен крюками из ламинированной нержавеющей стали и устройством защиты от ударов, предотвращающим повреждение бокового косяка.
Кромочная тяга Кромочная тяга премиум-класса с пружинным возвратом является опциональной для штабелируемых конфигураций и стандартной для карманных конфигураций для перемещения свинцовой панели из кармана.
Отделка – сатинированный никель.
Плавно регулируемые синтетические роликовые колеса с шарикоподшипниками из нержавеющей стали обеспечивают плавную и бесшумную работу. Контурные ролики размером 1 5⁄8 дюйма (41) прошли 25 000 циклов испытаний и доказали свою эффективность. Они идеально подходят для гусеницы, уменьшая боковые вибрации и повышая удобство эксплуатации. Катки способны выдерживать вес, в 4 раза превышающий вес самой большой панели.
Варианты стекла
Панели с силиконовым покрытием и внутренним стопором. Ovolo (колониальный) или современные стеклянные упоры доступны на панелях из плакированного дерева. Современные стеклянные упоры используются на алюминиевых панелях.
Варианты высокопрочного стекла:
Двойное стекло:
- Закаленное стекло Low-E4®
- Закаленное стекло Low-E4 HeatLock®
- Солнцезащитное стекло Low-E4
- Закаленное стекло Low-E4 SmartSun™
- Закаленное стекло Low-E4 SmartSun HeatLock
- Закаленное стекло Low-E4 PassiveSun
Тройное стекло для большей энергоэффективности:
- Закаленное стекло Low-E4
- Улучшенное закаленное стекло Low-E4
- Закаленное стекло Low-E4 SmartSun
- Улучшенное закаленное стекло Low-E4 SmartSun
Доступны дополнительные варианты стекла.
Свяжитесь с вашим поставщиком Andersen.
Москитные сетки
Выдвижная москитная сетка с большой дверьюПредназначена для борьбы с насекомыми и другими внешними вторжениями, позволяя наслаждаться свежим воздухом и непрерывным видом. Экран полностью удерживается в раме со всех сторон и незаметно убирается, когда он не используется, чтобы убрать визуальные отвлекающие факторы и вывести наружу. Подходит для проемов шириной до 30 футов и высотой до 10 футов.
Скользящая москитная сетка с алюминиевой рамойСетчатые панели оснащены гладкими синтетическими роликами и первоклассной заподлицо-фурнитурой, а также имеют ровные линии обзора 2 ¾ дюйма для максимального обзора. В стандартную комплектацию входит долговечная сетка из стекловолокна с угольным покрытием. Рамы доступны во всех цветах кузова и отделках Доступны однопанельные и многопанельные конфигурации.
Выдвижная москитная сетка для больших дверей, информационный листок Узнайте больше о выдвижных москитных сетках для больших дверей, загрузив информационный лист.
Посмотреть информационный лист
Выдвижная москитная сетка для больших дверей Часто задаваемые вопросыОзнакомьтесь с часто задаваемыми вопросами, чтобы узнать больше о больших дверях.
См. часто задаваемые вопросы
Video
Выдвижная москитная сетка Big Doors
Украсьте свой оазис на открытом воздухе с помощью выдвижных экранов для MultiGlide™ и складных распашных дверей. Посмотрите на москитную сетку в действии.
*Для выполнения ограниченной гарантии на выдвижной экран Big Door требуется надлежащий уход и техническое обслуживание. Посетите Справочный центр Andersen, чтобы получить дополнительные сведения.
Автоматическая система открывания/закрыванияОдним нажатием кнопки дверь MultiGlide теперь можно открывать или закрывать, создавая широкие открытые пространства самым удобным способом.
- Дополнительная функция автоматизации доступна для однонаправленных и двунаправленных конфигураций дверей штабелирования и карманов*
- Работа с внутренней сенсорной панелью и защищенной от непогоды внешней клавиатурой
- Включает функции безопасности, такие как потолочные датчики движения (внутри и снаружи) и обнаружение препятствий
- Резервный аккумулятор для обеспечения безопасности системы
- Установлено сторонними сертифицированными установщиками на стройплощадке
- Поддерживается пятилетней ограниченной гарантией
* Автоматизация недоступна для дверей с панелями шириной менее 36 дюймов, а сетки от насекомых не автоматизируются с помощью этой функции.
Посмотреть в действии Информационный лист
Часто задаваемые вопросы по автоматизации
- Будет ли система автоматизации запирать мои двери?
Да. Наша система имеет магнитный тормоз, который срабатывает каждый раз, когда дверные панели находятся в закрытом положении. - Как получить доступ к дверным панелям снаружи?
Мы предлагаем защищенную клавиатуру для внешнего доступа, для работы с которой требуется четырехзначный код. - Можно ли перемещать панели вручную?
Да. Наша система имеет магнитную муфту, которая отсоединяет приводной вал от приводного шкива, что позволяет перемещать панели с минимальным сопротивлением. - Что произойдет с системой, если отключится электричество?
Система имеет резервный аккумулятор для обеспечения безопасности системы. Аккумуляторы обеспечивают 12 часов резервного питания системы автоматики.
Система перезарядит батареи после восстановления питания. - Какой источник питания необходим системе?
Выделенный 15 А, 110 В (стандартная розетка или может быть проводным) - Как система узнает, открыты панели или закрыты?
Наша система имеет встроенный энкодер, который подсчитывает обороты вала, поэтому блок управления всегда знает, где находятся панели. - Как работает система автоматизации?
Система работает с системой ремня и шкива, расположенной в головной направляющей. - Кто-нибудь может установить систему автоматизации?
Нет. Только сертифицированные установщики от поставщика автоматизации Andersen, компании Summit Automation, могут устанавливать систему. Ограниченная гарантия на автоматизацию не распространяется на несанкционированную установку. - Если на дверях есть сетки от насекомых, будут ли они автоматизированы?
Нет, хотя дверь с автоматикой можно заказать с москитной сеткой, москитная сетка не может быть автоматизирована и должна управляться вручную.
- Служба поддержки
Чтобы получить помощь по дверям Andersen MultiGlide с автоматикой, позвоните в службу поддержки клиентов Andersen по телефону 1-855-337-8806.
Подробнее о продукте
Информация о продуктеВоспользуйтесь этим кратким справочным руководством, чтобы узнать о доступных цветах, вариантах отделки, стеклах и фурнитуре для этого продукта.
Информационный лист двери MultiGlide
Размер
Детали секции панели
Варианты порогов
Архитектурные инструменты
Установка
Производительность
Гарантия
Размеры
Из-за множества функций и опций, доступных для двери MultiGlide, мы создали калькулятор размеров, который поможет вам получить полную информацию о размерах.
Инструкции по подготовке места установки см. на вкладке «Установка».
посмотреть калькулятор размеров
Подробная информация о разделе панели
Вертикальные секции
Современная алюминиевая панель Современная древесная панель Традиционная деревянная панель.8-дюймовая нижняя направляющая
Традиционная облицованная деревянная панель12-дюймовая нижняя направляющая
Панель с сеткой от насекомыхГоризонтальные профили
Современный алюминий Современный облицованный деревом Традиционный облицованный деревомЭкран от насекомых 9
Варианты подоконников
Доступны два варианта подоконников: сливной подоконник на полу и подоконник заподлицо.
Оба порога изготовлены из сверхпрочного экструдированного алюминия 6005-T5, обеспечивающего прочность и жесткость.
Дренажный подоконник на полу имеет встроенные дренажные каналы, расположенные через каждые 17-24 дюйма в зависимости от общей ширины, для отвода воды. Доступен в прозрачном или темном бронзовом анодированном исполнении.
Подоконник заподлицоПодоконник заподлицо выступает над чистым полом всего на 3⁄16 дюйма, создавая плавный переход изнутри наружу. Доступен с прозрачным анодированным покрытием.
Примечание : Материал между рейками предназначена для имитации пола между рельсами. Пожалуйста, обратитесь к руководствам по установке для получения дополнительной информации.0005
Слив в полу : приподнятый порогОпциональный приподнятый порог для сливного порога в полу повышает производительность до рейтинга PG30 для размеров до 8 футов высотой.**
Слив в полу : внешний пандус Опциональный внешний пандус для сливного порожка на полу обеспечивает легкий доступ.
Разработан в соответствии с требованиями порога 3/4 дюйма для раздвижных дверей, как указано в ANSI A117.1.*
Вариант внутренней рампы для сливного порожка на полу обеспечивает легкий доступ. Разработан в соответствии с требованиями порога 3/4 дюйма для раздвижных дверей, как указано в ANSI A117.1.* Не может использоваться с дополнительным приподнятым порогом.
*Требование к порогу для раздвижной двери основано на стандарте ANSI A117.1 со ссылкой на доступные устройства типа A; как указано в Законе об американцах с ограниченными возможностями (ADA) и Федеральном законе о справедливом жилищном обеспечении (FFHA). ANSI A117.1 и FFHA содержат другие требования, такие как ширина проема в свету, высота рабочего диапазона и т. д. Раздвижная дверь 3/4 дюйма (19) пороги должны быть скошены с уклоном не более 1:2. Заказчик должен выбрать продукт и установку, соответствующие всем применимым требованиям ANSI A117.
1 и FFHA.
**S1L-1RS Дверь MultiGlide 191” x 95,5” прошла испытания по классу LC-PG30.
Большие двери
Двери MultiGlide™
| Продукт | Описание | Материал | 3D — Revit | 2D — Высота | 2D — файл деталей | Спецификация руководства CSI |
|---|---|---|---|---|---|---|
| Традиционная облицовка Внутреннее штабелирование (4 11/16″, 8″ и 12″ вариантов нижних перекладин) (4 11/16″ стоек и верхняя перекладина) | One Direction без экранов | Алюминий плакированный | | | | |
Традиционная облицовка (4 варианта нижней направляющей 11/16″, 8″ и 12″) | One Direction без экрана | Алюминий плакированный | | | | |
Традиционная облицовка | One Direction без экрана | Алюминий плакированный | | | | |
Contemporary Clad | One Direction без экранов | Алюминий плакированный | | | | |
Contemporary Clad (стойки и поручни 2 3/4 дюйма) | One Direction без экрана | Алюминий плакированный | | | | |
Contemporary Clad | One Direction без экрана | Алюминий плакированный | | | | |
| Современный алюминий Внутреннее штабелирование (2 3/4″ стойки и поручни) | One Direction без экранов | Алюминий | | | | |
Современный алюминий | One Direction без экрана | Алюминий | | | | |
Contemporary Aluminium | One Direction без экрана | Алюминий | | | | |
Установка
Руководства по установке Инструкции по установке включают подготовку чернового отверстия, герметизацию, установку прокладок, крепление, гидроизоляцию и управление водой.![]()
Найдите своего проводника
Руководства по подготовке площадкиРуководство по установке для поддержки подготовки дверного проема и инструкции по установке, а также помощь в строительстве чернового проема.
АвтоматизацияПосетите сайт Summit Automation, чтобы найти компоненты автоматизации и спецификации размещения
Посмотреть сейчас
Направляющая роликаПолучить руководство
Руководство по применению фурнитурыРуководство содержит процедуры, которые необходимо соблюдать при установке комплектов дверной фурнитуры MultiGlide.
Открытая направляющая
Встроенные домкратные винты Встроенные домкратные винты упрощают установку. Домкратные винты, расположенные внутри боковых и головных косяков, служат встроенными прокладками, позволяющими выполнять точную регулировку во время установки.
Точная регулировка позволяет раме и панелям взаимодействовать, как задумано, во время первоначальной установки и на протяжении всего срока службы продукта для бесперебойной работы.
Видео по установке выдвижного экрана
Одноэкранный, для левшей
Смотреть видео
Одноэкранный, правый
Смотреть видео
Двойной экран
Смотреть видео
Руководство по обслуживанию
Перемещение опоры карманаПолучить руководство
Регулировка блокировки карманаПолучить руководство
Сменная направляющая роликаПолучить руководство
Гарантия, которой можно доверять
В компании Andersen мы гордимся тем, что производим прочные и долговечные изделия.
Эта устойчивость позволяет нам предлагать одни из лучших гарантий в отрасли. Они даже подлежат передаче, если вы продаете свой дом. Благодаря нашим эксклюзивным ограниченным гарантиям, передаваемым от владельца к владельцу®, вы получаете душевное спокойствие, а также реальную добавленную стоимость.
Посмотреть гарантию (на английском языке) Посмотреть гарантию (испанский)
Особенности и вдохновение
Огромный видДвери MultiGlide подходят для проемов шириной до 25 футов и высотой до 10 футов, создавая красивые стены из подвижного стекла.
Стильный дизайнВыберите дверь из современного или традиционного дизайна, а также десятки вариантов внешнего и внутреннего оформления.
Получите вдохновение
Жилье внутри/снаружи Откройте для себя бесконечные возможности и добавьте еще больше жилой площади в свой дом.
Получите вдохновение
Большие двери
Руководство по продуктам
Руководства по продуктам, созданные для профессионалов в области торговли, содержат общий обзор функций и опций, доступных для каждой серии продуктов Andersen®. Кроме того, они включают подробную информацию о конструкции каждого типа продукта, а также таблицы размеров и сведения о разрезах. Данные о производительности продукта также включены.
Скачать Посмотреть руководство по продукту
Подъемно-сдвижная дверь | Andersen Windows
Создайте непревзойденный образ жизни в помещении и на открытом воздухе с помощью Andersen Liftslide. Благодаря плавному переходу к полу и панелям высотой до 16 футов, Liftslide максимизирует ваш обзор и может быть построен в бесчисленных конфигурациях, таких как угловые, изогнутые и карманные блоки.
- Создайте расширенный вид с меньшим количеством панелей большего размера
- Алюминий с деревянным покрытием, полностью алюминиевая или полностью деревянная конструкция
- Доступны прямые, угловые, изогнутые и сквозные окна
- Доступны терморегулируемые рамы и панели
- Доступна встроенная система защиты от насекомых
- Нижняя направляющая заподлицо располагается всего на 3/16 дюйма над чистым полом
Стирайте границы между
В помещении и на открытом воздухе
Бесчисленное множество конфигураций, предлагающих уникальные и творческие архитектурные возможности.
Двери могут быть прямыми, изогнутыми или угловыми, а панели могут скользить по косяку, в стенной карман или вдоль внешней стены. Экраны доступны в большинстве конфигураций.
Из чего это сделано?
Aluminium Wood-Clad предлагает прочную алюминиевую створку с внутренней облицовкой из дерева. Все алюминиевые дверные профили изготовлены из алюминия 6063. Также доступны раздвижные двери All Wood.
МАТЕРИАЛЫ
Энергоэффективность
Алюминиевые двери с деревянным покрытием и цельноалюминиевые двери доступны в виде дверных систем с термоконтролем. И рама, и панели подвергаются термическому разрушению, что помогает добиться максимальной энергоэффективности.
Узнать больше
Конфигурации и размеры
Цвета и породы дерева
Оборудование
Стекло
Решетки
Прибрежный
Информационный лист
Прямая
Разработана для больших проемов, создавая обширные стеклянные стены с необычно большими панелями высотой до 16 футов.![]()
Сквозные окна
Карман
Карман Дверные панели могут скользить в карман или вдоль внешней стены, как дверь сарая.
Угловой
Наши угловые подъемные направляющие создают невероятно большие проемы и подходят практически под любым углом. Без угловой стойки наши угловые двери создают плавное и бесшовное пространство.
Изогнутые
Изогнутые подъемно-раздвижные двери эффектны и легендарны. С изогнутыми панелями, скользящими по изогнутой направляющей, эта система имеет все те же замечательные характеристики, что и наши прямые подъемные направляющие, и имеет высоту до 12 футов.
50 Цвета для наружной отделки
Наша эксклюзивная линейка красок для наружных работ предлагает широкий спектр качественных запекаемых силиконовых полиэфирных эмалей, которые соответствуют спецификации AAMA 2605. Наша ограниченная гарантия распространяется на наружные поверхности в течение 10 лет от меления и изменения цвета и 20 лет от растрескивания, выкрашивания, отслаивания, отслаивания, образования пузырей и потери адгезии.
Пользовательские цвета экстерьера также доступны.
Колония Уайт
Белый
морское ушко
Бальза белая
Холст
Кленовый сироп
Собрать золото
Прерийная трава
Каменная плита
Песчаник
Галька Тан
Кармель
Терратоне
Горячий шоколад
Бурбон
Желудь
Кофейное зерно
Какао бобы
Сьерра Бронза
Темная бронза
Глиняный каньон
Красная скала
Кардинал
Бинг Черри
Красная пожарная машина
Тост с корицей
Оливковое
Мудрец
Бильярд Грин
Мох
Зеленый лес
Кряква Грин
Мята
Аквамарин
Патина
Голубое небо
Синий кантри
Синий деним
Акварель Синий
Лазурном
Сланец
Капризный синий
Бурный синий
Голубь серый
Портовый туман
Йорктаун Пьютер
Смоки Грей
Мистик Грей
Темный пепел
Черный
Обычай
Варианты анодированного покрытия
Породы дерева
Доступны нестандартные породы дерева.![]()
Сосна
Клен
Дуб
белый дуб
вишня
Красное дерево*
Пихта Дугласа с вертикальным зерном
Ольха
грецкий орех
Смешанное зерно Пихта Дугласа
Гикори
Фурнитура
Фурнитура подъемной направляющей разработана для обеспечения надежности, долговечности и бесперебойной работы. Andersen тесно сотрудничает с европейскими поставщиками, некоторые из которых имеют более чем 100-летнюю историю, чтобы обеспечить лучшие доступные компоненты. Благодаря тщательным испытаниям и опыту работы с индивидуальными приложениями, наш выбор оборудования придает подъемно-раздвижным дверям ощущение роскоши и легкости в эксплуатации.
Виды фурнитуры и отделки
Флоренция
Постоянный или съемный
Сатиновый никель, деревенский мгновенный, матовый черный
Oslo
Постоянный или съемный съемный
Сатинированный серебро, Деревенский Umber , Ярко -белый
Telluride
Flush Mount
Darkze Bronze, Midail Bronze, . , Белая бронза, Матовая белая бронза, Рустикальная белая бронза Утопленный монтаж Матовый черный, Рустикальная умбра, Альпийский мороз Съемные ручки обеспечивают гибкость дизайна. В более узком кармане панели можно укладывать заподлицо с карманом или боковым косяком. Для индивидуальной отделки. Наше специальное оборудование поднимает дверную панель, зацепляя колеса и позволяя ей плавно катиться по направляющей. Таким образом, отсутствует трение, вызванное волочением и износом уплотнителя, как в обычных раздвижных дверях. Внешние алюминиевые тяги для пальцев входят в стандартную комплектацию и окрашены в цвет створки. Нержавеющая сталь доступна по запросу без дополнительной оплаты. Кромочные тяги, используемые для карманных систем, изготовлены из нержавеющей стали и доступны в черном или сатинированном серебристом исполнении. Наша многоточечная система запирания предназначена для фиксации дверной панели в запертом положении и соответствует стандарту ASTM F 588. Наличие нескольких точек запирания обеспечивает повышенную безопасность по сравнению со стандартными дверными замками только с одной точкой контакта. Цилиндры со шпонкой также доступны в определенных конфигурациях. Узнайте больше о вариантах стекла. Защитное стекло Многослойное стекло Звукопоглощающее стекло Художественное стекло Узорчатое стекло 7/8” и 1 1 1″, 1 1/4″, 1 1/2″, 1 3/4″, 2″, 2 2 3 Откройте для себя захватывающий вид на океан беспрецедентными способами благодаря огромным размерам и множеству конфигураций, которые предлагают уникальные и творческие архитектурные возможности для любого прибрежного применения. Загрузить информационный лист Ударопрочное стекло Low-E4® обеспечивает все преимущества монолитного ударопрочного стекла, добавляя изолирующее воздушное пространство, которое помогает сохранять дома прохладой летом и теплом зимой. Ударопрочное стекло Low-E4 SmartSun™ обладает преимуществами стекла Low-E4, а также помогает защитить дома от солнечного тепла и отфильтровывает 95 % вредных ультрафиолетовых лучей, пропуская при этом солнечный свет. Ударопрочное стекло Low-E4 тонировано для максимальной защиты от воздействия интенсивного солнечного света и обладает всеми преимуществами стекла Low-E4. Low-E4 SmartSun™ Монолитное ударопрочное стекло усилено прозрачным многослойным пластиком, зажатым между двумя стеклами для защиты от ударов, взлома и нежелательного шума. Выберите из прозрачного или серого. Данные класса производительности Данные класса производительности для Andersen Products Ассоциация производителей окна и дверей (WDMA) Сертификация Hallmark для Andersen Products Флоридский отдел бизнеса и профессиональной регламента Florid Здание Флориды Используйте это краткое справочное руководство, чтобы узнать о доступных цветах, отделках, стеклах и аппаратных возможностях для этого продукта. Используйте это краткое справочное руководство, чтобы узнать о доступных цветах, вариантах отделки, стеклах и аппаратных возможностях для этого продукта. посмотреть варианты этого товара Лома
Съемные ручки
Ролики
И в отличие от обычных слайдеров, подъемно-раздвижные панели опираются на колеса только при их перемещении, так что колеса остаются в отличной форме в течение длительного времени. Характеристики
Кромочные тяги
Защита и безопасность
Варианты исполнения стекла
U-ФАКТОР
Насколько хорошо продукт предотвращает утечку тепла.

КОЭФФИЦИЕНТ ПОЛУЧЕНИЯ СОЛНЕЧНОГО ТЕПЛА
Насколько хорошо продукт блокирует тепло, вызванное солнечным светом.
ПРОПУСКАНИЕ ВИДИМОГО СВЕТА
Сколько видимого света проходит через изделие.
ЗАЩИТА ОТ УФ-излучения
Насколько хорошо продукт блокирует ультрафиолетовые лучи.
SmartSun™
U-ФАКТОР
Насколько хорошо продукт предотвращает утечку тепла.

КОЭФФИЦИЕНТ ПОЛУЧЕНИЯ СОЛНЕЧНОГО ТЕПЛА
Насколько хорошо продукт блокирует тепло, вызванное солнечным светом.
ПРОПУСКАНИЕ ВИДИМОГО СВЕТА
Сколько видимого света проходит через изделие.
ЗАЩИТА ОТ УФ-излучения
Насколько хорошо продукт блокирует ультрафиолетовые лучи.
SmartSun с покрытием HeatLock™
U-ФАКТОР
Насколько хорошо продукт предотвращает утечку тепла.

КОЭФФИЦИЕНТ ПОЛУЧЕНИЯ СОЛНЕЧНОГО ТЕПЛА
Насколько хорошо продукт блокирует тепло, вызванное солнечным светом.
ПРОПУСКАНИЕ ВИДИМОГО СВЕТА
Сколько видимого света проходит через изделие.
ЗАЩИТА ОТ УФ-излучения
Насколько хорошо продукт блокирует ультрафиолетовые лучи.
Низкий-E4®/Низкий-E
U-ФАКТОР
Насколько хорошо продукт предотвращает утечку тепла.

КОЭФФИЦИЕНТ ПОЛУЧЕНИЯ СОЛНЕЧНОГО ТЕПЛА
Насколько хорошо продукт блокирует тепло, вызванное солнечным светом.
ПРОПУСКАНИЕ ВИДИМОГО СВЕТА
Сколько видимого света проходит через изделие.
ЗАЩИТА ОТ УФ-излучения
Насколько хорошо продукт блокирует ультрафиолетовые лучи.
Low-E4 с покрытием HeatLock™
U-ФАКТОР
Насколько хорошо продукт предотвращает утечку тепла.

КОЭФФИЦИЕНТ ПОЛУЧЕНИЯ СОЛНЕЧНОГО ТЕПЛА
Насколько хорошо продукт блокирует тепло, вызванное солнечным светом.
ПРОПУСКАНИЕ ВИДИМОГО СВЕТА
Сколько видимого света проходит через изделие.
ЗАЩИТА ОТ УФ-излучения
Насколько хорошо продукт блокирует ультрафиолетовые лучи.
Вс
U-ФАКТОР
Насколько хорошо продукт предотвращает утечку тепла.

КОЭФФИЦИЕНТ ПОЛУЧЕНИЯ СОЛНЕЧНОГО ТЕПЛА
Насколько хорошо продукт блокирует тепло, вызванное солнечным светом.
ПРОПУСКАНИЕ ВИДИМОГО СВЕТА
Сколько видимого света проходит через изделие.
ЗАЩИТА ОТ УФ-излучения
Насколько хорошо продукт блокирует ультрафиолетовые лучи.
ПассивСан®
U-ФАКТОР
Насколько хорошо продукт предотвращает утечку тепла.

КОЭФФИЦИЕНТ ПОЛУЧЕНИЯ СОЛНЕЧНОГО ТЕПЛА
Насколько хорошо продукт блокирует тепло, вызванное солнечным светом.
ПРОПУСКАНИЕ ВИДИМОГО СВЕТА
Сколько видимого света проходит через изделие.
ЗАЩИТА ОТ УФ-излучения
Насколько хорошо продукт блокирует ультрафиолетовые лучи.
Тройное стекло (с низкоэмиссионными покрытиями на двух поверхностях)
U-ФАКТОР
Насколько хорошо продукт предотвращает утечку тепла.

КОЭФФИЦИЕНТ ПОЛУЧЕНИЯ СОЛНЕЧНОГО ТЕПЛА
Насколько хорошо продукт блокирует тепло, вызванное солнечным светом.
ПРОПУСКАНИЕ ВИДИМОГО СВЕТА
Сколько видимого света проходит через изделие.
ЗАЩИТА ОТ УФ-излучения
Насколько хорошо продукт блокирует ультрафиолетовые лучи.
Только центр стекла. Декоративное и специальное стекло
Закаленное безопасное стекло доступно для всех продуктов и входит в стандартную комплектацию всех дверей Liftslide.
Также доступно многослойное стекло для дополнительной прочности, повышенной безопасности и звукоизоляции.
Это стекло помогает уменьшить громкость внешнего шума. Доступен с покрытиями Low-E, SmartSun и HeatLock.
Художественное стекло Andersen® доступно в широком ассортименте рисунков, придающих необыкновенную элегантность любому стилю дома.
Пропускайте свет, закрывая обзор и добавляя уникальный декоративный штрих вашему дому. Типы решеток
Ширина профиля
Изображение профиля
Оволо
Ширина профиля
Изображение профиля
Современный
Ширина профиля
Изображение профиля
Серия E Contemporary Full Divided Light
Ширина профиля
Изображение профиля
В квадрате
Ширина профиля
2 1/4″, 2 1/2″, 3″ и 4″ Изображение профиля
Промежуточные направляющие
Ширина рельса
Изображение профиля
Промежуточная рейка для алюминия с деревянным покрытием (AWLS)
Ширина рельса
Изображение профиля
Промежуточные направляющие для всех алюминиевых сплавов (ALS-T и ALS)
Ширина рельса
Изображение профиля
Промежуточный рельс для подъемно-сдвижных дверей с термоконтролем (AWLS-C и ALS-C)
Ширина рельса
Изображение профиля
Ворота Liftslide Coastal Doors

Варианты прибрежного стекла
Варианты прибрежного стекла

Обратитесь к местному чиновнику по строительным нормам и правилам, чтобы узнать о требованиях строительных норм и правил в вашем районе. Подробнее о продукте
Информационный лист о продукте

Информационный бюллетень Coastal
Детали гусеницы
Архитектурные инструменты
Детальные чертежи
Установка
Сравнение моделей
Производительность
Гарантия
Утопленные гусеницы
Наши гусеницы изготовлены из закаленного анодированного алюминия и выдержали испытание временем в суровых погодных условиях.
Стандартные и запатентованные дренажные направляющие Andersen для промывки прошли испытания и соответствуют стандартам производительности AAMA, что делает их надежными и безопасными в суровых погодных условиях.
Наши гусеницы интегрируются с вашими дизайнерскими идеями. Первое, что отличает наши два варианта направляющих заподлицо, это то, что они выступают всего на 3/16″ над чистым полом, создавая плавный переход изнутри наружу, без препятствий, о которые можно споткнуться. Кроме того, направляющие заподлицо на многопанельных блоках расположены в шахматном порядке, что позволяет избежать внешнего вида железнодорожных путей большинства других дверных систем. высокая подъемно-сдвижная система и сертифицирована в соответствии с протоколом испытаний AAMA/WDMA/CSA 101/1.S.2/A440 на рабочее усилие, сопротивление утечке воздуха, сопротивление проникновению воды, равномерное отклонение нагрузки, равномерную структурную нагрузку и сопротивление принудительному входу.
Запатентованная дренажная канавка заподлицо
Компания Andersen предлагает проверенные 12-футовые системы подъемно-спускных систем с панелью высотой 12 футов, которые соответствуют требованиям штатов Флорида и Hallmark Hurricane Rated, используя запатентованную дорожку полного дренажа Andersen.
Напольное покрытие, используемое в обеих испытательных системах, представляло собой гладкую поверхность ровно на 3/16 дюйма ниже верхней части гусеницы, заходящую в карманы.
Раздвижные двери
| Продукт | Описание | Материал | 3D — Revit | 2D — Высота | 2D — файл деталей | Спецификация руководства CSI |
|---|---|---|---|---|---|---|
| AWLS Обшивка Liftslide Внутреннее штабелирование (3 1/2″ стойки и поручни) | 1 Стационарная панель «O Door» | Алюминий Внутреннее покрытие из дерева | | | | |
AWLS | One Direction без экранов | Алюминий Внутреннее покрытие из дерева | | | | |
ALS | 1 Стационарная панель «O Door» | Алюминий | | | | |
ALS | One Direction без экранов | Алюминий | | | | |
AWLS-C | 1 Стационарная панель «O Door» | Алюминий Внутреннее покрытие из дерева | | | | |
AWLS-C | One Direction без экранов | Алюминий Внутреннее покрытие из дерева | | | | |
ALS-C | 1 Стационарная панель «O Door» | Алюминий | | | | |
ALS-C | One Direction без экранов | Алюминий | | | |
Детальные чертежи
| Продукт | Описание | Материал | . pdf | .dwg |
|---|---|---|---|---|
| AWLS-C Алюминий Облицовка деревом Терморегулируемый | Укладка и размещение в карманах | Алюминий Внутренняя отделка деревом | | |
| ALS-C Алюминий Терморегулируемый | Штабелирование и размещение в карманах | Алюминий | | |
| AWLS Алюминий Wood-Clad | Штабелирование и размещение в карманах | Алюминий Внутренняя отделка деревом | | |
| АЛС Алюминий | Штабелирование и размещение в карманах | Алюминий | | |
| AWLS-I Алюминий Wood-Clad Stormwatch | Штабелирование и размещение в карманах | Алюминий Внутренняя отделка деревом | | |
| WLS Цельнодеревянная подъемная направляющая | Штабелирование и карманы | Дерево | |
Руководства по установке
Инструкции по установке включают подготовку чернового отверстия, герметизацию, установку прокладок, крепление, гидроизоляцию и управление водой.
Найдите своего проводника
Руководства по подготовке площадки
Руководство по установке для поддержки подготовки дверного проема и инструкции по установке, а также помощь в строительстве чернового проема.
Встроенные домкратные винтыВстроенные домкратные винты упрощают установку. Домкратные винты, расположенные внутри боковых и головных косяков, служат встроенными прокладками, позволяющими выполнять точную регулировку во время установки. Точная регулировка позволяет раме и панелям взаимодействовать, как задумано, во время первоначальной установки и на протяжении всего срока службы продукта для бесперебойной работы.
Сравнительная таблица
Сравнить модели
Табл. 9 номинальных характеристик Liftslide0004
Сравнить модели
Гарантия, которой можно доверять
В компании Andersen мы гордимся тем, что производим прочные и долговечные изделия.
Эта устойчивость позволяет нам предлагать одни из лучших гарантий в отрасли. Они даже подлежат передаче, если вы продаете свой дом. Благодаря нашим эксклюзивным ограниченным гарантиям, передаваемым от владельца к владельцу®, вы получаете душевное спокойствие, а также реальную добавленную стоимость.
Посмотреть гарантию
Посмотреть проект с участием этого продукта:
Резиденция Sands Point
Лонг-Айленд, Нью-Йорк
Будучи художником, владелец этого элитного современного дома в Хэмптоне хотел иметь пространство для рисования и развлечений. Основной целью стала открытая планировка этажа, которая максимизировала рассеянный свет, поэтому сводчатые потолки с легким и воздушным декором были ключевыми элементами в его дизайне.
ПОКАЗАННЫЕ ПРОДУКТЫ
Подъемно-сдвижная дверь Weiland
Посмотреть детали
ПОКАЗАННЫЕ ПРОДУКТЫ
Подъемно-раздвижная дверь Weiland
Посмотреть детали
ПОКАЗАННЫЕ ПРОДУКТЫ
Подъемно-раздвижная дверь Weiland
Посмотреть детали
ПОКАЗАННЫЕ ПРОДУКТЫ
Подъемно-раздвижная дверь Weiland
Посмотреть детали
Фотогалерея
Смывная дорожка
Посмотреть детали
Направляющая
Посмотреть детали
Цельнодеревянный
Посмотреть детали
Цельнодеревянный
Посмотреть детали
Алюминий Дерево, LEED
Посмотреть детали
Угловой подъемник
Посмотреть детали
Поворотная дверь | Andersen Windows
Поворотная дверь вращается на поворотной коробке в полу и на верхнем косяке, а не на традиционных боковых дверных петлях.
Andersen предлагает поворотные двери шириной до 9 футов и высотой до 16 футов. Эти двери идеально подходят для больших панелей, имеют классную современную атмосферу и создают уникальную архитектуру открывания. Доступны нестандартные и стандартные размеры.
- Предназначены для больших эффектных проемов, включая входные группы
- Доступны европейские и другие нестандартные аппаратные опции
- Открывающиеся, открывающиеся наружу, открывающиеся внутрь и наружу, одностворчатые или двустворчатые двери, а также многостворчатые поворотные двери
Заявите о себе
Создан для исключительно элегантного вида. Вместо того, чтобы качаться на петле, эти двери вращаются на точно спроектированном шарнире. Идеально подходящие для истинных ценителей дизайна, они делают смелое и современное заявление.
Из чего это сделано?
Aluminium Wood-Clad предлагает прочную алюминиевую створку с внутренней облицовкой из дерева.
Все алюминиевые дверные профили изготовлены из алюминия 6063. Все деревянные двери также доступны.
МАТЕРИАЛЫ
Плавная работа
Поворотная дверь Andersen работает как прекрасно сбалансированная панель, которая кажется почти независимой от своей рамы. Наши поворотные двери работают плавно, даже несмотря на то, что их можно сделать намного больше и шире, чем традиционные двери на петлях.
Конфигурации
Размер
Цвета и породы дерева
Оборудование
Стекло
Решетки
Прибрежный
Информационный лист
Концепции дизайна
Умный дом
Конфигурации
Доступны как одиночные, так и двойные шарниры.
Кроме того, одинарные или двойные двери можно комбинировать с боковыми фонарями или в конфигурации с поворотной осью; который представляет собой несколько поворотных дверей подряд.
Одинарные
Двери с одинарной осью могут быть распашными, распашными или и тем, и другим. Наши одностворчатые двери обеспечивают бесшовный, обтекаемый вид и плавную работу. Кроме того, дверные панели могут быть сделаны намного шире, а общая площадь в квадратных футах больше, чем у двери с боковыми петлями.
Двойная
Наши двойные поворотные двери (две двери рядом) сконструированы так, чтобы открываться и открываться, но не одновременно. Двустворчатая дверь Andersen работает как две прекрасно сбалансированные панели, которые кажутся почти независимыми от их рамы, и является отличным выбором для строителей или домовладельцев, которые ищут более тесную связь между внутренним и наружным пространством, а также цельный, обтекаемый современный вид.
Поворотная стена
Поворотная стена представляет собой несколько поворотных дверей в ряд без косяков между панелями.
Эта конфигурация может быть построена как inswing или outswing.
Алюминий, облицованный деревом
Максимальная высота панели 13 футов, максимальная ширина панели 5 футов с одинарной нижней рейкой, и она увеличивается до 8 футов с двойной нижней рейкой.
Боковые стойки, верхняя и нижняя направляющие имеют ширину 3-1/2 дюйма и толщину створки 3-3/16 дюйма.
Алюминий
Максимальная высота панели 16 футов, максимальная ширина панели 6 футов с одинарной нижней рейкой, и она увеличивается до 9 футов с двойной нижней рейкой.
Боковые стойки, верхняя и нижняя направляющие имеют ширину 3-1/2 дюйма и толщину створки 3-3/16 дюйма.
All Wood
Максимальная высота панели 12 футов и максимальная ширина панели 6 футов с одинарной нижней перекладиной, которая увеличивается до 8 футов с двойной нижней перекладиной.
Доступны варианты стеклянных вставок по индивидуальному заказу.
50 Цвета для наружных работ
Наша эксклюзивная линейка красок для наружных работ предлагает широкий спектр качественных запекаемых силиконовых полиэфирных эмалей для наружных работ, соответствующих спецификации AAMA 2605.
Наша ограниченная гарантия распространяется на наружные поверхности в течение 10 лет от меления и изменения цвета и 20 лет от растрескивания, выкрашивания, отслаивания, отслаивания, образования пузырей и потери адгезии. Пользовательские цвета экстерьера также доступны.
Колония Уайт
Белый
морское ушко
Бальза белая
Холст
Кленовый сироп
Собрать золото
Прерийная трава
Каменная плита
Песчаник
Галька Тан
Кармель
Терратоне
Горячий шоколад
Бурбон
Желудь
Кофейное зерно
Какао бобы
Сьерра Бронза
Темная бронза
Глиняный каньон
Красная скала
Кардинал
Бинг Черри
Красная пожарная машина
Тост с корицей
Оливковое
Мудрец
Бильярд Грин
Мох
Зеленый лес
Кряква Грин
Мята
Аквамарин
Патина
Голубое небо
Синий кантри
Синий деним
Акварель Синий
Лазурном
Сланец
Капризный синий
Бурный синий
Голубь серый
Портовый туман
Йорктаун Пьютер
Смоки Грей
Мистик Грей
Темный пепел
Черный
Обычай
Варианты анодированной отделки
Породы дерева
Доступны нестандартные породы дерева.
Сосна
Клен
Дуб
белый дуб
вишня
Красное дерево*
Пихта Дугласа с вертикальным зерном
Ольха
грецкий орех
Смешанное зерно Пихта Дугласа
Гикори
*Настоящая древесная порода – Sapele или Sipo, обе не находящиеся под угрозой исчезновения породы, произрастающие в Африке, с цветом и характеристиками, похожими на красное дерево из Центральной Америки.
Аппаратное обеспечение
Аппаратное обеспечение, которое мы используем, отличается надежностью, долговечностью и бесперебойной работой.
Подкрепленный тщательным тестированием и опытом работы с индивидуальными приложениями, наш выбор оборудования придает дверям Andersen Pivot ощущение роскоши и легкости в эксплуатации.
Стили и отделка аппаратного обеспечения
• Стандартные ручки в стиле Вероны доступны
• ФСБ аппаратное оборудование. Доступно
• Пользовательское оборудование, такое как аппаратное обеспечение панического или пуши
Фурнитура Verona
Черный матовый
Фурнитура Verona
Бронза, протертая маслом
Фурнитура Florence
Сатиновый никель
Фурнитура Florence
Темная бронза
Фурнитура Florence
Черный матовый
FSB® 1075
Satin Stainless Steel, Black Anodized Aluminum
FSB® 1076
Satin Stainless Steel, Black Anodized Aluminum
FSB® 1102
Satin Stainless Steel
The handle and thumb latch на оборудовании FSB будут немного отличаться от Pivot Doors из-за их конфигурации и работы.
Смещенная круглая рукоятка
Нержавеющая сталь
Смещенная круглая рукоятка
Черный
Ручки доступны следующей длины:
23 5/7″, 1/4 дюйма, 59 1/16 дюйма, 70 7/8 дюйма
Варианты исполнения стекла
U-ФАКТОРНасколько хорошо продукт предотвращает утечку тепла. | КОЭФФИЦИЕНТ ПОЛУЧЕНИЯ СОЛНЕЧНОГО ТЕПЛАНасколько хорошо продукт блокирует тепло, вызванное солнечным светом. | ПРОПУСКАНИЕ ВИДИМОГО СВЕТАСколько видимого света проходит через изделие.![]() | ЗАЩИТА ОТ УФ-излученияНасколько хорошо продукт блокирует ультрафиолетовые лучи. | |
|---|---|---|---|---|
SmartSun™ | U-ФАКТОРНасколько хорошо продукт предотвращает утечку тепла. | КОЭФФИЦИЕНТ ПОЛУЧЕНИЯ СОЛНЕЧНОГО ТЕПЛАНасколько хорошо продукт блокирует тепло, вызванное солнечным светом.![]() | ПРОПУСКАНИЕ ВИДИМОГО СВЕТАСколько видимого света проходит через изделие. | ЗАЩИТА ОТ УФ-излученияНасколько хорошо продукт блокирует ультрафиолетовые лучи. |
SmartSun с покрытием HeatLock™ | U-ФАКТОРНасколько хорошо продукт предотвращает утечку тепла.![]() | КОЭФФИЦИЕНТ ПОЛУЧЕНИЯ СОЛНЕЧНОГО ТЕПЛАНасколько хорошо продукт блокирует тепло, вызванное солнечным светом. | ПРОПУСКАНИЕ ВИДИМОГО СВЕТАСколько видимого света проходит через изделие. | ЗАЩИТА ОТ УФ-излученияНасколько хорошо продукт блокирует ультрафиолетовые лучи. |
Низкий-E4®/Низкий-E | U-ФАКТОРНасколько хорошо продукт предотвращает утечку тепла.![]() | КОЭФФИЦИЕНТ ПОЛУЧЕНИЯ СОЛНЕЧНОГО ТЕПЛАНасколько хорошо продукт блокирует тепло, вызванное солнечным светом. | ПРОПУСКАНИЕ ВИДИМОГО СВЕТАСколько видимого света проходит через изделие. | ЗАЩИТА ОТ УФ-излученияНасколько хорошо продукт блокирует ультрафиолетовые лучи. |
Low-E4 с покрытием HeatLock™ | U-ФАКТОРНасколько хорошо продукт предотвращает утечку тепла.![]() | КОЭФФИЦИЕНТ ПОЛУЧЕНИЯ СОЛНЕЧНОГО ТЕПЛАНасколько хорошо продукт блокирует тепло, вызванное солнечным светом. | ПРОПУСКАНИЕ ВИДИМОГО СВЕТАСколько видимого света проходит через изделие. | ЗАЩИТА ОТ УФ-излученияНасколько хорошо продукт блокирует ультрафиолетовые лучи. |
Вс | U-ФАКТОРНасколько хорошо продукт предотвращает утечку тепла.![]() | КОЭФФИЦИЕНТ ПОЛУЧЕНИЯ СОЛНЕЧНОГО ТЕПЛАНасколько хорошо продукт блокирует тепло, вызванное солнечным светом. | ПРОПУСКАНИЕ ВИДИМОГО СВЕТАСколько видимого света проходит через изделие. | ЗАЩИТА ОТ УФ-излученияНасколько хорошо продукт блокирует ультрафиолетовые лучи. |
ПассивСан® | U-ФАКТОРНасколько хорошо продукт предотвращает утечку тепла.![]() | КОЭФФИЦИЕНТ ПОЛУЧЕНИЯ СОЛНЕЧНОГО ТЕПЛАНасколько хорошо продукт блокирует тепло, вызванное солнечным светом. | ПРОПУСКАНИЕ ВИДИМОГО СВЕТАСколько видимого света проходит через изделие. | ЗАЩИТА ОТ УФ-излученияНасколько хорошо продукт блокирует ультрафиолетовые лучи. |
Тройное стекло (с низкоэмиссионным покрытием на двух поверхностях) | U-ФАКТОРНасколько хорошо продукт предотвращает утечку тепла.![]() | КОЭФФИЦИЕНТ ПОЛУЧЕНИЯ СОЛНЕЧНОГО ТЕПЛАНасколько хорошо продукт блокирует тепло, вызванное солнечным светом. | ПРОПУСКАНИЕ ВИДИМОГО СВЕТАСколько видимого света проходит через изделие. | ЗАЩИТА ОТ УФ-излученияНасколько хорошо продукт блокирует ультрафиолетовые лучи. |
Узнайте больше о вариантах стекла.
Только центр стекла.
Декоративное и специальное стекло
Художественное стекло
Художественное стекло Andersen® доступно в широком разнообразии рисунков, придающих необыкновенную элегантность любому домашнему стилю.
Узорчатое стекло
Пропускайте свет, закрывая обзор и добавляя уникальный декоративный штрих вашему дому.
Типы решеток
Ширина профиля | Изображение профиля | |
|---|---|---|
Оволо | Ширина профиля7/8” и 1 1/4”
| Изображение профиля |
Современный | Ширина профиля1 1/4″
| Изображение профиля |
Серия E Contemporary Full Divided Light | Ширина профиля | Изображение профиля |
В квадрате | Ширина профиля 1″, 1 1/4″, 1 1/2″, 1 3/4″, 2″, | Изображение профиля |
Промежуточные направляющие
Изображение профиля | Ширина рельса | |
|---|---|---|
Промежуточный рельс для алюминиевого покрытия с деревянным покрытием (AWPD) | Изображение профиля | Ширина рельса2 7/8”
|
Промежуточный рельс для алюминиевого покрытия с деревянным покрытием (APD-T и APD) | Изображение профиля | Ширина рельса2 7/8”
|
Поворотные двери Stormwatch
Откройте для себя захватывающий вид на океан и/или создайте большие индивидуальные входы.
Дверь Andersen Pivot предлагает уникальные и творческие архитектурные возможности для любого прибрежного применения.
- Номинальные характеристики для алюминия (термослоистая панель — APD-T) и алюминиевых панелей с деревянным покрытием (AWPD) до 5 футов в ширину и 10 футов в высоту
- С заподлицо с порогом High Performance: сертифицирован CW PG60, многоточечное запирание активируется однорычажной рукояткой (дополнительные болты не требуются)
- Выберите места поворота, вылет 4” – центр панели; Inswing 12” – Центр панели
- NFRC для алюминиевых деревянных панелей
- TAS/ASTM Ударопрочность, FBC (FL# 22224) и сертификат Hallmark
- Доступны конфигурации направляющих замка
- Доступны непрозрачные и сплошные панели
Загрузить информационный лист
Варианты прибрежного стекла
Варианты прибрежного стекла
Ударопрочное стекло Low-E4® обеспечивает все преимущества монолитного ударопрочного стекла, добавляя изолирующее воздушное пространство, которое помогает сохранять дома прохладой летом и теплом зимой.
Ударопрочное стекло Low-E4 SmartSun™ обладает преимуществами стекла Low-E4, а также помогает защитить дома от солнечного тепла и отфильтровывает 95% вредных ультрафиолетовых лучей, пропуская при этом солнечный свет.
Ударопрочное стекло Low-E4 тонировано для максимальной защиты от воздействия интенсивного солнечного света и обладает всеми преимуществами стекла Low-E4.
Low-E4 SmartSun™ Монолитное ударопрочное стекло усилен прозрачным пластиковым ламинатом, зажатым между двумя панелями, чтобы противостоять ударам, взлому и нежелательному шуму. Выберите из прозрачного или серого.
Обратитесь к местному чиновнику по строительным нормам и правилам, чтобы узнать о требованиях строительных норм и правил в вашем регионе.
Данные о классах производительности
Данные о классах производительности для продуктов Andersen
Ассоциация производителей окон и дверей (WDMA)
Сертификация клейма для продуктов Andersen
Департамент делового и профессионального регулирования Флориды
Здание Флориды
Информационный лист о продукте
Используйте это краткое справочное руководство, чтобы узнать о доступных цветах, отделках, стеклах и аппаратных возможностях для этого продукта.
посмотреть варианты этого товара
Информационный бюллетень Coastal
Используйте это краткое справочное руководство, чтобы узнать о доступных цветах, вариантах отделки, стеклах и аппаратных возможностях для этого продукта.
посмотреть варианты этого товара
Концепции дизайна поворотных дверей
Поворотные двери полностью изготавливаются на заказ, чтобы соответствовать любому заданному дизайнерскому проекту.
Yale® Assure Lock® для патио-дверей Andersen®
Контролируйте, запирайте и отпирайте ключи из любого места и никогда больше не беспокойтесь о том, что вы носите с собой или потеряете ключи. Элегантный новый замок без ключа включает в себя технологию Bluetooth® для разблокировки без ключа и совместим с Z-Wave® для интеграции с широким спектром платформ умного дома.
Варианты порогов
Архитектурные инструменты
Детальные чертежи
Установка
Производительность
Гарантия
Yale® Assure Lock® для дверей патио Andersen®
Рекомендации по подоконнику
Вариант без порога
Вариант без подоконника, когда на готовом полу видна только крышка поворотной коробки.
Высокоэффективный заподлицо с порогом
Высокоэффективный заподлицо с порогом был спроектирован и испытан на сопротивление проникновению воды до 12,11 фунтов на квадратный фут. В результате получился отмеченный наградами порог, разработанный в соответствии с пороговыми требованиями ADA/FFFHA. Также доступна версия с термическим разрушением.
Поворотные двери
| Продукт | Описание | Материал | 2D — Файл высот и деталей | Спецификация руководства CSI |
|---|---|---|---|---|
| АВПД | Одноместный | Алюминий Покрытие деревом | | |
| АВПД | Одинарный | Алюминий Покрытие деревом | | |
| АВПД | Двойной | Алюминий Покрытие деревом | | |
| АВПД | Двойной | Алюминий Покрытие деревом | | |
| АВПД-Т | Одноместный | Алюминий Покрытие деревом | | |
| АВПД-Т | Одинарный | Алюминий Покрытие деревом | | |
| АПД-Т | Одноместный | Алюминий | | |
| АПД-Т | Двойной | Алюминий | | |
| АПД-Т | Одинарный | Алюминий | | |
| АПД-Т | Двойной | Алюминий | | |
| АПД-Т | Опорная стена | Алюминий | | |
| АПД | Одноместный | Алюминий | | |
| АПД | Одинарный | Алюминий | | |
| АПД | Двойной | Алюминий | | |
| АПД | Двойной | Алюминий | | |
| WPD | Одноместный | Дерево | | |
| WPD | Одинарный | Дерево | | |
Детальные чертежи
| Продукт | Описание | Материал | . pdf | .dwg |
|---|---|---|---|---|
| AWPD Алюминий Покрытие деревом | Одинарная панель Inswing | Алюминий Внутренняя отделка деревом | | |
| APD-T Алюминий Нетермическая рама Терморазрывная панель | Одинарная панель Inswing | Алюминий | | |
| АПД Алюминий | Одинарная панель Inswing | Алюминий | | |
| WPD Дерево | Одинарная панель Inswing | Дерево | |
Руководства по установке
Инструкции по установке включают подготовку чернового отверстия, герметизацию, установку прокладок, крепление, гидроизоляцию и управление водой.
Найдите своего проводника
Встроенные домкратные винтыВстроенные домкратные винты упрощают установку. Домкратные винты, расположенные внутри боковых и головных косяков, служат встроенными прокладками, позволяющими выполнять точную регулировку во время установки. Точная регулировка позволяет раме и панелям взаимодействовать, как задумано, во время первоначальной установки и на протяжении всего срока службы продукта для бесперебойной работы.
Алюминий, облицованный деревом, с многоточечным замком | Алюминий с деревянным покрытием и одноточечным замком | Цельноалюминиевая панель с термическим разрушением и многоточечным замком | Цельноалюминиевая панель с терморазрывом и одноточечным замком | Полностью алюминий с многоточечным замком | Полностью алюминий с одноточечным замком | |
|---|---|---|---|---|---|---|
Модель | Алюминий, облицованный деревом, с многоточечным замкомAWPD | Алюминий, облицованный деревом, с одноточечным замкомAWPD | Цельноалюминиевая панель с термическим разделением и многоточечным замкомАПД-Т | Цельноалюминиевая панель с терморазрывом и одноточечным замкомАПД-Т | Полностью алюминий с многоточечным замкомАПД | Полностью алюминий с одноточечным замкомАПД |
Конфигурация | Алюминий, облицованный деревом, с многоточечным замком Одинарная панель | Алюминий, облицованный деревом, с одноточечным замком Одинарная панель | Цельноалюминиевая панель с термическим разделением и многоточечным замком Одинарная панель | Цельноалюминиевая панель с терморазрывом и одноточечным замком Одинарная панель | Полностью алюминий с многоточечным замком Одинарная панель | Полностью алюминий с одноточечным замком Одинарная панель |
AAMA/WEMA/ CSA 101/IS2/ A440-08 И-11 | Алюминий, облицованный деревом, с многоточечным замком Класс CW PG60 | Алюминий, облицованный деревом, с одноточечным замком Класс LC PG30 | Цельноалюминиевая панель с термическим разделением и многоточечным замком Класс CW PG60 | Цельноалюминиевая панель с терморазрывом и одноточечным замком Класс LC PG30 | Полностью алюминий с многоточечным замком Класс LC PG60 | Полностью алюминий с одноточечным замком Класс LC PG30 |
Расчетное давление (DP) | Алюминий, облицованный деревом, с многоточечным замком+60/-60 | Алюминий, облицованный деревом, с одноточечным замком+30/-30 | Цельноалюминиевая панель с термическим разделением и многоточечным замком+60/-60 | Цельноалюминиевая панель с терморазрывом и одноточечным замком+30/-30 | Полностью алюминий с многоточечным замком+60/-60 | Полностью алюминий с одноточечным замком+30/-30 |
Инфильтрация воздуха (CFM/FT2) | Алюминий, облицованный деревом, с многоточечным замком0,17 | Алюминий, облицованный деревом, с одноточечным замком0,17 | Цельноалюминиевая панель с термическим разделением и многоточечным замком0,17 | Цельноалюминиевая панель с терморазрывом и одноточечным замком0,17 | Полностью алюминий с многоточечным замком0,17 | Полностью алюминий с одноточечным замком0,17 |
Испытательное давление воды (PSF) | Алюминий, облицованный деревом, с многоточечным замком 12. | Алюминий, облицованный деревом, с одноточечным замком 12.11 | Цельноалюминиевая панель с термическим разделением и многоточечным замком 12.11 | Цельноалюминиевая панель с терморазрывом и одноточечным замком 12.11 | Полностью алюминий с многоточечным замком 12. | Полностью алюминий с одноточечным замком 12.11 |
Одобрение штата Флорида, штат Флорида № 22224 | Алюминий, облицованный деревом, с многоточечным замком Ударопрочный | Алюминий, облицованный деревом, с одноточечным замкомПротивоударный | Цельноалюминиевая панель с термическим разделением и многоточечным замком Ударопрочный | Цельноалюминиевая панель с терморазрывом и одноточечным замкомПротивоударный | Полностью алюминий с многоточечным замкомПротивоударный | Полностью алюминий с одноточечным замкомПротивоударный |
* Максимальный номинальный размер панели: 5 x 10 футов
• Оценки «Класс производительности (PG)» могут отличаться от протестированных оценок производительности для больших или меньших блоков определенного типа.
Некоторые устройства могут не иметь рейтинга.
• Эти данные верны по состоянию на март 2020 года. В связи с постоянными изменениями продукции, обновленными результатами испытаний или новыми отраслевыми стандартами эти данные со временем могут измениться.
• Там, где это указано, продукция Andersen® сертифицирована и маркирована в соответствии с требованиями программы сертификации Hallmark. Фактические характеристики могут отличаться в зависимости от особенностей производства, транспортировки, установки, условий окружающей среды и условий использования.
• За дополнительной информацией обращайтесь к поставщику Andersen
Данные об уровне производительности
• Данные об уровне производительности для продуктов Andersen
Национальный совет по рейтингу окон (NFRC)
• http://search.nfrc.org/search/searchDefault.aspx 900 900 Отчеты о тестах
5 90 • Отчеты о тестировании производительности для продуктов Andersen
Данные об уровне производительности
• Данные об уровне производительности для продуктов Andersen
Гарантия, которой можно доверять
В компании Andersen мы гордимся тем, что производим прочные и долговечные изделия.




При закрытии двери ламели складываются как гармошка.
В таком случае при необходимости можно будет разделить одно большое помещение на две изолированные друг от друга комнаты.
Те перемещаются в разные стороны или сдвигаются к одному краю.
Лак, резьба, браширование, патинирование — деревянный профиль становится достойным обрамлением зеркальной вставки.







футов.
5″⁴
5”⁴
Система перезарядит батареи после восстановления питания.