фото интерьеров и варианты планировки
- Выбор планировки
- Угловая планировка
- Планировка в форме буквы П
- Линейная планировка
- Параллельная планировка
- Кухня с полуостровом
- Кухня с островом
- Оформляем интерьер
- Лучшие фото интерьеров
Дизайн кухни 15 кв. м дает большой простор для фантазии, ведь здесь можно воплотить в жизнь самые смелые идеи и не бояться экспериментов. Однако в погоне за красотой важно не упустить самый главный момент – функциональность и рациональное использование пространства. Как разработать дизайн-проект кухни самостоятельно, не прибегая к помощи профессионалов, с чего следует начать ремонт?
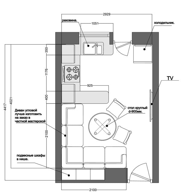
На кухне такой площади можно уместить практически всё: остров, барную стойку и диван, но главное здесь – правильно распределить пространство
Выбор планировки
Прежде чем приступать к ремонту, следует вооружиться карандашом и листом бумаги, определить и просчитать, как обставить кухню, чтобы она не выглядела громоздко и хаотично.
Рассмотрим основные варианты планировки кухонного помещения.
Угловая планировка
Угловой кухонный гарнитур подходит для любых помещений правильной прямоугольной или квадратной формы. Он располагается вдоль двух перпендикулярных стен, причем одна его сторона может быть короче другой. При такой планировке сохраняется так называемый принцип треугольника, в основе которого лежит визуальное объединение плиты, мойки и холодильника. Обратите внимание: для удобства использования расстояние между ними не должно превышать 1,5 метра.
Для обеденной зоны остается достаточно места напротив. Здесь можно поставить большой прямоугольный стол, стулья, диван или кухонный уголок. Последний обычно пользуется большим спросом, так как под сиденьями есть еще дополнительные места для хранения.
Хозяева кухни в 15 квадратов могут позволить себе разместить большой холодильник или два поменьше
Размещенный на этой кухне угловой гарнитур повторяет форму помещения, а обеденная зона расположена напротив
Планировка в форме буквы П
Она отлично подходит для просторных кухонь 15 м кв. и больше, имеющих прямоугольную форму. При помощи мебели помещение делится поперек на две автономные зоны: обеденную и рабочую. Чтобы кухня не выглядела тесно, рекомендуется приобрести гарнитур с короткими боковинами. Хорошо, если навесные шкафы будут располагаться только по периметру двух стен, как при Г-образной планировке. Третью сторону можно оборудовать в виде барной стойки, которая решит проблему зонирования. Обеденная зона может быть представлена интерьером в виде веранды с диваном, столом и стульями. Очень оригинально смотрится окно в столовую-гостиную, визуально разделяющее пространство.
П-образная планировка удобна, но громоздка, поэтому подходит не для каждого помещения
Вариант слегка «урезанной» П-образной планировки
Линейная планировка
В подобном интерьере предполагается размещение гарнитура и техники вдоль одной длинной стены. С одной стороны, линейная планировка кухни 15 квадратов выгодна с финансовой точки зрения, ведь прямая кухня, дизайн которой представлен на сайте, стоит намного дешевле угловой. С другой стороны, хозяйки сталкиваются с проблемой постоянного перемещения от плиты до холодильника и обратно. Выходом из положения будет установка холодильника не в один ряд с мебелью, а перпендикулярно сбоку. Зона отдыха на кухне с таким дизайном располагается напротив и занимает гораздо больше места, чем рабочая. Это отличный вариант для хозяек, которые в процессе приготовления пищи любят общаться с домочадцами, друзьями и родственниками.
Линейную планировку часто выбирают в помещении с двумя дверьми или с угловыми выступами
Параллельная планировка
Ее суть заключается в том, чтобы расставить мебель и технику вдоль двух параллельных стен друг напротив друга.
Если форма кухни прямоугольная и вытянутая, это станет единственным возможным вариантом рационального использования пространства. В зависимости от глубины шкафчиков ширина прохода составляет 1,2–1,5 метра, что вполне хватает для удобства работы. Существенным преимуществом является соблюдение вышеописанного принципа треугольника, ведь холодильник, плита и мойка находятся на расстоянии вытянутой руки. Если сделать одну сторону гарнитура короче другой, останется достаточно много места для обустройства обеденной зоны. Лучше всего поставить большой обеденный стол и стулья в конце кухни возле окна. Фотообои или декоративное панно над местом для принятия пищи придадут дизайну уюта и красоты.
Двухрядная планировка идеально подходит для вытянутых кухонь
Один ряд можно сделать короче, чтобы осталось место для обеденного стола
Кухня с полуостровом
Для такого интерьера подойдет квадратное помещение. Полуостров гармонично сочетается с прямым гарнитуром и обычно располагается прямо напротив него, решая проблему зонирования пространства.
Многофункциональный блок может служить и обеденным столом, и рабочей поверхностью. Такой дизайн подойдет для семей с детьми. Встроенная в полуостров современная плита позволяет маме держать детей в поле зрения в процессе приготовления пищи. Перпендикулярно прямому гарнитуру и отдельно стоящему блоку можно также разместить дополнительные пеналы, духовой (или винный) шкаф.
Зрительно увеличить кухню 15 кв. м поможет мебель, достигающая потолка. На верхних полках рекомендуется хранить вещи, которые реже всего нужны в быту. В таком проекте обеденная зона занимает лишь третью часть общей площади, поэтому лучше всего будет поставить стол и стулья. Избегайте массивной мебели, чтобы не утяжелять помещение. С подобным дизайном лучше всего сочетается стиль минимализм, поэтому отдайте предпочтение прозрачной столешнице и пластиковым стульям. Диваны и кухонные уголки в данном случае не будут уместными.
Кухонный полуостров упирается одной стороной в стену и оставляет пространство для обеденной зоны
Полуостров наиболее актуален для кухни-студии, где служит элементом зонирования
Кухня с островом
Для кухонь 15 кв.
м, фото которых представлены на сайте, также подойдет современный островной дизайн. Он предполагает, что в центре просторного помещения располагается большой модульный блок, являющийся дополнительным кухонным гарнитуром. Остров может быть любой формы: и круглой, и квадратной, и асимметричной. На 15 метрах такой остров может выглядеть очень стильно и изысканно. Автономный блок ставится посередине вместе со стульями, а мебель – напротив. Гарнитур следует подбирать угловой формы, чтобы вместить необходимую технику, посуду и продукты. Таким образом, обеденная зона представлена кухней-островом, а рабочая занимает большую часть пространства. Такой дизайн подойдет для семьи из 2–3 человек или для взрослого работающего человека.
Остров может служить рабочей зоной, барной стойкой или местом для приема пищи
Оформляем интерьер
Определившись с расстановкой мебели, можно приступать к оформлению интерьера. В отличие от дизайна малогабаритных помещений, у кухни в 15 м дизайн может быть самым разнообразным.
Потолок
В современной кухне 15 кв. м очень красиво будут смотреться подвесные конструкции из гипсокартона в несколько ярусов с подсветкой. Желательно, чтобы потолок был однотонным, но допускается сочетание неярких цветов, которые только украсят интерьер кухни 15 кв. м. Также можно рассмотреть вариант с натяжным матовым или глянцевым потолком. При выборе материала отдавайте предпочтение наиболее практичному в эксплуатации.
Потолок может участвовать в зонирование помещения, визуально отделяя рабочее пространство от зоны отдыха
Стены
Для отделки стен подойдут обои, декоративная штукатурка, керамическая плитка, бамбуковые панели. Очень оригинальным решением будет комбинирование материалов. Например, фартук можно отделать плиткой, одну стену – фотообоями, третью – штукатуркой. Подобный прием пригодится для зонирования пространства.
Удачно подобранные обои добавят кухне красоту и уют
Пол
В зависимости от разделения зон покрытие может быть сплошным или комбинированным.
Рекомендуется использовать ламинат, плитку, линолеум. Современные производители предлагают продукцию, которая стойко переносит влагу и загрязнения. В обеденной зоне на кухне 15 кв. м будет уместно смотреться коврик. В качестве разделения рабочей и обеденной зон покрытия рекомендуется совмещать. Для того чтобы сделать кухню просторнее, располагайте рисунок по диагонали.
Для комбинированного пола обычно используют керамическую плитку и влагоустойчивый ламинат
Цвет
В зависимости от выбранного дизайна и стиля кухни 15 квадратных метров цветовая гамма может варьироваться от угольно-черного до белого. Обратите внимание на то, что темные оттенки плохо влияют на психику человека, поэтому отдавайте предпочтение салатовому, песочному, зеленому, голубому.
Темные цвета зрительно уменьшают помещение, но для кухни средней площади это не столь важно
Освещение
Желательно, чтобы источников освещения было несколько: бра над обеденным столом, большая люстра посередине кухни, точечное освещение по периметру гарнитура.
Креативный и стильный вариант – это подсветка фартука, а также вмонтированные в прозрачные шкафчики лампы.
Света должно быть много как общего, так и над каждой зоной в отдельности
Мебель
Подобрать нужный гарнитур поможет общая концепция помещения. Если вы решили не комбинировать стили, а сделать всю кухню в одном дизайне, рассмотрите классический и скандинавский стили. Они отличаются мягкими пастельными тонами, использованием исключительно натуральных материалов. Такие гарнитуры функциональны и удобны в использовании. Для просторной кухни на 15 кв. м также подойдет мебель в стилях кантри, прованс, модерн, хай-тек.
Кухня в скандинавском стиле – атмосфера уюта и легкости
Современные дизайны, стили и планировки предлагают различные варианты обустройства кухни на любой вкус и кошелек. Если у вас не получается справиться самостоятельно, на помощь всегда придут опытные и квалифицированные специалисты.
Лучшие фото интерьеров
Видеогалерея: фото гарнитуров и интерьеров.
35 современных идей с фото
Сегодня в большинстве современных квартир кухня и гостиная совмещены. Такая планировка экономит много места и к тому же очень практична. Кухня-гостиная 15 кв. м — это довольно мало и компактно. Однако благодаря современным тенденциям и техническим возможностям можно реализовать различные дизайнерские эксперименты, чтобы создать универсальный и удобный интерьер, в котором можно проводить время в кругу семьи и комфортно принимать гостей.
Фото из источника: mykaleidoscope.ruСтолешница Кедр 2347/soft Мрамор БланкоПреимущества и недостатки кухонь-гостиных
Преимущества кухни-гостиной:
1. Визуально
увеличивает небольшое пространство. Это самая большая проблема, которую может
решить открытая планировка. Когда маленькие пространства ограничены стенами,
отделяющими одно жилое помещение от другого, они выглядят гораздо меньше.
Кухня-гостиная — это изящный способ создать впечатление, что в доме больше
места, чем есть на самом деле.
2. Спокойствие для родителей. Благодаря открытой планировке кухни родители могут присматривать за малышами, играющими в гостиной, пока готовят еду. Это также удобно для развлекательных мероприятий: взрослые могут проводить время с друзьями на кухне, оставляя детей в поле зрения.
Фото из источника: kitchendizajn.ruСтолешница Кедр 1110/S Белый3. Сплоченность
семьи. Тем, кто отвечает за приготовление пищи для всей семьи, может быть
знакомо чувство изоляции, которое сопровождает эту кулинарную обязанность. Пока
другие смотрят телевизор, играют в гостиной или делают домашнюю работу на
диване, он трудится на кухне. Ему не хватает общения и единения просто потому,
что жилые помещения изолированы друг от друга. Кухня-гостиная — изящное решение
этой проблемы.
4. Яркость и свет. Чем больше естественного света видит человек, тем счастливее и энергичнее он себя чувствует. Чем меньше стен, тем меньше барьеров, блокирующих свет. Свет из окон сможет распространяться на большую площадь дома, создавая более приятное и наполненное светом пространство.
Фото из источника: ivd.ruСтолешница Кедр 4032/S ПорфирНедостатки кухни-гостиной:
1. На кухне всегда царит беспорядок. Кухня обычно является самой хаотичной частью дома. Приготовление пищи по своей природе не такое уж чистое занятие: миски теснятся на столешнице, грязные кастрюли и сковородки стоят у раковины. Если только владелец дома не чистюля до мозга костей, в какой-то момент на кухне появится визуальный беспорядок, который негативно повлияет на общее пространство.
2. Отсутствие
конфиденциальности. Родители сталкиваются с головной болью и стрессом при
приготовлении пищи, если дети играют или смотрят мультфильмы на большой
громкости, когда они шумят.
Кухня-гостиная ограничивает личное пространство,
которое иногда необходимо каждому человеку.
3. Несущие стены. Снос несущей стены может быть очень дорогим и требует большой профессиональной работы. Во многих случаях его можно заменить специальными балками, которые несут вес дома, но они стоят недешево. Они могут обойтись домовладельцу в огромную шестизначную сумму.
Фото из источника: luber-portal.ruСтолешница Кедр 1110/S БелыйСоветы по оформлению интерьера кухни-гостиной 15 кв. м
Прежде чем объединить кухню и гостиную, вот несколько правил, как построить комнату, объединяющую эти два помещения:
— Не забывайте, что несущую конструкцию нельзя удалять.
— Разделение помещения на части осуществляется путем выбора разных полов и изменения уровня пола. Не используйте специальные перегородки, они подходят только для больших кухонь-гостиных.
Фото из источника: pro-dachnikov.comСтолешница Кедр 1110/S Белый— Обязательно установите мощную вытяжку, так как
кухонные испарения и запахи могут мешать другим жильцам во время пользования
кухней.
— Зеркала или дополнительные источники света, например, панорамные окна, могут помочь визуально расширить пространство.
Фото из источника: design-homes.ruСтолешница Кедр 1110/S Белый— Не забудьте установить дополнительный радиатор, так как в 15-метровой комнате с одним радиатором может быть довольно холодно.
Фото из источника: timeszp.comСтолешница Кедр 2338/S Лунный металл— Позаботьтесь о дополнительном освещении. Если в комнате будет только одна люстра, то в такой кухне-гостиной будет довольно темно, что еще больше визуально уменьшит размер помещения.
Фото из источника: loftecomarket.ruСтолешница Кедр 111/1 БелыйКак максимально эффективно использовать пространство при планировке кухни-гостиной 15 кв. м?
Очевидно, что в кухне-гостиной необходимо разместить
столы, диваны, кухонные гарнитуры, шкафы, бытовую технику.
Но как совместить
все эти предметы в компактной 15-метровой комнате? Можно найти решения для
максимального использования пространства:
— При проектировании кухонного гарнитура следите за тем, чтобы он был прямым. Таким образом, вы не будете занимать слишком много места.
Фото из источника: severdv.ruСтолешница Кедр 111/1 Белый— Стены лучше всего оформить материалами пастельных тонов, а теплая глянцевая плитка также визуально увеличит пространство.
Фото из источника: mykitchendesign.ruСтолешница Кедр 4021/S Лукка— Если дизайн предусматривает светлую мебель и кухонные гарнитуры без большого количества верхних шкафов, это визуально уменьшит давление в помещении, и таким образом комната будет восприниматься как более просторная.
Фото из источника: pro-dachnikov.comСтолешница Кедр 1110/S Белый— Еще один прием для создания ощущения легкости —
освещение шкафов.
Это визуально облегчит громоздкую конструкцию.
— Кухни-гостиные обычно имеют два окна. Не стоит закрывать их тяжелыми шторами. Он не будет хорошо смотреться в такой компактной комнате. Кроме того, шторы не пропускают свет, который необходим для визуального увеличения пространства. Лучше всего поставить между окнами сервант или полку. В качестве украшения сверху можно установить световой экран.
Фото из источника: mykaleidoscope.ruСтолешница Кедр 2338/S Лунный металлКак выбрать дизайн-проект кухни гостиной 15 кв. м?
Для того чтобы сделать интерьер кухни 15 кв. м функциональным и практичным, необходимо еще на этапе планирования выбрать наиболее удобную расстановку мебели. Есть несколько хороших вариантов планировки кухни 15 кв. м:
— Линейный — самый простой и понятный тип. Кухонные
блоки выстроились вдоль одной стены, а столовая группа — у противоположной
стены.
Такой тип планировки требует минимальных расчетов, а готовое помещение
визуально просторно.
— Угловой — самый компактный способ организации кухонного пространства. Она повторяет так называемый рабочий треугольник и включает в себя раковину, варочную панель и холодильник. Это освобождает пространство для столовой и другой кухонной мебели (например, становится возможным сделать на кухне 15 кв. м дизайн с диваном).
Фото из источника: severdv.ruСтолешница Кедр 4040/S Антарес— Островной — хотя кухонные острова чаще выбирают для
больших помещений, вы можете воспользоваться этой возможностью. На кухне 15 кв.
м
можно позволить разместить мойку, варочную панель или мини-холодильник на
отдельном острове только в том случае, если вы грамотно расставите остальную
кухонную мебель. Возможно, будет логично отказаться от обеденной группы,
оставив остров в качестве зоны для перекусов.
Зонирование в дизайне кухни 15 кв. метров
Техника разделения помещений кухни и гостиной, которая заслуживает особого внимания, — это зонирование. Существует множество различных способов добиться этого.
— Для разделения кухонной зоны и комнат можно использовать различные цвета. Контрастные цвета — это хорошо, но в то же время они должны быть гармоничными. Красиво выглядит комната, разделенная на зоны белого и черного, желтого и зеленого, бежевого и фиолетового.
Фото из источника: severdv.ruСтолешница Кедр 1021/Q Черный— Эффективным методом разделения является разделение помещений по освещенности. Например, освещение может подчеркнуть зону стола в гостиной, для чего рекомендуется использовать напольные и настенные светильники.
Фото из источника: sidingvin.ruСтолешница Кедр 1110/S Белый— Один из приемов, ставший популярным в последнее
время, — создание подиума.
Это означает, что кухонную зону можно немного
приподнять, чтобы она выглядела элегантно и эффективно, но при этом важно,
чтобы кухня была отделена от жилой зоны, как и цвет напольного покрытия. Если
бы оба уровня были обычными, жильцы и гости постоянно спотыкались бы о
«ступеньки», ведущие на «кухню».
— Еще один прием зонирования — разделение потолочного пространства. Один из вариантов — оформить потолок в зоне гостиной лепниной, а в зоне кухни — подвесным потолком.
Фото из источника: luber-portal.ruСтолешница Кедр 4040/S Антарес— Облицовка стен также может быть вариантом зонирования. Например, сочетание кухонной плитки и стеновых панелей выглядит стильно и современно.
Фото из источника: zhilfond-realt.ruСтолешница Кедр 2032/M Риголетто светлыйЦветовые схемы для оформления кухни-гостиной 15 кв.

Пятнадцать квадратных метров — небольшая площадь для кухни-гостиной, поэтому не следует использовать темную цветовую гамму. Лучше всего подойдет светло-розовый или яркий и естественный цвет.
Фото из источника: elnikova.comСтолешница Кедр 5140/Mn Белая лунаЕсли комната расположена на северной стороне, то все вариации золотого, персикового, песочного и других теплых тонов создают уютную, теплую атмосферу.
Фото из источника: design-homes.ruСтолешница Кедр 3022/S Гранит сардинскийЧтобы интерьер не был слишком скучным и безвкусным, следует использовать яркие аксессуары: подушки на диване, картины, светильники. В интерьере кухни-гостиной интересно будет смотреться сочетание контрастных цветов.
Фото из источника: dom.mail.ruСтолешница Кедр 3230/S Дуб сонома светлыйКухня 15 кв. м: дизайн в каком стиле выбрать?
Для комбинированных помещений обычно выбирают самые
модные и яркие стили.
Дизайнеры советуют не использовать насыщенные и
контрастные цвета. По их словам, на небольшой площади в 15 квадратных метров
будет создана особая атмосфера.
Планировка кухни 15 метров в классическом стиле
Самый долговечный вариант — это, конечно же, классический стиль. Его можно легко создать, просто купив стандартный кухонный гарнитур. Используйте натуральные материалы, стеклянные вставки и хрусталь как лучшее дополнение. Преимуществом этого варианта является его долгосрочность.
Фото из источника: remont-volot.ruСтолешница Кедр 1884/К-52 Чиполлино паннаКухня-гостиная с этно-дизайном 15 кв. м: фото примеров
Этнографический стиль, основанный на минимализме,
идеально подходит для домохозяйки, которая не любит проводить слишком много
времени перед плитой. Это также станет приятным штрихом к преимуществам
небольшого помещения. Сочетает в себе натуральные цвета и материалы с кухонной
мебелью из натурального дерева, стекла и мягких поверхностей из хлопка или
льна.
Идеально подходит для создания изысканного образа.
Кухня 15 кв. м в модерн-дизайне с фото
В стиле модерн можно увидеть мебель с закругленными углами и смелый стиль. Это один из лучших вариантов для смелых и гламурных.
Фото из источника: dekoriko.ruСтолешница Кедр 9968/S КамешкиХай-тек дизайн кухни 15 метров
Холодная цветовая гамма стекла, пластика и металла прекрасно отражает глубину стиля хай-тек. Ультрасовременный и технический, а главное — многофункциональный. Здесь уместно установить кухню под потолок без фурнитуры, мебель и перегородки-трансформеры и т.п.
Фото из источника: pro-dachnikov.comСтолешница Кедр 5021/S МеталликСкандинавский дизайн кухни 15 квадратных метров
Сканди — легкий, уютный и теплый стиль. Основание
белого цвета, и на его фоне натуральные деревянные поверхности смотрятся наиболее
гармонично.
Дополненные преимущественно серым текстилем, они выглядят как тени
на мебели, когда солнце светит в окна.
Минималистичный дизайн кухни 15 кв.
В кухне-гостиной 15 метров интерьер может быть полностью минималистичным. Этот дизайн полностью подчинен функциональности и комфорту. Здесь нет абсолютно никаких лишних деталей, украшений — это все практичные предметы, освещение, оригинальные предметы интерьера.
Фото из источника: design-homes.ruСтолешница Кедр 4060/S Черное сереброСовременная кухня 15 кв.
Современный стиль — еще один вариант современного,
чистого стиля, который можно реализовать на 15 квадратных метрах. Этот дизайн
имеет много общего со скандинавским декором: основной цвет — белый. Даже мебель
часто выбирают белого цвета, чтобы она сочеталась с декором и тем самым
визуально освобождала пространство.
Планировка и дизайн
Средние размеры кухни: стандарты 2022 года
Содержание
Что можно считать маленькой кухней?
Что можно считать большой кухней?
Каковы средние размеры кухонь?
Как размер кухни влияет на другие элементы комнаты?
Кухни: старые и новые и влияние на размер
Какой процент площади в среднем занимает кухня в доме?
Определение среднего размера кухни — непростая задача. В основном это связано с тем, что изменение размеров домов за последние полвека вызвало изменение размеров кухонь. Вообще говоря, за этот период времени дома увеличились в размерах. Это руководство поможет вам определить, каковы средние размеры кухонь по отношению к размеру дома.
Что можно считать маленькой кухней?
В то время как в домах прошлого века были кухни площадью около 70 квадратных футов, такие кухни все еще можно найти в некоторых современных домах.
Как правило, кухню такого размера можно найти в небольшом доме, квартире или многоквартирном доме.
[get_quote]
Что можно считать большой кухней?
На другом конце спектра находится большая кухня площадью около 720 квадратных футов. Чаще всего их можно найти в домах общей площадью не менее 4800 квадратных футов. Такие дома определяются как большие дома, поэтому вполне логично, что в этих домах будут и большие кухни.
Каковы средние размеры кухонь?
В таблице ниже перечислены и пояснены некоторые размеры, которые обычно ассоциируются со средними размерами кухонь.
| Около 70 квадратных футов | Кухни такого размера обычно можно найти в небольших домах, квартирах и многоквартирных домах. Чем меньше ваши жилые помещения, тем меньше обычно будет ваша кухня. На некоторых небольших кухнях недостаточно места для второстепенных кухонных принадлежностей, таких как посудомоечные машины. |
| 100 квадратных футов | Этот номер используется производителями кухонных шкафов в качестве эталона для определения потенциальной стоимости проекта реконструкции. Большинство кухонь в современных домах больше этого числа. |
| от 175 до 200 квадратных футов | Эти размеры предназначены для кухонь, которые служат не только зоной приготовления пищи, но и зоной приема пищи и общения. |
| 225 квадратных футов | Это число ближе всего к среднему для большинства кухонь. Такие кухни чаще всего можно найти в домах общей площадью около 1500 квадратных футов. |
| от 180 квадратных футов до 440 квадратных футов | Этот диапазон размеров представляет больше чисел, которые обычно ассоциируются с современным дизайном дома. Значительная разница между высокими и низкими числами в этом диапазоне подчеркивает, что размер кухни очень зависит от общего размера дома. |
| 720 квадратных футов | Этот номер соответствует кухням, которые можно найти в больших домах. Точно так же, как в меньшем доме будет меньшая кухня, в большом доме будет большая кухня. Это не столько средний размер кухни, сколько стандартный размер кухни для кухонь в больших современных домах. |
Как размер кухни влияет на другие элементы комнаты?
Общий размер кухни сильно влияет на размер различных конструкций в комнате. Например, размер вашей кухни будет определять, насколько велики или малы ваши столешницы, нижние шкафы, верхние шкафы и другие конструкции. Он также может определить, можете ли вы включить в комнату такую конструкцию, как кухонный остров. Наконец, поскольку размер кухни может влиять на размер ваших шкафов, он также может определять, как вы используете пространство для хранения.
Хотя размер кухни может показаться мелочью, он может кардинально повлиять на всю планировку кухни.
Кухни: старые и новые и их влияние на размер
В середине 20 века кухни использовались исключительно как место для приготовления пищи. Сегодня это часто не так, поскольку кухни служат местом для приготовления пищи, общения и, в некоторых случаях, даже для просмотра телевизора. Кухни в наши дни в основном служат как кухне, так и столовой. Современная функциональность кухонь напрямую соответствует увеличению габаритов кухни с течением времени. Как видно из этих дополнительных целей, современный дизайн кухни кардинально отличается от того, что было 50 лет назад.
Какой процент площади в среднем занимает кухня в доме?
В среднем кухня занимает от 10 до 15 процентов общей площади дома.
[get_quote]
Кухню часто называют «сердцем» или «центром» дома.
Это тот случай, если кухня маленькая или большая. В конечном счете, средний размер кухни будет сильно зависеть от общего размера дома, в котором она находится. Изучив это руководство, вы сможете узнать о средних размерах кухни и точно спланировать реконструкцию, лучше понимая, сколько места у вас есть.
Почему вы можете доверять Marble.com
Когда приходит время выполнять работу, наши команды по изготовлению и монтажу располагают оборудованием и опытом, необходимыми для того, чтобы ваш проект всегда был выполнен правильно. Мы в Marble.com известны своей невероятно быстрой обработкой, поскольку мы понимаем, что быстрая и правильная установка столешниц и других опор важна для наших клиентов. Мы ценим ваше время, и наша цель — создать наилучшую возможную работу и доставить вам максимальное удовольствие.
Поделиться:
[Всего: 69 Среднее: 5.
0/5]
Прежде чем вы сможете проголосовать, вы должны войти в систему.
Лучшие идеи планировки кухни – 15 инновационных способов организации пространства
(Изображение предоставлено Анной Статаки)
Идеи планировки кухни могут создать или разрушить ваше пространство. То, как вы сконфигурируете кухню, должно быть самым важным дизайнерским решением, которое вы примете, и хотя оно может быть не таким захватывающим, как выбор стиля шкафа или выбора цвета краски, оно требует не меньшего внимания.
Но с чего начать, выбирая наилучшую планировку для своего помещения? С таким количеством вариантов и с тем, что это такой ключевой аспект комнаты, который также является довольно постоянным выбором, может быть сложно выбрать лучшее решение. Тем не менее, мы упростили задачу, объединив все лучшие планировки кухонь, как классические конструкции, такие как проверенная U-образная и трудолюбивая L-образная, так и менее известные варианты, такие как полуостровные планировки, а также идеи планировки, если хотите.
чтобы добавить остров. Мы покрываем все это, независимо от размера, формы или стиля кухни.
Идеи планировки кухни, позволяющие максимально эффективно использовать пространство
1. Подумайте, как вы хотите использовать свое пространство
(Изображение предоставлено: Фотограф: Мэтт Клейтон Архитектор: 23+GS/318)
различные варианты планировки кухни, стоит начать с того, чтобы сначала подумать, как вы хотите использовать свое пространство? Кто будет использовать ваше пространство? Вы заядлый повар, которому нужно пространство и эффективность, чтобы проявить творческий подход? Вам нравится принимать гостей и, следовательно, вам нужна планировка, в которой есть место как для гостей, так и для шеф-повара? Ваша кухня превращается в домашний офис в дневное время или в рабочее место вечером?
‘Планировка комнаты — это то, что делает дизайн кухни успешным.’ объясняет дизайнер кухни Том Хоули. «Самое важное, что нужно учитывать, — это то, как вы используете свое пространство.
Общий дизайн кухни должен фокусироваться на балансе масштаба и пропорций».
Если вы переделываете кухню, пройдитесь по нашему нынешнему пространству, по-настоящему представьте, как вы будете перемещаться по нему – что в планировке сейчас работает, а что нет. Где вас обычно тянет готовить, готовить, принимать гостей, работать? Представление этого пространства мечты поможет создать в вашем сознании образ того, какие макеты будут работать лучше всего для вас.
2. Выберите классическую кухню с камбузом
(Изображение предоставлено Джеймсом Мерреллом)
Хорошо, давайте начнем с классической кухни с камбузом. Простой, но испытанный и проверенный вариант, безусловно, отличный вариант, если вы ищете идеи для небольшой кухни. Камбузная кухня состоит из двух рядов шкафов, идущих по каждой стороне пространства — это эффективно, действительно максимально увеличивает пространство и хорошо подходит для всей концепции кухонного треугольника, когда все основные приборы находятся в пределах легкой досягаемости друг от друга.
«Камбузные кухни имеют простую, практичную и эффективную планировку и обеспечивают легкий доступ между рабочими поверхностями, местами для хранения и бытовой техникой». объясняет Мелисса Клинк, креативный директор Harvey Jones. «Однако для того, чтобы камбуз работал эффективно, необходимо, чтобы между вашими приборами было достаточно места, чтобы рабочее пространство не становилось тесным».
‘Важно свести к минимуму транспортный поток, чтобы повару не мешали пользоваться кухней. Планируйте свою кухню с учетом этого. Попробуйте разместить холодильник с морозильной камерой подальше от окон и рядом с главным входом на кухню, чтобы избежать заглушения естественного света или слишком большого количества людей внутри рабочего треугольника. Размещение раковины на противоположной стороне от плиты — хорошая идея, поскольку это позволяет избежать конфликтов на рабочем месте, повышая удобство использования».
3. Для рабочих кухонь выберите открытую L-образную форму. Две стены шкафов соединяются в углу, образуя хорошо.
.. очень трудолюбивую L. Эта планировка действительно хорошо работает на кухнях с более открытой планировкой или в больших помещениях, где есть место для игр, и вы можете позволить себе иметь прекрасное море площади. для острова или обеденного стола (или даже просто яркого кухонного коврика, чтобы заземлить комнату).«Г-образное решение поможет вам рационально использовать имеющееся пространство: с одной стороны у вас будет достаточно места для шкафов, а с другой — достаточно места для барных блюд.» объясняет Саймон Бодсворт, директор Daval . «У повара достаточно места для маневра, и он может одновременно общаться с гостями, так что это беспроигрышный вариант для трудолюбивой кухни, которая любит развлекать гостей».
Если у вас есть роскошь места для большого количества напольных шкафов, они рассмотрят возможность отказа от настенных шкафов в L-образной планировке. Настенные и напольные шкафы, занимающие угол вашего пространства, рискуют уменьшить пространство и заблокировать свет, поэтому вместо этого оставьте стены голыми или добавьте кухонные стеллажи, чтобы пространство выглядело ярким и открытым.
(Изображение предоставлено Blakes London)
U-образные кухни — еще один отличный вариант для небольших помещений, но они могут одинаково хорошо работать в помещениях с открытой планировкой или в виде островка на большой кухне. Они идеально подходят для заядлых поваров, поскольку они разработаны с учетом правила кухонного треугольника. Холодильник, плита и раковина могут быть расположены в пределах легкой досягаемости, и вы можете легко перемещаться между ними.
‘П-образная планировка — лучшее решение для небольшой кухни, так как пространство с самого начала ограничено. Пойдя по этому пути, вы создадите большое пространство на рабочей поверхности, которое чрезвычайно практично для приготовления пищи, готовки и даже обеда, если есть место для незаметного барного стула». предлагает Саймон. «Вы также можете расположить шкафы вокруг себя, в полной мере используя доступное пространство для хранения от пола до потолка».
П-образную форму также можно приспособить для зонирования пространства открытой планировки, если выбрать полуостров, который выступает вглубь комнаты, а не прижимается к стенам.
Саймон предполагает, что «если есть место для острова-полуострова, то имеет смысл включить островные бытовые приборы, такие как винный шкаф, выдвижной вытяжной вентилятор или необходимый контейнер для отходов, как еще один способ держать все в непосредственной близости и максимизировать пространство: все при этом создавая высокофункциональную схему кухни, соответствующую вашему стилю жизни. Связанный дизайн, который превращает кухню в стиле камбуза в L-образную или L-образную кухню в U-образную. Этот тип острова обычно служит перегородкой между кухней и жилой зоной и, как правило, предназначен для размещения как неформальной трапезы, так и полномасштабных развлечений».
5. Создайте зоны с помощью планировки кухни
(Изображение предоставлено: Montse Garriga Gra)
В больших кухнях или кухнях открытой планировки создание зон внутри пространства делает его многофункциональным. Разные зоны могут использоваться для разных задач — приготовления пищи, работы, общения и т.
д.
«Везде, где это возможно, если у вас есть место (или вы можете найти способы его обустроить), устанавливайте остров в форме буквы U или L. стенки, или перед камбузом. Это не только максимизирует рабочее и кухонное пространство для хранения, но и способствует общению (особенно если вы можете включить барную стойку или даже полноценную обеденную кабинку), а также проясняет поток между рабочими зонами». объясняет Джулия Браун, директор по дизайну Mowlem & Co .
‘Что касается этих зон, постарайтесь разместить все необходимое для подготовки в одном отделении, все для приготовления пищи в другом, все для сервировки/развлечений в третьем и все для уборки в третьем. Убедитесь, что у вас достаточно света, естественного или нет. А почему бы не разграничить зоны тонкими тонами одного общего цвета? В местах с ограниченным пространством оптимизируйте высоту навесных шкафов. Если у вас есть встроенная кладовая или специальный шкаф для завтрака или выпечки со встроенной рабочей поверхностью, это станет отличным дополнением.
Если необходимо, переместите все белье в другое место и оставьте кухню для еды, семьи и друзей».
6. Обязательно выберите правильный размер острова для вашей планировки. рассмотреть размер острова и то, как он впишется в ваш макет. Как говорит Грэм Смит из Life Kitchens (открывается в новой вкладке): «Острова могут быть очень жадными до места на кухне, не только у вас есть место, необходимое для мебели, но и необходимо учитывать пространство для циркуляции вокруг предмета, особенно если у вас есть какая-то функция, например, посудомоечная машина. Как правило, вы хотите оставить 1200 мм между мебелью (вы можете упасть на метр, если вас толкнуть), но дополнительное пространство может быть необходимо в зонах подготовки или приготовления пищи с интенсивным движением».
‘Они могут иметь разные размеры в зависимости от того, какие функции вы хотите в них включить. Простой prepisland может быть размером с бижутерию, но служить координационным центром и действовать как социальный центр для кухни.
Многие люди страдают от архитектурной дисморфии и думают, что могут вписать остров в пространство, когда на самом деле это поставит под угрозу функциональность пространства. Это может быть планировка мечты многих людей, но опасайтесь, что полуостров не может быть хорошей альтернативой полному острову, поскольку он дает эту иллюзию, предлагая больше места для хранения, подготовки и функциональности, и все это без необходимости дополнительного пространства для прогулок».
7. Используйте полуостров, чтобы разделить небольшое пространство
(Изображение предоставлено Джеймсом Мерреллом)
А если место не позволяет установить кухонный остров, рассмотрите возможность добавления полуострова — вы все равно получите дополнительное пространство на поверхности. , место для хранения и более удобный макет, но занимает не так много места.
‘Полуострова идеально подходят для небольших кухонь, так как, в отличие от островов, они примыкают к стене, поэтому вокруг них требуется меньше места.
Они позволяют включить в дизайн столешницу, обращенную в сторону от основного кухонного шкафа. На многих кухнях это означает направление к столу, что означает, что повар не стоит спиной к комнате. Они также универсальны, поэтому их можно спроектировать таким образом, чтобы в них было больше места для хранения или добавлена дополнительная зона отдыха». Джордж Глейзер, соучредитель Pluck .
8. Кухонный островок
(Изображение предоставлено Mellon Studio)
«В этом доме середины века в Лагуна-Бич у нас была уникальная планировка. Кухня открытой планировки расположена между гостиной и столовой и открыта с обеих сторон». объясняет дизайнер Джен Самсон, основатель Jen Samson Design (открывается в новой вкладке).
‘Чтобы максимизировать как функциональность, так и эстетику, мы растянули остров настолько, насколько позволяло пространство, обеспечив множество сидячих мест, а также достаточное рабочее пространство. Мы даже смогли создать идеальное место для двух местных собак, чтобы они также могли наслаждаться едой на кухне!»
(Изображение предоставлено: British Standard by Plain English)
Кухня с одним камбузом или одной стеной — это планировка, в которой все шкафы, рабочие поверхности и приборы расположены у одной стены.
По общему признанию, это сложная планировка, однако она распространена, особенно в лофтах и студиях, и еще многое можно сделать, чтобы сделать эти кухни шикарными и эффективными.
Основные преимущества этой простой конфигурации заключаются в том, что упрощается рабочий процесс, все основные устройства находятся в пределах легкой досягаемости друг от друга. И хотя они могут быть не в традиционном треугольнике, с этим расположением вы никогда не зайдете далеко. Это также отличный вариант планировки кухни в небольшом пространстве, где вы хотите сохранить ощущение открытости и света или свести к минимуму занимаемую площадь кухни в квартире открытой планировки, где ей, возможно, придется делить квадратные метры с гостиной и столовой. .
На кухне с одной стенкой можно использовать переносной остров или разделочную доску, которую можно легко перемещать по пространству. Это добавит дополнительное пространство и место для хранения, не разбивая комнату.
10. Украсьте занятую планировку более светлыми оттенками
(Изображение предоставлено Рей Мун)
Кухонная планировка с большим количеством шкафов, таких как камбузы или U-образная форма, безусловно, максимизирует пространство для хранения, но есть риск тесноты и все эти шкафы также могут блокировать любой естественный свет.
Поэтому наш совет с этими планировками — сохранить светлую цветовую гамму кухни. В дизайне интерьера более светлые тона расширяют пространство и делают его более открытым, и хотя мы не всегда соблюдаем это правило, в данном случае оно работает.
‘Использование света, цвета и зеркальных фартуков сделает пространство более открытым и светлым.’ объясняет Эллисон Линч, старший консультант по дизайну в Roundhouse (открывается в новой вкладке). «Следите за простотой, и, в частности, на кухнях с камбузом держите высокие шкафы для хранения сухих продуктов и холодильник в концах комнаты и, возможно, ограничивайтесь одной стороной».
‘Слишком много деталей заполнит пространство, поэтому придерживайтесь простых четких линий и избавьтесь от беспорядка. Будьте осторожны, не ставьте холодильник в угол и прямо к стене, потому что будет трудно открыть дверцы, чтобы вытащить ящики для овощей, а также учесть глубину ручки, если открывать на стену».
11. Или сделайте планировку простой, но смело используйте цвет
(Изображение предоставлено: Pluck)
Более яркие оттенки могут работать на кухне любого размера, ключ в том, чтобы сбалансировать цвета с помощью простой мебели и такой же простой конфигурации, пусть цвет будет в центре внимания.
Как объясняет Джордж Глейзер: «Преимущество камбузных кухонь в том, что они маленькие, а цвет может иметь большое влияние и сделать выбранные вами оттенки эффектными. Если вы хотите, чтобы комната казалась светлее, оставьте более темные цвета на нижних плоскостях. Двухцветная мебель отлично подходит для этого».
И снова обратите внимание на отсутствие настенных шкафов на этой кухне. Небольшое пространство и смелая цветовая гамма полностью переполнили бы пространство, если бы стены не были свободны от шкафов. Вместо этого стеллажи обеспечивают дополнительное место для хранения и пространство для добавления характера и текстуры.
Отдельно стоящая мебель, такая как мясные подставки, комоды и даже шкафы, позволяет гибко планировать пространство. Выбор невстроенных опций идеален, если вы работаете с неудобным пространством, а форма не соответствует одному из более традиционных макетов.
Этот более спокойный вид идеально подходит для деревенского стиля или деревенской кухни, но может быть адаптирован к любому стилю.
Или вы можете смешивать и сочетать некоторые встроенные элементы и некоторые отдельно стоящие. Это пространство представляет собой настоящий пример смешения стилей — гладкая черная мебель смягчается естественными текстурами старинной разделочной доски, которая также служит небольшим кухонным островом.
13. Включите обеденный уголок в планировку кухни
(Изображение предоставлено Карин Мони)
Создавая планировку кухни-столовой, рассмотрите возможность выбора дизайна банкетки, которая будет удобно вписываться в угол комнаты. Переход к этому стилю, а не к традиционному столу и стульям, является не только огромной тенденцией в интерьере прямо сейчас, но и экономит место и мгновенно создает уютный уголок, который кажется отделенным от кухни.
Кроме того, вы можете добавить дополнительное удобное место для хранения на скамейку, если оно вам понадобится. Вдохновитесь этой кухонной закусочной и повесьте единственный подвесной светильник над круглым столом, чтобы повысить уют и сделать его более похожим на отдельную зону.
14. Удвойте кухонный остров обеденным столом
(Изображение предоставлено: Haris Kenjar)
кухня, спроектированная Guggenheim Architecture (открывается в новой вкладке). Таким образом, вы получаете все это дополнительное пространство для подготовки, а также много места для сидения. Это хороший способ добавить контрастный материал, например, сочетание дерева и нержавеющей стали, использованное здесь.
«Остров из нержавеющей стали, изготовленный по индивидуальному заказу, добавляет дополнительное пространство для приготовления пищи и служит основным обеденным столом на кухне этого компактного гавайского коттеджа». объясняет команда Guggenheim Architecture.
15. Убедитесь, что все соответствует масштабу
(Изображение предоставлено Кристианом Хардером)
«Первоначально промышленное здание было преобразовано в жилой дом где-то в середине 2000-х годов. 17-футовые потолки, оригинальные бетонные балки и захватывающий дух вид на Нью-Йорк и реку сделали этот проект мечтой.
Мы позволили видам служить драмой и сохранили текстуру для большинства вариантов интерьера». объясняет дизайнер Джоан Энгер (открывается в новой вкладке).
‘Мы позволили дизайну шкафов опираться на высокие потолки и уделили большое внимание выбору материалов, декоративному освещению и каменным деталям. Очень толстый отшлифованный остров Калькутта идеально вписывается в общую гамму. Хотя пространство должно было считаться современным и индустриальным, было важно, чтобы оно было одновременно теплым и многослойным».
Как лучше обустроить кухню?
Лучший способ планировки кухни полностью зависит от вашего пространства и того, как вы его используете. Однако есть ключевые, всегда популярные конструкции, обеспечивающие эффективное использование пространства – П-образная, Г-образная, камбузная, островная и полуостровная.
‘Мы считаем, что L-образная, U-образная и свободная планировка кухонь остаются популярными.’ говорит Саймон Бодсворт. «Общий баланс дизайна имеет первостепенное значение, поэтому тщательно представьте фасады, подумайте, как каждая часть будет дополнять другую.
После того, как вы получите общее представление о пространственной планировке вашего пространства, вам будет легче определить, к какой категории дизайна лучше всего подходит ваша новая кухня: U-образная, L-образная, камбуз или открытая планировка».
‘Г-образная кухня при недостатке места обеспечивает оптимальное хранение и поддерживает эффективный рабочий процесс. Чтобы сохранить ощущение открытости, выбирайте светлые тона краски и отражающие материалы, такие как яркий кварц или зеркальный фартук. Используйте каждый сантиметр пространства от полной высоты, неудобных уголков и использования островков, если у вас есть место». говорит Том Хоули.
‘U-образная кухня делает пространство более открытым. Стратегически разделите кухню на зоны для оптимальной функциональности. Чтобы добавить больше места, рассмотрите возможность добавления острова с плитой, расположенной с видом, чтобы вы могли общаться, готовя ужин для друзей и семьи».
(Изображение предоставлено Джеймсом Мерреллом)
Планировка кухни в виде острова или полуострова является хорошим выбором в помещениях с более открытой планировкой, как говорит Саймон, «зональная планировка кухни стала решением для жизни с открытой планировкой, различные пространства, жилые помещения и функциональность, не будучи ограниченными внутренними стенами или границами.
Таким образом, планирование является ключевым этапом процесса проектирования, поскольку оно определяет наиболее подходящую ориентацию, расположение и перспективу вашей жилой схемы с нарушенным планом на самой ранней стадии проектирования».
‘Единственная цель схемы неполного плана — определить области вашей жизни, которые стали рутинными и/или необходимыми, а затем учесть эти тенденции образа жизни в рамках общего плана. Поскольку открытая кухня должна быть красивой и функциональной, необходимо уделить особое внимание планировке и тому, что лучше всего подходит для вашего дома и образа жизни. После того, как вы определились, как вы собираетесь использовать пространство с ключевыми зонами, вы можете убедиться, что кухня будет спроектирована максимально эргономично для максимального изысканного удобства».
Где следует размещать технику на кухне?
Идеальный способ размещения бытовой техники на кухне – следовать правилу кухонного треугольника. «Правило», также известное как рабочий треугольник, существует уже несколько десятилетий и представляет собой теорию, основанную на том, что три основных кухонных прибора (холодильник, плита и раковина) должны образовывать треугольник.
Вы должны легко и быстро перемещаться между тремя, поэтому убедитесь, что вам не нужно проходить более 9 футов между каждым при планировании того, где они будут вписываться в ваш макет.
Посудомоечная машина имеет смысл поставить рядом с раковиной, чтобы можно было сполоснуть и загрузить. А для небольших бытовых приборов, таких как чайники, тостеры и кофеварки, рассмотрите возможность создания станции для завтрака в вашем макете — места, где все это можно хранить вместе с кружками, чаем, кофе и т. д.
Hebe — цифровой редактор Livingetc ; у нее есть опыт работы в области стиля жизни и интерьерной журналистики, а также страсть к ремонту небольших помещений. Обычно вы обнаружите, что она пытается сделать что-то своими руками, будь то покраска из баллончика всей кухни, не пытайтесь делать это дома или замена обоев в коридоре. Livingetc была таким огромным источником вдохновения и повлияла на стиль Гебы с тех пор, как она переехала в свою первую арендуемую квартиру и, наконец, получила небольшой контроль над декором, и теперь ей нравится помогать другим принимать решения при украшении их собственных домов.


Чем меньше ваши жилые помещения, тем меньше обычно будет ваша кухня. На некоторых небольших кухнях недостаточно места для второстепенных кухонных принадлежностей, таких как посудомоечные машины.
Значительная разница между высокими и низкими числами в этом диапазоне подчеркивает, что размер кухни очень зависит от общего размера дома.