Проект и планировка детской комнаты для девочки: идеи, варианты и фото
Проект детской комнаты для девочки важно тщательно продумать, ведь окружающая обстановка поможет ребенку нормально расти и развиваться. Правильно подобранные предметы обстановки и продуманный дизайн сделают жизнь маленькой принцессы более яркой и насыщенной. А заодно помогут в учебе, увлечениях или в спорте.
Вариант планировки детской комнаты для девочки
Вернуться к оглавлениюСодержание материала
Особенности планировки комнаты для девочки
Оговорим сразу, что в этом обзоре мы рассмотрим варианты создания обстановки, когда у вашей дочери или дочерей есть своя отдельная комната. Вопросов оформления детской в однокомнатной квартире затрагивать не будем.
Многие родители уже с первых лет жизни своей дочери создают целенаправленный «девчачий» дизайн проект детской комнаты. При этом они выпускают из виду то, что ребенок будет расти, и его вкусы, пристрастия и увлечения будут меняться с возрастом.
Поэтому не стоит создавать дизайн «раз и навсегда», это нецелесообразно. Но определенное зонирование помещения должно присутствовать. И по мере взросления девочки оно будет изменяться, с учетом ее меняющихся потребностей.
Оформление детской комнаты для девочки в ретро стиле
Планировка детской комнаты для девочки должна предусматривать все удобства, которые необходимы для нормального роста и развития ребенка. В помещении должна находиться все необходимая мебель, и еще оставаться достаточно свободного места, чтобы малышка могла играть и заниматься.
В комнате должны быть:
- кровать или диван;
- комод для вещей и белья;
- ящик для игрушек;
- письменный стол со стулом;
- шкаф для крупных вещей.
Если комната небольшая, можно использовать комбинированную мебель, например, кровать с ящиком внизу. Или двухъярусную конструкцию, в которой внизу располагается рабочее место и шкаф, а наверху — постель. Хорошим решением, которое позволит расширить пространство в помещении, будет шкаф-купе или встроенная мебель.
Планировка и расположение мебели в детской комнате для девочки
Подбирая и расставляя мебель, нужно все делать так, чтобы ребенок мог пользоваться ею самостоятельно.
Полки нельзя вешать слишком высоко, иначе малышка может упасть, пытаясь добраться до них.
Планировка комнаты для дошкольницы
Первый возрастной этап можно условно очертить как «от рождения и до первого класса», то есть до 6 лет. В этом возрастном промежутке планировка детской комнаты довольно проста. В помещении предусматривается три основных пространства:
- для отдыха;
- для игр;
- для хранения вещей и игрушек.
В случае, если комната маленькая, планировка детской комнаты может предусматривать только место для сна и место для отдыха. Вещи же можно укладывать во встроенные шкафы и выдвижные ящики под кроватью.
Многие родители, стремясь сэкономить, берут мебель «на вырост».Оригинальная планировка и оформление комнаты для дошкольницы
То есть покупают кровать из расчета, чтобы ее размер соответствовал возрастным изменениям маленького человека. Но при этом они забывают, что когда маленькая девочка превратится в подростка, ей могут понадобиться новые предметы обстановки. Для которых места в комнате уже не останется.
Итак, зная, что девочка будет расти, а комната — нет, подбираем мебель. Кровать может заменить раскладной диван. Его ставят у стены, желательно, внутренней. Так будет теплее. Ставить кровать возле окна опасно из-за сквозняков, от которых не защитят даже самые современные окна со стеклопакетами.
К тому же под окнами расположены радиаторы отопления, которые высушивают воздух.А это может неблагоприятно сказаться на самочувствии ребенка и качестве его сна. Комод или шкаф ставится так, чтобы центр комнаты был свободным. Здесь будет место для игр, чаепитий с куклами и устройством кукольного дома.
В центре комнаты легко поставить детский домик, который также просто можно будет разобрать после.
В возрасте 3-4 лет у детей проявляется интерес к рисованию и ручному творчеству:
- лепке из пластилина;
- аппликации;
- шитью одежды для кукол и вышиванию;
- постройке кукольных домов.
Для этого родителям можно приобрести рабочий стол, который впоследствии станет и местом для учебы. При этом стол лучше покупать стандартной высоты, а вот стул к нему — с регулятором подъема сидения.
А вот свободная стена, на которой можно повесить на кнопках сразу десяток рисунков — самое то для начинающего таланта. Если в квартире стены из твердого бетона, на одну из них можно закрепить большую доску с пробковой поверхностью. К такой легко можно прикалывать новые творения девочки-художницы канцелярскими кнопками.
Планирование комнаты для девочки-подростка
Переход в школу знаменует новый этап в жизни ребенка. Его условно разделяют на два периода: от 6 до 10 лет и от 10 до 13 лет. Внутренняя планировка помещения уже требует наличия пяти секций:
- для сна и отдыха;
- для занятий;
- для игр;
- для приема гостей;
- для хранения вещей.
Дневной сон заменяется отдыхом после школы, поэтому у ребенка должна быть возможность отдохнуть, когда ему это требуется. С расширением круга общения меняются и увлечения девочки. Вместо кукольных чаепитий она устраивает встречи со школьными подругами, они вместе учат уроки, играют, занимаются рукоделием. Поэтому план комнаты для ребенка меняется соответствующим образом. В ней появляется новая мебель (письменный стол, кушетка или диван для гостей, зеркало, полки для книг).
Новое зонирование должно быть таким, чтобы личное и общественное пространства визуально разделялись.
Ведь у девочки появляется собственная внутренняя жизнь, переживания, новые чувства. Они еще смутные, но уже требуют места для уединения и осмысления. Двухъярусная конструкция, в которой спальное место расположено наверху, может быть хорошим решением задачи. Забравшись наверх, девочка сможет уединиться, причем родителям не придется ломать голову над дизайном комнаты.
Центр комнаты лучше оставлять свободным, чтобы был проход от одной части в другую. К тому же появление в комнате зеркала (если это позволяют размеры помещения) требует пространства, чтобы девочка могла нормально видеть себя со стороны.
Письменный стол желательно поставить так, чтобы он был максимально освещен дневным светом. Правильно будет расположить его, чтобы световой поток падал на поверхность столешницы с левой стороны. Напротив окна письменный стол ставится только в том случае, если на него не падают прямые солнечные лучи.
Пример расположения стола напротив окна в детской комнате
Иначе глаза ребенка будут постоянно напряжены, что приведет к ухудшению зрения.
Вернуться к оглавлениюКомната для старшеклассницы
В старших классах (от 13 до 17 лет) поведенческий тип девочек уже можно разделить на два основных вида:- экстраверт;
- интроверт.
Эмоции и интересы первого типа ориентированы наружу, она выплескивает все свои переживания, делится ими с окружающими. Второй же тип живет внутренними переживаниями, он скуп на чувства и держит их внутри себя. Соответственно, меняется и функциональность комнаты для девочки-подростка. Это уже место, где можно спрятаться от забот повседневности. Планировка детской комнаты уже фактически сформировалась, изменяются лишь незначительные детали.
Вариант планировки и оформления детской комнаты для старшеклассницы
Вместо игрушек появляются современные гаджеты и устройства:
- компьютер;
- мобильный телефон;
- игровая приставка;
- телевизор;
- проигрыватель со стереосистемой.

Набор мебели остается прежним, к нему разве что добавляется туалетный столик с зеркалом и шкафчик для хранения бижутерии и прочих безделушек. Детские рисунки на стенах заменяются плакатами популярных музыкантов и актеров.
Девочки-подростки больше времени проводят, общаясь друг с другом, поэтому в комнате должен быть уголок для общения. Для него нужна мебель, ведь хозяйка комнаты и ее подруги уже не малыши, чтобы сидеть на полу. Гостевую зону можно оборудовать с помощью мягкого уголка, для которого будет сделано отдельное направленное освещение.
Вернуться к оглавлениюПланировка комнаты для двух девочек
В семьях, где родились близняшки или есть сестры-погодки, не всегда бывает возможность выделить каждой из них по отдельной комнате. Поэтому родителям приходится создавать дизайн детской для двух девочек так, чтобы каждая из них чувствовала себя нормально.
Условно жизнь двух сестер можно разделить на два этапа. Первый — от рождения и до 10-12 лет, второй — от 12 лет и далее.
На границе этих периодов происходят психологические изменения, когда каждая из девочек хочет иметь свой личный уголок. Учитывая, что комната, предназначенная двум сестрам, имеет ограниченные размеры, для ее обстановки чаще всего выбирают двухъярусную кровать.
Оригинальная планировка детской комнаты для двух девочек
Она не занимает место, позволяет создать для каждого ребенка личное пространство. Если же размеры комнаты позволяют, родители ставят две кровати или два дивана.
Куда сложнее разместить в небольшой комнате два письменных стола и стулья. Удачным решением этой задачи станет комбинированная мебель, с раскладными или выдвигаемыми столешницами. Лучше заранее предусмотреть тот момент, когда каждая из девочек захочет иметь свой собственный уголок, который не нужно делить с сестрой. В детской для двух девочек можно поставить кровати двух возле друга, разделив тумбочкой.
Декор и оформление комнаты для двух подростков девочек
А письменный стол с длинной столешницей поставить у противоположной стены. За ним обе девочки смогут заниматься, не мешая друг другу. Большей изолированности можно добиться, разделив зоны при помощи стеллажей и декоративных перегородок. На них можно расставить игрушки, сувениры, полезные мелочи. Главное, чтобы перегородки не лишали комнату света.
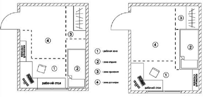
Комната девочки — подростка — презентация онлайн
1. КОМНАТА ДЕВОЧКИ — ПОДРОСТКА
КОМНАТА ДЕВОЧКИ ПОДРОСТКАПОДГОТОВИЛА: Смирнова Алиса
Денисовна, МАОУ сош №21.
ПРОВЕРИЛА: учитель технологии
Киселева Лариса Михайловна
2. Разработать планировку комнаты девочки — подростка, подобрать цветовую гамму и все необходимое для нее.
Цель:РАЗРАБОТАТЬ ПЛАНИРОВКУ
КОМНАТЫ ДЕВОЧКИ ПОДРОСТКА, ПОДОБРАТЬ
ЦВЕТОВУЮ ГАММУ И ВСЕ
НЕОБХОДИМОЕ ДЛЯ НЕЕ.
3. Задачи:
1. Ознакомиться с помощью интернет – ресурсов ситнерьером и планировкой комнаты девочки –
подростка.
2. Ознакомиться с требованиями предъявляемыми
к оборудованию комнаты девочки – подростка.
3. Выбрать интерьер комнаты девочки – подростка.
4. Разработать планировку комнаты учитывая все
требования.
5. Использовать данные своего исследования для
разработки планировки комнаты девочки –
подростка.
4. Проблемная ситуация:
Мои родители начинают обустройствонового дома. И они сейчас хотят
обустроить мою комнату, но мы на
уроках технологии изучали тему
«Комната девочки – подростка»,
поэтому я предложила себя в качестве
дизайнера и воспользовавшись
своими знаниями, полученными на
уроке решила обустроить свою новую
комнату!
5. Требования к интерьеру комнаты девочки — подростка:
У школьницы должна быть своя достаточно просторная и хорошоосвещенная, хорошо проветриваемая комната, в которой могут
быть совмещены несколько зон.
Зона сна и отдыха – главная зона в комнате. В этой части можно
спать, разговаривать по телефону с друзьям, смотреть телевизор,
читать книги.
Спальная зона может быть отгорожена от других зонкомнаты. Для подростка лучшим спальным местом будет кровать с
ортопедическим матрасом и мягким изголовьем.
Учебная зона – это прежде всего большой стол, который разделен
на зоны для творчества, учебы, компьютера. Можно иметь два
стола: письменный, чтобы делать уроки, и компьютерный, где
расположен компьютер и оргтехника (принтер, сканер и т.п.). Стол
и стул должны быть эргономичными и вписываться в общий
интерьер комнаты.
Зона досуга – в свободное время ко мне в гости могут заглянуть
одноклассники и друзья. Для нее мне понадобятся пуфики, кресла,
журнальный стол, мягкий ковер, на котором мы можем сидеть и
стойка с настольными играми.
6. Исследование:
Сначала я попросила папу показать мне планпомещения и измерит длину и ширину моей
комнаты. Затем я представила свою комнату такой.
Какой я бы хотела ее видеть в конечном итоге.
Вместе с мамой я выбрала цветовую гамму и стиль
моей будущей комнаты.
Выбрала освещение,определилась с цветом стен, покрытием пола и
мебелью, которую расставлю в своей комнате.
Стиль моей комнаты – лофт.
7. Стиль лофт.
Направление «лофт» (англ. loft — «чердак») зародилось в 40-хгодах XX в. в индустриальных кварталах Нью-Йорка. Очередной
скачок цен на землю в центре города вынудил владельцев
промышленных предприятий оставить свои помещения и вывести
производство на окраины. Опустевшие фабричные здания
встретили покупательский интерес со стороны богемы,
привлечённой как функциональными характеристиками помещений
(высокие потолки, хорошее освещение), так и низкими, по
сравнению с обычными квартирами, арендными ставками. Пройдя
путь от мастерской до стильного помещения, лофты оказались на
пике моды к 1950-м годам. Именно здесь сосредотачивалась
артистическая жизнь Нью-Йорка. Модные художники открывали в
лофтах свои галереи и студии. Хрестоматийный пример —
«фабрика» Энди Уорхола, с 1962 по 1968 годы располагавшаяся
в Манхэттене на 5-м этаже дома 231 по 47-й улице.
Вскоре заоригинальным жильем окончательно закрепился статус элитного.
Снимать большие площади в историческом центре города, в
зданиях, уже близких к тому, чтобы за давностью лет получить
статус памятника архитектуры, молодым художникам становилось
не по карману, и их место заняли успешные адвокаты и финансисты
8. Основные черты стиля лофт:
Открытая планировка, практически полноеотсутствие перегородок. Все функциональные зоны
разделяются посредством разных
видов зонирования (цветовые контрасты,
акцентирование светом или же стеклянные перегородки,
которые не нарушают основную концепцию открытого
пространства)
Высокие светлые потолки также являются
необходимой составляющей стиля лофт. Чем
больше света и пространства будет в таком
помещении, тем лучше.
Нестандартные аксессуары. Всевозможные
граффити, плакаты, абстракции или даже
дорожные знаки будут очень уместны в общей
концепции стиля лофт.
Стиль лофт подойдет всем!
Индустриальные черты интерьера. Кирпичная кладка,
трубы и грубая штукатурка является неотъемлемой
частью стиля лофт. И даже если нет возможности
«оголить стены», можно попробовать сделать имитацию
кладки, к примеру, с помощью обоев с похожим
рисунком.Кирпичная стена и вовсе является любимым
приемом дизайнеров в таких помещениях.
Комбинирование старого и нового в интерьере. Все, что
рассматривалось в предыдущем пункте, должно
гармонично сочетаться с ультрамодными тенденциями —
современная техника, хромированные поверхности,
стеклянные перегородки и стальные плитки для
облицовки стен.
Мебель в стиле лофт выполняет важную роль, помимо
основных функциональных нагрузок (хранение вещей), у
нее есть и дополнительная задача – зонирование
помещения. Мебель в этом стиле может быть практически
любой, но эффектнее смотрятся комбинации
антиквариата с чем-то современным
и минималистичным (например, комод«на ножках» и
хромированный шкаф).
Основные черты стиля лофт:
9. Варианты комнаты девочки подростка:
10. Выбор лучшей идеи:
Моя комната очень светлая и поэтому я могувыбрать интерьер в более темных тонах. Комната
свободная и в ней много места для реализации
моих идей. Моя комната будет оформлена в стиле
лофт. Я выбираю палитру цветов от белого до
черного в некоторых местах. Потолок у меня
будет выполнен в белом цвете и сером, стены
покрашены такими же цветами, а на полу будет
лежать бело – серый ковер. Вся мебель будет
выполнена в кремово белых – бордовых тонах. Я
добавила вещи декора и моя комната получилась
очень уютной.
Моим родителям очень понравилась эта идея и
скоро моя мечта станет реальностью!
11. Комната девочки – подростка в стиле лофт.
На этом примере мы можем рассмотреть зонуотдыха , учебную зону и зону досуга.
12. Оценка и самооценка:
Работа над проектом мне очень понравилась! Ямногое узнала о стилях и планировках комнат,
предназначенных для девочки-подростка.
Оказывается, планировка своей комнаты очень
сложно, но очень увлекательно.
Моя комната понравилась всем! И моим родителям,
и моим друзьям, они оценили эту комнату на
отлично.
13. Источники информации, использованные при выполнении проекта.
Синица Н.В. Технология ведения дома: 6 класс: учебник для учащихсяобщеобразовательных организаций /
Н.В. Синица, В.Д. Симоненко, 2-е изд., исп. – М.: Вентана – Граф, 2016. – 192 с. : ил.
Интернет ресурсы:
1.
https://www.google.ru/url?sa=i&rct=j&q=&esrc=s&source=images&cd=&cad=rja&uact=8&
ved=0ahUKEwjHvaPu7_LWAhWFHJoKHaldBqwQjRwIBw&url=http%3A%2F%2Fwehearti
t.com%2Fentry%2F11508273&psig=AOvVaw2u39zgb1_HSaf0UzGoVles&ust=150816340
7067011
2.
https://www.google.ru/url?sa=t&rct=j&q=&esrc=s&source=web&cd=7&ved=0ahUKEwiXy
7r86PLWAhXjF5oKHViDAIMQFgg7MAY&url=https%3A%2F%2Fru.wikipedia.org%2Fwiki
%2F%25D0%259B%25D0%25BE%25D1%2584%25D1%2582&usg=AOvVaw0hyq0346YN4
PmnGbutG8-G
3.
https://www.google.ru/url?sa=t&rct=j&q=&esrc=s&source=web&cd=3&ved=0ahUKEwjli9
r76vLWAhXKC5oKHVdwCjoQFggzMAI&url=http%3A%2F%2Fhomester.com.ua%2Fdesig
n%2Fapartments%2Fstyles%2Floft%2F&usg=AOvVaw2Oz2ECOC7IwAW6eCsj0rmb
4.
Google ресурсы.
детская комната для девочки 2019 года
Сложно себе представить большее количество дилемм, которые возникают при планировании ремонта, чем в детской комнате. Помимо того, что родителям необходимо создать безопасную с точки зрения возможного травматизма и экологичности атмосферу, важно учесть возраст, пристрастия и умения ребенка, обеспечить чадо набором необходимых для роста и развития элементов интерьера и при этом не разорить семейный бюджет. А сделать это непросто, учитывая, что экологичность отделочных материалов и предметов меблировки имеет прямую связь с их стоимостью. С возрастом ребенка ситуация только усугубляется – в отличие от младенца, решения за которого принимают родители, дошкольник и уж тем более подросток принимает активное участие в планировании ремонта собственной комнаты.
А мнения родителей и ребенка очень часто расходятся почти по всем пунктам обустройства маленького мира – детской комнаты.
Но ремонт в комнате подрастающего поколения – это не только череда сложных задач и преодолений, но и приятный процесс (часто совместный), сближающий семью. Особенно это касается декорирования (самой приятной части ремонта или переделки детской комнаты) помещения, в котором будет жить и развиваться маленькая леди. Как учесть желания подрастающей принцессы и модные тенденции, соотнести собственные финансовые возможности с имеющимися данными комнаты, не забыть про советы специалистов по эргономике и колористике для создания непросто красивого, но и практичного, безопасного и многофункционального интерьера? Надеемся, что наша внушительная подборка дизайн-проектов из ста фото комнат для девочек разных возрастов поможет вам сориентироваться в многообразии дизайнерских идей и составить свой, оптимальный план действий по ремонту детской вашей дочки или дочерей.
Факторы, влияющие на создание дизайна комнаты для девочки
Безусловно, основным фактором, определяющим обстановку комнаты для девочки, будет ее возраст. Ведь именно он определяет не только умения и предпочтения маленькой хозяйки, но и сам стиль жизни девочки. Но существует немало факторов, помимо возраста, которые оказывают ничуть не меньшее влияние на выбор дизайна детской комнаты. Размеры и форма комнаты напрямую диктуют не только выбор, количество и расположение меблировки, но и цветовую палитру в целом, конкретные сочетания оттенков в частности.
Количество и размеры окон и дверных проемов также повлияют на выбор обстановки комнаты для девочки. Расположение помещения относительно сторон света имеет не меньшее значение – оба фактора влияют на уровень естественной освещенности комнаты, а значит – на выбор цветовой палитры интерьера.
На состав предметов интерьера детской комнаты будет влиять и характер девочки, ее темперамент, увлечения и способности, пристрастия и уровень вовлеченности в тот или иной процесс.
Очевидно, что комната школьницы будет существенно отличаться по составу предметов интерьера от помещения для младенца. Или детская активной, спортивной леди от комнаты юной мечтательницы с романтическим характером.
Еще одним важным аспектом планирования ремонта в девичьей комнате является количество самих хозяек. К сожалению, не удастся просто умножить на два количество спальных и рабочих мест (уголков для творчества), если у девочек большая разница в возрасте – дошкольнице необходимо много свободного пространства для активных игр, а подростку важно организовать эргономичное рабочее место и возможность находиться в уединении в комнате, которую приходится делить с сестрой. Задача только на первый взгляд неподъемная. Некоторые дизайнерские приемы помогают сохранять автономию для каждой хозяйки в рамках общего помещения, но об это немного позже.
Соответствие возраста девочки и дизайна ее комнаты
Вне зависимости от возраста маленькой хозяйки, ее комната должна представлять собой светлое и хорошо проветриваемое помещение.
Даже в малогабаритном пространстве необходимо найти возможность благоустройства оптимального места для сна и отдыха – не вблизи от радиаторов отопления и не вплотную к окну. Расположение всех остальных предметов интерьера уже будут зависеть от возможностей комнаты и потребностей девочки.
Комната для младенца
Если у вас есть возможность и желание с первых дней жизни разместить малышку в отдельной комнате, то к дизайну этого помещения необходимо подойти не столько с точки зрения моды и стиля, сколько со стороны эмоционального комфорта самого младенца и его родителей. В первые месяцы жизни малышке не будет дела до обстановки ее комнаты, главное, чтобы климат в помещении был подходящим – достаточный уровень влажности и освещения будет ключевым моментом. С другой стороны, дети невероятно эмпатичны, они чувствуют настрой родителей. Если мама и папа успокаиваются в окружении нейтральной обстановки, расслабляются в комнате, выдержанной в пастельных тонах, то и ребенку будет проще засыпать в подобной атмосфере.
Скорее всего, вам не захочется переделывать комнату для подрастающей девочки, которая начинает исследовать мир (в виде собственной комнаты) вне кроватки. Поэтому ремонт в комнате младенца лучше производить с расчетом на ближайшие несколько лет. Если отделка стен будет нейтральной, то привнести цветовое разнообразие и центры для фокусировки внимания можно будет с помощью художественной росписи (самый дорогой и трудозатратный вариант) или интерьерных наклеек (способ самый дешевый и простой) с изображениями любимых героев мультфильмов, сказок.
Детская для дошкольницы и ученицы начальных классов
Итак, мир подрастающей малышки больше не ограничивается кроваткой и руками родителей, начинается период активного исследования, получения навыков. Почти наверняка вам придется заменить кроватку (многие родители изначально выбирают так называемую «растущую мебель», которая увеличивается в размерах по мере необходимости, но и ее возможности не безграничны), добавить системы хранения – обычно комода с пеленальным столиком не хватает его дополняют или заменяют гардеробом, плательным шкафом (в зависимости от размера комнаты и наличия свободного пространства).
Также необходимо буде озадачиться системой хранения для игрушек и книг – лучше всего иметь запас в количестве полок или ячеек, ведь очевидно, что со временем количество предметов будет только расти. Даже в комнате девочки, которая только научилась ходить, важно найти возможность создания уголка ял творчества (занятий) – это может быть небольшой столик со стульчиком или консоль (столешница), сидя за которой можно рисовать, лепить, мастерить. Но при всем при этом важно понимать, что большая часть пространства детской комнаты должна оставаться пустой – для возможности проведения активных игр. К сожалению, не каждая комната для девочки может похвастать достаточным количеством квадратных метров, но найти возможность не загромождать имеющееся пространство необходимо.
Со временем небольшой уголок для творчества или маленький столик со стульчиком необходимо будут заменить полноценным рабочим местом. Этот период почти наверняка совпадет с подготовкой к школе.
Специалисты рекомендуют и в этом случае использовать «растущую мебель» – уровень столешницы стола и высота сиденья, спинки стула регулируется в зависимости от роста ребенка. Растущая мебель не только эргономична, но и выглядит современно, модно, она способна легко вписаться в актуальный дизайн детской комнаты.
Сложность создания дизайна комнаты дошкольницы состоит не только в том, что каждой функциональной зоне необходимо уделить особое внимание и найти достаточное количество свободного пространства. Непростая задача усложняется еще и тем, что ваша малышка уже способна озвучивать собственное видение интерьера детской комнаты. Найти компромисс на этом этапе проще всего при помощи декора – стикеры-наклейки с любимыми персонажами, постельное белью с героями мультфильмов или шторы в тематическом исполнении помогут обойтись малыми финансовыми жертвами.
Комната девочки-подростка
С одной стороны – создание дизайна в комнате подростка представляется несложной задачей, ведь, наконец, можно пренебречь зоной для игр, уделив особое внимание лишь сегменту сна и отдыха, рабочему месту и системам хранения.
Но ситуация усложняется тем, что девочка-подросток чаще всего непросто участвует в создании интерьера собственной комнаты, а буквально желает принимать все основные решения – от выбора отделочных материалов до дизайна мебели и декорирования помещения. Найти компромисс с желаниями и возможностями родителей бывает непросто. Но создать оптимальную остановку реально, главное – продумать заранее максимально возможное количество элементов. Чем подробнее будет план действий по ремонту, тем меньше времени и денег придется потратить на переделки.
Комната для взрослой девочки (девушки) вполне может напоминать современную спальню. Единственным отличием от спальни для пары может быть размер кровати – вариант для минималистов. И все же, в большинстве случаев комната девочки подростка «выдает» присутствие девичьих идей почти в каждом элементе интерьера – наличие туалетного столика (в малогабаритных помещениях его функции может выполнять рабочее место или компьютерный стол), текстильное декорирование комнаты, использование декоративных элементов, не имеющих функциональной нагрузки.
Цветовые решения для девичьей комнаты
Невольно первыми ассоциациями при словах «комната для девочки» становится интерьер в розовых тонах. Так уж повелось, что производители не только одежды для детей, но и товаров для оформления детских комнат очень часто используют разделение на «голую» и «розовую» тематику. Если девочке действительно нравится этот цвет, и она сама просит родителей использовать его в оформлении комнаты, необходимо прислушаться к мнению маленькой хозяйки. Ведь именно ей проводить большую часть своего времени среди розового облака кружев, отдыхать или играть, получать новые навыки и знания. Тем более, что у розового цвета существует множество оттенков, среди которых родители наверняка смогут найти оптимальный.
Итак, с какими цветами в интерьере девичьей комнаты лучше всего сочетать розовые оттенки? Прежде всего – белый цвет, ведь он универсален, позволяет создавать легкие и светлые образы и подходит для малогабаритных помещений.
Можно выбрать белый цвет как в качестве основы отделки, на фоне которого будет располагаться розовая мебель, так и поступить с точностью до наоборот – белоснежная меблировка будет эффектно выделяться на фоне стен с глубоким оттенком розового.
Еще одно эффектное и современное сочетание розовых оттенков возможно при использовании серого цвета. Бледно-серый или глубокий меланж, даже темный графитовый тон для подчеркивания геометрии помещения, создания контраста – серый цвет достаточно универсален и нейтрален для создания красивых сочетаний с различными оттенками розового.
Еще один типично «девчачий» цвет для оформления интерьера – фиолетовый (различные оттенки сиреневого). Можно выбрать пастельные, светлые оттенки фиолетового для создания отделки помещения или обратиться к глубоким, насыщенным тонам для создания акцента – это может быть и целая поверхность (стена или ее часть), и текстильное оформление спального места или окон.
Голубой цвет в комнате девочки – почему бы и нет? Ведь у этого цвета так много красивых, наполненных свежестью оттенков, которые идеально подойдут для комнаты, расположенной на южной стороне здания. Стандартное сочетание голубого и белого цвета, создающих свежий и легкий образ, можно оттенить элементами глубокого малинового, синего, изумрудного цвета.
Один из универсальных вариантов создания интерьера детской комнаты для ребенка любого пола – использование белого цвета в качестве основы. Этот тренд вызван и универсальностью белых оттенков и возможностью создания визуального увеличения малогабаритных пространств. Сочетать белый цвет в качестве отделки стен несложно с любыми цветовыми решениями меблировки и декора. Но важно понимать, что абсолютно белая комната – неподходящий вариант для интерьера детской. Для фокусировки внимания детскому взору необходимы акценты, цветовые пятна. Чтобы белый цвет не ассоциировался со стерильностью больничной палаты лучше всего использовать деревянные поверхности не только для привнесения природной теплоты, но и цветового разнообразия.
Еще один беспроигрышный выбор цветовой палитры для оформления девичьей комнаты – бежевая гамма. Палитра теплых оттенков от светло-бежевого, пастельного до цвета молочного шоколада способна создать благоприятную атмосферу в детской комнате и быть актуальной для девочек разных возрастов.
Несколько примеров оформления комнаты для двух и более девочек
Оформление детской, в которой будут проживать две девочки, усложняется не только тем, что для организации двух спальных и рабочих мест необходимо большее количество полезного пространства комнаты, но и возможной разницей в возрасте и существенной разницей в темпераментах маленьких леди. Если одна девочка активна и предпочитает занятия на спортивных снарядах, а второй необходимо укромное местечко для тихих игр или уголок для творчества, родителям придется использовать немало дизайнерских приемов для экономии квадратных метров часто и без того небольших детских комнат.
Двухъярусная кровать – отличная возможность экономии полезной площади детской комнаты для освобождения пространства для активных игр, занятий творчеством. Но такой приме организации спальных мест подходит не для всех случаев. Например, в комнате девочек с большой разницей в возрасте. Возможен вариант, при котором между девочками невозможно найти компромисса в решении размещения спальных мест на нижнем и верхнем уровне. В таком случае расположение кроватей будет зависеть только от размеров и формы помещения. В квадратной комнате можно установить спальные места параллельно у стен или перпендикулярно, заняв один из свободных углов.
Оптимальный вариант установки кроватей для девочек – параллельно при условии наличия свободного пространства со всех сторон меблировки. Но такой вариант, при котором к сальному месту можно было подойти с любой стороны, возможен только в помещениях средней и большой площади (чаще всего используется в комнате девочек-подростков).
Заказать дизайн комнаты для подростка девочки
В детстве каждый ребенок любит все яркое и красивое, чего не скажешь о подростках. В этом возрасте ребенок начинает интересоваться последними новинками моды и следит за трендами. Многие девочки подростки желают, чтоб их комната была оформления также, как у их зарубежных сверстников. Заказать дизайн комнаты для девочки подростка можно обратившись в компанию «Kupa». У нас работают опытные и профессиональные специалисты и дизайнеры, которые помогут оформить интерьер помещения с учетом последних модных трендов в сфере дизайна. После сотрудничества с нами комната вашего ребенка заиграет новыми красками, станет стильной и современной.
Дизайн детских комнат для подростка – основные этапы
Определяется с цветовой гаммой интерьера. На данном этапе дизайнер советует клиентам, в каком цвете лучше всего оформить детскую комнату, уточняет о наиболее актуальных и модных цветовых гаммах.
В комнате должно гармонировать все: обои, шторы, аксессуары, мебель и т.д. Дизайнер нашей компании может дать полную свободу выбора ребенку либо прийти к единому решению. Определяемся с общим стилем помещения. Чаще всего комнаты девочек оформляют в скандинавском стиле, классическом, ар-деко, шинуазри, прованс, шебби шик и прочих. В этом случае все зависит от предпочтений ребенка и его увлечений.
Приступаем к обустройству основных зон: спальной, гардероба, зоны отдыха, учебы и будуар.
Добавляем элементы декора. Декоративные элементы являются важной составляющей каждого помещения. С их помощью можно сделать комнату более комфортной и уютной. В таком помещении ваш ребенок захочет проводить много времени, учится, отдыхать и приглашать друзей в свое маленькое царство.
Очень важно не только создать стильный и модный дизайн интерьера комнаты для подростка девочки, но и разместить в комнате прочную и качественную мебель.
В этом вам также на помощь придет компания «Kupa», ведь у нас вы сможете приобрести надежную и безопасную мебель для детей, которая по праву относиться к премиум классу. За более детальной информацией, вы можете обращаться к менеджерам нашей компании, которые проконсультируют и ответят на все возникшие вопросы.
Комната подростка – дизайн интерьера
Переходный период – сложное время, когда особенно важно, чтобы комната подростка по дизайну интерьера помогала ощущать себя комфортно. При выборе стиля и цветов, которые будут использоваться в отделке и декоре важно учитывать интересы владельца. Лет с 10 мальчики и девочки могут осознанно и критически подходить к планированию обстановки, подбирая то, что им импонирует по духу, стилю, настроению. При этом взрослые могут мягко направлять юного владельца комнаты в его планах, оставляя ощущение его самостоятельности.
Понятие комфорта каждый тинэйджер воспринимает по своему, для кого-то это свет и простор, для кого-то компактность, для кого-то обилие гаджетов, а кто-то остается приверженцем мягких оттенков и множества цветов.
Впрочем, создавая дизайн интерьера комнаты в СПб для подросшего ребенка важно передать яркую индивидуальность владельца во всем от планировки до материалов и способов отделки и декора.
Обустраивая комнату подростка, дизайн интерьера должен отвечать нескольким критериям: практичность и функциональность, оригинальность и привлекательность. Еще одним значимым фактором является мобильность дизайна, поскольку ребенок еще только ищет себя и возможно, какие-то атрибуты нужно будет сменить, чтобы помещение и дальше соответствовало характеру владельца.
При этом подходы, используемые в организации пространства для девочки и мальчика, значительно разнятся, поскольку в комнате для мальчика подростка большее значение имеет функциональность, а девочки уделяют больше внимания привлекательности обстановки.
Комната для девочки подросткаСказочные персонажи и кукольные домики в комнате для девочки подростка уступают место туалетному столику с большим зеркалом и шухлядами для хранения первой косметики, вместительному комоду и шкафу, где найдется место для многочисленных нарядов юных модниц.
Зонирование комнаты мало чем будет отличаться, здесь все так же надо выделить место для сна и отдыха, место для занятий. В комнате подростка создаваемый дизайн интерьера должен учитывать, что тинейджеры уже имеют свои хобби, поэтому для подобных занятий также необходимо предусмотреть свою зону. Это может быть уголок для игры на гитаре или зеркало для занятия балетом, полочки для хранения коллекций и т.д.
Как и в детской для малышей, в комнате для девочки подростка должно быть предусмотрено место для собственного проявления. По желанию юной владелицы здесь могут появиться рисунки, фото или постеры.
ОсобенностиВ отделке помещения все еще можно активно использовать растительные мотивы, будь то рисунок на обоях, фотопринт или объемная фигура из гипсокартона, обыгранная красками. Стоит учитывать, что создавая проект комнаты подростка, дизайн интерьера должен быть универсальным, ведь потребности 12-летних леди кардинально отличаются от предпочтений 16-летних бунтарей.
Поэтому если не планируется повторное проведение ремонта через пару лет, стоит задуматься о выборе легко трансформирующихся решений.
Так вместо розовой отделки отдать предпочтение бежевым, молочным или белым цветам. Впоследствии розовые шторы и плед на кровати можно будет сменить на графитовый или бирюзовый. Это превратит комнату для девочки подростка из детской в серьезную и стильную. То же касается и другого текстиля: подушек, чехлов на кресле и стуле, ковра.
Комната для мальчика подросткаМальчики воспринимают свое жизненное пространство совсем по-иному. В комнате для мальчика подростка следует уделить максимум внимания функциональности предметов и отказаться от сантиментов. Никаких детских фотографий или любимого в детстве плющевого медведя! Место для выжигания или спортивный уголок, инструменты, компьютер – вот то, что придется по душе идущему во взрослую жизнь юноше.
ОсобенностиПарни гораздо меньше ищут себя, поэтому цветовая гамма, понравившаяся 10-летнему мальчугану, будет уместной и в комнате для мальчика подростка более взрослого возраста.
То же касается и настенных принтов при условии, что изображения не персонифицированы (то есть, не изображен человек-паук или другой персонаж, симпатии к которому могут измениться). Изображение мегаполиса, гонки, космических станций, спортивной арены и др. будут более уместными.
Чем меньше размеры комнаты подростка, тем больше дизайн интерьера должен предусматривать трансформирующихся систем. Так, кровать тинэйджера может складываться, освобождая место для активных занятий спортом, или рабочий стол раскладываться, превращаясь в место для сбора моделей парусников.
Детская комната для девочки 10-16 лет
Проект: комната девочки-подростка, 13 лет.
Цель проекта: обустроить комнату с учотом пожеланий маленькой хозяйки: использовать розовые оттенки в цветовой гамме, обустроить просторную гардеробную, разместить небольшой туалетный столик.
Оформление спальни девочки-подростка — непростая задача, ведь нужно учесть потребности ребенка в этом непростом возрасте, совместить важные зоны в одной комнате и не забыть подчеркнуть индивидуальность хозяйки.
«Мы постарались акцентировать внимание на том, что в этой комнате живет уже не маленькая девочка, а уже сформировавшаяся личность. Коллекции украшений, цветы, фотографии друзей и множество аксессуаров наполняют эту комнату особым смыслом» — рассказывает Ольга Химено, дизайнер проекта.
«Спальня для девочки-подростка разделена на три зоны: зона отдыха, зона для учебы и гардеробная. Каждая зона имеет свои собственные решения для хранения вещей,» говорит дизайнер этого интерьера Olga Gimeno. — «Поскольку комната довольно маленькая, мы постарались использовать каждый уголок с пользой — пространство под окном (где образовался стол-комод), под кроватью (для хранения сезонных вещей и книг), место возле кровати (между кроватью и стеной расположен небольшой прикроватный столик, на котором можно хранить всяческие мелочи или поставить вазу с цветами).
1
Особого внимания заслуживает гардеробная, которая расположилась в небольшой лоджии.
«Вместе с будущей хозяйкой этой комнаты мы пришли к выводу, что лучше всего не ставить межкомнатную дверь в гардеробную. Если закрыть гардеробную, там никогда не будет порядка», — смеется дизайнер. — «Более того, имея открытый шкаф, у вас будет больше мотивации содержать его в чистоте,» — продолжает Ольга. Каждая вещь в гардеробе имеет выделенное место — обувь стоит в специальных коробках в нижнем отделении, рубашки, футболки и аксессуары расположились по средине на полках и в специальных подносах и подставках, а в верхней части висит одежда на вешалках.
В этой комнате белый, бледно-зеленый, розовый и лиловый — доминирующие цвета. Белые стены и пол являются идеальным фоном, рядом с которым другие акценты становятся ярче и заметнее. «Мы не хотели использовать яркие оттенки, особенно боялись переусердствовать с применением розового — традиционного цвета всех детских для девочек. Поэтому выбор пал на бледно-розовый оттенок, который идеально вписался в пастельную гамму комнаты».
Дизайн комнат для девочек подростков
Просмотров: 58696
Дизайн комнат для девочек подростков – вот настоящая задача для родителей, чьи дети уже подросли, и им требуется нечто другое, чем просто яркая комфортная комната с игрушками. Помещение, которое для них отведено можно назвать как детской, так и спальной комнатой, поэтому дизайн комнаты для подростка девочки будет сочетать элементы дизайна спальной комнаты и элементы дизайна детской комнаты.
Планировка комнат для девочек подростков
Так как большинство из посетителей этого сайта представляют себе конкретные помещения по-разному, так как их планировки домов и квартир различны, мы разберем общие советы. Итак, советы по планировке комнат для девочек подростков:
- выбирайте светлые тона для оформления стен. Наиболее перспективные цвета и цветовые решения приведены ниже;
- комната для девочек должна хорошо проветриваться и быть хорошо освещаемой;
- кровать рекомендуется располагать напротив входа;
- шкаф и стол должны быть подходящих размеров для возраста ребенка.
Это может быть мебель-трансформер; - легкие занавески, большое зеркало.
Если вы только начинаете строительство, выполните проектирование домов правильно, так как от этого зависит удобство использования конкретного помещения. Сделайте детскую спальную комнату более комфортной, чуть большего размера, чем необходимо, квадратной формы.
Цвет комнаты для девочек подростков
Только условимся избегать стереотипов – розовый цвет нравится не всем, как не всем нравится кушать по утрам, пить кофе, принимать душ и идти на пробежку.
Отбросив приевшиеся сочетания, которые нам почему-то навязывает интернет, рассмотрим более выгодные варианты! Спальной комнате для подростка девочки или девочек подойдут следующие цвета:
Дизайн комнат для девочек-подростков в оттенках голубого цветаЦвет чистого неба и свежего моря – оттенки голубого цвета – васильковый, сизый, небесный и бледно-васильковый. |
|
| Обратите внимание на расслабляющую атмосферу комнаты для девочек-подростков, выполненной в цветах светлого неба. Именно в такой комнате приятно проводить время. Даже обычное деление на зону отдыха и рабочую зону тут не совсем уместно, поскольку трудиться здесь очень приятно и занимает много сил. Светлые оттенки синего цвета, к примеру, голубой и небесный зрительно расширяют помещение, делая его просторнее. | |
Интерьер детской комнаты для девочек в зеленых тонахОттенки зеленого цвета — мягкие, приятные — как растения на ярком солнце, отлично подойдут для дизайна комнаты для девочек-подростков. |
|
По своему действию зеленый цвет равносилен голубому. Однако в интерьере комнаты для девочки он воспринимается иначе. Цвет располагает к общению и более эффективной работе головного мозга. При этом вовсе необязательно делать все оформление зеленым, как на третьем фото внизу.
|
|
Дизайн комнат для девочек подростков в желтых тонахЖизнерадостным девочкам-подросткам придется по душе дизайн интерьера комнаты в оттенках желтого цвета: старого золота, шафрана, грушевого, лимонного и кукурузного цветов. |
|
Комната для девочек подростков, выполненная в желтых тонах — прекрасное решение. Основным цветом стоит принять несколько приглушенный оттенок желтого, а яркие акценты сделать в лимонном или грушевом тоне. Желтые цвета создают атмосферу радости, от них в помещении становится светло как летом, что навевает теплоту. Желтый цвет заряжает энергией намного сильнее, чем другие. В дизайне комнаты для девочек-подростков можно использовать легкие занавески и хорошее освещение — лучше точечное, тогда комнату наполнит максимум света.
|
|
Оранжевые тона для комнаты девочек подростковРазрабатывая дизайн комнаты для подростка девочки следует обратить внимание на возможность использования фруктовых цветов. Создание яркой, сочной атмосферы при помощи использования персикового, мандаринового, тыквенного, абрикосового цветов придется многим по душе. |
|
| Интерьер комнаты для девочек, выполненный в оранжевых тонах — сильное решение для общительных людей. Он располагает к общению — а девочки так любят общаться с подружками! В моем исследовании на тему интерьер для подростков я увидел, что расстановка мебели не имеет такого значения, как ее сочетаемость между собой и с другими элементами оформления. Этот цвет не такой агрессивный, в отличие от красного. | |
Светлые цвета для дизайна комнаты девочек-подростковЦвет морского пляжа — это спокойный и понятный многим оттенок, который поможет расслабиться. |
|
| Светлые тона — это чаще всего простой и удобный минимализм. Простые помещения и очертания мебели — отличительная особенность комфортных помещений. Дизайн комнаты для девочек подростков ниже показывает, насколько хорошо не поддаваться сиюминутным желаниям использования обычных розовых тонов. | |
Розовый дизайн комнат девочек подростковА теперь уже отметим: розовый девушкам к лицу. Розовый дизайн комнат для девочек подростков симпатичное решение. Следует отметить, что ярко-розовый цвет, как на фото справа, применим больше для акцентов. Основным цветом лучше выбрать более светлый оттенок розового, к примеру, «звезды в шоке» |
|
На фото внизу традиционные интерьеры в розовых цветах. Обратите внимание, что стены окрашены в светло-розовый цвет, который можно назвать пюсовым. Мебель для помещения в розовых тонах может быть обычной. Ее фасад можно сделать в цвет стен.
|
|
Планировка комнаты для девочек-подростков
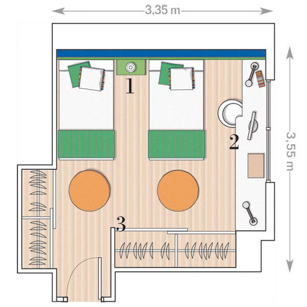
| Ниже планировка детской спальной комнаты площадью 12 м2. Габаритные размеры, как это указано на третьем фото, 3,35х3,55. Таким образом, комната представляет собой квадрат, а значит, полезная площадь не теряется. Две кровати расположены напротив входа. В углу комнаты имеется рабочая зона, рассчитанная на двух человек. | ||
Следующая планировка комнаты имеет габаритные размеры 5,3х2,7 метров — чистый прямоугольник. Спроектировать дизайн комнат для девочек подростков вытянутой комнаты значительно труднее, так как кровати должны располагаться вдоль самых длинных стен. Полезная площадь почти на 2м2 больше, чем в предыдущем варианте, хотя пользы от нее не так много. Я больше чем уверен, что она скрадывается из-за того, что помещение не квадратное. Использование светлых цветов обязательно. |
||
| Габаритные размеры комнаты для девочек в этом случае составляют 3,5х4.5м — почти 16 м2 полезной площади. Кровать расположена в углу, не напротив входа. Рабочее место установлено на противоположной стороне. | ||
| Дизайн комнаты для подростка девочки для следующего варианта продумывать еще проще, так как полезная площадь почти составляет 16 м2 — этого вполне достаточно для размещения двух больших кроватей. На фото видно, что вместо второй большой кровати установлена небольшая кроватка для подрастающего ребенка. | ||
Дизайн этой комнаты для девочек особый. Его размер составляет 2,9х4,4 метров, что в сумме дает 13м2 полезной площади. В нем кровати расположены у противоположных стен. Между ними помещается небольшой столик. В комнате присутствует рабочий стол и небольшой диванчик для приема гостей. |
||
Ознакомьтесь с вводной статьей про дизайн комнат.
Спальня для девочки-подростка — Современный фермерский дом для Лии
Современный дизайн этой спальни для девочки-подростка в фермерском доме одновременно прост и изыскан. Идеальное место, чтобы расслабиться, поучиться и пообщаться с друзьями!
Пятая (и последняя!) Спальня, которую я спроектировал для своих детей, наконец-то закончена! Если вы пропустили остальные четыре, взгляните на них — Креативную спальню Аддисона, спальню Мейсона в старинном школьном здании, Промышленную хоккейную спальню Райана и спальню мальчика-подростка Итана.
Если вы здесь какое-то время, вы, возможно, помните самое первое полностью декорированное пространство в нашем новом доме — спальню Лии для девочек-подростков.
Мы с Лией начали планировать эту комнату вместе почти сразу после того, как подписали документы на дом. Ей было 9 или 10 лет, и ее комната выглядела потрясающе! Перенесемся на 3 года вперед, и она решила, что переросла фазу бирюзового и кораллового тонов, и ей нужно пространство, которое было бы немного более взрослым.
Эта девушка очень похожа на меня тем, что любит менять комнаты со своими братьями и сестрами. (Я делал это ВСЕ время в детстве!) Она начала в спальне с балконом, но поменялась местами с Мэйсоном на большую спальню с крошечным шкафом.За короткое время она решила, что скучает по гардеробной, поэтому поменялась местами с Адди. Но однажды увидев, насколько классной была комната Адди, когда я все обставил и украсил, Лия захотела вернуть большую комнату и смогла легко убедить Адди обменяться с ней — решение, о котором Адди однажды пожалеет! Так что если вещи в этой комнате покажутся вам немного знакомыми, это потому, что я сказал Лии, что она может поменяться местами с Адди, если мебель не будет перемещена! Вот как сейчас выглядит ее спальня для девочки-подростка .
.. и в ближайшее время я не увижу ее торговых площадей!
Идеи комнаты для девочек-подростков
Позвольте мне сказать, что спроектировать спальню для подростка с собственным мнением сложно.Мне кажется, у Лии в голове был план, который в основном обрисовывал в общих чертах то, чего она не хотела . Хорошие сотрудники Target могли знать меня по имени, так как я совершал так много попыток купить (, а затем вернуть ) декор, который, как я думал, Лии понравится!
Только когда мы бросили школу и поехали в ИКЕА, она наконец смогла показать мне примеры того, что она хотела — современный фермерский дом! Ей понравился мягкий, нейтральный, мягкий вид современного фермерского дома, а не смелые черно-белые, как я думал, после всего этого времени!
Имея это в виду, я приступил к работе! Разрешите провести небольшую экскурсию —
* Для удобства покупок ниже приведены партнерские ссылки на продукты, представленные здесь.
Декор спальни для маленьких девочек
Я купила эту кровать некоторое время назад, и она напомнила мне кушетку, которая была у меня, когда я была маленькой девочкой! Два круглых стола были украдены из моей гостиной — я думаю, они в любом случае лучше смотрятся в этом пространстве!
Мы свели количество подушек к минимуму, добавив немного твердых тел и текстуры.
Рядом с ее кроватью я добавил полку….
… и круглый журнальный столик.
Я сохранил обе эти детали по минимуму, чтобы они не выглядели переполненными или загроможденными.
Эта комната на самом деле считается медиа-комнатой на плане этажа нашего дома, поэтому это большое пустое пространство, предназначенное для объемного звука, но в нем нет туалета! Быстрая поездка в IKEA устранила эту проблему с этим большим гардеробом, который отлично работает!
Ситуация с ковриком была той частью, по которой мы больше всего не соглашались — это было так сложно! Я попробовала 3 разных ковра в этом помещении, которые выглядели не очень хорошо — это единственное, в чем мы оба согласились.
Я все время говорил Лии, что ковер, который нам дала тетя Меган, который не использовался, вероятно, будет идеальным, но Лия настаивала, что ей это не нравится.Я сказал ей, что мы должны просто попробовать, поэтому в прошлую субботу она наконец согласилась посмотреть, как это будет выглядеть.
Будучи упрямой (как ее отец, а не я!), Она все еще настаивала, что «ненавидит это».
Мне не только казалось, что он отлично выглядит, но и то, что этот коврик был бесплатным. Но Лия убедила себя, что коврик выглядит ужасно, и НИЧЕГО не передумала…
… пока она прожила с ней выходные и наконец то пришла в себя!
В понедельник она сообщила мне, что ей действительно очень понравилось… очень!
Уф! (И еще, я вам так говорил.)
Все вокруг кровати так красиво сложилось, но я добавил серые занавески, чтобы привлечь внимание вверх, чтобы не было слишком тяжелым дном. Это было связано с серыми подушками и оказалось прекрасным завершающим штрихом всей этой ситуации с кроватью!
На противоположной стене я поставил комод от IKEA, который, возможно, вы видели на IG. Это заняло ЧАСЫ! Но посмотрите, как мило это выглядит, значит, оно того стоило! Лия хотела, чтобы в кадрах были черно-белые изображения двух ее любимых городов — Рима и Парижа.
В Shadowbox есть ее первая пара балетных туфель и несколько ее фотографий в танцевальном классе, когда ей было 3.
Рядом с комодом находится читальный уголок Лии с журналами. Потому что # подростки.
И последнее, но не менее важное, это стол Лии. Лия хотела, чтобы он был максимально минимальным и лишенным беспорядка. Посмотрим, как долго это продлится. 🙂
Как вы думаете?
Купить в этом пространстве
Занятые мамы, это для ВАС!
Наш еженедельный информационный бюллетень предоставляет эксклюзивный доступ к нашим любимым проектам, рецептам, бесплатным материалам для печати и многому другому!
ПодписатьсяПлан дизайна спальни подростка Ханны
Опубликовано 22 апреля 2020 г. Этот план дизайна спальни подростка полон красивых, приглушенных цветов, личных штрихов и причудливой атмосферы, которая является классической и немного драматичной.
Спальня девочки-подростка должна отражать ее стиль и интересы, но при этом быть вневременной, чтобы она нравилась ей в подростковом возрасте.
С чего все началось
Я помню свой первый дизайн комнаты, который я когда-либо делал для Ханны… ее детской. Прошло пятнадцать лет, но я до сих пор помню каждую деталь этого милого маленького пространства. Более того, я помню то чувство умиротворения, которое я испытывал, находясь там. Именно тогда я влюбился в дизайн, потому что стал свидетелем воздействия хорошо оборудованного, тщательно продуманного пространства.Чтобы дать вам представление о том, с чего я начинал в дизайне, вот постельное белье Wendy Bellissimo Sir Leapsalot, от которого я потеряла сознание и использовала в детской Ханны. Излишне говорить, что я прошел долгий путь!
У обеих моих девочек всегда были милые комнаты, наполненные личными деталями и элементами дизайна. Но с тех пор, как полтора года назад мы переехали в наш «вечный дом», я не трогал их спальни.
Их комнаты наверху, а мы внизу, и покупка дома, полного проектов, помешала мне сосредоточиться на проектировании их пространств в этом доме.
Я также думаю, что я как бы избегал дизайна комнаты Ханны, потому что я знаю, что это последняя комната, которую я когда-либо спроектировал для нее, пока она находится под нашей крышей. В следующем году она пойдет в старшую школу, и я с трудом могу дышать, думая о том, как быстро все идет. Я знал, что так и будет, и наслаждался каждым моментом. Тем не менее, я не могу поверить, что это последний дизайн комнаты. Я вкладываю в это свое сердце и душу и трачу столько времени, сколько мне нужно, чтобы понять это правильно.
* Этот пост содержит партнерские ссылки, которые не влияют на вашу стоимость, но дают небольшую комиссию для меня и моей семьи.Спасибо!Дизайн-план спальни для девочки-подростка
Я очень рад закончить комнату Ханны, потому что хочу подготовить ее к успеху в старшей школе. Мы прошли долгий и сложный путь, чтобы довести ее до этого момента, и я полон решимости предоставить ей мирное, организованное пространство, в котором она будет процветать в течение следующих четырех лет. Итак, без лишних слов, вот план дизайна спальни подростка Ханны.
Когда я создаю мудборды для собственного дома, я редко включаю такие детали, как мебель и планировка.Вместо этого я создаю то, что называю «досками концептуального дизайна», потому что мне нужна только структура, цветовая палитра и ощущение пространства, чтобы конкретизировать конечный продукт.
Включите JavaScript для просмотра содержимогоНапример, я знаю, что изголовье Ханны будет выполнено из темно-серого / сливового бархата (представленного образцом сливовой краски выше). Но вы заметите, я даже не поместил кровать в мудборд.Я также знаю, что она хочет где-нибудь в комнате проверить буйволиц, поэтому я приложила изображение одеяла в клетку буйвола. Однако этот стоит более 100 долларов, поэтому я добавлю этот узор на пододеяльник за небольшую часть стоимости. Мне нравится, чтобы мои дизайны были достаточно плавными, чтобы их можно было менять на лету, позволять одному решению информировать другое и в конечном итоге получить уникальный, индивидуальный и красивый результат при ограниченном бюджете.
Я уже сделал ей индивидуальную доску для булавок, сшил ей юбку со складками и раскрасил винтажные прикроватные тумбочки из чиппендейла.Я почти закончил работу с кораблями, и вчера пришла ткань ее изголовья. Итак, комната приближается к завершению, но еще многое предстоит сделать, прежде чем мы сможем дополнить аксессуарами и пересечь финишную черту.
Что сделано:
Что осталось:
- Добавьте встроенный стол под окном
- Создать скрытую дверь для доступа на чердак
- Добавить коронный молдинг
- Тонкое покрытие потолка и рисунок краски
- Покраска всей обшивки и дверей в бежевый цвет
- Создать мягкое изголовье
- Установить иллюминаторы
- Заменить верхний вентилятор
Вдохновение
Сразу же Ханна поняла, что ей нужен шип.В остальном она не знала, в каком направлении должна идти ее комната. Входит взволнованная мама-дизайнер, которая не может дождаться, чтобы помочь дочери понять ее стиль. Мы просмотрели Pinterest (принесите со мной булавку!) И сделали несколько вдохновляющих картинок, которые помогут нам наглядно.
Обработка стен | Именно этот дизайн спальни убедил Ханну, что вертикаль — это лучший вариант для шиплэпа.
Дизайн: Amber Interiors | Автор фотографии: Тесса Нойштадт
Цвет отделки и стен | Нас обоих действительно привлекала контрастная отделка с белыми стенами, которая украсила ее маленькую комнату.
Изображение предоставлено: Content and Co.
Цветовая схема | Мы пробовали разные цветовые схемы для Ханны на протяжении многих лет, но всегда возвращаемся к некоторым вариациям лаванды. На этот раз мы добавим много других бесплатных приглушенных цветов!
Дизайн: Эмили Хендерсон
Итак, это план дизайна подростковой спальни Ханны! Я рада взять вас с собой для всех проектов (их так много в ее комнате) и творчества в этом пространстве. И чтобы освежить вашу память (или увлечь вас, если вы здесь новичок), вот с чего мы начали, когда впервые купили этот дом:
Перед
Комната Ханны, когда мы купили дом.
Следите за обновлениями ПОСЛЕ!
богемная спальня, гламурная комната для девочек-подростков, комната с одной комнатой
Любите бохо-гламур? Этот план спальни в стиле гламурной богемы — это то вдохновение, которое вам нужно, чтобы без труда объединить два мира в непринужденной, смешанной ретро-богемной атмосфере с шикарным гламуром.
Я чувствую Де-Джа Вю! И снова я принимаю участие в конкурсе One Room Challenge (также известном как ORC), организованном Calling It Home! Для тех из вас, кто, возможно, не слышал об этом, ORC — это онлайн-мероприятие для блоггеров, которое объединяет тех, кто любит дизайн, и предлагает им преобразовать комнату всего за шесть недель.Да, вы не ослышались — шесть недель!
Хотите быть в курсе прогресса? Здесь все в порядке!
неделя1 | неделя2 | week3 | week4 | week5 | week6 |
Это мой четвертый ORC на сегодняшний день. Раньше я создавал многоцелевую столовую / игровую комнату, красочную игровую комнату в стиле ар-деко и современное эклектичное фойе. На этот раз я беру спальню для девочек-подростков , что также случается с самыми маленькими и комнатами с самой неудобной планировкой в моем доме.Я очень рад начать работу, так что приступим!
До
Я переделывал эту комнату в прошлом. Прошло несколько лет, а потребности моей падчерицы теперь совсем другие. В свои 15 она увлекается макияжем (у нее УДИВИТЕЛЬНЫЕ навыки), одеждой, своими друзьями и чирлидингом, а уж тем более зебровым принтом, пением, бирюзовым цветом и куклами American Girl.
Место на столе не способствует выполнению домашних заданий ИЛИ макияжу.
Пора перемен!
Уже около года мы обдумываем различные элементы дизайна — цветовую схему, аксессуары и постельные принадлежности.Ей нравится? Симпатичные вещи, с непринужденной, «собранной» атмосферой, и девушка ЛЮБИТ ананасы. Ей нужна комната, которая отражает все это, не говоря уже о полноразмерной кровати. Встроенная кровать подойдет!
Не помешало бы и место для домашних заданий. Мы хотим, чтобы ее комната здесь была заполнена вещами, которые она любит, и чтобы она оставалась настоящей — веселой, немного необычной, игривой и великолепной!
Вот некоторые из идей, которые я собрал для этого места. При закреплении, пожалуйста, приколите из оригинального поста — фото ссылки на оригиналы.
через
через
через
через
через
через
через
зрение? Серые и серебристые тона смешались с мягкими пастельными тонами, новый встроенный шкаф-купе. Значительное место для макияжа / домашней работы. Средние древесные тона с элементами гламура и богемного стиля. Другими словами:Что такое Bohemian Glam, спросите вы?
Bohemian Glam = гламур 60-х с современной богемной утонченностью
Итак, вот чего я надеюсь достичь:
Teen Girls Glam Bohemian Bedroom
TODO:
Я не могу дождаться, чтобы начать — прошло шесть недель быстро, особенно с полным списком DIY-проектов! К счастью, я уже начал, просто взявшись за дизайн! Надеюсь, ты вернешься и пойдешь за мной!
Glam Boho Bedroom Inspiration
Создайте уголок для кровати в своем шкафу
Сделай сам люстра из искусственной ракушки Capiz
Огромное количество ананаса для домашнего декора для любителей ананаса
в шкафу из встроенного шкафаСпальня Glam Boho — Покупайте!
Потрясающие идеи спальни для девочек-подростков
Растущие подростки отличаются от детей.Подростки находятся в этом деликатном возрасте от детства до подросткового возраста. Их настроение на этом жизненном этапе может кардинально измениться. Им не будет интересно то, что они любили в детстве. Они полны новых идей и независимости и имеют свои собственные идеи по обновлению и дизайну своих комнат. Так что это хороший план — привлечь девочек-подростков к оформлению и оформлению их спальни.
*** Определите цвета: Вы можете позволить своим подросткам выбрать цвета для комнаты или позволить им выбрать тему для своего помещения и выбрать трафареты или виниловые наклейки на стены, которые также могут быть очень забавными для вас. подростки, в которых нужно участвовать.
*** Создайте место для времяпровождения: При оформлении спальни для девочек-подростков еще одна важная вещь, которую вы должны иметь в виду, — это создать место для общения с их друзьями. Сделать это не так уж и сложно. Достаточно простой зоны отдыха в углу комнаты. В этом возрасте ваш ребенок развил очень заметную социальную жизнь. Их личность очень индивидуальна, и начинают проявляться первые этапы независимости.
*** Стол для домашних заданий: В этом возрасте ящик для игрушек больше не нужен.Быть подростком — это не только игры, развлечения и вечеринки. Им также необходимо провести серьезную работу и учебу. Вы должны дать им стол и даже компьютер для домашних заданий.
Найдите идеальный взрослый, модный, очаровательный стиль и декор для своей идеальной спальни для девочек-подростков!
Цвета в этой комнате идеальны! Любите розовый, белый, серый и добавление натурального дерева! Белый меховой коврик делает эту комнату такой уютной и элегантной! Эта спальня слишком милая, не правда ли? Люблю сладкий акцент от подвесного кресла и подушек, обоев нежной расцветки. Это пространство полностью персонализировано, потрясающе и становится таким волшебным с дополнительным освещением — идеальная спальня для подростков! Очаровательные яркие цвета и потрясающая прикроватная тумбочка! Цветовое сочетание серого, розового и белого идеально подходит! Настенное искусство в рамке LOVE и настенное искусство в форме сердца станут отличным дополнением к спальне для девочек-подростков! Блестящий дизайн занавески, декоративной подушки и настенного орнамента в виде короны над кроватью — вот что главное в этом пространстве.Стильный, практичный, веселый, уютный и удобный — лучший выбор идей для спальни для девочек порадует ваших детей от малыша до подростка и всех остальных. Идеи дизайна маленькой спальни с двумя односпальными кроватями! Так потрясающе и притягательно! Меховые коврики и милые декоративные подушки добавляют тепла и элегантности! Очень люблю это! Уголок спальни с балдахином для чтения! Очень важно создать уютный уголок для чтения, чтобы подростки могли устроиться в своем собственном уголке и самостоятельно исследовать чудеса чтения.В то же время дизайнерский уголок для чтения может стать шикарным и удивительным украшением спальни! Розовый цвет и пушистый коврик выглядят так потрясающе и понравятся любому подростку. Эта детская спальня уже была красивой и демонстрирует силу освещения в ее убранстве. Это выглядит так сложно на первый взгляд, но так элегантно! Преимущество этого пространства — хорошо продуманные открытые полки и туалетный столик для макияжа. Сам стол довольно простой, с длинным неглубоким ящиком внизу.Настенные светильники вокруг зеркала достаточно простые, чтобы быть функциональными, но в то же время мягко декоративными. Это оформленное пространство станет любимым местом каждой девушки. Простая кровать из белого железа и постельное белье с цветочным рисунком — излюбленное место большинства девочек-подростков. Окно в пол дает достаточно света и яркости. Простой дизайн, но получается такой элегантный и теплый! Быть подростком — это не только игры, развлечения и вечеринки. Им также необходимо провести серьезную работу и учебу.Поэтому очень важно оформить спальню с кабинетом или рабочей зоной. Снимите декор божьей коровки из маленькой девчачьей спальни и украсьте эту девичью спальню индивидуальностью. Цветовая гамма кораллового и бирюзового будет популярным выбором. Создайте простую сцену с мягкими декоративными подушками, это будет веселый и функциональный маленький уголок для чтения! (Что-то простое) Цветовая гамма этой комнаты для девочек — грибно-бирюзовый и розовый! Коричневые облачные обои, светодиодная настенная живопись, веерообразный стул… все это пространство так хорошо сочетается друг с другом! Люблю это, люблю это так сильно! источник Простые способы добавить цвета во внутреннее пространство подростка.Он яркий и красочный! Гирлянда с кисточками и декоративные подушки так восхитительны. Просто добавить мгновенный всплеск цвета и вдохнуть жизнь в пространство, добавив один или два цветка. (Четыре дерзких обезьяны) Сделайте этот восхитительный горошек, пробив миллион маленьких кружков конфетти из блокнота или плотной бумаги, как наклейки на стены для украшения ваших подростков. Они выглядят такими причудливыми и простыми в изготовлении. Это также простой способ добавить в комнату ярких красок. Треугольные открывающиеся полки в спальне для девочек-подростков очень функциональны и служат хорошим местом для размещения предметов декора. Повесьте бумажные фонарики для вечеринок, просто забейте гвоздь в потолок, привязав к нему веревку — яркий и веселый проект по ремонту комнаты для девочек. Картина с изображением звездного неба над изголовьем кровати привносит живость в пространство этого подростка. Кофейный коврик так хорошо сочетается с постельным бельем и делает это пространство потрясающим! (творческий обмен) Если спальня вашего подростка достаточно большая, вы можете оформить зону отдыха с подвесным стулом из ротанга, подобным этому.Мне нравятся простые открывающиеся полки рядом, это отличное место для демонстрации ваших коллекций и украшений! (Руководство по блеску) Фиолетовый — основная цветовая гамма этого пространства, фиолетовые постельные принадлежности и обои… Даже если пространство для подростков недостаточно велико, вы также можете хорошо спроектировать его с творческой зоной обучения и отдыха. (отделка общежитий) Гэлбрейт и Пол Лотус обои в этой спальне. При оформлении детской комнаты нужно позаботиться обо всех деталях, потому что по мере взросления детей возрастает и их потребность в пространстве.Креативные открывающиеся полки сделают обстановку аккуратной и организованной, в то же время они могут стать отличным украшением пространства! (store.lynnchalk) На первый взгляд это пространство кажется таким простым: хрустальная лампа с белым абажуром на тумбочке, цветочные постельные принадлежности, небесно-голубые стены, картины на стенах в рамах… Мне нравится эта простота, она никогда не устаревает! (поддерживаю мою ремесленную привычку) Спальня этой девочки-подростка была украшена женственными розовыми, бирюзовыми и белыми узорами.А на подоконной скамейке красовались самые звездные детали лепнины. Обивка сиденья у окна, открывающиеся полки и встроенные ящики… делают это маленькое пространство таким потрясающим и удивительным! (Я организую сердце) Золотые и серебряные круги конфетти станут отличным украшением стен! Настенное искусство с буквой А и помпонами выглядят так очаровательно и притягательно! (хихикает) В комнате этой девочки-подростка мы использовали книжный шкаф Дженни Линд из The Land of Nod в лазурном цвете и розовый коврик Rags to Riches.Если вам также нравится эта мебель, проверьте здесь ссылку и подробности. (попсахар) Я люблю теплый меховой табурет и круглое зеркало в этом пространстве. Маленькая гирлянда из помпонов вокруг зеркала добавляет деталей и элегантности! (Притчи 31 девочка) Сам стол простой белый, а стул — из прозрачного стекла. Декоративная подушка с большим войлочным цветком, классная доска в цветочной рамке, открывающиеся полки с декоративными элементами завершают пространство! (дорогая, дорогая) Красочная декоративная подушка, белая круглая прикроватная тумбочка, черная железная кровать… Мне нравится эта простота! (дача кувшинок) Пастельные идеи для комнаты для девочек, дизайн комнаты для девочек в розовых и серых тонах, декор для детской, для детской комнаты для девочек! (instagram) Центральным элементом этой детской спальни является изголовье в форме павлина.Это выглядит так нежно и делает это пространство таким потрясающим и удивительным! СвязанныеКак дешево переделать комнату девушки-подростка | Руководства по дому
Воспитание подростка может быть стрессовым, не говоря уже о том, что это дорого, поэтому для этой новой комнаты или просто нового стиля вы можете дешево переделать комнату девочки-подростка, чтобы удовлетворить ее фантазии и ваш бюджет. Хотя девочки-подростки могут быть требовательными, определенно есть способы доставить удовольствие и им, и своему кошельку.Вовлекая их, работая с тем, что у вас уже есть, и тщательно спланировав, вы можете дешево переделать комнату для девочки-подростка в кратчайшие сроки и не выходить за рамки бюджета. Есть множество небольших способов переосмыслить предметы или украсить их рентабельными предметами.
Стиль
Самое главное, вы должны определить желаемый стиль или тему комнаты вашей девочки-подростка. Прежде чем остановиться на каких-либо идеях, посмотрим, что она скажет. Как только вы согласовали стиль, который показывает ее индивидуальность и соответствует вашим требованиям, вы готовы приступить к работе.Старайтесь избегать комнат, основанных на преходящих увлечениях, таких как определенные музыкальные группы или телешоу, если ваш подросток не настроен на это категорически. Это будет недешево, если придется менять его каждый год. Поэтому выберите классическую или вневременную тему, которая надолго останется. Если вы собираетесь красить, сначала сделайте это, чтобы не испортить мебель или предметы декора.
Крупные предметы
Крупные предметы в спальне — это, конечно же, кровать, сиденья и места для хранения вещей, такие как комоды, шкафы и туалетные столики. В первую очередь работайте с тем, что у вас есть, поскольку мебель всегда стоит дорого.Простая кровать с изголовьем и изножьями определяет комнату. Уберите матрасы с пола с помощью недорогого каркаса кровати. По возможности отцентрируйте кровать в комнате, чтобы обеспечить естественный поток, который кровать может закрепить. Перекрасьте, отремонтируйте или украсите существующую мебель перед покупкой чего-то нового. Все крупные предметы мебели должны быть модными и функциональными.
Принадлежности
Используйте то, что уже есть у вашей дочери-подростка, чтобы украсить ее комнату аксессуарами. Декоративные элементы не обязательно должны быть дорогими.В комнатах, оформленных в музыкальной тематике, используйте обложки альбомов или даже сами старые винилы для обивки стен, обивки мебели или уникального украшения потолка. Повесьте одежду или вешалки на стены, чтобы сочетать моду с функциональностью, демонстрируя значимую или модную одежду. Используйте простые средства для окон, например, две оконные шторы из недорогой ткани, чтобы контролировать свет в комнате и одновременно маскировать оконную раму. Свечи, часы, держатели для ювелирных изделий и книги могут быть полезными предметами и акцентом на полках и мебели.
Хранилище
Как бы вы ни украсили комнату, если она захламлена мусором, одеждой и беспорядком, никто этого не увидит. Используйте контейнеры для хранения под кроватью для легкого доступа и недорогих вариантов хранения. Экран или небольшая перегородка для комнаты — дорогой вариант для разделения пространства и укрытия для более крупных предметов. Расположенный в углу экран может создавать ощущение гардеробной, фактически маскируя хранящиеся предметы.
Ссылки
Writer Bio
Рики Андромеда пишет с 1999 года.Его статьи публиковались на различных веб-сайтах, специализирующихся на бассейне, искусстве, охоте, антиквариате, обустройстве дома, химии и азартных играх. Он имеет степень бакалавра искусств по английскому языку в Университете штата Луизиана, а также получает степень магистра изящных искусств в области письма в Университете Арканзаса.
Идеи декора комнаты для детей старшего и подросткового возраста
Часто старшие дети и подростки недовольны идеями своих родителей об декоре детских комнат. Родители должны сотрудничать с молодыми взрослыми, предлагая помощь и поддержку детских идей, любимых цветовых схем оформления и современного дизайна подростковых спален.Дети-подростки по-прежнему остаются детьми, но они не хотят, чтобы с ними обращались как с детьми, поэтому предоставление им возможности разрабатывать концепции декора подростковой комнаты и выбирать цвета украшения спальни — лучший способ поддержать их идеи украшения интерьера.
Это декор подростковой комнаты, он должен быть привлекательным и удобным для подростков. Дизайн подростковой спальни должен включать в себя стильные идеи росписи для их спальни, современные аксессуары для декора подростковой комнаты и современную мебель для подростковой комнаты, особенно дизайн мебели для подростковой комнаты для эффективной и функциональной организации пространства.(Об эргономичной мебели для спальни для подростков.)
Уважать вкусы и предпочтения подростков не означает оставлять их в покое, чтобы экспериментировать с идеями украшения интерьера. Родители могут предлагать подросткам журналы по дизайну интерьера, обсуждать с подростками современный дизайн подростковых спален и модные цветовые схемы оформления интерьера, покупать стильные аксессуары для декора подростковой комнаты или помогать подросткам создавать предметы декора для своих комнат. В Интернете также есть много отличных дизайнов подростковой спальни.
Хорошая идея уделить время разработке идей декора детской спальни.Это поможет подросткам узнать больше и доработать цветовую схему оформления интерьера и дизайн подростковой спальни. Поддержка хотя бы того, что нравится вашему подростку, поощряет сотрудничество.
Мебель для подростковой спальни
Позвольте вашему сыну или дочери спланировать расстановку мебели в подростковой комнате. Книги и статьи по декорированию интерьера, в том числе советы по оформлению дома, которые являются краткими справочниками по дизайну просторной и удобной подростковой комнаты, помогают понять основные принципы создания функциональной современной подростковой спальни.Они могут помочь вашим подросткам изменить дизайн своих спален, разработав функциональную компоновку мебели и создав больше пространства и комфорта.
Акценты в декоре спальни для детей старшего возраста
Устройство уникальных книжных полок, украшающих дизайн, и украшение окна самодельными шторами — отличные идеи для украшения подростковой спальни.Интересные проекты украшения макияжа могут добавить индивидуальности пространству. Помощь родителей и свежие идеи подростков в сочетании с оформлением подростковых комнат дают отличные результаты, сближая всех членов семьи.
Рекомендовано:
Отделка интерьера от комнаты малыша до комнаты подростка
Комната мальчика подростка, организация функционального пространства
Отделка стен спальни черного цвета для подростков
, автор — Эна Русс
04.10.2016
идей переделки спальни подростка | Приманки и кружево
Бюджетный ремонт подростковой комнаты
Как переделать спальню девочки-подростка, если у вас ограниченный бюджет и / или это действительно МАЛЕНЬКАЯ спальня? Ниже приведены несколько дешевых способов украсить спальню девочки-подростка, которая мне очень нравится!
Спальня подростков — их убежище, где они проводят практически все свое время. Конечно, это для сна … но это также для домашних заданий, тусовок и многого другого. Если вы родитель, который хочет заново украсить свою комнату для подростков, убедитесь, что ваш первый шаг — спросить ИХ, что они хотят от своей новой комнаты.Это должно быть больше, чем просто спальня. Это единственное место, где они могут свободно выражать свои мысли.
Так как же сделать своей спальней потрясающей?
Что ж, продолжайте читать, и вы найдете способы украсить, о которых даже не думали. Я собрал несколько потрясающих идей и изображений, которые помогут вам создать спальню своей мечты!
Сделаем вашу спальню СОБСТВЕННЫМ «счастливым местом»!
Пришло время преобразить вашу спальню!
Схема подростковой спальни
прекрасный беспорядок.comВы должны начать с рисования плана вашей спальни и добавить окна и двери в планы вашей спальни. Неважно, маленькая у вас спальня или большая спальня. Вам нужно будет выяснить, сколько места у вас есть в разных областях, чтобы сделать вашу новую спальню более функциональной, а также позволить вам создать больше места там, где это необходимо.
Если вы хотите получить дополнительную техническую информацию, вы можете измерить расстояние между окнами и дверьми, измерить свою кровать, комод, тумбочки, стол или любую другую мебель, чтобы вы знали, где она поместится, когда вы ее переставляете или получаете ли вы новую. мебель, вы будете знать, какой размер кровати выбрать и какие дополнительные предметы мебели покупать или не следует.
Вы можете использовать миллиметровую бумагу и нарисовать план своей спальни, а также нарисовать и вырезать предметы мебели в своей комнате, чтобы выяснить, как вы разместите их, чтобы спроектировать свою новую спальню.
Темы для подростковой спальни
Выбор темы для спальни, на которой вы сможете оформить свой следующий шаг. Вам следует выбрать что-то, что позволит вам продемонстрировать вашу уникальную личность. Выбор постельного белья в первую очередь позволит вам подобрать цвета краски и декор, которые будут соответствовать вашей новой теме.
Есть много вариантов выбора темы для новой спальни!
Красивое пуховое одеяло с пододеяльником , подобное этому , также позволяет изменить вашу тему.
Вы можете выбрать стильный стиль в стиле ретро или нейтральный уютный деревенский стиль. Оба они предлагают МНОЖЕСТВО разных способов добавить в вашу спальню много отличного декора.
Цвета спальни подростка
Покраска стен в спальне с самого начала придаст всей комнате свежий вид.Если вам нравятся темные, смелые цвета, вы можете добавить в комнату акцентную стену , такую как эта , и сделать другие три стены более светлыми, чтобы выделить вещи.
Окрашивание всей комнаты в темный цвет может сделать ее меньше, если вы не добавите светлую мебель или декор.
Вы также можете покрасить потолок в однотонный цвет, в полоски или шеврон, чтобы придать комнате яркость!
Мебель для спальни подростка
Если вы выбираете новую мебель, перед выбором основного каркаса кровати необходимо учесть несколько моментов.
Одно из них заключается в том, что новая мебель, которую вы покупаете, может быть той, что берется с собой при переезде, поэтому стандартный мебельный гарнитур, такой как этот , который прослужит долгие годы, всегда является разумным решением.
Другой вариант: если друзья часто бывают в гостях, вы можете добавить в комнату двухъярусную кровать , например, этот , или симпатичный футон , например, один из этих , чтобы было дополнительное место для сидения и сна или…
Купите прохладную двухъярусную кровать с местом для стола под , чтобы освободить еще больше места!
Футон , такой как этот , может также использоваться как небольшая «гостиная» в их комнате.Который, как мы все знаем, супер круто иметь в своей спальне в подростковом возрасте!
Если вы сохраняете мебель, которая уже есть в вашей комнате, и хотите ее изменить, вы можете ее переделать! Покрасьте старую мебель или перекрашивайте ее, чтобы придать ей свежий вид! Если в вашей комнате или доме есть неиспользуемая мебель, подумайте, как бы вы могли ее перепрофилировать. Превратите старый комод в скамейку для хранения вещей или старый стол в туалетный столик для макияжа.
Декор для спальни подростка
Всегда оставляйте лучшее напоследок!
Украшение спальни в подростковом возрасте — изюминка интерьера.Это та часть, где вы можете выбрать предметы для своей комнаты, которые соответствуют вашей индивидуальности и показывают, кто вы и что любите.
Вы можете повесить картин, таких как одна из этих , или наклеить симпатичные наклейки на стены , такие как эти , на стены в стиле, который соответствует вашим личным предпочтениям.
Добавление декора в спальню — это не то, что нужно делать сразу, это то, что вы можете приобрести со временем, поэтому каждая вещь в вашей новой комнате — это именно то, что вам нужно!
Идеи декора спальни своими руками
[su_divider style = ”double” divider_color = ”# 2d3190 ″ link_color =” # ff6666 ″ size = ”5 ″ margin =” 20 ″]
.


В комнате должно гармонировать все: обои, шторы, аксессуары, мебель и т.д. Дизайнер нашей компании может дать полную свободу выбора ребенку либо прийти к единому решению.
Это может быть мебель-трансформер;
При этом вовсе необязательно делать все оформление зеленым, как на третьем фото внизу.
Использование его в спальной комнате девочек сделает их отдых более спокойным и приятным.
Обратите внимание, что стены окрашены в светло-розовый цвет, который можно назвать пюсовым. Мебель для помещения в розовых тонах может быть обычной. Ее фасад можно сделать в цвет стен.
Полезная площадь почти на 2м2 больше, чем в предыдущем варианте, хотя пользы от нее не так много. Я больше чем уверен, что она скрадывается из-за того, что помещение не квадратное. Использование светлых цветов обязательно.
Его размер составляет 2,9х4,4 метров, что в сумме дает 13м2 полезной площади. В нем кровати расположены у противоположных стен. Между ними помещается небольшой столик. В комнате присутствует рабочий стол и небольшой диванчик для приема гостей.