Переделка 2 комнатной квартиры в 3 х комнатную. Двухкомнатная хрущевка: переделка
You are here
Главная » Новости
31.10.2019 в 06:46
Новости
Содержание
- Переделка 2 комнатной квартиры в 3 х комнатную. Двухкомнатная хрущевка: переделка
- Перепланировка 2-х комнатной квартиры в панельном доме. Дизайн двухкомнатной квартиры: оптимизация пространства с помощью зонирования и перепланировки
- Как спланировать пространство двухкомнатной квартиры?
- Перепланировка из 2-х комнатной в 3-х. Плюс один: 2 проекта перепланировки квартир с появлением дополнительной комнаты
- проект перепланировки 2х комнатной квартиры:
- проект перепланировки 3х комнатной квартиры:
- Планировка 2 комнатной квартиры брежневка. Немного истории
- Перепланировка хрущевки. Идеи перепланировки
- Планировка 2-х комнатной квартиры 60м2. Дизайн двухкомнатной квартиры 60 кв. м: перепланировка, реорганизация или небольшой ремонт?
- С чего начать преобразование двухкомнатной квартиры
- Разновидности планировки 2-комнатных квартир и степень возможного преобразования
- Видео перепланировка 2 комнатной квартиры в 3 комнатную
Переделка 2 комнатной квартиры в 3 х комнатную.
Двухкомнатная хрущевка: переделкаВ постройках тех лет двухкомнатных квартир гораздо больше, чем однокомнатных, но проблемы у них одни и те же: малые площади и не продуманное расположение комнат, с наличием проходных помещений. Если заняться перемещением стен, то большинство проблем оказываются решаемыми. Например, имеется возможность разделения смежных комнат, после чего можно из двухкомнатной квартиры сделать и трехкомнатную. Для этого достаточно смонтировать еще одну перегородку, которая отделит комнату от коридора. В результате появляется дополнительная полезная площадь, где можно разместить гардеробную и кладовку. Полученное таким образом второе помещение более длинное и более узкое, разделяется на две части, посредством перегородки из гипсокартона.
На фото ниже представлен второй вариант неудачного планирования жилого пространства тех времен. Здесь, чтобы попасть во вторую комнату, необходимо пройти через первую. Планировка настолько неудачная, что, мало того, что малые площади, еще и появляются и мертвые зоны, что искажает функциональность комнат.
Иногда, в торце второй комнаты располагают кладовку, которая не может быть использована в полной мере.
После переделки по этому варианту, ванна приобрела квадратную форму, а прихожая соединилась с первой комнатой. В данном случае, она выполняет роль гостиной, из которой сформирован вход в кухню. Следующее, более дальнее помещение разделено на две спальни. Перегородка между двумя спальнями смонтирована таким образом, чтобы осталось место для небольших гардеробных одной и другой спален.
Обычную двухкомнатную хрущевку в панельном доме, возможно превратить в квартиру студию, объединив гостиную и кухню. Основная задача подобной переделки состоит в том, чтобы сместить входные двери. За счет этого большая прихожая послужит в качестве гардеробной. При этом, объединяются туалет и ванна, а кухня и гостиная объединяются за счет частично разобранной перегородки.
Если имеется желание, то вторая комната может быть разделена на две части, за счет перегородки из гипсокартона, что позволит разделить рабочую и спальную зоны.
Чтобы в спальню проникал свет, перегородку достаточно поднять на высоту не больше 1,5 метра.
Достаточно интересный вариант переделки 2-х комнатной квартиры в 3-х комнатную. Здесь прихожая немного скошена, что дало возможность увеличить площадь санузла, а перегородка, которая установлена между кухней и комнатой, частично удаляется. Вторая комната разделяется на 2 части, площадь которой увеличивается за счет кладовки и стенного шкафа. В результате образовались 2 спальни, а так как квартира угловая, то в каждой из спален имеется свое окно.
Коридор принял интересную форму, так как его стены располагаются по диагонали. В результате получается неплохой вариант, хотя функциональность коридора значительно снижена.
Перепланировка 2-х комнатной квартиры в панельном доме. Дизайн двухкомнатной квартиры: оптимизация пространства с помощью зонирования и перепланировки
Двухкомнатные предложения всегда будут востребованы, поскольку в относительно недорогой квартире может комфортно проживать один владелец и небольшая семья.
Дизайн-проект двухкомнатной квартиры лучше заказать у специалиста. Но, ознакомившись с удачными примерами, можно попытаться самостоятельно воплотить мечту об идеальном жилье, хотя это представление у каждого свое. Практика показывает, что на стыке нескольких чужих идей рождается эксклюзив, особенно если воспользоваться советами именитых дизайнеров.
В относительно недорогой квартире может комфортно проживать один владелец и небольшая семья
Двухкомнатные квартиры очень востребованы на рынке
Дизайн такой квартиры лучше заказывать у специалиста
Как спланировать пространство двухкомнатной квартиры?
Размышляя о выборе дизайна интерьера двухкомнатной квартиры, важно учитывать все «плюсы» и «минусы» небольшой жилплощади. Тут особо «не разгуляешься», приходится в каждом помещении совмещать функциональность разных комнат.
С другой стороны, компактное жилье – меньше затрат на ремонт и отопление. На основе этой экономии можно позволить себе покупку более дорогих отделочных материалов и встроенную мебель по индивидуальному заказу.
Это позволит оптимизировать каждый сантиметр полезной площади.
При перепланировке и реорганизации пространства у дизайн-проекта двухкомнатной квартиры должны быть обозначены все основополагающие функциональные зоны (с вариантами):
При создании дизайна стоит учитывать все недостатки малой площади
Компактное жилье – меньше затрат на ремонт и отопление
ТАБЛИЦА
1. | Прихожая | Отдельное помещение, часть коридора с раздевалкой и зеркалами (2-3 метра у входной двери), объединенное пространство без перегородки с гостиной |
2. | Гигиенические комнаты | Объединенный санузел, душевая с поддоном без ванны + отдельный туалет, раздел условной перегородкой санузла, блок стирки в туалете, ванная с раковиной |
3. | Зона сна и отдыха | Полноценная спальня, отделена часть гостиной + детская, 1 спальное место в кухне на раскладном диване, большой диван с раскладкой в гостиной |
4. | Рабочее место | Многофункциональный компьютерный (рабочий) стол, легкие стеллажи с откидной столешницей по ноутбук, угол с полками за обеденным столом |
5. | Пищевой блок | Полноценная кухня, демонтаж перегородки между кухней и гостиной с разделом барной стойкой или тыльной стороной дивана с высокой спинкой, небольшой блок кухонной техники в столовой зоне |
6. | Столовая зона | Часть кухни с компактным кухонным уголком, полноценный обеденный гарнитур в гостиной (стол + стулья), объединенная кухня с утепленной лоджией |
7. |
Перепланировка из 2-х комнатной в 3-х. Плюс один: 2 проекта перепланировки квартир с появлением дополнительной комнаты
Желание увеличить полезную площадь свойственно не только владельцам однокомнатного жилья. Хозяева 2х- и 3х-комнатных квартир в момент ремонта подчас стараются решить непростые задачи: как обеспечить членов семьи комфортным личным пространством + найти место для хранения всех вещей + создать комнату для общения и приема гостей.
Например, есть две комнаты, а требуется три. Причем, это не прихоть, а реальная потребность! Но есть и хорошая новость: если квартира расположена в новостройке — сделать «умную» перепланировку практически всегда возможно, учитывая современные параметры соотношения общей и жилой площади — 2:1.
Кое-кто в такой момент обращается к профессиональным дизайнерам, а другие пытаются сделать перепланировку самостоятельно. Что бы вы ни выбрали, вам, несомненно, будет полезен опыт заказчиков дизайн-студии «Градиз» из Екатеринбурга. Решения, которые мы включили в этот виртуальный тур, полностью подтверждают профессионализм авторов и расшифровку названия компании — «грамотный дизайн».
Двухкомнатная квартира трансформировалась в трехкомнатную, а трехкомнатная — в четырехкомнатную. Кроме интересных планировочных решений (вы увидите в каждом проекте также по 3 дополнительных «рабочих» варианта перепланировки с расстановкой мебели), привлекает внимание тонкий подход к цветовой палитре и оригинальные декоративные элементы в современном стиле.
И что самое важное: обе квартиры выглядят уютно, но в них нет ничего лишнего! А это — гарантия того, что жилье не потеряет своего визуального простора и легкости после заполнения пространства вещами хозяев (как иногда случается на практике).
Рассмотрите 2 проекта перепланировки квартир в деталях и с планами — всего более 30 фотореалистичных картинок интерьеров и чертежей + наши пояснения к каждой ситуации.
__________________________
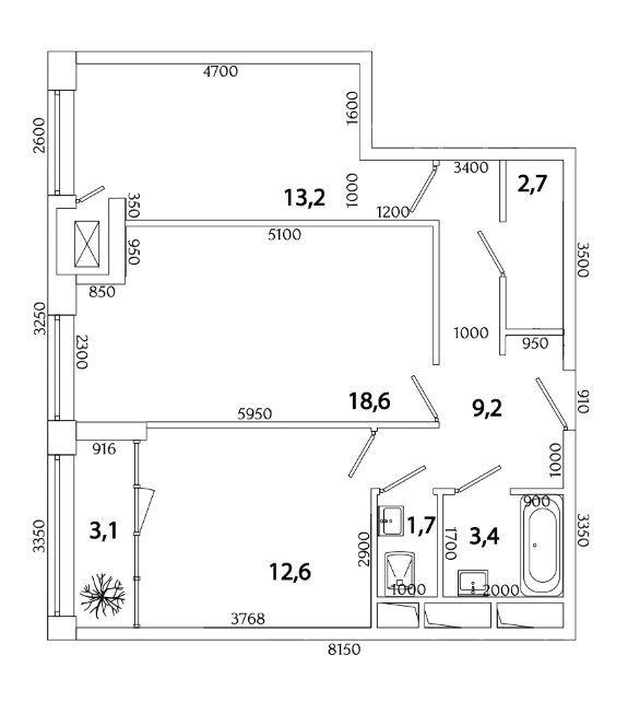
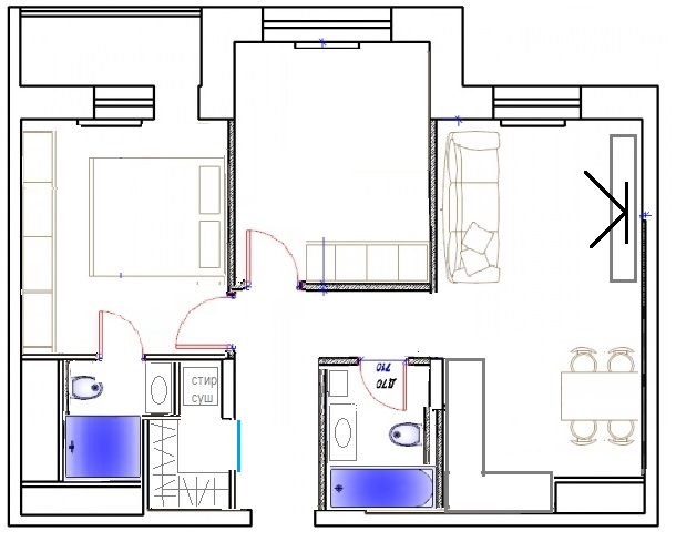
проект перепланировки 2х комнатной квартиры:
В исходном плане было 2 комнаты + 2 санузла, один из которых присоединялся к комнате. Заказчикам хотелось получить 2 полноценные спальни (хозяйскую с вместительным гардеробом и детскую с достаточным пространством для игр) + спальное место для гостей. Желательной была просторная кухня-столовая, а санузлы должны были четко разделяться на «гостевой» и «хозяйский».
Перед вами — результат работы дизайнеров, в данном случае — окончательный, принятый заказчиком, ниже — рабочие варианты перепланировки.
Обратите особое внимание на трансформацию фактически в 3х-комнатную квартиру.
Третья (необходимая для временного размещения гостей) комната — это гостиная, выделенная из пространства холла. Она невелика по размеру, но благодаря легкости дизайна и эффектному декору — модная каллиграфия (надписи) на стенах и эко-элементы — пространство выглядит совершенно не тесно. В отсутствие гостей она исполняет роль семейной комнаты для общения.
Детская комната имеет одного маленького хозяина, но, при желании, там можно разместить и второго ребенка (предусмотрено выдвижное спальное место).
В основу общей концепции интерьера положен средиземноморский стиль, учитывающий пожелания хозяйки: этно-мотивы + легкость обстановки.
другие варианты перепланировки:
Хотите быть с нами на связи каждый день? Добро пожаловать на нашу Планету Вдохновения Вконтакте! Загляните, пролистайте! Нравится? Присоединяйтесь и получайте вдохновение каждый день!
__________________________
проект перепланировки 3х комнатной квартиры:
Это кирпично-монолитный дом, довольно популярное решение среди современных новостроек.
До перепланировки здесь было 2 спальни и гостиная. Но, учитывая пожелание заказчиков сделать для каждого ребенка отдельное пространство, авторам проекта потребовалось «отыскать» еще одну комнату, причем, без ущерба для полноценной кухни-столовой. Родители желали иметь свой собственный санузел, а предназначенный для детей мог бы использоваться как гостевой. Также для всех членов семьи была бы очень кстати отдельная гардеробная комната, позволяющая «разгрузить» шкафы в спальнях.
Что сделали дизайнеры для выполнения пожеланий заказчиков:
- из двух спален сделали три, причем, на границе спальни родителей с детской использовали хорошо известное профессионалам решение — встроенные шкафы с двух сторон;
- длинный балкон разделили перегородкой на 2 части, одна из которых теперь относится к спальне родителей, а вторая заметно расширяет одну из детских комнат;
- объединенное пространство гостиной и кухни-столовой выглядит очень просторным, хотя ширина гостиной ограничена несущими колоннами, но, благодаря правильному зонированию, пространство выглядит хорошо сбалансированным и позволяет членам семьи отдыхать и общаться так, как они пожелают;
- из холла имеется вход в гардеробную и второй санузел (первый, как и пожелали заказчики, присоединяется к родительской спальне — в лучших традициях цивилизованных стран), от гостиной холл отделяется раздвижными перегородками.

Планировка 2 комнатной квартиры брежневка. Немного истории
Великая Отечественная Война разрушила многие города, поэтому сразу в послевоенный период главной задачей было обеспечить людям хоть какое-то жилье. Люди были согласны даже на общежития и бараки. Проходит несколько лет, и каждому рабочему человеку хочется получить уже собственное, отдельное жилье. Так появились стандартные пятиэтажные хрущёвки – довольно тесные и не всегда удачно спланированные квартиры, зато свои. Изначально планировалось построить их на сравнительно небольшой срок – 20-30 лет, исключительно для того, чтобы временно разместить людей, прежде чем удастся построить для каждого из них просторную и светлую квартиру. Увы, этому не суждено было сбыться.
Но спустя ещё несколько лет людям захотелось получить не только свои, но ещё и более просторные квартиры. К тому же усилился приток людей из деревень, где условия жизни были значительно хуже, чем в городах. Поэтому от строительства пятиэтажных зданий сразу перешли к возведению 8-9 и даже 12-16 этажных домов.
Именно они и получили название «брежневки», так как начали строиться с середины 60-х годов прошлого века.
Официально брежневками называют только квартиры в домах, построенных во время правления Леонида Ильича. Но на самом деле план строительства, иногда чуть измененный, а иногда и неизменный, широко использовался до середины 90-х. И даже сегодня инженеры не забывают об этих наработках, нередко используя их при строительстве.
Перепланировка хрущевки. Идеи перепланировки
Итак, основные проблемы перепланировки и ремонта в хрущевке обозначены. Теперь о конкретных идеях перепланировки.
Однокомнатные хрущевки
Казалось бы, что можно придумать, имея в качестве исходных данных однокомнатную хрущевку? Оказывается, можно и санузел увеличить и сделать отдельную спальню, по крайней мере, сделать перепланировку более удобной вполне возможно.
Типовая планировка однокомнатной хрущевки
Типовая планировка однокомнатной квартиры в хрущевке – это коридор, ведущий к кухне и «арка» в гостиную.
В некоторых сериях «арка» застраивалась, а проход в комнату располагался прямо напротив входной двери. Иногда проект предусматривал наличие кладовки. В угловых квартирах на длинной стене гостиной располагалось еще одно окно.
| Вариант перепланировки | Описание перепланировки |
Это вариант перепланировки, где «арка» застраивается и превращается в обычный дверной проем, функциональность гостиной в этом случае возрастает, так как вдоль увеличившейся в длину стены можно поставить, например, диван. Переносится и дверь в туалет, за счет скругления пространства прихожая становится просторнее. Теперь здесь может удобно разместиться угловой шкаф. Кухня остается без изменений.
| |
Здесь можно увидеть, что полностью сносятся все межкомнатные перегородки, в том числе перегородки санузла. Пространство полностью перестраивается. Санузел расширяется за счет коридорчика, теперь здесь достаточно места, чтобы установить стиральную машину.
| |
Еще один вариант трансформации пространства за счет прохода. В этом случае меняется ориентация ванной комнаты – она немного увеличивается по площади, но основной упор сделан на увеличение площади кухни. Она частично объединяется с гостиной за счет широкого проема, в котором можно установить раздвижные перегородки.
| |
Здесь много внимания уделено местам хранения, причем находится место и для двухспальной кровати, она никак не отделяется от зоны гостиной, но находится в уютном закутке.
| |
В этом варианте за счет переноса дверного проема в кухню расширен санузел, а точнее область ванны, часть стены скошена, благодаря чему получился полноценный дверной проем в гостиную. Пространство кухни существенно не оптимизировано.
| |
Здесь снесена перегородка между прихожей и гостиной. На этом месте стоит шкаф. Частично отсутствует перегородка между гостиной и кухней. Роль разделителя пространства выполняет барная стойка. Благодаря смещению столовой зоны из кухни в гостиную, кухня стала значительно просторнее. Кухонный гарнитур в этом варианте расположен буквой «Г» и занимает не только длинную стену, но и стену с окном.
| |
Даже такую маленькую квартиру как однокомнатная хрущевка можно сделать двухкомнатной при необходимости. Например, на этом плане можно увидеть, что в дальнем углу гостиной поставили кровать и прикроватную тумбу. Зона спальни отделена частичной перегородкой, чтобы оставить доступ для естественного освещения, так как спальня без окна. Кухонная и обеденная зона объединены единой столешницей. Проведено зонирование при помощи напольного покрытия. Есть места для хранения как в прихожей, так и в гостиной.
| |
В угловых хрущевках, где в комнате два окна, вариантов перепланировки больше, точнее из одной комнаты можно сделать две полноценных светлых комнаты с естественным освещением. На этом плане видно, что перегородка между кухней и гостиной снесена, но возведена новая перегородка, которая теперь делит комнату на две части.
| |
Этот вариант перепланировки похож на предыдущий, но вход в спальню – из гостиной. Зато в спальню можно заказать большой шкаф-купе, который решит проблему с местом для хранения. |
Планировка 2-х комнатной квартиры 60м2. Дизайн двухкомнатной квартиры 60 кв. м: перепланировка, реорганизация или небольшой ремонт?
Комфорт и современный дизайн квартиры – нормальное стремление людей, имеющих собственную недвижимость. Среди множества стилей, архитектурных замыслов и дизайн-проектов важно выбрать для своей семьи такой вариант, при котором деньги на ремонт не будут напрасно потрачены. Но и при минимальных затратах реально сделать эксклюзивный дизайн двухкомнатной квартиры 60 кв.м. Для этого важно разумно использовать все секреты реорганизации, перепланировки и зонирования пространства.
Важно организовать пространство максимально эргономично, комфортно, а главное удобно
С чего начать преобразование двухкомнатной квартиры
Не стоит затевать ремонт, пока не будет продумано все до мелочей в новом интерьере двухкомнатной квартиры 60 «квадратов». Важно представлять себе не только конченый результат, но и степень преобразований:
- Небольшой косметический ремонт.
- Капитальный ремонт с перепланировкой, с заменой коммуникаций и сантехники.
- Так называемый «евроремонт» с заменой столярки, новой облицовкой стен, потолка и пола.
- Дизайнерский вариант с зонированием, перегородками, многоуровневыми потолками, небольшими подиумами и оригинальным светодизайном.
При косметическом ремонте вполне возможен свой вариант дизайн-проект квартиры 60 кв.м, если использовать современные технологии и стройматериалы.
Варианты перепланировки квартиры зависят от того, кому она предназначается – одинокому мужчине или женщине, молодой семьи с детьми или престарелым людям
Если канализацию и водопроводные трубы недавно меняли, а полы и потолки без дефектов, то преобразования и расходы будут минимальными.
Главное – планировка, особенности которой невозможно игнорировать. При малых затратах на реконструкцию больше уделяют внимания зонированию и декору.
Двухкомнатная квартира, переделанная в квартиру-студию
Внимание! Метраж двухкомнатных квартир колеблется в пределах 50-72 м, в зависимости от планировки. Приемы визуального расширения необходимы только в малогабаритных квартирах.
Зеркальные поверхности зрительно расширяют пространство
Многоуровневые натяжные и подвесные потолки не рекомендуются при низкопотолочном варианте дизайн-проекта двух- и трехкомнатной квартиры 60 кв. м. Но если производилось выравнивание потолков, стен и полов в старых домах с последующим нанесением рельефного или многослойного покрытия – это отнимет часть полезной площади.
Разновидности планировки 2-комнатных квартир и степень возможного преобразования
Многоквартирные дома на территории СНГ принято делить по времени их происхождения на разные времена типовой застройки:
- «Сталинки» малой этажности, было построено немного, преимущественно в крупных городах.
Они отличаются высокими потолками, большой жилплощадью, небольшими балконом и красивым фасадом. Его нежелательно менять, если дома выходят на центральные улицы и в исторические кварталы. Столярка должна быть того же цвета, что и до замены, возможны ламинированные ПВХ окна под древесину. Основные преобразования касаются внутренней площади, включая перепланировку без сноса несущих стен.Высокие потолки позволяют организовать второй этаж в детской комнате
- «Хрущевки» – пережиток массовой застройки 60-70 годов ХХ века, самые маленькие и неудобные панельные квартиры. Типичны низкие потолки, проходные комнаты, маленькая прихожая и кухня. Большинство – не более 4-5 этажей, позже строились 9-этажки. Часто прорабатывают дизайн маленькой трехкомнатной квартиры 60 кв.м в панельном доме, стараясь расширить жилплощадь.
- «Брежневки» менее известны на рынке, но они стали чуть просторнее, расширились кухни, появились раздельные санузлы, но ванная осталась маленькой. Самые распространенные – однокомнатные и 2-комнатные квартиры.
В некоторых вариантах есть удобные лоджии, за счет которых нередко пытаются добавить площадь смежных комнат. - «Чешки», литовские дома и другие дома так называемой новой планировки стали более комфортным предложением с широкой прихожей. Приятным сюрпризом стала увеличившаяся кухня, но их метраж разный в 1-, 2- и 3-комнатных вариантах планировки. Современный дизайн 2-х комнатной квартиры 60 кв. метров нередко оставляют без масштабной реорганизации.
- Среди «старого» фонда остается высокий спрос на городские дома серии П-44, П-44Т, П- 44-ТМ и П44-К. Они считаются наиболее комфортными, большой балкон и прихожая – дополнительные бонусы. Модернизированный вариант большой этажности имеют большую коммерческую стоимость на вторичке. Так называемые «распашонки» (с окнами в разные стороны) по 60-64 квадрата, но есть линейные компактные квартиры – в пределах 53 кв.м. с окнами на одну сторону. Хуже всего, если все окна выходят на юг или на север – предусмотрите локальную подсветку основных зон.

- Дома в проектах ХХ века строятся с учетом всех недостатков предыдущей массовой застройки, поэтому в них реже делают перепланировку или обширную реорганизацию. Возможен дизайн однокомнатной квартиры 60 кв.м, если это квартира-студия или квартира с условными перегородками.
Видео перепланировка 2 комнатной квартиры в 3 комнатную
Категории: Комнатная квартира, Двухкомнатная хрущевка, Квартиры в панельном доме, Двухкомнатная квартира, Пространства с помощью, Квартиры с появлением, Дополнительная комната, Небольшой ремонт, 2-комнатные квартиры
Понравилось? Поделитесь с друзьями!
⇦ Как в квартире сломать стену. Как сломать стену правильно
⇨ Как сделать барную стойку своими руками из столешницы. Барная стойка своими руками: с чего начать
типовая квартира до и после — Roomble.com
2021-12-04T03:25:00+00:00
2021-12-04T03:49:36+00:00
Перепланировка двушки: типовая квартира до и после
2021-12-04T03:25:00+00:00
Типовую квартиру можно назвать самым распространённым вариантом жилья.
Однако иногда так хочется изменить привычное под свои потребности! Как же можно изменить план квартиры в серии П-44? Мы покажем вам три лучших варианта
Перепланировка двушки: типовая квартира до и после
Типовую квартиру можно назвать самым распространённым вариантом жилья. Однако иногда так хочется изменить привычное под свои потребности! Как же можно изменить план квартиры в серии П-44? Мы покажем вам три лучших варианта
Решение о перепланировке в квартире носит очень важный характер: нужно продумать все изменения, определить масштаб работ, составить алгоритм действий. Согласитесь, задача не из лёгких! Поэтому мы обратились за советом к профессионалу — архитектору и дизайнеру Руслану Кирничанскому. Он рассказал нам о трёх вариантах перепланировки типовой квартиры.
Руслан Кирничанский, архитектор, дизайнер, эксперт и дизайн-критик
Занимается разнообразной деятельностью: это и строительство зданий, и работа с внутренним пространством.
Ведёт проекты как в России, так и в странах Западной Европы.
fab-im.com
— Каждый из нас когда-либо спрашивал себя: как лучше обустроить квартиру? Ответ на этот вопрос редко можно найти в Интернете — мы то и дело будем натыкаться на множество советов, которые не всегда приемлемы для конкретного случая. Конечно, существуют разные статьи об «идеальных» типовых квартирах для холостяков, семей и так далее. Я считаю подобные тексты вредными, потому что они дают решение для абстрактных персон, существующих в воображении автора-дизайнера. Я же предлагаю совершенно иной подход к перепланировке типовой квартиры, который поможет оценить все возможности помещения, а также подскажет, какие преобразования допустимы. Надеюсь, что мой подход вдохновит вас.
Важный аспект нашей жизни — это её качество, которое складывается из многих элементов повседневности, таких как личная жизнь, карьера, здоровье, досуг. Однако само удовлетворение жизнью закладывается прежде всего в доме, в том месте, где человек чувствует себя удобно и уютно, там, где мы такие, какие есть на самом деле.
Сегодня мы рассмотрим одну из самых распространённых серий типового многоквартирного строительства П-44. Её начали возводить ещё в 80-х годах прошлого века, строили и в нулевых. Новые типовые серии домостроения опираются на планировочные решения серии домов П-44. Такие дома очень распространены на территории России, их можно встретить практически в каждом городе.
Два варианта перепланировки типовой однушки: готовые решения от дизайнера
25 бирюзовых интерьеров, которые сподвигнут вас на ремонт
Предположим, эта квартира предназначена для молодой пары 25—35 лет, без детей. У молодого человека и девушки есть определённые требования к тому, что должно получиться после планировки. Так, необходима практичная и удобная кухня с обеденной зоной, гостиная для отдыха и приёма гостей с дополнительным спальным местом, удобная ванная и прачечная; спальня, одно рабочее место и гардеробная либо вместительные шкафы для хранения одежды.
Квартира серии П-44 состоит из двух жилых комнат, кухни, лоджии, коридора и разделённого перегородкой сантехнического узла. Общая площадь квартиры — 50,2 квадратных метра.
Существует несколько вариантов перепланировки. Остановимся на каждом из них подробнее.
В этом случае мы не производим масштабных строительных работ, которые требуют согласования. Это существенно сокращает сроки ремонта и его затратную часть.
Работы, которые необходимо произвести:- В домах этой серии плохая звукоизоляция, поэтому нужно демонтировать старые полы (лаги и половая доска) и заменить их на стяжку с подложкой из звуконепроницаемого материала. В итоге черновой пол станет ровным и долговечным. По высоте при этой замене ничего не меняется, «пирог» старых полов составляет 6—8 см, как и новая стяжка. После окончания черновых работ нужно уложить инженерную доску (если поискать, то можно приобрести её по цене среднего по качеству ламината).
- Следующий шаг — работы по звукоизоляции потолков.
Качество жизни от этого только повышается, поскольку из квартиры сверху будет доноситься меньше шума (эффект присутствия «топающего соседа»). Потолок опустится на 8—10 см, но тишина и спокойствие того стоят. Учитывая, что высота между перекрытиями в домах этой серии — 2 760 мм, то «полезная» высота остаётся 2 600 мм (8 см — стяжка, 8 см — потолок), что вполне допустимо и комфортно для проживания. - Важно поменять алюминиевую электрическую проводку на медную и добавить необходимое количество выключателей, розеток и источников света.
- При необходимости нужно заменить трубы подачи воды и канализации, оконные блоки и межкомнатные двери.
- Переходим к выравниванию стен квартиры. После выполнения этого процесса нужно окрасить стены либо оклеить их обоями. Затем можно заниматься расстановкой мебели и аксессуаров.
Специалисты, к которым придётся обращаться для воплощения перепланировки в жизнь — это декоратор, дизайнер, строительная бригада, профессиональный сантехник и электрик с допуском (документ о квалификации).
Мнение: этот вариант хорош тем, что позволяет улучшить качество жизни с минимальными затратами. Применяются строительные работы средней степени сложности, их можно проводить в любое время года.
Плюсы: вариант приемлем при ограниченном бюджете или в перспективе скорого переезда. Не требует согласований, работы можно выполнять частями.
Минусы: главный недостаток в том, что вы «вписали» себя в планировку, а не наоборот. Если у вас будет помощник — декоратор или дизайнер, то больше шансов получить хороший результат, поскольку грамотная расстановка мебели может изменить пространство и без сноса стен. Однако нужно учитывать, что придётся соглашаться на некоторые неудобства, такие как отсутствие кухни-гостиной и раздельный санузел.
По качеству жизни этот вариант получает 5 баллов из 10.
Здесь проводимые работы будут масштабнее и серьёзнее. При перепланировке такого вида помещение «подгоняется» под требования жильцов.
Сначала нужно оформить свои пожелания — это могут быть собственные эскизы или дизайн-проект, разработанный дизайнером или архитектором.
Важно отметить, что практически все стены в домах серии П-44 — несущие, но можно получить разрешение на снос фрагментов стен и при этом не допустить ослабления основного каркаса здания. В несущих конструкциях разрешается только устройство проёмов (их размер устанавливается СНиПами). Для получения разрешения на изменение конфигурации стен необходимо представить проект, выполненный специализированной компанией. В этом проекте должен быть указан способ усиления перегородок.
Организация проёма — ответственная работа, которую будет выполнять инженер, и в случае разрушения конструкций именно он несёт уголовную ответственность.
Мой совет: никогда не делайте дверной проём в виде арки не только из-за того, что это архитектурное извращение, но и потому что гораздо проще устроить обыкновенный прямоугольный проём с запасом высоты. Дело в том, что в данном случае в швеллере выпиливается определённое число надрезов, после чего его при помощи домкрата распинают в проёме.
Если я убедил вас, что арки — это зло, смотрите в конце статьи перечень нормативных актов, которые вам помогут узнать больше об устройстве проёмов в несущих стенах.
После того как вы продумали тип переделки, нужно заказать проект в организации, имеющей соответствующую лицензию. Рассчитать вектор напряжения в стене можно в специальных программах и при помощи заранее составленных таблиц (они есть в проектных институтах). Однако я рекомендую поручить эту работу инженеру.
Полезно знать: из моей практики следует, что чаще всего разрешают снос стен и организацию в них проёмов на верхних этажах зданий.
Следующие работы по перепланировке в квартире такие же, как и в первом варианте: нужно произвести черновые и чистовые строительные операции.
Специалисты, которые потребуются для второго варианта перепланировки: архитектор-дизайнер, проектная организация, строительная организация с лицензией, электрик, сантехник.
Мнение: этот вариант более затратный, но соотношение цена/качество у него идеальное. Значительно повышается комфорт использования квартиры.
Плюсы: помещение «подгоняется» под требования будущих жильцов. Получилось расширить ванную комнату, организована зона кухни-гостиной, где удобно принимать гостей; появились места для встроенных шкафов и дополнительного хранения.
Минусы: много бумажной работы с разрешениями, больше затрат, но все они экономически оправданны.
Качество жизни: 6 из 10 баллов.
Если вы выбираете этот вариант, то будьте готовы к беготне и хлопотам по согласованию и утверждению разрешённого переноса конструкций, но это может полностью преобразить квартиру и сделать её индивидуальной.
При таком способе перепланировки кухонное оборудование перенесено (по периметру изначальной кухни это разрешено), что позволило создать удобную кухню. Конфигурация стен ванной комнаты расширена за счёт сокращения коридора-прихожей (допустимо по СНиПу). Появилась прачечная комната и гардеробная.
Работы нужно произвести те же, что описаны в первом и втором вариантах.
Специалисты, которые потребуются при перепланировке: очень опытный архитектор-дизайнер, проектная организация, строительная организация с лицензией, электрик, сантехник.
Мнение: третий вариант позволяет использовать площадь наиболее эффективно за счёт сокращения вспомогательных пространств, например, коридора. Масштабная переделка наделяет квартиру достоинствами, необходимыми для высокого качества жизни. Каждый жилец и гость получает отличный уровень комфорта.
Плюсы: квартира полностью создана для конкретной пары, были учтены их интересы и особенности. Это планировочное решение и профессиональная работа дизайнера — стопроцентное попадание квартиры на страницы глянцевых интерьерных изданий плюс восторги гостей и знакомых.
Минусы: процесс перестройки затянут по времени, нервное ожидание разрешений и поиск высококвалифицированных специалистов. Бюджет ремонта гибкий, но нужно не забывать, что результат оправдает все издержки.
За качество жизни третий вариант заслуженно получает 7 баллов из 10 (это максимальный балл для панельных конструкций).
В этом обзоре я постарался максимально подробно описать возможности данной квартиры в трёх разных вариантах переделки. Надеюсь, это поможет найти в ней многие скрытые резервы.
Следующий обзор будет посвящён квартире в монолитно-кирпичном доме со свободной планировкой. Я расскажу о возможностях и особенностях такого вида помещений и о том, к чему на самом деле обязывает вышеупомянутый рекламный термин.
Нормативные акты, которые вам пригодятся:
- СП 20.13330.2011 «Нагрузки и воздействия»;
- СП 52-101-2003 «Бетонные и железобетонные конструкции»;
- СП 15.13330.2010 «Каменные и армокаменные конструкции»;
- СП 70.13330.2011 «Несущие и ограждающие конструкции»;
- СП 54.13330.2011 «Здания жилые и многоквартирные».
Архитектор Руслан Кирничанский; фото домов с сайтов apb1.ru; platform.
kixbox.ru
Поделитесь:
Оцените статью:
Спасибо за Вашу оценку! Хотите оставить комментарий?
нетотправить
Благодарим Вас за оставленный голос.
Подпишитесь на нас:
Подписаться в Facebook
Подписаться во Вконтакте
Перепланировка трехкомнатной квартиры
Вариантов перепланировки трехкомнатной квартиры существует немало. Однако популярностью пользуются немногие, к тому же полет дизайнерской фантазии часто ограничен конструктивом дома и жилищным законодательством.
Самый «благодарный» вариант для перепланировки — трешки в кирпичных или монолитных домах. Так как в подобных зданиях редко попадаются несущие внутриквартирные стены, то конфигурировать помещения можно различными способами (главное — не нарушать при этом установленных норм и правил). То же относится и к трехкомнатным квартирам в хрущевках — несущих стен в них также немного (за исключением блочных хрущевок, где капитальные стены нередко бывают в габаритах квартиры).
Что касается перепланировок 3 комнатных квартир в панельных домах брежневских серий, в также их модернизированных версий, то тут ограничений существенно больше. Здесь многие межкомнатные стены — несущие, сносить их нельзя, а возможность и место устройства нового дверного проема в них определяется выводами технического заключения от автора дома.
Читайте также: техническое заключение на перепланировку
При перепланировках 3 комнатных квартир, как и любых других, наиболее востребовано объединение кухни с одной из комнат. Когда стена между помещениями является перегородкой из ГКЛ, можно сделать большую столовую. Однако если на кухне установлена газовая плита, достигнуть полного соединения помещений не удастся, поскольку это запрещает п.11.17 Приложения 1 ППМ 508. На практике данный запрет обходится установкой сдвижной перегородки или дверного блока, аналогичного устройству дверей шкафа-купе. И в итоге у вас получается отдельная кухня с проходом в просторную гостиную-столовую.
Не менее распространено и расширение и/или совмещение туалета и ванной. Поскольку данные помещения в типовых квартирах чрезвычайно малы, их обычно объединяют друг с другом посредством демонтажа сантехкабины или сноса перегородки между ними. Расширяют совмещенный таким образом санузел обычно на прилегающий коридор (тот, что ведет из прихожей в кухню).
Обширный материал о перепланировках ванной и туалета
Что касается коридора, который расположен между комнатами, то в нем часто устраивают встроенную мебель или кладовые, поскольку коридоры трехкомнатных квартир более просторные, нежели в двушках и однушках и позволяют использовать излишки площади таким образом. Бывает и так, что стену, отделяющую коридор от одной из комнат, сносят (если это перегородка), и тогда помещения разграничивают напольным покрытием или иным способом, например с помощью декоративных элементов.
Перепланировка 3х комнатной в 4х комнатную встречается редко, а вот обратный случай, то есть из двушки в трешку — намного чаще.
(планы до, после и демонтаж-монтаж):
Перепланировка 3 комнатной квартиры в панельной хрущевке серии 1-511
Здесь был реализован довольно стандартный объем мероприятий: снесена перегородка между кухней и комнатой, а вместо нее поставлен большой дверной блок во всю длину бывшей стенки. Туалет присоединили к ванной, причем площадь помещения слегка уменьшилась (срезан угол). Обычно бывает наоборот — совмещенный санузел расширяют на коридор, ведущий в кухню. Однако в этом случае требуемый участок коридора был занят гарберобной (6а). Перегородка и встроенная мебель, отделявшая смежную с кухней комнату от коридора были демонтированы, а жилую и нежилую зону разделили при помощи напольных покрытий.
Проект 3х комнатной квартиры в панельном доме серии II-49Д
Устроен проем в несущей стене между кухней и комнатой (ширина 90 см). Теперь в кухню можно будет попасть только оттуда, поскольку проход через прихожую закрыт совмещенным санузлом.
Часть комнаты (2) отдали в пользу устройства новой кладовки и удлиннения коридора, причем встроенный шкаф, относившийся к комнате (2а), стал частью коридора (6а).
Перепланировка трехкомнатной квартиры в серии П 3М
Примечательно, что площадь санузла и ванной удалось увеличить в два раза благодаря широкому коридору. Проем между кухней и комнатой не имеет двери, поскольку плита стоит электрическая.
Перепланировка трехкомнатной квартиры в сталинском доме
Перепланировка трехкомнатной квартиры в пятиэтажном довоенном жилом здании заключалась в устройстве более просторного санузла, для чего объединили ванную с туалетом и расширили получившееся единое помещение на коридор. Кроме того, один из встроенных шкафов, обозначенный на планах как отдельное помещение, был демонтирован, что позволило сделать площадь жилой комнаты на 0,5 кв. м больше.
Доступ в другой шкаф организовали из коридора, пробив в ненесущей перегородке проем и заложив прежний из комнаты. А между кухней и еще одним жилым помещением установили раздвижную дверь с плотным притвором, предварительно демонтировав часть межкомнатной перегородки.
Перепланировка трешки в кирпичном доме нетиповой серии
Эта перепланировка трехкомнатной квартиры интересна тем, что в процессе ремонта было устроено 6 встроенных шкафов, а также в двух комнатах — на кухне и в жилом помещении — демонтированы подоконные блоки. Кроме того, в рамках перепланировки увеличелась площадь кухни, были устроены совмещенный санузел и подсобное помещение.
Типовые решения для перепланировки 3х комнатных квартир в домах, разработанных ГУП МНИИТЭП:
Типовые проекты трешек для серий панельных домов II-57, П 30, П 44, П 55.
(по разработанным нашим бюро проектам):
— перепланировка стандартной 3 комнатной квартиры II-49
— трешка в кирпичном доме II-29
— трехкомнатной квартиры в серии П 3
— трешки в П44Т
— перепланировка 3 комнатной в П44 с инъектированием платформенного стыка
— 3х комнатная квартира в кирпичном доме
— из 3-комнатной в 4-комнатную
— перепланировка трешки в новостройке
— перепланировка трехкомнатной квартиры в доме П44Т, построенном после 2007 года, с демонтажом проектной ниши
— трехкомнатной в серии П46
— трехкомнатная квартира в II-49Д
— пример проекта перепланировки трехкомнатной квартиры П-55 от ГУП МНИИТЭП
— ремонт трешки в МГ-601
Вас также может заинтересовать:
Перепланировка 1 комнатной квартиры
Перепланировка двухкомнатной квартиры
Из 2 комнатной в 3 комнатную
Бесплатная консультация
Максимonline
консультант по перепланировкам
Новые вопросы:
Гульнара Залеева — 25 Сен 2022 / 12:09
Добрый день! У меня узаконена Перепланировка коммерческого помещения свободного назначения, находящегося на 2 этаже.
Под моим поме…
Наталья — 14 Сен 2022 / 11:16
Здравствуйте! Необходимо согласовать сделанную перепланировку 3к квартиры в серии дома П44Т/17 ( проем в несущей стене) Когда дела…
Смотреть все вопросы
Перепланировка 3-комнатной квартиры в 4-комнатную
Содержание
- Варианты и примеры перепланировок 3-х комнатных квартир
- Особенности перепланировок трехкомнатных квартир
- Как создать комфортное пространство в трехкомнатной квартире
- Трехкомнатные различных серий
- Варианты типовых перепланировок «трешек»
- Особенности перепланировки трехкомнатных в панельном доме
- Особенности перепланировки трехкомнатной квартиры-распашонки
- Заключение
- ВИДЕО: Перепланировка трехкомнатной квартиры п-44.
- Перепланировка 3-комнатной квартиры в 4-комнатную
- Как сделать 3 комнатную квартиру ещё более комфортной
- С чего начать
- Начинаем с кухни
Варианты и примеры перепланировок 3-х комнатных квартир
Понравилась статья? Следите за новыми идеями из мира строительства, дизайна, полезных советов в нашем канале.
Подписывайтесь на нас в Яндекс.Дзене. Подписаться.При покупке жилого помещения часто оказывается, что новых хозяев устраивает в нем далеко не все – количество комнат, их размер, расположение входов. Потому жильцы сразу же делают ремонт. Современная перепланировка трехкомнатной квартиры – задача нелегкая и недешевая, так как площадь оформляемого пространства составляет 60-120 мм. кв.
Трехкомнатная квартира – прекрасный вариант для реализации самых разнообразных дизайнерских задумок и создания функционального и комфортного интерьера.
Особенности перепланировок трехкомнатных квартир
Кроме самих комнат, в квартире имеется санузел (чаще всего раздельный), сравнительно просторная кухня, прихожая, балкон или лоджия, кладовка. Стены, расположенные между комнатами, чаще всего капитальные, несущие, потому сносить их полностью запрещается, а на частичный демонтаж требуется разрешение.
В первую очередь планировка на прямую зависит от количества проживающих в квартире человек и их запросов.
Самое главное при «перестройке» небольшой «трешки» – можно аккуратно уместить все необходимое. Минимальная площадь такой типовой квартиры – около 50 кв. м., максимальная – больше, чем 90 кв. м. При наличии проходных комнат, их обычно стараются сделать отдельными. Когда кухня тесновата, ее присоединяют к гостиной, объединяют с лоджией.
Перед тем как приступить к перепланировке, важно провести тщательное ознакомление с планом жилого пространства.
Как создать комфортное пространство в трехкомнатной квартире
Обустройство квартирного пространства зависит от того, сколько людей будет в нем проживать, их пола, возраста. Для детей обычно делается несколько маленьких комнат, для взрослых пространство часто зонируют мебелью. Главное для любой квартиры – создать хотя бы небольшое личное пространство для каждого члена семьи, вне зависимости от его возраста.
Выбирая дизайн для трехкомнатного пространства, для начала руководствуются количеством проживающих человек.
Перепланировка современной 3-х комнатной квартиры начинается с составления проекта. Готовый план необходимо утвердить в соответствующей организации. Дизайн жилища выбирается самостоятельно. Если в семье не более двух человек, имеет смысл перестроить квартиру в «студию» – тогда подбирают планировку с минимальным количеством внутренних капитальных стен.
По выбору стилевого решения для трешки не существует определенных требований.
Трехкомнатные различных серий
Все дома, построенные по определенным типовым проектам, объединяются в серии. Каждая из последних предполагает постройки с различным количеством этажей, площадью квартир, разные годы постройки. Такие дома чаще всего выполняются панельными, что позволяет выставлять минимальную стоимость за квадратный метр, реже – блочными, кирпичными.
Некоторые стремятся декорировать жилье в одинаковой стилистике, а другие предпочитают абсолютно разное исполнение.
Удачная перепланировка трехкомнатной квартиры серии и-209а, предполагает частичную либо полную замену многих коммуникаций.
Особенность данной планировки «брежневки» – полностью изолированные комнаты. В зависимости от серии все существующие трехкомнатные отличаются.
Часто применяют стеллажи, которые представляют собой полноценное интерьерное дополнение.
Данная серия начала строиться в 1970-х. Практически все стены здесь – несущие, что сильно ограничивает возможности для перепланировки. Этажей в домах – 2-17, высота потолков – 2,64, в каждой квартире, с числом комнат больше двух имеется балкон. Площадь «трешки» – 73-83 м. кв., жилая – 44-49. В кухне и санузлах имеется вытяжка.
Планировка квартир серии домов П-3.
Серия П-44 т
Площадь таких пространств от 73 до 81 м. кв., из которых жилая – 44-54 кв. м. Они расположены в панельных домах, где имеются грузопассажирские и пассажирские лифты, чердаки, технические помещения. Вентиляция квартир – естественная, осуществляется через специальные блоки в туалете, ванной. Высота потолка – 2,74 м.
Планировка квартир серии домов П-44 т.
Серия ii-68
Это серия панельно-блочных многоквартирных построек, особенность которых – ступенчатое расположение балконов. Обычно так строились одноподъездные 16-этажки, но есть и другие варианты. В каждой квартире имеется лоджия, которую часто самостоятельно присоединяют к основному помещению. Площадь «трешки» здесь – 65 м. кв., жилого пространства – 46 м. кв.
Планировка квартир серии домов ii-68.
Данная панельная серия также известна под названием 111-83, строилась, начиная с 1970-х. Этажей здесь 5-10, само строение отличается от других внешним видом фасадов, способом ограждения лоджий. Высота потолка – 2,7 м., санузлы во всех квартирах раздельные, в каждой имеется кладовка, лоджии и балконы – застекленные. Общая площадь – от 50 кв. м., жилая – от 39 кв. м.
Планировка квартир 83-й серии домов.
Такие панельные «брежневки» считаются одними из самых качественных – здесь хорошая звукоизоляция, высокий уровень теплосбережения, но самая простая внутренняя отделка.
В 1970-х строились только пятиэтажки, в 2000-х – 17-этажки. В каждой квартире тут имеются балконы и лоджии. Площадь «трешки» – 79-92 кв. м., жилая – 60-70 м. кв., кухня – 12-14 кв. м., высота потолков – 2,7 м.
Планировка квартир 121-й серии домов.
Эти квартиры также относятся к «брежневкам» и отличаются самой маленькой площадью – размеры трехкомнатной здесь всего 54-58 кв. м., кухни – 6-7 м. кв. В многокомнатных имеются кладовки, встроенные шкафы, паркетные полы. Само здание отличается повышенной прочностью, долговечностью. Основные недостатки подобного жилья – наличие проходных комнат.
Планировка квартир 504-й серии домов.
Варианты типовых перепланировок «трешек»
Способов перепланировки в 3-х комнатной квартире «сталинке» существует несколько:
- «превращение» из «трешки» в четырехкомнатную;
- с присоединением лоджии, балкона;
- объединение зала и кухни;
- с переносом коммуникаций из санузла;
- присоединение прихожей к гостиной, спальне.

Такое пространство предоставляет огромное множество дизайнерских возможностей и фантазий.
В отличие от «хрущевок» и «брежневок», «сталинки» более просторные, имеют высокие потолки, их планировка удобнее.
Важно сформировать по-настоящему красивый, стильный и функциональный дизайн, включающий в себя все необходимые интерьерные предметы.
Из трехкомнатной в четырехкомнатную
Этот вариант предполагает разделение одного из помещений на два – частично либо полностью. В таких случаях перегородкой служит лист ДСП или гипсокартона. Иногда дополнительной крошечной комнаткой без окон становится кладовка – ее используют под мастерскую или рабочий кабинет.
Грамотное оформление такой квартиры придаст интерьеру особую неповторимость.
С затрагиванием кухни
Кухню проще всего присоединить к гостиной. Полученное пространство выйдет весьма обширным, но газовую плиту придется заменить на электрическую, в целях соблюдения норм пожарной безопасности.
В просторной кухне-гостиной возможна реализация огромного количества творческих, декоративных идей.
С изменением балкона, лоджии
Лоджию, пространство балкона присоединяют к жилой комнате, путем удаления оконно-дверного блока. Балкон предварительно придется утеплить, застеклить. Систему отопления здесь также нужно продумать.
Отличный пример – устройство теплого пола.
С затрагиванием «мокрых» зон
К зонам с повышенной влажностью относятся ванная, туалет, рабочая зона кухни. При необходимости, если в данном пространстве проживает больше четырех человек, обустраивается дополнительный санузел.
В подобном санузле в основном выделяют зону для умывания и гигиенических процедур, место для отдыха и отдельный участок для хозяйственных принадлежностей.
Другие возможные виды перепланировок
В одной из комнат либо части прихожей, оборудуется гардеробная. Ее минимальная площадь – четыре метра квадратных, так как меньшее пространство крайне неудобно.
Иногда гардеробом становится слегка расширенная кладовка, расположенная на стыке двух комнат.
Для обустройства гардеробной, чаще всего предпочитают различные ниши или кладовки с площадью 3-4 квадрата.
Совет: при желании, кладовку легко присоединить к одной из комнаток.
Особенности перепланировки трехкомнатных в панельном доме
При перепланировке панельной «трешки» важно учитывать этажность здания. Расположение комнат сильно отличается в зависимости от этого. Панельные дома отличаются от кирпичных тем, что составлены их серых квадратных плит, которые видны снаружи. Здесь обычно плохая звукоизоляция, а без специальной отделки – высокие теплопотери.
Перепланировка позволяет добиться стильного интерьера, отличающегося особой выразительностью и индивидуальностью.
К панельным пятиэтажкам относятся постройки серии 1-335, 1-439А, 1-439Я, 1-466, 1-467, 1-510, 1-515/5, 1605-АМ/5, 1Р-303-2, II-18-01/08Б, II-18-01/09Б, К-7, П-46М и некоторые другие.
В основном это «хрущевские» дома – квартирки в них тесные, с маленькой кухней и прихожей, проходными комнатами. Но более современные серии немного просторнее, возможностей для перепланировки в них больше.
Планировка квартир серии домов 1-515/5.
Девятиэтажные панельки – это серии I-515/9Ш, В-2000, МПСМ, МЭС-84, П-3М, ПД-1, ПД-3, П-46М и прочие. Данные постройки немного отличаются от хрущевских площадью, высотой потолков, общим уровнем комфорта, хотя имеются проблемы со звукоизоляцией. Подъезды и дворы девятиэтажек также просторные.
Планировка квартир серии домов П-46М.
Панельные 12-этажные дома – это такие серии, как П-111М, МЭС-84, II-57, В-2000, ИП-46С, КОПЭ, МПСМ, П-111М, П-30, П-44Т, П-55М и другие. Подобные строения возводятся с 1963 года, их ширина – 12-16 метров, что позволяет сделать квартиры достаточно просторными.
Планировка квартир серии домов П-55М.
Особенности перепланировки трехкомнатной квартиры-распашонки
Стандартная квартира в народе называемая «распашонкой» – это жилище с одной проходной и двумя обособленными комнатами, а также кладовкой.
Наиболее часто здесь полностью отделяют перегородкой одну из комнат, создавая дополнительный вход из кухни или прихожей. Не менее часто к кухне, гостиной, присоединяют балкон, кладовку – дизайн пространства от этого только выигрывает.
Перепланировка трехкомнатной квартиры распашонки.
Заключение
Грамотная перепланировка 3-х комнатной квартиры – идея весьма трудозатратная. Все действия, производимые в ней, должны быть законными, чтобы дом не разрушился. Для проведения такого ремонта желательно нанять бригаду специалистов, которые не только выполнят все в лучшем виде, отлично переделав и оформив все три комнатки, но и уберут за собой мусор.
ВИДЕО: Перепланировка трехкомнатной квартиры п-44.
Перепланировка 3-комнатной квартиры в 4-комнатную
Пн-Пт с 09:30 до 18:30
В субботу — по предварительной договоренности
ИП Безруков Иван Сергеевич
Фактический адрес: г. Екатеринбург, ул.
Посадская, д. 28 А, оф. 402 (ТЦ Универбыт)
р/с 40802810338000000103 в Филиал Екатеринбургский ОАО “АЛЬФА-БАНК”, г. Екатеринбург,
к/с 30101810100000000964, БИК 046577964
Трансформация 3-х комнатной квартиры
Посмотреть более подробное описание каждой комнаты: гостиная-кухня, детская комната, ванная, санузел
Разработать оригинальный дизайн квартиры.
- Создать общее пространство гостиной-кухни
- Выделить гардеробную в прихожей
- Сделать перепланировку так, чтобы 3-х комнатная квартира превратилась в 4-х комнатную: спальня для родителей, 2 детские комнаты, кухня и гостиная
- К одной из детских присоединить пространство балкона, чтобы комната стала просторнее и светлее
- Один санузел присоединить к спальне родителей, второй санузел сделать детским, которой будет в то же время являться гостевым
- Из 3-х комнатной квартиры нужно сделать 4-х комнатную
Интерьер квартиры выполнен в современном стиле: множество фактур и текстур, грубая декоративная штукатурка в сочетании с глянцевым керамогранитом и деревянным полом, а также деревянными арт-объектами – все это сделало интерьер интересным и уютным.
С одной стороны – балки на потолке, кирпич, искусственно деформированные неровные стены с грубой текстурой камня. В тоже время много деталей, придающих помещению уют – мягкий диван с множеством подушек, кресла, картины, сундук, натуральная галька.
В первую очередь перепланировка выполнялась для того, чтобы трехкомнатную квартиру превратить в четырехкомнатную с полноценными комнатами: гостиной-кухней, спальней, двумя детскими и выделенной в коридоре гардеробной. Балкон площадью 16,4 метра разделили на две части, одну из которых присоединили к детской. Особых трудностей при перепланировании не возникло, за исключением того, что гостиная ограничена по ширине несущими монолитными колоннами, которые трогать нельзя.
В итоге работы дизайнера над проектом получилась планировка, удовлетворяющая всем потребностям хозяев квартиры: появилась общая гостиная-кухня, с выделенными зонами для приготовления пищи и столовой, пространством для отдыха с домашним кинотеатром и уютным уголком для чтения и отдыха с двумя мягкими креслами.
За счет грамотного зонирования гостиной удалось избавиться от ощущения «длинного пространства». Спроектировали две детские, одна из которых больше по площади за счет присоединения балкона. Спальная комната, как и хотелось хозяевам с выходом в санузел. Прихожую от остальной части квартиры отгородили раздвижными полупрозрачными перегородками.
Зона гостиной выполнена в песочной цветовой гамме, а кухни – наоборот, в белой. Таким образом, вместе они образуют контраст, который чувствуется и в материалах – глянцевый керамогранит, матовая декоративная штукатурка, грубый кирпич, дерево на полу.
В гостиной собрано много природных материалов, здесь есть как картины с галькой, так и натуральная природная галька. Форма стен искривлена и приближена к форме камня, при этом на них нанесена грубая декоративная штукатурка под камень. Кирпич на стенах также натуральный, все перегородки в квартире сделаны из кирпича. Пространство разделено на зоны.
Детская предназначена для ребенка, которому сейчас еще 1,5 года, но интерьер построен так, что детская будет актуальна и когда ребенок станет старше.
В ней много желтых, солнечных оттенков. Изначально запроектировано место для рабочего стола, который понадобится в дальнейшем. Помещение детской объединено с балконом, поэтому его конфигурация сложная и интересная. Есть зона для сна, а рядом расположен шкаф для одежды. Есть здесь также и учебная зона для занятий, а также зона для пассивного отдыха с диваном и зона для активного отдыха. Во всю стену нарисована карта мира, на которой можно рисовать мелом, что всегда очень нравится детям. Деление на зоны поддержано индивидуальным освещением.
Ванная выходит в спальню родителей, поэтому предназначена только для хозяев. Интерьер ванной создан в природных оттенках и материалах. Дерево на стене, плитка под камень, светильники натуральных форм, галька на полу. Потолок затемнен, что создает ощущение уюта и уединенности.
Помещение предназначалось в качестве гостевого и детского санузла. По цветовому решению и стилю санузел продолжает идею гостиной. В нем использованы также различные материалы – декоративная штукатурка, керамогранит под дерево, мозаика, белая глянцевая плитка, матовое стекло с печатью.
В этом санузле есть и техническая составляющая – в шкафу расположены стиральная машина и водонагреватель.
Как сделать 3 комнатную квартиру ещё более комфортной
Немногие наши соотечественники сегодня могут похвастаться тем, что площадь жилья полностью удовлетворяет их. Даже людям, которым посчастливилось купить или получить в наследство просторные трёхкомнатные квартиры московской планировки, нередко задумываются о том, что многое можно было бы оптимизировать. Например, кухня может быть слишком маленькой, коридор – слишком длинным и тёмным, и вообще не помешало бы заполучить ещё одно помещение, которое можно было бы выделить под кабинет или дополнительную детскую комнату.
Функциональная планировка 3-х комнатной квартиры
Что ж, можно просто сидеть, сожалеть и иногда жаловаться друзьям и знакомым, что квартира не удовлетворяет вас по ряду причин. А можно просто попытаться что-то сделать. И в таком случае перепланировка трехкомнатной квартиры является единственным способом превратить стандартное помещение в жилье вашей мечты.
С чего начать
Разумеется, прежде чем начинать чертить чертежи самостоятельно или прибегать к помощи специалистов, стоит определиться с тем, что же вы хотите получить в результате.
Расширить кухню? Изменить внешний вид коридора? Получить дополнительную спальню, которую можно было бы выделить подрастающему ребёнку или пожилым родителям, решившим переехать к вам? Тщательно продумайте, а нужно ли вам вообще начинать ремонт в своей квартире? Ведь начав, бросить дело на полпути уже не получится. И работа может растянуться на многие недели и даже месяцы; это будет действительно тяжелое испытание и для ваших нервов, и для семейного бюджета.
Когда решение окончательно принято, можно начинать составлять план. Конечно, если вы можете себе это позволить, то лучше доверить работу специалистам. Ведь зачастую перепланировка квартиры сопровождается переносом или даже сносом стен.
первоначальный план 3-комнатной квартиры вариант перепланировки трехкомнатной квартиры со сносом стен коридора
Только опытные специалисты смогут учесть все нюансы, гарантируя, что в результате вы получите совершенно безопасное и уютное жилье.
Они учтут, какие стены в квартире являются несущими (а значит, с ними стоит работать только в крайнем случае), а какие – самонесущие. Учтут и материал, из которого построен дом.
Разумеется, у них есть планы различных домов со всеми характеристиками: толщиной стен, постоянными нагрузками, несущими конструкциями и так далее. Поэтому они смогут выполнить всю работу максимально качественно, независимо от того, в каком доме находится ваша квартира – 83 серии или 137 серии.
планировка трехкомнатной квартиры в домах 137 серии
Перенос или снос капитальных стен – очень важный процесс. И выполнять его можно только после получения разрешения в соответствующих органах.
Эту работу точно лучше доверить специалистам. Да, придется заплатить за их помощь. Зато в результате нужные документы будут собраны за считанные дни. В противном случае процесс их сбора вполне может затянуться на несколько недель или даже месяцев. Служащие контор будут отправлять вас из одного кабинета в другой, требовать всё новые и новые справки и разрешения.
Тем, кто проходил эту процедуру, она вспоминается только в страшных снах.
Вы можете сами выбрать подходящий для вас проект:
- Стандартный проект. Он имеет относительно невысокую цену. Но не всегда может полностью удовлетворить требования владельца квартиры, так как был разработан по желанию другого заказчика.
- Уникальный проект. Обойдется вам довольно дорого, зато здесь вы будете вольны в своих фантазиях. Ваша квартира может быть преображена до полной неузнаваемости. Стандартная 3-хкомнатная квартира в панельной пятиэтажке может превратиться в роскошные апартаменты, отвечающие всем вашим требованиям.
Какой вариант выбрать? Решайте сами!
Как правильно снести стену в квартире.
Начинаем с кухни
Итак, схемы начерчены и планы готовы. Можно приступать к работе. Наиболее часто в трёхкомнатных квартирах подвергается перепланировке помещение, отведённое под кухню. Действительно, крохотная кухня площадью в 5-6 квадратных метров просто не может удовлетворить требования многих людей.
А ведь именно здесь приходится старательно работать, чтобы приготовить вкусный ужин для всей семьи. А во время ужина, особенно если за столом собирается 5-6 человек, в кухне становится особенно тесно. Значит, нужно расширить помещение.
Если выход на балкон находится на кухне, как это обычно бывает в домах 121 серии, можете считать, что вам повезло. Именно за счет балкона можно значительно расширить кухню.
Да, придется качественно остеклить его, утеплить, провести отопление и демонтировать дверь с оконной рамой, соединяя балкон с кухней.
Кроме того, теперь пользоваться балконом будет не так удобно, ведь дотягиваться до дальних веревок, высовываясь из окна, довольно затруднительно. Однако дополнительные 2-3 квадратных метра к площади кухни (в панельном доме стандартная площадь кухни составляет около 6-7 квадратных метров) полностью окупают любые затраты и легкий дискомфорт.
Теперь вы получили довольно просторное помещение. Плиту, холодильник и шкафы можно переместить на балкон: там будет основная рабочая зона.
А вот в самой кухне можно установить большой стол или даже кухонный мягкий уголок, ведь места для этого теперь будет вполне достаточно.
Кстати, если между кухней и балконом был широкий, массивный подоконник из бетона, какой часто встречается в домах 75 серии, не всегда имеет смысл демонтировать его. Демонтаж связан с большими проблемами: на эту непростую работу может уйти целый день.
стандартная планировка квартиры в домах 75 серии
Вывезти строительный мусор и аккуратно выровнять и замаскировать стены – дополнительные хлопоты. Поэтому многие люди принимают весьма удачное решение: используют подоконник в качестве кухонного стола. Можно установить на него небольшую столешницу и соответственно декорировать его, а можно просто обклеить моющимися обоями или клеёнкой, чтобы новый столик гармонично смотрелся в интерьере помещения.
Ещё один шаг – работа со стеной, разделяющей кухню с гостиной (и иногда коридором).
Совмещенная кухня с гостиной
Сносить эту стенку имеет смысл только если вам очень хочется увеличить полезное пространство, которого критически не хватает.
В противном случае можно просто пробить в ней проем и изящно его декорировать. Тогда и кухня, и гостиная значительно увеличиваются зрительно, что наверняка придется по вкусу любому владельцу квартиры.
Перепланировка двухкомнатной квартиры в трехкомнатную
Перепланировка двухкомнатной квартиры в трехкомнатнуюОтделка и дизайн квартир своими руками
Автор:Вера Категория:Дизайн проекты и стили интерьера Просмотров: 10536
Сейчас очень востребованным и популярным является такое оформление жилого пространства, при котором 2 комнатная квартира трансформируется в трехкомнатную. Здесь чаще всего осуществляется увеличение числа спален. Так, например, если у вас в одной комнате помещается и гостиная, и спальня, можно разделить ее и получить 1 спальню и 1 гостиную.
Как можно выполнить перепланировку двушки в трешку
Основные приемы перепланировки квартиры
Дизайн интерьера при перепланировке может быть реализован самыми разными средствами и способами.
Самый распространенный и очевидный вариант подобной перепланировки предполагает следующее:
- Большая комната, которая имеет два окна, должна быть перегорожена таким образом, чтобы, в конце концов, она преобразовалась в 2 комнаты, в каждой из которых будет по одному окну.
- Но, к сожалению, таких комнат в однокомнатных квартирных практически не встречается.
Прием 2: Перемещение кухни для сооружения дополнительной комнаты:
- Этот метод является не менее популярным, чем первый. Он заключается в том, что кухня передвигается на некоторое расстояние. При этом требуется только передвинуть одну из стен кухни и провести в ней небольшой косметический ремонт.
- В результате, получив уже комнату большего размера, вы сможете разделить ее на 2, но при этом их площадь будет в 2 раза меньше.

- Что же касается кухни эмаль на заказ, то ее новые габариты могут быть вполне подходящими для нормального ее функционирования. Но чаще всего она оказывается довольно тесной. В этом случае можно прибегнуть к объединению кухни с каким-то другим помещением.
- Так, вы можете соединить воедино коридор (или холл) с кухней. Так же, как вариант, имеется возможность расширения кухонного пространства с помощью балкона или лоджии.
В большинстве случаев все элементы многоквартирных домов типовой серии отмечены на специальном плане БТИ. Это обозначает, что если перепланировка будет касаться разрушения или наоборот, возведение стены толщиной более 20см, то вам нужно будет переделывать уже имеющийся план. Данное мероприятие не бесплатно, поэтому заранее нужно будет позаботиться о решении этой проблемы (см. Дизайн проект квартиры, варианты оформления).
Примечание. Из двухкомнатной может получиться 3 комнатная квартира с двумя спальнями, как и в других случаях, только в соответствии с законом.
Так что не забудьте, если схема четко определяет место кухни, то здесь не должна располагаться гостиная или ванная комната.
Под кухней в случае объединения ее с холлом подразумевается так называемая мини-кухня, а именно функциональная зона со следующими элементами:
- С раковиной.
- С посудомоечной машиной.
- С плитой и вытяжкой.
Рассмотрим подробнее:
- Что касается различных шкафов и кухонной мебели, они могут быть расположены в гостиной, и в других частях квартиры. Таким образом, вы не можете трансформировать кухню в ванную, и наоборот.
- Кухонный гарнитур может быть расположен на месте гардеробной, если здесь имеется доступ к естественному свету. Если обеспечить это условие невозможно, то позаботьтесь о том, чтобы в это помещение вела дверь со стеклом.
- Как вариант, имеется возможность сооружения стены с окном. Это все касается кухонь с электрической духовкой и плитой.
Если намечается перепланировка двухкомнатной квартиры в трехкомнатную квартиру с двумя спальнями, то этот процесс будет сложнее в случае использования на кухне газовой плиты.
Данное оборудование обязательно должно оставаться на одном и том же месте. Также вы всегда должны быть в состоянии закрыть дверь или загородить это помещение хотя бы стеклянными перегородками от остальной части квартиры.
Перепланировка квартиры в студию с двумя спальнями
Идеи оформления небольших помещений
Перенести кухню или ванную комнату на место жилых помещений, запрещено.
Также не рекомендуется оставлять кухонное оборудование на жилой части территории квартиры, это касается такой техники, как:
- Мойка
- Плита.
- Посудомоечная машина.
Однако существует способ, согласно которому двухкомнатная квартира преобразовывается в трехкомнатную квартиру-студию с двумя спальнями.
При этом все вышеперечисленные элементы кухни остаются на своих местах, а остальная мебель и техника может быть перенесена в остальные комнаты квартиры, например, в гостиную. Незаменимой станет и лоджия. Сюда, наверняка, поместится несколько тумбочек и навесных полок.
Перемещение кухни на территорию ванной комнаты или туалета запрещено. Однако это правило не всегда действует, если квартира находится на верхнем этаже. В этом случае жилищная инспекция дает согласие на изменения, если собственник подписывает нотариально заверенное заявление о том, что он обязан информировать потенциального покупателя при продаже квартиры обо всех рисках и о возможном ухудшении условий их жизни, но происходит это очень редко.
Очень важно, чтобы у кухни было естественное освещение. На кухне, точнее на той ее части, которая осталась после планировки, должен быть доступ естественного света. Это может быть осуществлено как через обычное окно, так и через окно в другой комнате, по крайней мере, это можно осуществить с помощью установки стеклянных перегородок.
Способы увеличения жилой площади для разделения комнат
Вариант разделения комнаты на зоны
Решить проблему, связанную с недостатком комнат в квартире или в доме можно как самостоятельно, так и с помощью специалистов. Идеи данных реконструкций можно найти в специализированных журналах, на имеющихся в них фото или сделать план самостоятельно.
Для того чтобы получить возможность разделить какую-то одну комнату на 2, необходимо воспользоваться любым вариантом для увеличения их итоговой площади. Как правило, реконструкция квартир предполагает так называемый «заем» дополнительного пространства в пользу жилых комнат.
Балкон и лоджия – дополнительные квадратные метры при перепланировке квартиры:
- Площадь лоджии или балкон может быть присоединена к квартире, создавая изолированное, но при этом полноценное помещение, которое может стать кабинетом или даже детской комнатой.
- Однако, чаще всего, балкон или лоджия становится продолжением той или иной комнаты, позволяя таким образом увеличить ее площадь.

Совмещенный санузел для увеличения жилой площади квартиры:
- Ванная комната может быть разделена внутри на туалет и ванную, при этом потребуется перенести унитаз в ванную, а освободившееся пространство оставить для расширения и дальнейшего разделения спальни или гостиной.
- В данном случае многое зависит от стоящих перед вами задач и от количества людей, живущих в квартире.
Раздвижные двери вместо распашных дверок шкафов и подсобных помещений для экономии места:
- Площадь шкафов или кладовок, которые часто запланированы в новых квартирах, может быть сэкономлена благодаря использованию в них не обычных распашных дверок, а раздвижных дверей-купе.

- Компактные шкафы могут поместиться по одной из стен прихожей. В этом случае рекомендуется создание одного большого шкафа типа гардеробной комнаты. Здесь поместится значительно большее количество разнообразных вещей.
- При этом ни шкафы, ни двери не будут мешаться на узкой территории той или иной комнаты. А для того чтобы уместить в такую кладовку какой-то дополнительный предмет, вам нужно будет лишь установить новую полку.
Никаких дорогих шкафов и тумбочек, загромождающих жилое пространство, покупать не придется.
Похожие статьи
Интерьер в гавайском стиле, используемый в доме, позволит добиться особого ощущения покоя и умиротворения. Оформленная в соответствии с этим стилем комната помогает расслабиться по максимуму и сбросить дневное напряжение. Считается, что гавайский стиль больше всего подходит для жителей больших мегаполисов, утомленных суетой, шумом и постоянной спешкой.

Читать
Интерьер в китайском стиле основан на принципах природной энергии, красоты и простоты. Обустроив жильё в лучших традициях Поднебесной, можно создать поистине умиротворённую, гармоничную и безмятежную атмосферу в доме, где каждый будет чувствовать себя комфортно и свободно. Как этого достичь?
Читать
Многие люди не перестают находить прелесть в сказках, даже став взрослыми. Есть люди, которые прямо в своем собственном жилище создают настоящий фантастический мир, который полон чудес. Встречаются интерьеры, ловко имитирующие настоящую нору хоббита, тронный зал, покои принцессы и т.п. Задача дизайнера, который воспроизводит такой стиль – проявить максимальную креативность, ведь штампов здесь нет, напротив, чем разнообразнее и необычнее будет интерьер в стиле фэнтези, тем лучше. Давайте выделим основные характерные черты данного оригинального стиля.

Читать
Для тех, кому хочется испытывать всегда хорошее настроение, идеально подойдет интерьер в балканском стиле. В нашей статье мы расскажем об основных отличительных особенностях данной дизайнерской философии.
Читать
Преобразить сад возле дома, сделав его более комфортным и прекрасным, всегда помогут специалисты по ландшафтному дизайну. Конечно, времени и средств может уйти много, но результат того стоит.
Читать
Появлению данного стиля интерьера мы обязаны Франции 18 века. Романтизм традиционно считают «историческим» стилем. В данном стиле интерьера можно оформить как квартиру, так и дом. Если есть необходимость можно оформить и только одну комнату, идеальным будет такое решение для спальни.
Читать
Обустройство нового офиса или усовершенствование старого – процедура, обязательно включающая подбор мебели.
Ведь именно мебель для офиса является инструментом создания комфортных условий для работников и гостей. И чтобы справиться с этой задачей максимально эффективно, необходимо иметь подробную информацию о ее доступных видах.
Читать
Внутренняя отделка квартир и частных домов давно не ограничивается оклейкой стен обоями. Сегодня ассортимент материалов позволяет воплотить в жизнь любую оригинальную дизайнерскую задумку.
Читать
Исторически альпийский стиль родился в суровых горных условиях. Дословный перевод – «дом пастуха». Здания строились из местных материалов. Цокольный каменный этаж — основа для деревянной мансарды. Покатая крыша далеко выступала от стен, защищая их от непогоды. С конца XIX века в парках при дворцах возводили павильоны для отдыха по мотивам шале.
Читать
Заполните форму
30 лучших примеров от дизайнеров — INMYROOM
Сегодня редкий ремонт обходится без перепланировки.
Уже никого не удивить разнообразием планировочных решений в просторных помещениях, где каждый для себя решает, где у него будет спальня, а где гостиная. Но что же делать тем, кому жилье досталось в типовом панельном доме, да еще и однокомнатное?
Профессиональные дизайнеры предложили несколько вариантов обустройства однушки в разных типах домах – панельных, кирпичных, блочных – и для разных типов жильцов. Не забывайте: данные перепланировки требуют индивидуального рассмотрения и согласования.
32 квадрата в панельном доме II-49
Серия панельных домов II-49 (также распространено обозначение П-49) была спроектирована в середине 60-х для замены хрущевок К-7 и строилась до середины 80-х годов. Наружные стены здания выполнены из керамзитобетонных панелей марки М75 толщиной 300 миллиметров, внутренние стены – из крупных железобетонных панелей толщиной 140 миллиметров из бетона, перегородки – гипсобетонные панели толщиной 80 миллиметров. Дома этой серии кроме продольных несущих стен (две фасадные и одна внутренняя) имеют еще и поперечные несущие стены.
В случае с однокомнатной квартирой, несущей является стена между комнатой и кухней. Такая особенность этих домов не дает широких возможностей перепланировок. Максимум что можно сделать – это увеличить площадь санузла за счет коридора и сделать проем шириной 900 миллиметров в несущей стене, а также возводить дополнительные перегородки. Дизайнер Ольга Бондарь предложила три беспроигрышных варианта перепланировки однушки площадью 32 квадратных метра для разных типов жильцов.
Однушка площадью 38 квадратов в П-44
Первые дома типовой серии П-44 начали строить в 70-е годы XX века. Архитектурными элементами и излишествами от своих предшественников они не отличались, но планировки квартир и новые технологии в домах этой серии на момент строительства стали просто революционными.
Из некоторых плюсов можно отметить удобные планировки, просторные кухни, прихожие, ванные комнаты. А из минусов – тот факт, что здесь все межквартирные и межкомнатные стены – несущие. Тем не менее дизайнер Ирина Фефелова грамотно продумала три варианта перепланировки квартиры площадью 38 квадратных метров.
Один из них достаточно рисковый, зато позволил превратить однушку в полноценную двушку.
Квартира в панельном доме серии И-79-99
Серия И-79-99 разработана на базе серии ширококорпусных домов, совершившей несколько лет назад настоящий переворот в панельном домостроении.
Квартиры отличаются удобными планировками, в каждой предусмотрен эркер. Общая площадь однокомнатной квартиры составляет чуть больше 43 квадратных метров. Площадь комнаты – 17,94 квадратного метра, площадь кухни – 10,22 квадратного метра. Дизайнер Максим Панин рассмотрел три варианта перепланировки помещения – два из них будут идеальны для холостяка, а один – для молодой пары.
Однокомнатная квартира в типовом панельном доме серии И-155
Перепланировка однокомнатной квартиры часто преследует цель визуально увеличить площадь и организовать различные зоны – общественную, рабочую, отдыха. Дизайнеру Николаю Твердову это удалось: предложенные им 3 варианта планировки однушки площадью 40 квадратных метров в доме серии И-155 будут актуальны для семьи с ребенком, молодой пары и холостяка.
Серия домов типа И-155 была разработана в 2000 году. Главная особенность зданий состоит в том, что при одной и той же конструктивной схеме можно собирать дома разных конфигураций, разной этажности и с разными типами квартир. Дома могут быть как башенного типа, так и многосекционные.
33 квадратных метра в панельном доме серии I-507
Создать комфортное пространство для жизни в однушке – задача, требующая от профессионала опыта и умения экспериментировать. Особенно если в квартире проживает семья: ведь нужно не только предусмотреть отдельные спальни для родителей и ребенка, но и по возможности спланировать гостиную зону и тщательно продумать системы хранения, не загромождающие интерьер. Дизайнер Ксения Чупина предложила 3 интересных варианта перепланировки однокомнатной квартиры: для холостяка, молодой пары и семьи с ребенком.
30 квадратов в блочном доме серии II-68
Серия блочных домов II-68 стала основой для создания целого ряда типовых зданий: II-68-02, II-68-03.
Главное достоинство этой серии домов – обширные лоджии, которые при правильном утеплении могут значительно увеличить жилую площадь. В некоторых домах однокомнатные квартиры имеют проемы между кухней и комнатой, что значительно упрощает перепланировку и особенно актуально при площади около 30 квадратных метров. Удачной инновацией для застройки тех времен стала и гардеробная – тогда ее называли кладовой.
Дизайнер Максим Панин рассмотрел 3 варианта перепланировки такой квартиры для разных типов жильцов – семьи с ребенком, молодой пары и холостяка, создав для последнего грамотно зонированное открытое пространство.
Однушка в блочном доме И-209А
И-209А – блочные 14-этажные дома башенного типа, которые развивают идеи серии II-18. В основном эти дома строились в 1970–1980 годах. Однокомнатные квартиры в доме этой серии имеют широкие возможности перепланировки в связи с тем, что несущими являются внешние стены квартиры (и стена между комнатой/кухней и балконом). Остальные перегородки можно демонтировать и переносить.
Дизайнер Ольга Бондарь предложила три варианта планировки однушки общей площадью 34,8 квадратного метров (жилой — 19,44 квадратного метра). Не забывайте: любую из представленных по ссылке перепланировок необходимо узаконить.
Однокомнатная квартира в новостройке
Комната одна – возможностей много. Это утверждение справедливо для современных однушек в новостройках. Среди явных преимуществ – увеличенная площадь. Однокомнатная квартира площадью 52 квадратных метра в П-111М сравнима с двушкой, построенной годами раньше.
Есть в этой квартире и гардеробная комната: ее наличие и расположение продумывают еще застройщики, а будущему владельцу остается только решить: использовать гардеробную по назначению – хранить там одежду, или все-таки задействовать эти драгоценные квадратные метры для других полезных пространств.
Три варианта перепланировки однушки в П-111М предложил дизайнер Максим Панин.
Угловая однокомнатная квартира в 1-511
По мнению многих специалистов, угловые однушки возглавляют хит-парад некомфортных для проживания квартир: 2 оконных проема в комнате не только не способствуют теплоизоляции, но и часто создают проблемы с расстановкой мебели.
Дизайнер Ольга Бондарь предложила 3 варианта перепланировки угловой однушки в типовом доме серии 1–511 и развеяла миф о безвыходном положении владельцев таких квартир.
Однушка в панельном доме серии П-43
Общая площадь однокомнатной квартиры в доме серии П-43 составляет 35–37 квадратных метров, жилая – 18–20 квадратных метров. Санузел в квартире совмещенный, толщина внешних стен – 35 сантиметров, внутренних железобетонных несущих конструкций – 18 сантиметров и перегородок – 12 сантиметров.
Пожалуй, самый существенный недостаток планировки этой квартиры заключается в несущей стене, соединяющей кухню и жилую комнату. В остальном планировка свободная и, конечно, большой плюс – наличие лоджии. Чтобы увеличить пространство такой однушки можно присоединить лоджию к кухне, расширить или перенести проем в несущей стене и демонтировать все ненужные перегородки. Как это сделать, показала дизайнер Ксения Чупина.
Добавить место за меньшую стоимость
Домовые планки предлагают заманчивое решение этого извечного конфликта пространства и денег: вы хотите больше места в своем доме, но это стоит больше денег, чем вы можете себе позволить.
Если вам нужно многокомнатное пространство — например, спальня, ванная комната и гостиная или офис — вы строите полноценную пристройку. Однако полноценные дополнения разносят ваши финансы вдребезги. Будьте готовы заплатить шестизначную сумму даже за скромное дополнение.
Если вам нужно меньше места (или вы не можете позволить себе пристройку), попробуйте добавить еще одну комнату — одну комнату, пристроенную к стене дома, обычно одну спальню или одну ванную комнату. Если вам не нужно так много места и/или денег мало, выпуклость может быть правильным улучшением, особенно если вам нужно лишь немного больше места в конкретной комнате, например, в ванной или на кухне.
Все, что вам нужно знать о Bump Outs
Что такое Bump Out?
Выступ — это дополнительное пространство, которое намного меньше, чем полное дополнение, и часто даже не достигает размера пристройки к комнате.
Есть две школы мысли о бамп-аутах:
- Полные комнаты : Майкл Личфилд, автор ремонтных работ дома, в своей книге «Квартиры для родственников, преступников и бабушек» определяет жилые помещения как по существу жилые помещения (полные комнаты), примыкающие к дому.

- Меньше, чем комнаты : В книге «Black & Decker The Complete Guide to Room Additions» используется другое определение, в котором выступ рассматривается как дополнение к существующей комнате, но не сама комната.
Как видно из этих различных определений, не существует стандартных правил относительно того, что вызывает рост, с точки зрения размера или масштаба проекта. Выступы также могут иметь различные конструкции и методы строительства, но есть некоторые общие черты и преимущества, которые применимы к большинству выступов:
- Минимум 2 фута : Выступы могут простираться на расстояние от 10 до 15 футов от дома, но они также могут быть крошечными «выступами», глубина которых не превышает 2 футов.
- Консоли : Небольшие выступы часто консольно (не поддерживаются стойками) от дома. Обычно это ограничивается глубиной около 2 футов. Для расширения от дома обычно требуются фундаменты или фундаментные стены.

- Без дополнительного отопления, вентиляции и кондиционирования воздуха : Одним из преимуществ отбойников является то, что они обычно не требуют дополнительного обогрева или охлаждения.
- Односкатная крыша : Выступы часто имеют односкатную (односкатную) или плоскую крышу, вместо расширения существующей крыши.
- Минимальные внешние изменения : Выступы из-за их небольшого размера не меняют существенно внешний вид дома. Они часто сливаются с основным домом.
Как выпуклость может добавить значительное пространство?
Выступ, который простирается на 3 фута от дома и имеет ширину 15 футов, добавляет 45 квадратных футов к дому. Это не будет считаться крупным создателем пространства по сравнению со всем домом. Эти 45 дополнительных квадратных футов добавят всего 3 процента к дому площадью 1500 квадратных футов. Тем не менее, бамп-ауты часто устанавливаются в комнатах, которые и без того очень маленькие, часто невыносимо маленькие.
Кухня площадью 150 квадратных футов, увеличенная еще на 45 квадратных футов, получает 30-процентное увеличение площади.
Рекомендуемое использование Bump Outs
Поскольку большинство выпуклых выходов не являются полными комнатами, они, как правило, улучшают существующую комнату. Домовладельцы обычно используют их, чтобы предоставить достаточно дополнительной площади для определенных целей, таких как:
- Добавление места у окна с книжными полками
- Установка ванны в ванной комнате, в которой в настоящее время есть только душ
- Увеличение длины стойки, добавление места для бытовой техники или установка кухонного острова
- Предоставление на кухне достаточного дополнительного пространства для обеденной зоны или уголка для завтрака
Стоимость выхода из строя
В то время как общая стоимость увеличения меньше, чем у полноразмерного дополнения, увеличение будет стоить больше в расчете на квадратный фут. Это связано с тем, что большая часть затрат приходится на инициирование проекта, выполнение чертежей, получение разрешений, открытие боковой части дома, заливку нижнего колонтитула фундамента (если применимо), вызов электрика для перемещения проводов и так далее.
Возможно, вам придется сделать то же самое с выпуклостью, что и с добавлением, только в меньшем масштабе.
Затраты сильно различаются , потому что они меняются в зависимости от желаний домовладельцев, местности и множества других факторов.
Как далеко вы можете вытолкнуть выступ?
Выступы на уровне пола (первого этажа) могут быть консольными или иметь простой фундамент. Они могут опираться на бетонную плиту или на стены фундамента, что может создать пространство для обхода. Выступы на верхнем уровне часто достаточно малы, чтобы их можно было вынести из каркаса второго этажа.
Когда вы выбираете консольный выступ, размеры балок вашего дома определяют глубину выступа. Как правило, выступы могут быть консольными на расстоянии, равном четырехкратному размеру (глубине) балок перекрытия. Например, балка 2×8 имеет глубину 7 1/4 дюйма; вы можете использовать консольные балки 2×8 на максимальном расстоянии 29дюймы.
| Номинальный размер балки | Фактическая глубина балки | Расстояние от выступающей консоли |
| 2×6 | 5,5 дюйма | 22 дюйма |
| 2×8 | 7,25 дюйма | 29 дюймов |
| 2×10 | 9,25 дюйма | 37 дюймов |
| 2×12 | 11,25 дюйма | 45 дюймов |
Кроме того, на каждый фут, который вы выдвигаете наружу, консольные балки должны в два раза превышать длину существующей балки.
Например, если ваши консоли выдвинуты на 2 фута, у вас будет как минимум 4 фута вдоль существующей балки внутри дома.
Источники статьи
The Spruce использует только высококачественные источники, в том числе рецензируемые исследования, для подтверждения фактов в наших статьях. Прочтите наш редакционный процесс, чтобы узнать больше о том, как мы проверяем факты и делаем наш контент точным, надежным и заслуживающим доверия.
Флаэрти, Эрин. Поднять крышу (или надстроить заднюю часть): расходы на пристройку дома по комнатам . Национальная ассоциация риелторов, 2022.
Личфилд, Майкл В. Квартиры родственников, преступников и бабушек: ваш путеводитель по превращению одного дома в два дома . Тонтон, 2011
Петерсон, Крис. Black & Decker Полное руководство по дополнению помещений . Креативный паб. Международная, 2010
Сколько стоит ремонт нескольких комнат?
Сколько стоит ремонт нескольких комнат?Фото: monkeybusinessimages/ iStock / Getty Images
Вы можете рассчитывать на то, что заплатите от 18 000 до 76 500 долларов за переделку нескольких комнат в вашем доме
Профессионалы.
Введите почтовый индекс ниже и найдите лучших профессионалов рядом с вами.
Вы хотите перестроить свой дом, но не знаете, сколько это будет стоить? Ремонтные работы могут значительно различаться по площади и количеству комнат, которые вы хотите перестроить. Вы найдете стоимость реконструкции нескольких комнат от от 18 000 до 76 500 долларов , при этом 47 000 долларов в среднем по стране .
Сколько стоит реконструкция квадратным футом?
Средняя стоимость колеблется от 10 до 60 долларов за квадратный фут , но может достигать до 150 долларов за квадратный фут . Диапазон цен зависит от того, какие комнаты в доме ремонтируются и где вы живете.
Например, кухни и ванные комнаты — самые дорогие помещения для обновления. Спальни, гостиные и подвалы находятся на нижнем конце. И города с более высокой стоимостью жизни могут в конечном итоге стоить вдвое больше, чем вы заплатили бы в более сельской местности.
Сколько я могу отремонтировать в рамках моего бюджета?
Обычный дом площадью 2 500 квадратных футов будет стоить от 15 000 до 200 000 долларов за ремонт всего дома.
Вот что вы можете получить в зависимости от вашего бюджета:
Нижний уровень: 15 000–45 000 долларов США
Потратив на ремонт дома более низкий уровень, вы можете получить незначительные обновления и косметические изменения, которые заставят его чувствовать себя как новый. Отделка, покраска, ландшафтный дизайн, новые полы и столешницы — все это возможно в этом ценовом диапазоне.
«Краска — это волшебный секрет ремонта», — говорит Боб Чуди, член экспертной группы и генеральный подрядчик из Роли, Северная Каролина. «Свежеокрашенная комната, включая потолки и отделку, выглядит как новая».
Средний уровень: от 46 000 до 70 000 долларов США
Средний уровень ремонта всего дома включает в себя все, что вы видите на нижнем уровне, например отделку, краску, полы и столешницы. Кроме того, вы можете позволить себе полностью переделать кухню или ванную комнату, а также высококачественные напольные покрытия, такие как паркет или мрамор.
Высококлассный: 71 000–200 000 долл.
СШАЭтот высококлассный бюджет включает в себя все новое: отделку, покраску, ландшафтный дизайн, высококачественные полы, полностью оборудованную кухню и ремонт ванной комнаты. Кроме того, вы можете получить высококачественную бытовую технику, нестандартную мебель, структурные обновления (например, новую планировку), новые электрические и фундаментные изменения.
«Если домовладелец проявляет гибкость, есть способы получить высококачественный вид при меньшем бюджете», — говорит Боб Чуди. «Например, реконструкция ванной комнаты с новой ванной и душем, туалетным столиком, сантехникой и освещением в тех же местах стоит значительно меньше, чем реконструкция, требующая изменения расположения сантехники, ОВКВ или электрики».
Какие факторы влияют на стоимость ремонта нескольких комнат?
При планировании ремонта нескольких комнат следует учитывать множество факторов стоимости, в том числе:
Стоимость генерального подрядчика
Реконструкция дома требует профессионального опыта.
Строительные нормы, сантехника, системы отопления, вентиляции и кондиционирования воздуха, электропроводка и структурные изменения требуют ноу-хау.
Конечно, косметические улучшения, такие как покраска и отделка, можно было бы сделать своими руками. Но если вам нужна новая стена, или передвинуть стену, или кишку, то обращаться к профессионалу менее рискованно. В противном случае вы можете получить дом, который не является структурно прочным, что может привести к большим проблемам в будущем, таким как снижение стоимости при перепродаже и личный или имущественный ущерб.
Расценки генерального подрядчика
Вы даже можете сэкономить деньги, выполняя несколько ремонтных работ одновременно. Вы будете работать с одной и той же командой и сможете объединять услуги (например, напольные покрытия). Свяжитесь с тремя подрядчиками, чтобы получить несколько предложений по вашему проекту. И убедитесь, что подрядчик, которого вы нанимаете, представляет заявку и контракт на реконструкцию со всем необходимым для выполнения всей работы.
Расценки генерального подрядчика в зависимости от местоположения
Общая стоимость рабочей силы варьируется от штата к штату из-за местной стоимости жизни, количества комнат, подлежащих реконструкции, типов комнат и объема услуг. Вот сколько вы можете ожидать при найме подрядчика по штатам:
| State | Cost |
|---|---|
| Arizona | $15,000–$66,000 |
| California | $50,000–$120,000 |
| Colorado | $14,000–$61,000 |
| Maine | $10,000–$28,000 |
| Nebraska | $ 16 000–46 000 |
| Пенсильвания | $ 15 000–42 000 |
| Южная Каролина | $ 270096 |
| Южная Каролина | $ 54 000 |
| $ 54 000 | |
| .0087 | |
| Висконсин | $22,000–$81,000 |
Количество комнат
Количество комнат, которые вы ремонтируете, существенно повлияет на ваши общие расходы.
Размер и планировка комнаты (комнат) также повлияют на вашу цену. Чем больше квадратных метров требуется для работы, тем больше времени требуется для завершения, и вам потребуется большее количество материалов.
Типы комнат
Фото: Ириана Шиян / Adobe Stock
Стоимость ремонта различных комнат в вашем доме зависит от того, какие работы вам нужны. Например, в вашей спальне может потребоваться только новый пол, покраска и установка освещения. Вам может понадобиться небольшое или обычное помещение, такое как подвал, прачечная или гараж, переделка которого не займет много времени. Между тем, кухня может потребовать сантехники, шкафов и столешниц.
The most challenging rooms to update are:
Kitchen Remodel: $12,500–$35,000+
Bathroom Remodel: $6,000–$15,000+
Basement Remodel: $11,000–$29,000+
Объем услуг
Объем вашего ремонта играет большую роль в ценах.
Если вы ремонтируете старый дом, будет дороже распотрошить комнаты и установить новые электрические, вентиляторные и водопроводные системы.
Стоимость вашего проекта будет зависеть от местоположения, состояния вашей собственности и квадратных метров каждой комнаты.
Ставки строительства или труда
Обратите внимание, что ставка оплаты труда для различных профессий варьируется от 20 до 150 долларов в час или больше. При планировании реконструкции дома убедитесь, что вы знаете следующие расценки субподрядчиков:
Генеральные подрядчики: Стоимость 10–20% от общей суммы проекта
Архитекторы и инженеры-строители: $ 120– 250 долларов в час
Дизайнеры интерьера: $ 50–200 в час
Kitchen Designers: $ 65–250 в час
$.
Plumbers: $70–$120 per hour
Electricians: $50–$100 per hour
HVAC technicians: $50–$150 per hour
Landscapers: 50–150 долларов в час
Материалы, оборудование и расходные материалы
Реконструкция нескольких комнат может стоить дороже в зависимости от используемых материалов.
Типы гипсокартона, типы напольных покрытий, таких как ламинат, или высококачественные кухонные столешницы, такие как мрамор, — все это влияет на стоимость. Если необходимы какие-либо дополнительные расходные материалы или оборудование, вы также можете ожидать, что заплатите больше.
Масштабный ремонт, такой как реконструкция, не должен быть дешевым. Более низкие цены больше подходят для косметических работ, таких как покраска, отделка или замена пола. Будьте готовы заплатить большую часть своего бюджета за такие вещи, как кухонные прилавки, нестандартные шкафы и бытовую технику.
Разрешения, коды и непредвиденные услуги
Планирование ремонта с самого начала означает, что вы должны подготовиться заранее. Разрешения, строительные нормы и правила, а также любые скрытые проблемы, такие как нашествие термитов или повреждение водой структурных компонентов, могут увеличить расходы.
Чтобы перестроить несколько комнат, запланируйте получение разрешения, если вам нужно сделать любую из следующих вещей:
Удаление и добавление стен
Отделка подвала или чердака
Изменить электрические характеристики
Изменить сантехнику
Изменить «механические» характеристики (HVAC)
Расходы на реконструкцию нескольких комнат Часто задаваемые вопросы
Зачем мне переделывать мой дом?
Реконструкция вашего дома — это решение, которое требует тщательного рассмотрения, и для этого есть много личных и финансовых причин.
Возможно, вы решите продать свой дом, чтобы получить прибыль в будущем. Или, может быть, ваша семья растет, и ваш дом должен расти вместе с вами, или ваш дом остро нуждается в косметическом ремонте. Есть плюсы и минусы, которые следует учитывать, но в целом вы должны убедиться, что это приносит пользу вашему дому и качеству вашей жизни.
«После такого события, как протечка воды в ванной комнате, некоторые домовладельцы решают перестроить вместо ремонта», — говорит Боб Чуди. «Поскольку им уже придется платить за ремонт, полная реконструкция может превратить плохой опыт в положительный результат».
Что следует учитывать при перепланировке нескольких комнат?
Получите оценки от нескольких подрядчиков. Затем рассмотрите любые потенциальные дополнения, которые могут повлиять на стоимость вашего проекта реконструкции. Также следует учитывать более мелкие детали, в том числе:
Разрешения: Разрешения на строительство стоят от 400 до 1800 долларов США.
Большинству государственных и местных властей требуются разрешения. Перед началом любой работы обязательно проконсультируйтесь с вашим муниципалитетом.Ставки на строительство или оплату труда: Стоимость варьируется в зависимости от ставок оплаты труда для различных мастеров. Цены варьируются от 90 176 $20 до $150 в час 90 177 или больше, в зависимости от комнаты, такой как кухня, подвал или ремонт гаража.
Изменения плана этажа: Инженеры-строители берут от 300 до 700 долларов США, в зависимости от сложности и размера. Если вы планируете добавить или изменить лестницу, вам следует проконсультироваться с инженером-строителем по вопросам безопасности.
ОВКВ: Стоимость блоков ОВКВ может составлять от 500 до 7200 долларов или более в зависимости от марки, такой как Coleman, Amana или American Standard.
Какими другими проектами я должен заниматься одновременно?
При перепланировке нескольких комнат в вашем доме лучше всего заняться другими проектами, обратившись к профессионалу в вашем районе, который знает, как починить мелкие вещи в вашем доме, сделать совершенно новые шкафы для вашего ремонта или поменять ковер для свежего взгляда.
Нужна профессиональная помощь с вашим проектом?
Получите цитаты от профессионалов с самым высоким рейтингом.
Рекомендуемые статьи
Как нанять лучшего подрядчика по кухонному острову для вашего дома
Эми Павлюкевич • 17 января 2022 г.
7 модных цветов для кухонных островков и барных стоек
Автор Дина Чейни • 1 сентября 2021 г.
4 Signs You Need a2 Bonder 90 6 февраля 2013 г.
2022 Стоимость добавления основного люкса и ванной
За добавление главного люкса вы заплатите в среднем от от 25 000 до 100 000 долларов США или 62 500 долларов США. Добавление спальни и ванной комнаты в ваш дом обычно приходится на Диапазон от 35 000 до 84 000 долларов США , в зависимости от размера комнаты, особенностей и качества материала. Эти проекты обычно стоят от 80 до 200 долларов за квадратный фут.
Обновлено 24 марта 2022 г.
Рассмотрено Эзра Ланиадо, Экспертный участник.
Автор HomeAdvisor.
На этой странице:
- Стоимость добавления основного люкса за квадратный фут
- Стоимость добавления спальни и ванной комнаты в дом
- Генеральный подрядчик
- Инженер-строитель
- Декоратор интерьера
- Дизайнер интерьера
- Полы, гипсокартон и многое другое
- Стоимость ремонта спальни
- Стоимость ремонта спальни
- Стоимость реконструкции основной спальни
- Стоимость ремонта спальни
- Часто задаваемые вопросы
Продолжить чтение
Выберите проект своей спальниУстановка напольного покрытия
(5 692 проекта)
$3,056 Средняя стоимость по стране
Посмотреть стоимость в вашем регионеПосмотреть расходы в вашем районе
Построить дополнение
(4913 проектов)
$49 603 Средняя стоимость по стране
Просмотр стоимости в вашем регионеПосмотреть расходы в вашем районе
Наймите профессионального организатора
(2 136 проектов)
$498 Средняя стоимость по стране
Посмотреть стоимость в вашем регионеПосмотреть расходы в вашем районе
Установка телефонных розеток и проводки
(1846 проектов)
$173 Средняя стоимость по стране
Посмотреть стоимость в вашем регионеПосмотреть расходы в вашем районе
Установка органайзеров для шкафов
(1567 проектов)
$1635 Средняя стоимость по стране
Посмотреть стоимость в вашем регионеПосмотреть расходы в вашем районе
Построить шкаф
(656 проектов)
$2000 Средняя стоимость по стране
Просмотр стоимости в вашем регионеПосмотреть расходы в вашем районе
Получить разрешение на строительство
(131 проект)
$1360 Средняя стоимость по стране
Просмотр расходов в вашем районеПосмотреть расходы в вашем районе
Будь то масштабная реконструкция или новое дополнение, добавление главной спальни и ванной увеличит стоимость вашего дома.
Для этого вам могут понадобиться самые разные люди: электрики, сантехники, строители, плиточники, специалисты по гипсокартону и декораторы. Размер и масштаб повлияют на все, особенно на ваш бюджет.
Стоимость добавления основного люкса за квадратный фут
Добавление основного люкса составляет В среднем 140 долларов за квадратный фут. Цена за квадратный фут может варьироваться от 80 до 200 долларов США в зависимости от выбранных вами характеристик и отделки. Площадь основных спален составляет 200, 300 или 400 квадратных футов, а их ванных комнат — от 50 до 200 квадратных футов.
| Общая площадь в футах | Средняя цена |
|---|---|
| 250 | $35,000 |
| 300 | $42,000 |
| 400 | $56,000 |
| 460 | $64,400 |
| 560 | $78,400 |
| 600 | $84,000 |
Стоимость пристройки спальни и ванной комнаты к дому
При постройке основного люкса дополнительные спальни и ванные комнаты составляют в среднем 62 500 долларов.
Цена может превысить 100 000 $ , если вы выберете роскошный дизайн и высококачественную отделку, например паркетные полы, французские двери и изготовленные на заказ душевые кабины.
Стоимость добавления ванной комнаты
Стоимость добавления ванной комнаты составляет в среднем 42 500 долларов США. Одна только ванна будет стоить вам от 740 до 1400 долларов за установку, в то время как комплект из душа и ванны обойдется ближе к 3000 долларов за работу и материалы. Ванные комнаты со всей необходимой сантехникой, трубами и отделочными материалами обходятся намного дороже, чем спальная зона.
Расходы генерального подрядчика
При найме генерального подрядчика рядом с вами ожидайте, что его услуги составят от 10% до 25% от общей суммы проекта. Если ваше дополнение относится к среднему ценовому диапазону, ожидайте, что от 6 250 до 15 625 долларов США из общей суммы перейдет к вашему подрядчику. За свою плату эти подрядчики будут заказывать нужные материалы, управлять всеми необходимыми субподрядчиками и планировать каждую задачу в идеальном порядке.
Их услуги облегчат ваш стресс, поскольку они берут на себя ответственность за то, чтобы вся работа была выполнена в соответствии с кодом и в срок.
Расценки инженера-строителя
Услуги инженера-строителя стоят от 200 до 1300 долларов. Их оплата включена в общую стоимость в виде почасовой ставки от 100 до 150 долларов или фиксированной платы, равной примерно 8% стоимости проекта. Многие принимают план оплаты, начиная с 25% авансом, но вы всегда должны сначала получить соглашение в письменной форме. Вы разделите остаток поровну между оставшимися двумя платежами. Эти профессионалы стоят своих денег, поскольку они следят за тем, чтобы ваше дополнение было структурно надежным.
Стоимость найма декоратора интерьера
Декораторы интерьера берут от 2000 до 11000 долларов , чтобы помочь украсить пространство. Вы можете пригласить этого эксперта, как только комната будет построена и вы будете готовы ее украсить. Они помогут подобрать цветовую гамму, купить мебель и продуманно оформить интерьер.
Дизайнеры интерьеров
Дизайнеры интерьеров также берут от 2 000 до 11 000 долл. США за повышение эффективности и потока вашего дополнения. Поскольку они проектируют постоянные элементы в каждой комнате, их услуги отличаются от услуг декораторов интерьера, которые сосредоточены исключительно на отделке и мебели.
Гипсокартон и обшивка панелями
Подвесной гипсокартон стоит в среднем 1730 долларов. Вместо того, чтобы указывать общую цену, подрядчики могут взимать от 1 до 3 долларов за квадратный фут за эту услугу. Если вместо этого вы хотите деревянные панели, рассчитывайте заплатить от 90 176 до 40 долларов за каждый квадратный фут. Разница заключается в качестве древесины. Основные панели из древесно-стружечной плиты находятся в нижней части диапазона, в то время как клен, дуб и другие дорогие лиственные породы находятся в верхней части диапазона.
Установка дверей и окон
Установка окон стоит от 450 до 2000 долларов за штуку для стандартных размеров.
Общая сумма включает от 300 до 1200 долларов за окно плюс от 150 до 800 долларов за работу. Подрядчики могут взимать 40 долларов в час за завершение установки или указывать цену за окно. Если вы хотите по одному окну в спальне и ванной комнате, вы заплатите от 900 до 4000 долларов.
Чтобы установить межкомнатную дверь, ведущую в спальню, и еще одну для ванной комнаты, рассчитывайте заплатить от 300 до 1600 долларов. Каждая межкомнатная дверь стоит от 50 до 500 долларов , в зависимости от материала, размера и стиля. Стоимость труда обычно составляет от 100 до 300 долларов за дверь . Внешние двери патио стоят дороже: от 1200 до 10 000 долларов .
Напольное покрытие
Цена напольного покрытия обычно составляет от 1500 до 4460 долларов США. В зависимости от материала напольного покрытия, который вы выберете, рассчитывайте заплатить от 3 до 22 долларов за квадратный фут. Винил и линолеум самые дешевые по от 3 до 7 долларов за квадратный фут, , в то время как твердая древесина является самой дорогой.
Сборка шкафа и установка органайзеров
Если вы добавите шкаф и установите органайзер, вы можете заплатить около 3695 долларов США. Сборка шкафа стоит в среднем 2015 долларов. Цена органайзера обычно колеблется от 870 до 2480 долларов.
Освещение
Цена установки светильника от 150 до 825 долларов , в зависимости от выбранного вами стиля. В 1000 долларов и более, люстры стоят дороже всего. Куполообразные светильники скрытого монтажа являются самыми дешевыми по цене от 90 до 225 долларов США .
Подвешивание зеркала
Чтобы покрыть расходы на подвешивание зеркала, вы обычно платите от 160 до 465 долларов. Средняя цена составляет 295 долларов США, , но общая сумма может достигать 800 долларов США для больших настенных зеркал.
Установка розеток
Установка розеток стоит от 75 до 485 долларов каждая. В спальне вам понадобится всего две-три основные розетки, всего В среднем 630 долларов.
В ванной вы должны установить блоки с защитой GFCI, которые могут стоить 970 долларов на двоих.
Установка кабельных/телефонных разъемов и проводки
Ожидайте от 50 до 420 долларов США за кабели и телефонные разъемы, включая проводку. С этой установкой у вас будет удобный доступ к подключениям для вашего телевизора и телефона.
Встроенные книжные полки
Если вы хотите покрыть стоимость встроенных книжных шкафов, рассчитывайте заплатить от 500 до 7300 долларов США или в среднем 2510 долларов. Большинство проектов попадают в диапазон от 1250 до 3930 долларов , если только вы не хотите, чтобы они были сделаны из твердых пород дерева или других дорогих материалов.
Additional Project Costs
| Other Expenses | Average Price |
|---|---|
| Interior paint for one room | $600 |
| Exterior paint | $710 |
| Roof framing | $800 |
| Roofing | $2,000 |
| Siding | $2,675 |
| Plumbing | $2,750 |
| Demolition of an existing wall | $3,215 |
| Foundation | $8,120 |
Стоимость реконструкции спальни
Если вы хотите реконструировать существующую спальню размером 10 на 12 футов, вы заплатите от 3 545 до 10 470 долларов.
Общее количество зависит от того, какие функции и отделку вы хотите обновить.
| Scope of the Remodel | Average Price |
|---|---|
| Paint and flooring replacement | $3,545 |
| New wall and floor finishes plus a Органайзер для шкафа | 5 225 $ |
| Краска, напольное покрытие и встроенный книжный шкаф | 6 055 $ |
| Новые двери и окна плюс краска и напольное покрытие | $10 470 |
Стоимость ремонта спальни
В среднем вы можете рассчитывать на то, что вам придется заплатить $8 215 за ремонт спальни. В общую сумму входит новая краска на всех стенах за 600 долларов США плюс 2945 долларов США для полов средней ценовой категории, таких как ламинат.
Также в цену включены 480 долларов для освещения, 2510 долларов для установки встроенного книжного шкафа и 1680 долларов для качественного органайзера для шкафа.
Стоимость реконструкции главной спальни
Чтобы переделать основную спальню, вы заплатите около 20 970 долларов. Общая сумма включает 10 500 долларов США для покрытия расходов на ремонт ванной комнаты. На эти средства можно заменить полы в обеих комнатах, заменить сантехнику и обновить освещение.
Стоимость ремонта спальни
Если вы хотите полностью отремонтировать существующую спальню, вы можете заплатить до 31 250 долларов.
Ваш ремонт может включать:
$600 for a new coat of paint
$2,200 for two interior doors
$4,460 to install new flooring
$8,530 for replacement windows
$2,940 to build шкаф
2480 долларов для установки органайзера для шкафа
825 долларов для модного светильника
$ 485 для модернизации выходов
$ 3930 для встроенных книжных шкафов
$ 4 800 для панелей с линейными положениями 9003
999777 9000
9999 90009999 90009999 90009999 90009977 900099999999999999999999999999999999 гг.
Преобразование столовой в спальню обычно стоит от 1900 до 4600 долларов, в зависимости от вашего выбора материалов. В эту цену входит установка гипсокартона, установка межкомнатной двери и покраска комнаты. Если вам нужен встроенный книжный шкаф, кровать в стенной нише или другие функции, общая сумма может немного увеличиться.
Дешевле ли добавить основной пакет или нарастить его?
При цене от 100 до 300 долларов за квадратный фут, строительство часто обходится дороже, чем создание основного апартамента на первом этаже. Это особенно актуально, если вам нужно добавить лестницу и проверить, выдержит ли существующий фундамент вес пристройки. Если у вас достаточно места, вы можете сократить расходы, превратив чердак в основное помещение.
Какую ценность добавляет основной пакет?
Строительство основного комплекта обеспечивает возврат инвестиций на уровне 63 %. Это означает, что когда вы продаете дом, вы окупаете более половины денег, вложенных в добавление основной спальни и ванной комнаты.
Если ваша ванная комната устарела, ее можно продать еще дороже. Кроме того, обновления могут помочь вашему дому продаваться намного быстрее.
Можете ли вы сами переделать спальню?
Если у вас есть инструменты и ноу-хау, вы можете переделать спальню самостоятельно. Это особенно актуально при простом перекрашивании стен или замене светильников. Для крупномасштабных проектов часто лучше нанять подрядчика, имеющего опыт реконструкции основных люксов и других стилей спален. Используя свой опыт, они могут убедиться, что конечный результат соответствует вашему видению того, как спальня должна выглядеть и функционировать.
Связанные оценки затрат от HomeAdvisor
- Создайте дополнение к набору для супругов
- Добавить вторую историю
- Построить сарай или игровой домик
- Построить винный погреб
- Построить игровую комнату
- Построить грязевую комнату
- Построить столовую
- Превратите дом на одну семью в дуплекс
- Построить секретную комнату
- Преобразование дуплекса в одиночную семью
- Создайте эффектное дополнение
- Уложить терраццо-пол
- Установить мраморные полы
- Заменить или отремонтировать черновой пол
- Уложить бамбуковый паркет
- Уложить полированные бетонные полы
- Уложить шиферную плитку
- Уложите напольную плитку из травертина
- Установите паркетные полы
- Установить резиновый пол
- Установить роскошную виниловую плитку
- Установить кварцевый пол
- Установить пол из известняка
- Переместить мебель
- Построить кладовую
Популярные категории
- Дополнения и переделки
- Ванные комнаты
- Отопление охлаждение
- Кухни
- Пейзаж
- Все категории
Популярные проекты
- Наймите разнорабочего
- Нанять горничную
- Установить Ландшафтный дизайн
- Реконструировать ванную комнату
- Реконструировать кухню
Избранные статьи
- Сколько стоит установить или заменить кухонные шкафы?
- Сколько стоит пристройка к дому?
- Сколько стоит установка или замена столешницы?
- Сколько стоит установить окно?
- Сколько стоит чистка водостоков?
Лучшие улучшения, повышающие стоимость дома на основе рыночных данных
Не все улучшения дома создаются одинаково, так что же выбрать между реконструкцией кухни или добавлением деревянных полов? Насколько добавление спальни или ванной комнаты на самом деле увеличит стоимость вашего дома?
На эту тему существует множество мнений, поэтому мы выбрали научный подход.
Наша команда по обработке данных создала калькулятор улучшения дома. С помощью этого инструмента вы можете использовать наши данные о тысячах недавних продаж домов в двадцати крупных городах, чтобы оценить, какие улучшения дома приносят наибольшую пользу.
→ Воспользуйтесь калькулятором. Это один из немногих инструментов, основанных на текущих рыночных данных.
Лучшие улучшения дома, которые приносят наибольшую пользуЭто лучшие проекты по ремонту, реконструкции и улучшению дома, которые увеличивают стоимость дома на основе данных Opendoor о тысячах недавних продаж домов. Мы изучили 11 проектов и ранжировали их по среднему приросту стоимости в городах, где мы покупаем и продаем жилье. Мы принимаем среднюю цену дома на каждом рынке.
| Проект улучшения дома | Увеличение средней стоимости при перепродаже, % | Среднее увеличение перепродажи в долларах |
1. Добавить пул | 7,3% | 22 000 долларов |
| 2. Отделка подвала | 6,6% | 22 000 долларов |
| 3. Добавить 3-ю спальню | 6,2% | 20 000 долларов |
| 4. Добавьте полную ванную комнату | 5,7% | 18 000 долларов США |
| 5. Добавить жилую площадь | 5,3% | 17 000 долларов США |
| 6. Полный ремонт кухни | 4,8% | 15 000 долларов США |
| 7. Преобразование существующей кв. футов во 2-ю или 3-ю спальню | 4,3% | 14 000 долларов |
| 8. Полная реконструкция ванной комнаты | 3,7% | 11 000 долларов США |
| 9. Укладка паркета | 3,4% | 10 000 долларов |
| 10. Добавить половину ванной | 2,9% | 9000 долларов |
| 11. Добавить пристроенный гараж | 2,2% | 7000 долларов |
Данные представляют собой среднее увеличение стоимости перепродажи домов по средней цене на всех 20 рынках, которые в настоящее время обслуживает Opendoor.
Данные о ценах на жилье через Национальную ассоциацию риелторов (NAR). Данные Opendoor обновлены в августе 2019 года. Ссылаясь на данные по благоустройству дома Opendoor, вы соглашаетесь указать Opendoor в качестве источника и ссылаться на эту страницу.
Легко начать думать… «Вау, добавление спальни может увеличить стоимость моего дома на 6%, я собираюсь добавить шесть спален!» К сожалению, многие проекты имеют убывающую отдачу, а это означает, что чем больше вы добавляете, тем больше пользы вы получаете. На приведенной выше диаграмме показана стоимость выполнения одного проекта реконструкции среднего дома на каждом из наших рынков.
В конечном счете, сумма стоимости, которую проект добавляет к вашему дому , будет зависеть от местоположения дома и текущей стоимости. Мы рекомендуем использовать наш калькулятор улучшения дома, чтобы получить более точное представление данных, поскольку вы сможете выбрать свой город и диапазон стоимости дома.
→ Узнайте больше о том, как Opendoor рассчитывает стоимость вашего дома.
Рассматриваете проект по благоустройству дома?
Ниже мы рассмотрим тенденции ценообразования на 5 лучших улучшений дома, которые могут увеличить стоимость вашего дома. Перейти вперед, чтобы узнать больше об интересующем вас проекте:
- Добавить бассейн
- Завершить подвал
- Добавить спальню
- Добавить полную ванную комнату
- Добавить жилую площадь
Увеличит ли стоимость моего дома добавление бассейна ?
Добавление встроенного в землю бассейна может повысить медианную стоимость дома на 7,3%, согласно данным Opendoor по 20 городам. Это предполагаемое увеличение доллара примерно на 21 700 долларов при перепродаже.
| Верхние 3 города, чтобы добавить бассейн | Средняя стоимость перепродажи % увеличение | Среднее увеличение $ | |
| 1. TAMPA, FL | |||
| 1. TAMPA, FL | |||
1. TAMPA, FL | |||
| 1. TAMPA, FL | |||
| 1. TAMPA, FL | |||
| 1. TAMPA, FL | |||
| 1. TAMPA. | 2. Сан-Антонио, Техас | 9,7% | $ 19 450 |
| 3. Хьюстон, TX | 9,4% | $ 18 750 |
Добавление бассейна — это отличный пример, как цена на ценность.
На южных рынках, таких как Тампа, Джексонвилл и Остин, чем выше стоимость дома, тем большую ценность может добавить пул. На рынках Западного побережья в Лос-Анджелесе и Внутренней Империи все наоборот, где добавление пула приводит к несколько меньшей стоимости по мере роста цены на жилье.
Одной из причин такой тенденции может быть высокая стоимость жизни на рынках Западного побережья. Дополнительные расходы на содержание бассейна могут сделать дома менее привлекательными для покупателей с ограниченным бюджетом.
Насколько отделка подвала повысит стоимость моего дома?
Отделка подвала может увеличить медианную стоимость дома на 6,6% на основе наших данных по 20 городам.
Это предполагаемое увеличение доллара на 21 786 долларов при перепродаже. Мы определяем отделку подвала как 700 квадратных футов подвального помещения с дополнительной изоляцией, гипсокартоном, освещением и аварийным окном или дверью.
| Верхние 3 города, чтобы закончить подвал | Средняя стоимость перепродажи % увеличение | Среднее увеличение $ | |
| 1. Portland, or | |||
| 1. Портленд, or | |||
| 1. Портленд, or | |||
| 1. Портленд, OR | |||
| 1. Портленд, or | |||
| 1. Portland, or | |||
| 1. Портленд. | 2. Nashville, TN | 8,7% | $ 26 100 |
| 3. Raleigh, NC | 7,3% | $ 22 000 |
, когда выпадают в аренду, или на аренду, или на аренду, или на аренду, или на аренду, или на аренду, или на аренду, или на аренду, или на аренду, или на аренду, или на аренду, или на аренду, или на аренду, или на аренду.
также приносят доход, что делает его очень привлекательным для покупателей. Однако мы обнаружили, что его значение сильно зависит от местоположения.
Например, в Портленде есть много исторических викторианских домов и домов ремесленников, и, возможно, именно поэтому желанные притоны в подвале там так сильно увеличились. На самом деле, он имеет один из самых больших приростов среди недорогих домов, которые мы наблюдали в наших данных, прибавляя к северу от 15%!
Должен ли я добавить спальню в свой дом?
Основываясь на наших данных, мы обнаружили, что при прочих равных условиях стоимость вашего дома увеличивается больше всего при добавлении второй или третьей спальни. Данные также показывают, что добавление 3-й спальни может привести к среднему увеличению на 6,2% для среднего дома. Это предполагаемое увеличение доллара примерно на 19 долларов.,813.
Мы определяем этот проект как добавление 2-й или 3-й спальни, что увеличивает надземную жилую площадь вашего дома как минимум на 150 квадратных футов.
Как правило, в спальне должен быть шкаф, окно и дверь.
| Верхние 3 города, чтобы добавить спальню | Средняя стоимость перепродажи % увеличение | Среднее увеличение $ |
| 1. Los Angeless, CA $ | ||
| 1. Los Angeless, CA $ | ||
| 1. Los Angeless, CA $ | ||
| .6 | ||
| 2. Orlando, FL | 7,5% | $ 22 350 |
| 3. Джексонвилл, FL | 7,2% | $ 14 450 |
$ 14 450
. третья спальня в доме по средней цене в Лос-Анджелесе приводит к наибольшему приросту стоимости из всех изученных нами проектов реконструкции.
Дело не только в том, что квадратные метры имеют большую ценность, поскольку добавление жилой площади приносит больше пользы в Тусоне и Сакраменто, чем в Лос-Анджелесе.
Более вероятно, что добавление спальни особенно ценно в более плотных мегаполисах. Например, в Лос-Анджелесе один из самых высоких показателей по количеству человек на домохозяйство в стране.
Должен ли я добавить еще одну ванную комнату в свой дом?
Согласно данным Opendoor, добавление полностью оборудованной ванной комнаты может повысить медианную стоимость дома в среднем на 5,7%, что в долларах США увеличится примерно на 17 638 долларов. Мы определяем добавление полной ванной комнаты как преобразование существующего пространства, чтобы включить душ, раковину и туалет. Мы не предполагаем никаких изменений в общей площади квадратных футов.
| 3 города, в которых чаще всего добавляют ванную комнату | Увеличение средней стоимости при перепродаже, % | Average $ Resale Increase |
| 1. Atlanta, GA | 8.4% | $25,450 |
2. Sacramento, CA | 7.8% | $23,450 |
| 3. Minneapolis, MN | 7,7% | 23 000 долл. США |
Неудивительно, что при добавлении дополнительной полной ванны, установки половинной ванны для гостей или просто украшении существующего пространства добавление полноценной ванной комнаты создает наибольшую стоимость при перепродаже. средний.
Что может вас удивить, так это то, что реконструкция существующей ванной комнаты создает почти такую же ценность, как и ее переделка с нуля во многих городах.
Разница в добавленной стоимости при перепродаже между полным переоборудованием ванны и полной реконструкцией ванны в Миннеаполисе, например, составляет несколько тысяч долларов. В Атланте, однако, добавление полностью новой ванной комнаты может привести к большему увеличению, чем добавление бассейна или спальни.
Должен ли я увеличить внутреннее жилое пространство в своем доме?
Увеличение жилой площади может добавить в среднем 5,3% к средней стоимости дома, согласно данным компании Opendoor по благоустройству дома.
Это увеличение доллара примерно на 16 628 долларов. Мы определяем этот проект как добавление 150 квадратных футов надземной жилой площади.
Топ-3 городов, в которых больше всего внутренних жилых площадей0087| 6.4% | $19,450 | |
| 2. Tucson, AZ | 6.3% | $12,550 |
| 3. Tampa, FL | 5.9% | $17,700 |
In most of the markets we Согласно исследованиям, добавление спальни создает в среднем большую ценность, чем расширение жилой площади. Но в некоторых мегаполисах, таких как Остин, Денвер и Тусон, большая гостиная или дополнительная семейная комната на самом деле создают большую ценность, чем спальня.
В Сакраменто — нашем лучшем городе по увеличению жилой площади — расширение интерьера создает примерно такую же стоимость при перепродаже, как и добавление спальни, независимо от текущей стоимости дома. Хотя верно то, что, как правило, спальни требуют более высокой цены продажи дома, увеличение полезного пространства в доме может быть разумным вложением, особенно для больших семей.
→ Сравните затраты на продажу через Opendoor и традиционную продажу дома
Как выбрать улучшения для дома с наибольшей рентабельностью инвестицийВажно помнить, что «добавление ценности» — это не то же самое, что окупаемость инвестиций (ROI). Понимание того, сколько проект может потенциально добавить к стоимости вашего дома при перепродаже, является первым шагом в определении того, окупятся ли инвестиции. Второй шаг – понимание стоимости.
В Финиксе переделка кухни может добавить 23 000 долларов, но средняя стоимость ремонта кухни составляет около 15 000 долларов, согласно последнему Американскому обзору жилищного строительства. Местные затраты будут различаться, но в контексте рентабельности инвестиций это означает, что чистый доход от реконструкции кухни в Фениксе будет оцениваться чуть более 8000 долларов США.
Как вычислить ROI для кухни Remodel
| Дом Дом до реконструкции | $ 200 00097 |
Дома 15 000 долл. США | |
| Возврат инвестиций (ROI) | 8000 долл. США (+53%) |
Оценка добавленной стоимости перед тем, как браться за проект, упрощает ведение переговоров с подрядчиками и понимание выгодно вкладывать свое время и деньги.
Даже если окупаемость проекта отрицательна — как это может быть для более дорогих домов — вы также должны учитывать, насколько вам понравится обновление, и вы вскоре планируете продать, будь то недели или годы. прочь.
В то время как некоторые домовладельцы хотят максимизировать рентабельность инвестиций, другие могут предпочесть повысить качество жизни в своем доме. Мы надеемся, что наш калькулятор улучшения дома поможет вам сделать и то, и другое.
Выводы
- Ваше местоположение и текущая стоимость дома являются важными факторами, которые следует учитывать при принятии решения о том, какой проект будет иметь наибольшую стоимость при перепродаже.
- В то время как реконструкция, как правило, создает большую ценность среди менее дорогой недвижимости, некоторые проекты, такие как добавление бассейна в Остине или пристроенного гаража в Тампе, на самом деле создают большую ценность для более дорогих домов.

- Не забывайте, что добавленная стоимость — это не то же самое, что ROI. Вычтите стоимость проекта из ожидаемого увеличения стоимости дома, чтобы оценить, приведет ли это к чистой прибыли.
Разблокируйте предложение на свой дом
- Получите бесплатное предложение без обязательств в течение 24 часов.
- Забудьте о списках, показах и ремонте.
- Закрыть на своей временной шкале.
18 способов превратить неиспользуемое пространство в комнаты, которые вам нужны
Больше места, та же занимаемая площадь
Надстройки над и под домом — это разумные способы увеличить жилую площадь, но есть и другие творческие способы получить дополнительные квадратные метры без радикальных затрат. изменение площади вашего дома. Посмотрите вверх, вниз и по сторонам, и вы обнаружите, что у вас больше места для комнат, чем вы думаете, — на чердаке, в подвале, в гараже или даже в малоиспользуемой хозяйственной постройке.
В этом старом доме собраны любимые бонусные комнаты в подвале и чердаке, а также переоборудованные сараи и гаражи, трехсезонные веранды и многое другое, чтобы помочь вам найти это скрытое пространство в вашем доме.
От чердака до люкса Retreat
Уильям ЭносИногда в поисках большего жизненного пространства некуда смотреть, кроме как вверх. Когда Алан Кох купил этот коттедж 1933 года в Портленде, штат Орегон, он знал, что рано или поздно закончит чердак площадью 600 квадратных футов. А так как он работал дома, Алану очень хотелось иметь светлый, светлый офис, где он мог бы расслабиться. Постучав наверху, он решил, что сможет выделить именно такое пространство, а также удобную главную спальню, зарезервировав спальни внизу для гостей и просмотра телевизора.
После расширения чердачного помещения на 100 квадратных футов за счет остроконечного слухового окна, воздушное гнездо Алана теперь завершено, и каждый квадратный дюйм максимально эффективно используется с умными деталями, экономящими пространство, такими как дверца шкафа, которая освобождает проход.
и ясно.
Подвал от холода до комфорта
Марк СамуИногда дополнительная комната, о которой вы всегда мечтали, находится прямо у вас под ногами. Элизабет Уиллетт стремилась удовлетворить несколько потребностей своей семьи в 19 лет.27 в стиле Тюдоров, когда она увидела неиспользованный потенциал в его подвале. «В нем уже был камин и крошечная ванна, но он так и не был доведен до конца», — говорит она. Потолок хоть и был низким, но не слишком низким, и влага — бич переделки подвала — не была проблемой.
Вскоре Элизабет и ее муж Крис представили себе пристройку площадью 830 квадратных футов, за вычетом новой площади, с целым рядом удобств. Они создали семейное убежище и развлекательное пространство у подножия лестницы. Гости могут повернуться налево, чтобы заглянуть в винный погреб, или плюхнуться на диван напротив каменного камина и телевизора. Дэвису даже удалось разместить ванную комнату, прачечную, кладовую и домашний офис. Семейная комната в деревенском стиле теперь является местом сбора их дочери и ее друзей.
Гостиная с плетеной верандой в деревенском стиле
Tim Street-PorterБлагодаря удобному расположению с видом во двор, веранда является идеальным местом для серьезного отдыха в мягкую и теплую погоду. Чтобы подчеркнуть эту идею в собственном нью-йоркском доме, дизайнер интерьеров Том Фэллон превратил свое крыльцо в полноценную комнату. Он закрепил мебель — старинное плетение и ротанг, объединенные слоем ярко-зеленой краски — с натуральным ковром, а на дранку повесил зеркала и акварель.
Подушки темно-синего, белого и цитрусово-желтого цветов добавляют цвета, а отделка бледно-сельдерейного оттенка привлекает внимание к жалюзийным ставням и характерным арочным окнам Carpenter Gothic 1875 года. «Вид классический, даже немного тихий, что контрастирует с буйной архитектурой дома», — говорит Фэллон.
Smart Homework Station
Tria Giovan/ Southern Living Четверо детей и их рюкзаки возились на кухне после школы.
Таким образом, эти домовладельцы создали уединенную и прилежную атмосферу для школьных занятий. В верхних шкафах хранятся школьные и художественные принадлежности, а также спрятаны подвальные воздуховоды.
Чердак, превращенный в идеальную детскую спальню
Джулиан ВассСпросите детей, и они скажут вам, что идеальное место для сна — в доме на дереве или на парусной лодке, как у Макса в «Где водятся дикие твари» . Архитектор Даррен Хельгесен воплотил этот дух в этой переделке на чердаке столетнего дома в Ист-Хэмптоне, штат Нью-Йорк, где он использовал теплую отделку и продуманные детали, чтобы превратить темное пространство со скошенным потолком в апартаменты с двумя спальнями в форме корабля. Домовладельцы Билл и Кори Лаверак уже отремонтировали остальную часть дома.
«Это всегда было их любимым местом», — говорит Кори, вспоминая, как четверо детей пары прятались наверху с друзьями при каждом удобном случае. «А теперь это идеальное место для ночлега».
Уютные встроенные шкафы с ящиками под кроватью, мансардные окна, полы из сосны и множество глянцевых досок открыли чердак и сделали его более функциональным.
Из флигеля в притон на заднем дворе
Боутоны из Бруклина, штат Миссисипи, унаследовали унылый одинокий сарай, когда они переехали в свой дом. Но при планировании бокового сада они увидели, что эта маленькая флигель размером 12 на 12 футов может стать координационным центром. Они добавили крыльцо с двускатной крышей, затем установили уцелевшие окна коттеджа и увенчали его раздельной крышей из кедрового каучука. Теперь каждый хочет провести ночь в своем маленьком жемчужине на заднем дворе!
Из подвала Бла в Волшебный кинотеатр
Линда Ояма Брайан Когда Кэти и Боб Чероне решили расширить свой дом 1912 года в Уилметте, штат Иллинойс, за счет пристройки, чтобы принимать гостей от четырех взрослых детей, их команда по проектированию и строительству увидела потенциал в сыром подвале.
Построив и завершив его, они могли получить место для мультимедийной и игровой комнаты, достаточно большой для семейных посиделок.
Строители выкопали фундамент и цоколь для пристройки, затем снесли часть стены между старым и новым подземными пространствами. Новый цокольный этаж добавил 915 квадратных футов жилой площади и решить проблему влажности с помощью дренажных систем по периметру и дренажных насосов. Пространство содержит проекционный телевизор и бильярдный стол под 9-футовым потолком. «Когда эти чикагские медведи горят — черт возьми, — вся семья здесь», — говорит Кэти.
Интеллектуальное решение для небольшого дома
Susan Seubert Реконструкция небольшого дома может быть такой же сложной, как и сборка пазла. Это то, что Мэтью и Дарси Хейни обнаружили, ремонтируя трехкомнатную комнату наверху в своем коттедже в Карлтоне, штат Орегон. Они установили новые окна, которые фактически соответствуют нормам пожарной безопасности. Встроенная мебель, шкафы и открытые полки — вместе с новой ванной — используют все доступное пространство.
Из гаража в удобную комнату отдыха
Марк ЛоманЭто знакомое явление: план реконструкции, с которым вы начинаете, не совсем тот, с которым вы закончите. Для одной семьи из Южной Калифорнии ремонт гаража превратился из обычной игровой комнаты для двух маленьких детей в хорошо оборудованную медиа-комнату, предназначенную не менее для взрослых. «Когда мы начинали, мы хотели, чтобы дети могли играть в свои Wii Sports, которые занимают много места», — говорит домовладелец, и редко используемая пристройка рядом с бассейном стала решением.
Верхние двери были заменены на каретные блоки, и была построена стена — обе стены легко снимаются, чтобы вместить две машины, если семья когда-нибудь захочет вернуть комнату в гараж. Они установили потолок, отделали стены изоляцией и стеновыми панелями, построили утепленный черный пол и добавили нестандартные встроенные элементы, холодильник для напитков и электропроводку для медиа-оборудования.
Одиночество на заднем дворе без жуков
За зимние месяцы Карл Юнгблут из Буна, штат Айова, спроектировал эту экранированную комнату размером 12 на 6 футов для использования стандартных бревен с очень небольшим количеством отходов.
Настил внутри представляет собой композитный настил стандартной длины, не требующий особого ухода. «Поскольку мы планировали окрасить его в зеленый, а в красный цвет, я использовал обработанную под давлением древесину, а также металлическую крышу и композитный настил», — говорит Карл.
Надстройка над гаражом
Nat Rea «Нам нравится расположение нашего дома, но в нем было мало места», — говорит Джефф Аллен из прибрежного Кейп-Кода 1925 года в Баррингтоне, штат Род-Айленд, который он делит с женой Мишель Форсье и их маленькой дочерью. Хотя дом с двумя спальнями площадью 1600 квадратных футов, где проходил последний телевизионный проект TOH, был построен как сезонная резиденция, семья планирует жить в нем круглый год. На первом месте в списке желаний пары была дополнительная спальня и ванная наверху. Учитывая небольшой участок дома и строгие местные законы о зонировании, Брюстер набросал пристройку в единственном месте, где она могла быть: над пристроенным неотапливаемым гаражом.
С чердака в спальню с помощью Интернета
Дэвид ПринсНебольшое ранчо 1950-х устраивало своих новых владельцев, за исключением одного. Они хотели главную квартиру. Но как его получить, когда первый этаж был забит кухней, гостиной и столовой, единственной ванной комнатой и двумя крошечными спальнями, одна из которых скоро станет детской? Добавить не вариант. Итак, Клаудия и Фелипе Менанто из Пискатауэя, штат Нью-Джерси, заглянули на чердак.
Половина стены теперь окружает лестницу, открывая пространство и позволяя солнечному свету из новых световых люков заливать комнату. Встроенные элементы делают пространство чистым и функциональным. Мансардные окна создают иллюзию высоты, когда поднять крышу было невозможно.
Из неиспользуемого пространства в домашний офис, полный смарт-хранилища
Шелли Харрисон Женатые нейробиологи Вивек Унни и Тамили Вайсман-Унни, владельцы дома 1870-х годов в Кембридже, штат Массачусетс, начали с новорожденного ребенка и простой цели.
«Нам нужна была ванная на первом этаже с пеленальным столиком, — говорит Тамили. Но они также были обременены темным парадным входом рядом с передней комнатой, которая служила специальной прихожей, и «коварной» узкой лестницей.
Поэтому они попросили своего генерального подрядчика переосмыслить все пространство. Теперь в нише стола используется угол с естественным освещением, дополненный встроенными потолочными светильниками. Откидывающиеся ставни, бледный пол и четкие линии обзора делают наполненную светом комнату намного больше, чем она есть на самом деле.
Очаровательная гостиная на открытом воздухе
Ван Чаплин Садовые стены действительно помогают внутреннему дворику или террасе почувствовать себя комнатой, независимо от того, сделаны ли они из зелени, камня или, что более неожиданно, из старых церковных окон, используемых здесь. Свисающие с перил, установленных на угловых стойках, они окружают террасу размером 16 на 16 футов, придавая ей элегантный вид застекленной оранжереи.
Домовладелец Сюзанна Хадсон, садовый дизайнер, купила пять находок высотой 11 футов за 9 долларов.0 каждый на блошином рынке много лет назад и недавно использовал их, чтобы определить ее Дугласвилль, Джорджия, палуба как огромные белые пики на заборе.
Что касается мебели, окрашенные металлические крыльцо и пружинные стулья 1940-х годов имели непринужденный вид, которого хотел Хадсон; железная подставка для свечи и армиллярные солнечные часы за короткое время получили правильную ржавую отделку. «Зеленый, коричневый и белый — естественные цвета патины в саду — встроенная цветовая схема», — говорит она. «Синие гортензии и розовые подушки делают его ярче».
Из сырого подвала в семейную комнату
Эрик Ранг Садовые стены действительно помогают внутреннему дворику или террасе почувствовать себя комнатой, независимо от того, сделаны ли они из зелени, камня или, что более неожиданно, из старых церковных окон, используемых здесь. Свисающие с перил, установленных на угловых стойках, они окружают террасу размером 16 на 16 футов, придавая ей элегантный вид застекленной оранжереи.
Домовладелец Сюзанна Хадсон, садовый дизайнер, купила пять 11-футовых находок по 90 долларов каждая на блошином рынке несколько лет назад и недавно использовала их, чтобы обозначить свою террасу в Дугласвилле, штат Джорджия, как огромные белые пикеты на заборе.
Что касается мебели, окрашенные металлические крыльцо и пружинные стулья 1940-х годов имели непринужденный вид, которого хотел Хадсон; железная подставка для свечи и армиллярные солнечные часы за короткое время получили правильную ржавую отделку. «Зеленый, коричневый и белый — естественные цвета патины в саду — встроенная цветовая схема», — говорит она. «Синие гортензии и розовые подушки делают его ярче».
Бюджетный светлый люкс на чердаке
John Gruen В маленьком доме каждый кусочек пространства должен работать, как вскоре поняли домовладельцы Саманта и Брайан Лангдо, купив свой мыс площадью 1200 квадратных футов в Уотербери, штат Коннектикут. Желая зарезервировать две спальни на первом этаже для гостей, они нацелились на готовый чердак второго этажа для своей главной спальни.
Работая по ночам и выходным в течение примерно двух месяцев, пока они спали в гостевой спальне внизу, пара выпотрошила большую часть пространства, вырвала стены шкафа и утеплила помещение.
Незавершенный подвал получает мужской макияж
Джо ШмельцерСадовые стены действительно помогают внутреннему дворику или террасе почувствовать себя комнатой, независимо от того, сделаны ли они из зелени, камня или, что более неожиданно, из старых церковных окон, используемых здесь. Свисающие с перил, установленных на угловых стойках, они окружают террасу размером 16 на 16 футов, придавая ей элегантный вид застекленной оранжереи. Домовладелец Сюзанна Хадсон, садовый дизайнер, купила пять находок высотой 11 футов за 9 долларов.0 каждый на блошином рынке много лет назад и недавно использовал их, чтобы определить ее Дугласвилль, Джорджия, палуба как огромные белые пики на заборе.
Что касается мебели, окрашенные металлические крыльцо и пружинные стулья 1940-х годов имели непринужденный вид, которого хотел Хадсон; железная подставка для свечи и армиллярные солнечные часы за короткое время получили правильную ржавую отделку.
«Зеленый, коричневый и белый — естественные цвета патины в саду — встроенная цветовая схема», — говорит она. «Синие гортензии и розовые подушки делают его ярче».
Верхний чердак Office Redo
Дэвид ЛэмбКогда в прошлом году истек срок аренды офиса Бет Крауклис (у нее собственное брендинговое агентство в Орландо, Флорида), она обратила внимание на квартиру на чердаке в своем доме в стиле королевы Анны. Она подумала, что на 700 квадратных футов это может быть офис на семь человек, но «я хотела, чтобы он казался открытым, как чердак, с большим количеством света», — говорит Бет. Ее муж Джон, который уже планировал заменить крышу и сайдинг, принял вызов.
Джон выпотрошил квартиру, прорезал отверстия для трех новых окон, снял штукатурку со стен и обработал внутреннюю планку темной морилкой и полиуретаном. Он заново отполировал сосновые полы и покрасил открытые стропила пятью слоями белой краски. Затем, чтобы завершить вид лофта, Джон повесил воздуховод переменного тока почти по всей длине чердака, трековое освещение и старинный деревянный пропеллер самолета.
5 Лучший дизайн интерьера 3-комнатной квартиры HDB от Livspace, чтобы вдохновить вас
В этой статье
- №1: Максималистский темный дизайн интерьера 3-комнатной квартиры HDB
- №2: Более уютный и просторный интерьер 3-комнатной квартиры HDB
- №3: Животная тематика Дизайн интерьера 3-комнатной квартиры HDB
- #4: Вдохновленные вычурные интерьеры в этой 3-комнатной квартире HDB BTO
- #5: Реконструкция HDB с умными решениями для компактных помещений
- Чем Livspace может вам помочь?
Думаете о том, чтобы сделать или переделать дизайн интерьера 3-комнатной квартиры HDB? Что ж, есть много вариантов для изучения! Большинство домовладельцев предпочитают соблюдать баланс между комфортом и функциональностью. И мы кое-что знаем об этом балансе в Livspace. Если вы ищете идеи дизайна 3-комнатной квартиры, мы предлагаем вам вдохновиться нашими собственными примерами дизайна интерьера 3-комнатной квартиры.
Обратите внимание на зеркало слева, которое делает эту гостиную визуально воздушной Кухонный остров, превращенный в обеденный стол Вы заметили ящики, встроенные в платформу для дополнительного хранения?Кто здесь живет: Хабиб Нур и Зуллайха со своим сыном
Тип дома: 3-х комнатный BTO площадью 93 кв.
м.
Команда Livspace: дизайнер интерьеров Шейк Кадер и руководитель проекта Элвин , кладка и укладка плитки, отделка стен, электрика, освещение, сантехника, полы, перегородки, возведение стен (и полноразмерного гардероба), подвесной потолок и покраска
Бюджет: $$$$$
Достаточно редко можно увидеть включение максималистского дизайна интерьера в качестве одной из выдающихся идей дизайна 3-комнатных квартир в сингапурских домах. Однако, когда Хабиб и Зуллайха выразили свое желание, дизайнер Livspace Шейк Кадер придумал креативное, но оптимальное использование пространства с темными оттенками. Как вы можете видеть, дизайн интерьера этой 3-комнатной квартиры наполнен творческими идеями полов, стен и нестандартной мебели. Эти фотографии — лишь вершина айсберга. Возьмите hometour здесь!
Идеи, которые можно украсть:
- Использование зеркала в гостиной, создающего иллюзию пространства
- Кухонный остров-столовая, где пара может разделить трапезу, идеально подходит для любого компактного дома
- Использование Богатые узоры и текстуры дополняют смелый, максималистский дизайн интерьера этого дома.

Кто здесь живет: Иван и ХуиМин
Местоположение: 58 Havelock Road, Сингапур
Площадь дома: 3 комнаты HDB общей площадью 69 кв.м.
Команда дизайнеров: дизайнер интерьеров Уильям Чонг кладка и плитка, отделка стен, электрика, освещение, сантехника, полы, перегородки, возведение стен (и полноразмерный гардероб), столярные работы, покраска и покупка мебели и сантехники
Думаете, что старую квартиру уже не спасти? Тогда пусть эти идеи ремонта 3-комнатной квартиры вдохновят вас! Этот 30-летний HDB претерпел значительные изменения. Дизайнер Livspace Уильям Чонг усердно работал над тем, чтобы сделать это пространство свободным от беспорядка, просторным и функциональным. Учитывая тот факт, что все эти магические превращения производились в районе 69м., эти усилия достойны высокой оценки. Вот полный тур по дому.
Ideas You Can Steal:
- Бесшовная белая кухня, приятная для глаз, компактная и функциональная
- Домашний офис вписывается прямо в угол спальни занимает много места и имеет достаточно места для хранения
Кто здесь живет: Ву Лью Мэй и семья
Местоположение: Блок 91 Лоронг Тоа Пайох
Тип дома: 3-комнатный HDB
Команда Livspace: Дизайнер интерьеров Томас Чнг
Услуги Livspace: Мебель, декор, столярные работы, электромонтажные работы
Бюджет: $$$$$
Нам нравится дизайн перепродажи 3-комнатной квартиры, сделанный в этом доме. Домовладелец обратился к Livspace с просьбой превратить ее темную и грязную 3-комнатную квартиру в яркое и веселое пространство. Дизайнер Livspace Томас Чаг смог сделать все это вместе с приданием дизайну интерьера этой трехкомнатной квартиры некоторого функционального места для хранения.
Вы можете получить все подробности здесь.
Идеи, которые можно украсть:
- Использование обоев с изображением животных (вы можете мельком увидеть их за обеденным столом!)
- Конечно, разумное использование кухонного острова в качестве раздвижного обеденного стола хранения в главной спальне с помощью подвесных полок, а также открытых и закрытых модульных блоков
Кто живет здесь: Молодая пара
Местоположение: Корпус 91 Лоронг Тоа Пайох
Тип дома: 3-комнатный HDB BTO
Команда Livspace: Дизайнер интерьеров Юхи Раджеш Шах
Мебель , столярные работы, электромонтажные работы Бюджет: $$ $$$
Сочетание идеи ремонта 3-комнатной квартиры с дзен-интерьером было лучшим решением этой молодой пары (конечно, второе — доверить свой дом Livspace! *wink *).
Они познакомились с дизайнером Livspace Юхи, которая предоставила им это медитативное пространство, наполненное позитивной энергией и эстетичным дизайном. Если вы хотите получить что-то подобное, нажмите здесь, чтобы перейти к домашнему туру.
Идеи, которые можно украсть:
- Двойная дверь в гостиной (Какое разумное использование дополнительной комнаты!)
- Потрясающая белая открытая кухня с несколькими шкафами для хранения
- Тумба под телевизор на штативе, идеальная иллюстрация современности встречает дзен-интерьеры
Кто здесь живет: Пара
Размер дома: 3-комнатная HDB площадью 85 кв.м.
Команда дизайнеров: дизайнер интерьеров Шим
Услуги по жилому пространству: полный дизайн дома
Бюджет: $$$$$
Современные идеи дизайна трехкомнатной квартиры остаться и не зря.



Раковина, кстати, переносится на противоположную стену, что потребует подвода канализации. Перегородка между гостиной и кухней демонтируется, стена между ванной и кухней удлиняется за счет застраивания старого дверного проема: можно разместить полноценный кухонный гарнитур. Недостаток перепланировки в том, что уменьшается площадь прихожей, но зато в гостиной теперь удобно расположить шкаф-купе, тем более, что место для вешалки и полки под обувь в прихожей найдется.
Кухня объединяется с гостиной, устраивается отдельная ниша для холодильника. Обыграть кухонную, гостиную и спальную зоны можно с помощью дизайна. Обратите внимание на санузел. Вход в него переносится из прихожей в проход, благодаря чему убирается дверь из узкой прихожей. Замена ванны на душевую кабину позволяет разгрузить пространство и установить стиральную машину.
Пожалуй, надо отметить недостаток мест хранения и маленький санузел, который не перестраивается, но вместо ванны устанавливаются душевая кабина и стиральная машинка.
В результате получилась отличная квартира с раздельными комнатами: гостиной-столовой и спальней. Зону санузла перепланировка не затрагивает.
Они отличаются высокими потолками, большой жилплощадью, небольшими балконом и красивым фасадом. Его нежелательно менять, если дома выходят на центральные улицы и в исторические кварталы. Столярка должна быть того же цвета, что и до замены, возможны ламинированные ПВХ окна под древесину. Основные преобразования касаются внутренней площади, включая перепланировку без сноса несущих стен.
В некоторых вариантах есть удобные лоджии, за счет которых нередко пытаются добавить площадь смежных комнат.
Качество жизни от этого только повышается, поскольку из квартиры сверху будет доноситься меньше шума (эффект присутствия «топающего соседа»). Потолок опустится на 8—10 см, но тишина и спокойствие того стоят. Учитывая, что высота между перекрытиями в домах этой серии — 2 760 мм, то «полезная» высота остаётся 2 600 мм (8 см — стяжка, 8 см — потолок), что вполне допустимо и комфортно для проживания.

Если намечается перепланировка двухкомнатной квартиры в трехкомнатную квартиру с двумя спальнями, то этот процесс будет сложнее в случае использования на кухне газовой плиты.



Ведь именно мебель для офиса является инструментом создания комфортных условий для работников и гостей. И чтобы справиться с этой задачей максимально эффективно, необходимо иметь подробную информацию о ее доступных видах.


Большинству государственных и местных властей требуются разрешения. Перед началом любой работы обязательно проконсультируйтесь с вашим муниципалитетом.
Добавить пул
TAMPA, FL
Sacramento, CA
США
