3 варианта перепланировки — INMYROOM
Достаточно ли двух комнат для комфортного проживания семьи с детьми? Часто приходится отказываться либо от отдельной спальни для родителей, либо от гостиной. Архитектор Анастасия Киселева рассказала, как превратить двухкомнатную квартиру в трешку с помощью грамотной планировки, а эксперт по перепланировкам Максим Джураев прокомментировал условия согласования.
Квартира для семьи с детьми в доме серии П-44Т
Типовая планировка двушки в доме серии П-44Т отличается большими комнатами и балконами. Основной недостаток: в квартире-распашонке основные стены – несущие.
Типовая планировка
Обустроить в двушке еще одну комнату можно, воспользовавшись площадью кухни. В ней совместили обеденную зону с зоной отдыха с диванчиком и телевизором. Для экономии места гарнитур разместили в эркере.
Две жилые комнаты – спальня родителей и детская. В комнате могут жить и двое детей: достаточно поставить двухъярусную кровать, а подоконник превратить в большой рабочий стол.
Мнение эксперта: узаконить такую планировку легко, так как изменения незначительные. Согласовать можно по эскизу в уведомительном порядке.
Гостиная, спальня и детская в двушке в доме ПД-4
В типовой планировке почти все внутренние стены несущие. В квартире просторный коридор, но расположение входа не позволяет перенести сюда жилую зону.
Типовая планировка
В большой комнате разместили детскую: здесь поставили кровать и диванчик (гостевое спальное место), рабочий стол, шкаф для одежды и спортивный уголок. Вторую жилую комнату отдали под спальню родителей. Гостиную перенесли в кухню: Телевизор повесили над нижними шкафами кухни, а напротив разместили удобный диван.
В ванной поменяли расположение сантехники так, чтобы хватило места и для раковины с тумбой, и для стиральной машины. В туалете добавили небольшой рукомойник.
Мнение эксперта: этот вариант можно согласовать по проекту перепланировки от любой проектной организации, имеющей соответсвующий допуск СРО.
Детская на месте кухни в доме серии И-155
В типовой планировке есть несущая стена, которая отделяет комнату и санузел от остального пространства. Основные достоинства – большая кухня и коридор.
Типовая планировка
Кухню перенесли в коридор: получилось единое пространство с зоной готовки, гостиной и столовой в эркере. Для зонирования предусмотрели прозрачные двери-перегородки. На месте кухни обустроили детскую: места достаточно, чтобы разместить всю необходимую мебель.
Вход в спальню родителей – из гостиной. Здесь же разместили вторую ванную комнату. Правда, для этого пришлось перенести проем в несущей стене.
Мнение эксперта: проем в несущей стене можно будет сделать только после технического заключения от автора проекта дома или ГУП МосжилНИИпроекта. Также понадобится проект перепланировки от любой проектной организации и потребуется сделать экспертизу по проекту в ГУП МосжилНИИпроекте.
На обложке: дизайн-проект Антона Севастьянова
Перепланировка двухкомнатной квартиры в трехкомнатную и не только, примеры и проекты для хрущевки и других, идеи с примерами и фото
Ремонт в квартире — трудоёмкий процесс.
В то же время это необходимость, без которой дома невозможно чувствовать себя комфортно и уютно. Перед тем как приступить к работе, следует определиться, что именно вы хотите увидеть в итоге. Уже давно прошли времена, когда все граждане нашей страны имели одинаковое жилище с однотипной мебелью и стандартным расположением кухни и санузла.
Не всегда количество комнат и их размеры совпадают с нашими желаниями и потребностями. К счастью, перепланировка двухкомнатной квартиры уже давно не является чем-то нереальным. Приведённые ниже варианты возможно использовать в качестве основы для собственного ремонта. А, может быть, эти проекты помогут вам создать свой уникальный дизайн.
Как сделать перепланировку в двухкомнатной квартире — идеи с фото
В процессе ремонта часто необходимо объединить комнаты или изменить их параметры путём сноса базовых перегородок. Для того чтобы в дальнейшем не возникло проблем, первым делом в соответствующих органах следует получить разрешение на демонтаж стен.
От того, какие функции будет выполнять то или иное помещение, зависит выбор материалов для создания новых конструкций. В ванной комнате должны быть влагостойкие стены. В кухне чаще всего крепятся тяжёлые навесные шкафы, об этом необходимо помнить в момент установки перегородок.
Из двухкомнатной в трёхкомнатную
Если в двухкомнатной квартире проживает семья из нескольких поколений, каждому из них необходимо иметь свою комнату. При этом должен быть общий зал, где семья будет проводить свободное время. Рассмотрим несколько вариантов увеличения количества жилых помещений.
Некоторые новые дома имеют выгодную планировку, в которой при желании можно увеличить количество комнат. Идеально, если каждая из них будет иметь окно. Когда по проекту дома в гостиной расположено 2 оконных проёма — её легко можно разделить на 2 небольшие спальни. Такое деление будет оправданным при условии, когда первоначальное жилое помещение имело площадь не менее 18 кв. м. В противном случае можно получить две неудобные кладовые, непригодные для жизни.
Третья комната, ранее выполняющая роль спальни, может стать гостиной.
Деление гостиной с двумя окнами — хороший приём при перепланировке
Объединение кухни с коридором и незначительное уменьшение комнат позволит создать полноценную гостиную-столовую. Скруглённые стены с одной из сторон сделают возможным размещение большого обеденного стола без заметной потери жилого пространства. В этом случае следует позаботиться об освещении в центральной комнате. Необходимо компенсировать отсутствие естественного дневного света в зоне приёма гостей.
Один из вариантов перепланировки двушки
Если в квартире имеется лоджия с глухими стенами по бокам, её можно преобразовать в комнату для подростка. При этом варианте следует позаботиться о хорошем утеплении всех стен, пола и потолка. Не стоит забывать, что у соседей сверху и снизу эта часть помещения скорее всего нежилая, поэтому не отапливается.
На лоджии можно обустроить удобную комнату для подростка
Жители первого этажа часто прибегают к увеличению балкона путём его выдвигания.
В этом случае комната может иметь полноценный размер. Однако многие умудряются сделать это и на верхних этажах. Такие конструкции в обязательном порядке необходимо согласовывать с городскими службами. Разумеется, делать подобные наращивания должны только профессионалы.
Некоторые расширяют квадратные метры зя счёт увеличения площади балконов и лоджий
Всем известно, что на кухне должен быть яркий свет. Отличным вариантом станет её перенос на балкон, при условии, что в первоначальном варианте он имелся на кухне. В этом случае появляется дополнительная комната, которую можно использовать в качестве гостиной. Такие преобразования также необходимо согласовывать с ЖЭК и другими инстанциями.
Альтернативным вариантом станет перенос кухни на лоджию
Примеры перепланировкы двушки в «хрущёвке»
В странах бывшего Советского Союза все ещё распространены так называемые хрущёвки. Они относительно недорогие по стоимости, однако расположение и размеры комнат зачастую очень неудобны.
Неоспоримым преимуществом является то, что практически все внутренние стены не являются несущими, а значит их можно ломать, предварительно получив на это разрешение.
Смежные комнаты допустимы в случаях, когда в квартире живёт молодая пара. Но если приходится существовать нескольким поколениям вместе, необходимо разделить спальни, чтобы не смущать тех, чья комната является проходной. За счёт зала увеличивается коридор, из которого в разные стороны будут уходить комнаты. Между ними можно установить вместительный гардероб. Полученная «распашонка» создаст необходимое личное пространство для каждого члена семьи.
Пример перепланировки двухкомнатной квартиры «чулка»
Ещё один вариант смежных комнат решается путём разделения последней на две небольшие спальни, создающие индивидуальное пространство для каждого живущего поколения.
Из одной комнаты можно сделать две смежные
Перенос входа в кухню со стороны гостиной позволит увеличить ванную за счёт коридора. Учитывая небольшой проектный размер зоны приготовления еды, можно объединить комнаты.
При помощи цветовой гаммы интерьера возможно гармоничное сочетание двух разных помещений.
При правильном сочетании цветов вы получите уютный интерьер
Любители свободного пространства предпочитают снести максимальное количество перегородок и установить вместо них фальш-панели, разделяющие зоны. Такая идея часто применяется в планировке, называемой «чулок», когда квартира вытянута в одну сторону. При демонтаже стен появляется ощущение большого количества воздуха. Зрительно увеличивается размер помещения.
Чтобы сделать комнаты просторнее, можно убрать лишние перегородки
Считается, что небольшие квартиры должны быть представлены в светлых тонах. При этом важно не впасть в крайность. Слишком бледные помещения рискуют стать скучными и незаконченными. В интерьере рекомендовано применять три основных цвета, один из которых может быть вызывающе ярким.
Правильно подобранные цвета играют важную роль при обустройстве интерьера
Варианты переделки двухкомнатной квартиры-брежневки
На смену «хрущёвкам» пришли «брежневки» – дома, построенные в период правления Брежнева.
Они имеют немного больший размер в сравнении с предшественниками. Санузел стал раздельным. Комнаты расположены изолировано друг от друга, что значительно улучшает условия проживания. Однако кухни по-прежнему остаются небольшими, их площадь не превышает 7 квадратов.
Расширение лоджии за счёт гостиной позволит увеличить количество жилых комнат.
Лоджия позволит расшить жилые комнаты
Объединение ванной и туалета увеличит полезную площадь, появляется возможность установки стиральной машинки.
Объединение двух санузлов позволит увеличить полезное пространство квартиры
Демонтаж стены между кухней и залом и установка между ними гипсокартонной конструкции с расширенным нестандартным проёмом позволит сохранить зональность и визуально увеличит пространство.
Расширить пространство позволит демонтаж стены между кухней и гостиной
Объединение комнаты с лоджией является популярным решением. При этом все чаще в процессе ремонта отказываются от демонтажа стены под окном.
Её используют в качестве основы для стола.
Стену под оконным проёмом используют для установки стола
Основная проблема — маленькая кухня, решается путём увеличения этой зоны за счёт зала. Если не устанавливать между этими помещениями дверей, кухонный пол из кафеля можно вынести в гостиную, и разместить там обеденный стол. Визуально это не уменьшит жилую комнату, но увеличит зону приготовления еды.
Столовую зону можно вынести в гостиную
Перепланировка двушки со смежными комнатами
Смежные комнаты удобны, когда в квартире проживает один человек или пара без детей. В этом случае проходная комната может выступать гостиной, а вторая — зоной для сна. Но что делать, когда необходимо оборудовать две спальни?
Самым простым вариантом становится разделение дальней комнаты на две идентичные. В этом случае образуются независимые друг от друга спальни. Одна из них не будет иметь окон. Это значит, что на этапе ремонта нужно позаботиться о возможности яркого освещения помещения.
При перепланировке учитывайте, что в одной из комнат нужно обеспечить хорошее освещение
Если вторая комната имеет размеры, не превышающие 15 квадратных метров, не рекомендовано разделять её глухой стеной. Можно предложить вариант уменьшить первую проходную комнату за счёт образования коридора, ведущего во второе помещение.
Пример перепланировки двушки
Ещё одним вариантом может стать создание небольшого кабинета или спальни внутри проходной комнаты. При этом гостиную увеличить путём её объединения с кухней.
В проходной комнате можно обустроить и рабоче место
Интересным выглядит решение с нестандартной стеной, разделяющей дальнюю комнату на два небольших помещения. В каждой из спален появляется ниша для встроенного шкафа.
Пример квартиры до и после перепланировки
Выделив в гостиной спальную зону, можно также решить проблему неудобства смежных комнат. При таком проекте ни одна спальня не будет проходной комнатой. Зал значительно уменьшается, к тому же остаётся без дневного освещения.
Но это легко решается при помощи правильно расставленного света и использования цветовых акцентов в интерьере.
При такой планировки площадь зала уменьшиться, но правильное освещение и акценты в интерьере помогут сделать комнату уютной
Переделка с выносом кухни в коридор
Классическим американским стилем являются квартиры, которые начинаются с кухни. Без лишних перегородок помещение плавно переходит в гостиную. И только спальни принято выделять в отдельные комнаты. Ярким примером такого обустройства являются квартиры, показанные в знаменитом сериале «Друзья». Основные события происходят как раз в подобных жилищах главных героев.
Помещение плавно переходит из коридора в кухню, затем в гостиную
Весьма необычно смотрится планировка квартиры с кухней в коридоре. Но практика показала, что такое расположение удачно. Основной треугольник — расстояние между мойкой, холодильником и плитой, можно расположить в удобной плоскости. При этом остаётся много рабочего пространства для нарезки продуктов.
Следующее помещение — гостиная, одновременно выполняет роль столовой, где можно поставить большой обеденный стол.
Стоит помнить, что такая перепланировка обязательно нуждается в получении письменного разрешения во всех задействованных инстанциях в связи с переносом водопровода, газопровода, канализации и вентиляции. Непосредственно перед кухней необходимо позаботиться о зоне для уличной обуви.
Большую прихожую можно использовать в качестве кухонной зоны. Очень важно продумать варианты освещения, ведь его придётся использовать в любое время суток.
Часть прихожей можно использовать в качестве зоны для кухни
Для удобства зону приготовления еды, расположенную в коридоре, защищают гипсокартонными конструкциями.
Разделить простанство можно с помощью перегородок из гипсокартона
Глянцевая поверхность визуально расширяет пространство, поэтому на узкой кухне хорошо будет смотреться такая мебель с минимальным количеством выпирающих деталей.
Глянцевая поверхность визуально расширит пространство
При переносе кухни в прихожую образуется дополнительная полноразмерная комната, которую можно использовать в качестве гостиной.
Остальные две комнаты выполняют функции спален.
Такой способ перепланировки позволит сделать жилую комнату
Из двушки в студию
Если в двухкомнатной квартире проживает один человек или молодая семья без детей, очень удобно объединить кухню с гостиной. При этом образуется увеличенное пространство, которое можно использовать для различных целей. Создавая студию, важно выделять функциональные зоны. Для этого совсем необязательно нужны стены или массивные перегородки.
При помощи изменения уровня потолков и покрытия на полу можно разграничить место для приготовления еды и зону отдыха.
С помощью мебели можно зонировать пространство
Любители большого открытого пространства отдают предпочтение единому помещению. Для этого они объединяют обе комнаты с кухней и получают максимально возможную площадь. Для спального места выделяется небольшая зона, отделённая лёгкой перегородкой. При правильно подобранной цветовой гамме жилище будет выглядеть уютным, иметь собственный стиль и настроение.
Правильная расстановка мебели позволит создать удобное жилище
Барная стойка или полуостров станет отличным вариантом разделения зон в студии. Кроме того, на кухне необходимо установить возможность яркого освещения. Навесной потолок в едином стиле с общим интерьером в месте приготовления еды также поможет гармонично разграничить пространство.
Барная стойка может быть использована для деления комнаты на зоны
При использовании контрастных цветов в интерьере важно правильно подобрать их сочетание. Для этого используют цветовой круг.
При выборе цветовой гаммы для интерьера удобно пользоваться специальным цветовым кругом
Он помогает выбрать гармонирующую расцветку. Важно помнить, что оптимально использовать три основных цвета в помещении. Меньшее количество приведёт в блёклости и безжизненности, избыточное обилие расцветок создаст агрессивное настроение в помещении.
В этом примере используется три основных цвета: зелёный, чёрный и оттенки натурального дерева
Вытянутые квартиры-студии можно зрительно расширить, используя освещение, направленное от потолка на стены.
При этом не стоит делать слишком ярких акцентов в интерьере. В такой планировке больше подойдут пастельные тона.
С помощью освещения можно зрительно расширить пространство
В статье были предложены различные варианты перепланировки двухкомнатных квартир. В зависимости от того, сколько человек проживает в доме, создаётся необходимый проект. Смежные комнаты не подходят для большой семьи. В то же время молодая пара, не планирующая в ближайшем будущем обзаводиться потомством, наоборот, чаще всего будет разрабатывать вариант планировки с центральной комнатой, из которой будут выходить все остальные помещения. Необходимо придерживаться определённых правил по разделению зонирования пространства, оформляя его при помощи света, цвета, функциональной мебели и декора.
Оцените статью: Поделитесь с друзьями!Не нашли то, что искали? Вернитесь к поиску планировок квартир по параметрам типового проекта. Поддержите проект, расскажите о tipdoma.com в социальных сетях:
Перепланировка двухкомнатной квартиры
Какие варианты перепланировки двухкомнатной квартиры наиболее часто реализуются на практике? Как правило, владельцы двухкомнатных (равно как и квартир с иным количеством комнат) хотят увеличить площадь кухни, ванной комнаты, санузла.
Также нередки перепланировки двушек с изменением числа комнат.
Преимущество панельных пятиэтажек перед современными домами подобной конструкции состоит в меньшем количестве несущих стен внутри квартиры. Этот факт упрощает согласование перепланировок двухкомнатных квартир в хрущевках, поскольку для объединения помещений здесь в основном придется иметь дело с гипсокартонными перегородками. Данная конструктивная особенность позволяет, например проводить перепланировку двухкомнатной хрущевки в студию с кухней-нишей.
Но есть и сложности — например, газовые плиты на кухне, из-за которых нельзя полностью объединять кухню и смежную комнату без установки сдвижной перегородки взамен демонтированной.
Но в любом случае, по сравнению с перепланировкой панельных двухкомнатных квартир более поздних серий, хрущевки дают больше простора для фантазии.
2-х комнатная квартира в кирпичной хрущевке серии 1-511:
2.
Перепланировка однокомнатной квартиры в двухкомнатную:Здесь действуют те же условия и ограничения, что и при перепланировке двушки в трешку. На фото ниже мы как раз видим согласованную перепланировку однушки в двушку с устройством большой «гардеробной» в единственной жилой комнате.
Размеры этого помещения вполне позволяют использовать его не для складирования одежды и при этом не нарушать нормативы. То есть формально это по-прежнему однокомнатная квартира, а на деле — небольшая двушка.
Новообразованная комната числится нежилым помещением по двум причинам: она слишком мала для спальни (менее 8 кв.м), а перегородка не пропускает свет.
Перепланировка однокомнатной квартиры в двухкомнатную, фото:
Перепланировка 1-комнатной в двухкомнатную фото:
3. Перепланировка двухкомнатной квартиры в трехкомнатнуюК данному варианту прибегают, когда нужно выделить дополнительную жилую зону, а средств на покупку трехкомнатной квартиры недостаточно.
Это вполне оправданно, однако придется следовать некоторым правилам. Так, строительными и санитарными нормативами установлено, что все жилые помещения и кухни (кроме кухонь-ниш) должны получать естественное освещение через окна.
Если у вас есть большая комната с двумя окнами, это условие легко выполнимо: она делится перегородкой так, чтобы в каждой из получившихся комнат было по окну.
Но в большинстве типовых домов каждая комната имеет всего одно окно.
Что же тогда делать?
Можно использовать светопропускающую перегородку. Но что, если вы не хотите такую? Выход есть и здесь: вы отделяете помещение глухой стенкой, и в экспликации называете его кладовкой или гардеробом (т.е. нежилым помещением, для которого инсоляция не нормирована).
Еще одно условие, которое необходимо учитывать — установленные правилами площади жилых помещений. В двухкомнатной квартире спальня не должна быть меньше 8 кв. м. Впрочем, если это «кладовая», то можно отгородить и пятиметровую комнатку — спать в ней вам никто не запретит.
Перепланировка двухкомнатной квартиры И209А
Перепланировка двухкомнатной квартиры II-18
4. Перепланировка ванной и туалета в двухкомнатной квартиреПерепланировка квартиры двушки часто подразумевает и объединение помещений ванной комнаты и санузла — это позволяет приобрести некоторую дополнительную полезную площадь.
Нередко при соединении помещений перегородку, отделяющую ванную комнату от санузла, демонтируют лишь частично, оставляя небольшой выступ на высоте примерно метр. Его в дальнейшем можно использовать для монтажа открытых полочек, или в качестве опоры для раковины.
Перепланировка ванной и туалета в двушке, фото:
5. Перепланировка кухни в 2-комнатной квартиреИногда при перепланировке двушки может осуществляться перенос кухни, — например в коридор или другое нежилое помещение.
Это будет так называемая кухня-ниша, т.е. «уголок» с бытовой техникой, плитой и раковиной, но без обеденной зоны. По нормативам площадь кухни-ниши может составлять 5 кв.м.
При этом перепланировка двухкомнатной квартиры с переносом кухни в жилую комнату относится к недопустимым. Такой перенос кухни может быть осуществлен только владельцами квартир на первых этажах, ниже которых находится или подвал, или иное нежилое помещение.
Если же планируется объединение кухни и комнаты, то важно определить, является ли разделяющая их стена несущей. Если да, то проект перепланировки двухкомнатной квартиры с проемом в несущей стене должен сопровождаться техническим заключением о возможности устройства данного проема.
Перепланировка 2х комнатной квартиры серии II-18:
В каждой комнате было устроено по гардеробу, для чего была изменена конфигурация ненесущей перегородки между комнатами. Менялось расположение сантехоборудования, проводился демонтаж сантехкабины.
При этом габариты санузла и ванной не менялись, а стены этих помещений были заново возведены из новых материалов. Кроме того, была незначительно передвинута газовая плита.
Перепланировка двушки в однушку (в сталинском доме)
Данным проектом предусматривалось объединение кухни и смежной комнаты в просторную гостиную. После демонтажа перегородки площадь помещения составила почти 28 кв. м.
Перепланировка двушки-распашонки в кирпичном доме серии II-29
Ванную и санузел объединили с расширением на коридор, также переносилась газовая плита. Вход на кухню был сделан из комнаты, в которой кроме того был демонтирован подоконный блок. Балкон от жилой зоны отделили стеклянными перегородками, а на проем между кухней и комнатой установили сдвижную перегородку.
Дополнительно:
Варианты перепланировки двухкомнатной квартиры в доме серии И209А:
Варианты перепланировки двухкомнатной квартиры в доме серии II-18:
Пример проектной документации 2 комнатной квартиры от ГУП МНИИТЭП в доме серии II-18
Дизайн 2 х комнатной квартиры студии: перепланировка, зонирование
Дизайн 2-комнатной квартиры – это самый востребованный вариант на сегодняшний день.
Золотая серединка между крохотными однокомнатными квартирами и дорогими трехкомнатными. Двухкомнатной квартиры вполне достаточно, чтобы воплотить в жизнь самые лучшие дизайнерские решения.
Содержание статьи
Начнем с планирования
Но даже квадратура 40-60 м2 требует к себе организации удобного пространства. Чтобы создать красивый архитектурный стиль понадобится глобальная работа с пространством. Сложнее всего обстоят дела со старыми планировками, есть нюансы, когда сложно из двухкомнатной сделать дизайн однокомнатной квартиры студии.
Перепланировка 2-комнатной в однокомнатную студию.
Огромная просторная перепланированная квартира.
Красивый дизайн: зонирование и перепланировка.
Как оформить квартиру в стиле модерн.
Современный дизайн однокомнатной квартиры.
Перепланировка небольшой двушки.
В таблице рассмотрим недостатки, которые создают сложности при перепланировке:
| 1. | Вторичный рынок.![]() | Учитывая, что это вторичный рынок помещение имеет ряд ненужных перегородок и прочих неудобств. |
| 2. | Длинный узкий коридор. | Такой коридор не дает возможности для полноценного планирования и меблировки. Есть парочка приемов, которые помогут визуально увеличить помещение. |
| 3. | Санузел совместный. | Для многих, данная планировка создает дискомфорт. Хотя и в некоторых случаях такой вариант считается преимуществом. |
| 4. | Кухня маленьких размеров. | В современный архитектурный проект входит планирование кухонной зоны. Здесь предусматривается организация пространства для бытовой техники. В маленьких кухоньках это практически невозможно. |
| 5. | Невысокие потолки. | Это деталь стоит доверить только дизайнерской хитрости. |
| 6. | Небольшая площадь. | Маленькую площадь можно организовать при помощи различных дизайнерских приемов. Если попадаются комнаты в форме трапеции или пятиугольные, то это скорей является преимуществом.![]() |
| 7. | Азы перепланировки. | Для того чтобы составить план перепланировки, нужно оценить все достоинства и недостатки квартиры. Определяем общие требования, затем составляем ряд пунктов. |
| 8. | Сколько жильцов живет. | Обязательно следует учитывать количество людей в квартире, каждому должно быть выделено личное пространство. Если не хватает пространства, то зонирование происходит при помощи различных дизайнерских хитростей. |
| 9. | Стилевое направление интерьера. | Стиль интерьера выбирается еще перед началом ремонтных работ. Здесь стоит отдавать предпочтение самым современным направлениям декора. |
| 10. | Недостаток квадратуры. | Благодаря грамотной планировке можно скорректировать план квартиры. |
| 11. | Все технические возможности. | Перед тем, как разрабатывается проект, необходимо учитывать все нюансы, связанные с техническими возможностями помещения.![]() |
Какие встречаются перепланировки и виды двухкомнатных квартир
Дизайн-студия однокомнатной квартиры, переделанной из сталинки.
Каждая 2-комнатная квартира вторичного жилья предлагает несколько подвидов, которые определяют личные характеристики жилья и планировки в целом.
Перепланировка сталинки
Планировка «сталинки» отличается большими комнатами и высокими потолочными конструкциями. Архитектурной особенностью является полное отсутствие несущих стеновых конструкций.
Возможностей переоформления квартиры почти без ограничений, смотрите фото.
Высокие потолки, простор и уникальный дизайн.
Перепланировка в современный стиль.
Перевоплощение с 2-х комнат в однокомнатную квартиру студию.
Обычный классический современный стиль.
Дерево и кожа в интерьере.
Оформление на 50-ти квадратах: студия дизайн однокомнатной квартиры.
Архитектурное обновление интерьера:
- Можно из такой планировки сделать 3-комнатную квартиру, но лучше увеличить пространство.

- Самый простой и распространенный вариант, это демонтаж между кухней, коридором и комнатой.
Кухня и комната должны быть разделены специальной раздвижной дверью-перегородкой.
Перепланировка двухкомнатной хрущевки
Переделанная хрущевка в однокомнатную квартиру студию.
Хрущевки, это полная противоположность сталинкам. Маленькие или узкие комнатки с низкими потолочными конструкциями.
Основные недостатки:
- Проходная комната.
- Совмещенный санузел.
- Маленькая кухня.
Перепланировка, что можно сделать (см Двухуровневая однокомнатная квартира)?
Совмещаем зал с кухней и делаем спальную зону.
Простой проект: из 2-х комнатной получилась квартира студия 67 квадратов.
Из маленькой хрущевки 43 квадрата.
Студия большая комфортная для семьи из двух человек.
Квартира студия 43 квадрата.
Красивая перепланировка, обратите внимание на оформление потолочных конструкций.
Перепланировка квартиры скорей всего представляет собой сложный процесс:
- В первую очередь находим несущие стены, куда переносится дверное полотно.
- Если квартира рассчитана на нескольких жильцов, то коридор можно использовать для разделения санузла.
- Если семья большая, то за счет проходной комнаты увеличиваем коридор (см. Дизайн однокомнатной квартиры).
2-х комнатная хрущевка подойдет для небольшой семьи. Можно спокойно совместить зал, спальню и кабинет.
Перепланировка брежневки
Удачное зонирование.
Брежневки похожи на хрущевки, но имеет более улучшенные характеристики. Комнаты немного больше, санузел раздельный.
Перепланировка квартиры:
- Здесь очень важным аспектом являются несущие стены, которые нельзя трогать.
- Здесь можно соединить кухню со смежной комнатой.
- Соединить санузел.
- Остальные стены трогать не рекомендуется.
Основная работа дизайнеров, это визуально грамотно зонировать и увеличить пространство.
Что представляет собой новая планировка
Перевоплощение новой планировки в студию.
Здесь особенностью являются большие кухни и комнаты:
- Большой коридор и раздельный санузел входят в ряд преимуществ.
- Большую лоджию есть возможность переконструировать в отдельное помещение.
Инструкция по перепланировке:
- Данная планировка не нуждается в доработке.
- Здесь можно легко перевоплотить своими руками в студийную квартиру.
- Убирая стены, можно оборудовать огромную гостиную до 34 квадратов (см. Обустройство однокомнатной квартиры).
Вторую комнату можно увеличить за счет лоджии и изолировать.
Несколько советов от дизайнеров
Новейшие дизайнерские разработки.
Любое искусство начинает жить с деталей. Не исключением является и интерьер 2-комнатной квартиры, из которой можно создать превосходную квартиру студию. Здесь можно воссоздать некоторые доработки, к интерьеру: цветовую палитру, зонирование.
Несколько советов по поводу оформления интерьера
Как оформить квартиру в едином стиле.
Оформление 2-комнатной студии можно производить в нескольких направлениях:
- Зонировать помещение при помощи нескольких стилей.
- Использовать единый стиль в разной цветовой гамме.
Обратите внимание. Выбор одного стиля позволит создать логичность помещению и объединить пространство.
Единое стилевое направление, это не использование одинаковых цветов и направлений.
Игра цветовой гаммой.
Здесь есть своя специфика:
- Если квартира наполовину является студией, где спальня остается изолированной, лучше всего использовать два стиля.
- Современное направление интерьера подчеркивает свободное пространство, где спальная зона оформляется в мягких, приятных цветах.
Применяем функциональное зонирование
Как можно правильно спланировать помещение.
Функциональное зонирование позволит органично и удобно выполнить интерьер, логично распределить несколько зон на одном пространстве.
Гостиная, столовая и кухня на одной территории
Идеальный вариант для небольшой квартирки.
Самый и идеальный вариант для небольших 2-комнатных студийных квартир, это соединение гостиной и кухни.
В отдаленном углу можно расположить библиотеку, кабинет или спальную зону.
Кабинет и гостиная
Расположение кабинета и гостиной на одной территории.
Данный вариант предусматривает отдельную гостиную, не соединенную с кухонной зоной, а соединяется с рабочим кабинетом.
Две зоны можно разделить при помощи ширмы, двери, матового стекла.
Кабинет и спальня на одной территории
Интересный вариант зонирования.
Данное оформление не самое идеальное, но если нет выбора, то можно придумать чтобы кровать складывалась или убиралась. Большие кровати занимают много места. В этом случае создается отдельная рабочая зона и отделывается при помощи ширмы.
Цветовая палитра для 2-комнатной студии
Как использовать цветовую гамму.
Цветовая палитра напрямую зависит от выбора стилевого направления и интерьера в целом:
- Когда оформляется 2-х комнатная квартира студия, нужно акцентировать внимание на визуальном увеличении пространства.
- Здесь применяются светлые оттенки всех цветов, текстиль, глянец, стекло.
- Не исключены темные оттенки в качестве акцентов. Также приемлемы фактурные материалы.
Холодная цветовая гамма помогает светлым мягким оттенкам. Если холодные и яркие оттенки использовать грамотно, можно создать уютный красивый интерьер и сделать красивый дизайн 2-комнатной студии.
Холодные палитры помогают светлым оттенкам увеличить пространство, однако создают слишком официальный и презентабельный вид. При разумном дополнении с помощью этнического декора, тёплых и ярких цветов можно придать интерьеру уюта.
Для нас важно ваше мнение:
Загрузка .
.. Загрузка … Загрузка …Был ли полезен для вас материал?
Ремонт 2 двухкомнатной квартиры под ключ в Москве, цена от 413 700 руб
Хотите сделать качественный и недорогой ремонт 2-комнатной квартиры? Это легко сделать с помощью строительной компании «БлагоДать». Мы предлагаем все виды ремонта двушки, от «эконома» и «комфорта» до дизайнерского эксклюзива «элит»-класса. Наша работа индивидуальна, что позволяет создать уникальное комфортное пространство для каждого жителя.
Особенности ремонта 2-комнатной квартиры под ключ
Заказав у нас услугу «ремонт двушки под ключ», Вы наверняка получите результат, превосходящий ожидания. И значительно сэкономите свое время, нервы и деньги, так как даже во время выполнения ремонтных работ, сможете жить обычной жизнью, а наши опытные строители решат все проблемы, включая покупку и доставку материалов на объект. В этом и заключается особенность ремонтных работ под ключ.
Этапы ремонта квартиры двушки
- Подробное изучение Ваших пожеланий по различным вопросам, включая необходимость перепланировки, дизайн, стиль, материалы и др.

- Разработка дизайн-проекта в случае ремонта класса элит, который подразумевает оригинальные и стильные дизайнерские решения и эксклюзивные материалы. Поэтому стоимость ремонта 2-комнатной квартиры элит-класса самая высокая.
- Черновые работы — освобождение квартиры от мебели и бытовой техники, демонтаж старых покрытий и коммуникаций, окон и дверей, а также черновое выравнивание и подготовка всех поверхностей.
- Устройство электропроводки, систем отопления и водоснабжения, канализации, вентиляции и кондиционирования.
- Монтаж тепловой, звуковой, гидро-изоляции. Цена ремонта двушки зависит во многом и от этих капитальных работ.
- Чистовая отделка комнат с применением новых уникальных технологий.
- Декорирование (чаще всего при элитном ремонте), подбор штор, встроенной мебели и аксессуаров.
Поэтому ответ на самый важный вопрос — «сколько стоит ремонт 2х комнатной квартиры», будет зависеть от перечня работ, их класса и от стоимости применяемых материалов.
Преимущества ремонта «двушки» с СК «БлагоДать»
Любой ремонт «двушки» — декоративный или капитальный — предусматривает материальную ответственность наших работников. При элитном ремонте квартир и домов каждый его этап контролируется руководством. Это гарантирует высокое качество ремонта и соблюдение сроков.
-
К нашим преимуществам относятся:
- уникальный дизайн;
- применение высококачественных строительных материалов;
- ценовые решения — на любой кошелек;
- слаженная работа команды опытных строителей разных специальностей, успешно выполнивших сотни проектов;
Компания «БлагоДать» выполняет ремонт двушек в разных стилях: от классики до модерна. Мы делаем ремонт 2 комнатных квартир в новостройках, хрущевках, в старом фонде с отделкой, внимательно относимся ко всем пожеланиям клиента и всегда стремимся приятно удивить.
От чего зависит стоимость ремонта в 2-комнатной квартире
Стоимость ремонта в квартире зависит от класса и типа ремонтных работ и лежит в пределах от до за 1 кв.
м.
Узнать, сколько точно стоит ремонт Вашей двушки, можно у наших менеджеров. Пригласив специалиста к Вам домой, Вы сможете обсудить все нюансы предстоящих работ и получить на следующий день подробную смету.
Мы производим ремонт 2 комнатных квартир: 60 кв м, 52 кв м, 44 кв м (квадрата), 40 кв м
Другие услуги по ремонту
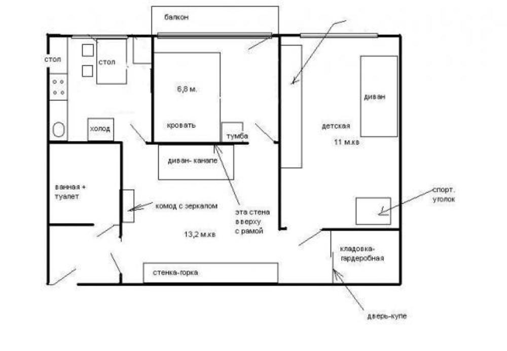
3 варианта перепланировки 2-комнатной «хрущевки»
Двухкомнатные квартиры в «хрущевках» очень популярны, ведь у них небольшой метраж и квадратный метр стоит сравнительно недорого. Можно ли сделать перепланировку в такой квартире, чтобы она стала удобной и практичной? Несколько вариантов того, как изменить не самую удачную планировку типовой двушки, предлагает руководитель дизайнерской мастерской «Дом Солнца» Оксана Цымбалова.
Иллюстрация предоставлена автором
Квартиры в домах серий 1-510, 1-511, 1-477, 1-515 (так называемых хрущевках) отличаются достаточно низкими потолками и небольшими площадями.
Практически все двушки имеют смежные комнаты, во многих квартирах есть балконы, а большинство внутренних стен не являются несущими, поэтому сделать перепланировку здесь достаточно просто. Рассмотрим несколько вариантов оптимизации пространства.
Нужно понимать, что каждая планировка индивидуальна для конкретной семьи, и представленные ниже варианты — это идеи, от которых стоит отталкиваться. Также важно помнить, что любую перепланировку сначала необходимо узаконить и только потом сносить стены. И еще один нюанс: на кухнях в таких домах обычно расположены газовые плиты, поэтому объединять это помещение с комнатой нельзя.
Итак, типовая двухкомнатная квартира в хрущевке состоит из двух смежных жилых комнат, кухни, санузла и прихожей. В некоторых квартирах есть преимущество — кладовая, которую можно переоборудовать в гардеробную комнату.
Вариант № 1. Квартира для семьи с ребенком
Иллюстрация предоставлена автором
Мы предлагаем разделить комнаты стенами, создав таким образом отдельную спальню и детскую.
В интерьере спальни можно расположить рабочее место и зону хранения. В детской — поставить у окна рабочий стол.
Кухня здесь совсем небольшая, и мы не будем увеличивать ее площадь. Но можно прибегнуть к небольшой хитрости и хотя бы визуально расширить пространство, если поставить стеклянную дверь.
Санузел объединяем и увеличиваем его площадь за счет части коридора.
При такой планировке не остается места для гостиной, поэтому в спальне можно поставить диван-кровать и собирать гостей там.
Хотим объединить ванную с туалетом. Нужно ли согласование перепланировки?
Вариант № 2. Квартира для пары
Иллюстрация предоставлена автором
Паре без детей в типовой двухкомнатной хрущевке рекомендуем увеличить зону спальни и обустроить дополнительные зоны хранения. Спальню делим на две части: кабинет для одного из супругов и зона сна. Здесь же расположены вместительные шкафы для вещей.
При таком решении образуется отдельная небольшая гостиная, из которой можно попасть как в кабинет, так и в спальню.
Поставьте здесь диван, повесьте телевизор и принимайте гостей или проводите вечера за сериалами.
В таком варианте кухня остается небольшой, однако за счет компактной и прозрачной мебели можно визуально увеличить пространство.
Вариант № 3. Квартира для холостяка
Иллюстрация предоставлена автором
Если в квартире проживает один человек, то решений может быть много, ведь средняя площадь таких квартир – около 40 кв. метров, и для одного человека этого вполне достаточно.
Решением может стать разделение квартиры на три части: обеденную, гостиную и спальную.
Комната и кухня становятся единым пространством (однако, учитывая наличие газа, между ними необходимо установить стеклянную перегородку).
Иллюстрация предоставлена автором
Функцию обеденного стола теперь выполнит барная стойка, а место для приема гостей будет расположена у окна в гостиной (это поможет оптимизировать пространство). Для дополнительного зонирования можно использовать диван в телевизионной зоне.
Санузел объединяем и увеличиваем за счет части коридора.
Иллюстрация предоставлена автором
Спальня в данном случае — это полностью изолированное пространство. В отдельной комнате (также спрятанной за полупрозрачными перегородками) уместится полноценная кровать, а у окна можно расположить рабочий стол. Системы хранения в таком интерьере займут место в спальне.
Текст подготовила Александра Лавришева
Не пропустите:
Сложная планировка квартиры
Планировка трехкомнатной квартиры
Сколько стоит ремонт вашей квартиры?
11 сайтов, на которых можно заказать ремонт квартиры
Статьи не являются юридической консультацией. Любые рекомендации являются частным мнением авторов и приглашенных экспертов.
Перепланировка двухкомнатной квартиры в трехкомнатную
Сейчас очень востребованным и популярным является такое оформление жилого пространства, при котором 2 комнатная квартира трансформируется в трехкомнатную.
Здесь чаще всего осуществляется увеличение числа спален. Так, например, если у вас в одной комнате помещается и гостиная, и спальня, можно разделить ее и получить 1 спальню и 1 гостиную.
Как можно выполнить перепланировку двушки в трешку
Основные приемы перепланировки квартиры
Дизайн интерьера при перепланировке может быть реализован самыми разными средствами и способами.
Самый распространенный и очевидный вариант подобной перепланировки предполагает следующее:
- Большая комната, которая имеет два окна, должна быть перегорожена таким образом, чтобы, в конце концов, она преобразовалась в 2 комнаты, в каждой из которых будет по одному окну.
- Но, к сожалению, таких комнат в однокомнатных квартирных практически не встречается.
м.
Прием 2: Перемещение кухни для сооружения дополнительной комнаты:
- Этот метод является не менее популярным, чем первый. Он заключается в том, что кухня передвигается на некоторое расстояние. При этом требуется только передвинуть одну из стен кухни и провести в ней небольшой косметический ремонт.
- В результате, получив уже комнату большего размера, вы сможете разделить ее на 2, но при этом их площадь будет в 2 раза меньше.
- Что же касается кухни эмаль на заказ, то ее новые габариты могут быть вполне подходящими для нормального ее функционирования. Но чаще всего она оказывается довольно тесной. В этом случае можно прибегнуть к объединению кухни с каким-то другим помещением.
- Так, вы можете соединить воедино коридор (или холл) с кухней. Так же, как вариант, имеется возможность расширения кухонного пространства с помощью балкона или лоджии.
В большинстве случаев все элементы многоквартирных домов типовой серии отмечены на специальном плане БТИ.
Это обозначает, что если перепланировка будет касаться разрушения или наоборот, возведение стены толщиной более 20см, то вам нужно будет переделывать уже имеющийся план. Данное мероприятие не бесплатно, поэтому заранее нужно будет позаботиться о решении этой проблемы (см. Дизайн проект квартиры, варианты оформления).
Примечание. Из двухкомнатной может получиться 3 комнатная квартира с двумя спальнями, как и в других случаях, только в соответствии с законом. Так что не забудьте, если схема четко определяет место кухни, то здесь не должна располагаться гостиная или ванная комната.
Под кухней в случае объединения ее с холлом подразумевается так называемая мини-кухня, а именно функциональная зона со следующими элементами:
- С раковиной.
- С посудомоечной машиной.
- С плитой и вытяжкой.
Рассмотрим подробнее:
- Что касается различных шкафов и кухонной мебели, они могут быть расположены в гостиной, и в других частях квартиры.
Таким образом, вы не можете трансформировать кухню в ванную, и наоборот. - Кухонный гарнитур может быть расположен на месте гардеробной, если здесь имеется доступ к естественному свету. Если обеспечить это условие невозможно, то позаботьтесь о том, чтобы в это помещение вела дверь со стеклом.
- Как вариант, имеется возможность сооружения стены с окном. Это все касается кухонь с электрической духовкой и плитой. Если намечается перепланировка двухкомнатной квартиры в трехкомнатную квартиру с двумя спальнями, то этот процесс будет сложнее в случае использования на кухне газовой плиты.
Данное оборудование обязательно должно оставаться на одном и том же месте. Также вы всегда должны быть в состоянии закрыть дверь или загородить это помещение хотя бы стеклянными перегородками от остальной части квартиры.
Перепланировка квартиры в студию с двумя спальнями
Идеи оформления небольших помещений
Перенести кухню или ванную комнату на место жилых помещений, запрещено.
Также не рекомендуется оставлять кухонное оборудование на жилой части территории квартиры, это касается такой техники, как:
- Мойка
- Плита.
- Посудомоечная машина.
Однако существует способ, согласно которому двухкомнатная квартира преобразовывается в трехкомнатную квартиру-студию с двумя спальнями.
При этом все вышеперечисленные элементы кухни остаются на своих местах, а остальная мебель и техника может быть перенесена в остальные комнаты квартиры, например, в гостиную. Незаменимой станет и лоджия. Сюда, наверняка, поместится несколько тумбочек и навесных полок.
Перемещение кухни на территорию ванной комнаты или туалета запрещено. Однако это правило не всегда действует, если квартира находится на верхнем этаже. В этом случае жилищная инспекция дает согласие на изменения, если собственник подписывает нотариально заверенное заявление о том, что он обязан информировать потенциального покупателя при продаже квартиры обо всех рисках и о возможном ухудшении условий их жизни, но происходит это очень редко.
Очень важно, чтобы у кухни было естественное освещение. На кухне, точнее на той ее части, которая осталась после планировки, должен быть доступ естественного света. Это может быть осуществлено как через обычное окно, так и через окно в другой комнате, по крайней мере, это можно осуществить с помощью установки стеклянных перегородок.
Способы увеличения жилой площади для разделения комнат
Вариант разделения комнаты на зоны
Решить проблему, связанную с недостатком комнат в квартире или в доме можно как самостоятельно, так и с помощью специалистов. Идеи данных реконструкций можно найти в специализированных журналах, на имеющихся в них фото или сделать план самостоятельно.
Для того чтобы получить возможность разделить какую-то одну комнату на 2, необходимо воспользоваться любым вариантом для увеличения их итоговой площади. Как правило, реконструкция квартир предполагает так называемый «заем» дополнительного пространства в пользу жилых комнат.
Балкон и лоджия – дополнительные квадратные метры при перепланировке квартиры:
- Площадь лоджии или балкон может быть присоединена к квартире, создавая изолированное, но при этом полноценное помещение, которое может стать кабинетом или даже детской комнатой.
- Однако, чаще всего, балкон или лоджия становится продолжением той или иной комнаты, позволяя таким образом увеличить ее площадь.
Совмещенный санузел для увеличения жилой площади квартиры:
- Ванная комната может быть разделена внутри на туалет и ванную, при этом потребуется перенести унитаз в ванную, а освободившееся пространство оставить для расширения и дальнейшего разделения спальни или гостиной.
- В данном случае многое зависит от стоящих перед вами задач и от количества людей, живущих в квартире.
Несмотря на то, что данное мероприятие предполагает проведение лишних метров коммуникаций, вы в результате освободите доступ к окну, который так необходим для вновь появившейся спальни.
Раздвижные двери вместо распашных дверок шкафов и подсобных помещений для экономии места:
- Площадь шкафов или кладовок, которые часто запланированы в новых квартирах, может быть сэкономлена благодаря использованию в них не обычных распашных дверок, а раздвижных дверей-купе.
- Компактные шкафы могут поместиться по одной из стен прихожей. В этом случае рекомендуется создание одного большого шкафа типа гардеробной комнаты. Здесь поместится значительно большее количество разнообразных вещей.
- При этом ни шкафы, ни двери не будут мешаться на узкой территории той или иной комнаты. А для того чтобы уместить в такую кладовку какой-то дополнительный предмет, вам нужно будет лишь установить новую полку.
Никаких дорогих шкафов и тумбочек, загромождающих жилое пространство, покупать не придется.
Преобразование кондоминиума с 2 спальнями в офис с 3 спальнями
Больше света и открытости. Меньше стен и холлов.
Помните раньше?
Я хотел, чтобы все было идеально, как разворот журнала Dwell, прежде чем показывать фотографии нашего нового места. Но пора отпустить и показать наш прогресс. Может быть, когда все действительно будет сделано, я найду фотографа по недвижимости, чтобы получить полный эффект. Может быть, выйдет даже журнал Dwell. (Любитель может мечтать, да?) Вот оно, как и обещал…
Та-да! 3 спальни, 2 ванные комнаты, кабинет, прачечная и большая комната площадью менее 1000 кв.футов
Что это было.
После безумного стресса и давления, вызванного капитальным ремонтом, было большим облегчением обнаружить, переехав в наш новый дом.
Большая комната
Невероятно, но даже после добавления третьей спальни и офиса наша большая комната все еще больше, чем была, демонстрируя огромный потенциал плохих планов этажей для проектов реконструкции.
Мы украли пространство из главной спальни, прихожей и бывшего туалета. Без стен вокруг кухни в центре удобно разместился кухонный остров с четырьмя сиденьями.
Тоже ярче. На старом плане оба окна спальни были скрыты стенами. В новом плане, если двери спальни открыты, все четыре окна выходят в большую комнату.
Бывшая стена теперь тройная раздвижная дверь в офис и кладовку.
Раньше.
Офис
Гениальность нашего офиса в том, что он может быть частью большой комнаты, частью главной спальни, частью обеих или полностью отделенными друг от друга. Он имеет тройные раздвижные двери в гостиную и дверь в спальню.
Поскольку я ложусь спать допоздна и не могу содержать офис в чистоте, чтобы спасти свою жизнь, я не хотел беспокоить членов семьи ни одной из этих вредных привычек. Мое решение в нашей бывшей аренде заключалось в том, чтобы переехать в заднюю кладовку. Это намного лучше — прямо рядом с окном изображения.
Подъезд
Оригинальный вестибюль.
Бескомпромиссный. Все остальное было связано с получением этой точки зрения.
Единственное, что мы знали наверняка перед этим ремонтом, — это то, что стена, закрывающая окно с картинкой от входа, должна была убрать.
Бог знает почему, но проектировщики здания проложили большую часть электрических проводов квартиры через эту самую стену. Так что да, нам пришлось перемонтировать всю квартиру. 20 000 болезненных долларов позже, сожаления нет. Первоначально это была квартира 1980-х годов с минимумом розеток, минимумом света и недостаточным количеством сока для обычной сушилки. Теперь у нас в 2–3 раза больше розеток и лампочек, а также много сока.
Для тех, кто шокирован ценой (как и я), коммерческие коды и ограничения высотных зданий позволяют удвоить стоимость всего — будьте осторожны, если вы отправитесь в подобное путешествие.
Водопроводные трубы не позволили нам вывести всю стену. Но у меня было достаточно, чтобы радоваться каждый раз, когда я прихожу домой.
Прихожая после: все еще проход, но теперь открытый.
Главная спальня:
Это наша самая большая спальня размером 10 футов на 10 футов 6 дюймов. (Кстати, она меньше, чем самая маленькая спальня в нашем загородном «доме мечты».) То, что заставляет ее работать, — это наша стена туалетов. Сделанный на 100% из шкафов Ikea Sektion, в нем есть шкафы для мужчин и женщин со встроенными ящиками комода, ночной столик с розетками, глубокое хранилище от пола до потолка по центру для разных домашних вещей и услужливо скрывает уродливый софит на потолке.
Стенка гардеробной спальни хозяев.
Раньше: Видите потолок слева вверху?
Большой тираж и свет. Плюс еще одна стенка для хранения вещей.
Я пытался избежать вертикального хранения, но не было никакого пути. Я хотел офис больше, чем отдельный шкаф, и нам приходилось где-то вешать одежду.
Неудобное пространство вокруг стенной печи оказалось еще одним отличным местом для встроенных шкафов Ikea.
Один шкаф имеет глубину 24 дюйма, а другой — 15 дюймов, но вид спереди — ровная, ровная стена.
Основная ванна
Мне нравится эта комната. Всего 8 футов на 5 футов, но с вырезанными в стене ящиками и множеством больших шкафчиков с лекарствами, здесь достаточно места для всего — даже для белья (и безделушек, упаси бог, если у меня случится рецидив). Заправленное освещение, визуальные линии плитки и большое зеркало над раковиной и унитазом делают его больше. И если растянуть плитку для душа от Home Depot за 1,99 доллара на всю стену за раковиной, она выглядит супер высокого класса. Конечно, может быть, мне это нравится, потому что в течение 3 лет мы были одной семьей в ванной.Ага. Наверное, и это тоже.
По сравнению с предыдущим.
Так что вам не нужно прокручивать вверх.
Детское крыло
Третья спальня была расширена за счет прихожей. У него нет прямого окна, выходящего на улицу, и в нескольких дюймах от минимума 7 x 10 футов, необходимого для того, чтобы быть законным, но есть пожарные спринклеры, надлежащая вентиляция, место для комфортного сна 2-4 человека (на кроватях шириной 30 дюймов. ), и по-прежнему имеет два свободных пути эвакуации. На 30 этажах выше уровня улицы требования к выходу и безопасности смещаются с необходимости использования окон на необходимость в разбрызгивателях.Иметь более темную комнату без окон для сна на самом деле замечательно для раннего отхода ко сну.
Мы могли бы сделать вторую и третью спальни отдельными, но вместо этого мы решили сделать общий туалет, который можно использовать как холл между комнатами. Детям будет легче играть. Мама и папа могут легко их разбудить и уложить. Это отличный способ пройти через дом.
Скрытый хаос, и почему до сих пор нет фотографий детских комнат.
Это еще не все, но в другой день.
Мы верим в проповедников «меньше значит больше», и мы не были разочарованы. Меньше места в передней части означало больше планирования, больше внимания к деталям, более тщательный выбор мебели и техники, а также больше времени и работы по объяснению вещей подрядчикам. Но теперь, когда мы здесь, мы не можем поверить, насколько он просторен. 989 роскошных квадратных футов для семьи из 4 человек. Меньше убирать. Больше времени, чтобы насладиться. Аминь.
Преобразование квартиры с двумя спальнями в квартиру с тремя спальнями в Бруклине
Спустя десятилетия после последнего ремонта довоенная квартира обретает новую жизнь
Найти идеальную квартиру для одного человека в Нью-Йорке может быть непросто, не говоря уже о для растущей семьи, в которую входит 2.5-летний, 2-месячный ребенок и домашнее животное Мэгги. Иногда для того, чтобы сорвать джекпот в сфере недвижимости, требуется чистая удача, а иногда, как в случае с юристами Кэтрин и Крис, требуется дальновидность. Дом мечты пары — квартира с тремя спальнями в Парк-Слоуп — оказался не полностью отремонтированным и не по такой разумной цене, как они надеялись. Вместо этого они остановились на квартире с двумя спальнями, которая раньше контролировалась арендной платой, и проявили творческий подход к дизайну. Чтобы помочь реализовать свое видение, Кэтрин и Крис обратились к Sweeten, бесплатному сервису, подбирающему ремонтников с проверенными генеральными подрядчиками, и в конечном итоге наняли дизайнерскую фирму, чтобы превратить существующую кухню квартиры в главную спальню, отремонтировать ванну и создать семейный дом, который они так долго искали.
Сообщение в гостевом блоге домовладельца Кэтрин
Прогулка с 1,5 спальнями в Верхнем Ист-Сайде, несомненно, имеет свои прелести, но до рождения нашего второго ребенка нам нужно было больше места (и меньше лестниц! ) маячил. Мы искали в районе Парк-Слоуп в Бруклине, потому что одна из зонированных начальных школ в этом районе превосходна. Родители Криса также живут в южном Бруклине и очень полезны с детьми, что было дополнительным стимулом для наших поисков.Проблема в том, что когда вы ищете в желаемом районе с желаемой начальной школой, трудно найти хорошие, полностью отремонтированные апартаменты с тремя спальнями. А когда они появляются, они довольно дороги.
Мы настроили на StreetEasy оповещения о продажах по соседству в определенном ценовом диапазоне и увидели следующее объявление: квартира площадью 1000 квадратных футов в довоенном (около 1920 г.) здании из серого камня. Несмотря на то, что это была квартира с двумя спальнями, мы сразу узнали план этажа, который можно было изменить, чтобы получить три спальни, в которых мы нуждались.
Когда мы проверили это, мы узнали, что, поскольку квартира находится на первом этаже и это не будет мешать верхним блокам, мы, вероятно, могли бы переместить кухонную сантехнику из задней части квартиры в переднюю, создавая открытую жилую площадь. комната-кухня впереди и превращение бывшей кухни в нашу главную спальню. К тому же наши сметные затраты на строительство казались приемлемыми.
Далее вопрос оставался только в том, сможем ли мы найти подрядчика для ремонта в ценовом диапазоне, который делает общие инвестиции целесообразными.По сути, покупная цена и затраты на ремонт должны были составить приблизительную рыночную стоимость отремонтированной трехкомнатной квартиры в этом районе.
( Выше ) Встроенная кладовая объединяет выдвижную кладовую с гардеробной рядом с ней
Кладовая также была идеей нашего подрядчика; Я даже не знала, что существуют выдвижные кладовые, и не была уверена, что у нас найдется место. Но работает отлично…
Планировка квартиры — это одно, но нужно было еще много поработать.В квартире не делали ремонт как минимум 30 лет. Полы были покороблены от воды, пол в коридоре был покрыт промышленными коврами, а на кухне — старый линолеум. На кухне был низкий потолок с крошащейся плиткой и пятнами от старого наводнения. Стены были покрыты десятками слоев краски, а потолки по всей квартире были покрыты воздушной кукурузой.
В ванной была проржавела сантехника, и ванна с ножками на ножках была установлена с душем на длинной стенке ванны, а не на коротком конце.Также нужно было обновить шкафы и проводку. В целом, мы искали яркую, современную эстетику, но хотели, чтобы она не казалась холодной или несовместимой с довоенным стилем здания.
Enter Sweeten. Мы разместили наш проект и желаемый бюджет на сайте и приступили к опросу подрядчиков. Поскольку мы не творческие люди, мы определенно увидели ценность в найме фирмы, которая предлагала как строительные, так и дизайнерские услуги, и нам понравилось, что генеральный подрядчик Sweeten, которого мы выбрали, не только изготовил свои собственные шкафы, но и предоставил 3D-проекты, чтобы мы могли визуализировать готовый проект.Это действительно позволило нам участвовать в процессе.
Кроме того, при согласовании цены и объема проекта наш подрядчик был очень искренен с нами. Когда мы предлагали определенные меры, которые могли бы сократить расходы, например, они говорили нам, думали ли они, что мы будем недовольны результатом, но затем предлагали другую область сокращения затрат, которая была бы менее заметна в готовом проекте.
Создание и максимальное увеличение пространства было еще одним важным аспектом для нас во время ремонта, и это оказалось особенно сложной задачей на кухне, где некоторые виды хранилищ могли легко сделать пространство тесным.
Я твердо чувствовал, что нам нужен гардероб в гостиной, чтобы избавиться от беспорядка на входе. Изначально я имел в виду большие мультимедийные блоки со встроенным хранилищем, но наша команда подрядчиков из Sweeten предложила вместо этого расширить кухонные шкафы, интегрировав таким образом шкаф, что выглядит намного лучше, чем отдельный мультимедийный блок. Кладовая также была их идеей; Я даже не знала, что существуют выдвижные кладовые, и не была уверена, что у нас найдется место. Но он работает отлично и позволяет использовать в дизайне каждый дюйм пространства от пола до потолка.Теперь мы можем положить наверх то, что не используем, а также дополнительные расходные материалы.
( выше ) Существующая кухня становится главной спальней. В старой кухне не было туалета, поэтому нам пришлось добавить их в главную спальню. Мы решили построить шкафы и туалеты вокруг кровати, чтобы сэкономить место, а не ставить шкафы напротив кровати, которые занимали бы драгоценное пространство на полу.
В ванной стало немного сложнее. Мы переместили ванну сбоку на заднюю стенку, чтобы сэкономить место и освободить место для дополнительного хранения в шкафу.Этот шаг потребовал от нас в некоторой степени изменить сантехнику, потому что мы использовали прежний слив из унитаза для ванны. Поскольку в ванной была асбестовая плитка, нам пришлось бы сократить выбросы, если бы мы сделали новый слив для унитаза. Вместо этого мы решили использовать подвесной унитаз, который в итоге выглядел очень обтекаемым и экономил пространство, так что это был беспроигрышный вариант.
Также была труба отопления на задней стенке, где изначально располагалась ванна, которую мы выложили плиткой. Это потребовало от нас установить ванну примерно в 10 дюймах от окна.Наши подрядчики использовали это пространство для создания полок для душа, которые также стали красивым элементом дизайна. Полы из плитки Penny добавили приятных тактильных ощущений, а мраморная плитка придала помещению роскошный вид.
Оглядываясь назад, мы поняли, что другие подрядчики предлагали сократить расходы в тех областях, которые нам в конечном итоге не понравились (например, сохранить оригинальные двери, которые перекрашивали слишком много раз), но не предлагали сократить расходы менее заметным образом. области, как это сделала эта команда разработчиков и разработчиков.Выбранные нами подрядчики были очень честными и знающими и в конечном итоге склонили чашу весов в свою пользу, чтобы выиграть проект.
В конце концов, они доставили более красивую квартиру, чем мы могли себе представить. Вдобавок ко всему, они сделали это очень быстро, и с ними было приятно работать. Я очень рекомендую их.
Спасибо, Кэтрин и Крис. Нам понравилось видеть, как ваше видение воплотилось в жизнь!
КУХНИ РЕСУРСЫ: Напольное покрытие из белого дуба рифленый и распиленный под березовую морилку, отделка сатинированным лаком: Bona.Шкафы из орехового дерева, покрытые глянцевой супер-белой эмалью, с индивидуальной окраской: индивидуальный заказ от генерального подрядчика. Оборудование для вытяжного шкафа Asbury: Оборудование для восстановления. Столешницы и фартук в Stella: LG Viatera. Стандартная мойка 30 ″, устанавливаемая под столешницу, # KHU100-30: Kraus. Выпадающий кран Graham, # VG02014: Vigo. Холодильник: Blomberg. Посудомоечная машина: Bosch. Плита: Бертаццони. Георгий Ковач, 5-ти ламповый островной светильник Alluria, №P1355-618: Minka Group. Встречное освещение: PUK. Краска для стен Super White, # OC-152: Benjamin Moore.
РЕСУРСЫ ВАННОЙ КОМНАТЫ: Nirvana Снежная окантовка 1 ″ круглая керамическая плитка: Tilebar. Скульптурный мрамор, отточенный 12 ″ X 24 ″ X 3/8 ″ Стенная плитка Stone Field: Художественная плитка. Оборудование для вытяжного шкафа Asbury: Оборудование для восстановления. Душевые и раковины Graceline из французской латуни: Rohl. Раковина: Колер. Умывальник из ясеня синей морилки с кварцевой столешницей: Custom. Подвесной унитаз Aquia: Toto. Освещение для бра с поворотным кронштейном Ford’s Mill: Омоложение. Винтажное встроенное косметическое зеркало / аптечка из латуни: Pottery Barn.Ванна: Duravit.
РЕСУРСЫ ГОСТИНОЙ: Георгий Ковач Понтиль, 6 ламп, люстра: Minka Group. Раскрасьте Super White, # OC-152: Бенджамин Мур.
РЕСУРСЫ ОСНОВНОЙ СПАЛЬНИ: Встроенные шкафы: решения Smart Closet Solutions. Бра для настенных кроватей Morocco, # IWF582A01BK: Canarm. George Kovacs Alluria Светильник полупрозрачный на 3 светильника: Minka Group. Краска Wickham Grey, № HC-171: Benjamin Moore.
—
Кэти и Маркус отремонтировали квартиру в Парк-Слоуп, Бруклин.
Sweeten вручную отбирает лучших генеральных подрядчиков в соответствии с местоположением, бюджетом и объемом каждого проекта, помогая до его завершения.Следите за блогом Sweeten Stories, где вы найдете идеи и вдохновение для обновления, а когда будете готовы к ремонту, начните ремонт на Sweeten.
Стоит ли преобразовывать дом с 3 спальнями в дом с 2 спальнями?
Если у вас есть дом с тремя спальнями, где одна из спален находится на маленькой стороне, может возникнуть соблазн снести некоторые стены и изменить конфигурацию пространства. Возможно, у вас есть идеи по объединению двух комнат в одну большую спальню. Может быть, вы хотите иметь больше открытого плана этажа, чтобы пользоваться более общим пространством.Какими бы ни были ваши планы по избавлению от третьей спальни, сначала прочтите это.
Потеря спальни снизит стоимость недвижимости.
По данным Realty Hop, средняя цена дома с тремя спальнями в 100 лучших городских районах США составляет 246 321 доллар, а дома с двумя спальнями — 178 650 долларов. Это разница более 67 000 долларов. Хотя в этих данных учитывается только количество спален, а не общая площадь дома, 67 тысяч долларов по-прежнему достаточно, чтобы дать инвестору паузу перед преобразованием трехкомнатной квартиры в двухкомнатную.
Ваш пул покупателей уменьшится.
Некоторые покупатели будут рассматривать недвижимость с двумя спальнями как разумное вложение для новостройки. Другие по достоинству оценят возможность уменьшить размер дома с более крупного до такого, где им будет легче стареть на месте во время выхода на пенсию. А другие будут рассматривать дом с двумя спальнями как шанс перейти от квартиры или кондоминиума до небольшого дома на одну семью.
А что насчет всех остальных? Убирая эту третью спальню, вы упускаете более широкую демографию покупателей жилья, особенно семьи с более чем одним ребенком.Конечно, невозможно угодить каждому покупателю, но, исключив из уравнения такую желательную функцию, как третья спальня, вы потеряете огромный сегмент покупателей жилья.
Еще один способ, который вы упустите с покупателями жилья, — это то, что ваша собственность может затеряться среди других онлайн-списков недвижимости. Охотники за домами обычно ищут на сайтах недвижимости количество спален и ванных комнат, а не площадь в квадратных футах. Таким образом, хотя ваш дом может быть такого же размера, как и соседний дом с тремя спальнями, он не появится в результатах поиска.
Пандемия изменила потребности домовладельцев
Когда пандемия превратила наши дома в офисы и классы, возникла безумная борьба за то, чтобы семьи могли проводить рабочие и школьные дни под одной крышей. Открытые планы этажей, когда-то желанные за их просторную гибкость, мешают людям найти уединение для работы или учебы сейчас, когда все дома.
Мораль истории? Сейчас не время убирать комнату с закрывающейся дверью.Независимо от того, используется ли эта третья спальня для сна, в качестве огромной гардеробной или домашнего офиса, оставьте это решение вашим покупателям.
Итог
В то время как просторные спальни пользуются успехом у домовладельцев, маленькая спальня по-прежнему остается комнатой с закрывающейся дверью. Во время пандемии может быть трудно обеспечить конфиденциальность дома, поэтому инвесторам выгодно оставлять даже крошечные комнаты как есть для перепродажи. Независимо от того, насколько заманчиво открыть план этажа, лучше оставить третью спальню нетронутой, если вы хотите привлечь больше покупателей и заработать более высокую рентабельность инвестиций.
Условия и определения аренды квартиры в Оттаве
Вы хотите снять квартиру в Оттаве, но не понимаете, чем отличается квартира с одной спальней от квартиры с двумя спальнями? Не уверены, что квартира-студия и холостяцкая квартира — это одно и то же, только с разными названиями? Мы здесь, чтобы помочь!
Это краткое руководство по общим терминам и определениям квартир поможет вам познакомиться с различными типами аренды квартир в городе и особенностями, которые каждая из них может предложить, что позволит вам легко путешествовать по спискам квартир в Оттаве и значительно улучшить ваши шансы найти свою идеальную аренду квартиры в Оттаве.
БАКАЛАВРНАЯ КВАРТИРА / КВАРТИРА-СТУДИЯ
Да, это правда — это действительно одно и то же, только разные названия. Холостяцкая квартира — это небольшая однокомнатная квартира с отдельным санузлом. Одноместная комната служит спальней, столовой и гостиной и обычно соединяется с открытой кухней. Размер комнат в холостяцких апартаментах может варьироваться от очень маленьких (достаточно больших для дивана-кровати и письменного стола) до очень больших (достаточно места для кровати размера «king-size» и дивана).
Вариантом холостяцкой квартиры является холостяцкая ниша (также называемая трансформируемой холостяцкой или трансформируемой студией), которая обычно имеет L-образную форму с отдельным уголком — идеальное место для размещения этого компьютерного стола!
District Realty имеет множество квартир-студий, расположенных по всей Оттаве, в том числе многие в наших многоквартирных домах в центре Оттавы — идеально подходящие для молодых специалистов или студентов университетов.
КВАРТИРА НА ЛОФТЕ
Квартира-лофт — это очень уникальный вид аренды квартиры, так как она обычно состоит из большого открытого пространства с очень небольшим количеством внутренних стен. Лофты обычно создаются, когда коммерческое здание превращается в жилую единицу, и в результате лофты обычно имеют очень высокие потолки, очень большие окна и часто имеют открытые трубы и колонны.
Поскольку пространство настолько широко открыто, возможности безграничны — ваша квартира на чердаке — это то, что вы из нее делаете! Используйте разделители, шторы и т. Д.чтобы добавить индивидуальности и создать столько отдельных «комнат», сколько вы сочтете нужным.
1-КОМНАТНАЯ КВАРТИРА
Квартира с одной спальней в точности так, как рекламируется, то есть квартира с одной спальней. Конечно, вы также получаете отдельную гостиную, кухню и ванную комнату, что делает их идеальным вариантом для тех, кому не нужно много места, но нужно немного больше места, чем в холостяцкой квартире.
Возможно, вы слышали также о «полулюксе» однокомнатной квартире — это не настоящая двухкомнатная квартира, а очень большая однокомнатная квартира, которая достаточно велика, чтобы разделить отдельную спальню или спальню.
2-КОМНАТНАЯ КВАРТИРА
Двухкомнатная квартира имеет две отдельные спальни, а также полноценную гостиную и отдельную кухню. Размеры спален в апартаментах с 2 спальнями могут быть разными: от детской или небольшого офиса до очень большой главной спальни.
Трансформируемая квартира с двумя спальнями (иногда называемая «flex 2») на самом деле является квартирой с одной спальней, но она достаточно велика и спланирована таким образом, чтобы можно было построить вторую спальню, если нужный.Точно так же трансформируемая квартира с тремя спальнями (или «flex 3») — это квартира с двумя спальнями, которая при необходимости может быть преобразована в 3 спальни.
Другой тип апартаментов с 2 спальнями — это апартаменты в крыле, где обычно есть две спальни плюс небольшая общая зона (например, кухня-столовая), но нет гостиной. Эти апартаменты идеально подходят для студентов или соседей по комнате, которым не нужно много общего жилого пространства.
ДОПОЛНИТЕЛЬНАЯ КВАРТИРА / НИЗКАЯ КВАРТИРА
Малогабаритная или малоэтажная квартира находится в доме без лифта — не забывайте это учитывать при въезде! Прогулочные помещения обычно представляют собой старые здания высотой менее пяти этажей, в которых могут отсутствовать такие удобства, как прачечные, шкафчики для хранения вещей или доступ для инвалидных колясок.Как правило, ежемесячная арендная плата за малоэтажную квартиру дешевле, чем ежемесячная арендная плата за многоэтажную квартиру.
Прогулочные апартаменты также могут называться триплексом, шестиплексом и т. Д., В зависимости от того, сколько квартир содержится в многоквартирном доме.
Многие из сдающихся в аренду квартир District Realty в Вестборо и западной части Оттавы считаются малоэтажными, в том числе на Темзе и бульваре Мэйси. Наши апартаменты для сдачи в аренду — отличный выбор для тех, кто любит жить в апартаментах, но не хочет жить в большом доме с десятками других семей.
ВЫСОТА КВАРТИРА
Высотные квартиры можно найти в домах, как правило, от шести этажей и выше. В многоэтажных многоквартирных домах есть лифты и часто есть прачечные, бассейны, фитнес-центры, круглосуточные магазины, комплексные системы пожарной сигнализации и системы безопасности для наблюдения за входом и выходом арендаторов. Кроме того, во многих многоэтажных многоквартирных домах есть сотрудники администрации, которые помогут вам в случае возникновения чрезвычайной ситуации.
District Realty имеет несколько высотных зданий по всей Оттаве, в том числе Gilboa Place и 285 Lorettta Ave.S., а также предлагаемые нами квартиры в центре Оттавы в аренду, такие как The Edwardian и The New Yorker.
ПЕНТХАУС КВАРТИРА
Пентхаус — это квартира на верхнем этаже многоквартирного дома, обычно с дополнительными балконами или террасой на крыше. Пентхаус обычно считается довольно роскошным и очень желанным (хотя и дорогим) местом для жизни.
ТАУНХАУС / ДОМАШНИЙ ДОМ
Таунхаус — это дом, который прикреплен к одному или нескольким другим домам, то есть каждая единица имеет общую стену с другой единицей в здании (а также другие общие элементы, такие как центральный двор).Однако, в отличие от аренды квартир на открытом воздухе или в многоэтажных домах, таунхаус обладает большинством функций, присущих отдельно стоящему дому, и может включать от двух до четырех или более спален. Кроме того, таунхаусы могут различаться по размеру: от простых дуплексов и триплексов до 10 и более квартир в ряд.
Таунхаусы— отличный выбор для аренды для тех, кто любит иметь собственное открытое пространство, но не хочет заниматься большей частью работы или обслуживания двора.
Разница между эффективностью и однокомнатной квартирой | Руководства по дому
Лора Брамбл Обновлено 29 декабря 2018 г.
Объявления о недвижимости могут быть очень запутанными, поскольку терминология требует небольшого перевода.«Уютный» переводится как «маленький», «прилегающий к» означает в пределах мили или двух, а «переходный район» — это район, которого всего несколько лет назад нужно было избегать. Еще один набор терминов, который может вызвать путаницу, — это «однокомнатная квартира» и «экономичная квартира». Тот факт, что многие агенты и арендодатели используют их как взаимозаменяемые, не помогает. Однако некоторые конкретные особенности различают их.
Размер
Как студии, так и эффективные — это, как правило, небольшие апартаменты, предназначенные для проживания одним человеком.Они разработаны, чтобы быть простыми и недорогими. Для многих арендаторов и покупателей эти апартаменты — доступный способ попасть в удобное или престижное место.
Эффективность
Эффективные квартиры, также называемые квартирами для холостяков, всегда небольшие и включают совмещенное жилое и спальное пространство. Наиболее эффективные апартаменты — это однокомнатные апартаменты с отдельной ванной комнатой. У эффективности есть кухонная зона, примыкающая к жилой зоне. Стена из бытовой техники и прилавок — обычное дело.Бытовые приборы часто меньше обычных, например, наполовину холодильник, плита с одной или двумя конфорками и небольшая раковина с небольшой рабочей поверхностью, и они больше предназначены для нагрева пищи, чем для приготовления полноценной еды.
Студии
Квартиры-студии не всегда маленькие, но всегда представляют собой одну комнату, совмещающую жилую и спальную зоны. Некоторые студии могут иметь нишу для сна или чердак, который открывается в главную комнату. В них есть отдельная ванна и кухня с полноразмерной техникой.
Loft Studios
Другой тип студии — лофт-студия. Этот тип студии представляет собой однокомнатную комнату с высокими потолками и часто имеет такие промышленные элементы, как открытые балки или воздуховоды и большие окна. Эти студии могут быть довольно большими, особенно в переоборудованных помещениях. У них может быть отдельная кухня с полноразмерной техникой, объединенная в единое открытое пространство, и закрытая или отдельная ванная комната. Может быть открытая приподнятая мансарда над кухней и ванной, которую можно использовать как спальную зону.
Соображения
Оба стиля квартир очень функциональны и требуют специальной расстановки мебели и декорирования для создания очерченных пространств. Хранение в этих единицах, как правило, имеет большое значение, и предметы мебели часто должны выполнять несколько функций для удовлетворения потребностей в хранении. Конфиденциальность может быть проблемой, если есть гости.
Как превратить вашу квартиру в семейный дом — Mortgage Sandbox
Цены на жилье в Ванкувере падают с середины 2018 года; однако доступные по цене семейные дома по-прежнему недоступны для большинства из нас.В Ванкувере остро не хватает квартир с 3 и 4 спальнями, что затрудняет проживание большинства семей в городе. Оказывается, есть несколько способов превратить кондоминиум с 2 спальнями в удобный семейный дом, который вы можете себе позволить.
В этом посте мы объясним, почему проживание в кондоминиуме с семьей так важно, как улучшить жизнь в кондоминиуме с семьей, и дадим восемь советов, если вы новичок в семейной жизни в кондоминиуме.
Что такое семья, живущая в кондоминиуме и почему это важно?
Заоблачные цены на жилье в Ванкувере отталкивают семьи, оставляя город без детей.Большое влияние на массовое бегство оказала культура: канадцы были воспитаны с убеждением, что детям нужен дом с задним двором, чтобы расти и развиваться. Еще один ключевой фактор — канадцы не извлекли уроков из Европы, где создание семьи в квартире было нормой для многих поколений.
В этой статье приводятся некоторые советы экспертов по космополитической жизни из-за Атлантики.
1. Добавьте еще одну спальню
Вы искали новые места для покупки, и единственные дома в вашем ценовом диапазоне — это квартиры с 2 спальнями.Место идеально подходит для работы и учебы, а главная спальня — это то, о чем вы и ваш партнер мечтали. Однако проблема в том, что ваша 13-летняя дочь категорически отказывается делить комнату со своим 7-летним братом. Если бы вы только могли добавить еще одну комнату…
Это вполне возможно, если вы купите подходящее место, наймете опытного архитектора и согласитесь с меньшим количеством общественных пространств.
Купите в нужном месте
Чтобы выбрать подходящее место для покупки, важно немного знать строительные нормы и правила.Я поговорил по телефону с Управлением по регулированию строительства города Ванкувера, и вот основные выводы:
Планы, соответствующие строительным нормам (высота, пожарная безопасность, двери), будут утверждены.
Сохранность — самая большая проблема; это определяется площадью и освещением и зависит от зонирования.
Утверждение Strata сложнее, но большинство из них примет любые изменения, которые вы хотите внести, если у вас есть уважительная причина.При покупке дома просмотрите протоколы прошлых собраний слоев, чтобы узнать, как они отреагировали на другие запросы домовладельцев.
В зданиях с спринклерными системами не требуется окно в спальне (хотя окна во всех спальнях настоятельно рекомендуется).
Вы хотите найти особенно просторную 2-х комнатную квартиру. Эти кондоминиумы находятся в верхней части ценового диапазона с 2 спальнями, но будут более доступными, чем кондоминиумы с 3 спальнями. Есть несколько способов добавить комнату: вы можете разделить спальню, выделить новую комнату из своей столовой или полностью изменить квадратные метры всей квартиры.Вот где все зависит от инвестиций в великого архитектора.
Зданий — Незаконное переоборудование
Незаконные преобразования
Незаконная переоборудование — это перестройка или модификация существующего здания с целью создания дополнительной жилой единицы без предварительного разрешения Департамента строительства города Нью-Йорка.Примеры незаконного преобразования:
Использование собственности, предназначенной для производства или промышленного использования, для проживания в жилых помещениях;
Создание жилого помещения в здании, предназначенном для производства или промышленного использования;
Добавление квартиры в подвале, на чердаке или в гараже без согласования или разрешения Департамента строительства; или
Создание пансионата (однокомнатное размещение) или разделение квартиры на однокомнатное размещение.
Чем опасны незаконные преобразования?
Незаконная переоборудование представляет собой серьезную угрозу безопасности для жителей и лиц, оказывающих первую помощь в городе, поскольку создает потенциально небезопасные жилищные условия и не соблюдает строительные и противопожарные нормы. Они снижают качество жизни в районе, перегружая основные службы, вызывая перенаселенность и сокращая и без того ограниченное количество промышленных и производственных площадей, необходимых для поддержки местного бизнеса.Ваша квартира / комната может быть незаконной, если вы ответите утвердительно на любой из этих вопросов:
Ваша спальня в подвале? (Подвал имеет по крайней мере половину своей высоты под землей.)
Вы живете на чердаке?
Получаете ли вы электричество через удлинитель?
Вы запираете комнату на замок?






Таким образом, вы не можете трансформировать кухню в ванную, и наоборот.