Какого размера лучше построить веранду к дачному дому
Любители комфортного отдыха предусматривают наличие веранды в дачном домике еще на этапе проектирования. Но если вы приобрели дом без пристройки, то ее можно возвести в любое время. Встает вопрос, какого типа, размера должна быть веранда, чтобы доставить максимум удовольствия для отдыха.
Некоторые путают веранду с террасой. Но между ними есть существенные различия. Терраса – это открытая пристройка к дому без фундамента и остекления. По определению СНиП веранда – это неотапливаемое остекленное пристроенное к дому помещение. Служит буфером между жилой зоной и открытым пространством, защищая жилье от ветра, холода, вторжения посторонних людей.
Для чего пристраивают веранду
Веранду пристраивают со стороны входной двери, так как это место самое уязвимое с точки зрения теплоизоляции. Наличие пристройки исключает возможность сквозняков. Веранда выполняет функциональную роль, обеспечивая:
-
защиту двери от холода и взлома;
-
утепление фасада;
-
хорошую звукоизоляцию;
-
создание дополнительного пространства.
Фасад здания с верандой надежно защищен от воздействия погодных явлений, что продлевает срок службы дома без капитального ремонта. Во время непроживания на даче пристройку можно использовать как кладовку для хранения всевозможных бытовых предметов.
Веранда может быть неотапливаемой и отапливаемой, если планируют в ней проживание, как в жилой комнате. Помещение обустраивают приборами отопления, предусматривают вентиляцию. Большой обзор из окон позволяет насладиться красотой природы, превратить пристройку в место для уединения, где можно медитировать, заниматься психологическими практиками.
Обустроенная веранда с красивой меблировкой служит для приятного времяпровождения с семьей. Здесь можно принимать гостей. Некоторые используют пристройку для создания оранжереи, зимнего сада.
Официальное оформление постройки
Пристройка, созданная на фундаменте, приравнивается к капитальному строению.
Чтобы не возникли неприятности с ее сносом, как объектом самостроя, необходимо узаконить строительство. Даже если строение возведено на ленточном фундаменте, никто не знает, какие изменение в законодательной базе предвидятся. Строение не застраховано от принудительного сноса.
Строительство пристройки, имеющей общую стену с основным зданием, а также увеличивающей общую площадь, расценивается органами государственной власти как реконструкция. Поэтому необходимо предварительно, желательно за два месяца до строительства, подать уведомление властям. По окончанию строительных работ следует оформить постройку в БТИ, для этого необходимо представить туда заявление и документы на землю и дачу. Если не сделать это заранее, то можно получить штраф.
Каких размеров должна быть веранда
По проекту веранда – это пристройка к дому, которая должна находиться со стороны входной двери. По стандарту ее ширина не менее 2,5 м, а длина соответствует размеру стены.
Размер веранды может быть произвольным, но следует придерживаться следующих принципов:
-
соответствие архитектурному облику дома – важно продумать экстерьер, сочетающийся с видом здания. Лучше всего предусмотреть планировку веранды на этапе проектирования. Дизайнер проработает проект с учетом ваших потребностей, стилевой направленности, соответствия строительным нормам;
-
выполнение из тех же материалов, что и основное строение;
-
гармонизация с габаритами дачи – маленькая пристройка органически дополнит облик уютного одноэтажного домика небольших размеров. Если вы пристроите дополнительное помещение 3Х4 метра к большому двух- или трехэтажному особняку, то нарушите пропорции.
Размер веранды рассчитывают, исходя из количества людей, которые там буду пребывать, а также от назначения. Некоторые устаивают в пристройке кухню или столовую.
В таком случае при расчете учитывает оптимальное расстояние между предметами меблировки. Следует учесть, что большая веранда требует значительных затрат на отопление помещения.
Пристройку можно сделать любой формы – прямоугольной, квадратной, многоугольной, овальной. Веранды бывает открытая и закрытая с различным типом остекления. Панорамные стекла придадут стильный вид постройке и обеспечат тепло в помещении.
На размеры веранды влияют многие факторы, учесть которые самостоятельно не всегда удается. Поэтому лучше воспользоваться услугами профессионального архитектора.
Дизайн веранды: 11 шагов к комфорту
Все знают, что в своем доме всегда найдется работа. Хозяину некогда отдыхать: весной и летом – сад и огород, зимой – ежедневная расчистка льда и снега, осенью – непрерывная уборка листьев. Казалось бы, наибольшей мечтой для практичного и здравомыслящего человека должна быть благоустроенная хорошенькая квартира, максимум с парой цветочных горшков на подоконнике.
И тогда можно спокойно наблюдать за буйством природы, не вспоминая, куда в прошлый раз закинул лопату и грабли.
А вот и нет. В последнее время мечта о своем доме стала повально заражать городских жителей, владельцев квартир. И виновато в этом желание избавиться от сопящих за стенкой соседей, ощущения скученности, а, может даже, желание занять место в истории, вырастив уникальный сорт помидоров. Но наибольшую лепту вносит она. Веранда. Кто не мечтал, с трудом встав утром, выпить чашечку кофе на прекрасной, благоустроенной террасе, подставляя лицо утреннему солнцу. Итак, первый вывод. Если свой дом, то веранда – обязательное условие.
1. Сначала необходимо разработать проект. Его необходимо будет согласовать с определенными инстанциями (БТИ и архитектурным управлением).
2. Если сразу нарисовать заветное место не удалось, прибегнем к поэтапному решению задачи. Сперва ответьте на вопрос, для чего строится терраса. Хочется увеличить жилую площадь коттеджа или площадь остекленной нежилой части дома? Некоторые любители флоры мечтают о пристройке, которую можно использовать как зимний сад с оранжерейными растениями.
В таком случае дизайн веранды будет различным.
3. Где ее будем строить. Терраса может быть отдельным строением (другое название – беседка или павильон), примыкать к сараю, гаражу или дому.
4. Также упомянем о возможных вариантах расположения веранды. Наиболее распространенной версией является веранда, примыкающая одной стеной к дому. Встречаются проекты домов, где терраса находится на крыше гаража или дома, представляет собой сильно расширенный балкон, расположена между домом и воротами или сзади коттеджа. Все же самой уютной выглядит веранда, построенная с тыльной стороны дома, где она укрыта от случайных взглядов прохожих и меньше слышны звуки проезжающих машин, а глаза отдыхают на стройных грядках укропа и качающихся ветвях персика.
[zzz1]
5. Теперь определимся с внешним видом. Терраса – это практически полностью открытый ветрам и дождям участок рядом с домом. Дизайн веранды отличается, в первую очередь, остеклением и пригодностью в холодное время года.
Поэтому необходимо сразу решить, будете ли делать прозрачную крышу, застекленный фасад или даже двухэтажную веранду (снизу – открытая с колоннами, вверху – закрытая балконного типа).
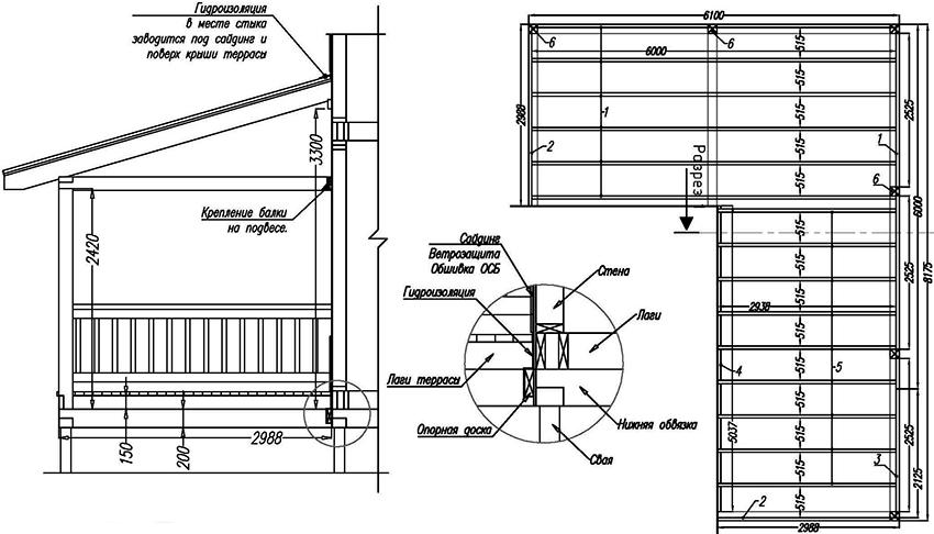
6. Наиболее распространенным вариантом является следующее строение. Веранда позади дома, примыкающая одной стеной к нижнему этажу, открытая или застекленная. Для такой пристройки существуют определенные требования:
- оптимальные размеры веранды составляют 2,5 м в ширину, и от 3 до 6 м в длину;
- фундамент террасы и дома желательно сделать сразу одинаковыми, так не возникнет проблем с перекосами;
- наилучшим выбором для каркаса будут бревна или брусья;
- очень важно плотно состыковать веранду с домом, чтобы не осталось зазоров между стеной и крышей, иначе первые же дожди покажут огрехи в строительстве;
- крышу веранды лучше выполнить более пологой и односкатной;
- если решили сделать закрытую пристройку, то необходимо хотя бы несколько больших окон, обеспечивающих свет и естественную вентиляцию;
- дом и терраса должны быть выполнены в едином стиле, с использованием однотипных материалов.
Впрочем, допускается сочетание деревянной веранды и каменного коттеджа.
7. Для веранды необходимо выбрать тип стеклопакетов. Можно сделать упор либо на теплоизоляционных, либо светонепроницаемых, либо звукоизоляционных стеклах.
8. В холодное время года веранда может отапливаться, как и весь дом, с помощью центрального отопления или электрообогревателями. Альтернативные варианты: камин или переносные конвекторы.
9. Определитесь с интерьерным стилем: дизайн веранды может быть выполнен в колониальном -для затененных террас, в этническом (средиземноморском, скандинавском, восточном, японском), морском, прованс, кантри – для солнечных. Здесь приветствуются натуральные материалы, светлые нежные оттенки (особенно бело-голубая гамма), большое количество зелени.
10. В особо жаркие дни хочется укрыться от палящего солнца, не уходя с террасы. В этом помогут жалюзи, ширмы, шторы из свето- и влагонепроницаемого материала, затенение с помощью растений.
11. Позвольте веранде остаться просторной, не загромождайте ее мебелью. Пусть там будет только то, что необходимо для приема гостей или отдыха: стол, стулья, диванчик, качалка, гамак, шкафчики.
Надеемся, эти советы помогут создать идеальный дизайн веранды и превратить ее в самое уютное место в доме.
Какого размера должна быть моя веранда?
Вы, наверное, много думали о стиле вашей новой веранды, но задумывались ли вы о размерах?
Ширина, длина и высота вашей веранды — это личный выбор, который зависит от размера вашего заднего двора, стиля вашего дома и того, для чего вы надеетесь использовать свою веранду. В зависимости от вашего образа жизни и возраста вашей семьи у вас будут разные требования и желания, которые также повлияют на тип выбранной вами веранды.
Вот несколько вопросов, которые вы должны задать себе, прежде чем принять решение о размере вашей веранды.
Для чего я буду использовать свою веранду? Прежде чем что-то решить, вы должны уточнить, для чего вы надеетесь использовать свою веранду.
Если это просто для детей, чтобы играть под или для вас, чтобы расслабиться с вином теплым летним днем, веранда меньшего размера может идеально удовлетворить ваши потребности.
Если вы хотите создать развлекательный центр с кухней на свежем воздухе, камином и полностью открытой гостиной, вам нужно выбрать веранду большего размера — такую, которая вместит большие собрания, место для хранения оборудования и обеденный стол.
Насколько велик мой задний двор?Другим фактором, влияющим на размер вашей веранды, является пространство на заднем дворе. Если у вас тонкий или узкий двор, вам не захочется устанавливать большую веранду, которая подавляет и вторгается в вашу драгоценную зеленую зону. С другой стороны, слишком маленькая веранда может выглядеть глупо, если у вас большое открытое пространство. Выбор размера веранды зависит от баланса.
Какой стиль мне нужен? На рынке существует так много стилей веранд, большинство из которых можно изменить в соответствии с любым двором.
Но некоторые стили лучше подходят для определенных размеров. Например, если вы хотите установить большую веранду, простой плоский дизайн, такой как Stratco Outback Flat, может лучше всего подойти для вашего дома. Другие, более сложные стили, такие как люк Outback или конструкция с остроконечной крышей, подходят для небольших площадей, поскольку они создают ощущение простора.
Большая веранда, скорее всего, будет означать более дорогую веранду, так как потребуется больше рабочей силы и материалов. Проявите должную осмотрительность, прежде чем выбрать размер, и соберите расценки, чтобы узнать, как максимально эффективно использовать свой бюджет. Прежде чем принять окончательное решение, часто стоит нанять авторитетного установщика, например, авторизованного дилера Stratco, для проведения бесплатной консультации на месте.
Как моя веранда повлияет на стоимость моего дома? При устройстве новой веранды не думайте только о настоящем моменте; убедитесь, что вы также думаете о будущем — например, как ваша новая функция повлияет на стоимость вашего дома.
Веранда — один из самых простых способов увеличить стоимость вашего дома, но это будет зависеть от типа и размера веранды, которую вы выберете. Чтобы повысить ценность вашего дома, рассмотрите универсальный стиль и размер, которые подойдут разным домовладельцам с разным образом жизни.
___
Вы ищете дополнительную информацию о том, как выбрать идеальную веранду для вашего дома? Свяжитесь с командой экспертов Innovative Verandahs сегодня. Как авторизованный дилер Stratco, мы можем дать точный совет и рекомендации по выбору веранды наилучшего размера для вашего дома.
Насколько большой может быть моя веранда?
Веранды — прекрасное дополнение к любому открытому пространству; они не только вдохнут новую жизнь в ваш район, но и предоставят вам дополнительное пространство для самых разных занятий.
Веранды — это универсальные пространства, которые можно использовать для различных видов деятельности; хотите ли вы столовую на открытом воздухе или спокойное место, чтобы читать и наслаждаться хорошей погодой (когда она у нас есть), веранда может быть правильным вариантом для вас.
Веранды — популярный проект для тех, кто хочет создать дополнительное пространство на своем участке. Отчасти это связано с их универсальностью и тем фактом, что, в отличие от традиционных пристроек, для большинства веранд не требуется разрешение на строительство.
SunSpaces предлагает широкий выбор различных веранд, каждая с различными вариантами размеров, длиной от 2 м до 20 м и максимальной глубиной 5 м по всем направлениям. Различные веранды также бывают разных цветов, стилей крыши и пролетов между столбами. Независимо от того, какую эстетику или размер вы ищете, каждый найдет что-то для себя!
Aspire Veranda- Максимальная глубина 5м
- Ширина между 2 м – 15 м
- Макс. расстояние между стойками 5 м
- Максимальная глубина 5 м
- Ширина между 3м – 15м
- Макс.
расстояние между стойками 7 м
- Максимальная глубина 5м
- Ширина между 3м – 15м
- Максимальное расстояние между постами равно 7м
- Максимальная глубина 5 м
- Ширина между 4м – 20м
- Макс. расстояние между стойками 7 м
Чтобы ответить на вопрос «насколько большой может быть моя веранда?», в зависимости от того, какую веранду вы выберете , вы можете построить веранду длиной до 20 м с максимальной глубиной 5 м.
Если вы хотите более подробно ознакомиться с подробными характеристиками различных веранд, предлагаемых SunSpaces, на их веб-сайте есть много полезной информации.
Сравнение веранд
Существует множество различных веранд с различной глубиной, длиной, цветом, стилем крыши и многим другим.![]()

Впрочем, допускается сочетание деревянной веранды и каменного коттеджа.
расстояние между стойками 7 м