Перепланировка однокомнатной квартиры в двухкомнатную
Интерьеры и декор маленьких площадей
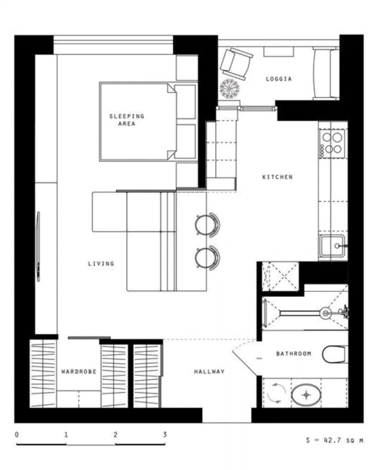
Это жилище в Швеции – однокомнатное. Особенность заключается в кухне, которая довольно обширна, что представилась возможность сформировать еще комнату для гостей и столовую.
Жаль, но подобная планировка в отечественных домах встречается не часто. Но сейчас в новых постройках все больше и больше создают обширные коридоры, огромные кухни или ванны.
Данная квартира в Гетеборге находится никак не в новостройке, а как раз, напротив, в весьма старом здании. Однако это не уменьшает ее красоту. Наоборот, тут остались панорамные окна, лепнина и настоящий камин.
Кухонька размером практически 20кв.м. в то же время считается и комнатой для гостей и столовой.
Кухонный передник зеленого цвета с нишами для столовых приборов замечательно подходит под оранжевую мебель, комнатные цветы и зелень за окнами.
Кроме этого, отсюда можно выйти на небольшой комфортный балкон.
Цветовое заполнение жилплощади никак не ограничивается зеленым и оранжевым. В спальне отведена роль розовому, шафрановому, васильковому оттенкам.
Кажется, что многовато для маленького помещения, однако все довольно согласовано и разумно.
Несомненно, данный результат достигнут только белоснежному цвету стенок и потолка, какой обожают сами шведы. Ведь, так легко на таком фоне изобразить цветом нужный дизайн.
Конечные результаты. В данной квартире применены ряд хитростей, формирующих объем и комфорт.
- Белоснежная расцветка, примененная как базовая, дает возможность зрительно увеличить место.
- Огромные окна никак не зашторены. Это никак не уменьшает и не отрезает пространство. Если нет соседей или вы расположились на дальних этажах – метод можно брать на заметку.
- Открытый платяной шкаф в спальне, невесомые стеллажи в зале, чуть заметная полочка под обувь – выбирайте преимущественно мебель, которая не занимает много места.
- Не приобретайте ненужных вещей. Пусть останутся только лишь стол, табуреты, полочки те, которыми вы станете пользоваться.
Места: Белый в интерьере • Зонирование пространства • Оформление балкона • Яркие цвета
Вам также может понравиться
Установив кровать-чердак в своей прекрасной квартире-студии, вы сможете добиться существенной…
Идеи перепланировки однушки в двушку, фото которых мы приводим в нашей статье, помогут вам сделать…
Сегодня мы рассмотрим, как из простой «однушки» можно сделать просторную «двушку» для девушки, на…
Сегодня мы продолжим вам рассказывать о необычных дизайнерских находках в планировке и оформлении…
Представляем оригинальный дизайнерский проект от студии Sfaro Architects, позволяющий сделать из.
..
Малогабаритная однокомнатная квартира была кардинально переделана под нужды трёх членов семьи:…
Каким способом лучше превратить однокомнатную квартиру в двухкомнатную
Многие владельцы маленьких квартир задумываются над тем, как сделать из однокомнатной квартиры двухкомнатную. Чаще всего эта потребность появляется в семье, где подрастают дети, но иногда даже один человек, проживающий в однокомнатной квартире, испытывает желание отделить спальную зону.
Вариантов такой реформы имеется множество, только вот каждый из них рассчитан на реорганизацию помещения определённого размера, определённой конфигурации. Способов раздела тоже достаточно, но их выбор зависит большей частью от того, что хотят видеть в результате перепланировки владельцы жилья – только визуальное разделение помещения на части, либо зонирование перегородками, которые защищают от шума.
Разумный подход к перепланировке позволяет получить двухкомнатную квартиру, не проводя согласование перепланировки с вышестоящими организациями.
Для этого важно не прикасаться к несущим стенам, а все остальные переделки в комнате касаются только самого владельца жилья.
Содержание:
- 1 Основные варианты перепланировки
- 1.1 Использование перегородки из гипсокартона
- 1.2 Шкаф-купе в роли перегородки
- 1.3 Стеллаж для разделения комнаты
- 1.4 Перепланировка и перенос кухни
- 1.5 Перепланировка и возведение второго этажа
- 1.5.1 Итог
- 1.5.2 Варианты перепланировки однокомнатной квартиры в двухкомнатную смотрите здесь (фото):
- 1.5.3 Здесь вы можете посмотреть видео о перепланировке однокомнатной квартиры в двухкомнатную:
В стандартной однокомнатной квартире невозможно разделить помещение таким образом, чтобы в каждой из полученных комнат имелось окно. Устройство перегородки вдоль помещения превращает его в две длинные и очень узкие комнаты, неудобные для проживания и непривлекательные визуально. Значит, придётся для одной комнаты отказаться от источника света, устроив перегородку поперёк помещения.
Использование перегородки из гипсокартона
Самый простой, но далеко не самый популярный способ, которым проводится перепланировка однокомнатной квартиры в двухкомнатную – установка гипсокартонной перегородки поперёк помещения. С помощью перегородки со встроенной в неё дверью владельцы жилья получают две отдельные комнаты.
Узнайте у нас, как грамотно использовать и изготовить перегородки и арки из гипсокартона.
Как своими руками оформить зал в маленькой квартире вы с легкостью узнаете из нашей статьи.
Оригинальное и простое решение для необычного дизайна — интерьер с кирпичной стеной.
Гипсокартонная перегородка монтируется с помощью металлического профиля, на который крепятся листы гипсокартона. Если между листами будет уложен слой звукоизоляционного материала, то это позволит не беспокоиться о звуках, проникающих сквозь пустотелую перегородку.
Главный минус устройства глухой перегородки – отсутствие естественного освещения, придётся позаботиться о качественном освещении светильниками.
Однако всё-таки имеется способ получения и небольшого количества света из естественного источника.
Для этого в гипсокартонной перегородке делается оконный проём, оборудованный стеклопакетом, имеющим защиту от шума. Для экономии пространства, столь необходимого для установки мебели, двери в перегородке лучше устанавливать раздвижные, сберегая этим жизненно важные сантиметры площади.
Шкаф-купе в роли перегородки
Поскольку изготовленные на заказ шкафы-купе могут быть самой разнообразной конфигурации, то очень удобно использовать эту современную конструкцию для перепланировки однокомнатной квартиры в двухкомнатную. В отличие от варианта из гипсокартона, шкаф-купе выполняет одновременно две функции: делит пространство на две части и выделяет место для хранения вещей.
При этом его использование даёт возможность устройство конструкции, при которой внутреннее пространство будет использоваться с обеих сторон шкафа, предусмотреть наличие двери, а также застеклённого проёма для проникновения естественного света.
Понятно, что площадь шкаф-купе будет занимать большую, чем при использовании гипсокартона, но не следует забывать, что в предыдущем варианте потребуется место для установки шкафа. Шкаф-купе будет использовать пространство до самого потолка, поэтому вместимость его гораздо больше стандартного шкафа для одежды.
При вдумчивом подходе к внутренней планировке, хранить в шкафу-купе можно самые разнообразные вещи очень компактно, а верхнюю, менее доступную часть, использовать для хранения предметов, используемых не слишком часто.
Оба варианта предусматривают реконструкцию освещения: в каждой из полученных комнат устанавливают люстру и нижние источники света. Итогом такой перепланировки становится получение двух небольших, но полноценных комнат. Обычно при наличии в семье детей комната с окном становится детской, а вторая служит одновременно гостиной и местом для сна родителей.
Стеллаж для разделения комнаты
Если проживает в однокомнатной квартире всего один жилец, то чаще всего нет необходимости в глухой перегородке.
Стеллаж для разделения комнаты на зоны может быть не только функциональным предметом, но украшением интерьера. Оформление полок стеллажа дверцами с витражными стёклами сделает его нарядным, придаст конструкции оригинальность, а цветы, установленные на его полках, могут превратить часть комнаты в уютный уголок для отдыха.
Перепланировка и перенос кухни
Поскольку однокомнатная квартира в хрущевке часто имеет кухню, отделённую от комнаты лёгкой перегородкой, то для её сноса разрешения не требуется, поскольку стена не является несущей. Часто перепланировка хрущёвки проводится через объединение комнаты с кухней с последующей установкой перегородки. Это весьма привлекательный вариант, так как в итоге получается спальня либо детская комната, имеющая окно, и светлая гостиная, объединённая с кухней.
Есть еще один вариант реорганизации пространства. При нем перепланировка проводится путём ликвидации кладовки и присоединения её к одной из комнат.
Перепланировка и возведение второго этажа
В центральной части больших городов еще используются для жилья дома, построенные в те времена, когда на высоте помещений не экономили. В некоторых из них расстояние от пола до потолка достигает четырёх метров. Однокомнатная квартира в таких зданиях легко превращается в двухкомнатную с помощью возведения второго этажа.
Этот оригинальный вариант расширения жилой площади выполняется с помощью возведения в части комнаты прочной конструкции, где размещается либо спальное место родителей, либо детская комната, если возраст ребёнка позволяет ему самостоятельно пользоваться ведущей туда лестницей.
Второй ярус в комнате чаще всего используется как спальное место, а остальное пространство играет роль гостиной комнаты. При таком переустройстве следует позаботиться о хорошей вентиляции помещения, иначе на втором этаже может быть слишком душно.
Посмотрите, как собственными руками сделать неповторимым и функциональным дизайн кухни-гостиной в доме.
Дизайн маленькой спальни может быть преображен до неузнаваемости без особых усилий. Как именно? Узнайте здесь.
Итог
Поскольку квартирный вопрос в наши дни решается сложно, владельцы однокомнатных квартир используют различные способы модификации жилья, стараясь сделать проживание в них более комфортным. Одни варианты получается удачными, другие – не слишком, ведь многое зависит от имеющейся площади квартиры. Важно то, что для семьи иметь две маленькие комнаты всё-таки лучше, чем одно помещение размером побольше.
Варианты перепланировки однокомнатной квартиры в двухкомнатную смотрите здесь (фото):
Здесь вы можете посмотреть видео о перепланировке однокомнатной квартиры в двухкомнатную:
Жить с родителями? Как превратить вашу комнату в мини-квартиру
Стиль
Спальня
Небольшие помещения
Тэрин Уиллифорд
опубликовано 23 ноября 2015 г.
заработать комиссию. Все цены актуальны на момент публикации.
SavePin ItПосмотреть больше изображений
По данным Pew Research Center, рекордное количество миллениалов живет со своими родителями (и я должен представить, что миллениалы не за горами). Если вы один из них, не думайте, что ваш статус ребенка-бумеранга должен быть смертным приговором для вашего стиля.
1. Выберите правильную комнату. как собственный санузел или отдельный вход.
2. Оборудуйте его комфортом (своего) дома
Способность реализовать каждую из приведенных ниже идей, безусловно, зависит от количества свободного места, но думайте об этом как о всеобъемлющем руководстве. чтобы решить, какие из этих домашних прикосновений вы хотите иметь рядом с собой в своей спальне (или, может быть, выплеснуть их наружу, в коридор, если вам это сойдет с рук).
SavePin ItПросмотреть больше изображений
Часть «Прихожая»
Выделите себе место, где можно повесить пальто и ключи (у двери или, может быть, снаружи в холле).
Если вам посчастливилось иметь собственный вход, значит, одевайтесь! Добавьте приветственный коврик и несколько подставок для растений снаружи. Вы будете удивлены, что может сделать хорошо украшенная боковая дверь, чтобы ваша часть дома чувствовала себя как дома.
СохранитьPin ItБольше изображений
Мини-холодильник
Откажитесь от холодильника для общежития и купите более взрослую модель, которую вы сможете использовать в домашнем баре позже.
SavePin ItПросмотреть больше изображений
Кладовая
Поместите закрытый шкаф рядом с охладителем напитков, и у вас получится удобная маленькая кухня для закусок и небольших блюд.
СохранитьPin ItПосмотреть больше изображений
Мебель для гостиной
Если есть место, добавьте небольшой диван или кресло и, возможно, журнальный столик.
SavePin ItДомашний офис
Есть два одинаково отличных варианта: стол с местом для хранения или (если вы предпочитаете работать с вышеупомянутого дивана) отдельно стоящая офисная тележка для хранения важных файлов и расходных материалов.
Просмотреть больше изображений
Туалетный столик
В отсутствие собственной ванной комнаты хорошо иметь сухую зону, где можно готовить и приводить себя в уединении.
СохранитьPin ItБольше изображений
3. Украшайте так, как будто это ваша собственная квартира
Есть много невероятно стильных людей, которые живут всю свою жизнь в действительно крошечных, действительно красивых квартирах-студиях, и их ситуация не сильно отличается от вашей . Обратитесь к этим замечательным домам и решениям для вдохновения в декорировании.
Как превратить студию в двухкомнатную
Если вы хотите превратить свою квартиру-студию в 2-комнатную, вот некоторые вещи, которые вам нужно знать.
Перед тем, как приступить к преобразованию, необходимо учесть несколько моментов. Первый шаг, насколько велика ваша студия? Размер комнаты может меняться в зависимости от того, является ли она эффективной или однокомнатной студией.
Есть много разных способов превратить небольшое пространство в пространство с двумя спальнями, и может потребоваться некоторое время, чтобы найти лучший вариант для вашего дома.
Пространство и ограничения для превращения студии в 2 спальни
Пространство и ограничения для превращения студии в 2 спальниВаше пространство будет определять доступные вам варианты. Осмотрите свой дом и подумайте о своем пространстве, прежде чем решить, что с ним делать.
Есть ли у вас какие-либо ограничения на количество гвоздей или шурупов, которые можно вбить в стены? Есть ли какие-нибудь трубы или провода, которые проходят через ваше открытое пространство?
Достаточно ли места для кровати, комода и тумбочки? Это все, о чем вам следует подумать, прежде чем вы начнете превращать свою однокомнатную квартиру в трехкомнатную.
На что обратить внимание перед началом работы
На что обратить внимание перед началом работыПрежде чем приступить к ремонту студии, важно учесть следующее:
Много ли в комнате естественного света? Это поможет при переходе от дня к ночи.
Какие пробки в вашем районе? На улице шумно?
У вас есть домашние животные? Это важно, потому что новый макет может повлиять на их привычки.
Есть ли окна и двери с двух сторон комнаты? Они необходимы для вентиляции и освещения.
Нужно ли все настраивать (например, двери и окна)? Если это так, это может быть дорого.
Вы ищете больше места для хранения вещей или комнату для гостей? Если вы ищете место для хранения, подумайте о том, чтобы превратить его в шкаф.
Если вы ищете вторую спальню, это будет зависеть от того, сколько места у вас осталось после добавления всего вашего оборудования.
Например, если у вас есть небольшая студия с одним окном, которое выходит наружу, то превратить ее в 2 спальни не получится, потому что одна стена будет смотреть наружу, а не в квартиру.
Лучший способ добавить гостевую спальню — превратить ванную комнату в спальню. Все остальное потребует серьезной реконструкции.
Различия между студиями Efficiency и студиями с одной спальней
Различия между студиями Efficiency и студиями с одной спальнейРазличия между студиями Efficiency и студиями с одной спальней
Студия эффективности — это студия, в которой есть кухня и примыкающая ванная комната.
Студия с одной спальней – это студия, которая имеет собственную кухню и ванную комнату.
Эффективные студии лучше всего подходят для переоборудования в две спальни, потому что обычно они самые просторные. Студии с одной спальней не такие большие, но их преобразование может быть проще, потому что при добавлении стены нужно беспокоиться только об одной двери.
Одним из первых шагов при принятии решения о том, как вы хотите преобразовать свое пространство, будет определение типа планировки двух спален.
Вы можете иметь 2 спальни рядом друг с другом или по одной спальне на каждом конце квартиры с общим коридором между ними. Есть много разных способов сделать это, поэтому все сводится к тому, какой макет вам больше нравится.
Планируете превратить вашу студию в 2 спальни
Планируете превратить вашу студию в 2 спальни Первое, что вам нужно сделать, это найти подрядчика для вашего проекта. Лучше всего найти кого-то, кто имеет опыт работы с типами напольных покрытий и дополнений к стенам, которые вы ищете.
Может оказаться, что то, что вы хотите разместить в своем доме, невозможно из-за определенных законов о зонировании или ограничений, которые могут существовать в вашем городе или поселке. Когда у вас есть подрядчик, пришло время подумать о том, сколько места вы хотите добавить и где.
Вы можете начать с измерения размера вашей квартиры-студии, а затем составить план стен и полов, которые вы хотели бы видеть в своей квартире с двумя спальнями.
Существует множество различных способов превратить небольшую комнату в комнату с двумя спальнями, и поиск наилучшего варианта для вашего дома может занять некоторое время.
Как превратить студию в 2-комнатную, чтобы знать перед планированием
Как превратить студию в 2-спальную, чтобы знать перед планированием Существует множество различных способов превратить небольшое пространство в пространство с 2 спальнями, и это может занять некоторое время. время, чтобы найти лучший вариант для вашего дома. Независимо от того, хотите ли вы превратить свою эффективную студию или студию с одной спальней в 2 спальни, есть некоторые вещи, которые вам нужно знать, прежде чем вы начнете планировать.
Во-первых, подумайте, насколько велика ваша студия.
Размер комнаты может меняться в зависимости от того, является ли она эффективной или является студией с одной спальней.
Затем подумайте, сколько места на стене у вас в квартире. Еще одна вещь, которая может измениться, это планировка гостиной и кухонного пространства, если расширить стены.
Наконец, подумайте, хотите ли вы поменять технику или мебель. Если вы меняете эти элементы, убедитесь, что на них распространяется пожизненная гарантия, чтобы их можно было обслуживать при необходимости.
Дизайн и функциональность для превращения студии в 2 спальни
Дизайн и функциональность для превращения студии в 2 спальни Далее вам необходимо подумать о дизайне и функциях вашего нового помещения. Как вы будете использовать комнату? Если вы добавляете спальню, где вы поставите кровать? Также следует подумать о том, как сделать новое пространство функциональным для повседневной жизни. Вам нужно будет найти способ использовать кухню и оставить все приборы, которые используются в настоящее время.
Есть много способов превратить вашу студию в квартиру с 2 спальнями. Некоторые варианты включают в себя:
- Расширение комнаты путем добавления дополнительных стен или обрамления нового дверного проема
- Расположение одной стены с окнами, чтобы было много естественного света
- Создание открытой планировки, чтобы у вас было одно большое жилое пространство.
Преимущества превращения вашей студии в 2-комнатную
Преимущества превращения вашей студии в 2-спальнуюНесмотря на то, что превращение вашей студии в 2-спальную может показаться сложной задачей, у этого есть много преимуществ.
Первое преимущество заключается в том, что ваша квартира станет более просторной. Вы также сможете использовать дополнительное пространство для гостей или создать офисное помещение в одной из комнат, превратив студию в 2 спальни.
Еще одним преимуществом является то, что теперь вы можете сдавать одну комнату в аренду для получения дополнительного дохода.
Это может быть хорошим вариантом, если вы хотите съехать и нуждаетесь в дополнительных деньгах.
Лучший способ превратить вашу студию в две спальни — добавить внутреннюю стену с дверью и установить одну или две двери снаружи помещения.
Это делает преобразование быстрым и эффективным, но при этом позволяет вам иметь больше места!
Процесс преобразования
Процесс преобразованияПроцесс преобразования может быть немного сложным. Поиск подходящего подрядчика и получение разрешений может занять некоторое время. Лучше всего начать поиск подрядчика как можно раньше, чтобы вы могли проработать все детали до начала проекта.
Что вам понадобится:
- – Разрешение на строительство
- — Подрядчик
- — Строительный инспектор
Заключение
Заключение Процесс преобразования может занять от двух недель до двух месяцев в зависимости от размера вашей студии и того, насколько быстро вы хотите завершить проект. Тем не менее, это все еще важное мероприятие.
