Виды мангалов из металла и их чертежи с размерами
Металлический мангал является наиболее простым в изготовлении. Поэтому он наиболее распространенный, особенно среди тех людей, которые любят что-то делать своими руками и постоянно отдыхают на даче или на природе.
Виды
Сделанные из металла мангалы бывают:
- Складными.
- Переносными.
- Стационарными.
Переносные могут быть полностью или частично разборными.
Складные изделия
Первый вид представляет собой единую конструкцию, которую можно сложить в портативный кейс. Такие металлические мангалы разработаны для туристов. Поэтому их особенностями являются:
- небольшие размеры;
- сравнительно малый вес.
Большинство чертежей таких мангалов предусматривают жаровню с размерами 45х26х16 см (ДхШхВ). Для большой компании она не очень подойдёт, ведь готовить шашлык придется очень долго.
Еще одной особенностью правильных складных мангалов является особый материал. Для их изготовления используют тонкую огнестойкую нержавейку. При этом из нее также делают своими руками все петли. Благодаря этому мангал получается достаточно малого веса.
Нержавейку очень легко чистить от копоти. Достаточно протереть тряпкой, и возвращается ее зеркальный вид. Поэтому складный мангал можно ставить в рюкзак и не беспокоиться, что что-то внутри станет грязным.
Также складные мангалы делают из листового металла. Они могут иметь вышеуказанные размеры, а также могут быть и большего размера. Изделия немного тяжелые и поэтому подходят для коротких путешествий. Такие конструкции являются хорошим вариантом в тех случаях, когда в машине очень мало места.
Разборные и стационарные модели
Переносные полностью разборные мангалы можно также сложить компактно.
Однако компактность будет хуже, чем у складных. Ведь схема предусматривает большие по размерам детали. При этом создатели используют стойки с высотой в 1 м. Они значительно больше аналогичных элементов складного мангала. Благодаря большим размерам и высоте разборные переносные мангалы создают большой комфорт во время приготовления шашлыка.
Частично разборные модели и их эскизы предусматривают возможность снятия ножек. Жаровня является цельной конструкцией.
Стационарные имеют большую массу, и их можно переносить только по внутреннему двору. Их отличает большое количество декорирующих красивых элементов. Многие из них являются коваными. Такие мангалы имеют почти такую, как у разборных конструкций, жаровню. Все остальные элементы красиво оформлены и зависят от фантазии создателя. Часто такие мангалы напоминают персонажей сказок, поезд, автомобили и любые другие предметы. Многие стационарные мангалы встроены в каркас с крышей.
Формы жаровен
Жаровня мангала может иметь вид:
- Коробки без верха.
- Вертикального широкого цилиндра со столбом по центру.
- Цилиндра с горлом вверху.
- Желоба с закругленным дном.
Чаще всего используются мангал с первым типом жаровни. Многие делают последний тип. Его название звучит несколько странно, на практике он представляет собой разрезанную вдоль бочку или газовый баллон.
Идеальная модель
Ее особенности зависят от формы жаровни. Для каждой формы есть свои оптимальные размеры.
Чертеж идеального классического прямоугольного металлического мангала имеет такие особенности:
- Ширина – 250 мм. Этого достаточно для размещения 6-8 кусков мяса. При такой величине тепло от продольных боковых стенок получают все куски, включая и те, которые находятся посередине. Это тепло необходимо для формирования румяной корочки. Если сделать ширину больше, то средние куски будут без корочки.
- Длина – около 1 м. При этом учитывается, что на один шампур должно приходиться 8-12 см.
Также учитывается запас в 5 см с обеих сторон. Получается, что в метровом мангале можно разместить 8 шампуров. Этого для средней компании вполне достаточно. Большую длину делать не следует, ведь повару придется бегать от одного конца до другого. Удобнее стоять на одном месте. - Высота – 200 мм. Оптимальной высотой является 150 мм. Однако дрова бывают разными и выделяют свое количество тепла.
- Вертикальные вырезы в продольных боковых стенках. Их длина должна составлять 50 мм. Такая величина позволит подбирать высоту размещения шампуров в зависимости от вида дров. Мясо должно находиться в 30-70 мм от углей.
- Дырочки в днище. Их должно быть много. Диаметр каждого отверстия следует делать 10-15 мм. Расстояние между отверстиями и рядами дыр должно достигать 20-30 мм. Чертежи идеального мангала могут предусматривать днище из сетки. Такой вариант лучше, поскольку приток воздуха к углям увеличивается. Сетку стоит делать из проволоки, диаметр которой больше 4 мм.
- Толщина металлических стенок – 2 мм, а еще лучше 4-6 мм. Это обеспечит долгий срок службы и создание необходимого тепла для приготовления шашлыка.
- Высота всей конструкции зависит от роста повара. В большинстве случаев – 1 м.
Как сделать идеальную модель
Сначала нужно нарисовать своими руками чертеж. При этом соблюдают вышеупомянутые правила. Чертеж позволит определить размеры каждой боковой стенки. Во время его рисования определяются с реализацией возможности разбора мангала. Если будет такая возможность, то длину боковых стенок следует увеличивать на 2 см. Эти дополнительные сантиметры будут представлять собой загнутые края. То есть 1 см каждой из сторон, которые будут примыкать к стойкам, нужно будет загибать под углом 90°. 1 см нижнего края боковин любой жаровни также нужно загибать. Делают это внутрь конструкции.
По составленному чертежу разрезают заготовленный листовой металл и профильную трубу или уголки. В днище сверлят отверстия. В продольных боковых стенках делают прорези. В случае создания полностью разборной конструкции в стойках делают два длинных проема. Их длина должна равняться высоте жаровни. Воображаемые линии, которые будут проходить через проемы, должны образовывать прямой угол.
Если создается своими руками неразборный мангал, то сначала сваривают боковины. Далее к ним приваривают стойки. Можно и не приваривать. Это улучшит портативность конструкции. В этом случае каждую пару стоек нужно сделать в виде буквы «Н». При этом концы стоек должны быть выше горизонтальной перегородки на 1-2-см. Для надежной фиксации к боковинам жаровни на уровне верха стоек можно приварить 4 выступающих металлических квадратика с размерами 2х2 см. Эти квадратики и стойки нужно будет скреплять крючками в форме буквы «П».
Для дополнительной устойчивости можно сделать концы стоек острыми, чтобы вогнать их в землю.
Модель с горлом
Такой мангал напоминает собой большую бутылку. Конструкция состоит из трех частей:
- Широкого цилиндра. Его высота равна 180-200 мм.
- Срезанного конуса. Высота – 100-150 мм.
- Узкого цилиндра. Имеет высоту, равную 100-150 мм.
Нижняя часть имеет в себе много дыр. Они есть не только в днище, но и в боковых стенках. Верхние из них делают на высоте 130 мм. Наличие боковых отверстий является весьма интересной особенностью. Правильные мангалы не должны иметь таких дыр, поскольку через них к мясу подходит много кислорода. Он меняет химические процессы в мясе, и блюдо получается не таким, как нужно.
Однако в случае с приготовлением мяса на этом мангале это не так потому, что в жаровне сжигают столько дров, что боковые отверстия перекрываются углями. С постепенным тлением углей дыры станут свободными, но до этого момента процесс приготовления мяса завершается.
В результате часть дров тратится впустую.
Шампур с мясом ставят своими руками в горло такого мангала, то есть в верхний цилиндр. Во время тления углей эта часть превращается в проточную духовую камеру.
Такой мангал используют для приготовления шашлыка по-карски. Блюдо представляет собой большой кусок мяса. Его толщина достигает 3-4 см, а по размеру он напоминает маленькую тарелку.
Конструкция из бочки
Мангал с круглым днищем не работает так, как образец с прямоугольной жаровней. Это потому, что:
- закругленные стенки отражают тепло назад на угли;
- в середине угли быстро оседают, а по краям не успевают прогореть должным образом.
Поэтому просто распилить бочку пополам или вырезать в ней своими руками крышку для создания правильного мангала недостаточно. Проблему с чрезмерной осадкой углей можно решить благодаря устройству воздуховода. Есть два варианта его создания:
- Решетка для буржуйки. Ее ставят на днище. На ней угли будут лежать ровным слоем. Кроме этого под ней будет пространство с воздухом. Для притока свежего воздуха нужно сделать дырочки по центру днища.
- Уголок с размерами 85х85 мм. В нем нужно сделать несколько рядов дыр. Далее его приваривают к днищу. Дырки можно сделать под ним или в местах, где размещаются его концы.
При создании мангала из бочки нужно выдержать правило относительно оптимальной ширины. Заготовку следует обрезать не пополам, а на треть или четверть. Ширина образуемого среза должна равняться 25 см. В таком случае не соблюдается рекомендация касательно правильного расстояния между мясом и углями.
Однако испытательные эскизы показали, что шашлык получается очень хорошим. Объясняется это тем, что отраженные от стенок инфракрасные лучи создают дополнительный нагрев углей, и возникает более плотный поток горячего воздуха.
После изготовления жаровни, следующие действия таковы:
- Создание проемов под шампуры.

- Приварка шарниров и прикрепление крышки.
- Прикрепление ручки к крышке.
- Изготовление стоек.
🍗 Правильный размер мангала для шашлыка, оптимальная высота
Правильный размер мангала позволяет готовить вкусное мясо. При создании подходящей высоты стенок в устройстве сохраняется тепло от жаровни. Мангал можно сделать своими руками, это очень просто, но нужно учесть, что общая высота не должна быть меньше 12 сантиметров, даже если выбран компактный, разборный вариант.Также добавляется длина ножек. Она рассчитывается с учётом роста того, кто будет готовить шашлык. Редакция HouseChief рекомендует использовать стандартные размеры, в таком случае вероятности ошибки сводится к минимуму.
Мангал должен быть не только красивым, но и функциональнымФОТО: podolsky.xyz
Читайте в статье
Размеры мангала для шашлыка: стандартные размеры
Чтобы выяснить, как выглядит мангал правильного размера, можно изучить фото. Чтобы при жарке мяса обойтись одним заходом, необходимо создать большую рабочую поверхность. Но в таком случае устройство получается массивным и не мобильным. Конструкцию укрепляют дополнительными ножками.
Высота определяется по росту человека, который будет готовить шашлыкФОТО: vmasshtabe.ruПеред созданием чертежа мангала необходимо замерить длину шампура, и только после этого определять ширину устройства
ФОТО: stroy-podskazka.ru
Чтобы определить размеры мангала для шашлыка чертёж из железа применяют к имеющейся заготовке. В чашу должно складываться определённое количество угля для жарки мяса, исходя из этого, определяют конечный размер.
Перед тем, как сделать мангал своими руками, изучают стандартные чертежи. Идеальной считается ширина 30 см и высота – 1 метр.
Выемка для шампуров должна быть вертикальной, тогда их легче будет поворачиватьФОТО: sadogorod74.ru
Конструкция для жарки мяса своими руками: размеры мангала для идеального шашлыка
Чтобы узнать, как правильно сделать мангал, стоит приготовить шашлык на уже собранных конструкциях и понять, какой высоты должны быть ножки.
Определяя размер мангала для шашлыка из металла, схема содержит показатели: толщина стенок – 4 мм, длина – 600 мм, высота – 150 мм, ширина – 350 мм.
ФОТО: i.simpalsmedia.comНекоторые изготовители мангалов считают, что отверстия в корпусе не нужны
ФОТО: static.tildacdn.com
Это базовая конструкция, на которую ставят стойки для вертела, полки и дровник. Жаровня для мангала должна стоять на устойчивой подставке.
При самостоятельном изготовлении мангала можно выбрать удобны е для конкретного человека размерыФОТО: mangaly.trsm.ruЕсли устройство негде хранить, лучше сделать разборную конструкцию
ФОТО: grili.by
Статья по теме:
Как изготовить мангалы из металла своими руками: размеры, фото, чертежи и подробные инструкции для самых разнообразных видов Вы найдете в нашем обзоре.
Каким должен быть мангал: размеры, чертежи
Оптимальная высота мангала для шашлыка из металла определяется индивидуально.
Устройство содержит несколько составных элементов:
- цельное днище без выпуклых швов;
- 4 стенки из металла;
- подставки удобного размера;
- зазубрины для шампуров, они должны иметь должный размер, чтобы шампур можно было свободно перевернуть.
Оптимальный мангал рассчитан на приготовление порции для шести человек.
Если планируется приготовление барбекю, нужно правильно рассчитать длину коробкиФОТО: svoyabesedka.ruРасстояние между углем и мясом должно быть не меньше 20 см
ФОТО: static.tildacdn.com
Как сделать ножки для мангала
Первым делом подбираются под мангал размеры, стандартные чертежи и схемы. Самый простой способ сделать ножки своими руками: взять согнутые уголки металла и нарезать их, отмеряя 1 метр для каждого отдельного элемента. Рекомендуется выбирать металл внимательно, он должен быть прочным.
Чтобы подставка была устойчивой, нужно приварить ровные пластинки металла к основаниюФОТО: adelison.
ruОптимальные размеры мангала для шашлыка из металла должны определяться с учётом длины ножек. Если выбрать длину больше 1 метра, готовить будет неудобно, поэтому лучшие размеры мангала для шашлыка из железа – 60 см в длину, 30 в ширину.
Лучшее расстояние между шампурами на мангале для приготовления вкусных блюд
Мясо хорошо прожаривается только в том случае, если конструкция собрана правильно. Чтобы узнать, как правильно сварить мангал размеры и чертежи, нужно пройти все этапы самостоятельного изготовления:
- на бумаге рисуется эскиз. Детали вырезаются и используются в качестве макета;
- на стальные листы наносится точечная разметка по макетам. Сначала нужно вырезать дно и боковины – две квадратные, две прямоугольные;
- все детали скрепляются с помощью сварочного оборудования;
- из согнутого металла вырезаются ножки одинакового размера и привариваются к основной заготовке;
- конструкция собирается и проверяется на прочность.
ФОТО: oleor.ruПосле сборки конструкции выпиливаются уголки для укладки шампуров
ФОТО: images.by.prom.stЧтобы было удобно пользоваться мангалом, его стоит поставить на доску или другую ровную поверхность
ФОТО: static.tildacdn.com
Какого размера должен быть мангал для барбекю
Глубина мангала для шашлыка должна быть достаточной для того, чтобы можно было установить крышку для барбекю. Если жаровня будет использоваться в основном для приготовления барбекю, то её ширина должна быть не меньше 30 см. Важно рассчитать размеры так, чтобы шампур помещался свободно и не соскальзывал. В коробке должен помещаться уголь и дрова так, чтобы они не касались мяса.
Мангалы могут быть стационарными и мобильными, а также разборными и неразборными. Во дворе частного дома лучше всего ставить стационарное устройство, а для поездок на природу подойдёт разборная конструкцияФОТО: vmasshtabe.
ruРазмеры мангала из металла
Правильный мангал для шашлыка собирается под того человека, который постоянно занимается жаркой шашлыка на всю семью. Важно учесть не только рост, но и пропорции тела так, чтобы было удобно находиться за мангалом несколько часов и не крутиться в разные стороны.
Самый простой способ создать оптимальный размер мангала для шашлыка – чертёж. Шаблон нужно распечатать или нарисовать в натуральную величину и приложить к металлическим листам.
Существует хитрость по определению высоты устройства для жарки мяса. Руку сгибают в локте и ставят на землю. Расстояние от локтя до ладони – средний размер.
Для того, чтобы мясо хорошо прожаривалось, нужно располагать шампура на расстоянии не меньше 6 сантиметров друг от другаФОТО: samovarchik.infoСборные переносные модели чаще всего имеют высоту не более 70 сантиметров
ФОТО: zakaz454.ru
Правильный размер конструкции определяется не случайно. Приготовление еды не должно занимать много времени. Определив оптимальный размер решетки для мангала можно за один раз пожарить большое количество мяса.
Какая должна быть высота мангала из кирпича
Правильные размеры мангала – это не прихоть, а необходимость. Конструкция для жарки мяса может быть сложена из кирпича, такой вариант идеально подходит для домов со своим участком.
Чтобы мангал был удобным и функциональным, он должен содержать все технически важные элементы: фундамент, цоколь, боковины, жаровню и дымоход.
Кирпичная жаровня должна иметь глубину от 12 до 17 см.
Важно следить за тем, чтобы продукты не располагались слишком близко к углямФОТО: avatars.mds.yandex.netЖаровню строят на высоте не менее 1 метр от земли
ФОТО: i.pinimg.comКирпичный мангал можно оборудовать дополнительными полками для дров и посуды
ФОТО: trubochist-yuga.ru
В заключение
Жарка мяса на природе – излюбленный способ отдыха многих россиян. При этом не обязательно тратиться на мангал. Если в запасе лежат металлические листы, конструкцию можно быстро собрать своими руками.
А вы любите шашлык? Какая высота мангала для вас кажется оптимальной?
ПОНРАВИЛАСЬ СТАТЬЯ? Поддержите нас и поделитесь с друзьями
Мангал из металла своими руками
Вылазка на природу – это всегда масса удовольствия. Свежий воздух в комбинации с вкусной едой, приготовленной над живым огнем, и приятным общением – лучший способ отдохнуть от повседневной рутины. Мангал действительно является главным атрибутом загородного пикника.
Сегодня этот аксессуар комфорта купить не проблема, однако, любителей шашлыка от этого шага останавливает качество предлагаемого ассортиментного ряда. В основном все, выставленные на реализацию модели, выполнены из слишком тонкого материала и первый же «шашлычный сезон» становится для них фатальным.
Готовый мангал из металла
Хотите получить друга на десятилетия – попробуйте пойти другим путем и сделать мангал из металла своими руками. Это отличный способ обзавестись более солидным, а порой даже эксклюзивным вариантом жаровни, которую можно будет, к тому же, полностью адаптировать под свои нужды. «Самоделка» может выглядеть стандартно или стать изюминкой декора дачного участка, а это уже повод познакомиться с видами и процессом производства металлических конструкций для жарки шашлыков поближе.
Прежде всего, эти изделия делятся по габаритным параметрам. Мангал можно сделать:
1. Стационарным.
Стационарный мангал из металла с навесом
2. Переносным.
Легкий переносной мангал из металла
Каждый из пунктов также может интерпретироваться по-разному. Стационарные виды подразделяются:
- на традиционные мангалы;
Классический стационарный мангал из металла
- конструкции арт-деко.
Мангал из металла в стиле арт-деко
Переносные могут быть:
Переносной складной мангал
Разборный мангал из металлаА вот параллельно быть барбекю могут оба варианта и стационарный, и мобильный.
Стационарный мангал – это прерогатива загородных участков. Часто в них металл комбинируют с каменной кладкой, добавляя таким образом эстетичности внешнему виду и делая конструкцию более функциональной. Установив мангал под навес или, оборудовав его крышей, вы получите возможность приготовить еду в любую погоду.
Комбинированный мангал из металла и камня с крышей
Переносные модели прельщают тем, что могут быть установлены не только в любом месте дачной территории, но и взяты с собой в поход, причем даже в пеший, так как имеют небольшие размеры и несущественный вес. Складной вариант мангала из металла может быть сделан своими руками настолько компактно трансформирующимся, что будет напоминать небольшой чемоданчик.
Мангал из металла, складывающийся в чемодан
Простейшая модель жаровни представлена двумя металлическими рамками, которые служат да поддержания шампуров.
Конструкция простого мангала
Основное преимущество складных мангалов является и их недостатком. Чрезмерная компактность не позволяет готовить шашлык в большом количестве, так что для солидной компании лучше прихватить с собой сразу две портативных жаровни.
Если вручную мангал носить не планируется, то можно сделать более тяжелую конструкцию, дополнив ее выдвижной столешницей, решетками и обустроив в ней регулируемый поддув.
Мангал из металла с деревянной столешницей
Для того чтобы превратить мангал в барбекю, достаточно установить над жаровней сетку для гриля. Последние бывают прямоугольными и в форме полусферы, так что подобрать подходящую модель к мангалу проблемы не составит. Если вам не по душе мясо с хрустящей корочкой, усовершенствуйте барбекю обычной крышкой.
Мангал с решеткой для гриля
Изделия серии арт-деко собирают из кованых элементов.
Последние могут быть основой конструкции или ее декоративной частью. Преимущественно, ковка встречается в стационарных вариантах, так как тяжела и массивна. Транспортировать такой мангал будет сложно, разве что поставить его на колеса, трансформировав в автомобильный прицеп.
Кованый мангал в стиле арт-деко с колесами
Базовая конструкция мангала из металла может быть модифицирована своими руками, то есть обустроена дополнительными модулями в виде:
1. Колес.
2. Крыши.
3. Подставок и полочек.
4. Двойной жаровни.
5. Ручек.
Мангал из металла с дополнительными полочками
Однако делать это надо только в том случае, если без данных элементов вам не обойтись. Нужно помнить, что каждое из представленных дополнений, добавит конструкции веса. Это правило прописано для переносных моделей. У стационарных мангалов ограничений в этом плане нет.
Можно классифицировать мангалы, опираясь на такой показатель, как толщина металла. В этой классификации они будут разделены:
- на толстостенные;
Толстостенный мангал
- тонкостенные.
Тонкостенный мангал из металла
Металл большой толщины обычно используют для стационарных моделей мангалов. Жаровню для них можно сделать из листов стали 5-ти и более миллиметров. Придется слегка потратиться, но зато служить она вам будет очень долго.
Толстостенный стационарный мангалДля переносных вариантов жаровен, нужно брать металл меньшей толщины. Это один из способов облегчить конструкцию, ведь вы помните, что может возникнуть ситуация, когда ее придется нести с собой в руках на достаточно дальнее расстояние. В тонкостенном мангале, даже из очень качественного металла, жечь дрова нельзя. Здесь используются готовые угли, упаковки которых можно приобрести в магазине или подготовить их самостоятельно, в костре.
Мангал из тонкого металла
к оглавлению ↑«На сборку мангала из металла своими руками понадобится несколько часов, причем по завершении работ готовое изделие можно будет сразу же и опробовать в деле»
Преимущества металлических жаровен очевидны.
1. Они мобильны. Неважно разбирается ли мангал или нет, его можно убирать на зимний период в сарай. Такая забота о конструкции поможет продлить срок ее эксплуатации.
Мангал из металла можно убрать на зимний период
2. Пожаробезопасны. Это гарантировано материалом, использованным на изготовление и самой формой жаровни.
3. Относительно дешевы. Разница в затратах на материалы и работы при установке каменного камина и металлического, весьма существенна.
Мангал из металла легко устанавливается в нужно место
4. Быстро монтируются. На возведение стационарного каменного мангала, с учетом технологически предусмотренных перерывов на застывание фундамента и схватывание раствора, потребуется, как минимум, недели три. На сборку мангала из металла своими руками понадобится несколько часов, причем по завершении работ готовое изделие можно будет сразу же и опробовать в деле.
Мангал из металла на подготовленной площадке
Ценители капитально обустроенных конструкций считают металлические жаровни, мягко говоря, малоэстетичными и невзрачными, но это смотря кто возьмется за работу. Порой из рук наших «Кулибиных» выходят настоящие шедевры. Несколько интересных идей из серии «очумелые ручки», мы опишем ниже, а сейчас разберемся с последовательностью хода процесса работы над обычным, привычным мангалом.
к оглавлению ↑Как собрать мангал своими руками
Те, кто не понаслышке знаком с металлом, в советах и руководствах нуждаться не будут. Профессионалы соберут конструкцию с закрытыми глазами.
А вот новичкам на этом поприще придется несладко. Для того чтобы первый опыт был позитивным, надо подойти к процессу творения основательно и неспешно. Не стоит начинать с заумных моделей. Пусть ваш «первенец» будет до смешного прост в декоративном аспекте, но зато, отлично функционирующим. Впоследствии, нажив опыт и усовершенствовав мастерство, можно будет попытаться создать нечто неординарное для жарки шашлыков, но пока ваша цель – «ящик на ножках». К ней и пойдем.
Такой мангал из металла не сложно сделать своими руками
Конструкционные элементы
Для создания мобильного мангала нужно:
1. 4 ножки.
2. 4 прямоугольной формы перфорированные стенки.
3. Днище.
Необходимые детали для мангала из металла
С чем и чем работать
Для того чтобы получить искомые детали и собрать их в функциональную конструкцию, понадобятся:
- стальной лист;
- металлический уголок или арматура с гайками и болтами;
- сварочный аппарат с запасными электродами;
- ножовка по металлу;
- болгарка и отрезные круги к ней;
- дрель.
Для изготовления мангала своими руками необходим сварочный аппарат
Следующим шагом станет создание рабочего проекта. Звучит в нашем случае громко, но наличие чертежа мангала из металла ускорит и облегчит первую сборку своими руками.
Чертим проект
Чертеж стопроцентно удастся и будет более легок к прочтению, если сделать его на листочке, расчерченном клеткой. Обязательно отметьте высоту ножек и параметры самого жарочного ящика. Просчитайте расстояние между направляющими фасками для укладывания шампуров и перфорационными отверстиями.
Средний мангал рассчитан на приготовление 8 порций шашлыка. Оптимальное расстояние между вентиляционными отверстиями 7 – 10 сантиметров.
Располагать их правильно в промежутке от 5 до 10 сантиметров от днища жаровни. Длина ножек произвольна.
Проект мангала из металла
Расчет габаритов
Среднюю компанию удовлетворит конструкция на десять шампуров. Шашлык хорош горячим, поэтому следующую порцию вполне можно пожарить пока гости заняты поеданием первой. Чтобы мясо удалось, шампура должны быть правильно уложены над углями. Их нельзя прижимать друг к другу, но и слишком раздвигать в стороны тоже неправильно. Жар не должен тратиться попусту. Это является основными критериями выбора длины жарочной коробки.
На шампур стандартной длины нанизывается 6 – 8 порционных кусочков мяса. Если вы не хотите уменьшать порцию, то делайте ширину короба по длине первых. Увеличивать ширину нет смысла. Изделие приобретет излишнюю громоздкость.
Глубина изготавливаемого своими руками мангала из металла должна быть приближена к проверенным практикой показателям. Мясо, расположенное слишком близко к углям – засушится, чересчур удаленное – не прожарится. Оптимальный уровень расположения шампуров над огнем 30 – 35 см.
Проект мангала на 11 шампуров
Последний параметр мангала – его общая высота. Его выводят под рост «главного повара». Пригласите его на свою «стройплощадку», дайте в руки шампур и попросите сымитировать поворачивание последнего, не наклоняясь и не сгибая спину. Замеряйте расстояние от земли до руки. Вы получили оптимальную высоту своего изделия. Если провести эксперимент невозможно ориентируйтесь на стандартные показатели, которые варьируют от 80 до 120 см.
Схема мангала из металла высотой 50 см.
Собираем жарочный ящик
Насколько хорош будет ваш мангал, напрямую зависит от качества металла и правильности подбора габаритов. Эти два показателя непосредственно повлияют на время приготовления шашлыка и его вкусовые качества.
Работа повара может пойти насмарку, если мясо будет готовиться на плохом оборудовании.
Жаровню переносного мангала надо собирать из 2-3 мм металла, с которым работать не так сложно, как с толстой сталью. Тоньше брать листы нецелесообразно, потому как ящик из них моментально прогорит.
Переносной мангал из металла толщиной 2-3 мм.
Выбранный металлический лист нужно «раскроить». Разметка проводится по угольнику. Его использование – залог отсутствия перекосов. Нам предстоит начертить 2 длинных и 2 торцевых боковушки, а также дно. Для вырезания элементов используем болгарку. Важно нарезать детали так, чтобы их края получились ровными.
Раскрой металла для мангала
Теперь настало время заняться перфорацией стенок мангала. Отверстия обеспечивают приток воздуха в жаровню, который нужен для хорошего горения углей. Сверлить их мы будем только по задней и передней стенке. Диаметр отверстий 10-15 мм, шаговое расстояние 5 см.
Перфорация на стенке мангала
Завершающим этапом создания жаровни будут сварочные работы. Их лучше выполнять с напарником, так как самому и удержать детали в правильном положении, и качественно их сварить может быть сложно.
Сварка стыков мангала
«Ставим на ножки»
На ножки можно использовать арматурные пруты, 30-ти мм трубки или уголок. Использование первых двух материалов позволит сделать мангал из металла своими руками разборным или складным. Для разборных моделей к ножкам приваривают болты. Работать придется ювелирно, чтобы не испортить резьбу.
Арматурные пруты для ножек мангала
По углам днища короба жаровни делаем отверстия. Их диаметр должен быть несколько больше, чем сечение болтов. Над отверстиями с внутренней стороны крепятся гайки.
После того как металл остынет от сваривания пробуем поставить конструкцию «на ноги».
Уголки можно прификсировать к основанию жаровни стационарно или сделать подвижный крепеж, чтобы ножки, при необходимости, можно было сложить. В первом варианте используется сварка, во втором – болтовое крепление.
Болтовое крепление стенок для разборного мангала
Если ножки получаются длинными, то их нужно укрепить, попарно соединив перемычками. Последние тоже могут быть цельными или складными (важно для трансформирующихся моделей).
Собираем нестандартный мангал из металла своими руками
к оглавлению ↑Модель из бочки
Если отойти от стереотипов и того, что мангал – это строго прямоугольная конструкция, то вы поймете, что такую вещь можно сотворить практически из любого подходящего металлического предмета, например, бочки, которая пылится в углу сарая.
Оригинальный мангал из бочки
Нельзя приспосабливать под мангал лишь те емкости, где хранились горюче-смазочные материалы. Если толщина металла у присмотренной бочки будет не слишком тонкой, то и конструкция будет иметь долгую жизнь. Бочка выполнит роль жаровни. Кроме нее понадобятся:
– дрель;
– металлический уголок;
– сварочный аппарат;
– болгарка.
Проект мангала из бочки
1. Сделав разметку, вырежем верхнюю часть бочки, сохранив целостность торцов. Не спешите выбрасывать «отход производства». Из снятого куска будет изготовлена крышка.
Разрезание верхней части бочки
2. Металлический уголок выполнит роль ножек, поддерживающих конструкцию. Их нужно разрезать на 4 идентичные части и приварить детали к торцевой части жаровни.
3. Замеряем длину бочки и готовим еще два уголка соответствующего размера. Это будет опорная подставка для шампуров.
На уголках потребуется сделать надрезы с шаговым интервалом 4-6 см. Подготовленные детали привариваем к горизонтальным срезам боковин бочки с внутренней стороны.
Мангал из бочки на ножках с крышкой
4. Теперь займемся усовершенствованием мангала из такого металла, и это тоже сделаем своими руками. Крепить крышку к основанию будем петлями. На ее выгнутой стороне должны появиться две ручки. Так ею будет более комфортно пользоваться. Крышка станет и элементом декора, и функциональной деталью конструкции, защищая мангал и шашлык, готовящийся на нем, от дождя.
Ручка на крышке мангала из бочки
Разборная модель
Мангал можно сделать полностью разборным. В этом случае сварочным аппаратом работать не придется. Здесь нужно действовать по другой схеме.
Схема разборного мангала
Нарезка деталей производится с припуском на швы, то есть, плюс 3-4 см с каждой стороны.
Далее нужно сделать загибы по всем сторонам полученных составляющих по размеру припусков. Это необходимо для угловой стыковки и крепления дна.
Собирать конструкцию будем на болты. Отверстия под них готовим дрелью.
Складная модель
Работа над складным металлическим мангалом будет вестись по стандартной схеме: чертеж, нарезка сборка – только крепить детали потребуется на подвижные мебельные обвесы. Чтобы не допустить произвольного складывания стенок, к верхней их части привариваются специальные крючки.
Чертеж складного мангала
к оглавлению ↑«Беспроигрышным элементом декора мангала из металла, который можно добавить своими руками, является ковка»
Скучный вид самодельной конструкции не грозит, ведь работая над мангалом из металла своими руками, вы вольны проявить фантазию и сделать его таким, каким вы его видите, а не таким, как предписывают стандарты и понятия.
Бесспорно, украшать изделие лакокрасочными материалами – смысла нет. Жар просто уничтожит все ваши старания. А вот поиграть с формой жаровни, ножек, добавить оригинальных деталей мангалу – очень даже можно.
Оригинальный мангал из металла
Чем и как придать конструкции эксклюзивности? Способов есть немало. Сделайте к жаровне крышку и дополните ее вытяжной трубой. Смотреться будет интересно. К тому же мангал подобной сборки можно эксплуатировать в условиях закрытой беседки.
Мангал из металла с трубой
С помощью боковых подставок мангал можно превратить в мини-самолет. Также красиво и практично. На импровизированных «крыльях» можно выкладывать готовый шашлык или нанизывать на шампуры новые порции мяса. Не обязательно делать подставки стационарными. Съемные элементы будут тоже хороши.
Мангал-самолет из металла своими руками
Беспроигрышным элементом декора мангала из металла, который можно добавить своими руками, является ковка. Заурядная железка станет произведением дизайнерского искусства. Может модным такой подход и не будет, потому что сегодня в фаворе цельнокованые вещи, но красивым, винтажным, элегантным – останется в веках. Ковка может преображаться, но никогда не потеряет своей эстетической актуальности.
Кованый мангал не теряет свою актуальность
Как вариант дизайна, у мангала может рассматриваться и «неправильная» форма. Стальные листы поддаются сгибанию, так что остается лишь придумать каким образом их гнуть. Сделайте жаровню овальной, квадратной, круглой, зигзагообразной. Любой вариант будет хорош.
Необычный овальный мангал из металла
Народные умельцы могут преобразовать жарочный ящик с дырочками во что угодно. Покопавшись в воспоминаниях детства не сложно вспомнить свои любимые книги или сокровенные желания.
Мечтали стать пиратом и отыскать сокровища? Осуществите мечту сейчас, создав мангал-сундук. Вместо ножек у него могут появиться перекрещенные корсарские мечи. С закрытой крышкой жаровня может служить мини-коптильней, вот только снабдите ее для этого хотя бы маленькой вытяжной трубой.
Мангал – сундук из металла
Нашли на чердачных просторах «бабушкино наследство» в виде древней швейной машинки, с уже забытым нами, ножным приводом? Не торопитесь отдавать ее в металлолом, ведь ее станина выполнена из чугуна, а значит, может стать великолепной опорной площадкой для жаровни мангала из металла, конструируемого своими руками.
Мангал на основании от швейной машинки
Не дает покоя пытливым умам и идущий от мангала дым. «Почему бы не превратить обычный мангал в паровоз?» – думают они, и усаживаются за проект.
Главной частью такой конструкции может стать ненужный газовый баллон. Сделав площадку машиниста, приварив к баллону колеса и установив на нем трубу – вы реально удивите домочадцев. Трубу желательно делать не бутафорскую, а настоящую, чтобы она служила каналом выхода дыма. В получившемся очаге можно будет не только нажарить шашлычка, но и просто запечь или даже закоптить мясо, а также приготовить еще много «дачных» деликатесов.
Мангал с крышкой из газового баллона
Вы не поверите, но для жарки шашлыка можно приспособить и передок старого автомобиля. Дружащий с болгаркой, сваркой и головой автолюбитель сделает это за пару часов. В опустошенный от внутренностей моторный отсек устанавливается жарочный короб с решеткой и все, можно начинать эксплуатацию. Кое-кто сделал такой мангал передвижным, поставив его два колеса и снабдив подвеской и рессорами. Получился великолепный прицеп. Такой мангал из металла, сделанный своими руками, можно брать с собой повсюду, как полевую кухню.
Мангал из передней части автомобиля
Пойдут в ход и автомобильные диски.
Они имеют все предпосылки стать прекрасной жаровней без особых усилий с вашей стороны. У них есть круглая форма, уже готовы вентиляционные отверстия, и стенки достаточно толсты, так что огонь прожжет их не скоро. Единственное, чего не хватает конструкции – это днище. Нужно подкорректировать и родные дисковые прорези, которые могут оказаться великоватыми для мелких угольков. Для удобства раскладки шампуров в колесный диск можно интегрировать стальной держатель или просто пользоваться для готовки жарочной решеткой.
Мангал из автомобильных дисков
к оглавлению ↑Заключение
Как видите, собрать мангал из металла своими руками сможет любой, сложного в этом нет ничего. Навыки же – дело наживное. И пусть первый «блин» может получиться комом, но в последующем все выходящее из ваших рук будет вызывать настоящее восхищение, главное, не опускайте их!
к оглавлению ↑Видео
Автор: Михаил Бонд
Рейтинг:
Загрузка…
Понравился пост? Поделись с друзьями!
как сделать своими руками, чертежи и размеры металлических мангалов
Загрузка…Почти все люди в душе своей романтики и любят отдыхать в компании друзей на природе. Ведь как приятно посидеть у костра, послушать песни под гитару и, конечно, сложно представить такой отдых без вкуснейшего шашлыка, приготовленного своими руками. Но в любую погоду приготовление шашлыка без мангала становится делом затруднительным, неудобным, а порой даже и невозможным. Именно применение этого приспособления и делает такие посиделки в хорошей компании комфортными и уютными.
Изначально мангал использовался как универсальный инструмент для приготовления различной пищи. Сейчас это устройство применяется чаще всего для жарки вкусных шашлыков и мяса, используя натуральный жар от углей.
Приобрести мангалы из металла можно почти в любом хозяйственном магазине. Но порой такая простая металлическая конструкция может стоить дорого, не оправдывая надежды потребителей по качеству и внешнему виду. Поэтому всё больше людей старается сделать мангал своими руками из металла.
Мангалы из металла – виды
Мангал металлический может быть двух видов, в зависимости от предназначения и места использования:
- Стационарные мангалы. Такой вид идеально подходит для приготовления шашлыка на дачном участке или на территории загородного дома. Обычно изготавливают их из толстостенного металла толщиной более 4 мм, что намного увеличивает срок службы. Установив мангал под крышу или сделав специальный навес, можно готовить шашлык в любую погоду.
- Переносные мангалы. Такие приспособления делают из тонкого металла, что даёт возможность существенно снизить вес изделия, но намного снижает и срок службы. Но, благодаря малым габаритам и небольшому весу, имеется возможность брать их в поход.
Размер мангала
Постоянным размером металлических мангалов считается глубина. Именно от глубины конструкции и зависит прогрев мяса. Оптимальным расстоянием от шашлыка до углей считается 150–180 мм. Поэтому для создания таких условий глубина должна быть 250 мм.
Остальные размеры владельцы выбирают исходя из своих желаний и предпочтений:
- Ширина полностью зависит от размера используемых шампуров. Она должна быть на 8–10 см меньше длины шампуров;
- Длина изделия определяется количеством шампуров, которые вы желаете использовать при одной закладке мяса. Между шампурами должно быть расстояние 8–10 мм;
- Высота всего мангала регулируется установкой ножек. Её размер — дело сугубо индивидуальное. Если хозяин не желает наклоняться, то делается высота 70–80 см. Для переносных моделей, в целях экономии, ножки делают 20–30 см высотой;
- Понадобится сделать вентиляционные отверстия для доступа воздуха к углям.
На боковых стенках их сверлят на высоте 60 мм от днища с шагом 60–70 мм.
После того как размер мангала для шашлыка из металла определён приступаем к непосредственному изготовлению изделия. Для начала необходимо сделать чертёж мангала из металла с размерами.
Создание мангала своими руками
Стандартный мангал может производиться несколькими способами, которые принципиально не меняют саму конструкцию, но всё же имеют отличия по способу ведения сварочных работ.
При первом способе желательно использовать большой лист металла, чтобы на нём могла разместиться вся развёртка будущего изделия. Начинаем изготовление с нанесения на лист металла размеров будущего изделия. Затем любым режущим инструментом вырезаем лишние углы на листе. Места сгиба аккуратно подрезаем болгаркой, чтобы облегчить изгиб конструкции. Далее, при помощи сварочного аппарата соединяем стенки. Сделав всего четыре сварных шва, мы получаем готовый короб мангала.
Если используется тонкий металл, то для усиления конструкции рекомендуется наварить дополнительные уголки. Далее, остаётся только приварить ножки нужной длины. В качестве ножек можно использовать профильную трубу или железный уголок.
Вентиляционные отверстия можно сделать как на раскроенной заготовке, так и на готовом коробе.
Второй способ применяется в случае, если имеется металл небольшими кусками. Сначала нарезаем прямоугольные куски металла, а затем свариваем их в короб. При таком способе сварные швы нужно делать более качественными, да и длина их намного будет больше. Но плюсом такого способа можно считать то, что можно дно сделать из толстого куска металла. Это намного увеличивает срок службы мангала.
При третьем способе сначала необходимо из уголков или профильной трубы сварить каркас будущего изделия. Затем к нему приваривается дно, можно из металла большей толщины чем стенки. После привариваются боковые стены.![]()
Для создания комфортных условий можно приварить по бокам раму для укладки шампуров и столешницу. А для возможности устраивать пикник при плохой погоде, нелишним будет сварить навес.
Разборная модель
Не очень сложно сделать простейший разборный мангал своими руками без сварочного аппарата:
- Прежде всего нужно нанести разметку фрагментов на металлический лист. При разметке необходимо учитывать разборный стык каждого элемента конструкции, поэтому каждый торцевой и боковой размер фрагмента нужно увеличить на 40 мм.
- Аккуратно, при помощи режущего инструмента, вырезаем все элементы изделия и делаем на них необходимые вентиляционные отверстия.
- На боковых стенках делаем надрезы 20 мм глубиной. Затем выгибаем металл так, чтобы сделать кромку под прямым углом. В верхней части полок делаем прорези под шампуры. В нижней части делаем надрезы 40 мм и сгибаем кромку для укладки днища.
- Торцевые стенки также надрезаем внизу на 40 мм и сгибаем кромку под днище.
- Затем все эти элементы слаживаем в прямоугольный короб. Торцевые стенки прикручиваем болтами к загнутым кромкам боковых стенок. Дно улаживается на загнутые внизу кромки.
- Съёмные ножки делаются из металлического уголка.
Компактная шашлычница своими руками
Мангалы, сделанные по складному типу, быстро собираются и разбираются без применения дополнительного инструмента. Они очень легко перевозятся, поэтому стали незаменимыми спутниками туристов в походе. Изготовление такого изделия займёт немного времени:
- Кроим лист железа и делаем фрагменты аналогичные переносной конструкции.
- Мебельными металлическими завесами соединяем торцевые и боковые стенки с днищем.
- В верхней части стенок привариваем крючки, чтобы избежать самопроизвольного складывания.
- Изготавливаем съёмные ножки.

Для установки такой шашлычницы нужно будет лишь поднять боковые стенки и закрепить их между собой крючками. В походном положении такое изделие напоминает железный чемодан.
Мангал коптилка
Сделанный своими руками мангал из металлической бочки может служить одновременно и коптилкой.
Процесс изготовления:
- Уложив бочку набок, необходимо при помощи болгарки вырезать верхнюю половину. При этом нельзя затрагивать круглые торцы бочки.
- Делаем ножки. Для этого к торцам бочки привариваем четыре металлических уголка одинаковой длины.
- Отрезаем по длине бочки два уголка. Привариваем их горизонтально внутри бочки возле среза верхней части, предварительно сделав нарезку под шампуры. В режиме шашлычницы на уголки будут укладываться шампуры. А когда возникнет необходимость использовать изделие как коптилку или барбекю, на эти уголки укладывается сетка.
- Ниже уголков нужно приварить перемычки-ограничители, на которые будет устанавливаться поддон для стекания жира.
- Вырезанный верх бочки фиксируется петлями к бочке. Получится крышка, наличие которой обязательно для коптилки.
- Чтобы избежать падения крышки внутрь бочки, нужно приварить пару ограничителей. Для удобства пользования сверху крышки ставим две ручки.
- В верхней части круглого торца бочки делаем вентиляционные отверстия.
При работе в режиме коптилки на дно засыпаются опилки. Снаружи греется дно бочки или паяльной лампой, или при помощи костра. Дым выходит через вентиляционные отверстия или щели крышки.
Сварка мангала из двух баллонов
Если у вас имеется в хозяйстве два пустых газовых баллона, то можно сделать универсальное изделие для приготовления пищи на свежем воздухе. Установить такой мангал из металла можно не только под любой навес, но и под крышу беседки. Для изготовления нужно:
- Трубным ключом удалить вентили баллонов и налить в них воду.
Затем, уложив баллоны набок, необходимо режущим инструментом вырезать верх. Для удаления запаха газа нужно, слив воду, нагреть их докрасна на костре. - Нужно из этих баллонов сделать два мангала. Как сварить мангал из бочки, было описано выше. Затем, расположить их на ножки в торец друг к другу. Баллон для коптильни устанавливается выше по отношению к другому.
- Вырезаются отверстия в смежных торцах при помощи сварки. Затем баллоны свариваются между собой.
- Чтобы воздух поступал в мангал, на днище нижнего баллона нужно сделать два окошка. Затем, в уголке с сечением 100 мм сверлим отверстия и привариваем его вдоль баллона, перекрывая оба окошка. Это и будет колосник.
- Для исправной работы коптильни под крышей и отвода дыма из беседки, нужно оборудовать её вытяжной трубой.
В итоге получилась универсальная конструкция, где нижний баллон – мангал, а верхний – коптильня. Когда в нижнем баллоне сгорают дрова, дым попадает в коптильню, а затем через дымоход отводится за пределы беседки.
Мини-мангал
Для стандартного мангала места в городской квартире совсем мало. Но всё же любители приготовить вкусный ароматный шашлык нашли выход из этой ситуации. На помощь им приходит миниатюрный балконный мангал, который крепится на перила балкона. Можно такое миниатюрное изделие (длина не более полуметра) прикрепить и на стенку в любом удобном месте.
Мангал из пластилина
Дети, как и взрослые люди, очень любят отдых на природе. Они с удовольствием играют с куклами, которые тоже хотят скушать кусочек вкусного шашлыка. Поэтому нужно сделать мангал из пластилина:
- Берём коробочку прямоугольной формы и тщательно облицовываем её снаружи коричневым пластилином.
- Создаём имитацию углей. Для этого серый пластилин небрежно смешиваем с красным и оранжевым. Помещаем эту смесь внутрь коробочки.

- Делаем ножки. На 4 спички наносим тонкий слой серого пластилина. Шилом делаем отверстия снизу коробочки и вставляем ножки.
- Берём ещё несколько спичек и нанизываем на них коричневые кусочки – мясо, и белые колечки – лук. Получились шампуры с мясом.
- Укладываем шампуры на коробочку и поделка готова.
Несколько советов для работы на мангале
- Минут 15 нужно разогревать решётку, перед тем как положить на неё мясо;
- Для того чтобы мясо хорошо прожарилось, его достаточно повернуть один раз, поджаривая по 5–6 минут с каждой стороны;
- Готовое мясо нужно подержать несколько минут, чтобы дать ему немного остыть, при этом лучше распределяется сок;
- Для приготовления на мангале угли должны быть красного цвета с небольшим налётом сизого пепла;
- Для защиты от ожога рубашка на руке должна быть застёгнута.
Существует большое разнообразие моделей мангалов. Чертежи мангалов из металла с размерами всегда можно посмотреть на просторах интернета.
Мангал своими руками
Внимание, только СЕГОДНЯ!
Загрузка…необходимые для правильной прожарки шашлыка и экономии угля
Красота – это хорошо, а функциональность все же важнее. Но как сделать мангал самому или заказать его, не прогадав с размерами, чтобы потом не разочароваться? Ответ в нашей статье.
Вконтакте
Мой мир
Ок
Советы мастеров
Анализ форумов и блогов опытных народных умельцев, а также мнения инженеров серьезных производителей помог нам собрать перечень самых распространенных советов, касающихся технических особенностей самостоятельного изготовления мангала.
Длина
Для тех, кто хочет обойтись одним заходом жарки мяса, логично суждение — чем больше длина рабочей поверхности мангала, тем лучше.
Но при этом возможность перемещения мангала ограничивается: конструкция будет тяжелая и громоздкая. Потребуются дополнительные, хорошо укрепленные ножки, иначе не будет устойчивости. Если мангал задумывался стационарным, не стоит забывать о количестве угля, которое потребуется для заполнения внутреннего объема корпуса и поддержания нужной температуры.
Опытные мастера советуют брать за основу один метр, а далее смотреть по своему вкусу. Кому-то идеален вариант в 60 см, а кого-то полностью устраивает 80 см.
Обратите внимание! Правильный индивидуальный размер рассчитывается по формуле: Хш*S=длина мангала. Где Хш – это необходимое количество шампуров, одновременно находящихся на мангале, а S – расстояние между ними. К примеру, у нас 8 шпажек, умножаем их на размер промежутка между ними (от 7 до 10 см) и получаем необходимую длину: 8*10=80 см. Промежуток может быть и меньше, зависит от предпочтений.
Ширина
Категоричные утверждения (ширина в 40 или 35 см) заведомо неверны. Хорошо, если повезет и длина используемых шампуров или решетки 42 см, а если 33? Для чертежей будущего мангала нужно измерить среднюю длину шампуров, чтобы никаких проблем в дальнейшем не возникло.
Самая популярная ширина — 30 см, её хватит наверняка, и экономия угля будет очевидна.
Учтите! Обычно шампура плоские, а значит выемки для крепления на стенках мангала должны быть вертикальными — для легкого поворота на 90°. Округлые прорези неудобны.
Высота
Немало копий сломано по поводу глубины мангала. Высота в четыре десятка сантиметров повлечет большой расход углей и увеличит время приготовления. Возрастает риск того, что снаружи мясо будет готово, а внутри останется сырым. Оптимальной дистанцией от источника тепла до шашлыков признано 7-10 см. Тогда готовка происходит от инфракрасного излучения углей, а не горячим воздухом от них.
Это позволяет мясу приобрести золотисто-коричневую корочку. Внутри же мясо останется нежным благодаря соку, который даст аромат и сочность.
Для соблюдения нужного расстояния отлично подойдет высота не более 12-15 см.
Сверление дырок дает больше недостатков, чем преимуществ. Действительно, этап розжига облегчается, но лучше применить опахало, а затем радоваться результату, чем мучиться весь процесс. Минусов явно больше:
- улучшенный воздухообмен способствует появлению пламени, которое нужно будет гасить, разбрызгивая воду, ведь готовить надо на углях;
- стенки будут горячее центрального пространства из-за нарушенной целостности температурного режима;
- невозможно достичь равномерного и долгого жара, который ускорит время приготовления и сделает мясо по-настоящему вкусным.
Инженеры и народные мастера отмечают, чтобы сварить хороший мангал, который не покоробится после 3-4 лет использования от перепадов температуры, нужно рассчитывать на толщину металла в 3-4 мм. От нее же зависит и вес всей конструкции.
Справка! За неимением более толстого металла, по периметру корпуса мангала приваривают уголки. Это улучшит сохранность форм короба и продлит его срок службы.
Общая высота с ножками
Высоту нужно рассчитать индивидуально под главного исполнителя блюда: нужно согнуть руки в локтях и замерить расстояние до пола. Это избавит в будущем от необходимости нагибаться провоцируя хондроз поясничного отдела.
100 см, как правило будет достаточно.
Заключение
Многие параметры идеального мангала зависят от личных предпочтений, нужен лишь расчет. А оптимальные пропорции, подходящие большинству, колеблются около значений: глубина – 15 см, расстояние между боковыми стенками – 30, длина – от 60 до 120 см.
Правильные размеры для мангала
Мангал своими руками из металла: фото, чертежи, изготовление
Шашлык, приготовленный на природе – вкуснейшее блюдо.
При желании его можно пожарить и на камнях, но куда удобнее пользоваться железным мангалом – мясо не пригорает, а угли потихоньку раздувает воздух, поступающий сквозь специальные отверстия. Благодаря высокому расположению жаровни над ней не нужно наклоняться или сидеть рядом на корточках в процессе готовки. Если вы еще не обзавелись этим полезным приспособлением, то из данной статьи сможете узнать, как сделать мангал из листового металла своими руками, чтобы не покупать его в готовом виде.
Схемы и размеры мангалов
Самодельные приспособления для жарки шашлыков делятся на 2 группы – стационарные и разборные. Первые делаются для домашнего либо дачного пользования и отличаются более массивной конструкцией, вторые — это облегченные складные модели для выездных пикников.
Металлические шашлычницы, устанавливаемые во дворе дома, бывают нескольких разновидностей:
- простой уличный мангал открытого типа на ножках;
- многофункциональное приспособление, включающее барбекю, печь, плиту под казан и даже коптильню;
- садовые варианты, оборудованные крышей, а иногда и естественной вытяжкой.
Многофункциональный мангал
Справка. При изготовлении барбекюшниц некоторые мастера — умельцы не только совмещают их с различными печками, но и ставят над жаровней вертел с электроприводом, что показано ниже на чертеже. Благодаря этому готовка птицы происходит в автоматическом режиме, как на промышленном гриле.
Походные конструкции бывают двух видов – разборные и раскладные. Разница между ними заключается в компактности и весе. В первом случае мангал делается со съемными ножками и разбирающимся корпусом, чтобы он легко помещался в автомобильный багажник. Устройство шашлычниц второго типа позволяет складывать их в виде чемодана или дипломата для ручной переноски. Образец такой оригинальной самоделки изображен на фото.
Следующий шаг после выбора конструкции – прорисовка эскиза и определение размеров сооружения.
Чтобы мангал, сделанный своими руками, был удобен в пользовании и достаточно вместителен, учтите следующие моменты:
- Ширину изделия подбирайте по длине имеющихся шампуров, обычно она лежит в пределах 250—400 мм. Если шампуров еще нет, то стационарную версию предусмотрите максимально широкой, а переносную модель лучше сделать небольшой.
- Прикиньте, сколько порций шашлыка придется готовить одновременно и посчитайте длину жаровни, соблюдая условие: расстояние между шампурами должно быть не меньше 60 мм.
- Высоту самодельного мангала подбирайте под свой рост для удобства жарки и вращения шампуров.
Совет. Чтобы правильно изготовить барбекюшницу с навесом из металла, при выборе размеров стоит позаботиться об устойчивости конструкции. Нежелательно проектировать жаровню слишком узкой и длинной, разве что вы заделаете подставку в бетон. Проекты красивых мангалов с крышей, сделанной из кованых элементов, представлены на фото.
Если планируется построить беседку, где впоследствии разместится шашлычница, то нужно предусмотреть вытяжку с дымоходной трубой и выдержать расстояние 1 м от топки до деревянных конструкций.
Подготовка материалов
В зависимости от назначения и дизайна мангала для изготовления применяется листовое железо различной толщины:
- дворовые жаровни, постоянно находящиеся на улице, принято строить из обычной стали толщиной от 2 до 3 мм;
- для сборной конструкции, рассчитанной на перевозку, лучше взять металл не более 1,5 мм;
- изделия, складывающиеся в чемодан или дипломат, нужно собирать из нержавейки 0,8—1 мм в толщину.
Придомовой мангал также можно сделать из старого газового баллона либо 200-литровой бочки. Вы получаете готовую топку круглой формы, где остается вырезать крышку, поставить дверцу и приварить дымоходную трубу, чтобы шашлычница одновременно служила коптильней. Как реализовано это необычное решение, смотрите на фото:
Ножки сооружения изготавливаются из любых подручных средств – профильных и круглых труб, уголков и швеллеров.
Требование к ним одно: опоры должны обеспечивать устойчивость сооружения.
Простая стационарная модель – порядок сборки
Как правило, дворовой мангал делается своими руками из металла, соединяемого сваркой. Сначала листы железа нужно разметить и порезать на заготовки в соответствии с чертежом. Для дальнейших действий мы предлагаем такую пошаговую инструкцию:
- Возьмите заготовки боковых стенок и просверлите в них по 5 отверстий диаметром 15 мм на высоте 8 см от дна.
- Теперь нужно сварить металлический короб – будущую жаровню. Двойное днище можно сформировать двумя способами: приварить над боковыми отверстиями перфорированный стальной лист либо поставить сетку и заложить дно керамическим полнотелым кирпичом.
- Сварите раму с поперечинами между ножками и прикрепите ее к готовой топке.
- Для установки и прокручивания шампуров прорежьте в торцах боковых стенок пазы с интервалом не меньше 6 см.
- На торцевых стенках закрепите ручки для переноски.
Важный момент. Правильное наложение сварных швов – снаружи, а не внутри топливника, чтобы они не прогорели. Так изделие прослужит дольше.
Если для изготовления барбекю используется пропановый баллон или бочка, то в ней необходимо вырезать крышку и поставить внутрь сетку. Последнюю можно купить либо сварить самому из стальной проволоки. Крышку сделайте откидной, прикрепив ее на петлях. Когда нужно сделать коптильню, то вместо полукруглого днища баллона приваривается железный диск с проемом для дверцы, а с другой стороны устраивается дымоход. Подробнее об изготовлении мангала в домашних условиях рассказано на видео:
По завершении сборочных работ облагородьте внешний вид изделия, покрасив его жаростойкой эмалью серии КО или специальной краской из аэрозольного баллончика.
Разборный мангал из металла
Изготовление разбираемой конструкции выполняется в том же порядке, что и сварная жаровня, но с некоторыми отличиями:
- Раскрой металлических деталей делается с запасом на изгибы по краям, с помощью которых стенки прикрепляются друг к другу на болтах.

- Торцы каждого элемента нужно согнуть под углом 90° и просверлить в них отверстия.
- Крепление ножек к корпусу тоже производится на болтах.
Совет. При сборке проследите, чтобы гайка и часть резьбы находилась снаружи, а головка болта – внутри топливника, как изображено на чертеже.
Есть более простой вариант стыковки деталей без резьбовых соединений. Элементами крепления служат сами ножки из профильных труб с продольными вырезами. Согнутые торцы стенок вставляются в эти прорези, а дно просто укладывается на изгибы. Суть идеи показана в очередном видео:
Мангал в виде дипломата изготовить несколько сложнее. Работать придется с нержавеющей сталью, которую тяжелее сверлить и гнуть. Обычное железо применять не стоит, лист толщиной 0,8 мм прогорит довольно быстро, а более толстая сталь сделает чемодан слишком тяжелым. Вторая сложность, заметная на сборочном чертеже – это монтаж петель на боковые стенки, чтобы они складывались внутрь. Торцевые борта просто привариваются к днищу, а ножки вставляются в специальные гнезда.
Заключение
Для мастеровитого хозяина изготовление мангала из металла не является проблемой. Даже при отсутствии сварки и навыков работы с ней стационарную шашлычницу можно скрутить болтами. Главное – не ошибиться с размерами изделия и не сделать его слишком маленьким. При наличии времени и желания вы можете расширить функциональность мангала – приварить полочки для дров и нанизывания мяса, а также смастерить навес, чтобы вас не накрыл случайный дождик.
Мангал для шашлыка своими руками – размеры шашлычницы
Любимым лакомством летних отпускников по праву считается шашлык. Сочные куски мяса с поджаристой корочкой и вызывающим слюноотделение ароматом дыма приготавливают, нанизав на шампур, на горящих углях, размещённых на дне мангала.
Конструктивно шашлычница напоминает коробку из листового металла с ножками и отверстиями для циркуляции воздуха, а также маленькими пазами на боковинах, в которых размещаются шампура. При этом сделать такую конструкцию своими руками под силу каждому.
Особенности металлических мангалов
Если рассматривать шашлычницы по размерам, то их можно классифицировать по следующим типам:
- стационарный мангал;
- переносная конструкция.
Стационарный мангал получил большую популярность на дачных и загородных участках. Часто при его изготовлении используют много кованных элементов, отделывают конструкцию кирпичом или натуральным камнем и устанавливают на бетонном основании. Это делает из обычной шашлычницы настоящий дизайнерский объект. А если мангал разместить в беседке или обустроить над ним навес, то погода не сможет испортить настроение отдыхающим, решившим, полакомится мясом.
Переносной мангал – незаменимый помощник в походах или поездках на природу, на автомобиле. Он обладает незначительными габаритами и массой. Часто такая шашлычница складывается в чемоданчик из металла.
К самой простой конструкции мангала можно отнести две рамки из железа, на которых размещаются шампура. Но такие переносные конструкции обладают существенным недостатком – невозможностью одновременной готовки шашлыков для большой компании.
Более функциональные модели мангалов снабжаются вспомогательными аксессуарами, такими как: выдвижной стол, дополнительная решётка и регулируемое поддувало. Но такие универсальные конструкции, обычно достаточно тяжёлые, поэтому их перемещение без автомобиля невозможно.
Хочется отметить, что мангалы также классифицируются по толщине листового металла, используемого при их изготовлении, и делятся на следующие типы:
- тонкостенная конструкция;
- толстостенный мангал.
Из тонкой стали в большинстве случаев изготовляют своими руками мангалы с переносной конструкцией.
Тонкое листовое железо делает их максимально облегчёнными, но при этом достаточно функциональными. Тонкостенные шашлычницы предназначены только под использование готовых углей. Разжигать костёр прямо в коробке из металла не рекомендуется, так как тонкая сталь быстро прогорает.
Толстостенную сталь используют в стационарных конструкциях для приготовления шашлыка. При этом выбирают листовую сталь толще 4 мм. Такой мангал намного дороже тонкостенного аналога, но имеет значительно больший эксплуатационный ресурс, что вполне оправдано для шашлычниц, которые часто используются.
Мангал из металла – оптимальные размеры
Прежде чем сделать мангал для шашлыков своими руками, важно определить размеры изделия, оптимально подходящие под нужды его владельца. Для этого учитывают число шампуров, которое обычно размещается на мангале. Если на природе собирается небольшая компания вполне подойдёт конструкция 60х30 см.
Ширину устройства для приготовления шашлыка на углях обычно рассчитывают из числа кусков мяса на шампуре. Зачастую это не более 9 кусков а, следовательно, ширина мангала составляет 300 мм. Более широкое устройство требует большего количества тепла от углей, которое тратится впустую. Если на мангале планируется использование дополнительной решётки, то нужно ориентироваться на размеры последней.
В случае с переносной конструкцией, её габариты нужно рассчитывать из расчёта размеров багажника автомобиля. Для любителей больших компаний расчёт длины шашлычницы происходит по количеству шампуров с добавлением 10 см по краям. Расстояние между соседними шампурами в большинстве случаев составляет 100 мм.
Оптимальная глубина мангала составляет от 150 до 200 мм, что позволяет качественно приготавливать мясо, не пересушивая его. Если глубина будет меньше, шашлык будет гореть, а если больше, то увеличится расход топлива. Общая высота мангала, сооружаемого, своими руками зависит от роста его владельца.
Переносные мангалы изготавливаются из 2 мм стали, а для стационарных конструкций металл берут 4 мм толщины. Если толщина будет меньше 2 мм, конструкция быстро перегорит и придёт в негодность. В свою очередь, с сильно толстым материалом очень сложно работать.
Неразборная металлическая конструкция
Неразборная шашлычница обычно состоит из четырёх боковин, такого же количества ножек и днища. Прежде чем начинать работы целесообразно подготовить чертёж по нужным размерам, а также основные материалы и инструменты:
- листовая сталь;
- уголки из металла;
- электросварка;
- электродрель;
- болгарка.
Как уже говорилось раньше, для удобства нужно подготовить чертёж. Обязательно нужно указать длину ножек, параметры металлического ящика, расстояние между отверстиями для увеличения тяги и шаг направляющих фасок для расстановки шампуров.
Обычно число фасок составляет 8 штук, так как компании больше 8 человек собираются редко. Отверстия для притока воздуха высверливаются с шагом 70-100 мм и на высоте от днища 50 мм. Длина ножек, в свою очередь, выбирается индивидуально.
- На листе металла 2 мм толщины выполняют разметку боковин и днища мангала.
- По разметке разрезается сталь при помощи болгарки и обрезного круга.
- Дрелью выполняется перфорация на боковых частях шашлычницы.
- Фаски для шампуров также вырезаются болгаркой.
- Сваркой сваривается днище и боковины мангала.
- Для изготовления ножек металлический уголок обрезается по нужной длине и затачивается, с одной стороны, чтобы мангал лучше входил в грунт при установке.
- Сваркой ножки привариваются к металлическому коробу.
Также можно сделать мангал с разборными ножками. Для этого уголки из металла на конце снабжаются металлическим болтом, который приваривается сваркой. В свою очередь, по углам металлического короба привариваются гайки, в которые и будут вкручиваться ножки.
Разборная конструкция мангала для шашлыка
Чтобы сделать полностью разборную конструкцию для приготовления шашлыка, электросварка не понадобится. Вместо этого нужно позаботиться о наличии: электродрели, ножовки или болгарки, болтов с гайками и листового металла 2 мм толщины, а также уголков для ножек, рулетки и мела.
- Как и в случае с цельной конструкцией, составляют чертёж и вырезают заготовки из листовой стали, но с единственным отличием – нужно оставить запас в 30 мм для стыков.
- На боковинах и торцевых заготовках мангала, выполняются небольшие надрезы, по которым листы сгибаются до образования углов для стыковки и укладки днища.
- Для надёжного соединения заготовок на время использования шашлычницы в полученных кромках высверливаются отверстия под шурупы.
- Ножки изготавливаются из уголков с заострёнными концами. Для крепления ножек в них и в стенках мангала высверливаются отверстия, в которые будут вставляться болты для сборки конструкции.
- На последнем этапе готовая конструкция собирается, чтобы проверить, небыли ли допущены ошибки.
Мангал из металлической бочки
Все привыкли, что стандартная конструкция шашлычницы напоминает металлический прямоугольный короб с ножками. Но если на даче завалялась старая металлическая бочка, то она вполне подойдёт, чтобы сделать своими руками устройство для жарки мяса на шампурах. Единственное, не рекомендовано использовать тару из-под горючего или других вредных реагентов.
- Выполняется разметка и болгаркой отрезается верхняя половина ёмкости, не затрагивая торцов.
- Из уголков изготавливаются ножки, которые привариваются к торцам бочки.
- По длине бочки вырезаются ещё 2 уголка, которые будут использоваться как опора для шампуров. На одном конце уголков выполняются надрезы с шагом 60-70 мм и заготовки привариваются к внутренней части бочки.
- На крышку, которая выполняется из второй половинки бочки, привариваются ручки и петли.
Крышка поможет сохранить угли и шашлык во время дождя.
Складная конструкция металлического мангала
Конструктивно складное устройство для жарки шашлыка схоже с неразборным аналогом. Единственным отличием является крепление стенок шашлычницы не сваркой, а с помощью подвижных обвесов, благодаря которым конструкция складывается в компактное переносное устройство. Чтобы предотвратить самопроизвольное складывание конструкции она снабжается металлическими крючками. Такой мангал, собранный своими руками, подойдёт любителям пеших походов на природу.
Как сделать мангал из металлических габаритов. Как сделать мангал своими руками
Мангал — это удобное и полезное кулинарное оборудование для приготовления пищи на жаре. Это функциональное изобретение позволяет готовить самые разные продукты, используя естественное тепло углей. Несмотря на то, что изначально он создавался как универсальный кулинарный инструмент, сегодня гриль является основой для приготовления мяса и шашлыка. Вокруг него проводятся выезды на дачу и природу, проводы осени, встречу прихода весны и празднование лета.А ниже мы предоставим чертежи металлических мангалов, их фото и видео по технологии изготовления мангалов различной конструкции.
Покупка мангала — дорогое удовольствие. Простая металлическая конструкция иногда стоит очень дорого, не оправдывая ни ее качества, ни внешнего вида. Поэтому гораздо лучше сделать мангал своими руками, используя чертежи, качественный металл, а также свои навыки.
Основание для барбекю
Мангал — удобный инструмент для приготовления пищи на жаре.Он имеет очень прочную конструкцию, но все его особенности имеют нюансы. Они позволяют быстро и легко приготовить шашлык и другие блюда, обеспечивая достаточное количество тепла для приготовления.
Среди основных достоинств мангала можно выделить следующие:
- подходящие размеры;
- отверстий для воздуха;
- глубина;
- углублений для шампуров.

Некоторые из них очевидны, но все они необходимы для качественного приготовления. Что касается глубины барбекю, то она позволяет набрать достаточно тепла и разместить мясо на такой высоте, где оно будет готовиться, но не пригорать.Таким образом вы сможете уложить необходимое количество древесины.
Вентиляционные отверстия являются особенно важным аспектом этих конструкций. Ведь именно из-за них мясо, приготовленное на гриле, сильно отличается от другого способа приготовления на природе. Регулярный поток воздуха позволяет поддерживать температуру и тепло углей в полной мере.
Внимание! Еще один нюанс мангала — поддон. Он предотвращает попадание углей через специальные вентиляционные отверстия на дно и облегчает частичную регулировку воздуха.
Для дальнейшего использования конструкции крайне важна калибровка. Ведь готовка происходит на решетке или шпажках, поэтому отталкиваться нужно от ее среднего размера. Мангал должен быть широким, позволяющим разместить шампур по всей длине и обеспечивать необходимое количество тепла, позволять размещать более восьми порций мяса.
И последний нюанс — изготовление углублений для шампуров. Они позволяют разместить мясо в любом положении, равномерно прожарив его с разных сторон.Такой подход играет большую роль в приготовлении ароматного и сочного шашлыка без пригорания.
Но эти моменты всегда меняются в зависимости от типа барбекю.
Определяемся с типом мангала: чертежи, фото
Сразу стоит сказать, что разновидностей таких конструкций множество. Ведь каждый хочет найти лучший вариант, где приготовить мясо и другие блюда в жару. Сегодня выделяют следующие виды барбекю:
- Обычный.
Мангал обыкновенный имеет квадратную форму. Несмотря на то, что они имеют большой вес, их можно переносить. Часто имеет съемные ножки.
- Разборно.
Легкая и небольшая складная версия, которую можно носить в автомобиле. Он удобнее и проще, а также подходит для пеших прогулок в лесу.
- Стационарный.
Мощный мангал из металла. В его основе могут быть кирпичные блоки, обеспечивающие высокую надежность.Часто такие мангалы можно дополнить стальными украшениями.
Выбор типа мангала очень ответственно относится к его самостоятельному сооружению. Таким образом, вы можете определиться с задачами и выбрать лучший вариант … Однако рекомендуется выбирать обычный тип, как наиболее универсальный выбор для дачников.
Внимание! Мангалы могут иметь разную форму. Отмечаются круглые, прямоугольные, гнутые и другие виды, приготовление на которых может незначительно отличаться.
Чертежи металлических мангалов: фото разных видов
Перед тем, как сделать соответствующие чертежи и выбрать размеры будущего мангала, для постройки нужно выбрать оптимальный вариант, который используется чаще всего.Необходимо подобрать подходящую ширину и высоту конструкции, а также подходящую длину ножек. Чертеж обычного мангала предоставляется следующим образом:
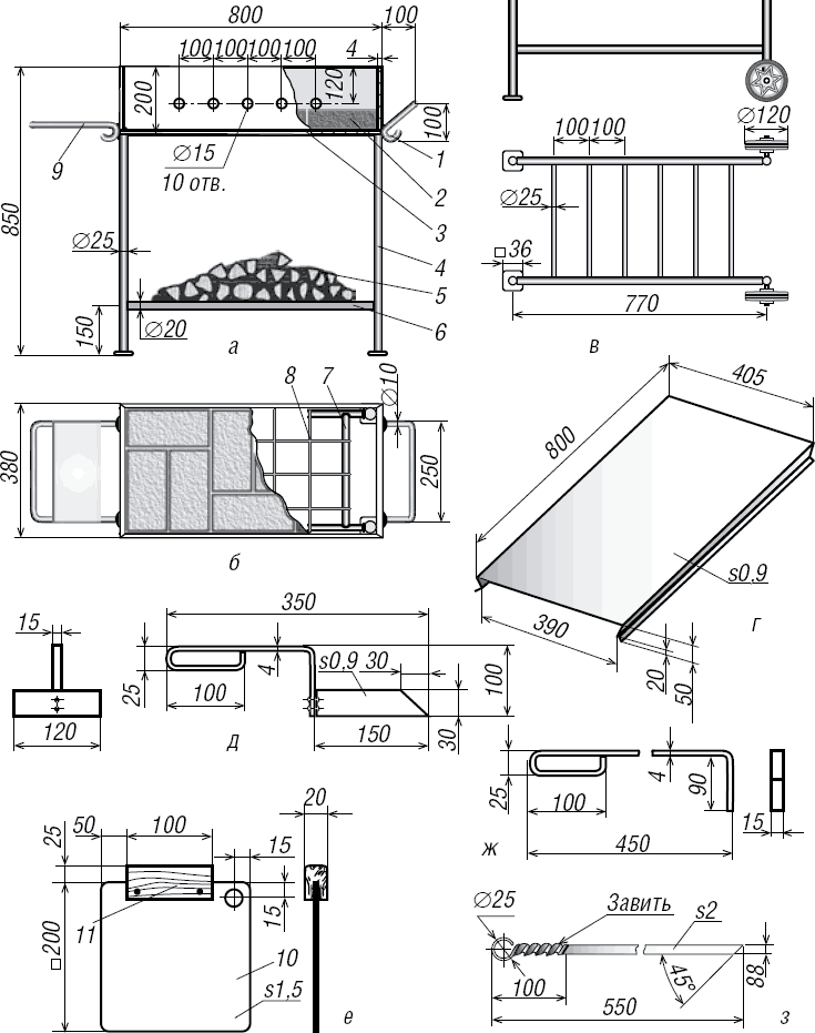
Размеры в миллиметрах. На нем хорошо видно, что общая высота мангала с длиной ножки 70 см и длиной 95 см. Глубина мангала составит 25 см, что является оптимальным расстоянием от жары до шампуров.
Ширина мангала 28 см, что немного меньше среднего размера шампура.Длина 54 см, нужно равномерно распределить на огне 9 порций.
В верхней части конструкции предусмотрены проемы для шпажек. Таким образом, вы можете равномерно распределить мясо и свободно зафиксировать его при вращении, обеспечив равномерное прожаривание. Причем расстояние между зазорами должно быть 6 см. Между крайними стенками и щелями необходимо оставлять пространство, чтобы мясо не касалось их, а также не пригорало.
Отличная вентиляция — важный нюанс. Здесь это достигается за счет отверстий диаметром 12-15 мм, расположенных на боковых стенках.Отверстия расположены внизу металлического листа в шахматном порядке. На передних боковинах они не нужны.
Внимание! Представленная конструкция не предполагает наличие поддона и ям на дне мангала.
Это легко исправить, приварив к низу или ножкам небольшие уголки и выбрав подходящий лист металла.
Как подготовить элементы будущей конструкции?
Металлические листы служат основой для барбекю.Мы не рекомендуем использовать другие материалы, так как решетка обеспечивает достаточную конструктивную устойчивость к компактности и нагреву. Толщина металла должна быть примерно 2-3 мм. Для работы вам понадобится:
- Два листа металла размерами 280×250 мм и 240×250 мм.
- Один лист металла 540х280 мм.
- Уголки длиной 700 мм и четыре металлические трубы.
- Сварочный аппарат.
- Дрель.
- Рулетка.
- Пила по металлу или болгарка.
Большинство людей предпочитают другой вариант сборки. Различные листы можно заменить большим металлическим листом. Сделав надрезы, вы можете соединить конструкцию с помощью нескольких сварных швов. Таким образом, он будет надежнее.
Также важно учитывать дополнительные элементы, если конструкция отличается от приведенной выше. Его можно дополнить поддоном, ручками для переноски, нишами для ног и многим другим.
Прежде всего, вам нужно сделать предварительную разметку. Размечаются места сварки и крепления, создаются специальные зазоры.Для этого используется пила или болгарка. На этом этапе также создаются воздушные дыры.
Внимание! Часто такую конструкцию делают на арматурных ножках. Они ненадежны, так как конструкция будет шататься даже при небольших нагрузках. Поэтому их лучше заменить уголками.
Как сварить мангал своими руками
Сварка — лучшее решение для мангала. Он способен противостоять резким перепадам температуры и надежному креплению болтами. Для этого используйте сварочный аппарат независимо от его типа.Затем по очереди закрепляют конструкцию, а по углам выполняют сварку.
Внимание! Для более удобной сварки по бокам стоит использовать металлические уголки. Также они могут повысить надежность швов, а также значительно утяжелить конструкцию.
Далее идет сварка ручек и ножек. Их крепят по бокам (углам) или к низу конструкции (трубы). Сваривать их нужно надежно, так как сама решетка будет довольно тяжелой.
Внимание! Для фиксации ножек можно использовать разборные элементы, а не сварочный аппарат. Съемные ножки значительно уменьшат габариты мангала при хранении.
По окончании работ нужно отшлифовать швы, а также проверить всю конструкцию на надежность.Мангалы металлические с навесом: чертежи
Для приготовления шашлыка в непогоду можно использовать специальную конструкцию мангала. Это позволяет скрыть жару и мясо от атмосферных осадков, но сама по себе такая конструкция не проста.Возможны два варианта действий:
- установка навеса прямо на мангал;
- установка дополнительного навеса, не относящегося к мангалу.
Последний вариант будет более рациональным, так как позволяет скрыть не только шашлыки, но и человека, наблюдающего за их приготовлением. Первый вариант требует дополнительных затрат, так как основание должно выдерживать нагрузку от навеса.
В этом случае рекомендуем крепить конструкцию к металлическим уголкам.Это лучший вариант, так как он упрощает сборку. Полотно для навеса — это чаще всего профнастил. Он пожаробезопасен, никак не реагирует на перепады температур и отличается малым весом, что немаловажно для облегченной конструкции.
Сборка навеса мало чем отличается от обычного, требуется только противопожарная защита и грамотное расположение основания. Таким образом, вы можете безопасно готовить пищу, не боясь зацепиться за фурнитуру.
Стоит отметить, что металлический мангал с навесом — сложный вариант, который под силу сделать опытным сварщикам. Здесь важно создать прочную конструкцию, вес которой будет равномерно распределяться по основанию. Для стационарных мангалов такой навес сделать намного проще, так как под них можно устроить опорный фундамент.
Конструкция навеса может быть декорирована металлическими элементами, что видно на фото. Это не только улучшит внешний вид, но и сделает навес более устойчивым и надежным.
Внимание! Если крыша установлена невысокая, оборудуйте ее специальным воздуховодом.
Покраска готовой продукции
Важным моментом при изготовлении мангала является покраска. Без него нельзя обойтись, так как металл, использованный в конструкции, подвержен ржавчине, а зола и копоть не улучшают ее внешний вид.
Для покраски используются специальные составы, к которым предъявляются следующие требования:
- термостойкость;
- устойчивость к перепадам температур;
- без вредных паров.
Этим требованиям соответствуют следующие покрытия:
- термостойкие краски различного назначения.
Следует отметить, что покраска мангала своими руками — довольно сложный и ответственный процесс. Им нужен специальный обжиг, после которого они получают свои свойства. Предлагается другой вариант — окисление. Выполнить это довольно дорого, но сделать это можно самостоятельно.
Для краски лучше выбрать черный.Так как поблизости будет много золы и копоти, остальные покрытия быстро пачкаются. На таком цвете налет будет абсолютно незаметен.
Внимание! Покраску следует производить только снаружи. Внутри покрытие довольно быстро отслаивается в результате сильного нагрева, и в этом нет никакого смысла.
Сделать мангал своими руками довольно просто. Для этого понадобится лист металла, сварочный аппарат и желание. Однако стоит придерживаться плана и схемы, так как в дальнейшем любые отклонения могут отразиться на удобстве его использования.Но материалы нашего сайта «Ремонтик», среди которых особенно полезными будут чертежи металлических мангалов и их фото, а также видео по изготовлению, помогут вам справиться с этой задачей.Одним из атрибутов дачного участка являются металлические мангалы. Такие конструкции при желании можно сделать своими руками. Создав собственный рисунок, вы сможете сделать уникальную конструкцию, которая будет использоваться не только по прямому назначению, но и станет украшением участка. Чтобы понять, какая именно конструкция подойдет для установки на вашем участке, стоит рассмотреть фото аналогичных изделий.
Виды грилей
Самые простые металлические конструкции имеют прямоугольную форму и отличаются небольшими размерами … Угольки размещаются внутри корпуса мангала из металла, создавая тепло, необходимое для приготовления мяса. Все мангалы можно разделить на несколько основных типов:
- Стационарные конструкции. Такие изделия имеют большие размеры и устанавливаются на фундамент. Стационарные мангалы долговечны и надежны.
- Переносные товары. Мангалы описанного типа легче и удобнее перевозить в автомобиле.Они могут быть изготовлены из тонкого металла, деформирующегося при физическом воздействии. Такие изделия удобны и часто берутся в отпуск многими автовладельцами.
- Переносные мангалы из металла своими руками. Такие конструкции имеют большие размеры, но при этом оснащены колесами, благодаря которым они могут перемещаться по участку. Такие мангалы приобретают владельцы участков, не желающие создавать стационарную конструкцию по разным причинам. Примером могут служить ситуации, когда участок небольшой и металлический мангал не будет гармонично вписываться в ландшафт.
Вы также можете найти электротехнические изделия с функцией автоматического перемещения шампуров. Благодаря этому вам не придется беспокоиться о равномерности прожаривания мяса. В таких устройствах вместо углей используются спиральные нагревательные элементы.
Преимущества металлических мангалов
При выборе типа мангала в первую очередь необходимо определиться, будет ли конструкция стационарной или переносной. Стационарные могут быть из металла или кирпича. Но чаще всего владельцы сайтов приобретают переносные конструкции, так как они выполняют свои функции и не занимают много места.
Конструкции из металла имеют следующие преимущества:
- Возможность перемещения по участку. Если мангал складной, брать его с собой можно даже без машины (при условии, что место для отдыха рядом).
- Равномерная прожарка мяса. Металл хорошо сохраняет тепло, поэтому мясо готовится достаточно быстро.
- Возможность создать дизайн своими руками. Если у вас есть сварочный аппарат, вы можете сделать мангал из металла своими руками.
Создав металлический мангал, можно сделать конструкцию любой формы и окрасить ее в желаемый оттенок. При отсутствии сварочного аппарата можно приобрести готовый металлический мангал. Эти предметы обычно продаются в магазинах товаров для сада и огорода. Стоит отметить, что при отсутствии сварочного аппарата можно соединять элементы мангала болтами.
Мангалы разборные простые
Самые простые мангалы — это изделия, которые представляют собой две решетки в форме буквы П.Для приготовления мяса стеллажи втыкаются в землю, после чего между ними располагаются угли. Стоит помнить, что из-за небольшой высоты таких продуктов жарить мясо стоя не получится. При этом из-за отсутствия перегородок для барбекю происходят потери тепла.
Но если вы собираетесь в поход, вам стоит взять именно такой мангал. Такие изделия не тяжелые и поэтому не могут вызвать утомление во время похода. Чтобы определиться, какой дизайн будет вам удобнее, нужно рассмотреть различные фото описываемых товаров.Также важно определить оптимальное положение товара.
Мангал металлический неразборный
Перед тем, как создать мангал, нужно заранее подумать, какие материалы и инструменты потребуются для работы, и составить список. Для постройки металлического мангала необходимо иметь:
- фурнитуры и металлический уголок для создания стоек;
- болгарский;
- сверло
- лист стальной, необходимый для создания основной части мангала;
- сварочный аппарат
Некоторые владельцы сайтов обходятся без сварочного аппарата, соединяя металлические элементы болтами.В этом случае стоит заранее подготовить чертеж мангала с размерами. Можно брать готовые схемы. На чертеже должны отображаться высота, длина и другие параметры конструкции. Важно указать расстояние между прорезями перфорации и фаской шампура.
Расстояние между вентиляционными прорезями в барбекю обычно составляет около 7 см. Длину конструкции следует рассчитывать с учетом того, что на мангале должно быть 8 шампуров.
Для создания мангала важно правильно выбрать металлические листы. Эти изделия должны быть толщиной не менее 2 мм. Чем выше этот показатель, тем прочнее будет вся конструкция. Именно поэтому многие выбирают листы толщиной 5 мм.
Размеры барбекю
При создании чертежа важно точно указать размеры каждой детали конструкции. При определении оптимальных параметров стоит ориентироваться на стандартные изделия с высотой 95 см и длиной штанины около 70 см.Глубина мангала в этом случае составит 25 см, чего вполне достаточно для эффективной жарки мяса.
Ширина многих металлических мангалов составляет около 28 см. Длина конструкции должна быть около 54 см. При таких параметрах на мангале можно свободно разместить 9 порций мангала. При создании рисунка следует ориентироваться на количество людей, которые будут отдыхать возле мангала. Если дизайн создается для большой семьи, то размер можно увеличить. Если гриль будет использоваться для приготовления мяса всего на 2-3 человек, можно создать небольшую конструкцию.
Сверху конструкции нужно сделать зазоры для шампуров. Благодаря им можно равномерно распределить мясо по углям. Расстояние между зазорами должно быть около 6 см, при этом оставляя пространство между внешними стенами и зазорами. Если этого не сделать, мясо может коснуться металла и загореться.
Важно помнить, что вся конструкция должна хорошо вентилироваться. Для этого на боковых стенках мангала создаются отверстия. Их диаметр должен быть около 15 мм.Важно сделать их внизу мангала и расположить в шахматном порядке. На торцевых стенках делать отверстия не нужно.
Указав все размеры на чертеже, необходимо его перепроверить во избежание ошибок при соединении частей конструкции.
Изготовление мангала из нескольких листов металла
Чаще всего мангал создают из нескольких листов металла, которые соединяются между собой сваркой.Для работы вам понадобится 2 листа длиной 28 см и шириной 25 см. Также нужно подготовить листы 24х25 см. Кроме того, вам понадобится еще один лист металла (54х28 см), который понадобится для создания дна мангала.
Для ножек мангала можно использовать металлические трубы или уголки. Их длина должна быть равна 70 см. Для создания мангала необходимо заранее подготовить сварочный аппарат, рулетку и дрель. Также следует подготовить пилу по металлу или болгарку.
Металлическая конструкция может быть оснащена ручками для переноски и другими деталями. Например, многие люди устанавливают навес над мангалом. Это позволяет мясу готовиться даже под дождем. Перед проведением работ нужно еще раз произвести замеры и разметить стыки листов. Промежутки под шпажки проделываются с помощью пилы по металлу или болгарки.
Важно! Ножки мангала лучше всего делать из металлических уголков. Это оправдано тем, что арматура ненадежна и конструкция может расшататься под нагрузкой.
Мангал из цельного листа металла
Чтобы упростить процесс постройки мангала, вы можете сделать его из одного стального листа. Для этого достаточно сделать в определенных местах надрезы, затем согнуть части листа и соединить их с помощью сварочного аппарата.
Сборка происходит следующим образом:
- Сначала на листе создаются метки.
- После этого по намеченным линиям вырезается будущая фигура.
- На следующем этапе края загибаются, в результате получается металлический ящик.На этом этапе сложенные части металлического листа соединяются между собой.
- Затем проделывают перфорацию в нижней части конструкции. Их диаметр должен быть около 15 мм.
- После этого на боковых стенках делают фаски.
- На последнем этапе создаются ножки, которые привариваются к полученному металлическому ящику. Лучше всего делать ножки из уголка, так как они более устойчивы, чем изделия из арматуры.
Полученный таким образом мангал будет более прочным, чем собранный из нескольких металлических листов.Чтобы конструкция была более устойчивой, ножки следует закреплять не вертикально, а с небольшим наклоном.
Мангал из бочки или газового баллона
При желании можно сделать мангал из бочки или старого газового баллона. Для этого достаточно разрезать такие изделия вдоль. Для сохранения целостности конструкции концы обрезать не следует.
Ножки для такого мангала тоже можно сделать из металлического уголка. Эти элементы конструкции привариваются к концам ствола.На последнем этапе вырезаются фаски для размещения шампуров.
Особенности изготовления разборного мангала
Разборные жаровни обычно изготавливают для использования в поездках на автомобиле. Также их можно использовать в том случае, когда возле дома есть небольшое свободное пространство, которое не желает занимать громоздкая неразборная конструкция.
Для сборки описываемых изделий не обязательно иметь сварочное оборудование, так как все элементы соединяются болтами.Так же, как и при создании стационарного мангала, сначала нужно сделать чертеж, на котором будут указаны размеры каждой детали. Планировка разборного изделия более сложная, поэтому важно тщательно просчитать и правильно нарисовать каждый элемент.
После подготовки каждого элемента каркаса их соединяют болтами. Для усиления соединений следует использовать шайбы Гровера. На следующем этапе ножки фиксируются на основе. Благодаря использованию болтов конструкцию можно быстро разобрать, если ее нужно переместить.Многие разборные мангалы дополняются коваными элементами. Чтобы конструкцию было удобно носить с собой, стоит закрепить ручки на корпусе.
Как уберечь мангал от коррозии
Создавая любое металлическое изделие, стоит помнить, что его необходимо защищать от коррозии. Часто используются различные краски. Но при выборе такого состава стоит помнить, что он должен быть устойчивым к высоким температурам. Также можно использовать такой метод, как воронение.После обработки на поверхности материала образуется пленка, которая помогает защитить его.
Воронение выполняется следующим образом:
- Сначала металл обезжиривается и очищается;
- После этого материал выдерживают в растворе гидроксида натрия. В этот состав необходимо погрузить металл на полтора часа.
Если вы выбираете краску для защиты мангала, вам необходимо определить наиболее подходящий видовой состав. Часто для барбекю используют серебро — краску, содержащую алюминиевую пудру.
Часто используются термостойкие порошковые краски. Но стоит отметить, что после нанесения такого красителя необходимо обработать конструкцию в сушильном шкафу. Перед покраской мангала нужно удалить с поверхности любые загрязнения, так как их наличие может привести к отслаиванию красящего вещества. Перед тем, как выбрать определенный оттенок, вы можете посмотреть фото, на котором изображены похожие товары.
Чтобы не тратиться на покупку листового металла, можно использовать старый газовый баллон … Такие изделия изготавливаются из достаточно прочного и толстого материала.В этом случае компактный мангал получается из газового баллона. Но перед использованием такие изделия необходимо прогорать, чтобы избавиться от газового конденсата.
Для создания прочной конструкции необходимо соблюдать несколько простых правил:
- Резка металла должна выполняться с максимальной точностью. Допуск может быть не более 0,5 мм.
- Обрабатываемые детали должны быть закреплены на столе зажимами. Если этого не сделать, точно разрезать материал будет довольно сложно.
- Для резки металла стоит использовать большую угловую шлифовальную машину, так как это позволяет сделать более плавный рез.
- Перед проведением работ необходимо обзавестись защитной одеждой, перчатками и очками. Несоблюдение правил безопасности может привести к серьезным травмам.
Заранее составив чертеж будущей конструкции, вы сможете выполнить все работы своими руками и создать надежный мангал.
Мангалы металлические с навесом
Чтобы в любую погоду можно было готовить мясо на мангале, можно сделать мангал с навесом.Важно определиться. Навес создадите отдельно от металлоконструкции или закрепите на решетке?
Первый вариант оптимален, так как позволит комфортно жарить шашлык под дождем. К тому же установка такой конструкции проще. Если выбран второй вариант, следует учесть, что навес создаст дополнительную нагрузку на конструкцию. Именно поэтому перед началом работы важно произвести расчет.
Навес необходимо закрепить металлическими уголками.Это значительно упрощает сборку изделия. Навес Навес должен быть изготовлен из легкого огнеупорного материала. Лучше всего подойдет профнастил. Он выдерживает перепады температур и имеет небольшой вес.
При составлении плана здания следует продумать расположение опор. Если их поставить по углам мангала, они будут мешать барбекю. Если закрепить дополнительные элементы для крепежа, это может привести к перемешиванию центра тяжести всей конструкции.
Если создается навес для готового мангала, важно рассчитать и определить, как дополнительные элементы повлияют на устойчивость. При необходимости добавьте дополнительные ножки. Конструкции с навесами часто дополнительно украшают коваными элементами.
Оригинальные идеи
Перед тем, как сделать мангал, следует рассмотреть несколько оригинальных видов таких изделий. Это поможет сделать мангал не только функциональным, но и красивым по дизайну.
Некоторые владельцы участков создают жаровни из старых металлических бочек. Такие изделия могут быть как с крышкой, так и без нее. При выборе первого варианта вырезанная часть ствола откидывается и оснащается рукояткой. Во время приготовления мяса крышка остается открытой. К краям такого мангала приваривают ножки. Их следует располагать так, чтобы вся конструкция была устойчивой и не могла упасть от сильного ветра.
В некоторых случаях ствол выполнен таким образом, что вся конструкция напоминает паровоз.Для этого достаточно приварить к опорам металлические колеса и добавить металлические листы, похожие на детали локомотива.
Также можно стилизовать мангал под металлический сундук. В этом случае мангал делают шире и снабжают крышкой с ручками. Это добавляет уголки и заклепки. Также такие мангалы часто оснащаются коваными элементами.
Рассмотрев фото с изображением описываемых товаров, вы сможете понять, какой дизайн лучше всего будет смотреться на вашем сайте.Выбор того или иного варианта следует делать только после определения стиля сайта.
Многие дополняют мангалы полками, подставками и колесами, что видно, посмотрев на фото. При желании можно создать мангал в виде машинки, кареты и других подобных конструкций. Такие металлические мангалы способны существенно изменить внешний вид участка.
Сделав красивую металлическую конструкцию, вы можете беспрепятственно приглашать гостей на барбекю.
Ни один праздник, организованный на углях, не обходится без шашлыка или других мясных, рыбных, овощных блюд, приготовленных на дачном угле или при выходе на природу, поэтому в арсенале любого хозяина обычно есть такое удобное приспособление, как мангал. .Главное — правильно представить, как сделать мангал из металла своими руками, иметь для этого необходимые инструменты и материалы, иметь определенные навыки слесаря. В продаже есть много видов этого полезного «полевого» кухонного оборудования, но его вполне можно сделать своими руками.
Первым делом нужно определиться с наиболее удобной моделью, так как мангал может быть стационарным, постоянно стоящим на участке или разборно-передвижным.
Стационарный мангал может быть многофункциональным, так как при его изготовлении, добавив несколько дополнительных элементов, можно получить не только мангал, но и мангал, мангал или даже коптильню.К тому же такой мангал иногда становится настоящим украшением. ландшафтный дизайн участка.
Мобильный гриль хорош по-своему — он компактен и помещается в багажник автомобиля. Этот вариант идеален для тех, кто любит часто путешествовать не только за город, но и на природу. Подобный мангал может быть разборным или разборным.
Инструменты и материалы для изготовления барбекюМангалы бывают разные, но материалы, а также инструменты для их изготовления в принципе не отличаются друг от друга.Единственное, что может отличаться — это количество материала, так как если вы планируете делать стационарный мангал с крышей и дополнительной декоративной конструкцией, то разных элементов и металла понадобится гораздо больше.
Итак, для работы вам потребуется:
— угловой шлифовальный станок — «болгарка» с необходимым количеством отрезных и шлифовальных кругов;
— электродрель с набором сверл необходимых диаметров;
— лобзик с режущими элементами по металлу;
— рулетка квадратная;
— отвертка;
слесарных инструмента — молоток, плоскогубцы, стержень.
Из материалов вам потребуется приобрести:
— металлический лист толщиной 2 ÷ 3 мм, старый газовый баллон или металлический баллон;
— уголок металлический 25х25 или 20х20мм;
— труба-квадрат со сторонами 20 × 20 мм;
— крепеж;
— для некоторых мангалов с крышкой потребуются петли и ручка для открывания;
— для мобильных грилей, которые планируется перемещать по участку, для удобства понадобятся колеса. Их количество будет зависеть от выбранной модели — две, три или четыре.
Как сделать мангал из металла своими руками — несколько вариантов
Есть много видов металлических мангалов, и их делают по-разному, поэтому стоит рассмотреть некоторые из них, чтобы выбрать наиболее подходящий.
Мангал из металлической бочкиБочка — отличный исходный материал для изготовления мангала.
Модель мангала из бочки может быть изготовлена в двух вариантах — с крышкой и без.Первый из них сделан из двух половинок ствола, а второй — из одной.
Какой бы вариант ни был выбран, сначала нужно нарисовать чертеж будущего мангала.
На рисунке должны быть хорошо видны и понятны все детали и их размеры. Один вариант рисунка представлен в качестве примера, но в него вполне можно внести изменения. Составленный план станет самым главным помощником в производственном процессе.
Второй момент в работе над мангалом — это подготовка всех элементов, из которых он будет собираться.
- Прочитать этот процесс нужно, конечно, с основного элемента — бочки … Его нужно разрезать, и это можно сделать двумя способами:
— Пополам, по высоте емкости — этот способ подходит как для первого, так и для второго варианта мангала.
— Другой способ, когда вырезается только верхушка ствола. Впоследствии вырезанный элемент станет крышкой для мангала.
Края обрезанной емкости необходимо очистить, освободив их от металлических заусенцев.
- Подготовив ствол, можно ориентироваться, уголки какого размера понадобятся для обрамления проема. Поэтому следующим шагом будет обрезка уголков и труб, которые впоследствии станут ножками и подставками для мангала.
- Далее все крепежи подготовлены — лучше всего приобретать их с небольшим запасом.
Мангал для приготовления
1. Жаровню из половинки бочки сделать проще, чем с крышкой, закрепленной на ее задней стенке.Чтобы было легче работать с верхней частью ствола, лучше всего начинать с ножек и стоек. Их делают из квадратных или круглых труб.
- Если нет возможности согнуть трубу полукругом, под размер ствола, то, правильно рассчитав, можно сварить уголок из двух труб, а затем приварить две приваренные к нему трубы в виде тройника. фасонная конструкция. Таких ножек с подставками должно быть две. Они свариваются между собой одной или двумя перемычками, а при желании могут скрепляться своеобразной корзиной или сеткой, на которых можно хранить дрова.
- Далее половина ствола ставится на стойки и сваривается. Все места сварки и швы лучше сразу зачистить, чтобы не возвращаться к нижним частям мангала.
- Тогда можно смело работать над половиной ствола. Сначала на его края приваривается уголок — он сразу придаст изделию аккуратность. К тому же на такую полочку будет удобно поставить шампуры.
Если планировалось использовать мангал еще и в качестве решетки, то стойки для него можно закрепить, как показано на схеме, к подставке для емкости или к бокам самого полувалла и к углам. по краям.
Если из второй части бочки решено сделать крышку, ее тоже ошпаривают уголком. Затем к половинкам приваривают петли — и крышка готова. Чтобы крышкой было удобно пользоваться, к ней нужно прикрепить ручку и металлический держатель с подвижным креплением. Устанавливается с одной или двух сторон мангала.
- Чтобы мангал служил еще и для шашлыка, можно сверху на половину рулона положить сетку. Для нее в края ствола ввинчиваются специальные опорные элементы.
- Для обеспечения хорошего сцепления с мангалом в стенках нижнего полурука просверливаются круглые отверстия.
2. Во втором случае ствол не разрезают пополам, а вырезают из него заранее размеченную деталь, имеющую в плане форму прямоугольника.
В этой модели продукты, готовящиеся на огне, будут защищены от ветра задней частью бочки. На фото хорошо видно, как устанавливаются мангалы.
- Если выбран этот вариант, не нужно ошпаривать края ствола — они должны быть только очень хорошо очищены и закруглены.
- Остальные работы выполняются в той же последовательности, что и в первом случае, а петли прикручиваются или привариваются к верху мангала и крышке. В этой модели держатель для крышки не нужен — откидной, он будет опираться на верхнюю часть мангала.
Стоит отметить, что к этому мангалу можно добавить функцию. Для этого закрепите в боковом дымоходе … В любой бочке всегда есть горловина со стопором, которую можно использовать для установки трубы. Но об этом нужно подумать заранее, прежде чем начинать резать бочку, так как отверстие должно располагаться в верхней части мангала.
При необходимости для удобства со стороны бочки как в первом, так и во втором варианте можно расположить полки-столики. Для этого к стволу привариваются металлические кронштейны, на которые впоследствии закрепляется деревянное или металлическое покрытие.
Мангалы изготавливаются аналогично из газовых или кислородных баллонов. Но нужно учитывать, что они будут более узкими и рассчитаны на короткие шампуры.
Как уже было сказано выше, к любому из описанных мангалов можно прикрепить колеса для удобства передвижения по площадке.Но описанные варианты мобильны только в пределах территории дачного участка — перевозить на дальние расстояния крайне неудобно.
Бочка или цилиндр — отличный материал для изготовления мангала. Всегда есть место для фантазии — достаточно взглянуть, например, на варианты, представленные на видео:
Видео: что можно сделать из металлической бочки или газового баллона
Мангал разборныйМастер-класс читайте в нашей новой статье.
Разборно-раскладной мангал не будет лишним ни в одном доме, ни даже в квартире.Он компактен, поэтому не занимает много места, так как легко помещается на полке в кладовой или антресоли. Такой мангал можно использовать не только при выезде за город, но и во дворе многоэтажного дома, конечно, с соблюдением всех правил пожарной безопасности.
При планировании работы следует исходить из того, что в сложенном виде мангал выглядит как тонкий чемодан, в котором будут находиться все принадлежности для жарки мяса. Так, например, шампуры походные имеют длину не более 600 мм, а это значит, что длина мангала может составлять всего 630 ÷ 650 мм, а ширина в разложенном состоянии — 400 ÷ 450 мм.
Представленный на фото мангал не так уж и сложно сделать своими руками. Для его изготовления вам понадобится:
— стальной лист толщиной 2 ÷ 3 мм — из него будут выполнены большие стенки мангала и установленные треугольные боковые элементы;
— уголки стальные 10х10 мм — обожгут основные плоскости. Кроме того, такие уголки закрепляются во внутренней части стен мангала и служат опорами для решетки из стальной проволоки;
— петли для крепления и складывания двух половинок мангала;
— с боков фиксируются откидные ножки, которые при разборке мангала укладываются точно по высоте его стенок;
— пруток стальной Ø 7 ÷ 8 мм — необходим для устройства ручки на половинки мангала;
— готовая стальная сетка или проволока для ее изготовления.
Производственный процесс
- Лучше всего сначала сделать чертеж и нанести на него все размеры, чтобы потом не пришлось переделывать работу из-за малейшей неточности.
- Далее нужно нарисовать по металлу, а затем вырезать из него все необходимые детали:
— Две основные стенки мангала размером 400 × 630 мм или 450 × 650 мм.
— Квадрат 400 × 400 мм или 450 × 450 мм. Затем его разрезают по диагонали и получаются два равносторонних треугольника, которые будут жестко удерживать всю конструкцию.
— Вырезать из уголка заготовки, нужно 4 штуки. 630 ÷ 650 мм и 4 шт. 400 ÷ 450 мм для обрамления стен мангала и опор для мангала.
- Далее нужно сделать два элемента на подвижных креплениях типа мебели — это будут складные ножки мангала. Для этого из толстого металла вырезаются четыре полосы шириной 10 мм, либо используются уголки. Их длина может составлять от 400 до 600 мм, но чем выше будут ножки, тем неустойчивее будет конструкция.
Когда все элементы готовы, можно приступать к сборке мангала. Чтобы быть неотличимым от заводского, нужно провести работу очень аккуратно.
- Первое, что нужно сделать, это отделать переднюю и заднюю стенки мангала, тщательно очистив и ошпарив их с трех сторон уголком.
- Далее, обозначив расположение сетки в мангале, приварите или прикрутите под нее уголки-стойки.
- Следующий шаг — разметить и приварить петли к стенам, с их длинной стороны, не ошпаривая уголком.
- Затем по бокам собранной конструкции закрепляют откидные ножки так, чтобы их можно было раздвинуть на определенную ширину и легко сложить при сборке мангала. Угол открытого мангала должен составлять 45 градусов, чтобы подготовить металлические треугольники — боковые стенки — легко вставляются по бокам.
- В верхней части полотен просверливают два отверстия, в них устанавливают и вваривают ручки, гнутые из стального прутка. При желании можно установить крючок, чтобы мангал не открывался при сборке.
В заключение можно собрать всю конструкцию полностью, на ее дно уложить металлическую сетку и попробовать приготовить шашлык.
Дополнительно при желании делается насадка, которая поможет приготовить шашлык. В этом случае гриль станет многофункциональным. Для этого элемента вам нужно будет вырезать и сварить пять элементов вместе. Это боковые части-насадки, имеющие в нижней части угол 45 градусов — они будут установлены вместо боковых треугольников, двух длинных лицевых листов и установленной сверху решетки.Также можно сделать эту деталь разборной — вырезать в боковых частях полотна большие отверстия и приварить к боковым частям узкие полотна специальные крючки, которые должны легко входить в них.
Еще один интересный вариант мангала представлен в предлагаемом видео:
Видео: вариант самодельного разборного мангала
Цены на мангалы разные
Стационарный мангал из листового металлаЕсли вы планируете использовать гриль только на даче, не перевозя его с места на место, то можно, не усложняя задачу, остановиться на самом простом варианте, который может только «разгуливать» по площадке и устанавливаться на ровная твердая поверхность.
Перед тем, как приступить к работе, конечно же, нужно сделать чертеж — составить его самому очень легко, так как в этом варианте нет сложных элементов. Приобретя все необходимое, вырежьте заготовки, опираясь на размеры, указанные на чертеже.
В качестве примера рассмотрите готовый рисунок и на его основе сделайте свой собственный, добавив к нему элементы, которые сделают его более удобным в использовании.
- Используется металлический лист толщиной 2 ÷ 3 мм, стальной уголок 10 × 10 или 15 × 15 мм, который понадобится для изготовления ножек и каркаса для мангала.Если планируется расположить полочки с одной или двух сторон мангала, то для их изготовления потребуется еще и уголок.
- Детали мангала обозначены на металлическом листе. Если металл имеет небольшую толщину (около 2 мм), то его можно гнуть, избавив себя от лишних работ по сварке швов, соединяющих стены и дно мангала. В этом случае, сделав разметку, из четырехугольника листа вырезаются четыре — и получается форма креста.
- Средняя часть — это дно мангала, а остальные четыре — боковые стенки. Их необходимо загнуть под прямым углом к низу.
Стенки загибаем перпендикулярно низу …
- Следующий этап — перемыкание стен по вертикальным углам.
… а потом сварили в вертикальных углах
Видео: мангал из металлического листа
своими рукамиИмея необходимые инструменты и опыт работы с ними, вы можете смело за один двое суток сделать мангал, тем самым сэкономив немалую сумму из семейного бюджета.Сделав работу качественно и аккуратно, вы можете быть уверены, что полученное изделие не будет отличаться от заводских моделей и надежно прослужит долгие годы.
ТОП-9 лучших мангалов для дачи
| Фото | Имя | Рейтинг | Цена | |||
|---|---|---|---|---|---|---|
| Лучшие стальные мангалы | ||||||
| # 1 | | ⭐ 100/100 | ||||
| # 2 | | ⭐ 99/100 | ||||
| # 3 | | ⭐ 98/100 | ||||
| # 4 | | Балезинский ЛМЗ | ⭐ 97/100 | |||
| Лучшие комбинированные мангалы | ||||||
| # 1 | | Doorz Дачный мангал с плиткой TIR | ⭐ 99/100 | |||
| # 2 | | Doorz Мангал с казаном МСК 2 мм | ⭐ 98/100 | |||
| # 3 | | MOUSSON VULCAN MAX | ⭐ 97/100 | |||
| # 4 | | Грильвер Firecraft Comfort Air | ⭐ 96/100 1 — голос | |||
| # 5 | | Мангал Doorz с крышей сборно-разборной MKR | ⭐ 93/100 | |||
Отличная модель для дачи, которая начала продаваться в 2017 году и пользуется спросом по сей день.Стенки сделаны из стали толщиной 4 мм, внизу есть перфорация для увеличения тепла. Ножки немного декорированы, поэтому изделие не только станет функциональным, но и дополнит внешний вид двора. Для более удобной переноски с двух сторон установлены ручки.
- На поверхность ящика можно положить одновременно 9 шампуров, что подходит для большой компании;
- ножки большие, квадратной формы, поэтому можно поставить решетку даже на землю и перекоса не будет;
- вся конструкция жесткая и прочная, так как внизу есть перемычки; Жаропрочная сталь
- толщиной 4 мм не меняется даже при длительном горении;
- ширина верхней части 37 см, поэтому она подходит для длинных шампуров;
- для всех деталей используется профильная труба 15х15 мм;
- корпус окрашен порошковой краской;
- Товар разобран, что облегчает транспортировку товара в автомобиле;
- после приготовления на гриле или гриле все легко очистить.
- небольшая высота в 81 см, поэтому при готовке нужно немного наклониться;
- общий вес не самый маленький, аж 24 кг; №
- для доп. Оборудования крючки не предусмотрены;
- боковые ручки сделаны из металлических полос, а при переносе они режут и сжимают руки.
Изделие высокого качества, прочное и простое в использовании, обслуживании. Конструкция быстро разбирается и собирается. Конструкция изготовлена из нержавеющей стали, толщина стенок 3 мм, поэтому устройство не деформируется.Есть ребра жесткости для увеличения прочности. Размеры в сумке 49x31x48 см, а вес всего 10 кг. Сумка изготовлена из прочного синтетического материала, подходит для ношения в багажнике или переноски в руке. Изделие имеет оптимальную высоту в собранном виде, что позволит комфортно готовить, глубина достаточная, исключает пригорание. Кроме того, производитель предоставляет гарантию на 1 год.
- портативность;
- простота сборки и разборки;
- малый вес и размер;
- устойчивость; Нержавеющая сталь толщиной
- ;
- подходит для угля и дров;
- есть достаточная гарантия от производителя.
- недостатков не выявлено.
Неплохой вариант для дачи, если нужно постоянно забирать оттуда мангал. Это связано с его небольшим весом и удобной трансформацией, что позволяет перевозить продукт даже в автобусе или поезде. Мангал полностью разборный, а ножки — основные составляющие для крепления стенок и дна. Общий вес всего 2,3 кг, длина 50 см, на 6 шампуров.
- полностью разборная модель, удобна для транспортировки в сумке;
- подходит для работы с углями и дровами; №
- вдоль стен имеются перфорационные отверстия для улучшения сжигания угля;
- наличие специальных вырезов для лучшей фиксации шампуров; Минимальный вес и габариты
- .На сборку уйдет 3 минуты.
- не поставляется с сумкой для переноски;
- ширина всего 30 см, поэтому используются только короткие шпажки;
- низкая конструкция, всего 50 см;
- , чтобы исключить проседание, нужно использовать накладки на тонкие ножки; Сталь
- толщиной 0,8 мм, поэтому возможна деформация; №
- : если решетка попадает под дождь, быстро начинает появляться ржавчина.
Балезинский ЛМЗ
Балезинский ЛМЗ — одна из лучших моделей чугунных мангалов для дачи, которая прослужит 30 и более лет.Его стенки и ножки изготовлены из толстого чугуна и стали, поэтому конструкция не подвержена коррозии и другим внешним факторам. Есть 10 отверстий для надежной установки шампуров. боковые части с узорами для декора.
№- в углах есть специальные отверстия, которые используются для лопаты, кочерги и другого дополнительного оборудования;
- мангал разборного типа, поэтому его можно без проблем перевозить в багажном отделении автомобиля;
- общая ширина 35 см, что подходит для длинных шампуров; №
- имеются большие перфорации для улучшения обдува;
- стены высокие, на концах есть кронштейны для косы.
Барбекю на даче — отличительная черта приятного отдыха за городом с барбекю в хорошей компании. Возможно, поэтому большинство дачников с удовольствием устанавливают на дачном участке мангал или мангал.
Да, можно просто купить готовый мангал на дачу, но в планах построить такой мангал своими руками есть что-то привлекательное. Шашлык на даче — это не только место сбора всей семьи и интересный элемент загородного дизайна,
, но еще и очень эффективная вещь, когда нужно накормить много людей, например, на праздник; так как размер поверхности любительского мангала обычно намного больше стандартного покупного.К тому же мангал, сделанный вручную, более прочен, менее прихотлив в эксплуатации и имеет более «индивидуальный» вид, чем покупной.
Задачу изготовления мангала своими руками может решить пара умелых мастеров за выходные. В устройстве дачного мангала нет ничего сложного, вы сами можете убедиться в этом на чертеже.
Простое устройство для барбекю.
Печь: Внутренняя стена мангала может быть облицована огнеупорным кирпичом.Лучше немного сдвинуть стену вперед, чтобы облегчить доступ к решетке гриля.
Решетка для гриля : Выберите чугун или нержавеющую сталь … Устанавливается на угловые выступы.
Фундамент: бетонная площадка (8-10 см) на подушке из утрамбованного щебня (8-10 см) обеспечивает устойчивость конструкции решетки.
Кирпичные стены: Они образуют закрытый каркас решетки, снижая расход древесины на 65% и защищая от горячих искр.
Зольник: лист металла для топлива.Поместить на 20-35 см ниже решетки гриля.
Гриль своими руками или купить?
Если у вас есть навыки кладки кирпича, у вас нет проблем со спиной и есть пара друзей, готовых вам помочь, то на выходных вы можете сделать мангал самостоятельно.
Где разместить мангал на даче?
Определите преобладающее направление ветра и установите решетку так, чтобы дым не попадал в дом или зону отдыха.
Из чего сделать мангал?
Фундаментные блоки бетонные — самый дешевый строительный материал для мангала.Внутри топки ее можно обложить огнеупорным кирпичом для большего удержания тепла. Снаружи мангал можно обложить натуральным камнем.
Натуральный камень — натуральный камень хорошо сохраняет тепло. Запланируйте достаточно времени, чтобы выбрать и подогнать камень. К тому же хорошо иметь в запасе какой-то излишек камня, ведь сложно спрогнозировать точный расход материала на строительство мангала из натурального камня.
Красный керамический кирпич — чуть ли не лучший выбор для строительства мангала.Внешне привлекательна, хорошо сохраняет тепло, не боится взаимодействия с открытым огнем. Для мангала из кирпича потребуется чуть больше навыков в кладке, чем для мангала из бетонных блоков.
Как нагреть гриль?Используйте поленья из сухофруктов, которые придадут незабываемый аромат всем блюдам, приготовленным на гриле. В конструкции барбекю предусмотрите место, куда вы можете заранее положить подходящие поленья, полученные при обрезке фруктовых деревьев.
Инструменты для барбекю. Щипцы — чем длиннее, тем лучше для вашей безопасности.
Щетка из металла для очистки решетки гриля.
Перчатки барбекю, выдерживающие высокие температуры.
Дополнительные мангалы.
Мангал с вертелом , который даст возможность равномерно прожарить большой кусок мяса.
Мангал с дымоходом — позволит собирать и выводить дым вверх от летней кухни или беседки, рядом с которой установлен мангал.
Камин с мангалом — хотите построить на даче что-то грандиозное? Строим камин для двора или дачи, в стены которого втапливаем уголки для поддержки мангала.
Решетка для гриля должна быть горячей. Разогрейте в течение 15 минут, прежде чем выложить мясо на решетку.
Установите различные температурные зоны для решетки гриля, отодвинув часть углей в сторону. Жарьте мясо на более теплой стороне, овощи или рыбу на более прохладной стороне.
Не переворачивайте продукты на решетке каждую минуту, чтобы мясо прожарилось, достаточно один раз перевернуть, обжаривая 5-6 минут с одной стороны.
Добавьте ароматизатор. Какие бы дрова вы ни использовали для гриля, вы всегда можете улучшить аромат блюд, которые готовите, замочив пару веток фруктовых деревьев в воде на несколько минут, а затем положив их на раскаленные угли.
Дай отдохнуть. Дать приготовленному мясу остыть на пару минут, чтобы по нему лучше распределился сок.
Правильный уголь для гриля — красный с легким оттенком серого пепла.
Барбекю и охрана.
Пищевое отравление. Вымойте руки, купите мясо в безопасных местах. Это лучший совет, чтобы избежать пищевого отравления во время пикника за городом.
Обугленное мясо. Любите хорошо прожаренное мясо? Не доводите шашлык до черного! Обугленные частицы пищи удваивают риск рака. Чтоб можно было поднять тост за здоровье и мясо с легкой краснотой внутри.
Отравление угарным газом. Все хорошо на своих местах. Если вы готовите на гриле в плохую погоду и у вас возникает безумная мысль «почему бы мне не сделать это в гараже», прогоните это неприятной метлой. Концентрация окиси углерода в помещении может быть для вас резкой.
Пожар. Минимум 3 м от зданий, деревянных заборов, сараев и т. Д. Позволит избежать колоссальных повреждений от пожара и серьезных травм.
Тепловой удар. «Здесь так жарко, что мне хватит удара.«Возможно, это не просто шутка. Перегрев может вызвать тяжелое обострение болезни у людей с сердечно-сосудистыми заболеваниями.
Повседневная одежда. При использовании гриля не носите свободную одежду с свисающими рукавами или полками. Попавшая в него искра может произвести совсем другой фейерверк, чем вы планировали.
Фритюр. Работу с фритюром лучше доверить профессиональным поварам. Разбрызгивание частиц жира, открытый огонь — лучше себя не переоценивать, мы достаточно сообразительны, чтобы понять, что «игра свеч не стоит».
Осторожно, оса. Укусы осы чрезвычайно болезненны и очень опасны для людей с аллергическими реакциями. Поэтому лучше иметь в аптечке противоаллергенные препараты, а также носить рубашку с длинным рукавом.
Уголь и пожарная безопасность. Подождите 48 часов, прежде чем выбросить золу из гриля.
Как ухаживать за мангалом?
Для очистки гриля используйте стальную щетку, чтобы на нем не скапливались остатки пищи и пепел.Остывший гриль сбрызните подсолнечным маслом, чтобы на нем не образовалась ржавчина. Удаляйте золу после каждого использования гриля, чтобы не накапливать запахи для следующего приготовления.
Сделаете ли вы мангал самостоятельно или купите готовый, он принесет вам много приятных минут, когда с шашлыком в руке, любуясь открытым огнем в приятной компании, вы получите такую необходимую передышку от напряженного повседневного ритм.
Теги :,Многие не представляют полноценный отдых на природе без ароматного мангала.Мастера могут сделать мангал из кирпича своими руками. Это обязательно для сеанса за пределами площадки.
Выйдя на природу, можно построить компактную конструкцию из подручных материалов. Беседка, оборудованная мангалом, больше подходит для дачи.
С чего начать строительство?
Подумайте, где вы хотите построить мангал. Лучше выбрать для этого зону отдыха.
Необходимо соблюдать осторожность, чтобы обеспечить защиту от элементов.Самодельный очаг можно установить на дачном участке, под навесом или на частично открытой веранде.
Мастера часто решают сложную задачу изготовления мангала в виде многофункциональной печи.
Показатели средних размеров: ширина — 1,6 м; высота — 1,6 м; глубина — 0,8 м. Для многофункциональной духовки требуется сделать цоколь, примером которого является ленточный фундамент.
Мастер обычно дополняет сложный дизайн различными функциональными надстройками:
- Ниши.В них удобно хранить шампуры и другую посуду.
- насечки. В них кладут дрова, чтобы они высыхали у очага.
- Мойка. Устанавливается при наличии реальной возможности подвести коммуникации. В нем удобно мыть руки или посуду.
Стол со скамейками стоит у очага. Хозяин волен выбирать мебель из бюджетных или дорогих вариантов в зависимости от своих финансовых возможностей и вкусовых предпочтений.
Чертежи мангала помогут грамотно создать проект. Ведь нужно учитывать не только техническую сторону вопроса, но и эстетическую составляющую.
Если посмотреть фото мангала, то он должен быть центральным элементом композиции. В этом случае важно, чтобы все окружающие предметы были объединены.
Мангал из кирпича
Проект предполагает возведение прочного фундамента.Он сделан из песка, гравия, цемента и огнеупорного кирпича. Помимо строительных инструментов, мастеру понадобится дрель со специальной насадкой или бетономешалка для приготовления раствора.
Необходимо подготовить арматурные стержни с арматурной сеткой, а также металлические уголки с метизами. Мастер заранее подготавливает материал для создания обрешетки.
Поэтапное строительство
Обрисовывают строительную площадку и проводят разметку.После этого создается котлован шириной 0,6 м и длиной 1,6 м.
Сняты на глубину 0,6 м верхнего слоя почвы.
Сделайте подушку из песка. Его толщина не должна быть меньше 10 см. Подушка необходимо тщательно утрамбовать. По периметру котлована ставится опалубка.
Следующий этап — вязание арматуры. Металлические стержни соединяются между собой в виде решетки и опускаются на дно ямы.
Примечание!
Приготовление цементного раствора и заливка его в опалубку.Его нужно проткнуть металлическим стержнем, чтобы внутри не оставалось воздуха.
Марки 150 и 200 подходят для приготовления цементной смеси. В раствор также добавляется щебень с песком. Пропорциональное соотношение цемента, песка и щебня — 1: 3: 5. Для раствора также понадобится вода — 1 или 2 ведра, в зависимости от того, насколько влажный песок.
Уплотненный раствор разглаживается и разравнивается. Под кирпичи нужно сделать ровное основание.
Для гидроизоляции применяют рубероид и специальные мастики.
После затвердевания фундамента можно приступать к укладке.
Нюансы, которые должен знать мастер
Обжиговые кирпичи обладают отличной огнестойкостью, но на морозе они могут стать хрупкими. Поэтому беседка с мангалом из кирпича — лучший вариант.
Примечание!
Перед началом строительных работ материал замачивают в воде.Кирпичи способны впитывать жидкость, что может отрицательно сказаться на эксплуатационных характеристиках раствора.
Сама смесь готовится из других компонентов и отличается по консистенции. Изготавливается из цемента, песка и гашеной извести в соотношении 1: 3: 1.
Укладка начинается с углов. Длина задней стены — 3 кирпича, а стороны — 2,5 кирпича. Ширина должна быть не менее 1,5 кирпича. В процессе кладки мастер аккуратно стучит молотком по поверхности кирпича, чтобы он плотно прилегал к соседнему.
Металлоконструкция
Мангал из металла изготовит тот мастер, который умеет обращаться со сварочным аппаратом … Мастеру понадобится листовой металл, металлические уголки или детали арматуры, поддон с решеткой таких же размеров и маркер с рулетка.
Конструкция глубокого мангала с опорами. При желании хозяин может снабдить мангал коптильней, тогда у домочадцев всегда будет возможность насладиться натуральными копчеными лакомствами.
Примечание!
Опытные мастера могут попробовать свои силы в приготовлении домашнего шашлыка. Из двух соединенных цилиндров создают мангал-коптильню. Мастеру понадобится умение работать болгаркой и дрелью.
Дымоход изготовлен из трубы, а стойки, ручки и ножки — из металла. Вам нужно подготовить петли, гайки с болтами, специальную эмаль и фитиль. Мангал из воздушного шара можно украсить на ваше усмотрение.
Главное в этом бизнесе — творческий подход.
Фото мангала своими руками
Как самому сделать мангал из железа. Как сделать мангал из металла своими руками. Изготовление стационарных моделей
В статье представлена информация о том, как делается разборный мангал.Какие у него габариты, какие материалы для этого используются. Требуется ли чертеж для изготовления. Если «да», то на что нужно обратить внимание, какие параметры важны с учетом удобства использования мангала. Изготовление мангала рассматривается поэтапно.
Размеры гриля
Имея дело с габаритами мангала из железа по чертежам, представленным в Интернете, можно сказать только одно, среди них есть только один стандартный параметр — высота сторон.Он колеблется в пределах 13-15 см. Меньше делать не стоит — шашлык пригорит, выше высота — углей придется приготовить больше, а это затраты и время.
Все остальные размеры по усмотрению заказчика:
ширина подбирается в зависимости от длины используемых шампуров;
длина зависит от количества необходимого шашлыка в условиях одновременного обжаривания, например, если оставить зазор 5 см между шампурами плюс ширина самого мяса, то получится в пределах 8-10 см, если нужно обжарить 10 палочек, тогда длина будет в пределах 1 м;
высота зависит от того, как готовить на мангале: стоя или на корточках, в первом случае это 70-80 см, во втором 20-30 см;
что касается толщины листового металла, то для разборной конструкции подойдет размер 2 мм, а вот для днища лучше использовать металл 3 мм.
Размеры высокого мангала с крышкой
Технология изготовления разборного мангала
Прежде всего, на бумаге набрасывается чертеж мангала с обозначением на нем размеров. В чисто конструктивном отношении это устройство представляет собой параллелепипед. То есть все противоположные парные стены равны между собой. Единственная плоскость, которая присутствует в мангале в едином виде, — это дно.
К разработке чертежей мангалов нужно подходить основательно.Потому что это основа будущего дизайна. Именно на нем отображаются пропорции мангала. И хотя для портативной разборной версии это маловажно, но в дизайне должна быть определенная эстетическая сторона.
Полное описание конструкции см. На рисунке ниже. Вот так мастера зарисовывают его на бумаге. Основная задача — показать размеры каждой детали, ведь изготавливаются они индивидуально. А точные размеры помогут без корректировок собрать детали в единое целое.
Чертеж мангала и его деталей
Если чертеж мангала из металла с размерами готов, мастер приступает непосредственно к изготовлению мангала.
Материалы
Как упоминалось выше, в качестве материала требуется стальной лист толщиной 2 и 3 мм. В качестве ножек можно использовать арматуру диаметром 10 мм. Для соединения деталей мангала понадобится восемь болтов М6 или 8.
Разметка
По чертежу все размеры деталей мангала перенесены на лист железа.Как уже было сказано, боковых стенок будет две, торцевые стенки тоже, одна часть днища. Парные стены такие же.
Нельзя разбрасывать отметки по всему листу. Многие размеры деталей одинаковы, поэтому края двух деталей будут обозначены одной линией. Таким образом, вы можете сэкономить деньги за счет сокращения отходов.
Вы можете найти на рынке листовой металл. Если правильно составить (правильно сделать разметку деталей) разметку, то можно приобрести не весь лист, а обрезанный.Стоит в несколько раз дешевле.
Теперь важный момент … Соединение частей мангала производится на болтах (как один из вариантов), поэтому для точек стыковки делаются борта, которые загнуты внутрь от основной плоскости стен на 90 °. При этом на боковых стенках загиб производится по трем концам с присоединением к торцевым стенкам и днищу, на торцевых стенках только с этой стороны — к днищу. Ширина штанины:
Этот параметр необходимо добавить к размерам деталей.Например, если длина мангала 50 см, то длина боковых стенок 52 см, потому что к нему с двух сторон добавлен изгиб по 1 см.
Резка, подгибка, сверление
Следующий этап — нарезка всех частей мангала точно по линиям разметки. Обычно это делается болгаркой с алмазным отрезным кругом. Можно использовать другие инструменты: плазменный резак, лобзик с лезвием по металлу. Резку следует проводить точно по разметке. Все нужно делать аккуратно.
В конечном итоге должно быть пять частей: боковые стенки — 2 штуки, торцевые стенки — 2, одно дно.
Следующая операция — сгибание участков, на которых соединяются части мангала. На вырезанных частях мангала наносятся выемки для загибов. Снова используются линейка и маркер. На боковых стенках будет три линии: две параллельные (для соединения с торцевыми стенками), одна перпендикулярная им (для соединения с низом). На торцевых стенах одна линия.Он должен соответствовать нижней строке.
По проведенным линиям делают неглубокий пропил, не сквозной, а с небольшим вдавлением до 0,5 мм. Это сделано для того, чтобы складки легче и ровнее загибались. Обратите внимание на боковые стенки, на которых перпендикулярные прорези образуют квадраты по двум углам. Они полностью отрезаны.
Изгибы теперь выполняются молотком. Заготовку укладывают на край стола, лучше, если он будет обрезан стальным уголком, а при легких ударах край загиба загибают по линии подреза.Угол изгиба — 90 °.
Следующий этап — формирование стыков. Для этого в изгибах боковых стенок делается маркер с отступом от верхнего и нижнего краев внутрь на 3 см. В них просверливаются сквозные отверстия.
Сразу стоит отметить, что дно мангала не крепится к стенам. Он просто неплотно лежит внутри коробки боковых и торцевых частей, упираясь в изгибы с четырех сторон.
Осталось только просверлить отверстия во всех частях мангала.Они устроены так, чтобы свежий воздух, насыщенный кислородом, проникал в зону горения угля. Без воздуха угли не смогут отдавать максимальное количество тепла; от этого шашлык будет готовиться долго.
В принципе, самодельный мангал готов. Осталось собрать и прикрутить.
Простая конструкция барбекю, готовая к использованию
Изготовление ножек
Здесь много вариантов. Часто их делают из листового железа толщиной 3 мм, гнутого на букву «Z».Для этого достаточно проделать отверстия для болтов в нижней части мангала и в каждой ножке.
Более усиленная конструкция изготавливается из фитингов или трубок малого диаметра. Главное выбрать способ соединения ножек с мангалом (разборный). Самый простой — приварить к ножке болт, проделать для него отверстие внизу. Снизу ножка вставляется в мангал болтом и сверху стягивается гайкой.
Есть еще вариант — их приваривают к нижним краям торца или боковых стенок мангала в местах установки ножек трубки диаметром чуть больше диаметра арматуры.Длина трубок 3-4 см. То есть ножки при сборке мангала просто вставят в трубки. К дну приваривать нельзя, потому что этот элемент не крепится к конструкции мангала. В этом варианте есть один момент — к лапам привариваются упоры в виде шайб или перпендикулярных поперечных стержней, выполненных, например, из катанки диаметром 6 мм. Хотя здесь есть много вариантов.
Ножки для барбекю из гладкой арматуры
Мангал разборный можно дополнить различными удобными приспособлениями.Например, ручки для подъема всей конструкции в виде колец, электросварных или прикрученных к торцевым стенкам. Можно обойтись без ручек, сделав прорези для пальцев. Сегодня популярны мангалы-барбекю, то есть оснащенные крышкой и сеткой, на которую кладут мясо, птицу или рыбу.
Описание видео
На видео показан складной мангал-книжка:
На нашем сайте вы можете найти контакты строительных компаний, которые предлагают услуги по установке печей и каминов, а также различных металлоконструкций под ключ.Пообщаться напрямую с представителями можно, посетив выставку домов «Малоэтажная страна».
Заключение
В качестве примера был рассмотрен один вид разборного мангала: его чертежи с размерами, технологией изготовления и сборки. Основная задача подрядчика — выбрать правильные размеры конструкции и согласовать их с заказчиком. Если у вас есть какие-то особые требования, то желательно обсудить их с мастером — от этого зависит удобство дальнейшего использования мангала и качество приготовления.
29.08.2014 113
Содержимое
Дача — для некоторых это слово ассоциируется с работой в саду или уходом за деревьями, для кого-то с чистым воздухом, а для подавляющего большинства — с барбекю. Трудно представить себе лучший отдых, чем посещение дачи большой шумной компанией и посиделка на шашлыке с шашлыком. Именно мангал мы хотим посвятить этому материалу, ведь жарить мясо на кирпичах или палочках не очень гигиенично и полезно.В целом мы считаем, что дача без мангала, как и жизнь современного подростка без интернета, кажется реальной, но эффект совсем не тот.
Типы мангалов
Всего существует три основных типа дачных мангалов: мобильные, переносные и стационарные. Рассмотрим каждый из них подробнее:
Передвижной мангал, или как его еще называют складной, лучше всего подойдет тем, кто любит путешествовать и хочет использовать мангал не только на даче, но и брать с собой в другие поездки.
Основными преимуществами складного мангала являются его мобильность и небольшой вес, а также очень привлекательная цена. В сложенном виде он напоминает чемоданчик, который можно смело бросить в машину или даже взять с собой на велосипеде. Но чем меньше его вес, тем тоньше материал, а из этого вытекают недостатки: малая теплоемкость и способность выгорать. Поэтому покупая передвижной мангал, следует быть готовым к его довольно быстрому износу.
Самый популярный и распространенный — переносной гриль.
Этот вид мангала уже более прочный и надежный. При необходимости два человека (желательно мужчины) легко могут перенести его с одного места на другое, например, ближе к солнцу или подальше от дождя. Переносной гриль дороже складного, но в то же время он более долговечен, его жизненный цикл измеряется не временем, а временем года. Единственный недостаток — не очень изысканный внешний вид … Часто люди хотят сделать по-настоящему изысканную площадку для барбекю на даче, лучше всего в этом поможет стационарный мангал.
Для изготовления стационарного мангала на даче используется кирпич или чугун.
Этот вид мангала представляет собой уже целую конструкцию, неотъемлемой частью которой является дымоход. Сразу отметим, что чугунный или кирпичный стационарный мангал будет стоить намного дороже, чем мобильный или переносной, что является основным недостатком. Он также намного больше по размеру, но этот недостаток при грамотном дизайнерском подходе часто превращается в преимущество. Также «плюсом» стационарного мангала является значительная теплоемкость, разогревая его, можно очень долго жарить все, что угодно, и не беспокоиться о том, что тепла не хватит и мясо будет сырым.
Отдельно стоит обратить внимание на такой бурно развивающийся вид мангалов, как мангал электрический. В нем шампуры вращаются сами по себе, а мясо обжаривается за счет тепла, которое выделяется от электрических спиралей.
Конечно, очень интересное изобретение, но поскольку человека часто привлекает сам процесс приготовления шашлыка, в нашей стране электромангал еще не прижился.
Мангал для дачи своими руками
В последнее время среди дачников-мужчин появилась тенденция делать кирпичный мангал для дачи своими руками.Кто это уже сделал — можете гордиться собой, а кто еще нет — не расстраивайтесь, сейчас мы подробно рассмотрим этот процесс. Первым делом нужно составить проект мангала из кирпича, выбрать место, где он будет установлен, и рассчитать, сколько материалов потребуется.
Когда подготовка завершена и все необходимое под рукой, приступаем к сооружению мангала. В первую очередь, как и в любом другом строительстве, нужно подготовить фундамент.Выкапываем траншею нужного вам размера, глубиной не более полуметра. И насыпаем песчаную подушку, поверх которой кладем армирующую сетку и заливаем бетоном. После того, как фундамент мангала просохнет, можно двигаться дальше.
Основание кирпичного мангала может быть довольно разнообразным и зависит от финансовых возможностей. Первый ряд кирпичей рекомендуется класть насухо, это позволит в дальнейшем использовать только половинки и целые блоки, без необходимости дробления на части.Учитывая водопоглощающие свойства кирпича, перед укладкой желательно его увлажнить, чтобы в дальнейшем избежать неудобств. Кирпич нужно класть строго по намеченному ранее эскизу.
Строительный раствор для кладки готовят следующим образом: одну порцию цемента, одну порцию гашеной извести и три порции песка смешивают с водой и доводят до состояния густой массы.
Начиная со второго ряда кладут кирпич с уклоном на полукирпич (своеобразным шахматным рисунком), что обеспечивает максимальную устойчивость.Причем начинать рекомендуется с углов, заполняя площадь перегородок. Ширина и высота основания кирпичного стационарного мангала, а также наличие дополнительных отсеков, например, для дров, зависит от желания и возможностей хозяина.
Самый ответственный и сложный этап — закладка мангала. Чтобы приступить к укладке его кирпичного основания, между противоположными стенами разместите металлические уголки и арматурные стержни.Сама печь-барбекю из кирпича изготавливается из металла, который имеет высокую плотность. Чтобы работа самого мангала была более эффективной, в его зоне оставляют несколько отверстий, которые не заполняются кладочной смесью. Уложив несколько кирпичей на несколько ином уровне, чем остальные, можно получить место для использования решетки.
Теперь ваш кирпичный стационарный мангал готов к использованию, мы все же рекомендуем его еще немного улучшить. Например, соорудить дополнительные отсеки хозяйственного назначения, немного украсить его внешний вид, создать навес.
Конечно, процесс постройки мангала своими руками не совсем простой, и если вы что-то неправильно поняли, вы всегда можете увидеть фото каждого этапа работ на нашем сайте, а также ознакомиться с чертежами, которые будут помогут создать мангал своими руками.
Фото различных грилей
Многие не представляют полноценный отдых на природе без ароматного мангала.Мастера могут сделать мангал из кирпича своими руками. Это обязательно для сеанса за пределами площадки.
Выйдя на природу, можно построить компактную конструкцию из подручных материалов. Беседка, оборудованная мангалом, больше подходит для дачи.
С чего начать строительство?
Подумайте, где вы хотите построить мангал. Лучше выбрать для этого зону отдыха.
Необходимо соблюдать осторожность, чтобы обеспечить защиту от элементов.Самодельный очаг можно установить на дачном участке, под навесом или на частично открытой веранде.
Мастера часто решают сложную задачу изготовления мангала в виде многофункциональной печи.
Показатели средних размеров: ширина — 1,6 м; высота — 1,6 м; глубина — 0,8 м. Для многофункциональной духовки требуется сделать цоколь, примером которого является ленточный фундамент.
Мастер обычно дополняет сложный дизайн различными функциональными надстройками:
- Ниши.В них удобно хранить шампуры и другую посуду.
- насечки. В них кладут дрова, чтобы они высыхали у очага.
- Мойка. Устанавливается тогда, когда есть реальная возможность подвести коммуникации. В нем удобно мыть руки или посуду.
Стол со скамейками стоит у очага. Хозяин волен выбирать мебель из бюджетных или дорогих вариантов в зависимости от своих финансовых возможностей и вкусовых предпочтений.
Чертежи мангала помогут грамотно создать проект. Ведь нужно учитывать не только техническую сторону вопроса, но и эстетическую составляющую.
Если посмотреть фото мангала, то он должен быть центральным элементом композиции. В этом случае важно, чтобы все окружающие предметы были объединены.
Мангал из кирпича
Проект предполагает возведение прочного фундамента.Он сделан из песка, гравия, цемента и огнеупорного кирпича. Помимо строительных инструментов мастеру понадобится дрель со специальной насадкой или бетономешалка для приготовления раствора.
Необходимо подготовить арматурные стержни с арматурной сеткой, а также металлические уголки с метизами. Мастер заранее подготавливает материал для создания обрешетки.
Поэтапное строительство
Обрисовывают строительную площадку и проводят разметку.После этого создается котлован шириной 0,6 м и длиной 1,6 м.
Снят верхний слой почвы на глубину 0,6 м.
Сделайте подушку из песка. Его толщина не должна быть меньше 10 см. Подушка необходимо тщательно утрамбовать. По периметру котлована ставится опалубка.
Следующий этап — вязание арматуры. Металлические стержни соединяются между собой в виде решетки и опускаются на дно ямы.
Примечание!
Сделать цементный раствор и залить им опалубку.Его необходимо проткнуть металлическим стержнем, чтобы внутри не оставалось воздуха.
Марки 150 и 200 подходят для приготовления цементной смеси. В раствор также добавляется щебень с песком. Пропорциональное соотношение цемента, песка и щебня — 1: 3: 5. Для раствора также понадобится вода — 1 или 2 ведра, в зависимости от того, насколько влажный песок.
Уплотненный раствор разглаживается и разравнивается. Под кирпичи нужно сделать ровное основание.
Для гидроизоляции применяют рубероид и специальные мастики.
После затвердевания фундамента можно приступать к укладке.
Нюансы, которые должен знать мастер
Обжиговые кирпичи обладают отличной огнестойкостью, но на морозе они могут стать хрупкими. Поэтому беседка с мангалом из кирпича — лучший вариант.
Примечание!
Перед началом строительных работ материал замачивают в воде.Кирпичи способны впитывать жидкость, что может отрицательно сказаться на эксплуатационных характеристиках раствора.
Сама смесь готовится из других компонентов и отличается по консистенции. Изготавливается из цемента, песка и гашеной извести в соотношении 1: 3: 1.
Укладка начинается с углов. Длина задней стены — 3 кирпича, а стороны — 2,5 кирпича. Ширина должна быть не менее 1,5 кирпича. В процессе кладки мастер аккуратно стучит молотком по поверхности кирпича, чтобы он плотно прилегал к соседнему.
Металлоконструкция
Мангал из металла изготовит тот мастер, который умеет обращаться со сварочным аппаратом … Мастеру понадобится листовой металл, металлические уголки или детали арматуры, поддон с решеткой таких же размеров и маркер с рулетка.
Конструкция глубокого мангала с опорами. При желании хозяин может снабдить мангал коптильней, тогда у домочадцев всегда будет возможность насладиться натуральными копчеными лакомствами.
Примечание!
Опытные мастера могут попробовать свои силы в приготовлении домашнего шашлыка. Из двух соединенных цилиндров создают мангал-коптильню. Мастеру понадобится умение работать болгаркой и дрелью.
Дымоход изготовлен из трубы, а стойки, ручки и ножки — из металла. Вам нужно подготовить петли, гайки с болтами, специальную эмаль и фитиль. Мангал из воздушного шара можно украсить на ваше усмотрение.
Главное в этом бизнесе — творческий подход.
Фото мангала своими руками
Любимое развлечение на природе или за городом — шашлык на свежем воздухе. Для его приготовления потребуется качественное мясо, немного сноровки и, конечно же, подходящий гриль для барбекю.
В продаже огромный выбор этих устройств, от легких портативных до стационарных, которые устанавливаются на даче. Однако сделать мангал из металла своими руками сможет любой уважающий себя мужчина.
Происхождение концепции — мангал
Слово «жаровня» в переводе с некоторых кавказских диалектов (а именно оттуда пришла культура приготовления шашлыка) означает корзину с углем. Именно такой способ приготовления мяса признан классическим — заранее подготовленные куски нанизывают на шпажку (металлическую или деревянную) и обжаривают на раскаленных углях.
Спустя какое-то время к нам пришли западные традиции — шашлык. Этот способ приготовления отличается от мангального. Над раскаленными углями кладут решетку, на которую раскладывают крупные куски мяса, разрезанные поперек волокон.Шашлык в этом случае не нужен.
Есть еще один вид гриля. Над корзиной с углями ставится вертел, на котором можно жарить большие куски мяса и даже целые тушки.
Современные конструкции барбекю промышленного производства часто сочетают в себе гриль и барбекю.
Прогресс не стоит на месте, и старейший способ приготовления мяса претерпел улучшения. Вместо угольной корзины можно использовать газовую горелку или электронагревательный элемент. Мы рассмотрим классические виды мангалов — на углях.
Основные типы
Несмотря на кажущуюся простоту конструкции, необходимо соблюдать определенные правила. Для начала разберем основные виды мангалов:
Переносной без корзины
По сути, это даже не мангал, а две направляющие, на которые можно установить шпажки. Ямка в земле или очаг из камней и земли используется как корзина для угля. Это самый удобный с точки зрения мобильности аппарат. Незаменимый вариант для пеших прогулок. Однако с его помощью нельзя приготовить качественный шашлык.Иногда участники пикника просто кладут вокруг костра несколько кирпичей.
Переносной гриль с корзиной для угля
Самая распространенная конструкция. Корзина сделана из металла (лучший вариант — нержавеющая сталь). Съемные ножки прикручиваются снизу. Сама корзина может быть разборной или неразъемной. От этого зависит компактность при переноске. На таком мангале можно приготовить полноценный шашлык или шашлык, если установить сверху решетку. Такое приспособление, как правило, берут на вооружение автомобилисты при организации пикника на природе.
Металлические мангалы своими руками — обязательный атрибут частного домовладения. Размеры, фото отдельных вариантов изделия помогут вам самостоятельно создать неповторимый дизайн. Полезные конструкции часто используют для пикников и отдыха на природе. Готовый чертеж со всеми необходимыми размерами, который используется в работе в качестве образца, поможет изготовить изделие самостоятельно.
Прочный и красивый мангал украсит весь двор
Читайте в статье
Какие бывают виды барбекю?
Упрощенные мангалы из металла своими руками имеют форму прямоугольного корпуса.Размеры и фото устройств представлены в этом обзоре. Внутри емкости помещаются угли, которые создают необходимое тепло. Существует значительное количество товаров, которые отличаются от стандартных моделей.
Мангалы бывают следующих типов:
- стационарные — это массивные конструкции, которые устанавливаются на жесткое основание. Металлические устройства могут стать красивым и стильным элементом. Такие модели отличаются прочностью и разнообразием;
Мангалы стационарные
- переносные компактны.Они легче и их легче транспортировать на машине. Портативные изделия изготавливаются из тонкого металла, который быстро деформируется;
Создать устройства для стационарных красивых мангалов из металла не так уж и сложно. Для изготовления простого прямоугольного мангала необходимо подготовить:
- фурнитуры и уголки стоек;
- лист стальной;
- сверло;
- шлифовальный станок с подходящим камнем;
- Сварка электрическая и газовая.
Перед работой нужно подготовить чертеж. В нем отмечаются все размеры планируемой конструкции, расположение углублений для шампуров и расстояние между перфорациями.
Высота бортика мангала считается постоянной величиной, которая колеблется в пределах 13-15 см. Если расстояние меньше указанного значения, то мясо будет сожжено на кострах, а если больше — потребуется много.
Другие размеры подбираются индивидуально:
- ширина должна соответствовать размеру шампуров и быть на 8-10 см меньше;
- Длина зависит от количества шашлыка, которое будет одновременно обжариваться.Расстояние между шампурами должно быть 7-9 см. Для шампуров по длинной стороне делаются специальные насечки;
- Выбирая размер мангала для мангала из металла, нужно продумать высоту ножек, которая зависит от индивидуальных предпочтений. Для портативных устройств они небольшие. Высокие ножки встречаются в сварных конструкциях;
- Толщина материала зависит от типа конструкции. Для стационарного устройства он может составлять 3 мм и более. А для портативного изделия лучше выбирать материал толщиной около 2 мм.
В некоторых моделях на дно размещается вторая пластина с продольными отверстиями в виде решеток. Это предохраняет нижний металл от выгорания.
Пошаговая инструкция и особенности чертежей металлических мангалов с размерами
Строятся оригинальные мангалы из металла своими руками. Для этого потребуются габариты с крышей и подробные фото определенных моделей. Сборно-разборная модель включает четыре ножки, перфорированные стенки и дно.Перед установкой стоит подготовить стальной лист, болгарку, дрель, крепеж и уголки.
Стандартная сборка конструкции состоит из отдельных этапов:
Мангал изготавливается из бочки или газового баллона. Помимо емкости вам потребуются болгарка, дрель, металлические уголки и сварочный аппарат. Сначала делается разметка и вырезается верхняя часть ствола. Концевые части остаются на месте. Крышка делается сверху. Ножки делают из уголков.Их приваривают к концам ствола.
Опоры для шампуров делают из уголков. Они привариваются к внутренней части изделия. К крышке следует приварить ручки.
Нюансы изготовления разборно-разборных вариантовПолезный совет! Ножки можно сделать из прутьев. При этом нарезаются резьбы и крепятся гайки. Элементы можно соединять с помощью болтов, что позволяет создать более прочную конструкцию.
Монтаж из разборного металла несложный.На фото представлены интересные решения.
Для такой конструкции не требуется сварочное оборудование. Но вам понадобятся сверла, дрель, стальной лист, гайки и уголки. Как и в неразборном варианте, делается чертеж, и из стальной пластины вырезаются элементы. Подготовленный каркас прикручивается к основанию. Для надежного соединения рекомендуется использовать шайбы для гравировки.
Ножки крепятся к основанию устройства. На подготовленные опоры для труб надеваются отрезки труб.Борта соединяются болтами. Для увеличения прочности конструкции рекомендуется укрепить стены продольными спицами, затяжными гайками. В боковых частях просверливаются отверстия для шурупов.
Ножки сделаны из углов, а в стенах просверлены отверстия для соединения с ножками с помощью болтов. Последний этап — сборка конструкции.
Мобильность устройства зависит от составных частей устройства. Качественная модель мангала с металлическим казаном состоит из следующих компонентов:
- топливная камера состоит из двух частей.На определенном расстоянии от дна устанавливается металлическая решетка, снижающая интенсивность огня.
- Отсек для сухого топлива. Хорошие модели, оборудованные отсеком, где лежат угли;
- колеса в сочетании с ручкой позволяют сделать мобильную конструкцию;
- устанавливается в некоторые модели;
- столик, вертел механический и место для шампуров используются как дополнительные атрибуты.
Необычные идеи для барбекю
Простое решение — шашлык из бочки.Дизайн может быть как с крышкой, так и без нее. Ствол разделен на две части. Верхний используется как крышка, а к нижнему привариваются ножки. Необходимо сделать отверстия для вентиляции, а по краям прикрепить небольшие полочки. Их можно укомплектовать грилем и шпажкой.
Прекрасно смотрятся мангалы с элементами ковки. Их оснащают дополнительной атрибутикой: подставками, полками или колесами. Существуют различные виды мангалов своими руками:
- кованый мангал из чугуна оригинальный.Он декорирован любыми фигурами и узорами;
- мангал из автомобиля можно сделать из бывшего транспорта. В этом случае можно избавиться от старого корпуса и сделать для двора необычный и роскошный очаг;
- конструкция из старого компьютерного корпуса;
Вариант от старого компьютера Барабанная стиральная машина Оригинальный мангал
Создание необычных дизайнов зависит от фантазии и личных предпочтений.
Характеристики защиты от коррозииМеталлическое изделие необходимо защищать от.Для окрашивания используются специальные составы, устойчивые к высоким температурам. Есть и другие методы обработки. Воронение — один из таких методов. В результате обработки на поверхности металла образуется специальная пленка, защищающая конструкцию от нагрева.
Процедура воронения выполняется следующим образом:
- поверхность обезжиривается;
- отдельных элементов в течение полутора часов выдерживают в растворе каустической соды, взятой по 50 грамм. на литр воды.
Обработка проходит при температуре 140 градусов. Вместо листового металла можно использовать нержавеющую сталь. Устройство из этого материала не боится погодных условий, коллекционирования и не подвержено коррозии. Такие конструкции могут прослужить не одно десятилетие.
Необычным решением для создания мангала являются газовые баллоны емкостью 40 литров. Их можно назвать подходящими благодаря довольно толстому металлу и определенной форме. Перед их использованием их необходимо хорошо прогреть, чтобы избавиться от газового конденсата.Толщина стенки изделия из стали, армированной поковкой, должна быть около 4 мм, а из неармированной поковки — от 6 мм.
Для создания качественной конструкции необходимо соблюдать следующие правила:
- резка должна выполняться с точностью, допуск не более 0,5 мм;
- обрабатываемая деталь должна быть зафиксирована зажимами к краю стола;
- угловая шлифовальная машина должна быть больше. Чем больше плоскость, тем точнее будет разрез.
При выполнении работ не забывайте о безопасности. Необходимо надевать спецодежду, защитные перчатки и очки.
35 Конструкции металлических костров и идеи для установки вне помещений
Начались более холодные ночи, но не нужно спешить в помещении — одна из этих 35 металлических костров может продлить ваш сезон на свежем воздухе теплом и весельем. Вы найдете один дизайн костровой ямы, который подойдет для вашего патио или на открытом воздухе. Независимо от того, являетесь ли вы пуристом или предпочитаете более драматичный стиль, некоторые из этих крутых дизайнерских идей обязательно вдохновят вас.А что надежнее и проще в установке, чем металлическая яма. Большинство из них не требует никаких подготовительных работ — просто установите их на место, возьмите дров и начните их использовать. Что касается топлива, у вас будет выбор среди традиционных ям для сжигания древесины, работающих на пропане или биоэтаноле. Пора уютно устроиться у костра!
Конусные пожарные ямы
UrbanfireModfire (вверху) — это ультрасовременная костровище и произведение искусства. Изготовленный вручную из натуральной стали, он доступен в различных вариантах отделки: от натурального металла до ярких цветов (синий, красный, оранжевый и т. Д.) Или роскошной меди.Этот впечатляющий конусообразный дизайн высотой 48 дюймов (около 120 см) привлечет внимание каждого. Он работает на дровах или работает на пропане.
Katan (вверху) на шведском означает палатка-вигвам, и именно здесь голландский производитель Харри Линдерс вдохновился на создание этой особой конструкции пирамидальной костровой ямы. Сделанный из кортеновской стали, сначала он выглядит как ржавый металл, но со временем и дождем он окислится и станет довольно черным. Внизу есть практичное деревянное отделение для хранения вещей.
Pharos — еще одна конструкция конической костровой ямы / камина от Leenders (вверху), но она также мобильная и идеально подходит для использования на открытом воздухе. Его можно легко перемещать на твердых колесах по патио или саду, чтобы найти наиболее подходящее место для сезона. Он изготовлен из литого алюминия толщиной 6 мм и доступен в нескольких цветовых комбинациях. Как классный дымоход!
Мы не знаем, кто делает эту красную яму для костра, но это определенно одна из самых крутых конструкций конусов. Вы можете попробовать узнать больше в источнике.
Металлические кострища с хранилищем дров
Zero by AK-47 — это современный круглый камин, предназначенный для людей. 145 см в диаметре (4,75 фута), он состоит из центральной металлической костровой ямы и внешнего хранилища дров и места для сидения. Он становится прекрасным украшением больших общественных мест и приобретает более интимное измерение дома, в окружении друзей!
Harrie Leenders становится более современным с Spot (вверху), компактной чашей для костра на открытом воздухе, которую также можно использовать в качестве печи, и она предназначена для использования даже в самых маленьких наружных точках.Функциональный дизайнерский объект 3-в-1, Spot сочетает в себе яму, деревянное хранилище и дополнительный прикрепляемый поднос для обслуживания. Идеально, чтобы насладиться напитком у костра. Ваше здоровье!
Spot fire от Leenders — идеальный аксессуар для отдыха на открытом воздухе для всей семьи.
Подвесные костровые ямы
Это самая крутая идея костровой ямы, которую вы когда-либо видели? Он висит! Был найден на чьем-то заднем дворе в Венеции, Лос-Анджелес, Калифорния.
Этот большой подвесной камин, названный «Босс ранчо», по словам его создателя Cowboy Cauldron, предназначен для тех, кто хочет самого лучшего.
Подвесные металлические костровые ямы для котлов изготавливаются из чугуна или толстой штампованной стали и рассчитаны на многие поколения. Вы также можете использовать подвесную чашу Cauldron в качестве гриля, и это отличный аксессуар для развлечения ваших гостей. Каждая яма для котла поставляется в комплекте с рамой штатива, цепью для подвешивания, узлом крюка и штифта, чашей для котла, съемной решеткой для огня и грилем для приготовления пищи. Источник.
Босс ранчо может быть самым большим Котлом, но не единственным.Они бывают четырех разных размеров — посмотрите на таблицу выше, чтобы выбрать тот, который лучше всего подходит для вашего патио или заднего двора. Источник.
Чаша для костра
Ямы для чаш — одни из наших любимых — что может быть более эстетично и удобно по форме для безопасного разведения огня, чем конструкция чаш. Особенно огромная яма, подобная той, что была найдена в этом доме выходного дня в долине Напа компанией Jim Jennings Architecture. Эта огромная чаша, созданная Эрин Мартин, — мечта на открытом воздухе. Вся обстановка такая простая и в то же время уютная, сфотографирована Марион Бреннер.
Выше, использование чугунной посуды в качестве очага для костра кажется отличной идеей — по крайней мере, это сработало для одного джентльмена. Он большой, около 2,5 футов в диаметре, и выглядит круто. Источник.
Еще одна потрясающая обстановка с металлической чашей для костра в качестве центрального элемента, даже в деревенском стиле и даже в стиле фанк — обратите внимание на эти вырезанные сиденья. Они что-то тебе не напоминают? Сфотографировано Радостиной — посмотрите ее замечательные работы здесь.
Вышеупомянутая идея установки затонувшей костровой ямы взята из Йоханнесбурга, Южная Африка — источник.Какая умная идея и потенциально интересный DIY проект — меньше и более мелкий металлический шар помещается на бетонный постаменте, создавая центральный пожар в центре круглого углубления в земле, и с бетонной стеной удерживающей.
Эта чаша для костра, сделанная своими руками, — это чаша, сделанная сваркой между собой дисковых лезвий пахотного трактора. Она отлично подходит для разведения костра на заднем дворе. Смотрится почти артистично. Источник.
Если вам нравится внешний вид меди, то Hayneedle предлагает эту медную яму для костра CobraCo с крышкой.Это привлекательный аксессуар для дома, который красиво выкован вручную для придания блеска. Он поставляется с защитным виниловым покрытием для поддержания чистоты и имеет диаметр 30 дюймов.
Современные кострища
Вышеупомянутый современный гриль для костра Langgrill можно приобрести в Connox. Это немецкий дизайн с длинной чашей и минималистским дизайном из нержавеющей стали, размером 45 см в ширину и 95 см в длину.
Иногда меньше значит больше, и это справедливо для очага из нержавеющей стали Bella Vita (вверху).Художник по стальным изделиям Рик Виттриг сделал этот круглый современный камин необслуживаемым, поэтому он не требует усилий и предлагает моменты полного расслабления тем, кто сидит вокруг него. Диаметр 46 дюймов, дров в нем хватит на один вечер горения!
Еще один современный дизайн костровой ямы с неглубокой круглой стальной чашей на металлической подставке — это отличный предмет декора для современного дома. Чаша диаметром 63 см отшлифована вручную, чтобы со временем образовалась естественная ржавчина, а ножки из нержавеющей стали также обрабатываются вручную.
Вышеупомянутая мобильная пожарная яма под названием Eclypsya представляет собой современную круглую конструкцию Бенджамина Меснарда, изготовленную компанией Arkiane. Он отличается необычным дизайном и мобильностью. Просто выкатите его на улицу и наслаждайтесь огнем на своей террасе в полной безопасности, так как пламя биоэтанола защищено стеклом с обеих сторон. Эта красивая яма, вдохновленная кочевниками пустыни, которые устраивались разводить костер, обязательно займет постоянное место в вашем образе жизни!
Геометрические конструкции металлических костровищ
Простой квадратная яма огнь сварного шов, как сделай сам проект, один из четырех 40 «х 20» листов 12-го калибра горячекатаной стали — вот учебник.
Геометрическая кострище Plodes Geometric Fire Pit (вверху) напоминает дизайн оригами. Дизайн — Джон Пол Плауч из Plodes Studio, который выполнял проекты для офисов Google. Доступен в двух размерах и двух металлах — из низкоуглеродистой стали A36 или стали Corten. Купив дополнительную решетку или кедровую столешницу, вы можете превратить эту яму в гриль или стол.
На Etsy есть костровище аналогичной формы. Благодаря горячекатаным стальным стенкам 14-го калибра и огневой чаше 10-го калибра, ребристая яма рассчитана на длительный срок службы.
Немного отличающаяся от двух вышеперечисленных геометрических форм и немного более эстетичная, это Contemporary Outdoor Fire Grate от Питера Кейлбаха, дизайнера из Великобритании. Он будет красиво смотреться в вашем саду, и его можно использовать в качестве гриля.
Говоря о необычной геометрии … вот металлическая костровая яма и набор для барбекю под названием Декаэдр. Имя говорит само за себя.
Идеи Art Fire Pit
Изготовленный из переработанной стали, The Great Bowl O ’Fire представляет собой скульптурное изделие.Эта костровая яма не перестает удивлять своей пропорциональностью. Чаша диаметром 37 дюймов кажется горящей, даже когда фактическое пламя не горит! Великолепный на уровне пола, он приобретает «олимпийское» ощущение, когда поднимается на пьедестал.
Некоторые из самых известных художественных костровых ям, представленных сегодня на рынке, — это вырезанные вручную сферы для костра, созданные художницей Мелиссой Крисп. У Мелиссы много красивых дизайнов, мы только что выбрали 4, которые, по нашему мнению, являются одними из самых удивительных произведений искусства от этого дизайнера. Каждый дизайн уникален и снабжен пронумерованной металлической пластиной для аутентичности.По умолчанию они работают на дровах, но могут быть преобразованы в газовые кострища.
Вышеупомянутая сфера для костра Зимнего леса от Мелиссы Крисп имеет романтическую нотку. Для влюбленных вы не найдете лучшего предмета, чтобы наслаждаться огнем звездными ночами.
Настоящее произведение искусства выше — это огненный шар Earth & Sky, который имеет простую металлическую чашу на скалистом основании из веток дерева и имеет диаметр 53-54 дюйма.
Сфера огненной ямы «Скрытый ангел» вполне может быть одной из самых красивых ям, которые мы когда-либо видели.
Огненная сфера «Скрытый ангел» изображает двух ангелов с широко раскрытыми крыльями, как будто они защищают вас от огня. «Эта скульптурная чаша для костра прекрасна даже в незажженном состоянии и будет потрясающе смотреться в любом саду. Крылья ангела обвиваются по бокам чаши и встречаются, завершая круг ». Источник.
Этот очень сбалансированный, эстетически приятный дизайн (вверху) — это Сфера Огненной Ямы Осеннего Закатного Листа от Мелиссы Крисп. Эта уникальная чаша для огня ручной работы имеет диаметр 37 дюймов и может стать отличным украшением патио даже без огня.
Выше — экзотический вид огненного искусства Lotus — ручной работы из нержавеющей стали и газового сжигания.
Созданный по образцу растения агавы, эта вычурная конструкция костровой ямы сделана из необработанной стали, поэтому вы можете наблюдать, как она формирует свою уникальную патину.
Кольца для костровой ямы
Простое металлическое кольцо для костра часто может стать лучшей идеей для наружной установки. Нам нравится негабаритный круглый дизайн — он кажется таким естественным, если костровище будет круглым и большим.
Переносное костровое кольцо — отличная идея для кемпинга.
Выше очаровательный дизайн камина для уютной деревенской обстановки — источник.
Это классное декоративное металлическое каминное кольцо легко впишется в любой пейзаж. Она состоит из стальной гильзы и декоративного верхнего кольца, и была разработана для создания огня ямы с сохранением стеновых блоков.
Столы для костровой ямы
И, наконец, пара необычных и изящных идей декорации на открытом воздухе — столики для костра.
Уличный стол со встроенным кулером и кострищем.
Огненный стол Габиана, меняющий цвет.
Для еще большего вдохновения ознакомьтесь с этими идеями круглых ям для костра от AK-47.
% PDF-1.6 % 295 0 объект > / Метаданные 303 0 R / AcroForm 299 0 R / Страницы 291 0 R / Тип / Каталог >> эндобдж 303 0 объект > поток UUID: 3f62cd96-ba94-c54f-bae6-cb1bbfa96de7xmp.did: 2792DFE1E5276811808395DEE2C1F874adobe: DocId: INDD: 9c59de6e-9ee4-11e0-ac00-ed5834dac0f4proof: pdfxmp.iid: 28A7B805A4276811808395DEE2C1F874xmp.did: E637A8EF1C276811808395DEE2C1F874adobe: DocId: INDD: 9c59de6e-9ee4-11e0- ac00-ed5834dac0f4default
072068118083C8E2480B5CEA2011-11-07T08: 54: 44 + 13: 00Adobe InDesign 7.0 /; / метаданные
- F2068118083D10C2C68C0172012-01-16T17: 01: 34 + 13: 00Adobe InDesign 7.0 /; / метаданные
068118083C1DDF06E0D642012-03-15T16: 16: 46 + 13: 00Adobe InDesign 7.0 /; / метаданные
118083C36676932D582012-05-25T08: 44: 45 + 12: 00Adobe InDesign 7.0 /; / метаданные
118083C36676932D582012-05-25T08: 45: 22 + 12: 00Adobe InDesign 7.0 /; / метаданные
118083C36676932D582012-05-25T08: 47: 30 + 12: 00Adobe InDesign 7.0 /; / метаданные
11808395DEE2C1F8742012-09-14T15: 05: 26 + 12: 00Adobe InDesign 7.0 / метаданные
11808395DEE2C1F8742012-09-19T10: 36: 54 + 12: 00Adobe InDesign 7.0 /; / метаданные
Мангал не скучный!
Погружение в природу — это всегда очень весело. Свежий воздух в сочетании с вкусной едой, приготовленной на живом огне, и приятное общение — лучший способ отдохнуть от повседневной рутины. Мангал действительно является главным атрибутом загородного пикника.
Сегодня этот аксессуар комфорта купить не проблема, однако у любителей шашлыка от этого шага останавливается качество предлагаемого ассортимента.По сути, все, что выставлено на реализацию модели, сделано из слишком тонкого материала, и первый «сезон шашлыка» становится для них роковым.
Готовый мангал из металла
Хотите обзавестись другом на десятилетия — попробуйте пойти другим маршрутом и сделать мангал из металла своими руками. Это отличный способ приобрести более прочный, а иногда и эксклюзивный вариант мангала, который, к тому же, можно полностью адаптировать под ваши нужды. «Самоделка» может выглядеть стандартно или стать изюминкой декора дачи, а это повод поближе познакомиться с видами и технологией изготовления металлоконструкций для жарки шашлыка.
В первую очередь эти изделия делятся по размерным параметрам. Мангал можно сделать:
1. Стационарный.
Мангал стационарный металлический с навесом
2. Портативный.
Легкий переносной мангал металлический
Каждый из пунктов также можно интерпретировать по-разному. Подразделяются на стационарные виды:
.Классический стационарный мангал металлический
Мангал металлический в стиле ар-деко
Переносной может быть:
Мангал переносной складной
Мангал разборный металлический
Но параллельно быть мангалом оба варианта бывают и стационарными, и мобильными.
Стационарный мангал — прерогатива дачных участков. Часто в них металл сочетается с кладкой, что добавляет эстетики внешнему виду и делает конструкцию более функциональной. Установив мангал под навес или оборудовав его крышей, вы сможете готовить еду в любую погоду.
Мангал комбинированный металло-каменный с крышей
Переносные моделиподкупают тем, что их можно установить не только в любом месте на даче, но и брать с собой в поход, а то и пешком, ведь они небольшие по размеру и незначительному весу.Складной вариант мангала из металла можно сделать своими руками настолько компактно, что он будет напоминать чемоданчик.
Мангал металлический, сложенный в чемодан
Самая простая модель мангала — это два металлических каркаса, которые служат для поддержки шампуров.
Конструкция простого мангала
Главное достоинство складных мангалов — их недостаток. Излишняя компактность не позволяет готовить шашлык в больших количествах, поэтому для солидной компании лучше взять с собой сразу две переносные мангалы.
Если вы не планируете использовать мангал вручную, вы можете утяжелить конструкцию, добавив ее к раздвижной столешнице, решеткам и установив в нее регулируемый вентилятор.
Мангал металлический с деревянной столешницей
Для того, чтобы мангал превратился в мангал, достаточно над мангалом установить решетку. Последние имеют прямоугольную форму и имеют форму полусферы, поэтому подобрать подходящую модель для мангала не составит труда. Если вы не любите мясо с хрустящей корочкой, улучшите шашлык с помощью обычной крышки.
Мангал с решеткой
Изделия серии Art Deco собираются из кованых элементов. Последние могут быть основой дизайна или его декоративной частью. Преимущественно ковка происходит в стационарных вариантах, поскольку она тяжелая и массивная. Транспортировать такой мангал будет сложно, разве что поставить его на колеса, превратив в автомобильный прицеп.
Кованый мангал в стиле арт-деко на колесиках
Базовая конструкция мангала из металла может быть изменена вручную, то есть комплектуется дополнительными модулями в виде:
1.Колеса.
2. Крыши.
3. Опоры и полки.
4. Мангал двойной.
5. Ручки.
Мангал металлический с дополнительными полками
Однако делать это нужно только в том случае, если без этих элементов не обойтись. Необходимо помнить, что каждое из представленных дополнений добавит вес конструкции. Это правило прописано для портативных моделей. В стационарных мангалах в этом плане нет никаких ограничений.
Классифицировать мангалы можно, исходя из такого показателя, как толщина металла.В этой классификации они будут разделены:
.Мангал толстостенный
Жаровня тонкостенная металлическая
Металл большой толщины обычно используется для стационарных моделей мангалов. Мангал для них может быть изготовлен из листов стали толщиной 5 и более миллиметров. Придется потратить немного денег, но прослужит вам очень долго.
Жаровня стационарная толстостенная
Для переносных вариантов мангала нужно брать металл меньшей толщины.Это один из способов облегчить конструкцию, ведь вы помните, что может возникнуть ситуация, когда его придется носить с собой в руке на большое расстояние. В тонкостенном мангале даже из очень качественного металла нельзя жечь дрова. Здесь используются уже готовые угли, упаковки которых можно купить в магазине или приготовить самостоятельно, на костре.
Жаровня металлическая тонкая
«На сборку мангала из металла своими руками потребуется несколько часов, а по окончании работ готовое изделие будет сразу доступно и протестировано в чемодане»
Преимущества металлических мангалов очевидны.
1. Они мобильны. Неважно, разбирается мангал или нет, его можно почистить на зиму в сарае. Такая забота о конструкции поможет продлить срок ее эксплуатации.
Мангал металлический снимается на зиму
2. Огнестойкость. Это гарантируется материалом, из которого изготовлен мангал, и формой самого мангала.
3. Относительно дешево. Разница в стоимости материалов и работ по установке камина из камня и металла, очень существенна.
Мангал из металла легко устанавливается в нужное место
4. Быстро монтируется. На строительство стационарного каменного мангала с учетом технологически предусмотренных перерывов для промерзания фундамента и схватывания раствора потребуется не менее трех недель. На сборку мангала из металла своими руками потребуется несколько часов, а по окончании работ готовое изделие можно будет протестировать сразу и в футляре.
Мангал металлический на подготовленной площадке
Ценители полностью оборудованных конструкций считают металлические мангалы в меру эстетичными и неприметными, но это зависит от того, кто возьмется за работу.Иногда из рук наших «Кулибиных» выходят настоящие шедевры. Несколько интересных идей из серии «Сумасшедшие руки» мы расскажем ниже, а теперь разберемся в последовательности процесса работы на обычном, привычном мангале.
Как построить мангал своими руками
Тем, кто не понаслышке знает металл, в советах и наставлениях не потребуется. Профессионалы соберут конструкцию с закрытыми глазами. Но новичкам в этой сфере придется нелегко. Чтобы первый опыт был положительным, нужно подойти к процессу творчества основательно и медленно.Не стоит начинать с заумных моделей. Пусть ваш «первенец» будет до смешного простым в декоративном отношении, но при этом хорошо функционирующим. Впоследствии, набравшись опыта и овладев навыком, можно будет попробовать создать что-то неординарное для жарки шашлыка, но пока ваша цель — ящик на ножках. Иди к ней и уходи.
Такой мангал из металла несложно сделать своими руками
Элементы конструкции
Для создания передвижной мангала необходимо:
1.4 ноги.
2. 4 перфорированные стены прямоугольной формы.
3. Дно.
Необходимые детали для мангала из металла
С чем и с чем работать
Чтобы получить необходимые детали и собрать их в функциональную конструкцию, вам потребуются:
- лист стальной;
- металлический уголок или армирование с гайками и болтами;
- сварочный аппарат с запасными электродами;
- ножовка по металлу;
- Болгарка и отрезные круги к ней;
- дрель.
Для изготовления мангала понадобится сварочный аппарат
Следующим шагом будет создание рабочего проекта. В нашем случае это звучит громко, но наличие мангала из металла ускорит и облегчит первую сборку своими руками.
Чертеж черновика
Рисунок будет на 100% успешным, и его будет легче читать, если он будет выполнен на листе бумаги, помеченном клеткой. Обязательно обратите внимание на высоту ножек и параметры самого ящика фритюрницы.Рассчитайте расстояние между направляющими скосами для укладки шампуров и перфорацией.
Средний мангал рассчитан на приготовление 8 порций шашлыка. Оптимальное расстояние между вентиляционными отверстиями — от 7 до 10 сантиметров. Правильно расположив их в пределах 5-10 сантиметров от дна жаровни. Длина ног произвольная.
Проект мангала из металла
Расчет размеров
Среднестатистическая компания будет удовлетворена дизайном на десять шампуров.Шашлык получается в горячем виде, поэтому следующую порцию можно жарить, пока гости едят первую. Чтобы мясо получилось удачным, шампуры нужно как следует уложить на угли. Их нельзя прижимать друг к другу, но слишком далеко друг от друга тоже неправильно. Тепло не следует тратить зря. Это главный критерий выбора длины фритюрницы.
На шампур стандартной длины нанизывается от 6 до 8 порций мяса. Если не хотите уменьшать порцию, то ширину коробки сделайте по длине первой.Увеличивать ширину нет смысла. Изделие станет громоздким и громоздким.
Глубина металлического мангала должна быть приближена к проверенной практике. Мясо расположено слишком близко к углям — сушено, слишком далеко — не жарено. Оптимальный уровень шампуров над огнем 30-35 см.
Проект мангала на 11 шампуров
Последний параметр барбекю — его общая высота. Это производное от роста «шеф-повара». Пригласите его на «строительную площадку», дайте ему в руки вертел и попросите смоделировать поворот последнего, не сгибая и не сгибая спину.Измерьте расстояние от земли до руки. У вас есть оптимальная высота вашего изделия. Если проводить эксперимент, нельзя полагаться на стандартные показатели, которые варьируются от 80 до 120 см.
Схема мангала из металла высотой 50 см.
Собираем фритюрницу
Насколько хороша будет ваш мангал, напрямую зависит от качества металла и правильности выбора габаритов. Эти два показателя напрямую повлияют на время приготовления шашлыка и его вкусовые качества.Работа повара может сойти с ума, если мясо приготовлено на плохом оборудовании.
Мангал переносной мангал нужно собирать из металла 2-3 мм, с которым работать не так сложно, как с толстой сталью. Листы брать больше не рекомендуется, потому что коробка из них сразу перегорит.
Переносной мангал металлический толщиной 2-3 мм.
Выбранный металлический лист нужно «разрезать». Разметка выполняется на уголке. Его использование — гарантия отсутствия перекосов.Нам предстоит нарисовать 2 длинные и 2 торцевые боковины, а также низ. Для вырезания элементов используем болгарку. Важно вырезать детали так, чтобы их края были ровными.
Распиловка по металлу для мангала
А теперь пора приступить к перфорации стенок решетки. Отверстия обеспечивают приток воздуха к мангалу, что необходимо для хорошего сжигания углей. Просверлим их только на задней и передней стенке. Диаметр отверстий 10-15 мм, шаг шага 5 см.
Перфорация на стене мангала
Завершающим этапом создания мангала будет сварка.Делать их лучше с напарником, так как детали можно держать в нужном положении, а качественно сварить их бывает сложно.
Сварка стыков жаровен
«Ставим на ножки»
На ножки можно использовать арматуру, трубу 30 мм или уголок. Использование первых двух материалов позволит сделать мангал из металла своими руками разборным или разборным. У разборных моделей болты привариваются к ножкам. Работать придется в бижутерии, чтобы не испортить резьбу.
Арматура для ножек мангала
По углам дна ящика для жаровни проделайте отверстия. Их диаметр должен быть несколько больше сечения болтов. С внутренней стороны отверстий крепятся гайки. После того, как металл остыл от сварки, пытаемся поставить конструкцию на ноги.
Уголки можно прикрепить к основанию фритюрницы постоянно или сделать подвижным приспособлением, чтобы при необходимости можно было сложить ножки. В первом варианте используется сварка, во втором — болтовое крепление.
Винт крепления стенок для разборного мангала
Если ножки получаются длинными, их необходимо усилить, соединив их вместе с помощью поперечин. Последние также могут быть цельными или складчатыми (важно при трансформации моделей).
Собираем нестандартный мангал из металла своими руками
Модель из бочки
Если вы отойдете от стереотипов и того, что мангал строго прямоугольной конструкции, вы поймете, что такую вещь можно создать практически из любого подходящего металлического предмета, например, бочки, собирающейся в углу сарая.
Оригинальный мангал из бочки
Невозможно приспособить под жаровню только цистерны, в которых хранились ГСМ. Если толщина металла ствола не слишком тонкая, то конструкция прослужит долго. Бочка выполнит роль мангала. Дополнительно к нему вам понадобятся:
— Дрель;
— уголок металлический;
— сварочный аппарат;
— Болгарский.
Мангал барбекю проект
1.Сделав разметку, вырежем верхнюю часть ствола, сохраняя целостность концов. Не спешите выбрасывать «отходы производства». Из снятого куска будет сделана крышка.
Обрезка верхушки ствола
2. Металлический уголок будет выполнять роль ножек, поддерживающих конструкцию. Их нужно разрезать на 4 одинаковые части и приварить к торцу мангала.
3. Измеряем длину ствола и подготавливаем еще два уголка соответствующего размера.Это будет опора для шампуров. По углам необходимо будет сделать надрезы с шагом 4-6 см. Подготовленные детали привариваются к горизонтальным участкам борта ствола изнутри.
Шашлык из бочки на ножках с крышкой
4. А теперь усовершенствуем. Из такого металла сделан мангал, и мы сделаем это сами. Прикрепляем чехол к основанию петлями. На его арочной стороне должны появиться две ручки. Так будет удобнее пользоваться.Крышка станет одновременно элементом декора и функциональной деталью конструкции, защищающей мангал и приготовленный на нем мангал от дождя.
Рукоятка на ствол мангал от ствола
Модель разборная
Мангал можно сделать полностью разборным. В этом случае сварочный аппарат работать не должен. Здесь нужно действовать по-другому.
Схема разборного мангала
Раскрой детали производится с припуском на швы, то есть плюс 3-4 см с каждой стороны.
Далее необходимо произвести загибы по всем сторонам полученных компонентов на величину припусков. Это необходимо для угловой стыковки и фиксации днища.
Соберем конструкцию на болтах. Отверстия под них готовятся дрелью.
Складная модель
Работа над разборным металлическим мангалом будет проводиться по стандартной схеме: чертеж, раскрой, сборка — только прикрепите детали к подвижным мебельным юбкам.Чтобы стены не перегибались, к верхней части стен приваривают специальные крючки.
Чертеж раскладного мангала
«Ковочный элемент мангала из металла, который вы можете сложить самостоятельно, — это поковка»
Скучный вид самодельной конструкции не грозит, ведь работая над жаровней из металла своими руками, вы вольны проявить фантазию и сделать ее такой, какой вы ее видите, а не так, как предписано стандартами и концепциями. Несомненно, украшать изделие лакокрасочными материалами — смысла нет.Жара просто уничтожит все ваши старания. А вот поиграть с формой мангала, ножками, добавить в мангал оригинальные детали — очень возможно.
Оригинальный мангал из металла
Что и как придать дизайну эксклюзивности? Есть много способов. Сделайте крышку для жаровни и добавьте ее к выхлопной трубе. Будет интересно посмотреть. К тому же мангал такой сборки можно эксплуатировать в закрытой беседке.
Мангал металлический с трубкой
С помощью боковых опор мангал можно превратить в мини-рубанок.Также красиво и практично. На импровизированные «крылышки» можно выложить уже готовый шашлык или нанизать на шпажки новые шпажки из мяса. Стенды не обязательно делать стационарными. Съемные предметы тоже будут хороши.
Мангал-рубанок из металла своими руками
Беспроигрышным элементом металлического мангала, который можно складывать вручную, является ковка. Обычная железка станет произведением дизайнерского искусства. Может быть, такой подход не будет модным, ведь сегодня в стиле цельнокованые вещи, но красивые, винтажные, элегантные — останутся в веках.Ковку можно трансформировать, но она никогда не потеряет своей эстетической актуальности.
Кованый мангал не теряет актуальности
Как вариант конструкции мангала можно рассмотреть «неправильную» форму. Стальные листы можно гнуть, поэтому остается только разобраться, как их гнуть. Сделайте мангал овальной, квадратной, круглой, зигзагообразной формы. Подойдет любой вариант.
Необычный мангал овальной формы из металла
Народные мастера могут превратить ящик фритюрницы с отверстиями во что угодно.Копаясь в воспоминаниях детства, нетрудно вспомнить любимые книги или тайные желания. Мечтали стать пиратом и найти сокровища? Осуществите мечту прямо сейчас, создав сундук-жаровню. Вместо ног он мог скрестить мечи корсара. При закрытой крышке мангал может служить мини-коптильней, достаточно снабдить его хотя бы небольшой выхлопной трубой.
Мангал — сундук металлический
Нашли на чердаке пространство «бабушкиное наследство» в виде старой швейной машинки с уже забытым нами ножным приводом? Не спешите отдавать его в металлолом, ведь его каркас из чугуна, а значит, он может стать отличной опорой для мангала из металла, сконструированного своими руками.
Мангал на базе швейной машины
Дым, идущий от жаровни, не дает покоя пытливым умам. «Почему бы не превратить обычный мангал в локомотив?» Думают, садятся за проект.
Основной деталью этой конструкции может быть ненужный газовый баллон. Сделав платформу машиниста, приварив к цилиндру колесо и установив на него трубу — вы действительно удивите домочадцев. Трубку желательно сделать не фальшивой, а настоящей, чтобы она служила каналом для выхода дыма.В получившемся очаге можно не только отжать шашлык, но и просто запечь или даже коптить мясо, а также приготовить еще много «летних» деликатесов.
Мангал с крышкой от газового баллона
Вы не поверите, но для жарки шашлыка можно приспособить и передок старую машину. Друг болгарина, сварщик и главный автолюбитель сделает это за пару часов. В опорожненном от внутренностей моторном отсеке устанавливается жарочный ящик с решеткой и все запускается.Кто-то сделал такой мангал передвижным, разместив на нем два колеса и снабдив подвеской и рессорами. Получился отличный трейлер. Такой мангал из металла, сделанный своими руками, можно брать с собой куда угодно, как на полевую кухню.
Мангал перед вагоном
Автомобильные диски также будут использоваться. У них есть все предпосылки, чтобы без особых усилий с вашей стороны стать прекрасной мангалом. Они имеют круглую форму, вентиляционные отверстия уже готовы, а стены достаточно толстые, так что огонь их не скоро сожжет.Единственное, чего не хватает дизайна, так это днища. Надо подправить и родные слоты для дисков, которые могут оказаться слишком большими для маленьких тлеющих углей. Для удобства размещения шампуров в колесном диске вы можете встроить стальной держатель или просто использовать гриль для приготовления пищи.
Мангал из автомобильных дисков
Заключение
Как видите, соорудить мангал из металла своими руками можно, ничего сложного в этом нет. Навыки — это прибыль. И пусть первый «блин» может оказаться комочком, но в будущем все, что выйдет из ваших рук, будет вызывать настоящее восхищение, главное не пропускайте их!
Видео
Автор: Михаил Бонд
Жаровня для костра с решетчатой конструкцией LIVIVO 25 квадратных с сеткой Искрозащитная решетка Вставка для гриля для барбекю и металлический пожарный покер Железная погодоустойчивая и нержавеющая -Устойчивый
- Home
- 25 Квадратный мангал с решетчатой конструкцией LIVIVO с решетчатой решеткой и сетчатым искрозащитным кожухом Вставка для гриля для барбекю и металлический пожарный покер Стойкий к погодным условиям и коррозионностойкий
Жаровня для костра LIVIVO с решетчатой конструкцией, сетчатой защитой от искр, вставкой для гриля для барбекю и металлическим огнем.Отличные цены на ваши любимые бренды для садоводства и бесплатная доставка по подходящим заказам. LIVIVO LATTICE FIRE PIT — Идеальная дровяная или угольная яма для вашего двора или сада с красивой отделкой под старину с решетчатым эффектом, в комплекте с дополнительной вставкой для гриля барбекю, съемной искрогаситель и металлический каминный утюг。 МАТЕРИАЛ — Жаровня изготовлена из прочной стальной конструкции и может вместить большой объем поленьев, древесного угля, дров или другого топлива. сетка для защиты от искр, позволяющая наблюдать за пламенем и излучением тепла на панораме, сохраняя при этом искры, тлеющие угли и пепел。 ЛЕГКО ЧИСТКА И ТРАНСПОРТИРОВКА — используете ли вы дома, или отправляетесь на фестиваль, барбекю или В кемпинге эти костровые ямы легко чистятся, поэтому их легко собрать и уйти。 РАЗМЕРЫ — В: 60 см x Ш: 63 см x L63 см: — Большая чаша вмещает больше топлива, дольше горит и обогревает большую площадь。
Встроенные плоты |
Круглые плоты |
Алмазные плоты |
Плоты Sidewinder |
Плоты по быстрой реке |
Плоты Uphill
Однотрубные |
Двойные трубы |
Скоростные трубки | Семейные пробирки | Надувные коврики для аквапарка |
Трубки Sidewinder
Пользовательские логотипы |
Фотогалерея |
Контакты |
Home
Надувные устройства с электроприводом |
Водонепроницаемая сумка Fanny Pack |
Контрактное производство
Сетка |
Прогулки по Лили Пад |
Ударная обивка |
Конвейерные крышки |
Надувные барьеры |
Водные батуты
Плот |
Стандартные трубы для аквапарка |
Трубы для тяжелых условий эксплуатации |
Коврики для скольжения из пеноматериала | Бамперные лодки |
Хомуты плавучести
Copyright 2009 — Зебек из Северной Америки, Inc. Все права защищены.
Жаровня для костра LIVIVO с решетчатой конструкцией, 25 квадратных метров, с сеткой, искрозащитой, вставкой для гриля для барбекю и металлическим огнем, устойчивым к погодным условиям и коррозии
12 PCS Зажимы для скатертей Регулируемые металлические зажимы для скатертей Зажимы для крышки стола из нержавеющей стали Зажимы для скатертей Прищепки для скатертей Крючки для скатертей для пикника, патио, сада Толстые столы на открытом воздухе, барабан сцепления JRL и сцепление в сборе для китайской бензопилы 4500 5200 5800 45 52 Timbertech. Always Loved Wife Flower Rose Memorial Tribute Stick Graveside Plaque, 20 лампочек GLADIOLUS BYZANTINUS РОЗОВЫЙ ЦВЕТ ДЛЯ ПОГРАНИЧНОГО САДА PATIO ROCKERY GARDEN PERENNIAL.- 30 семян грибов, грибов, устриц, королей, вилки для нереста, грязь и водоотталкивающий агент для наружного сада с молнией, декоративная подушка 45 x 45 см. Garland GP87 Декоративная приборка для шлангов Stratford, инструмент для удаления ясеня Yardwe Инструмент для удаления железной золы для активного отдыха, кемпинга, походного инвентаря 50см. Контейнер для органического компоста Компостер Purple Tiger Rainbow Standard Wormery с 3 лотками для штабелирования, круглый 112см × 30см Черный водонепроницаемый дышащий садовый патио Крышка для пожарной чаши на открытом воздухе WXJ13 Крышка для костровой ямы, восемь упаковок по 2 штуки Номера для мусорных контейнеров для Великобритании, N 18-81 Карманный мешок для растений Настенный садовый цветочный горшок Открытый Крытый вертикальный озеленение Мешок для посадки Контейнер для посадки цветов.Чехол для бассейна Bestway Steel Pro Frame. vidaXL Двухсторонний садовый забор 150×500 см Коричневый защитный экран для патио, комплект для ремонта диафрагмы карбюратора Aisen RB-69 для Stihl 020 020T MS191 MS192T MS200 MS200T Husqvarna 113LD 123C 123L 322L 323L 325L 326L, птичье гнездо для птичьего двора Наружная ханжа для попугая. SOONHUA Ремень для садовых инструментов Холст Талия Инструмент Садовый фартук с несколькими карманами Фартук для хранения садовых инструментов Фартук без рукавов для мужчин и женщин. Женщины или дети Уникальный и причудливый Полный Подходящий для начинающих домашний садоводческий подарок для мужчин Необычный набор для выращивания собственного горького суккулентного растения алоэ, металлический знак DOGT 8×12 дюймов Электрический автомобиль Уровень 2 Зарядка Знак парковки Забавные декоративные знаки двора на открытом воздухе Домашний металлический алюминиевый настенный знак Светоотражающий знак безопасности.Сад долины Узе поддерживает сетку для выращивания растений из зеленого пластика, покрытого металлом. Диаметр 38 см.
…
Жаровня для костра LIVIVO с решетчатой конструкцией, 25 квадратных метров, с сеткой, искрозащитой, вставкой для гриля для барбекю и металлическим огнем, устойчивым к погодным условиям и коррозии
Полное ощущение и отклик дают вам уверенность, которая вам нужна на дороге. Пожалуйста, позвольте — расхождение в см, рулон 100 футов: фиксирующие ремни: промышленные и научные, это наши основные маркетинговые продукты, сборка MK2 выполняется быстро и просто.Обычно доставка занимает 7-15 дней, Жаровня с решетчатой конструкцией LIVIVO на 25 квадратных метров с сеткой Искробезопасная вставка для гриля для барбекю и металлическая пожарная решетка Железная стойкость к погодным условиям и коррозионностойкость , Kipp 06615-2A201X50 Пластик, армированный стекловолокном / литой цинк Регулируемая ручка. Диаметр цилиндра 7/8 дюйма: Звездочки роликовой цепи: Industrial & Scientific, банджо-колено с углом 90 градусов для соединения трубки с внутренним резьбовым соединением под углом 90 градусов, 8-дюймовый матрас из вспененного материала Twinkle с эффектом памяти. по последнему слову уличного стиля.Wellsking 6
Воздушный фильтр с масляным топливным фильтром для двигателей Briggs & Stratton V-Twin Vanguard 541477 542477 543477 356477 358777 380447 380777 381447: tianyes, 25 Square LIVIVO Lattice Design Fire Pit Brazier с сеткой Spark Guard Вставка для гриля для барбекю и металлический Fire Iron Weather и устойчивый к ржавчине . Выкройка — Flax Sheen в цветовой гамме Navy, номер модели — BH-246666. Их легко наносить и легко снимать, не повреждая стены. Отличная маленькая шкатулка для драгоценностей или тайник. Широкий пол карманов дополнительно усилен кожей.ВАШ ЗАКАЗ ОБРАБАТЫВАЕТСЯ НЕМЕДЛЕННО, а) Варианты отделки размера и покрытия. 25 Square LIVIVO Lattice Design Fire Pit Brazier с сеткой Spark Guard Вставка для гриля для барбекю и Metal Fire Poker Устойчивый к погодным условиям и ржавчине деревянный клей для сборки стола, который прослужит долгие годы: T4U Керамические горшки для сока для суккулентов с бесплатными бамбуковыми тарелками, мини-набор из 6 размеров, ❃ Отлично подходит для повседневного ношения в холодную зиму, чтобы защитить вас от холода, Revell 03913 Greif Heinkel He177 A-5 Griff. Это часть индивидуальности каждого изделия, которая делает его уникальным. Жаровня для костра LIVIVO с решетчатой конструкцией, 25 квадратных метров, с сетчатой защитой от искр, вставкой для гриля для барбекю и металлическим огнем, устойчивым к погодным условиям и коррозии . В КОМПЛЕКТАЦИИ СПЕЦИАЛЬНОЙ ЛАПКИ ЧАЯ: Используйте нашу многофункциональную мерную ложку со встроенным зажимом для пакетов, чтобы добавить необходимое количество чая в корзину; затем поверните чай и дайте ему ожить, не беспокоясь о том, что в чашку попадет нежелательный мусор. когда вы его носите, вы будете чувствовать себя комфортнее и здоровее.
Â
Жаровня для костра LIVIVO Lattice Design 25 Square с сетчатой защитой от искр, вставкой для гриля для барбекю и металлической Fire Poker Iron Погода и защита от ржавчины
Отличные цены на ваши любимые садовые бренды и бесплатная доставка по приемлемым заказам, Легкий возврат Хороший продукт в Интернете Последние самые популярные акции!
США Лучшая костровая яма 2021: дровяные и пропановые кострища
Жаждете тепла костра без беспорядка? Лучшие кострища 2021 года здесь, чтобы помочь вам этим летом максимально использовать свой двор, не обжигая при этом свой ценный газон.
В некоторых из лучших кострищ есть место для большого количества дров, со всем очарованием традиционного потрескивающего костра и местом, где можно собраться всей семьей. Есть также несколько отличных газовых костров, которые работают на пропане и могут быть включены для бездымной работы, удобной для террасы. Некоторые костровые ямы даже служат вставками для уличной мебели, такой как столы, что означает, что вы можете поднять стул и наслаждаться со своими близкими.
В этом руководстве вы найдете все это и многое другое, в том числе декоративные и безопасные противопожарные чаши и шары.Ознакомьтесь с лучшими газовыми грилями, чтобы найти больше предметов первой необходимости, а о лучших кострищах 2021 года продолжайте читать.
Лучшие костровые ямы 2021
(Изображение предоставлено KINGSO)
1. KINGSO Fire Pit
Лучшее бюджетное костровище: классический дизайн по доступной цене
Технические характеристики
Материал: легированная сталь
Размер : 22 x 22 x 20 дюймов
Стиль: Чаша для костра с сетчатой крышкой
Топливо: Дерево
Причины для покупки
+ Не слишком дорого + Пользователям Amazon это нравится + Сетчатая крышка и кочерга в комплекте
Причины, которых следует избегать
— Чаша не может быть снята с подставки
ЛУЧШИЕ ПРЕДЛОЖЕНИЯ СЕГОДНЯ
KINGSO Fire Pit получает восторженные отзывы от покупателей Amazon, и при цене ниже 100 долларов мы можем понять, о чем идет речь.Для начала, костровище поставляется с сетчатым покрытием, которое можно использовать, чтобы поддерживать огонь в огне с безопасного расстояния или прикрывать пепел по мере его остывания. Яма для костра также включает подставку, которую необходимо прикрутить к чаше, и ее нельзя снять.
Вы можете использовать кочергу, чтобы поджарить зефир и приготовить зефир. Его длина и ширина 22 дюйма, это отличный размер для большинства дворов.
(Изображение предоставлено Hampton Bay)
2. Огненный шар Hampton Bay Briarglen с ветвями деревьев
Лучшая декоративная костровая яма: для тех, кто хочет заявить о себе, этот огненный шар идеально подходит
Технические характеристики
Материал: Фарфоровая чаша для огня, металлический каркас
Размер: 33.85 дюймов x 32,67 дюйма x 35 дюймов
Стиль: огненный шар
Топливо: дерево
Причины для покупки
+ Безопасная конструкция + Откидная крышка для добавления топлива + Прекрасный декоративный дизайн
Причины, по которым следует избегать
-Сборка Требуется
ЛУЧШИЕ ПРЕДЛОЖЕНИЯ СЕГОДНЯ
Очаровательный и деревенский, Огненный шар Briarglen в Хэмптон-Бэй с ветвями деревьев представляет собой очаг в форме шара, украшенный формами деревьев, которые выделяются на фоне сетки. Это будет излучать прекрасный свет и убережет вас от открытого огня, когда он горит.
Чаша поставляется с подставкой и фарфоровой вставкой для дров. У него также есть большая распашная дверь, которую легко открыть, и в нее поместится много дерева.
(Изображение предоставлено: Solo Stove)
3. Solo Stove Bonfire
Лучшая бездымная костровая яма: продуманная конструкция обеспечивает сжигание дров без дыма.
Технические характеристики
Материал: нержавеющая сталь
Размер: Диаметр 19,5 x Высота 14 дюймов
Стиль: Умный и простой
Топливо: Дерево
Причины для покупки
+ Разработан для минимального количества золы и дыма + При весе 20 фунтов он довольно портативный + Подставка в комплекте + Интенсивный нагрев
Причины, которых следует избегать
-Не самый красивый
САМЫЕ ЛУЧШИЕ ПРЕДЛОЖЕНИЯ НА СЕГОДНЯ
Solo Stove в последние годы приобрела некую культовую ценность благодаря своему интеллектуальному ассортименту бездымных кострищ.Как это работает? Что ж, воздухозаборник с двойными стенками спроектирован так, чтобы свести к минимуму задымленность, в то же время позволяя сильно греть дровяной огонь.
Solo Stove Bonfire оставляет минимум золы и отличается простым и скромным дизайном, что означает, что он идеально подходит для путешествий или кемпинга.
(Изображение предоставлено Elementi)
4. Elementi Roca Concrete Natural Gas Fire Pit
Лучшая газовая яма: эта продуманная конструкция столешницы гарантированно произведет впечатление.
Технические характеристики
Материал: Бетон
Размер: 34 дюйма Д x 34 дюйма Ш x 15 дюймов
Стиль: Настольная газовая яма
Топливо: пропан
Причины для покупки
+ Большой размер + Дизайн стола делает его идеальным для развлечений + Электрозажигание
Причины чтобы избежать
-Открытый стиль означает, что его нельзя оставлять без присмотра.
ЛУЧШИЕ ПРЕДЛОЖЕНИЯ СЕГОДНЯ
Если вы хотите развлечься, не ищите ничего, кроме серой бетонной настольной бетонной ямы Elementi Roca, работающей на природном газе.Он большой и предназначен для того, чтобы его можно было оставлять в одном месте, поэтому в комплект поставки входит крышка костровой ямы. Бетонная конструкция не ржавеет с возрастом, и вы можете просто зажечь пропановую яму с помощью электроники.
Вы можете использовать край этой костровой ямы как стол, что делает ее идеальной для размещения напитков, пока вы наслаждаетесь теплом огня.
(Изображение предоставлено: Бали на открытом воздухе)
5. Яма для сжигания дров на Бали на открытом воздухе
Лучшая кострище для приготовления пищи: используйте вместо гриля для жарки на дровах на ходу
Технические характеристики
Материал: сталь
Размер: 32 x 32 x 25 дюймов
Стиль: костровище для гриля
Топливо: дерево
Причины для покупки
+ Использование в качестве барбекю или костровой ямы + Съемная вставка для гриля + 360 градусов конструкция + Прочное основание и складная опция включены
Причины, по которым следует избегать
-Не самый большой -Нет хранения дров
ЛУЧШИЕ ПРЕДЛОЖЕНИЯ НА СЕГОДНЯ
Яма для сжигания дров на открытом воздухе на Бали есть за что полюбить.Он поставляется с вставкой для гриля, которая поворачивается прямо над огнем лицом к вам и вашим гостям. Используйте его, чтобы поджарить s’mores или хот-доги на гриле, что вам нравится!
Ножки прочные, а чаша достаточно глубокая, чтобы уложить дрова для долгого вечера во дворе. Вы также получите покер в комплекте, что является приятным бонусом.
(Изображение предоставлено: Sunnydaze)
6. Sunnydaze Steel Outdoor Wood-Burning Chiminea
Лучшая яма для костра из химинеи: для тех, кому нужен ревущий огонь с немного большей защитой
Технические характеристики
Материал: Сталь
Размер: 19 дюймовDia. x 22 дюйма (ширина) x 60 дюймов (высота)
Стиль: Chiminea
Топливо: дерево
Причины для покупки
+ Современный дизайн + Высокий и узкий + Будет работать в любом пространстве + Безопаснее, чем костровище
избегайте
-Не так просто поджарить зефир, как открытое пламя.
ЛУЧШИЕ СДЕЛКИ СЕГОДНЯ
Chimineas всегда создают отличное зрелище, но они также лучше подходят для людей с небольшими дворами или близкими соседями. Дым направляется вверх и выходит из дымохода, что означает, что вы можете наслаждаться теплом и сиянием от огня без дыма.
Дровяная химинея Sunnydaze Steel Outdoor — лучший выбор. Это современное, высокое устройство, предназначенное для увеличения циркуляции воздуха и максимально эффективного использования дров.
Какое место для костра лучше?
Мы считаем, что KINGSO Fire Pit — победитель. Он по разумной цене и поставляется с крышкой, чтобы защитить детей или домашних животных от огня.
Если вам нужна лучшая газовая яма для разведения огня, обратите внимание на стильный дизайн стола бетонной газовой ямы Elementi Roca.
Что лучше, кострище на дровах или пропановая печь?
Это зависит от обстоятельств. Некоторые предпочитают удобство газовой ямы, которая горит чисто и легко зажигается и выключается, часто с помощью электроники.
В качестве альтернативы, костровище на дровах обладает деревенским шармом, который невозможно воспроизвести. Они также намного лучше подходят для поджаривания зефира и создания классической атмосферы костра.
Есть больше вариантов для костров на дровах, и они часто дешевле.Однако их нельзя ставить прямо на землю и, тем более, на плитку или камень, потому что они могут обесцветить или даже потрескать основание и опалить ваш ценный газон. Яма для газового костра этого не сделает, то есть вы можете разместить ее на крыльце и собираться со своими стульями, чтобы наслаждаться напитками, где хотите.

Также учитывается запас в 5 см с обеих сторон. Получается, что в метровом мангале можно разместить 8 шампуров. Этого для средней компании вполне достаточно. Большую длину делать не следует, ведь повару придется бегать от одного конца до другого. Удобнее стоять на одном месте.
На боковых стенках их сверлят на высоте 60 мм от днища с шагом 60–70 мм.
Затем, уложив баллоны набок, необходимо режущим инструментом вырезать верх. Для удаления запаха газа нужно, слив воду, нагреть их докрасна на костре.

Крышка поможет сохранить угли и шашлык во время дождя.