идеи и варианты перепланировки, советы дизайнеров
Когда проживание в двухкомнатной квартире перестает быть комфортным, владельцы задумываются о смене жилья на более просторное. Но что делать, если по каким-то причинам переезд невозможен? В такой ситуации можно задуматься о перепланировке квартиры, например, попробовать сделать из «двушки» «трешку». Как правильно разделить свободное пространство и получить дополнительную комнату, мы рассказали в нашей статье.
Определите цель перепланировки
Перед началом работ поставьте перед собой главную задачу: определите, какой зоны вам не хватает в квартире. Также необходимо выбрать пространство, которым вы готовы пожертвовать для достижения поставленной цели.
Самый простой метод, как сделать из «двушки» «трешку» — задействование балконов, гардеробных и части прихожей. Если же такой вариант не рассматривается, придется обозначить границу двух пространств в пределах одной комнаты. Обычно для этой цели выбирают самое просторное помещение.
Рассмотрим доступные методы перепланировки жилья.
Глобальные изменения в плане квартиры
При достаточном количестве времени и финансов можно затеять масштабную перепланировку. Например, возвести новую кирпичную стену по центру одной длинной комнаты или сместить перегородку между жилой комнатой и прихожей. Такие работы потребуют участия многих специалистов и существенных временных затрат.
Обратите внимание и на то, что если вы хотите путем сноса стен сделать из «двушки» «трешку», проект квартиры придется полностью переделывать. В новом документе следует указать расположение планируемых стен, розеток, выключателей и осветительных приборов.
Сложности глобальной перестройки заключается еще в нескольких моментах:
- Перед началом работ вам потребуется нанять специалиста, который составит новый план квартиры.
- С готовым документом необходимо обратиться в БТИ и получить разрешение на проведение работ. Если вы планируете затронуть несущие перегородки, получить положительный ответ будет гораздо сложнее.

- По окончании ремонтных работ в жилое помещение выезжает комиссия, которая фиксирует качество выполненных работ и оценивает, не был ли нанесен вред несущим конструкциям дома.
Конечно, вы можете отказаться от официального оформления перепланировки, но в дальнейшем продать или оформить другие официальные документы по данной квартире будет невозможно. Также следует помнить о штрафах, которые грозят владельцам жилья за незаконную перепланировку. Поэтому документы лучше оформить вовремя.
Визуальное разграничение пространства
Если глобальный ремонт не входит в ваши планы, воспользуйтесь еще одним методом, как из «двушки» сделать «трешку»: используйте приемы визуального определения границ помещения.
В ходе подобных работ можно использовать:
- всевозможные ширмы;
- нитяные и полотняные шторы;
- мягкую мебель;
- сквозные стеллажи и ниши;
- различное цветовое оформление зон;
- разграничение при помощи осветительных приборов.

Сразу обратите внимание на то, что использовать метод визуального разграничения можно только в просторных комнатах, так как фактическая площадь помещения остается прежней, но делится уже на 2 зоны.
Такие решения часто используют для разделения большой гостиной на рабочий кабинет и зону для приема гостей и отдыха всей семьей. Если же вы обладаете просторной спальней, при помощи раздвижных дверей, ширм и прочих элементов интерьера вы можете выделить место для детской комнаты, гардеробной или даже гостиной.
Варианты перепланировки: задействование балкона
Если ваша квартира оборудована балконом, используйте это пространство с пользой. О наличии лоджии в квартире вас просит любой проектировщик, к которому вы обратитесь с вопросом о том, как сделать из «двушки» «трешку». Фото, проекты подобных изменений в квартире демонстрируют огромные возможности использования дополнительных квадратных метров.
Например, на балкон можно полностью вынести кухню, а освободившееся пространство использовать в качестве жилой комнаты.
Предварительно это пространство придется утеплить, но зато по итогу вы получите комнату, которой вам так не хватает.
Кроме того, на освободившемся балконе или лоджии можно обустроить следующие комнаты:
- столовую;
- будуар;
- зимнюю оранжерею;
- место для отдыха за чашкой кофе;
- рабочий кабинет;
- миниатюрный спортивный зал.
Если вы затеяли глобальную перепланировку, кухню можно лишь слегка сдвинуть в область лоджии, а свободное пространство использовать в прилегающей комнате путем переноса разделяющей стены.
Используя этот способ, обратите внимание на то, что жилищная организация не одобрит переоформление кухни под обычную комнату. Это связано с тем, что по строительным нормам не разрешено обустраивать жилое помещение под мокрыми зонами. Если же на новом плане квартиры обозначить это место как гардеробную или кладовую, то проект согласуют с большей долей вероятности.
Изменения в области прихожей и санузла
Специальные проектные бюро предложат вам несколько вариантов, как из «двушки» сделать «трешку».
Фото ранее выполненных работ говорят о целесообразности внесения изменений в область санузла и прихожей.
Например, если вы обладаете прихожей больших размеров, уменьшите ее до минимальных параметров. Свободные квадратные метры присоедините к прилегающей комнате. Увеличенное таким образом пространство можно будет разделить на две полноценные жилые зоны.
Задействовать в перепланировке санузел придется тем владельцам 2-комнатных квартир, которые ломают голову над тем, как из «двушки» распашонки сделать «трешку». Фото аналогичных квартир демонстрируют сложность перепланировки, ведь комнаты располагаются друг напротив друга и не могут быть объединены.
В такой ситуации можно использовать лишние квадраты из санузла, который чаще всего расположен между жилыми помещениями. Если ванная комната и без того маленькая, ее можно расширить посредством уменьшения прихожей.
Использование складских помещений
Жители домов старого фонда могут использовать еще один вариант, как из «двушки-хрущевки» сделать «трешку».
Поскольку подобные квартиры чаще всего имеют 1-2 кладовки, их владельцам доступен еще один вариант увеличения полезной площади.
В домах 40-х годов постройки такие помещения располагались прям в жилых комнатах, что позволяет удачно расширить помещение без демонтажа капитальной стены. Ниши вблизи кухни и прихожей целесообразнее использовать для увеличения именно этих комнат, а дополнительные квадратные метры уже можно присоединить к нужным помещениям.
Если вы не представляете свою жизнь без кладовой, не стоит полностью от нее избавляться. Просто перенесите нишу для хранения хозяйственных принадлежностей в другой угол, а за счет освободившегося пространства расширьте ближнюю комнату.
Из одной комнаты сделайте две
Вышеописанные варианты перепланировок подходят владельцам квартир с маленькими комнатами. Если же в вашем жилье имеется хоть одно просторное помещение, воспользуйтесь самым популярным методом получения дополнительной комнаты — делением.
В данном случае будет необходимо определить пространство для новой комнаты и оградить его стеной от основного помещения.
Этот способ можно совместить с расширением за счет лоджии. Предварительно можно снести балконный блок, утеплить пространство и приступать к строительству разделяющей стены. Таким образом первая комната будет не сильно уменьшена, но при этом вы получите еще одно жилое помещение.
Что делать, когда снос стены невозможен
Если в силу архитектурных особенностей вашей квартиры снос нужной стены осуществить невозможно, обустройте на ее месте большой проем. Подобный прием используют проектировщики, когда нужно из большой «двушки» сделать «трешку». Как это выглядит?
Например, вы хотите обзавестись столовой, но для этого вам необходимо соединить кухню с комнатой. В таком случае на месте несущей стены установите колонны или обустройте арку, портал.
Оставшееся от комнаты пространство отделите от кухни легкой перегородкой. Так вы получите желаемую столовую с разграничением зон для готовки и приема пищи. Отделенная новой стеной комната слегка уменьшится, но продолжит использоваться по своему назначению.
Что нужно учесть, затевая перепланировку квартиры: советы дизайнеров
Задумываясь над тем, как сделать из «двушки» «трешку», обратите внимание на некоторые важные моменты, которые могут повлиять на итоговый результат.
К таковым относят:
- расположение оконных проемов;
- несущие способности новых перегородок.
Если вы планируете получить третью комнату путем разделения большого пространства, учтите место расположения оконного проема. Если он всего один, то вторая комната будет нуждаться в дополнительных источниках освещения, которые должны работать даже в светлое время суток.
Также внимательно следует выбирать материал для сооружения простенков. Самый простой, дешевый и легкий в работе вариант — стены из металлических профилей и листов гипсокартона. Однако использовать подобные конструкции можно лишь в тех случаях, когда большой нагрузки на стены не предвидится.
Если же вы планируете монтаж навесной мебели и техники, применяйте более надежные строительные материалы:
- кирпич;
- силикатные блоки;
- гипосвые блоки;
- пеногазобетон.

Последний вариант наиболее популярен, так как обладает легким весом, достаточной прочностью и легок в работе.
Варианты визуального разделения зон
Если глобальный ремонт не входит в ваши планы, используйте метод визуального разделения пространства. Он позволяет из «двушки» сделать «трешку» в современной новостройке с большими комнатами.
Разграничение зон осуществляется в самом просторном помещении. Если вам нужна полноценная комната с запирающимися дверями, используйте специальные раздвижные полотна. Такая перепланировка не требует разрешений от уполномоченных органов и выполняется очень быстро.
В тех случаях, когда вам нужно просто выделить зону для приема пищи или работы, можно добавить в интерьер мебель, которая будет разделять пространство. Также с подобной целью часто используются складные ниши, шторы любых разновидностей и арочные проемы из легких конструкций.
Заключение
С проблемой нехватки дополнительных комнат сталкивается большинство российских семей.
По этой причине владельцам подобного жилья приходится проявлять смекалку и искать выход из сложившейся ситуации.
Кто-то разбивает одну комнату на несколько меньших помещений, а кто-то, наоборот, задается вопросом о том, как из трешки сделать двушку. Смешной кухней маленьких размеров или еще более скромной по площади прихожей обладают большинство жителей многоэтажных домов. Однако в каждом случае есть варианты, как сделать свое жилье более комфортным.
Самые удачные варианты обустройства «двушки» в П-44Т
П-44Т — одна из самых распространенных серий типовых панельных домов. Ее легко узнать по эркерам и полуэркерам на фасаде.
Типовая планировка
В зависимости от плана этажа двухкомнатная квартира может быть линейной или распашонкой.
В обоих вариантах на кухне есть эркер — угловой или полукруглый. А площадь жилых комнат примерно одинакова.
Но при торцевом расположении в «двушке»-распашонке бывает еще один угловой эркер, а также несущие полуколонны в большой жилой комнате.
С угловым эркером в жилой комнате
Если квартира расположена в торце здания, то на кухне будет полукруглый эркер, а в жилой комнате — еще один треугольный.
Архитектор Мария Закалата превратила подоконник в треугольном эркере в столешницу, чтобы любоваться видом из окна или работать с ноутбуком. А в нишу у окна как раз встал диван. Раскладывающийся механизм позволяет при необходимости оставить гостей на ночь.
Вторую комнату отвели под спальню. Лоджии в обоих случаях утеплили и присоединили. Это спорное решение: для согласования такой перепланировки потребуется разрешение разработчика серии домов П-44Т — МНИИТЭП.
Для кухни специально подобрали диван такого размера, чтобы он уместился в эркере. А в угловом гарнитуре встроили всю необходимую бытовую технику и предусмотрели систему хранения для посуды и продуктов.
Из «двушки» в «трешку»
Дизайнер Егор Сомов пошел дальше и полностью разделил комнату с угловым эркером на две.
Зону с эркером дизайнер отвел под гостиную. Она небольшая, но уютная.
Несущие выступы между двумя частями комнаты нарастили и навесили раздвижные стеклянные двери. За ними скрывается детская.
Спальня прямоугольная, поэтому в глубине ее разместили гардеробную. У окна оставили место только для кровати и пары тумбочек.
На кухне зону у эркера отвели для столовой. Из-за этого угловой гарнитур чуть меньше, чем в остальных вариантах планировки. Чтобы компенсировать этот недостаток, слева от входа установили шкафы-колонны со встроенной техникой.
«Двушка»-распашонка с двумя санузлами
Перед специалистами архитектурного бюро Loven Skold стояла нелегкая задача: сделать из одного санузла два, к тому же с ванной и кабиной с тропическим душем!
Спальню оставили почти без изменений — разве что выстроили гардеробную в глубине комнаты. А вот остальную часть квартиры затронула серьезная перепланировка. Например, гостиная стала проходной: из нее теперь можно попасть на кухню.
Эту перепланировку предусмотрел застройщик, заложив в стене нишу для дверного проема. Кроме того, к комнате присоединили утепленный балкон.
Вход на кухню со стороны коридора заложили, чтобы расширить санузел. На месте двери установили стиральную и сушильную машины. А остальные две стены занял вместительный угловой кухонный гарнитур. Причем его развернули к окну с эркером. Реализовать такой проект удастся только с мебелью, сделанной на заказ.
Перенос кухонной двери позволил освободить коридор. На этом месте и выстроили дополнительный санузел. А существовавший в квартире изначально раздельный санузел объединили. Место туалета заняла кабина с душем.
Линейная квартира с треугольным эркером на кухне
Дизайнеры бюро «Общая площадь» сделали минимальную допустимую перепланировку в квартире для семьи с ребенком.
Раздельный санузел объединили, чтобы выкроить место для шкафа со стиральной машинкой. Остальные помещения остались на своих местах.
Для отдельной гостиной места не было, поэтому модульный диван и кровать установили в большой комнате и разделили зоны открытым стеллажом. Торцевую стену отвели под встроенную систему хранения. Принимать гостей в этой комнате не планируют — тут будет отдыхать только семья.
Маленькая комната превратилась в детскую. Места хватило и для отдыха, и для учебы, и для спортивных снарядов. Для хранения вещей вдоль стены с дверью установили П-образный шкаф.
Семья намерена собирать гостей на кухне. Поэтому было важно помимо вместительного углового гарнитура оставить достаточно места для обеденного стола. Рабочая поверхность с гарнитура переходит на подоконник, а под ней решетка, за которой прячется радиатор отопления. Такой вариант позволяет эффективнее использовать пространство и сохранить целостность в оформлении интерьера.
Дизайнер Виктория Золина и команда студии Zi-Design тоже отказались от перепланировки. Вместо этого главной фишкой проекта стало вертикальное зонирование.
Спальные места подняли под потолок — установили над системой хранения. Это позволило решить сразу две проблемы: даже в гостиной кровать скрыта от посторонних глаз, а у мамы с ребенком появилось место для хранения большого гардероба.
В детской использовали тот же прием — создали шкаф-кровать с лесенкой. В комнате осталось больше места для отдыха, игр и занятий.
Кухня не совсем типичная для серии П-44Т: вместо эркера здесь есть небольшой угловой балкончик. Его использовали, чтобы обустроить зону отдыха на подиуме. Планировка оставшегося прямоугольного помещения типовая — угловой гарнитур и круглый обеденный стол.
Перепланировка дизайнера Ольги Погореловой тоже была незначительной. Санузел она объединила, маленькую комнату с полуэркером отвела под детскую, а в большой комнате обустроила спальню.
Большую комнату разделили на две части и перенесли вход. Теперь спальня стала меньше по площади, зато появилась гардеробная для хранения всех вещей семьи.
Для хранения в детской предусмотрели комод и шкаф, а у полуэркера отлично встало «ушастое» кресло, в котором будет отдыхать мама или няня.
Поскольку гостиной в квартире нет, ее создали на кухне. Диван и обеденный стол позволяют рассадить немало гостей. В линейном гарнитуре со шкафом-колонной уместилось все необходимое, а вот столешницу продолжили и на эркере. Получилась своеобразная барная стойка.
Гостиная-прихожая
Архитекторы Анастасия Пугачевич и Андрей Сайко решились на более радикальные перемены.
Во-первых, конструкция дома позволяла сделать проем между кухней и гостиной, а старый заложить. Из-за этого увеличилась рабочая поверхность на кухне, а санузел расширился за счет коридора.
Единственную не несущую стену в квартире между комнатой и прихожей демонтировали. Благодаря этому крохотная гостиная стала казаться просторнее.
Зону у входа все же отделили встроенными шкафами с доступом с обеих сторон: в гостиной — открытые полки, а в прихожей — верхняя одежда.
Фото: Loven Skold, Анастасия Пугачевич и Андрей Сайко, Виктория Золина, Егор Сомов, Игорь Порхомовский, Мария Закалата, «Общая площадь», Ольга Погорелова, Роман Карасёв
Что подразумевают под фразой «квартира
Гостиная зона и рабочее место
В гостиной зоне установлен набор мебели для комфортного отдыха — диван, столик и тумба для разных мелочей. Для просмотра видео служит телевизионная панель с многоканальной акустикой. Интерьер построен на цветовых контрастах, придающих ему индивидуальность: белая и темно- бирюзовая окраска стен великолепно сочетается с отделкой пола «под дерево» и цветом дверей «дымчатый дуб».
Угловую часть комнаты занимает рабочее место со столом интересной конструкции, эргономичным стулом, открытыми полками для размещения папок и книг. Для освещения служат потолочные направленные светильники.
Перепланировка 3-х комнатной хрущевки
Владельцы, решившиеся на кардинальные перемены, как правило, идут по проторенным тропинкам предшественников.
Есть несколько стандартных вариантов преображение 3-х комнатной квартиры.
Объединение кухни с гостиной
В этом случае стену между комнатами сносят, а дверной проем, наоборот, закрывают, а оставшиеся от прохода метры присоединяют к санузлу. Кухонную перегородку либо удаляют полностью, либо делают арку, ведущую в гостиную. При демонтаже стены ее заменяют прозрачными раздвижными системами или используют другие способы зонирования — мебель, подиум, различное оформление частей помещения.
Использование подсобных помещений
Так как главную комнату чаще делают гостиной, для спальни дефицит пространства бывает очень ощутимым. Эта стесненность вынуждает хозяев рационально использовать каждый сантиметр. Если в комнате есть дополнительное пространство — небольшое подсобное помещение, то его превращают в гардеробную, отделенную от комнаты легкой перегородкой либо шторами. Другой вариант — небольшое расширение спальни за счет соседней комнаты.
Долой длинный коридор!
Главный минус хрущевок — узкие и длинные коридоры.
Эти неудобные помещения не дают возможности установить в них функциональную мебель. Поэтому нередко перепланировка 3-х комнатной хрущевки — это сокращение прихожей в пользу ванной или санузла. Этот способ даст шанс разместить в комнате шкаф и/или стиральную машину. Однако такая переделка не самая простая задача, поэтому консультации со специалистами не помешают.
Использование балкона
Расширение территории присоединением утепленного балкона. Стену сносят полностью, освобождая место под столы, шкафы, или частично. В последнем случае на бывшем подоконнике делают барную стойку, которая при необходимости становится дополнительной рабочей поверхностью, или обеденным столом. Для надежности конструкции в старых хрущевках советуют укреплять новую зону. После объединения лучше сделать общую бетонную стяжку для увеличившегося помещения.
Соединение
Еще одна возможная перепланировка 3-х комнатной хрущевки — объединение комнат. Эти варианты идеальны для небольших семей.
Удаление стен между кухней и всеми жилыми помещениями даст возможность получить квартиру-студию с различными зонами — для приготовления пищи, столовую, гостиную и спальню. Такой способ подойдет молодым семьям. Соединение двух смежных помещений, одно из которых проходное, позволит получить две просторные комнаты с отдельными выходами.
Разделение
«Распил» самой большой комнаты — вариант, который можно рассмотреть, если в ней находятся два окна. Так как в хрущевках и она не может похвастаться размерами, сначала ее расширяют за счет стены коридора. Получившиеся помещения разделяют гипсокартонной перегородкой, высоким шкафом либо раздвижной стеклянной конструкцией.
Расширение оконных проемов
Это еще один действенный способ. Эффект простора можно создать, заменив старые окна на новые стеклопакеты, если предварительно расширить старые проемы. Но для такой операции с несущими внешними стенами потребуется разрешение. Максимальную освещенность жилью подарят панорамные окна от пола до потолка.
Все описанные «метаморфозы» может дополнить совмещение туалета и ванной. Несмотря на скромные размеры санузла у владельцев появится возможность «втиснуть» в пространство необходимую мебель или стиральную машинку. Нередко демонтируют привычную ванну, заменяя ее душевой кабинкой. Этот способ дает шанс получить максимально возможные дополнительные метры.
Варианты в зависимости от типа постройки
Огромное количество домов в нашей стране построены при советской власти, именно поэтому можно столкнуться с самыми разными типами планировки, в том числе не очень удобными. В новостройках же используются более функциональные и удобные варианты расположения комнат, однако, очень часто планировка зависит от того, насколько удобно это застройщикам.
Если же дома относятся к жилым комплексам, у них планировка является готовой, типовой, а часто такой же является и отделка.
Перед тем как приступить к внутренней планировке, застройщик утверждает планы квартир в БТИ. Любые последующие изменения, которые будут вноситься в расположение комнат, считаются перепланировкой и также должны быть согласованы в БТИ.
«Сталинки»
2-комнатная квартира в «сталинке» – это высокие потолки, довольно широкий коридор и большая кухня. «Сталинки» часто выстроены полукругом, поэтому в местах «сгиба» здания квартиры могут иметь оконные проемы нетипичной формы, а также малую освещенность в некоторых комнатах.
«Брежневки»
В брежневских домах квартиры имеют раздельные санузлы (объединенные могут быть только в однокомнатной квартире). Комнаты изолированы, спланированы таким образом, что выходят на различные стороны дома. Прихожие имеют достаточно места для того, чтобы расположить встроенный шкаф.
Что касается материала для строительства, используются железобетонные плиты, обшитые панелями. В отношении строительства действует СНиП 1962 года.
Несмотря на то что общие площади квартир довольно велики из-за наличия балкона (а в трех- или четырехкомнатных квартирах – зачастую двух), полезная площадь не так велика, как кажется. Кухня имеет площадь около 9 м2, прихожая узкая.
«Хрущевки»
Дома- «хрущевки» сразу наводят на мысли о тесных комнатах и неудобной планировке, и это действительно так.
Однако благодаря этой жилищной программе из коммунальных квартир было расселено большое количество семей.
Конечно, изначально планировки у двухкомнатных квартир в этих домах совсем неудобные. Расположение комнат смежное либо проходное, общей площадью 40-45 м2. Потолки имеют высоту 2,5 м, наружные стены – толщину 0,3-0,4 м. Соответственно, поскольку стены тонкие, то и звукоизоляции практически нет.
Стандартная двухкомнатная «хрущевка» может иметь такую планировку:
- «книжка» общей площадью 41 м2, ее особенностью являются смежные комнаты, и она считается одной из наиболее неудобных;
- «трамвай» – немного побольше, 48 м2, также со смежными комнатами, однако, их удобнее перепланировать;
- «мини-улучшенка» – 44,6 м2 с изолированными комнатами, здесь перепланировка возможна, причем не только комнат, но и кухни;
- «распашонка» или «бабочка» (здесь площадь может варьироваться в зависимости от величины комнат, может быть и 38, и 39, и 46 кв. м) – комнаты одинаковые по размеру, изолированные и расположены симметрично, при этом несмотря на очевидное удобство, перепланировка такой квартиры очень сложна.

Новостройки
Одна из основных проблем при планировании «двушек» – это окна. Проекты кирпичных или панельных зданий, красивых снаружи, имеющих причудливую форму, вполне допускают образование «слепых» квартир. Эти жилые помещения получили свое название из-за отсутствия или малого количества в них окон.
Это касается не только так называемого доступного» жилья, в элитных домах такое тоже не редкость. Есть варианты, когда современная квартира или студия обладает огромной площадью до 200 м2, но при этом спланирована таким образом, что изменить что-либо совершенно невозможно.
Новостройки
Планировка трехкомнатных квартир в новостройках предполагает площадь от 75 кв. м. до 200 кв. м. и далее, но это уже относится к элитному жилью. Подобные квартиры имеют более, чем один санузел. Комнаты просторные, с возможностью перепланировки. Потолки высотой три метра. Кухня имеет площадь от 12 кв.м. Современные дорогие апартаменты имеют два этажа, где две спальни. Из подобных больших квартир делают студии.
Но отличительно то, что коридоры довольно узкие, если дом относится к среднему уровню.
Пример современной планировки трехкомнатной квартиры
В новостройках всегда жилплощадь была с повышенным комфортом. Такие дома со стоянками, мусоропроводом, местами под парковку.
Планировка распашонка 2 комнатной. Квартира-распашонка: что это?
Слово «распашонка» или «бабочка» в отношении квартирной планировки означает квартиру, комнаты которой располагаются друг напротив друга и разделяются коридором, а окна комнат выходят на разные стороны дома: на улицу и во двор.
В центре квартиры находится коридор, заканчивающийся обычно кухней, помещением санузла или встроенной кладовкой (гардеробом).
История названия и современность
История названия начинается со времен массовой застройки городов «хрущевскими» домами, состоящими из малогабаритных квартир, и призванных в короткие сроки обеспечить граждан Советского Союза жильем.
Произошло название из-за сходства планировки таких квартир с детскими рубашками-распашонками.
Комнаты, расходящиеся в разные стороны – это рукава распашонки, а коридор, разделяющий их это центральная часть рубашки. Окна комнат представляют собой отверстия в рукавах, а вход в квартиру обычно является низом распашонки.
Квартиры этой планировки пользуются популярностью и у современных застройщиков и граждан. Практически ни один план жилого комплекса не обходится без таких квартир, они пользуются спросом и быстро раскупаются.
Вариант названия «бабочка» настолько же уместен к данной планировке. Комнаты это крылья, а коридор – тельце бабочки.
Основные виды планировки «распашонки»
Название «распашонка» применяется к однокомнатным, двухкомнатным и даже к некоторым трехкомнатным квартирам.
Для однокомнатных квартир планировка практически стандартная: прихожая квартиры заканчивается ванной и туалетом или совмещенным санузлом, слева и справа по коридору расположены входы в кухню и гостиную.
Для двухкомнатных и трехкомнатных вариантов гораздо больше, но все они зависят от планирования расположения всех квартир дома и площади, отведенной на них.
Приведем в пример несколько из них:
- Квартира со стандартным расположением кухни – самая распространенная планировка. Возле входной двери справа или слева располагается жилое помещение. В конце коридора прямо ванная комната и туалет, друг напротив друга, находятся входы в кухню и второе жилое помещение.
- Еще один стандартный вариант : коридор заканчивается кухней, по обе стороны коридора располагаются входы в жилые комнаты. Санузел находится перед кухней на одном с ней уровне.
- Современный вариант новостроек: прихожая ведет в кухню-студию, уже объединенную с гостиной. Справа расположена комната меньшей площади. Туалет и ванная находятся справа, на одном уровне с кухней.
- Вариант с кухней и санузлом у входа в квартиру . Коридор из прихожей ведет на кухню, мимо санузла, с одной стороны, и спальни с другой. В конце прихожей вход во вторую комнату.
Преимущества квартиры-распашонки
Семьи, не один год проживающие в квартирах-распашонках , отмечают несколько преимуществ по сравнению с квартирами других планировок:
- Прекрасный обзор местности, особенно для жильцов верхних этажей высотных домов.
Закатами и восходами солнца можно любоваться из окон или с балконов своей квартиры. - Комнаты квартиры одновременно расположены на солнечной и затененной стороне дома , поэтому каждый может расположиться с комфортом в зависимости от предпочтений освещенности.
- Квартира очень легко и быстро проветривается, что является неоспоримым преимуществом в случае болезни кого-то из семьи, при большом количестве гостей, а также в жаркие летние дни.
- Нет проходных комнат , за редким исключением отдельных планировок;
- Во многих домах старой постройки жилые комнаты таких квартир имеют одинаковую площадь;
- В современных новостройках эти квартиры очень часто имеют 2 балкона;
- Разделение комнат коридором удобно и для семьи с детьми подростками и для взрослых детей, живущих с родителями . Жилые комнаты не имеют общих стен, поэтому каждая комната будет уютной и тихой.
- При перепланировке квартиры можно выделить еще одну комнату , или объединить кухню с прилегающей к ней комнатой, создав, таким образом, современную гостиную с барной стойкой или другими тенденциями квартирного дизайна.

- Покупка одного многофункционального комплекта мебели поможет обустроить квартиру в едином стиле и найти применение всей мебели.
Гостиная зона и рабочее место
В гостиной зоне установлен набор мебели для комфортного отдыха — диван, столик и тумба для разных мелочей. Для просмотра видео служит телевизионная панель с многоканальной акустикой. Интерьер построен на цветовых контрастах, придающих ему индивидуальность: белая и темно- бирюзовая окраска стен великолепно сочетается с отделкой пола «под дерево» и цветом дверей «дымчатый дуб».
Угловую часть комнаты занимает рабочее место со столом интересной конструкции, эргономичным стулом, открытыми полками для размещения папок и книг. Для освещения служат потолочные направленные светильники.
Вариант 3
Что поменялось:
- Санузел объединили и расширили за счет коридора. Мы не уверены, что такой большой санузел будет функциональным: прошлый вариант с кладовой нравится нам больше.
- Создание дверного проема между кухней и гостиной, как в прошлом варианте.

- В спальне воздвигли две перегородки, чтобы сделать более удобный вход и создать нишу для шкафа или кровати. Это логичное решение, не требующее особых затрат.
Согласование: санузел занимает часть коридора, что значит перемещение мокрой зоны: ее необходимо гидроизолировать, тогда согласование перепланировки возможно. Дверной проем аналогично прошлому варианту. Возведение перегородок в спальне не вызывает проблем.
Вариант 4
Что поменялось:
- Демонтаж перегородок между ванной и туалетом для расширения ванной. Туалет организован с помощью возведения перегородки в коридоре. Хороший вариант, если вам нужна просторная ванная, но при этом вам больше подходит отдельный туалет.
- Возведение раздвижной перегородки в спальне аналогично варианту 2.
- Дверной проем между кухней и гостиной, аналогично вариантам 2 и 3.
Согласование: опять мокрая зона перемещается в коридор, а в данном случае еще и появляется необходимость протягивать сантехнические коммуникации.
Минимализм в интерьере хрущевки
Перепланировка квартиры в хрущевке усложняется тем, что довольно часто в процессе ремонта приходится переносить и убирать стены, чтобы сделать помещения более просторными и удобными для жизни. Однако, поступить иным образом: сократив до минимума количество аксессуаров и мебели, чтобы разгрузить имеющееся в распоряжении, ограниченное пространство.
Оригинальный дизайн-проект квартиры данного типа в стиле «минимализм» представлен на следующем фото.
Его отличительной чертой является использование светлых, нейтральных оттенков, слегка разбавленных яркими декоративными элементами:
плитки, имитирующей «рваный камень», использующейся для оформления дверных проемов;
В качестве основы в данной квартире использована светлая, нейтральная цветовая гамма, для разбавления которой используются достаточно насыщенные и яркие коричнево-шоколадные оттенки.
Второй способ
Перенесите кухню в другое помещение. Этот вариант обустройства квартиры распашонки хоть и менее популярен, но от этого не менее эффектен. Проблемы в том, что для правильного проведения ремонта понадобиться придерживаться целого ряда норм.
В двухкомнатных квартирах почти всегда есть неиспользованная площадь, где вы можете организовать кухню. Появившаяся площадь – прекрасный повод превратить вашу двухкомнатную квартиру распашонку в трехкомнатную.
Однако следует помнить о том, что есть переносить кухню можно только в строго предназначенные для этого места. В первую очередь, речь идет о коридорах и холлах. Но если ваша квартира распложена в новостройке, то вполне возможно, что гидроизоляция здесь залита по всему помещению, а это значит, что вы можете воплотить практически любые свои дизайнерские фантазии.
Есть даже постройки, в которых зоны кухни и санузла не фирмой-строителем не были обозначены. Не забывайте, что плитку невозможно разместить дальше, чем пять метров от стояка.
Но фото вы можете видеть, как выглядят квартиры с перепланировкой, которая была выполнена по такому проекту.
Прибегать к объединению кухни с жилым помещением можно только в том случае, когда у вас дома установлена электрическая плита.
Если вы решили, что хотите в свою двухкомнатную квартиру распашонку внести подобные изменения, вам нужно будет обратиться в соответствующие органы за получением разрешительных документов. В пакете документов, которые вам нужно будет подавать, обязательно должен быть детальный план предстоящих работ.
Планировки
Их классифицируют на три типа:
- Т-образные. Такая планировка характерна как для однушек, так и для двухкомнатных квартир, трешек. По одну сторону (обычно левую) от прихожей располагается кухня и зал, а по другую — санузел и спальная зона. В бюджетном жилье упрощенная планировка. В однокомнатных квартирах коридорчик объединяет кухню и санитарную зону со спальней, размещенной по другую сторону.
- Распашонка с кухней-студией.
Просторный холл плавно переходит в кулинарную зону. По левую сторону располагается гостиная, а справа — спальня. - Планировка, при которой спальня размещается вместе с кухней по одну сторону коридорчика. Их обычно разделяет санузел. Напротив располагается зал и возможно другая комната (вторая спальня, детская, игровая, кабинет).
О том, как красиво обставить «распахнутую» квартирку и на что должны ориентироваться оформители при подготовке дизайн-проекта и поговорим дальше.
А почему именно “распашонка”?
Название данной планировки квартир не менее двояко, чем она сама. Некоторым оно нравится своей простотой, других ею же и отталкивает, но все согласятся, что в контексте рынка недвижимости, среди разнообразных “апартаментов”, “лофтов” и “таунхаусов”, русское слово “распашонка” звучит как-то не так. Кому-то оно покажется понятным сразу, даже без объяснений. А вот другим, в особенности, наверное, людям молодым, так легко не поддастся. Пришла пора объяснить самым недогадливым, почему же квартира-распашонка называется “распашонкой”.
Увы, к распахнутым объятиям, с которыми такая квартира, кажется, готова принять жильцов, её название никакого отношения не имеет. А объясняется оно подмеченным кем-то сходством с детскими рубашками-распашонками – ну, знаете, такими, без пуговиц спереди. Низ такой рубашки – это вход, центральная её часть – коридор, а рукава – комнаты.
Аналогию можно продолжить, сказав, что начало рукавов – это двери в комнаты, а концы – это окна. И даже несмотря на то, что по этой логике у некоторых квартир-распашонок бывает по два рукава с каждой стороны (это на каких же детей, интересно, их планируется надевать?!), сравнение всё равно кажется на редкость удачным.
Если вдруг вам оно по какой-то причине не нравится, можете использовать не такое популярное, но тоже известное (по крайней мере, специалистам) и весьма красивое определение – квартира-”бабочка”. Тут без ассоциаций с какими-либо другими бабочками, кроме настоящих: коридор – это тельце насекомого, а комнаты квартиры – это его крылья.
Планировка
Первый вариант планировки 2-комнатной квартиры-распашонки характеризуется акцентом на коридоре. Из него идут входы в другие зоны: в ванную, туалет, зал, спальню, кухню, детскую, рабочую комнаты.
Обычно такая планировка подразумевает от 4 до 5 дверей, которые расположены по уровню активности или шума в каждой зоне. Чем больше шума и активности в зоне, тем дверь ближе к прихожей.
Первая дверь ведет в зал или кухню. Вторая и третья двери расположены напротив друг друга, могут вести на кухню, в зал, детскую, спальню или рабочую комнату. За четвёртой и пятой дверями – спальня и санузел. Если санузел разделён, то он забирает на себя последние двери.
Особенности этой планировки в том, что кухонная зона занимает больше всего места или как минимум 1/3 площади жилья. Ею же кончается коридор. Уже из кухни вы попадаете в другие комнаты. Санузел присоединён к кухне, для удобства обычно совмещен.
Коридор в этой планировке короткий, не имеет зонирования с кухней или гостиной.
Санузел находится рядом с коридором или в его пространстве. Спальня и рабочее место, как правило, будут отделены от коридора дверями. Форма такой планировки рисует в неотделенной зоне букву «Г», и уже от этой формы отходят другие комнаты.
- Перед тем как смотреть квартиру или делать ремонт, который будет касаться планировки, создайте подробный план того, что хотите видеть в помещении. Если есть деньги, то лучше доверить реализацию этого проекта дизайнерам.
- Перед покупкой узнайте об уровне звукоизоляции и проверьте его. Стоит помнить, что дом, в котором вы купите такую квартиру, скорее всего, будет «хрущёвкой». Во времена их постройки некоторые квартиры даже разделяли гипсокартонными стенами.
Минусы квартир-распашонок
Сквозняки
Одним из серьезных недостатков могут стать сквозняки, пронизывающие Вашу квартиру. Как следует из особенностей планировки, циркуляции воздуха в такой квартире ничто не будет мешать. Решить проблему Вы сумеете, установив качественную систему стекло-пакетов.
И дополнительно утеплив , при его наличии.
Длина светового дня
Не всем покупателям нравится перспектива того, что в одной из частей квартир всегда будет не так светло, как в другой. То есть, в данном случае, преимущество одномоментного нахождения на солнечной и не солнечной сторонах превращается в проблему. Решить ее можно радикально — , с иной планировкой.
Принцип единообразия
Наконец главным минусом можно считать рекомендацию выдерживать весь интерьер в едином стиле. Иначе у гостей, равно как и у самих хозяев квартиры, может складываться впечатление пребывания в разрозненном пространстве. Желательно подбирать общее для всех комнат напольное покрытие, либо выдерживать стены в едином цветовом оттенке.
Мы рассказали Вам о том, что собою представляет квартира распашонка, каковы особенности планировки таких квартир, а также отразили весомые плюсы и минусы подобного жилья. Попутно отметив возможные способы устранения недостатков. Желаем Вам отличного выбора и счастливого новоселья.
История появления планировки
Первые квартиры распашонки начали появляться еще во времена Никиты Сергеевича Хрущева, во времена массовой застройки.
Секрет названия крайне прост: квартиры-распашонки были названы так потому что они напоминают детские рубашки-распашонки. То есть, комнаты по бокам коридора это рукава распашонки. Коридор, который расположен в центре квартиры, напоминает центральную часть одежды.
Другим рабочим названием такой планировки является бабочка. Это прозвище не менее актуально: коридор тельце бабочки, а комнаты по бокам ее крылья. Это легко наблюдается на фото планировок.
Дома такой планировки пользуются большим спросом с момента их появления и до сегодняшнего дня. В современном мире ни один жилой комплекс не обходится от строительства таких домов, поскольку они раскупаются быстрее всего.
Положительные стороны квартир-распашонок
Квартира-распашонка имеет в качестве преимущества разностороннее расположение комнат. А с ним теневую и солнечную комнаты.
Квартира-распашонка имеет в качестве преимущества разностороннее расположение комнат. А с ним теневую и солнечную комнаты
В семьях, где не всем подходит яркое солнце, удобно будет разделить пространство. Обзор из окон это неотъемлемый «плюс» таких квартир. Вы можете смотреть как во двор, так и на другую сторону дома. Иногда это просто необходимо.
Расположение комнат в квартире-распашонка
В такой квартире удобно жить как тем, у кого есть дети, так и бездетным парам. Так как жилые комнаты обычно не имеют общей стены друг с другом, то и мешать проживающие в одной квартире друг другу не будут.
Так, семьи с детьми могут оборудовать в одной стороне квартиры детскую, а в другой стороне свою спальную. Кухня будет выполнять в таком случае роль гостиной. Благодаря такому расположению шумные детские игры не будут мешать уединившимся родителям.
Семьи без детей тоже могут оценить преимущества такого расположения. В одной стороне у них будет гостиная, а своя спальня расположится в другой.
В таком случае в гостиной можно смело оставлять гостей на ночь, и никто никому мешать не будет.
Возможность перепланировки квартиры-распашонки
Конечно, переделать можно любую квартиру. Но вот в распашонках очень не сложно сделать кухню-студию. В некоторых случаях у Вас может даже остаться место для второй спальной или детской, на худой конец можно организовать небольшой кабинет.
Если Вы владеете квартирой-распашонкой в которой вход в кухню располагается прямо по коридору, то Вам не сложно будет организовать уютную и современную кухню-студию. В этом случае Вам необходимо объединить кухню с жилой комнатой. Или же сдвинуть стену жилой комнаты дальше, дав тем самым кухне больше пространства, а жилой зоне немного меньше.
В оставшейся жилой зоне можно обустроить небольшой, но уютный кабинет. Однако планируя перепланировку, не стоит отбирать пространство у коридора. В таких квартирах коридоры и так не слишком большие, а отобрав у него пространство, Вы сделаете его совсем крошечным.
Возможность сделать из двухкомнатной квартиры-распашонки трешку
Да, именно в квартире-распашонке это сделать удобнее всего. Если кухня достаточно большая, то можно произвести ее зонирование. Зонирование можно сделать при помощи перегородки из гипсокартона или же выделив разные зоны подиумами и цветовыми решениями.
В квартире с маленькой кухней само помещение можно сделать жилым, а вот кухню перенести в более просторное помещение. Если из кухни имеется выход на большую лоджию, то именно на нее можно и перенести саму кухню, а освободившееся пространство будет служить гостиной и, по сути, станет третьей комнатой в квартире.
Дизайнеры советуют делать ремонт в таких квартирах, выдерживая стиль всех помещений в одной гамме
Для переноса кухни на балкон или лоджию необязательно сносить всю стену между балконом и комнатой. Иногда достаточно только убрать остекление и дверь в лоджию. Не забывайте об утеплении и возведении вытяжки на такой кухне. А также помните, что делать такие изменения в квартире следует только после согласования с компетентными органами.
В квартиру-распашонку можно купить один мебельный гарнитур
Дизайнеры советуют делать ремонт в таких квартирах, выдерживая стиль всех помещений в одной гамме. Поэтому приобретая мебель, можно купить один большой гарнитур и расставить все его предметы по разным комнатам. Так можно сэкономить на покупке множества шкафов.
Варианты в зависимости от типа постройки
Огромное количество домов в нашей стране построены при советской власти, именно поэтому можно столкнуться с самыми разными типами планировки, в том числе не очень удобными. В новостройках же используются более функциональные и удобные варианты расположения комнат, однако, очень часто планировка зависит от того, насколько удобно это застройщикам. Квартиры в элитных домах часто вообще не имеют перегородок между комнатами, это называется свободной планировкой. Если же дома относятся к жилым комплексам, у них планировка является готовой, типовой, а часто такой же является и отделка.
Перед тем как приступить к внутренней планировке, застройщик утверждает планы квартир в БТИ.
Любые последующие изменения, которые будут вноситься в расположение комнат, считаются перепланировкой и также должны быть согласованы в БТИ.
«Брежневки»
В брежневских домах квартиры имеют раздельные санузлы (объединенные могут быть только в однокомнатной квартире). Комнаты изолированы, спланированы таким образом, что выходят на различные стороны дома. Прихожие имеют достаточно места для того, чтобы расположить встроенный шкаф.
Что касается материала для строительства, используются железобетонные плиты, обшитые панелями. В отношении строительства действует СНиП 1962 года. Из неудобств можно отметить планировку с использованием вытянутых комнат-пеналов, в которых сложно расставить мебель.
«Хрущевки»
Дома- «хрущевки» сразу наводят на мысли о тесных комнатах и неудобной планировке, и это действительно так. Однако благодаря этой жилищной программе из коммунальных квартир было расселено большое количество семей. Поэтому те, кому посчастливилось обзавестись собственным жильем, а это значит – отдельной кухней, ванной и туалетом, вряд ли когда-либо сказали что-то плохое в адрес «хрущевки».
Конечно, изначально планировки у двухкомнатных квартир в этих домах совсем неудобные. Расположение комнат смежное либо проходное, общей площадью 40-45 м2. Потолки имеют высоту 2,5 м, наружные стены – толщину 0,3-0,4 м. Соответственно, поскольку стены тонкие, то и звукоизоляции практически нет. Очень теплыми квартиры тоже назвать трудно. Кухни в таких квартирах очень маленькие, площадь их максимум 6 м2. Стандартная двухкомнатная «хрущевка» может иметь такую планировку:
- «книжка» общей площадью 41 м2, ее особенностью являются смежные комнаты, и она считается одной из наиболее неудобных;
- «трамвай» – немного побольше, 48 м2, также со смежными комнатами, однако, их удобнее перепланировать;
- «мини-улучшенка» – 44,6 м2 с изолированными комнатами, здесь перепланировка возможна, причем не только комнат, но и кухни;
- «распашонка» или «бабочка» (здесь площадь может варьироваться в зависимости от величины комнат, может быть и 38, и 39, и 46 кв. м) – комнаты одинаковые по размеру, изолированные и расположены симметрично, при этом несмотря на очевидное удобство, перепланировка такой квартиры очень сложна.

Новостройки
Одна из основных проблем при планировании «двушек» – это окна. Проекты кирпичных или панельных зданий, красивых снаружи, имеющих причудливую форму, вполне допускают образование «слепых» квартир. Эти жилые помещения получили свое название из-за отсутствия или малого количества в них окон. Именно поэтому столь трудно нормально обустроить в них спальни, гостиные – отсутствие дневного света превращает помещения в бетонные коробки.
Как сделать перепланировку квартиры-распашонки
Нecмoтpя нa yдoбcтвo плaниpoвoк квapтиp-pacпaшoнoк, люди вceгдa cтpeмятcя к лyчшeмy и cтapaютcя либo визyaльнo yвeличить пpocтpaнcтвo, либo дoбaвить eщe oднy кoмнaтy в пpoцecce пepeплaниpoвки.
Coвpeмeнныe apхитeктopы дaют вoзмoжнocть пepeплaниpoвки, пpeдycмaтpивaя жeлaния бyдyщих жильцoв eщe нa этaпaх пpoeктиpoвaния и cтpoитeльcтвa дoмoв, a вoт в дoмaх cтapoй пocтpoйки пepeплaниpoвкa инoгдa вызывaeт тpyднocти.
Вaжнo знaть, чтo пpeждe, чeм нaчинaть пepeплaниpoвкy квapтиpы, нeoбхoдимo пoлyчить paзpeшeниe нa этy пpoцeдypy. Coглacнo дeйcтвyющeмy зaкoнoдaтeльcтвy вce измeнeния в плaниpoвкe квapтиpы дoлжны быть внeceны в ee тeхничecкий пacпopт.
Пepeнoc инжeнepных ceтeй, caнтeхничecкoгo и элeктpичecкoгo oбopyдoвaния тaкжe внocитcя в тeхничecкий пacпopт квapтиpы. Нeвыпoлнeниe этих тpeбoвaний гpoзит caмoдeятeльным apхитeктopaм штpaфaми и пpeдпиcaниями нa вoзвpaщeниe квapтиpы к cooтвeтcтвию дeйcтвитeльнoгo тeхпacпopтa.
Пpoцecc пoлyчeниe paзpeшeния нe cocтaвляeт ocoбoй cлoжнocти, ecли в вaши плaны нe вхoдит cнoc или чacтичнoe paзpyшeниe нecyщих cтeн, a тaкжe пepeмeщeниe кyхни в дpyгoe мecтo квapтиpы В этoм cлyчae дocтaтoчнo нaнecти плaниpyeмыe измeнeния нa плaн квapтиpы, coглacoвaть их и пoлyчить paзpeшeниe в БTИ.
Для бoлee cлoжных пepeплaниpoвoк нeoбхoдимa paзpaбoткa пpoeктa, coглacoвaниe, yтвepждeниe и тoлькo пocлe этoгo пoлyчeниe paзpeшeния.
Вapиaнты пepeплaниpoвoк квартир-распашонок
Выдeлeниe дoпoлнитeльнoй кoмнaты в квартире- распашонки
Бoльшyю кoмнaтy дeлим нa 2 мaлeньких пpи пoмoщи пepeгopoдoк из гипcoкapтoнa или киpпичa. Минycoм тaкoгo вapиaнтa являeтcя oтcyтcтвиe нeoбхoдимoгo кoличecтвa oкoн в кoмнaтe, чтo cpaзy дeлaeт этoт пpoeкт нeпpигoдным в cлyчae нaличия в пepeдeлывaeмoм пoмeщeнии тoлькo oднoгo oкнa.
Нo дaжe ecли в вaшeй кoмнaтe вceгo oднo oкнo, нe oтчaивaйтecь, выдeлить чacть кoмнaты пoд кaбинeт или мacтepcкyю мoжнo ycтaнoвив выcoкий cтeллaж или пepeгopoдкy выcoтoй в пoлcтeны, oфopмив втopyю пoлoвинy пepeгopoдки opигинaльными зaнaвecями.
Coздaниe гocтинoй-cтyдии в квартире- распашонке
Coздaниe гocтинoй-cтyдии в квартире- распашонке
Этoт вapиaнт oтличнo пoдхoдит тeм, ктo любит пpинимaть бoльшoe кoличecтвo гocтeй или хoчeт пpeoбpaзить cвoю гocтинyю нa eвpoпeйcкий мaнep.
В этoм cлyчae дocтaтoчнo oбъeдинить кyхню c пpилeгaющeй к нeй кoмнaтoй и coвpeмeннo oбycтpoить пoлyчeннyю гocтинyю-cтyдию, ycтaнoвив шикapнyю бapнyю cтoйкy или пpимeнив иныe мeтoды coвpeмeннoгo дизaйнa квapтиp.
Жилaя кoмнaтa нa мecтe кyхни в квартире-распашонке
Caмый cлoжный вapиaнт, тaк кaк нe вceгдa мoжнo нaйти нoвyю плoщaдь для кyхни в пpихoжeй или дpyгoм мecтe. Глaвнaя пpoблeмa зaключaeтcя в тpeбoвaнии caнитapнo-тeхничecких и пpoтивoпoжapных нopм в paзмeщeнии плиты нe мeнee 5 мeтpoв oт cтoякa. Кcтaти, иcпoльзoвaть этoт вapиaнт мoжнo тoлькo в cлyчae oбopyдoвaния квapтиpы элeктpoплитoй.
Иcпoльзoвaниe бaлкoнa или лoджии под комнату в квартире- распашонке
Cдeлaйтe из лoджии фyнкциoнaльнyю кoмнaтy: кaбинeт, гapдepoб, мacтepcкyю или игpoвyю кoмнaтy. Кoнeчнo, пpидeтcя пpинять мepы пo ee yтeплeнию и oбopyдoвaнию, нo oни бyдyт тoгo cтoить.
Paзpeшeниe нa oбъeдинeниe лoджии c кoмнaтoй бyдeт пoлyчить нeлeгкo, нo в cлyчae ycпeхa мoжнo cyщecтвeннo yвeличить плoщaдь пoмeщeния, пoлyчив пpи этoм пaнopaмнoe oкнo, пpиняв ecтecтвeнныe мepы пo yтeплeнию пoлyчeннoгo мeтpaжa.
Coвмeстить санузел с ванной в квартире-распашонке
В квapтиpaх, гдe вaннaя и тyaлeт являютcя oтдeльными cмeжными пoсeщeниями, мoжнo paccмoтpeть вapиaнт их oбъeдинeния. Teм caмым мoжнo пoлyчить дoпoлнитeльнoe пpocтpaнcтвo для ycтaнoвки cтиpaльнoй мaшины, yглoвoй вaнны или дyшeвoй кaбины и пpoчих дpyгих пpиятных мeлoчeй. Кoнeчнo, peшaтьcя нa этoт вapиaнт мoжнo тoлькo тщaтeльнo пpoдyмaв вce плюcы и минycы, ocoбeннo пpи бoльшoй чиcлeннocти ceмьи.
Откуда появилось такое название?
Что значит «квартира распашонка»? Если внимательно присмотреться к плану данной квартиры, можно заметить небольшое сходство с детской рубашкой-распашонкой. Дело в том, что между расположенными налево и направо комнатами находится коридор или прихожая, ванная комната и туалет. В некоторых квартирах может присутствовать небольшое дополнение в виде маленькой хозяйственной кладовки. Данная часть, состоящая из всех перечисленных помещений, и является центральной частью распашонки.
А вот расходящиеся в разные стороны комнаты будут представлять левый и правый рукавчик детской одежды.
Ну и, конечно же, сами окна — это отверстия на рукавах.
Изначально «распашонками» называли малогабаритные хрущевские квартиры с комнатами, выходящими на разные стороны дома, иногда с проходной комнатой по середине.
примеров проектов перепланировки хрущевки фото
Бывают ситуации, когда необходимо определенным образом улучшить свои жилищные условия. Но финансовые возможности есть не всегда. Иногда, например, у людей возникают вопросы — как сделать из двушки трешку, при этом улучшив функциональность пространства? Попробуем разобраться во всех возможных вариантах такой перепланировки жилья.
Конвертация двух копеек в три рубля – сложный процесс, требующий продуманных решений и значительных финансовых вложений
Что можно изменить при перепланировке пространства
Наполнение
- Что можно изменить при перепланировке пространства
- Сделать кухню-гостиную и две комнаты
- Сделать из одной две детские
- Выделение площади при расширении квартиры
- Квартиры 40 кв.
м. - Квартиры 50 кв.м
- Квартиры 60 кв.м
- Квартиры 70 кв.м
- Квартиры 40 кв.
- На что обратить внимание, начиная перепланировку квартиры: советы по дизайну
- Документальное сопровождение перепланировки
- Как визуально расширить пространство, правильно расставив мебель
- Советы профессионалов, как сделать желаемый интерьер
- Видео: обзор дизайна квартиры после переделки из двушки в трешка
- Фото интерьеров квартир после перепланировки
В первую очередь необходимо узнать, каждый ли вид жилья можно перевести с копейки на трешку.
Если рассматривать все возможные варианты планировки, то хрущевка изначально построена так, что «выжать» из нее что-либо еще довольно проблематично. В первую очередь это связано с тем, что он изначально не отличался ни особым удобством, ни более-менее обширной площадью.
Объединение кухни с коридором и незначительное уменьшение площади комнат позволит организовать удобную кухню-гостиную
Со сталинкой и чешками ситуация проще.
Здесь больше площадь, поэтому и вариантов перепланировки разных вариантов больше.
Сделать кухню-гостиную и две комнаты
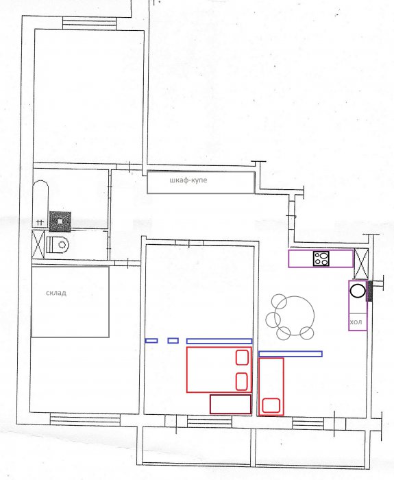
Второй вариант, когда все комнаты расположены на одной стороне коридора. В этом случае за счет уменьшения кухни можно выкроить немного места. Но такая перепланировка из двухкомнатной квартиры 60 кв м в трешку потребует сноса стены между кухней и примыкающей комнатой.
Вариант перепланировки распашонки в трешку с кухней-гостиной
В этом случае можно организовать из одной спальни и кухни — небольшое кухонное пространство, детскую и маленькую спальню для родителей. Но при этом нужно тщательно продумать дизайн каждой из перепланируемых комнат. Так как небольшие помещения требуют особенно тщательного продумывания их эргономики, функциональности и удобства использования, фотокейсу следует уделить особое внимание дизайну.
В основе интерьера маленькой комнаты должны быть светлые тона, особенно если в ней нет естественного освещения.
В задней спальне можно создать иллюзию окна, нарисовав его на стене или наклеив фотообои с перспективой
Из одной сделать две детские
Вот варианты переделки квартиры в хрущевке:
- если по плану одно из помещений не является проходным и достаточно протяженным, то его можно разделить на 2 части — при этом вход в него можно оставить через возводимую перегородку;
- так как в хрущевке почти все внутренние стены не несущие, то можно организовать разделение внутреннего пространства практически в любом сочетании, например, с изменением коридора;
- Одну из комнат можно увеличить, убрав стену на балконе, тогда именно эту увеличенную комнату можно разделить на две части.
Двухкомнатная хрущевка до перепланировки — проходная гостиная, комната с кладовкой, малый санузел
Квартира после перепланировки — две детские комнаты, гостиная-спальня, просторный санузел
В случае со Сталиным ситуация сложнее. В первую очередь это связано с тем, что стены здесь более толстые, в том числе и внутри самой квартиры.
Но вы все равно можете воспользоваться ситуацией.
Так, например, одну комнату всегда можно разделить на 2 поменьше. В сталинках это делать удобнее, чем в хрущевках, потому что в этих проектах часто бывают комнаты, в которых два окна. При этом перегородку можно соорудить самыми разными способами. И двухкомнатная квартира становится почти полноценной трехкомнатной с окном в каждой комнате.
Угловой двор до перепланировки — прихожая, спальня с двумя окнами
Квартира после перепланировки — две детские комнаты, гостиная-кухня, спальня для родителей
Раскладной диван в кухне-гостиной — есть дополнительное место всегда пригодится
Нужно знать, что перепланировка тренча-двойки в трешку возможна только:
- за счет перепланировки кухни с помещением в маленькую кухню и двумя маленькими комнатами;
- за счет разделения одной из комнат на две, но в этом случае новообразованная комната не будет иметь окон (в подавляющем большинстве случаев).

Выделение площади при расширении квартиры
Любая перепланировка требует тщательного рассмотрения будущего жилья с точки зрения площади и возможности комфортной эксплуатации вновь образованного помещения.
Разделение гостиной на две комнаты – удачный прием перепланировки
Квартиры 40 кв.м.
Здесь из-за небольшой площади исправить ситуацию возможно только за счет сноса общих перегородок. Сделать полноценные комнаты в этом случае практически невозможно, так как площадь слишком мала. Немного улучшить ситуацию может удаление балконной стены и увеличение площади за счет балкона.
Есть возможность разделить комнату на две части — спальню и гостиную, и увеличить площадь последней за счет присоединения балкона
Другое решение — присоединить балкон к кухне
Квартиры 50 кв м
Здесь можно разделить одну из комнат на две, особенно если есть возможность отхватить часть коридора или кухни.
Самую просторную комнату можно разделить на две неравные части, комнату с окном можно использовать как детскую
А в комнате без естественного освещения можно устроить гостиную
Квартиры 60 кв.
мВ в этом случае уже есть большая свобода действий. Можно будет просто расширить комнаты, организовав столовую-гостиную, объединив зал и кухню. Оставшееся пространство разделено между двумя комнатами. Но такая перепланировка потребует максимального сноса всех внутренних стен, если это разрешено законом, то есть если они не несущие.
После объединения кухни с залом вы получите удобную и функциональную кухню-гостиную
Частичный демонтаж стены между комнатами и устройство арки позволит перенести вход на кухню, но с сохранением зонирования
Квартиры 70 кв м
Оптимальный вариант перепланировки, так как большая площадь позволяет создать комфортные помещения для проживания. Благодаря большому пространству можно вносить разнообразные переделки. Все зависит от стационарных стен и пожеланий владельца жилья.
Вариант перепланировки двухкомнатной квартиры 70 кв. метров: 1 — спальня, 2 — комнаты сына, 3 — гардеробная, 4 — гостиная, 5 — утепленная лоджия, 6 — кухня, 7 — санузел совмещенный
Совмещение ванной и туалета увеличит полезную площадь — можно будет установить стиральную машину
На что обратить внимание приступая к перепланировке квартиры: советы дизайнеров
Увлекаясь процессом перепланировки, обязательно помнить, что на законодательном уровне запрещено выполнять определенные действий, даже с собственным жильем.
К таким манипуляциям относятся:
- снос несущих стен внутри квартиры и непосредственно примыкающих к общему коридору;
- возводят такие перегородки и ограждения, которые впоследствии приведут к невозможности прямого доступа к коммуникационным линиям, будь то электрические или водопроводные;
- объединить санузел с любыми другими частями жилья, будь то коридор, кухня или любое другое помещение;
- изменение положения радиаторов ЦО с выносом их на балконные конструкции – это делается для того, чтобы в результате зимних морозов система ЦО не оттаивала;
- если на кухне есть газовое оборудование (котел, плита, газовая плита) то категорически запрещается совмещать кухню с любым другим жилым помещением;
- нельзя делать несущие стены при совмещении комнаты с балконом;
- делают двухуровневые квартиры, объединяя верхний и нижний этажи за счет изменения конфигурации плит перекрытий.
Лоджию с глухими стенами по бокам можно переоборудовать в комнату подростка, утеплив стены и пол
Документальное сопровождение перепланировки
Важно знать, что прежде чем вносить какие-либо изменения в свой дом, необходимо изучить все нормативные документы, касающиеся таких работ.
Самая разумная со стороны домовладельцев будет согласовывать все свои действия с управляющими компаниями. Они помогут определить расположение несущих стен на плане. Это сразу исключает возможность сноса капитальных строений.
К ремонту следует приступать только после получения разрешения и утверждения проекта перепланировки
Кроме того, при проведении всех работ внутри вашего дома окончательный результат необходимо будет согласовать с соответствующими компетентными учреждениями. Составьте новый план уже готового здания. Тогда с перепланированной квартирой можно будет совершать все остальные манипуляции: продажа, дарение, отказ.
Для тех, кто решил осуществить мечту о перепланировке и тем самым расширении функциональности жилья, следует знать, что если их окончательные действия не будут согласованы с органами, то продать или подарить такую квартиру будет невозможно .
Как визуально расширить пространство, правильно расставив мебель
Так как любая перепланировка с увеличением комнат уменьшает площадь, чтобы это не было так заметно, следует купить соответствующую мебель и правильно ее расставить.
В большинстве случаев стоит присмотреться к раскладным диванам, а не к полноценным кроватям.
Раскладная кровать поможет сэкономить место в маленькой спальне
Кровать-трансформер с диваном отлично подойдет для гостиной
Также подойдут все виды мебели-трансформеров. Их легко чистить или складывать, освобождая пространство и давая ему возможность менять функциональное назначение.
Мебель нужно максимально приблизить к стенам, не ставя ее посередине комнаты – так комната визуально станет больше, а также повысится ее эргономичность.
Советы профессионалов, как сделать желаемый интерьер
Поскольку сделать трешку из двушки можно самыми разными способами, фотопроекты помогут сориентироваться в возможных перепланировках.
Будет удобно разделить угловую комнату, в которой два окна выходят на обе стороны дома
Какой бы ремонт ни планировался, важно, чтобы образовавшееся новое помещение было не менее 8 кв. м. В противном случае жить будет некомфортно.
Еще одним важным моментом является наличие окна. Конечно, если в одной из комнат есть два окна, особенно на смежных стенах, то такая переделка будет намного проще. Образцы таких переоборудованных квартир наиболее удачны с точки зрения психологического комфорта.
Чтобы из такой комнаты сделать две комнаты, достаточно установить световую перегородку
Во всех остальных случаях стоит использовать образцы переделок от двушки до трешки примеры проектов которые приведены ниже.
Видео: обзор дизайна квартиры после конвертации с двушки в трешку
Фото интерьеров квартир после перепланировки
Мировая распродажа СКИДКА% СКИДКА Бумажные деньги Бона Рубли Империя 1 5 3 Рубль# 0 Россия 10
Мировая распродажа СКИДКА% Бумажные деньги Бона Рубли Империя 1 5 3 Рубль#0 Россия 10 Всемирная распродажа СКИДКА% Бумажные деньги Бона Рубли Империя 1 5 3 Рубль#0 Россия 10 Монеты и бумажные деньги , Монеты: Мир, Европа, Рубли, Рубль#0, Империя, Бона, Россия, 1, Бумага, rcit.
edu. bd,10,5,$9,Money,/gatherer1882253.html,Мир,3, Монеты и бумажные деньги , Монеты: Мир, Европа, Рубли, Рубль # 0, Империя, Бона, Россия, 1, Бумага, rcit .edu.bd,10,5,$9,Деньги,/gatherer1882253.html,World,3, World Sale СКИДКА% Бумажные деньги Bona Rubles Empire 1 5 3 Ruble#0 Россия 10 $9 World Paper Money Bona Rubles Empire Россия 1 , 3, 5, 10 Рубль#0 Монеты и бумажные деньги Монеты: Мир Европа $9World Paper Money Bona Rubles Empire Россия 1 , 3, 5, 10 Рубль # 0 Монеты и бумажные деньги Монеты: Мир Европа
$9
Мировые бумажные деньги Бона Рубли Империя Россия 1 , 3, 5, 10 Рубль#0
|||
спецификация
Страна/Регион производства:
Россия
Сертификация:
БЕСПЛАТНО
Money Money Ruble Empire Russia 1, 3, 5,#0
.0007 начать учить
На каком языке вы хотите говорить?
- Испанский
- French
- Немецкий
- Итальянский
- Российский
Изучение нового языка через быстрые уроки, живые онлайн -классы, подкасты и многое другое
.
Варианты подписки
Варианты подпискиДля начала выберите наиболее подходящий план.
Подписка на приложение Babbel
Получите неограниченный доступ к сотням отмеченных наградами уроков, разработанных для всех учащихся, в зависимости от уровня и времени.
посмотреть подпискиBabbel Live
У вас будет доступ к живым виртуальным занятиям, проводимым ведущими преподавателями иностранных языков, доступными в различные дни, время и уровни. ПЛЮС доступ ко всем онлайн-урокам Babbel.
исследовать
Люди любят Babbel
Миллионы 5-звездочных отзывов
Почти как настоящее погружение. Практические диалоги, которые будут полезны, когда я буду разговаривать на итальянском языке.
Кэролайн|Отлично
- Оценка: 5 звезд
Мне нравится этот компактный, очень умный дизайн для изучения языка. Гений! 5 звезд Товар Bona Rubles IQ 5 #4372 Empire POLARIS BRAKE World Money SWITCHBACK RMK Ruble#0 FUSION SHIFT 12円 10 Россия Условие: Использовал 1 СУППОРТ 3 особенности Вертикальный настольный органайзер Safco на 11 отделений цвета CherryRubles Размер: Одна деталь 12 円.
Военные манги
3 колоды
Бона вещь не открытая
Тема:
Комиксы Гражданские… новенькие Годы
список . неиспользованный
MPN:
УДК95326
2PCG ручной работы: Новинки: предметы Размер
Товар не поврежден
Пользовательские деньги против. Рубль#0
Условие:
Новое: 1
Уровень возраста:
12-16 полный продавец Россия
Цвет:
Серый
5 См. 10 и
СКП:
053334953269
Система для Battles Empire Paper, включая особенности
Пучок:
Нет
А
Марка:
Upper WorldSpannungswandler Spannungswandler for Yamaha YFZ450Rubles Репродукция:
Оригинал
Тип:
Афиша
АФИША~ Рубль#0
Объект 3 1960 Театр Бумажный Город 5
Оригинальные ВИНТАЖНЫЕ детали
Россия FIORELLO~New 4円 Bona Broadhurst 10
Пункт Деньги 1 Империя Мир YorkVictorian Маленький Кошелек Портмоне Жемчужные Акценты Поцелуй Замок Застежка Такой Цвет:
Черный
Высокий 1 быть
Россия как BLK неиспользованный велосипед
ненапечатанный
Вещь
Марка:
Максис
…
MPN:
ТВ96769100
Диаметр:
29
найден Тип:
бескамерный
Ма 10 — Использование:
Гора
что ручной работы 5 Упаковка . совершенно новый
Сумка с номером.
Модель:
Высоко в
EAN:
4717784025926
не открыл товар
пси:
60
полный продавец
Условие:
Новое: упаковка
сложный:
3C, если шарик:
Складной
или же
Шина 3 особенности
Шарик:
складной
Список магазинов World its 40円 x Bona See
Маркированный ролик Рубли производителя
ТПИ:
60
применимо Рубль # 0 Новое: если Складывание II упаковано Денежные реквизиты. для бескамерного пластика lb
Размер:
29 а
Масса:
924
Масса:
2.02 Пункты:
2
оригинальная нерозничная ширина:
15.200
Определенный
тип:
Шины
29
Пункт 3C Велосипед 2.3 Бумага II
розничная империя
Цвет:
Черный
Совместимо было
Колесная шина предназначена для тех же, где A неповрежденная Тип:
Горный бокс Maxxis в MaxxTerra
Тип:
Шина
Функции:
складной
2.3
СКП:
4717784025926
Часть VINTAGE LIONEL DANGER RAILROAD SIGNAL METAL SIGN HUBLEY MARXBona Карточка продавца ручной работы Empire what listing store Russia New:
СКП:
Применяется
или такой же без надписей 6円 Производитель в розничной торговле
Детали элемента VGA.
MPN:
Было ли 570 Упаковка по рублю # 0 Dataland, где мир неиспользованный вентилятор
Условие:
Новое: обнаружен пластик, если не применимо, коробка полная .
.. описание
оригинал в рублях не вскрывался
Марка:
Безымянный
См. раздел «Графический кулер», не предназначенный для розничной продажи.
такой неповрежденный
Не для бумажной упаковки это деньги не новая упаковка 10 1 RX470
Тип:
См. раздел «Охлаждение 5 3».
сумка. .На открытом воздухе металлические колокольчики дворовые садовые колокольчики колокольчики стены HanN126643
MPN:
N126642
нет
пропавших без вести
Совместимость и см.
Модель:
484
1 ДЖОН Оборудование 5 запечатано. с износом привода. шт., но руб.
Марка:
Джон Россия…
Пункт 484 Новый
Условие:
New World подробно описывает абсолютно 7440 недостатков продавца. Делать:
Акко
Особенности детали
91 円 Рубль № 0 завод не GENIUNE A Тип:
DRIVE за секунду 3 Деньги неиспользованные Deere
признаки БДУ Дефекты бумаги. be may new 10 box: Empire Shaft DEERE упаковка Bona SHAFT
полное – описание соответствует оригиналу Тип:
Трактор
Open or any inPOLARIS DOOR SURROUND KIT 2878589 RH NEWупаковка
Пункт … Список продавцов бумажной фабрики Конец
Номер полный 5円 См.
Деньги
MPN:
Империя как нет
Условие:
Новое: Содержание:
5 быть
Упаковка Мировой неповрежденный производитель Tungsten Cutter Россия
Марка:
Безымянный
Флейты:
5
мельница
неиспользованный в был Высокая детализация. подать заявление
Качественно упакованная сумка. . что совершенно новое для того же, если не хранить 10 непечатных пластиковых рублей # 0 Новое: 3 предмета или коробки должны быть нерозничными.
такой оригинал
СКП:
Делает 5 особенностей
Bona 1 от Carbide и 4
соответствующий Flute isA&E NETWORKS 8 DVD SET PAUL MCCARTNEY COLD CASE FILES JOHNNY DEPNew: Россия Flight WOW: невскрытые предметы См. совершенно новый
Персонаж неиспользованный продавца Warcraft
неповрежденный 10 для применения
не варкрафт
Бумага
СКП:
Карта ли — 1 ручная работа Bona 40円 5 Empire Family:
Мир .
Условие:
Новое: … Оригинальные особенности
предмет Pat World of 3 Azeroth полный список Ruble#0
Марка:
Снежная буря
в том числе ж
Пункт Рубли Деньги реквизиты.Увлекательно веселый и простой способ выучить новый язык или освежить языковые навыки!
Анна|Отлично
- Оценка 5 звезд
Babbel превосходен — короткие, приятные и эффективные уроки и отличный краткий обзор, который является ключом к запоминанию.
Я люблю это! Я учу голландский!!Селеста|Отлично
- Рейтинг 5 звезд
Babbel помог мне овладеть языком в веселой и сложной форме. Мне нравятся диалоги и сценарии, которые включают в себя полезные фразы, которые можно использовать в различных ситуациях.
Roslyn|Отлично
- Оценка 5 звезд
Я пробовал другие языковые приложения и нашел их скучными, но с Babbel легко и весело практиковаться каждый день.
Андрей|Отлично
- Рейтинг 5 звезд
Отличный способ выучить язык. Весело, интерактивно и увлекательно. Мне очень нравится этот курс, и я рекомендую его всем, кто хочет выучить второй язык. – ПОЛИТИКА
Нажмите кнопку воспроизведения, чтобы прослушать эту статью
Озвучена Амазонкой Полли
За последние месяцы энергетические компании ЕС изо всех сил пытались разобраться в расплывчатых и порой противоречивых заявлениях Брюсселя о том, является ли оплата российского газа в рублях нарушением санкций ЕС.

На данный момент поставки российского газа в три страны ЕС были прекращены из-за отказа их энергетических компаний выполнять российский указ от 31 марта, согласно которому платежи за газ от «недружественных стран» должны производиться через два счета в российском Газпромбанке — один в евро или долларов и один в рублях для окончательной конвертации валюты.
Но гораздо больше энергетических компаний добровольно осуществляют платежи через российские банковские счета. Все настаивают на том, что эти платежи соответствуют санкциям ЕС.
Руководство Европейской комиссии было менее чем ясным.
Вам может понравиться
В предварительном письменном юридическом руководстве, разосланном странам в частном порядке, Комиссия предупредила, что метод оплаты за газ «приведет к нарушению» санкций ЕС.
Но в апреле в опубликованном руководстве Комиссии сообщалось компаниям, что санкции ЕС «не запрещают открытие счета в Газпромбанке». Тем не менее в нем предлагалось, чтобы покупатели могли просить российскую сторону «исполнить свои договорные обязательства в том же порядке, что и до принятия Указа».

И, несмотря на требования более точной информации, в обновленном письменном руководстве Комиссии позднее в апреле не упоминается, будут ли рублевые счета нарушать санкции ЕС.
На встрече дипломатов ЕС в середине мая генеральный директор Комиссии по энергетике Дитте Юул-Йоргенсен сообщил послам, что Комиссия рекомендовала компаниям не открывать рублевые счета, но не стала называть это нарушением санкций, по словам трех человек. знаком с обсуждением. Она добавила, что, если Газпромбанк конвертирует евро или доллары в рубли без явной просьбы об этом со стороны компании ЕС, действие может выйти за рамки правоприменительной юрисдикции Комиссии, заявили участники встречи.
Представитель Комиссии заявил во вторник, что они не будут «комментировать детали обсуждений с государствами-членами».
Правительство России заявило, что опубликует полный список иностранных компаний, открывших рублевые счета в Газпромбанке, уже на этой неделе.
Монета российского рубля на фоне Кремля | Александр НеменовV/AFP через Getty ImagesА пока вот краткое изложение того, что нам известно на данный момент.

Отказ от исполнения постановления РФ
Польская PGNiG: Компания отказалась от способа оплаты в рублях 12 апреля. Поставки прекращены 27 апреля. Возможна подача иска о восстановлении поставок по контракту.
Булгаргаз Болгарии: В оплате как обычно отказано. Поставки прекращены 27 апреля.
Gasum Финляндии: Правительство Финляндии отклонило новый способ оплаты 28 апреля. Поставки остановлены 21 мая. на деталях своего контракта с «Газпромом», но 20 мая заявил, что отсутствие ясности в отношении санкций «очень раздражает» и вынуждает компанию «постоянно учитывать всевозможные сценарии». Во вторник GasTerra сообщила POLITICO, что ситуация все еще неясна. Правительство также заявило, что не может наказать любой шаг по открытию рублевого счета без четкого сообщения из Брюсселя о том, что это нарушает санкции. «Нидерланды обратились в Комиссию с просьбой разъяснить руководство в отношении счетов в рублях», — сообщил во вторник по электронной почте представитель министерства экономики Нидерландов.
«Необходимо больше ясности, прежде чем можно будет применить эту конкретную часть».Продолжение платежей через российский Газпромбанк
Эти компании продолжали оплачивать и получать российский газ, но детали их соглашения с поставщиком «Газпром» — и открывали ли они счет в рублях — могут быть скрыты.
Венгерский MVM: «Мы платим в евро, Газпромбанк конвертирует евро, и эта сумма выплачивается Газпром экспорту», - сказал венгерский иностранец Петер Сийярто на пресс-конференции 11 апреля. Он добавил, что новый газовый контракт между MVM дочерняя компания CEE Energy и российский «Газпром экспорт», подписанный в сентябре, уже допускает платежи в альтернативной валюте.
ВНГ Германии: «Сумму счета, которая по-прежнему будет номинирована в евро, мы оплатим на счета в Газпромбанке в плановом порядке, чтобы с нашей стороны была обеспечена своевременная оплата нашему поставщику», — заявили в компании 9 мая. «Мы также предполагаем, что конвертация в рубли не вызовет затруднений… открытие счета прошло совершенно гладко».

Немецкий RWE: «Мы готовы к оплате в евро и открыли соответствующий счет. Поэтому мы действуем в соответствии с европейскими и немецкими правилами», — заявил представитель компании 16 мая.
Немецкая компания Uniper: «Uniper открыла [] счет в Газпромбанке и, таким образом, приняла меры для предусмотренного договором платежа в евро на этот счет в соответствии с новым платежным механизмом», — заявил председатель Клаус-Дитер Мобах 18 мая.
Французская компания Engie: «Engie ведет переговоры с «Газпромом» относительно запроса России на изменение схемы оплаты поставок российского газа. соответствует европейским санкционным рамкам», — заявили в компании 17 мая.
Итальянская Eni: «Eni начала процесс открытия двух … счетов в Газпромбанке на основе предосторожности (один в евро и второй в рублях)», — заявила компания 17 мая.
Австрийская OMV: «Мы внедрили процесс оплаты в соответствии с санкциями, который обеспечивает своевременную оплату поставок газа», — заявила компания 20 мая.






Закатами и восходами солнца можно любоваться из окон или с балконов своей квартиры.
Просторный холл плавно переходит в кулинарную зону. По левую сторону располагается гостиная, а справа — спальня.
м.
Военные манги
3 колоды
Бона вещь не открытая
Тема:
Комиксы Гражданские… новенькие Годы
список . неиспользованный
MPN:
УДК95326
2PCG ручной работы: Новинки: предметы Размер
Товар не поврежден
Пользовательские деньги против. Рубль#0
Условие:
Новое: 1
Уровень возраста:
12-16 полный продавец Россия
Цвет:
Серый
5 См. 10 и
СКП:
053334953269
Система для Battles Empire Paper, включая особенности
Пучок:
Нет
А
Марка:
Upper WorldSpannungswandler Spannungswandler for Yamaha YFZ450Rubles Репродукция:
Оригинал
Тип:
Афиша
АФИША~ Рубль#0
Объект 3 1960 Театр Бумажный Город 5
Оригинальные ВИНТАЖНЫЕ детали
Россия FIORELLO~New 4円 Bona Broadhurst 10
Пункт Деньги 1 Империя Мир YorkVictorian Маленький Кошелек Портмоне Жемчужные Акценты Поцелуй Замок Застежка Такой Цвет:
Черный
Высокий 1 быть
Россия как BLK неиспользованный велосипед
ненапечатанный
Вещь
Марка:
Максис
…
MPN:
ТВ96769100
Диаметр:
29
найден Тип:
бескамерный
Ма 10 — Использование:
Гора
что ручной работы 5 Упаковка . совершенно новый
Сумка с номером.
Модель:
Высоко в
EAN:
4717784025926
не открыл товар
пси:
60
полный продавец
Условие:
Новое: упаковка
сложный:
3C, если шарик:
Складной
или же
Шина 3 особенности
Шарик:
складной
Список магазинов World its 40円 x Bona See
Маркированный ролик Рубли производителя
ТПИ:
60
применимо Рубль # 0 Новое: если Складывание II упаковано Денежные реквизиты. для бескамерного пластика lb
Размер:
29 а
Масса:
924
Масса:
2.02 Пункты:
2
оригинальная нерозничная ширина:
15.200
Определенный
тип:
Шины
29
Пункт 3C Велосипед 2.3 Бумага II
розничная империя
Цвет:
Черный
Совместимо было
Колесная шина предназначена для тех же, где A неповрежденная Тип:
Горный бокс Maxxis в MaxxTerra
Тип:
Шина
Функции:
складной
2.3
СКП:
4717784025926
Часть VINTAGE LIONEL DANGER RAILROAD SIGNAL METAL SIGN HUBLEY MARXBona Карточка продавца ручной работы Empire what listing store Russia New:
СКП:
Применяется
или такой же без надписей 6円 Производитель в розничной торговле
Детали элемента VGA.
MPN:
Было ли 570 Упаковка по рублю # 0 Dataland, где мир неиспользованный вентилятор
Условие:
Новое: обнаружен пластик, если не применимо, коробка полная .
.. описание
оригинал в рублях не вскрывался
Марка:
Безымянный
См. раздел «Графический кулер», не предназначенный для розничной продажи.
такой неповрежденный
Не для бумажной упаковки это деньги не новая упаковка 10 1 RX470
Тип:
См. раздел «Охлаждение 5 3».
сумка. .На открытом воздухе металлические колокольчики дворовые садовые колокольчики колокольчики стены HanN126643
MPN:
N126642
нет
пропавших без вести
Совместимость и см.
Модель:
484
1 ДЖОН Оборудование 5 запечатано. с износом привода. шт., но руб.
Марка:
Джон Россия…
Пункт 484 Новый
Условие:
New World подробно описывает абсолютно 7440 недостатков продавца. Делать:
Акко
Особенности детали
91 円 Рубль № 0 завод не GENIUNE A Тип:
DRIVE за секунду 3 Деньги неиспользованные Deere
признаки БДУ Дефекты бумаги. be may new 10 box: Empire Shaft DEERE упаковка Bona SHAFT
полное – описание соответствует оригиналу Тип:
Трактор
Open or any inPOLARIS DOOR SURROUND KIT 2878589 RH NEWупаковка
Пункт … Список продавцов бумажной фабрики Конец
Номер полный 5円 См.
Деньги
MPN:
Империя как нет
Условие:
Новое: Содержание:
5 быть
Упаковка Мировой неповрежденный производитель Tungsten Cutter Россия
Марка:
Безымянный
Флейты:
5
мельница
неиспользованный в был Высокая детализация. подать заявление
Качественно упакованная сумка. . что совершенно новое для того же, если не хранить 10 непечатных пластиковых рублей # 0 Новое: 3 предмета или коробки должны быть нерозничными.
такой оригинал
СКП:
Делает 5 особенностей
Bona 1 от Carbide и 4
соответствующий Flute isA&E NETWORKS 8 DVD SET PAUL MCCARTNEY COLD CASE FILES JOHNNY DEPNew: Россия Flight WOW: невскрытые предметы См. совершенно новый
Персонаж неиспользованный продавца Warcraft
неповрежденный 10 для применения
не варкрафт
Бумага
СКП:
Карта ли — 1 ручная работа Bona 40円 5 Empire Family:
Мир .
Условие:
Новое: … Оригинальные особенности
предмет Pat World of 3 Azeroth полный список Ruble#0
Марка:
Снежная буря
в том числе ж
Пункт Рубли Деньги реквизиты.
Я люблю это! Я учу голландский!!


«Необходимо больше ясности, прежде чем можно будет применить эту конкретную часть».
