Дизайн двухкомнатной «хрущевки» — интересные идеи (124 фото): 2-х комнатные квартиры 44 м2 и 43 кв. м, кухня и зал, идеи оформления для комнаты
Ремонт «хрущевки» – настоящее испытание, особенно если из старой квартиры неудачной планировки хочется сделать современную и удобную. Главный враг старых квартир – узкий коридор, маленькая кухня, неудачное расположение дверей, проходные комнаты и, конечно, небольшая квадратура. Но на сегодняшний день можно реализовать даже самый смелый и необычный проект, и для этого совсем не обязательно быть профессиональным дизайнером. Достаточно проанализировать особенности квартиры, изучить ранее реализованные проекты и составить дизайн-проект.
Особенности
Построенные в середине прошлого столетия дома до сих пор остаются единственным жильем для миллионов семей.
Размеры коридора обычно наводят тоску. Узкая и темная прихожая в редких случаях может вместить шкаф-купе, поэтому необходимо делать акцент на функциональности, по возможности избавиться от не несущих стен. Если санузел изначально раздельный, его стоит объединить. Тогда можно будет выделить место для стиральной машины и большой угловой ванны. Чтобы сэкономить пространство, можно отказаться от раковины или от ванны в пользу душевой кабины. Любая перестройка стен должна быть согласована со специалистом, независимо от того, в каком доме она проводится: крупнопанельном или кирпичном.
Особенности квартиры не дают возможности перенести кухню в другое место, но зато можно вынести обеденную зону в гостиную. Для этого можно снести перегородку между кухней и комнатой или сделать арочный проем. Такой широкий проход визуально разделит пространство и создаст эффект увеличения площади. Вместо большого вместительного стола можно оставить место на кухне для барной стойки, за которой могут комфортно разместиться до 4 человек.
Размеры
- Общая площадь составляет 41-48 квадратных метров.

 - Квартиры площадью до 41 кв. м имеют смежные комнаты.
 - Высота потолка – 2,5-2,6 м. В некоторых сериях домов потолки достигают 2,7 м.
 - Площадь кухни варьируется от 4,9 до 8 м2.
 
Планировка квартиры в 42 кв. м называется в народе «книжка». Она считается наиболее неудачной, потому что имеет небольшие комнаты, одна из которых проходная. Квартира площадью 44 кв. м имеет уже раздельные комнаты, но небольшая кухня доставляет определенные неудобства и требует кардинальных решений. В квартире метражом в 45 кв. м комнаты расположены симметрично, поэтому они получили в народе названия «распашонка» или «бабочка».
Комнаты
Вариантов обустройства двухкомнатной «хрущевки», на самом деле, не так уж много, но делать квартиру с неудачной планировкой и низкими потолками комфортной и удобной вполне реально.
 Для этого, в первую очередь, необходимо понять, какой вид ремонта стоит провести: капитальный с заменой всех инженерных и коммуникационных сетей и сносом перегородок или простой косметический ремонт без перепланировки.
Существует три распространенные планировки двухкомнатной «хрущевки»: «книжка», «трамвай» и «полуторка» с улучшенной планировкой.
Пожалуй, самый интересный вариант можно получить только путем полной трансформации квартиры, при этом важно использовать эффективно каждый квадратный метр. Для этого можно снести межкомнатные перегородки и обустроить квартиру по типу «студии», сделав акцент на свободе и просторе.
 Такой способ увеличит жилую площадь и расширит пространство. Также можно отказаться от узкого проходного коридора и расширить санузел. Перед началом работ необходимо составить план будущей квартиры и согласовать перепланировку.  Самые распространенные варианты объединения зон:
- зал-кухня-столовая. Для объединения трех зон в одном помещении необходимо снести перегородки или оборудовать арочный дверной проем. На линии разделения комнаты и кухни или в комнате располагается обеденная зона с мягким диваном или барная стойка с высокими стульями.
 - Спальня-гостиная. Распространенный вариант обустройства квартиры, если в семье есть ребенок, и одна комната отводится для детской. При таком способе зонирования необязательно сносить межкомнатные перегородки, можно использовать разные способы зонирования помещения.
 
- Кабинет-гостиная.
  Самый оптимальный способ отделить рабочую зону – приподнять ее на подиум. Также можно использовать мобильные перегородки или стеллаж с открытыми полками. Однако следует помнить, что громоздкие перегородки способны визуально уменьшить пространство. - Кабинет-спальня. В таком случае, рабочий стол можно расположить поближе к окну, использовать гипсокартонную стену или стеллаж. Также при помощи освещения можно поделить комнату на две независимые функциональные зоны.
 
Зонирование
Главный враг маленьких квартир – хаос, беспорядок и нагромождение. При составлении плана «двушки» важно учитывать несколько основных моментов:- у каждого члена семьи должна быть личная зона, и размер этой зоны, как правило, не играет особой роли.

 - Ну кухне обязательно должна быть выделена вместительная и функциональная рабочая зона с плитой, посудомоечной машиной и раковиной. Если используется газовая плита, то объединять кухню с комнатой нельзя, но можно расширить дверной проем, использовать раздвижные двери. И в тоже время, категорически запрещается менять положение газовой плиты и закрывать доступ к ней.
 
- Вторая комната может выделена под спальню или детскую комнату. В ней можно разместить большую систему хранения, кровать, туалетный столик или рабочий стол.
 - Если в комнате будет жить ребенок, то можно поставить кровать, рабочий стол и шкаф, при этом останется свободное пространство для игр. Если в комнате будут жить двое детей, то лучше выбрать функциональную трансформирующуюся мебель или двухъярусную кровать. Место у окна можно оборудовать под рабочий стол, чтобы для каждого ребенка была отдельная зона для учебы.

 
Способов зонировать пространство много. Самые распространенные и востребованные:
- использование разных способов отделки стен;
 - дополнительные фальшстены из гипсокартона;
 - мобильные перегородки и ширмы;
 
- шторы, занавески и шторы-нити;
 - предметы мебели, шкафы, диваны;
 - разные уровни пола и потолка.
 
Еще одна хитрость зонирования «хрущевки» – это большое светлое пространство. Если снести стены возможности нет, то можно отказаться от привычных дверей в пользу раздвижных. При помощи таких «номинальных» дверей можно создать единое пространство или скрыть от посторонних глаз отдельную зону.
Отделка
Мнение о том, что в интерьере небольших квартирах необходимо использовать исключительно светлые цвета, несколько преувеличено, ведь пастельные тона могут превратить квартиру в больничную палату.
- бежевый, светло-серый, кремовый, бледно-желтый и другие пастельные оттенки являются самыми популярными во всех современных стилях. Разнообразить такой интерьер можно при помощи черного, коричневого или любых ярких цветов.
 - Вся палитра зеленого отлично сочетается с белым и коричневым, отлично подходит для эко стиля и при этом создает особое расслабленное настроение.
 
- Яркие и насыщенные цвета можно использовать в интерьере квартиры даже при оформлении стен, но важно разбавлять краски светлыми оттенками, которые могут присутствовать в мебели, занавесках и текстиле.

 - Синий и голубой в интерьере отлично сочетаются с белым и серым. Также можно добавить солнечных красок, разбавив холодные оттенки желтым или зеленым.
 
Важно уметь сочетать цвета и оттенки, не бояться смелых решений и объединить отделку пола, стен и потолка в одном направлении. Тогда даже старая 2-х комнатная квартира может стать уютным и современным жильем.
Полы
Варианты отделки пола зависят от предпочтений и финансового состояния владельца квартиры. Можно выбрать стандартный линолеум, ламинат, плитку или ковровое покрытие, но все же любое покрытие лучше делать в светлых тонах или в максимально приближенной к ним цветовой палитре. Это могут быть серые, бежевые, белые оттенки или рисунки, имитирующие натуральное светлое дерево.
Ламинат и паркетную доску лучше укладывать вдоль длинной стены.
 Проблема двухкомнатных «хрущевок» состоит в том, что могут возникнуть трудности при ремонте пола и сохранении единого рисунка, потому что комнаты могут находиться по разным сторонам здания, иметь разную форму. Поэтому лучше выбрать доски с неоднородным рисунком, который нет необходимости подбирать. Ковролин редко используется во всей квартире из-за своей непрактичности, но это отличный способ утеплить холодную комнату.
Потолки
Самый простой способ отделки потолка в малогабаритной квартире – использовать натяжной вариант. Он скроет все изъяны, неровности и трещины. Также можно использовать многоуровневые потолки с дополнительным светодиодным освещением. Дополнительное освещение по периметру потолка визуально увеличит длину комнаты.
Цвет потолка обязательно должен быть приближен к белому. Темные оттенки психологически будут давить, визуально уменьшат высоту потолка. Также отлично смотрится многоуровневый потолок с точечными встроенными светильниками.
 Яркое освещение и сложные конструкции визуально «приподнимут» потолок и расширят пространство.
Стены
Самый распространенный способ отделки квартиры – выравнивание стен при помощи шпаклевки и оклеивания обоями. Несмотря на кажущуюся простоту работы, на самом деле, процесс очень затруднительный, потому что стены «хрущевки» не считаются ровными, а поклеить обои встык при этом получится не всегда. Местами разница между полотнами может достигать 2 см, поэтому потратить время и силы на идеальное выравнивание стен все же стоит. Существует несколько способов отделки стен:
- обои остаются самым распространенным вариантом. Можно использовать дорогие полотна с шелкографией. Лучше отдавать предпочтение обоям с вертикальными небольшими узорами и рисунками. Они помогут достичь эффекта высокого потолка.

 
- Отлично в небольшом помещении смотрятся фотообои с перспективой: городские пейзажи или природный ландшафт украсят любую комнату и создадут иллюзию присутствия.
 - Отличная альтернатива – жидкие обои. Они легко наносятся и скрывают все изъяны неровных стен. Текстура позволяет создавать бесшовную поверхность, разнообразить интерьер необычными узорами.
 
Мебель
Разместить всю необходимую мебель в «хрущевке» – уже удача, но если вы хотите создать уникальный современный интерьер, то нужно выбирать стильную и компактную мебель. Все габаритные предметы (шкаф, диван, комод) стоит убрать в самый темный угол подальше от окна. Использовать лучше раскладные столы, раздвижные диваны, многофункциональные комоды.
 В качестве системы хранения стоит выбирать встроенную мебель с глянцевыми, светлыми или стеклянными дверцами, поскольку темные цвета сделают мебель более громоздкой и тяжелой. Мягкая мебель может быть яркого и насыщенного цвета.
Кровать в спальню лучше выбрать с внутренними ящиками для хранения вещей и текстиля. Как будет осуществляться доступ – каждый решает сам. Существует два варианта: выдвижные ящики или подъем спального места. Каждый из них имеет плюсы и минусы. В выдвижных ящиках помещается меньше вещей, но доступ к ним облегчен, возможен в любое время. С подъемным механизмом дела обстоят абсолютно противоположно: места для хранения в разы больше, но доступ к ним может быть ограничен, если в это время на кровати спит человек. Цены на обе модели отличаются.
Также лучше выбирать кровати с мягким изголовьем, они значительно облегчат быт, сделают отдых более комфортным и расслабляющим. Не стоит экономить на покупке кровати.
 Она должна быть большой и удобной. Даже если придется пожертвовать прикроватными тумбочками, все же стоит выбирать самую большую модель, которую может вместить спальня.
Декор
В маленькой квартире должно быть минимум декора. Открытые полки стеллажа лучше оставлять полупустыми, так как это создаст более легкую атмосферу. Не стоит использовать большое количество мелкого декора. Он будет дробить помещение на части и создавать ощущение захламленности и бардака.
Все же при ремонте двухкомнатной «хрущевки» стоит отдавать предпочтение простым формам, многоуровневому освещению, делать акцент на пространстве, потому что смелые дизайнерские идеи не всегда требуют большого количества декоративных элементов в интерьере. Главный акцент в гостиной лучше сделать на мягкой мебели и текстиле. Из-за дефицита декоративных элементов обивка мебели, напольное покрытие и занавески станут главной составляющей квартиры, поэтому подходите более тщательно к выбору ковра, дивана, штор и других деталей, таких как картины, лампы и вазы.
Стили
Обе комнаты и кухня должны отвечать одному стилю, выдерживаться в одной цветовой гамме и соответствовать временной эпохе. Сочетание разных стилей в маленькой «хрущевке» будет смотреться неуместно и даже нелепо. Ценителям свободы и открытого пространства стоит обратить внимание на современные стили оформления квартиры, они идеально подходят для квартир-студий. При этом акцент ставится на функциональности и свободе пространства.
- Для небольшой квартиры самый подходящий стиль – минимализм. Светлые оттенки, легкие занавески и минимум декора – все это создает эффект расширения пространства и позитивно влияет на состояние человека.
 
- Скандинавский стиль сочетает в себе особенности минимализма и игру цветов.
 В данном стиле также преобладают светлые оттенки в интерьере, но допускается дополнительный декор в виде картин, декоративных предметов и цветов. При этом главный акцент делается на функциональности и комфорте. - Высокотехнологичный хай-тек отлично подойдет для современных и активных молодых людей. По сути, в интерьере воплощается эра высоких технологий. К тому же, такой стиль отлично подойдет и для оформления комнаты подростка. Предпочтение отдается светлым оттенкам и металлическому глянцевому блеску. Исключены объемные люстры и необычные декоративные элементы, но допускается использование картин, постеров и фотографий в тонких металлических рамках. Освещение должно быть хорошо продумано, предпочтение отдается простым геометрическим формам светильников.
 
- Стиль прованс пришел к нам из южной провинции Франции. Отличительные особенности – флористические мотивы, пастельные и природные оттенки: бежевый, бирюза, оливковый, голубой, зеленый, розовый, лавандовый, желтый и подобные, при этом интерьер не должен быть ярким и насыщенным.
 Основной светлый цвет разбавляется естественной природной палитрой. Мебель может быть состаренной, с облупленной краской или сколами на дереве. Дополнить интерьер можно уникальными предметами: сундуком или старым комодом. Шторы и занавески должны быть легкими и полупрозрачными, допускается средняя длина до подоконника. В качестве декора приветствуется большое количество рюшей, кружева, скатертей и керамических статуэток. - В маленькой тесной «хрущевке» можно использовать разные стили, но ни в коем случае нельзя оформлять интерьер в шикарно и праздно украшенном барокко.
 
Независимо от того, какой стиль интерьера вы выберете, главное, чтобы пространство было эстетичным, функциональным и практичным.
Советы профессионалов
Дизайнеры советуют сочетать в интерьере не более трех цветов.
 Один из них обязательно должен быть нейтральным и спокойным, а что касается остальных, то они могут быть смелыми и насыщенными, главное – не слишком кричащими, не перегружающими комнату. Дополнительные цвета уместно использовать в качестве акцентов. Это могут быть яркие картины, текстиль, шторы, обивка мебели или необычная авторская ваза. Главное, чтобы второй цвет был дополнительным, а третий – связующим звеном между первыми двумя.
Определитесь заранее, где будет установлен телевизор. Лучше выбирать плоский экран, и устанавливать его на стену при помощи поворотного кронштейна. Следует сразу позаботиться о том, чтобы провода были спрятаны.
Окно в «хрущевке» обычно имеет небольшие размеры, поэтому лучшим вариантов штор будут легкие полупрозрачные занавески. Таким образом, комната будет наполняться дневным светом и воздухом.
 Стоит отказаться от плотных портьер и штор с ламбрекенами, поскольку они могут смотреться гармонично при составлении дизайн-проекта, но на практике сделают обстановку тяжелой, сжатой и пыльной.
Удачный дизайн «хрущевки» не может обойтись без качественного освещения. Главное, чтобы в квартире не оставалось темных углов. В зависимости от стиля в качестве основного потолочного освещения лучше выбирать встроенные светильники по всему периметру потолка, можно сочетать их с потолочной люстрой. Для индивидуального освещения стоит использовать локальные светильники на полу и стенах. Это могут быть всевозможные торшеры, бра и настольные лампы. Грамотно продуманное освещение поможет расставить акценты в квартире, выделить важные зоны и скрыть недостатки.
Варианты в интерьере
Большое зеркало в красивой раме способно преобразить интерьер «хрущевки» до неузнаваемости.
Для зонирования небольшой комнаты отлично подходят шторы-нити.
 Данный вариант относится к эконом-классу. Они отлично пропускают воздух и свет, занимают немного места, и в любой момент их можно убрать, сделав помещение еще больше.
Выигрышно смотрится интерьер комнаты, когда цвета мебели, стен и занавесок совпадают.
При работе над обустройством кухни не стоит бояться смелых решений. Гарнитур с округлой формой сочетает в себе удобство, функциональность и стиль. При этом он располагается на площади 8 квадратных метров.
Сочетание бежевого, коричневого и насыщенного синего смотрится гармонично и привлекательной в интерьере кухни-гостиной.
Неплохой способ – расширить площадь кухни за счет прихожей.
Захватывающие фотообои смотрятся невероятно даже в маленькой комнате, создавая потрясающий эффект присутствия.
О том, как сделать перепланировку двухкомнатной «хрущевки», увидите в следующем видео.
Дизайн двухкомнатной «хрущевки» — интересные идеи (124 фото): 2-х комнатные квартиры 44 м2 и 43 кв. м, кухня и зал, идеи оформления для комнаты
Ремонт «хрущевки» – настоящее испытание, особенно если из старой квартиры неудачной планировки хочется сделать современную и удобную.
 Главный враг старых квартир – узкий коридор, маленькая кухня, неудачное расположение дверей, проходные комнаты и, конечно, небольшая квадратура. Но на сегодняшний день можно реализовать даже самый смелый и необычный проект, и для этого совсем не обязательно быть профессиональным дизайнером. Достаточно проанализировать особенности квартиры, изучить ранее реализованные проекты и составить дизайн-проект.
Особенности
Построенные в середине прошлого столетия дома до сих пор остаются единственным жильем для миллионов семей. И на сегодняшний день кирпичные и крупнопанельные дома до пяти этажей считаются наихудшим архитектурным решением. Зачастую самым простым способом усовершенствовать удручающую планировку квартиры является снос межкомнатных перегородок. При некоторых планировках возможно объединить кухню и комнаты, прихожую и комнату, ванну и туалет.
 Это позволит расширить площадь квартиры, добавить несколько необходимых метров. Также в некоторых квартирах есть кладовая, которую можно объединить с жилой комнатой.
Размеры коридора обычно наводят тоску. Узкая и темная прихожая в редких случаях может вместить шкаф-купе, поэтому необходимо делать акцент на функциональности, по возможности избавиться от не несущих стен. Если санузел изначально раздельный, его стоит объединить. Тогда можно будет выделить место для стиральной машины и большой угловой ванны. Чтобы сэкономить пространство, можно отказаться от раковины или от ванны в пользу душевой кабины. Любая перестройка стен должна быть согласована со специалистом, независимо от того, в каком доме она проводится: крупнопанельном или кирпичном.
Особенности квартиры не дают возможности перенести кухню в другое место, но зато можно вынести обеденную зону в гостиную. Для этого можно снести перегородку между кухней и комнатой или сделать арочный проем.
 Такой широкий проход визуально разделит пространство и создаст эффект увеличения площади. Вместо большого вместительного стола можно оставить место на кухне для барной стойки, за которой могут комфортно разместиться до 4 человек.
Размеры
На маленькой площади очень хочется обустроить красивую и комфортную для жизни квартиру. Современные дизайнерские идеи позволяют создать уютный интерьер, поэтому дизайн-проекты для квартир до 43 кв. м по-прежнему пользуется популярностью. Все типовые двухкомнатные «хрущевки» имеют схожую планировку и площадь:
- Общая площадь составляет 41-48 квадратных метров.
 - Квартиры площадью до 41 кв. м имеют смежные комнаты.
 - Высота потолка – 2,5-2,6 м. В некоторых сериях домов потолки достигают 2,7 м.
 - Площадь кухни варьируется от 4,9 до 8 м2.

 
Планировка квартиры в 42 кв. м называется в народе «книжка». Она считается наиболее неудачной, потому что имеет небольшие комнаты, одна из которых проходная. Квартира площадью 44 кв. м имеет уже раздельные комнаты, но небольшая кухня доставляет определенные неудобства и требует кардинальных решений. В квартире метражом в 45 кв. м комнаты расположены симметрично, поэтому они получили в народе названия «распашонка» или «бабочка».
Комнаты
Вариантов обустройства двухкомнатной «хрущевки», на самом деле, не так уж много, но делать квартиру с неудачной планировкой и низкими потолками комфортной и удобной вполне реально. Для этого, в первую очередь, необходимо понять, какой вид ремонта стоит провести: капитальный с заменой всех инженерных и коммуникационных сетей и сносом перегородок или простой косметический ремонт без перепланировки.
Существует три распространенные планировки двухкомнатной «хрущевки»: «книжка», «трамвай» и «полуторка» с улучшенной планировкой. Самое маленькое помещение в любой квартире – это прихожая. Расширить ее площадь можно только за счет увеличения дверного проема. Так будет поступать больше естественного света, и прихожая визуально расширится. Если же прихожая длинная, но узкая, ее можно поделить на две части. Первая будет стандартной прихожей возле входной двери, а вторая станет переходом в комнату.
Пожалуй, самый интересный вариант можно получить только путем полной трансформации квартиры, при этом важно использовать эффективно каждый квадратный метр. Для этого можно снести межкомнатные перегородки и обустроить квартиру по типу «студии», сделав акцент на свободе и просторе. Такой способ увеличит жилую площадь и расширит пространство. Также можно отказаться от узкого проходного коридора и расширить санузел. Перед началом работ необходимо составить план будущей квартиры и согласовать перепланировку.
 Самые распространенные варианты объединения зон:
- зал-кухня-столовая. Для объединения трех зон в одном помещении необходимо снести перегородки или оборудовать арочный дверной проем. На линии разделения комнаты и кухни или в комнате располагается обеденная зона с мягким диваном или барная стойка с высокими стульями.
 - Спальня-гостиная. Распространенный вариант обустройства квартиры, если в семье есть ребенок, и одна комната отводится для детской. При таком способе зонирования необязательно сносить межкомнатные перегородки, можно использовать разные способы зонирования помещения.
 
- Кабинет-гостиная. Самый оптимальный способ отделить рабочую зону – приподнять ее на подиум.
 Также можно использовать мобильные перегородки или стеллаж с открытыми полками. Однако следует помнить, что громоздкие перегородки способны визуально уменьшить пространство. - Кабинет-спальня. В таком случае, рабочий стол можно расположить поближе к окну, использовать гипсокартонную стену или стеллаж. Также при помощи освещения можно поделить комнату на две независимые функциональные зоны.
 
Зонирование
Главный враг маленьких квартир – хаос, беспорядок и нагромождение. При составлении плана «двушки» важно учитывать несколько основных моментов:
- у каждого члена семьи должна быть личная зона, и размер этой зоны, как правило, не играет особой роли.

 - Ну кухне обязательно должна быть выделена вместительная и функциональная рабочая зона с плитой, посудомоечной машиной и раковиной. Если используется газовая плита, то объединять кухню с комнатой нельзя, но можно расширить дверной проем, использовать раздвижные двери. И в тоже время, категорически запрещается менять положение газовой плиты и закрывать доступ к ней.
 
- Вторая комната может выделена под спальню или детскую комнату. В ней можно разместить большую систему хранения, кровать, туалетный столик или рабочий стол.
 - Если в комнате будет жить ребенок, то можно поставить кровать, рабочий стол и шкаф, при этом останется свободное пространство для игр. Если в комнате будут жить двое детей, то лучше выбрать функциональную трансформирующуюся мебель или двухъярусную кровать. Место у окна можно оборудовать под рабочий стол, чтобы для каждого ребенка была отдельная зона для учебы.

 
Способов зонировать пространство много. Самые распространенные и востребованные:
- использование разных способов отделки стен;
 - дополнительные фальшстены из гипсокартона;
 - мобильные перегородки и ширмы;
 
- шторы, занавески и шторы-нити;
 - предметы мебели, шкафы, диваны;
 - разные уровни пола и потолка.
 
Еще одна хитрость зонирования «хрущевки» – это большое светлое пространство. Если снести стены возможности нет, то можно отказаться от привычных дверей в пользу раздвижных. При помощи таких «номинальных» дверей можно создать единое пространство или скрыть от посторонних глаз отдельную зону.
Отделка
Мнение о том, что в интерьере небольших квартирах необходимо использовать исключительно светлые цвета, несколько преувеличено, ведь пастельные тона могут превратить квартиру в больничную палату.
 На самом деле, можно сочетать яркие и насыщенные оттенки, просто делать это надо аккуратно и умеренно. Выбор цвета – безусловно, индивидуальное решение, но стоит помнить, что оттенки оказывают особое влияние на настроение человека:
- бежевый, светло-серый, кремовый, бледно-желтый и другие пастельные оттенки являются самыми популярными во всех современных стилях. Разнообразить такой интерьер можно при помощи черного, коричневого или любых ярких цветов.
 - Вся палитра зеленого отлично сочетается с белым и коричневым, отлично подходит для эко стиля и при этом создает особое расслабленное настроение.
 
- Яркие и насыщенные цвета можно использовать в интерьере квартиры даже при оформлении стен, но важно разбавлять краски светлыми оттенками, которые могут присутствовать в мебели, занавесках и текстиле.

 - Синий и голубой в интерьере отлично сочетаются с белым и серым. Также можно добавить солнечных красок, разбавив холодные оттенки желтым или зеленым.
 
Важно уметь сочетать цвета и оттенки, не бояться смелых решений и объединить отделку пола, стен и потолка в одном направлении. Тогда даже старая 2-х комнатная квартира может стать уютным и современным жильем.
Полы
Варианты отделки пола зависят от предпочтений и финансового состояния владельца квартиры. Можно выбрать стандартный линолеум, ламинат, плитку или ковровое покрытие, но все же любое покрытие лучше делать в светлых тонах или в максимально приближенной к ним цветовой палитре. Это могут быть серые, бежевые, белые оттенки или рисунки, имитирующие натуральное светлое дерево.
Ламинат и паркетную доску лучше укладывать вдоль длинной стены.
 Проблема двухкомнатных «хрущевок» состоит в том, что могут возникнуть трудности при ремонте пола и сохранении единого рисунка, потому что комнаты могут находиться по разным сторонам здания, иметь разную форму. Поэтому лучше выбрать доски с неоднородным рисунком, который нет необходимости подбирать. Ковролин редко используется во всей квартире из-за своей непрактичности, но это отличный способ утеплить холодную комнату.
Потолки
Самый простой способ отделки потолка в малогабаритной квартире – использовать натяжной вариант. Он скроет все изъяны, неровности и трещины. Также можно использовать многоуровневые потолки с дополнительным светодиодным освещением. Дополнительное освещение по периметру потолка визуально увеличит длину комнаты.
Цвет потолка обязательно должен быть приближен к белому. Темные оттенки психологически будут давить, визуально уменьшат высоту потолка. Также отлично смотрится многоуровневый потолок с точечными встроенными светильниками.
 Яркое освещение и сложные конструкции визуально «приподнимут» потолок и расширят пространство.
Стены
Самый распространенный способ отделки квартиры – выравнивание стен при помощи шпаклевки и оклеивания обоями. Несмотря на кажущуюся простоту работы, на самом деле, процесс очень затруднительный, потому что стены «хрущевки» не считаются ровными, а поклеить обои встык при этом получится не всегда. Местами разница между полотнами может достигать 2 см, поэтому потратить время и силы на идеальное выравнивание стен все же стоит. Существует несколько способов отделки стен:
- обои остаются самым распространенным вариантом. Можно использовать дорогие полотна с шелкографией. Лучше отдавать предпочтение обоям с вертикальными небольшими узорами и рисунками. Они помогут достичь эффекта высокого потолка.

 
- Отлично в небольшом помещении смотрятся фотообои с перспективой: городские пейзажи или природный ландшафт украсят любую комнату и создадут иллюзию присутствия.
 - Отличная альтернатива – жидкие обои. Они легко наносятся и скрывают все изъяны неровных стен. Текстура позволяет создавать бесшовную поверхность, разнообразить интерьер необычными узорами.
 
Мебель
Разместить всю необходимую мебель в «хрущевке» – уже удача, но если вы хотите создать уникальный современный интерьер, то нужно выбирать стильную и компактную мебель. Все габаритные предметы (шкаф, диван, комод) стоит убрать в самый темный угол подальше от окна. Использовать лучше раскладные столы, раздвижные диваны, многофункциональные комоды.
 В качестве системы хранения стоит выбирать встроенную мебель с глянцевыми, светлыми или стеклянными дверцами, поскольку темные цвета сделают мебель более громоздкой и тяжелой. Мягкая мебель может быть яркого и насыщенного цвета.
Кровать в спальню лучше выбрать с внутренними ящиками для хранения вещей и текстиля. Как будет осуществляться доступ – каждый решает сам. Существует два варианта: выдвижные ящики или подъем спального места. Каждый из них имеет плюсы и минусы. В выдвижных ящиках помещается меньше вещей, но доступ к ним облегчен, возможен в любое время. С подъемным механизмом дела обстоят абсолютно противоположно: места для хранения в разы больше, но доступ к ним может быть ограничен, если в это время на кровати спит человек. Цены на обе модели отличаются.
Также лучше выбирать кровати с мягким изголовьем, они значительно облегчат быт, сделают отдых более комфортным и расслабляющим. Не стоит экономить на покупке кровати.
 Она должна быть большой и удобной. Даже если придется пожертвовать прикроватными тумбочками, все же стоит выбирать самую большую модель, которую может вместить спальня.
Декор
В маленькой квартире должно быть минимум декора. Открытые полки стеллажа лучше оставлять полупустыми, так как это создаст более легкую атмосферу. Не стоит использовать большое количество мелкого декора. Он будет дробить помещение на части и создавать ощущение захламленности и бардака.
Все же при ремонте двухкомнатной «хрущевки» стоит отдавать предпочтение простым формам, многоуровневому освещению, делать акцент на пространстве, потому что смелые дизайнерские идеи не всегда требуют большого количества декоративных элементов в интерьере. Главный акцент в гостиной лучше сделать на мягкой мебели и текстиле. Из-за дефицита декоративных элементов обивка мебели, напольное покрытие и занавески станут главной составляющей квартиры, поэтому подходите более тщательно к выбору ковра, дивана, штор и других деталей, таких как картины, лампы и вазы.
Стили
Обе комнаты и кухня должны отвечать одному стилю, выдерживаться в одной цветовой гамме и соответствовать временной эпохе. Сочетание разных стилей в маленькой «хрущевке» будет смотреться неуместно и даже нелепо. Ценителям свободы и открытого пространства стоит обратить внимание на современные стили оформления квартиры, они идеально подходят для квартир-студий. При этом акцент ставится на функциональности и свободе пространства.
- Для небольшой квартиры самый подходящий стиль – минимализм. Светлые оттенки, легкие занавески и минимум декора – все это создает эффект расширения пространства и позитивно влияет на состояние человека.
 
- Скандинавский стиль сочетает в себе особенности минимализма и игру цветов.
 В данном стиле также преобладают светлые оттенки в интерьере, но допускается дополнительный декор в виде картин, декоративных предметов и цветов. При этом главный акцент делается на функциональности и комфорте. - Высокотехнологичный хай-тек отлично подойдет для современных и активных молодых людей. По сути, в интерьере воплощается эра высоких технологий. К тому же, такой стиль отлично подойдет и для оформления комнаты подростка. Предпочтение отдается светлым оттенкам и металлическому глянцевому блеску. Исключены объемные люстры и необычные декоративные элементы, но допускается использование картин, постеров и фотографий в тонких металлических рамках. Освещение должно быть хорошо продумано, предпочтение отдается простым геометрическим формам светильников.
 
- Стиль прованс пришел к нам из южной провинции Франции. Отличительные особенности – флористические мотивы, пастельные и природные оттенки: бежевый, бирюза, оливковый, голубой, зеленый, розовый, лавандовый, желтый и подобные, при этом интерьер не должен быть ярким и насыщенным.
 Основной светлый цвет разбавляется естественной природной палитрой. Мебель может быть состаренной, с облупленной краской или сколами на дереве. Дополнить интерьер можно уникальными предметами: сундуком или старым комодом. Шторы и занавески должны быть легкими и полупрозрачными, допускается средняя длина до подоконника. В качестве декора приветствуется большое количество рюшей, кружева, скатертей и керамических статуэток. - В маленькой тесной «хрущевке» можно использовать разные стили, но ни в коем случае нельзя оформлять интерьер в шикарно и праздно украшенном барокко.
 
Независимо от того, какой стиль интерьера вы выберете, главное, чтобы пространство было эстетичным, функциональным и практичным.
Советы профессионалов
Дизайнеры советуют сочетать в интерьере не более трех цветов.
 Один из них обязательно должен быть нейтральным и спокойным, а что касается остальных, то они могут быть смелыми и насыщенными, главное – не слишком кричащими, не перегружающими комнату. Дополнительные цвета уместно использовать в качестве акцентов. Это могут быть яркие картины, текстиль, шторы, обивка мебели или необычная авторская ваза. Главное, чтобы второй цвет был дополнительным, а третий – связующим звеном между первыми двумя.
Определитесь заранее, где будет установлен телевизор. Лучше выбирать плоский экран, и устанавливать его на стену при помощи поворотного кронштейна. Следует сразу позаботиться о том, чтобы провода были спрятаны.
Окно в «хрущевке» обычно имеет небольшие размеры, поэтому лучшим вариантов штор будут легкие полупрозрачные занавески. Таким образом, комната будет наполняться дневным светом и воздухом.
 Стоит отказаться от плотных портьер и штор с ламбрекенами, поскольку они могут смотреться гармонично при составлении дизайн-проекта, но на практике сделают обстановку тяжелой, сжатой и пыльной.
Удачный дизайн «хрущевки» не может обойтись без качественного освещения. Главное, чтобы в квартире не оставалось темных углов. В зависимости от стиля в качестве основного потолочного освещения лучше выбирать встроенные светильники по всему периметру потолка, можно сочетать их с потолочной люстрой. Для индивидуального освещения стоит использовать локальные светильники на полу и стенах. Это могут быть всевозможные торшеры, бра и настольные лампы. Грамотно продуманное освещение поможет расставить акценты в квартире, выделить важные зоны и скрыть недостатки.
Варианты в интерьере
Большое зеркало в красивой раме способно преобразить интерьер «хрущевки» до неузнаваемости.
Для зонирования небольшой комнаты отлично подходят шторы-нити.
 Данный вариант относится к эконом-классу. Они отлично пропускают воздух и свет, занимают немного места, и в любой момент их можно убрать, сделав помещение еще больше.
Выигрышно смотрится интерьер комнаты, когда цвета мебели, стен и занавесок совпадают.
При работе над обустройством кухни не стоит бояться смелых решений. Гарнитур с округлой формой сочетает в себе удобство, функциональность и стиль. При этом он располагается на площади 8 квадратных метров.
Сочетание бежевого, коричневого и насыщенного синего смотрится гармонично и привлекательной в интерьере кухни-гостиной.
Неплохой способ – расширить площадь кухни за счет прихожей.
Захватывающие фотообои смотрятся невероятно даже в маленькой комнате, создавая потрясающий эффект присутствия.
О том, как сделать перепланировку двухкомнатной «хрущевки», увидите в следующем видео.
Дизайн двухкомнатной «хрущевки» — интересные идеи (124 фото): 2-х комнатные квартиры 44 м2 и 43 кв. м, кухня и зал, идеи оформления для комнаты
Ремонт «хрущевки» – настоящее испытание, особенно если из старой квартиры неудачной планировки хочется сделать современную и удобную.
 Главный враг старых квартир – узкий коридор, маленькая кухня, неудачное расположение дверей, проходные комнаты и, конечно, небольшая квадратура. Но на сегодняшний день можно реализовать даже самый смелый и необычный проект, и для этого совсем не обязательно быть профессиональным дизайнером. Достаточно проанализировать особенности квартиры, изучить ранее реализованные проекты и составить дизайн-проект.
Особенности
Построенные в середине прошлого столетия дома до сих пор остаются единственным жильем для миллионов семей. И на сегодняшний день кирпичные и крупнопанельные дома до пяти этажей считаются наихудшим архитектурным решением. Зачастую самым простым способом усовершенствовать удручающую планировку квартиры является снос межкомнатных перегородок. При некоторых планировках возможно объединить кухню и комнаты, прихожую и комнату, ванну и туалет.
 Это позволит расширить площадь квартиры, добавить несколько необходимых метров. Также в некоторых квартирах есть кладовая, которую можно объединить с жилой комнатой.
Размеры коридора обычно наводят тоску. Узкая и темная прихожая в редких случаях может вместить шкаф-купе, поэтому необходимо делать акцент на функциональности, по возможности избавиться от не несущих стен. Если санузел изначально раздельный, его стоит объединить. Тогда можно будет выделить место для стиральной машины и большой угловой ванны. Чтобы сэкономить пространство, можно отказаться от раковины или от ванны в пользу душевой кабины. Любая перестройка стен должна быть согласована со специалистом, независимо от того, в каком доме она проводится: крупнопанельном или кирпичном.
Особенности квартиры не дают возможности перенести кухню в другое место, но зато можно вынести обеденную зону в гостиную. Для этого можно снести перегородку между кухней и комнатой или сделать арочный проем.
 Такой широкий проход визуально разделит пространство и создаст эффект увеличения площади. Вместо большого вместительного стола можно оставить место на кухне для барной стойки, за которой могут комфортно разместиться до 4 человек.
Размеры
На маленькой площади очень хочется обустроить красивую и комфортную для жизни квартиру. Современные дизайнерские идеи позволяют создать уютный интерьер, поэтому дизайн-проекты для квартир до 43 кв. м по-прежнему пользуется популярностью. Все типовые двухкомнатные «хрущевки» имеют схожую планировку и площадь:
- Общая площадь составляет 41-48 квадратных метров.
 - Квартиры площадью до 41 кв. м имеют смежные комнаты.
 - Высота потолка – 2,5-2,6 м. В некоторых сериях домов потолки достигают 2,7 м.
 - Площадь кухни варьируется от 4,9 до 8 м2.

 
Планировка квартиры в 42 кв. м называется в народе «книжка». Она считается наиболее неудачной, потому что имеет небольшие комнаты, одна из которых проходная. Квартира площадью 44 кв. м имеет уже раздельные комнаты, но небольшая кухня доставляет определенные неудобства и требует кардинальных решений. В квартире метражом в 45 кв. м комнаты расположены симметрично, поэтому они получили в народе названия «распашонка» или «бабочка».
Комнаты
Вариантов обустройства двухкомнатной «хрущевки», на самом деле, не так уж много, но делать квартиру с неудачной планировкой и низкими потолками комфортной и удобной вполне реально. Для этого, в первую очередь, необходимо понять, какой вид ремонта стоит провести: капитальный с заменой всех инженерных и коммуникационных сетей и сносом перегородок или простой косметический ремонт без перепланировки.
Существует три распространенные планировки двухкомнатной «хрущевки»: «книжка», «трамвай» и «полуторка» с улучшенной планировкой. Самое маленькое помещение в любой квартире – это прихожая. Расширить ее площадь можно только за счет увеличения дверного проема. Так будет поступать больше естественного света, и прихожая визуально расширится. Если же прихожая длинная, но узкая, ее можно поделить на две части. Первая будет стандартной прихожей возле входной двери, а вторая станет переходом в комнату.
Пожалуй, самый интересный вариант можно получить только путем полной трансформации квартиры, при этом важно использовать эффективно каждый квадратный метр. Для этого можно снести межкомнатные перегородки и обустроить квартиру по типу «студии», сделав акцент на свободе и просторе. Такой способ увеличит жилую площадь и расширит пространство. Также можно отказаться от узкого проходного коридора и расширить санузел. Перед началом работ необходимо составить план будущей квартиры и согласовать перепланировку.
 Самые распространенные варианты объединения зон:
- зал-кухня-столовая. Для объединения трех зон в одном помещении необходимо снести перегородки или оборудовать арочный дверной проем. На линии разделения комнаты и кухни или в комнате располагается обеденная зона с мягким диваном или барная стойка с высокими стульями.
 - Спальня-гостиная. Распространенный вариант обустройства квартиры, если в семье есть ребенок, и одна комната отводится для детской. При таком способе зонирования необязательно сносить межкомнатные перегородки, можно использовать разные способы зонирования помещения.
 
- Кабинет-гостиная. Самый оптимальный способ отделить рабочую зону – приподнять ее на подиум.
 Также можно использовать мобильные перегородки или стеллаж с открытыми полками. Однако следует помнить, что громоздкие перегородки способны визуально уменьшить пространство. - Кабинет-спальня. В таком случае, рабочий стол можно расположить поближе к окну, использовать гипсокартонную стену или стеллаж. Также при помощи освещения можно поделить комнату на две независимые функциональные зоны.
 
Зонирование
Главный враг маленьких квартир – хаос, беспорядок и нагромождение. При составлении плана «двушки» важно учитывать несколько основных моментов:
- у каждого члена семьи должна быть личная зона, и размер этой зоны, как правило, не играет особой роли.

 - Ну кухне обязательно должна быть выделена вместительная и функциональная рабочая зона с плитой, посудомоечной машиной и раковиной. Если используется газовая плита, то объединять кухню с комнатой нельзя, но можно расширить дверной проем, использовать раздвижные двери. И в тоже время, категорически запрещается менять положение газовой плиты и закрывать доступ к ней.
 
- Вторая комната может выделена под спальню или детскую комнату. В ней можно разместить большую систему хранения, кровать, туалетный столик или рабочий стол.
 - Если в комнате будет жить ребенок, то можно поставить кровать, рабочий стол и шкаф, при этом останется свободное пространство для игр. Если в комнате будут жить двое детей, то лучше выбрать функциональную трансформирующуюся мебель или двухъярусную кровать. Место у окна можно оборудовать под рабочий стол, чтобы для каждого ребенка была отдельная зона для учебы.

 
Способов зонировать пространство много. Самые распространенные и востребованные:
- использование разных способов отделки стен;
 - дополнительные фальшстены из гипсокартона;
 - мобильные перегородки и ширмы;
 
- шторы, занавески и шторы-нити;
 - предметы мебели, шкафы, диваны;
 - разные уровни пола и потолка.
 
Еще одна хитрость зонирования «хрущевки» – это большое светлое пространство. Если снести стены возможности нет, то можно отказаться от привычных дверей в пользу раздвижных. При помощи таких «номинальных» дверей можно создать единое пространство или скрыть от посторонних глаз отдельную зону.
Отделка
Мнение о том, что в интерьере небольших квартирах необходимо использовать исключительно светлые цвета, несколько преувеличено, ведь пастельные тона могут превратить квартиру в больничную палату.
 На самом деле, можно сочетать яркие и насыщенные оттенки, просто делать это надо аккуратно и умеренно. Выбор цвета – безусловно, индивидуальное решение, но стоит помнить, что оттенки оказывают особое влияние на настроение человека:
- бежевый, светло-серый, кремовый, бледно-желтый и другие пастельные оттенки являются самыми популярными во всех современных стилях. Разнообразить такой интерьер можно при помощи черного, коричневого или любых ярких цветов.
 - Вся палитра зеленого отлично сочетается с белым и коричневым, отлично подходит для эко стиля и при этом создает особое расслабленное настроение.
 
- Яркие и насыщенные цвета можно использовать в интерьере квартиры даже при оформлении стен, но важно разбавлять краски светлыми оттенками, которые могут присутствовать в мебели, занавесках и текстиле.

 - Синий и голубой в интерьере отлично сочетаются с белым и серым. Также можно добавить солнечных красок, разбавив холодные оттенки желтым или зеленым.
 
Важно уметь сочетать цвета и оттенки, не бояться смелых решений и объединить отделку пола, стен и потолка в одном направлении. Тогда даже старая 2-х комнатная квартира может стать уютным и современным жильем.
Полы
Варианты отделки пола зависят от предпочтений и финансового состояния владельца квартиры. Можно выбрать стандартный линолеум, ламинат, плитку или ковровое покрытие, но все же любое покрытие лучше делать в светлых тонах или в максимально приближенной к ним цветовой палитре. Это могут быть серые, бежевые, белые оттенки или рисунки, имитирующие натуральное светлое дерево.
Ламинат и паркетную доску лучше укладывать вдоль длинной стены.
 Проблема двухкомнатных «хрущевок» состоит в том, что могут возникнуть трудности при ремонте пола и сохранении единого рисунка, потому что комнаты могут находиться по разным сторонам здания, иметь разную форму. Поэтому лучше выбрать доски с неоднородным рисунком, который нет необходимости подбирать. Ковролин редко используется во всей квартире из-за своей непрактичности, но это отличный способ утеплить холодную комнату.
Потолки
Самый простой способ отделки потолка в малогабаритной квартире – использовать натяжной вариант. Он скроет все изъяны, неровности и трещины. Также можно использовать многоуровневые потолки с дополнительным светодиодным освещением. Дополнительное освещение по периметру потолка визуально увеличит длину комнаты.
Цвет потолка обязательно должен быть приближен к белому. Темные оттенки психологически будут давить, визуально уменьшат высоту потолка. Также отлично смотрится многоуровневый потолок с точечными встроенными светильниками.
 Яркое освещение и сложные конструкции визуально «приподнимут» потолок и расширят пространство.
Стены
Самый распространенный способ отделки квартиры – выравнивание стен при помощи шпаклевки и оклеивания обоями. Несмотря на кажущуюся простоту работы, на самом деле, процесс очень затруднительный, потому что стены «хрущевки» не считаются ровными, а поклеить обои встык при этом получится не всегда. Местами разница между полотнами может достигать 2 см, поэтому потратить время и силы на идеальное выравнивание стен все же стоит. Существует несколько способов отделки стен:
- обои остаются самым распространенным вариантом. Можно использовать дорогие полотна с шелкографией. Лучше отдавать предпочтение обоям с вертикальными небольшими узорами и рисунками. Они помогут достичь эффекта высокого потолка.

 
- Отлично в небольшом помещении смотрятся фотообои с перспективой: городские пейзажи или природный ландшафт украсят любую комнату и создадут иллюзию присутствия.
 - Отличная альтернатива – жидкие обои. Они легко наносятся и скрывают все изъяны неровных стен. Текстура позволяет создавать бесшовную поверхность, разнообразить интерьер необычными узорами.
 
Мебель
Разместить всю необходимую мебель в «хрущевке» – уже удача, но если вы хотите создать уникальный современный интерьер, то нужно выбирать стильную и компактную мебель. Все габаритные предметы (шкаф, диван, комод) стоит убрать в самый темный угол подальше от окна. Использовать лучше раскладные столы, раздвижные диваны, многофункциональные комоды.
 В качестве системы хранения стоит выбирать встроенную мебель с глянцевыми, светлыми или стеклянными дверцами, поскольку темные цвета сделают мебель более громоздкой и тяжелой. Мягкая мебель может быть яркого и насыщенного цвета.
Кровать в спальню лучше выбрать с внутренними ящиками для хранения вещей и текстиля. Как будет осуществляться доступ – каждый решает сам. Существует два варианта: выдвижные ящики или подъем спального места. Каждый из них имеет плюсы и минусы. В выдвижных ящиках помещается меньше вещей, но доступ к ним облегчен, возможен в любое время. С подъемным механизмом дела обстоят абсолютно противоположно: места для хранения в разы больше, но доступ к ним может быть ограничен, если в это время на кровати спит человек. Цены на обе модели отличаются.
Также лучше выбирать кровати с мягким изголовьем, они значительно облегчат быт, сделают отдых более комфортным и расслабляющим. Не стоит экономить на покупке кровати.
 Она должна быть большой и удобной. Даже если придется пожертвовать прикроватными тумбочками, все же стоит выбирать самую большую модель, которую может вместить спальня.
Декор
В маленькой квартире должно быть минимум декора. Открытые полки стеллажа лучше оставлять полупустыми, так как это создаст более легкую атмосферу. Не стоит использовать большое количество мелкого декора. Он будет дробить помещение на части и создавать ощущение захламленности и бардака.
Все же при ремонте двухкомнатной «хрущевки» стоит отдавать предпочтение простым формам, многоуровневому освещению, делать акцент на пространстве, потому что смелые дизайнерские идеи не всегда требуют большого количества декоративных элементов в интерьере. Главный акцент в гостиной лучше сделать на мягкой мебели и текстиле. Из-за дефицита декоративных элементов обивка мебели, напольное покрытие и занавески станут главной составляющей квартиры, поэтому подходите более тщательно к выбору ковра, дивана, штор и других деталей, таких как картины, лампы и вазы.
Стили
Обе комнаты и кухня должны отвечать одному стилю, выдерживаться в одной цветовой гамме и соответствовать временной эпохе. Сочетание разных стилей в маленькой «хрущевке» будет смотреться неуместно и даже нелепо. Ценителям свободы и открытого пространства стоит обратить внимание на современные стили оформления квартиры, они идеально подходят для квартир-студий. При этом акцент ставится на функциональности и свободе пространства.
- Для небольшой квартиры самый подходящий стиль – минимализм. Светлые оттенки, легкие занавески и минимум декора – все это создает эффект расширения пространства и позитивно влияет на состояние человека.
 
- Скандинавский стиль сочетает в себе особенности минимализма и игру цветов.
 В данном стиле также преобладают светлые оттенки в интерьере, но допускается дополнительный декор в виде картин, декоративных предметов и цветов. При этом главный акцент делается на функциональности и комфорте. - Высокотехнологичный хай-тек отлично подойдет для современных и активных молодых людей. По сути, в интерьере воплощается эра высоких технологий. К тому же, такой стиль отлично подойдет и для оформления комнаты подростка. Предпочтение отдается светлым оттенкам и металлическому глянцевому блеску. Исключены объемные люстры и необычные декоративные элементы, но допускается использование картин, постеров и фотографий в тонких металлических рамках. Освещение должно быть хорошо продумано, предпочтение отдается простым геометрическим формам светильников.
 
- Стиль прованс пришел к нам из южной провинции Франции. Отличительные особенности – флористические мотивы, пастельные и природные оттенки: бежевый, бирюза, оливковый, голубой, зеленый, розовый, лавандовый, желтый и подобные, при этом интерьер не должен быть ярким и насыщенным.
 Основной светлый цвет разбавляется естественной природной палитрой. Мебель может быть состаренной, с облупленной краской или сколами на дереве. Дополнить интерьер можно уникальными предметами: сундуком или старым комодом. Шторы и занавески должны быть легкими и полупрозрачными, допускается средняя длина до подоконника. В качестве декора приветствуется большое количество рюшей, кружева, скатертей и керамических статуэток. - В маленькой тесной «хрущевке» можно использовать разные стили, но ни в коем случае нельзя оформлять интерьер в шикарно и праздно украшенном барокко.
 
Независимо от того, какой стиль интерьера вы выберете, главное, чтобы пространство было эстетичным, функциональным и практичным.
Советы профессионалов
Дизайнеры советуют сочетать в интерьере не более трех цветов.
 Один из них обязательно должен быть нейтральным и спокойным, а что касается остальных, то они могут быть смелыми и насыщенными, главное – не слишком кричащими, не перегружающими комнату. Дополнительные цвета уместно использовать в качестве акцентов. Это могут быть яркие картины, текстиль, шторы, обивка мебели или необычная авторская ваза. Главное, чтобы второй цвет был дополнительным, а третий – связующим звеном между первыми двумя.
Определитесь заранее, где будет установлен телевизор. Лучше выбирать плоский экран, и устанавливать его на стену при помощи поворотного кронштейна. Следует сразу позаботиться о том, чтобы провода были спрятаны.
Окно в «хрущевке» обычно имеет небольшие размеры, поэтому лучшим вариантов штор будут легкие полупрозрачные занавески. Таким образом, комната будет наполняться дневным светом и воздухом.
 Стоит отказаться от плотных портьер и штор с ламбрекенами, поскольку они могут смотреться гармонично при составлении дизайн-проекта, но на практике сделают обстановку тяжелой, сжатой и пыльной.
Удачный дизайн «хрущевки» не может обойтись без качественного освещения. Главное, чтобы в квартире не оставалось темных углов. В зависимости от стиля в качестве основного потолочного освещения лучше выбирать встроенные светильники по всему периметру потолка, можно сочетать их с потолочной люстрой. Для индивидуального освещения стоит использовать локальные светильники на полу и стенах. Это могут быть всевозможные торшеры, бра и настольные лампы. Грамотно продуманное освещение поможет расставить акценты в квартире, выделить важные зоны и скрыть недостатки.
Варианты в интерьере
Большое зеркало в красивой раме способно преобразить интерьер «хрущевки» до неузнаваемости.
Для зонирования небольшой комнаты отлично подходят шторы-нити.
 Данный вариант относится к эконом-классу. Они отлично пропускают воздух и свет, занимают немного места, и в любой момент их можно убрать, сделав помещение еще больше.
Выигрышно смотрится интерьер комнаты, когда цвета мебели, стен и занавесок совпадают.
При работе над обустройством кухни не стоит бояться смелых решений. Гарнитур с округлой формой сочетает в себе удобство, функциональность и стиль. При этом он располагается на площади 8 квадратных метров.
Сочетание бежевого, коричневого и насыщенного синего смотрится гармонично и привлекательной в интерьере кухни-гостиной.
Неплохой способ – расширить площадь кухни за счет прихожей.
Захватывающие фотообои смотрятся невероятно даже в маленькой комнате, создавая потрясающий эффект присутствия.
О том, как сделать перепланировку двухкомнатной «хрущевки», увидите в следующем видео.
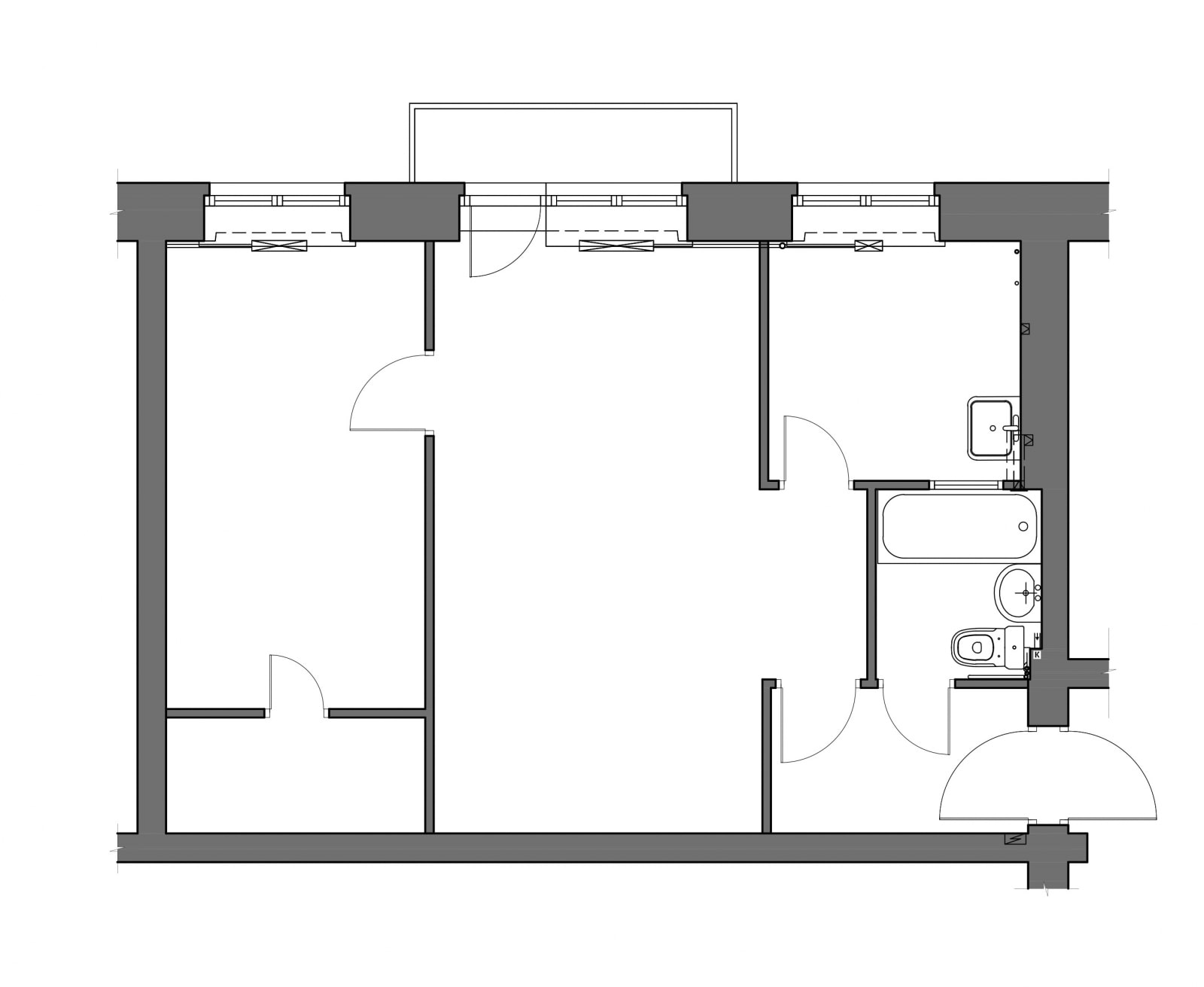
Перепланировка двухкомнатной хрущёвки. Фото 2 комнатной хрущёвки
 Двухкомнатная квартира с проходной комнатой в доме хрущевской серии — почти совершенство: улучшить в ней что-либо уже нельзя.
 Впрочем, дизайнеру Павлу Белому, кажется, удалось совершить невозможное. Проект «Трансерфинг пространства»: ровно в полночь гостиная превратится в отдельную спальню.
На фото:
Грамотная перепланировка открывает для дизайна новые возможности: например, позволяет избавиться от «проклятия» проходной комнаты. На фото – проект Павла Белого «Транссерфинг пространства».
Сведения о квартире: двухкомнатная хрущевка с гостиной 16.кв.м., Москва
О владельцах: семья из трех человек: родители и взрослая дочь.
Пожелания клиентов: обустроить гостиную комнату так, чтобы она одновременно стала комфортной спальней для девушки. Добавить фиолетовый цвет.
Читайте также:
Эта 2-комнатная хрущевка изначально имела все традиционные признаки: спальня, гостиная и маленькая кладовка-гардеробная. Увы, для отдельной комнаты взрослой дочери места уже не нашлось. Дизайнер Павел Белый исправляет ситуацию — теперь гостиная по ночам превращается в изолированную спальню для девушки.
 Дизайнер назвал твой проект «Транссерфинг пространства» за многофункциональность и видоизменяемость. Минималистичная мебель и немного эко-декора, оригинальные решения и принты — главные секреты стильного интерьера на 16 кв.м. «хруща».
Перепланировка двухкомнатной хрущевки началась с переноса межкомнатых дверей. Вход в родительскую спальню располагался по диагонали от входа в комнату — таким образом, она вся получалась проходной. Теперь дверь в спальню расположена напротив входной, благодаря чему образовалось выделенное пространство у окна, свободное от транзитных перемещений. 
Мобильность пространства обеспечивает раздвижная стеклянная дверь-перегородка: когда она закрыта, помещение разделяется на спальню и коридор, а когда открыта, все пространство становится гостиной. Четыре полотна из закаленного матового стекла «сатинато» не сохраняют следы от пальцев, непрозрачны, но пропускают свет. Полотна движутся только по верхней направляющей в фальшбалке, отделанной шпоном.
 Внизу направляющих нет, а, значит, нет и порога, о который можно запнуться.
В другой стороне «транзитной» зоны расположился большой встроенный шкаф. Несмотря на размеры, он совершенно не выглядит громоздким. Раздвижные стеклянные дверцы украшает принт – макросъемка одуванчиков. Светлое фото на бликующем стекле добавляет пространству объем, а гигантские стебли привносят природный дух в строгий минималистичный дизайн. Выглядит свежо и несколько сюрреалистично. На расширение пространства работают и оригинальные объемные светильники, отражающиеся на зеркальной поверхности шкафа.
Сдвоенные двери – входы в спальню родителей (широкий) и в гардеробную (узкий). Зеркальные вставки создают иллюзию перспективы, а ореховый шпон добавляет интерьеру уюта. Конструкция дверей тоже необычная – большие двери сдвигаются в стену, а маленькая обладает роторным механизмом – поворачивается перпендикулярно стене.
За раздвижной стеклянной перегородкой – гостиная, она же спальная зона.
 Минималистичный диван-трансформер по ночам превращается в кровать. Рельефный декор стен и потолка напоминает стекающие капли – это тоже «смягчающий», экологичный элемент. В продолговатые ниши вставлен дюралайт (световой шнур), он полностью заменяет традиционный потолочный свет. Освещение можно регулировать по интенсивности, а можно и вовсе включать-выключать отдельные «капли». Декорация изготовлена из гипсокартона и шпона, который украшает внутреннюю часть прорезов. Другой элемент освещения – точечные светильники в алюминиевом корпусе. Они встроены в пол, по границе с транзитной зоной, и заменяют ночник для спальни.
Гнутые столики, так же, как и тумба под ТВ в духе 60-х изготовлены на заказ. Отсутствие острых углов делает всю обстановку мягче, уютнее. Легкий торшер на узкой ножке смотрится совершенно невесомо, формой он перекликается с одуванчиками на шкафах. Уют помещению придают светлые глухие занавески с оригинальным рисунком. Авторский дизайн – ассоциации на тему картин, которые видит младенец в утробе матери (любимый хозяйкой фиолетовый цвет).
 Шторы висят с двух сторон: на окне и возле перегородки, помогая полностью отгородиться от мира.
Напротив дивана — телевизор с колонками. Современный музыкальный центр похож на черный квадрат. Он крепится на стену и не занимает места в комнате. Стены покрыты краской с добавлением песка и перламутра: первый добавляет фактурности, второй – бликов, которые визуально увеличивают помещение, делают его воздушнее. Красное пластиковое кресло – реплика знаменитой работы итальянского дизайнера Паоло Новембре. Креативный современный дизайн делает все пространство интереснее и «моложе», а красный цвет играет роль яркого акцента в нейтральном светлом интерьере.
СМОТРЕТЬ ПРОЕКТ ЦЕЛИКОМ
Проект — участник конкурса «Лучший интерьер комнаты» на сайте pinwin.ru. Ссылка на страницу проекта: http://www.pinwin.ru/konkurs.php?kact=2&knid=19&rbid=3522
Двухкомнатная квартира в хрущевке в современном советском стиле
До прошлого года ремонта в квартире не было, поэтому планировка помещения была типичной для хрущевки.
 На площади 42 квадратных метров размещались большая комната, маленькая прихожая, небольшая кухня и раздельный санузел. В процессе реставрации в небольшой прихожей разместили гардероб, кухню объединили с гостиной, ванну совместили с туалетом, а спальню оставили изолированной. Деревянный пол во всей квартире заменили на керамогранит с подогревом, который требует меньше ухода.
Маленькое окошко между кухней и санузлом заменили на полноценное деревянное окно от столешницы до потолка, чтобы в ванную мог попадать дневной свет. В ниши в стенах спрятали холодильник и бытовой шкаф со стиральной машиной и водонагревателем. Вместо ванны разместили современную душевую кабину, дополнительно установили мощные фильтры очистки воды. Умывальник оборудовали навесным шкафом с зеркалом и подсветкой.
Цветовую гамму интерьера определили винтажные шторы с горчичным узором, которые отреставрировали, посадили на подклад и окаймили шелком. Цвета отразились в мозаике кухонного фартука и в обивке предметов мебели, которые также реставрировали и перетягивали новой тканью.
 Новую жизнь получили комод 1912 года, который был приданым бабушки заказчицы, буфет, изготовленный в 1953 году немецкими военнопленными, а также болгарские стулья, шифоньер и столы, приобретенные в 1970-х годах. Сервант, шифоньер и буфет отшкурили и покрыли прозрачным лаком. От всех фанерных антресолей избавились и организовали новые места для хранения. 
Стены покрыли краской спокойного оттенка. Яркие ковры сняли со стен и оставили на полу в качестве колоритной детали. Дополнили интерьер картины молодого екатеринбургского художника Кирилла Бородина, написанные в гармонирующих с цветами квартиры тонах.
Интересным решением стала обивка входной двери кожезаменителем со стяжкой — так люди в Советском союзе создавали эффект шумо- и теплоизоляции для дверей из ДВП. Во всех комнатах установили двери с фрамугой, чтобы визуально увеличить пространство между полом и потолком. Окна в комнатах заменили на пластиковые.
Двухкомнатные квартиры в Твери — АН «Наш Дом»
Двухкомнатные квартиры в Твери весьма распространены.
 По типам чаще всего они делятся на:
Сталинки в расчет не берем, так как их сохранилось в Твери не много и они не на столько стандартизированы.
Двухкомнатные квартиры хрущевки
Двухкомнатные хрущевки − чаще всего это чуть больше 40 м² общей площади. Обычно одна из комнат проходная. Маленькая кухня 6-7 м², совмещенный санузел, либо разделенный очень тонкой фанерной стенкой. Иногда в двушках делали гардероб-чулан площадью 1,5-2 м².
Не смотря на высокую стандартизированность, разнообразие двухкомнатных хрущевок все же довольно много. Выделить можно две базовые планировки:
Средняя цена двухкомнатной квартиры хрущевки в Твери,  | 2 190 000 ₽  | 
Двухкомнатные квартиры брежневки
Двухкомнатные брежневки стали еще более разнообразными, по сравнению с хрущевками. Планировки от 42 до 49 м². Всегда раздельный санузел. Проходные комнаты еще остались в наследство от хрущевок, но явление это было редким.
- кухня примерно 8-9 м²,
 - туалет 1-1,5 м²,
 - ванная примерно 3 м²,
 - прихожая и коридор 6-9 м².
 - комнаты как правило одна «большая» порядка 17-19 м², и «маленькая» 10-15 м².
 
Средняя цена однокомнатной квартиры брежневки в Твери,  | 2 450 000 ₽  | 
Улучшенные планировки
Так называемые «улучшенные планировки» характеризуются:
- панельные дома,
 - раздельный санузел,
 - относительно большие коридоры и прихожие.
 
Площади около 50 м²:
- кухня примерно 8-10 м²,
 - туалет 1,5-2 м²,
 - ванная примерно 3-4 м²,
 - прихожая и коридор 6-12 м².
 - комнаты 10-19 м².
 
Распространенные двухкомнатные «улучшенные планировки»:
Средняя цена однокомнатной квартиры «улучшенной планировки» в Твери,  | 2 570 000 ₽  | 
Свободная планировка
Многие современные застройщики предлагают на этапе строительства возможность перепланировки квартиры под себя.
 Если вы покупаете квартиру в строящемся доме, то на плане указаны несущие стены, а планируемые перегородки можно сдвинуть. При чем до сдачи дома в эксплуатацию не потребуется никаких согласований с администрацией города на перепланировку.
Можно сделать перепланировку в своей двухкомнатной квартире, можно объединить две квартиры в одну и получить удобные варианты. Например, ЖК «Жираф» предлагает варианты перепланировок:
− Объединение однокомнатной и двухкомнатных квартир даст вам большую квартиру с тремя спальнями, с двумя санузлами, с большой гостинной-студией.
− Две однокомнатные квартиры можно объединить в большую двухкомнатную квартиру с двумя спальнями, с двумя санузлами, с большой гостинной-студией.
Квартиры в ЖК «Корона Парк» тоже представляются как площадь со свободной планировкой. Например трехкомнатная квартира может быть на этапе строительства превращена в двухкомнатную квартиру-студию:
Так же представляются квартиры в ЖК «Европейский».
 Стены на планах указаны пунктирной линией, они условны. Покупатели могут перерисовать их по своему усмотрению:
Покупайте двухкомнатные квартиры в Твери с помощью агентства недвижимости «Наш Дом»
Ремонт в двухкомнатной хрущевке — популярные варианты перепланировки
Ключевой целью ремонта хрущевки любого типа является устранение недостатков, характерных для этой категории жилого фонда. На ряду с этой задачей решаются и вполне стандартные вопросы — капитальное обновление имеющейся отделки, замена износившейся мебели и сантехнических приборов. Хотя в стесненных условиях хрущевской квартиры даже обычный ремонт вызывает массу проблем, не говоря уже о каких-либо работах по изменению планировки.
Особенности и проблемы двухкомнатной хрущевки
Рассматриваемая категория домов, строившаяся в начале второй половины прошлого века, задумывалась, как временное решение проблемы с нехваткой жилья для растущей страны. Соответственно, на таких критериях, как комфорт, удобство и практичность, никто тогда не акцентировал внимание.
 Все делалось по принципу — нужно быстро и дешево.
По итогу владельцы жилья в хрущевке получали квартиру, пускай и с двумя жилыми комнатами, но со множеством неудобств. Это и маленькая по размерам кухня, и буквально микроскопический санузел, и классический узкий и темный коридор, соединяющий собой прихожую и две основные комнаты. Вся эта картина дополнялась низкими потолками и другими «прелестями», например, такими, как:
- отсутствующая теплоизоляция;
 - практически нулевая звукоизоляция;
 - неодинаковые по уровню полы в соседних комнатах;
 - непродуманная планировка;
 - теснота, и еще раз теснота.
 
Как правило, типичная двушка в хрущевском доме имела одну большую жилую комнату, и вторую, которая в два раза меньше первой. В результате получалось, что даже несмотря на наличие целых двух помещений, в квартире со стандартной планировкой все-равно было тесно.
К счастью, эту, и все остальные перечисленные выше проблемы, сегодня можно устранить при помощи достаточно простых приемов.
 Тем более, что у хрущевских двушек есть для этого неоспоримое преимущество — практически ни одна стена между соседними комнатами не является по проекту несущей, а это значит, что их можно сносить, передвигать и изменять конфигурацию.
Стоит напомнить, что перед изменением планировки квартиры необходимо обязательно получить на это соответствующее разрешение. Обычно, если ремонтом вашей квартиры занимается профессиональная исполнительная компания, то затруднительные вопросы ее специалисты берут на себя.
Как можно изменить планировку двушки в хрущевке
Исходя из опыта владельцев хрущевских двушек, можно выделить несколько популярных вариантов перепланировки, помогающих визуально и практически расширить изначально тесное жилое пространство до неузнаваемости. Как уже было сказано раньше, для этих целей можно маневрировать между перегородками, не являющимися несущими.
Первый, и наиболее часто используемый вариант изменения планировки двухкомнатной квартиры в хрущевском доме — объединение кухни и гостиной.
 По проекту они являются смежными комнатами, физически разделенными перегородкой, не являющейся несущей. Такая операция позволяет совместить кухню и основной зал в одно большое помещение, что положительно сказывается и на визуальном восприятии получившегося пространства, и на практичности.
Стоит отметить, что отдавая предпочтение такому варианту изменения планировки хрущевской двушки, нужно обратить особое внимание на эффективное удаление паров над варочной поверхностью в кухонной зоне. Иначе вас ждет постоянный запах готовки в гостиной.
Второй, тоже нередко используемый вариант перепланировки хрущевской двушки — объединение основной (самой большой) комнаты и коридора, являющийся по умолчанию длинным темным тоннелем, соединяющим выходы в кухню, санузел и в жилые помещения. В таких случаях вход в гостиную оборудуется со стороны кухни, а дверь во вторую жилую комнату оставляется по умолчанию на своем штатном месте.
Такая планировка тоже существенно улучшает имеющееся жилье, частично устраняет эффект тесноты, а также избавляет владельцев от неудобного и непрактичного длинного коридора, который никак не использовался до этого.
Третий вариант, используемый гораздо реже двух предыдущих — соединение двух жилых комнат в одну общую. Такой проект дает в результате достаточно большое помещение, отделенное физически от кухни. Соответственно, тот самый коридор, который ведет от прихожей, проходит возле большой комнаты и ведет в меньшую, тоже присоединяется к полученному общему помещению, добавляя к его площади еще порядка десяти квадратов. Минус у такой планировки только один — отсутствие физически отделенной спальной комнаты, что довольно непрактично, особенно, когда в доме есть не только взрослые, но и дети.
Четвертый вариант больше подходит для одиноких людей или семейных пар без детей. Он заключается в превращении хрущевской двушки в квартиру студию. С этой целью в помещении убираются практически все перегородки — между гостевой комнатой и: кухней, коридором и второй жилой комнатой. Решение достаточно модное сейчас, дающее практически безграничные возможности в плане выбора дизайна интерьера, несмотря на то, что в распоряжении есть всего лишь тесная хрущевская двушка.
Последний, пятый вариант, вряд ли можно назвать полноценной перепланировкой, но этот прием тоже не стоит упускать из виду. Он заключается в объединении санузла, который по типовому проекту в хрущевской двушке обычно раздельный. Туалет и ванная по умолчанию разделены не несущей перегородкой, и если ее убрать, то можно получить несколько плюсов в виде расширения пространства и большего количества вариантов для воплощения оригинальных дизайнерских решений.
Пара слов о запретах при ремонте хрущевской двушки
Воспрянув духом после всего вышеприведенного материала, что все не так уж плохо и безнадежно в случае с хрущевкой, не стоит забывать и о том, что некоторые вещи при выполнении ремонта все же запрещено делать. Этой информацией нужно вооружиться заранее, еще далеко до того, как появится первый набросок плана будущей переделанной квартиры.
При ремонте любой квартиры, в том числе хрущевской двушки, категорически запрещено:
- Нарушать целостность общей вентиляционной системы.
 Если для ремонта требуется задевать стены, в которых эта коммуникация имеется, то поврежденные элементы нужно восстановить. Причем, сделать это нужно не для отвода глаз, а так, чтобы все функционировало, как и прежде. Иначе вы вскоре столкнетесь с жалобами от соседей, заявлениями в соответствующие органы, неприятными штрафами и, что самое сложное, принудительным новым ремонтом по восстановлению воздуховодов. - Переносить месторасположения санузла. Вернее, двигать ванну, унитаз, биде, рукомойник и стиральную машинку — вы можете как угодно, но только возле стояков и в пределах стен, ограждающих стандартный санузел. Выносить все эти удобства на территорию, которая располагается по проекту над жилыми помещениями соседей снизу — запрещено законом. Последствия этого нарушения аналогичны предыдущему случаю — жалобы, штрафы и принудительное возвращение всего на свои прежние места.
 - Закрывать газовые линии. Как бы не хотелось спрятать от глаз портящие интерьер газовые трубы и вентили, маскировать их за гипсокартоном и прочей обшивкой — запрещено нормами безопасности.
 К этим узлам всегда должен быть беспрепятственный доступ в любое время. Это делается на случай аварии, то есть утечек газа, от которых, к сожалению, никто не застрахован. Помните, спрятанная газовая труба не портит вид только до несчастного случая, а после его наступления — портятся даже несущие стены со всей остальной конструкцией. - Сносить несущие стены. Прежде, чем принимать смелые решения перед ремонтом, обратитесь в соответствующие органы или за помощью к специалистам, и решите этот вопрос законно еще до начала всяких работ, даже бумажных. Это касается даже тех случаев, когда вы на все сто уверены в том, что стена не является несущей. Иначе можно влететь в немалую копеечку, и принудительно делать ремонт с перепланировкой заново, попадая еще на расходы.
 
Это практически все запреты, о которых важно помнить уже на стадии разработки проекта ремонта. Об остальных нюансах (по электропроводке, отоплению и прочему) вам обязательно расскажут специалисты, которым мы рекомендуем доверить ваш ремонт.
Остальные вопросы ремонта хрущевки
Осталось хотя бы вкратце рассмотреть второстепенные задачи, решение которых направлено на улучшение хрущевки двушки с грамотной перепланировкой. Отталкиваться следует от имеющихся проблем, о которых уже упоминалось выше:
- Теплоизоляция. По умолчанию отсутствует, как таковая. Кроме того, если дом панельный, которых большинство, то теплопотери достигают неприлично высокого показателя. Утеплять хрущевку, в силу ее и без того маленьких размеров, рекомендуется по фасаду, то есть снаружи. Для этих целей можно использовать экструдированный пенополистирол в плитах и вполне современную штукатурку типа «короед». Изнутри утеплять такую квартиру нецелесообразно.
 - Звукоизоляция. Частично вопрос решается попутно с теплоизоляционными работами. От шума соседей оградиться можно при помощи современных звукопоглощающих рулонных материалов. Это касается не только стен, но и полов с потолками.
 - Разноуровневые полы. Как правило, такой «косяк» встречается между санузлом и прихожей.
 Исправить ситуацию можно двумя способами. Во-первых, делается новая стяжка в смежных комнатах — в одной повыше, во второй пониже. Во-вторых, обустраивается адекватный переход через порог. - Низкие потолки. К сожалению, с низкими потолками физически сделать ничего нельзя. Остается только «поднимать» их визуально. Сделать это можно при помощи правильного подбора цвета и фактуры облицовки, освещения и зеркал.
 
Если вас интересует больше подробной информации о ремонте и полной перепланировке двухкомнатной хрущевки с профессиональным подходом, обратитесь в нашу компанию. Пообщаться со специалистами можно по указанному номеру телефона или в форме обратной связи непосредственно на сайте. Ответы на часто задаваемые вопросы по теме, выезд замерщика и предварительная оценка стоимости предстоящего ремонта — абсолютно бесплатные услуги.
секретных речей Хрущева | Факты, дата и значение
  Тайная речь Хрущева , (25 февраля 1956 г.), в российской истории, разоблачение покойного советского лидера Иосифа Сталина, сделанное Никитой С.
 Хрущевым на закрытом заседании 20-го съезда коммунистов. Партия Советского Союза. Речь была ядром далеко идущей кампании десталинизации, направленной на то, чтобы разрушить образ покойного диктатора как непогрешимого лидера и вернуть официальную политику к идеализированной ленинской модели.
В своей речи Хрущев напомнил «Завещание Ленина», давно замалчиваемый документ, в котором Владимир Ленин предупреждал, что Сталин может злоупотреблять своей властью, а затем привел многочисленные примеры таких эксцессов. Среди них выделялось использование Сталиным массового террора во время Великой чистки середины 1930-х годов, во время которой, по словам Хрущева, ни в чем не повинные коммунисты были ложно обвинены в шпионаже и саботаже и несправедливо наказаны, часто казнены, после того, как их пытали. признания.
 Хрущев критиковал Сталина за то, что он не провел надлежащих оборонительных приготовлений перед вторжением Германии в Советский Союз (июнь 1941 г.), за ослабление Красной Армии путем чистки ее ведущих офицеров и за плохое руководство войной после вторжения.
 Он осудил Сталина за безрассудную депортацию целых национальностей (например, карачаевцев, калмыков, чеченцев, ингушей и балкарцев) с их родных мест во время войны, а после войны — за чистку крупных политических лидеров в Ленинграде (1948–1950; ). см.  Ленинградское дело) и в Грузии (1952).Он также осудил Сталина за попытку начать новую чистку («Заговор врачей», 1953 г.) незадолго до его смерти и за его политику в отношении Югославии, которая привела к разрыву отношений между этой страной и Советским Союзом (1948 г.). Был также осужден «культ личности», который Сталин создал для прославления своего правления и руководства.
 Хрущев ограничил свое обвинение Сталину злоупотреблением властью против Коммунистической партии и замалчивал сталинские кампании массового террора против населения в целом.Он не возражал против деятельности Сталина до 1934 года, которая включала его политическую борьбу против Льва Троцкого, Николая Бухарина и Григория Зиновьева, а также кампанию коллективизации, которая «ликвидировала» миллионы крестьян и имела катастрофические последствия для советского сельского хозяйства.
 Наблюдатели за пределами Советского Союза предположили, что основной целью Хрущева при выступлении с речью было закрепить свою позицию политического руководства, присоединившись к мерам по реформированию, и дискредитировав своих соперников в Президиуме (Политбюро), вовлекая их в преступления Сталина.
 Секретная речь, хотя впоследствии была зачитана группам партийных активистов и «закрытыми» местными партийными собраниями, официально так и не была обнародована. (Лишь в 1989 году эта речь была напечатана полностью в Советском Союзе.) Тем не менее, она вызвала шок и разочарование в Советском Союзе и советском блоке, нанеся вред репутации Сталина и восприятию политической системы и партии, которые позволили ему добиться успеха. и злоупотребляют такой великой силой.Это также способствовало началу периода либерализации, известного как «хрущевская оттепель», во время которого политика цензуры была ослаблена, что вызвало своего рода литературный ренессанс.
 Тысячи политических заключенных были освобождены, а еще тысячи погибших во время правления Сталина были официально «реабилитированы». Речь также способствовала восстаниям, которые произошли позже в том же году в Венгрии и Польше, еще больше ослабив контроль Советского Союза над советским блоком и временно укрепив позиции противников Хрущева в Президиуме.
Россия и «жилищный вопрос»
 Два диспетчера поезда  Golden Eagle  Trans-Siberian Express из Иркутска, и их глубокое знание города привело к тому, что для наших гостей появился новый вариант — посещение русской семьи дома. За чаем и домашним яблочным пирогом наша хозяйка Татьяна с радостью ответит на любые вопросы о жилье и других аспектах повседневной жизни как в советском прошлом, так и в российском настоящем. Слушая вопросы и ответы, я часто думал, что некоторые предварительные знания о жилищной ситуации в Советском Союзе и России, а также об условиях жизни в целом могут помочь нашим гостям получить больше от этого исключительного опыта.
 Таким образом, следует разрушение жилищного кризиса в Советской России на протяжении большей части двадцатого века.
Жилищный вопрос: Фридрих Энгельс
Жилищный кризис был серьезным кризисом на протяжении всей советской истории. Фактически это предшествовало Октябрьской революции; Промышленное развитие в конце 19 века привело к тому, что рост городского населения сосредоточился в небольшом количестве отчаянно перенаселенных городов. В то время как аристократы и руководители фабрик владели роскошными квартирами и таунхаусами, рабочие жили в фабричных общежитиях, бараках, углу чужой комнаты или « койке и чулане » — кровати и крошечном шкафу в комнате, разделенной на столько же эти крошечные сегменты насколько это возможно.
 Такие условия жизни не соответствовали социалистическим идеалам большевиков. Друг и соратник Карла Маркса Фридрих Энгельс, семья которого владела хлопчатобумажной фабрикой недалеко от Манчестера, настаивал на том, что с нехваткой жилья в этом городе можно немедленно справиться с помощью « экспроприации нынешних владельцев и размещения в их домах бездомных рабочих или рабочих, переполненных жильем ».
 их нынешние дома »[1]. Конечно, этого не могло произойти в капиталистической Британии, но после Октябрьской революции большевики применили решение Энгельса к российским городам.Если им повезло, бывшим хозяевам разрешалось продолжать жить в одной-двух комнатах, а в остальных жили посторонние люди, причем из совершенно другого сословия. Как заметил Ричард Стайтс, «два типа людей […] с двух разных планет» теперь делили жизненное пространство [2].
В попытке возродить экономику после разрушительной гражданской войны была введена так называемая новая экономическая политика, которая позволила развить смешанную экономику. Крупные фабрики и основные отрасли промышленности оставались в руках государства, но теперь были разрешены мелкие частные предприятия.Эта небольшая приватизация распространилась на жилье, и небольшие дома были возвращены их владельцам. Однако политика «сжатия» — обеспечение максимального использования ограниченного жилого пространства — означала, что владельцы по-прежнему были вынуждены делиться своим жилым пространством с другими, хотя, по крайней мере, теперь они могли собирать арендную плату.
Изначально конечная цель заключалась в том, чтобы люди жили в «домашних коммунах». Они продвигались как по практическим, так и по идеологическим причинам: они были бы дешевле, чем предоставление каждому отдельного жилья, и поощряли бы новый общинный образ жизни.Они также освободят женщин от домашнего рабства, что важно, поскольку равенство женщин является центральным элементом социализма. Некоторые из наиболее радикальных коммунистов хотели, чтобы детей воспитывали отдельно от родителей, в отдельных домах или даже в отдельных деревнях. Этого не произошло в Советской России — но идеи были реализованы русскими эмигрантами в Палестине, а затем в Израиле в форме кибуца. Некоторые идеалистические коммуны действительно возникли в России, в основном из студентов и молодых рабочих.Немецкий посетитель страны в 1920-х годах Клаус Менерт наткнулся на одну радикальную общину, члены которой были полны решимости искоренить все аспекты опасного индивидуализма: «Если коммунар предпочитает носить свое нижнее белье, это будет охарактеризовано как отступничество. в самый темный капитализм; как предрассудок, берущий начало в мелкобуржуазной идеологии »[3].
Сталинская эпоха
Вход в квартиру Татьяны сталинской эпохи в ИркутскеКогда Сталин стал советским лидером в конце 1920-х годов, произошел огромный идеологический сдвиг.Был положен конец Новой экономической политике, а с ней и почти всем формам частной собственности. Тем не менее, к концу первого пятилетнего плана приверженность правительства общественной жизни также закончилась. Одна из причин заключалась просто в том, что в социальных вопросах Сталин был консервативным и условным; он не одобрял вызов коммуны традиционным семейным и гендерным ролям. Что еще более важно, его массовая индустриализация привела к огромным социальным потрясениям, включая тревожное падение рождаемости и рост «хулиганства».Была надежда, что старомодные семьи будут функционировать как «островки стабильности в море социального хаоса» [4].
Индустриализация потребовала огромного увеличения городского населения, которое все должно было быть обеспечено жильем. Поскольку ресурсы страны в основном вкладывались в промышленность, не оставалось ничего, кроме рудиментарного жилья. Несмотря на реабилитацию семьи, только новая сталинская элита могла иметь собственные одноквартирные дома. Типом жилья, который характеризовал сталинскую эпоху, была эвфемистически названная «коммунальная квартира», в которой каждая комната была занята отдельной семьей, каждая из которых делила кухню и стиральную машину.По крайней мере, один из жителей должен будет сообщать властям о мнениях и действиях своих соседей. Попытки пообщаться редко предпринимались; женщины не готовили вместе, и отвращение семей к совместной жизни ясно из того факта, что в большинстве квартир каждая семья имела собственное сиденье для унитаза, свисающее со стены.
Хрущевки
После смерти Сталина новый лидер Никита Хрущев решил разрешить жилищный кризис.Он запустил огромную жилищную программу, цель которой — обеспечить каждую семью своей квартирой в течение 12 лет. Он признал, что эти новые квартиры не будут высшего качества, но «решать вам; Тысячу хороших квартир строите или семьсот очень хороших? И гражданин предпочел бы довольствоваться приличной квартирой сейчас или подождать 10-15 лет, чтобы получить очень хорошую? »[5]. То, что стало известно как « хрущевки », представляло собой почти идентичные сборные бетонные многоквартирные дома, обычно пятиэтажные (не было ни технологий, ни денег для строительства лифтов, а количество лестничных пролетов, с которыми могла справиться женщина) если она несла тяжелые сумки для покупок), полных маленьких квартир, в которых можно было разместить только «многофункциональную» мебель: диваны и мягкие кресла, которые превращались в кровати, шкафы, за которыми скрывались откидные столики.В хрущевскую эпоху ежегодно строилось 2,2 миллиона «единиц жилья» (квартир), что меняло как облик советских городов, так и жизнь счастливчиков, но даже этого было недостаточно для удовлетворения спроса.
Хрущев был свергнут в 1964 году, и Леонид Брежнев занял пост лидера Советского Союза. Программа жилищного строительства продолжалась, и новые технологии означали, что теперь стали возможны подъемники и, следовательно, небоскребы. Тем не менее, новых квартир для удовлетворения спроса по-прежнему не хватало, а коммунальные квартиры оставались важной составляющей городской жизни.
Эпоха Горбачева: разоблачение жилищного кризиса
Масштабы жилищного кризиса не признавались публично до прихода Горбачева к власти в 1985 году, когда его политика «гласности» (открытости) показала огромные социальные проблемы страны. В 1986 году выяснилось, что каждая пятая семья в Советском Союзе, всего около восьми миллионов человек, стояла в очереди на получение лучшего жилья. В 1987 году эта цифра выросла до девяти миллионов, а в 1989 году 17 процентов населения по-прежнему проживало в коммунальных квартирах или общежитиях или не имело постоянного места жительства.Молодожены обычно должны были начинать супружескую жизнь с теми или иными родителями; в среднем им придется ждать собственной квартиры 20 лет [6]. Введена обновленная версия хрущевского залога. Теперь к 2000 году у каждой семьи будет своя квартира. Как выяснилось, к тому времени Советский Союз давно перестал существовать.
Как распределялось жилье среди граждан в Советском Союзе? Небольшая сумма находилась в руках местного самоуправления, но в подавляющем большинстве случаев она выделялась людям по месту работы.Это преднамеренно привязывало людей к работе.
В 1989 году были сделаны первые шаги к приватизации жилья: арендаторам было предоставлено право покупать свои квартиры по очень низкой цене. Одной из причин такой очевидной щедрости было облегчение бремени обслуживания стареющих и ветхих жилых домов. Арендаторы это видели, и мало кто воспользовался предложением.
Советский дом в Иркутске, РоссияПриватизация жилья
Приватизация всей государственной собственности была ключевой чертой режима Бориса Ельцина, и жилье необходимо было включить в этот процесс.Освобождение государства от бремени содержания было не единственной причиной. Также считалось, что домовладение было «признаком стабильного общества и хорошо функционирующей рыночной экономики» [7]. Это создаст «группу заинтересованных сторон», которые помогут построить «стабильное, цивилизованное, процветающее общество» [8]. Чтобы побудить неохотных арендаторов приватизировать свои квартиры, с 1991 года им давали их бесплатно — и в качестве дополнительного стимула права аренды тех, кто не смог приватизировать, были бы значительно ограничены.Это сработало. К 1995 году 53% жилья находилось в частной собственности; к 2007 году этот показатель превысил 70 процентов.
Приватизация привела к уникальной российской форме «высвобождения капитала». К пожилой женщине, не имеющей иждивенцев, может обратиться кто-то, предлагающий ей ежемесячную стипендию на всю оставшуюся жизнь, если она завещает свою приватизированную квартиру этому человеку. В некоторых случаях это сработало очень хорошо; мой друг заключил такую договоренность с бывшей актрисой, живущей в квартире в центре Москвы, и в конце концов унаследовал ее квартиру.Старушка упорно продолжала жить, и моя подруга заплатила больше, чем ожидала, но в целом это сработало для них обоих. Однако журналы и газеты изобиловали историями о пожилых женщинах, жизнь которых была оборвана недобросовестными людьми, которые не собирались ждать, пока они умрут, прежде чем они доберутся до своих квартир.
Со временем перепродажа и сдача в аренду приватизированных квартир в сочетании с большой программой строительства (в основном элитного жилья) в крупных городах привели к появлению большого рынка частного жилья.Большинство людей, у которых не было квартиры для приватизации, каким-то образом находили деньги, чтобы купить ее сразу; существовала ипотечная система, но большинство людей отталкивали как страх банковской нестабильности, так и чрезвычайно высокие процентные ставки.
Приватизация жилья пошла на пользу России? С положительной стороны, люди, у которых были квартиры, которые они могли приватизировать, находятся в уникальном положении, поскольку они получили собственное жилье без огромных долгов. Есть также некоторые признаки того, что владение жильем привело к тому, что люди почувствовали, что теперь они более заинтересованы в жизни общества и, следовательно, более ответственны за свою местную окружающую среду.Однако приватизация вынудила возложить расходы на техническое обслуживание на людей, которые не всегда могут позволить себе их оплачивать, что привело к усилению ветхости жилищного фонда. По данным одного российского эксперта по жилищному строительству, ежегодно около 150 000 квартир становятся непригодными для проживания людей [9].
Татьяна в своем доме в ИркутскеПоскольку люди могли приватизировать только жилье, в котором они жили, это высветило ранее существовавшее неравенство в распределении жилья. Те, у кого были хорошие апартаменты, оказались в очень привилегированном положении; Те, у кого была только комната в коммунальной квартире, теперь застряли в ней и больше не могли связывать свои надежды на лучшее жилье с медленным продвижением в очереди на квартиру.Социальное жилье больше не вариант; она доступна только малоимущим (малоимушие) и определенным категориям людей, например ветеранам войны. В советское время жилье использовалось как награда, наказание и поощрение. В современной России это во многом вопрос удачи.
Каким образом жилищный опыт Татьяны вписывается в эту историю? Ее квартира находится в сталинском доме, поэтому у нее большие комнаты и более высокие потолки, чем в тех, что были построены при Хрущеве и Брежневе.
Нет необходимости в компактной многофункциональной мебели хрущевской эпохи; действительно, у Татьяны достаточно места для художественных работ, украшений и сувениров из путешествий, которые она явно любит.Как и все городское жилье в Советском Союзе, в советские времена квартира принадлежала государству, а в конце сталинской эпохи была передана ее отцу; сейчас он приватизирован. Сейчас Татьяна делится им с внуком, который учится в Иркутском университете. Как ее семье досталась такая приятная квартира? Как она относится к изменениям, произошедшим в ее жизни? Есть ли у нее ностальгия по советскому прошлому? А что ее внук, родившийся после распада Советского Союза, думает о беспокойной истории своей страны? Чтобы узнать это, вам нужно будет посетить квартиру Татьяны!
Посещение квартиры Татьяны включено в тур «Свобода выбора» на все летние рейсы Золотой Орел Транссибирский экспресс.Пожалуйста, смотрите маршрут для деталей.
Для получения дополнительной информации о советском жилье см. Доктор Линн Эттвуд, Гендер и жилье в Советской России (Manchester University Press, 2010).
  Список ресурсов:  
 1. Цит. Ленин в Избранных произведениях (Издательство Прогресс, 1977). 
 2. Ричард Стайтс, Революционные мечты (издательство Оксфордского университета, 1989). 
 3. К. Менерт, Молодежь в Советской России (Аллен и Анвин, 1933). 
 4.Г. В. Лапидус, Женщины в советском обществе (Издательство Калифорнийского университета, 1979). 
 5. Н.С. Хущев, Хрущев помнит (Андре Дойч, 1974). 
 6. J.G. Чепмен, «Изменения в советском общественном договоре», в Дж. Адаме (ред.) «Экономические реформы и системы социального обеспечения в СССР, Польше и Венгрии». (St. Martin’s Press, 1991). 
 7. Р. Вихавайнен, «Жилье в России — политика и практика», презентация на семинаре в Санкт-Петербурге 24-26 апреля 2005 г. 
 8. П. Старобин и О. Кравченко, «Средний класс в России», в Businessweek онлайн, 16 октября 2000 г.
 9. М. Хаммер, «Россия: Нерегулируемая приватизация жилья в России угрожает усугубить жилищный кризис», интервью с Э. Шомина для журнала Global Tenant: International Union of Tenants ‘Quarterly Magazine, июнь 2007 г.
Советско-американская встреча на высшем уровне проваливается после сбития самолета-разведчика U-2
После сбития Советским Союзом американского самолета-разведчика U-2 1 мая 1960 года российский лидер Никита Хрущев набросился на Соединенные Штаты и президента Дуайт Д. Эйзенхауэр на встрече глав двух государств в Париже.Вспышка Хрущева возмутила Эйзенхауэра и лишила всяких шансов на успех переговоров или переговоров на саммите.
1 мая Советы сбили самолет-шпион ЦРУ и захватили пилота Гэри Фрэнсиса Пауэрса. Соединенные Штаты публично опровергли тот факт, что самолет использовался для шпионажа, заявив вместо этого, что это был просто метеорологический самолет, сбившийся с курса. После этого Советы торжественно добыли Пауэрса, большие обломки самолета и признание Пауэрса, что он работал на ЦРУ.Инцидент обернулся для Эйзенхауэра пиар-фиаско, который был вынужден признать, что самолет действительно шпионил за Россией.
Напряжение после инцидента все еще оставалось высоким, когда Эйзенхауэр и Хрущев прибыли в Париж, чтобы начать встречу на высшем уровне 16 мая. Хрущев, не теряя времени, ворвался в Соединенные Штаты, заявив, что Эйзенхауэра не будут приветствовать в России во время его запланированного визита в США. Советский Союз в июне. Он осудил «недопустимые провокационные действия» Соединенных Штатов по отправке самолета-разведчика над Советским Союзом и потребовал, чтобы Эйзенхауэр запретил полеты в будущем и наказать виновных в этом «преднамеренном нарушении Советского Союза».Когда Эйзенхауэр согласился лишь на «приостановку» полетов самолетов-шпионов, Хрущев в раздражении покинул встречу. По словам официальных лиц США, президент был «в ярости» на Хрущева за его публичное унижение Соединенных Штатов. Встреча на высшем уровне официально прервалась на следующий день, и дальнейшие встречи между Хрущевым и Эйзенхауэром прекратились. Запланированная на июнь поездка Эйзенхауэра в Москву была отменена.
Провал встречи на высшем уровне в мае 1960 года стал сокрушительным ударом для тех в Советском Союзе и Соединенных Штатах, которые считали, что период «мирного сосуществования» двух сверхдержав не за горами.В течение предыдущих нескольких лет и Эйзенхауэр, и Хрущев публично заявили о своем желании ослабить напряженность в период холодной войны, но инцидент с самолетом-шпионом положил конец таким разговорам, по крайней мере, на время.
ПОДРОБНЕЕ: 5 закрытых звонков времен холодной войны
Почему Россия отдала Крым шестьдесят лет назад?
Электронное досье CWIHP № 47
 Передача Крыма от Советской России к Советской Украине, 1954 
Крым был частью России с 1783 года, когда царская империя аннексировала его через десять лет после поражения османских войск в битве при Козлудже, до 1954 г., когда Советское правительство передало Крым из состава Российской Советской Федерации Социалистических Республик (РСФСР) Украинской Советской Социалистической Республике (УССР).О переводе было объявлено в советской прессе в конце февраля 1954 года, через восемь дней после того, как 19 февраля Президиум Верховного Совета СССР принял постановление, санкционировавшее переезд. Текст постановления и некоторые анодные выдержки из заседаний Президиума Верховного Совета СССР 19 февраля были опубликованы вместе с очень кратким объявлением [1]. В то время больше ничего о передаче не сообщалось, и до конца советской эпохи не было предоставлено никакой дополнительной информации.
Только в 1992 году, сразу после распада Советского Союза, появились дополнительные материалы об этом эпизоде. Историко-архивный журнал « Исторический архив », который издавался в СССР с 1955 по 1962 год, снова начал выходить в 1992 году с транскрипциями рассекреченных документов из бывших советских архивов. Первый выпуск возрожденного Исторического архива 1992 года содержал раздел о передаче Крыма, в котором были представлены документы из Президентского архива России и нескольких других архивов, коллекции которых сейчас хранятся в Государственном архиве Российской Федерации (ГАРФ) .К сожалению, эти документы не добавляют ничего существенного к тому, что было опубликовано в советской прессе 38 лет назад; действительно, они в основном идентичны тому, что было опубликовано в 1954 году. (Видимо, редакция Исторического архива не знала, что протоколы заседаний Президиума Верховного Совета СССР были опубликованы уже в 1954 году.) Документы действительно подтверждают, что Первоначально этот шаг был одобрен Президиумом Коммунистической партии Советского Союза (КПСС) 25 января 1954 года, что подготовило почву для санкционирующего решения Президиума Верховного Совета СССР через три недели.Но рассекреченные файлы больше не раскрывают мотивов передачи, оставляя нам только два официальных обоснования, опубликованных в 1954 году:
(1) уступка Крыма была «благородным актом со стороны русского народа». в ознаменование 300- -й -й годовщины «воссоединения Украины с Россией» (ссылка на Переяславский мирный договор, подписанный в 1654 году представителями Украинского казачьего Гетманщины и царем Московским Алексеем I) и «продемонстрировать безграничное доверие и любите чувства русского народа к украинскому народу »; и
(2) передача была естественным следствием «территориальной близости Крыма к Украине, общности их экономик и тесных сельскохозяйственных и культурных связей между Крымской областью и УкрСССР».
Ни одно из этих якобы оправданий не выдерживает критики. Несмотря на то, что в 1954 году исполнилось 300, 90, 127, годовщина Переяславского мирного договора, связи между этим договором и Крымским полуостровом нет. Переяслав, расположенный в центральной Украине недалеко от Киева, находится далеко от Крыма, и договор не имел ничего общего с полуостровом, который перешел под контроль России только 130 лет спустя. Более того, описание договора как «объединения России и Украины» является гиперболическим.Договор действительно стал важным шагом в этом направлении, но должны были пройти годы дальнейшей борьбы и войн, прежде чем произошло полное объединение. Оглядываясь назад, можно сказать, что Переяславский мирный договор часто ассоциируется (неточно) с российско-украинским единством, но трудно понять, почему кто-либо в СССР предложил отметить 300- -ю годовщину принятия документа путем передачи Крыма из состава РСФСР в состав России. УССР.
Утверждение о том, что передача была оправдана исключительно культурной и экономической близостью Крыма с Украиной, также является надуманным.В 1950-х годах население Крыма — примерно 1,1 миллиона человек — примерно на 75 процентов составляли русские и 25 процентов — украинцы. Значительная часть татар проживала в Крыму на протяжении веков до мая 1944 года, когда сталинский режим массово депортировал их в безлюдные районы Средней Азии, где они были вынуждены жить более четырех десятилетий и им было запрещено возвращаться в свои родная страна. Сталин также насильственно депортировал небольшие группы армян, болгар и греков из Крыма, завершив этническую чистку полуострова.Таким образом, в 1954 году Крым был более «русским», чем был на протяжении веков. Хотя Крым на короткое время граничит с югом Украины через Перекопский перешеек, большой восточный Керченский регион Крыма находится очень близко к России. У полуострова действительно были важные экономические и инфраструктурные связи с Украиной, но культурные связи в целом с Россией были намного сильнее, чем с Украиной, а Крым с царских времен был местом расположения крупных военных баз, став символом военной мощи Российской империи против России. Османские турки.
Несмотря на то, что публично озвученные обоснования передачи Крыма в состав УССР не вызывали особого доверия, некоторые комментарии, опубликованные в 1954 году, и другая информация, которая с тех пор стала известна, позволяют нам понять, почему советские власти приняли такое решение. действие. Особое значение имели роль Никиты Хрущева, недавние травмы, нанесенные Украине, и продолжающаяся борьба за власть в СССР.
Хрущев был возведен на пост Первого секретаря КПСС в сентябре 1953 года, но в начале 1954 года все еще укреплял свои руководящие позиции.Ранее он занимал пост главы Коммунистической партии Украины с конца 1930-х до конца 1949 года (не считая полутора лет во время Второй мировой войны, когда его назначили политруком на фронт). В течение последних нескольких лет пребывания Хрущева в УССР он курировал сторону советского правительства в жестокой гражданской войне в недавно аннексированных западных регионах Украины, особенно в Волыни и Галиции. Гражданская война была отмечена большим количеством жертв и ужасными зверствами с обеих сторон.Несмотря на более позднюю роль Хрущева в осуждении сталинизма и проведении реформ в СССР, он полагался на безжалостное и безжалостное насилие для установления и обеспечения советского контроля над Западной Украиной. Случайные вооруженные столкновения продолжались и в середине 1950-х годов, но к тому времени, когда Крым был передан в феврале 1954 года, война закончилась. Неоднократные упоминания на заседании Президиума Верховного Совета СССР 19 февраля о «единстве русских и украинцев» »И к« большой и неразрывной дружбе »между двумя народами, а также утверждение, что передача продемонстрирует, насколько разумно было иметь Украину« под руководством Коммунистической партии и Советского правительства », указывает на то, что Хрущев видел передачу как способ укрепить и увековечить советский контроль над Украиной теперь, когда гражданская война наконец была выиграна.Примерно 860 000 этнических русских присоединятся к и без того многочисленному русскому меньшинству в Украине.
В чем-то похожий подход использовался в трех недавно аннексированных прибалтийских республиках, особенно в Латвии и Эстонии, в обеих из которых до 1940-х годов было очень мало русских жителей. Сталинский режим поощрял этнических русских селиться в этих республиках с конца 1940-х годов, и эта политика продолжалась при Хрущеве и Леониде Брежневе. Пропорционально переселение русских в прибалтийские республики было больше, чем на Украине, но в абсолютных цифрах переселение Крыма принесло на Украину гораздо большее количество русских и регион, тесно связанный с Россией, что усилило советский контроль.
Передача Крыма УССР была также политически полезна для Хрущева, поскольку он стремился укрепить поддержку, в которой он нуждался в своей продолжающейся борьбе за власть с советским премьер-министром Георгием Маленковым, который первоначально стал выдающимся лидером в СССР в 1953 году. после смерти Иосифа Сталина. Находясь в невыгодном положении сразу после смерти Сталина, Хрущев постепенно сокращал позиции Маленкова и добился значительного преимущества, заняв пост Первого секретаря КПСС в сентябре 1953 года.Тем не менее, постсталинская борьба за власть отнюдь не закончилась в начале 1954 года, и Хрущев пытался заручиться максимальной поддержкой в Президиуме КПСС, чтобы отстранить Маленкова от должности премьер-министра (подвиг, который он совершил. в январе 1955 г.). Среди тех, кого Хрущев надеялся заручиться поддержкой, был Алексей Кириченко, который стал первым секретарем Коммунистической партии Украины в начале июня 1953 года (сместив Леонида Мельникова, сменившего Хрущева на этом посту в декабре 1949 года) и вскоре после этого занявший пост первого секретаря. назначен действительным членом Президиума КПСС.В 1944 году, когда сам Хрущев еще был лидером Коммунистической партии на Украине, он, как сообщается, предположил Сталину, что передача Крыма УССР могла бы стать полезным способом заручиться поддержкой местных украинских элит [2]. Независимо от того, действительно ли Хрущев поднимал этот вопрос перед Сталиным (достоверность второго ретроспективного отчета сомнительна), это, скорее всего, отражает собственное мнение Хрущева еще в 1944 году о том, что расширение территории Украины было способом заручиться поддержкой элиты в республике.В частности, Хрущев почти наверняка рассматривал передачу Крыма как средство заручиться поддержкой Кириченко. Хрущев знал, что он не может автоматически рассчитывать на поддержку Кириченко, потому что у них двоих были серьезные разногласия совсем недавно, в июне 1953 года, когда Кириченко поддержал резкую критику Лаврентием Берией ситуации на Западной Украине — критику, которая косвенно нападала на многое из того, Хрущев сделал это, когда был руководителем республики в 1940-х годах. Хрущев надеялся, что передача Крыма Украине снимет сохраняющуюся напряженность, возникшую в результате этого эпизода, и тем самым поможет укрепить поддержку Кириченко в предстоящей схватке с Маленковым.
Из ранее опубликованных документов и материалов, появившихся в последнее время, ясно следует, что передача Крыма из состава РСФСР в состав УССР была осуществлена в соответствии с советской конституцией 1936 года, в статье 18 которой говорилось, что «территория Союзная республика не может быть изменена без ее согласия ». Протоколы заседания Президиума Верховного Совета СССР показывают, что и РСФСР, и УССР дали свое согласие через парламенты своих республик. Один из официальных лиц, присутствовавший на заседании 19 февраля, Отто Куусинен, даже хвастался, что «только в нашей стране [СССР] возможно решение таких важнейших вопросов, как территориальная передача отдельных областей определенной республике. без всяких сложностей.Кто-то может возразить, что процесс 1954 года был бы намного лучше, если бы он был сложным и трудным, но независимо от того, как оценивать оперативность территориальной реконфигурации, главное, что здесь следует подчеркнуть, это то, что неправильно говорят (как недавно сказали некоторые российские комментаторы и правительственные чиновники), что Крым был передан неконституционным путем или незаконно. Правовая система Советского Союза была в основном фикцией, но передача действительно происходила в соответствии с правилами, действовавшими в то время.Более того, независимо от того, как был осуществлен перенос, Российская Федерация прямо приняла границы Украины 1991 года как в Беловежских договоренностях в декабре 1991 года (соглашения, которые ускорили и закрепили распад Советского Союза), так и в Будапештском меморандуме в декабре 1994 года, в котором был подписан окончательный вариант. Статус Украины как государства, не обладающего ядерным оружием.
Крым изначально был «автономной республикой» ( автономная республика ) в РСФСР, но его статус был изменен на «область» в РСФСР в 1945 году, якобы из-за принудительного удаления Крымские татары устранили необходимость в автономии.После передачи Крымской области в состав УССР в 1954 году она сохраняла статус области в составе Советской Украины в течение 37 лет. В начале 1991 года, после того как в УССР был проведен референдум и через месяц было принято постановление парламента УССР, статус Крыма был повышен до статуса «автономной республики». Крым сохранил это название в составе Украины после распада Советского Союза. Однако в Российской Федерации категории «автономная республика» не существует.В договоре об аннексии, подписанном правительствами России и Крыма 18 марта 2014 года, статус полуострова был изменен на просто «республика» (Respublika Krym ), присоединившая к 21 другой «республике» Российской Федерации — 85 «субъекты» федерации с добавлением Крыма и города Севастополя как отдельные образования. [[3]
Одна из парадоксов передачи Крыма Украине в 1954 году заключается в том, что когда председатель Президиума Верховного Совета СССР, Климент Ворошилов, выступая с заключительным словом на заседании 19 февраля 1954 года, заявил, что «враги России» «неоднократно пытались отобрать Крымский полуостров у России и использовать его для кражи и разорения русских земель.Он похвалил «совместные бои», которые вели «русский и украинский народы», поскольку они нанесли «суровый отпор наглым узурпаторам». Характеристика Ворошиловым прошлых «врагов» России кажется сегодня устрашающей уместной для описания действий самой России по отношению к Украине. Еще одна трагическая ирония передачи Крыма заключается в том, что действия Москвы шестьдесят лет назад, предпринятые для усиления своего контроля над Украиной, снова стали преследовать Украину сегодня.
Марк Крамер — директор программы исследований холодной войны в Гарвардском университете и старший научный сотрудник Гарвардского центра Дэвиса российских и евразийских исследований
Документы
Документ 1
5 февраля 1954 г.
Постановление Совета Министров РСФСР «О передаче Крымской области от РСФСР к УССР»
ЦГА РСФСР [ГАРФ].F.259. Op.1. D.645. L.159. Опубликовано в «Историческом архиве» (1992). Перевод для CWIHP Гэри Голдберг. 
Документ 2
5 февраля 1954 г.
Протокол № 41 заседания Президиума Верховного Совета Российской Советской Федеративной Социалистической Республики [РСФСР]
ЦГА РСФСР [ГАРФ]. Ф. 385, соч. 13. Д. 492. Л. 1-2. Опубликовано в «Историческом архиве» (1992). Перевод для CWIHP Гэри Голдберг. 
Документ 3
13 февраля 1954 г.
Указ Президиума Верховного Совета Украины «О представлении Президиума Верховного Совета РСФСР по вопросу о передаче Крымской области Украинской ССР. « ГАРФ.F. 7523. Op. 85. Д. 94. Л. 8. Опубликовано в «Исторический архив» (1992). Перевод для CWIHP Гэри Голдберг. 
Документ 4
15 февраля 1954 г.
Письмо Коротченко Д.С. и В.Е. Нижник К.Е. Ворошилова с рапортом об Указе Президиума Верховного Совета Украинской ССР
ГАРФ. F. 7523. Op. 85. Д. 94. Л. 8. Опубликовано в «Исторический архив» (1992). Перевод для CWIHP Гэри Голдберг. 
Документ 5
19 февраля 1954 г.
Заседание Президиума Верховного Совета Союза Советских Социалистических Республик
ГАРФ. F.7523. Op.57. Д.963, Л1-10. Опубликовано в «Исторический архив», вып. 1, т. 1 (1992). Перевод для CWIHP Гэри Голдберг. 
Документ 6
Сергей Хрущев, Выписка из
Никита Хрущев: Реформатор (М .: Время, 2010) Перевод Анны Меляковой для Архива национальной безопасности. 
[1] «В Президиуме Верховного Совета РСФСР и Совет Министров РСФСР», Известия (Москва), 27 февраля 1954 г., с. 1; «В Президиуме Верховного Совета СССР», Известия (Москва), 27 февраля 1954 г., с. 2; «Речь товарища Тарасова М. П.», Известия (Москва), 27 февраля 1954 г., с. 2; «Речь товарища Коротченко Д.С.», Известия (Москва), 27 февраля 1954 г., с. 2; «Речь товарища Шверника Н.М. » Известия (Москва), 27 февраля 1954 г., с. 2; «Речь товарища Рашидова Ш.», Известия (Москва), 27 февраля 1954 г., с. 2; «Речь товарища Куусинена О.В.», Известия (Москва), 27 февраля 1954 г., с. 2; и «Речь товарища Ворошилова К.Е.», Известия (Москва), 27 февраля 1954 г., с. 2.
[2] Об этом сообщается в книге П. Кнышевский, «Штрихи к портрету кремлевской галереи», Новое время, (Москва), № 9 (апрель 1994), с.54. Кнышевский утверждает, что Хрущев сказал ему в 1944 году (пятьдесят лет назад) о том, что поднимал этот вопрос перед Сталиным, когда Хрущев находился с визитом в Москве. Уильям Таубман принимает отчет Кнышевского за чистую монету в «Хрущев: Человек и его Er a» (Нью-Йорк: W. W. Norton, 2002), с. 163. Я настроен гораздо более скептически (отчасти потому, что Хрущев хорошо знал, с какой жестокостью Сталин атаковал украинские национальные элиты на протяжении 1930-х годов, отчасти потому, что главным приоритетом Хрущева в 1944 году было подавление вооруженного повстанческого движения на Западной Украине, а отчасти потому, что это был чужой отчет. сказанное так долго после того, как факт, по сути, трудно оценить), но я действительно считаю это правдоподобным отражением настроений самого Хрущева в то время.
[3] «Договор между Российской Федерацией и Республикой Крым о принятии в Российскую Федерацию Республики Крым и образования в составе Российской Федерации новых» участников, подписан в Москве 18 марта 2014 года.
1956–1985. »РОССИЙСКИЙ АЗИАТСКИЙ БИЗНЕС-СОЮЗ PTE LTD (RABU)
Этот тип зданий появился в период правления Хрущева, когда основная идея жилья заключалась в том, что« оно личное для каждой семьи, даже если оно небольшое. массовая застроенная территория.Особенности этого типа зданий: изначально строились кирпичные (позже — домостроительные) дома с малогабаритными квартирами, площадь этажей от 22 метров, кухни от 4,5 кв.м, совмещенный санузел. Высота потолка всего 2,48 2,60. Комнаты в таких квартирах небольшие, от 6 до 9 метров, были даже так называемые «свекрови» 4 метра и без вдов. Самые распространенные квартиры в «хрущевках» — это однокомнатные и двухкомнатные. . Многие семьи обзавелись собственными квартирами, было построено около 300 миллионов квадратных метров.Они были рассчитаны на 25-летнюю эксплуатацию, однако во многих городах до сих пор используются даже без реконструкции.
Достоинства: практически единственное преимущество «хрущевок» — это их стоимость. На рынке недвижимости цена на эти квартиры самая дешевая.
Недостатки: низкая высота потолков (но не все видят в этом недостаток), узкая лестница. , небольшие подземные этажи и чердаки.Акустическая изоляция между двумя разными квартирами плохая (по сравнению со сталинскими домами), небольшая площадь.
Рекомендации при покупке: если у вас мало денег на покупку недвижимости, альтернатив практически нет. Особое внимание следует уделить самому дому и квартире, проверить, нет ли протечек, испарений, посторонних запахов, грибка. Жизненно важно проверить, нет ли на здании внешних нарушений, являющихся причиной разрушения фундамента. О хорошем обслуживании обслуживающих компаний можно судить по состоянию водопропускных труб и лестничных клеток.При наличии хороших соседей квартира в таком доме может быть выгодной и выгодной сделкой.
Политический протест и инакомыслие в хрущевскую эпоху
% PDF-1.4 % 1 0 obj > / Контуры 2 0 R / Метаданные 3 0 R / PieceInfo> >> / Страницы 4 0 R / PageLayout / OneColumn / OCProperties> / OCG [5 0 R] >> / StructTreeRoot 6 0 R / Тип / Каталог / LastModified (D: 20091201122339) / PageLabels 7 0 руб. >> эндобдж 8 0 объект > эндобдж 2 0 obj > эндобдж 3 0 obj > поток Акробат Дистиллятор 8.1.0 (Windows) The Ridings SchoolD: 20091125100629Acrobat PDFMaker 8.1 для Word2009-12-01T13: 45: 15Z2009-12-01T12: 22: 08Z2009-12-01T13: 45: 15Zuuid: 16c487bc-a67f-444f-9fbe-21664469f30auuid: 8 9904-45f3-983d-4f3fbb911998
Ники де Сен-Фалль: комната 2
Оставил Верно
 Ники де Сен-Фалль 
  Кеннеди-Кручев  1962 
 Краски, проволочная сетка и различные предметы по дереву 
 2000 x 1200 x 200 мм 
 Коллекция Шпренгеля, Ганновер, Германия
 Ники де Сен-Фалль 
  Old Master (без покрышек)  c.1961 год 
 Гипс на панели в старинной золотой деревянной раме 
 355 x 320 мм 
 Пожертвование артиста. Коллекция Mamac, Ницца
Картины со стрельбой
Это было потрясающее чувство — снимать картину и наблюдать, как она превращается в новое существо. Это было не только ВОСХИТИТЕЛЬНО и СЕКСУАЛЬНО, но и ТРАГИЧЕСКИ — как если бы мы были свидетелями рождения и смерти в один и тот же момент.
В начале 1960-х Сен-Фалль жил и работал в Париже в окружении художников, кураторов и искусствоведов. Насилие ее сборок переросло в новую серию работ — «Картины-стрелялки», которые должны были стимулировать и шокировать широкую публику и сделать ее ведущей художницей на международном уровне.
«Стрельба из картин», развитие ее «Целевых портретов», в которой голова ее возлюбленного была заменена мишенью, исследовала насилие, присущее большей части абстрактного искусства того времени, и может быть прочитана как пародия на мачизм искусства. Живопись действия.Вложив карманы, наполненные краской и продуктами питания, в толстые слои штукатурки на холст, Сен-Фалль и приглашенные сотрудники, включая Роберта Раушенберга и Джаспера Джонса, снимали картины, чтобы заставить их «истекать кровью». Как и ее сборки, эти работы стали высвобождением возмущения художницы, позволив ей обрести новое творчество, рожденное разрушением. Во время одной из первых «перестрелок» она встретила Пьера Рестани, критика и теоретика Nouveau Realistes, который пригласил ее присоединиться к группе.
Проводя публичные перестрелки во Франции и Америке, Сен-Фалль бросила вызов всему, что ее разозлило. Снимала патриархальное общество и политический кризис. Движимые современными событиями, а также личными переживаниями, многие из «Съемочных картин» имеют политический резонанс. Кеннеди-Хрущев 1962, например, был сделан вскоре после встречи двух лидеров политических сверхдержав. Признание критиков, достигнутое этими работами и выступлениями, привело к равенству с ее коллегами-художниками-мужчинами — то, что она стремилась сохранить до конца своей жизни.
Другие работы в этой комнате
  Сен-Себастьян или Портрет моего возлюбленного  1961 
 Краска, дерево и различные предметы (рубашка, галстук, мишень, дротики, гвозди…) по дереву 
 720 x 550 мм 
 Коллекция Шпренгеля, Hannover, DE 
 
  Стрелковый костюм  1962 
 Коллекция Sprengel Museum, Hannover, DE
  Long Rifle  1962 
 Коллекция Sprengel Museum, Hannover, DE
  Hommage to Bob Rauschenberg61 (Застрелен Раушенбергом в 1962 году) Краска, штукатурка и различные предметы на деревянных ставнях 
 1880 x 550 мм 
 Коллекция Sprengel Museum, Hannover, DE
  Dragon de Berlin  1963 
 Краска, штукатурка, проволочная сетка и различные предметы по дереву 
 1800 x 1100 x 340 мм 
 Коллекция музея Шпренгеля, Ганновер, DE
  Главы государств (исследование Кинг-Конга)  1963 
 Краски и маски по дереву 1250 x 2500 мм 
 Коллекция музея Шпренгеля, Ганновер, DE
  Grand Tir, Seance, Galerie J. 1961 
 Краска, штукатурка и различные предметы на фанере 
 1430 x 770 мм 
 Пожертвование артиста. Коллекция Mamac, Ницца
  Tir a raquette  —  Seance Galerie J.,  30 июня — 12 июля 1961 г. 1961 г. 
 Золотая краска, штукатурка и различные предметы по дереву 
 600 x 350 x 110 мм 
 Пожертвование артиста. Коллекция Mamac, Ницца 
 
  Старый мастер — Seance Galerie J., 30 июня — 12 июля 1961 г.  1961 
 Краска, штукатурка и проволочная сетка на панели в старинной раме 
 730 x 620 мм 
 Пожертвование артиста.Коллекция Mamac, Ницца
  Белый Гремлин  c.1963–4 
 Различные предметы и ткань на проволочной сетке 
 800 x 500 x 500 мм 
 Пожертвование артиста. Коллекция Mamac, Ницца
  Стрельба Живопись Посольство США, 20 июня 1961 года, Париж  1961 
 Краски, штукатурка и различные предметы по дереву 
 2450 x 660 x 220 мм 
 Собрание художника. На складе в Мамаке, Ницца
  Венера Милосская  1962 
 Краска и штукатурка на металлических конструкциях 
 1930 x 635 x 635 мм 
 Коллекция художника.


  Самый оптимальный способ отделить рабочую зону – приподнять ее на подиум. Также можно использовать мобильные перегородки или стеллаж с открытыми полками. Однако следует помнить, что громоздкие перегородки способны визуально уменьшить пространство.


 В данном стиле также преобладают светлые оттенки в интерьере, но допускается дополнительный декор в виде картин, декоративных предметов и цветов. При этом главный акцент делается на функциональности и комфорте.
 Основной светлый цвет разбавляется естественной природной палитрой. Мебель может быть состаренной, с облупленной краской или сколами на дереве. Дополнить интерьер можно уникальными предметами: сундуком или старым комодом. Шторы и занавески должны быть легкими и полупрозрачными, допускается средняя длина до подоконника. В качестве декора приветствуется большое количество рюшей, кружева, скатертей и керамических статуэток.
 Также можно использовать мобильные перегородки или стеллаж с открытыми полками. Однако следует помнить, что громоздкие перегородки способны визуально уменьшить пространство.



 В данном стиле также преобладают светлые оттенки в интерьере, но допускается дополнительный декор в виде картин, декоративных предметов и цветов. При этом главный акцент делается на функциональности и комфорте.
 Основной светлый цвет разбавляется естественной природной палитрой. Мебель может быть состаренной, с облупленной краской или сколами на дереве. Дополнить интерьер можно уникальными предметами: сундуком или старым комодом. Шторы и занавески должны быть легкими и полупрозрачными, допускается средняя длина до подоконника. В качестве декора приветствуется большое количество рюшей, кружева, скатертей и керамических статуэток.
 Также можно использовать мобильные перегородки или стеллаж с открытыми полками. Однако следует помнить, что громоздкие перегородки способны визуально уменьшить пространство.



 В данном стиле также преобладают светлые оттенки в интерьере, но допускается дополнительный декор в виде картин, декоративных предметов и цветов. При этом главный акцент делается на функциональности и комфорте.
 Если для ремонта требуется задевать стены, в которых эта коммуникация имеется, то поврежденные элементы нужно восстановить. Причем, сделать это нужно не для отвода глаз, а так, чтобы все функционировало, как и прежде. Иначе вы вскоре столкнетесь с жалобами от соседей, заявлениями в соответствующие органы, неприятными штрафами и, что самое сложное, принудительным новым ремонтом по восстановлению воздуховодов.
 К этим узлам всегда должен быть беспрепятственный доступ в любое время. Это делается на случай аварии, то есть утечек газа, от которых, к сожалению, никто не застрахован. Помните, спрятанная газовая труба не портит вид только до несчастного случая, а после его наступления — портятся даже несущие стены со всей остальной конструкцией.