Чертеж металлической двери с размерами, изготовление коробки и полотна своими руками
Автор Michael На чтение 8 мин Просмотров 4к. Опубликовано
Надежные металлические двери применяются фактически везде. Их устанавливают не только в квартирах многоэтажных домов, но и частных домовладениях, банях, различных хозяйственных постройках. Кроме покупных готовых вариантов, некоторые люди предпочитают создание самодельной конструкции, в чем хорошим подспорьем будет чертеж металлической двери.
Приобрести стальное дверное полотно и дверной блок надлежащего качество получается далеко не всегда. Первая проблема – это ценовая политика современного строительного рынка. Вторая проблема – иногда дверной проем очень специфический и двери для него изготавливают только по индивидуальному заказу.
Есть простой выход из этой ситуации. Если подходящих изделий практически нет в продаже, их всегда можно сделать собственноручно.
Содержание статьи
- Необходимые материалы, инструмент
- Подготовка и измерения
- Изготовление классической двери из металла
- Сборка дверной коробки
- Сборка дверного каркаса
- Изготовление дверного полотна
- Монтаж замка
- Петли
- Крепеж
- Утепление и отделка
- Металлическая дверь с остеклением и декоративными элементами
- Самодельная дверь в сравнении с заводской
Необходимые материалы, инструмент
Самое дорогое, что понадобится – это металл. Все остальные комплектующие и материалы обойдутся не слишком дорого, естественно, без учета декоративной отделки.
Если примерно прикинуть сумму на все расходы, то понадобиться не больше 100-150 долларов. За эту цену невозможно приобрести даже сомнительную китайскую продукцию.
Что касается необходимых для работы материалов, то их немного. Нужно приобрести профильную трубу – подойдет с сечением в 20×40 мм. Трубу следует покупать в количестве 20 погонных метров – этого объема вполне хватит на производство блока стандартных размеров (это около 1 м в ширину и 2 м в длину). Количество материала под другие габариты посчитать не трудно. В случае каких-либо непонятных ситуаций стоит посматривать на эскиз – сегодня можно найти массу чертежей металлических дверей и пользоваться ими для сборки.
Также необходим листовой металл. Толщина его должна быть не менее 2,5 мм. Габаритные размеры – под размер будущей двери, а точнее проема.
Также следует подготовить петли, выбирать стоит модели, которые оснащены подшипником. Эти комплектующие приобретаются в количестве трех штук.
Полотно будет достаточно тяжелое, поэтому три петли – это наиболее надежный вариант.
Кроме того, дополнительно нужна фурнитура, теплоизоляция, а также материалы для декоративной отделки. Не стоит забывать и про расходные материалы – это круги для электроинструмента, сварочные электроды, сверла, расходные материалы для лобзика.
Из инструментов стоит подготовить сварочный аппарат, стол для сварки, болгарку, электрическую дрель, электролобзик.
Подготовка и измерения
Итак, стандартный размер дверного проема в большинстве квартир составляет 2000×800 или 2000×900 мм. Если же существующий проем меньше или же больше, то можно изготовить полотно под особый размер. При выполнении замеров стоит убедится, что измеряется именно стена, а не бетон или же штукатурка.
В том случае, если высота коробки немногим больше 2000 мм, тогда необходимо предусмотреть дополнительную раму сверху, или же в боковой части проема, если ширина его более чем 900 мм. Кроме того, следует помнить о зазоре в несколько десятков миллиметров с каждой стороны коробки.
Этот зазор необходим для задувки швов.
Если ширина проема более 1500 мм, то специалисты рекомендуют изготавливать не цельную (монолитную), а разборную коробку. В коттеджах в широкие проемы устанавливают кроме дверного полотна два или более модуля со стеклом, которые делают конструкцию более надежнее и прочнее и выполняют декоративную функцию.
Кликните для открытия в полном размере.В процессе подготовки также стоит начать разрабатывать чертеж металлической двери. Если дверное полотно будет уникальным и эксклюзивным, тогда и чертеж делается своими руками. Если же проем стандартный, а дверная конструкция будет представлять собой типовое решение, тогда можно использовать и типовые чертежи.
Изготовление классической двери из металла
Классические стальные двери – это конструкция из полотна, коробки, дверных петель, а также монтажных пластин.
Сборка дверной коробки
Итак, первым делом необходимо собрать коробку или блок. Для этого по полученным в ходе измерений параметрам нарезают подготовленную профильную трубу.
Нарезка выполняется под углом в 45 градусов. Точность резки можно проверять методом соединения двух кусков, а затем получившуюся конструкцию проверить уголком.
Существует еще одни способ производства коробки. В этом варианте рама собирается из металлического профиля методом сварки. В результате должна получится прямоугольная конструкция. В процессе сборки очень важно контролировать точность углов, а также измерять диагонали – это делают, что исключить риск перекосов блока.
Сборка дверного каркаса
На этом шаге изготовляют заготовки для будущего каркаса. Для этих целей подойдет металлический уголок. Необходимо выдержать зазор между дверной рамой и коробкой со стороны замка – он равен примерно 5 мм. С других сторон будет достаточно, если зазор составит 3 мм. Это не точные цифры – в различных чертежах металлических дверей данный размер может быть немного другим. Чтобы было нагляднее, для измерения и контроля этих зазоров применяют полоски из металла нужной толщины.
Далее – размечается и нарезается профиль. Его вкладывают внутрь получившейся коробки. Затем проверяют геометрические характеристики конструкции по диагоналям. Если все верно, тогда с одной из сторон профиля делают паз или прорезь для монтажа замка. После этого углы рамки можно прихватить сваркой, каркасы по периметру также прихватываются в нескольких точках.
На этом шаге уже можно приварить к дверной рамке полосы из металла, которые будут выполнять функцию фиксаторов для отделочных материалов.
Изготовление дверного полотна
Создание полотна следует начать с разметки. Стоит учитывать допуски и напуски листового металла на дверную коробку по 10-15 см. Также учитывается напуск со стороны петель. В различных чертежах металлических дверей он составляет 5 мм.
Стальной лист по чертежам и размерам разрезается при помощи болгарки и приваривается к готовой раме. Внутри полотна вваривают ребра жесткости. Они должны устанавливаться горизонтально.
Если уровень жесткости недостаточный, тогда их количество можно увеличивать.
Монтаж замка
Дверь почти закончена. Для установки замка выполняют разметку прямо на полотне. Размечать места под отверстия можно обычным маркером. Затем по нанесенным меткам высверливают отверстие, которое потом необходимо обработать напильником. Далее – проделываются отверстия под крепежные элементы будущего замка. В отверстиях нарезается резьба, затем замочное устройство фиксируется с помощью болтов. В конце устанавливают ручку.
Это типовая инструкция, которая подходит для большинства замков, но замочные конструкции могут различаться, сам монтаж зависит от изделия.
Петли
Прежде чем приваривать эти элементы к получившейся конструкции – дверям и блоку, необходимо их смазать. С помощью болгарки разрезаются места, где соединяется рама и дверной блока – это точки, которые ранее прихватывались сварочным аппаратом. Петли фиксируются изнутри.
Крепеж
Для крепежа полученной конструкции в проем используют полоски из металла.
Их необходимо от 6 до 10 шт. Они просто привариваются к коробке. Затем в них нужно будет просверлить отверстия под анкерные болты.
Утепление и отделка
Дверь практически готова. Теперь осталось только утеплить ее. Выбранный вами вариант теплоизоляции разрезается и закладывается внутрь полотна. Укладывают утеплитель между ребер жесткости.
После этого можно начать заниматься декоративной отделкой внутренней части двери. Для этих целей подойдет фанера, ламинированные панели, а также любой другой материал.
Металлическая дверь с остеклением и декоративными элементами
Зачастую, такие модели дверей устанавливаются в частных домах или же в коттеджах. Окно выполняет несколько функций – через него можно посмотреть, кто пришел. Также благодаря стеклу в прихожей будет значительно светлей. Декоративные элементы украсят полотно и придадут ему эксклюзивный внешний вид.
Окно в двери необходимо изготовить еще тогда, когда выполняется резка листовой стали.
При ее изготовлении можно чертеж металлической двери, размещенный в начале нашей статьи. По периметру прямоугольного или любой другой формы отверстия в стальном листе необходимо приварить арматуру. С размерами следует определится заранее. Все остальные этапы работы аналогичны технологии изготовления классической двери.
После того, как конструкция будет окрашена, в место, предназначенное под окно, устанавливают стеклопакет. Для того, чтобы стекло было максимально надежным, с внешней стороны часто приваривают кованую декоративную решетку.
Можно также оснастить дверной блок различными дополнительными аксессуарами. Это могут быть доводчики, уплотнители, глазки и многое другое. Главное правило – фурнитура должна быть качественной. Только тогда она прослужит в течении долгого периода времени.
Самодельная дверь в сравнении с заводской
Первый минус – это рациональность данного решения.
Стоимость материалов и фурнитуры составляет немалую сумму, при том что самая простая заводская дверь будет стоить процентов на 30% дороже, при том вы сэкономите уйму времени и сил. Кроме того, важны ваши как навыки сварщика. Если вы не имеете достаточно квалификации, имеется риск допущения брака. В любом случаи, заводская сварка будет намного качественнее.
Но говоря в целом, самодельная дверь из металла – это никакая не утопия, а самая настоящая реальность для тех, кто имеет навыки сварщика и опыт работы с электроинструментом.
Металлическая дверь своими руками: чертежи, видео, изготовление
Содержание
- 1 Подготовка к работе
- 2 Руководство по изготовлению дверей
- 2.1 Делаем дверное полотно
- 2.2 Свариваем коробку
- 2.3 Монтируем навесы
- 2.4 Устанавливаем замок
- 3 Облицовка изделия
- 4 Заключение
Качественная стальная дверь, даже с бюджетной молотковой покраской, нынче стоит хороших денег. Разумеется, в расчет не принимаются дешевые китайские изделия, вскрываемые консервным ножом.
Поэтому домовладельцу с доходами ниже среднего ничего не остается, кроме как сделать металлическую дверь и установить ее своими руками, или заказать ее какому-то гаражному мастеру. Но если вы не понаслышке знакомы со сварочным аппаратом, то оплачивать чужую работу незачем – ознакомьтесь в нашей статье с технологией изготовления и принимайтесь за дело сами.
Подготовка к работе
На данном этапе нужно выполнить замеры входного проема и приготовить все необходимые материалы. Перечень инструментов стандартный – измерительные приспособления, сварка и болгарка с дрелью.
Совет. Для фиксации свариваемых узлов обязательно подготовьте 2—3 струбцины, без них работать значительно сложнее.
Замер проема на входе в квартиру или частный дом производится в нескольких местах, особенно по ширине. Необходимо выявить самое узкое место, чтобы ориентироваться на этот размер при изготовлении. Результаты измерений нанесите на схему, по которой станете заготавливать металл.
Предполагается, что у вас нет личного опыта в сборке железных дверей, поэтому для начала мы предлагаем изготовить самую простую конструкцию. Даже если она получится не слишком красивой, впоследствии облицуете створку утеплителем и декоративными накладками, которые скроют все мелкие огрехи. Из конструктивных материалов вам понадобится:
- 1 стандартный лист стали, желательно — холоднокатаной, толщиной 1,5—2 мм на полотно;
- для каркаса и дверной коробки возьмите профильную трубу сечением 40 х 20 мм с толщиной стенки 1,5—2 мм;
- навесы 2 шт. (нужно заказать токарю) и металлические пластины 4—5 мм в толщину для их монтажа;
- простой и надежный дверной замок, можно – самодельный.
Чертеж конструкции из уголков
Совет. Нет смысла брать слишком толстый металл (например, 3 мм), поскольку сварить настоящую бронированную дверь все равно не получится, а изделие выйдет слишком тяжелым. Вполне достаточно толщины листа и профтрубы 1,5 мм.
Вместо последней можете использовать равнополочный уголок 45 х 3 мм.
Если ваши сварочные навыки еще не отточены, то лучше взять стальной лист 2 мм в толщину, его труднее прожечь из-за недостатка опыта. Также подумайте о будущей наружной отделке, чтобы заранее подобрать материалы. Подробнее о подготовительном этапе изготовления металлической двери с деревянными накладками рассказывается на видео:
Руководство по изготовлению дверей
Первая операция – заготовка деталей. Она выполняется по такой схеме:
- Отрежьте 4 профиля на вертикальные стойки дверной коробки (или 2 уголка), ориентируясь по чертежу.
- Заготовьте 4 поперечины короба из профтрубы или уголков.
- Для каркаса полотна нарежьте 4 горизонтальных перемычки и 2 стойки.
- С помощью болгарки подгоните габариты стального листа под размеры дверной коробки.

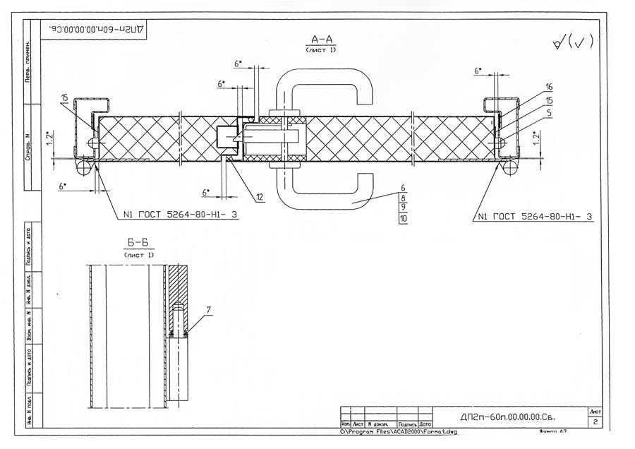
Чертеж двери из профтрубы во входном проеме
Примечание. Между дверным блоком и стеной предусматривайте зазоры 1 см по всему периметру, как изображено на чертеже. На притворах нужно соблюдать зазор не менее 4 мм для уплотнительной ленты.
Нарезав элементы изделия, зачистите острые торцы и удалите заусенцы, после чего приступайте к сборке. Чтобы облегчить себе обработку перед покраской, на данном этапе рекомендуется удалить с поверхности заготовок всю ржавчину с помощью крупной наждачной бумаги и железной щетки.
Делаем дверное полотно
Традиционно сваривание железной двери своими руками начинается с изготовления короба, куда потом вставляется готовая створка. Но личный опыт многих мастеров говорит о том, что стоит начать именно с полотна – так проще выдержать угол 90° и не допустить «вертолета», при котором изделие перекошено относительно фронтальной плоскости.
Первым делом уложите лист металла на стол или подставки и выровняйте его по плоскости, используя строительный уровень и подкладки в нужных местах.
- Разложите заготовки рамы на листе, отступив от его краев 1 см и соблюдая углы 90°. Прихватите в нескольких точках верхнюю и нижнюю поперечину сваркой, зафиксировав их струбцинами.
- Повторите эту же операцию с вертикальными стойками, выполняя прихватки с внутренней стороны профиля. Как это выглядит визуально, показано выше на фото.
- Окончательно сварите элементы рамы с листом и между собой. Установите 2 промежуточных перемычки и закрепите их таким же образом.
- В конце зачистите болгаркой все сварные швы.
Внимание! При соединении профильной трубы с полотном не делайте сплошных швов, иначе металл поведет и на выходе вы получите тот самый «вертолет». Наплавляйте с внутренней стороны точки через каждые 10 см.
Свариваем коробку
В нашем случае наружная рама монтируется из двух профилей, установленных под углом 90° друг относительно друга (смотрите выше на чертеже). Поэтому сначала сформируйте наружное обрамление, уложив профили по всему периметру полотна и скрепив их прихватками.
Следующая профтруба кладется плашмя на 2 предыдущих с нахлестом и образует внутреннюю раму короба. Внимательно изучите фото, чтобы разобраться в этой комбинации.
Когда все рамные профили лежат на своих местах, прихватите их, а потом точечно сварите между собой. Проследите, чтобы по ошибке не приварить обрамление к полотну двери. Визуально готовая коробка, лежащая на створке, выглядит так:
Перед следующей операцией нужно разделить полотно и коробку, а последнюю перевернуть и положить на рабочий стол. Теперь можно тщательно проварить стыки снаружи и зашлифовать их болгаркой. Не накладывайте швы изнутри, где будет прилегать створка.
Изнутри стык заделывать не нужно, только снаружи
Важный момент. Прежде чем снимать раму с дверного полотна, поставьте метки на обоих элементах, чтобы запомнить их положение и при сборке не перепутать верх и низ.
Монтируем навесы
Для продолжения работы необходимо снова положить готовую створку на стол, только теперь поверх коробки.
Теперь о том, как правильно сделать навесы:
- Определите положение навесов, отмерив сверху и снизу одинаковое расстояние – 25 см. Поставьте отметки и пропилите болгаркой пазы в полотне, чтобы сваривать петли напрямую с профилем рамы, а не с листом.
- Приварите к верхней части навеса толстую пластину, примерив детали по месту к торцу лутки.
- Приложите петлю с пластиной к коробке таким образом, чтобы между ней и плоскостью листа выдержать зазор 3—5 мм. Прихватите деталь сваркой.
- Поставьте второй усилитель на полотно двери и сварите его с навесом и створкой. Повторите все операции на другой петле.
Когда железная дверь держится на прихватках, проверьте ее открывание и прилегание, после чего приварите навесы окончательно и зачистите швы.
Устанавливаем замок
Когда свежеизготовленная входная дверь еще не поставлена в проем, врезка запоров своими руками не составляет проблемы. Для начала приложите замок к торцу полотна и наметьте его контур.
Чтобы вырезать паз под замок, воспользуйтесь болгаркой и дрелью. Когда извлечете обрезанный кусочек металла, выровняйте и зачистите края проема.
Дальше порядок работ такой:
- Вставьте замок в паз и просверлите отверстия для крепления. Нарежьте в них резьбу М5 или М6 и закрепите изделие.
- Напротив отверстия в корпусе для ручки и замочной скважины поставьте отметки на дверном полотне. Вырежьте в нем такие же проемы и поставьте с наружной стороны ручку с накладкой.
- Определите место в дверном косяке, где ригели замка должны входить в отверстия при закрывании. Выполните эти пазы, подчистите их и проверьте, как работает запор. При необходимости подрегулируйте или расширьте проем.
По окончании проделайте в коробке 4 монтажных отверстия, куда при установке войдут анкерные болты.
Больше информации и важных моментов об изготовлении железной двери вы сможете узнать, просмотрев видео:
Облицовка изделия
Каким бы способ отделки двери вы ни избрали, вначале ее необходимо защитить от коррозии – загрунтовать и покрасить. Для этого нужно удалить шлак со сварных швов, подчистить их и обезжирить всю поверхность, а затем нанести 2 слоя грунта. После высыхания окрасьте изделие за 2 раза, начиная с тыльной стороны.
Облагородить входные двери можно такими способами:
- изнутри утеплить полистирольными плитами, посадив их на клей, и обшить пластиковыми панелями;
- прикрутить саморезами внешнюю и внутреннюю накладку из дерева, в частности, вагонки;
- обтянуть полотно дерматином, заложив под него слой утеплителя;
- купить и смонтировать готовый комплект для дверей из МДФ.
Можно сделать наличники из железа и окрасить в тот же цвет
Готовое изделие устанавливается во входном проеме на анкерных болтах, а щели традиционно уплотняются монтажной пеной.
Здесь важно соблюсти горизонталь и вертикаль, чтобы створка хорошо закрывалась, а лутка не была «завалена» внутрь квартиры. Чтобы скрыть пену, снаружи и внутри коробка обшивается наличниками из дерева, металла или пластика. О правильной покраске дверного полотна подробно рассказывается в последнем видеоролике:
Заключение
Самодельные входные двери из железа по сроку службы не уступают заводским, если в процессе изготовления была соблюдена технология и конструкция сварена без перекосов. В противном случае появятся проблемы, в первую очередь, с замком, который начнет плохо закрываться и заклинивать. Чтобы этого не произошло, уделяйте больше времени подгонке всех элементов в процессе сборки, когда ошибки легче исправить.
Установка скрытых дверей за 3 часа. Нюансы монтажа комплекта Invisible
Как устанавливается скрытая дверь INVISIBLE от PROFIL DOORS
- ОБЯЗАТЕЛЬНО на уровень готового пола.

Если пол не готов или Вы боитесь его повредить, то необходимо сделать закладные элементы на уровень готового пола (обычно 30 мм).
- ДО завершения отделочных работ помещения.
Если установка все-таки проходит уже после завершения чистовых отделочных работ, необходимо предусмотреть возможность выведения уровня скрытого короба в единую плоскость со стеной. Для этого необходимо снять слой штукатурки вокруг проёма, при этом соблюдать наличие прямого угла при сопряжении плоскостей.
- Минимальная толщина стены рассчитывается по толщине короба:
— для обычной скрытой двери INVISIBLE: 82 мм.
— для скрытой двери обратного открывания REVERSE: 69 мм.
Конструкция короба скрытой двери «на себя» схематично
Короб INVISIBLE благодаря конструкции устанавливается вровень со стеной.
Читать о стоимости и комплектации Скрытой двери Invisible >>>
Технические размеры короба Invisible
82*32,5 мм.
Передний паз — 7 мм.
Задний паз — 10 мм.
ЭТАПЫ установки скрытой двери
Подготовка дверного проёма
В ШИРИНУ рекомендуемый размер дверного проёма +100 мм.
| Полотно (мм) | Проём (мм) |
| 600 | 700 |
| 700 | 800 |
| 800 | 900 |
| 900 | 1000 |
ВЫСОТА ПРОЁМА
Для установки стандартного комплекта INVISIBLE высотой 2000 мм рекомендуемая высота проёма 2060-2080 мм.
Измеряется от уровня готового пола. MAX возможная высота изготовления короба INVISIBLE (по полотну) — 3000 мм.
КОРОБЫ В РАЗРЕЗЕ
Установка скрытого короба в проём
Короб устанавливается в одну плоскость со стеной по переднему канту. Если рядом располагаются несколько дверей, то нужно учесть соотношение полотен по верхнему уровню.
Стоевые фиксируем в проеме и навешиваем полотно, регулируем в плоскостях при помощи скрытых петель.
Выставляем зазоры между полотном и коробом, пеним.
Допустимые зазоры
По ГОСТу со стороны замка допустим зазор немного больше, чем со стороны петель, так как полотну на открывание необходимо больше места.
Рекомендуемые зазоры:
Со стороны петель 2-3 мм.
Со стороны замка 3-4 мм.
Сверху 2-3 мм.
Наши монтажники для эстетики всегда стараются выставить одинаковые зарозы сверху и по бокам, то есть по 3 мм.
Облицовка
После установки ждем высыхания монтажной пены, обрезаем излишки и приступаем подготовке конструкции к отделке. Штукатурим, обшиваем гипсокартоном.
При расчете размеров деталей допустим зазор 5 мм. На боковых деталях со стороны примыкания к дверной коробке при необходимости необходимо сделать углубление, чтобы деталь поместилась в паз на скрытом коробе.
С обратной стороны для фиксации деталей обрамляющих проём можно закрепить брус компенсирующий расстояние. Затем с использованием ГКЛ обшить заднюю часть проёма.
Паз на коробе Invisible с обратной стороны — 10 мм, рассчитан на ГКЛ шириной 9 мм.
Revers — 11 мм, расчитан соответственно на ГКЛ шириной 10 мм.
После облицовки шпаклюем стыки гипсовой смесью, во избежание появления трещин рекомендуется наклеить на швы стеклохолст.
НЕСТАНДАРТ
Важно: скрытые петли AGB Eclipse (производство Италия), которые входят в стандартный комплект скрытой двери, устанавливаются на полотна весом не более 40 кг.
При установке скрытой двери нестандартного размера необходимо учитывать её вес и наличие отделки. Именно поэтому на полотна выше 2 метров на фабрике Profil Doors дополнительно врезается до 3 петель.
Особенности установки скрытой двери «от себя»
Короб обратного открывания REVERSE на любой стадии ремонта требует дополнительной подготовки проёма.
Из-за особенностей конструктива необходимо проштробить дверной проём с лицевой стороны по периметру в ширину 40-60 мм (в зависимости от ширины проёма) и в глубину 10 мм.
В него утапливается широкое крыло короба до соотношения уровня переднего паза с поверхностью стены.
Комплект REVERSE поставляется с фабричными запилами под петли и замок. Стоевые уже зарезаны под 45″, их необходимо только подпилить по высоте и соединить с верхней перемычкой с помощью специальных креплений для стягивания (поставляются в комплекте).
Собранный короб ставим и закрепляем в проёме, вешаем полотно, регулируем в плоскостях, выставляем зазоры.
Важно учитывать наличие притвора и соответственно выставлять зазоры с обеих сторон.
Технические размеры короба Revers
69*66,3 мм.
Передний паз — 7 мм.
Задний паз — 11 мм.
Как отделать скрытую дверь с обратной стороны?
Штукатурка
Это наименее затратный и быстрый способ. После установки скрытой двери откосы штукатурят и шпаклюют.
Обращайте внимание на петлевые отверстия, не допускайте попадания в них отделочных материалов.
Обрамление доборами
Рекомендуем именно этот способ внутренней отделки.
Короб просто скрывается за доборами и наличниками, которые подбираются под цвет стен.
Для реализации необходимо, чтобы стены с обратной стороны были подведены к проёму под чистовую отделку.
Стоимость установки скрытой двери
INVISIBLE — 4500 Р.
При установке только 1 комплекта на адресе стоимость 6000 Р.
REVERSE — 6500 Р.
Гарантия Profil Doors LOFT на монтажные работы — 12 месяцев.
Время монтажа в подготовленный проём 2-3 часа.
Важно: установка скрытых дверей нашей бригадой монтажников осуществляется в готовые проёмы. Если стены не готовы, можем дать рекомендации строителям.
Читать про комплектацию и стоимость Invisible >>>
Записаться на бесплатный замер
Рисунок двери — Как нарисовать дверь шаг за шагом
Двери стали одним из наиболее часто используемых и в то же время наиболее часто игнорируемых аспектов нашей повседневной жизни.
Когда вы в последний раз останавливались и думали, сколько вы взаимодействуете с дверями в вашем доме?
Они также могут быть разных стилей и конструкций, но все они выполняют одну и ту же функцию. Помимо того, что это действительно полезно для многих целей, это также может быть удивительно сложной задачей научиться рисовать дверь.
С помощью этого руководства вы обнаружите, что это не должно быть проблемой, когда вы знаете, что делать!
Итак, приготовьтесь открыть дверь в этом пошаговом руководстве о том, как нарисовать дверь за 6 шагов!
О чем эта запись в блоге
- Как нарисовать дверь — приступим!
- Шаг 1
- Шаг 2 – Далее нарисуйте дверную раму
- Шаг 3 – Нарисуйте саму дверь
- Шаг 4 – Теперь нарисуйте еще несколько деталей двери
- Шаг 5. Завершите рисунок двери
- Шаг 6. Завершите рисунок двери каким-либо цветом
- Сделайте это, чтобы вывести рисунок двери на следующий уровень
- Ваш рисунок двери готов!
Шаг 1
Вы можете подумать, что нарисовать дверь будет легко, так как закрытая дверь — это просто большой прямоугольник с некоторыми деталями на нем.
Мы пойдем немного дальше этого рисунка, хотя в этом руководстве о том, как нарисовать дверь, он будет слегка открыт.
Это немного усложнит задачу, но оно того стоит! В этом руководстве вы будете рисовать много прямых линий. По этой причине вы обнаружите, что это руководство почти невозможно без линейки, которая вам поможет.
Когда у вас в руках будет верная линейка, вы можете приступать к этому первому шагу. Хотя это руководство может стать сложнее, этот первый шаг должен быть довольно простым!
По сути, вы просто рисуете вертикальный прямоугольник без дна. Вы можете использовать различные инструменты рисования, чтобы получить идеальные прямые углы для двери.
Шаг 2 – Затем нарисуйте дверную рамуТеперь этот рисунок двери может стать немного сложнее! Однако, если вы внимательно следите за эталонным изображением, это не будет проблемой.
С помощью линейки нарисуйте диагональную линию, ведущую внутрь к двери от каждого из верхних углов.
Затем проведите прямую линию вниз от верхнего левого угла.
Вы также можете провести горизонтальную линию от той же верхней левой линии. Мы пока оставим остальную часть верхней части рамы пустой, так как мы будем рисовать дверь в этом пространстве позже.
Шаг 3 — Нарисуйте саму дверьВ этой третьей части нашего руководства о том, как нарисовать дверь, мы будем рисовать саму дверь. Дверь будет открываться немного внутрь к нам как к зрителю.
Он будет начинаться с углов с правой стороны рамы, а затем подниматься вверх по верхнему краю.
Нижний край будет наклонен вниз, а затем оба этих края будут соединены двумя прямыми вертикальными линиями.
После того, как вы нарисуете его так, как на нашем эталонном изображении, вы будете готовы к следующей части!
Шаг 4 – Теперь нарисуйте еще несколько деталей для двери Самые сложные части рисунка вашей двери завершены, так что на последних шагах мы можем сосредоточиться на некоторых деталях для нее.
Вы можете начать с рисования квадрата в верхней внутренней части двери.
Верхние и боковые края этого квадрата будут параллельны контуру двери. После того, как вы нарисовали этот квадрат, мы добавим под ним три прямоугольника.
Эти прямоугольники будут длинными, тонкими и одинаковой ширины и длины. Как и в случае с квадратом, они также будут параллельны контуру двери.
Это может показаться более запутанным, чем есть на самом деле, но если вы будете следовать этим инструкциям и внимательно смотреть на эталонное изображение, у вас не должно возникнуть проблем с тем, чтобы все сделать правильно!
Шаг 5 – Завершите чертеж двериДверь была бы бесполезна без ручки для управления ею, поэтому мы добавим ее на этом шаге из 9.0049 наше руководство о том, как нарисовать дверь.
К счастью, это должно оказаться самым простым из всех шагов в этом руководстве!
Все, что вам нужно сделать, это нарисовать небольшую круглую фигуру рядом с центром двери, чтобы придать ей ручку.
Затем просто добавьте линию рядом с краем этого круга для дополнительной детализации.
После того, как вы добавили этот последний элемент, вы готовы к последнему шагу. Если вы хотите, вы также можете добавить некоторые свои штрихи к этому рисунку.
Можно нарисовать какие-нибудь декоративные элементы для двери или даже нарисовать какие-нибудь картины, висящие на стене рядом с ней.
Это всего лишь несколько идей, которые вы могли бы использовать, но вы можете получить удовольствие от творчества! Может быть, вы могли бы сделать его похожим на дверь в вашем доме?
Шаг 6 – Завершите рисунок двери, используя какой-нибудь цветТеперь пришло время закончить рисунок двери, используя удивительные цвета. В нашем примере изображения мы использовали несколько оттенков желтого для самой двери, а затем мы использовали синий цвет для рамки.
Наконец, мы покрасили внутреннюю часть двери в коричневый цвет.
Это цвета, которые мы выбрали, но они ни в коем случае не единственные цвета, которые вы могли бы выбрать!
Это шаг, на котором вы действительно можете повеселиться, поэкспериментировав с любимыми цветами, чтобы оживить это изображение.
Нам не терпится увидеть, какие цвета и художественные материалы вы выберете!
Сделайте это, чтобы вывести рисунок двери на новый уровень.
Откройте дверь для веселого рисования, пока мы даем вам советы по эскизу двери!
Для этого чертежа двери мы создали довольно стандартную дверь, но двери также могут быть разных стилей! Если бы вы заглянули в свой собственный дом или здание, в котором вы живете, вы обязательно найдете несколько разных типов дверей.
Это также означает, что у вас есть несколько моделей дверей, которые вы могли бы использовать, если бы захотели изменить этот дизайн!
Вы можете сделать это, изменив несколько мелких деталей на двери, и эти мелкие детали могут иметь большое значение.
Даже если вы хотите придерживаться созданного нами дизайна, вы можете добавить к нему дополнительные функции и аспекты. Например, у вас может быть небольшое окошко в верхней половине двери.
Добавление такой функции означает, что вам не нужно будет полностью переделывать дизайн, чтобы получить дверь другого типа! Добавление небольшого окна было бы одной идеей, но какие еще функции вы могли бы использовать для этой двери?
Дверь всегда ведет к чему-то, и вы могли бы подсказать, к чему ведет эта дверь.
Это потребует от вас немного изменить дизайн, так как вам нужно будет сделать дверь более открытой.
Так можно было показать, что находится за дверью. Это может привести к двору, интерьеру дома или чему-либо еще, о чем вы только можете подумать!
Вы также можете создать фон, добавив детали вокруг рисунка двери, который мы создали. Это позволит вам выпустить своего внутреннего дизайнера интерьера, когда вы будете проектировать комнату вокруг двери.
Так много возможностей можно добавить! Это могут быть такие простые столики с вазами на них, или вы можете нарисовать окно, выходящее наружу.
Создание дома — не единственный вариант, и здесь вы действительно можете использовать свое воображение. В какую обстановку вы бы хотели поместить эту дверь?
Чертеж вашей двери готов!
Выполнив все шаги, теперь мы можем закрыть дверь в этом руководстве как нарисовать дверь ! Мы сделали это немного сложнее, приоткрыв дверь, но мы уверены, что вы согласитесь, что это стоило усилий!
Надеюсь, следуя шагам этого руководства, вы нашли его простым и интересным.
Затем вы можете взять на себя и показать нам кое-что, украсив этот рисунок своими собственными деталями и выбором цвета!
Когда вы закончите пользоваться этим руководством, вы сможете найти еще много интересного на нашем веб-сайте. Мы также будем загружать больше в ближайшее время, поэтому мы надеемся видеть вас там часто!
Завершив последние штрихи рисунка двери, вы можете показать нам свои работы, поделившись ими на наших страницах в Facebook и Pinterest.
Чертежи | Двери Chase
Холодильные камеры
Одностворчатая распашная дверь ColdGuard, четырехсторонняя рама
pdf 542 022 КБ
Одностворчатая распашная дверь ColdGuard, четырехсторонняя рама
pdf 1.003 MB
Распашная дверь холодильной камеры ColdGuard69 чертеж 305
pdf
1.
004 MB
Одностворчатая распашная дверь ColdGuard, четырехсторонняя рама
pdf 976.042 KB
Одностворчатая распашная дверь ColdGuard, четырехсторонняя рама
pdf 971.115 KB
Одностворчатая распашная дверь ColdGuard, трехсторонняя рама
pdf 68.574 KB
Двустворчатая распашная дверь ColdGuard, четырехсторонняя рама
pdf 594.042 KB
Двустворчатая распашная дверь ColdGuard, трехсторонняя рама
pdf 533.773 KB
Электрическая вертикальная подъемная дверь ColdGuard
pdf 553.829 KB
Ручная вертикальная подъемная дверь ColdGuard с системой противовеса
pdf 478,294 КБ
Чертеж Mega-Pro
pdf
626.
274 KB
Одностворчатая горизонтальная раздвижная электрическая дверь с направляющей EHD и односкоростным приводом
pdf 630.484 KB
Одностворчатая горизонтальная раздвижная электрическая дверь с направляющей EHD и приводом 1 900-RLS
pdf 717.585 KB
Одностворчатая горизонтальная раздвижная ручная дверь со стандартной направляющей
pdf 514 465 КБ
Одинарная горизонтальная ручная раздвижная дверь с направляющей EHD
pdf 543,631 КБ
Стойкий к коррозии
Durulite CR 1400 Однодверный
pdf 101.334 KB
Durulite CR 1400 Двойная дверь
pdf 125,449 КБ
Огнестойкость
Оператор Saino F1900PLC 1900PLC
пдф
148.
781 КБ
Saino Operator F1900PLC 1900PLC
pdf 151.845 KB
Двери Saino модели 1000 и 2000 с ручным управлением и альтернативной системой закрывания, одностворчатые
pdf 169.188 KB
Saino Model 1000 и 2000 Дверь с ручным управлением и системой закрывания с грузом, одностворчатая
pdf 151.188 KB
Автоматическая дверь Saino модели 1000 и 2000 с F1900 Оператор, один слайд
pdf 150.239 KB
Saino Model 1001 и 2001 Ручная дверь с альтернативной системой закрывания, центральный разделитель
pdf 127.696 KB
Автоматическая дверь Saino Model 1001 и 2001 с приводом F1900, центральный разделитель
pdf 158,33 KB
Saino Model 1010 и 2010 ADA Дверь с ручным управлением и системой закрывания с грузом, одностворчатая
пдф
165.
848 KB
Автоматическая дверь Saino Model 1010 и 2010 ADA с оператором F1900, одностворчатая
pdf 159.677 KB
Saino Model 1010 и 2010 ADA Альтернативные системы закрывания, одностворчатые с пропускной дверью
pdf 156.701 KB
Saino Model 1011 и 2011 Дверь с ручным управлением и системой закрытия с грузом, с пропускной дверью
pdf 157,905 KB
Saino Model 1011 и 2011 Альтернативные системы закрывания, центральное разделение с пропускной дверью
pdf 119.044 KB
Автоматическая дверь Saino Model 1011 и 2011 ADA с оператором F1900, одностворчатая
pdf 140.738 KB
Полая металлическая противопожарная дверь
pdf
106.
751 KB
Saino, модели 3000 и 4000, дверца с ручным управлением и альтернативной системой закрывания, одностворчатая
pdf 165.764 KB
Saino, модели 3000 и 4000, дверца с ручным управлением и системой закрывания с грузом, одностворчатая
pdf 150.252 KB
Автоматические двери Saino моделей 3000 и 4000 с приводом F1900, одностворчатые
pdf 147.403 KB
Saino, модели 3001 и 4001, ручная дверь с альтернативной системой закрывания, центральный разделитель
pdf 129.322 KB
Saino, модели 3001 и 4001, дверца с ручным управлением и системой закрывания с грузом, центральный разделитель
pdf 161.595 KB
Saino Models 3001 и 4001 Автоматическая дверь с приводом F1900, Центральный разделитель
pdf
156.
866 KB
Полая металлическая противопожарная дверь
pdf 106.751 KB
Ручная дверь Saino, модель 50000, с альтернативной системой закрывания, одностворчатая
pdf 146.947 KB
Дверь Saino Model 50000 с ручным управлением и системой закрывания с грузом, одностворчатая
pdf 143.019 KB
Автоматическая дверь Saino Model 50000 с приводом F1900, одностворчатая
pdf 140.391 KB
Saino, модель 50001, ручная дверь с альтернативной системой закрывания, центральный разделитель
pdf 102.858 KB
Saino Модель 50001 Дверца с ручным управлением и системой закрывания с грузом, центральная перегородка
pdf
149.
364 KB
Автоматическая дверь Saino Model 50001 с приводом F1900, центральный разделитель
pdf 145,567 КБ
Saino Модель 50000 с дверцей
pdf 99.869 KB
Saino Model 3100 и 4100 Ручная дверца, одностворчатая
pdf 128.991 KB
Автоматическая дверь Saino моделей 3100 и 4100 с приводом 1900, одностворчатая
pdf 146.486 KB
Saino Model 3101 и 4101 Дверь с ручным управлением, Центральная перегородка
pdf 132.337 KB
Автоматические двери Saino моделей 3101 и 4101 с приводом 1900, центральная перегородка
pdf 151.715 KB
Дверь без маркировки
pdf 100,175 КБ
Руководство Saino, модель 61000, с фиксатором в закрытом положении, один слайд
pdf
146.
525 KB
Saino Model 61000 Автоматическая служебная дверь, установленная на корпусе, одностворчатая
pdf 160.196 KB
Saino Model 61001 Автоматическая служебная дверь, установленная на корпусе, центральная перегородка
pdf 167,354 КБ
Saino Модель 73000 Одностворчатая дверь с приводом TXP
pdf 162,254 КБ
Центральная разделительная дверь Saino, модель 73001, с оператором TXP
pdf 165.988 KB
Saino Model 1100 Дверь с ручным управлением, одностворчатая
pdf 128.531 KB
Автоматическая дверь Saino Model 1100 с приводом 1900, одностворчатая
pdf 146,46 КБ
Saino Model 1101 Дополнительные элементы, центральная часть
pdf
80.
255 KB
Saino Model 1101 Дверь с ручным управлением, Центральная перегородка
pdf 133,132 КБ
Автоматическая дверь Saino Model 1101 с приводом 1900, центральная перегородка
pdf 153.956 KB
Дверь без маркировки
pdf 100.175 KB
Saino модель 1001 2001 г. ручная система закрывания дверей с центральным разделением
pdf 157,246 КБ
AirGard Valance
pdf 263,732 КБ
AirGard 100 Bi-Parting
pdf 84.704 КБ
AirGard 100-50 Bi-Parting
pdf 165,273 КБ
AirGard 100-50-CSE Bi-Parting
pdf
174.
268 КБ
AirGard 100-50-CSE-VAL Bi-Parting
pdf 120.09 КБ
AirGard 100-50-E Bi-Parting
pdf 115 717 КБ
AirGard 100-E Bi-Parting
pdf 173,335 КБ
AirGard 100-AA Bi-Parting
pdf 164,632 КБ
AirGard 100 Single
pdf 161,515 КБ
AirGard Valance
pdf 263.732 KB
Гибкая виниловая дорожная дверь AirGard 100
pdf 168.08 KB
AirGard 100 Гибкая виниловая дорожная дверь
pdf
127.
159 КБ
AirGard 200 Bi-Parting
pdf 171.334 КБ
AirGard 200-50 Bi-Parting
pdf 172.759 КБ
AirGard 200VI-50 Bi-Parting
pdf 175,104 КБ
AirGard 200 Single
pdf 171.334 КБ
AirGard 200VI — Bi-Parting
pdf 175,104 КБ
Расположение отверстия AirGard
pdf 17.357 KB
Гибкая виниловая дорожная дверь AirGard 200
pdf 123.093 KB
AirGard 300 Двустворчатая гибкая ударопрочная виниловая дверь
pdf
168.
165 KB
AirGard 300 Double Dutch BiParting Гибкая виниловая противоударная дорожная дверь
pdf 167.751 KB
AirGard 300 BiParting с гибкой ударопрочной виниловой дверцей Valance
pdf 169.827 KB
AirGard 300 Однопанельная гибкая ударопрочная виниловая дверь
pdf 165.36 KB
AirGard 300 Гибкая виниловая противоударная дорожная дверь AirGard 300
pdf 167.608 КБ
AirGard 300NF-50 Bi-Parting
pdf 165,146 КБ
AirGard Valance
pdf 263,732 КБ
Расположение отверстий AirGard 300
pdf
17.
357 KB
Гравитационный кронштейн AirGard 300 и варианты крепления
pdf 214.096 KB
Гибкая виниловая дорожная дверь AirGard 300
pdf 126,28 КБ
AirGard 973 Bi-Parting
pdf 167,166 КБ
AirGard 973 Одинарный
pdf 161,821 КБ
Обшивка AirGard
pdf 263.732 KB
AirGard 973 Гибкая виниловая дверь
pdf 134.609 KB
Двустворчатая дверца AirGard EconoClear
pdf 204,8 КБ
Сменный кронштейн AirGard Econoclear
pdf
43.
054 KB
AirGard Uniflex 240 Двустворчатая гибкая виниловая противоударная дорожная дверь
pdf 109.272 KB
AirGard Uniflex 240 BiParting w/Transom Гибкая виниловая противоударная дорожная дверь
pdf 112.27 KB
AirGard Uniflex 240 Однопанельная гибкая противоударная виниловая дверь
pdf 105.637 KB
AirGard uni flex 240 Гибкая виниловая дорожная дверь
pdf 129.183 KB
Комплект деталей AirGard Чертеж
pdf 361,835 КБ
AirGard Uni Flex 240 Single
pdf 105.637 KB
AirGard Uni Flex 240 Транец двусторонний
pdf
112.
27 КБ
AirGard Uni Flex 240 Bi Parting
pdf 109.272 KB
AirGard Uni Flex 240 Детали гибких дверей Чертеж
pdf 129.183 КБ
AirGard 300 Bi Parting
pdf 167 608 КБ
AirGard 300 50 Bi Parting
pdf 168,165 КБ
AirGard 300 50 Одноместный
pdf 165.36 KB
AirGard 300 Чертеж деталей гибких дверей
pdf 126.28 КБ
AirGard 300 50 VAL Bi Parting
pdf 169.827 КБ
AirGard 300 50 DD Bi Parting
pdf 167,751 КБ
AirGard 200 Детали гибких дверей Чертеж
pdf
123.
093 KB
AirGard 100 50 Чертеж деталей
pdf 168.08 KB
AirGard 100 50 E Чертеж деталей
pdf 127.159 КБ
Однодверный EconoClear
pdf 215.773 КБ
Гравитационный кронштейн и варианты крепления
pdf 214.096 KB
Гравитационный кронштейн и варианты крепления
pdf 214.096 KB
Спецификация гибкой двери AirGard 300
pdf 152,472 КБ
Чертеж Polar-Pro
pdf 966,591 КБ
Погрузочная площадка/рулонные шторы
Дверь Bird Pro в сборе с домкратом
pdf 560,777 КБ
Дверной узел Vinyl-Pro с приводом домкрата
pdf
560.
777 KB
Чертеж внутритрубного двигателя Screen-Pro
pdf 281,645 КБ
Моторизованный экран-Pro Чертеж
pdf 280,79 КБ
Подпружиненный экран-Pro Drawing
pdf 223.062 KB
Чертеж рейки
pdf 175,391 КБ
Полосовая дверь
Дверь с гармошкой Чертеж
pdf 1,112 МБ
Типы фурнитуры для полосовых дверей
pdf 847.416 KB
Типы дверной фурнитуры Save-T Loc®
pdf 515.976 KB
Чертеж двери грузового автомобиля
pdf
714.
285 KB
Чертеж оборудования дверцы полосы
pdf 935.564 KB
Чертеж фурнитуры для верхней планки двери
pdf 183.954 KB
Кронштейн дверной полосы
pdf 539.955 KB
Раздвижная полосовая дверь TMI
pdf 1.681 MB
Проекция монтажного кронштейна на потолочную дверь
pdf 861.975 KB
Верхний дверной кронштейн для стандартных условий эксплуатации
pdf 1.31 MB
Дверь-гармошка с электроприводом
pdf 2,35 МБ
Трафик
Чертеж деталей для проходной двери розничного продавца Durulite 180-градусная петля
pdf
423.
407 KB
Чертеж деталей проезжей части Durulite
pdf 498,453 КБ
Proline 300i Чертеж проходной двери
pdf 37.554 KB
PROLINE 400 I Чертеж проходной двери
pdf 46,634 КБ
Proline 300s & 400s Детали дорожных ворот Чертеж
pdf 323.021 KB
Proline 300i Детали проезжей части Чертеж
pdf 108.912 KB
Proline 400i Детали проезжей части Чертеж
pdf 109.511 KB
Чертежи деталей для стандартной проходной двери Durulite с шарниром 90 градусов
pdf 510.026 KB
Чертежи деталей для стандартной проходной двери Durulite с шарниром 180 градусов
pdf
485.
324 KB
Чертежи деталей промышленной проходной двери Durulite с шарниром 90 градусов
pdf 505.214 KB
Чертежи деталей промышленной проходной двери Durulite с шарниром 180 градусов
pdf 485.324 КБ
R25 Чертеж деталей
pdf 341.754 KB
Durulite R25 Bi Чертеж разделительной двери
pdf 234.778 KB
Усиленное уплотнение верхней петли
pdf 88.078 KB
Положение отверстия для болта на жатке
pdf 94,461 КБ
Durulite Розничный продавец XHD Чертеж
pdf 99.627 КБ
Однодверный магазин Durulite
pdf 219,196 КБ
Door Drawing Stock-Fotos und Bilder
- CREATIVE
- EDITORIAL
- VIDEOS
- Beste Übereinstimmung
- Neuestes
- Ältestes
- Am beliebtesten
Alle Zeiträume24 Stunden48 Stunden72 Stunden7 Tage30 Tage12 MonateAngepasster Zeitraum
- Lizenzfrei
- Lizenzpflichtig
- RF und RM
Lizenzfreie Kollektionen auswählen >Editorial-Kollektionen auswählen >
Bilder zum Einbetten
Durchstöbern Sie 5.
819 door drawing Stock-Fotografie und Bilder. Oder starten Sie eine neuesuche, um noch mehr Stock-Photografie und Bilder zu entdecken. tür und kritzeleien — рисунок двери сток-график, -клипарт, -мультфильмы и -символыГеоргианский тюр – детали — рисунок двери сток-график, -клипарт, -мультфильмы и -символдетские рисунки на двери холодильника — рисунок двери сток-фотографии и изображениякавказский отец наблюдая, как сын рисует на стене карандашом — рисунок двери стоковые фотографии и рисунки дверей стоковые фотографии и рисунки дверей стоковые рисунки, клипарты, мультфильмы и символы фотографии и рисунки на дверях холодильника рисунки дверей стоковые фотографии и рисунки дверей стоковые фотографии и рисунки дверей — рисунок двери сток-график, -клипарт, -мультфильмы и -symbolehand gezeichnet nicht stören symbol mit bearbeitbaren strich гравюра, veröffentlicht 1897 — рисунок двери сток-график, -клипарт, -мультфильмы и -symbolekreisförmige farbstreifen Hintergrund prasseln die hand — рисунок двери сток-график, -клипарт, -мультфильмы и -symbolehund warten — рисунок двери сток-график, -клипарт, -мультфильмы и -symboleoffene wohnung tür und fußmatte zeichnung — рисунок двери сток-график, -клипарт, -мультфильмы и -symbolesilverlake воображаемый с окуня в Елисейском парке — рисунок двери сток-фотографии и бильдерштадтбилд стрихцейхнунг — рисунок двери сток-график, -клипарт, -мультфильмы und -symbolekleines freistehendes haus zeichnung — чертежи дверей сток-график, -клипарт, -мультфильмы и -symboleoffene tür zeichnung — чертежи дверей сток-график, -клипарт, -мультфильмы и -symboleeinfache türen und fenster — чертежи дверей сток-график, -клипарт , -cartoons und -symboledünne linie home Improvement diy-symbol — стоковая графика для рисования дверей, -clipart, -cartoons und -symboleoffene türen — рисунок двери, стоковая графика, -clipart, -cartoons und -symboleportrait веселой девушки, прячущейся за дверью на фоне рисунка на стене — рисунок двери стоковые фотографии и бильдерархитектур — рисунок двери стоковые изображения, -клипарт, -мультфильмы и -символы внутренней архитектуры, умирают в ихрем бюро работ — рисунок двери стоковые фотографии и бильдероффен треппе в ein modernes gebäude — рисунок двери сток-фото и билдербелый люкс schlafzimmer interior — рисунок двери сток-фото и билдергешлоссене тюр цейхен цейхнунг — рисунок двери сток-графика, -клипарт, -мультфильмы и -символ藍色網絡上的鎖 — рисунок двери -fotos und bilderschwarz-weiße tür cartoon für kinder dies ist eine vektorillustration für vorschul- und heimtraining für eltern und lehrer.
— дверной рисунок сток-график, -клипарт, -мультфильмы и -символ радужной тропы — дверной чертеж сток-фотографии и бильдеркранкенхаус архитектонишен план цейхнунг — дверной рисунок сток-график, -клипарт, -мультфильмы и -символикон-набор-иконок — дверной рисунок сток -grafiken, -clipart, -cartoons und -symbolearchitektonischen plan, technische zeichnung eingang — сток-графика для рисования дверей, -clipart, -cartoons und -symbolehand gezeichnethaus-symbol mit editierbaren strich — рисунок двери сток-grafiken, -clipart, -cartoons und -symbolearchitektur blueprint-detailarbeit — рисунок двери сток-фото и современный дом — рисунок двери сток-графика, -клипарт, -мультфильмы и -symbolenachricht für den weihnachtsmann — рисунок двери сток-фотографии и изображение конструкции editierbare strichliniensymbole — рисунок двери сток-графика, — клипарт, -cartoons und -symboleshop — стоковая графика для рисования дверей, -clipart, -cartoons und -symbolereal-estate hintergrund — рисунок двери стоковая графика, -clipart, -cartoons und -symbolearchitekten und ingenieure sprechen über den baufortschritt im gebäude — рисунок двери stock-fotos und bildergirl в очках vr ходьба бросила воображаемое раскрашенное открытие двери ночью — рисунок двери stock-fotos und bilderhaus planen architektonischen zeichnung — рисунок двери stock-grafiken, -clipart, -мультфильмы и -символыдетские рисунки на двери холодильника — рисунок двери стоковые фотографии и изображениякрупный план изображения на холодильнике — рисунок двери стоковые фотографии и изображения запуск солнечной панели — рисунок дверей стоковые графики, -клипарт, -мультфильмы и -символинтерьер в современном стиле autos — дверные чертежи стоковые фотографии и билдермагазины — дверные чертежные стоковые изображения, -клипарты, -карикатуры и -символы hausarbeit muster — дверные чертежные стоковые графические изображения, -клипарты, -мультфильмы и -символы архитектурный план — дверные чертежные стоковые изображения, -клипарт, -мультфильмы и -символы предпринимателей, работающих за столом в современном офисе awing stock-grafiken, -clipart, -cartoons und -symbolefamily холодильник с магнитами — рисунок двери stock-fotos и bildergeorgian терраса дом — рисунок двери stock-grafiken, -clipart, -cartoons und -symboleabstract геометрические радужные ворота пастельных тонах фон.

Вместо последней можете использовать равнополочный уголок 45 х 3 мм.
