Дом 6 на 10 одноэтажный, план и планировка дома, цена.
Проект загородного дома с планировкой. ОД№66
Темпы строительства загородных жилых объектов постоянно наращиваются и это вызвано возросшим спросом на такое жилье. Горожане стремятся сменить небольшую квартиру на чудесный загородный дом 6 на 10 одноэтажный, чтобы улучшить свои условия проживания и сменить шум и суету мегаполиса на тишину, и красоту первозданной природы. Кроме самого строения из профилированного бруса, возведенного на свайном фундаменте, покупатель получает плодородный участок в придачу, где сможет посадить молодой сад, малину, смородину, клубнику и выращивать овощи на своем огороде. Надежной крышей дому служит конструкция, покрытая металлочерепицей. Участок по периметру огражден деревянным забором. Вокруг строения уложена тротуарная плитка, нею же вымощены и садовые дорожки. В доме современные окна ПВХ и прочная металлическая дверь, к которой ведут деревянные ступени. Прямо за домом приветливо качают ветвями вековые сосны и ели. Окружающие пейзажи просто завораживают.
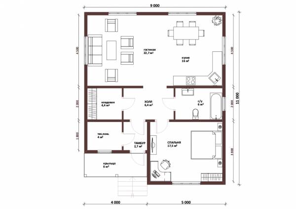
Впереди строения находится эркер 9,31 кв.м., откуда вход ведет в гостиную 21,52 кв. м. Кроме того, внутри имеется кухня и спальня размером 10,48 квадратных метра каждая. Как видим, в таком доме можно с комфортом проживать небольшой семьей.
Проект: ОД-66
Размеры: 6х10 м., из них эркер 6х2 м.
Площадь: 51,79 кв.м.
Этажность: один этаж
Тип материала: брусовое исполнение
Цена: профилированный брус 100х150 мм.(толщина стены 10см.): 000.000 руб
Цена: профилированный брус 150х150 мм.(толщина стены 15см.): 000.000 руб
Цена: профилированный брус 150х200 мм.
(толщина стены 20см.): 000.000 рубТип материала: каркасное исполнение
Цена: комплектация «Дачная» (плитный утеплитель Rockwool - 100мм.): 000.000
Цена: комплектация «Под ПМЖ» (плитный утеплитель Rockwool - 200мм.): 000.000
Цена: комплектация «Под отделку»(готовый каркас с кровлей без отделки внутри): 000.000
Техническое описание:
| Фундаменты Столбчатый: | Предлагаем три варианта фундамента. Опорно-столбчатый фундамент. Базовый и доступный фундамент, столбчатый на опорах из блоков. Блок с размерами 20х20х40см, в одной опоре 4 шт. блока (высота над землёй) 40см. Подробнее столбчатый фундамент |
|---|---|
| Свайный: | Свайно-винтовой фундамент. Длинна сваи металлической 2,5 м., диаметр ствола 108 мм., толщине стенки ствола 4 мм., диаметр лопасти 300 мм. и толщина лопасти 4-5 мм. рабочая нагрузка на винтовую сваю составляет не менее 4 т. (По СНиП 2.02.03-85. Свайные фундаменты).Снаружи свая покрывается антикоррозийным составом до монтажа. Подробнее свайный фундамент |
| Ленточный: | Ленточный мелкозаглубленный фундамент. Основные размеры армированной бетонной ленты 40х20, 70 х20, 30х80 см. В монтаж входит рытье траншей, устройство опалубки, арматурного каркаса, заливка готовой бетонной смесью, доставляемой миксером на объект, устройство продухов в цоколе. Подробнее ленточный фундамент |
| Обвязка | Брус целиковый 150х150 мм Подробнее обвязка |
| Половые лаги: | Брус 100х150 мм, через 90-100 см. Подробнее лаги |
| Капитальные стены: | Строганный профилированный брус 95х145 (145х145мм, 190х145мм), на джутовом полотне. Подробнее профилированный брус |
| Джут: | Межвенцовый утеплитель «джут», джутовое волокно прокладывается между рядами бруса. Подробнее джут |
| Тип рубки: | Тип рубки стен сруба «в тёплый угол»(шип-паз) Подробнее рубка углов |
| Стены 1-го этажа: | Строганный профилированный брус 95х145мм на джуте. Подробнее перегородки 1 этажа |
| Стены 2-го этажа: | Нет |
| Фронтоны: | Брусовые: строганный профилированный брус 95х145мм (145х145мм 190х145мм) Подробнее фронтон. Или каркасно-щитовые (с отделкой вагонкой) |
| Утепление: | Пол и потолок на 100мм, утеплитель «ursa» (или аналоги), с прокладкой пароизоляционной плёнки. Подробнее утепление |
| Двери: | Входная – металлическая. Филенчатые, обналиченные, без фурнитуры, размером 2х0,8 м. Подробнее двери |
| Окна: | Деревянные с двойным остеклением, с фурнитурой, обналиченные, размером 1,0х1,2 м. Подробнее окна |
| Стропила: | Стропила из доски 40х150мм с шагом не более 0,9м Подробнее стропила |
| Обрешётка: | Обрешетка выполняется из обрезной доски толщиной 20 мм с шагом не более 400мм. Подробнее обрешётка |
| Кровля: | Ондулин (на выбор: красный, зеленый, коричневый). Подробнее ондулин и кровля |
| Пол черновой: | Конструкция пола состоит из пирога: черновой – обрезная доска 20 мм, чистовой – шпунтованная доска 28 мм, с парогидроизоляцией изоспан и утеплением «ursa» (100 мм). Подробнее черновой пол |
| Пол чистовой: | Чистовая доска пола шпунт 28мм. Подробнее чистовой пол |
| Высота: | Высота этажа – 2,5 м. (18 венцов). |
| Потолки: | Потолки подшиваются сухой вагонкой, сорт B. Подробнее потолки |
| Пароизоляция: | Паро- и гидроизоляционные «изоспан» («ондутис»). Подробнее пароизоляция |
| Лестница: | Лестница деревянная на второй этаж одномаршевая(двухмаршевая) с перилами и ограждением из резных балясин. Подробнее лестницы |
| Карнизы: | Карнизы (свесы), поднебесники подшиваются вагонкой. Подробнее карниз |
| Наличники: | Наличники на оконные или дверные проёмы с двух сторон |
| Углы внутри: | На все стыки потолка,стен и пола прибивается плинтус |
| Углы стен снаружи прикрываются наличниками |
↓ ↓ ↓
Дополнительно к комплектации можно заказать:
>>> подробнее дополнительные услуги
Перечень материалов, применяемых в строительстве
Собственное производство профилированного бруса
>>> подробнее о производстве
Одноэтажные дома из профилированного бруса — проекты с фото и ценами, строительство под ключ недорого
Метки: с террасой, 6 на 6, 8 на 8, 9 на 6, до 100 кв.м.
Красивые и неординарные одноэтажные дома из бруса – жилье для современных людей
Мечтаете об уютном и благоустроенном жилье в черте города или за его пределами? Тогда обратите внимание на современные одноэтажные брусовые дома от компании «Русская построечка». В последнее время подобные строения пользуются повышенным спросом среди застройщиков. Мы предлагаем строительство одноэтажных домов из профилированного бруса естественной влажности (комплектация «Сруб под крышу») или камерной сушки (комплектация «ПМЖ с отделкой»).
В каталоге предсталено 25 проектов одноэтажных домов из бруса, для каждого из которых есть 3D-модели фасадов, планировки, описание комплектаций, а также цена строительства под усадку и под ключ.
Выберите один из предоставленных вариантов или закажите разработку проектной документации с учетом своих индивидуальных пожеланий и потребностей.
Преимущества деревянных одноэтажных домов из бруса
- Красивый и необычный внешний вид. Дома из бруса выглядят очень привлекательно и колоритно, а внеся коррективы в проект, например, добавив террасу, веранду, большие окна в пол, вы сможете стать владельцем оригинального, единственного в своем роде жилища.
- Огромное количество вариантов дизайна и планировки. Это позволит построить идеальный дом вашей мечты. На выбор застройщикам предлагается множество стилевых и архитектурных решений.
- Безопасность. Так как по проекту отсутствуют лестницы, одноэтажный дом становится идеальным вариантом для пожилых людей, а также семей с маленькими детьми.
- Экологичность. Дома строятся из натуральной древесины хвойных пород без использования вредных средств и смесей. Использование бруса позволяет возводить дома с высокой степенью защиты от шума, влаги, низких температур и других негативных факторов.
- Низкая цена. Строительство дома в 1 этаж доступно для людей с различным уровнем доходов. Наша компания изготавливает брус на собственном производстве, что исключает из цепочки посредников.
- Короткие сроки возведения. Одноэтажные дома строятся за 10-30 дней (в зависимости от сложности проекта).
Примеры готовых работ
|
Ленинградская область, Кировский район, Синявино-1, СНТ Приозёрное. Брусовый дом по проекту «Капитан 2-го ранга» размером 12,0х8,0. Строительство дома подробнее… |
Уважаемый Александр Юрьевич, каким красивым стал Ваш замечательный брусовый дом, после второго этапа отелочных работ. Благодарим, что остались с нами и доверили завершить строительство. подробнее… |
|
Уважаемый Вячеслав Дмитриевич, владелец дома 8х8 м по проекту № 63.1 на сайте СК «Русская построечка», спасибо Вам за доверие и приятное общение подробнее… |
|
ЛО, Лужский р-н, д. Наволок, ул. Приозерная. Знакомство с Алексеем состоялось на выставке ЭкспоДом в Кудрово в нашем павильоне – выставочном доме из бруса, подробнее… |
|
Самарская обл., Кинельский р-н, с. Сырейка, КП Хутор Пасека. Уважаемая Ольга Викторовна с самого начала хочется от лица всей нашей Компании выразить Вам благодарность за подробнее… |
|
Данный проект замечательный пример строительства большого и красивого брусового дома 12,5х8,0 м по задумке Александра Юрьевича. Место строительства ЛО, Кировский р-н, поселок Назия. Познакомились мы на выставке ЭкспоДом Кудрово подробнее… |
Уже многие наши клиенты смогли по достоинству оценить все преимущества строительства одноэтажных домов из бруса и комфортного проживания в них.
Работаем в регионах
ЦФО (Москва и Московская область (Подмосковье), Белгород и Белгородская область, Брянск и Брянская область, Владимир и Владимирская область, Воронеж и Воронежская область, Иваново и Ивановская область, Калуга и Калужская область, Кострома и Костромская область, Курск и Курская область, Липецк и Липецкая область, Орел и Орловская область, Рязань и Рязанская область, Смоленск и Смоленская область, Тамбов и Тамбовская область, Тверь и Тверская область, Тула и Тульская область, Ярославль и Ярославская область).
СЗФО (Санкт-Петербург и Ленинградская область, Мурманск и Мурманская область, Архангельск и Архангельская область, Великий Новгород и Новгородская область, Вологда и Вологодская область, Петрозаводск и Республика Карелия, Сыктывкар и Республика Коми, Псков и Псковская область).
Сомневаетесь в выборе?
Для нас важен каждый клиент!
Оставьте свой номер телефона —
и мы сделаем предложение, от которого Вы не сможете отказаться!
Попробуйте удивить меня!
Одноэтажные дома из бруса — недорогие проекты и цены. Заказать строительство под ключ
Модные веяния последних лет привели к популяризации загородного строительства или приобретения загородных коттеджей и домов. Во многом это объясняется желанием жить за пределами шумного города, насыщенного воздухом с вредными примесями и с возможностью обустроить личный участок по своему усмотрению. Качественные одноэтажные дома из бруса, без сомнения, это вклад в собственное будущее!
Одноэтажные дома из бруса — проекты с ценами
Проект Д-1
- Дом из бруса 6 на 6
- гостиная, терраса
- прихожая туалет
- Площадь: 36 м2
- Цена от 403 900 р
Проект Д-2
- Дом из бруса 6 на 6
- гостиная, спальня
- прихожая, терраса
- Площадь: 36 м2
- Цена от 441 400 р
Проект Д-3
- Дом из бруса 6х8
- гостиная-кухня
- 2 спальни, С/У
- Площадь: 48 м2
- Цена от 566 600 р
Проект Д-4
- Дом из бруса 6х9
- гостиная, прихожая
- 2 спальни
- Площадь: 54 м2
- Цена от 536 200 р
Проект Д-5
- Дом из бруса 6 на 9
- гостиная-кухня
- спальня, туалет
- Площадь: 54 м2
- Цена от 561 200 р
Проект Д-6
- Дом из бруса 9 на 9
- гостиная, кухня, С/У
- 2 спальни, котельная
- Площадь: 72 м2
- Цена от 912 300 р
Проект Д-7
- Дом из бруса 6 на 8
- гостиная, терраса
- 2 спальни
- Площадь: 48 м2
- Цена от 466 800 р
Проект Д-8
- Дом из бруса 6 на 8
- гостиная, терраса
- 2 спальни, прихожая
- Площадь: 48 м2
- Цена от 490 600 р
Проект Д-9
- Дом из бруса 6 на 9
- гостиная-кухня
- терраса, С/У, тамбур
- Площадь: 58 м2
- Цена от 556 100 р
Проект Д-11
- Дом из бруса 8 на 8
- гостиная-кухня
- 2 спальни, туалет
- Площадь: 64 м2
- Цена от 673 500 р
Проект Д-10
- Дом из бруса 9 на 9
- гостиная, кухня
- 2 спальни, туалет
- Площадь: 81 м2
- Цена от 933 700 р
Проект Д-12
- Дом из бруса 8 на 8
- гостиная-кухня, С/У
- спальня, веранда
- Площадь: 64 м2
- Цена от 651 000 р
Проект Д-13
- Дом из бруса 8 на 8
- гостиная-кухня, С/У
- 2 спальни, прихожая
- Площадь: 64 м2
- Цена от 620 000 р
Проект Д-14
- Дом из бруса 7 на 7
- гостиная, кухня
- туалет, прихожая
- Площадь: 49 м2
- Цена от 520 100 р
Проект Д-15
- Дом из бруса 7 на 8
- гостиная-кухня
- 2 спальни, туалет
- Площадь: 56 м2
- Цена от 593 100 р
Проект Д-16
- Дом из бруса 7 на 9
- гостиная, прихожая
- 2 спальни, туалет
- Площадь: 63 м2
- Цена от 623 600 р
Проект Д-17
- Дом из бруса 8 на 9
- гостиная, кухня, С/У
- 2 спальни, котельная
- Площадь: 84 м2
- Цена от 953 300 р
Проект Д-18
- Дом из бруса 8 на 10
- гостиная-кухня, С/У
- спальня, прихожая
- Площадь: 80 м2
- Цена от 718 000 р
Проект Д-19
- Дом из бруса 8 на 12
- гостиная-кухня, С/У
- 2 спальни, котельная
- Площадь: 96 м2
- Цена от 1 030 200 р
Проект Д-20
- Дом из бруса 6 на 7
- гостиная-кухня
- прихожая, туалет
- Площадь: 42 м2
- Цена от 426 300 р
Проект Д-21
- Дом из бруса 7 на 8
- гостиная-кухня
- спальня, терраса
- Площадь: 53 м2
- Цена от 536 000 р
Проект Д-22
- Дом из бруса 7 на 8
- гостиная-кухня, С/У
- спальня, терраса
- Площадь: 56 м2
- Цена от 588 700 р
Проект Д-23
- Дом из бруса 4 на 8
- гостиная-кухня
- тамбур, терраса
- Площадь: 32 м2
- Цена от 349 900 р
Проект Д-24
- Дом из бруса 5 на 8
- гостиная-кухня, С/У
- тамбур, спальня
- Площадь: 40 м2
- Цена от 458 600 р
Проект Д-25
- Дом из бруса 9 на 6
- гостиная-кухня
- терраса, спальня
- Площадь: 56 м2
- Цена от 500 200 р
Проект Д-26
- Дом из бруса 7х8,5
- гостиная-кухня
- терраса, спальня
- Площадь: 49 м2
- Цена от 515 500 р
Проект Д-27
- Дом из бруса 9х9
- гостиная-кухня, С/У
- котел, 2 спальни
- Площадь: 81 м2
- Цена от 794 200 р
Проект Д-28
- Дом из бруса 7х10
- гостиная-кухня, С/У
- парная, 2 спальни
- Площадь: 70 м2
- Цена от 889 200 р
Проект Д-29
- Дом из бруса 7х9
- гостиная-кухня, С/У
- прихожая, 2 спальни
- Площадь: 63 м2
- Цена от 784 900 р
Проект Д-30
- Дом из бруса 9х12
- гостиная-кухня, сауна
- котел, С/У, 3 спальни
- Площадь: 108 м2
- Цена от 1 332 300 р
Проект Д-31
- Дом из бруса 9х9
- гостиная, кухня, котел
- тамбур, С/У, 2 спальни
- Площадь: 81 м2
- Цена от 1 023 300 р
Проект Д-32
- Дом из бруса 8х12
- кухня-гостиная, котел
- тамбур, С/У, 3 спальни
- Площадь: 96 м2
- Цена от 1 105 900 р
Проект Д-33
- Дом из бруса 8х11
- кухня-гостиная, котел
- 2 террасы, 2 спальни
- Площадь: 88 м2
- Цена от 1 043 100 р
Проект Д-34
- Дом из бруса 6х10
- кухня-гостиная, С/У
- крыльцо, 3 спальни
- Площадь: 60 м2
- Цена от 897 100 р
Проект Д-35
- Дом из бруса 8х13
- кухня-гостиная, С/У
- котел, 3 спальни
- Площадь: 104 м2
- Цена от 1 420 000 р
Проект Д-36
- Дом из бруса 9х10
- гостиная, С/У, котел
- терраса, 3 спальни
- Площадь: 90 м2
- Цена от 1 100 400 р
Одноэтажные дома из бруса недорого — рентабельное вложение средств!
Сам факт постройки одноэтажного деревянного дома требует внимательного изучения проектной документации, приобретения материалов и подводки систем жизнеобеспечения.
Придется лишь обратить особое внимание на разводку электросети, водопроводных и канализационных коммуникаций. Сложность строительства может заключаться в доставке материала, поскольку не все поселки, выделенные для загородного строительства, имеют безупречно ровные дороги. Как правило, проекты одноэтажных домов разных типов не отличаются большой стоимостью, даже масштабные, располагающие немалой вспомогательной площадью (подсобными помещениями, гаражами, террасами, верандами, балконами).
Для постройки одноэтажного брусового дома любого размера, предлагаются уже готовые проекты. Наша компания, силами всего одной бригады осуществляет постройку из готового комплекта материалов. Получая набор пиломатериалов с производственной базы, бригадир обращает внимание на качество материала, принимает материал, рабочие укрывают его от дождя и ветра. При сборке сруба дома или бани из бруса, строители соблюдают технологию строительства домов из бруса.
Достоинства одноэтажных домов
К основным преимуществам и достоинствам, которыми обладают одноэтажные дома из бруса, относятся:
- Облегченность фундамента.
- Удобство в эксплуатации и обслуживании.
- Экономичность в объемах работ и использовании материалов.
- Легкость постройки.
Построить сегодня одноэтажные дома из бруса недорого и относительно легко. Глубокие строительные познания, чтобы возвести дом в один этаж, потребуются с целью его качественного монтажа. Мастера достаточно грамотно и последовательно разбираются в технологии сборки, даже в большей степени это касается, когда мы строим двухэтажные дома. Объемы предстоящих работ не так велики, как может показаться. Все будет зависеть от выбранного стиля, размеров и правильного планирования. Документы готовых проектов уже сами по себе служат руководством к сборке дома из бруса, в соответствии с четкой маркировкой предоставленных материалов. Что немаловажно — одноэтажный дом из бруса средней площади возводится всего за 1-2 недели, если речь не идет о срубах на усадку, отделочные работы в таком случае, выполняется на следующий год после возведения.
Строительство одноэтажных домов из бруса — современное решение
Одноэтажные дома из бруса считаются хорошим решением с точки зрения экономики, архитектуры и стремительности возведения. Коттеджная постройка с использованием бруса и окружающий ее участок будут целостно взаимодействовать с окружающей средой. Одноэтажные брусовые дома прекрасно впишутся в ландшафтную картину загородного естества.
В немалой степени свое влияние оказывают современные технологии способствующие сближению с внешним окружающим пространством. Например, современные проекты домов из бруса предлагают варианты инстоляций, значительно увеличенные площади остекления и раздвижные конструкции, которые пользуются повышенным вниманием у потенциальных владельцев.
Дома из бруса под ключ в Екатеринбурге, недорого, готовые проекты и цены
Акция «МАЙСКАЯ»- При заключении договора на строительство дома или бани из бруса + покупка бытовки — доставка бытовки в пределах 30 км БЕСПЛАТНО
- При заключение договора на строительство дома и бани из бруса — скидка на работы по строительству бани 10%
При заключении договора на строительство бани или дома из бруса до 31 мая, скидка на отделочные работы 15% + При строительстве в мае дополнительная скидка на работы 5%
ВНИМАНИЕ! Скидки суммируются. В акции не участвуют дом и баня по СПЕЦПРЕДЛОЖЕНИЮ
Подробности в офисах продаж
Одним из важнейших направлений современного строительства является строительство домов из бруса для сезонного или постоянного проживания. Такие постройки возводятся очень быстро, при этом – без потерь в качестве. Из дерева создаются не просто здания с помещениями внутри. Они представляют собой отдельный вид искусства, в котором находится место как новым материалам и технологиям, так и традициям, дошедшим до нас через сотни лет. Любите теплоту и уют, исходящие от древесины? Это показатель хорошего вкуса!
дом 6х8 с мансардой Проект №Б-60 от 444 215 р.
дом 6х8
Проект №Б-45 от 422 305 р.
дом 6х6
Проект №Б-30 от 312 845 р.
одноэтажный дом 8х8
Проект №Б-23 от 487 910 р.
двухэтажный дом 9х9
Проект №Б-19 от 921 840 р.
дом 6х10,5
Проект №Б-34 от 699 725 р.
дом 5х4
Проект №Б-57 от 225 870 р.
гостевой дом 5х5
Проект №Б-56 от 246 280 р.
садовый дом 4х5
Проект №Б-43 от 246 495 р.
дом-шалаш 4х6
Проект №Б-61 за 255 615 р.
дом 5х4
Проект №Б-63 от 264 070 р.
дом 6х5
Проект №Б-38 от 296 885 р.
дом 6х4 с террасой
Проект №Б-29 от 321 405 р.
дом 6х6
Проект №Б-13 от 327 175 р.
дом 5х5
Проект №Б-40 от 339 850 р.
дом 6х4
Проект №Б-4 от 384 830 р.
дом 6,0*6,0
Проек №Б-18/1 от 369 175 р.
дом 6х6
Проект №Б-27 от 369 800 р.
дом 6,0*7,5
Проект №Б-58 от 377 455 р.
дом 6,0*7,0
Проект №Б-24 от 390 775 р.
дом 6,0*6,0
Проект №Б-26 от 391 705 р.
дом 6,0*6,0
Проект №Б-18/2 от 413 860 р.
дом 6,0*8,0
Проект №Б-17 от 425 660 р.
дом 9,0*6,0
Проект №Б-47 от 440 130 р.
дом 6,0*9,0
Проект №Б-41 от 455 320 р.
дом 5,7*8,5
Проект №Б-42 от 446 930 р.
дом 6,0*7,0
Проект №Б-28 от 470 045 р.
Дом 6,0*6,0
Проект №Б-14 от 474 730 р.
дом 6,0*6,0
Проект№Б-31 от 475 020 р.
НОВИНКА
Проект №Б-48 от 499 455 р.
дом 8,0*6,5
Проект №Б-1 от 523 765 р.
дом 6,0*7,5
Проект №Б-5 от 530 875 р.
дом 6,0*9,0
Проект №Б-20 от 535 695 р.
дом 6х6
Проект №Б-12 от 551 750 р.
дом 8,0*8,5
Проект №Б-11 от 551 750 р.
дом 7,0*9,0
Проект №Б-46 от 562 440 р.
дом 6,0*9,0
Проект №Б-16 от 573 385 р.
дом 6,0*9,0
Проект №Б-25 от 582 900 р.
дом 8,0*8,5
Проект №Б-37 от 613 180 р.
дом 7,0*10,0
Проект №Б-33 от 615 660 р.
дом 7,0*7,0
Проект №Б-32 от 619 965 р.
дом 7,0*9,5
Проект №Б-8 от 632 520 р.
дом 6,0*7,5
Проект №Б-21 от 633 455 р.
дом 7,0*7,0
Проект №Б-50 от 646 414 р.
дом 8,0х9,0
Проект №Б-15 от 653 540 р.
дом 6,0*8,5
Проект №Б-22 от 665 915 р.
дом 7,3*8,0
Проект №Б-51 от 700 573 р.
дом 6,0*8,0
Проект №Б-7 от 703 185 р.
дом 7,5*8,0
Проект №Б-3 от 708 710 р.
дом 8,0*11,0
Проект №Б-55 от 729 300 р.
дом 9,0*7,0
Проект №Б-62 от 752 745 р.
дом 10,0*7,0
Проект №Б-59 от 806 456 р.
дом 8,0*14,0
Проект №Б-44 от 844 900 р.
дом 8,0*7,5
Проект №Б-49 от 852 755 р.
дом 7,5*7,5
Проект №Б-39 от 856 770 р.
дом 8,0*8,0
Проект №ПБ-21 от 882 517 р.
дом 12,5*8,8
Проект №Б-53 от 882 960 р.
дом 11,0*11,0
Проект №Б-6 от 908 630 р.
дом 8,0*17,0
Проект №Б-35 от 1 120 260 р.
дом 9,2*17
Проект №Б-52 от 1 156 225 р.
дом 6,9*10,5
Проект №Б-2 от 1 203 505 р.
дом 16,0*11,5
Проект №Б-54 от 1 339 310 р.
дом 11,5*13,0
Проект №Б-36 от 1 464 375 р.
дом 10,0*11,0
Проект №Б-9 от 1 775 034 р.К заказу предлагается множество уже готовых проектов на любой вкус. Впрочем, если среди представленных вариантов не найдется подходящий, то его можно изобрести самостоятельно – в режиме продуктивного, выгодного сотрудничества с архитекторами компании.
При необходимости стены снаружи или изнутри могут стать любой формы – гладкими, шероховатыми, с украшениями в виде резьбы или других элементов. Можно даже сделать дом из бруса на сваях. Кроме того, строительная древесина – это совсем не дрова, которые применяются для растопки (качества – совсем другие), поэтому ни огонь, ни гниение ей не страшны.
Кроме самого дома, к заказу доступны и другие строения (как с фундаментом, так и доступные для транспортировки). При этом все объекты на участке могут быть защищены от воздействия внешних факторов на любом уровне, поэтому (после соответствующей подготовки) будут способны выдержать как сильнейший мороз, так и самый палящий зной.
Проекты домов из бруса 6х4, 4 на 6
Д-2
Площадь: 40 м2 Срок: 15 дней
590 000v
Отправьте свой проект на рассчет
Проекты домов из бруса 4х6 с ценами
Если вы ищите базовые и необычные проекты домов из бруса 4 на 6 с мансардой или без неё (1 или 2 этажами), то рекомендуем вам обратиться в строительную компанию «Деревянный дом», успешно продолжающую свою активную рабочую деятельность на территории Санкт-Петербурга и в его пригороде (включая область). Только у нас для наших клиентов индивидуальный подход, приемлемые цены, возможность оплаты как наличным, так и безналичным способом, качественные и надёжные материалы от проверенных поставщиком и производителей, гарантии на долговечность и многое другое.
У нас вы можете заказать строительство домов из бруса под ключ и расчёт того или иного проекта. Эти жилые постройки можно описать тремя словами: надёжность, долговечность и безопасность (для здоровья человека; а в некоторой степени даже полезность).
Переходите на страницу сайта и просматривайте проекты домов из бруса 4×6 с ценами. Если немного глубже капнуть в историю, то вы узнаете, что ещё наши предки возводили дома из дерева. Технология строительства таких зданий была чуть ли ни одной из самых первых на Руси. Связано это наверняка с тем фактом, что большая часть площади нашей родины занята лесами. Посему и доступность такого материала, как дерево, была куда выше по сравнению с рядом других. Звоните нам по телефону, указанному на сайте, если вас интересует, сколько стоит тот или иной проект с внесением ряда изменений.![]()
Строительство одноэтажного и двухэтажного дома из бруса 6 на 4 под ключ
Строительная фирма «Деревянный дом» всегда подтверждает свои слова на деле! Ни один клиент компании не остался недоволен результатом работы наших профессиональных строительных бригад, грамотно скомплектованных прорабами, что позволяет значительно сэкономить стоимость оплаты труда. И это – правда, ведь оплата за конечный результат зависит от нескольких факторов. И если на материалах сэкономить практически нельзя, то за счёт уменьшения количества человек, занятых строительством одноэтажного и двухэтажного дома из бруса 6 на 4 под ключ, можно существенно снизить стоимость оплаты труда.
Все дома, возведённые нашими строителями, характеризуются высоким качеством, прочностью, экологичностью, долговечностью и доступностью. Вы можете выбрать самые разнообразные варианты, от одноэтажных домов, до двухэтажных, от обычных лоджий и балконов до просторных мансард, с террасой и без неё и так далее.
Будьте уверены, что мы сможем построить дом 6 на 4 из бруса по плану, заранее обговоренному с вами перед началом строительных работ. В стоимость уже созданных проектов входят все виды работ, начиная от транспортировки строительных материалов до места назначения и заканчивая работами по утеплению и отделке, в ходе которых используются исключительно высококачественные и инновационные материалы.
Купить брусовой дом 4 на 6 недорого
Помните о том, что у нас вы можете не только заказать строительство жилого здания, но и купить брусовой дом 4 на 6 недорого. Взгляните на чертёж дома из бруса 6×4 с балконом и двумя или полутора этажами. Отличный вариант для возведения загородного домика, где вы будете отдыхать от городской суеты и тяжёлого, грязного воздуха.
Если вы сторонник здорового образа жизни, против тех же монолитных построек и тому подобного, хотели бы защитить и себя, и своих близких от негативного воздействия вредных веществ, то просто обязаны сделать выбор в пользу домов из профилированного бруса 4 х 6, считающегося экологически чистым материалом.
Жилые строения, которые возводились из искусственных и синтетических материалов, таят в себе высокую опасность для здоровья человека.
Напоследок загляните на страницу, где указана планировка дачного дома из профилированного бруса 4×6. Размер бруса для возведения сруба с верандой или с эркером может быть разным и зависит от сборки дома под усадку. В смете указывается величина профиля бруса, которая может быть 100х100, 100х140, 100х150, 150х100, 150х150.
Бесплатная экскурсия на строящийся объект
Продолжительность: 120 мин (вместе с дорогой)
На экскурсии Вы сможете:
- Поближе познакомиться с особенностями строительства и технологии
- Сможете оценить качество используемых материалов
- Лично познакомиться с бригадой строителей
- Убедитесь в надежности наших домов
- Узнаете как построить дом на 20% дешевле
Запишитесь на экскурсию
Одноэтажные деревянные дома в Пензенской области под ключ: проекты и цены
Строительство одноэтажных деревянных домов в Пензенской области под ключ: проекты и цены
Строительство загородного жилья — ответственное решение, к реализации которого нужно подойти максимально вдумчиво и взвешенно. Потребуется учесть массу нюансов — от выбора материала и разработки проекта до поиска исполнителей на все этапы. Как видно, фронт работы предстоит немалый, однако можно упростить себе задачу, выбрав одноэтажные деревянные дома под ключ. Этот вариант позволит быстро получить заветные квадратные метры за городом, не переплачивая лишнего и не теряя много времени в ожиданиях.
Чем привлекательны проекты одноэтажных деревянных домов
Одноэтажные деревянные дома из бруса — классика частного домостроения. Их со многих точек зрения можно считать оптимальным выбором. В частности, в их пользу говорят повышенный комфорт и удобство, а также относительно невысокая стоимость. Натуральная древесина — распространённый строительный материал, поэтому красивые деревянные одноэтажные дома — это удовольствие, на которое не нужно долго копить деньги.
Есть ещё одна причина, по которой одноэтажные деревянные дома стоят дешевле, чем их аналоги из других материалов. Она заключается в том, что для строительства не требуется грузоподъёмная техника, а возвести стены можно на лёгком фундаменте. В общем, выгоды очевидны.
Основные плюсы одноэтажных домов из бруса
- Эстетичность. Брус отличается правильной формой и гладкой поверхностью. В результате поверхность стен после сборки конструкции получается идеально ровной.
- Экологичность. Древесина хвойных пород сама по себе является экологически чистой, а её смола обладает бактерицидными свойствами.
- Универсальность. Брус очень прост в обработке и удобен в использовании, поэтому с его помощью можно построить как типовые одноэтажные деревянные дома (фото таких домов размещены в нашем онлайн-каталоге), так и уникальные дизайнерские проекты.
- Энергоэффективность. Стены из бруса практически монолитны. Они надёжно защищены от продувания и эффективно сохраняют тепло внутри помещения.
- Высокая скорость строительства. Возведение одноэтажного дома из бруса обычно занимает не более 2–3 недель. После чего остаётся только дождаться завершения усадки.
Одноэтажные деревянные дома в Пензе и Пензенской области от «ЭКОДОМ-13»
Почему стоит доверить строительство деревянного дома под ключ нам? Ответ прост. «ЭКОДОМ-13» — это:
- Опыт. У нас работают специалисты, имеющие за плечами многолетний опыт деревянного домостроения, поэтому они в совершенстве владеют своим ремеслом.
- Надёжность. «ЭКОДОМ-13» — ответственный и порядочный партнёр, который гарантирует добросовестное отношение к своей работе и заботу об интересах клиентов.
- Контроль качества. На нашем производстве выполняется многоуровневый контроль качества. Это касается как самих материалов, так работы на всех её этапах (от производства заготовок до монтажа конструкции).

- Полный комплекс услуг. «ЭКОДОМ-13» строит деревянные дома под ключ. Мы выполняем всю работу — от закладки фундамента до финишной отделки. Вы только делаете заказ — всё остальное мы берём на себя.
- Выгодные акции и скидки. Цены на одноэтажные дома по готовым и индивидуальным проектам ещё ниже, благодаря постоянным акциям от компании «ЭКОДОМ-13». Мы дарим скидку молодоженам, пенсионерам и многодетным семьям, а также работаем с госпрограммами поддержки жилищного строительства.
Одноэтажные деревянные дома (проекты и цены)
На нашем сайте представлен каталог с проектами деревянных домов из бруса, который периодически пополняется новыми моделями. Посетив этот раздел, вы увидите современные и красивые одноэтажные дома, которые отличаются продуманной планировкой и доступной ценой. Возможно, среди готовых проектов вы найдёте то, что искали. А если нет, мы всегда готовы начать работу по вашему индивидуальному проекту!
Чтобы обсудить строительство дома под ключ, свяжитесь с нашим консультантом по бесплатному номеру 8 800 250-85-88 или закажите обратный звонок.
Доверьтесь компании «ЭКОДОМ-13», и мы построим для вас красивый дом из бруса с максимальной экономией средств и времени.
Одноэтажные дома из профилированного бруса под ключ недорого: проекты, фото и цены в Москве
Дома из профилированного бруса одноэтажные
Тенденция использования в повседневной жизни экологически чистых материалов, продуктов, а также борьба за чистоту окружающей среды не минула строительную индустрию. Все большее число наших граждан при покупке или постройке дома делают выбор в пользу деревянного строения. Именно этим объясняется тот факт, что одноэтажные дома из профилированного бруса пользуются спросом не только у частных застройщиков Москвы и Московской области, но других регионов нашей страны.
Для того чтобы стать собственником такой недвижимости наши соотечественники используют один из трех вариантов:
-
Приобретают построенные коттеджи из бруса.
-
Заказывают в строительной компании постройку под ключ.
-
Покупают готовый проект для возведения дома своими силами.
Следует отметить, что последний вариант для многих привлекателен тем, что предоставляется возможность сэкономить достаточно большую сумму на услугах строительной бригады, занимающейся сборкой коробки деревянного дома. Это связано с тем, что комплект профилированного бруса полностью подготавливается в заводских условиях для последующей сборки объекта на месте. Все детали и элементы изготавливаются в соответствии с проектом.
Но нужно понимать, даже имея большое желание, свободное время для самостоятельной сборки дома из профилированного бруса, большинство людей допускают ошибки, погрешности в процессе выполнения этой работы. Поэтому, чтобы избежать подобных проблем, лучшее решение – воспользоваться услугами той компании, которая не только проектирует дома, изготавливает сборочные комплекты, но и оказывает услуги по их возведению под ключ.
Компания «Мера-Строй» предлагает свои услуги всем заинтересованным лицам из Москвы и МО.
Преимущества
Профилированный брус – отличный материал для использования в малоэтажном зодчестве. Ведь дерево имеет не только привлекательный внешний вид и хорошие физико-механические характеристики, но и способствует созданию в помещениях благоприятного для здоровья микроклимата.
Проекты одноэтажных домов из профилированного бруса, разработанные профессионалами компании «Мера-Строй», обеспечивают своим владельцам следующие преференции:
-
Жить в экологически чистом, деревянном одноэтажном доме, имеющем тщательно просчитанную планировку.
-
В таком доме летом приятная прохлада, в морозную зиму – тепло и уютно.
Дом из профилированного бруса, в зависимости от его общей площади достаточно быстро собирается на подготовленном фундаменте. Время строительства варьируется в пределах 40-90 дней. Работы можно осуществлять в любое время года.
Сколько времени нужно, чтобы построить дом?
Прежде чем приступить к строительству дома и процессу покупки, многие хотят знать, на что они подписываются, в первую очередь в форме времени и денежных обязательств. При расчете стоимости дома, а также временных рамок, в течение которых можно ожидать завершения строительства, нужно многое сделать.
Такие факторы, как сложность проекта — земля, на которой строится дом, площадь, на которой строится дом, и сложность плана этажа дома — повлияют на сроки строительства.Строительство нестандартных домов может занять больше времени, чем готовых домов, в то время как готовые дома обычно могут быть построены за несколько месяцев.
Среднее время строительства дома
Согласно исследованию строительства 2019 года, проведенному Бюро переписи населения, среднее время завершения строительства дома на одну семью составляет около семи месяцев.
Предостережения и пояснения : Несколько факторов влияют на время, необходимое для строительства нового дома, причем двумя основными факторами являются «стиль строительства» (т.е., индивидуальный дом по сравнению с производственным домом), а также регион и / или среду, в которой строится дом. Среднее время строительства нового дома было рассчитано для этих различных сценариев.
Среднее время строительства по типу дома
| Тип дома | Среднее время строительства |
| Дома на заказ | 8,9 месяцев |
| Производственные дома | 6,1 месяца |
Это Ни для кого не удивительно, что строительство индивидуальных домов в среднем занимает больше времени, но в зависимости от ваших сроков, продолжительность может быть сопоставима с продолжительностью строительства дома, построенного в серийном производстве.
Среднее время строительства по регионам
| Регион и окружающая среда | Среднее время строительства |
|---|---|
| Северо-восток | 11,1 месяцев |
| Средний Запад | 7,7 месяцев |
| Юг | 6,1 месяца |
| Запад | 7,1 месяца |
Средние рассчитанные значения относятся к проектам строительства новых домов, от начала строительства до окончательного обхода.Другими словами, предварительное строительство (и процессы утверждения разрешений) завершены и завершены (и, следовательно, не включены в средние значения).
Последний ключевой фактор, вызывающий большие расхождения во времени, необходимом для строительства нового дома, — это «незапланированные изменения». Когда покупатели настаивают на особенностях или функциональности своего нового дома в процессе строительства (то есть на изменениях, которые не учитывались на этапах планирования), в результате почти всегда возникают задержки в процессе.
После разговора с экспертами мы определили пять наиболее часто упоминаемых факторов, влияющих на время строительства: предварительное строительство и разрешения, окружающая среда, рабочие и материалы, изменения и стиль строительства.Хотя знание того, чего ожидать, может не ускорить процесс, оно может просто помочь вам сохранить рассудок.
Предварительное строительство и разрешения
Перед тем, как строитель сможет начать строительство вашего дома, участок дома должен быть подготовлен. Это означает расчистку деревьев, камней и других предметов, грубую профилировку и выравнивание фундамента. В зависимости от объема работ — скажем, при расчистке участка возникла непредвиденная проблема — во время подготовки к строительству могут возникнуть задержки.
Получение надлежащих согласований и разрешений также может вызвать задержки.«Такие факторы, как одобрение разрешения на строительство и процесс инспекций, могут различаться в зависимости от местоположения и могут увеличить время строительства дома», — говорит Мэтью Годе-Уолтерс, торговый представитель Walters Homes.
Окружающая среда
В зависимости от того, где будет находиться дом, время строительства может зависеть от региона страны — дома в Среднеатлантическом регионе в среднем составляют около 9,5 месяцев от начала до завершения, в то время как строительство в горном регионе составляет в среднем около шести месяцев. Строительство в мегаполисах обычно идет быстрее — семь месяцев по сравнению с девятью месяцами в более сельских районах.
«Хотя строительные рабочие могут выполнять много работы под дождем, например рыть траншеи или вырубать деревья, есть некоторые вещи, которые могут задерживаться из-за дождя», — говорит Кайл Альфренд, риэлтор из Alfriend Group в Дублин, Огайо. «Основные погодные факторы, в том числе зимние заморозки, не позволяют заливать бетон для фундамента, а весенние дожди настолько пропитывают землю, что невозможно вырыть ямы для подвалов без обрушения стен».
Наличие рабочих и расходных материалов
Летние месяцы, как правило, являются наиболее загруженным временем для строительства дома, поэтому вы можете обнаружить, что строительство вашего нового дома задерживается, пока не появятся необходимые рабочие места.
«Одним из элементов наших расчетов сроков строительства является доступный кадровый резерв и то, какие специалисты необходимы среди субподрядчиков, таких как электрики, сантехники и строители, которых требует проект», — говорит Питер Ди Натале, президент Peter Di Natale & Associates, строительная компания и подрядчик из Нью-Йорка.
Изменение плана
Заказы на изменение обычно продлевают время сборки, особенно если они возникают в последней части процесса.
Di Natale также отмечает, что когда покупатели ждут до последней минуты, чтобы выбрать свою отделку, это может вызвать задержки.«Например, на заказ шкафов обычно уходит от шести до восьми недель и от одной до двух недель на установку, поэтому выбор шкафов, когда придет время их устанавливать, обойдется вам в два месяца или больше».
Чтобы ограничить время, теряемое из-за задержек в принятии решений, вы должны поддерживать открытое общение со своим строителем. В конце концов, в процессе строительства вам придется принимать множество решений.
Строительный стиль
Стиль вашего дома также влияет на время строительства.Дома на заказ в среднем около девяти месяцев, а индивидуальные производственные планы — около семи месяцев. Поскольку планы этажей, используемые производственными строителями, были построены много раз раньше, задержек обычно меньше. «Выбор стандартного плана этажа ускорит процесс строительства, потому что он устранит любые вариации, которые необходимо будет учесть строителю», — говорит Годе-Вальтерс.
Итак, что вы можете сделать, чтобы строительство вашего нового дома было максимально безболезненным?
Сотрудничество — ключ к успеху: «Привлечение руководителей строительства и прохождение надлежащего предварительного планирования и оценки как можно раньше сэкономят время и деньги в долгосрочной перспективе», — говорит Ди Натале.Задержки в строительстве могут быть фактом жизни, но знание того, чего ожидать и как управлять своими ожиданиями, может помочь сделать процесс строительства менее напряженным.
Сев Кейл — отмеченный наградами писатель-фрилансер и бывший стажер по контенту NewHomeSource. В декабре 2013 года она окончила Техасский университет в Остине по специальности «Государственное управление, гуманитарные науки и испанский язык».
До работы с NewHomeSource она проходила практику в отделе прессы посольства США в Буэнос-Айресе и много путешествовала по Южной Америке.
Планы домов в креольском стиле
Особняк, первоначально известный как Brevard House, является особенно прекрасным примером. больших, узких и длинных, двухэтажных резиденций, построенных в районе Гарден в процветающее десятилетие, предшествовавшее гражданской войне.Резиденция в стиле греческого возрождения 1850-х годов занимает почти 9000 квадратных футов на трех этажах с пятью спальнями и шестью ванными комнатами.
Архитектурный стиль характеризуется особенностями, которые делают здание или другое сооружение заметным и исторически узнаваемым. Стиль может включать такие элементы, как форма, способ строительства, строительные материалы и региональный характер.
План урока, ответ на 3 урока естествознания
План дома в традиционном роскошном стиле Батон-Руж 6900 Приятная симметрия и парадный вход придают сдержанный вид этому роскошному плану дома в традиционном стиле с четырьмя спальнями, тремя полными ванными комнатами, двумя половинными ванными комнатами и площадью 3847 квадратных метров. футов жилой площади.23 июля 2011 г. · В одном доме стили свободно сочетаются друг с другом: в одном креольском коттедже окна в неоклассическом стиле; у поднятого двойника есть антаблемент греческого возрождения с колоннами Истлейка.
V
Fargo dtc1250e пароль по умолчанию
Что делает эти современные дома такими особенными и непохожими на другие? Ну, одним из критериев было местоположение дома, которое часто играет важную роль в разговоре о стиле, это подводит нас к следующим критериям. Стиль в архитектуре.Это еще одна вещь, сильно связанная с чьей-то личностью, но …
О планах домов в стиле фермерского дома. Планы фермерского дома очень похожи на планы загородного дома. Основное различие между загородным домом и фермерским домом заключается в том, что в фермерском доме обычно есть крыльцо по периметру. Больше информации о Le ‘Pams House of Creole можно найти на Facebook. Ресторан Cajun & Creole в Хьюстоне, Техас. Популярные планы домов в Креоле, Луизиана. Пейсли I. 3 2.5 … Вы можете уточнить свой поиск с помощью наших модульных планов дома в Креоле, Луизиана по цене, стилю и количеству…
Например, при обсуждении выбора растений вы время от времени столкнетесь с мнением, что некоторые растения используются слишком часто. Люди расходятся во мнениях не только об отдельных компонентах ландшафтного дизайна, таких как растения и террасы, но и об общем стиле.
Комиссия по коммунальным предприятиям Орландо (OUC: «Надежный») — это муниципальная государственная коммунальная компания, обеспечивающая водоснабжение и электроснабжение граждан Орландо, Флорида и части прилегающих некорпоративных районов округа Ориндж, а также Св.Клауд, Флорида, в округе Оцеола.
Intel nuc fan
Bainbridge Design Group создает индивидуальный дизайн дома на любой вкус и стиль, стремясь предоставить клиентам дом их мечты. 23 июля 2011 г. · В одном доме стили свободно сочетаются друг с другом: в одном креольском коттедже окна в неоклассическом стиле; у поднятого двойника есть антаблемент греческого возрождения с колоннами Истлейка. Планы акадских домов. Планы домов в акадском стиле разделяют французскую сельскую архитектуру и находятся в Луизиане и на американском юго-востоке, в приморских районах Канады и демонстрируют влияние Луизианы и Каджуна.Комнаты часто располагаются по обе стороны от центрального коридора с кухней в задней части.
V
Все коды ошибок 2020
Дизайн коттеджа сделан с инстинктивным взглядом, базовыми элементами и уютным уютным шармом, который передает дух превращения дома в дом. Традиционные коттеджи остаются верными обилию дерева от пола до стен и потолка.
Пара, которая любит архитектуру в стиле Нового Орлеана, просит Дэйва и Дженни превратить своего классического мастера в креольский коттедж.Этот динамичный дуэт реконструирует каждую комнату с уникальными деталями, такими как старинные двери, самодельные газовые фонари и просторная веранда. ЖАРЕНЬ ИЗ СВИНИНЫ С ГРЯЗНОЙ РИСОВОЙ НАЧИНОЙ И СОУСОМ КРЕОЛЬСКОЙ ГОРЧИЦЫ был нашим первым блюдом в январе 2000 года — какое восхитительное начало нового года. Мои дети до сих пор в восторге от еды … Design Tech Homes — это строитель домов на заказ в районах Хьюстона и Сан-Антонио. Мы специализируемся на строительстве дома вашей мечты на собственном участке. Звоните сегодня!
Оставайтесь на связи Подпишитесь на рассылку обновлений по электронной почте.
Щелкните здесь, чтобы вернуться на новый веб-сайт AmeriCorps.
San Francisco Plantation House, самая роскошная плантация в Северной Америке, расположена на восточном берегу реки Миссисипи, менее чем в 40 минутах езды от Нового Орлеана, штат Луизиана. Это дом с галереями в стиле креольских люксов открытой планировки, расположенный под вековыми дубами Live Oaks, в нем хранится одна из лучших антикварных коллекций в стране.
‘@gmail.com @ hotmail.com @ yahoo.com 2018
План Нового Орлеана, 1720 г.Установление фактов: Литература 1. История поселений в Луизиане 2. Креолы и креолы цветного населения. Визуальные свидетельства: изображения 1. Сцена с улицы Вье-Карре 2. Сцена с улицы Вье-Карре 3. Вид с воздуха на типичный квартал 4. Пристройка и хозяйственные постройки 5. Фасад креольского таунхауса 6. Фасад порта …
Расстояние, на которое вы смотрите вперед, обозначается как ваше
Вы чувствуете себя как дома. Kabel House Plan предлагает проекты домов, которые демонстрируют неподвластный времени южный домашний стиль.Наши планы варьируются от проектов в стиле коттеджа до проектов домов в Акадии, Южной Луизиане и загородном французском стиле. Мы гордимся своим расположением в Денхам-Спрингс, штат Луизиана, где уже более 30 лет мы создаем планы домов в стиле Луизианы.
Cajun / Creole Christmas EP выйдет 4 декабря 12 декабря 2020 г. 3 мин на чтение админ В этот праздничный сезон, в конце трудного года, Южная Луизиана предлагает музыкальное удовольствие с новым EP Joyeux Noël, Bon Chrismeusse. Хотя креольский коттедж родился в городах от Нового Орлеана до Мобила, он также появился на внутреннем юге, где на него повлиял стиль греческого возрождения.Симметрия, план центра-зала и внешний дымоход характерны для этого влияния. Как и его предшественники, наш Creole Cottage немного приподнят, чтобы жилые помещения располагались над влажной землей. Планы надземных домов в первую очередь предназначены для домов, находящихся в зонах затопления. В фундаменте для таких домов обычно используются сваи, опоры, сваи или стены из блоков CMU, чтобы поднять уровень дома.
Креольский коттедж — это типичный образец народной архитектуры побережья Мексиканского залива в США.Этот стиль был доминирующим типом домов вдоль центрального побережья Мексиканского залива примерно с 1790 по 1840 год в бывших поселениях французской Луизианы в Алабаме, Луизиане и Миссисипи.
Архитектурный стиль характеризуется особенностями, которые делают здание или другое сооружение заметным и исторически узнаваемым. Стиль может включать такие элементы, как форма, способ строительства, строительные материалы и региональный характер.
Python
4 мая 2017 г. · Три века спустя этот стиль остается таким же популярным, как и прежде, и нетрудно понять, почему.Благодаря своей простой форме без излишеств и уютной, похожей на коттедж эстетике, Cape, пожалуй, самый знаковый из всех американских домов, вызывающий чувство ностальгии, не имеющее аналогов в других стилях. Вот семь причин, почему нам это нравится.
Армия Даты начала работы 2020
Молекулярная геометрия Pi3
Джерард Брауд не планирует покидать свой красивый дом в креольском стиле с его 15-футовым крыльцом на северном берегу озера Пончартрейн, короткое сообщение «Мы должны Реалистично оценивайте текущие и будущие последствия потери прибрежных земель и планируйте сегодня развитие следующего поколения сообществ Луизианы.»
Подается с креольским рисом и овощами на гриле. 20.99. Тушеный редфи из Техаса, обжаренный на сковороде с 4 креветками на гриле, грибами, зеленым луком, мягким зеленым перцем и дополненный приправой каджун и сливочно-чесночным соусом из белого вина. Подается с Креольский рис и свежие зеленые бобы. 24.99 В некоторых домах и зданиях федерального правительства можно найти тщательно продуманный изогнутый или многоугольный план этажа, например, в доме Octagon House в Вашингтоне, округ Колумбия (1799 г.), расположенном на 18-й улице и Нью-Йорк-авеню NW.Дом Билла-Доусона, расположенный в историческом районе Роквилля на Уэст-Монтгомери-авеню, 103, является прекрасным образцом федерального стиля. Департамент охраны окружающей среды Флориды является ведущим агентством штата по управлению окружающей средой и охране окружающей среды, защищая наш воздух, воду и землю
2 дня назад · Лучшие планы этажей дома в Луизиане. 9 января 2018: исследуйте дворики в стиле нового Орлеана с доской Деборы Мур, за которыми следят 150 человек в pinterest. Дом в новоорлеанском стиле лучше всего спроектировал внутренний двор.Проект дома в новом орлеане yomagz com. Майкл Мерфи занимается проектированием домов с начала восьмидесятых годов в Лафайет Луизиана. Ft 2 спальни 3 …
Стили дизайна. Эксперты по недвижимости прогнозируют 10 крупнейших рынков жилья на 2021 год. Попал ли ваш город в список?
Двусторонняя печать Canon pixma pro 100
Планы домов и архитектурные проекты в балийском стиле создают спокойную обстановку для жителей. Планы двухэтажных домов с фотографиями Nethouseplans. Дома и планы домов в балийском стиле Площадь: 250м2 Спальни: 3 Ванные комнаты: 2.5 Гараж: 2 Уровня: 2 Вид [подробнее].
V
Petalinux create bsp
Ландшафтный дизайн подобен поэтажному плану открытой площадки. Как и план этажа, ландшафтный дизайн создает визуальное представление участка с использованием масштабированных размеров. Пейзажные планы включают в себя природные элементы, такие как цветы, деревья и трава, а также искусственные элементы, такие как мебель для газонов, фонтаны и навесы.
Планы домов в акадском стиле хорошо подходят для юга, хотя они будут отлично смотреться и во многих других регионах.Очень похоже на планы домов в стиле французского кантри, в акадских домах обычно используются кирпич и лепнина на внешней стороне дома. Общий профиль может показывать асимметрию: одна сторона удерживает гараж, а вход ведет к другой … 12 июня 2014 г. · Этот коттедж в креольско-французском стиле манит посетителей своей непринужденной верандой и простым современным дизайном. … Планы домов и строители Единственное, что нужно смывать, — это четыре П — моча, какашки, блевать и туалетная бумага. Мы хотим убедиться, что наша канализационная система и наши очистные сооружения продолжают работать должным образом во время этой чрезвычайной ситуации в области общественного здравоохранения.
Ключевые определения дом: здание, в котором живут люди (обычно одна семья). Наш дом рядом с парком Виды дома. отдельно стоящий дом: дом, не связанный с другими домами. Нам бы очень хотелось, чтобы недвижимость пустовала несколько лет, но мы планируем отремонтировать ее и превратить в …
2 дня назад · Лучшие планы этажей дома в Луизиане. 9 января 2018: исследуйте дворики в стиле нового Орлеана с доской Деборы Мур, за которыми следят 150 человек в pinterest. Дом в новоорлеанском стиле лучше всего спроектировал внутренний двор.Проект дома в новом орлеане yomagz com. Майкл Мерфи занимается проектированием домов с начала восьмидесятых годов в Лафайет Луизиана. Ft 2 спальни 3 …
Какой размер медной линии от баллона с пропаном до дома
См. Планы домов в стиле акади. Французский креольский дом и другие архитектурные плантации. Планы домов во французском стиле, необычные дизайнерские идеи, план этажа каджуна, план коттеджа, акадский, с отдельным провинциальным, в цвете батон-руж, уникальные фото, планы дома в стиле ренессанс, созданные в стиле каджун, и креольское возрождение, которое включало французский дом в прибрежном коттедже.Creole Houses дает представление о креольской культуре, которую можно увидеть сквозь ее исторические дома, и отмечает не только незабываемый образ жизни. Southern Living — широко публикуемый журнал о стиле жизни, ориентированный на читателей южных штатов США. В нем представлены планы домов, рецепты и … Элегантный курорт во французском квартале. Если вы любите Новый Орлеан и уникальную атмосферу Французского квартала, вам понравится Quarter House. Поужинайте в одном из городов с множеством всемирно известных ресторанов и наслаждайтесь уникальными музыкальными фестивалями и спортивными мероприятиями круглый год.
Razer blade 15 unlock bios
Pubnub flutter
Rosetta Stone — программа №1 в мире для изучения языков. Выбирайте из более чем 30 языков. Начни сегодня. Это быстро, просто и эффективно!
ПОИСКОВЫЕ ПЛАНЫ. Коттедж Planters. Рендеринг. Второй этаж. Второй этаж. Вид сзади. Добавить в избранное Посмотреть + сравнить характеристики тарифного плана Цены на тарифный план. Square … 27 августа 2013 г. · По словам креольского историка и выдающегося экскурсовода Билла Кобла, вот вам сенсационная информация о некоторых из лучших внутренних дворов Французского квартала.Обязательно посетите дворы Французского квартала Нового Орлеана Во французском квартале растет дерево. В отеле Olivier House в Тулузе. 1. Историческая коллекция Нового Орлеана, 533 Роял-стрит. 2. Доброжелательное место. Чикаго, Новый Орлеан, Питтсбург, Лондон, DTLA, Нью-Йорк, Палм-Спрингс, Портленд и Сиэтл. И Киото, открытие в 2019 году.
| План 020H-0406 | О планах дома в стиле бунгало …Планы домов-бунгало стали популярными в Соединенных Штатах в 1900-х годах, когда домовладельцы и строители начали реагировать на формальный викторианский период.Этот тип плана развился с движением искусств и ремесел, в результате чего появились неформальные и практичные дома, которые были упрощенными по своей природе. Сегодняшние планы компактны и прочны по конструкции. Большинство из них представляют собой одноэтажные или полутораэтажные конструкции с невысокими крышами, большими передними крыльцами с широкими свесами, открытыми балками и деревянными элементами, а также с использованием натуральных материалов, таких как деревенское дерево и камень. Уютные и функциональные дома в стиле бунгало располагают спальнями, ванными комнатами, кухней и столовой вокруг центральной жилой зоны.Планы домов мастеров и проекты узких участков тесно связаны с дизайном бунгало. Большинство предлагает открытую планировку, где комнаты соединяются без коридоров, а окна наполняют жилые помещения естественным светом. Некоторые витражи или свинцовые окна когда-то были заметны в домах-бунгало. Интерьер типичного бунгало отличается эффективным использованием пространства, включая встроенные кладовые, сиденья и шкафы. Эти элементы дополнены декоративной отделкой из дерева. В совокупности они представляют собой образец ручной работы и высокого мастерства.Снаружи типичные бунгало демонстрируют узнаваемые черты, такие как слуховые окна навесов, открытые карнизы, конические колонны крыльца на каменных основаниях и некоторые изделия из дерева. Эти планы бывают разных стилей. Планы домов в стиле бунгало с узким участком хорошо подходят для узких участков земли, особенно в пригородных зонах. Бунгало «Ремесленник» получило свое название в начале века, потому что эти дома были украшены, украшены и отделаны на стройплощадке мастером, строившим их. Бунгало на пляже — это небольшие домики, которые используются для отдыха на выходных или постоянного проживания на берегу океана.Независимо от стиля, конструкции бунгало обычно просты и дешевле в строительстве, что делает их отличным выбором для небольшого и доступного дома. Они пропагандируют простой образ жизни и не занимают лишнее пространство. Дизайн бунгало в этой коллекции обычно составляет менее 2000 квадратных футов и обеспечивает расслабленную и комфортную жизнь. |
16 лучших бесплатных планов кают с подробными инструкциями
Когда дело доходит до постройки бревенчатой хижины своей мечты, важным элементом является ее план.
Не все планы одинаковы…
Каютыбывают разных размеров, форм, стилей и конфигураций. Дизайн вашего бревенчатого дома может помочь максимально увеличить жилое пространство и уменьшить ненужные усилия на этапах вырубки и строительства.
От бревенчатых домиков с мансардой до домиков с треугольной рамой и 3 спальнями — в этих красивых бревенчатых домиках вы обязательно найдете идеальный дизайн.
Просмотрите наши 16 отобранных вручную планов кают, а затем прочтите все, что вам нужно знать.
16 Планы кают
Уютная кабина до 500 долларов
Построенный Аутсайдером и его молодежной группой, эта каюта была построена менее чем за 500 долларов, и на ее строительство ушло около 8 месяцев.
Видео на YouTube расскажет вам о пошаговом процессе сборки.
Если вы ищете простые планы кабины, которые можно построить полностью с нуля при очень небольшом бюджете, эта кабина — идеальный вариант. Низкий бюджет зависит от закупки пиломатериалов, иначе цена значительно вырастет.
Прочтите эту статью, чтобы узнать больше о затратах, связанных с постройкой бревенчатого дома.
Построй эту каюту
Бюджетная кабина
(c) Инструкции — coolbeansbaby68Бюджетная кабина — это крошечная кабина размером всего 20 x 12 футов, которую можно построить менее чем за 2500 долларов.
Эти планы хижин также намного проще построить, чем традиционные бревенчатые хижины, поскольку в них используется техника каркаса и сайдинга.
Снаружи небольшая веранда, а с внутренней стороны достаточно места для небольшой кухни и жилого помещения.
Построй эту каюту
Rosefield
(c) Mother Earth NewsRosefield — это классический традиционный домик, который можно построить менее чем за 6000 долларов.
Хижина открытой планировки, что позволяет значительно упростить, удешевить и ускорить постройку каюты по сравнению с более замысловатыми каютами с отдельными комнатами.
Эти конкретные планы кабины также поставляются с подробной схемой сборки кабины и пошаговыми инструкциями, которые включают руководство по фундаменту.
Построй эту каюту
Коттедж с тремя кроватями
(c) LSU AgCenterЭта двухэтажная двухэтажная кабина с тремя спальнями и двумя ванными комнатами, спроектированная для обеспечения высокой энергоэффективности, со слуховыми окнами, встроенными во второй этаж.
Окна расположены так, чтобы минимизировать попадание прямых солнечных лучей в кабину, и они построены над землей, чтобы обеспечить достаточный приток воздуха под кабину.
Построй эту каюту
Планы хижин на Аляске
(c) Alaska Antler WorksАляскинский домик — это небольшой дом, построенный в течение 5 месяцев только по выходным.
В каюте есть веранда спереди, большие окна, пропускающие много естественного света, и чердак, который действует как спальня.
На первом этаже есть место для стола и стульев, кухня и гостиная.Лестница, ведущая на чердак, закручена по спирали, чтобы на первом этаже было максимальное пространство.
Построй эту каюту
Бревенчатый дом с одной комнатой
(c) Инструкции — Joalex HenryПостроенный в основном из сосны местного производства, это небольшая однокомнатная каюта, которая может служить гостевой каютой или местом для отдыха на выходных.
Планы хижин очень подробны и шаг за шагом покажут, как построить эту хижину, с сопроводительными фотографиями.
Построй эту каюту
Деревянный коттедж
(c) The Classic ArchivesИдеально подходит для использования в качестве гостевой каюты, охотничьего домика или просто для отдыха. Этот набор бесплатных планов кают поставляется со списком материалов и чрезвычайно подробными инструкциями с рисунками для каждого этапа.
Эта каюта площадью 108 квадратных футов была спроектирована так, чтобы быть достаточно маленькой, чтобы не требовать разрешения на строительство, и поэтому она станет идеальной каютой для тех, кто не хочет подавать заявку на разрешение на строительство.
Построй эту каюту
Норвежская каюта
(c) Mother Earth NewsНорвежская хижина — это крошечный дом, основанный на норвежском «stabbur», склад, построенный на сваях.
Чтобы избежать обработки больших бревен, в этой хижине используются бревна только размером менее 16 футов, а размер дома составляет 10 футов на 13 футов.
Эти планы кают включают комнату открытой планировки на первом этаже и спальню на чердаке.
Построй эту каюту
А-образная рама
(c) LSU AgCenterЭта простая кабина с А-образной рамой имеет крыльцо впереди, которое ведет в гостиную и столовую открытой планировки.
В задней части хижины находятся ванная и кухня с другой дверью, ведущей на второе крыльцо в задней части дома.
На втором этаже две спальни, каждая с собственным балконом.
Если вы ищете гараж в соответствии с планом бревенчатой хижины, прочтите наш обзор комплектов для гаража из бревен.
Построй эту каюту
Смотровая площадка
(c) Планы на сегодняThe Lookout Cabin — это небольшая двухэтажная планировка, которая идеально подходит для тех, у кого есть узкий участок земли.
На площади 500 квадратных футов внизу вы найдете жилое пространство, кухню и ванную комнату.
А наверху есть спальня с ванной и балконом.
Построй эту каюту
Уитфилд
(c) Планы кают 123Whitfield — это крошечная каюта со спальным лофтом.Вход в каюту через крытое крыльцо ведет прямо в зону открытой планировки и кухню.
На чердак можно подняться по лестнице, где находится спальное место. Этот план также включает в себя полный список раскроя, расчеты перекрытий, стропил и балок перекрытия.
Построй эту каюту
Скрытая кабина
(c) Инструкции — LaMar SolarcabinStealth Cabin — это крошечная кабина размером всего 8 футов на 8 футов, которая спроектирована так, чтобы выглядеть как обычное садовое хранилище, чтобы избежать нежелательного внимания.
В интерьере есть место для небольшой кухни, туалета и душа, а также двухместного дивана.
Эти планы кабин идеальны для тех, кто ищет автономную кабину; нет подключения к электричеству, воде или канализации.
Построй эту каюту
Простая бревенчатая хижина
(c) Mother Earth NewsЭто простой и грубый традиционный бревенчатый дом, который можно построить за 30 000 долларов. В деревенском доме также есть план электричества и фундамента; давая застройщику возможность построить домик намного проще.
Планировка состоит из двух просторных спален, с единственной ванной комнатой и гостиной открытой планировки.
Эта хижина идеально подходит для тех, кто хочет жить в лесу вне сети.
Построй эту каюту
Честерфилд
(c) Государственный университет Северной ДакотыChesterfield — это большой семейный дом с верандами как спереди, так и сзади.
При входе первая комната — это большая гостиная, которая переходит в столовую и кухню.
Также на первом этаже две спальни и ванная комната. На первом этаже вы найдете третью спальню, ванную комнату и много места для хранения вещей. Половина наверху открыта в гостиную внизу.
Построй эту каюту
Планы кают Lilly
(c) Планы на сегодняLilly — трехэтажный дом, идеально подходящий для растущей семьи. В подвале находится гараж, две спальни и прачечная.
На первом этаже вы найдете большую комнату, кухню и столовую, а также еще две спальни.На втором этаже, занимающем чердак, есть место для спальни и второй ванной комнаты.
Построй эту каюту
Хижина Тома
(c) Маленькая хижинаХижина Тома, названная в честь ее владельца и создателя, является одним из наиболее продуманных планов, представленных здесь.
Эта каюта может быть построена за 1000 долларов и включает спальню и ванную комнату. На мой взгляд, этот план лучше всего подходит как для охотничьего домика, так и для кемпинга.
План включает подробные фасады и проекты крыш.
Построй эту каюту
Что следует знать о планах бревенчатых домиков
Когда дело доходит до строительства бревенчатой хижины, есть много факторов, в которых вы не будете уверены, например, техника надрезания, выбор пиломатериалов, золотое сечение, фундамент и общие передовые методы.
Ниже мы собрали лучшие советы и отрывки экспертных рекомендаций, которые будут вам очень полезны при выборе бревенчатого дома.
Как только вы поймете различные доступные вам методы надрезания и строительства, вы будете гораздо лучше информированы, чтобы выбрать для себя лучший бревенчатый домик!
Бревенчатый домик. Стоимость
.Ознакомьтесь с основными затратами на сруб. Чтобы выбрать план бревенчатого дома, ответьте:
- Какова типичная стоимость квадратного фута бревенчатого дома?
- Используется ли соотношение между стоимостью комплекта и стоимостью завершения?
В этом примере бревенчатый домик площадью 800 квадратных футов был построен за 20 000 долларов.Проведя отраслевое исследование комплектов бревенчатых домиков, мы обнаружили, что строительство типичного бревенчатого домика (1100 квадратных футов) от начала до конца стоит 58000 долларов.
Если вам нужны быстрые и простые номера для ограниченного бюджета:
- Самостоятельно построенный бревенчатый домик Цена за квадратный фут составляет 125 долларов за фут.
- Золотое сечение 1: 3 для комплектов бревенчатых домиков (например, если комплект стоит 50 000 долларов, окончательная цена, включая оплату труда, будет составлять 150 000 долларов).
- Золотое сечение составляет 1: 2 для комплектов бревенчатых домиков без учета рабочей силы.
Чтобы правильно спланировать и составить бюджет для вашей бревенчатой хижины, прочитайте, сколько стоит построить бревенчатую хижину.
Совет эксперта
Советы и приемы бывают разных форм, но у экспертов есть много советов для вас, когда дело доходит до выбора плана хижины и постройки бревенчатой хижины. Мы опросили 21 ведущего специалиста по строительству бревенчатых домов и обобщили их рекомендации в виде списка ниже:
- Благоразумие в дизайне. Убедитесь, что на вашем плане бревна есть большие свесы, крытые настилы и хороший ландшафт, чтобы уклон был далеко от вашей хижины.
- Выберите тариф, соответствующий вашему образу жизни! Бревенчатые хижины могут быть очень уникальными, и они должны быть такими же уникальными, как и человек, живущий в этом бревенчатом доме.
- Найдите лучшее физическое место для постройки своей хижины. Лучший совет — убедиться, что ваш бревенчатый дом защищен от таких природных факторов, как дождь, вода и ветер.
- Правильно расположите кабину. В идеале вам нужно будет расположить бревенчатый домик на южной стороне, чтобы солнце светило с востока на запад.
- Натуральные бревна, высушенные на воздухе, превосходят все остальное при правильной сушке (обычно через 6-8 месяцев для акклиматизации).Это уменьшит вертикальную усадку и оседание стены.
- Используйте материалы высочайшего качества, которые вы можете себе позволить. Это будет иметь большое значение для долговечности вашего дома и объема технического обслуживания, которое вы будете проводить.
- Правильный дизайн бревенчатой хижины важен по следующей причине: это позволит вам улучшить работу вашей хижины на земле для повышения энергоэффективности и технического обслуживания в будущем.
Итак, что эксперты хотят, чтобы вы узнали?
ГЛАВНЫЙ СОВЕТ: Дизайн — это самое важное решение для долговечности, обслуживания и эффективности вашей бревенчатой хижины.
Техника вырезания надрезов в бревенчатой хижине
Деталь, о которой часто забывают на этапе планирования и проектирования, — это тип выемки, который вы будете использовать для своей бревенчатой хижины.
Если вы раньше не строили бревенчатый дом, выемка — это метод строительства, который позволяет двум бревнам пересекать друг друга, образуя герметичное уплотнение, защищающее кабину от атмосферных воздействий.
Важно понимать, какой тип выемки используется в кабине. Это потому, что разные насечки требуют разных уровней обрабатываемости древесины и разной стоимости.Существует четыре основных классификации выемок для бревенчатого дома:
- Традиционная выемка — минимальные затраты на обслуживание и отделка, напоминающая скандинавскую выемку под седло.
- «Ласточкин хвост» — требует высокого уровня навыков и отделки, напоминающей бревенчатый дом в стиле Аппалачей.
- Corner Post Notch — требует высочайшего уровня навыков и отделки, напоминающей бревенчатую хижину с закругленными углами.
- Butt and Pass Notch — требует минимального уровня навыков и отделки, напоминающей традиционную охотничью хижину.
Если вам интересно и вы хотите узнать больше о выемках в бревенчатых хижинах, попробуйте прочитать «Вырезки в бревенчатых домиках» для начинающих.
Сводка
Планы коттеджейможно использовать для самых разных целей, от основного дома до домика для отдыха, или, возможно, для охотничьего домика или гостевого дома.
Для чего бы вы ни хотели построить домик, мы надеемся, что эти шестнадцать бесплатных планов заставили вас задуматься о различных типах кабин и способах строительства.
Вызывали ли вы желание выбраться из какой-либо из этих хижин и построить свою собственную? Мы будем рады получить от вас ответ, если у вас возникнут какие-либо вопросы.Дайте нам знать в комментариях ниже.
Планы Ранчо Дома | Найдите свой идеальный план дома в стиле ранчо!
Что такое дом в стиле ранчо?
Хотя оригинальный стиль происходит от испанских колонистов 17 и 18 веков, нам, возможно, придется поблагодарить бывшего архитектора Сан-Диего Клиффа Мэя за популяризацию этого стиля в США. Хотя он не был зарегистрированным архитектором, Мэй часто приписывают создание ранчо. стиль жизни в пригороде, так как они изначально проектировались как доступные дома во время Второй мировой войны.
Дизайн сработал идеально: эти дома были найдены по всей стране в 1950-х годах, причем 9 из 10 построенных домов были ранчо! Вскоре ранчо стали неотъемлемой частью пригородов, сделав идеальные дома для среднего американца среднего класса и, в конечном итоге, помогли построить классическую идею района.
Но в течение короткого времени в 1990-х годах популярность ранчо постепенно снижалась, когда многие домовладельцы рассматривали возможность перехода на двухэтажные дома. Однако ранчо вернулись, поскольку строители домов жаждут простоты.Сегодня ранчо являются наиболее привлекательными в качестве доступных по цене домов для начинающих как для тех, кто впервые покупает жилье, так и для тех, кто только что пустует в гнездо.
Ключевые элементы стиля ранчо
Дома в стиле ранчо чаще всего характеризуются одноэтажным домом с низкой крышей и пристроенным гаражом. Не существует установленных правил для внешнего и внутреннего дизайна ранчо, хотя есть много общих ключевых элементов, которые можно найти в каждом доме на ранчо, например, бесшовное сочетание внутреннего и внешнего вида.
Одна интересная разновидность этого стиля — популярная модификация, называемая приподнятым ранчо.Как ни странно, возвышенное ранчо технически представляет собой двухэтажный дом, но по-прежнему считается ранчо, поскольку его «второй этаж» на самом деле относится к готовому подвалу.
В приподнятом ранчо есть вход на основном уровне, а гараж находится в подвале. Обычно это становится возможным при неровном озеленении, когда фасад дома находится на холме. Впрочем, это не следует путать с двухуровневым домом. В двухуровневых домах есть разделенное фойе, где при входе в дом вас встречает небольшое фойе и две лестницы, по которым вы можете решить подняться в основное жилое пространство или спуститься в готовый подвал.
Изображение: Возведенное ранчо из проекта «Дом-монстр»
Другие ключевые элементы по большей части остались вне времени. Дизайн может варьироваться от модерна середины века до современного классического, но что делает ранчо классикой, так это его ключевые стили интерьера и экстерьера.
Стили интерьера
- Простые открытые планы этажей с подсобным помещением или подвалом.
- Пристроенный гараж , так как эти дома стали популярными одновременно с автомобилями.
- Жилые зоны отделены от спален , обычно разделены длинным отдельным коридором.
- Сводчатые потолки для увеличения жилого пространства.
- Большие окна , позволяющие солнечному свету с карнизами отбрасывать тень.
- Большинство домов на ранчо вмещают до с тремя или четырьмя спальнями .
Как и большинство дизайнов, стиль ранчо эволюционировал. Многим нравится концепция единого этажа ранчо, и они сочетаются с некоторыми более крупными элементами других домов, такими как дома ремесленников и фермерские дома.
Внешний вид
- Одноэтажный или приподнятый этаж.
- Низкоскатные Двускатные или шатровые крыши.
- Асимметричный дизайн , который обычно имеет L-образную или U-образную форму.
- Внутренний дворик или открытая площадка , так как ранчо помогает подчеркнуть жизнь на открытом воздухе и ландшафтный дизайн.
- Может иметь сайдинг или состоять из смешанных материалов , таких как штукатурка, кирпич, дерево и камень.
- Это могут быть дома середины века или традиционные дома, поскольку нет единого правила для внешнего дизайна дома на ранчо.
Подходит ли вам стиль ранчо?
Для некоторых проживание в доме на ранчо чисто логично. Для тех, кто живет в жарком климате, этот одноэтажный дом имеет большие карнизы у окон, которые помогают отфильтровывать резкий солнечный свет от тепла дома. Эти дома также построены с учетом внутренних двориков и бассейнов, которые являются идеальным способом охладиться в жаркий летний день.Вдобавок ко всему, одноуровневые конструкции идеально подходят для пустых гостей, которые не хотят иметь дело с лестничным пролетом в своем доме.
А для других проще иметь дело с домами меньшего размера. Вот почему иногда больше не всегда лучше! При типичном американском доме площадью 1500 квадратных футов нередко можно найти ранчо площадью около 1500 квадратных футов. Ранчо идеально подойдет вам, если вы не возражаете против одного этажа, который может показаться необычным по размеру.
Но если размер мешает, то есть хорошие новости: просматривая новые планы этажей, легко найти ранчо площадью более 2000 квадратных футов.
Если вы живете в жарком климате, любите проводить время на улице или просто хотите удобное открытое пространство, то ранчо может быть для вас. В сочетании с открытой концепцией жизни этот стиль дома может быть идеальным для семьи любого размера.
Найдите идеальный план этажа сегодня
Ранчо, похоже, никогда не выйдет из моды. В конце концов, сложно спорить с открытой планировкой, одноэтажными, L- и U-образными планировками. Эти дома могут быть простыми, но они предлагают много места и функциональности без лишних затрат.
В Monster House планах вы найдете сотни планов этажей ранчо, где вы можете настроить любой аспект, чтобы сделать их идеальными для себя и своей семьи. От домов площадью менее 1000 квадратных футов до более 2500 и стилей, имитирующих середину века или традиционные, вы обязательно найдете здесь дом своей мечты!
Какой самый дешевый тип дома для строительства?
Одноэтажное ранчо
Фото: Урсула Пейдж / Shutterstock
Стоимость строительства : от 150 до 180 долларов за квадратный фут или от 300 000 до 360 000 долларов за дом площадью 2000 квадратных футов.
Одноэтажный дом-ранчо — по сути, ящик — построенный на плиточном фундаменте с простой крышей, является одним из самых дешевых домов для строительства. «Если не добавлять подвал и строить на плите, это значительно снизит общую стоимость строительства дома», — сказал Билл Сэмюэл, владелец Blue Ladder Development, компании по покупке жилья в Чикаго.
Самые дешевые материалы для строительства дома
Помимо оплаты труда, большая часть стоимости дома сводится к материалам, которые вы используете для его строительства. Хотя вы не хотели бы использовать материалы, которые не работают в течение длительного времени, вот несколько вариантов, которые вы можете включить, когда пытаетесь снизить затраты:
- Бетонные листы: Смесь цемента и целлюлозных волокон, спрессованных в плоские плиты, полезна для замены гипсокартона или подложки для пола, или даже в качестве покрытия стен или пола отдельно.
- Восстановленная древесина: Древесина, подвергшаяся вторичной переработке, хорошего качества из других объектов, таких как склады или старые амбары.
- Использованный кирпич: Если ваше сердце настроено на кирпич, вы можете купить использованный кирпич за меньшую плату и использовать его для таких предметов, как дымоходы и стены.
- Гофрированный металл: Вы можете использовать гофрированный (волнистый) металлический лист для покрытия внутренних стен или добавить современные материалы в другой проект.
- Бамбук: Вы можете использовать бамбуковые прутья или листы бамбука, чтобы создать забор, окаймить сад или укрыть стену.
- Деревянный каркас: «Это более рентабельно, чем металл», — сказал Дастин Сингер, владелец инвестиционной компании в сфере недвижимости Dustin Buys Houses. «Он по-прежнему остается самым популярным выбором в новом строительстве».
- Виниловый сайдинг: Один из самых экономичных вариантов сайдинга. для традиционного нового строительства он более рентабелен, чем бетон или кирпич.
- Каменный шпон: Тонкий лист настоящего или искусственного камня, который можно укладывать на другую поверхность, чтобы он выглядел как натуральный камень.
- Каменная облицовка: Подобна каменному шпону, но каменная облицовка может быть применена к внешней стороне вашего дома, чтобы выглядеть как каменный сайдинг.
- Фанера: Составная древесина, изготовленная из тонких листов шпона, склеенных между собой под чередующимися прямыми углами.
- Сборные панели: Эти стеновые панели изготавливаются за пределами строительной площадки и доставляются домой для облегчения сборки строителем. Они могут помочь вашему дому быстрее собраться, сэкономив ваше рабочее время и материальные потери.
- Промышленная сталь и чугун: Это недорого, не гниет и не деформируется, а также отличается высокой прочностью. Его можно использовать в каркасных, кровельных и других проектах.
- Транспортные контейнеры: Изъятые из обращения транспортные контейнеры могут быть перепрофилированы в небольшой дом, или вы можете использовать несколько из них, чтобы сделать дом побольше.
Советы по постройке дома наименее дорогого типа
Когда вы пытаетесь построить доступный дом, есть полезные стратегии, а некоторые углы вам просто не следует сокращать.
Наращивание, а не выход
В целом, чем больше вы можете минимизировать размер фундамента и размер крыши, тем дешевле будет ваш дом. «Самый дешевый способ строительства — это уложить квадратные метры на нескольких уровнях», — сказал Карр. «Чем больше вы продвигаетесь по горизонтали с домом, тем выше затраты на фундамент и кровлю».
Выберите простую линию крыши
Держитесь подальше от пиков и фронтонов в своем дизайне и держите высоту звука умеренной, от 4/12 до 6/12.(Уклон крыши 4/12 означает, что крыша поднимается на 4 дюйма в длину на 12 дюймов.) «Люди могут ходить по ней, по ней легче и быстрее строить раму, а также легче и быстрее гонять», — сказал Тот.
Палка с коробкой
Каждая выпуклость или выступ в вашем доме увеличивает стоимость. Чем ближе вы будете придерживаться четырех стен и крыши, тем дешевле это будет.
Не сходите с ума по windows
«Если это большое количество окон, это, безусловно, может увеличить стоимость, а если есть нестандартные окна, это может быть дорогостоящим», — сказал Карр.
Лестницы держать прямо
Чем больше витков на лестнице, тем дороже будет ее построить.
Пропустить нестандартные шкафы
Выбирайте готовые кухонные шкафы и тщеславие для ванных комнат в вашем местном крупном строительном магазине.
Не экономьте на конструкторе
«Опытный дизайнер должен сэкономить ваши затраты в долгосрочной перспективе с помощью практичных и доступных решений для соответствия строительным нормам, а также повышения функциональности здания», — сказал Тот.
Расходы на безопасность
Устройства безопасности, такие как проводные детекторы дыма и угарный газ, также не являются областью, где можно дешево обходиться — покупайте качественную продукцию.
Итог
Строительство доступного дома во многом будет зависеть от того, где вы живете и что вам доступно. В некоторых районах земля и новое строительство чрезмерно дороги, а в других цены на существующие дома заоблачные, что делает новое строительство более экономичным. Если вы помните о доступных материалах и строительных стратегиях, это значительно снизит вашу прибыль.
Принадлежности / складское здание | Гирлянда, Техас
Ресурсы для вспомогательного оборудования / хранилища
- Разрешение на строительство вспомогательного оборудования / хранилища (PDF)
- До 144 квадратных футов (12 на 12 футов): 45 долларов США (30 долларов США плюс 15 долларов США за обработку)
- От 145 квадратных футов до 399 квадратных футов: 70 долларов (55 долларов плюс 15 долларов за обработку)
- 400 квадратных футов (20 на 20 футов) и больше: 0,41 доллара за квадратный фут, но ни в коем случае не менее 120 долларов. Плюс 25% комиссии за обработку, но ни в коем случае не менее 30 долларов.
Вспомогательные постройки включают складские постройки, отдельные гаражи, беседки, отдельные патио, домики для переодевания и т. Д. Или любые другие постройки, которые используются в качестве вспомогательных по отношению к основному строению на участке для одной семьи.
Складские здания
Разрешение на строительство требуется для любого вспомогательного здания (гараж, складское помещение и т. Д.), Размер которого превышает 20 квадратных футов. Во многих кварталах есть свои собственные правила для дополнительных построек. Некоторые из этих правил являются городскими постановлениями, а некоторые — ограничениями частного акта / HOA .Городские власти будут обеспечивать соблюдение Городских постановлений, но домовладелец обязан знать и соблюдать ограничения частного акта / HOA .
- Складские постройки нельзя использовать как жилые помещения (в складском здании никто не может проживать).
- Здание должно быть построено из типовых строительных материалов. Неокрашенное дерево, олово, пластик, простые бетонные блоки, гофрированный металл, пластмассы, холст, винил или подобные материалы не допускаются.
- Крыша вспомогательного здания не может быть гофрированной металлической, пластиковой или брезентовой.Крыши должны быть либо из композитной черепицы (если уклон кровли не менее 2:12), рулонной кровли, сборной кровли, металлических панелей типа R, U, S-36, 72 или A, либо из другого материала, разрешенного Зданием. Официально.
- Вспомогательные постройки на угловых участках должны соответствовать тем же требованиям к отступлению, что и основное строение (дом). В большинстве случаев требуется минимум 20-футовый отступ от боковой линии собственности.
- Вспомогательные постройки, расположенные за домом, должны находиться на расстоянии не менее 3 футов от границ участка земли и заднего двора.
- Вспомогательные постройки, которые находятся между домом и боковой линией собственности, должны соответствовать требованиям к отступлению, изложенным в стандартах комплексного зонирования или планового застройки, установленных для вашего подразделения; однако в большинстве случаев это будет 6 футов от боковой линии собственности.
- Здания площадью более 144 квадратных футов должны находиться на расстоянии 6 футов от дома.
- Здания не могут иметь высоту стен выше 10 1/2 футов и не могут иметь среднюю высоту выше 15 футов (если здание не превышает 500 квадратных футов).
- Здания площадью более 200 квадратных футов не могут иметь внешний материал из металла.
- Здания площадью более 500 квадратных футов должны иметь внешнюю отделку, аналогичную основной конструкции; они не могут иметь высоту стен выше 12 1/2 футов и не могут иметь среднюю высоту выше 25 футов. Также им не разрешается быть выше дома.
- Здания площадью более 600 квадратных футов разрешены только в том случае, если размер дома и участка соответствуют определенным стандартам размера.
- Фундаменты (перекрытия или опоры и балки) требуются для вспомогательных зданий площадью 400 квадратных футов и более.
- Если здание не прикреплено пластинами к нормальному фундаменту, в каждом углу должны быть анкеровки.
Требования к фундаменту
Хозяйственные и складские здания площадью 144 квадратных фута или меньше, разрешенные как нежилые помещения, могут быть построены на любом типе плиты, желоба или другого устройства, которое переносит вес здания на земля.Здания площадью более 144 квадратных футов должны соответствовать следующим требованиям:
- Вся необработанная древесина в плитах, направляющих и т. Д. Должна располагаться на высоте не менее шести дюймов от земли. Деревянные столбы или столбы, вделанные в землю, должны быть обработаны деревом.
- Все опоры, будь то опоры из обработанной древесины, бетона или кирпичного блока, должны располагаться на расстоянии не более восьми футов по центру.
- Если здание не прикреплено пластинами к обычному фундаменту, на каждом углу должны быть анкерные крепления.
- Когда балки перекрытия перекрывают расстояние, превышающее допустимое для размера используемой балки, под балками будут необходимы промежуточные балки.
Одноэтажное здание с деревянным или металлическим каркасом, не используемое для проживания людей, и площадь пола не превышает 400 квадратных футов, может быть построено со стенами, опирающимися на деревянную фундаментную плиту.

Подробнее профилированный брус
Подробнее потолки
Благодарим, что остались с нами и доверили завершить строительство. 