П-44Т и П-44: Дизайн двухкомнатных квартир, фото 5 вариантов перепланировки интерьера
В Москве и Подмосковье эти квартиры относятся к наиболее частой серии из типовых — дома П-44 строили преимущественно с конца 1970-х до начала 2000-х, после чего заменили модифицированными семнадцатиэтажками П-44Т. Планировка новых квартир близка к исходной (разница лишь в эркере на кухне).
Положа руку на сердце, это не самое продуманное жилье на свете — мне часто приходится дорабатывать имеющуюся планировку. Эта статья обобщает типичные пожелания клиентов, с которыми в разные годы мне приходилось встречаться при разработке плана перепланировки двухкомнатных квартир в П-44 и П-44Т. Перед вами пять ситуаций и пять решений задачи в домах серии П-44 и П-44Т — дизайн двухкомнатных квартир с фото.
Наталья Преображенская | Бюро «Уютная Квартира»
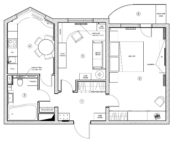
Исходная планировка
Линейная двухкомнатная квартира называется так потому, что выходит всеми окнами на одну сторону.
Комнаты как бы веером расходятся в разные стороны от прямоугольной прихожей: справа большая комната вытянутой геометрии, прямо по курсу — маленькая комната и, наконец, слева санузел и далее кухня. С одной стороны, многие владельцы утверждают, что в такой планировке удобно расположение комнат для бытовой «циркуляции» по квартире, что часто дополняется панорамным видом из окон и хорошей освещенностью. При этом циркуляция воздуха двухкомнатной линейной квартиры оставляет желать лучшего. Да и площадь (в сравнении с площадью «угловых» квартир из дома той же серии) значительно проигрывает — разница почти в 10 м.
Наталья Преображенская | Бюро «Уютная Квартира»
Однако ровно потому же двухкомнатные квартиры серии П-44Т обходятся дешевле «распашонок», и как следствие, быстрее раскупаются. Вероятно, что и при последующей перепродаже квартира уйдет быстрее: это более экономичный и, в некоторых случаях, выгодный вариант вложения денег в недвижимость.
Наталья Преображенская | Бюро «Уютная Квартира»
Планировка 1
Нужно отселить в отдельную комнату ребенка школьного возраста.
Эта задача, пожалуй, самая популярная и несложная из всех. Фактически квартира остается в своем первозданном виде — родители чаще всего готовы пожертвовать обособленной спальней, лишь бы не связываться с перепланировкой и сносом стен. Потому выход прост: разместите нужную мебель у ребенка, родители пусть отправятся спать в гостиную. Поскольку любые перепланировки клиент изначально ограничил, санузел остается в прежних границах — обходимся без объединения.
Наталья Преображенская | Бюро «Уютная Квартира»
Планировка 2
Пара молодых людей со множеством вещей — хотят полноценную гардеробную или много мест для хранения одежды в разных частях дома.
Обустройство гардеробной или хотя бы ее подобия — одно из самых частых и, к слову, обоснованных желаний клиентов, заказывающих дизайн квартиры П-44Т. В линейной «двушке» гардеробную можно обустроить двумя способами — в зависимости от того, в каком помещении что находится.
Если под спальню выделили большую комнату, гардеробную «отрежьте» гипсокартонной перегородкой за счет продления коридора, как на фото.
Наталья Преображенская | Бюро «Уютная Квартира»
Планировка 2а
Если предполагается, что в большой комнате будет гостиная, проблему хранения вещей решите при помощи нескольких шкафов вдоль стены. В этом случае дверь из прихожей в спальню смещается влево или вправо (в зависимости от ориентации кровати). И вместо двух шкафов по разным сторонам от входа организовывается один полноценный — во всю стену спальни.
Совет: Поскольку вещей много, их нужно не только где-то хранить, но еще и стирать, а в идеале — сушить. В ванной будет весьма закономерно обустроить мини-прачечную: совместив санузел. Установка душевой кабины позволит выиграть место под сушильную и стиральную машины (их можно установить под столешницей раковины).
Наталья Преображенская | Бюро «Уютная Квартира»
Планировка 3
Один из хозяев постоянно работает дома, необходимо полноценное (пусть и небольшое) рабочее место.
В идеале — полноценный кабинет, где будет тихо и домашние не смогут «смотреть в монитор».
В линейной двухкомнатной квартире П-44Т такую зону несложно с минимальной перепланировкой организовать в большой комнате. В этом случае удобнее обустроить в ней спальню и расположить рабочее место по дальней от окна стене, хорошенько продумав освещение. Малая комната станет гостиной.
Совет: При такой перепланировке перед нами также стоит задача сделать маленькую гостиную более просторной. Поэтому вместо глухой из прихожей в гостиную делаем два симметричных проема: в гостиной между ними расположите телевизор, а в прихожей — встроенный шкаф. Дизайн двухкомнатной квартиры серии П-44Т от этого только выиграет: гостиная станет визуально более объемной за счет отсутствия глухой стены.
Наталья Преображенская | Бюро «Уютная Квартира»
Планировка 4
В молодой семье появился малыш. При этом важную роль играет общение — как между собой, так и с друзьями и близкими.
В этом случае я предлагаю минимальную перепланировку с объединением кухни и гостиной. Этот вариант, конечно, потребует несколько больших усилий. Но зато вы получите достаточно места для просторного углового дивана или линейного дивана и кресла. Проход в кухню со стороны коридора уберите, тем самым объединяя и увеличивая санузел за счет коридора, как на фото. Заодно расширите полезную зону в кухне. Со стороны прихожей организуйте встроенные шкафы, немного уменьшив площадь гостиной.
Если вы остановились на гостиной с угловым диваном, противоположный угол можно уравновесить угловым шкафом — места для хранения в проекте квартир П-44Т совершенно не лишние.
Важно: Подобную перепланировку согласовать будет непросто, так как положительное решение БТИ будет зависеть от этажа расположения квартиры и других конструктивных факторов. Кроме того, гостиная получится проходной.
Наталья Преображенская | Бюро «Уютная Квартира»
Планировка 5
Хочется простора, но покупка квартиры большей площади пока невозможна или нецелесообразна.
Этот вариант для семейной пары, живущей отдельно от взрослых детей.
Объедините и расширьте ванную комнату за счет коридора. Проведите аналогичную предыдущему варианту перепланировку на кухне с объединением гостиной. Выделите еще большую часть комнаты под гардеробную; проем в большую комнату, которая будет спальней, переместите в сторону окна.
Если такой вариант изначально предусмотреть для пары с новорожденным ребенком, то вместо огромной гардеробной сможете выкроить детскую и родительскую спальню (родителей отправьте «в шкаф» — ребенку выделите часть комнаты с окном).
Важно: Эта альтернатива тоже подразумевает достаточно радикальные изменения с частичным сносом стен. Гостиная получится полностью проходной — в кухню и спальню можно попасть только из нее.
Инна Величко
Согласование перепланировки обязательно
Имейте в виду: осуществляя какие-либо действия с несущими конструкциями, обязательно пользуйтесь проектом с конструктивными расчетами.
К такому проекту потребуется также техническое заключение, а в ряде случаев даже проводится инженерное обследование (в том числе квартир соседей снизу и сверху). Если проект изготовлен не автором дома или его качество вызывает сомнение, согласующий орган может потребовать экспертизу или резолюцию от автора дома или органов Госжилинспекции.
ЧИТАЙТЕ ОБ ИНТЕРЬЕРЕ С ФОТО…
Houzz тур: Семейная квартира с декором из путешествий
ВАША ОЧЕРЕДЬ….
Давайте обсудим, какие плюсы и минусы вы видите в перепланировках? Быть может, вы сами живете в линейной двухкомнатной квартире П-44Т? Какие задачи вы решали в ходе свой перепланировки?
Спонсируемые
DÜSSELDORF | Ihr Experte für Neu- und Umbau von Wohnbau-Immobilien
Спонсируемые
Schönheit des Einfachen
проекты двухкомнатных квартир с фото
Дизайнерское оформление квартир позволяет принципиально переработать созданные по типичным стандартам отечественные застройки. Новые технологии и возможности в использовании современных материалов позволят сделать их удобными и комфортными, оптимально используя всю площадь комнат.
Чтобы разработать дизайн двушки линейки п44т нужно учесть их особенности и характеристики.
Основная проблема всех квартир в панельных домах – это несущие перегородки, практически исключающие перепланировку
Особенности двухкомнатных квартир линейки п44т
Содержание
- Особенности двухкомнатных квартир линейки п44т
- Характеристики двушек линейки п44т
- Линейные двухкомнатные квартиры
- Распашной тип двухкомнатных квартир
- Оформление комнат в двухкомнатной квартире линейки п44т
- Дизайн прихожей
- Оформление гостиной
- Оформление кухни
- Дизайн спальни
- Оформление детской
- Дизайн ванной и туалета
- Оформление балкона
- Советы и идеи по оформлению дизайна двухкомнатной квартиры линейки п44т
- Видео: Особенности панельных домов серий П44
- Фото: Примеры интерьеров двушек
Двушки в типах панельных домов п44т бывают двух вариантов: линейные и распашного типа.
Из особенностей обязательно стоит отметить наличие эркера и то, что все стены квартиры несущие, за исключением стен ванны и туалета, поэтому их демонтаж требует согласования и по практике не осуществляется.
Квартиры улучшенной планировки намного просторнее брежневок и хрущевок, поэтому позволяют реализовать самые разнообразные дизайнерские решения
Характеристики двушек линейки п44т
Данная линейка имеет жилую площадь 52 кв м с высотой потолка более 2.5 метра. Из общих характеристик также можно отметить раздельный санузел, большую площадь кухни (10 кв м). Достаточно большие комнаты, в среднем 12 и 18 квадратов, которые в зависимости от типа отличаются расположением. Прихожая прямоугольной формы до 5 кв м. Ванная и туалет стандартных размеров.
В разных домах серии п44т квартиры могут немного отличаться по площади и размерам комнат
Линейные двухкомнатные квартиры
Такое название получили из-за расположения окон, которые выходят на одну сторону. Прямоугольная прихожая, от которой расходятся санузел и кухня с одной стороны, по центру маленькая комната и большая, с другой стороны.
Считается, что такое расположение дает наилучшую освещенность. Но, от этого страдает возможность циркуляции воздуха. Линейки меньше распашонок, но и стоят на рынке недвижимости дешевле и, следовательно, раскупаются лучше.
Пример планировки линейной двушки
Распашной тип двухкомнатных квартир
Данный тип расположен в торцевой части дома. Особенность планировки заключается в расположении прихожей и возможным наличием эркера в большой комнате. Комнаты распашонок просторнее и циркуляция воздуха намного лучше. Окна комнат находятся на одной линии, окна кухни выходят на другую сторону.
Пример планировки двушки распашонки
Оформление комнат в двухкомнатной квартире линейки п44т
Дизайн двухкомнатной квартиры п44т может иметь несколько вариантов, в зависимости от количества проживающих человек. Проводя эксперименты с размещением мебели или использованием элементов декора можно уютно обустроить квартиру максимально используя все предоставленное пространство. Ниже можно посмотреть представленные в линейке домов п44т дизайн проекты 2 комнатных квартир фото вариантов оформления всех помещений.
Прихожая в таких квартирах – это своего рода перекресток со входами и выходами
Дизайн прихожей
Размеры прихожей позволяют разместить на ее территории несколько небольших шкафов для обуви и верхней одежды. Не стоит загружать прихожую объемными шкафами-купе, она должна быть функциональной и уютной. Ведь она создана для того, чтобы вместить всех вошедших и создать максимально комфортные условия для снятия обуви и верхней одежды.
Лучшим решением будет светлая цветовая гамма, сама по себе расширяющая пространство прихожей
Обувница с полочкой и вешалка с крючками – минимальный набор мебели для прихожей в современном стиле
Оформление гостиной
В этой комнате проводится все свободное время, и происходят все торжественные мероприятия с приемом гостей. В дизайне гостиной линейной двушки можно использовать зонирование. Размеры позволяют разделить ее на части, сделав небольшую спальню. Такая планировка не требует какого-либо оформления с юридической точки зрения.
Этот вариант подойдет многодетным семьям.
Отделить спальное ложе от общего пространства проще всего с помощью плотной шторы
Раздвижная стеклянная перегородка – более современный вариант зонирования комнаты
Интерьер гостиной должен быть интересным, но в то же время функциональным. Стоит использовать элементы, которые создадут комфорт не только для проведения встреч с друзьями и родственниками, но и пригодные для жизни условия.
Оформление кухни
В дизайне проекта двушки линейки п 44т кухня имеет значительную роль. В условиях наличия всего двух комнат зачастую именно кухня используется как место встреч с друзьями. Поэтому и здесь стоит обратить внимание на максимально полезное использование всей площади. Для создания простора можно цветовой гаммой разделить кухню на зоны: рабочую и отдыха. Оформление должно быть выполнено в таком стиле, чтобы на кухне можно было удобно готовить и комфортно принимать пищу или общаться с друзьями.
Интерьер светлой кухни в современном стиле
Лаконичный дизайн кухни в стиле минимализма
Дизайн спальни
Для семьи из двух человек в спальне в двушке п44 прекрасно будет смотреться в маленькой комнате.
Его можно выполнить, соблюдая стандартный стиль: вместительная двухместная кровать, шкаф для одежды, комод для белья. Она должна быть функциональной и размещаться должно все необходимое для жизни. Спальня одна из самых интимных частей квартиры, должна содержать все личные вещи для двоих.
Небольшая спальня с продуманной системой хранения вещей в виде встроенных шкафов
Спальная комната в скандинавском стиле с рабочим столом вместо подоконника
Оформление детской
В случае, если семья состоит больше двух человек, то маленькую комнату стоит использовать для создания детской. Выполнение маленькой комнаты в дизайне квартиры п44т двухкомнатной линейки как детской универсально подходит для одного или двух детей. Используя гипоаллергенные материалы и практичную детскую мебель можно создать уют для детей, который будет одновременно стильным и практичным. В такой детской ребенку будет комфортно заниматься, учиться, играть и приглашать своих друзей.
Высокая кровать с местом для хранения вещей и игрушек в комнате мальчика
Встроенная в нишу двухъярусная кровать – отличное решение для двоих детей
Дизайн ванной и туалета
Оформляя санузел важно учесть предпочтения всех проживающих.
Совмещая санузел увеличивается практичная площадь, что визуально объем помещения делает больше. Но, это дает дискомфорт, так как не дает возможности посетить туалет и ванную одновременно нескольким членам семьи.
Стильная ванная комната с контрастной отделкой керамической плиткой
Совмещенный санузел в смешанном стиле с оригинальным декором
В совмещенном санузле можно разместить стиральную машинку. Так же прекрасно впишутся навесные шкафчики для косметики и шкафы для грязного белья. Более гармонично будет смотреться ванная, тогда как для сохранения места в раздельном санузле стоит использовать душевую кабину.
Душевая кабина углового типа займет минимум пространства, оставив место для стиральной машины
Для отделки небольшого туалета необходимо использовать светлые оттенки
Оформление балкона
При дизайне балкона 2 комнатной квартиры линейки п44т можно использовать различные варианты: сделать из него небольшой личный кабинет, зону для занятия спортом или оранжерею.
Главное – использовать правильное распределение свободной площади и обеспечить защиту от воздействия внешних температур.
Благоустроенная лоджия прекрасно подходит для детского спортивного уголка
Рабочий кабинет подростка в лофтной стилистике
Советы и идеи по оформлению дизайна двухкомнатной квартиры линейки п44т
Главное при разработке дизайна п44т двухкомнатной линейки совместить пожелания всех членов семьи. Стоит учитывать ее расположение относительно сторон света, для регулировки освещенности внутри жилья.
При выборе стилей оформления можно использовать такие решения:
При помощи дизайнерских решений можно сделать очень интересный и привлекательный интерьер для жизни. Для сравнения представлены двухкомнатные квартиры п 44 разных дизайнов на фото.
Видео: Особенности панельных домов серий П44
Фото: Примеры интерьеров двушек
планировки с размерами, дизайн-проекты 1, 2, 3-комнатных квартир
Наверх
Тип дома: панельный
Планировочное решение: жилые дома, состоящие из торцевых четырехквартирных секций с 1, 2, 3 и 4 комнатными квартирами.
В двух, трех и четырехкомнатных квартирах эркеры
Этажность: 17 этажей
Высота потолков: 2,7 м
Технические помещения: подвал и чердак для размещения инженерных конструкций
Лифты: 2 (пассажирский, грузовой)
Строительные конструкции: наружные стены — трехслойные панели толщиной 300 мм, облицованные декоративным кирпичом; внутренние железобетонные — 140 и 180 мм; перегородки — 80 мм; перекрытия железобетонные — 140 мм
Вентиляция: естественная вытяжная в санузле и коридоре
Мусороудаление: мусоропровод с загрузочными клапанами на каждом этаже
Квартиры
1-комнатные
Площадь: 37,8 м2
Площадь: 38,1 м2
2 интерьера
Площадь: 37,8 м2
1 интерьер
Площадь: 37,8 м2
2 интерьера
2-комнатные
Площадь: 51,3 м2
15 интерьеров
Площадь: 59,3 м2
2 интерьера
Площадь: 43,6 м2
1 интерьер
3-комнатные
Площадь: 78,7 м2
Площадь: 75 м2
5 интерьеров
Площадь: 73,8 м2
3 интерьера
Площадь: 80,7 м2
2 интерьера
Площадь: 80,8 м2
6 интерьеров
Площадь: 74 м2
2 интерьера
Площадь: 83,87 м2
1 интерьер
Площадь: 77 м2
1 интерьер
4-комнатные
Площадь: 112 м2
3 интерьера
План размещения квартир в секции
- ivd.ru/images/cache/2018/9/25/q90_1811_18269abdef.gif» data-exthumbimage=»https://www.ivd.ru/images/cache/2018/9/25/q90_1811_18269abdef.gif» data-src=»https://www.ivd.ru/images/cache/2018/9/25/q90_1811_18269abdef.gif»>
Дизайн-проект
Комнат: 1
Площадь: 40 м2
Уютная однокомнатная квартира для стилиста
Реализованный проект
Комнат: 4
Площадь: 124,1 м2
Квартира в Черемушках
Дизайн-проект
Комнат: 2
Площадь: 58,7 м2
Спальня в гостиной и детская «на вырост»: двушка, ставшая трёшкой благодаря зонированию
Дизайн-проект
Комнат: 2
Площадь: 43,6 м2
Все оттенки красного в интерьере квартиры
Реализованный проект
Комнат: 2
Площадь: 52,5 м2
Двухкомнатная квартира в доме серии П-44П: Черная кошка в темной комнате
Реализованный проект
Комнат: 2
Площадь: 52,3 м2
Двухкомнатная квартира в доме серии П-44П: Зарождение дня
Дизайн-проект
Комнат: 3
Площадь: 87,9 м2
Строгие правила игры
Дизайн-проект
Комнат: 3
Площадь: 77 м2
Универсальная эстетика
Дизайн-проект
Комнат: 2
Площадь: 50,1 м2
Не выходя за «рамки»
Реализованный проект
Комнат: 2
Площадь: 51,3 м2
В стиле кантри
Реализованный проект
Комнат: 2
Площадь: 51,3 м2
Цвет + свет
Реализованный проект
Комнат: 2
Площадь: 51,3 м2
Звуки музыки
Реализованный проект
Комнат: 2
Площадь: 51,3 м2
Без перепланировки
Дизайн-проект
Комнат: 3Площадь: 80,7 м2
Нарядно и живописно
Дизайн-проект
Комнат: 4
Площадь: 112 м2
«Московский стиль»
Дизайн-проект
Комнат: 2
Площадь: 52 м2
Не в метрах счастье
Реализованный проект
Комнат: 1
Площадь: 38,1 м2
Однокомнатная квартира общей площадью 38,1 м2: Тоник для двоих
Реализованный проект
Комнат: 2
Площадь: 60,3 м2
Двухкомнатная квартира общей площадью 60,3 м2: В стиле «эспрессо»
Реализованный проект
Комнат: 2
Площадь: 60,3 м2
Двухкомнатная квартира общей площадью 60,3 м2: Солнечное настроение
Реализованный проект
Комнат: 1
Площадь: 37,8 м2
У домашнего очага
Реализованный проект
Комнат: 1
Площадь: 37,8 м2
Назад, к природе!
Реализованный проект
Комнат: 3
Площадь: 80,8 м2
Трехкомнатная квартира в доме серии П-44Т-4: В центре орбиты
Реализованный проект
Комнат: 3
Площадь: 80,8 м2
Трехкомнатная квартира в доме серии П-44Т-4: В лабиринте иллюзий
Реализованный проект
Комнат: 3
Площадь: 80,8 м2
Трехкомнатная квартира в доме серии П-44Т-4: Дом восходящего солнца
Реализованный проект
Комнат: 3
Площадь: 52,3 м2
Двухкомнатная квартира в доме серии П44Т: Звуки музыки
Реализованный проект
Комнат: 2
Площадь: 52,3 м2
Двухкомнатная квартира в доме серии П44Т: Элегантная сдержанность
Дизайн-проект
Комнат: 3
Площадь: 83,87 м2
Белое на белом
Дизайн-проект
Комнат: 3
Площадь: 51,3 м2
Необходимый минимум
Дизайн-проект
Комнат: 3
Площадь: 76 м2
Ремонт как форма самовыражения
Дизайн-проект
Комнат: 3
Площадь: 80,7 м2
Живописные импровизации
Дизайн-проект
Комнат: 3
Площадь: 74 м2
Волшебный свет полярной ночи
Реализованный проект
Комнат: 2
Площадь: 52,3 м2
Двухкомнатная квартира в доме серии П44Т: Цвет + свет
Реализованный проект
Комнат: 3
Площадь: 52,3 м2
Двухкомнатная квартира в доме серии П44Т: Эксклюзив без перепланировки
Дизайн-проект
Комнат: 3
Площадь: 76 м2
Вокруг оранжевой стены
Реализованный проект
Комнат: 4
Площадь: 88,45 м2
Простота на грани.
..
Дизайн-проект
Комнат: 3
Площадь: 75 м2
Издержки классицизма
Дизайн-проект
Комнат: 4
Площадь: 115,5 м2
Когда перепланировка почти невозможна
Реализованный проект
Комнат: 5
Площадь: 112,6 м2
Присоединяй и властвуй: Для трех поколений
Дизайн-проект
Комнат: 3
Площадь:  м2
Ремонт как форма самовыражения
Реализованный проект
Комнат: 4
Площадь: 112,4 м2
Присоединяй и властвуй: Контрастное решение
Дизайн-проект
Комнат: 3
Площадь: 80,7 м2
Под знаком стрекозы
Дизайн-проект
Комнат: 3
Площадь: 51,3 м2
Вопросы перепланировки: Необходимый минимум
Реклама на IVD.
ru
проектов двухкомнатных квартир с фото
Дизайн квартир позволяет в корне переделывать бытовые постройки, созданные по типовым образцам. Новые технологии и возможности в использовании современных материалов сделают их удобными и комфортными, оптимально используя всю площадь комнат. Для разработки конструкции двухсекционной линии п44т необходимо учитывать их особенности и характеристики.
Главной проблемой всех квартир в панельных домах являются несущие перегородки, практически исключающие перепланировку
Характеристики двухкомнатных квартир серии п44т
Содержание
- Характеристики двухкомнатных квартир серии п44т
- Характеристики двухкомнатных квартир серии п44т
- Линейные двухкомнатные квартиры
- Двухкомнатные квартиры распашного типа
- Оформление комнаты в двухкомнатной квартире линейка п44т
- Оформление прихожей
- Оформление гостиной
- Оформление кухни
- Оформление спальни
- Оформление детской
- Дизайн ванной и туалета
- Оформление балкона
- Советы и идеи по дизайну двухкомнатной квартиры линейка п44т
- Видео: Особенности панельных домов серии П44
- Фото: Примеры двухкомнатных интерьеров
Трехкомнатные квартиры в типах панельных домов п44т двух вариантов: линейного и распашного типа.
Из особенностей стоит отметить наличие эркера и то, что все стены квартиры несущие, за исключением стен ванны и туалета, поэтому их демонтаж требует согласования и не проводится в упражняться.
Квартиры улучшенной планировки значительно просторнее брежневок и хрущевок, поэтому позволяют реализовать самые разнообразные дизайнерские решения
Характеристика двух рядов п44т
Данная линейка имеет жилую площадь 52 кв.м с высота потолков более 2,5 метров. Из общих характеристик также можно отметить раздельный санузел, большую площадь кухни (10 кв м). Достаточно большие комнаты, в среднем 12 и 18 квадратов, которые в зависимости от типа различаются по расположению. Прямоугольная прихожая до 5 кв.м. Ванная и туалет стандартных размеров.
В разных домах серии п44т квартиры могут незначительно отличаться по площади и размеру комнат
Линейные двухкомнатные квартиры
Такое название получено из-за расположения окон, выходящих на одну сторону. Прямоугольная прихожая, от которой с одной стороны расходятся санузел и кухня, представляет собой небольшую комнату в центре и большую – с другой.
Считается, что такое расположение дает наилучшее освещение. Но, от этого страдает возможность циркуляции воздуха. Линейки меньше жилетки, но и стоят меньше на рынке недвижимости, а значит, и продаются лучше.
Пример планировки
Двухкомнатные квартиры распашного типа
Этот тип расположен в передней части дома. Особенностью планировки является расположение прихожей и возможное наличие эркера в большом помещении. Тамбурные помещения более просторные, а циркуляция воздуха намного лучше. Окна комнат на одной линии, окна кухни на другую сторону.
Пример раскладки разделки
Оформление комнаты в двухкомнатной квартире линейка п44т
Дизайн двухкомнатной квартиры п44т может иметь несколько вариантов, в зависимости от количества проживающих человек. Проводя эксперименты с расстановкой мебели или используя элементы декора, вы сможете максимально комфортно обустроить квартиру, используя все предоставленное пространство. Ниже вы можете ознакомиться с проектами 2-х комнатных квартир, представленных в линейке дизайнерских домов п44т, фото вариантов оформления всех комнат.
Прихожая в таких квартирах является своего рода пересечением входов и выходов
Дизайн прихожей
Размер прихожей позволяет разместить на ее территории несколько небольших шкафов для обуви и верхней одежды. Не стоит загружать прихожую объемными шкафами, она должна быть функциональной и удобной. Ведь он создан для того, чтобы вместить всех вошедших и создать максимально комфортные условия для снятия обуви и верхней одежды.
Лучшее решение – светлая цветовая гамма, которая сама по себе расширяет пространство прихожей
Обувница с полкой и вешалкой с крючками – минимальный набор мебели для прихожей в современном стиле
Оформление гостиной
В этой комнате проводится все свободное время, проходят все торжественные мероприятия с приемом гостей. Можно использовать зонирование в дизайне гостиной линейного двора. Размеры позволяют разделить ее на части, сделав небольшую спальню. Такой макет не требует никакого юридического оформления. Этот вариант подходит для большой семьи.
Спальную кровать проще всего отделить от общего пространства плотной шторой
Раздвижная стеклянная перегородка – более современный вариант зонирования комнаты
Интерьер гостиной должен быть интересным, но в то же время функциональным. Стоит использовать элементы, которые создадут комфорт не только для встреч с друзьями и близкими, но и подходят для условий проживания.
Отделка кухни
Кухня играет важную роль в дизайне двухсекционного проекта линии p 44t. При наличии всего двух комнат часто именно кухня используется как место встречи с друзьями. Поэтому здесь стоит обратить внимание на максимально полезное использование всей площади. Для создания пространства можно раскрасить кухню на зоны: рабочую и зону отдыха. Дизайн должен быть выполнен в таком стиле, чтобы на кухне можно было удобно готовить и комфортно принимать пищу или общаться с друзьями.
Интерьер светлой кухни в современном стиле
Простой минималистичный дизайн кухни
Дизайн спальни
Для семьи из двух человек в спальне в трехкомнатной квартире p44 отлично будет смотреться в небольшой комнате.
Ее можно сделать с соблюдением стандартного стиля: просторная двуспальная кровать, шкаф для одежды, комод для белья. Она должна быть функциональной и в ней должно быть размещено все необходимое для жизни. Спальня – одна из самых интимных частей квартиры, в ней должны быть все личные вещи на двоих.
Маленькая спальня с продуманной системой хранения в виде встроенных шкафов
Спальня в скандинавском стиле с рабочим столом вместо подоконника
Детская конструкция
Если семья состоит более чем из двух человек, то маленькое помещение следует использовать для создания детской. Исполнение маленькой комнаты в дизайне квартиры п44т двухкомнатной линейки в качестве детской универсально подходит для одного-двух детей. Используя гипоаллергенные материалы и практичную детскую мебель, вы сможете создать комфорт для детей, который будет и стильным, и практичным. В такой детской ребенку будет комфортно учиться, учиться, играть и приглашать своих друзей.
Высокая кровать с местом для хранения игрушек и игрушек в комнате мальчика
Встроенная в нишу двухъярусная кровать – отличное решение для двоих детей
Дизайн ванной и туалета
При проектировании ванной комнаты важно учитывать учитывать предпочтения всех жителей.
Объединение санузла увеличивает практическую площадь, что визуально делает объем помещения больше. Но, это доставляет дискомфорт, так как не позволяет нескольким членам семьи одновременно посещать туалет и ванную.
Стильная ванная комната с контрастной керамической плиткой
Совмещенная ванная комната в смешанном стиле с оригинальным декором
В совмещенном санузле можно разместить стиральную машину. Также прекрасно впишутся навесные тумбы для косметики и тумбы для грязного белья. Ванная комната будет смотреться более гармонично, при этом для экономии места в отдельной ванной стоит использовать душевую кабину.
Угловая душевая кабина занимает минимум места, оставляя место для стиральной машины
Для отделки маленького туалета необходимо использовать светлые оттенки
Оформление балкона
При оформлении балкона 2-х комнатной квартиры линейки п44т можно использовать различные варианты: сделать из него небольшой личный кабинет, спортивную площадку или оранжерею.
Главное использовать правильное распределение свободного пространства и обеспечить защиту от внешних температур.
Ухоженная лоджия прекрасно подойдет для детского спортивного уголка
Кабинет подростка в стиле лофт
Советы и идеи по дизайну двухкомнатной квартиры линейка п44т
Главное при разработке дизайна 44-й двухкомнатной линии – соединить пожелания всех членов семьи. Стоит учитывать его расположение относительно сторон света, регулировать освещенность внутри корпуса.
При выборе стилей оформления можно воспользоваться следующими решениями:
С помощью дизайнерских решений можно сделать очень интересный и привлекательный интерьер для проживания. Для сравнения, на фото двухкомнатные квартиры с 44 разными планировками.
Видео: Особенности панельных домов серии П44
Фото: Примеры двухкомнатных интерьеров
П44Т маленькая двулинейка.
Типовой дом серии П44Т Дизайн 2-комнатной квартиры классический п44тОгромная доля населения России и других стран постсоветского пространства проживает в типовых домах, и всем им рано или поздно предстоит ремонт. Так как квартиры в каждой серии домов имеют одинаковые планировки, то для комнат каждой серии есть самые популярные и удачные решения. В этой статье мы расскажем об особенностях дизайна двухкомнатной квартиры П44Т и дадим некоторые рекомендации.
Типы
В корпусах этой серии всего два вида двушек с двумя:
- Так называемая «тельняшка». Обе комнаты расположены симметрично, каждая из них имеет выход на лоджию. Этот вариант считается менее удобным, так как в дизайне 2 комнатной квартиры П44Т «тельняшка» сложнее осуществить перепланировку.
- Следующий тип таких жилищ характеризуется наличием эркера в кухонной зоне. Этот вариант проще перестроить под себя, так как в проекте 2-х комнатной квартиры п44т с эркером проще устроить гардеробную.

- Для первого типа жилья хорошей идеей будет убрать дверь между кухней и прихожей. Таким образом, кухня становится светлее и просторнее. Не помешает использовать одно и то же напольное покрытие на кухне и в прихожей, это тоже объединит все пространство.
- Если у вас есть дети, отдайте им одну из комнат, а во второй создайте и спальню, и гостиную.
- Для второго типа этого жилища предусмотрена специальная кухонная мебель, повторяющая форму эркера. Можно расположить столешницу вдоль окна, увеличив тем самым рабочую поверхность, а можно купить или заказать стол, подходящий по размеру. В любом случае есть возможность интересно поиграть с этой фичей.
- Кроме того, для такой жилплощади совмещение прихожей и кухни тоже будет отличной идеей.
- В прихожей, в пространстве между санузлом и входной дверью прекрасно поместится небольшой шкаф, а перед входом в самую большую комнату — гардеробная. Это позволит избежать громоздких шкафов и неопрятного внешнего вида.

- Используйте светлые тона, светлые натуральные материалы, грамотное освещение. Это визуально расширит метраж и сделает проживание намного уютнее.
Попробуйте объединить все зоны жилья в одно целое благодаря единому стилевому решению.
В домах П44Т дизайн двухкомнатной квартиры в целом не отличается от любой другой, за исключением пунктов, перечисленных выше. Так как невозможно разобраться во всех тонкостях такого сложного процесса, как проектирование будущего внешнего вида жилого помещения, советуем вам привлечь профессионального дизайнера. В нашей компании работают только самые лучшие и талантливые сотрудники, которые помогут вам сделать ваш интерьер по-настоящему удобный, стильный и надежный. Результат будет радовать вас долгие годы. Только настоящий профессионал своего дела способен распознать все истинные желания и потребности всех членов вашей семьи. Если вы не хотите тратить деньги на материалы и работу строителей, вам нужен дизайнер.
Дома серии П-44Т начали строиться в 1997 году и строятся по сей день, так как срок их службы достигает до 100 лет.
Эти многоэтажные дома от 9 до 25 этажей строятся в Москве и Московской области. Обычно на один подъезд приходится одна квартира-студия, две двухкомнатные и одна трехкомнатная.
Дома П44Т Планировки квартир
Также имеются угловые секции, где две трехкомнатные квартиры и две однокомнатные расположены на одном подъезде.
Перепланировка квартир в типовых домах может производиться по типовому проекту
Поскольку дома серии П-44Т имеют разную этажность, площадь однокомнатных, двухкомнатных и трехкомнатных квартир в разных домах тоже по разному. Так в однокомнатных квартирах общая площадь может быть от 37 до 39 кв.м, в двухкомнатных от 51 до 61 кв.м, а в трехкомнатных от 70 до 84 кв.м. Соответственно, площадь площадь кухни и жилой площади в разных домах будет разной. Высота от пола до потолка в квартирах от 2,70 до 2,75 метра. Туалет и ванная в трехкомнатных и двухкомнатных квартирах раздельные, а в однокомнатных совмещенные.
Санузел в ванной установлен стандартной длины 170 см. Вентиляционные каналы естественной вентиляции проходят на кухне и в туалете. В этих домах стены выполнены из железобетонных панелей, которые вместе с утеплителем имеют толщину 30 см, а межкомнатные и межкомнатные стены также выполнены из железобетонных панелей толщиной 16 или 18 см, а перегородки выполнены из гипсокартона. толщиной 8 см. Плиты перекрытия делаются на всю комнату толщиной 14 см. Квартиры в этих домах имеют очень хорошую звукоизоляцию, а система отопления оснащена регуляторами температуры. Ниже приведены некоторые типовые варианты перепланировки P44T.
Однокомнатные квартиры
Стандартная планировка однокомнатной квартиры состоит из прихожей, небольшого коридора, большой комнаты, кухни и туалета с ванной.
Дом серии П 44Т Планировка однокомнатной квартиры
Возможна перепланировка панельной квартиры по одному из типовых проектов, которые представлены ниже.
Перепланировка однокомнатной квартиры П 44
В этом варианте заделан коридор, по которому можно было пройти на кухню и вместо коридора сделана небольшая кладовка. В прихожей сделан встроенный шкаф. Вход в санузел перенесен из коридора в прихожую, а вход на кухню сделан прямо из комнаты.
Перепланировка П 44 однокомнатная квартира
В данном варианте заделан коридор по которому можно было пройти на кухню и вместо него сделан туалет. Увеличиваем прихожую за счет уменьшения санузла. В прихожей сделан встроенный шкаф и небольшая кладовка. В ванную и туалет можно будет попасть прямо из коридора, а на кухню — через комнату.
Перепланировка однокомнатных квартир в домах П 44Т
В этом варианте коридор, по которому можно было пройти на кухню, совмещен с санузлом. В прихожей сделана небольшая кладовая. Вход на кухню будет через комнату.
Двухкомнатные квартиры
Стандартная планировка двухкомнатной квартиры состоит из небольшой узкой прихожей, широкого коридора, из которого можно попасть в обе комнаты, на кухню и в туалет с ванной.
Планировка квартир П 44Т
Ниже представлены типовые перепланировки квартир.
В доме серии П44Т перепланировка двухкомнатной квартиры
В этом варианте санузел расширили за счет коридора, через который можно было попасть на кухню и установили в нем дополнительный туалет, и вход в старый туалет был сделан из кухни. Одну комнату сделали проходной, чтобы через нее можно было попасть на кухню. Вторую комнату уменьшили на ширину созданной кладовки и небольшого коридора, через который можно попасть в кладовку и во вторую комнату.
Перепланировка квартир П 44 с туалетом и ванной
В данном варианте произведена перепланировка ванной комнаты и туалета за счет увеличения их площади за счет коридора, через который можно было попасть на кухню. Одну из комнат сделали проходной, чтобы через нее попасть на кухню, а вторую оставили без изменений.
Перепланировка квартир П 44Т при установке джакузи
В этом варианте, как и в предыдущем, туалет совмещен с ванной и увеличена его площадь за счет коридора.
А вот стандартную ванну из санузла убрали и установили джакузи. Вход на кухню сделали через помещение, сделав его проходным.
Трехкомнатная квартира
Стандартная планировка трехкомнатной квартиры состоит из трех отдельных комнат, большой кухни, раздельного туалета и ванной комнаты, прихожей и коридора, из которого можно попасть во все помещения.
Планировка квартир П44Т
Перепланировка трехкомнатной квартиры п 44 может быть выполнена по одному из типовых проектов, которые приведены ниже.
Один из вариантов перепланировки трехкомнатной квартиры П44Т
В этом варианте одну из комнат увеличиваем за счет части коридора, но эта комната будет проходной, так как только через нее можно будет пройти в две другие комнаты и на кухню . За счет другой части коридора увеличится площадь санузла и его можно будет установить в нем вместо ванны-джакузи. При входе останется небольшая прихожая, из которой можно будет попасть в ванную, туалет и проходную комнату.
Перепланировка 3-х комнатной квартиры П44Т в 4-х комнатную
В этом варианте увеличиваем одну из комнат за счет части коридора, но эта комната будет проходной, так как только через него можно будет пройти в две другие комнаты и на кухню. За счет другой части коридора увеличится площадь санузла. В одной из отдельных комнат устанавливается перегородка с дверью и в результате получается дополнительная небольшая комната, которую можно использовать как кабинет. Из прихожей можно будет пройти в ванную, туалет и проходную комнату.
Перепланировка П 44 трехкомнатная
В данном варианте увеличивается площадь санузла за счет части коридора, через который можно было попасть на кухню и делается дополнительный санузел. Вход на кухню будет проходить через примыкающую к ней небольшую комнату. Можно поэкспериментировать с дверьми в две отдельные комнаты.
- Изготовитель: ДСК-1
- Разработчики: МНИИТЭП
Жилые квартальные секции серии п44т, разработанные в 1999 году и освоенные производством ОАО «ДСК-1», являются модернизацией секций серии П44 и имеют улучшенные по сравнению с ней архитектурно-планировочные решения.
Дома серии П44Т отличаются улучшенными планировками квартир, более эффективной тепло- и шумоизоляцией наружных стеновых панелей, а также наличием современных инженерных систем и систем безопасности (отопительные приборы с регуляторами температуры, медная проводка, технология закрытых стыков ( шов), мировые стандарты капитальности и огнестойкости (1-й класс), современная система безопасности (реагирование на открытие дверей подвала, электрощита, чердака, шахты лифта; система оповещения о затоплении и пожаре).
Серия п44т состоит из 14-17-этажных прямых и угловых блок-секций с различными вариантами кровли: с мансардным завершением, с плоской крышей, с «наклонными» фризами, что позволяет компоновать здания различной конфигурации и силуэта. Они могут быть высотой от 9 до 25 этажей. Новым в решении фасадов серии является сочетание облицованных матовыми панелями керамической плитки «под кирпич» (ярко-оранжевая, реже песочная), с окрашенными поверхностями эркеров, лоджий, карнизов и других архитектурных деталей.
.. треугольные эркеры проектируются на концах секций. проект предусматривает несколько вариантов остекления балконов и лоджий на северном фасаде. Серия п44т стала одной из самых распространенных для строительства муниципального жилья в Москве с объемом строительства более 1 млн кв. м в год.
Улучшены системы отопления, водоснабжения и вентиляции домов по сравнению с серией П44. Стояк вентиляционной шахты, находившийся на кухне в П44, перенесли в коридор возле П44Т (рядом с ванной и туалетом).
Дом П44Т состоит из угловой и рядной секций по четыре квартиры, аналогично базовой серии П44. Напротив, кухни двух- и трехкомнатных квартир П-44Т имеют большие трапециевидные эркеры. В то же время кухни односторонних двусторонних домов, а также жилые комнаты боковых тельняшек (2-х и 3-х комнатные) имеют треугольные полуокна. Также увеличена площадь квартир.
Надо понимать, что П-44Т это, по сути, группа серий — есть проекты домов П-44ТМ или ТМ-25, а также П-44К, которые имеют ряд отличий по планировкам квартир и макет.
типовые этажи. Причем иногда возводят жилые дома, составленные из нескольких вариантов секций, например, две секции П-44Т и четыре секции П-44К. Возможны и другие конфигурации комбинации секций.
Типовые планировки квартир в этой серии домов представлены ниже.
Чаще всего первый этаж жилой. Высота потолков в доме 2,70 м. Лифты в доме: пассажирский имеет грузоподъемность 400 кг, грузовой — 630 кг. В здании 20 и 25 этажей, имеется один пассажирский и два грузовых лифта (модификация называется П-44Т/25).
Остекление балконов начинается со второго или третьего этажа. Встречаются также экеры и полумеры в двух-трехкомнатной квартире. На одном этаже четыре квартиры.
Строительство таких домов началось в 1997 году, и успешно возводится сегодня.
Дома типа П-44Т строятся, как и в новых московских районах крупной застройки, таких как: Некрасовка, Новое Кожухово, Жулебино, Новокосино, Митино, Люблино, Марьинский парк, Южное и Северное Бутово, Ходынка и р-н деревня.
Северный. Также ведется застройка в старых районах Москвы, где сносят пятиэтажки и ветхие дома, это: Южное Чертаново, Нагатино, Перово, Зюзино, Очаково, Солнцево, Кунцево, Черемушки, Фили, Ховрино, Бескудниково, Коптево, Дегунино, Медведково, Свиблово, Юрлов, Измайлово, Алексеево, Лефортово, Зеленоград, Щукино, ул. Нижегородская, ул. 1905, ул. Борисовские пруды. Дома типа П-44Т строятся и в других районах Москвы (в том числе в ЦАО).
Новостройки П-44Т строятся не только в Москве, но и в городах Московской области. например: Балашиха, Железнодорожный, Люберцы, Лобня, Красногорск, Реутов, Московский, Котельники, Щербинка, Одинцово, Химки, в селе Медвежье Озёра и селе Голубое, также на деревьях. Пыхтино и дер. Брехово, а также в жилом комплексе «Бутово-Парк».
В Москве построено около 600 таких домов и в Московской области. — около 200 (включая строящиеся). По заявлению производителя срок службы такого дома составляет 100 лет.
Однокомнатная квартира: жилая площадь до 19 кв.
м, кухня до 8,4 кв.м. но не менее 7,4 (в доме 25 этажей кухня около 9 кв.м.), общая площадь может достигать 40 кв.м. м. но не менее 37 кв.м.
Двухкомнатная квартира: жилая площадь может быть до 34 кв.м. но не менее 19, площадь кухни до 13,2 кв.м. но не менее 8,3 кв.м. (в доме в 25 этажей кухня от 12,8 до 13,8 кв.м), общая площадь доходит до 64 кв.м. но не менее 52 кв.м.
Трехкомнатная квартира: жилая площадь может быть до 54 кв.м. но не менее 44 кв.м., площадь кухни до 13,2 кв.м. но не менее 10 кв.м., общая площадь достигает 84 кв.м. но не менее 70 кв.м.
Комнаты в домах серии П — 44Т, все изолированные. Раздельные санузлы делаются только в двух- и трехкомнатных квартирах, в однокомнатных квартирах санузел совмещенный. Ванны размером 1,7 м (стандарт).
Лестницы незадымляемые, в домах 20 и 25 этажей (тип П-44Т/25) балконы общие… На всех этажах имеется мусоропровод с загрузочным клапаном.
Плита кухонная электрическая… Естественная вытяжная вентиляция и вентиляционные блоки в коридоре и санузле.
Наружные стены: трехслойные, толщиной 30 см, железобетонные панели (теплоизоляция таких стен равна кирпичным стенам толщиной 90 см, по данным производителя). Межкомнатная и межкомнатная несущая — железобетонные панели толщиной 16 — 18см. Перегородки из гипсокартона толщиной 8 см. Перекрытия больших размеров в помещении, железобетонные плиты толщиной 14 см.
Продольные межквартирные несущие стены (в крайних квартирах, также межкомнатные). Все стены (межбалконные, межквартирные и межкомнатные) относятся к поперечным несущим.
Типы секций: рядовые (рядные, П-44-1), торцевые и угловые (поворотные). На входе из электрощитовой имеется два входа.
Ступени в подъезде: семь, ширина одной ступени (ступенька — расстояние между двумя несущими стенами), равна 300 сантиметрам (в трех центральных пролетах секции), в остальных — 360 сантиметрам разделы.
Варианты цвета наружных стен, могут быть следующие: песочный, темно-оранжевый и красный. Первые этажи могут быть: белыми или серыми с отделкой «под камень».
Кровля из плоскоскатной черепицы BRAAS DSK1. Над верхним (последним) жилым этажом находится технический этаж.
Отличительные особенности Дома типа П-44Т отличаются от более устаревшего типа П-44 (которые строились с 1979 по 2000 год): имеют более высокую теплоизоляцию, более увеличенную кухню, за счет выноса вентиляционного короба в коридор, отделка наружных стен кирпичом и эркером.
Также к достоинствам можно отнести: медную проводку, отопительные приборы с регулировкой температуры, первые классы мировых стандартов по капитальности и огнестойкости, подвод горячей воды с верхним разливом, быстрое возведение (этаж за три дня).
Но есть и недостатки домов этой серии: качество монтажа некоторых элементов наружных стен в отдельных домах, в двухкомнатных квартирах (линейки, с окнами в одну сторону), узкая маленькая комната.
В некоторых домах типа П-44Т можно купить квартиру с муниципальной отделкой.
По улице Маршала Василевского в 1997 году возведен первый дом типа П-44Т.
На набережной Яузы Рубцовского района построен один из самых видных, многоэтажных домов Москвы, из блоков секций П-44Т и П-44М … На типовой базе типа П-44Т в 2005 году были созданы типовые блоки — секции из вида П-44К , где в каждой секции на одну ступеньку меньше (6 ступенек на место семи), разумеется, только в однокомнатных и двухкомнатных квартирах . Сегодня такие типы более активно строятся на МКАД.
Ниже — большое фото и планировки квартир этой серии (нажмите на фото для увеличения и дополнительной информации).
Дома серии П-44
Первые дома серии П-44 начали появляться в 70-х годах, а дома строились даже в 90-е и 2000-е, без существенных изменений. Жилые секции в П-44 однотипные: угловые или приватные. Планировка квартиры зависит от типа сечения. Если серия рядовая, то на каждом этаже по четыре квартиры: две двухкомнатные площадью 50,2 кв.м. (линейная) и 57,8 кв.м. («Распашонка»), одну однокомнатную квартиру общей площадью 37,8 кв.м и одну трехкомнатную квартиру общей площадью 73,8 кв.
м. Дома серии П-44 – одни из самых массовых типовых домов, список распространения домов П-44 также впечатляет.
Преимуществом этой серии домов является наличие системы отвода дыма из межэтажных коридоров, а также бетон без керамзита в ранних домах, что обуславливает легкость сверления. К недостаткам можно отнести качество монтажа наружных панелей, которое встречается в отдельных корпусах. В первых домах полы на балконах были кривыми. Дома серии П-44 точно не подлежат сносу в короткие сроки из-за огромного потенциального срока службы.
Города распространения — Москва, Химки, Долгопрудный, Одинцово, Реутов, Серпухов, Железнодорожный, Щелково, Черноголовка, Московский, Лобня, Люберцы, Мытищи, Дзержинский, Электросталь, Кривой Рог, Иваново, Ярославль, Нижневартовск, Сургут, Петрозаводск, Тында 9000
Фото панельного дома»П-44″ от Солнцево
В угловой секции только двух- и трехкомнатные квартиры. Внутренние стены несущие, железобетонные, толщиной 140 и 180 мм, что не позволяет менять планировку, наружные стены с утеплением, трехслойные, толщиной 300 мм.
Серию узнают благодаря характерному синему или зеленоватому цвету. облицовочная плитка. В подъездах два лифта: грузовой и пассажирский. Планировку можно назвать удачной: комнаты изолированные, прихожие большие, кухни не менее 8 кв. м. К минусам можно отнести маленькую гостиную в «трешке» — всего 11 кв. Стандартная для того времени высота потолков 2,64 метра.
Планировки квартир в домах серии П-44.
В современном городском домостроении наиболее распространена компоновка П44Т, обладающая рядом безусловных преимуществ. Еще в семидесятые годы было начато строительство новых домов серии П44 по типовым проектам. По сути, это был первый шаг к дальнейшему развитию и внедрению более современных технологий строительства и планировки жилплощади.
Особенности компоновки P44T
P44T — макет с габаритами, отвечающими требованиям настоящего времени, предлагает около десяти решений. Варианты жилых секций для обычных и угловых квартир. Данная модель планировки применяется для жилых многоэтажных домов высотой от 9 до 25 этажей.
Для комфортного подъема жильцов и мебели на нужный этаж предусмотрено как минимум два лифта: пассажирский и грузовой.
Современные идеи планировки
Основная идея планировки P44T – максимальное использование пространства. В данном контексте пример удачного инженерного решения, позволившего увеличить площадь кухни. Столь важные для каждой хозяйки квадратные метры кухни были освобождены за счет размещения вентиляционного короба в коридоре. P44T представляет собой планировку с размерами, предполагающими высоту 2,7 м, что обеспечивает комфорт и хороший доступ дневного света в квартиры. Современные идеи планировки позволили использовать чердачные помещения. Планировка квартиры П44Т с увеличенными до 4,2 м размерами шага поперечных стен позволяет превосходно благоустроить помещение. Часто их объединяют с обычным полом, в результате чего получается двухэтажная квартира.
Преимущества П44Т
Дом П44Т планировки с размерами внутренних перекрытий 0,14м и 0,18м надежен и имеет длительный срок эксплуатации.
Износостойкость и устойчивость наружных стен перед внешними воздействиями обеспечивается отделкой керамической плиткой толщиной 0,30 м, имитирующей кирпич, которая надежно крепится к фасаду. Использование качественных стеклопакетов гарантирует хорошую теплоизоляцию, шумозащиту и создает комфорт. Оснащение различными современными системами контроля обеспечивает гарантию безопасности при пожаре и при угрозе затопления. Также в этом типе устанавливаются датчики открытия дверей технических помещений и электросчетчики. П44Т – макет с размерами, соответствующими типовым нормам этих проектов, предполагает прокладку проводов электричества внутри панелей. Это повышает безопасность эксплуатации и защиту самих проводов при любых ремонтных или строительных работах.
Важные преимущества Дома с планировкой П44Т имеют короткие сроки строительства и длительный период эксплуатации. Срок службы, гарантированный специалистами, составляет более ста лет.
Планировка П44Т с размерами стен значительно больше, чем в строящихся домах прошлых лет, обеспечивает дополнительную надежность конструкции, лучшую звукоизоляцию квартир и хорошую теплоизоляцию помещений.
При строительстве используется качественный тяжелый бетон, отвечающий за повышенную износостойкость.
Недостатки П44Т
Наряду с рядом достоинств можно назвать некоторые недостатки, встречающиеся в этом типе дома. Одним из них является неровность стен и пола. Устранить такой недостаток несложно, выполнив выравнивание и обеспечив дополнительную шумоизоляцию.
Технологические отличия планировки П44Т 25
Планировка П44Т 25 с размерами, описанными ниже, является современным и усовершенствованным типом планировки, применяемым для жилых домов высотой 25 этажей с увеличением площади квартир. Это шаг, ширина стен в сечении больше, а трехкомнатные квартиры оборудованы дополнительным санузлом. Технологические отличия П44Т 25 заключаются в повышенной этажности с увеличенным количеством лифтов до трех при грузоподъемности двух из них по 630 кг и одного — 400 кг. Площадь кухни увеличена до 9 кв.м в однокомнатной; до 15,9 кв. м в двухкомнатной линейной; до 13,8 кв.
м — в трехкомнатных и больших. Общая площадь 1-/2-/3-комнатных квартир составляет 37,4-38,8/51,7-63,4/77-84,6 кв.м соответственно.
Эркеры в домах П44Т
П44Т — планировка с размерами, указанными выше, все больше предусматривает использование эркеров, делающих квартиры не только эстетически более привлекательными, но и увеличивающих площадь помещений. Часть оконного пространства выводят на внешний фасад в виде выступа трапециевидной или другой формы, увеличивая таким образом объем помещения. Этот метод чаще всего используется на кухне. Благодаря эркерам помещение получает дополнительное освещение, увеличивается площадь, а фасад дома выглядит более привлекательно. Выступы могут быть различной формы: прямоугольной, треугольной, многоугольной или круглой. Эркер можно использовать и оформлять как отдельную зону, тогда он отделяется от основного помещения барной стойкой или визуальной перегородкой, например, ширмой. Заслуженной популярностью также пользуется укороченный вариант – полуокно.
Дизайнерские решения для кухни или комнаты с эркером могут быть намного интереснее, чем обычно.
П44Т — планировка с отличными для комфортной жизни размерами, на сегодняшний день наиболее распространенная в многоэтажных жилых домах. Архитекторы и проектировщики, работавшие над решением задач максимального комфорта квартир, не только реализовали их в проекта, но и сделал планировку интересной и оригинальной.
П 44 т планировка 2 комн. Маленькая двухлинейка P44T. Стиль лофт
Макет П-44Т с размерами
Планировки квартир в П44Т с вариантами перепланировки
Планировки двухкомнатных квартир серии П 44т
Жилет из двух частей
Обычно имеет площадь около 60-64 кв.м. На кухне большой эркер, а в каждой комнате просторный балкон. По сути, это та же трешка только с «откушенной» одиннадцатиметровой комнатой и примыкающим к ней участком коридора.
Линейная двушка П-44Т
Площадь односторонних двухкомнатных квартир колеблется в пределах 52 кв.м (51-53 кв.м). В них есть небольшие коридоры и балконы.
Однокомнатная квартира П-44 Т
Площадь однокомнатных квартир в П-44Т около 36-38 кв.м. В них небольшой балкон и совмещенный санузел.
Квартиры трехкомнатные П-44Т
Площади и конфигурации трехкомнатных квартир серии П-44Т характеризуются наибольшим разбросом (примерно от 73 до 86 метров). Планировочных решений тоже немало. Кухни в угловых секциях трешек не имеют эркеров, а их площадь обычно не превышает 10 метров. При этом 3-комнатные квартиры в общей и торцевой частях П-44Т имеют кухни с эркером и общей площадью от 12 до 14 кв.м.
Трешка с эркером в комнате (конец квартиры п44т)
Дома серии П-44
Первые дома серии П-44 начали появляться в 70-х годах, а дома строились даже в 90-е и 2000-е, без существенных изменений.
Жилые секции в П-44 однотипные: угловые или приватные. Планировка квартиры зависит от типа сечения. Если серия рядовая, то на каждом этаже по четыре квартиры: две двухкомнатные площадью 50,2 кв.м. (линейная) и 57,8 кв.м. («Распашонка»), одну однокомнатную квартиру общей площадью 37,8 кв.м и одну трехкомнатную квартиру общей площадью 73,8 кв.м. Дома серии П-44 – одни из самых массовых типовых домов, список распространения домов П-44 также впечатляет.
Преимуществом этой серии домов является наличие системы отвода дыма из межэтажных коридоров, а также бетон без керамзита в ранних домах, что обуславливает легкость сверления. К недостаткам можно отнести качество монтажа наружных панелей, которое встречается в отдельных корпусах. В ранних домах полы на балконах были кривыми. Дома серии П-44 точно не подлежат сносу в ближайшее время из-за огромного потенциального жизненного цикла.
Города распространения — Москва, Химки, Долгопрудный, Одинцово, Реутов, Серпухов, Железнодорожный, Щелково, Черноголовка, Московский, Лобня, Люберцы, Мытищи, Дзержинский, Электросталь, Кривой Рог, Иваново, Ярославль, Нижневартовск, Сургут, Петрозаводск, Тында 9003
Фото панельного дома «П-44» от Солнцево
В угловой секции только двух- и трехкомнатные квартиры.
Внутренние стены несущие, железобетонные, толщиной 140 и 180 мм, что не позволяет менять планировку, наружные стены с утеплением, трехслойные, толщиной 300 мм. Серию узнают благодаря характерному синему или зеленоватому цвету. облицовочная плитка… В подъездах два лифта: грузовой и пассажирский. Планировку можно назвать удачной: комнаты изолированные, прихожие большие, кухни не менее 8 кв.м. К минусам можно отнести маленькую гостиную в «трешке» — всего 11 кв.м, и стандартную высоту потолков 2,64 метра для того времени.
Планировки квартир в домах серии П-44.
Начал строиться в 1997г. и по настоящее время. У него есть своя модификация, которая отличается от него только этажностью — это серия Р-44Т/17.
Дом П-44Т панельный, состоит из угловых и рядных секций по четыре квартиры, где 1-комнатная квартира имеет жилую площадь 19м 2 , кухня — 7-9м 2 , санузлы совмещены; 2-комнатная квартира — 30-34 м 2 , кухня — 8-13 м 2 , санузлы раздельные; 3-комнатная квартира — 44-54 м 2 , кухня — 10-13 м 2 , санузел тоже раздельный.
Все комнаты в квартирах домов серии П-44Т изолированные. Все квартиры имеют эркеры и просторные балконы. Внутренние стены состоят из сборных железобетонных панелей толщиной 16 см и 18 см. Наружные стеновые трехслойные навесные панели с утеплителем из пенополистирола и теплоотражающей металлизированной пленкой внутри утеплителя, общая толщина 30 см; с лицевой стороны облицованы плиткой под кирпич, начиная со второго этажа. Перегородки из многих материалов: пазогребневые или пенобетонные блоки, листы гипсокартона на металлическом каркасе, гипсобетонные прокатные панели, но чаще всего из гипсобетона, все они одинаковой толщины – 8 см. Перекрытие — железобетонные плиты толщиной 14 см.
Серия жилых домов П-44Т имеет различные недостатки, такие как, узкое помещение в двухкомнатных линейных квартирах (с окнами на 1 сторону), швы между панелями требуют дополнительной промазки (иначе будет холодно). Возможности перепланировки в доме такого типа весьма серьезно ограничены.
Почти все стены несущие. Однако без вредного воздействия на несущие конструкции остаются следующие возможности допустимой перепланировки:
- В трехкомнатных квартирах перегородка между большой комнатой и коридором ненесущая.
- Сантехнический блок изготовлен из гипса и может быть демонтирован и/или модифицирован.
- В домах постройки после 2007 года в несущих панелях между кухней и комнатой в некоторых квартирах предусмотрена специальная ниша для дверного проема («вафля»), которую можно демонтировать.
Тем не менее, эта серия также имеет ряд преимуществ: в планировки добавились эркеры, медная проводка, естественная вытяжная вентиляция, горячее водоснабжение с верхним разливом, внешний вид приобрел особую окраску – красный с песком, эркеры и лоджии были выкрашены в белый цвет. Для проживания в домах серии П-44Т доступен мансардный этаж. Появилась современная система безопасности, реагирующая на открытие служебных помещений, затопление или угрозу пожара.
В каждом подъезде имеется один пассажирский и один грузопассажирский лифт, в 20-25-этажных секциях (подъездах) — по 2 грузовых и пассажирских лифта и один пассажирский. Количество подъездов от 1 до 8. Лестница незадымляемая, противопожарного балкона нет. Мусоропровод находится на лестнице, с загрузочным клапаном на площадке.
Срок службы дома серии П-44Т около 100 лет, поэтому надеяться на снос в ближайшее время не приходится.
Серия панельных домов П-44Т — новое поколение популярной Московской серии домов. Это самая распространенная современная шрифтовая серия в Москве. В планировки добавлены эркеры, качественно улучшена внешняя отделка здания, добавлен мансардный этаж. Серия была разработана в середине 1990-х годов. Годы постройки: с 1997 по настоящее время. Всего было построено около 800 домов. Нормативный срок эксплуатации дома — 100 лет.
В Москве дома серии П-44Т в основном строятся в районах массовой застройки: Измайлово, Лефортово, Перово, Нагатино, Южное Чертаново, Зюзино, Черемушки, Ховрино, Коптево, Бескудниково, Дегунино, Свиблово, Медведково, Юрлово, Алексеев, Солнцев, Кунцево, Фили, Щукино, Зеленоград, а также по ул.
1905, ул. Борисовские пруды и ул. Нижегородская.
В Московской области дома серии П-44Т построены в городах: Железнодорожный, Балашиха, Лобня, Красногорск, Люберцы, Московский, Котельники, Реутов, Одинцово, Химки, Щербинка, а также в пос. Медвежьи Озера (Щелковский р-н), пос. Голубое и дер. Брехово (Солнечногорский район), дер. Пыхтино и ЖК «Бутово-Парк» (Ленинский район).
Все комнаты в квартирах домов серии П-44Т изолированные. Все квартиры имеют эркеры и просторные балконы. В каждом подъезде имеется один пассажирский и один грузопассажирский лифт. В однокомнатных квартирах санузлы совмещены, в остальных раздельные. Лестница незадымляемая, противопожарного балкона нет.
Кухонная плита- электрическая, вентиляция естественная вытяжная, блоки на кухне и в санузле. Мусоропровод на лестнице, с загрузочным клапаном на площадке.
Серия домов П-44Т отличается от своего предшественника (серии) повышенной теплоизоляцией стен, вентиляционным коробом в прихожей, застекленными лоджиями, эркерами и полуокнами, а также узнаваемой внешней отделкой под кирпич , для проживания в домах серии П-44Т предусмотрен мансардный этаж.
Р-44Т, как и все остальные серии семейства, разрабатывался специально для. Первый дом серии П-44Т построен в 1997 году по ул. Маршал Василевский (Щукино). «Визитная карточка» — многоэтажный жилой комплекс на Рубцовской набережной Яузы (проект И-1774), построенный из блок-секций серии П-44Т и П-44Т.
Конструктивные характеристики и внешний вид домов серии типа П-44Т во многом аналогичен домам серии ,.
В 2005 году на базе стандартной серии П-44Т был разработан проект типовых блок-секций серии, где каждая секция имеет на одну ступень меньше (6 ступеней), а есть только одно- и двух- комнатные квартиры. В настоящее время эта серия более активно строится в пределах МКАД.
Подробная характеристика серии
| Входы | с 1 |
| Этажность | от 9 до 25, самые распространенные варианты 14, 17. |
| Высота потолка | 2,70 м. |
| Лифты | Один пассажирский (400 кг. ) и один грузопассажирский (630 кг.). |
| Балконы | Балконы застеклены во всех квартирах, кроме первого этажа. Эркеры и полуокна во всех двух- и трехкомнатных квартирах. |
| Квартиры на этаже | 4 |
| Годы постройки | с 1997 по настоящее время |
| Построенные дома | Москва: около 600, Московская область: около 200 (включая строящиеся). |
| Площадь квартир | 1-комнатная общая площадь: 37-40 м², жилая площадь: 19 м², кухня: 7,4-8,4 м² 2-комнатная общая площадь: 52-64 м², жилая площадь: 32-34 м², кухня: 8,3-13,2 м² 3-комнатная квартира общая: 70-84 м², жилая площадь: 44-54 м², кухня: 10-13,2 м² |
| Ванные комнаты | В однокомнатных квартирах совмещены, в двух- и трехкомнатных — раздельные. Ванны: стандарт |
| Лестница | Незадымляемый, с выходом на противопожарный балкон. |
| Мусоропровод | С загрузочным клапаном на каждом этаже.![]() |
| Вентиляция | Естественная и принудительная тяга на кухне и в ванной. |
| Стены и перекрытия | Наружные стены — железобетонные трехслойные панели толщиной 30 см. Внутренние межквартирные и внутренние стены — железобетонные панели толщиной 16 и 18 см. Гипсобетонные перегородки 8см. Перекрытие – железобетонные плиты толщиной 14 см. |
| Несущие стены | Продольные межквартирные (а также межквартирные в торцевых квартирах) и поперечные (межквартирные, межквартирные и межбалконные). |
| Цвета и отделка | Красный с песком, эркеры и лоджии — белый Облицовка «под кирпич», нижние этажи — облицовка «под камень» |
| Тип крыши | Плоская скатная с черепицей. Технический этаж: над верхним жилым этажом. Возможность обустройства мансардной квартиры. |
| Преимущества | Отопительные приборы с регуляторами температуры, медная разводка, ГВС с верхним водосливом, быстрые темпы строительства (1 этаж за 3 дня).![]() |
| недостатки | Качество монтажа отдельных элементов наружных стен в некоторых домах, узкое помещение в двухкомнатных линейных квартирах (с окнами на одну сторону) |
| Изготовитель | Московский Домостроительный Комбинат № 1 (ДСК-1) |
| Конструктор | МНИИТЭП |
План квартиры цветными красками
Особенно этот проект будет интересен тем, кто ждет пополнения в семье. Этот дизайн разработан для молодой семьи, ждущей малыша, в которой уже есть один ребенок. В этом доме ровные стены, что очень хорошо для владельцев квартиры, так как в других домах совсем другая история. Полы также ровные, без отклонений выше 2 сантиметров.
Полностью переделан балкон, так как старая конструкция зимой промерзла, и решили его утеплить.
Выход на балкон выполнен во французском стиле для увеличения жилплощади 55 квадратных метров квартиры, в которой не было возможности расширить помещение.
Низкие потолки не позволяли особого полета фантазии дизайнеров.
Прихожая
В квартире, расположенной в доме серии П-44, есть большой шкаф-купе с антресолью для хранения вещей и обуви.
Изумрудные детали входной зоны
Чтобы визуально расширить жилое пространство, прихожую оформили в тех же тонах, что и гостиную.
Сервер и маршрутизатор были спрятаны на закрытой полке для уменьшения шума. Электрощит облачили в специальный декоративный экран, и теперь он может служить для хранения газет и журналов.
Удобная полка для обуви
Гостиная
Детская комната была полностью изолирована, а гостиная приспособлена для сна хозяев двухкомнатной квартиры. В ней размещены вместительные шкафы и полки для книг, комод для хранения постельного белья, спальная зона и удобная офис для заказчика.
Шоколадная мебель на светлом полу
Из-за низких потолков в этой квартире не стали вешать большие люстры, а использовали обычные потолочные светильники.
По чертежам дизайнеров изготовлена необычная тумба под телевизор и расположенная над ней полка, а также некоторые предметы мебели. Стеллаж, который состоит из деревянных квадратов, отделяет рабочую зону от основной и является ярким элементом в этой комнате. На нем можно хранить документы и разные необходимые мелочи, а часть можно использовать как тумбочку.
Растения для улучшения экологии в помещении
Основной акцент в дизайне квартиры был сделан на цвет. Белые стены контрастируют с яркими бирюзовыми и шоколадными цветами в деталях мебели и отделки, что не раздражает обитателей квартиры, а придает динамизм интерьеру.
Интересным решением в гостиной-спальне стала натянутая бечевка для размещения различных семейных фотографий и детских рисунков.
Минимум мебели в просторной спальне
Столовая
Элемент экостиля – зеленый фартук, напоминающий летнюю полянку.
Округлые кухонные модули
Глянцевые кухонные поверхности зрительно увеличивают небольшую площадь.
Неопределенная графика подоконника обеденной зоны
Потолки украсили небольшими светильниками, а обеденную зону дополнительно осветили подвесным светильником.
Полосатые подушки на жестких стульях
Между столовой и прихожей нет дверей, чтобы комната казалась просторнее.
Спальня для детей
Питомник сделан с учетом интересов всех его обитателей, даже тех, кто еще не родился. Два одинаковых шкафа разместили по обеим сторонам окна, а рабочая поверхность, расположенная вдоль окна, позволяет разместить несколько детей. Двухъярусную кровать поставили возле входа с правой стороны.
Светлая комната для маленьких детей
В центре комнаты Зона свободной игры, обозначенная мягким ковриком изумрудного цвета.
Розовые и зеленые акценты в детской спальне
Пушистая трава для веселых игр
Ванная комната
Ванную комнату объединили с туалетом для увеличения площади санузла.



) и один грузопассажирский (630 кг.).
