Дизайн проект типовой двухкомнатной квартиры серии Г-5и
Что обычно отличает типовое жилье? Невысокие потолки, маленькие комнатки, узкие кухни и крохотные прихожие. Возможно ли это, изменить и превратить квартиру в уютное и комфортное для проживания пространство?
На фото:
Сведения о квартире: типовая 2-ух комнатная квартира площадью 42,6 кв. м, расположенная на 5 этаже 8-этажного дома серии Г-5и.
Владельцы квартиры: молодая мама и сын 9 лет.
Пожелания клиентов: интерьер в современном стиле, каждому члену семьи — свое пространство.
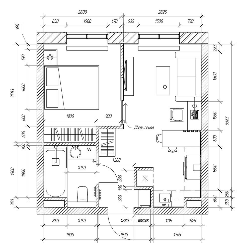
План типовой двушки.
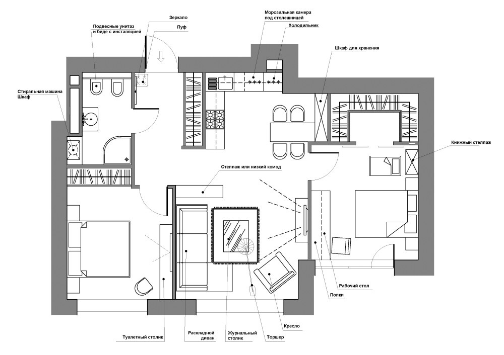
Стандартные дизайн-проекты типовых квартир обычно не блещут разнообразием — чаще всего клиенты настаивают на объединении кухни и гостиной. Но только не владельцы этой квартиры, их больше волновало личное пространство. Поэтому кухня осталась в изоляции, а гостевая зона была обустроена в спальной комнате.
Естественного света в квартире немного, поэтому мебель, стены и полы были выполнены в светлых тонах, светодиодная подсветка и глянцевые поверхности также добавляют света. Потолки невысокие, поэтому их декорировали венецианской штукатуркой и добавили много закарнизного света, который нацелен слегка «приподнять» потолок и за счет объемности штукатурки добавить ему сложности.
При перепланировке дизайн типовой двухкомнатной квартиры был слегка изменен: стена, отделяющая кухню от коридора, была демонтирована, в итоге кухня стала более просторной.
Объединение кухни с коридором подчеркивает мебельная стенка, которая тянется из прихожей в кухню.
Линейное размещение кухонной мебели позволило выделить место для обеденного уголка.
Одна из стен в гостевой зоне отдана под оригинальной формы стеллаж.
Напротив кровати расположился вместительный шкаф-купе.
В детскую удалось вписать минимальный набор необходимых предметов для ребенка — рабочий стол, кровать, место для хранения одежды и даже телевизор.
Письменный стол, как и положено, разместился у окна.
Детская оформлена в максимально светлых тонах — это касается и мебели, и отделки стен и полов.
В детской комнате предусмотрена подсветка разных зон.
По желанию владельцев квартиры в санузле вместо громоздкой ванны была установлена душевая кабина, она значительно экономит пространство.
Стены ванной покрыты широкоформатной плиткой, в районе душевого уголка — мраморной плиткой.
Типовой дизайн проект интерьера квартиры за 550 руб/кв.м.
Типовой дизайн проект интерьера квартиры за 550 руб/кв.
м Вы можете купить в студии Уника-дизайн! Мы работаем около 9 лет, за это время в нашей базе накопилось значительное количество типовых дизайн проектов квартир: дизайн проекты однокомнатной типовой квартиры, дизайн проекты типовых двухкомнатных квартир, а также дизайн проекты типовых трехкомнатных квартир, квартир в панельном доме, квартир распашонок. Благодаря имеющемуся на руках типовому дизайн проекту Вы можете смело начинать делать капитальный ремонт, не тратя время на создание индивидуального дизайн-проекта созданного специально под Вас или Вашу семью! У нас имеются типовые дизайн проекты квартир домов следующих серий: П44Т, П111М, П44К, ПИК1, ДОММОС, КОПЭ, серия КОПЭ-башня, П3МК ФЛАГМАН, ЕВРОПА, П3М, И155, серия ЕВРО, серия РД 17.04, ЛАЙМ, ГРАД-1М, ГМС1 (ГМС2001), серия ДомРик, 349-ПДШ, Град-4М, П-44ТМ, П-152.
У нас Вы можете купить типовые дизайн проекты интерьера квартир за 550 руб/кв.м.
с разным количеством комнат: типовые дизайн проекты квартиры студии, типовые дизайн проекты однокомнатных квартир, типовые дизайн проекты двухкомнатных квартиры, типовой дизайн проект трехкомнатной квартиры, а также типовой дизайн проект 4 комнатной квартиры. Для Вашего удобства дальнейшей эксплуатации квартиры мы все же советуем Вам заказать эксклюзивный дизайн проект интерьера квартиры, так так типовые дизайн проекты квартир не учитывают Ваши особенности и индивидуальность.
Вы можете заказать ИНДИВИДУАЛЬНЫЙ дизайн-проект интерьера квартиры под ключ, разработанный СПЕЦИАЛЬНО под Вас и потребности Вашей семьи. Цена такого типового дизайн-проекта квартиры-550 руб/кв.м. В данном проекте будут учтены все Ваши пожелания и задачи по будущему интерьеру Вашей квартиры, а также по максимуму будут задействованы особенности Вашего помещения. Так как каждый человек и каждая семья уникальны, то лучше все-таки заказывать ИНДИВИДУАЛЬНЫЙ дизайн-проект, который будет разработан специально под Вас.
Или можно адаптировать типовой дизайн-проект под потребности Вашей семьи. Всего за 550 руб/кв.м. Вы получите УНИКАЛЬНЫЙ дизайн-проект! Который будет радовать Вас долгие годы!
Самые популярные стили интерьера применяемые в современном дизайне для оформления интерьеров типовых квартир в 20018-2019 годах-это современный хай-тек, скандинавский минимализм, популярный модерн, всеми любимый лофт, эко стиль, вечная классика, милый деревенский прованс, кантри и шале-в основном применялись для дизайна интерьера загородных домов, и микс из этих стилей интерьера. Сейчас в моде смешивать разные стили интерьеров, так как от чистых стилей интерьера все уже устали, а яркий неожиданный акцент вносит изюминку в предсказуемый интерьер и производит впечатление легкого приятного шока. Этот стиль интерьера называется ШОК дизайн-тренд в дизайне интерьеров 2018-2019-2020 года.
Также по типовым проектам ремонта квартир мы осуществляем качественный капитальный РЕМОНТ типовых квартир под ключ в Москве и МО по доступным ценам! Мы пересылаем прорабу дизайн-проект Вашей типовой квартиры для примерной оценки стоимости работ, он составляет типовую смету ремонта квартиры, затем Вы встречаетесь с прорабом на объекте для уточнения деталей, и если цена Вас устраивает, то мы начинаем делать типовой капитальный ремонт.
Выгодный ремонт квартиры под ключ в новостройке по типовому дизайн проекту значительно облегчает работу и строительной бригаде, и жизнь заказчику в процессе капитального ремонта, так как его не беспокоят непрерывными мелкими вопросами касающихся текущего типового ремонта квартиры. Наши московские хорошие бригады осуществляют ВЫГОДНЫЙ типовой ремонт квартир с любым количеством комнат: ремонт типовой однушки, ремонт типовой двушки, типовой трешки, студий и 4х комнатных типовых квартир в панельных домах, а также квартир в новостройках Москвы и Московской области. Наши ремонтные бригады осуществляют капитальный ремонт любого уровня, как простой недорогой ремонт эконом класса, так и дизайнерский ремонт под ключ по индивидуальному дизайн проекту квартиры.
Фото капитального ремонта дизайна интерьеров типовых квартир (гостиной, спальни, кухни, детской, ванной комнаты, санузла, туалета, коридора, лоджии, балкона, кабинета и прихожей) в новостройках и вторичном жилье Вы можете посмотреть в нашем портфолио здесь.
СОСТАВ РАБОЧИХ ЧЕРТЕЖЕЙ ТИПОВОГО ДИЗАЙН-ПРОЕКТА квартиры:
- обмерный план
- план монтажа-демонтажа перегородок
- план стен с размерами после монтажно — демонтажных работ
- план расстановки мебели с размерами
- план расстановки сантехнического оборудования
- план дверей, размеры полотен, схемы открывания
- план полов с указанием площадей и типов покрытий
- план теплого пола с датчиками включения
- план потолков с указанием размеров и высотных отметок
- план освещения с привязками
- план расположения выключателей с привязками
- план расположения розеток и электрических выводов
!!! ЗВОНИТЕ ПРЯМО СЕЙЧАС !!!
ПРИМЕР ТИПОВОГО ДИЗАЙН-ПРОЕКТА ПЕРЕПЛАНИРОВКИ ОДНОКОМНАТНОЙ КВАРТИРЫ:
1) ОБМЕРНЫЙ ИСХОДНЫЙ ПЛАН ИМЕЮЩИХСЯ НЕСУЩИХ СТЕН ТИПОВОЙ ОДНОКОМНАТНОЙ КВАРТИРЫ:
2) ПЛАН РАССТАНОВКИ МЕБЕЛИ И САНТЕХНИКИ, ПЛАН ВОЗВЕДЕНИЯ НОВЫХ СТЕН ТИПОВОЙ ОДНОКОМНАТНОЙ КВАРТИРЫ:
3) ПЛАНИРОВКА ОДНОКОМНАТНОЙ ТИПОВОЙ КВАРТИРЫ С РАЗМЕРАМИ:
4) ОСВЕЩЕНИЕ ОДНОКОМНАТНОЙ ТИПОВОЙ КВАРТИРЫ:
5) ПЛАН РАСПОЛОЖЕНИЯ ВЫКЛЮЧАТЕЛЕЙ ТИПОВОЙ ОДНОКОМНАТНОЙ КВАРТИРЫ:
6) ПЛАН РАСПОЛОЖЕНИЯ РОЗЕТОК И ЭЛЕКТРОВЫВОДОВ ТИПОВОЙ ОДНОКОМНАТНОЙ КВАРТИРЫ:
7) ПЛАН ПОТОЛКОВ ТИПОВОЙ ОДНОКОМНАТНОЙ КВАРТИРЫ со светодиодной подсветкой в нише:
8) ПЛАН ПОТОЛКОВ ТИПОВОЙ ОДНОКОМНАТНОЙ КВАРТИРЫ с указанием размеров ниш:
9) ПЛАН ПОЛОВ ТИПОВОЙ ОДНОКОМНАТНОЙ КВАРТИРЫ с указанием материалов и площадей:
10) ПЛАН РАСПОЛОЖЕНИЯ КОНДИЦИОНЕРОВ ТИПОВОЙ ОДНОКОМНАТНОЙ КВАРТИРЫ:
ЦЕНЫ — здесь!
Заказать дизайн проект интерьера двухкомнатной квартиры
Что важно в дизайн-проекте двухкомнатной квартиры?
При индивидуальном дизайнерском проектировании 2 комнатной квартиры мы учитываем различные особенности:
- Если проживает один человек или семейная пара, то одна комната используется в качестве спальни, а другая – гостиной.

В данном случае перепланировка не является необходимой. С другой стороны, индивидуальный дизайн-проект двухкомнатной квартиры может предусматривать объединение кухни с одной из комнат. - Если в двушке проживает семья с детьми, то двухкомнатный дизайн-проект предполагает, что одной из комнат будет детская, а другой – спальня, в которой будут спать родители. При этом в данной комнате должно быть обеспечено зонирование пространства, что может потребовать перепланировки.
- 2-х комнатный дизайн-проект должен отличаться функциональностью. Жилье является не таким большим, поэтому здесь нельзя тратить свободное место.
Современный дизайнерский подход предполагает максимально рациональную организацию пространства с использованием стандартных и уникальных приемов. В оформлении может использовать классический стиль и самые смелые идеи. Для придания уюта внутреннее пространство украшается различными элементами декора, функциональной мебелью, позволяющей экономить пространство и обеспечить удобное хранение вещей.
Мы работаем с качественными и проверенными партнерами-поставщиками мебели и отделочных материалов. Любой дизайн-проект вы можете воспроизвести с детальной точностью, заказав мебель и декор по выгодным ценам. Для наших клиентов партнеры предоставляют скидки.
Заказать дизайн-проект двухкомнатной квартиры в ReRooms
Мы предлагаем вам выбрать готовый дизайн-проект двухкомнатной квартиры из числа представленных в нашей обширной базе. При необходимости, стандартный вариант может быть адаптирован под параметры вашего двухкомнатного жилья с учетом ваших пожеланий.
Вы можете заказать разработку индивидуального дизайн-проекта двушки. Просто позвоните или оставьте заявку на сайте. Дизайнер по телефону подробно расскажет обо всех особенностях работы, встретится в удобное для вас время, заполнит анкету с пожеланиями к дизайну и произведет замер помещения. Сразу же вы сможете подписать договор и внести предоплату. Через одну-две недели вы уже увидите первый вариант дизайна и сможете внести коррективы.
Дизайн типовой двухкомнатной квартиры от Nazca
Сегодня портал Интерьеров Комнат решил рассказать своим читателям об удивительной работе творческой команды из компании Nazca.
Они занимались оформлением двухкомнатных апартаментов для семьи, которой нравится комфорт и максимальное удобство.
Благодаря площади в 87 кв. м. проектировщикам удалось разместить всё, что нужно, при этом не отягощая пространство большим количеством предметов.
Выдержан интерьер в современном направлении, но больше, наверное, всё-таки в индивидуальном.
Оформление жилища для семьи, которая придерживается традиций, предусматривает наличие комнаты для сна и объединённых в одно пространство кухни, гостиной и трапезной.
В зоне, где готовят пищу, неяркий блеск металлических поверхностей смягчается благодаря мрамору зеленоватого тона над рабочей столешницей.
Обеденный стол в трапезной также оформлен мрамором, как-бы перекликается с фартуком.
Благодаря такому решению удалось гармонично объединить два помещения.
А вот зона гостиной представлена оригинальной модели диваном из натуральной кожи нежного горчичного тона.
Его дополняет небольшой журнальный столик. Все эти три зоны объединяются с помощью напольного покрытия из паркета «Kahrs» и разного оттенка на стенах.
Маленькая, но уютная спаленка в интерьере двухкомнатной квартиры играет основную роль.
Оформлена она в серо-белом тоне с добавлением ярких акцентов.
Текстиль и двери на шкафе-купе пересекают полосы насыщенного цвета сочной травы, в углу можно заменить ярко-жёлтый табурет, а на стенах развешена живопись, гармонично дополняющая цветовую гамму интерьера.
Также в обустройстве этого жилища не последнюю роль отвели осветительным приборам.
В спальной комнате использовали встраиваемые светодиодные приборы, дающие рассеивающий свет.
А возле огромной кровати расположились поворотные светильники, световой поток от которых можно направить в любую точку.
Санузел сделали совмещённый, что позволило увеличить площадь комнаты и сделать её ещё более вместительной.
Его также поделили на две зоны, используя для разделения арку, отделяющую кабинку с душем и машинку для стирки от помещения с унитазом.
При оформлении последнего была использована сантехника компании «Jacobdelafon», она считается одной из ведущих производителей предметов интерьера для ванной.
При оформлении ванной проектировщики использовали два основных цвета: коричневый и ваниль.
Они грамотно сыграли на гармоничном сочетании в керамике, применённой в отделке стен и пола.
Это помещение хоть и небольшое, но имеет важное значение в любом доме.
Дизайн типовых квартир П-44Т. Готовые проекты.
Надоел скучный, неинтересный интерьер собственной квартиры? Хочется что-то изменить — сделать уникальной гостиную, стилизовать спальню?
Компания «ARSTELLE DESIGN» предлагает вам на выбор один из типовых дизайнов. Никаких сумасшедших переплат за услуги дизайнера. Небольшие доработки с учетом Ваших желаний, особенностей комнат – и уникальное решение воплощается в жизнь!
В чем состоит наша работаНа этапе подготовки наши высокопрофессиональные специалисты:
изучат и проанализируют характеристики помещения;
выработают несколько оптимальных для существующих условий решений;
предложат их на выбор заказчику.

После того, как клиент выберет один из предложенных типовых дизайнов, мы детализируем условия контракта, проведем технические, а также финансовые расчеты. Далее происходит подписание соглашения и мы приступаем к ремонту.
Если же клиент потребует модернизации предложенного дизайна, то мы вносим необходимые поправки. Работы начинаются только после одобрения клиентом получившегося решения.
Для «ARSTELLE DESIGN» важен не количественный показатель работ, а их результативность. Мы щепетильно относимся к своей репутации, учитываем все малейшие требования заказчика и качественно реализуем их при создании дизайна интерьера. Наши цены демократичны, а ассортимент готовых решений применим к любому типовому строению.
Наше портфолио – это кладезь готовых дизайнерских решений. Многие из них можно изучить на нашем сайте. Если же у вас появляются какие-либо вопросы или вы хотите уточнить цены, объём работ, сроки – свяжитесь с нами любым способом (контакты указаны наверху).
Мы с радостью ответим на все вопросы!
Планировка двухкомнатных квартир | Дизайн проекты двухкомнатных квартир
Задумали ремонт в своей двушке? Чтобы правильно организовать пространство, для начала составьте дизайн проект двухкомнатной квартиры. Реализовать любые задумки вам поможет универсальная программа для проектирования квартир и домов Дизайн Интерьера 3D. Читайте статью, чтобы узнать о ее возможностях!
Скачайте программу Дизайн Интерьера 3D
Продумайте дизайн двухкомнатной квартиры
в 3D режиме своими руками
СКАЧАТЬ СЕЙЧАСЯзык интерфейса:Русский
Размер дистрибутива:85 МБ
Готовые дизайн проекты 2-х комнатных квартир
Предлагаем вам два интересных варианта, которые вы можете использовать:
Для работы с проектами требуется установить программу «Дизайн Интерьера 3D».
Скачать ее можно тут. В первом проекте представлена квартира для одного человека или пары без ребёнка, в другом — вариант жилища для семьи с детьми. На основе проектов вы можете быстро создать собственные макеты в «Дизайне Интерьера 3D» – просто скорректируйте базовые объекты так, как вам нравится.
Особенности планировок двухкомнатных квартир
Две комнаты дают определённый простор для манёвра. Не нужно изворачиваться, пытаясь уместить на восемнадцати квадратах гостиную, спальню, детскую и рабочий кабинет. Однако планировку нужно тщательно продумать. Итоговый вариант дизайна зависит от того, кто будет проживать в квартире, ведь решения для жилища холостяка разительно отличаются от потребностей многодетной семьи.
1. Особенности планировки квартиры для одного человека и пар без детей
Самостоятельно продумать дизайн в данном случае несложно. Важно лишь ориентироваться на предпочтения и потребности жильцов.
- ✓ Хорошей идеей будет объединение гостиной и столовой, особенно, если в квартире маленькая кухня.
Оставьте её для приготовления пищи, а стол перенесите в зал; - ✓ Спальня – тихое место, её можно соединить с рабочим пространством. В качестве зонирующих элементов используйте шкафы, ширмы;
- ✓ Балкон станет замечательным местом семейного отдыха, если поставить туда столик, стулья или уютные плетёные кресла.
Макет двушки для холостяка или семьи без детей
2. Особенности планировки квартиры для семьи с детьми
Дом, где есть ребёнок, требует особого подхода к планировке. В двушке одна из комнат будет выделена под детскую, а значит возрастает нагрузка на оставшиеся помещения. Взрослым придётся довольствоваться одной комнатой, уместив там всё необходимое. Это легко осуществить благодаря грамотному дизайну.
- ✓ Чтобы не занимать огромной кроватью без того небольшое пространство,стоит приобрести компактный раскладной диван;
- ✓ Полками отгородите рабочую зону от гостиной;
- ✓ Используйте лёгкую мебель, не загромождающую пространство.

Макет современной двушки для семьи с ребёнком
Создание проекта самостоятельно в 3D программе
Шаг 1. Планировка в программе
Если вам требуется качественный дизайн-проект двухкомнатной квартиры — нет ничего проще, чем сделать его в нашем 3D-редакторе. Откройте программу и создайте новый проект. Вам достаточно представить себе желаемое помещение и нарисовать его стены в специальном редакторе. Затем подберите из большой коллекции программы отделку, мебель, дверь и освещение. Не забудьте про окна. Буквально 10 минут — и квартира вашей мечты готова.
Шаг 2. Отделка и декор двухкомнатной квартиры
2-х комнатная квартира-распашонка 60 кв. м – достаточно просторное помещение, поэтому, готовя дизайн проект типовой двухкомнатной квартиры, не обязательно прибегать к хитростям для иллюзорного расширения пространства. Чувствуйте себя свободно, выбирая отделку, проявите творческое мышление.
1.
Кухня. Хорошо подойдут плитка и моющиеся обои – сможете устранять следы пищи быстро и без последствий для отделки. Выбирайте светлые материалы для стен, это сделает помещение зрительно шире, создаст ощущение чистоты и уюта.
2. Зал. Если вы совмещаете в одной комнате гостиную, спальню и рабочий кабинет, стоит выбрать для оформления интерьера более спокойные оттенки. Сдержанные цвета не будут раздражать при длительном наблюдении. Когда зал в основном служит местом приёма гостей, а кровать и рабочая зона находятся в другом помещении, можно поэкспериментировать с яркими дизайнами.
3. Детская. С интерьером детской требует внимательного подхода как с точки зрения внешнего вида, так и со стороны безопасности. Стоит выбрать весёленькие светлые обои, поднимающие настроение. На пол можно постелить ковролин – он немного сложнее в уборке, но ходить и играть будет приятнее.
Оформление уютной детской комнаты
Расстановка мебели в двухкомнатной квартире
Помимо вкуса жильцов и стиля помещений, на выбор предметов мебели влияет:
- ✓ количество людей, проживающих в квартире, и их потребности;
- ✓ назначение помещения;
- ✓ размер комнаты и количество предметов интерьера;
- ✓ расположение дверей и окон в комнатах.

Когда приходится делить помещение на несколько функциональных зон, предметы интерьера становятся незаменимыми помощниками. Вместо глухих перегородок, которые занимают много места и некрасиво дробят помещение, можно визуально отделить рабочее место от кровати с помощью мебели.
Зонирование помещения с помощью серванта
Если комната предполагает большое количество мебели, не приобретайте громоздкие экземпляры. Они перегружают помещение, скрадывая жизненное пространство. Лёгкая воздушная мебель, наоборот, создаст ощущение свободы.
Создайте свой дизайн в программе Дизайн Интерьера 3D
Столь многое нужно предусмотреть прежде, чем делать ремонт в 2 комнатах. Удержать каждую мелочь в голове крайне сложно. Ещё сложней – точно представить, как продуманный дизайн будет выглядеть в реальности. Чтобы не играть в лотерею, имеет смысл составить проект в специальной программе. Дизайн Интерьера 3D позволяет подготовить схему квартиры, даже не обладая специальными навыками.
Бесплатно скачать дистрибутив можно на нашем сайте.
Установив софт, вы сможете воспроизвести макеты всех помещений с точными размерами стен и высотой потолков, попробовать разные варианты отделки и расстановки мебели, а потом выбрать тот, что более всего подойдёт для вас. Останется только реализовать готовый дизайн проект двухкомнатной квартиры и наслаждаться продуманным до мелочей интерьером.
Варианты планировок двухкомнатных квартир
Хотите выбрать улучшенную планировку даже для обычной хрущёвки или брежневки? Нет ничего проще — ознакомьтесь с различными стилями и изучите фото!
Стиль Лофт — это выбор любителей индустриальных окраин и мрачной киберпанковой романтики. Для него характерно отсутствие уюта и комфорта, они заменяются своеобразной атмосферой. Для отделки лучше использовать кирпичи, бетон и железо, от природных компонентов стоит избавиться.
Также идеально подойдёт квартира-студия без лишних дверей и перегородок. Также не забудьте украсить своё жилище трубами, цепями и прочей тематической атрибутикой. Из украшений для лофта характерен поп-арт, абстрактные картины и скульптуры.
Модерн подойдёт для тех, кто стремится идти в ногу со временем, но при этом тает от классических интерьеров XVIII века. Стиль умудряется совмещать в себе современные веяния и резную, украшенную завитушками мебель, дорогие ковры, роскошные кресла. Особо внимание стоит уделить спальному месту — оно должно выглядеть самой дорогой и представительной мебелью в доме.
Стиль барокко погружает нас в атмосферу комфорта и роскоши. Он зародился ещё в XVII-XVIII веках и умудряется до сих пор будоражить умы людей при деньгах. Обставив свою квартиру в стиле барокко, вы точно подчеркнёте свой высокий статус и вполне сможете сойти за современного аристократа.
А вот людям, которые тяготею к романтизму и чувствуют, что они родились не в ту эпоху, стоит присмотреться к готическому стилю.
Вы сможете создать свой собственный мини-замок с остроконечными окнами, винтажными люстрами и высокими колоннами. Впрочем, очевидно, что для этого придётся искать подходящее здание с уходящими ввысь потолками и каменными полами.
Любителям экзотики стоит обратить внимание на этнический стиль. Он предлагает безумно интересную помесь современного дизайна интерьера с орнаментами, ловцами снов, разнообразными узорами и яркими цветами. Даже если ваша цель — планировка двухкомнатной хрущёвки с невзрачным внешним видом, вы удивитесь, насколько она преобразится с индийскими или китайскими национальными украшениями. Впрочем, можно взять курс и на русский фольклор — и украсить комнату гжелью, вышивками и платками.
Не стоит обходить вниманием и азиатскую культуру. Китайский стиль — один из самых интересных вариантов, который можно встретить в русской квартире. Правда, сперва придётся освоить фен-шуй и немного изучить историю китайского народа — чтобы подходить к декорации не огульно, а со знанием дела.
Самое главное — наполнение квартиры должно отражать ваш характер как владельца. А само жилище должно настраивать на медитативный лад и позволить избавиться от дневных забот.
Для любителей южного колорита тоже найдётся вариант — марокканский стиль, впитавший в себя традиции Африки и южной Европы. Его отличается чрезмерная красочность и множество маленьких декорных деталей: медальоны, амулеты, палочки, картины. А также декоративные ниши, обязательно украшающие каждую комнату или здание в марокканском стиле.
А если вам не хочется ограничивать себя рамками одной культуры и есть желание собрать понемногу от нескольких — к вашим услугам колониальный стиль. Он напоминает нам о давних географических открытиях и позволяет умеренно смешивать традиционный английский стиль с африканскими и индийскими мотивами. Для дизайна в колониальном стиле характерна богатая и помпезная обстановка, соседствующая с природными элементами и простоватой малогабаритной мебелью, как будто вы вынуждены обустраивать жилище в одном из африканских племён, и у вас внезапно закончились стройматериалы.
Стиль арт-деко подойдёт тем, кто хочет полностью погрузиться в красоту и роскошь. Он крайне гармоничен и элитен, поэтому готовьтесь к высокой цене за винтажную мебель и кресла ручной работы. Стены и потолки лучше выполнить в ярких контрастных тонах, а в отделке кое-где может появиться даже золото. Глянец, броскость, гламур — вот что такое арт-деко.
Чтобы создать дизайн-проект двухкомнатной квартиры — не придумать ничего лучше, чем скандинавский стиль. Это решение для тех, кто любит «просто и со вкусом», при этом ценит уютную домашнюю атмосферу. Норвежцы и шведы явно очень любят белый цвет — из него и его оттенков почти полностью состоят квартиры в скандинавском стиле. А также весьма рекомендуется употребление настоящего дерева в качества материалов фурнитуры. Даже обычный панельный дом расцветёт с такой обстановкой. Этот стиль — торжество естественности и минимализма, он не предполагает излишков и роскоши, зато и обойдётся вам недорого.
Подводя итог
Теперь вы представляете, какое разнообразие стилей существует в сфере дизайна интерьеров. Если у вас в мыслях появилась планировка двухкомнатных квартир — вы обязательно найдёте что-то по вкусу. Не забывайте, что никто не запрещает экспериментировать и смешивать различные стили, создавая нечто совершенно новое и необычное. А поможет вам в этом лучшая программа для проведения ремонта — Дизайн Интерьера 3D. Скачайте её прямо сейчас, и уже через полчаса у вас будет готовый макет будущей квартиры.
Понравилась статья? Расскажите друзьям:
Дизайн двухкомнатной квартиры: 120 Лучших Интерьеров [2019]
Двухкомнатная квартира – простор для дизайнерских перепланировок
Востребованность двухкомнатных квартир на рынке недвижимости объясняется прежде всего удачным балансом стоимости и жилой площади. Квартира с квадратурой 40-65 кв. м (в домах современной застройки может доходить до 85 кв.
м) позволяет организовать эргономичное, эстетически привлекательное, удобное, функциональное и уютное пространство. Дизайн двухкомнатной квартиры позволяет реализовать практически все основополагающие зоны, включая обеденную, а площади достаточно для разноплановых дизайнерских решений.
Содержание:
Перегородка из стеклоблоков прекрасно впишется в интерьер в стиле лофт
Кухня, столовая и гостиная объединены в одно помещение
Популярный прием перепланировки – соединение комнаты с балконом
Удачный пример зонирования многофункционального пространства
Ремонт и дизайн интерьера двухкомнатной квартиры начинается с ответа на простой вопрос: кто будет здесь жить – холостяк, семейная пара, семейная пара с ребенком или детьми. Именно от этого напрямую зависит функциональное зонирование помещений:
- Для семьи с ребенком – одна комната становится детской, другая выделяется родителям, которая становится и спальней, и гостиной. Интерьер и обустройство детской комнаты зависит прежде всего от возраста ребенка.

Объединение балкона с детской комнатой поможет добавить дополнительные квадратные метры к общей площади
- Для семейной пары или одного человека жилое пространство логично разделить на две зоны – спальную и гостиную.
Перепланировка двухкомнатной квартиры
Белый цвет в отделке помещения зрительно увеличит пространство
Яркие элементы декора помогут разнообразить дизайн и сделать его более выразительным
Перепланировка – это возможность кардинально скорректировать существующий план квартиры. С одной стороны, это возможность хоть как-то исправить имеющиеся недостатки площади, получить дополнительное пространство или разумно его перераспределить. С другой – «подогнать» имеющееся пространство под выбранную стилистику декорирования, что особенно актуально, если есть желание создать интерьер в стиле лофт.
Интересное оформление спальной зоны в интерьере квартиры-студии
Спальня со светлым потолком частично отделена от кухни-столовой
Двухкомнатная квартира, переделанная в уютную квартиру-студию
Возможности перепланировки могут быть серьезно ограничены техническими характеристиками жилья – это возраст постройки, расположение несущих стен, дверей и окон.
В любом случае перепланировка (строго говоря, любое изменение имеющихся конфигураций помещения, закрепленных в плане БТИ) потребует согласований, особенно если затрагиваются несущие стены, переносится санузел или инженерные коммуникации. Иногда затраты на оформление технического заключения и новой документации могут оказаться очень значительными – так что нужно поинтересоваться заранее, стоит ли планируемый эффект подобных расходов.
Шкаф-купе с зеркальными дверями – отличный вариант для визуального увеличения пространства небольшой спальни
Чтобы в дальнейшем не было проблем, перепланировку лучше узаконить
Лоджию в квартире можно переоборудовать более функционально – например, под рабочее место
Чаще всего перепланировка заключается в объединение кухни и прилегающей комнаты, но здесь есть одна сложность – согласно действующим нормативам, запрещено объединение газифицированной кухни и жилой комнаты без установки перегородки (хотя бы раздвижной). В любом случае эти вопросы требуют дополнительного уточнения.
Удачное сочетание двух разных стилей при оформлении интерьера двухкомнатной квартиры
Единственный способ увеличить маленькую кухню – объединить ее с гостиной
Белоснежные подвесные потолки на фоне брутальных бетонных плит смотрятся очень эффектно
Вторичный рынок жилья чрезвычайно разнообразен, но всю разнородность застройки (правда, достаточно условно) по характеру планировки можно разделить на несколько видов.
Тумба с телевизором послужит отличной границей между гостевой зоной и зоной отдыха
Дизайн двухкомнатной хрущевки
Квартиры, жить в которых без перепланировки – это изысканный вид пытки: маленькие тесные комнаты с низкими давящими потолками, тесная прихожая, склеп-санузел – для первоначальной планировки в хрущевке трудно подобрать соответствующие эпитеты. Коррекция жилой площади значительно упрощается тем, что в подавляющем большинстве случаев внутренние перегородки – не несущие, плюс изготовлены из кирпича, что существенно упрощает демонтаж.
Для зонирования небольшой квартиры можно использовать стеклянные перегородки
Современный классический стиль в оформлении интерьера двухкомнатной квартиры
Разноцветное оформление стен – один из способов зонирования помещения
Дизайн двухкомнатной квартиры хрущевки обычно предусматривает два самых популярных типа перепланировки:
Объединенный дизайн двухкомнатной квартиры превращает гостиную, кухню и столовую в одну зону
В квартире-студии нет стен, их роль выполняют перегородки и стеллажи
Компактная, но очень удобная планировка двухкомнатной квартиры
Декоративная ширма для отделения небольшой спальной зоны
Красивый интерьер квартиры-студии в стиле лофт
Немного площади можно добавить, присоединив к комнате балкон. Практически всегда перепланировка затрагивает санузел, который становится совмещенным – снос стены позволяет получить порядка 2 кв. м дополнительной площади. Еще один вариант – «прирезать» площади за счет части дизайна коридора.
Балкон, объединенный со спальней
Если объединить балкон с комнатой, можно обустроить отличное пространство для приема гостей
БрежневкаЖить стало лучше, жить стало просторнее – как на кухне (она увеличилась до 7-8 кв. м), так и в комнатах. Потолки тоже подросли, но незначительно. А вот возможности перепланировки здесь минимальны, поскольку практически все стены несущие, но можно добавить немного площади за счет коридора и объединить санузел.
Размер и дизайн кухни-столовой увеличен за счет присоединения коридора
Объединенный дизайн ванной и туалета – просторно и функционально. Освещение в ванной распределено над зоной, где находится сама ванна
Комфортабельная квартира-студия в серых тонах
Прекрасная гостиная двухкомнатной квартиры с остеклением в пол
СталинкаМногоквартирные дома, возводившиеся в 40-50 годах минувшего столетия, воплощенная мечта о качественном жилье, характеристикам которого можно позавидовать даже сегодня: теряющиеся где-то в непроглядной высоте потолки, крупногабаритные комнаты, достаточно часто оригинальное расположение комнат.
Особенностью планировки этих квартир является отсутствие несущих стен внутри квартиры – это открывает неограниченные просторы для перепланировки. Метраж комнат позволяет без особых проблем и сильных ограничений получить из двухкомнатной квартиры трехкомнатную. Или, убрав все стены, обустроить просторную квартиру-студию, которую можно задействовать как небольшой выставочный зал. Впрочем, самый распространенный вариант перепланировки сталинки – объединение кухни, смежной комнаты и коридора.
Квартиры-сталинки – отличная возможность реализовать свои дизайнерские идеи
Высокий потолок сталинки позволит организовать в детской двухэтажную игровую конструкцию
Отсутствие несущих стен позволяет объединить комнаты в единое функциональное пространство
Гипсокартонная перегородка для разделения двух зон
Дизайн двухкомнатной квартиры 44 кв. м
Квартиры серии п44 и п44тОбычно стены и пол в квартирах этой серии достаточно качественные, требуют минимума штукатурных работ и выравнивания.
Возможности перепланировки незначительные – объединение санузла, присоединение балкона. В редких случаях есть возможность объединить комнату и кухню – в некоторых проектах стена между ними не несущая. Потолки достаточно высокие, поэтому дизайн двухкомнатной квартиры п44т может предусматривать натяжной или многоуровневый сложный потолок.
Благодаря панорамному остеклению ваша квартира будет выглядеть светлой и просторной
Компактная организация пространства в двухкомнатной квартире
Владельцы просторного балкона смогут обустроить на нем место для приятного времяпровождения
Объединение туалета с ванной комнатой поможет увеличить общую площадь
Совет! Дизайн панельной двухкомнатной квартиры советской постройки обязательно должен предусматривать модернизацию инженерных систем, особенно электропроводки, которая не отвечает современным требованиям. Потребуется как прокладывать новые кабели, так и нарастить количество розеток, при этом продумав, где и как незаметно их установить или чем декорировать.
Не стоит забывать и о слаботочных сетях – телефоне, кабельном ТВ и интернете.
Во время ремонта необходимо особое внимание уделить качеству электропроводки
Дизайн двухкомнатной квартиры 60 кв. м
НовостройВ новостройках сейчас предлагают проекты квартир, которые отличаются продуманным и логичным расположением зон и комнат, так что проблема перепланировки возникает достаточно редко. Кроме того, даже в одном доме застройщики предлагают несколько различных вариантов планировки двушек. А некоторые при заключении договора на этапе строительства предоставляют возможность самому провести планировку или просто купить квартиру-студию.
Квартиры в новострое поражают своими планировками и простором
Часто квартиры в новостройках не имеют стеновых перегородок, что позволяет планировать жилище по своему усмотрению
Просторная, светлая, уютная квартира в новострое
Функциональное зонирование двухкомнатной квартиры
Из просторной двухкомнатной квартиры может получится замечательная квартира-студия
Зонирование – простой и эффективный способ организовать пространство, обеспечив высокий уровень универсальности и удобства проживания.
Оно позволяет разделить квартиру на своеобразные «островки», каждый из которых имеет свое индивидуальное функциональное значение. Логично расположить на одной площади несколько зон:
Функциональная современная кухня-гостиная-столовая
Красные диваны добавят свежесть интерьеру
- Гостиная-спальня – вариант, когда одна из комнат отдана под детскую, а вторая становится просто мультифункциональной. Достигается это за счет модульной мебели (кровать убирается в шкаф, диван-кровать) или установки перегородки, делящей комнату на две зоны, обеспечивая тем самым приватность зоны отдыха. За счет установки перегородки в одном из углов можно выделить рабочую зону.
Объединенные гостиная и спальня, оформленные в темном цвете
Гостиная-спальня с раскладной кроватью
Небольшая перегородка для отделения кухни от спальни, совмещенной с гостиной
- Гостиная-кабинет. В гостиной комнате, не объединенной с кухней, достаточно легко выделить рабочую зону, которая становится кабинетом.
Для этого пользуются, например, двусторонним стеллажом-перегородкой.
Удачное расположение рабочего места в гостиной
Гостиная с рабочим местом, оформленная в стиле лофт
- Спальня-кабинет. В спальне можно выделить зону для кабинета, особенно если кровать убирается (складывается) в шкаф.
Красивая спальня-кабинет в стиле модерн
Компактная рабочая зона в спальне
- Гостиная-гардероб. Открытые (закрытые) гардеробы можно вписать в любой интерьер. Гардероб может быть представлен шкафом, а может быть выполнен в виде перегородки, разделяющей функциональные зоны.
Вместительные шкафы для хранения в гостиной
Гардеробная зона открытого типа в спальне
При грамотной перепланировке в двухкомнатной квартире можно оборудовать небольшую гардеробную
Дизайн-проект двухкомнатной квартиры: определяемся со стилем
Великолепное разделение цветом гостиной и рабочей зон
Выбирая стиль, стоит исходить из своих предпочтений: создаваемое пространство должно быть удобным, практичным, комфортным и функциональным.
Главное – помнить, что вы создаете не музейный интерьер или красивую картинку для фото в специализированном журнале: вам здесь придется жить – вставать с утра, готовить еду, принимать гостей, приходить с работы, проводить выходные, растить детей, а современный стиль интерьера и дизайн двухкомнатной квартиры должен сделать эту жизнь насыщеннее и комфортнее.
К выбору стиля жилища необходимо подходить очень тщательно, чтобы интерьер радовал своих хозяев долгие годы
Небольшая гостиная двухкомнатной квартиры с панорамными окнами
Вопрос, который неизменно встает перед владельцами двухкомнатной квартиры: оформить все в одном стиле или в разных? Общий стиль дает возможность объединить пространство, создать целостную и логичную жилую зону. Такой вариант особенно оправдан при наличии проходных комнат. При этом единый стиль подразумевает единую стилистику, общую идею, но дает большой простор в выборе тенденций, акцентов и цветовой гаммы.
Уютная спальня в стиле лофт
Комнаты с разным стилевым оформлением может объединять одинаковый элемент – например, яркий цветовой акцент
Угловой диван отлично подойдет для небольшой гостиной зоны
Зеркальные поверхности помогут в зрительном увеличении пространства
Для квартир с изолированными комнатами, с полустудийной планировкой (объединенная кухня/гостиная и спальня) актуально декорирование помещений в двух порой достаточно разноплановых стилях – дизайн двухкомнатной распашонки в этом плане особенно показателен.
Если студии чаще декорируют в современных стилях, которые дают возможность подчеркнуть свободное пространство с акцентом на функциональность, то для спальни более актуальным будет камерный, мягкий и домашний стиль, в котором акцент делают на коморте и уюте. Чаще всего в разных стилях оформляется квартира с детской комнатой.
Искусственные потолочные балки помогут в оформлении интерьера в стиле кантри
Интерьер совмещенного санузла в стиле эклектика
Немаловажное значение имеют возможности пространства и технические параметры помещения. Придется очень постараться, чтобы, к примеру, выдержать стилистику ампира, создавая дизайн двухкомнатной квартиры 50 кв. м, дабы помещение не «задохнулось» от обилия аксессуаров и декора. Однако, к примеру, дизайн двухкомнатной квартиры 70 кв. м уже может позволить вам частично реализовать задуманное.
Колоритная картина в гостиной задает тон всему интерьеру
Деревянный диван под старину сделает ваш интерьер более уютным
Кухня-гостиная белого цвета, оформленная в современном стиле
Скандинавский стильСтиль с нордическим характером – легкий, лаконичный, с изящной простотой, исключительно гибкий, который можно реализовать как в частном доме, так и в городской малогабаритной квартире.
Интерьер в высшей степени эргономичный – никаких непродуманных и случайных элементов, все подчинено созданию комфорта и удобства в повседневной жизни. Пространство – открытое, легкое, незагроможденное, много света и воздуха, достаточно сдержанное, но без минималистического аскетизма.
Прекрасный дизайн кухни в скандинавском стиле
Кожаный диван Честерфилд в интерьере квартиры-студии
Стеклянная перегородка со шторой для отделения спальной зоны
Популярное решение – объединение гостиной и кухни, где хозяева проводят большинство времени: общаются, готовят, встречают гостей.
Гостиная и столовая, оформленные в аккуратном скандинавском стиле
Цветовая палитра – светлые, мягкие пастельные тона, воздушность и невесомость которых подчеркивают яркие сочные оттенки аксессуаров, текстиля и декоративных элементов. Колористическая композиция в нордическом стиле основана на сочетании белых стен, природного цвета мебели из натурального дерева и эффектного декора. Отделку помещений проводят, используя натуральные или максимально приближенные к ним материалы и текстуры: много дерева, которое сочетается с кирпичом, натуральным камнем, керамической плиткой (только в светлых тонах) и состаренным металлом.
Мебель – с четкой функциональной нагрузкой, с лаконичными формами, активно используются системы хранения закрытого типа. Отличительная черта скандинавского стиля – много ковров и яркого текстиля, а также пледов, шкур и прочих аксессуаров, добавляющих тепло и уют.
Скандинавский стиль – солнечный, светлый
Хай-текХудожественное переосмысление высоких технологий. Основные отличия хай-тека – максимальный функционализм, четкие линии – вертикальные и горизонтальные, обилие стекла и железа. Стены – однотонные, с минимальной фактурностью, чаще всего – жидкие обои или окрашивание. Потолок – натяжной, глянцевый. Полы – глянцевые, лучше всего – наливные или гранитные, никаких ковров или паркета, как вариант – синтетический линолеум или ковровое покрытие с минимальным ворсом. Основные цвета – светло-серый, черный, белый или металлик с вкраплениями ярких (ярко-зеленый, оранжевый, желтый, алый, синий) цветовых акцентов.
Для стиля хай-тек характерны строгие линии, однотонность, воздушность
Асимметрия в интерьере кухни, выполненной в стиле хай-тек
Мебель – строгих геометрических форм, нестандартные конструкции, изготовленные из стекла, железа и хромированного металла.
Столешницы из стекла – правильный круг или прямоугольник, стеллажи со стеклянными полками, стулья – металлические ножки, однотонная обивка или пластиковые сиденья.
Освещение – много встроенных светильников, которые сочетаются с шинными лампами или небольшими галогенными подвесными. Света должно быть много, но только белого, холодного спектра. Никаких сложных форм, светильники – легкие, простых форм: конус (усеченный), цилиндр, шар или прямоугольник.
Кухня-столовая в стиле хай-тек оснащена многочисленными источниками освещения
Декор – очень сдержанный, на стенах – фото в металлических тонких рамках или картины-абстракции. Минимум аксессуаров, зато много техники – домашний кинотеарт, большой ТВ, компьютер с монитором из цветного пластика или украшенный светодиодной подсветкой системник.
Гостиная в стиле хай-тек – сдержанная и строгая
Хай-тек – стиль активных, подвижных и динамичных людей. Для детской такой стиль явно не подойдет, а вот для подростков – это будет точное попадание.
Французский кантри, южный, теплый стиль, который отлично подходит для декорирования небольших комнат. Цветовая гамма – насыщенная, но не яркая, предпочтение отдается приглушенным, сдержанным оттенкам: молочный, белый, пастельные цвета, оливково-зеленый, бежевый, лавандовый, охра, морская волна и оттенки синего, и все они выглядят немного выцветшими, выгоревшими под ярким солнцем. Интерьер – светлый, много естественного, живого света. Стены – чаще крашеные, иногда – с нарочито грубой побелкой. Для стеновой отделки редко используют бумажные обои.
Кованая кровать прекрасно впишется в интерьер в стиле прованс
С помощью отделки и мебели в городской квартире можно создать деревенский дух стиля прованс
Очень стильно в современном интерьере смотрятся элементы французского кантри
Мебель – старая или искусственно состаренная, обязательное условие – крашеная, но при этом она имеет такой вид, будто служит уже не первый десяток лет: всевозможные дефекты вроде «облупившейся» краски, сколов и следов червоточин приветствуются.
Особенно ценятся действительно старинные и старые вещи, например, старый комод (сундук), переходящий из поколения в поколение, займет в интерьере центральное место. Пол – деревянные грубые доски или керамическая плитка. Шторы – невесомые, легкие. Никаких подвесных потолков, только окрашенный.
Аксессуаров много: керамические фигуры, картины с простыми, пасторальными сюжетами в незамысловатых рамках, пряности в горшочках, шитье, ришелье, рюшики, обилие живых цветов.
МинимализмСтиль минимализм — это просторность помещений с минимум мебели и других элементов интерьера
Европейская реинкарнация японского стиля, в основе которого – простота, элегантность, функциональность и лаконичность, а рациональное превалирует над декоративным. В целом это четкая геометричность всего интерьера. Гармония практичности и безупречного пространства, где каждый элемент, каждый штрих имеет четкое функциональное назначение.
Квартира в лаконичном и аккуратном стиле минимализм
Прекрасный пример детской комнаты в минималистской квартире
Цветовая гамма – чистые оттенки белого, красного, серого или черного, при этом белый в основном используется как фоновый цвет, серый и черный – дополняющий контрастный.
Стены штукатурят, окрашивают, покрывают ПВХ-панелями или жидкими обоями. Потолок – простые, ровные гипсокартонные конструкции или натяжной потолок, за которыми скрыты осветительные приборы. Пол – однофактурное монохромное покрытие: доски, пробка или паркет (ламинат), ковролин с очень мелким ворсом, однотонный, без рисунков.
Белоснежная небольшая ванная комната в стиле минимализм
Мебель – правильной, четкой геометрической формы, хотя в современном модерне начинают появляться плавные, текущие очертания. Много стекла и металла – металлические ножки, стеклянные столешницы, металлические стеллажи. Простые формы, идеальные пропорции, легкие силуэты и функциональность. Мебели не просто немного, она как бы стремится раствориться в окружающем интерьере. Полки, стеллажи, встроенные шкафы выглядят неотъемлемой частью стены. Мягкая мебель – прямоугольной формы, обивка натуральная – хлопок или лен.
Для мебели стиля минимализм характерны ровные четкие линии
Минимализм не означает полный отказ от декора – одиночные, очень выразительные детали вносят эмоциональность, оживляют интерьер.
Часто дизайнеры играют на контрасте, используя экзотические предметы в минималистическом интерьере – их материал и формы только подчеркивают современность и уникальность стиля.
Сдержанный минимализм разбавлен контрастным фиолетовым диваном
Ар-декоСовременное и изысканное пространство, совмещающее классический стиль с современностью. Цветовые решения в ар-деко – простор для творчества и экспериментов. В качестве фонового цвета чаще всего задействуют пурпурный, рубиново-красный, изумрудный, сапфирный. Дополнительные цвета – черный, синий, золото или металлик – могут использоваться двояко – как яркий контраст или способ оттенить фоновый цвет. В ар-деко часто применяют прием «яркого пятна», в качестве которого может выступать стена или крупный элемент мебели (шкаф, диван).
Контрастное оформление интерьера в стиле ар-деко
Квартира, оформленная в игривом стиле ар-деко
Отличительная черта ар-деко – обилие декора. При этом в декоре этого стиля приветствуются предметы, изготовленные в единственном экземпляре – эксклюзивные вещи и украшения из дорогих (натуральная кожа крокодила или змеи, бронза, бивни слона, яркие кристаллы и полудрагоценные камни) материалов, экзотической древесины (айле, абаш, эбеновое дерево), алюминий.
В интерьере – дорогой фарфор, зеркала, расшитые подушки, инкрустация по дереву, необычное стекло, скульптурные композиции, а также этнические изделия из Китая, Африки и Азии, которые добавляют дизайну экспрессии и эмоций. В целом интерьер не производит впечатления законченной композиции, он дает возможность развивать декор дальше.
Гостиная двухкомнатной квартиры в стиле ар-деко
Английский стильРафинированная элегантность, в которой сочетается сдержанность, утонченность и аристократизм, который вполне реализуем в городской квартире. Ничего удивительно – на самом деле среднестатистический англичанин-горожанин середины XIX века обитал приблизительно на тех же квадратных метрах, как в современной двухкомнатной квартире. Английский стиль подойдет ценителям спокойной и умиротворенной атмосферы, насыщенной благородством и изыском.
Роскошный и уютный интерьер в английском стиле
Стеклянная мебель поможет сделать интерьер более просторным
Камин – неотъемлемый атрибут английского стиля
Основа интерьера – камин, книжный шкаф (стеллаж) во всю стену и, естественно, каминное кресло.
Цветовая гамма – серый, коричневый, белый и оливковый. Стены однотонные или же обои в полоску (мелкий узор, растительный узор). Мебель – деревянная, основательная.
Что такое двухкомнатная квартира? 8 маленьких вдохновляющих идей декора от архитекторов
Квартиру можно объяснить как жилую единицу, которая является частью здания, которое можно назвать либо многоквартирным домом, либо многоквартирным домом. Размер квартиры зависит от владельца, так как она может быть сделана для личного пользования или даже для сдачи в аренду. Есть стандартный протокол, которого придерживаются почти везде. Квартиры можно классифицировать как апартаменты с одной спальней, апартаменты с двумя спальнями и так далее.
Посмотреть в галерее
Общий вопрос, однако, все еще остается: что такое квартира с одной спальней. Точное определение квартиры с одной спальней отличается от места, так как предлагаемые функции разные.
Как правило, двухкомнатная квартира должна содержать спальню, гостиную, кухню и ванную комнату. Другие особенности могут отличаться от владельцев и точки зрения места.
Посмотреть в галерее
Например, апартаменты-студии с одной спальней объединят спальню, гостиную и кухню в общее место, называемое жилым пространством.Однако в нем есть отдельная ванная комната. Квартиры с одной спальней также могут быть полностью меблированы со всем кухонным оборудованием, кроватями и даже шкафами.
Посмотреть в галерее
Решение о выборе между квартирой с одной спальней и квартирой с одной спальней — это то, с чем люди обычно путаются. Квартиры-студии могут быть отличным местом, когда ожидается, что один человек или пара остановится из-за свободы и жилого пространства, а в некоторых местах они могут быть дешевле, чем апартаменты с одной спальней.
Посмотреть в галерее
Но в случае, если вы планируете приехать с семьей, то квартира с одной спальней будет беспроигрышной ставкой, так как здесь разные комнаты, и уединение также может быть сохранено.
Квартира площадью 15 квадратных метров
Посмотреть в галерее
Посмотреть в галерее
Посмотреть в галерее
Некоторые могут посчитать 15 квадратных метров как раз подходящим размером для комнаты. Часто бывает, что вся квартира составляет 15 квадратных метров.Это крутой проект, выполненный студией Eliemetni. Им пришлось втиснуть все важные черты полноценной квартиры в микропространство в Бейруте. Им удалось уместить практически все: кухню, ванную комнату, гостиную и спальную зону. Удивительно, насколько хорошо продуманная планировка может значить для дома.
Квартира площадью 33 квадратных метра в Нью-Йорке
Посмотреть в галерее
Посмотреть в галерее
Посмотреть в галерее
Посмотреть в галерее
Эта квартира из Нью-Йорка имеет площадь 33 квадратных метра, что уже намного больше, чем упоминалось ранее проект.Тем не менее, это совсем немного. Чтобы сделать его максимально удобным и функциональным, Грэм Хилл использовал в дизайне интерьера множество расширяемой и многофункциональной мебели.
Такие вещи, как модульные блоки, которые можно использовать в качестве сидений в различных конфигурациях, небольшой стол, который может расширяться и вместить 10 гостей, а также складная кровать и трансформируемые шкафы, которые превращаются в боковые столики, делают это пространство очень гибким и универсальным.
Маленькая скульптурная квартира-студия площадью 36 квадратных метров
Посмотреть в галерее
Посмотреть в галерее
Посмотреть в галерее
Эта квартира площадью 36 квадратных метров в Австралии от Catseye Bay Design имеет действительно крутой и стильный интерьер.Он смелый, но простой и отличается изысканной и современной эстетикой. Внутри есть место для небольшой кухни, ванной комнаты, спальни и гостиной. Здесь есть место для работы, отдыха и даже развлечения гостей. Планировка продиктована индивидуальной мебелью и тем, как она направляет посетителей через все разные пространства.
Квартира 33 м²
Посмотреть в галерее
Посмотреть в галерее
Посмотреть в галерее
Посмотреть в галерее
Посмотреть в галерее
Вот еще одна компактная и многофункциональная квартира, на этот раз расположенная в центре Москвы.
Он был спроектирован Studio Bazi, и это очень уютное пространство с зонами, распределенными на двух уровнях, и современной лестницей, соединяющей их. Для максимального простора комнат стены и потолок выкрашены в белый цвет. Затем было добавлено много дерева, чтобы создать теплую и гостеприимную атмосферу. Его общая площадь составляет 33 квадратных метра.
Квартира площадью 50 квадратных метров
Посмотреть в галерее
Посмотреть в галерее
Посмотреть в галерее
Посмотреть в галерее
Когда его попросили отремонтировать эту квартиру площадью 50 квадратных метров, дизайнер интерьера Элиат Дар сосредоточился в основном на использовании большого количества простые и доступные материалы и использование их для создания встроенной гибкой мебели.Целью было освежить и обновить квартиру без больших вложений. Стена балкона была удалена, чтобы создать большую жилую площадь, и было добавлено удобное место у окна. Стеклянная стена была помещена между ванной комнатой и социальной зоной, чтобы сэкономить место, создать современную атмосферу и в то же время сохранить конфиденциальность (стекло непрозрачное).
Квартира площадью 27 квадратных метров в Сан-Паулу
Посмотреть в галерее
Посмотреть в галерее
Посмотреть в галерее
Основная цель этого проекта — сделать эту квартиру больше похожей на дом, чем на гостиничный номер.Квартира крошечная, всего 27 квадратных метров в поперечнике и может быть сдана в аренду. Студия TRIA Arquitetura стремилась создать отдельные пространства для каждой функции, что было непросто, учитывая небольшой размер квартиры. Изначально между спальней и ванной был кусок стекла. Ставни были добавлены для большей конфиденциальности. Большая часть мебели была изготовлена на заказ, что позволяет ей идеально вписаться в пространство и всегда помогает в небольшом доме.
Квартира площадью от 23 до 74 квадратных метров
Посмотреть в галерее
Посмотреть в галерее
Посмотреть в галерее
Апартаменты Mono представляют собой серию компактных пространств в Стокгольме.Их интерьеры были созданы студией Note Design Studio, цель которой заключалась в том, чтобы превратить их в шикарные пространства для общения и развлечения гостей.
Таким образом, кухня, обеденная зона и гостиная объединены в единое пространство с небольшой, но уютной планировкой и большой гибкостью с точки зрения различных возможных конфигураций. Большие окна пропускают много естественного света и превращают это место в действительно хорошее место для встреч. Приватная часть апартаментов отделена от всего этого.
Прототип квартиры площадью 33 кв.м
Посмотреть в галерее
Посмотреть в галерее
Посмотреть в галерее
Посмотреть в галерее
Эти апартаменты площадью 33 квадратных метра в Тайбэе являются прототипом гостевого дома, который можно сдавать в аренду людям работаю в городе.Интерьер был разработан Phoebe Sayswow Architects, эта двухкомнатная квартира — действительно классное место с достаточно высоким потолком, чтобы можно было создать спальню на чердаке. Это оставляет всю площадь основного этажа для социальных пространств, таких как кухня, столовая и гостиная. На самом деле они также расположены на двух этажах, с нижней частью и лестницей, которую можно использовать как сидения.
Квартиры | Dezeen
Merooficina делит бывший рыбацкий дом на две светлые квартиры
Архитектурная мастерская Порту Merooficina превратила бывший дом рыбака в Авейру, Португалия, в две квартиры, в которых оригинальные черты сочетаются с новыми элементами декора.Подробнее
Али Моррис | | Оставить комментарийОбтекаемые башни «Smart Deco» служат фокусом для развития движения Полларда Томаса Эдвардса
Поллард Томас Эдвардс завершил застройку на 300 домов на северо-востоке Лондона, состоящую из двух невысоких дворовых блоков и трех облицованных башен контрастные полосы коричневого цвета и панели цвета слоновой кости. Подробнее
Алин Гриффитс | | Оставить комментарийМинималистские микроквартиры в Сеуле — это «чистый холст для арендаторов»
Дизайнер интерьеров Ян Ли облил стены микроквартир LIFE в Южной Корее березовым деревом, чтобы предложить арендаторам урезанное пространство, которое они можно персонализировать.
Лиззи Крук | | Оставить комментарий
ПодробнееDavid Chipperfield Architects «восстановят величие» Гранд Отеля в Ньюпорте.
Британская архитектурная студия David Chipperfield Architects обнародовала свои планы по реконструкции и расширению многоквартирного дома Гранд-отеля на морском курорте Бельгии Ньюпорт. Подробнее
Tom Ravenscroft | | Оставить комментарийRogers Stirk Harbour + Partners ‘№ 33 Park Row близится к завершению в Нью-Йорке
№ 33 Park Row, первый жилой проект в Нью-Йорке от британской архитектурной фирмы Rogers Stirk Harbour + Partners, близится к завершению в центре города Манхэттен.Подробнее
Индия Блок | | Оставить комментарийБен Аллен завершает капитальный ремонт своего дома в восточном Лондоне
Работы Олафура Элиассона проинформировали архитектора Бена Аллена о реконструкции его двухэтажного мезонета в лондонском районе Бетнал Грин, в котором используются зеркальные элементы мебели.
Наташа Леви | | Оставить комментарий
ПодробнееFreadman White завершает строительство квартир на улице Napier Street в Мельбурне
Архитектурное бюро Freadman White построил жилой дом в районе Фицрой Мельбурна, отделав его интерьеры блестящими латунными вставками.Подробнее
Наташа Леви | | Оставить комментарийJonathan Tuckey Design обновляет лондонскую квартиру с розовыми и фисташково-зелеными стенами для хранения
Пастельные стены для хранения изогнуты и пронизывают комнаты этой квартиры в лондонском районе Мэрилебон, который был отремонтирован архитектурной студией Jonathan Tuckey Design. Подробнее
Наташа Леви | | Оставить комментарийArchmongers использует основные цвета, чтобы оживить дом в модернистском Golden Lane Estate
Лондонская студия Archmongers отремонтировала двухуровневую квартиру в одном из самых влиятельных жилых комплексов города, добавив оттенки красного, желтого и синего цветов.
Эми Фрирсон | | Оставить комментарий
палитра модернистских материалов.ПодробнееProject # 13 — это офис для Studio Wills + Architects, который можно использовать как дом
Studio Wills + Architects реконфигурировали квартиру в Серангуне, Сингапур, чтобы в ней разместился собственный офис студии и уютный дом для всех. его основатель. Подробнее
Наташа Леви | | Оставить комментарийHome Studios наполнила 20 квартир Бонда в Нью-Йорке уникальными деталями декора
Дизайнерская фирма Home Studios использовала смесь сделанной на заказ мебели и старинных находок, чтобы обновить эту семейную квартиру в районе Нохо в Нью-Йорке.Подробнее
Наташа Леви | | Оставить комментарийRetroscena — это красочный ремонт квартир от La Macchina Studio
Офис итальянской архитектуры La Macchina Studio отремонтировала квартиру 1950-х годов в Риме, открыв оригинальные полы из терраццо и добавив смелые цвета.
Индия Блок | | Оставить комментарий
ПодробнееMW Works использует темное дерево и песчаные стены для интерьеров квартиры Ocean Drive в Майами-Бич
Американская студия MW Works переоборудовала и отремонтировала большую пляжную квартиру на Ocean Drive в Майами-Бич, Флорида, используя тропические лиственные породы и древесину. штукатурка песочного цвета.Подробнее
Индия Блок | | Оставить комментарийResidence for Two Collectors — это пентхаус в Чикаго, наполненный произведениями искусства
Обширная коллекция произведений искусства дополнена промышленными деталями, ореховым полом и землистыми приглушенными цветами в этом пентхаусе в Чикаго, для которого местная студия Wheeler Kearns Architects спроектировала два коллекционера произведений искусства. Подробнее
Cajsa Carlson | | Оставить комментарийEdition Office перестраивает Мельбурнскую квартиру вокруг дубовых объемов
Высокие, светлые деревянные объемы скрывают функциональные элементы этой квартиры в Мельбурне, Австралия, которая была отремонтирована местной архитектурной студией Edition Office.Подробнее
Наташа Леви | | Оставить комментарийСтарый тренажерный зал, преобразованный в высокие апартаменты в Амстердаме
Деревянные детали и окрашенная в черный цвет сталь заполняют высокие интерьеры апартаментов Gymnasium, которые Роберт Де Гёде построил в старом спортивном зале в Нидерландах. Подробнее
Лиззи Крук | | Оставить комментарийAgnieszka Owsiany Studio создает спокойную квартиру в Познани для пары, работающей в медицине
Медицинская работа пары, проживающей в этой Познанской квартире, заставила Agnieszka Owsiany Studio нанести успокаивающую смесь дерева и светлого мрамора во всем интерьеры.
Наташа Леви | | Оставить комментарий
ПодробнееSim-Plex Design Studio создает умный дом с четырьмя спальнями в Гонконге
Технология голосового управления и компактная мебель помогли Sim-Plex Design Studio превратить дом с двумя спальнями в Гонконге в Smart Zendo , четырехкомнатная квартира со скрытым кладовкой. Подробнее
Индия Блок | | Оставить комментарийСтарая испанская мастерская, преобразованная Номосом в осязаемый семейный дом
Тактильные кирпичи и перегородки из соснового дерева украшают квартиру в Ла-Наве, которую Номос вставил в бетонную оболочку заброшенной мастерской в Мадриде, Испания.Подробнее
Лиззи Крук | | Оставить комментарийКвартира для отдыха Minimal Fantasy в Мадриде почти полностью розовая
Студия Патрисии Бустос направила «эстетическое безумие», чтобы создать поразительный ярко-розовый интерьер этой съемной квартиры в самом центре Мадрида, Испания.
Наташа Леви | | Оставить комментарий
Подробнее
Мануэль Сервантес строит свой собственный дом и студию на склоне мексиканского холма
10 лучших кают Dezeen в 2020 году
Бен Аллен завершает капитальный ремонт собственного дома в восточном Лондоне
Studio Puisto балансирует черную каюту на тонкой колонне в Финский лес
Семь интерьеров «Джапанди», сочетающих в себе японский и скандинавский дизайн
Тамаш Бене создает венгерский плавучий дом, чтобы «гармонировать с окружающей средой»
ЦРУ проводит ребрендинг, чтобы поощрять разнообразие, но личность дизайнера логотипов остается совершенно секретной
Ванные комнаты с исключительные просмотры представлены в сегодняшнем информационном бюллетене Dezeen Weekly
Dezeen Awards
Dezeen Jobs
{{category}}
{{carousel_title}}
Дома-гнезда | Строим приют для ВАС и семьи
TANGO — 2-комнатная квартира Схема дизайна 1 [DS1] Вы почти наверняка можете определить интересы и склонности человека, проанализировав характер его дома.
В наши дни многие люди в Лагосе выбирают дом в современном стиле, украшенный современными элементами декора, которые подчеркивают домашний характер и придают ему величественный вид. Все больше людей отказываются от диванов в клетку и цветов, тяжелых драпировок и украшения в стиле 50-х годов в пользу нового, чистого и смелого.
Модель Tango — это отражение тенденции городского вкуса, которая отражает суть городской жизни с юношеским стилем и ритмом. Пространства наводнены предметами декора au courant, которые придают особый характер этому прекрасному дому с 2 спальнями.Эта квартира площадью 120 кв.м. зонирована для уединения с двумя спальнями стандартного размера, каждая с ванной; все щедро разложено на одном этаже.
СХЕМА ДИЗАЙНА 1
(ПЛАН ЭТАЖА)
Тип дома — Квартира с 2 спальнями
Затененный архитектурный план планировки дома позволяет нам в полной мере оценить пространственное расположение и функциональную композицию (вид со стороны верх).
С этого вида мы можем видеть, что он состоит из большой гостиной и кухни, просторных спален с ванными комнатами и гостевого туалета, аккуратно спрятанного в углу.
СХЕМА ДИЗАЙНА 1
(3D ВИД «CUTPLANE»)
Тип дома — 2-комнатная квартира
Отрендеренный трехмерный план этажа визуально выражает необходимый реалистичный вид помещений, чтобы полностью полюбоваться выбором компоненты и его состав.
СХЕМА ДИЗАЙНА 1
(3D ВИД «КАУТПЛАН»)
Тип дома — 2-комнатная квартира
При более внимательном рассмотрении можно увидеть тонкости этой аккуратной планировки.Смелые узоры в сочетании с минималистичными белыми креслами в гостиной создают оазис свежести и яркости. Паркетные полы в спальнях просто изящны, а мягкие коврики в центре с уникальными полосами и текстурами просто божественны.
Белые стены в сочетании с буазери — хорошее сочетание, которое хорошо сочетается с однотонным клетчатым центральным ковром и красочными декоративными подушками: атмосфера здесь дышит спокойствием и свежестью.
Буазери оформлен в стиле минимализма и понравится любителям современного дизайна.Ящики для дисплеев ниши для диспенсера для воды и простая линия деревянной консоли и зеркала — это хороший способ содержать вещи в чистоте и чистоте, не переусердствуя.
Эта телевизионная стена с двухцветной окраской консоли и выступов дисплея сама по себе является чистым искусством. Точечные светильники добавляют композиции драматического освещения. Большая раздвижная дверь / окно слева пропускает столько естественного света в пространство, а обеденная зона в одном углу делает это — домашним уютным домом!
Белые верхние шкафы придают кухне утонченный и аккуратный вид, а их расположение привносит динамизм в пространство.Экологичные нижние шкафы из бамбука красиво сочетаются с задернутыми шторами в углу, добавляя приятный штрих этому интерьеру в пастельных тонах. В этой кухне гармонично сочетаются все элементы; все хорошо расставлено и поставлено на свои места, и приготовление еды станет проще!
Дополнительные места для хранения вещей здесь изобилуют, и для квартиры с двумя спальнями это супер роскошь.
Естественное перетекание цветов (бежевый, светлое дерево и белый) в этом пространстве создает ощущение единства с минимальным количеством противоречий.
То, как холодильник встроен в шкаф от пола до потолка, свидетельствует о том, что это чистый, хорошо продуманный дизайн! Встраиваемый потолок добавляет глубины, а текстуры на фартуке из каррары делают ансамбль визуально захватывающим.
Изысканный паркет доходит до стен в виде плинтусов, создавая ухоженный вид. Шкаф и ТВ-консоль с выступом наверху — как раз подходящего цвета и размера для этой теплой и уютной спальни.Черные рамки на фотографиях над телевизором хорошо сочетаются с оконной рамой. Все сочетается в визуальной гармонии!
Изголовье и прикроватные ящики просты и элегантны, а рамы для картин, украшающие стену, — это классный штрих, делающий это место настоящим раем! То, как задернуты шторы, пропускает столько дневного света — это великолепно. Современная лампа Эдисона у кровати не привлекает к себе особого внимания, шелковистое персиковое покрывало и полированная серебристая фурнитура шкафа — это мелкие детали, которые вместе делают эту спальню красивее!
Эта вторая спальня поражает своим скругленным краем витрины яркого цвета дерева, на которой можно легко взять ваше любимое комнатное растение в горшке или экзотические фигурки из приятных воспоминаний о поездке в Дубай.
Нежный древесный цвет каркаса кровати с боковыми ящиками красив и сидит на центральном коврике с полосатым рисунком, создавая эффектный эффект. Прожектор привлекает внимание к мечтательным видам Эйфелевой башни на фоне высоких зданий и туристов осенью. Это должен быть шабаш коллекционеров!
В нашей Схеме дизайна Tango 1 очевиден оттенок продуманного дизайна пространства.
Насколько вам нравится этот архитектурный шедевр по шкале от 1 до 10?
В Nest Homes мы уверены, что то, как пространства спроектированы и взаимосвязаны друг с другом в доме, имеет большое значение для улучшения благосостояния, удобства и средств к существованию ВАС и семьи.Это ВДОХНОВЛЯЕТ нас создавать пространства, которые предлагают такие преимущества и в то же время соответствуют вашей индивидуальности и стилю.
Мы считаем, что помимо очевидной финансовой отдачи от инвестиций, которые вы получаете от владения домом, вы заслуживаете того, который уникален для ВАС (по дизайну, стилю и отделке).
БУДЬТЕ ВДОХНОВЛЕНЫ, создав дом, созданный по вашему вкусу!
Как изменится дизайн, чтобы приспособиться к многоквартирному дому после COVID-19
Грибные / фойе: Жители загородных домов могут снимать пальто в своих фойе или снимать грязную обувь в прачечных, примыкающих к их гаражам.COVID-19 может спровоцировать возрождение эквивалентов прихожих в квартирах. Входы могут быть облицованы упругими материалами, которые легко чистить, такими как керамогранит или полированный бетон. Разместив ванную комнату и кладовую или прачечную рядом с входом, дизайнеры могут создать простую зону дезактивации, где люди смогут снимать обувь, раздеваться и убираться. Некоторые планировки могут допускать размещение раздвижной двери между входом и остальной частью квартиры, чтобы внешние частицы не попадали внутрь помещения.Эти места также можно оборудовать стойкой для велосипедов или дополнительной мебелью для хранения.
Гибкие рабочие пространства и регулируемые поверхности: Удаленная работа и обучение подчеркнули важность доступа к отдельному, а иногда и частному рабочему пространству.
Но поскольку в квартирах столько места, эти рабочие места или укромные уголки домашнего офиса должны адаптироваться к различным потребностям в зависимости от пользователя или времени суток. Возраст и требования пользователей могут быть настолько разнообразными, что в этих пространствах должна быть предусмотрена гибкость.Например, когда застройщики предоставляют встроенную мебель в жилое помещение, дизайнеры должны использовать регулируемые по высоте поверхности, которые распространены в американских офисах. Рабочей поверхностью может пользоваться ребенок, который рисует в книжке-раскраске, подросток, склоняющийся над грудой домашнего задания, или взрослый, принимающий участие в видеоконференцсвязи. Рабочая поверхность также должна обеспечивать место для хранения под ней.
Предпочтительный подход к домашнему офису для доступа к свету и воздуху: Местоположение домашнего офиса заслуживает особого внимания.В типичном дизайне квартиры предпочтение отдается жилым и спальным помещениям.
Но если некоторые жители проводят большую часть своего дня на рабочем месте, должно ли это быть основным местом в квартире? Строительные нормы США требуют, чтобы жилые помещения, такие как спальни и гостиные, имели доступ к естественному свету и воздуху через открывающиеся окна. Домашний офис обычно не требует окон, как спальни. Однако в некоторых городах спальня «заимствует» свет и воздух — например, из гостиной — и получает необходимый свет и воздух через стекло, обращенное к пространству с окном.Такой подход также позволяет проектировать более глубокие блоки, которые могут потребоваться при преобразовании офисного здания с узкой планировкой под жилое помещение.
Скрытые места для разделения работы / дома: Работа вдали от дома заставила многих из нас понять, что мы не можем мысленно уходить с работы после 17:00. Открытые планировки жилых помещений способствуют решению этой проблемы, поскольку наши личные пространства, которые теперь также являются нашими профессиональными пространствами, весь день сливаются друг с другом.
Общекорпоративный опрос сотрудников HKS, работающих на дому с марта, показывает, что люди, которые живут во всех типах жилья, в среднем не удовлетворены степенью разделения между своим рабочим пространством и остальной частью дома, хотя уровень удовлетворенности особенно высок. низкая для жильцов квартиры.Мы не просто теряем счет времени; мы чувствуем себя оторванными от места. Вот почему мы ожидаем, что жильцы захотят скрыть некоторые особенности своих квартир в определенное время дня, чтобы они могли мысленно привязать себя к смене с 9 до 5 или к ощущению, что они дома после долгого рабочего дня. Разработчики и дизайнеры могут улучшить психологическое благополучие жителей, дав им возможность разделить свою домашнюю и рабочую жизнь с помощью кухонь, рабочих мест и медиацентров, которые можно скрыть за передвижными панелями.
Что нужно знать о преобразовании двухкомнатной квартиры в трехкомнатную
Вам нужна настоящая трехкомнатная квартира в Нью-Йорке, но вы не можете позволить себе ее купить.
Более доступный вариант — это двухкомнатная квартира, которую можно преобразовать в трехкомнатную, но процесс несколько сложен. В выпуске Buy Curious на этой неделе Майкл Айзенберг из Citi Habitats, Клэр Грум из Warburg Realty и Брэд Малоу из Compass расскажут, какие именно планировки следует искать, какое разрешение вам понадобится и сколько это будет стоить.
Мы не думаем, что сможем превратить трехкомнатную в нашу растущую семью, поэтому мы думали о покупке двухкомнатной и превращении ее в трехкомнатную. Насколько сложно это сделать? Какие макеты искать? Что еще задействовано?
Реальность: По словам Айзенберга, добавление спальни в ваш дом может увеличить стоимость квартиры и привести ее в соответствие с вашими конкретными потребностями. Но это также может уменьшить размер общего пространства вашего дома и сделать план этажа более «изменчивым» и менее просторным, поскольку квадратные метры для спальни должны быть откуда-то взяты.
«Убедитесь, что в спальне достаточно места для комфортного проживания, и что она находится в пределах норм Нью-Йорка», — говорит он. «Не пытайтесь срезать углы или делать какую-либо неразрешенную работу в своей квартире».
Кроме того, то, что вы нашли в квартире укромный уголок или альков, автоматически не означает, что это будет дополнительная, законная спальня. Вы должны знать, что для юридических спален требуется минимум 80 квадратных футов, и никакие размеры не могут быть меньше 8 футов. Чтобы узнать больше, ознакомьтесь с Brick Underground, «Что такое легальная спальня в Нью-Йорке.«
Совет профессионала Совет профессионала:Знаете ли вы, что ваш брокер может получить скидку покупателя? Покупая с Prevu, вы получите скидку в размере двух третей комиссии, уплаченной брокеру покупателя при закрытии сделки. На квартиру за 1,5 миллиона долларов вы получите до 30 000 долларов. Нажмите здесь, чтобы узнать о бонусе Smart Buyer Rebate на Prevu.
Какие макеты лучше всего искать? Eisenberg рекомендует выбирать квартиры «более прямоугольной или квадратной формы и с большим количеством окон.
«Квартира с большой открытой гостиной, которая может быть огорожена, также является ключевым моментом, если она достаточно велика.
Groome советует подумать о довоенных квартирах шестицилиндрового типа. «В этих апартаментах с двумя спальнями есть комнаты для прислуги, которые можно легко превратить в спальню, детскую или кабинет», — говорит она.
Для Malow несколько окон — это то, что вам нужно, «для максимальной отдачи от вложенных средств». Таким образом, большая комната с несколькими окнами — лучший выбор для получения дополнительной спальни, — говорит он.Также подумайте о своей способности построить шкаф стандартного размера, сохранив при этом достаточно места в спальне, возможность разместить как минимум кровать размера «queen-size» и имея возможности обогрева и охлаждения в пространстве.
Расположение ванной имеет решающее значение, — говорит Айзенберг. «В идеале он уже расположен в фойе, существующем коридоре или другом месте общего пользования, и его не нужно перемещать для установки новых стен».
Это потенциально добавило бы тысячи в бюджет.
Groome также позаботится о том, чтобы в переоборудованном районе был либо чулан, либо место для его постройки.
Где искать?Это действительно зависит от бюджета. В конце концов, вы ищете апартаменты, которые достаточно велики по площади в три спальни. Возможно, вы будете склонны искать чердак в Трибеке, но времена, когда можно было покупать сырые, недостроенные площади, давно прошли. В этом районе самая дорогая недвижимость в городе, и лофты в Сохо, Виллидж и Челси — похожая история.
Вы захотите сосредоточить свой поиск на довоенных кооперативных квартирах.У них более просторные планировки, в которых есть настоящие столовые, которые могут быть преобразованы в спальню. Взгляните на верхнюю восточную и западную стороны Манхэттена.
Новые квартиры спроектированы так, чтобы более эффективно использовать пространство — например, гостиная, которая может использоваться как столовая, поэтому есть потенциал для гибкого пространства, которое можно превратить в спальню.
Конечно, получение одобрения совета директоров кооператива плана ремонта может потребовать от вас преодоления множества препятствий — для многих это отягощающий процесс.
Какие шаги вам необходимо предпринять?Вам нужно будет знать, позволяет ли ваш совет по кооперативу или кондоминиуму переоборудовать спальни, а затем, чтобы они подписали ваш план, особенно если вы планируете сломать стены и перенастроить пространство. Посмотрите фильм Brick Underground «Ремонт кооператива? Как реализовать свои планы».
Для этого вам нужно нанять архитектора, — говорит Айзенберг. «Они могут дать вам отличные идеи относительно того, как выложить стену, чтобы дать вам лучший шанс сделать квартиру максимально комфортной.Важно учитывать, где будет стоять кровать, где будет дверь, где будет шкаф и т. Д. »
Для изменения планировки вашей квартиры требуется разрешение Департамента строительства. Чтобы получить разрешение, ваш архитектор должен представить планы в DOB для утверждения и использовать зарегистрированного и застрахованного подрядчика для выполнения работ.
Затем архитектор представит планы ремонта совету директоров, который отправит их своему инженеру-консультанту и архитектору для обратной связи.«Скорее всего, у них будут вопросы и комментарии — это постоянный процесс», — говорит он. Архитектор также проведет вас через этот процесс вместе с Департаментом строительства.
Какое разрешение вам понадобится?По словам Айзенберга, обычно вам нужно подать форму изменения типа 2 в Департамент строительства, чтобы добавить спальню к существующей квартире.
«Этот процесс может занять от нескольких недель до нескольких месяцев — в зависимости от объема работы», — говорит он.
Сколько будет стоить такое мероприятие?Все зависит от сложности проекта, суммы, взимаемой архитектором и подрядчиком, и стоимости разрешений.
Мэлоу говорит, что участие архитектора может добавить к работе от 10 000 до 25 000 долларов. «Добавьте это к расценкам вашего подрядчика и гонорарам за строительство, и вы можете рассчитывать на сумму свыше 20 000 долларов», — говорит он.
По словам Грума, для более простых проектов возведение стены должно стоить примерно 5000 долларов, а также дополнительные несколько тысяч долларов на строительство туалета (при необходимости).
Сколько времени займет весь этот процесс?«Учитывая время на проектирование помещения, получение одобрения совета директоров и сбор разрешений, я бы выделил до года на весь процесс от начала до конца», — говорит Айзенберг. «Результаты могут отличаться».
Посмотрите эти апартаменты с двумя спальнями, которые потенциально могут быть преобразованы в апартаменты с тремя спальнями:
Этот дуплекс-пентхаус площадью 1250 квадратных футов с двумя спальнями и двумя ванными комнатами (также на фото выше) имеет высокие потолки, паркетные полы, кирпичную кладку, рабочий дровяной камин, открытую гостиную / столовую.На кухне гранитные столешницы и техника из нержавеющей стали. Есть и система кондиционирования, и стиральная машина, и сушилка.
Третья спальня потенциально может быть создана в обеденной зоне. Он расположен в здании бутик-кооператива, где разрешено размещение с домашними животными, с террасой на крыше, где можно совершать совместные покупки, поручителей и дарить подарки. Он выставлен на продажу за 1 199 000 долларов. Техническое обслуживание составляет 2273 доллара в месяц.
Этот кооператив площадью 1400 квадратных футов с двумя спальнями и двумя ванными комнатами, выставленный на продажу за 1 675 000 долларов, был недавно отремонтирован и окрашен.В нем есть отдельная обеденная зона, которая потенциально может быть преобразована в третью спальню. Он находится в кооперативном здании с полностью сдаваемым в аренду магазином, приносящим доход, гаражом и лифтом. Стиральная машина и сушилка разрешены с одобрения совета директоров. Техническое обслуживание составляет 2217 долларов в месяц.
Особенности этого дуплекса с двумя спальнями и двумя с половиной ванными за 2 200 000 долларов США включают высокие потолки, кирпичную кладку, два дровяных камина, недавно отремонтированную кухню с посудомоечной машиной и мусоропроводом, три чердака для хранения вещей, туалеты в Калифорнии.
повсюду, полный этаж мастер-люкс, стиральная машина и сушилка в блоке, а также частная терраса площадью 1000 квадратных футов.Официальная обеденная зона может стать хорошей третьей спальней. Он находится в доме-кооперативе, где разрешена субаренда и домашние животные (без ограничений по размеру и весу), а также жилые дома. Техническое обслуживание составляет 2664 доллара в месяц.
Объявленная за 4795000 долларов, эта квартира площадью 2316 квадратных футов с двумя спальнями, двумя с половиной ванными комнатами, имеет широкие деревянные полы, большие окна, нестандартное освещение, кухню шеф-повара с мебелью из белого дуба, мраморные столешницы, и бытовая техника из нержавеющей стали, большая гостиная и столовая, дополнительная комната, которая разделяет спальни и гостиную, которая может быть использована как офис или еще одна спальня, а также индивидуальные гардеробные в обеих спальнях.Арендатор уже на месте. Это только для инвесторов. Он находится в бутик-кондоминиуме. Общие расходы составляют 2081 доллар в месяц.
Налоги составляют 2917 долларов в месяц.
Этот кооператив с двумя спальнями и тремя ванными комнатами, выставленный на продажу за 2 395 000 долларов, имеет паркетные полы, дровяной камин, множество туалетов и две спальни — обе с отдельными ванными комнатами. Также есть комната для прислуги, которая может использоваться как третья спальня. Он находится в здании кооператива с полным спектром услуг, где есть швейцар, консьерж, домохозяйка, тренажерный зал, помещение для хранения велосипедов и кладовая.Техническое обслуживание составляет 3 495 долларов в месяц.
10 идей украшения квартиры | HGTV
Пышные
Поскольку большинство квартир квадратные, можно добавить кривые.
Дизайнер Либби Лэнгдон предлагает круглые столы, стулья с изгибом и коврики, которые имеют форму или украшены спиралями и точками.
Осветиться
«Легкий коврик может открыть вашу комнату и сделать ее больше», — говорит Лэнгдон.Плетеный остаток ковра отлично подойдет. Если в вашей квартире полы от стены до стены покрыты пятнами или темным, накройте его ковриком более светлого оттенка.
Пойти с шторами
Тебе не обязательно жить со стандартными жалюзи.
Добавьте немного драматизма с помощью штор и подумайте о хитростях, которые вы можете с ними сделать, чтобы ваше пространство казалось больше. Вешайте шторы за окном или даже на голые стены. Повесьте их от пола до потолка, чтобы создать высоту, или пусть они будут вытекать из карниза, который скрывает карниз.
Слой это
Вопреки тому, что вы думаете, в небольших помещениях не нужно отказываться от кровати с большим количеством постельного белья и тканей.Слои и элегантное сочетание цветов, принтов и подушек могут сделать пространство воздушным и придать глубину тому, что, вероятно, является одним из самых больших предметов в доме.
Все о масштабе
Если вы не пытаетесь заявить о себе с помощью эффектного, мягкого дивана, ваше маленькое пространство на самом деле будет выглядеть больше с мебелью среднего или немного меньшего размера.Все дело в масштабе!
Видеть ясно
Столы или стулья Lucite, а также стеклянные столешницы создают впечатление открытости, но при этом обеспечивают необходимую вам функцию.
Спать на этом
Старое решение для тесных пространств не зря вернулось в моду.По словам дизайнера Доун Бернс-Пратт, современные кровати Мерфи скрываются из виду и выглядят так же великолепно, когда они используются.
Сделайте вещи ярче
Добавьте света вверх, вниз и вокруг, чтобы создать интерес и ощущение пространства.
«Свет — это самый удивительный способ сделать дом теплым и уютным. Использование нескольких ламп в помещении создает в комнате теплое сияние», — говорит дизайнер Рон Марвин.
Приоритеты, приоритеты
Поскольку небольшие помещения очень ограничены, вам необходимо определить свои приоритеты и распределять их соответствующим образом, — говорит Марвин.Некоторым людям нужен рабочий стол, но не столовая. Некоторые люди хотят иметь гостиную и предпочитают складывающуюся кровать.
«Заставьте пространство работать для ваших нужд и не придерживайтесь традиционного дома. Это ваш дом».
Плавать
Дизайнер Джейсон Ландау любит устанавливать плавающие полки везде, где есть место.Поскольку они плавают, такие стеллажи добавляют массу места для хранения, но при этом выглядят гладкими и современными. А потом сходите с ума от штабелирования, — говорит он.
Планы квартир 30-200 кв.
м по моему проектуВот мои лучшие проекты, сделанные мной из личных интересов (художественное хобби / обучение), а также для различных клиентов с 2008 по 2016 год, когда я ушел из архитектуры ради более прибыльной ИТ-индустрии.Я больше не делаю новые дизайны по заказу, но у меня на продажу выставлено более 100 дизайнов. Прочитать заметок .
Если вам нужно создать новый индивидуальный дизайн в соответствии с вашими требованиями, мой партнер по архитектуре может вам помочь.
Мы заняты ПЛАТЯЩИМИ клиентами! Если вы ищете БЕСПЛАТНЫЕ планы этажей, просто просмотрите опубликованные ниже прошлые проекты, НЕ беспокоите нас электронными письмами или сообщениями в чате с запросами дизайна, пока вы не сможете позволить себе наши цены!
Центр Жилая
2011 дизайн
Оригинальная концепция «Сделано Teoalida», не вдохновленная каким-либо существующим зданием, названное в честь расположенной в центре гостиной (но также и для центральных дворов, круглого коридора и квартир по периметру).
Планы 4-комнатных (126 кв.м) и 5-комнатных (156 кв.м) квартир, образующих красивый непрерывный фасад с парными окнами спален, а также прихожая, которой не было в моих предыдущих проектах.
Идея появилась в ноябре 2010 года, когда я разработал план этажа Rectangle, 3D-дизайн добавлен в 2011 году, план этажа Triangle также был разработан, но никогда не публиковался, а затем дал положительные комментарии от друзей, в 2015 году я переработал обе версии Rectangle и Triangle, обе план этажа и 3D в более красивом сочетании неоклассицизма и постмодернизма.
Возможны и другие планы этажей, например П-образная с 6 или 8 квартирами на этаже.
2015 редизайн
«изготовление» видео
Купить файлы AutoCAD
Недорогой жилищный комплекс
Это ПЕРВЫЙ многоквартирный дом, спроектированный по чьей-то просьбе, в начале 2012 .
Индийский строитель попросил меня спроектировать однокомнатные квартиры площадью 20-30 кв. М, которые будут предоставлены обитателям трущоб.Я разработал 3 предложения и отправил ему электронное письмо с просьбой выбрать, с каким из них продолжить, он ответил, что на следующей неделе придет подробный ответ, но этого так и не произошло.
Поскольку другие люди также запрашивали планы квартир-студий, в 2013 я опубликовал на веб-сайте одно из трех предложений, коридорное, вдохновленное арендными блоками Сингапура SIT и HDB, построенными в 1950-1960-х годах, но добавившими две комнаты, кухня отделена от гостиной. комната. Туалет внутри кухни был традицией в Сингапуре до 1990-х годов.В 2015 я сделал из личной сегментированную версию, вдохновленную поместьем Тионг Бару, построенным в 1950-х годах Singapore Improvement Trust. Обратите внимание на кухню, перекрывающую лестницу (аутентичный элемент Сингапура).
Я хотел спроектировать 4-комнатную версию, но столкнулся с проблемами при планировании, потому что для этого потребовалась бы большая гостиная и вторая ванная комната.
В 2019 году мне пришла в голову идея устранить перекрытие кухонь, вместо этого использовать пространство за лестницей для спальни… см. Приведенный ниже план этажа.
Я также намеревался спроектировать полный городской жилой комплекс с 1-комнатными и 4-комнатными квартирами и план парковки, я составил план участка с 752 квартирами из личных интересов в 2016 году, но потеряв интерес к архитектуре, этот проект остался без 3D-дизайна . Я изменил план участка в 2019 году, сделав его 1024 единиц. Обратите внимание, как я выровнял блоки в системе счисления с основанием 2, блоки находятся на расстоянии 4 метров от тротуара, а узор повторяется по вертикали через каждые 64 метра. Наверное, подойдет для стран третьего мира Азии и Африки.
Купить файлы AutoCAD DWG
Небольшой многоквартирный дом в Нигерии
Я разработал этот проект Нигерия (а не из личных интересов / художественного хобби, как большинство проектов, показанных на этой странице), поэтому он имеет полностью подробные архитектурные чертежи.
На участке размером 18 х 36 метров в Лагосе владелец земли построил одноэтажный двухквартирный дом сзади и теперь хотел двухэтажный блок с четырьмя квартирами с 2 спальнями размером 16 х 10 метров.Для экономии места спроектирована однопролетная лестница с разным расположением дверей квартир на каждом этаже. Заказчик попросил меня добавить вторую металлическую лестницу сзади, что, на мой взгляд, бесполезно.
Жилые дома для небольших участков
Я проектировал 3D-модели БОЛЬШИХ зданий, но мне не хватало МАЛЕНЬКИХ, которые строит большинство людей, когда начинают инвестировать в недвижимость. Блоки по 2 квартиры на этаже, но в отличие от сегментированных блоков с несколькими лестничными клетками, представленные ниже конструкции предназначены как отдельно стоящие здания, поэтому окна можно размещать со всех 4 сторон.
Дом размером 14 x 10 м, спроектированный мною в 2013 для заказчика, отчаявшегося построить жилой дом с 10 квартирами на участке, предназначенном для дома на одну семью.
То же самое для 16 x 10 м.
В том же 2013 году я спроектировал из личного интереса блок 18 х 15 м с четырьмя комнатами, шедевр в эффективности планирования квартиры, предлагающий уединение для спален, несмотря на минимальные коридоры (вы можете приглашать гостей в гостиную, и они не могут видеть через двери спальни ). В июнь 2015 я улучшил план этажа, а также спроектировал 3D-модель в архитектурном стиле ар-деко.
Купить файлы AutoCAD DWG
Европейские апартаменты I
В отличие от Азии и Америки, европейский дизайн квартир включает коридоры, обычно вы входите в коридор, затем в гостиную и спальни, поэтому гостиную можно использовать также для сна. В некоторых квартирах, обычно меньших по размеру, вы проходите через гостиную, чтобы попасть в спальни. Дневная и ночная зоны хорошо разделены. Окно для ванной не требуется. Собственные ванные комнаты — редкость в Европе, обычно в 3-комнатных квартирах есть одна полностью оборудованная ванная комната и туалет, в 4-комнатных квартирах — одна ванная и один туалет с душем, но точного правила нет.
Санузел всегда располагается в ночной зоне, а туалет — в дневной зоне. Наиболее важные помещения выходят на юг, лестничная клетка может быть как на южном, так и на северном фасаде, в зависимости от того, где находится улица.
В 2009 году меня раскритиковал британский архитектор, сказавший, что мой «идеальный город» выглядит устаревшим, как социальное жилье 1960-х годов. Что ж, теперь мне очень хотелось спроектировать что-то в стиле европейского государственного жилья 1960-1980-х годов, как капиталистического, так и сталинско-коммунистического. Концепция началась в 2010 году при недостатке знаний, позже я спроектировал 3D-модели и опубликовал их в March 2012 вместе с европейскими домами с шестью спальнями.
Архитектурный дизайн, вдохновленный Северной Европой (Швеция, Норвегия, Финляндия) и Германией, увеличивает соотношение на 42 кв. М на человека и всего 2,2 человека на жилую единицу, но в случае квартир я предполагаю, что это соотношение меньше. Я не смог найти точной информации о средней площади квартиры, у многих семей есть квартира в городе и дом в сельской местности.
Квартиры обычно варьируются от 1 до 4 комнат, но есть и 5 комнатные.
Жилой комплекс, показанный в 3D-дизайне, состоит из малоэтажных блоков с 40 квартирами и многоэтажных блоков снова с 40 квартирами, бесконечный узор на основе сетки 120 × 56 метров, состоящий из 2 малоэтажных и 1 многоэтажного блока, содержащего 24 2-комнатные, 64 3-комнатные, 32 4-комнатные.Средняя площадь квартиры 80 кв.м. 179 квартир на гектар.
Европейские апартаменты II
Я переработал европейскую серию в 2016 , сделав стены толщиной 20 см и 10 см вместо 12,5 см, линейные блоки для пешеходов практически не изменились, Short Tower был преобразован в блок для прогулок с внутренними балконами и меньшими комнатами, В Long Tower появились балконы большего размера и комнаты поменьше, а также я добавил несколько дополнительных типов блоков.
Блоки линейной ходьбы
Блоки линейные многоэтажные
Подъемные блоки прямоугольные
Прямоугольные многоэтажки (обратите внимание на уникальный симметричный план, по 5 квартир на этаже)
Башни ветряных мельниц
Купить чертежи AutoCAD
Дизайн крошечной квартиры из / для Филиппин
Эти планы этажей основаны на эскизах, сделанных для реальных клиентов.
Их не интересовал полный проект, но я лично заинтересовался этими проектами, модифицированными в соответствии с моими собственными правилами и размещенными здесь для справок.
На Филиппинах самые маленькие апартаменты в мире. Размеры комнат сопоставимы с Гонконгом, но вместо квартир с 2/3 спальнями на Филиппинах можно увидеть огромные квартиры, в которых преобладают студии и апартаменты с 1 спальней, например http://www.smresidencescondo.com/myplace-plan.html с единицами от 16 кв.м студия до 40 кв.м с 2 спальнями.
В 2014 году этот комментарий оставил индиец, желающий построить жилой дом на участке 5 х 12 м, включая лифт. Невозможно! В 2016 году другой индиец попросил меня спроектировать квартиру на участке шириной 4,8 м с кухней впереди по причинам Васту, что оказалось невозможным. На этот раз я также публикую здесь рисунок, чтобы показать вам, что 5 x 15 метров — это минимальная земля, необходимая для строительства блока, на каждом этаже которого находится квартира с двумя спальнями.
Купить планы этажей AutoCAD
Малый линейный
Linear Small — более дешевая пара Linear Large, гостиная выходит в общий коридор.Разработан в 2009 .
Укороченная версия , длина 64 метра, 8 единиц на этаж, 2-, 3- и 4-комнатные. Длинная версия , длина 76 метров, 8 шт. На этаже 3- и 4-комнатных. И, конечно же, другие версии. На плане этажа и 3D-модели показана половина короткой версии и половина длинной версии.
Оплата и загрузка файлов DWG
Большой линейный
Linear Large (ранее назывался New Generation) — это пара, противоположная Linear Small (ранее называвшаяся Old Generation), все гостиные и (почти) все спальни выходят на противоположный общий коридор.8 стандартных типов квартир площадью от 84 до 133 кв. М, плюс другие нестандартные типы с стыками не 90 °, размещенные вдоль общего коридора, могут иметь различную форму.
4-комнатная Средняя квартира площадью 104 кв.м. — «базовая», самая распространенная квартира. Разработан в 2009 .
Примеры форм: Г-образная форма 61 на 48 метров, 8 квартир на этаж, 4- и 5-комнатные; 88 на 48 метров S-образной формы с 16 квартирами на этаже, 4- и 5-комнатными; Восьмиугольник диаметром 64 метра с 16 единицами на этаже, только 3 комнаты и т. Д.
Оплата и загрузка файлов DWG
Линейный мезонет
Блок шириной 14 метров с плоскими фасадами.План этажа показывает версию 8 единиц на этаж, длина 60 метров, на трехмерном изображении показаны 2 блока по 12 единиц на этаж, длина 88 метров, на расстоянии 28 метров друг от друга. Квартиры площадью 140 кв.м с 4 спальнями, 3 ванными комнатами, гардеробной для главной спальни. Мезонет (иногда с ошибками Mansionette) — это почти во всем мире термин, означающий двухэтажные апартаменты. Разработан в 2009 .
Оплата и загрузка файлов DWG
Сингапур Коридор 3/4-комн.
Ранее назывался Sharpback Small (из-за острых прорезей на задней стороне), вдохновленный наиболее распространенными многоквартирными домами, построенными в Сингапуре в период с 1975 по 1990 год: Новое поколение с 3-комнатными (67/82 кв.м) и 4-комнатными на концах ( 92 кв.м).Модель А с 3-х комнатным (75 кв.м) и 4-х комнатным по окончании (105 кв.м).
Я улучшил дизайн в Сингапуре, поменяв местами кухню и главную спальню, сделал гостиную шире спальни, чтобы соотношение размеров гостиной и главной спальни было 3: 2, и уменьшил размер кухни (кухня в Сингапуре большая, как гостиная).
Блок имеет ширину 14 метров и переменную длину, что обеспечивает высокую эффективность использования земли, размеры квартир и окон создают красивые прямоугольники на фасаде, НО… что вы думаете о плане этажа?
2010 конструкция
2015 Мелкий редизайн
Купить чертеж AutoCAD
Сингапур Коридор 4/5 ком.

Ранее назывался Sharpback Large , вдохновленный блоками, построенными в Сингапуре в период с 1985 по 2000 год, но из-за комбинации различных планов этажей, таких как этот, этот, этот и многих модификаций, он едва ли похож на какой-либо блок Сингапура.Могут быть построены во многих формах, I, U, L, а также угловые блоки этого блока могут быть объединены с 3-комнатными блоками от Sharpback Small. НО… что вы думаете о плане этажа?
2010 конструкция
2015 Мелкий редизайн, квартиры укорочены на 50 см
Купить чертеж AutoCAD
Сингапур Коридор Мезонет
ДОБАВИТЬ
Сингапур Сегментный 3/4-комнатный
Комбинация квартир Sharpback Small и Sharpback Large в блоке в сегментированном стиле.Sharpback — это прозвище, придуманное мною для сингапурских блоков с прорезями на заднем фасаде для кухонь или спален. Первоначально разработан в 2011 , переработан в 2015 и окрашен.
Купить чертеж AutoCAD
Zig-Zag / Linear-H
Один из самых распространенных блочных планов на всех континентах. Первоначально спроектированный в 2008 на основе 4-метровой сетки, с 3-комнатными квартирами площадью 84 кв. М (те же, что и в Trapeze Tower), я перепроектировал в 2011 с 3-комнатными квартирами площадью 71 кв. М и 4-комнатными квартирами площадью 93 кв.
2015 Мелкий редизайн
Купить чертеж AutoCAD
Сегментированный смешанный
Я спроектировал его в 2009 году, вдохновленный 5-комнатными плитами, построенными в Сингапуре между 1975 и 1985 годами, с гостиной + столовой + 3 спальнями, площадью около 120 кв.м., улучшенной за счет помещения главной ванны внутрь, главной спальни увеличенной, L-образной формы с гардеробная и добавлен кухонный двор. Затем я получил 5-комнатный торцевой и 4-комнатный угловой.
Трехмерная модель основана на плане этажа с шестью 4-комнатными и двумя 5-комнатными на концах, длиной 96 метров.
2009 конструкция
2015 редизайн, размеры немного уменьшены
Купить чертеж AutoCAD
Новый сегментированный
Новый макет, вдохновленный… хм, не могу определиться! Блоки в стиле лестницы очень распространены в Южной Корее, но с другой планировкой, более длинной и тонкой. Когда-нибудь займусь 3D дизайном.
2011 год дизайн и 2015 незначительный редизайн
Купить файлы AutoCAD DWG
Блоки треугольные
Два здания с сеткой 4 метра, шириной 10 метров, все жилые комнаты и спальни обращены к внешнему фасаду, а все кухни выходят во внутренний двор, спроектировано в начале 2009 .
Уменьшенная версия с 9 единицами на этаже, 44 метра фасада на расстоянии 18 метров от центра, трехмерный дизайн еще не адаптирован к новым правилам.
Большая версия с 12 единицами на этаже, 48-метровые фасады @ 22 метра от центра и 8-метровые фасады @ 30 метров от центра.
У маленькой версии есть преимущество больших квартир и недостаток центральной гостиной, но этот недостаток позволил мне спроектировать симметричный блок с нечетным количеством квартир на этаже.
Купить файлы AutoCAD DWG
Фристайл
Ранее называвшееся Freedom Generation, это мой самый сложный архитектурный проект, который я сделал в AutoCAD, начатый в конец 2009 г. . Вдохновленные жилищными проектами 2000-х годов, построенными в различных городах Азии, в них объединены самые разные планы квартир от квартир с одной спальней до четырехкомнатных квартир, площадью от 50 до 130 квадратных метров, с кухнями, выходящими внутрь. флигели, связанные с центральным ядром (лестницей и лифтами) мостами-коридорами.Свобода вариаций формы практически безгранична.
10 квартирами и унифицированным дизайном, в котором преобладают длинные линейные блоки с фасадами с непрерывными горизонтальными линиями, в отличие от U-образной квартиры, построенной годом ранее.Я решил организовать шесть пар (100 метров в длину) и четыре пары (60 метров в длину), в результате получилось хорошее сочетание 3/4/5-комнатных квартир из 384/320/320 единиц. Пятикомнатные единицы имеют лучший вид, но некоторые трех- и четырехкомнатные также имеют прямой вид на бассейн.
Расстояние между блоками: 30 метров между главными фасадами, 20 метров между боковыми фасадами и 60 метров поперек бассейна. Площадь земельного участка: 6,45 га (288 на 224 метра). Плотность: 158,7 жилых единиц на гектар.
Этот проект подходит для экваториальных стран, таких как Сингапур и Малайзия, с линейными блоками, ориентированными с востока на запад (с комнатами на северном и южном фасадах), чтобы свести к минимуму солнечные лучи внутри квартир, в то время как большой олимпийский бассейн ориентирован с севера на юг для получения солнечного света между блоками.
.Между внешними блоками есть 4 пространства, которые можно использовать для большего количества бассейнов, теннисных кортов, ориентированных с севера на юг (как и должно быть), ямы для барбекю и других объектов. Крыша клуба используется как баскетбольная площадка. Одноэтажная подземная автостоянка покрывает весь комплекс и дает место для парковки около 1040 машин, и покрыта зеленой крышей. Крыльцо и крытые переходы не нужны, вы можете проехать через парковку и остановиться всего в 16 метрах от каждого подъемника.
Всем любопытным студентам, которые спрашивают , сколько времени я потратил на рисование, могу сказать, что проектирование, растянувшееся на один год, начиная с начала 2011 года, я не могу оценить фактические часы работы, потому что я работал с перерывами, пока не пришли новые идеи. ум и менял много раз, например, я перешел на окна во всю высоту в конце 2011 года.
3D-модель еще не закончена, в ней нет караульного поста, детской площадки и других деталей, но я решил опубликовать ее в августа 2012 г.
, потому что у меня больше нет ВРЕМЕНИ, чтобы продолжить, и потому что файл DWG стал настолько тяжелым, что вылетает AutoCAD , он внезапно закрывается, когда я пытаюсь выполнить определенные команды ..
На фото ниже показан весь комплекс с использованием рендера по умолчанию. При использовании Raytrace Render AutoCAD всегда давал сбой, пока я не удалил 12 из 20 блоков (по этой причине на фотореалистичных 3D-рендерах отображается только центральная область).
В конце 2011 года я разработал проект третьего кондоминиума, состоящего из 8 или 10 блоков зигзагообразной формы, расположенных в 4 линии, разной высоты от 8 до 16 этажей, вероятно, 708 квартир… но, поскольку с 2012 года я концентрирую время на ПЛАТЕ Работу, я отказался от неоплачиваемых чисто художественных проектов.
Башня Squares
Дизайн высотных домов вдохновлен точечными блоками, построенными в Сингапуре в период с 1970 по 1985 год, размером 26 × 26 метров и 5-комнатными квартирами площадью 117-125 кв.
м (гостиная, столовая, семейная комната и три спальни).
Разработан в Декабрь 2008 г. , увеличен до 28 × 28 метров и, как и все мои проекты 2008 года, его планы этажей основаны на 4-метровой сетке. Я добавил кабинет в конце столовой, что позволяет реализовать разнообразные идеи по ремонту, кабинет может стать гардеробной для главной спальни или может быть увеличен до полноценной спальни, если другая спальня объединена со столовой, чтобы создать большую восьмерку. × 6 метров фортепианный концертный зал.
В 2011 я спроектировал вторую версию, близкую к первоначальному плану этажа HDB, переработанный в 2015 в красочном плане этажа.Фото фактического здания.
Купить файлы AutoCAD DWG
Прямоугольная маленькая башня
Проект класса А в основном основан на 4-метровой сетке. 4-комнатные плюс 5-комнатные двухуровневые пентхаусы. Оригинальный план этажа, не вдохновленный реальным зданием.
Возможны 2 варианта исполнения: 32 на 20 метров (показано на плане этажа) и 28 на 24 метра, единственное отличие — расположение ядра с лестницей и лифтами, размеры квартир и жилы одинаковы. На 3D-моделях показаны обе версии.
Разработан первоначально в Декабрь 2008 года , модернизирован в 2010 году.
Купить чертеж AutoCAD
Прямоугольная большая башня
6-комнатные апартаменты, вдохновленные представительскими апартаментами, построенными в Сингапуре в 1988–1992 годах, с 4 спальнями, отдельной гостиной и столовой.
Изображение будет добавлено
Купить чертеж AutoCAD
Башня-трапеция
Как и все мои проекты 2008 , это еще один блок, основанный на 4-метровой сетке, оригинальный план этажа не вдохновлен ни одним реальным зданием.Два крыла шириной 24 метра в 14 метрах от центра (3-комнатные апартаменты) и одно крыло шириной 28 метров в 20 метрах от центра (4-комнатные апартаменты).
Купить файлы AutoCAD DWG
Треугольная башня
Один из самых красивых проектов, который я сделал в течение первого года изучения архитектуры, с 4-комнатными квартирами и 5-комнатными двухуровневыми пентхаусами, классифицированными как класс B из-за того, что общие спальни меньше, чем те, которые основаны на сетке 4 × 4. Широкая планировка и огромное ядро лестничной клетки с местом для 4 лифтов позволяют возвести небоскреб до 32 этажей.
Разработан в мае 2009 г. , переработан в 2010 г. Он заменяет предыдущий проект под названием Hexagon Tower. По всему миру есть много треугольных башен, которые в той или иной степени похожи на мой дизайн, в том числе Bishan Loft.
Купить файлы AutoCAD DWG
Линейный 2/3-комнатный
Ранее называвшаяся Linear Studios, спроектированная в 2011 , она имеет некоторое сходство с сингапурскими полностью студийными блоками, построенными после 2000 года, площадью 45 кв.
м «Студия», которая на самом деле является двухкомнатной, но я добавил в свой проект трехкомнатные угловые квартиры. , и я сделал кухни открытыми, как в Японии.Могут быть спроектированы во многих формах, я выбрал U-образную форму с 12 единицами на этаж.
2011 г. оригинальный дизайн против 2015 г. капитальный ремонт, квартиры уменьшены.
Купить чертеж AutoCAD
Гонконг серии I
Гонконгские архитекторы — мастера оптимизации пространства и размещения людей в небольших квартирах. Поэтому я потратил 3 месяца на его изучение (, январь-март 2011 г., ), чтобы создать на его основе 6 собственных проектов, но в итоге я реализовал 8 проектов в AutoCAD.
Кому нахрен нужна квартира в 100 квадратных метров? Теперь я доказываю, что при хорошем дизайне семья из 4 человек может комфортно жить в квартире площадью 60 кв.м. По этому случаю я также полностью спроектировал структурные элементы и добавил размеры на планы этажей по просьбе моих поклонников (посетителей сайта).
Harmony , вдохновленный одноименными государственными жилыми домами, с 16 единицами на этаж, смешанными от 2 до 4 комнат, спроектирован как самый дешевый из всех проектов, поэтому по размеру аналогичен реальному кварталу. Но был улучшен за счет изогнутых фасадов и очень красивой цветовой гаммы.
Concord почти не похож на одноименные блоки государственного жилья, потому что я смешал его с идеями блоков Flexi, поэтому я убрал окна, обращенные друг к другу под углом 90 градусов (если вы не расположите их в L-образной форме, как на 3D фото), более того, я добавил балконы и эркеры с темным стеклом, чтобы он выглядел как частный дом. Квартиры на 10% больше жилого дома.
Еще 2 проекта, вдохновленных государственным жилищным фондом, с 8 и 10 квартирами на этаже, они преувеличены на 10-25% больше, чем оригинальные.Я не планирую для них 3D-дизайн… пока.
Следующие 4 проекта вдохновлены наиболее распространенным дизайном частного жилья, по 8 квартир на этаже.
Elegance похож, например, на Sunshine City и Yee Fung Garden. Grandeur позволяет различные комбинации своих 5 типов квартир. 40, 50, 60, 70 кв.м … Я работаю над 3D дизайном.
Надоели размеры квартиры?
Вы еще не видели «Миминалист»… моя попытка создать как можно меньшие апартаменты, это действительно похоже на апартаменты в гонконгской клетке для птиц.Я надеюсь, что НИ ОДИН застройщик снова не построит такие обувные коробки площадью 30 кв.м!
Думаете, что видели самые маленькие квартиры?
Вы ошибаетесь, проверьте специальную страницу о реальных квартирах в Гонконге, особенно о Garden Rivera , где 3-комнатные квартиры имеют площадь всего 242 кв. Фута / 23 кв. М, включая толщину стен (это вдохновило меня на «Минимализм»). Как люди живут в таких голубятнях? Посмотрите на gohome.com.hk планы этажей и фотографии интерьеров апартаментов Garden Rivera и представьте себя.
Гонконг серии II
Я приостановил проектирование всех архитектурных проектов, вдохновленных Гонконгом, до тех пор, пока я не приму решение создавать их больше для развлечения / искусства или более аутентично.
Квартиры Series I были слишком большими и не оптимизированы должным образом. В января 2012 года я переработал 5 из них, теперь основанных на метрической системе, в соответствии с законами Гонконга, общая площадь пола рассчитывается по поверхности стены, а не по оси стены, единичные общие площади включают полную толщину внешних стен и половину толщины общих стен. .Стены — это стены толщиной 10 см вместо 12,5 см, спальни 2 × 2,5 м вместо 2,375 × 2,625 м.
В 2015 Я немного улучшил планы этажей и переделал их в красочном стиле. Обратите внимание на ядро с толстыми бетонными стенами, которые на площади проходят снаружи здания для сопротивления боковым силам (сейсмическая и ветровая нагрузка), что необходимо, когда в Гонконге большинство государственных жилых комплексов имеют ~ 40 этажей, а частные дома достигают даже 80 + этажи.
Купить и загрузить файлы AutoCAD DWG
Гонконгская серия с квартирами международного размера
В Октябрь 2011 года Я переработал 3 архитектурных проекта, вдохновленных Гонконгом, но используя свой собственный международный стандарт размеров квартир, аналогичный Сингапурскому и остальному миру (спальни 3 × 4 м, гостиная 4 × 6 — 4 × 7 м, так далее).
Планы этажей изменены в Январь 2016 в красочном формате и в метрической системе с толщиной стен 10 см вместо 12,5 см. 3D-модели остаются такими же, как и в 2011 году.
Купить файлы AutoCAD DWG
Недорогой корпус с высокой плотностью размещения I
Это вариант квартиры из той же семьи, что и дачный дом повышенной плотности. Вдохновленный мексиканским социальным жильем (casas de interes social), спроектирован на основе 3-метровой сетки.Я улучшил их, увеличив размеры комнат и разместив много зеленых насаждений. Размер блока: 42 × 18 метров. План участка может быть выполнен в 2 вариантах: 60 × 32 метра с боковой парковкой и 14 м между фасадами блока и 48 × 40 метров с фронтальной парковкой, 22 метра между фасадными фасадами. Оба будут иметь одинаковую плотность — 166,67 квартир / га. Разработан Август 2011 года .
Двухуровневый многоквартирный дом, один из наиболее распространенных типов многоквартирных домов в Бразилии.
Я немного увеличил квартиры до 50 кв.м и 64 кв.м и разместил блоки зигзагообразным узором, чтобы обеспечить конфиденциальность и комфорт, избегая спален, обращенных друг к другу, на воздухозаборниках, сохраняя при этом высокую плотность.16-квартирные блоки имеют ширину 17 метров и 40 метров между осями улиц, что дает плотность до 235,30 квартир на гектар. Разработан Январь 2012 г. .
Другие типы блоков, вдохновленные той же Бразилией, площадью 46, 60 и 80 кв.м. Разработан Январь 2012 г. .
Надоели размеры квартир?
Квартиры в Real Mexico состоят только из трехкомнатных квартир (50 кв.м), а спальни имеют небольшие размеры, как 3×3 метра, в то время как в Бразилии есть некоторые различия в размерах квартир, но большинство спален 2.5 × 3,25 метра. В обеих странах расстояние между зданиями может составлять всего 4 метра, а в государственных жилых комплексах нет зеленых насаждений.
Недорогой корпус с высокой плотностью размещения II
Новые планы этажей, вдохновленные Латинской Америкой, спроектированы с использованием спален 3,5 x 2,5 м, ванных комнат 2,5 x 1,5 м и коридоров шириной 1 м, все размеры делятся на 50 см, что создает красивую планировку с художественной точки зрения.
Они были разработаны в 2014 и позже раскрашены для публикации на сайте.
Оплата и загрузка чертежей AutoCAD
Роскошная квартирная башня
Этот дизайн роскошных апартаментов демонстрирует возможность предложить несколько вариантов планировки в пределах одной квартиры: стандартные апартаменты площадью 190 кв.м, состоящие из 4 спален, из которых 2 люкса, апартаменты с 3 спальнями + кабинет, апартаменты с 3 спальнями + увеличенная гостиная, а также двухуровневые пентхаусы площадью 350 кв.м. с джакузи на крыше. Есть частные лифты и комнаты для прислуги. Дизайн вдохновлен элитной недвижимостью Бразилии.
Изначально был разработан в 2012 для хобби, когда я решил разместить объявление на веб-сайте после создания 3D-модели, но так и не нашел времени для 3D. Раскрашено в 2016 и публикуется впервые.
Купить и скачать чертеж AutoCAD
Сравнение разных планировок из моих моделей многоквартирных домов
Сборник 2015 г.
(опубликовано в январе 2016 г.)
Все планы этажей переработаны в метрической системе, стены толщиной 10, 20, 30 см
Сборник 2011 г. (опубликовано в январе 2012 г.)
Все планы этажей разработаны в двоичной метрической системе, 12.Внутренние стены 5 см и внешние стены толщиной 31,25 см
Заметки обо мне
Я начал изучать архитектуру в 2008 году, спроектировав в AutoCAD виртуальный город с высококачественными квартирами, представив себя президентом страны или менеджером жилищной корпорации, чтобы предложить качественное жилье по крайней мере для половины населения… как государственное жилье. Квартиры спроектированы с учетом высокой плотности, средний размер квартиры 100 квадратных метров и 30 квадратных метров на человека (виртуальный город — потому что я не застройщик, у меня нет капитала для их строительства).
Большинство проектов было выполнено для 3D-хобби в 2008-2012 гг. Они хотели продемонстрировать мои навыки, особенно в разработке эффективных макетов.
Упрощенные для понимания людьми с нулевым знанием архитектуры, они НЕ предназначены для подачи в правительство для получения разрешения на строительство или использования в строительстве.
После добавления виджета живого чата в 2012 году несколько сотен человек обратились ко мне за услугами по архитектурному дизайну, я перестал заниматься дизайном для хобби, чтобы сосредоточиться на проектировании для клиентов.Некоторые проекты, представленные на сайте, сделаны из личного интереса на основе быстрых эскизов, сделанных по запросу клиентов.
Статистика проектирования домов и квартир (файл Excel со всеми моими проектами домов и квартир, по одному в каждой строке, с указанием размера каждой комнаты для расчета общей площади пола и сравнения различных моделей квартир).
В планах этажей 2008-2013 гг. используется черный фон, масштаб 32 пикселя на метр, 3D-дизайн отображается с разрешением 2048 × 1536. С 2010 года добавил размеры в миллиметрах.Размер квартиры , чистая площадь (без учета стен и балконов).
Планы этажей, составленные с 2014 цветные, масштаб 20 пикселей на метр, 3D-дизайн визуализируется с разрешением 1920 × 1080 или 1440 × 1080. Размеры указаны в метрах. Указываются как общая, так и чистая площадь.
С 2015 Я начал процесс преобразования старых планов этажей в красочный стиль, но так и не закончил, потому что в 2016 году я ушел из архитектуры, чтобы сосредоточиться на базах данных и ИТ-индустрии.В последующие годы несколько человек связались со мной, чтобы купить мои прошлые проекты, мы договорились о цене, и я отправил файлы AutoCAD DWG по электронной почте.
Примечания по покупке файлов AutoCAD DWG
Цены на квартиры: 2 квартиры на этаж 40 долларов, 3-4 квартиры на этаж 50 долларов, 5-8 квартир на этаж 60 долларов, 9-12 квартир на этаж 70 долларов, 13-16 квартир на этаж 80 долларов.
Цены на дом: $ 10 x количество комнат (включая спальни и гостиную).
Если в одном файле собрано несколько похожих планов, добавьте 10 долларов за каждый дополнительный план.
Скидка 10 $ при покупке нескольких чертежей, независимо от того, покупаете вы сразу или по отдельности.
Видя, что люди предпочитают покупать готовые чертежи, с ноября 2019 года Я начал добавлять кнопки КУПИТЬ в каждый проект, чтобы вы могли платить с помощью PayPal или кредитной карты и получать автоматически редактируемые файлы AutoCAD DWG (система, которую я использую для продажи баз данных с 2012 года. ) вместо того, чтобы отправлять вам файлы вручную.
Этот процесс продолжится в 2020 году, потому что у меня более 100 проектов, некоторые из них необходимо обновить до текущих стандартов качества, прежде чем выставлять файлы на продажу.Я сделал новые скриншоты в масштабе 40 пикселей на метр, чтобы лучше смотреться на экранах телефонов с высоким разрешением, и добавил несколько планов, разработанных, но никогда не публиковавшихся.
Продажа файлов DWG — это экспериментальная , потому что я не знаю, насколько ВЫ будете счастливы, купив план этажа, сделанный не для вас (сделанный для прошлого клиента или из личных интересов). Я также не знаю, стоит ли продавать пакеты с несколькими планами этажей. Очень мало сайтов, на которых можно почерпнуть вдохновение (например, www.houseplans.com с ценами от $ 1000, включая подробные архитектурные чертежи).
В зависимости от отзывов клиентов я скорректирую доступные файлы и цены. Некоторые предлагали вообще НЕ отображать планы этажей, а только трехмерное изображение, требуя, чтобы люди платили за просмотр плана этажа. Но создание 3D-модели для каждого плана этажа потребует больше усилий и не гарантирует продаж, поскольку существует бесчисленное множество веб-сайтов, на которых вы можете бесплатно просматривать планы этажей (но не редактировать / изменять).
Часто задаваемые вопросы: Могу ли я приобрести 3D-модели? Включены ли подробные чертежи? Или только поэтажные планы?
Только поэтажные планы, если не указано иное.
Clicky Analytics показывает, что 3D-изображения получают в 5-10 раз меньше кликов / загрузок, чем изображения планов этажей, а это означает, что очень немногие интересуются 3D-моделями, по этой причине с 2015 года я не создавал 3D-модели, если мне не платили. Если вас интересует 3D модель, свяжитесь со мной, и мы договоримся о цене.
Я никогда не делал подробные чертежи, фасады и разрезы без предоплаты, и из-за небольшого количества платящих клиентов только ~ 10 проектов включают фасады и разрезы, сделанные для клиентов из определенных стран, владеющих земельным участком определенного размера и предпочитающих специфический архитектурный стиль.Я тоже могу выставить их на продажу, но они могут НЕ ИСПОЛЬЗОВАТЬСЯ для вас, потому что вам нужно будет изменить их в соответствии с вашими потребностями и законами вашей страны, что аналогично созданию полностью нового дизайна. Так что детальные чертежи будут выполнены моими партнерами только на заказ по законам вашей страны.


Оставьте её для приготовления пищи, а стол перенесите в зал;


Не стоит забывать и о слаботочных сетях – телефоне, кабельном ТВ и интернете.
Для этого пользуются, например, двусторонним стеллажом-перегородкой.
Подробнее
Подробнее
палитра модернистских материалов.Подробнее
Подробнее
Подробнее
Подробнее