Планировки и проекты элитных домов и коттеджей
Когда делается планировка дома, тем более элитного, необходимо проявить фантазию, запланировать что-нибудь оригинальное и неповторимое. Практический опыт профессионалов в этой области говорит о том, что располагать декорирующие детали в доме необходимо с соблюдением определенных правил. Фантазировать в этом случае не стоит.
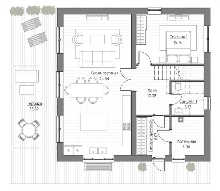
Планировка элитного коттеджа 17х20 с террасами и бассейном
Планирование всегда выполняется по давно разработанным критериям, отходить от которых нежелательно.
Вернуться к оглавлению
Содержание материала
- 1 Что входит в планировку элитного дома
- 2 Проект кирпичного элитного дома
- 3 Планировка двухэтажного элитного дома
- 4 Элитные коттеджи
- 5 Планирование загородных коттеджей
- 6 Общие принципы планирования
Что входит в планировку элитного дома
Элитный дом во многом отличается от обычного загородного коттеджа.
В планировку такого здания включается несколько обязательных элементов:
- Большой гараж в двухэтажном доме, вмещающий несколько машин;
- Бассейн;
- Большая терраса в доме;
- Крыльцо с навесом;
- Оригинальные лестницы;
- Кухня большой площади;
- Несколько спален;
- Камин;
- Шкафы встроенного типа;
- Высокие потолки;
- Колонны, украшающие главный вход.
Перечисленные выше элементы планировки могут быть дополнены в соответствии с собственными фантазиями. Необходимо только при этом соблюдать имеющуюся гармонию в дизайне дома.
Планировка второго этажа трехэтажного коттеджа размером 8х14
Главное отличие элитного дома от всех остальных строений заключается в создании комфорта для человеческой жизни.
В таком доме обязательно планируются:
- Бильярдная;
- Сауны;
- Кабинет;
- Мастерская;
- Гостиная;
- Спортивный зал.
Вернуться к оглавлению
Проект кирпичного элитного дома
В большинстве случаев планирование элитного дома разрабатывается исходя из материала.
В нашей стране чаще всего дома строятся из кирпича. Этот материал отличается длительным сроком эксплуатации и привлекательным внешним видом.
Кирпичный элитный дом отличается несколькими очень важными преимуществами:
- Высокой прочностью;
- Морозоустойчивостью;
- Длительным сроком эксплуатации;
- Экологичностью;
- Пожаробезопасностью;
- Отличной шумоизоляцией.
Проект трехэтажного коттеджа с мансардой и террасами
Практически все кирпичные дома могут «дышать». Это позволяет добиться оптимальной влажности, а также сохранения лучшего кислородного баланса.
Сегодня кирпичные элитные дома строятся по самым разным проектам. Они могут быть:- Одноэтажные частные дома;
- Многоэтажными;
- С мансардой;
- С подвалом;
- С гаражом.
Вернуться к оглавлению
Планировка двухэтажного элитного дома
Такие дома чаще всего строятся для большой семьи, состоящей из четырех человек и более.
Для того чтобы увеличить полезную площадь, планируется строительство:
- Мансарды в доме;
- Цокольного этажа.
Чтобы внешний вид дома отличался своей оригинальностью, строится стеклянная терраса, гармонично вписывающаяся в окружающий ландшафт.
Чтобы интерьер поражал своей оригинальностью, делается необычная планировка. С ее помощью комнаты зонируются на несколько частей.
Планировки всех этажей элитного дома 14х17
Или делается совмещение нескольких комнат — в одну, в которой намного больше свободного пространства. Для зонирования можно воспользоваться хитрым приемом, при котором высота потолков делается неодинаковой. За счет этого можно совместить большую гостиную со столовой.
При оригинальной планировке иногда совмещаются спальные комнаты с санузлами. В основном подобная планировка отлично подходит людям, не любящим ходить по лестницам, предпочитающим свободно передвигаться.
Для ощущения простора в доме можно запланировать совмещение кухни и гостиной, сделав большой красивый проем.
Для этого делается входной блок первого этажа, состоящего из нескольких перегородок. В блок будут входить:
- чертеж лестницы;
- санузел;
- подсобка;
- холл;
- камин.
Подробная планировка второго этажа элитного дома с лоджией
В таком элитном доме обычно второй этаж состоит из нескольких комнат:
- спален;
- санузла;
- кабинета;
- гардеробной.
Вернуться к оглавлению
Элитные коттеджи
Когда создается архитектурный проект элитного здания, в него обязательно включается:
- Планирование пространства;
- Экстерьер;
- Интерьер;
- Ландшафт.
Любителям классического стиля, для которых важнейшим является качество и прочность строения, а также его хороший внешний вид, можно посоветовать именно такой проект коттеджа.
Вариант проекта большого трехэтажного элитного коттеджа с террасами и колоннами
Цокольный этаж здания предназначается для различных занятий:
- Спорта;
- Купания в бассейне;
- Выполнения технических операций;
- Занятий хозяйственными делами.

Для водных занятий помещение состоит из нескольких зон:
- Душа;
- планировка сауны в доме;
- Раздевалки;
- Комнаты для отдыха.
Бассейн и помещение для отдыха связывает лестница. Спортивный зал обычно отличается большими габаритами. Поэтому, кроме установленных тренажеров и самого разного спортивного инвентаря, в таком помещении устраивают спортивную площадку для игр.
В спальне можно установить ванную с гидромассажем, шкаф для одежды, и сделать небольшой балкон. Детскую комнату украшают стеклянными дверями с цветным витражом.
Планировка элитного дома с гаражом на два авто и большим вестибюлем
Чтобы максимально использовать полезную площадь элитного коттеджа, инженерные коммуникации проводят по цокольному этажу.
Вернуться к оглавлению
Планирование загородных коттеджей
Если планировка такого здания выполнена качественно и грамотно, в доме всегда будут комфортные условия для проживания.
В принципе планирование элитного здания зависит от индивидуальных фантазий каждого хозяина. Можно смело сказать, что планировка частного дома, сродни искусству, ведь если бы этого не происходило, все элитные коттеджи были бы одинаковыми.
Глядя на дом, построенный по специальному проекту, можно угадать некоторые черты характера его владельца, вкус, приоритеты, увлечения. Но при строительстве дома существуют также и общие принципы, без которых нельзя правильно выполнить планировку элитного загородного дома.
Вернуться к оглавлению
Общие принципы планирования
Для экономии бюджета, а также правильного выполнения технологического процесса строительства, когда осуществляется планирование загородного коттеджа, необходимо обязательно учитывать:
- Местонахождение;
- Размер инженерных коммуникаций.

Требуется очень компактно расположить:
- Канализацию;
- Водопровод;
- Газовые трубы.
Очень удобно, когда кухня находится рядом с помещением ванной комнаты.
Планировка элитного двухэтажного дома 9х11
При планировании санузлов в частном доме необходимо эти помещения размещать на каждом этаже так, чтобы они находились друг под другом. В результате будет достаточно сделать один стояк для водопровода и смонтировать одну фановую трубу. Технологические правила при планировании обязательно должны соблюдаться, что позволит сделать здание более уютным.
Для создания более комфортабельных условий необходимо запланировать в доме нужное количество комнат. Кроме спальни, каждый член семьи должен иметь собственную комнату. Маленьких детей можно поселять вдвоем, но не забывать, что они вырастут, и каждому тоже потребуется отдельное помещение.
Помимо этого, нужно также предусмотреть несколько гостевых спален.
Гости, посетившие ваш дом, не должны чувствовать неудобства, они не должны вас стеснять. Для более высокого комфорта желательно ванные комнаты размещать около спален.
Планировка коттеджей (120 фото, готовые проекты домов)
16 май 2017 Нет
Содержание
- 1. Выбираем правильную планировку для комфортной жизни
- 1.1. Преимущества одноэтажных домов
- 1.2. Преимущества двухэтажных коттеджей
- 2. Планировка одноэтажных коттеджей фото
- 3. Планировка двухэтажных коттеджей
О строительстве собственного дома хотя бы раз задумывался каждый из нас: кто-то подумывал об этом, как о мечте, кто-то взвешивал преимущества частного жилья перед городской квартирой, а кто-то всерьез решил отдохнуть от назойливых соседей, городского шума и проблем с коммунальными службами.
Действительно, частный коттедж имеет множество плюсов: вы можете выбирать стиль жилища по собственному вкусу, оборудовать его автономными системами обогрева, подачи воды и даже водоснабжения.
В собственном доме никто не начнет сверлить стены ранним воскресным утром, не будет скандалить по ночам, оставлять мусор в подъезде – вы сможете наслаждаться тишиной и покоем.
Возле крупных городом всегда найдется один или несколько коттеджных поселков с развитой инфраструктурой, где можно приобрести участок для постройки дома, который будет иметь все современные удобства, начиная от водопровода и заканчивая услугами интернет-провайдеров.
Частный коттедж всегда имеет хотя бы небольшую территорию, на которой можно оборудовать зону отдыха, а загородные варианты дают ощущение полного единения с природой. Кроме того, вы можете выделить место для гаража, подсобных построек, которые освободят жилое пространство от лишних вещей.
Если в преимуществах коттеджа перед квартирой в типовой многоэтажке вас убеждать не нужно, то позвольте дать несколько советов о таком моменте, как планировка коттеджей.
Выбирая дизайн будущего дома, многие в первую очередь думают про внешний вид и стиль лома, но комфорт обеспечивается не только внешними эффектами – главным образом он зависит от грамотной планировки.
Предлагаем вам рассмотреть некоторые нюансы с фото.
Выбираем правильную планировку для комфортной жизни
Приступая к планировке коттеджа, прежде всего, подумайте, сколько человек будет жить в доме, и как вы собираетесь его использовать – в качестве сезонного домика для отдыха, или для круглогодичного проживания.
Очень важна оценка ландшафта: направление ветра, качество грунта, уровень подземных вод — факторы, влияющие на выбор материала и расположение здания.
Решите, какие комнаты вам понадобятся: ограничитесь вы только стандартными спальнями, гостиной, кухней и санузлом, или захотите выделить часть пространства под библиотеку, бильярдную, тренажерный зал, зимний сад, мастерскую и прочие специальные помещения. Спросите себя, будет ли гараж частью постройки, или он будет располагаться отдельно. Понадобится ли вам подвальное помещение?
Коттедж с гаражом позволяет владельцам не выходить на улицу, чтобы попасть к автомобилю, а в морозы нет нужды долго прогревать двигатель.
Ну и, конечно же, определитесь, сколько этажей вы бы хотели иметь, ведь каждый вариант имеет свои преимущества.
Преимущества одноэтажных домов
Одноэтажные дома – признанные лидеры на строительном рынке. Монтаж одноэтажного здания занимает меньше времени, да и сама технология строительства проще.
Одноэтажные дома могут иметь самую необычную конфигурацию, удивляя оригинальностью проектов самых взыскательных клиентов.
Одноэтажные конструкции легче двухэтажных, поэтому не требуется дополнительно укреплять фундамент и делать его слишком глубоким. Проектирование систем канализации, водопровода и отопления обычно не представляет сложности, а затраты на обогрев дома в процессе его дальнейшей эксплуатации значительно ниже.
Если в доме только один этаж, то нет необходимости делать лестницу, которая часто создает угрозу для безопасности маленьких детей и стариков.
Для многих людей, кто ценит крепкие семейные узы, одноэтажная конструкция кажется предпочтительнее, поскольку она представляет собой единое жилое пространство.
Преимущества двухэтажных коттеджей
Основное достоинство двухэтажных коттеджей состоит в том, что они позволяют получить вместительное просторное жилье, сэкономив при этом территорию усадьбы, что особенно актуально для владельцев небольших земельных участков.
Несмотря на то, что такой дом нуждается в сверхпрочном фундаменте, что ведет к дополнительным расходам, этот недостаток компенсируется возможностью сэкономить на кровле, ведь площадь крыши двухэтажного дома меньше, чем у одноэтажного с такой же жилой площадью.
В двухэтажной постройке вы легко и четко можете выделить зоны, предназначенные для личного пользования членами семьи, и для совместного времяпрепровождения. Например, в верхнем этаже могут располагаться спальни, а в нижнем – столовая и гостиная.
Любители посидеть теплым летним вечером на балконе, любуясь закатом или пением птиц, будут лишены такой возможности, если дом будет одноэтажным. Ну и, наконец, двухэтажные дома смотрятся богаче и презентабельнее.
Отличным компромиссом для тех, кто не может определиться с количеством этажей, может стать одноэтажный дом с мансардой.
Планировка одноэтажных коттеджей фото
Приступая к планировке одноэтажного коттеджа, нужно в первую очередь помнить, что каждый квадратный метр свободной площади должен использоваться с максимальной пользой.
В частном доме для комфортного проживания семьи нужно больше места, чем в стандартной городской квартире, поэтому 50 кв.м., достаточные для двухкомнатной квартиры, для коттеджа будут неприемлемы. Большинство одноэтажных домов, рассчитанных на постоянное проживание семьи, имеют площадь около 100 кв.м.
Специалисты утверждают, что дом площадью 12?12 дает возможность не ограничивать себя в полете фантазии и найти место для всех необходимых помещений.
Решите, достаточно ли вам, чтобы дом напоминал трехкомнатную квартиру, или вы хотите побаловать себя наличием гардеробной комнаты, столовой, кабинетом или мастерской.
Подумайте, где будет располагаться гараж и котельная, нужны ли вам кладовки и сколько – от этого будет зависеть площадь будущего коттеджа.
Внести оригинальность в планировку позволяют варианты, в которых предусмотрена мансарда, терраса, цокольный этаж или подвал.
Определяясь с разметкой жилой зоны, лучше отказаться от длинных коридоров, а спроектировать коттедж так, чтобы двери комнат выходили в один большой холл.
Планировка коттеджа – занятие непростое, поэтому чтобы получить по-настоящему комфортное и функциональное жилье, лучше обратиться к специалистам.
Планировка двухэтажных коттеджей
Двухэтажные коттеджи имеют практически неограниченные возможности для экспериментов с внутренней планировкой и для придания жилью индивидуальности. При этом большинство двухэтажных домов все же придерживаются общих принципов в зонировании пространства.
В нижнем этаже чаще всего размещают помещения, предназначенные для пользования всей семьей и для встречи гостей: прихожая, кухня, гостиная, столовая, туалет, ванная или душевая.
Здесь же обычно находятся гараж (если для него не предусмотрена отдельная постройка), котельная, кладовки.
Второй этаж обычно выделяется под личные комнаты: спальня хозяев, детская, комната для гостей, кабинет.
Желательно, чтобы и наверху был по крайней мере один туалет и душевая – это позволит не спускаться ночью по лестнице в нижнюю часть дома.
Планируя пространство, нужно продумать, какой тип лестницы вы предпочтете, поскольку она занимает достаточно большое количество свободной площади. Вы можете отдать предпочтение винтовой конструкции – она занимает меньше места, или выбрать маршевую, пространство под которой можно использовать, разместив там кладовую или гардеробную.
Так или иначе, но к вопросу планировки коттеджа нужно подойти вдумчиво, рассмотреть все возможные варианты, взвесить аргументы, только в этом случае вы получите максимальный комфорт и ощущение уюта в своем доме.
Вас может заинтересовать:
Красивые коттеджи
Загородные коттеджи
Одноэтажные коттеджи
Современные коттеджи
А также:
Заборы для частного дома
Красивые заборы
Заборы из кирпича
Заборы из профнастила
Планы коттеджей — Планы этажей коттеджей
- Дом
- План дома
- Архитектурные стили
- План коттеджного дома
Форма поиска
Когда вы думаете о загородном доме, скорее всего, на ум приходят уютные загородные дома и романтический дизайн в стиле сборника рассказов.
На самом деле планы дачных домов очень универсальны. В Home Family Plans у нас есть широкий выбор очаровательных дизайнов коттеджей на выбор.
План номер 94371
1751 Планы
План этажа 2 3
План 77400
1311 С подогревом, кв.фут
46’0 Ш x 42’6 Г
Кровати: 3 — Bath: 2
Compare
Video Tour
Plan 41413
2290 Heated SqFt
80’10 W x 62’2 D
Beds: 3 — Baths: 2.5
Сравнить
План 73931
384 Кв.фут с подогревом
16’0 Ш x 24’0 Г
Кровати: 1 — Bath: 1
Compare
Plan 75134
2482 Heated SqFt
81’6 W x 86’6 D
Beds: 4 — Baths: 3.5
Compare
План 75167
1742 Кв.
фут с подогревом
78’3 Ш x 54’3 Г
Кровати: 3 — Ванны: 2.5
Сравнить
План 56937
1300 кв.фут с подогревом
28’8 Ш x 60’7 Г 4 3 — 309020 Кровати: 8
0 Ванна: 2
Сравнить
План 75170
1302 Кв.ф. Ванна: 2
Сравнить
План 77413
1500 кв.фут с подогревом
50’0 Ш x 44’0 Г
Кровати: 3 — Ванна: 2
Сравнить
План 75137
1879 Кв.фут с подогревом
78’11 Ш x 57’11 Г 90 3 — 80 9014 2 Кровати: Bath: 2
Compare
Video Tour
Plan 65862
2091 Heated SqFt
78’9 W x 71’5 D
Beds: 3 — Baths: 2.5
Сравнить
Plan 44187
2160 Heated SqFt
100’0 W x 88’0 D
Beds: 2 — Baths: 2.
5
Compare
Plan 52011
793 Heated SqFt
28’0 Ш x 39’0 Г
Кровати: 1 — Ванна: 1
Сравнить
План 56721
1257 Кв.ф. Ванна: 2
Compare
Plan 80831
2125 Heated SqFt
84’0 W x 57’10 D
Beds: 3 — Baths: 2.5
Compare
Video Tour
План 80509
928 Кв.фут с подогревом
58’0 Ш x 32’0 Г
Кровати: 2 — Ванна: 2
Сравнить
План 75166
1988 С подогревом, кв.фут
80’3 W x 56’3 D
Beds: 3 — Baths: 2.5
Compare
Plan 59039
600 Heated SqFt
30′ W x 32′ D
Кровати: 1 — Bath: 1
Compare
Video Tour
Plan 77415
1425 Heated SqFt
50’0 W x 42’6 D
Beds: 3 — Ванна: 2
Сравнить
План 80802
1697 С подогревом, кв.
фут
57’2 Ш x 50’4 Г
Кровати: 3 — Ванна: 2
Сравнить
План 60107
1800 Кв.фут с подогревом
67’0 Ш x 52’10 Г
3 -89012 Кровати 0 3 -89012 Ванна: 2Сравнить
Гарантия низкой цены
Если вы найдете точно такой же тарифный план на веб-сайте конкурента по более низкой цене, рекламируемой ИЛИ специальной цене РАСПРОДАЖИ, мы снизим цену конкурента на 5%. от общего количества, а не только 5% от разницы! Чтобы воспользоваться нашей гарантией, позвоните нам по телефону 800-482-0464 или напишите нам на веб-сайт и номер плана, когда будете готовы сделать заказ. Наша гарантия распространяется до 4 недель после покупки, поэтому вы можете быть уверены, что можете купить прямо сейчас.
: 800-482-0464
Номер страницы результатов
Коттеджи на озере Тамаха
- Поиск и фильтр
Условия аренды Выберите срок арендыГодовой: 17 августа 2023 г.
— 22 июля 2024 г. Осенний семестр: 17 августа 2023 г. — 31 декабря 2023 г.Диапазон размеров
Ценовой диапазон
2BR/2BA – Birchmore Elite
- 2 кровати
- 2 ванны
- 1 251 кв. футов
- От 915 долларов США
- В наличии 17.08.2023
Подать заявку сейчас Тур по расписанию A
Посмотреть варианты аренды
2BR/2BA — Birchmore Elite Tech
- 2 кровати
- 2 ванны
- 1 251 кв. футов
- От 942 долларов США
- В наличии 17.08.2023
Система Smart Light со встроенной Alexa
Система Smart Lock
LG SoundBar
Smart TV 50 дюймов
Подать заявку Тур Schedule A
Посмотреть варианты аренды
3BR/3BA — Fairview Elite
- 3 спальни
- 3 Ванна
- 1 359 кв. футов
- От 679 долларов США
- В наличии 17.
08.2023
Подать заявку сейчас Тур Schedule A
Посмотреть варианты аренды
3BR/3BA – Fairview Elite Tech
- 3 спальни
- 3 Ванна
- 1 359 кв. футов
- От 699 долларов США
- Доступен 17.08.2023
Система Smart Light со встроенной Alexa
Система Smart Lock
LG SoundBar
Smart TV 50 дюймов
Подать заявку Тур по расписанию A
Посмотреть варианты аренды
4BR/4BA — Artisan Elite
- 4 спальни
- 4 ванны
- 1 703 кв. футов
- От 554 долларов США
- В наличии 17.08.2023
Подать заявку сейчас Расписание тур
Посмотреть варианты аренды
4BR/4BA — Artisan Elite Tech
- 4 кровати
- 4 ванны
- 1 703 кв. футов
- От 574 долларов США
- В наличии 17.08.2023
Система Smart Light со встроенной Alexa
Система Smart Lock
LG SoundBar
Smart TV 50 дюймов
Подать заявку Расписание туров
Посмотреть варианты аренды
4BR/4BA — Bloomfield Elite
- 4 кровати
- 4 ванны
- 1 703 кв.
футов
- От 569 долларов США
- В наличии 17.08.2023
Подать заявку сейчас Тур Schedule A
Посмотреть варианты аренды
4BR/4BA — Bloomfield Elite Tech
- 4 кровати
- 4 ванны
- 1 703 кв. футов
- От 589 долларов США
- В наличии 17.08.2023
Система Smart Light со встроенной Alexa
Система Smart Lock
LG SoundBar
Smart TV 50 дюймов
Подать заявку Тур по расписанию A
Посмотреть варианты аренды
4BR/4BA — Thornberry Elite
- 4 спальни
- 4 ванны
- 1 642 кв. футов
- От 554 долларов США
- В наличии 17.08.2023
Подать заявку сейчас Тур по расписанию A
Посмотреть варианты аренды
4BR/4BA — Thornberry Elite Tech
- 4 спальни
- 4 ванны
- 1 642 кв. футов
- От 574 долларов США
- В наличии 17.
08.2023
Система Smart Light со встроенной системой Alexa
Smart Lock System
LG SoundBar
Smart TV 50 дюймов
Подать заявку Тур Schedule A
Посмотреть варианты аренды
4BR/4.5BA — Brookshire Elite
- 4 кровати
- 4 ванны
- 1 666 кв. футов
- От 590 долларов США
- В наличии 17.08.2023
Подать заявку сейчас Тур по расписанию A
Посмотреть варианты аренды
4BR/4.5BA — Brookshire Elite Tech
- 4 кровати
- 4 ванны
- 1 666 кв. футов
- От 625 долларов США
- В наличии 17.08.2023
Система Smart Light со встроенной Alexa
Система Smart Lock
LG SoundBar
Smart TV 50 дюймов
Подать заявку Тур по расписанию A
Посмотреть варианты аренды
4BR/4.5BA — Springmore Elite
- 4 кровати
- 4 Ванна
- 1 703 кв.
футов
- От 604 долларов США
- В наличии 17.08.2023
Подать заявку сейчас Тур по расписанию A
Посмотреть варианты аренды
4BR/4.5BA — Springmore Elite Tech
- 4 кровати
- 4 ванны
- 1 703 кв. футов
- От 624 долларов США
- Доступен 17.08.2023
Система Smart Light со встроенной Alexa
Система Smart Lock
LG SoundBar
Smart TV 50 дюймов
Подать заявку Тур по расписанию A
Посмотреть варианты аренды
5BR/5BA — Magnolia Elite
- 5 спален
- 5 Ванна
- 2 166 кв. футов
- От 539 долларов США
- В наличии 17.08.2023
Подать заявку сейчас Расписание тур
Посмотреть варианты аренды
5BR/5BA — Magnolia Elite Tech
- 5 спален
- 5 Ванна
- 2 166 кв. футов
- От 559 долларов США
- В наличии 17.



