Проекты одноэтажных домов с тремя спальнями
| Категория проектов | Проекты одноэтажных домов с тремя спальнями |
| Стоимость проектов | От 37200₽ |
| Площадь проектов | От 61 м2 |
| Этажность проектов | Одноэтажные |
| Формат документации | Печатный |
Большой семье сложно разместиться в маленьком доме или тесной городской квартире. Мы советуем выбрать проект дома одноэтажного с 3 спальнями. Чем он так хорош? В первую очередь тем, что просторный, хотя снаружи смотрится компактно. Здесь нужно определиться, сколько квадратных метров требуется лично вам и вашей семье.
Вы можете выбрать проектное решение в соответствии с индивидуальными предпочтениями, соответствующее определенным требованиям. При необходимости вносятся изменения в конструкцию фундамента, перекрытия.
Одноэтажные дома с тремя спальнями предусматривают возможность строительства из:
- кирпича;
- газоблоков;
- древесины.

Покупателям предоставляется возможность выбора в соответствии с имеющимся бюджетом и запросами. У каждого из этих вариантов свои плюсы и минусы. Такие одноэтажные дома из кирпича одни из самых популярных. Кирпичные здания славятся своей надежностью.
Профессионалы осуществляют монолитное строительство с соблюдением основных стандартов. Немалым количеством достоинств обладают здания из газобетона. Такой вариант обходится несколько дешевле по сравнению с кирпичным.
Деревянные постройки органично вписываются в окружающий ландшафт, становятся украшением загородных участков.
Комфортабельный одноэтажный дом с тремя спальнями может быть возведен в сжатые сроки. Профессионалы грамотно все рассчитают, возьмут на себя закупку стройматериалов.
Компактные загородные дома
Компактный одноэтажный дом обойдется в разумную цену. Он не займет много места на участке. Проекты маленьких домов с тремя спальнями доступны людям со скромным бюджетом. Вы сможете самостоятельно выбрать стиль будущего жилища.
Большинство заказчиков отдает предпочтение классике.
Проекты частных домов Z500 проиллюстрированы фото, позволяющими понять, насколько презентабельно они смотрятся. Планировки таких коттеджей нередко предусматривают наличие хозяйственных помещений. Их часто строят из пеноблоков. Профессиональный подход к возведению загородных строений гарантирует их многолетнюю эксплуатацию без каких бы то проблем.
Закажите проект одноэтажного дома с 3 спальнями. Станьте владельцем комфортабельной загородной недвижимости.
Архитектурное бюро Z500 – это компания с 10-летним опытом проектирования привлекательных и долговечных домов. Более 1000 проектов, разнообразие планировок, современность и эргономика – это все о Z500. Наши специалисты создают проекты относительно нынешних стандартов и гарантируют качество каждого строения.
Детально о компании читайте здесь.
ПОПУЛЯРНЫЕ ВОПРОСЫ
Предполагает ли Z500 дополнительное внесение правок в проект?
Да, если есть запрос от клиента. В нашем штате работают архитекторы, конструкторы-инженеры, инженеры-проектировщики, в которых есть все необходимые знания для внесения изменений в проект.
В проектах предусматривается конструкция лестницы?
Нет, большая часть наших проектов не предусматривает чертежа лестницы. Это сделано намеренно, чтобы цена проекта была меньше, ведь расчет бетонной конструкции нужен далеко не всем. Множество заказчиков планируют сооружение лестницы из дерева.
Соответствуют ли актуальным нормам проекты, которые разрабатывались больше 5 лет назад?
Да, конечно. Мы регулярно проверяем существующие проекты на актуальность со строительной, экономической, эргономичной и рациональной стороны.
С составом проекта можно ознакомиться здесь:
Автор статьи: Роберт Воганов, ведущий эксперт компании Z500
Проекты одноэтажных домов с тремя спальнями: 14 вариантов
Собираясь строить дом, можно заказать его проектирование специалисту, а можно попытаться переделать один из имеющихся вариантов под свои требования.
В любом случае, надо четко представлять чего вы хотите. Очень желательно, чтобы ваши желания были хорошо продуманными. Не все, что кажется привлекательным как идея, удобно в эксплуатации. И такие «мелочи» надо знать. Часть информации разберем, пытаясь найти подходящий проект одноэтажного дома с тремя спальнями. Почему так? Потому что это наиболее распространенный вариант, который подходит для семей из 4 человек. Именно таких большинство.
Содержание статьи
Общие принципы планировки
Когда вы ищите готовые проекты одноэтажных домов с тремя спальнями или пытаетесь создать на основе найденного свой, важно помнить несколько моментов.
- Для условий климата с холодными зимами наличие тамбура крайне желательно. В этом случае холодный воздух при каждом открывании дверей не будет попадать в жилые помещения. Если тамбур совсем уж не вписывается в пределах стен, его можно вынести и сделать в виде пристройки.
Не самое изящное решение, но имеет право на существование. - Все помещения, где требуется подведение воды/канализации (кухня, ванна, туалет, котельная) располагать лучше рядом. Так инженерные системы будут проще, меньше потребуется материалов, получится значительно дешевле.
При планировании дома надо придерживаться определенных правил
- При проживании в доме 4 и более человек, желательно иметь два санузла. Вы это оцените. Пусть даже один будет совсем небольшой — только унитаз и раковина. Даже если располагаются они через стенку, это очень удобно.
- При размещении в доме котла, необходима котельная. Требования к котельным в частном доме можно посмотреть тут, но основное, что надо помнить — при высоте потолков не менее 3 метров объем помещения должен быть не менее 15 кубов и в помещении обязательно должно быть окно.
- Сразу прорисовывайте расположение крупногабаритной мебели. Во всяком случае, положение кроватей и шкафов в спальнях, расположение мебели и мойки на кухне.

Это те принципы, которых желательно придерживаться. Но и это не догма. Все можно решить (кроме требований к котельным). Решения, действительно существуют разные, под разные запросы и вкусы. Требуется только желание и определенная сумма.
Если все три спальни разместить рядом
Многие проекты одноэтажных домов с тремя спальнями спланированы таким образом, что все спальни находятся в одной стороне дома. С одной стороны это удобно. Относительно шумные помещения — гостиная и кухня оказываются в противоположной стороне. С другой стороны, не всем нравится такое расположение — опасаются что дети могут оказаться свидетелями ненужных сцен.
Пример планировки одноэтажного дома с тремя спальнями на 110 квадратных метровВ приведенном выше проекте именно так планировка и сделана: все три спальни находятся в правой стороне дома и имеют примерно одинаковую площадь. Из положительных моментов — все спальни от гостиной далеко. При таком расположении комнат можно в гостиной спокойно смотреть телевизор, принимать гостей, не боясь помешать отдыху.
Из недостатков — туалет и ванная находятся далеко от кухни и котельной. Не самый удобный вариант для прокладки коммуникаций. Из других особенностей — длинный коридор со множеством дверей. Эту площадь никак не используешь, так как свободные простенки очень маленькие.
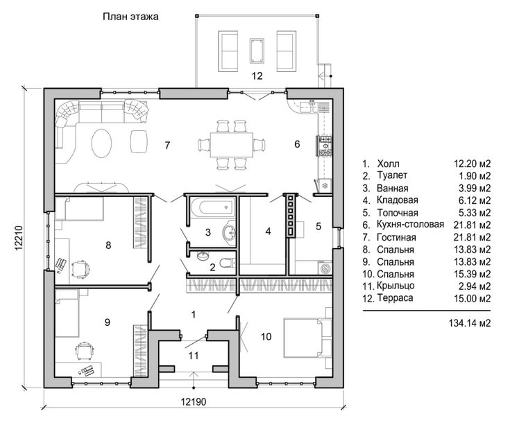
Проект одноэтажного дома с тремя спальнями и террасой
При планировании террасы, обращать внимание надо сразу на несколько моментов. Первый — для оптимальной освещенности лучше, если терраса выходит на юг или восток. Второе — из какого помещения будет выход. Чаще всего делают выход на террасу из гостиной. Это самый логичный случай. Второй вариант — выход из коридора, который, как правило, примыкает к гостиной или кухне (гораздо хуже, но возможно). Обратите внимание, что очень удобно, если рядом с входом на террасу находится кухня — заносить/выносить блюда, напитки и т.п. Ведь терраса часто используется именно для посиделок на открытом воздухе.
Эти два момента уже частично определяют планировку вашего дома — гостиная должна иметь выход на южную или восточную сторону.
Значит ее положение определено. К гостиной должна примыкать кухня, а еще желательно все помещения, подключаемые к техническим коммуникациям «собирать» в одной зоне … То есть, вы практически решили, где находятся гостиная, кухня, технические помещения. Осталось расположить спальни и организовать удобный проход.
Но это еще не все, что надо учесть при планировании террасы. Есть третий момент — ее размер. Тут подход индивидуальный — кому-то требуется много места, кому-то достаточно поменьше. Интересный вариант — Г-образная терасса, которая охватывает южную и восточную стены строения. Если ее остеклить, можно превратить в летний сад… Если вам это интересно.
И четвертый момент, на который тоже стоит обратить внимание при разработке планировки дома. Терраса интенсивно используется и является любимым местом отдыха, если с нее открывается вид на сад, красиво оформленный задний двор, на речку и т.п. Если же взгляд упирается в забор соседа, никому это не интересно.
При таком положении терраса не используется, постепенно превращается в «техническое помещение» — поставить газонокосилку, сушилку, и т.д. Это определяет еще и положение дома на участке. То есть, большую часть задач по планировке дома вы решили.
Вариант 1: с террасой вдоль всей короткой стены
Давайте рассмотрим несколько проектов одноэтажных домов с тремя спальнями и террасами. В представленном варианте выход на террасу сделан из гостиной. Сюда же выходит кухонное окно. Если сделать широкий подоконник, открывающееся полностью окно, можно передавать блюда через окно.
Все технические помещения собраны в одном месте и расположены возле кухни. Спальни находятся в противоположном конце дома, что, в общем-то, удобно — можно принимать гостей или смотреть телевизор в гостиной и не мешать тем, кто решил отдохнуть.
Проект одноэтажного дома с 3 спальнями и террасойДополнительная несущая стена в этом проекте одна — почти посередине вдоль длинной стороны дома. Кухня-гостиная едина, но можно установить перегородку и разделить помещения.
В этом случае придется выделить часть гостиной, но, при данной площади — почти 17 метров — это не очень критично.
Спальни, в этом проекте, имеют разные размеры: 9, 11, 13 метров. Удобно это или нет — решать вам. При желании, размеры спален можно увеличить за счет уменьшения площади котельной (при 3-х метровых потолках достаточно площади в 5 квадратов, так что ресурс есть). Самую маленькую спальню можно увеличить, если перенести шкаф на другую стену, сдвинув перегородку, отгораживающую гостиную. Кстати, этот проект одноэтажного дома с тремя спальнями имеет еще один плюс — гардеробную при входе. Это действительно удобно.
Вариант 2: с короткой террасой вдоль длиной стороны дома
Рассмотрим еще один вариант планировки одноэтажного дома с тремя спальнями и террасой. Он отличается положением «влажного» блока — кухни/ванной/котельной/туалета. Они перенесены на противоположную сторону. Площади спальных комнат «выровнены» за счет уменьшения площади кухни. Обратите внимание: тамбур сделан выносной.
Это тоже внесло свой вклад в то, что при относительно небольших размерах дома — 10*14 метров (площадь 140 квадратных метров) — размеры всех комнат солидные, ширина коридора — 1,7 метра, что тоже неплохо.
Терраса имеет выход из гостиной, занимает только часть длинной стены. Если этот вариант обыграть, получится очень неплохо. Например, рядом можно поставить пруд, установить фонтан, разбить красивую клумбу.
С местом под автонавес или гараж
Если рядом с домом надо разместить навес для машины или гараж, можно изменить планировку так чтобы вход в дом был ближе к месту стоянки. Тогда есть возможность объединить навес стоянки и крыльца. Получится может очень даже интересно.
При планировании навеса лучше найти место под две машины. Даже если машина у вас одна, к вам будут приезжать гости и намного удобнее, если ее можно поставить под крышу.
Расходы на обустройство не слишком отличаются, а всегда надо смотреть на перспективу. Может и у вас появится вторая машина.
Чем хорош еще навес для машины? Под ним можно оборудовать место для хранения всякого инвентаря: автомобильного, садового. Там же можно отгородить место под дровник или поленницу — чтобы иметь возле дома запас сухих дров. Вообще, использовать эту зону можно по-разному. И оптимальные размеры ее — 8*9 метров или около того. Это, если площадь участка позволяет. Если нет, можно исходить из минимальных габаритов — на 2 метра шире и на 1,5 длиннее вашего авто.
Представленный выше проект одноэтажного дома с тремя спальнями имеет площадь 100 квадратных метров, выполнен в виде прямоугольника со сторонами 8,8*12 метров. Расположение спален все такое-же — одним блоком, все технические помещения также сведены в одном месте. При такой планировке коридор получается совсем небольшим, что многих обрадует, но это будет «проходная» зона, в которой ничего не поставишь.
Если надо спальню родителей разместить отдельно
При выборе планировки многие считают, что спальню родителей надо располагать на некотором расстоянии от детских. В этом случае подход к планировке меняется — оптимальна вытянутая прямоугольная форма дома. Длинную сторону делят на три части две несущие стены.
Такой, дом с Г-образной планировкой по стоимости выходит более дорогим, чем прямоугольный или квадратныйВариант 1: без коридора
Если разделить дом на три части, есть возможность разработать планировку дома с тремя спальнями без коридора. Одна треть дома делится на две спальни для детей, среднюю часть занимает совмещенная кухня/гостиная, последняя треть делится между входной группой/санузлом и спальней родителей.
Там где расположена спальня для родителей, из кухни/гостиной организован вход в санузел. Насколько удачно такое решение? Плюс тут видится такой — большая кухня/гостиная. Но она — полностью проходная. То есть, уединиться в ней точно не получится.
Возможно, вам нравится такая идея. Хотя, чтобы оценить удобство/неудобство, стоит пожить в таком доме. Обычно это далеко не всем нравится, хотя на стадии «идеи» все казалось заманчивым.
Обратите внимание, что этот проект одноэтажного дома с тремя спальнями не имеет котельной. Если она необходима, выделить ее можно за счет уменьшения площади кухни/гостиной. Но тогда надо будет продумывать планировку, как организовать вход в нее. Возможный, но не очень удобный вариант — из кухни, если она будет расположена возле ванной. Второй — с улицы. Но тогда уж, можно сделать пристройку к дому. Хотя, это определяется размерами дома.
Вариант 2: с коридором
Планировку с двумя детскими и вынесенной подальше спальней родителей можно реализовать в квадратном доме (на рисунке ниже). Минимально возможные размеры — 12*12 метров. По площади это чуть больше 140 квадратов. В этом случае габариты всех помещения близки к оптимальным (квадратные, имеют площадь более 10 квадратных метров).
Гостиная совмещена с кухней но не является проходной.
При возможности/желании можно сделать и в прямоугольном доме, просто квадрат более предпочтителен, так как стоимость квадратного метра жилья получается немного ниже. Надо сказать, что выигрыш совсем небольшой, так что не стоит на этом особо заморачиватсья. Лучше исходить из удобства, ведь проект одноэтажного дома с тремя спальнями выбираете для собственной жизни.
Проект квадратного одноэтажного дома с тремя спальнямиВ данном варианте планировки спальня родителей вообще обособлена. Достоинство приведенного варианта — в детских есть место под гардеробные. Есть тут и недостаток — «мокрые» помещения находятся на противоположных краях дома. Устройство инженерных систем будет сложнее (кроме канализации и водопровода придется думать еще и об отдельной вентиляции).
Не всем нравится идея объединения кухни и гостиной. В данном случае можно легко проблему решить, установив перегородку. Вход в кухню может быть как из коридора, так и из гостиной.
Но, если не вносить других изменений, вход в гостиную только через кухню, что неудобно. Решить проблему можно сделав некоторые трансформации. Первая — «утопленная» входная зона становится «нормальной», в площади стен, разделяющая коридор перегородка убирается. Образуется большая входная зона, но без теплого тамбура. Зато получаем дополнительное большое по площади помещение, которое можно неплохо оборудовать. Правда, это уже другой проект одноэтажного дома с тремя спальнями (смотрите ниже).
Из этой зоны можно сделать вход в гостиную. Он получается рядом со входом, что вполне логично. Правда, функциональной остается только часть помещения, но «ущерб» можно минимизировать, приблизив двери.
Один из вариантовМожно пойти еще дальше — убрать перегородку, отделяющую гостиную от коридора. Стена тут несущая так что потребуется установка колон. Но планировка дома будет в современном стиле — от входа единое пространство, выполняющее роль гостиной и общей комнаты. Для многих это кажется удобным.
Ещё варианты
Имея определенный набор помещений и требования по их расположению, слишком много вариантов не получишь. Приведенные ниже планировки отличаются в некоторых деталях. Может, один из них вам и подойдет.
Одноэтажный дом с тремя спальнями, эркером и террасойПроект одноэтажного дома с тремя спальнями и террасой (90 кв. м.)
Площадь 130 кв. м, есть кладовка со входом из кухни
Если нужны раздельная кухня и гостиная. Практичное расположение с небольшим коридором
Одноэтажный дом площадью 160 кв. м, с тремя спальнями и кабинетом, котельной и небольшой угловой верандой
План дома 3 спальни, 1 ванная, гараж, 3294
Планы дома Драммонда
Найдите свой план
Деталь плана дома — Silverwood 3294
План одноэтажного дома с 3 спальнями, гаражом, открытой планировкой, соборным потолком, кухонным островом
Изменить этот план
Другая полезная информация по этому плану
Одноэтажный дом с 3 спальнями и соборным потолком
Мы рады представить это новое дополнение, план одноэтажного дома с 3 спальнями и гаражом.
Это номер плана Drummond House Plan 3294, который мы также назвали Silverwood, и он предлагает практичную планировку этажей со спальнями и центральной гостиной на одном уровне.
Этот тип планировки дома обычно нравится семьям с маленькими детьми, позволяя родителям находиться в непосредственной близости от детей.
Вы будете впечатлены форматом дома, особенно если у вас узкий участок, а также вы хотите иметь гараж, так как ширина фасада составляет 42 фута, включая гараж. При этом у вас также есть прямой доступ к дому из гаража, что облегчит ваше возвращение домой после покупок и других мероприятий.
Прачечная расположена прямо перед въездом в гараж, что также очень удобно, когда вы возвращаетесь после занятий спортом, таких как хоккей, футбол, лыжи и т. д. Эта зона также оборудована раковиной и шкафами. Бельевой шкаф расположен рядом с семейной ванной комнатой, которая включает в себя отдельную ванну и большой душ.
Парадный и главный вход включает закрытую секцию с гардеробом.
Опять же, очень ценится в холодное время года!
Гостиная хорошего размера, в ней легко могут разместиться два двуспальных дивана или даже секционный диван и журнальный столик.
Гостиная совмещена с кухней и столовой, а потолок в виде собора еще больше подчеркивает ощущение открытого пространства в этом доме. На кухне есть центральный остров, и вы будете в восторге от естественного света, который будет проникать через заднюю дверь внутреннего дворика, а окна в пространстве выходят в столовую.
Самая большая спальня хорошего размера и включает гардеробную. Две другие спальни также практически расположены на первом этаже, что идеально подходит для семей с маленькими детьми. Две другие спальни также имеют много места для гардероба.
Подвал должен быть закончен, и это может быть сделано в соответствии с неотложными потребностями или в будущем для растущих семей!
Логин
Адрес электронной почты: Пароль: Вы забыли свой пароль? Кликните сюда.
Создать учетную запись
Вот краткое описание наших различных пакетов планов. Пожалуйста, выберите пакет плана, который соответствует вашим потребностям. При необходимости вы можете изменить пакет на следующем шаге.
ВЕРСИЯ ПЛАНА в формате PDF:
Полная цифровая версия плана (формат PDF), отправленная по электронной почте (исходный формат плана 18″ x 24″ или 24″ x 36″)
5 копий плана + PDF:
Включает: 5 копий плана, план в формате PDF (уменьшенная версия), список материалов.
Тип фундамента
Доступны дополнительные типы фундаментов, может взиматься плата. Пожалуйста, укажите свой выбор в форме онлайн-заказа или обратитесь к нашему представителю по обслуживанию клиентов при размещении заказа на план дома.
Если желаемый тип фундамента недоступен, обратитесь в нашу службу поддержки клиентов, чтобы получить бесплатную смету модификации плана.
Тип фундамента
Доступныдополнительных типа фундамента по цене от 245 долларов США. Пожалуйста, просмотрите и укажите свой выбор в онлайн-форме заказа или нашему представителю по обслуживанию клиентов при размещении заказа на план дома.
Для получения информации звоните по бесплатному телефону: 1-800-567-5267.
Объяснение типов бонусных мест
НЕДОСТРОЕННАЯ БОНУСНАЯ КОМНАТА
Бонусные комнаты часто планируются над гаражом и доступны из дома. Они предназначены для преобразования в офис, прачечную, ванную комнату, библиотечный уголок или даже дополнительную спальню, для которой домовладельцы должны убедиться, что у них есть окна, соответствующие действующим нормам и стандартам.
СКЛАДСКОЕ ПОМЕЩЕНИЕ
Наши складские помещения, которые часто располагаются над гаражом, используются только в качестве складских помещений и обычно доступны из гаража по выдвижной лестнице.
Вам нравится этот план, но вы хотите изменить его в соответствии с вашими потребностями?
Чтобы добавить гараж, еще одну спальню, отделку подвала или любую другую модификацию, нажмите здесь и сообщите нам о ваших желаемых изменениях и получите бесплатную смету для модификации вашего плана.
Щелкните здесь для получения дополнительной информации о нашей услуге редактирования плана в Интернете или в одном из наших 26 региональных офисов.
Задать вопрос по этому плану
Спасибо! Ваш вопрос отправлен нам. Мы свяжемся с вами как можно скорее, обычно в течение следующих 48 часов.
Ошибка с google reCaptcha! Попробуйте еще раз
Имя:
Электронная почта:
Телефон (День):
Мобильный телефон:
Почтовый индекс / Почтовый индекс:
Комментарий
План поиска
Технический вопрос
Общий вопросИнформация о наших рекламных программах
Ваше сообщение:
Добавить фото
К сожалению, ваш браузер не поддерживает отправку файлов.
Для информации по телефону: 1-800-567-5267
Условия использования
Важное уведомление об авторских правах! Пожалуйста, обратите внимание на эти условия авторского права перед печатью:
Распечатывая этот план дома, коттеджа или гаража или план(ы) этажей, вы подтверждаете, что проинформированы о том, что каждый план дома на этом веб-сайте является исключительной собственностью Drummond House.
Планы и защищен канадским законом об авторском праве. Вы знаете, что эти отпечатки нельзя использовать для строительства или даже для получения разрешения на строительство. Графические изображения этих
модели предлагаются компанией Drummond House Plans с единственной целью — дать вам возможность отметить модификации модели, а затем передать ее одному из канадских дилеров Drummond House Plans для
модификация плана.
Покупка плана дома, коттеджа или гаража в Drummond House Plans обязательна , если вы хотите построить любую из наших моделей.
Покупка плана позволяет построить
единый блок; вы не можете перепродать или передать свой проект кому-либо после того, как дом, коттедж или гараж будут построены. Если вы желаете построить такой же дом, дачу или гараж больше
чем один раз, вам необходимо получить лицензию для этого. Пожалуйста, свяжитесь с нами, для более подробной информации.
Все планы от Drummond House Plans могут быть изменены только лицензированным канадским дилером Drummond House Plan. Если любое другое коммерческое или физическое лицо, не связанное с Планы Drummond House изменяют план Drummond House от вашего имени. Пожалуйста, убедитесь, что у этого бизнеса или физического лица есть лицензия на изменение этого конкретного плана, иначе вы будете привлечены к ответственности. на том же уровне, что и компания или физическое лицо, которые изменили или воспроизвели план.
Для получения более подробной информации, не стесняйтесь обращаться к вам по электронной почте или по телефону 1-800-567-1413.
Я согласен соблюдать вышеуказанные условия и не воспроизводить, не изменять и не строить модели из планов дома Драммонда без предварительного приобретения полного плана дома.
Имя:
Электронная почта:
Я прочитал и принимаю эти условия
Я также хотел бы получать информационный бюллетень Drummond House Plans
Я также хотел бы получать полезные советы и другие предложения от Drummond House Plans
Отправить это другу
Спасибо! Этот план был отправлен вашему другу.
Ошибка с google reCaptcha! Попробуйте еще раз
Ваш e-mail:
Кому:
Адреса не будут использоваться в рекламных целях.
Сообщение:Здравствуйте, я нашел этот план дома на DrummondHousePlans.
com и подумал, что он может вас заинтересовать.
Вы можете отредактировать это сообщение: осталось 251 символ
Отправить мне копию этого письма
Я хочу получать информационный бюллетень Drummond House Plans
Я также хотел бы получать полезные советы и другие предложения от Drummond House Plans
Этот план является частью коллекции экологических планов домов и поэтому имеет структуру стен с лучшей энергоэффективностью. Чтобы обеспечить превосходную изоляцию для каждого из наших экологических домов, стены сделаны из двойного каркаса 2×4 на расстоянии 24 дюйма друг от друга. Таким образом, необходимое количество древесины аналогично количеству традиционного дома, в котором используются блоки 2×6, расположенные через каждые 16 дюймов. Кроме того, эти две стены также расположены в шахматном порядке, чтобы максимально сократить тепловые мосты, то есть непрерывные элементы, которые создают потери тепла изнутри наружу дома.
В качестве изоляционного материала, используемого в этом разрезе стены, используется целлюлоза. Это на 100% переработанный материал, который идеально облегает все полости в стенах для оптимальной изоляции. Для получения дополнительной информации или для покупки традиционной строительной версии, пожалуйста, свяжитесь с нашей службой поддержки клиентов.
План дома в деревенском стиле — 3 спальни 2 ванные комнаты 1905 кв. футов План #929-8
Получите персональную помощь
- Дом /
- Стиль /
- Страна
Основные характеристики
1905
кв. футов
3
Кровати
2
Ванные комнаты
1
Полы 3
Выберите параметры набора планов Что включено?
Набор PDF — $1450.00 Неограниченная сборка в канадских долларах — 2550,00 долларов США.
Учебный набор — $1250,00Мгновенная загрузка после оплаты
Выберите параметры фундамента Crawlspace — +$0.00 Подвал — +$380.00 Плита — +$380.00
Выберите параметры кадрирования Дерево 2×4 — +$0.00 Дерево 2×6 — +380,00$
| Правое чтение в обратном направлении | 230,00 $ | |
| Выберите этот вариант, чтобы изменить планы и сделать текст и размеры читаемыми. | ||
| 012345678910 | Дополнительные строительные наборы$60. Дополнительные печатные копии плана (можно заказать во время покупки и в течение 90 дней с даты покупки). | |
| Аудио Видео Дизайн | 100,00 $ | |
| Получите накладной лист с рекомендуемым размещением аудио- и видеокомпонентов. | ||
| Руководство по строительству | $39,00 | |
Изучите основные идеи строительства с помощью этих четырех подробных схем, на которых обсуждаются электрические, сантехнические, механические и структурные темы. | ||
| Список материалов | $300,00 | |
| Таблица строительных материалов, необходимых для строительства инфраструктуры вашего нового дома. Обратите внимание, что списки материалов не будут отражать такие дополнения, как альтернативные варианты фундамента и каркаса. | ||
Итого
$1450,00
Гарантия лучшей ценыИли заказать по телефону: 1-800-913-2350
Вау! Стоимость создания отчетов всего $4,99 с кодом CTB2023 (Ограничение 1)
В этом отчете будет представлена смета расходов с учетом местоположения и строительных материалов.
Получить отчет о затратах на строительство
Получите персональную помощь
Пожалуйста, позвоните мне как можно скорее.
Когда вы хотите начать строительство? — Выберите -0-3 месяца3-6 месяцев6-12 месяцевБолее одного годаНеобходимо продать дом
У вас много? — Выберите -NoYesIn ProcessMultiple Lots
Вы работаете со строителем? — Выберите -NoYesOwner/Builder
Где вы планируете строить?
— Select Country -USACanadaEuropeOther- Select State -AlabamaAlaskaArizonaArkansasCaliforniaColoradoConnecticutDelawareDistrict of ColumbiaFloridaGeorgiaHawaiiIdahoIllinoisIndianaIowaKansasKentuckyLouisianaMaineMarylandMassachusettsMichiganMinnesotaMississippiMissouriMontanaNebraskaNevadaNew HampshireNew JerseyNew MexicoNew YorkNorth CarolinaNorth DakotaOhioOklahomaOregonPennsylvaniaRhode IslandSouth CarolinaSouth DakotaTennesseeTexasUtahVermontVirginiaWashingtonWest VirginiaWisconsinWyomingAmerican SamoaArmed Forces AmericasArmed Forces EMEAArmed Forces PacificFederated States of MicronesiaGuamMarshall IslandsNorthern Mariana IslandsPalauPuerto RicoVirgin IslandsAlbertaBritish ColumbiaManitobaNew BrunswickNewfoundland and LabradorNova ScotiaNorthwest TerritoriesNunavutOntarioPrince Edward IslandQuebecSaskatchewanYukonUnited States Minor Outlying IslandsOutside of США/Канада
Пришлите и мне свой информационный бюллетень!
Телефон: 1-800-913-2350
Время работы: Пн-Пт 8:30-8:30 (восточноевропейское время)
Видеть
Условия
и Политика конфиденциальности.
Спасибо за вопрос.
Мы свяжемся с вами в ближайшее время.
- Дом /
- Стиль /
- Страна
Основные характеристики
1905
кв. футов
3
Кровати
2
Ванны
1
Этажность
2
Гаражи
Описание плана
Уютное крыльцо и выступающие фронтоны с декоративными кронштейнами добавляют привлекательности этому традиционному семейному дому разделенной планировки. Большая комната и столовая могут похвастаться соборным потолком и выходом на просторную веранду с собственным встроенным грилем и раковиной для развлечения на заднем дворе. Прихожая от гаража включает в себя кладовую, шкафы и сиденье для снятия обуви. В главной спальне есть две гардеробные и ящик для белья, а также просторная ванная комната с двумя раковинами.
Этот план можно настроить!
Расскажите нам о ваших желаемых изменениях, чтобы мы могли подготовить смету на услуги дизайна.
Нажмите кнопку, чтобы отправить запрос на расценки, или позвоните по телефону 1-800-913-2350.
Изменить этот план
Планы этажей
План этажа — основной этаж
Реверс
BUILDER Advantage Program
PRO BUILDERS:
Вступайте в клуб и сэкономьте 5% на первом заказе, а также получите эксклюзивные скидки и многое другое.
ПРИСОЕДИНЯЙТЕСЬ БЕСПЛАТНО
Нажмите, чтобы получить отчет о тенденциях
План этажа — Верхний этаж
Реверс
Полные характеристики и функции
Основные функции
спальни: 3
Ванные: 2
Истории: 1
Гаражи: 2
Dimension
Глубина: 63 ‘2 «
Dimension
: 63′ 2″
. ‘ 3 дюйма
Ширина : 65 футов 4 дюйма
Площадь
Всего : 1905 кв/фт
Бонус: 472 кв/фт
Первый этаж: 1905 кв/фт высота 9′
Гараж: 616 кв/фт
веранды, бонусные комнаты или палубы.
Потолочный велосипед
Бонусный потолок: 8 ‘
Основной потолок: 9′
Кровя
Первичный шаг: 9:12
Фаммин0003
Вторичное шаг: 9:12
Внешняя стена Кадрирование
Внешняя стена.
Обеденный бар
Прогулка в кладовой Кабинет Кладовая
Дополнительные функции комнаты
Большая комната Гостиная
Play Flex Room
Солярий
Garage Features
Side Entry Garage
Outdoor Spaces
Covered Front Porch
Covered Rear Porch
Outdoor Kitchen Grill
Screened Porch
Rooms
Bedroom 2:
145 sq
Спальня 3:
150 кв. футов ширина 11 футов 6 дюймов x глубина 13 футов
Крытая передняя веранда:
205 кв.0003
92 кв. фута
Столовая:
160 кв. футов ширина 10 футов x глубина 16 футов
Фойе:
57 кв.
футов ширина 5 футов 2 дюйма x глубина 11 футов
Гараж:
Гараж:
кв./фут ширина 22 фута 10 дюймов x глубина 25 футов
Гаражное хранилище:
20 кв. футов ширина 8 футов 8 дюймов x глубина 2 фута 4 дюйма
Большое помещение:
277 кв. футов ширина 17 футов 4 дюйма x глубина 16 футов
Кухня:
157 кв. футов ширина 13 футов 10 дюймов x глубина 11 футов 4 дюйма
Главная спальня:
208 кв. футов ширина 13 футов x глубина 16 футов
Дополнительное дополнительное помещение:
472 кв/фут ширина 13 футов 10 дюймов x глубина 25 футов
Затененное крыльцо:
273 кв/фут ширина 21 фут x глубина 12 футов
Подсобное помещение:
75 кв.футов ширина 11 футов 6 дюймов x глубина 6 футов 6 дюймовЧто входит в этот набор планов
См. образец набора планов
Этот дизайнер берет 49,00 долларов США за рассмотрение изменений плана и подготовку сметы ваших изменений.
Эта плата может быть применена к изменениям вашего плана после того, как вы перейдете к услуге. Пожалуйста, позвоните, если вы хотите заказать смету изменения плана.
Приобретение набора САПР дает вам неограниченную лицензию на сборку. Все остальные наборы планов, за исключением единого набора для торгов, позволяют построить дом один раз.
- Титульный лист — визуализация фасада дома.
- План фундамента. На этом плане дается план фундамента, включая опорные стены, выкопанные и не выкопанные участки, если таковые имеются, примечания и детали фундамента, а также каркас пола.
- Подробные планы этажей — на этих планах показано расположение каждого этажа дома. Комнаты и внутренние помещения тщательно просчитаны, и даны ключи для деталей поперечного сечения, представленных позже в планах, а также расписания окон и дверей. На этих планах также может быть указано расположение кухонной техники и сантехники, а также места для электрических приборов, выключателей и розеток.

- Внутренние фасады. Внутренние фасадные чертежи показывают предполагаемую компоновку шкафов, подсобных помещений, каминов, книжных шкафов, встроенных модулей и других специальных элементов интерьера в зависимости от характера и сложности предмета.
- План крыши. На плане крыши показан вид с высоты птичьего полета на общую компоновку крыши, гребни, долины и скаты.
- Спецификации дверей и окон — Размеры, количество и описание всех дверей и окон, показанных на плане.
- Внешние фасады — включены передняя, задняя, левая и правая стороны дома. Внешние материалы, детали и размеры также даны.
- Детали поперечного сечения / сечения стены. Вызываются важные изменения высоты пола, потолка и крыши или отношения одного уровня к другому. Также показаны, если применимо, внешние детали, такие как перила и окантовка.
- Строительный план – общий план и необходимые детали для потолка, каркаса второго этажа (если применимо) и конструкции крыши.
Если используются фермы, рекомендуется обратиться к местному производителю ферм для проектирования ферм в соответствии с вашими местными нормами и правилами. - Каждый план разработан в соответствии с Кодексом жилого фонда CABO для одной и двух семей или Международным жилищным кодексом, действовавшим на момент создания плана. Модификации могут быть необходимы для соответствия применимым строительным нормам, постановлениям, местным климатическим и географическим критериям проектирования. При необходимости проконсультируйтесь со строителем, архитектором или другим специалистом в области строительства. Инструкции производителя должны соблюдаться для всех материалов, приборов и систем. Схемы отопления/кондиционирования воздуха, схемы сантехнических труб и схемы электропроводки не включены. Проконсультируйтесь с местным подрядчиком по механике для систем, подходящих для местных климатических условий.
*Ознакомьтесь с важной информацией перед покупкой
Цены
Варианты плана
Набор PDF
Лучшая цена!1450,00 $
Наборы планов в формате PDF лучше всего подходят для быстрой электронной доставки и недорогой местной печати.
CAD Unlimited Build
2550,00 $
Для использования профессиональными дизайнерами для внесения существенных изменений в план вашего дома и недорогой локальной печати.
Учебный набор
$1250,00
Один электронный набор только для целей торгов. Незаконное здание, предназначенное для строительства.
Варианты фундамента
Подполье
0,00 $
Идеально подходит для полунаклонных или ровных участков, дом можно построить вне уклона, обычно 18–48 дюймов.
Подвал
380,00 $
Идеально подходит для ровных участков, нижнего этажа дома, частично или полностью под землей.
Плита
380,00 $
Идеально подходит для однослойного бетона, заливаемого прямо на грунт.
*Подготовка платных вариантов может занять некоторое время. Пожалуйста, позвоните, чтобы подтвердить.
Варианты кадрирования
Wood 2×4
$ 0,00
Вузы 2×4 Внешние стены
Дерево 2×6
$ 380,00
Wood 2×6 ВСЕГДА
$ 380,00
Wood 2×6.
Пожалуйста, позвоните, чтобы подтвердить.
Дополнительные параметры
Обратное чтение справа
230,00 $
Выберите этот параметр, чтобы изменить планы и сделать текст и размеры читаемыми.
Дополнительные конструкторы
60,00 $
Дополнительные печатные копии плана (можно заказать во время покупки и в течение 90 дней с даты покупки).
Дизайн аудио-видео
100,00 $
Получите накладной лист с рекомендуемым размещением аудио- и видеокомпонентов.
Руководство по строительству
$39,00
Узнайте об основных идеях строительства с помощью этих четырех подробных схем, на которых обсуждаются электрические, сантехнические, механические и структурные темы.
Список материалов
$300,00
Таблица строительных материалов, необходимых для строительства инфраструктуры вашего нового дома. Обратите внимание, что списки материалов не будут отражать такие дополнения, как альтернативные варианты фундамента и каркаса.


Не самое изящное решение, но имеет право на существование.
00/каждый

Если используются фермы, рекомендуется обратиться к местному производителю ферм для проектирования ферм в соответствии с вашими местными нормами и правилами.